direct naar inhoud van 5.2 Toetsing aan de wizigingsvoorwaarden
Plan: Woningsplitsing Kockerseweg 71 Boekend
Status: vastgesteld
Plantype: wijzigingsplan
IMRO-idn: NL.IMRO.0983.BPL2011016KCKSWG71-VA01

5.2 Toetsing aan de wizigingsvoorwaarden

De beoogde splitsing van de langgevelboerderij in twee nieuwe burgerwoningen aan de Kockerseweg 71 is getoetst aan alle bovenstaande wijzigingsvoorwaarden. In deze paragraaf worden de uitkomsten van deze toetsing beschreven.

Ad 1

Op de verbeelding bij de bestemming 'Agrarisch' vallen zowel de locatie van de langgevelboerderij als de locatie van de glastuinbouwkas binnen een opgenomen bouwvlak. Zie uitsnede van de verbeelding bij paragraaf 1.3 van deze plantoelichting.

Ad 2

De familie Titulaer heeft het eigen glastuinbouwbedrijf 10 jaar geleden beëindigd. De glastuinbouwkas is nu nog verhuurd aan een derde. Dit huurcontract wordt opgezegd en de kas zal worden gesloopt en daarmee zullen alle agrarische bedrijfsactiviteiten ter plaatse definitief beëindigd zijn. De familie Titulaer heeft dit vastgelegd in een schriftelijke verklaring welke als bijlage 1 bij deze plantoelichting is gevoegd en hiervan integraal deel uitmaakt.

Ad 3

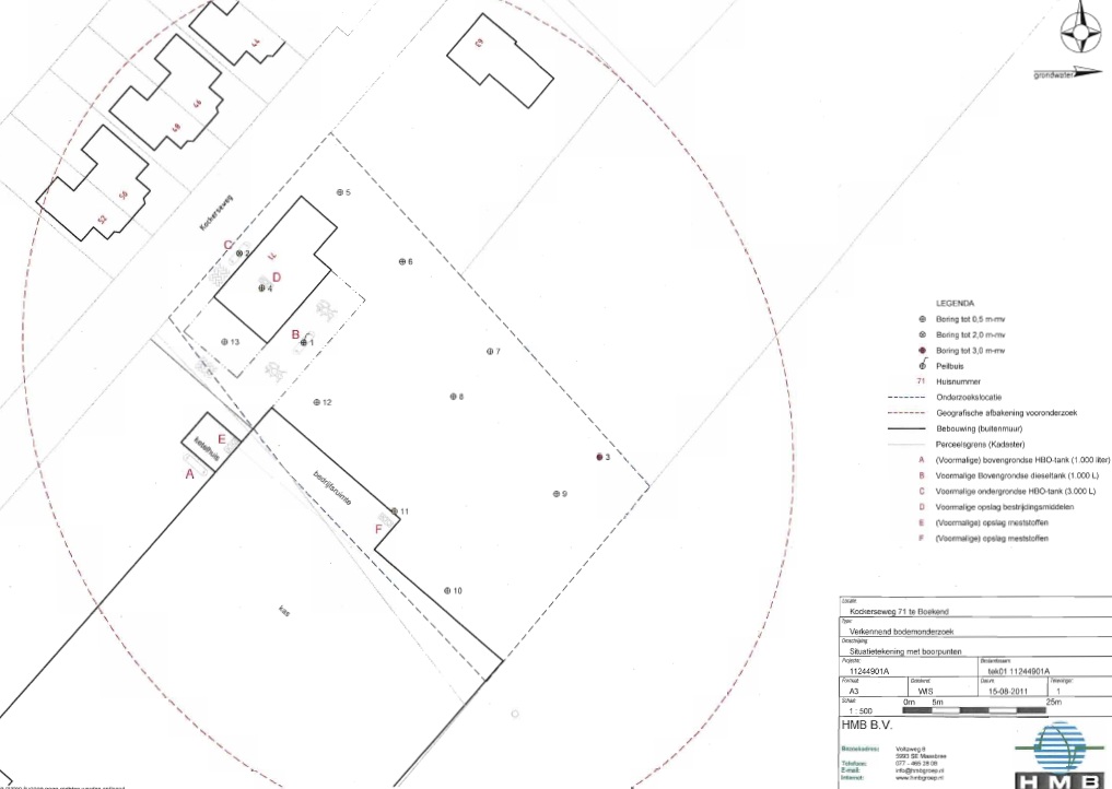
In het kader van het onderhavige bouwproject worden binnen het plangebied nieuwe bodemgevoelige functies toegelaten in de vorm van twee burgerwoningen. Voordat door middel van een wijzigingsplan de bestemming 'Agrarisch' wordt gewijzigd in 'Wonen' zal er inzicht moeten zijn of de bodem- en grondwaterkwaliteit een dergelijke bebouwing en gebruik ook mogelijk maken.

Door HMB BV te Maasbree is een verkennend bodemonderzoek verricht naar de bodem- en grondwaterkwaliteit van het plangebied1 . De oorspronkelijke gestelde hypothese 'onverdachte locatie' gold voor een deel van het plangebied. Deze hypothese gold niet voor de locatie waar een voormalige bovengrondse dieseltank (1000 liter) was gelegen en voor de locatie van de voormalige tuinbouwkas op het zuidwestelijke deel van het perceel.

In deze gronden werd namelijk een licht verhoogd gehalte aan minerale olie in het grondwater respectievelijk licht verhoogde gehalten aan bestrijdingsmiddelen en/of zware metalen verwacht. Ter plaatse van de te splitsen langgevelboerderij gold evenwel de hypothese 'onverdacht'.

Uit het bovengenoemde verkennend bodemonderzoek moet geconcludeerd worden dat de hypothese 'onverdachte locatie' geen stand houdt. Enkele parameters zijn aangetoond in een gehalte waarbij in lichte mate sprake is van verontreiniging. In het kader van het onderzoek zijn geen aanwijzingen gevonden die duiden op één of meer verontreinigingskernen, zodat mag worden aangenomen dat de aangetoonde licht verhoogde gehalten diffuus op het betreffende terrein(deel) voorkomen. Een nader bodemonderzoek met een gewijzigde hypothese wordt in principe niet noodzakelijk geacht.

afbeelding "i_NL.IMRO.0983.BPL2011016KCKSWG71-VA01_0018.jpg"

Afbeelding 15: Boringen en peilbuizen onderzoekslocatie

De vastgestelde milieuhygiënische bodemkwaliteit vormt, gelet op de beleidsnotitie 'Doorontwikkeling meersporenbeleid aanpak bodemverontreiniging in Limburg' van de Beleidsgroep Bodembeheer Limburg (21-10-2009), geen belemmering voor het wijzigen van de bestemming.

Ten aanzien van eventueel bij bouwwerken vrijkomende grond geldt, dat indien de grond elders zal worden gebruikt, deze te allen tijde onderzocht dient te worden conform de regels van het Besluit bodemkwaliteit om zo de definitieve hergebruikmogelijkheden vast te stellen. Wanneer de grond vrijkomt binnen een locatie en in een later stadium onbewerkt weer binnen hetzelfde perceel wordt hergebruikt, geldt geen aanvullende onderzoeksinspanning.

Voor de volledige inhoud van het onderzoek, wordt verwezen naar de rapportage die als bijlage 2 onderdeel uitmaakt van deze plantoelichting.

Ad 4

Bedrijven en Milieuzonering; Staat van bedrijfsactiviteiten

De indeling van de bedrijven c.q. bedrijfsactiviteiten is vastgelegd een Staat van bedrijfsactiviteiten die is opgenomen in de VNG brochure 'Bedrijven en milieuzonering', van maart 2009. In deze Staat worden bedrijfsactiviteiten ingedeeld in een zestal categorieën met toenemende potentiële milieuemissies. Op grond van deze Staat kan een beleidsmatige selectie worden gemaakt van de op het plangebied toe te laten bedrijfsactiviteiten. De bedrijven zijn op basis van de Standaard Bedrijfs -Indeling (SBI-codes) in deze Staat gerangschikt. Per bedrijfsactiviteit is voor elk ruimtelijk relevante milieucomponent (geur, stof, geluid en gevaar) een richtafstand aangegeven die in beginsel moet worden aangehouden tussen een bedrijf en milieugevoelige objecten (woningen) om hinder en schade aan mensen binnen aanvaardbare normen te houden. Bij het bepalen van deze richtafstanden zijn de volgende uitgangspunten gehanteerd:

  • het betreft 'gemiddelde' moderne bedrijfsactiviteiten met gebruikelijke productieprocessen en voorzieningen;
  • de richtafstanden hebben betrekking op de omgevingstype 'rustige woonwijk' , 'rustig buitengebied' of vergelijkbare omgevingstypen;
  • de richtafstanden bieden in beginsel ruimte voor normale groei van de bedrijfsactiviteiten.

Invloed milieuhinder op het plangebied

Het plangebied kan gekwalificeerd worden als een 'rustig woonwijk'. Het plangebied ligt in de directe nabijheid van de volgende inrichtingen:

  • 6. Novoferm, fabricage garagedeuren, Kockerseweg 59 (aannemersbedrijf met werkplaats b.o. < 1000 m2/ SBI-code 45.3/milieucategorie 2). De aanbevolen afstand tot woningen bedraagt 30 meter. De feitelijke afstand tussen deze inrichting en de beoogde nieuwe burgerwoningen bedraagt ca. 60 meter;
  • 7. Autohandel- en autoreparatie en –servicebedrijf, Kockerseweg 51 (SBI-code 501, 502, 504/ milieucategorie 2). De aanbevolen afstand tot woningen bedraagt 30 meter. De feitelijke afstand tussen deze inrichting en de beoogde nieuwe burgerwoningen bedraagt ca. 70 meter;
  • 8. Kapsalon, Kockerseweg 56 ( SBI-code 9302/milieucategorie 1). De aanbevolen afstand tot woningen bedraagt 10 meter. De feitelijke afstand tussen deze inrichting en de beoogde nieuwe burgerwoningen bedraagt ca.20 meter.

Gelet op de aanwezige ruimtelijke scheiding (afstanden) tussen de beoogde woningen en de genoemde inrichtingen behoeft redelijkerwijs niet gevreesd te worden dat deze inrichtingen zullen leiden tot een onaanvaardbaar woon- en leefklimaat in de beoogde woningen.

Geurhinder

Voor het realiseren van een aanvaardbare woon- en leefklimaat en om te voorkomen dat agrarische bedrijven in hun ontwikkeling belemmerd worden, is het bepaalde in de Wet geurhinder en veehouderij van belang. De Wet geurhinder en veehouderij (Wgv) vormt vanaf 1 januari 2007 het toetsingskader voor de milieuvergunning, als het gaat om geurhinder vanwege dierenverblijven van veehouderijen. De Wgv vervangt de Wet stankemissie veehouderijen die van toepassing was in reconstructiegebieden en de drie 'stankrichtlijnen' die van toepassing waren in de rest van Nederland: de Richtlijn Veehouderij en Stankhinder 1996, de Brochure Veehouderij en Hinderwet 1985 en het Cumulatierapport.

De gemeenteraad van de gemeente Venlo heeft geen Verordening geurhinder en veehouderij vastgesteld. Hierdoor blijven de wettelijke normen uit de Wgv gelden. Voor geurgevoelige objecten (ggo's) in het buitengebied gelden de wettelijke standaardnormen; 3 OuE /m3 als maximale geurbelasting op ggo's binnen de kernen en 14 OuE /m3 als maximale geurbelasting op ggo's in het buitengebied binnen een concentratiegebied.

In de omgeving van het plangebied en zelf in heel Boekend zijn geen intensieve veehouderijen aanwezig, zodat agrarische geurhinder zich niet zal voordoen.

Ad 5

De Wet geluidhinder (Wgh) is van toepassing op woningen, andere geluidsgevoelige gebouwen (onder meer onderwijsgebouwen, ziekenhuizen, verpleeghuizen en andere gezondheidszorggebouwen) en geluidsgevoelige terreinen (onder meer woonwagenstandplaatsen). In de omgeving van het plangebied is geen railinfrastructuur of een gezoneerd industrieterrein zoals bedoeld in art. 40 Wgh aanwezig. Op dit punt is de Wet geluidhinder niet van toepassing.

Uit art. 74 Wgh vloeit voort dat in principe alle wegen voorzien zijn van een geluidzone, met uitzondering van wegen die zijn gelegen binnen een als woonerf aangeduid gebied of wegen waarvoor een maximum snelheid van 30 km/uur geldt. De zonebreedte is afhankelijk van het gebied (stedelijk of buitenstedelijk) en het aantal rijstroken. Binnen de zones moet een akoestisch onderzoek worden verricht. De maximaal toelaatbare geluidsbelasting voor woningen en andere geluidsgevoelige gebouwen en terreinen bedraagt in die zone op de buitengevel 48 dB (art. 82 Wgh).

Het plan is getoetst aan het Akoestisch onderzoek Effectgebied RW74 (rapportnr. 0217132.02 versie 1.1 d.d. 15 juli 2010) dat ten behoeve van het tracebesluit RW74, voor de A73, is uitgevoerd. Op basis van de resultaten van dit onderzoek kan zondermeer worden gesteld dat de geluidbelasting vanwege de A73 op het plan voldoet aan de voorkeursgrenswaarde van 48 dB.