direct naar inhoud van Toelichting
Plan: Kerkstraat 1 Heeswijk-Dinther
Status: vastgesteld
Plantype: wijzigingsplan
IMRO-idn: NL.IMRO.1721.WPKerkstraat1-vg01

Toelichting

Hoofdstuk 1 Inleiding

1.1 Aanleiding

De eigenaren van het perceel Kerkstraat 1 in Heeswijk-Dinther zijn voornemens het bestaande kantoorpand naar 8 huurappartementen te herontwikkelen.

De realisatie van 8 appartementen is op basis van het geldend bestemmingsplan bij recht niet mogelijk. In de ter plaatse geldende bestemming ‘Kantoor’ is echter een wijzigingsbevoegdheid opgenomen op basis waarvan, onder voorwaarden, woningen kunnen worden toegevoegd.

Middels dit wijzigingsplan wordt uitvoering gegeven aan de betreffende wijzigingsbevoegdheid waardoor het juridisch-planologisch mogelijk wordt om maximaal 8 woningen toe te voegen aan de Kerkstraat 1 te Heeswijk-Dinther. Aangetoond zal worden dat dit wijzigingsplan voldoet aan alle voorwaarden als genoemd in de wijzigingsbevoegdheid.

1.2 Ligging plangebied

Het plangebied is gelegen aan de Kerkstraat 1 te Heeswijk-Dinther. Dit kantoorperceel grenst aan de met de achterzijde aan de woningen aan de Edmundus van Dintherstraat en aan de zuidzijde aan de woning Kerkstraat 1a en de woningen aan de Schoolstraat. Kadastraal is het plangebied bekend als gemeente Heeswijk-Dinther, sectie C, nummer 5296. In onderstaande afbeelding wordt de ligging van het plangebied in de kern Heeswijk-Dinther met een geel kruis weergegeven.

afbeelding "i_NL.IMRO.1721.WPKerkstraat1-vg01_0001.png"

Ligging plangebied, met een geel kruis weergegeven (bron: www.pdok.nl)

In onderstaande afbeelding is nader ingezoomd op het plangebied. De begrenzing van het plangebied wordt in deze afbeelding eveneens globaal weergegeven, voor de exacte begrenzing wordt verwezen naar de verbeelding behorende bij dit wijzigingsplan.

afbeelding "i_NL.IMRO.1721.WPKerkstraat1-vg01_0002.png"

Luchtfoto van het plangebied, met een geel kruis weergegeven (bron: www.pdok.nl)

1.3 Vigerend bestemmingsplan

Het bestemmingsplan De Kommen van Bernheze van de gemeente Bernheze is van toepassing op het perceel Kerkstraat 1 te Heeswijk-Dinther. Dit bestemmingsplan is vastgesteld op 1 juni 2011.

Het perceel aan de Kerkstraat 1 te Heeswijk-Dinther is op basis van het bestemmingsplan voorzien van een kantoor bestemming. In artikel 10 lid 3 van het bestemmingsplan De Kommen van Bernheze is een wijzigingsbevoegdheid opgenomen om de bestemming 'Kantoor' te wijzigen in de bestemming “Dienstverlening”, “Tuin” en/of “Wonen”. Deze wijzigingsbevoegdheid wordt in dit wijzigingsplan toegepast.

afbeelding "i_NL.IMRO.1721.WPKerkstraat1-vg01_0003.png"

Uitsnede vigerende bestemmingsplan, plangebied met een geel kruis weergegeven (bron: www.ruimtelijkeplannen.nl)

1.4 Leeswijzer toelichting

In hoofdstuk 2 is de huidige en de toekomstige situatie van het plangebied beschreven. Vervolgens is in hoofdstuk 3 een beschrijving opgenomen van de relevante beleidsstukken. In hoofdstuk 4 is getoetst of het initiatief aan de Kerkstraat 1 te Heeswijk-Dinther past binnen de voorwaarden van de wijzigingsbevoegdheid uit artikel 10 lid 3 van het bestemmingsplan. Tot slot is in hoofdstuk 5 de economische en maatschappelijke uitvoerbaarheid beschreven.

Hoofdstuk 2 Planbeschrijving

Heeswijk en Dinther zijn ontstaan op de oeverwal die tussen de beekdalen van de Aa en Leijgraaf is gelegen. Op de brede dekzandrug zijn twee kernen ontstaan te midden van een complex van akkers en weilanden, waar een kleinschalig kampenlandschap is ontstaan. Door uitbreiding van de bebouwing op aangrenzende akkers zijn de kernen Heeswijk en Dinther aan elkaar gegroeid.

De ruimtelijke structuur wordt bepaald door de aaneengesloten lintbebouwing van de voormalige kernen, parallel aan het dal van de Aa. Na de samenvoeging is tussen Heeswijk en Dinther, rondom Plein 1969, een nieuw dorpscentrum met winkels en voorzieningen gerealiseerd. De centrale ruimtes van de vroegere dorpen (met karakteristieke open ruimtes en monumentale bomen) zijn, net als de historische lintstructuur, nog herkenbaar aanwezig. De Hoofdstraat, welke later over gaat in de Sint Servatiusstraat, de Edmundus van Dintherstraat en de Brouwerstraat, verbindt deze twee centra en vormt de hoofdontsluiting van de kern.

2.1 Beschrijving huidige situatie plangebied

Door de vorm van het perceel grenst het perceel aan de achterzijde aan de woningen aan de Edmundus van Dintherstraat en aan de zuidzijde aan de woning Kerkstraat 1a en de woningen aan de Schoolstraat. In de directe omgeving van het plangebied is wonen de voornaamste functie. Nabij het plangebied, aan de westzijde, bevindt zich een horecastrook.

afbeelding "i_NL.IMRO.1721.WPKerkstraat1-vg01_0004.jpg"

Foto zijde kantoorgebouw, vanaf de Edmundus van Dintherstraat

De schoolstraat is ter hoogte van het plangebied afgesloten voor gemotoriseerd verkeer

afbeelding "i_NL.IMRO.1721.WPKerkstraat1-vg01_0005.jpg" Schoolstraat.

De luchtfoto in paragraaf 1.2 geeft een beeld van de huidige situatie in het plangebied en de directe omgeving van het plangebied. Zoals blijkt uit de luchtfoto is een groot deel van het perceel bebouwd.

In 1993 is het huidige kantoorpand gerealiseerd. In het pand, dat eigendom is van Van Soest Accountancy Bernheze B.V., zat vijf jaar lang administratiekantoor Van Soest en Partners uit Heesch.

afbeelding "i_NL.IMRO.1721.WPKerkstraat1-vg01_0006.jpg"

Het pand, met een inhoud van ruim 1200 m3, heeft gedeeltelijk een verdieping. Het geheel is met een platte kap afgedekt. Op de begane grond bevinden zich momenteel een receptie, diverse kantoorruimten, spreekkamers, archiefruimte, cv-ruimte, twee toiletruimten, keuken en twee trapopgangen naar de eerste verdieping.
Op de eerste verdieping bevinden zich diverse kantoorruimten, kantine en een serverruimte.

afbeelding "i_NL.IMRO.1721.WPKerkstraat1-vg01_0007.jpg"

2.2 Toekomstige situatie plangebied

Er is een plan ontwikkeld waarbij het bestaande kantoorgebouw wordt getransformeerd voor 8 huurappartementen. Het gebouw zelf blijft in hoofdzaak hetzelfde. Wel worden er raam- en deuropeningen toegevoegd en gewijzigd, een balustrade en balkons toegevoegd voor de verdieping aan de westzijde (achterkant) en schilderwerk gedaan.

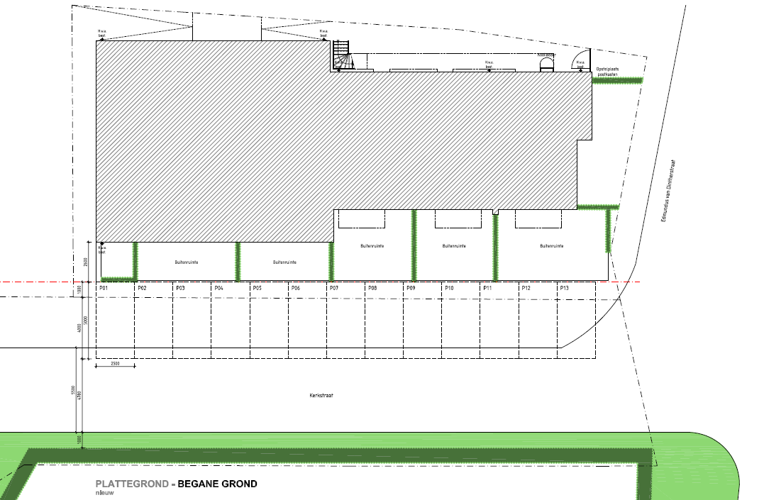
De appartementen variëren in grootte en bestaan allemaal uit een woon/ leefruimte met keukenblok, een slaapkamer, een badkamer en een (binnen)bergruimte. Via de buitenzijde aan de zijde van de Schoolstraat zijn de (buiten)bergingen bereikbaar. Drie appartementen worden gerealiseerd op de verdieping, deze worden voorzien van een balkon. Op de begane grond heeft elk appartement de beschikking over een buitenruimte.

afbeelding "i_NL.IMRO.1721.WPKerkstraat1-vg01_0008.png"

Aansluitend aan de buitenruimten worden 13 parkeerplaatsen gerealiseerd van elk 2,5m breed.

afbeelding "i_NL.IMRO.1721.WPKerkstraat1-vg01_0009.png"

Hoofdstuk 3 Beleidskader

3.1 Rijksbeleid

3.1.1 Ladder voor duurzame verstedelijking

Op 1 oktober 2012 is de ‘ladder voor duurzame verstedelijking' toegevoegd aan het Besluit ruimtelijke ordening (Bro). De ladder ondersteunt gemeenten en provincies in vraaggerichte programmering van hun grondgebied, het voorkomen van overprogrammering en de keuzes die daaruit volgen. Het doel van de ladder voor duurzame verstedelijking is een goede ruimtelijke ordening door een optimale benutting van de (bestaande) ruimte in stedelijke gebieden. Het Rijk wil met de introductie van de ladder vraaggerichte programmering bevorderen. De ladder beoogt een zorgvuldige afweging en transparante besluitvorming bij alle ruimtelijke en infrastructurele besluiten.

De ladder kent drie treden die achter elkaar worden doorlopen. De eerste trede bevat de vraag of er (regionale) behoefte is aan de ontwikkeling. De tweede trede vraagt of (een deel van) deze behoefte op te vangen is in bestaand stedelijk gebied. De laatste trede vraagt (indien het antwoord op de tweede vraag negatief is) of de beoogde locatie multimodaal ontsloten is of kan worden.

Het mogelijk maken van 8 huurappartementen is geen stedelijke ontwikkeling als bedoeld in artikel 1.1.1. lid 1 sub i van het Besluit ruimtelijke ordening. Toetsing aan de Ladder voor duurzame verstedelijking is dan ook niet nodig.

3.2 Provinciaal beleid

Het relevante provinciaal beleid is vastgelegd in 'Verordening ruimte 2014' en 'Wijziging Verordening ruimte 2014, actualisatie 2017'.

Een instrument waarmee provincies regels stellen waaraan gemeenten zich moeten houden bij het ontwikkelen van onder andere bestemmingsplannen. Door deze regels weten gemeenten al in een vroeg stadium waaraan ze toe zijn.


Provinciale Staten hebben op 10 juli 2015 de Verordening ruimte 2014 opnieuw vastgesteld, op 15 juli 2015 is deze in werking getreden. De Verordening ruimte 2014 regelt diverse ruimtelijke onderwerpen, welke op perceelniveau per onderwerp zijn begrensd en visueel op een kaart met verschillende kaartlagen zijn weergegeven. Hierdoor is voor ieder gebied in Noord-Brabant duidelijk welke regels er wat betreft provinciaal ruimtelijk beleid gelden. De ontwikkeling waar het hier om gaat betreft het planologisch mogelijk maken van 8 huurappartementen in 'bestaand stedelijk gebied - kern in landelijk gebied'. Zie onderstaande uitsnede van www.ruimtelijkeplannen.nl.

afbeelding "i_NL.IMRO.1721.WPKerkstraat1-vg01_0010.png"

In de Verordening ruimte staat opgenomen dat een bestemmingsplan dat voorziet in een stedelijke ontwikkeling uitsluitend is gelegen in bestaand stedelijk gebied. Onderhavige ontwikkeling (stedelijk van aard) ligt in het bestaand stedelijk gebied. Daarnaast moet de toelichting bij een bestemmingsplan gelegen in bestaand stedelijk gebied dat voorziet in nieuwbouw van woningen een verantwoording bevatten over de wijze waarop:

  • a. de afspraken die daarover zijn gemaakt in het regionaal ruimtelijk overleg worden nagekomen;

Onderhavige ontwikkeling voldoet hieraan, zie daartoe hetgeen hieronder.

  • b. de beoogde nieuwbouw zich verhoudt tot de afspraken bedoeld onder a, en tot de beschikbare harde plancapaciteit voor woningbouw. Het college van B&W van de gemeente Bernheze heeft op 13 oktober 2015 besloten om op basis van een aantal voorwaarden ruimte te bieden aan particuliere woningbouwinitiatieven. De ruimte inclusief de voorwaarden die de gemeente hiermee aan particulieren bied is passend binnen de afspraken die de gemeente in het RRO heeft gemaakt. Ook moet rekening gehouden worden met artikel 3 inzake bevordering van ruimtelijke kwaliteit. Voor onderhavig plan is het volgende van toepassing (art.3.1, Zorgplicht voor ruimtelijke kwaliteit). De toelichting bij een bestemmingsplan dat voorziet in een ruimtelijke ontwikkeling bevat een verantwoording dat:
      • het plan bijdraagt aan de zorg voor het behoud en de bevordering van de ruimtelijke kwaliteit van het daarbij betrokken gebied en de naaste omgeving, waaronder in ieder geval een goede landschappelijke inpasbaarheid;
      • toepassing is gegeven aan het principe van zorgvuldig ruimtegebruik.

Het plan is gelegen in de bebouwde kom van Heeswijk-Dinther en betreft een herontwikkelingslocatie. Door hier woningen toe te voegen is dergelijk ruimtebeslag niet op een uitbreidingslocatie benodigd. Het plangebied is aan drie zijden reeds ingekapseld door bestaande woningen/ percelen. De nieuwe woningen zijn absoluut passend in het landschap en de omgeving.

Onder paragraaf 3.1.1 Ladder voor duurzame verstedelijking wordt nader ingegaan op de ladder voor duurzame verstedelijking. Verder wordt rekening gehouden met alle van toepassing zijnde milieuaspecten, waarop in Hoofdstuk 5nader ingegaan wordt.

3.3 Gemeentelijk beleid

3.3.1 Structuurvisie Bernheze

De Structuurvisie Bernheze die op 11 februari 2010 door de gemeenteraad van Bernheze is vastgesteld geeft een samenhangend beeld van de gewenste ruimtelijke ontwikkeling van de hele gemeente tot het jaar 2015.
De gemeente Bernheze bevat vijf dorpskernen: Heesch, Heeswijk-Dinther, Nistelrode, Vorstenbosch en Loosbroek. Bernheze wil een gemeente met een dorpse uitstraling blijven. Kleinschalige verstedelijking wil de gemeente niet uitsluiten, maar dient groen ingepast te zijn. Voor mensen die in de directe omgeving werken is de landelijke uitstraling van de gemeente een reden om naar een dorp te verhuizen. Bijna elk dorp heeft zijn eigen voorzieningenaanbod waardoor de afzonderlijke dorpen als zelfstandig benoemd kunnen worden. Uitbreidingen hebben vooral plaatsgevonden rondom de bestaande dorpen. Deze zijn aan de kernranden opgerekt. De komende jaren wenst de gemeente de verstedelijking te concentreren in de gebieden rondom de dorpen en op de vrijkomende percelen in de dorpen zelf (inbreiding). Hierbij is het streven gericht op kwaliteit en in mindere mate op kwantiteit. Wat betreft dorpsontwikkeling wordt ingezet op het behoud van de diversiteit van de kernen en linten. Het afwisselende karakter van kleinschalige bedrijvigheid, agrarisch gebruik en woningbouw zorgt dat het gebied dynamisch blijft. Om te voorkomen dat zowel senioren als jongeren de gemeente verlaten, wordt ingezet op kleinschalige woningbouw met passende woningtypen. Deze kwalitatieve woningbehoefte is leidend bij de locatiekeuze. Waardevolle doorzichten naar het buitengebied dienen behouden te blijven. In eventuele nieuwe uitbreidingen komt het onderliggende landschap terug in het stedenbouwkundig ontwerp. Dit alles vraagt grote aandacht voor stedenbouwkundig ontwerp en beeldkwaliteit. Plaatselijk kan ingezet worden op de realisatie van exclusieve woonbuurten. Ook hierbij wordt het onderliggende landschap als inspiratiebron gebruikt. Het landelijk wonen nabij een verstedelijkte omgeving is een kwaliteit van de gemeente. Wat grotere uitbreidingen zijn alleen gewenst aan de westzijde van de kern Heesch.

Het te ontwikkelen plangebied ligt in de bebouwde kom van Heeswijk-Dinther, nabij het centrum en heeft een kleinschalig karakter. Het betreft een herontwikkelingslocatie waarin m.n. woningen voorzien zijn die geschikt zijn voor zowel senioren als jongeren (kleine huishoudens). Aangesloten wordt bij het aanwezige bebouwingslint. Gezien bovenstaande is onderhavig plan volledig in lijn met de Structuurvisie Bernheze.

3.3.2 Volkshuisvesting

3.3.2.1 Wonen in Bernheze

In de beleidsnotitie 'Wonen in Bernheze 2008 - 2015' van de gemeente Bernheze, welke is vastgesteld door de gemeenteraad in december 2008 komt naar voren dat woningbouw gestimuleerd dient te worden. In de jaren (2007 en 2008) is er een kleine achterstand opgelopen met betrekking tot het opleveren van nieuwe woningen. Deze achterstand wordt in 2009 ingelopen, maar voor de periode 2010 - 2015 is voldoende ruimte aanwezig voor nieuwe woningbouwprojecten om het langjarig gemiddelde te handhaven. Door deze ontwikkeling worden vier nieuwe woningen toegevoegd, wat ruimte biedt aan jongeren om in Heeswijk-Dinther te blijven of (her)vestigen.

3.3.2.2 Woonvisie/ woningbouwprogramma

Het college van B&W heeft op 13 oktober 2015 besloten om weer meer ruimte te bieden voor particuliere ontwikkelingen en dat particuliere verzoeken voor woningbouw in beginsel weer mogelijk zijn als ze aan een aantal voorwaarden voldoen. Particuliere verzoeken voor woningbouw worden aan deze voorwaarden getoetst. De voorwaarden zijn als volgt:

  • 1. Het plan mag een toevoeging zijn van maximaal 6 woningen, in een andere categorie dan waarin op gemeentelijke grond wordt voorzien in dezelfde kern. Onderhavige ontwikkeling voldoet hier grotendeels aan. In de huidige situatie is sprake van een kantoorgebouw. In de nieuwe situatie gaat het om acht huurappartementen. Het gaat hier derhalve om het toevoegen van in totaal 8 woningen. 
  • 2. Het moet een volkshuisvestelijke of maatschappelijke meerwaarde hebben. Uit het woonwensenonderzoek blijkt dat er behoefte is aan kleine appartementen. In dit geval gaat het om acht kleine/ middelgrote huurappartementen. Afhankelijk van de appartementsgrootte bedraagt het huurtarief (2017) maximaal € 586,- per maand. De appartementen blijven voor tenminste 10 jaar behouden voor de sociale huur. Voldaan wordt aan de voorwaarde. 
  • 3. Het plan mag niet op maagdelijke grond worden gebouwd. Hiervan is geen sprake. Het betreft hier namelijk een herontwikkelingslocatie. Aan de gestelde voorwaarde wordt voldaan.

Hoofdstuk 4 Toetsing aan wijzigingsvoorwaarden

In dit wijzigingsplan wordt de kantoor bestemming gewijzigd in de bestemming Wonen. Bij het toepassen van de wijzigingsbevoegdheid dient te worden voldaan aan de wijzigingsvoorwaarden welke zijn opgenomen in artikel 10 lid 3 van het bestemmingsplan De Kommen van Bernheze. Deze voorwaarden, met daarbij cursief de onderbouwing dat aan de voorwaarde wordt voldaan, luiden als volgt:

  • a. de uitvoerbaarheid van de bestemming wordt aangetoond; zie Hoofdstuk 6 Uitvoerbaarheid
  • b. de belangen van derden niet onevenredig worden geschaad; de nieuwe functie wordt binnen bestaande bebouwing gerealiseerd. Omdat er sprake is van een gevoelige functie, is in Hoofdstuk 5 Sectorale aspecten onderbouwd dat omliggende functies niet worden belemmerd. Voor de eventuele hinder als gevolg verkeer en parkeren kan worden gesteld dat er door de beperkte omvang van het plan geen sprake is van een onevenredige toegenomen hinder, bovendien wordt op eigen terrein voorzien in parkeergelegenheid. Tot slot wordt opgemerkt dat voor het plan een planschade overeenkomst wordt gesloten.
  • c. er geen onevenredig nadelige gevolgen ontstaan voor het woonmilieu; Omdat er sprake is van een gevoelige functie, is in Hoofdstuk 5 Sectorale aspecten onderbouwd dat er in de nieuwe situatie een aanvaardbaar woon- en leefklimaat kan worden gegarandeerd.
  • d. het aantal te realiseren woningen in overeenstemming is met het gemeentelijk volkshuisvestingsbeleid; zie paragraaf 3.3.2 Volkshuisvesting
  • e. het parkeren in overeenstemming is met het gemeentelijk parkeerbeleid en de daarbij horende parkeernormen; zie paragraaf 5.5 Verkeer en parkeren
  • f. er een planschadeverhaalsovereenkomst is gesloten; deze is of wordt gesloten, zie ook paragraaf Hoofdstuk 6 Uitvoerbaarheid
  • g. er geen afbreuk wordt gedaan aan het stedenbouwkundig beeld en de ruimtelijke kwaliteit ter plaatse; het gebouw blijft in hoofdzaak hetzelfde. De beperkte aanpassingen hebben betrekking op gevelopeningen en bereikbaarheid van de appartementen. Deze aanpassingen zijn nodig voor de ingebruikname van het gebouw voor de nieuwe woonfunctie en doen geen afbreuk aan het stedenbouwkundig beeld. Het bestaande pand is niet van stedenbouwkundige waarde.
  • h. geen sprake is van aantasting van cultuurhistorische waarden; er is geen sprake van een cultuurhistorische waarde binnen of direct aansluitend aan het plangebied. 
  • i. aansluiting wordt gezocht bij de regels van de bestemmingen zoals opgenomen in dit bestemmingsplan. Hierbij is aansluiting gezocht.

Conclusie

Uit het voorgaande blijkt dat voldaan wordt aan de voorwaarden uit artikel 10 lid 3. Er zijn geen belemmeringen om de bestemming van het perceel Kerkstraat 1 te Heeswijk-Dinther te wijzigen naar de bestemming 'Wonen'.

Hoofdstuk 5 Sectorale aspecten

5.1 Milieu

5.1.1 Geluid
5.1.1.1 Wettelijk kader

Bij het opstellen van een ruimtelijk plan dient, in verband met de relatie tussen de Wet ruimtelijke ordening (Wro) en de Wet geluidhinder (Wgh), inzicht te worden geboden in de relevante geluidsaspecten.

De Wgh stelt eisen aan de maximaal toegestane geluidsbelasting ten gevolge van de aanleg van een nieuwe weg en de realisatie van geluidsgevoelige bestemmingen. De Wgh bevat een uitgebreid stelsel van bepalingen ter voorkoming en bestrijding van geluidhinder door onder meer industrie, wegverkeer en spoorwegverkeer. De wet richt zich vooral op de bescherming van de burger in zijn woonomgeving en bevat bijvoorbeeld normen voor de maximale geluidsbelasting op de gevel van een huis.

Op 1 januari 2007 is de gewijzigde Wet geluidhinder in werking getreden. Hierin is de bevoegdheid voor het verlenen van een hogere waarde neergelegd bij Burgemeester en Wethouders. Dat betekent dat het 'hogere-waardebesluit' niet langer ter goedkeuring aan Gedeputeerde Staten hoeft te worden voorgelegd. Voor wegverkeerslawaai en spoorweglawaai stapt de wetgever nu over op de Europese dosismaat Lden (staat voor day- evening- night). In de wet wordt Lden aangegeven in decibel (dB).

Voor geluidgevoelige functies zoals woningen geldt een voorkeursgrenswaarde van 48 dB voor wegverkeer en 55 dB voor spoorwegverkeer. Bij de bouw van de woning dient de gevelisolatie van de betrokken woning zodanig te worden ontworpen, dat voor de binnenwaarde kan worden voldaan aan de eisen uit het bouwbesluit. Hierin staat geregeld dat de binnenwaarde maximaal 33 dB mag bedragen. Indien niet aan de voorkeursgrenswaarden wordt voldaan kan door bevoegd gezag (Burgemeester en wethouders) een hogere grenswaarde worden vastgesteld, voor woningen. in het buiten stedelijk gebied (buiten bebouwde kom) geld een maximum te verlenen ontheffingwaarde Lden van 53 dB(A) (wgh art. 83, lid 1).

5.1.1.2 Onderzoek

In de nabijheid van het plangebied bevinden zich geen spoorwegen waardoor het aspect railverkeerslawaai geen belemmering vormt.
Het plangebied is niet gelegen binnen de geluidszone van een gezoneerd bedrijventerrein. Het aspect industrielawaai kan derhalve buiten beschouwing blijven.

Wel ligt het plangebied binnen de geluidzone van wegen. In opdracht van VOEBA te ‘s-Hertogenbosch heeft NIPA milieutechniek b.v. daarom een akoestisch onderzoek wegverkeerslawaai uitgevoerd in verband met de transformatie van het kantoorgebouw naar een woongebouw met acht appartementen.
Doel van het onderzoek is aan de hand van een prognoseberekening de geluidbelasting op de gevels van de ‘nieuwe woonbestemmingen’ te bepalen. De nieuwe woonbestemmingen zijn gelegen binnen de geluidzone (akoestisch aandachtsgebied) van de Edmundus van Dintherstraat. Tevens liggen naast de te realiseren appartementencomplex de wegen Schoolstraat en Kerkstraat. Beide wegen hebben een maximum snelheid van 30 km/uur. De Kerkstraat is afgesloten en hierdoor is het verkeer nihil.

De Schoolstraat heeft in 2030 een intensiteit van minder dan 300 motorvoertuigen per etmaal. Hierdoor zijn deze wegen akoestisch gezien niet relevant en zijn niet meegenomen in de berekening.

Uit het onderzoek blijkt dat de geluidbelasting als gevolge van het wegverkeerslawaai inclusief de correctie ex art. 110g van de Wet geluidhinder ten gevolge van de Edmundus van Dintherstraat ten hoogste 57 dB bedraagt. Bij deze locatie wordt bij 7 van de 8 appartementen niet voldaan aan de voorkeursgrenswaarde van 48 dB op de maatgevende gevel. Aan de maximale ontheffingswaarde van 63 dB wordt op de gevels bij alle appartementen wel voldaan.

Het bevoegd gezag dient een hogere waarde voor de nieuwe bestemming vast te stellen. Voor de geluidbelastingen en de motivatie wordt verwezen naar het voorgaande hoofdstuk.
In het kader van een goede ruimtelijke ordening moet het woon- en leefklimaat binnen in de geluidgevoelige vertrekken zijn gewaarborgd. Een richtwaarde hiervoor is een geluidbelasting Lden van 33 dB. Dit moet nader met een gevelweringonderzoek worden aangetoond, dat door Nipa Milieutechniek is uitgevoerd (zie Bijlage 2 Gevelweringonderzoek).

Bij correcte uitvoering van de in hoofdstuk 4 van het gevelweringonderzoek opgegeven materialen, opbouwen en met inachtneming van toepassing van geluidgedempte ventilatievoorzieningen, zal aan de eisen voor een goed woon- en leefklimaat worden voldaan. Hiervoor is in de planregels een voorwaardelijke verplichting opgenomen.

5.1.1.3 Conclusie

Op basis van de berekening en de rapportage kan samenvattend gesteld worden dat voor de woningen niet voldaan aan de voorkeursgrenswaarde van 48 dB op de maatgevende gevel. Door middel van een gevelweringonderzoek is aangetoond dat het woonklimaat ter plaatse van woningen is gewaarborgd.

Bij deze toelichting is een aanvraagformulier voor de hogere waarde gevoegd in Bijlage 3. De beschikking van burgemeester en wethouders van Bernheze op het verzoek is bijgevoegd in Bijlage 4.

5.1.2 Bodem
5.1.2.1 Wettelijk kader

Op grond van het Besluit ruimtelijke ordening (Bro) dient in verband met de uitvoerbaarheid van een plan rekening te worden gehouden met de bodemgesteldheid in het plangebied. Bij functiewijzigingen dient te worden bekeken of de bodemkwaliteit voldoende is voor de beoogde functie en moet worden vastgesteld of er sprake is van een saneringsnoodzaak. In de Wet bodembescherming is bepaald dat indien de desbetreffende bodemkwaliteit niet voldoet aan de norm voor de beoogde functie, de grond zodanig dient te worden gesaneerd dat zij kan worden gebruikt door de desbetreffende functie (functiegericht saneren). Nieuwe bestemmingen dienen bij voorkeur op schone grond te worden gerealiseerd.

Of de bodem een planontwikkeling in de weg staat, wordt middels een historisch onderzoek en eventueel aangevuld met een bodemonderzoek bepaald. Als uit historisch onderzoek blijkt dat binnen de nieuwe bestemmingen sprake is geweest van een activiteit met een verhoogd risico op verontreiniging, dan is een volledig verkennend bodemonderzoek noodzakelijk. De resultaten van het historisch onderzoek, het bodemonderzoek en de conclusie met eventuele saneringsadviezen worden in het bestemmingsplan vermeld.

5.1.2.2 Onderzoek

Op locaties waar ontwikkelingen plaatsvinden dient de bodem gesaneerd te worden als sprake is van een ernstige bodemverontreiniging. In dat geval dient voorafgaand aan ontwikkelingen een saneringsplan opgesteld te worden dat goedgekeurd moet worden door de Omgevingsdienst zijnde het bevoegd gezag in het kader van de Wet bodembescherming (Wbb).

Aangezien er geen sprake is van functiewijziging met toevoeging van een gevoelige functie (immers een kantoor is reeds aan te merken aan gevoelig) is verkennend bodemonderzoek voor dit bestemmingsplan niet noodzakelijk. Een verontreininging ter plaatse is niet aannemelijk gelet op de bestaande functies in en rondom het plangebied.

Hierom is een ontheffing afgegeven voor het uitvoeren van bodemonderhoek, welke is bijgevoegd in Bijlage 5.

5.1.2.3 Conclusie

Het aspect bodemkwaliteit vormt geen belemmering voor uitvoering van het plan.

5.1.3 Externe veiligheid
5.1.3.1 Wettelijk kader

Externe veiligheid gaat om het beperken van de kans op en het effect van een ernstig ongeval voor de omgeving door het gebruik, de opslag, de productie en het transport van gevaarlijke stoffen. Bij nieuwe ontwikkelingen dient rekening gehouden te worden met eventueel aanwezige externe risico's die de veiligheid negatief kunnen beïnvloeden. Hiertoe zijn de risico's gekwantificeerd door middel van het plaatsgebonden risico en het groepsrisico.


Het plaatsgebonden risico van een bepaalde activiteit is de kans per jaar op een bepaalde plaats, dat een continu daar aanwezig gedacht persoon die onbeschermd is, komt te overlijden als gevolg van een mogelijk ongeluk met die activiteit. Elke ruimtelijke ontwikkeling wordt getoetst aan het plaatsgebonden risico van 10-6 als grenswaarde. Het groepsrisico is de kans per jaar dat in één keer een groep mensen van een bepaalde omvang komt te overlijden bij een ongeval met gevaarlijke stoffen. Voor het groepsrisico geldt geen grenswaarde maar een oriënterende waarde die de personendichtheid binnen een invloedsgebied relateert aan een bepaalde maat voor risico aanvaarding.

5.1.3.2 Onderzoek

Uit de provinciale risicokaart, eindrapporten over het basisnet en actuele informatie over relevante risicobronnen binnen de gemeente blijkt dat het plangebied niet ligt binnen:

  • het invloedsgebied van een Bevi-inrichting;
  • de veiligheidsafstanden van andere stationaire risicobronnen;
  • het invloedsgebied van een basisnetroute voor het vervoer van gevaarlijke stoffen over de weg, het spoor of over het water.

In onderstaande afbeelding is een uitsnede van de Risicokaart weergegeven.

afbeelding "i_NL.IMRO.1721.WPKerkstraat1-vg01_0011.jpg"

Volgens de risicokaart zijn in omgeving van het plangebied enkele risicovolle bedrijven aanwezig. Op deze bedrijven wordt hier nader ingegaan.

Aan de Sint Servatiusstraat 25 is een tankstation aanwezig dat de beschikking heeft over een LPG-installatie. De plaatsgebonden risicocontouren behorende bij het LPG-vulpunt (110 meter), het LPG-reservoir (25 meter) en de LPG-afleverinstallatie (15 meter) liggen allen niet over het plangebied heen. Het invloedsgebied voor het groepsrisico bedraagt bij LPG-installaties 150 meter. Het plangebied is gelegen op een afstand van ruim 700 meter van het tankstation en bevindt zich derhalve ruimschoots buiten het invloedsgebied voor het groepsrisico. Een nadere verantwoording in verband met het groepsrisico is dan ook niet noodzakelijk.

Aan de Aa-brugstraat 4 bevindt zich zwemschool 't Geburg. Het zwembad beschikt over een bovengrondse propaantank. Het betreft hier een inrichting die valt onder de werkingssfeer van het Activiteitenbesluit. Afhankelijk van de hoeveelheid bevoorradingen van de tank geldt een veiligheidsafstand van maximaal 25 meter. Hiermee komt de veiligheidafstand niet buiten de grens van de inrichting. Het plangebied is gelegen op een afstand van bijna 500 meter vanuit de grens van deze inrichting waardoor geen sprake is van belemmeringen.

Aan de Laag Beugt 3 bevindt zich het bedrijf Ploegmakers Metaalconservering B.V. Dit bedrijf beschikt eveneens over een bovengrondse opslagtank voor propaan. Ook hiervoor geldt, afhankelijk van de hoeveelheid bevoorradingen, een maximale veiligheidsafstand van 25 meter. Het plangebied is gelegen op een afstand van meer dan 600 meter, deze inrichting vormt dan ook geen belemmering.

In de nabijheid van het plangebied zijn geen transportroutes aanwezig waarover gevaarlijke stoffen worden vervoerd. Buisleidingen voor het transport van gevaarlijke stoffen komen niet voor in de nabijheid van het plangebied.

5.1.3.3 Conclusie

Geconcludeerd kan worden dat in het kader van externe veiligheid geen belemmeringen aanwezig zijn ten aanzien van onderhavige ontwikkeling.

5.1.4 Bedrijven en milieuzonering
5.1.4.1 Wettelijk kader

Zowel de ruimtelijke ordening als het milieubeleid stellen zich ten doel een goede kwaliteit van het leefmilieu te handhaven en te bevorderen. Dit gebeurt onder andere door milieuzonering. Milieuzonering betekent het aanbrengen van een voldoende ruimtelijke scheiding tussen milieubelastende bedrijven of inrichtingen enerzijds en milieugevoelige functies als wonen en recreëren anderzijds. De ruimtelijke scheiding bestaat doorgaans uit het aanhouden van een bepaalde afstand tussen milieubelastende en milieugevoelige functies. Die onderlinge afstand moet groter zijn naarmate de milieubelastende functie het milieu sterker belast. Milieuzonering heeft twee doelen:

  • het voorkomen of zoveel mogelijk beperken van hinder en gevaar bij woningen en andere gevoelige functies;
  • het bieden van voldoende zekerheid aan bedrijven dat zij hun activiteiten duurzaam onder aanvaardbare voorwaarden kunnen uitoefenen.

VNG-brochure Bedrijven en milieuzonering

In de brochure Bedrijven en milieuzonering (VNG, 2009) wordt een handreiking gegeven voor het verantwoord inpassen van bedrijfsactiviteiten in de omgeving. De handreiking geeft informatie over een aantal ruimtelijk relevante milieuaspecten van een scala van bedrijfsactiviteiten. In deze handreiking worden bedrijven ingedeeld in verschillende categorieën, al naar gelang de mate van hinder en inpasbaarheid. Ook maakt de handreiking onderscheid in verschillende gebiedstypen zoals een rustige woonwijk, rustig buitengebied en gemengd gebied. Aan de hand van de categorie-indeling kan bepaald worden of, en eventueel onder welke voorwaarden, een bedrijf inpasbaar is in de omgeving.

5.1.4.2 Onderzoek

Omgevingstype

In de VNG-uitgave wordt aangegeven dat een gemengd gebied een gebied is met een matige tot sterke functiemenging. Direct naast woningen komen andere functies voor zoals winkels, horeca en kleine bedrijven. Gebieden die direct langs de hoofdinfrastructuur liggen behoren eveneens tot het omgevingstype gemengd gebied.

De directe omgeving van het plangebied kan worden beschouwd als een rustig woongebied, zoals bedoeld in de VNG-brochure.


Categorie bedrijvigheid

In onderstaande tabel is weergegeven welke type inrichtingen in de omgeving van de locatie zijn gelegen, tot welke VNG-categorie deze behoren, wat de bijbehorende richtafstand is rekening houdende met omgevingstype ‘gemengd gebied’. De kolom ‘werkelijke afstand’ is de afstand van de inrichtings-/bedrijfsgrens tot de gevel van de dichtstbijzijnde nieuwe woningen. Tevens is aangegeven wat het maatgevende aspect (geur, geluid of stof) is.

SBI-Code   Adres   Omschrijving   VNG categorie   Richt-
afstand  
Werkelijke afstand   maatgevend aspect  
511   Den Dolvert 11   vastgoedbedrijf   1   10 m   87 m   geluid  
2223   Den Dolvert 12   reclamestudio   1   10 m   78 m   geluid  
501, 502, 504   Den Dolvert 1 en 1a   autobedrijf   2   30 m   75 m   geluid  
9131   Kerkstraat 2   kerk   2   30 m   37m   geluid  

5.1.4.3 Conclusie

Uit het onderzoek blijkt dat vng-richtafstanden geldend voor de bestaande bedrijven in de omgeving van het plangebied niet over het plangebied zijn gelegen. Daardoor is er geen belemmering vanuit bestaande bedrijven.

Voor de bedrijven aan Den Dolvert 11 en 12 geldt dat ter plaatse tevens bedrijvigheid in een hogere milieucategorie is toegestaan. Voor een dergelijk milieucategorie 2 bedrijf dient een richtafstand van 30 meter te worden gehanteerd. Ook hieraan kan ruimschoots worden voldaan.

5.1.5 Luchtkwaliteit
5.1.5.1 Wettelijk kader

Het onderzoek naar luchtkwaliteit wordt uitgevoerd op grond van hoofdstuk 5, titel 5.2 'Luchtkwaliteitseisen' van de Wet milieubeheer. De titel 5.2 'Luchtkwaliteitseisen' is beter bekend als de Wet luchtkwaliteit.

De kern van de Wet luchtkwaliteit is het Nationaal Samenwerkingsprogramma Luchtkwaliteit (NSL). Het NSL is een bundeling maatregelen op regionaal, nationaal en internationaal niveau die de luchtkwaliteit verbeteren en waarin alle ruimtelijke ontwikkelingen/projecten zijn opgenomen die de luchtkwaliteit in belangrijke mate verslechteren.

Het doel van de NSL is om overal in Nederland te voldoen aan de Europese normen voor de luchtverontreinigende stoffen. Voor wegverkeer zijn stikstofdioxide (NO2) en fijn stof (PM10) de belangrijkste stoffen. De in de Wet luchtkwaliteit gestelde norm voor NO2 en PM10 jaargemiddelde grenswaarde is voor beide stoffen 40 µg/m3. Daarnaast mag de PM10 24 uurgemiddelde grenswaarde van 50 µg/m3 maximaal 35 keer per jaar worden overschreden. Met het van kracht worden van het NSL zijn de tijdstippen waarop moet worden voldaan aan de jaargemiddelde grenswaarden NO2 en PM10 vastgesteld op 11 juni 2011 voor PM10 en 1 januari 2015 voor NO2.

Naast de introductie van het NSL is het begrip 'niet in betekenende mate' (NIBM) bijdragen een belangrijk onderdeel van de Wet luchtkwaliteit. Een project draagt NIBM bij aan de verslechtering van de luchtkwaliteit als de NO2 en PM10 jaargemiddelde concentraties niet meer toeneemt dan 1,2 µg/m3. In dat geval is de ontwikkeling als NIBM te beschouwen.

Een ruimtelijke ontwikkeling vindt volgens de Wet luchtkwaliteit doorgang als tenminste aan een van de volgende voorwaarden is voldaan:

  • de ontwikkeling is opgenomen in het NSL;
  • de ontwikkeling aangemerkt wordt als een NIBM-project;
  • de gestelde grenswaarden in bijlage 2 van de Wet luchtkwaliteit niet worden overschreden;
  • projectsaldering kan worden toegepast.

Voor zover de ruimtelijke ontwikkeling is opgenomen in het NSL of de ontwikkeling kan worden aangemerkt als NIBM-project is toetsing aan de normen van de Wet luchtkwaliteit niet nodig.

5.1.5.2 Onderzoek

Beoordeling luchtkwaliteit

In de 'Regeling niet in betekenende mate bijdrage (luchtkwaliteitseisen)' (Regeling NIBM) zijn voor verschillende functiecategorieën cijfermatige kwantificaties opgenomen, waarbij een ontwikkeling als een NIBM-project kan worden beschouwd. Deze categorieën betreffen landbouwinrichtingen, spoorwegemplacementen, kantoorlocaties, woningbouwlocaties en een combinatielocatie van woningbouw en kantoren.

In de Regeling NIBM is aangegeven dat een woningbouwlocatie tot maximaal 1.500 woningen aan één ontsluitingsweg is aan te merken als een ontwikkeling die NIBM bijdraagt aan de verslechtering van de luchtkwaliteit. In voorliggend bestemmingsplan wordt uitgegaan van de realisatie van maximaal 8 planologisch nieuwe woningen.

Dit betekent dat de voorgenomen ontwikkeling in het bestemmingsplan 'Kerkstraat 1 Heeswijk-Dinther' is aan te merken als een ontwikkeling die NIBM bijdraagt aan de verslechtering van de luchtkwaliteit. Daardoor is toetsing aan de grenswaarden uit de Wet luchtkwaliteit niet nodig.

Goede ruimtelijke ordening

In het kader van een goede ruimtelijke ordening zijn de jaargemiddelde concentraties NO2 en PM10 in de omgeving van het plangebied inzichtelijk gemaakt. Deze concentraties zijn afkomstig uit de NSL-monitoringstool.

Nabij het plangebied overschrijden de jaargemiddelde concentraties NO2, PM10 en PM2,5 de jaargemiddelde grenswaarde niet.

5.1.5.3 Conclusie

De voorgestane ontwikkeling is aan te merken als een project dat NIBM bijdraagt aan de verslechtering van de luchtkwaliteit. Toetsing aan de grenswaarden van de Wet luchtkwaliteit is dan ook niet nodig.

Geconcludeerd kan worden dat het aspect luchtkwaliteit geen belemmeringen oplevert voor de voorgenomen ontwikkelingen in dit bestemmingsplan (artikel 5.16, lid 1 aanhef en onder c Wm).

Daarnaast is in het kader van een goede ruimtelijke ordening ter plaatse van het plan de jaargemiddelde concentraties NO2 en PM10 bepaald. Deze waarden zijn veel lager dan de gestelde grenswaarden uit bijlage 2 van de Wet luchtkwaliteit. Een overschrijding van de grenswaarden is dan ook niet te verwachten.

5.2 Archeologie en cultuurhistorie

5.2.1 Archeologie
5.2.1.1 Wettelijk kader

De bescherming van het archeologische erfgoed in de bodem en de inbedding ervan in de ruimtelijke ordening is geregeld in het Europese Verdrag van Valetta (Malta). In 1992 ondertekenden twintig Europese staten, waaronder Nederland, dit verdrag. De belangrijkste uitgangspunten van het verdrag zijn:

  • archeologische waarden dienen zoveel mogelijk (in situ) in de bodem bewaard te blijven en beheermaatregelen dienen genomen te worden om dit te bewerkstelligen;
  • vroeg in de ruimtelijke ordening dient al rekening gehouden te worden met archeologie;
  • bodemverstoorders betalen het archeologisch (voor)onderzoek en mogelijke opgravingen wanneer behoud in situ niet mogelijk is.

Het verdrag werd in 1998 door een goedkeuringswet bekrachtigd en op 1 september 2007 in de Wet op de archeologische monumentenzorg vertaald in nieuwe wetgeving. De wet regelt in aansluiting op het Europese verdrag de bescherming van archeologisch erfgoed in de bodem, onder andere door inpassing van de belangen van archeologie in de ruimtelijke ordening.

Erfgoedwet

De Erfgoedwet regelt de bescherming van archeologisch erfgoed in de bodem, de inpassing ervan in de ruimtelijke ontwikkeling en de financiering van opgravingen: 'de veroorzaker betaalt'.

Voor gebieden waar archeologische waarden voorkomen of waar reële verwachtingen bestaan dat ter plaatse archeologische waarden aanwezig zijn, dient door de initiatiefnemer voorafgaand aan bodemingrepen archeologisch onderzoek te worden uitgevoerd. De uitkomsten van het archeologisch onderzoek dienen vervolgens volwaardig in de belangenafweging te worden betrokken. Het belangrijkste doel is de bescherming van het archeologische in de bodem (in situ) omdat de bodem doorgaans de beste garantie biedt voor een goede conservering. Er wordt uitgegaan van het basisprincipe de 'verstoorder' betaalt voor het opgraven en het documenteren van de aangetroffen waarden als behoud in de bodem niet tot de mogelijkheden behoort.

5.2.1.2 Onderzoek

Op de archeologische beleidskaart staat aangegeven waar en voor welke bodemverstoringen vrijstelling verleend wordt van archeologisch onderzoek.

In tabel 1 van de Nota Archeologiebeleid van de gemeente Bernheze staan de bestemmingsplancategorieën en ondergrenzen onderzoekplicht aangegeven. Onderhavig plangebied bestaat uit het toevoegen van acht woningen binnen bestaande bebouwing. Er is geen sprake van een verstoring. Er is om die reden geen onderzoek benodigd naar archeologische waarden. De in het bestemmingsplan De kommen van Bernheze gehanteerde dubbelbestemming is in onderhavig wijzigingsplan overgenomen.

5.2.1.3 Conclusie

Omdat er sprake is van hergebruik van de gebouwen zonder sloop en nieuwbouw, is er geen sprake van het roeren van de ondergrond. Daarom is aanvullend onderzoek niet benodigd.

5.2.2 Cultuurhistorie
5.2.2.1 Wettelijk kader

Erfgoedwet (1 juli 2016)
De wet- en regelgeving op rijksniveau rondom cultureel erfgoed is vastgelegd in de Erfgoedwet. Het is het belangrijkste sectorale instrument voor de bescherming van cultureel erfgoed. In de Erfgoedwet is geregeld hoe monumenten aangewezen kunnen worden als beschermd monument. De wet heeft betrekking op gebouwen en objecten, stads- en dorpsgezichten, archeologische waarden en op het uitvoeren van archeologisch onderzoek.


Er worden in de Erfgoedwet verschillende monumenten onderscheiden:

  • rijks-, provinciaal of gemeentelijk gebouwd monument;
  • beschermd stads- of dorpsgezicht;
  • rijks-, provinciaal of gemeentelijk archeologisch monument.


Daarnaast zijn er werelderfgoederen. Deze monumenten komen op de Werelderfgoedlijst te staan.

Modernisering Monumentenzorg (2009)
De modernisering van de monumentenzorg (MOMO) heeft erin geresulteerd dat per 1 januari 2012 het Besluit ruimtelijke ordening is aangepast. Met deze aanpassing is cultureel erfgoed ingebed in de ruimtelijke ordening. Het is verplicht om in bestemmingsplannen aandacht te geven aan cultuurhistorie en de effecten van het initiatief op cultuurhistorische waarden die in het plangebied voorkomen. Daar waar nodig dient de bescherming van deze waarden ook te worden vastgelegd in de regels en verbeelding bij het bestemmingsplan.

5.2.2.2 Onderzoek

Op de Cultuurhistorische Waardenkaart 20-01-2014 van de gemeente Bernheze zijn de volgende waarden aangegeven; oude akkers (esdek), oude wegtracé (Goorstraat), oude hoofdverbinding (Graafsebaan) en enkele monumentale bomen aan de Graafsebaan. Deze waarden hebben geen directe verbinding met onderhavig plangebied, waardoor het toevoegen van acht woningen binnen bestaande bebouwing niet tot een aantasting leidt van deze cultuurhistorische waarden.

De aanwezige cultuurhistorische waarden worden niet aangetast en blijven behouden. Binnen onderhavige ontwikkeling wordt voldoende rekening gehouden met de aanwezige archeologische en cultuurhistorische waarden en zodoende zijn er geen belemmeringen aanwezig.

5.2.2.3 Conclusie

Omdat het plan geen bebouwing of sloop omvat vormt het aspect cultuurhistorie geen belemmering voor de ontwikkeling.

5.3 Water

5.3.1 Wettelijk kader

Nationaal Waterplan

Het Nationaal Waterplan is de opvolger van de Vierde Nota Waterhuishouding uit 1998 en is opgesteld voor de planperiode 2009 - 2015. Het Nationaal Waterplan is in december 2009 door de ministerraad vastgesteld.

Het Nationaal Waterplan beschrijft de hoofdlijnen van het nationale waterbeleid. Het Rijk streeft naar een duurzaam en klimaatbestendig waterbeheer en heeft de ambitie om de komende decennia te investeren in bescherming tegen overstromingen en in de zoetwatervoorziening.

Voor een duurzaam en klimaatbestendig watersysteem is het van belang bij ruimtelijke ontwikkelingen rekening te houden met waterhuishoudkundige eisen op de korte en de lange termijn. Om een duurzaam en klimaatbestendig watersysteem te bereiken moet het water meer bepalend zijn bij de besluitvorming over grote ruimtelijke opgaven dan voorheen. De mate van bepalendheid wordt afhankelijk gesteld van, onder meer, de omvang en de aard van de ingrepen, bestaande functies, nieuwe andere ruimteclaims en de bodemgesteldheid van een gebied.

Op basis van de Wet ruimtelijke ordening heeft het Nationaal Waterplan voor de ruimtelijke aspecten de status van structuurvisie. Het Nationaal Waterplan is gedetailleerder dan de SVIR en blijft als uitwerking van de SVIR bestaan. Specifiek gaat het over de gebieden die deel uitmaken van de ruimtelijke hoofdstructuur, het IJsselmeer, de Noordzee en de rivieren. Ook de bescherming van vitale functies en kwetsbare objecten is een onderwerp van nationaal belang. Hiervoor geldt het Barro.

Waterwet

De Waterwet regelt het beheer van de waterkeringen, het oppervlaktewater en het grondwater, verbetert de samenhang tussen waterbeleid en ruimtelijke ordening en zorgt voor een eenduidige bestuurlijke procedure en daarbij behorende rechtsbescherming voor besluiten. De Waterwet dient als paraplu om de Kaderrichtlijn Water (KRW) te implementeren en geeft ruimte voor implementatie van toekomstige Europese richtlijnen.

De waterschappen hebben een bevoegdheid voor het verlenen van vergunningen voor grondwateronttrekkingen, bemalingen en infiltraties, met uitzondering van onttrekkingen voor drinkwater, koude en warmteopslag en grote industriële onttrekkingen van meer dan 150.000 m3/jaar. Gemeenten hebben verdergaande taken en bevoegdheden in het kader van de zorgplicht voor het inzamelen van afvalwater in de riolering en voor hemelwater en grondwater.

Waterschap Aa en Maas

Het plangebied valt onder het beheer van Waterschap Aa en Maas. In aansluiting op het landelijk beleid hanteert het waterschap Aa en Maas het beleid dat ontwikkelingen hydrologisch neutraal plaatsvinden. Hierbij worden de afwegingsstappen 'hergebruik - infiltratie - buffering - afvoer' doorlopen, waarbij het Waterschap bij alle in- en uitbreidingsplannen adviseert en toetst op hydrologische effecten. Kortom, het initiatief mag niet leiden tot een verandering in de waterhuishoudkundige situatie ter plaatse en in de directe omgeving. Daarnaast is het streven om schoon en afvalwater zoveel mogelijk te scheiden. De doelen van het waterschap voor de periode van 2010 tot 2015 staan beschreven in het waterbeheer-plan "Werken met water voor nu en later" en zijn gericht op een veilig en bewoonbaar beheergebied, voldoende, schoon, natuurlijk en recreatief water. Bij ruimtelijke ontwikkelingen, waaronder ver- en nieuwbouwplannen, hanteert het waterschap een aantal uitgangspunten ten aanzien van het duurzaam omgaan met water, die van belang zijn als vertrekpunt van het overleg tussen initiatiefnemer en waterbeheerder. De desbetreffende uitgangspunten zijn hieronder weergegeven. Een nadere beschrijving van de uitgangspunten is opgenomen in de bijlagen: " Wateroverlastvrij bestemmen - water als kans " Scheiding van vuil en schoon (hemel)water - meervoudig ruimtegebruik " Doorlopen van de afwegingsstappen - voorkomen van vervuiling " Hydrologisch neutraal ontwikkelen - waterschapsbelangen Het Waterschap is verantwoordelijk voor het waterkeringenbeheer, het waterbeheer en het transporteren en zuiveren van afvalwater. In aansluiting op het landelijke beleid hanteert het Waterschap het beleid dat bij nieuwe plannen onderzocht dient te worden hoe omgegaan wordt met het schone hemelwater.

Gemeentelijk waterbeleid

Het beleid van de gemeente Bernheze sluit aan op het landelijke en provinciale beleid. De gemeente zelf heeft een Gemeentelijk Rioleringsplan (GRP) 2016-2020 en het Gemeentelijk Waterplan opgesteld. Het GRP is in 2015 door de Raad vastgesteld. In het Gemeentelijk Rioleringsplan zijn doelstellingen en maatregelen in de waterketen opgenomen, waartoe de gemeente wettelijk verplicht is. In het waterplan worden extra, niet wettelijk verplichte maatregelen opgenomen, die nodig zijn om de gewenste inrichting en functioneren van water te kunnen bereiken.

De hoofddoelstelling van het waterplan is "Het ontwikkelen van een integrale visie in de omgang met water in de breedste zin van het woord'. Het integrale aspect betekent dat het gehele systeem van grond- en oppervlaktewater centraal staat, inclusief aan- en afvoer van water. De keten van drinkwater, riolering en afvalwaterzuivering wordt in de visie betrokken daar waar deze het watersysteem beïnvloedt.

De gemeente Bernheze stelt dat verantwoord afkoppelen op twee manieren kan worden uitgevoerd. Bij de ene manier wordt het hemelwater vastgehouden op het eigen terrein. Voor de andere manier is het wordt aangesloten op gemeentelijke voorzieningen.

In het beleid van de gemeente Bernheze zijn verder regels opgenomen om bij bouwplannen een duurzame omgang met regenwater eventueel te verplichten. Dit geldt zowel voor nieuwbouw als voor herbouw. De perceeleigenaar heeft een eigen verantwoordelijkheid voor de verwerking van regenwater op zijn eigen terrein, mits doelmatig. Bij (her)ontwikkelingen vraagt de gemeente dat de eigenaar een steentje bijdraagt.

De gemeente Bernheze kiest er voor om per locatie maatwerk te leveren, dit i.v.m. wisselende bodemgesteldheid. In Heeswijk-Dinther wordt rekening gehouden met lokaal voorkomende leemlagen maar ook de plaatselijk optredende wateroverlast. 

Voor wat betreft het aansluiten op de riolering wil de gemeente dat er gescheiden wordt aangeleverd. Dit omdat de gemeente op termijn zal ombouwen naar gescheiden riolering. Er ligt een gemengd stelsel, dus de gemeente zal het hemelwater en vuilwater koppelen op ons gebied. Wel dient het water gescheiden aan de erfgrens aangeleverd te worden. (HWA en VWA apart)

5.3.2 Onderzoek
5.3.2.1 Toekomstige situatie

In aanvulling op de rekenregel van de Brabantse waterschappen, waar gerekend wordt met de toename van het verhard oppervlak, geldt binnen de gemeente Bernheze het uitgangspunt dat het oppervlak van gesloopte gebouwen en opgebroken verharding niet in mindering mag worden gebracht op de toename van het verhard oppervlak. Dit in verband met lokaal voorkomende wateroverlast bij hevige regenbuien.

Er is geen sprake van sloop van bebouwing of het opbreken van verharding.

Er is sprake van herontwikkeling van bestaande bebouwing voor een nieuwe functie in combinatie met herinrichting van het omliggende terrein zonder dat er sprake is van toename van het verharde oppervlak. Waterhuishoudkundig gezien verandert de situatie niet.

Afhankelijk van grondsoort, grondwaterstand en ruimte zijn maatregelen in meer of mindere mate effectief .

Op zandgronden is regenwaterinfiltratie een goede optie, op kleigrond is infiltratie vrijwel onmogelijk omdat klei water slecht doorlaat, wat de leegloop van een voorziening sterk vertraagt. De kans is groot dat een infiltratievoorziening niet leeg is van een vorige bui op het moment dat een extreme bui begint.

Naarmate de doorlatendheid van de ondergrond kleiner is, moet de buffercapaciteit voor de tijdelijke regenwaterberging groter zijn.

Voor wat betreft het aansluiten op de riolering zal er gescheiden worden aangeleverd.

5.3.2.2 Berekening waterberging

Vuilwater en een overstort van het schoonwater gescheiden van elkaar aanleveren aan de erfgrens. Dit wordt vervolgens gekoppeld op het riool. Een (of twee) aansluiting voor alle appartementen samen is voldoende.

Voor berging op eigen terrein moet daarom rekening worden gehouden met grondwater, k-waarde en evt. aanwezige leemlagen.

Ter plaatse is sprake van smeltrivierafzettingen van leem en zand met zanddek. De doorlatendheid van deze grond is goed. Het is niet mogelijk om (de beperkt aanwezige) verharding te verwijderen omdat deze benodigd is voor het parkeren. De bestaande tuin blijft gehandhaafd en de verharding bestaat uit klinkers, en is daarmee ook (beperkt) doorlatend.

De hele buitenruimte moet derhalve als verhard oppervlak worden gezien en ook als zodanig worden gecompenseerd. Als vuistregel hanteert de gemeente Bernheze 20 mm van het verharde oppervlak. De waterberging wordt gecreëerd door infiltatiekratten onder de parkeerplaats.

In het rioleringsplan (zie Bijlage 6) is de infiltratievoorziening met bijbehorende capaciteit en berekening weergegeven. Hieruit blijkt dat voldaan wordt aan de vuistregel voor compensatie, als hiervoor genoemd.

Er wordt een infiltratievoorziening gerealiseerd voor de afvoer van het plat dak en d.m.v. een noodoverlaat via het maaiveld naar het gemeenteriool worden afgevoerd. De infiltratievoorziening wordt berekend door het oppervlakte te vermenigvuldigen met 20mm infiltratiewaarden.

De infiltratievoorziening zal dus een minimale capaciteit opvangen van 349m2 x 22mm = 7,0 m3.

Behalve de vuilwaterafvoer wordt ook de schoonwaterafvoer eerst op eigen perceel geregeld. De overloop van deze voorziening wordt later aangeboden op het in de toekomst aan te leggen gescheiden stelsel.

5.3.2.3 Watertoets

Voor het plan is op 18 januari 2018 de digitale watertoets doorlopen via www.dewatertoets.nl. De digitale watertoets is een eerste verkenning om na te gaan of in een ruimtelijk plan voldoende rekening is gehouden met water. De uitkomst laat zien of er een vervolgproces moet worden doorlopen en zo ja, welke stappen daarvoor moet worden genomen.

De ontwikkeling is kleinschalig en er is geen toename van het verharde oppervlak.

De digitale watertoets heeft geresulteerd in een positief wateradvies, waardoor het watertoetsproces niet verder hoeft te worden doorlopen.

5.4 Flora en Fauna

5.4.1 Wettelijk kader

Op 1 januari 2017 is de Wet natuurbescherming in werking getreden. Op grond van deze wet zijn de Natura 2000-gebieden beschermd. Daarnaast regelt de Wet natuurbescherming ook de bescherming van planten- en dierensoorten. In deze wet zijn de EU-richtlijnen voor de bescherming van soorten opgenomen (Habitatrichtlijn en Vogelrichtlijn). Nationaal beschermde soorten vallen ook onder deze wet.

De doelstelling is de bescherming en behoud van in het wild levende planten en dieren. Het uitgangspunt van de wet is 'nee, tenzij'. Dit betekent dat activiteiten met een schadelijk effect op beschermde soorten zonder ontheffing verboden zijn.

Bij nieuwe ruimtelijke ontwikkelingen dienen vooraf de effecten op Natura 2000-gebieden onderzocht te worden. Ook dient vooraf onderzocht te worden of en welke beschermde dier- en plantensoorten voorkomen, wat hun beschermingsstatus is en wat de effecten zijn van de ingreep op het voortbestaan van de gevonden soorten. Hierover wordt ten aanzien van het plangebied ´Kerkstraat 1 Heeswijk-Dinther' het volgende gemeld.

5.4.2 Onderzoek

De beoogde ontwikkeling maakt geen ruimtelijke ontwikkelingen mogelijk. De kans op een negatief effect op beschermde flora en fauna en natuurwaarden kan worden verwaarloosd.

5.4.3 Conclusie

De functiewijziging van een kantoorgebouw naar 8 huurappartementen leidt niet tot de aantasting van Natura2000-gebieden en de instandhoudingsdoelen.

Er behoeft geen ontheffing van de Flora- en faunawet (art. 75) aangevraagd te worden.

5.5 Verkeer en parkeren

In deze paragraaf wordt nog ingegaan op de aspecten parkeren, bereikbaarheid en verkeersveiligheid. Dit bestemmingsplan maakt de functiewijziging van een kantoor bestemming naar wonen mogelijk. Dit levert een andere parkeer- en verkeerssituatie op.

5.5.1 Onderzoek
5.5.1.1 Verkeersbewegingen

Het plangebied wordt via de Schoolstraat ontsloten op Edmundus van Dintherstraat. Voor wat betreft de verkeersgeneratie, gaat CROW-publicatie 317 er vanuit dat de verkeersproductie voor een goedkope/ middeldure huurappartementen (nieuwe situatie) rekening moet worden gehouden met 3,7 - 4,5 ritten per etmaal. Daarmee komt de ritproductie in de nieuwe situatie op gemiddeld 33 ritten per etmaal.

Als referentie wordt de ritproductie uitgezet tegenover de bestaande situatie, met ruim 480 m2 kantooroppervlakte.

Voor een kantoor moet uitgegaan worden van 7,4 - 9,2 ritten per etmaal per 100 m2 bvo. De ritproductie in de oude situatie bedraagt daarmee gemiddeld 40 ritten per etmaal.

Derhalve is er voor de planlocatie sprake van een afname van het gemiddeld aantal ritten / etmaal, namelijk 7.

5.5.1.2 Parkeren

Op basis van de Parkeernormennota Bernheze 2015 gelden onderstaande parkeernormen.

afbeelding "i_NL.IMRO.1721.WPKerkstraat1-vg01_0012.jpg"

Voor de planontwikkeling waarbij een woonfunctie wordt gerealiseerd in de bebouwde kom, kan de parkeerbehoefte als volgt worden berekend:

  • 6 eenpersoonswoningen x 1,3 = 7,8 parkeerplaatsen
  • 2 meerpersoonswoningen x 2 = 4 parkeerplaatsen

Totaal dienen er (7,8 + 4=)11,8 parkeerplaatsen benodigd zijn (afgerond 12).

Met het plan worden 13 parkeerplaatsen gerealiseerd van 2,5 meter breed en 5 meter lang, waarmee voldaan wordt aan de parkeerbehoefte.

De vakken liggen deels op openbaar terrein. Hiervoor wordt de grond aangekocht van de gemeente Bernheze onder de parkeerplaatsen. Daarmee kan er in de nieuwe situatie ook geheel op eigen terrein worden geparkeerd.

5.6 Besluit milieueffectrapportage (m.e.r.)

In het Besluit milieueffectrapportage is bepaald dat een milieueffectbeoordeling uitgevoerd moet worden als een project belangrijke nadelige gevolgen voor het milieu heeft. Het gaat dan om een project dat genoemd is in de bijlage onder D van het Besluit m.e.r.

Onderzoek en conclusie

Op dit moment worden geen activiteiten mogelijk gemaakt die mer-plichtig zijn. De woningbouwontwikkeling wordt in de D-lijst van het Besluit milieueffectrapportage aangemerkt als: de aanleg, wijziging of uitbreiding van een stedelijk ontwikkelingsproject met inbegrip van de bouw van winkelcentra of parkeerterreinen.

De in dit uitwerkingsplan besloten ontwikkeling wordt in het algemeen niet gezien als een m.e.r.- plichtige activiteit omdat deze pas geldt bij:

  • 1. een oppervlakte van 100 hectare of meer,
  • 2. een aaneengesloten gebied en 2000 of meer woningen omvat, of
  • 3. een bedrijfsvloeroppervlakte van 200.000 m2 of meer.

Ondanks dat het project onder de richtwaarden zit, moet worden nagegaan of er toch aanleiding bestaat voor een m.e.r.-beoordeling. Dit vloeit voort uit het gewijzigde Besluit m.e.r. die per 1 april 2011 in werking is getreden. Deze herziening was onder meer nodig om uitvoering te geven aan een uitspraak van het Europese Hof van 15 oktober 2009. Volgens deze uitspraak dient een activiteit niet enkel te worden getoetst aan de drempelwaarden uit het Besluit m.e.r., maar moet ook acht worden geslagen op andere factoren als bedoeld in Bijlage III van richtlijn 85/337/EEG die aanleiding kunnen geven tot het doorlopen van een milieueffectrapportage.

Omdat het project onder de richtwaarden van de D-lijst valt kan worden volstaan met een procedureel eenvoudige m.e.r. –beoordeling die volledig opgaat in de bestemmingsplanprocedure. De beoordeling vindt plaats op bovengenoemde richtlijn. De criteria uit deze richtlijn zijn:

  • 1. de kenmerken van de projecten;
  • 2. de plaats van de projecten;
  • 3. de kenmerken van de potentiële effecten.

Kenmerken van het project

De voorgenomen activiteit betreft de functiewijziging van een kantoor naar Wonen. Het betreft ruimtelijk gezien geen nieuwe bouwlocatie. Een uitgebreide beschrijving van het project en de stedenbouwkundig opzet is opgenomen in hoofdstuk 2.2.

Plaats van het project

Het plangebied betreft een perceel aan de Kerkstraat 1, in de bebouwde kom van de kern Heeswijk-Dinther, gemeente Bernheze.

Door het bebouwde karakter en intensief gebruik van deze woonomgeving is er geen sprake van speciale natuurwaarden.

Kenmerken van mogelijke effecten

Ten aanzien van bodem, grondstoffen, lucht, veiligheid en archeologie heeft de voorgenomen activiteit geen effecten van betekenis voor de locatie en de omgeving. Er is een afname van verkeersbewegingen.

Ruimtelijke visuele effecten

De voorgenomen activiteit heeft geen ruimtelijk-visuele effecten voor het landschap binnen het plangebied. Immers het betreft een herontwikkelingslocatie. Ten aanzien van het landschapsbeeld in groter verband geeft de voorgenomen activiteit geen spanning met landschapswaarden.

Effecten op beschermde flora en fauna

Volgens de Flora- en faunawet is het verboden om beschermde soorten flora en fauna te doden, verstoren of verontrusten. Flora- en faunasoorten kunnen gevoelig zijn voor bepaalde milieu-invloeden zoals verzuring, vermesting, trilling, optische verstoring enz. De invloedsfeer van de voorgenomen activiteit is lokaal, er is enkel sprake van verbouw, zonder sloop of nieuwbouw. Er is geen effect op planten en dieren binnen of buiten het plangebied te verwachten.

Conclusie

Op basis hiervan, en op basis van de overige in dit hoofdstuk behandelde milieu- en omgevingsaspecten, kan geconcludeerd worden dat het milieubelang van de ontwikkeling in voldoende mate is afgewogen. Gelet op de kenmerken van het project (zoals het karakter in vergelijking met de drempelwaarden uit het Besluit m.e.r.), de plaats van het project en de kenmerken van de potentiële effecten zullen geen belangrijke negatieve milieugevolgen optreden.

Hoofdstuk 6 Uitvoerbaarheid

6.1 Economische uitvoerbaarheid

De Wet ruimtelijke ordening maakt het vaststellen van een exploitatieplan verplicht voor een aantal bouwactiviteiten wanneer de bouw daarvan planologisch mogelijk wordt gemaakt in een bestemmingsplan, een wijziging van een bestemmingsplan of een projectafwijkingsbesluit. De bouwplannen waarbij een exploitatieplan verplicht is staan in artikel 6.2.1 van het Besluit ruimtelijke ordening. Dit betreft onder meer plannen voor de bouw van één of meer woningen en de bouw van één of meer andere hoofdgebouwen. Bovendien is een exploitatieplan nodig als locatie-eisen (aan openbare ruimte of woningcategorieën) gesteld moeten worden en/of het bepalen van een tijdvak of fasering noodzakelijk is.


Geen exploitatieplan is nodig indien het verhaal van de kosten van grondexploitatie anderszins verzekerd is en er geen fasering of tijdvak behoeft te worden vastgelegd én geen locatie-eisen (aan openbare ruimte of woningbouwcategorieën) hoeven te worden vastgesteld.

6.1.1 beoordeling

Voor de realisatie van het plan hoeft door de gemeente geen investering gedaan te worden. De ontwikkelingskosten worden geheel door de initiatiefnemer gedragen.
Op grond van artikel 6.2.1 Bro is er geen sprake van een ‘aangewezen bouwplan’. Initiatiefnemer voert voor eigen rekening en risico de bouwwerkzaamheden uit. Hiermee is sprake is van een financieel uitvoerbaar plan. Voor dit wijzigingsplan is afgezien van een exploitatieplan aangezien het kostenverhaal anderzins is verzekerd. De gemeente Bernheze sluit met de initiatiefnemer een anterieure overeenkomst af, waarin behalve de gemeentelijke (plan)kosten ook de verantwoordelijkheid voor eventuele planschadekosten en parkeervoorzieningen wordt vastgelegd.

6.1.2 Conclusie

De economische uitvoerbaarheid van het onderhavige plan is verzekerd.

6.2 Maatschappelijke uitvoerbaarheid

Artikel 3.1.1 van het Bro bepaalt dat bij de voorbereiding van een bestemmingsplan het College van Burgemeester en Wethouders overleg voert met betrokken instanties en overheden. In het kader van het vooroverleg wordt kennisgeving gedaan verschillende belanghebbende organisaties en overheden inzake de terinzagelegging van het ontwerp-bestemmingsplan.


Overleg ex artikel 3.1.1 Bro

In deze paragraaf wordt verslag gedaan van de uitkomsten van het overleg ex artikel 3.1.1 Bro. Dit overleg heeft plaatsgevonden via de digitale watertoets. De digitale watertoets heeft geresulteerd in een positief wateradvies, waardoor het watertoetsproces niet verder hoeft te worden doorlopen.

Zienswijzen

Het ontwerp-wijzigingsplan heeft vanaf 24 mei 2018 6 weken ter inzage gelegen. Gedurende deze periode zijn geen zienswijzen ingediend.