direct naar inhoud van Regels
Plan: Gruytpark, deelgebieden Ravensnest en Botzegge
Status: vastgesteld
Plantype: bestemmingsplan
IMRO-idn: NL.IMRO.1719.2bp16ravensnbotzg-vg01

Regels

Hoofdstuk 1 Inleidende regels

Artikel 1 Begrippen

1.1 plan

het bestemmingsplan 'Gruytpark, deelgebieden Ravensnest en Botzegge' van de gemeente Drimmelen.

1.2 bestemmingsplan

de geometrisch bepaalde planobjecten als vervat in het GML bestand NL.IMRO.1719.2bp16ravensnbotzg-vg01 met de bijbehorende regels en bijlagen.

1.3 aanduiding

een geometrisch bepaald vlak of figuur, waarmee gronden zijn aangeduid, waar ingevolge de regels regels worden gesteld ten aanzien van het gebruik en/of het bebouwen van deze gronden;

1.4 aan-huis-verbonden bedrijf

een bedrijf dat in een (gedeelte van) of bij een woning wordt uitgeoefend en dat is gericht op het vervaardigen van producten en/of het leveren van diensten, door de gebruik(st)er van de woning, en dat niet krachtens een milieuwet vergunning- of meldingplichtig is;

1.5 aan-huis-verbonden beroep

een dienstverlenend beroep op zakelijk, maatschappelijk, juridisch, medisch, ontwerptechnisch of kunstzinnig gebied, dat in of bij een woning wordt uitgeoefend door de gebruik(st)er, waarbij de woning in overwegende mate de woonfunctie behoudt en dat een ruimtelijke uitwerking of uitstraling heeft die met de woonfunctie in overeenstemming is, met dien verstande dat er geen detailhandel is toegestaan met uitzondering van detailhandel als ondergeschikte nevenactiviteit bij de uitoefening van een aan huis verbonden beroep;

1.6 bebouwing

één of meer gebouwen en/of bouwwerken geen gebouwen zijnde;

1.7 bebouwingspercentage

een in dit plan aangegeven percentage, dat de grootte van het bouwvlak of bouwperceel aangeeft, dat maximaal mag worden bebouwd;

1.8 bed & breakfast

een kleinschalige aan de woonfunctie ondergeschikte niet zelfstandige accommodatie, uitsluitend voor logies en ontbijt, waarbij de woning in overwegende mate de woonfunctie behoudt en dat een ruimtelijke uitwerking of uitstraling heeft die met de woonfunctie in overeenstemming is;

1.9 bestemmingsgrens

de grens van een bestemmingsvlak;

1.10 bestemmingsvlak

een geometrisch bepaald vlak met eenzelfde bestemming;

1.11 bijbehorend bouwwerk

uitbreiding van een hoofdgebouw dan wel functioneel met een zich op hetzelfde perceel bevindend hoofdgebouw verbonden, daar al dan niet tegen aangebouwd op de grond staand gebouw, of ander bouwwerk, met een dak;

1.12 bouwen

het plaatsen, het geheel of gedeeltelijk oprichten, vernieuwen of veranderen en het vergroten van een bouwwerk;

1.13 bouwgrens

de grens van een bouwvlak;

1.14 bouwperceel

een aaneengesloten stuk grond waarop ingevolge de regels een zelfstandige, bij elkaar behorende bebouwing is toegestaan;

1.15 bouwvlak

een geometrisch bepaald vlak, waarmee gronden zijn aangeduid, waar ingevolge de regels bepaalde gebouwen en bouwwerken geen gebouwen zijnde, zijn toegelaten;

1.16 bouwwerk

elke constructie van enige omvang van hout, steen, metaal of ander materiaal, die hetzij direct, hetzij indirect met de grond is verbonden, hetzij direct of indirect steun vindt in of op de grond;

1.17 detailhandel

het bedrijfsmatig te koop aanbieden, waaronder begrepen de uitstalling ten verkoop, het verkopen en/of leveren van goederen aan personen die goederen kopen voor gebruik, verbruik of aanwending anders dan in de uitoefening van een beroeps- of bedrijfsactiviteit;

1.18 erf

al dan niet bebouwd perceel, of een gedeelte daarvan, dat direct is gelegen bij een hoofdgebouw en dat in feitelijk opzicht is ingericht ten dienste van het gebruik van dat gebouw;

1.19 escortbedrijf

de natuurlijke persoon, groep of rechtspersoon die bedrijfsmatig, of van omvang alsof zij bedrijfsmatig was, prostitutie aanbiedt die op een andere plaats dan in de bedrijfsruimte (van een seksinrichting) wordt uitgeoefend;

1.20 grondgebonden woning

woning die rechtstreeks toegankelijk is op het straatniveau en waarvan één van de bouwlagen aansluit op het maaiveld. Grondgebonden woningen hebben meestal een terras en/of een tuin. Ze staan tegenover gestapelde woningen;

1.21 gebouw

elk bouwwerk, dat een voor mensen toegankelijke, overdekte, geheel of gedeeltelijk met wanden omsloten ruimte vormt;

1.22 hoofdgebouw

gebouw, of gedeelte daarvan, dat noodzakelijk is voor de verwezenlijking van de geldende of toekomstige bestemming van een perceel en, indien meer gebouwen op het perceel aanwezig zijn, gelet op de bestemming die het belangrijkst is;

1.23 horecabedrijf

een bedrijf, waar bedrijfsmatig dranken en/of etenswaren voor verkoop aan het publiek wordt bereidt en verstrekt, al dan niet voor consumptie ter plaatse, en/of waarin bedrijfsmatig logies wordt verstrekt;

1.24 huishouden

een zelfstandig(e) dan wel samenwonend persoon of groep van personen die binnen een complex van ruimten gebruik maken van dezelfde voorzieningen, zoals een keuken, sanitaire voorzieningen en de entree;

1.25 kelder

een overdekte, met wanden omsloten, voor mensen toegankelijke ruimte, beneden of tot maximaal 1 m boven de gemiddelde hoogte van het aan het gebouw aangrenzende terrein;

1.26 kleinschalige bedrijfsmatige activiteiten

het op bedrijfsmatige wijze uitoefenen van activiteiten, waarvoor geen melding- of vergunningplicht op grond van het Inrichtingen- en vergunningenbesluit milieubeheer geldt en die door de beperkte omvang in een gedeelte van een woning en de daarbij behorende bebouwing, met behoud van de woonfunctie, kan worden uitgeoefend;

1.27 maatschappelijke voorzieningen

voorzieningen ten behoeve van openbaar bestuur, openbare dienstverlening, religie, verenigingsleven, onderwijs met bijbehorende sport- en gymnastieklokalen, (kinder)dagopvang, naschoolseopvang, opvoeding, bibliotheek, lichamelijke en/of geestelijke gezondheid van mens en dier;

1.28 omgevingsvergunning

vergunning als bedoeld in artikel 2.1 Wet algemene bepalingen omgevingsrecht (Wabo);

1.29 openbaar gebied

wegen, water en openbaar groen (parken, plantsoenen en speelveldjes) die het gehele jaar - of een groot deel daarvan - voor het publiek algemeen toegankelijk zijn;

1.30 peil
  • voor een gebouw, gebouwencomplex of ander bouwwerk waarvan de voorgevel direct aan de weg grenst: het peil van het hoogst aangrenzende weggedeelte;
  • voor een gebouw, gebouwencomplex of ander bouwwerk waarvan de voorgevel niet direct aan de weg grenst: het peil van het hoogste aangrenzende terreingedeelte;
  • indien het gebouw, gebouwencomplex of bouwwerk is gelegen in geaccidenteerd terrein of tussen twee wegen, geldt het peil van het hoogst aangrenzende terrein- of weggedeelte nabij de voorgevel van het gebouw;
1.31 prostitutie

het zich beschikbaar stellen tot het verrichten van seksuele handelingen met een ander tegen vergoeding;

1.32 raamprostitutie

een seksinrichting met één of meer ramen van waarachter de prostitué/prostituee tracht de aandacht van passanten op zich te vestigen met als doel het zich beschikbaar stellen tot het verrichten van seksuele handelingen met een ander tegen vergoeding;

1.33 risicovolle inrichting

een inrichting, bij welke ingevolge het Besluit externe veiligheid inrichtingen (Bevi) een grenswaarde, richtwaarde voor het risico c.q. een risico-afstand moet worden aangehouden bij het in het bestemmingsplan toelaten van kwetsbare of beperkt kwetsbare objecten;

1.34 seksinrichting

een gebouw of een gedeelte van een gebouw, waarin bedrijfsmatig handelingen en/of vertoningen plaatsvinden van seksuele, erotische en/of pornografische aard;

1.35 straatprostitutie

het zich op de openbare weg respectievelijk op openbare ruimten of in een zich op de openbare weg respectievelijk openbare ruimte bevindend voertuig beschikbaar stellen tot het verrichten van seksuele handelingen met een ander tegen vergoeding;

1.36 voorgevel

gevel van een gebouw georiënteerd op de gevellijn;

1.37 waterhuishoudkundige voorzieningen

voorzieningen die nodig zijn voor een goede wateraanvoer, waterafvoer, waterberging, hemelwaterinfiltratie en waterkwaliteit, zoals duikers, stuwen, gemalen, inlaten, bergings- en infiltratievoorzieningen;

1.38 waterhuishoudkundige voorzieningen

voorzieningen die nodig zijn voor een goede wateraanvoer, waterafvoer, waterberging, hemelwaterinfiltratie en waterkwaliteit, zoals duikers, stuwen, gemalen, inlaten, bergings- en infiltratievoorzieningen;

1.39 woning

een complex van ruimten, geschikt en bestemd voor de huisvesting van niet meer dan één huishouden, waaronder begrepen eventueel gemeenschappelijk gebruik van bepaalde ruimten;

1.40 zijdelingse perceelsgrens

de grens tussen twee percelen, die voor- en achterzijde van een perceel verbindt.

Artikel 2 Wijze van meten

2.1 De goothoogte van een bouwwerk:

vanaf het peil tot aan de bovenkant van de goot c.q. de druiplijn, het boeiboord of daarbij gelijk te stellen constructiedeel;

2.2 De bouwhoogte van een bouwwerk:

vanaf het peil tot aan het hoogste punt van een gebouw of van een bouwwerk, geen gebouw zijnde, met uitzondering van ondergeschikte bouwonderdelen, zoals airco's, schoorstenen, antennes, en naar de aard daarmee gelijk te stellen bouwonderdelen;

2.3 De inhoud van een bouwwerk:

tussen de onderzijde van de begane grondvloer, de buitenzijde van de gevels (en/of het hart van de scheidsmuren) en de buitenzijde van daken en dakkapellen;

2.4 De oppervlakte van een bouwwerk:

tussen de buitenwerkse gevelvlakken en/of het hart van de scheidingsmuren, neerwaarts geprojecteerd op het gemiddelde niveau van het afgewerkte bouwterrein ter plaatse van het bouwwerk.

Hoofdstuk 2 Bestemmingsregels

Artikel 3 Detailhandel

3.1 Bestemmingsomschrijving

De voor 'Detailhandel' aangewezen gronden zijn bestemd voor:

  • a. detailhandel en dienstverlening, waarbij een bedrijfswoning niet is toegestaan;
  • b. ter plaatse van de aanduiding 'verkooppunt motorbrandstoffen met lpg' een verkooppunt voor motorbrandstoffen met lpg;
  • c. ondergeschikte horeca categorie I;
  • d. ondergeschikte kantoren;
  • e. bij deze bestemming behorende voorzieningen, zoals groen, water, nutsvoorzieningen, parkeervoorzieningen en overige verhardingen.
3.2 Bouwregels

Voor het bouwen gelden de volgende regels:

  • a. op deze gronden mogen hoofdgebouwen en bijbehorende bouwwerken worden gebouwd;
  • b. indien een gevellijn is aangegeven dient de bebouwing op de gevellijn te worden georiënteerd;
  • c. de gebouwen worden uitsluitend gebouwd in het bouwvlak;
  • d. het bouwvlak mag volledig worden bebouwd;
  • e. de maximale goot- en bouwhoogte mag niet meer dan 7 m respectievelijk 11 m bedragen;
  • f. het aantal hoofdgebouwen mag niet toenemen;
  • g. de maximale goot- en bouwhoogte van bijbehorende bouwwerken mag ten hoogste 3,3 m respectievelijk 6 m bedragen, met dien verstande dat wanneer het een uitbreiding van het hoofdgebouw betreft, de goot- en bouwhoogte van het hoofdgebouw als maximum geldt;
  • h. de bouwhoogte van erfafscheidingen grenzend aan openbaar gebied bedraagt ten hoogste 1 m;
  • i. de bouwhoogte van erfafscheidingen elders bedraagt ten hoogste 2 m;
  • j. de bouwhoogte van overige bouwwerken, geen gebouwen zijnde, bedraagt ten hoogste 3 m.
3.3 Specifieke gebruiksregels
3.3.1 Buitenopslag

Buitenopslag van voorwerpen, stoffen en materialen ten behoeve van het eigen bedrijf is uitsluitend toegestaan achter (het verlengde van) de voorgevellijn van het hoofdgebouw.

3.3.2 Strijdig gebruik

Met betrekking tot het gebruik van gronden en bouwwerken gelden de volgende regels:

  • a. opslag van meer dan 10.000 kg consumentenvuurwerk is niet toegestaan.
3.3.3 Specifieke regels verkooppunt motorbrandstoffen met lpg

Ter plaatse van de aanduiding 'verkooppunt motorbrandstoffen met lpg' gelden voor het afleveren van lpg de volgende specifieke gebruiksregels:

  • a. het verladen van lpg is uitsluitend toegestaan op werkdagen tussen 9:00 uur en 16:00 uur.
  • b. de doorzet van lpg bedraagt maximaal 1.000 m3;
  • c. de leverende tankwagens dienen te zijn uitgerust met een hittewerende coating.

Artikel 4 Groen

4.1 Bestemmingsomschrijving

De voor 'Groen' aangewezen gronden zijn bestemd voor:

  • a. groenvoorzieningen;
  • b. speelvoorzieningen;
  • c. voet- en fietspaden, waarbij ter plaatse van de aanduiding 'langzaam verkeer' naast een ontsluiting voor langzaam verkeer, tevens de ontsluiting als calamiteitenroute is toegestaan;
  • d. bijbehorende voorzieningen als verhardingen, nutsvoorzieningen, water en waterhuishoudkundige voorzieningen.
4.2 Bouwregels

Ten aanzien van het bouwen gelden de volgende regels:

  • a. op deze gronden mogen uitsluitend bouwwerken, geen gebouwen zijnde, worden gebouwd;
  • b. de bouwhoogte van bouwwerken, geen gebouwen zijnde, bedraagt niet meer dan 3 m.
4.3 Specifieke gebruiksregels

Als strijdig gebruik geldt het gebruik van gronden en bouwwerken als volkstuin.

Artikel 5 Groen - Park

5.1 Bestemmingsomschrijving
5.1.1 Algemeen

De voor 'Groen - Park' aangewezen gronden zijn bestemd voor:

  • a. een kinderboerderij met de bijbehorende voorzieningen, zoals omschreven in 5.1.2 sub a;
  • b. groenvoorzieningen;
  • c. speelvoorzieningen;
  • d. nutsvoorzieningen;
  • e. ontsluitingswegen;
  • f. voet- en fietspaden;
  • g. bij deze bestemming behorende voorzieningen, zoals groen, water, nutsvoorzieningen, parkeervoorzieningen en overige verhardingen;

één en ander met de bijbehorende bouwwerken en overeenkomstig het bepaalde in 5.1.2.

5.1.2 Nadere detaillering van de bestemmingsomschrijving
a Kinderboerderij

Ten dienste van de kinderboerderij zijn de volgende voorzieningen, en de daarbij behorende bouwwerken, toegestaan:

  • een boerderij met logiesruimten, werkruimten, leslokalen e.d.;
  • werkschuur met kas;
  • thematische tuinen (vlindertuin, moestuin);
  • speeltuin;
  • omrasterde dierenweiden;
  • dierenverblijven;
  • volières;
  • paardenwei, buitenbak en stal.
5.2 Bouwregels
5.2.1 Gebouwen

Voor gebouwen gelden de volgende regels:

  • a. gebouwen zijn uitsluitend toegestaan ter plaatse van de aanduiding 'bouwvlak',
  • b. in afwijking van het bepaalde in sub a geldt dat buiten de bouwvlakken gebouwen zijn toegestaan, mits voldaan wordt aan het volgende;
    • 1. de goothoogte mag niet meer bedragen dan 3 m;
    • 2. de bouwhoogte mag niet meer bedragen dan 4,5 m;
    • 3. de totale oppervlakte aan gebouwen buiten de bouwvlakken mag niet meer bedragen dan 50 m²;
  • c. de goot- en bouwhoogte mag niet meer bedragen dan aangegeven ter plaatse van de aanduiding 'maximale goot- en bouwhoogte' met deze aanduiding is aangegeven;
5.2.2 Bouwwerken, geen gebouwen zijnde

Voor bouwwerken, geen gebouwen zijnde, gelden de volgende regels:

  • a. de bouwhoogte van bouwwerken, geen gebouwen zijnde, bedraagt niet meer dan 4 m.
5.3 Specifieke gebruiksregels

Onder strijdig gebruik als bedoeld in artikel 2.1, 1e lid sub c. van de Wabo wordt in ieder geval verstaan:

  • a. de uitoefening van enige vorm van detailhandel en/of bedrijf anders dan ondergeschikte detailhandel in dieren en dierproducten;
  • b. zelfstandige bewoning;
  • a. de uitoefening van enige vorm van horeca anders dan ondergeschikte horeca.
5.4 Omgevingsvergunning voor het uitvoeren van een werk, geen bouwwerk zijnde, of van werkzaamheden
5.4.1 Omgevingsvergunningsplicht

Het is verboden op de in dit artikel bedoelde gronden zonder of in afwijking van een schriftelijke vergunning van het bevoegd gezag (omgevingsvergunning voor werken en werkzaamheden) voor het te (doen) kappen en/of rooien van bomen.

5.4.2 Uitzonderingen vergunningplicht

Het onder 5.4.1 vervatte verbod geldt niet voor:

  • a. werken en werkzaamheden waarvoor ten tijde van het van kracht worden van dit bestemmingsplan omgevingsvergunning voor werken en werkzaamheden is verleend;
  • b. het kappen en/of rooien van bomen die als te rooien boom is aangewezen in Bijlage 1 Boombeheervisie EVG-centrum en Bijlage 2 Boombeheervisie Botzegge voor de respectievelijke deellocaties, in verband met conditie, dunning en/of bouwplan.
5.4.3 Toetsing aan aanwezige waarden

De in 5.4.1 bedoelde vergunning wordt slechts verleend indien na een belangenafweging blijkt dat de afschermende werking van de groenstructuur behouden of versterkt wordt.

Artikel 6 Maatschappelijk

6.1 Bestemmingsomschrijving

De voor 'Maatschappelijk' aangewezen gronden zijn bestemd voor:

  • a. maatschappelijke voorzieningen in de vorm van zorgwoningen en/of begeleid wonen;
  • b. het aantal bewoners bedraagt niet meer dan 40;
  • c. ter plaatse van de aanduiding 'langzaam verkeer' is uitsluitend langzaam verkeer toegestaan, alsmede de ontsluiting als calamiteitenroute;

met bijbehorende gemeenschappelijke verblijfsruimten en (gezondheids)voorzieningen, zoals therapieruimten, alsmede voor ontsluitingswegen, erven, terreinen (zoals tuinen), beplanting, parkeervoorzieningen, voorzieningen voor de waterhuishouding.

6.2 Bouwregels
6.2.1 Gebouwen

Voor het bouwen van gebouwen gelden de volgende regels:

  • a. gebouwen mogen uitsluitend worden gebouwd ter plaatse van de aanduiding 'bouwvlak';
  • b. de bouwhoogte mag niet meer bedragen dan ter plaatse van de aanduiding 'maximale bouwhoogte (m)' is aangegeven;
  • c. de gebouwen worden zodanig gesitueerd dat de buitenverblijfsruimten tussen de eigen gebouwen is gesitueerd.
6.2.2 Bouwwerken, geen gebouwen zijnde

Voor bouwwerken, geen gebouwen zijnde, gelden de volgende regels:

  • a. de hoogte van erf- en terreinafscheidingen vóór de naar de weg gekeerde gevels dan wel het verlengde daarvan mag niet meer dan 1 m bedragen;
  • b. de hoogte van erf- en terreinafscheidingen achter de naar de weg gekeerde gevels dan wel het verlengde daarvan mag niet meer dan 2 m bedragen;
  • c. de hoogte van overige bouwwerken, geen gebouwen zijnde, mag niet meer dan 3 m bedragen.
6.3 Specifieke gebruiksregels
6.3.1 Strijdig gebruik

Onder strijdig gebruik als bedoeld in artikel 2.1, 1e lid sub c. van de Wabo wordt in ieder geval verstaan:

  • a. zelfstandige bewoning.
6.3.2 Voorwaardelijke verplichting parkeren

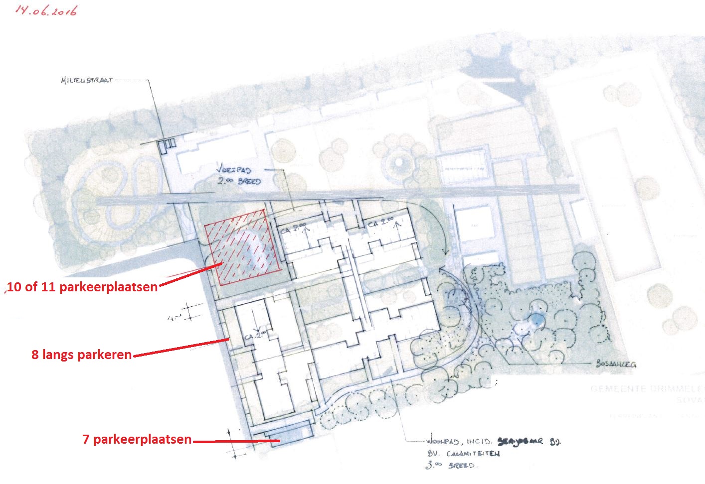
Het gebruik van de gronden en gebouwen is uitsluitend toegestaan, indien is voorzien in de aanleg en instandhouding van de parkeerplaatsen, zoals in navolgende afbeelding is opgenomen:

afbeelding "i_NL.IMRO.1719.2bp16ravensnbotzg-vg01_0028.jpg"

Artikel 7 Verkeer - Verblijfsgebied

7.1 Bestemmingsomschrijving

De voor 'Verkeer - Verblijfsgebied' aangewezen gronden zijn bestemd voor:

  • b. verblijfsgebied met een functie voor verblijf, verplaatsing, gebruik ten dienste van de aangrenzende bestemmingen en gebruik ten behoeve van het innemen van standplaatsen;
  • c. wegen met doorgaande rijstroken;
  • d. bij deze bestemming behorende voorzieningen, zoals voet- en fietspaden, geluidwerende voorzieningen, nutsvoorzieningen, groenvoorzieningen, water- en waterhuishoudelijke voorzieningen, reclame-uitingen, parkeervoorzieningen en overige verhardingen.
7.2 Bouwregels

Ten aanzien van het bouwen gelden de volgende regels:

  • a. op deze gronden mogen uitsluitend bouwwerken, geen gebouwen zijnde, worden gebouwd;
  • b. de bouwhoogte van bouwwerken, geen gebouwen zijnde, anders dan ten behoeve van de verkeersregeling, verkeersaanduiding, wegaanduiding of verlichting bedraagt niet meer dan 4 m.

Artikel 8 Wonen

8.1 Bestemmingsomschrijving

De voor 'Wonen' aangewezen gronden zijn bestemd voor:

  • a. het wonen in grondgebonden woningen;
  • b. aan huis verbonden beroepen en/of kleinschalige bedrijfsmatige activiteiten;
  • c. bij deze bestemming behorende voorzieningen, zoals erven, tuinen, water, nutsvoorzieningen, parkeervoorzieningen en overige verhardingen.
8.2 Bouwregels
8.2.1 Algemeen

Uitsluitend mag worden gebouwd ten dienste van deze bestemming.

8.2.2 Hoofdgebouwen en bijbehorende bouwwerken

Voor het bouwen van hoofdgebouwen en bijbehorende bouwwerken gelden de volgende regels:

  • a. de hoofdgebouwen en bijbehorende bouwwerken worden uitsluitend gebouwd in het bouwvlak, met dien verstande dat erkers aan de voorzijde van de woning ook buiten het bouwvlak mogen worden gebouwd met een hoogte van maximaal 1 bouwlaag en met een maximale diepte van 1,5 m;
  • b. in aanvulling op het bepaalde onder a zijn bijbehorende bouwwerken eveneens toegestaan ter plaatse van de aanduiding 'bijgebouwen';
  • c. het aantal woningen mag niet meer bedragen dan ter plaatse van de aanduiding 'maximum aantal wooneenheden' met deze aanduiding is aangeduid, met dien verstande dat er in het gehele bestemmingsplan niet meer dan 16 woningen zijn toegestaan;
  • d. per bouwperceel mag het bebouwingspercentage niet meer dan 70% bedragen;
  • e. de diepte van hoofdgebouwen, gemeten vanaf de gevellijn, mag niet meer bedragen dan 12 m;
  • f. ter plaatse van de gevellijn dient de voorgevel van de hoofdgebouwen op de gevellijn te worden georiënteerd;
  • g. de maximale goot- en bouwhoogte van hoofdgebouwen mag niet meer dan 7 m respectievelijk 11 m bedragen;
  • h. de maximale goot- en bouwhoogte van bijbehorende bouwwerken mag ten hoogste 3,3 m respectievelijk 6 m bedragen.
8.2.3 Bouwwerken, geen gebouwen zijnde

Voor bouwwerken, geen gebouwen zijnde, gelden de volgende bepalingen:

  • a. de bouwhoogte van erfafscheidingen vóór de voorgevel bedraagt ten hoogste 1 m;
  • b. de bouwhoogte van erfafscheidingen elders bedraagt ten hoogste 2 m;
  • c. de bouwhoogte van overige bouwwerken, geen gebouwen zijnde mag ten hoogste 3 m bedragen.
8.3 Specifieke gebruiksregels
8.3.1 Aan-huis-verbonden beroepen

Binnen de bestemming 'Wonen' is de uitoefening van kleinschalige bedrijfsmatige activiteiten toegestaan, waarbij de volgende bepalingen van toepassing zijn:

  • a. de woonfunctie blijft als hoofdfunctie herkenbaar;
  • b. de activiteit wordt door de bewoner uitgeoefend;
  • c. de omvang van de activiteit mag niet meer bedragen dan 40% van de gezamenlijke vloeroppervlakte van de (woon)bebouwing tot een maximum van 50m²;
  • d. het gebruik mag geen nadelige invloed hebben op de normale afwikkeling van het verkeer en mag geen onevenredige toename van de parkeerbehoefte veroorzaken;
  • e. detailhandel, anders dan ondergeschikte detailhandel, is niet toegestaan.
8.3.2 Kleinschalige bedrijfsmatige activiteiten

Binnen de bestemming 'Wonen' is de uitoefening van kleinschalige bedrijfsmatige activiteiten toegestaan, waarbij de volgende bepalingen van toepassing zijn:

  • a. de woonfunctie blijft als hoofdfunctie herkenbaar;
  • b. de activiteit wordt door de bewoner uitgeoefend;
  • c. de omvang van de activiteit mag niet meer bedragen dan 40% van de gezamenlijke vloeroppervlakte van de (woon)bebouwing tot een maximum van 50m²;
  • d. het gebruik mag geen nadelige invloed hebben op de normale afwikkeling van het verkeer en mag geen onevenredige toename van de parkeerbehoefte veroorzaken;
  • e. detailhandel, anders dan ondergeschikte detailhandel, is niet toegestaan.

Artikel 9 Waarde - Archeologie - 1

9.1 Bestemmingsomschrijving

De voor 'Waarde - Archeologie - 1' aangewezen gronden zijn, behalve voor de andere daar voorkomende bestemming(en), mede bestemd voor het behoud, de bescherming en/of het herstel van de voorkomende hoge archeologische (verwachtings)waarden.

9.1.1 Voorrang

De belangen van de 9.1 bedoelde dubbelbestemming zijn primair ten opzichte van de belangen van de andere daar voorkomende enkelvoudige bestemmingen.

9.1.2 Verhouding dubbelbestemmingen

Voor zover op de verbeelding dubbelbestemmingen samenvallen, geldt de volgende volgorde:

primair geldt het bepaalde in de dubbelbestemming 'Waterstaat - Waterkering';

secundair geldt het bepaalde in de dubbelbestemmingen 'Waarde - Archeologie - 1' en 'Waarde - Archeologie - 2'.

9.2 Bouwregels

Op of in deze gronden mogen geen bouwwerken worden gebouwd waarbij de bodem dieper dan 0,5 m wordt geroerd, met uitzondering van:

  • a. bouwwerken ter vervanging van bestaande bouwwerken, waarbij de bestaande oppervlakte van het bouwwerk met ten hoogste 100 m² wordt uitgebreid;
  • b. bouwwerken met een oppervlakte van minder dan 100 m² ten behoeve van andere daar voorkomende bestemming(en).
9.3 Omgevingsvergunning voor het uitvoeren van een werk, geen bouwwerk zijnde, of van werkzaamheden
9.3.1 Afwijken voor bouwen ten dienste van andere bestemming

Burgemeester en wethouders kunnen met een omgevingsvergunning afwijken van het bepaalde in artikel 9.2 onder a, voor de bouw van bouwwerken ten dienste van de andere geldende bestemming(en), mits:

  • a. op basis van een archeologisch onderzoek, weergegeven in een door de bevoegde overheid goedgekeurd rapport, in voldoende mate is vastgesteld dat er geen archeologische waarden (meer) aanwezig zijn, of;
  • b. op basis van archeologisch onderzoek, weergegeven in een door de bevoegde overheid goedgekeurd rapport, in voldoende mate is vastgesteld dat de archeologische waarden door bouwactiviteiten niet onevenredig worden geschaad, of indien het gravend archeologisch onderzoek betreft, dan is het verplicht om een Programma van Eisen conform KNA te laten opstellen en deze te laten goedkeuren door het bevoegd gezag; of;
  • c. de volgende voorwaarden in acht genomen worden indien, op basis van archeologisch onderzoek, weergegeven in een door de bevoegde overheid goedgekeurd rapport, in voldoende mate is vastgesteld dat de archeologische waarden door de bouwactiviteiten kunnen worden verstoord:
    • 1. een verplichting tot het treffen van technische maatregelen waardoor archeologische resten in de bodem kunnen worden behouden, of;
    • 2. een verplichting tot het doen van opgravingen, of opgravingen (hiervoor is een Programma van Eisen conform KNA, goedgekeurd door het bevoegd gezag, verplicht); of;
    • 3. een verplichting de uitvoering van bouwactiviteiten te laten begeleiden door een deskundige op het terrein van de archeologische monumentenzorg Deze vorm van onderzoek kan alleen in uitzonderlijke situaties worden toegepast zoals verwoord in de vigerende Kwaliteitsnorm Nederlandse Archeologie. Hiervoor is een Programma van Eisen conform KNA, goedgekeurd door het bevoegd gezag, verplicht.
9.3.2 Archeologisch rapport

Indien het bevoegd gezag niet beschikt over een voor de beoordeling van de aanvraag toereikend archeologisch onderzoek voor de gronden waarop een aanvraag om omgevingsvergunning wordt gedaan, dient de aanvrager ten behoeve van de beoordeling van archeologische waarden van de gronden een archeologisch rapport te overleggen dat voldoet aan de vigerende Kwaliteitsnorm voor de Nederlandse Archeologie (KNA).Indien het gravend archeologisch onderzoek betreft, dan is het verplicht om een Programma van Eisen conform KNA te laten opstellen en deze te laten goedkeuren door het bevoegd gezag.

9.3.3 Advies

Bij de beoordeling van het archeologisch onderzoek en het afwijkingsverzoek als bedoeld in artikel 9.3.1, laat het bevoegd gezag zich adviseren door een deskundige op het gebied van de archeologische monumentenzorg conform de KNA, vastgesteld door Burgemeester en wethouders van de gemeente Drimmelen.

9.4 Omgevingsvergunning voor het uitvoeren van een werk, geen bouwwerk zijnde, of van werkzaamheden
9.4.1 Omgevingsvergunning

Het is verboden op of in deze gronden zonder of in afwijking van een omgevingsvergunning de volgende werken, geen bouwwerken zijnde, of werkzaamheden uit te voeren:

  • a. het ophogen, afgraven (ook ten behoeve van het verwijderen van bestaande funderingen), woelen, mengen, diepploegen, aanbrengen van heipalen, egaliseren en ontginnen van gronden met dien verstande dat het werken, geen bouwwerken zijnde, en werkzaamheden betreft dieper dan 0,5 m. over een oppervlakte van meer dan 100 m²;
  • b. het wijzigen van de waterhuishouding, zoals draineren en het uitdiepen, graven en/of verleggen van waterlopen, met dien verstande dat het werken, geen bouwwerken zijnde, en werkzaamheden betreft dieper dan 0,5 m. over een oppervlakte van meer dan 100 m²;
  • c. het aanbrengen van ondergrondse transport-, energie- of telecommunicatieleidingen en daarmee verband houdende constructies, installaties of apparatuur dieper dan 0,5 m;
  • d. het verlagen van het grondwaterpeil over een oppervlakte van meer dan 100 m².
  • e. het doen van opgravingen in het kader van archeologisch onderzoek, mits verricht door een ter zake deskundige, namelijk een archeologische instantie met een opgravingsbevoegdheid die in het bezit is van een door het bevoegd gezag goedgekeurd Programma van Eisen.
9.4.2 Uitzonderingen

Het verbod, zoals bedoeld in artikel 9.4.1 is niet van toepassing, indien:

  • a. het gaat om onderhouds- en vervangingswerkzaamheden van bestaande bestratingen en beplantingen en werkzaamheden binnen bestaande tracés van kabels, leidingen en rioleringen waarbij niet dieper gegraven wordt dan de reeds uitgegraven diepte;
  • b. op basis van inventariserend en/of definitief archeologisch onderzoek is aangetoond dat op de betrokken locatie geen archeologische waarden (meer) aanwezig zijn;
  • c. de werken en werkzaamheden:
    • 1. reeds in uitvoering zijn op het tijdstip van het van kracht worden van het plan;
    • 2. mogen worden uitgevoerd krachtens een reeds verleende omgevingsvergunning of een ontgrondingsvergunning;
  • d. de werken en werkzaamheden op inventariserend of definitief archeologisch onderzoek zijn gericht.
9.5 Omgevingsvergunning voor het slopen van een bouwwerk
9.5.1 Omgevingsvergunning
  • a. het is verboden op of in de voor 'Waarde - Archeologie - 1' aangewezen gronden, zonder of in afwijking van een vergunning voor het slopen van een bouwwerk, de aanwezige bouwwerken te slopen indien de oppervlakte groter is dan 100 m² en de diepte meer bedraagt dan 0,5 m onder maaiveld.
  • b. aan de omgevingvergunning kan in ieder geval de voorwaarde worden gesteld dat de sloop wordt begeleid door een gekwalificeerde deskundige (zijnde een archeologisch bedrijf met een opgravingsvergunning). Hiervoor is een door (de deskundige op het gebied van de archeologische monumentenzorg, zijn de Regioarcheoloog, van) het bevoegd gezag schriftelijk goedgekeurd Programma van Eisen vereist dat is opgesteld conform de vigerende Kwaliteitsnorm voor de Nederlandse Archeologie (KNA).
  • c. indien tijdens de begeleiding van de sloopwerken vondsten van zeer hoge waarden worden aangetroffen, wordt hiervan terstond melding gemaakt bij het bevoegd gezag die in het belang van de archeologische monumentenzorg aanvullende voorschriften kunnen verbinden aan de omgevingsvergunning.
  • d. de vergunning kan niet worden verleend indien blijkt dat de sloop een onevenredige aantasting van de archeologische waarden van de gronden tot gevolg heeft.
9.5.2 Toelaatbaarheid

Een omgevingsvergunning als bedoeld in lid 9.5.1 wordt slechts verleend indien:

  • a. op basis van archeologisch onderzoek is aangetoond dat er geen archeologische waarden aanwezig zijn, of;
  • b. op basis van archeologisch onderzoek is aangetoond dat de archeologische waarden door bouwactiviteiten niet onevenredig worden geschaad, of;
  • c. de volgende voorwaarden in acht genomen worden indien, op basis van archeologisch onderzoek is aangetoond dat de archeologische waarden door de werken en werkzaamheden kunnen worden verstoord:
    • 1. een verplichting tot het treffen van technische maatregelen waardoor archeologische resten in de bodem kunnen worden behouden, of;
    • 2. een verplichting tot het doen van opgravingen, of (hiervoor is een Programma van Eisen conform KNA, goedgekeurd door het bevoegd gezag, verplicht); of;
    • 3. een verplichting de uitvoering van werken en werkzaamheden te laten begeleiden door een deskundige op het terrein van de archeologische monumentenzorg conform de vigerende KNA, namelijk een archeologische instantie met een opgravingsbevoegdheid. Deze vorm van onderzoek kan alleen in uitzonderlijke situaties worden toegepast zoals verwoord in de vigerende Kwaliteitsnorm Nederlandse Archeologie. Hiervoor is een Programma van Eisen conform KNA, goedgekeurd door het bevoegd gezag, verplicht.
9.5.3 Advies

Indien het bevoegd gezag voornemens is om aan de omgevingsvergunning voorwaarden te verbinden als bedoeld in lid 9.5.2 onder c, wordt de deskundige van de bevoegde overheid (Regioarcheoloog) om advies gevraagd. Bij een negatief advies wordt de omgevingsvergunning niet verleend.

9.6 Wijzigingsbevoegdheid
9.6.1 Wijziging op basis van archeologisch onderzoek

Burgemeester en wethouders kunnen, overeenkomstig artikel 3.6 van de Wet ruimtelijke ordening, het plan wijzigen in die zin dat de bestemming 'Waarde - Archeologie - 1' wordt ontnomen, indien op basis van archeologisch onderzoek is aangetoond dat ter plaatse geen archeologische waarden (meer) aanwezig zijn.

9.6.2 Advies

Alvorens de in artikel 9.6.1 bedoelde wijziging wordt toegepast, wordt deskundig advies gevraagd aan een door Burgemeester en wethouders van Drimmelen vastgestelde deskundige op het gebied van de archeologische monumentenzorg conform de vigerende KNA.

Artikel 10 Waarde - Archeologie - 2

10.1 Bestemmingsomschrijving

De voor 'Waarde - Archeologie - 2' aangewezen gronden zijn, behalve voor de andere daar voorkomende bestemming(en), mede bestemd voor het behoud, de bescherming en/of het herstel van de voorkomende middelhoge archeologische (verwachtings)waarden.

10.1.1 Voorrang

De belangen van de in 10.1 bedoelde dubbelbestemming zijn primair ten opzichte van de belangen van de andere daar voorkomende enkelvoudige bestemmingen.

10.1.2 Verhouding dubbelbestemmingen

Voor zover op de verbeelding dubbelbestemmingen samenvallen, geldt de volgende volgorde:

primair geldt het bepaalde in de dubbelbestemming 'Waterstaat - Waterkering';

secundair geldt het bepaalde in de dubbelbestemmingen 'Waarde - Archeologie - 1' en 'Waarde - Archeologie - 2'.

10.2 Bouwregels

Op of in deze gronden mogen geen bouwwerken worden gebouwd waarbij de bodem dieper dan 0,5 m wordt geroerd, met uitzondering van:

  • a. bouwwerken ter vervanging van bestaande bouwwerken, waarbij de bestaande oppervlakte van het bouwwerk met ten hoogste 1.000 m² wordt uitgebreid;
  • b. bouwwerken met een oppervlakte van minder dan 1.000 m² ten behoeve van andere daar voorkomende bestemming(en).
10.3 Afwijken van de bouwregels
10.3.1 Afwijken voor bouwen ten dienste van andere bestemming

Burgemeester en wethouders kunnen met een omgevingsvergunning afwijken van het bepaalde in artikel 10.2 onder a, voor de bouw van bouwwerken ten dienste van de andere geldende bestemming(en), mits:

  • a. op basis van een archeologisch onderzoek, weergegeven in een door de bevoegde overheid goedgekeurd rapport, in voldoende mate is vastgesteld dat er geen archeologische waarden (meer) aanwezig zijn, of;
  • b. op basis van archeologisch onderzoek, weergegeven in een door de bevoegde overheid goedgekeurd rapport, in voldoende mate is vastgesteld dat de archeologische waarden door bouwactiviteiten niet onevenredig worden geschaad, of indien het gravend archeologisch onderzoek betreft, dan is het verplicht om een Programma van Eisen conform KNA te laten opstellen en deze te laten goedkeuren door het bevoegd gezag; of;
  • c. de volgende voorwaarden in acht genomen worden indien, op basis van archeologisch onderzoek, weergegeven in een door de bevoegde overheid goedgekeurd rapport, in voldoende mate is vastgesteld dat de archeologische waarden door de bouwactiviteiten kunnen worden verstoord:
    • 1. een verplichting tot het treffen van technische maatregelen waardoor archeologische resten in de bodem kunnen worden behouden, of;
    • 2. een verplichting tot het doen van opgravingen, of opgravingen (hiervoor is een Programma van Eisen conform KNA, goedgekeurd door het bevoegd gezag, verplicht); of;
    • 3. een verplichting de uitvoering van bouwactiviteiten te laten begeleiden door een deskundige op het terrein van de archeologische monumentenzorg conform de vigerende KNA, namelijk een archeologische instantie met een opgravingsbevoegdheid. Deze vorm van onderzoek kan alleen in uitzonderlijke situaties worden toegepast zoals verwoord in de vigerende Kwaliteitsnorm Nederlandse Archeologie. Hiervoor is een Programma van Eisen conform KNA, goedgekeurd door het bevoegd gezag, verplicht.
10.3.2 Archeologisch rapport

Indien het bevoegd gezag niet beschikt over een voor de beoordeling van de aanvraag toereikend archeologisch onderzoek voor de gronden waarop een aanvraag om omgevingsvergunning wordt gedaan, dient de aanvrager ten behoeve van de beoordeling van archeologische waarden van de gronden een archeologisch rapport te overleggen dat voldoet aan de vigerende Kwaliteitsnorm voor de Nederlandse Archeologie (KNA). ndien het gravend archeologisch onderzoek betreft, dan is het verplicht om een Programma van Eisen conform KNA te laten opstellen en deze te laten goedkeuren door het bevoegd gezag.

10.3.3 Advies

Bij de beoordeling van het archeologisch onderzoek en het afwijkingsverzoek als bedoeld in artikel 10.3.1, laat het bevoegd gezag zich adviseren door een deskundige op het gebied van de archeologische monumentenzorg conform de KNA, vastgesteld door Burgemeester en wethouders van de gemeente Drimmelen.

10.4 Omgevingsvergunning voor het uitvoeren van een werk, geen bouwwerk zijnde, of van werkzaamheden
10.4.1 Omgevingsvergunning

Het is verboden op of in deze gronden zonder of in afwijking van een omgevingsvergunning de volgende werken, geen bouwwerken zijnde, of werkzaamheden uit te voeren:

  • a. het ophogen, afgraven (ook ten behoeve van het verwijderen van bestaande funderingen), woelen, mengen, diepploegen, aanbrengen van heipalen, egaliseren en ontginnen van gronden met dien verstande dat het werken, geen bouwwerken zijnde, en werkzaamheden betreft dieper dan 0,5 m over een oppervlakte van meer dan 1.000 m²;
  • b. het wijzigen van de waterhuishouding, zoals draineren en het uitdiepen, graven en/of verleggen van waterlopen, met dien verstande dat het werken, geen bouwwerken zijnde, en werkzaamheden betreft dieper dan 0,5 m. over een oppervlakte van meer dan 1000 m²;
  • c. het aanbrengen van ondergrondse transport-, energie- of telecommunicatieleidingen en daarmee verband houdende constructies, installaties of apparatuur dieper dan 0,5 m;
  • d. het verlagen van het grondwaterpeil over een oppervlakte van meer dan 100 m².
  • e. het doen van opgravingen in het kader van archeologisch onderzoek, mits verricht door een ter zake deskundige, namelijk een archeologische instantie met een opgravingsbevoegdheid die in het bezit is van een door het bevoegd gezag goedgekeurd Programma van Eisen.
10.4.2 Uitzonderingen

Het verbod, zoals bedoeld in artikel 10.4.1 is niet van toepassing, indien:

  • a. het gaat om onderhouds- en vervangingswerkzaamheden van bestaande bestratingen en beplantingen en werkzaamheden binnen bestaande tracés van kabels, leidingen en rioleringen waarbij niet dieper gegraven wordt dan de reeds uitgegraven diepte;
  • b. op basis van inventariserend en/of definitief archeologisch onderzoek is aangetoond dat op de betrokken locatie geen archeologische waarden (meer) aanwezig zijn;
  • c. de werken en werkzaamheden:
    • 1. reeds in uitvoering zijn op het tijdstip van het van kracht worden van het plan;
    • 2. mogen worden uitgevoerd krachtens een reeds verleende omgevingsvergunning of een ontgrondingsvergunning;
  • d. de werken en werkzaamheden op inventariserend of definitief archeologisch onderzoek zijn gericht.
10.5 Omgevingsvergunning voor het slopen van een bouwwerk
10.5.1 Omgevingsvergunning
  • a. het is verboden op of in de voor 'Waarde - Archeologie - 2' aangewezen gronden, zonder of in afwijking van een vergunning voor het slopen van een bouwwerk, de aanwezige bouwwerken te slopen indien de oppervlakte groter is dan 1.000 m² en de diepte meer bedraagt dan 0,5 m onder maaiveld.
  • b. aan de omgevingvergunning kan in ieder geval de voorwaarde worden gesteld dat de sloop wordt begeleid door een gekwalificeerde deskundige (zijnde een archeologisch bedrijf met een opgravingsvergunning). Hiervoor is een door (de deskundige op het gebied van de archeologische monumentenzorg, zijn de Regioarcheoloog, van) het bevoegd gezag schriftelijk goedgekeurd Programma van Eisen vereist dat is opgesteld conform de vigerende Kwaliteitsnorm voor de Nederlandse Archeologie (KNA).
  • c. indien tijdens de begeleiding van de sloopwerken vondsten van zeer hoge waarden worden aangetroffen, wordt hiervan terstond melding gemaakt bij het bevoegd gezag die in het belang van de archeologische monumentenzorg aanvullende voorschriften kunnen verbinden aan de omgevingsvergunning.
  • d. de vergunning kan niet worden verleend indien blijkt dat de sloop een onevenredige aantasting van de archeologische waarden van de gronden tot gevolg heeft.
10.5.2 Toelaatbaarheid

Een omgevingsvergunning als bedoeld in lid 10.5.1 wordt slechts verleend indien:

  • a. op basis van archeologisch onderzoek is aangetoond dat er geen archeologische waarden aanwezig zijn, of;
  • b. op basis van archeologisch onderzoek is aangetoond dat de archeologische waarden door bouwactiviteiten niet onevenredig worden geschaad, of;
  • c. de volgende voorwaarden in acht genomen worden indien, op basis van archeologisch onderzoek is aangetoond dat de archeologische waarden door de werken en werkzaamheden kunnen worden verstoord:
    • 1. een verplichting tot het treffen van technische maatregelen waardoor archeologische resten in de bodem kunnen worden behouden, of;
    • 2. een verplichting tot het doen van opgravingen, of (hiervoor is een Programma van Eisen conform KNA, goedgekeurd door het bevoegd gezag, verplicht); of;
    • 3. een verplichting de uitvoering van werken en werkzaamheden te laten begeleiden door een deskundige op het terrein van de archeologische monumentenzorg conform de vigerende KNA, namelijk een archeologische instantie met een opgravingsbevoegdheid. Deze vorm van onderzoek kan alleen in uitzonderlijke situaties worden toegepast zoals verwoord in de vigerende Kwaliteitsnorm Nederlandse Archeologie. Hiervoor is een Programma van Eisen conform KNA, goedgekeurd door het bevoegd gezag, verplicht.
10.5.3 Advies

Indien het bevoegd gezag voornemens is om aan de omgevingsvergunning voorwaarden te verbinden als bedoeld in lid 10.5.2 onder c, wordt de deskundige van de bevoegde overheid (Regioarcheoloog) om advies gevraagd. Bij een negatief advies wordt de omgevingsvergunning niet verleend.

10.6 Wijzigingsbevoegdheid
10.6.1 Wijziging op basis van archeologisch onderzoek

Burgemeester en wethouders kunnen, overeenkomstig artikel 3.6 van de Wet ruimtelijke ordening, het plan wijzigen in die zin dat de bestemming 'Waarde - Archeologie - 2' wordt ontnomen, indien op basis van archeologisch onderzoek is aangetoond dat ter plaatse geen archeologische waarden (meer) aanwezig zijn.

10.6.2 Advies

Alvorens de in artikel 10.6.1 bedoelde wijziging wordt toegepast, wordt deskundig advies gevraagd aan een door Burgemeester en wethouders van Drimmelen vastgestelde deskundige op het gebied van de archeologische monumentenzorg conform de vigerende KNA.

Hoofdstuk 3 Algemene regels

Artikel 11 Anti-dubbeltelregel

Grond die eenmaal in aanmerking is genomen bij het toestaan van een bouwplan waaraan uitvoering is gegeven of alsnog kan worden gegeven, blijft bij de beoordeling van latere bouwplannen buiten beschouwing.

Artikel 12 Algemene bouwregels

12.1 Bestaande bouwwerken

In die gevallen dat hoogten, inhoud, aantallen en / of oppervlakten, van bestaande bouwwerken, die gebouwd zijn met inachtneming van het bepaalde bij of krachtens de Woningwet of Wet algemene bepalingen omgevingsrecht, op de dag van de terinzagelegging van het ontwerp van het plan meer of minder bedragen dan ingevolge hoofdstuk 2 is voorgeschreven, mogen de bestaande maten en hoeveelheden als maximaal respectievelijk minimaal toelaatbaar worden aangehouden.

12.2 Herbouw

In het geval van (her)oprichting van gebouwen is het bepaalde in lid 12.1 uitsluitend van toepassing indien het geschiedt op dezelfde plaats.

12.3 Ondergeschikte bouwdelen

Bij de toepassing van het bepaalde ten aanzien van het bouwen binnen de aanduiding 'bouwvlak' of het bestemmingsvlak worden ondergeschikte bouwdelen als plinten, pilasters, kozijnen, gevelversieringen, ventilatiekanalen, schoorstenen, gevel- en kroonlijsten, overstekende daken en reclame-uitingen, buiten beschouwing gelaten, mits de bouw- c.q. bestemmingsgrens met niet meer dan 0,50 m wordt overschreden.

Artikel 13 Algemene gebruiksregels

13.1 Strijdig gebruik

Onder strijdig gebruik als bedoeld in artikel 2.1, 1e lid sub c. van de Wabo wordt in ieder geval verstaan:

  • a. het gebruik van onbebouwde gronden of het gebruik van bouwwerken ten behoeve van het storten van puin en afvalstoffen, tenzij dit ter realiseren en / of handhaving van de bestemming dient;
  • b. het gebruik van onbebouwde gronden of het gebruik van bouwwerken ten behoeve van opslag van gerede of ongerede goederen, zoals vaten, kisten bouwmaterialen, werktuigen, machines en onderdelen hiervan, tenzij dit ter realisering en / of handhaving van de bestemming dient;
  • c. het gebruik van onbebouwde gronden of het gebruik van bouwwerken ten behoeve van doeleinden van handel of bedrijf, een seksinrichting daaronder mede begrepen;
  • d. het gebruik van onbebouwde gronden of het gebruik van bouwwerken ten behoeve van verblijfsrecreatie;
  • e. het gebruik van vrijstaande bijbehorende bouwwerken voor zelfstandige bewoning.

Artikel 14 Algemene aanduidingsregels

14.1 Veiligheidszone - lpg

Ter plaatse van de aanduiding 'veiligheidszone - lpg' geldt een plaatsgebonden risicocontour van 10-6. Binnen deze contour mogen geen kwetsbare objecten worden opgericht, behoudens de reeds bestaande kwetsbare objecten.

Artikel 15 Algemene afwijkingsregels

15.1 Afwijking

Het bevoegd gezag kan bij een omgevingsvergunning afwijken van:

  • a. de regels en toestaan dat het bouwvlak in geringe mate wordt overschreden, indien een meetverschil daartoe aanleiding geeft;
  • b. de regels en toestaan dat openbare nutsgebouwtjes, wachthuisjes ten behoeve van het openbaar vervoer, telefooncellen, gebouwtjes ten behoeve van de bediening van kunstwerken, toiletgebouwtjes en naar aard daarmee gelijk te stellen gebouwtjes worden gebouwd, mits:
    • 1. de inhoud per gebouw niet meer dan 50 m3 bedraagt;
    • 2. de bouwhoogte niet meer dan 3,5 m bedraagt;
  • c. de regels ten aanzien van de hoogte van bouwwerken, geen gebouwen zijnde, en toestaan dat de hoogte van bouwwerken, geen gebouwen zijnde, wordt vergroot:
    • 1. ten behoeve van kunstwerken, geen gebouwen zijnde, tot maximaal 10 m;
    • 2. ten behoeve van waarschuwings- en/of communicatiemasten tot maximaal 50 m;
    • 3. ten behoeve van andere bouwwerken, geen gebouwen zijnde, tot maximaal 10 m;
  • d. het bepaalde ten aanzien van de maximale bouwhoogte van gebouwen en toestaan dat de bouwhoogte van gebouwen wordt verhoogd ten behoeve van plaatselijke verhogingen, zoals schoorstenen, luchtkokers, liftkokers, lichtkappen en technische ruimten, mits:
    • 1. de maximale oppervlakte van de vergroting niet meer dan 10% van het betreffende platte dakvlak of de horizontale projectie van het schuine dakvlak bedraagt;
    • 2. de bouwhoogte niet meer dan 1,25 maal de maximale bouwhoogte van het betreffende gebouw bedraagt.

Artikel 16 Algemene wijzigingsregels

16.1 Algemene wijzigingsregels

Het bevoegd gezag kan, overeenkomstig het bepaalde in artikel 3.6 van de Wet ruimtelijke ordening, het plan wijzigen ten behoeve van:

  • a. het bouwen van niet voor bewoning bestemde gebouwen en bouwwerken, geen gebouwen zijnde van geringe afmetingen ten dienste van het openbaar nut met een oppervlakte van maximaal 15 m² en een bouwhoogte van maximaal 3,50 m;
  • b. geringe afwijkingen, die in het belang zijn van een ruimtelijk of technisch beter verantwoorde plaatsing van bouwwerken of die noodzakelijk zijn in verband met de werkelijke toestand van het terrein. Hierbij zijn verschuivingen van de bestemmingsgrens met maximaal 5 m toelaatbaar;
  • c. overschrijding van bestemmingsgrenzen, voor zover zulks van belang is voor een technisch betere realisering van bestemmingen of bouwwerken dan wel voor zover zulks noodzakelijk is in verband met de werkelijke toestand van het terrein. De overschrijdingen mogen echter ten hoogste 3 m bedragen en het bestemmingsvlak mag met ten hoogste 10% worden vergroot.
16.2 Toepassingsregel

Bij de toepassing van de wijzigingsbevoegdheden als bedoeld in lid 16.1 kan het bevoegd gezag schriftelijk advies inwinnen bij een stedenbouwkundige.

Hoofdstuk 4 Overgangs- en slotregels

Artikel 17 Overgangsrecht

17.1 Overgangsrecht bouwwerken
17.1.1 Algemeen

Een bouwwerk dat op het tijdstip van inwerkingtreding van het bestemmingsplan aanwezig of in uitvoering is, danwel gebouwd kan worden krachtens een omgevingsvergunning voor het bouwen, en afwijkt van het plan, mag, mits deze afwijking naar aard en omvang niet wordt vergroot,

  • a. gedeeltelijk worden vernieuwd of veranderd;
  • b. na het teniet gaan ten gevolge van een calamiteit geheel worden vernieuwd of veranderd, mits de aanvraag van de omgevingsvergunning voor het bouwen wordt gedaan binnen twee jaar na de dag waarop het bouwwerk is teniet gegaan.
17.1.2 Afwijken bij omgevingsvergunning

Het bevoegd gezag kan eenmalig in afwijking van het bepaalde in 17.1.1 een omgevingsvergunning verlenen voor het vergroten van de inhoud van een bouwwerk als bedoeld in 17.1.1 met maximaal 10 %.

17.1.3 Uitzondering

Het bepaalde in 17.1.1 is niet van toepassing op bouwwerken die weliswaar bestaan op het tijdstip van inwerkingtreding van het plan, maar zijn gebouwd zonder vergunning en in strijd met het daarvoor geldende plan, daaronder begrepen de overgangsbepaling van dat plan.

17.2 Overgangsrecht gebruik
17.2.1 Algemeen

Het gebruik van grond en bouwwerken dat bestond op het tijdstip van inwerkingtreding van het bestemmingsplan en hiermee in strijd is, mag worden voortgezet.

17.2.2 Strijdig gebruik

Het is verboden het met het bestemmingsplan strijdige gebruik, bedoeld in 17.2.1, te veranderen of te laten veranderen in een ander met dat plan strijdig gebruik, tenzij door deze verandering de afwijking naar aard en omvang wordt verkleind.

17.2.3 Onderbroken gebruik

Indien het gebruik, bedoeld in 17.2.1, na het tijdstip van inwerkingtreding van het plan voor een periode langer dan een jaar wordt onderbroken, is het verboden dit gebruik daarna te hervatten of te laten hervatten.

17.2.4 Uitzondering

Het bepaalde in 17.2.1 is niet van toepassing op het gebruik dat reeds in strijd was met het voorheen geldende bestemmingsplan, daaronder begrepen de overgangsbepalingen van dat plan.

Artikel 18 Slotregel

Deze regels worden aangehaald als:

Regels van het bestemmingsplan 'Gruytpark, deelgebieden Ravensnest en Botzegge'.