direct naar inhoud van Toelichting
Plan: Rietmade Hoeven
Status: vastgesteld
Plantype: bestemmingsplan
IMRO-idn: NL.IMRO.1655.BP2009-C002

Toelichting

Hoofdstuk 1 Inleiding

1.1 Aanleiding

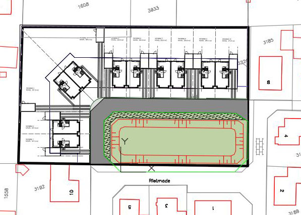
Initiatiefnemer Heijmans heeft bij het college van de gemeente Halderberge voor de percelen kadastraal bekend gemeente Hoeven sectie D nrs. 3706 en 1608 gedeeltelijk het verzoek ingediend tot herziening van het vigerende bestemmingsplan (artikel 3.1 Wro) ten behoeve van de realisatie van maximaal 10 stuks (half)vrijstaande woningen, e.e.a. zoals aangegeven op onderstaande tekening.

De gemeente heeft positief gereageerd ten aanzien van deze ontwikkeling verwoord in collegebesluit 13 oktober 2015.

afbeelding "i_NL.IMRO.1655.BP2009-C002_0001.png"

Afbeelding: verkavelingsplan

Met het oog op veranderende marktomstandigheden is het wenselijk om voldoende flexibiliteit te behouden in dit bestemmingsplan. Naast de ruimte voor een nadere uitwerking van het plan, bijvoorbeeld de realisatie van (vrijstaande) aan- en bijgebouwen zoals aangegeven op de principeverkaveling, is het wenselijk dat er afgezien van twee-aaneen woningen ook vrijstaande woningen gerealiseerd kunnen worden. Om de genoemde ontwikkeling mogelijk te maken is dit bestemmingsplan opgesteld.

1.2 Ligging plangebied

Het plangebied is gelegen aan de noordwestzijde van kom Hoeven, zie onderstaande situatietekening. De planlocatie sluit aan op de Rietmade, een erftoegangsweg ter ontsluiting van de vrijstaande woningen Het gebruik is op dit moment nog tuin en schapenwei.

Aan de noordzijde op zo'n 60 meter afstand ligt de N640 (Sint Bernardusstraat), een weg die de kern Hoeven verbindt met Oudenbosch. Ter hoogte van het plangebied is de weg verkeerskundig gezien buiten de bebouwde kom gelegen. Het zicht vanaf de Sint Bernardusstraat op het plangebied wordt ontnomen door enkele vrijstaande woningen met een groene inpassing. Net ten zuidwesten van het plangebied ligt de grens met het buitengebied. Ter plaatse is het agrarisch gebruik maisteelt.

afbeelding "i_NL.IMRO.1655.BP2009-C002_0002.png"

Afbeelding: situatietekening

1.3 Vigerend bestemmingsplan

De planlocatie valt binnen het vigerende bestemmingsplan ‘Kom Hoeven' van de gemeente Halderberge echter dit bestemmingsplan is ter plaatse van het plangebied vernietigd (zie hierna). In dat bestemmingsplan is een bestemming 'Wonen' zonder bouwvlak aangeduid. Wel is er een bouwaanduiding 'agrarisch' en 'vaartverkeerzone-10' opgenomen. Het voorgenomen bouwplan past dus niet binnen het bestemmingsplan 'Kom Hoeven' zoals onderstaand opgenomen.

afbeelding "i_NL.IMRO.1655.BP2009-C002_0003.png"

Afbeelding: uitsnede vigerend bestemmingsplan 'Kom Hoeven'2013

De Afdeling bestuursrechtspraak van de Raad van State heeft op 7 mei 2014 uitspraak gedaan met betrekking tot de beroepen die waren ingesteld tegen bestemmingsplan 'Kom Hoeven'. De afdeling vernietigde het besluit van de raad van de gemeente Halderberge van 14 maart 2013 tot vaststelling van het bestemmingsplan 'Kom Hoeven' voor zover het betreft het plandeel met de bestemming "Wonen" voor het perceel aan de Rietmade te Hoeven, kadastraal bekend gemeente Hoeven, sectie D, nr. 3706. De raad heeft de toekenning van de bestemming "Wonen" zonder de aanduiding "bouwvlak" aan het perceel aan de Rietmade te Hoeven, kadastraal bekend gemeente Hoeven, sectie D, nr. 3706, niet deugdelijk gemotiveerd en draagt de raad van de gemeente Halderberge op om binnen 26 weken na de verzending van de uitspraak met inachtneming van hetgeen daarin is overwogen een nieuw besluit te nemen. De bestemming voor kadastraal perceel gemeente Hoeven, sectie D, nr. 1608 is wel overeind gebleven.

Voor de locatie vigeert daarom bestemmingsplan ‘Bovendonk’, vastgesteld op 21 mei 1981 en goedgekeurd op 29 juni 1982. Hier geldt een bestemming 'Erf' met een aanduiding 'veiligheidszone', zie onderstaande afbeelding. De LPG- milieucirkel vormde in het verleden een belemmering voor woningbouw.

afbeelding "i_NL.IMRO.1655.BP2009-C002_0004.png"

Afbeelding: uitsnede bestemmingsplan Bovendonk

De geldende bestemmingsplannen bevatten geen wijzigings-/afwijkingsregels om aan het initiatief tegemoet te komen.

Door het herzien van het bestaande juridisch-planologisch kader kan worden voorzien in een mogelijkheid om 10 woningen te realiseren. Het voorliggende bestemmingsplan is aangesloten op de plansystematiek van het bestemmingsplan 'Kom Hoeven'.

1.4 Leeswijzer toelichting

In hoofdstuk 2 wordt het plan nader beschreven. In hoofdstuk 3 worden de beleidskaders van Rijk, provincie en de gemeente beschreven. De sectorale aspecten met betrekking tot de afzonderlijke bestemmingen worden toegelicht in hoofdstuk 4, de juridische aspecten in hoofdstuk 5. Een toelichting op de uitvoerbaarheid wordt gegeven in hoofdstuk 6.

Bij maatschappelijke uitvoerbaarheid wordt kort ingegaan op de procedure van het vooroverleg, zienswijzen en beroep. Op 12 april 2017 is er uitspraak gedaan inzake het ingediende beroep tegen het bestemmingsplan Rietmade Hoeven. Naar aanleiding hiervan is het voorliggende bestemmingsplan aangepast en opnieuw vastgesteld naar aanleiding van een tussenuitspraak / bestuurlijke lus van de Raad van State (Uitspraak 201605495/1/R2).

Hoofdstuk 2 Planbeschrijving

2.1 Beschrijving huidige situatie plangebied

De planlocatie sluit aan op de Rietmade, een erftoegangsweg ter ontsluiting van de bestaande buurt met vrijstaande en twee onder een kapwoningen. Het gebruik van de planlocatie is op dit moment nog weiland met hobbymatig agrarisch gebruik. De woningen die aan de noordkant van de planlocatie aan de N640 (Sint Bernardusstraat) liggen, grenzen met de achterkant en diepe tuinen aan de planlocatie.

afbeelding "i_NL.IMRO.1655.BP2009-C002_0005.jpg"

Luchtfoto planlocatie en directe omgeving

Op de foto huidige situatie planlocatie is te zien dat de planlocatie wordt omsloten door een hek met onderbeplanting en bomen. Het profiel van de weg Rietmade heeft een minimale rijbaanbreedte van 5,5 meter en bestaat uit 1 niveau voor autoverkeer, langzaam verkeer en parkeren. Ter plaatste van (haaks)parkeren is het profiel circa 9 meter breed.

afbeelding "i_NL.IMRO.1655.BP2009-C002_0006.jpg"

Foto huidige situatie planlocatie

afbeelding "i_NL.IMRO.1655.BP2009-C002_0007.jpg"

Foto huidige situatie Rietmade

De huidige woningen aan Rietmade bestaan uit vrijstaande woningen variërend van 1 laag met kap en 2 lagen met kap. De woningen hebben allemaal hun eigen achitectuurstijl met ruime groene voortuinen. Op de foto's huidige situatie Rietmade zijn de huidige woningen te zien.

2.2 Toekomstige situatie plangebied

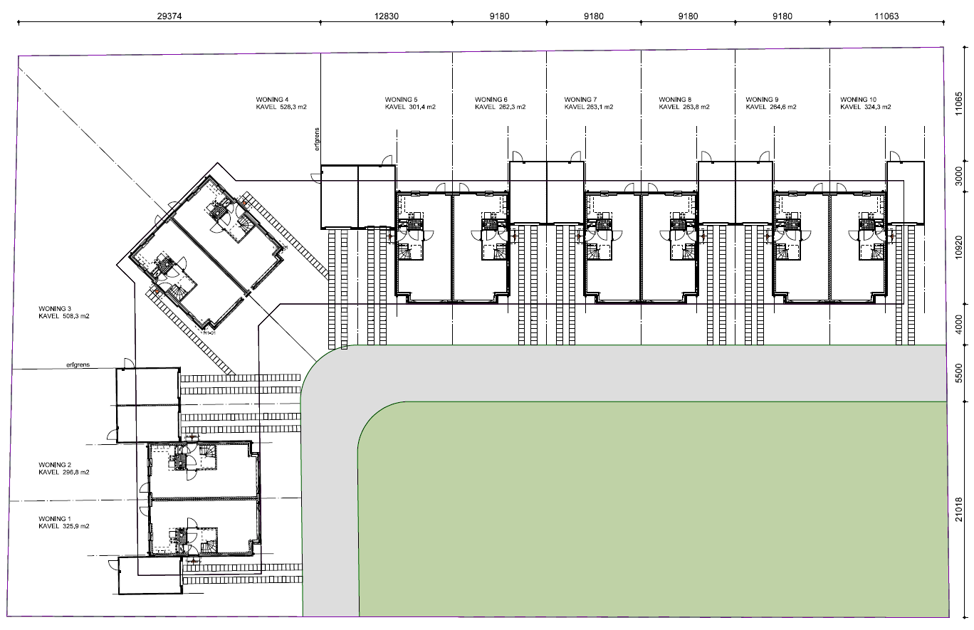
Het bouwplan heeft betrekking op maximaal 10 (half)vrijstaande woningen, waarvan de garages geschakeld zijn. De bouwpercelen hebben in het bouwplan een oppervlakte van ca. 250-565 m2. Hiervan zijn er zes met een oppervlakte tussen 250 en 260 m2. De twee eindwoningen hebben ongeveer 1,5 keer ruimere kavel. Twee woningen in de bocht houden een perceelsoppervlak van circa 550 m2 over. Het programma bestaat uit (middel)dure koop. De woningen worden uitgevoerd in twee bouwlagen met kap. Dit betekent een goothoogte van 5,5 meter en een nokhoogte van 10,5 meter. De woningen zijn voorzien van een lange oprit met garage waardoor 2 auto's op eigenterrein geparkeerd kunnen worden. Zie voor de maatvoering van de opritten paragraaf 4.5 Verkeer en parkeren.

afbeelding "i_NL.IMRO.1655.BP2009-C002_0008.png"

Afbeelding: verkaveling

Openbare ruimte

De woningen worden gegroepeerd rondom een ruim plantsoen. De nieuwe straat sluit aan op de bestaande straat Rietmade en gaat om het plantsoen heen. De nieuwe straat krijgt eenzelfde profiel als Rietmade met een breedte van 5,5 meter, zie onderstaande schets. In de strook van 2,5 meter groen aan de rand van het plantsoen is ruimte voor informeel parkeren. In deze strook kan een halfverharding met bijvoorbeeld gewapend gras of een elementverharding worden toegepast. Hierdoor wordt het parkeren op een goede manier geïntegreerd in het plantsoen. Er is ruimte voor minimaal 8 parkeerplaatsten in de openbare ruimte. Zie voor de onderbouwing van het aantal parkeerplaatsten paragraaf 4.5 Verkeer en parkeren.

Op onderstaande afbeelding is een indicatie van de nieuwe inrichting geschetst. De uitwerking en de beoordeling van het bouw- en woonrijp maken dient nog afzonderlijk en volledig plaats te vinden.

afbeelding "i_NL.IMRO.1655.BP2009-C002_0009.jpg"

Afbeelding: indicatieve inrichting openbare ruimte

Om het effect van de aangebrachte voorzieningen in de riolering van het omliggende gebied te optimaliseren, wordt in dit plan alleen de vuilwaterafvoer aangesloten op het gemeentelijk rioolstysteem. Omdat het gebied ook te maken heeft met verdroging en momenteel een lage grondwaterstand kent is binnen het plan de keuze gemaakt om het regenwater niet af te voeren via de riolering, maar te infiltreren via een zogeheten wadi in het openbaar plantsoen. Deze wadi krijgt een overloopvoorziening op de afvoersloot van het waterschap tussen de percelen st. Bernardusstraat 11 en 11a, welke verbonden is met de waterlopen langs de st. Bernardusstraat. Deze voorziening biedt in de toekomst ook de optie om de regenwaterafvoer van het omliggende gebied deels af te koppelen van het gemengde rioleringsstelsel en het regenwater ook via deze wadi te infiltreren. In paragraaf 4.3 Water wordt de waterhuishoudkundige situatie verder toegelicht. De bestaande bomen rondom de planlocatie worden zoveel mogelijk gehandhaafd en vormen de nieuwe rand van het plantsoen. Er worden 3 bomen gekapt om de nieuwe ontsluitingsweg mogelijk te maken.

Welstandscriteria en beeldkwaliteit

In paragraaf 3.3.4 Welstandsnota zijn de gebiedsgerichte welstandscriteria toegelicht. Het bouwplan houdt hiermee rekening. Het bouwplan heeft een positief preadvies van welstand gekregen op 8 december 2015.

Het bestemmingsplan maakt zowel halfvrijstaande als vrijstaande woningen mogelijk. De goothoogte bedraagt niet meer dan 5,5 meter en de bouwhoogte niet meer dan 10,5 meter.

Daarmee voegt de bebouwing zich qua type, situering en bouwhoogte naar de omgeving en is niet dominant aanwezig. De bebouwing wordt uitgevoerd met een kap en de woningen worden allemaal voorzien van een erker. Het materiaal- en kleurgebruik sluit aan op de omgeving. Voor de gevels wordt gekozen voor een rood-bruine baksteen en voor het dak een grijze dakpan.

afbeelding "i_NL.IMRO.1655.BP2009-C002_0010.jpg"

Afbeelding: artist impressie toekomstige woningen Rietmade

Duurzaam bouwen

Bij de inrichting van de omgeving wordt een groene omgeving nagestreefd. In de bestaande omgeving rond de Rietmade is weinig openbaar groen aanwezig en bij de uitwerking van dit bestemmingsplan wordt een relatief fors plantsoen aan het groen areaal van de wijk toegevoegd.


Omdat in de bestaande, omliggende, woonwijk veel verharding aanwezig is , wordt regenwater vaak snel afgevoerd naar het oppervlakte water en wordt het grondwaterniveau vaak onvoldoende aangevuld. Ook de locatie Rietmade is gevoelig voor deze verdroging. Het regenwater van de verharding en van de woningen wordt bij neerslagsituaties opgevangen in een wadi en infiltreert vanuit daar in de bodem. De capaciteit van deze voorziening is eventueel voldoende om ook de omringende bestaande woonstraten en woningen op te kunnen vangen. In de opvang van piekbelasting bij het parkeren wordt voorzien door het informeel parkeren in aangepaste groenstroken langs de woonstraat.


De woningen in het plan worden gerealiseerd binnen de uitgangspunten van het Convenant Duurzaam Bouwen West-Brabant. Daarbij geldt drukt in een score van minimaal 7.5 in het systeem "GPR-gebouw". Voor het thema Energie wordt een score van minimaal 8 nagestreefd. Door de woningen gunstig te positioneren binnen het plan wordt optimaal gebruik gemaakt van zogenaamde passieve zonne-energie, versterkt door de toepassing van erkers voor de woningen. Daarnaast worden optioneel voorzieningen geboden om verdergaande scores in het GPR systeem te bereiken dit in aansluiting met het gemeentelijk beleid.


Bij de materiaalgebruik voor zowel de aanleg van de woonomgeving als de bouw van de woningen wordt nadrukkelijk gestreefd naar de toepassing van duurzame en recyclebare materialen.

Door de hemelwaterafvoeren van de toekomstige woningen niet aan te sluiten op de riolering, maar te kiezen voor infiltratie wordt geanticipeerd op de duurzaamheids doelstelling van waterschap de Brabantse Delta. Deze doelstellingen staan verwoord in hun concept waterbeheerplan 2016-2021


Hoofdstuk 3 Beleidskader

3.1 Rijksbeleid

3.1.1 Structuurvisie Infrastructuur en Ruimte (SVIR) en Besluit algemene regels ruimtelijke ordening (Barro)

Op 13 maart 2012 is de Structuurvisie Infrastructuur en Ruimte vastgesteld. Op 30 december 2011 (wijziging 1 oktober 2012) is het Barro in werking getreden. In de Structuurvisie is aangegeven dat het Rijk drie hoofddoelen heeft:

  • 1. het vergroten van de concurrentiekracht van Nederland door het versterken van de ruimtelijk-economische structuur van Nederland;
  • 2. het verbeteren, in standhouden en ruimtelijk zeker stellen van de bereikbaarheid waarbij de gebruiker voorop staat;
  • 3. het waarborgen van een leefbare en veilige omgeving waarin unieke natuurlijke en cultuurhistorische waarden behouden zijn.


Uit deze drie hoofddoelen komen onderwerpen voort die van nationaal belang zijn.
Structuurvisies hebben op zichzelf geen bindende werking voor andere overheden dan de overheid die de visie heeft vastgesteld. De nationale belangen uit de structuurvisie die juridische borging vragen worden daarom geborgd in de Amvb Ruimte. Deze Amvb wordt aangeduid als het Besluit algemene regels ruimtelijke ordening (Barro). Deze Amvb is gericht op doorwerking van nationale belangen in gemeentelijke bestemmingsplannen en zorgt voor sturing en helderheid van deze belangen vooraf. In het Barro zijn verschillende bepalingen opgenomen, o.a. ten aanzien van Rijksvaarwegen, hoofdwegen en - spoorwegen. Er zijn geen bepalingen die direct betrekking hebben op het plangebied.

3.1.1.1 Conclusie

De onderhavige ontwikkeling betreft de ontwikkeling van maximaal 10 (half)vrijstaande woningen in de kern Hoeven, gemeente Halderberge. De ontwikkeling is als kleinschalig aan te merken; het plangebied heeft geen directe relatie met één van de thema's of bepalingen uit het Barro. Voor het plan zijn ten aanzien van dit beleidsonderdeel dus geen knelpunten te verwachten.

3.1.2 Ladder voor duurzame verstedelijking

Per 1 oktober 2012 is in artikel 3.1.6 een lid 2 ingevoegd waarin een motiveringsplicht is opgenomen voor nieuwe stedelijke ontwikkelingen in bestemmingsplannen. In de toelichting van het bestemmingsplan moet hiervoor een verantwoording plaatsvinden aan de hand van een drietal opeenvolgende treden (de “ladder duurzame verstedelijking”). De eerste trede in deze ladder is een beschrijving dat de voorgenomen stedelijke ontwikkeling voorziet in een actuele regionale behoefte. Hierbij kan het gaan om zowel kwantitatieve als kwalitatieve aspecten. De beide vervolgstappen uit de genoemde ladder hebben betrekking op vraag of de ontwikkeling in bestaand stedelijk gebied ingepast kan worden en als dat niet mogelijk is op andere locaties, die vooral goed ontsloten moeten zijn.


Doorwerking plangebied

Trede 1: Bepalen regionale vraag naar ruimte

Bij iedere stedelijke ontwikkeling dient te worden beschreven dat de voorgenomen stedelijke ontwikkeling voorziet in een actuele regionale behoefte. Op regionaal niveau hebben de gemeenten in de regio West-Brabant West (Bergen op Zoom, Halderberge, Moerdijk, Roosendaal, Rucphen, Steenbergen en Woensdrecht + Tholen) in samenwerking met de Provincie Noord-Brabant de Regionale Agenda Wonen opgesteld.

Deze jaarlijks geactualiseerde Regionale Agenda Wonen formuleert vanuit de actuele ontwikkelingen op de regionale woningmarkt de gezamenlijke regionale opgaven die de regio met de provincie jaarlijks wil oppakken.

De regionale woningbouwcapaciteit en – opgave zijn in onderstaande tabel inzichtelijk gemaakt. Regionaal is afgesproken dat de regionale woningbehoefte die volgt uit de meest actuele provinciale bevolkings- en woningbehoefteprognose (2014) richtinggevend is voor de gemeentelijke woningbouwplanning en -programmering. De RRO regio West Brabant heeft een opgave voor de toevoeging van 26.705 woningen in de periode van 2014 t/m 2023.

afbeelding "i_NL.IMRO.1655.BP2009-C002_0011.png"

Afbeelding: Tabel Regionale Agenda Wonen

De gemeente Halderberge heeft het gemeentelijk woningbouwprogramma gebaseerd op de provinciale bevolkings- en woningbehoefteprognose (2014) hierin is de locatie Rietmade in Hoeven met 10 woningen opgenomen. Met de ontwikkeling van het project Rietmade wordt voorzien in een lokale en regionale behoefte aan woningen

Trede 2: Bouwen binnen bestaand stedelijk gebied

Er is met de voorgestane ontwikkeling sprake van de realisatie van maximaal 10 woningen binnen bestaand stedelijk gebied zoals dat is vastgelegd in de Verordening Ruimte.

In de Structuurvisie Halderberge 2025 is de locatie Rietmade vanuit ruimtelijke ambities vastgelegd met de aanduiding behouden. Kleinschalige aanpassingen in het gebied zijn toegestaan maar dient wel een versterking te zijn van de huidige situatie en kwaliteit. De Rietmade vormt een afronding van de bestaande woonwijk. Uit een eerste inschatting van de haalbaarheid worden op de gebieden wenselijkheid, wet- en regelgeving en financieel geen belemmeringen verwacht.

Trede 3: Bouwen buiten stedelijk gebied

De regionale behoefte is op te vangen binnen het bestaand stedelijk gebied. Trede drie is niet aan de orde.

3.1.2.1 Conclusie

Het bouwplan betreft een herstructurering van bestaand stedelijk gebied en biedt en past binnen de doelstellingen van de Ladder voor duurzame verstedelijking.

3.2 Provinciaal beleid

3.2.1 Structuurvisie ruimtelijke ordening

Op 19 maart 2014 is de Structuurvisie ruimtelijke ordening 2014 in werking getreden. Deze structuurvisie is een actualisatie van de visie die in 2010 werd vastgesteld. De provincie geeft in de structuurvisie de hoofdlijnen van het ruimtelijk beleid tot 2025 (met een doorkijk naar 2040). De visie is bindend voor het ruimtelijk handelen van de provincie. Het is de basis voor de wijze waarop de provincie de instrumenten inzet die de Wet ruimtelijke ordening biedt. De visie geeft een ruimtelijke vertaling van de opgaven en doelen uit de Agenda van Brabant. Daarnaast ondersteunt de structuurvisie het beleid op andere provinciale beleidsterreinen, zoals het economisch-, mobiliteits-, sociaal-, cultureel-, milieu- en natuurbeleid.


In de Structuurvisie heeft de provincie een aantal aandachtsvelden beschreven, waar een duidelijk provinciaal belang mee is gemoeid. Zo wil de provincie de regionale contrasten versterken, dient de basis van de provincie die wordt gevormd door water, natuur en cultuurhistorie te worden beschermd, moet er aandacht zijn voor ruimtelijke kwaliteit en is het streven een vitaal en divers landelijk gebied te ontwikkelen. Daarnaast moet er een sterk stedelijk netwerk worden ontwikkeld dat goed bereikbaar is, zodat de economische (internationale) concurrentiepositie van de afzonderlijke regio's in het stedelijk netwerk wordt vergroot. Er dient dan wel sprake te zijn van concentratie van verstedelijking in hoogstedelijke gebieden en rond knooppunten, waarbij een groene geleding tussen deze gebieden essentieel is.


Dit alles wil de provincie bereiken door een aantal rollen aan te nemen:

  • ontwikkelen; door het oprichten van een provinciaal Ontwikkelbedrijf.
  • beschermen, onder meer door het principe van zuinig ruimtegebruik te hanteren.
  • ordenen; door het opnemen van een groen/blauwe, een agrarische en een stedelijke structuur en infrastructuur.
  • stimuleren; door overleg, communicatie en samenwerkingsverbanden, waarbij de opgestelde gebiedspaspoorten als leidraad gelden.
  • regionale samenwerking.


Het principe van zuinig ruimtegebruik en de bescherming van waarden wordt verder uitgewerkt in de Verordening ruimte. In de Structuurvisie is specifiek beleid ontwikkeld voor de diverse structuren die hierboven zijn beschreven.

Het plangebied Rietmade Hoeven is voor het grootste gedeelte gelegen in het structuurvisiegebied “Kernen in het landelijk gebied”. Slechts de twee woningen in de bocht vallen binnen de structuurvisie aanduiding 'gemengd landelijk gebied', zie onderstaande afbeelding.

afbeelding "i_NL.IMRO.1655.BP2009-C002_0012.png"

Afbeelding: structurenkaart

Binnen de kernen in het landelijk gebied acht de provincie alleen nog de opvang van de eigen verstedelijkingsbehoefte noodzakelijk. Dit komt voort uit de wens om de kernen in het landelijk gebied zoveel mogelijk te ontzien van grootschalige verstedelijking. De provincie vindt het belangrijk dat gemeenten in hun structuurvisies aandacht geven aan de wijze waarop stedelijke ontwikkelingen het eigen karakter van de kernen en de relatie met het landschap kunnen versterken. De stedelijke ontwikkelingen passen qua maat en schaal bij de kern. De ontwerpopgave hangt daarnaast samen met de historische gegroeide identiteit van de kern en omliggend landschap en met de fase van verstedelijking van de kern (suburbaan, dorps of plattelandskern).


In de Structuurvisie Halderberge en de Woonvisie geeft de gemeente aan hoe om te gaan met de lokale verstedelijkingsbehoefte en wordt bovendien gewaarborgd dat ontwikkeling passen bij de aard, maat en schaal van een kern. Het plan Rietmade Hoeven past binnen de Structuurvisie.

3.2.2 Verordening ruimte 2014

De te beschermen provinciaal ruimtelijke belangen zijn vastgelegd in de Verordening ruimte 2014. Deze verordening is op 10 juli 2015 door Provinciale Staten vastgesteld en op 15 juli 2015 in werking getreden. De verordening vormt het provinciaal toetsingskader voor ruimtelijke plannen en geeft regels waarmee een gemeente rekening moet houden bij het ontwikkelen van bestemmingsplannen. Door deze regels weten de gemeenten al in een vroeg stadium waar ze aan toe zijn.

De onderwerpen die in de verordening staan, komen uit de provinciale structuurvisie. Daarin staat welke belangen de provincie wil behartigen en hoe ze dat wil doen. De verordening is daarbij één van de manieren om die provinciale belangen veilig te stellen. Belangrijke onderwerpen in de Verordening ruimte zijn:

- ruimtelijke kwaliteit;

- stedelijke ontwikkelingen;

- natuurgebieden en andere gebieden met waarden;

- agrarische ontwikkelingen, waaronder de intensieve veehouderij

- overige ontwikkelingen in het landelijk gebied.

afbeelding "i_NL.IMRO.1655.BP2009-C002_0013.png"

Afbeelding: Verordening ruimte 2014

In de Verordening ruimte zijn de volgende artikelen relevant:

  • Artikel 3.
  • Artikel 4.


Artikel 3

In artikel 3.1 is een algemene zorgplicht voor ruimtelijke kwaliteit opgenomen. Kort samengevat stelt de Verordening dat in de toelichting bij een bestemmingsplan een verantwoording is opgenomen dat het plan bijdraagt aan de bevordering van de ruimtelijke kwaliteit en dat toepassing is gegeven aan het principe van zorgvuldig ruimtegebruik. Ruimtelijke kwaliteit is daarbij breed gedefinieerd, want ook bodemkwaliteit en waterhuishouding zijn naast landschappelijke en cultuurhistorische waarden onderdeel van de verantwoording.
Artikel 3.2 ziet op bestemmingsplannen buiten bestaand stedelijk gebied en is voor het plan Rietmade Hoeven niet van toepassing.


Artikel 4

In artikel 4 zijn regels opgenomen met betrekking tot stedelijke ontwikkelingen binnen bestaand stedelijk gebied. Ten aanzien van nieuwe woningen binnen bestaand stedelijk gebied schrijft de Verordening voor dat in een toelichting bij een bestemmingsplan een verantwoording moet worden opgenomen dat de nieuwbouw past binnen de regionale woningmarktafspraken en de afgesproken harde plancapaciteit.

3.2.2.1 Conclusie

Het plan Rietmade Hoeven past binnen de kaders van de Verordening ruimte 2014. Daarnaast past het plan binnen de regionale afspraken met betrekking tot plancapaciteit. In paragraaf 3.1.2 wordt op dit laatste nader ingegaan.

3.3 Gemeentelijk beleid

3.3.1 Structuurvisie Halderberge

In de structuurvisie Halderberge, vastgesteld juni 2013, wordt op hoofdlijnen vastgelegd waar de gemeente Halderberge op maatschappelijk, economisch en ruimtelijk gebied naar toe gaat in 2025. De structuurvisie is het resultaat van een weging van verwachte ontwikkelingen en ambities van de gemeente, waarbij de ambities bescheiden zijn weggezet met het oog op de beperkte (financiële) middelen in de komende jaren. De structuurvisie biedt een kader met voldoende ruimte om nadere afwegingen te maken in de periode tot 2025.


In de periode 2003-2008 maakte Halderberge deel uit van de pilot “Bouwen binnen strakke contouren”. Op grond daarvan zijn binnen de contouren van de kernen voor een groot aantal locaties plannen ontwikkeld voor de bouw van woningen in diverse marktsegmenten. De visie van de gemeente bij locatieontwikkelingen is om sterker dan voorheen gebruik te maken van bestaand vastgoed. Als het vastgoed technisch en economisch verouderd is, komt herontwikkeling aan de orde. Eventuele cultuurhistorische waarden dienen bij de herontwikkeling zoveel mogelijk ingepast te worden, met het oog op versterking van de identiteit van de kernen.

afbeelding "i_NL.IMRO.1655.BP2009-C002_0014.png"

Afbeelding: analyse Hoeven

De fysieke grenzen van de bebouwing zijn bereikt. Binnen de grenzen van de kernen (zie bovenstaande analyse kaart) ligt de nadruk op:

  • a. hergebruik en/of herontwikkeling van technisch en/of economisch verouderd vastgoed (woningvoorraad, bedrijfsruimte);
  • b. een verbetering van de kwaliteit van de openbare ruimte, zowel in beleving als in functionaliteit;
  • c. een goede verkeersafwikkeling en voldoende parkeergelegenheid nabij de centra;

Bij locatieontwikkelingen wordt sterker dan voorheen gebruik gemaakt van bestaand vastgoed. Als het vastgoed technisch en economisch verouderd is herontwikkeling aan de orde. Eventuele cultuurhistorische waarden dienen bij de herontwikkeling zoveel mogelijk ingepast worden, met het oog op versterking van de identiteit van de kernen. In het gebruik is echter veel flexibiliteit geboden; binnen de wettelijke normen van geluid, lucht en externe veiligheid wordt een sterkere menging van functies voorgestaan, vooral langs de historische bebouwingsstructuur in de kernen en de lintbebouwing buiten de kernen.

Het plangebied is niet specifiek aangeduid als ontwikkelingsslocatie.

afbeelding "i_NL.IMRO.1655.BP2009-C002_0015.png"

Afbeelding: strategiekaart

Op de strategiekaart is het plangebied aangegeven als 'behouden'. Binnen de kernen zijn alle bestaande wijken met wonen, winkels en voorzieningen, waar geen grootschalige herstructureringen op stapel staan, onder de strategie behouden geschaard. Kleinschalige aanpassingen in het gebied zijn toegestaan, maar dient een versterking te zijn van de huidige situatie en de kwaliteit, geen actieve benadering.

3.3.1.1 Conclusie

Voor de ontwikkeling wordt gebruik gemaakt van bestaand stedelijk gebied. Met het oog op de inbreiding en herontwikkeling van locaties met behoud van waarden sluit deze ontwikkeling goed aan bij de visie van de gemeente.

3.3.2 Woonvisie Halderberge

De Woonvisie Halderberge – diversiteit in kernkwaliteit is in december 2010 vastgesteld. De Woonvisie biedt de beleidskaders waarbinnen de gemeente de ontwikkeling van de woningvoorraad stuurt en afspraken maakt met corporaties en ontwikkelaars. Mede door de provinciale pilot Bouwen binnen strakke contouren, waaraan de gemeente in de periode 2003-2009 heeft deelgenomen, heeft de gemeente een ambitieus nieuwbouwprogramma voor de komende jaren. Zeker onder de huidige marktomstandigheden is het realiseren van dit programma een hele opgave. De woonvisie geeft aan welke nieuwbouwplannen passen binnen het woonbeleid en welke plannen op grond hiervan prioriteit verdienen. Deze woonvisie heeft betrekking op de periode tot en met 2015 met een doorkijk naar 2020.

Basis van de Woonvisie is een woningbehoefteraming, die door de provincie Noord-Brabant is uitgevoerd.

Uit een raming van het aantal inwoners is voor de gemeente Halderberge een licht dalende trend waarneembaar. De meest recente bevolkingsprognose van CBS uit oktober 2009 laat een meer gelijkmatig verloop zien: na een daling tussen 2010 en 2015 blijft de bevolking vrijwel stabiel. In het totaal neemt in deze raming de bevolking over circa 30 jaar gezien met 1.050 inwoners af. Door de gezinsverdunning (vooral als gevolg van de vergrijzing) leidt de lichte bevolkingsdaling nog niet tot een afname van de woningbehoefte. In de provinciale woningbehoeftenprognose wordt een benodigde groei van de woningvoorraad voorzien tot een piek van 13.290 in 2030.

Dit betekent voor de periode 1-1-2009 tot 1-1-2019 een gewenste uitbreiding van de woningvoorraad van circa 1.150 woningen. In de provinciale raming ligt de nadruk op de eerste vijf jaar (1-1-2009 tot 1-1-2014), waarin circa 750 woningen moeten worden gebouwd (150 woningen per jaar). Naast de raming door de provincie is er tevens een woningbehoefteonderzoek uitgevoerd door SGBO (De woningmarkt in Halderberge 2008-2018, SBGO). Hieruit blijkt een behoefte van 180 woningen per jaar. In de Woonvisie zijn op basis van beide ramingen van de woningbehoefte uitgangspunten bepaald voor de woningbouw binnen de gemeente Halderberge. Dit heeft geleid tot onderstaande tabel.

afbeelding "i_NL.IMRO.1655.BP2009-C002_0016.png"

De gewenste omvang van het nieuwbouwprogramma in de kern Hoeven bedraagt 580 woningen in de periode 2009 tot 2019, waarvan 360 in de eerste periode (2009-2014). Hoeven heeft de geprognosticeerde aantallen tot 2014 niet gehaald. Uit het woningmarktonderzoek blijkt dat er in Hoeven vooral behoefte bestaat aan meergezinskoop- en meergezinshuurwoningen en eengezinskoopwoningen. In het woningbehoeftenonderzoek zijn seniorenwoningen echter als meergezinswoningen beschouwd, dus er mag vanuit worden gegaan dat er tevens behoefte bestaat aan grondgebonden seniorenwoningen (voornamelijk in de huur- maar voor een deel ook in de koopsector).
In Hoeven blijkt in 2010 een gering aanbod te bestaan aan woningen voor starters. Uit het woningbehoeftenonderzoek blijkt in Hoeven de voorkeur van starters uit te gaan naar een goedkope of betaalbare koopwoning. Het nieuwbouwprogramma voor de kern Hoeven staat in onderstaande tabel.

Het aantal woningen dat is opgenomen in het programma, ligt lager dan de gewenste woningproductie. Het is wenselijk in Hoeven zo’n 580 woningen te realiseren, waarvan 360 in de eerste vijf jaar. Hierbij is rekening gehouden met een overcapaciteit van 30%. Het programma voorziet nu in 487 woningen, waarvan 255 in de eerste vijf jaar. De locatie Rietmade Hoeven wordt in de Woonvisie niet benoemd als een locatie om in de woningbouwopgave voor de kern Hoeven een bijdrage te leveren. In het woningbouwprogramma is rekening gehouden met de uitgifte van kavels ten behoeve van zelfbouw.

Bij de realisatie van nieuwe woningen moet het groene karakter van Hoeven worden gehandhaafd. Op nieuw te ontwikkelen locaties moeten qua stedenbouwkundige opzet groene en ruime buurten worden gerealiseerd. Nieuwe woningen moeten voorzien zijn van een tuin(tje) of een ruime buitenruimte. Hierdoor kan Hoeven de aantrekkingskracht voor mensen van buiten de kern ook in de toekomst behouden.

Om de doorstroming te bevorderen en om in de kwaliteitsbehoefte van gezinnen en senioren te voorzien, dient 30% van het nieuwbouwprogramma te bestaan uit middeldure koop en 30% uit dure koop.

3.3.2.1 Conclusie

In het woningbouwprogramma is rekening gehouden met de uitgifte van kavels ten behoeve van zelfbouw.

Het plan voorziet in een ruime groene buitenruimte en een diversiteit in kavelgrootte en woningbouwtypologie, zowel tweekappers als vrijstaande woningen zijn toegelaten. Het plan met (middel)dure koopwoningen bevordert de doorstroming en in de kwaliteitsbehoefte van gezinnen en senioren.

3.3.3 Woningbouwprogramma 2015-2025

Het woningbouwprogramma 2015-2025 is gebaseerd op de provinciale bevolkings- en woningbehoefte prognose. De geprognotiseerde behoefte bestaat uit 895 woningen en het woningbouwprogramma bestaat uit 743 woningen. Hiervan zijn 111 woningen in Hoeven opgenomen. Het college heeft op 13 oktober 2015 besloten om 10 woningen in het woningbouwprogramma te reserveren voor het project Rietmade.


Aantal

Bij het opstellen van het bestemmingsplan 'Kom Hoeven' was het woningbouwprogramma gebaseerd op de bevolkings- en woningbehoefteprognose 2011. De behoefte aan woningbouw die uit deze prognose bleek kon geheel ingevuld worden met de projecten die opgenomen waren in het woningbouwprogramma 2012-2022. Gedurende de procedure van dit komplan is de actualisatie 2014 van de provinciale bevolkings- en woningbehoefte prognose verschenen. Uit deze prognose blijkt dat de vraag naar woningen groter geprognotiseerd wordt dan voorheen. Aangezien dit ongeveer gelijktijdig met de uitspraak van de Raad van State viel en het voorstelbaar is dat deze behoefte ook in Hoeven wordt ingevuld kunnen er vanuit volkshuisvesting geen harde argumenten gegeven worden om op de locatie van de Rietmade geen woningen toe te voegen in het middeldure koopsegment. Geadviseerd wordt om deze locatie te ontwikkelen na afronding van het plan Opperstraat omdat er dezelfde woningtypologieën mogelijk zijn. Vooralsnog zijn tien halfvrijstaande woningen ingetekend; het kan echter zijn dat er een aantal kavels wordt samengevoegd en verkocht voor een vrijstaande woning, afhankelijk van de vraag vanuit de markt.

3.3.4 Welstandsnota

Sinds 1 januari 2003 is het landelijk verplicht voor gemeenten om te werken met een vastgestelde welstandsnota. De praktijk heeft uitgewezen dat de welstandsnota in meerdere opzichten te beperkt en te streng is. Om deze reden is de welstandsnota versoepeld in Halderberge. De welstandsnota omschrijft de architectonische waarden van gebieden in de gemeente. Per gebied of object wordt beschreven op welk niveau getoetst moet worden. Dit om de architectonische kwaliteit bij verbouw of nieuwbouw te waarborgen.
Binnen de welstandsnota zijn gebiedsgerichte criteria opgenomen. De verschillende kernen van de gemeente Halderberge kennen ieder een eigen waardering. Het plangebied is, overeenkomstig de overzichtkaart gebiedsindelingen Halderberge, gelegen binnen het gebied "Agrarisch Buitengebied oude ontginningen" met de bijbehorende beschrijving en waardering.

Voor het onderhavige plangebied zijn de navolgende criteria voor het bestemmingsplan van belang:

  • Waardevolle kenmerken van het deelgebied, zoals omschreven in de gebiedsbeschrijving en de gebiedswaardering, dienen gehandhaafd te blijven;
  • Bebouwing voegt zich naar de omgeving en is niet dominant aanwezig;
  • Bij nieuwe ontwikkelingen langs een bebouwingslint moet het individuele plan duidelijk herkenbaar zijn als architectonische eenheid. De afwisseling van open ruimte en bebouwing met variabele afstanden tussen de gebouwen onderling en tot de openbare weg moet worden behouden;
  • Nieuwe bebouwing moet worden uitgevoerd met een kap;
  • Indien bij een aanbouw een kap wordt toegepast, moet de dakhelling gelijk zijn aan de dakhelling van het hoofdgebouw.
3.3.5 Kadernota parkeren

In de Kadernota Parkeren 2012 – 2016 heeft de gemeente Halderberge de parkeernormen voor nieuwe ontwikkelingen vastgelegd. Er wordt aangesloten bij de CROW-normen, waarbij er een onderverdeling is gemaakt in deelgebieden. Deze deelgebieden sluiten aan bij de CROW-indeling van centrum, schil/overloopgebied en rest van de bebouwde kom. plangebied is opgenomen in deelgebied Overig.

Op basis van de CROW-normen heeft de gemeente Halderberge in de Kadernota parkeren 2012 – 2016 normen voor verschillende deelgebieden opgenomen.

Voor een uitgebreide motivering van het parkeervraagstuk wordt verwezen naar 4.5.

Hoofdstuk 4 Sectorale aspecten

4.1 Milieu

4.1.1 Geluid
4.1.1.1 Wettelijk kader

Bij het opstellen van een ruimtelijk plan dient, in verband met de relatie tussen de Wet ruimtelijke ordening (Wro) en de Wet geluidhinder (Wgh), inzicht te worden geboden in de relevante geluidsaspecten.

De Wgh stelt eisen aan de maximaal toegestane geluidsbelasting ten gevolge van de aanleg van een nieuwe weg en de realisatie van geluidsgevoelige bestemmingen. De Wgh bevat een uitgebreid stelsel van bepalingen ter voorkoming en bestrijding van geluidhinder door onder meer industrie, wegverkeer en spoorwegverkeer. De wet richt zich vooral op de bescherming van de burger in zijn woonomgeving en bevat bijvoorbeeld normen voor de maximale geluidsbelasting op de gevel van een huis.

Op 1 januari 2007 is de gewijzigde Wet geluidhinder in werking getreden. Hierin is de bevoegdheid voor het verlenen van een hogere waarde neergelegd bij Burgemeester en Wethouders. Dat betekent dat het 'hogere-waardebesluit' niet langer ter goedkeuring aan Gedeputeerde Staten hoeft te worden voorgelegd. Voor wegverkeerslawaai en spoorweglawaai stapt de wetgever nu over op de Europese dosismaat Lden (staat voor day- evening- night). In de wet wordt Lden aangegeven in decibel (dB).

Voor geluidgevoelige functies zoals woningen geldt een voorkeursgrenswaarde van 48 dB voor wegverkeer en 55 dB voor spoorwegverkeer. Bij de bouw van de woning dient de gevelisolatie van de betrokken woning zodanig te worden ontworpen, dat voor de binnenwaarde kan worden voldaan aan de eisen uit het bouwbesluit. Hierin staat geregeld dat de binnenwaarde maximaal 33 dB mag bedragen. Indien niet aan de voorkeursgrenswaarden wordt voldaan kan door bevoegd gezag (Burgemeester en wethouders) een hogere grenswaarde worden vastgesteld, voor woningen. in het buiten stedelijk gebied (buiten bebouwde kom) geld een maximum te verlenen ontheffingwaarde Lden van 53 dB(A) (wgh art. 83, lid 1).

4.1.1.2 Onderzoek

Wegverkeer

Het bouwplan aan de Rietmade in Hoeven omvat de bouw van maximaal 10 (half)vrijstaande woningen binnen de invloedsfeer van de provinciale weg N640 Sint Bernardusstraat en de woonstraat Rietmade. In het kader van de ruimtelijke onderbouwing van het plan, die wordt opgesteld ten behoeve van het bestemmingsplan, is akoestisch onderzoek uitgevoerd naar de te verwachten geluidsbelasting van het wegverkeer.
Uit het onderzoek (Bijlage 1 Akoestisch onderzoek wegverkeer) volgt dat ten gevolge van het toekomstige verkeer op de (nieuwe) Rietmade de geluidsbelasting maximaal 44 dB is. Daarmee wordt voldaan aan de geluidsnorm en gesteld kan worden dat er sprake van een goede ruimtelijke ordening.
Uit het onderzoek volgt verder dat de te verwachten geluidsbelasting op de nieuwbouw ten gevolge van de N640 Sint Bernardusstraat maximaal 53 dB bedraagt. Daarmee wordt de voorkeursgrenswaarde van 48 dB overschreden. De maximale ontheffingswaarde van 53 dB voor deze weg wordt niet overschreden.
Uit een nadere beschouwing van mogelijke geluidsbeperkende maatregelen volgt dat het toepassen van bronmaatregelen, overdrachtsmaatregelen en/of de toepassing van dove gevels aan de woningen niet doelmatig dan wel realistisch is. Aanbevolen wordt daarom om voor de woningen ontheffing voor een hogere grenswaarde aan te vragen. Ontheffing is mede geoorloofd omdat alle woningen beschikken over een geluidsluwe zijde.
De gecumuleerde geluidsbelasting op de woningen is maximaal 55 dB. Met deze maximale geluidsbelasting ligt het niet in de verwachting dat moet worden voorzien in aanvullende geluidswerende voorzieningen. Wel wordt aanbevolen dit bij de bouw van de woningen te controleren.

Het ontwerpbesluit tot vaststelling hogere waarden dient gelijktijdig met de ruimtelijke procedure voor dit bouwplan ter inzage te worden gelegd. In het akoestisch onderzoek worden hogere waarden voorgesteld. De hogere waarden zijn voor het bouwvlak vastgesteld. Afgeleid uit het akoestisch onderzoek is besloten om niet op woningniveau maar op bouwvlak niveau ontheffing te verlenen voor de maximale waarde. Dat betekent dat de hogere waarde van 53 dB voor het gehele gebied vastgesteld wordt.


Vliegveld Seppe

Het vliegveld Seppe is gezien de status van Klein Luchtvaartterrein voorzien van een zone die bestaat uit BKL-contouren. In het Besluit Geluidsbelasting Klein Luchtvaart (BGKL) is geregeld welke beperkingen deze contouren opleggen aan het realiseren van geluidsgevoelige objecten.


afbeelding "i_NL.IMRO.1655.BP2009-C002_0017.png" Afbeelding; Geluidszone vliegveld Seppe


Het betreft de volgende:

  • < 47 BKL: nieuwbouw is zonder meer toegestaan;
  • > 47 BKL en < 57 BKL: nieuwbouw is alleen mogelijk als er sprake is van dringende noodzaak door grond- of bedrijfsgebondenheid, opvullen van open plaatsen te midden van overige bestaande (woon)bebouwing of als de gebouwen zullen dienen ter vervanging van de op die plaats reeds aanwezige andere gebouwen niet zijnde woningen, andere geluidsgevoelige gebouwen of woonwagenstandplaatsen
  • > 57 BKL: nieuwbouw is uitgesloten.

Op 1 oktober 2011 heeft het Rijk voor Seppe een omzettingsregeling vastgesteld. In deze regeling is de 47 Bkl-contour uit het aanwijzingsbesluit als begrenzing van het beperkingengebied opgenomen. Dit betreft een echter overgangssituatie tot het moment dat Provinciale Staten een eerste luchthavenbesluit hebben vastgesteld. In de overgangssituatie blijven de ruimtelijke beperkingen van het Besluit geluidbelasting kleine luchtvaart (Bgkl) gelden.


In Verordening luchthavenbesluit luchthaven Seppe Noord-Brabant van 2 april 2013 is een aanzienlijk kleiner beperkingen gebied (wettelijk minimum) opgenomen. Deze verordening is door Provinciale Staten vastgesteld.
De planlocatie is niet binnen het beperkingengebied zoals opgenomen in de verordening opgenomen. Dit betekent dat er voor deze locatie geen bouwbeperkingen gelden. Wel dient rekening te worden gehouden met een maximale bouwhoogte i.v.m. vliegveiligheid (zie 4.1.4). Ten aanzien van vliegverkeerlawaai gelden dan ook geen beperkingen.

4.1.1.3 Conclusie

Omdat het treffen van geluidreducerende maatregelen niet reëel is, dient door het college van Halderberge hogere waarden te worden vastgesteld vanwege wegverkeer op de N640 Sint Bernardusstraat .

4.1.2 Bodem
4.1.2.1 Wettelijk kader

Op grond van het Besluit ruimtelijke ordening (Bro) dient in verband met de uitvoerbaarheid van een plan rekening te worden gehouden met de bodemgesteldheid in het plangebied. Bij functiewijzigingen dient te worden bekeken of de bodemkwaliteit voldoende is voor de beoogde functie en moet worden vastgesteld of er sprake is van een saneringsnoodzaak. In de Wet bodembescherming is bepaald dat indien de desbetreffende bodemkwaliteit niet voldoet aan de norm voor de beoogde functie, de grond zodanig dient te worden gesaneerd dat zij kan worden gebruikt door de desbetreffende functie (functiegericht saneren). Nieuwe bestemmingen dienen bij voorkeur op schone grond te worden gerealiseerd.

Of de bodem een planontwikkeling in de weg staat, wordt middels een historisch onderzoek en eventueel aangevuld met een bodemonderzoek bepaald. Als uit historisch onderzoek blijkt dat binnen de nieuwe bestemmingen sprake is geweest van een activiteit met een verhoogd risico op verontreiniging, dan is een volledig verkennend bodemonderzoek noodzakelijk. De resultaten van het historisch onderzoek, het bodemonderzoek en de conclusie met eventuele saneringsadviezen worden in het bestemmingsplan vermeld.

Wet algemene bepalingen omgevingsrecht

In de Wet algemene bepalingen omgevingsrecht (Wabo) staat dat een omgevingsvergunning, voor het bouwen op een vermoeden van ernstig verontreinigde grond, pas in werking treedt nadat:

  • er is vastgesteld dat er geen sprake is van een geval van ernstige bodemverontreiniging;
  • het bevoegd gezag heeft ingestemd met het saneringsplan;
  • er een melding is gedaan van een voornemen tot saneren.

Wet bodembescherming

Als er sprake is van ernstige bodemverontreiniging dan gelden de regels van de Wet Bodembescherming (Wbb). In de Wbb is een saneringsdoelstelling bepaald (het saneren naar de functie) en een saneringscriterium (wanneer moet er gesaneerd worden (bij zogenaamde “spoed- of risicolocaties”)).

Besluit bodemkwaliteit

Het Besluit bodemkwaliteit (Bbk) geeft de lokale bevoegde gezagen de mogelijkheid om de bodemkwaliteit binnen hun gebied actief te gaan beheren binnen de gegeven kaders. Dit geeft onder andere ruimte voor nieuwe bouwprojecten, zoals woningen en wegen. Daarnaast worden de kwaliteit en de integriteit van belangrijke intermediairs bij bodemactiviteiten beter geborgd. In het besluit staan ook regels met betrekking tot het toepassen van bouwstoffen, grond en baggerspecie.

4.1.2.2 Onderzoek

Op locaties waar ontwikkelingen plaatsvinden dient de bodem gesaneerd te worden als sprake is van een ernstige bodemverontreiniging. In dat geval dient voorafgaand aan ontwikkelingen een saneringsplan opgesteld te worden dat goedgekeurd moet worden door de Omgevingsdienst zijnde het bevoegd gezag in het kader van de Wet bodembescherming (Wbb).

Aangezien sprake is van functiewijziging is verkennend bodemonderzoek voor dit bestemmingsplan noodzakelijk. Uit informatie van het bodemloket (www.bodemloket.nl) blijkt dat de planlocatie niet is onderzocht.


Uit bodemonderzoek NEN5740 moet blijken of het uitgevoerde onderzoek actueel is voor onderhavige planontwikkeling en daarmee in voldoende mate is vastgesteld dat de bodemkwaliteit geschikt is voor de nieuwe functie.

In opdracht van Wissing B.V. is in juni 2015 een verkennend milieukundig bodemonderzoek verricht op de locatie Rietmade (ong) te Hoeven (Bijlage 2).
Naar aanleiding van de verkregen onderzoeksresultaten blijkt met betrekking tot de chemische bodemkwaliteit ter plaatse van de onderzoekslocatie het volgende:


Aan de hand van de resultaten van het onderzoek kan het volgende worden geconcludeerd:


Bovengrond

  • in de bovengrond zijn geen bijmengingen met bodemvreemde materialen waargenomen. Op het maaiveld en in het opgeboorde bodemmateriaal zijn zintuiglijk geen asbestverdachte materialen waargenomen;
  • de bovengrond is niet verontreinigd met de onderzochte zware metalen, PCB’s, OCB’s, PAK en minerale olie.


Ondergrond

  • in de ondergrond zijn geen bijmengingen met bodemvreemde materialen waargenomen. In het opgeboorde bodemmateriaal zijn zintuiglijk geen asbestverdachte materialen waargenomen;
  • de ondergrond is niet verontreinigd met de onderzochte zware metalen, PCB’s, OCB’s, PAK en minerale olie.


Grondwater

  • het grondwater is plaatselijk licht verontreinigd met nikkel en minerale olie en is niet verontreinigd met de overige onderzochte zware metalen, vluchtige aromaten en VOCl.

Gelet op de onderzoeksresultaten, te weten de aangetoonde overschrijdingen van de betreffende achtergrondwaarden (grond) en/of de aangetoonde overschrijdingen van de betreffende streefwaarden (grondwater) dient de hypothese onverdacht voor de onderzoekslocatie formeel te worden verworpen. Echter, de gemeten waarden zijn dermate gering dat aanvullend onderzoek naar het voorkomen van deze stoffen in de bodem op het perceel ingevolge de Wet bodembescherming, niet noodzakelijk is. Beperkingen inzake het verlenen van een omgevingsvergunning (activiteit bouwen) worden op basis van de onderzoeksresultaten uit milieuhygiënisch oogpunt niet voorzien.

Indien op de onderzoekslocatie ten gevolge van graafwerkzaamheden grond vrijkomt en buiten de locatie wordt hergebruikt, vindt hergebruik veelal plaats binnen het kader van het Besluit bodemkwaliteit. In dat geval dient de chemische kwaliteit van de grond te worden getoetst aan de kwaliteitsnormen die door het Besluit bodemkwaliteit aan de betreffende toepassing worden verbonden. Wel wordt gestreefd naar een gesloten grondbalans

4.1.2.3 Conclusie

Op basis van het uitgevoerde bodemonderzoek dient de hypothese ‘onverdachte locatie’ strikt genomen verworpen worden. Echter, de gemeten waarden zijn dermate gering dat aanvullend onderzoek naar het voorkomen van deze stoffen in de bodem op het perceel ingevolge de Wet bodembescherming, niet noodzakelijk is.

Het aspect bodemkwaliteit staat de uitvoering van dit bestemmingsplan niet in de weg.

4.1.3 Externe veiligheid
4.1.3.1 Wettelijk kader

Bij ruimtelijke plannen dient ten aanzien van externe veiligheid naar verschillende aspecten te worden gekeken, namelijk:

  • bedrijven waar opslag, gebruik en/of productie van gevaarlijke stoffen plaatsvindt;
  • vervoer van gevaarlijke stoffen over wegen, spoor, water of leidingen.

Omdat de gevolgen van een ongeluk met gevaarlijke stoffen groot kunnen zijn, zijn de aanvaardbare risico's vastgelegd in diverse besluiten en regelingen. Hieronder volgt een overzicht van de belangrijkste (toekomstige) besluiten en regelingen.

4.1.3.2 Besluit Externe veiligheid inrichtingen (Bevi)

Voor zowel bedrijvigheid als vervoer van gevaarlijke stoffen zijn twee aspecten van belang, te weten het plaatsgebonden risico (PR) en het groepsrisico (GR). Het PR is de kans per jaar dat een persoon dodelijk wordt getroffen door een ongeval, indien hij zich onafgebroken en onbeschermd op een bepaalde plaats zou bevinden. Het PR wordt weergegeven met risicocontouren rondom de risicobron. Het GR drukt de kans per jaar uit dat een groep van minimaal een bepaalde omvang overlijdt als direct gevolg van een ongeval waarbij gevaarlijke stoffen betrokken zijn. De norm voor het GR is een oriëntatiewaarde. De gemeente heeft een verantwoordingsplicht als het GR toeneemt en/of de oriëntatiewaarde overschrijdt.

Bij de vaststelling van een bestemmingsplan moet aan de grenswaarde worden voldaan en met de richtwaarde rekening worden gehouden, ongeacht of het een bestaande of een nieuwe situatie betreft. Op basis van het Bevi geldt als oriëntatiewaarde voor het GR:

  • 10-5 voor een ongeval met meer dan 10 dodelijke slachtoffers;
  • 10-7 voor een ongeval met meer dan 100 dodelijke slachtoffers;
  • 10-9 voor een ongeval met meer dan 1.000 dodelijke slachtoffers;
  • enzovoort (een lijn door deze punten bepaalt de norm).


Het Bevi bevat een verantwoordingsplicht ten aanzien van het GR rondom deze inrichtingen.
Ook bedrijven waarop het Bevi niet van toepassing is, kunnen risico's voor de omgeving met zich meebrengen. Voor nieuwe situaties geldt voor het PR in principe een norm van 10-6 per jaar en voor bestaande situaties 10-5 per jaar. Voor het GR geldt de hierboven genoemde oriëntatiewaarde.

4.1.3.3 Besluit algemene regels voor inrichtingen milieubeheer (Activiteitenbesluit)

Bedrijven waar ten hoogste 13 m³ propaan in ten hoogste twee bovengrondse opslagtanks wordt opgeslagen, vallen binnen de werkingssfeer van het Besluit algemene regels voor inrichtingen milieubeheer (Activiteitenbesluit). Dit besluit geeft aan te houden afstanden tussen de propaantank(s), het vulpunt van de tank(s) en de opstelplaats van de tankwagen en (beperkt) kwetsbare objecten die zijn gelegen buiten de inrichting. Voor de opslag van propaan gelden de volgende veiligheidsafstanden:

  Opslagtank met propaan tot en met 5 kubieke meter   Opslagtank met propaan groter dan 5 kubieke meter tot en met 13 kubieke meter  
Bevoorrading tot en met 5 keer per jaar   10 meter   15 meter  
Bevoorrading meer dan 5 keer per jaar   20 meter   25 meter  

4.1.3.4 Basisnet

Per 1 april 2015 is de regelgeving over het Basisnet in werking getreden. Met het Basisnet wordt beoogd een duurzaam evenwicht tussen ruimtelijke ontwikkelingen, vervoer van gevaarlijke stoffen en veiligheid te creëren. Dit gebeurt door alle hoofdvaarwegen, rijkswegen en spoorwegen in te delen in categorieën. Deze categorieën verschillen in de mate waarin er beperkingen gelden voor vervoer en/of ruimtelijke ontwikkelingen. Beperkingen voor het vervoer worden vastgelegd in een gebruiksruimte, beperkingen voor ruimtelijke ontwikkelingen in een veiligheidszone.

4.1.3.5 Besluit externe veiligheid transportroutes

Per 1 april 2015 is het Besluit externe veiligheid transportroutes in werking getreden. In het besluit staan regels voor de ruimtelijke inrichting rond wegen, waterwegen en spoorwegen met vervoer van gevaarlijke stoffen.

Het Besluit externe veiligheid transportroutes hanteert een vaste grens van 200 meter, vanaf de buitenrand van de transportroute, waarbuiten in principe geen beperkingen hoeven te worden gesteld aan het ruimtegebruik. Buiten de 200 meter is een verantwoording niet noodzakelijk. Wel geldt dat bij ruimtelijke ontwikkelingen die nieuwe kwetsbare of beperkt kwetsbare objecten mogelijk maken buiten de 200 meter, in de toelichting aandacht moet worden gegeven aan de aspecten bestrijdbaarheid en zelfredzaamheid.

4.1.3.6 Onderzoek

Ter aanduiding van de beperkingengebieden in verband met het externe veiligheidsrisico vanwege het luchthavenluchtverkeer, zoals bedoeld in artikel 9 van het Besluit burgerluchthavens zijn de geldende 10-5 en 10-6 plaatsgebonden risicocontouren weergegeven op onderstaande kaart. Het plangebied valt hier buiten.

afbeelding "i_NL.IMRO.1655.BP2009-C002_0018.png"

Afbeelding; 10-5 en 10-6 plaatsgebonden risicocontouren vliegveld Seppe (bron: Verordening luchthavenbesluit luchthaven Seppe Noord-Brabant, bijlage 7)

Het plangebied ligt feitelijk alleen binnen het invloedsgebied van de spoorlijn Roosendaal - Breda. Omdat over dit traject zeer giftige vloeistoffen (D4) worden vervoerd is sprake van een invloedsgebied van meer dan 4.000 meter waarbinnen het plangebied ligt. Omdat het plangebied buiten de 200 meter contour van de spoorlijn ligt, behoeven er geen beperkingen te worden gesteld aan het ruimtegebruik. Bij ruimtelijke ontwikkelingen die nieuwe kwetsbare of beperkt kwetsbare objecten mogelijk maken buiten 200 meter van een spoorlijn moet wel aandacht worden gegeven aan de aspecten bestrijdbaarheid van calamiteiten en zelfredzaamheid van personen in het invloedsgebied. Met betrekking tot het advies van de Veiligheidsregio kan in dit geval volstaan worden met het standaardadvies van de Veiligheidsregio Bijlage 3 Standaardadvies 2015 Veiligheidsregio voor de gemeente Halderberge dat op 18 december 2014 aan de gemeente is verzonden.

Uit de provinciale risicokaart, eindrapporten over het basisnet en actuele informatie over relevante risicobronnen binnen de gemeente blijkt dat in en om het plangebied geen (andere) bronnen liggen die in het kader van de invloed op het plangebied beschouwd moeten worden. Een verantwoording van het groepsrisico kan daarom achterwege blijven.

4.1.3.7 Conclusie

Gelet op het voorgaande levert het aspect externe veiligheid geen belemmering op voor de realisatie van het plan.

4.1.4 Obstakelvlakken vliegveld Seppe

Op en rond vliegveld Seppe gelden, op grond van regels van de International Civil Aviation Organisation (ICAO), obstakelvlakken in verband met de veiligheid van het luchtvaartverkeer.
Doel hiervan is het luchtruim op en rond luchthavens vrij te houden van (hoge) objecten om zodoende de vliegtuigoperaties van en naar de luchthaven veilig te kunnen uitvoeren.

afbeelding "i_NL.IMRO.1655.BP2009-C002_0019.png"

Afbeelding; obstakelvlakken


De obstakelvlakken bestaan uit een invliegfunnel in de directe nabijheid van de starten landingsbaan, die overgaat in een horizontaal vlak op een hoogte van 45 meter boven het maaiveldniveau van de luchthaven (9,14 meter boven NAP). Dit horizontale vlak gaat over in een oplopend vlak, dat oploopt tussen de 45 en 100 meter boven het maaiveldniveau van de luchthaven. Vervolgens is sprake van een horizontaal vlak op een hoogte van 100 meter boven het maaiveldniveau van de luchthaven. In verband met de luchtvaartveiligheid mag geen bebouwing worden opgericht die hoger is dan deze obstakelvlakken.


In de algemene aanduidingsregels zijn de hoogtebeperkingen opgenomen die hieruit voortvloeien. De hoogtes zijn gerelateerd aan het NAP.

4.1.4.1 Conclusie

De maximale bouwhoogte is 10,5 meter. Het aspect obstakelvlakken vliegveld Seppe vormt geen belemmering voor het bestemmingsplan. Het obstakelvlak is door middel van de gebiedsaanduiding 'luchtvaartverkeerzone - 10' opgenomen in de regels en de plankaart.

4.1.5 Bedrijven en milieuzonering
4.1.5.1 Wettelijk kader

Zowel de ruimtelijke ordening als het milieubeleid stellen zich ten doel een goede kwaliteit van het leefmilieu te handhaven en te bevorderen. Dit gebeurt onder andere door milieuzonering. Milieuzonering betekent het aanbrengen van een voldoende ruimtelijke scheiding tussen milieubelastende bedrijven of inrichtingen enerzijds en milieugevoelige functies als wonen en recreëren anderzijds. De ruimtelijke scheiding bestaat doorgaans uit het aanhouden van een bepaalde afstand tussen milieubelastende en milieugevoelige functies. Die onderlinge afstand moet groter zijn naarmate de milieubelastende functie het milieu sterker belast. Milieuzonering heeft twee doelen:

  • het voorkomen of zoveel mogelijk beperken van hinder en gevaar bij woningen en andere gevoelige functies;
  • het bieden van voldoende zekerheid aan bedrijven dat zij hun activiteiten duurzaam onder aanvaardbare voorwaarden kunnen uitoefenen.

VNG-brochure Bedrijven en milieuzonering

In de brochure Bedrijven en milieuzonering (VNG, 2009) wordt een handreiking gegeven voor het verantwoord inpassen van bedrijfsactiviteiten in de omgeving. De handreiking geeft informatie over een aantal ruimtelijk relevante milieuaspecten van een scala van bedrijfsactiviteiten. In deze handreiking worden bedrijven ingedeeld in verschillende categorieën, al naar gelang de mate van hinder en inpasbaarheid. Ook maakt de handreiking onderscheid in verschillende gebiedstypen zoals een rustige woonwijk, rustig buitengebied en gemengd gebied. Aan de hand van de categorie-indeling kan bepaald worden of, en eventueel onder welke voorwaarden, een bedrijf inpasbaar is in de omgeving.

4.1.5.2 Onderzoek

Omgevingstype

In de VNG-uitgave wordt aangegeven dat een 'gemengd gebied' een gebied is met een matige tot sterke functiemenging. Gebieden die direct langs de hoofdinfrastructuur liggen behoren eveneens tot het omgevingstype gemengd gebied.

De omgeving van het plangebied kan niet worden beschouwd als een gemengd gebied, zoals bedoeld in de VNG-brochure omdat geen sprake is van een combinatie van milieuhinderlijke en milieugevoelige functies.


Categorie bedrijvigheid

In onderstaande tabel is weergegeven welke type inrichtingen in de omgeving van de locatie zijn gelegen, tot welke VNG-categorie deze behoren, wat de bijbehorende richtafstand is rekening houdende met omgevingstype 'rustige woonwijk’. De kolom ‘werkelijke afstand’ is de afstand van de inrichtings-/bedrijfsgrens tot de gevel van de dichtstbijzijnde nieuwe woningen. Tevens is aangegeven wat het maatgevende aspect (geur, geluid of stof) is. Het gaat hier om het tankstation St. Bernardusstraat 15 a.

SBI-
Code  
Adres   Omschrijving   VNG categorie   Richtafstand   Werkelijke afstand tot nabijgelegen woningen   maatgevend aspect  
473   St. Bernardusstraat 15 a   benzineservicestation zonder verkoop LPG   2   30   60   geur, geluid  

4.1.5.3 Conclusie

Uit het onderzoek blijkt dat VGN-richtafstanden geldend voor de bestaande inrichtingen (in deze situatie zijnde het benzineservicestation) in de omgeving van het plangebied niet over het plangebied zijn gelegen. Daardoor is er geen belemmering vanuit bestaande inrichtingen voor de ontwikkeling.

4.1.6 Luchtkwaliteit
4.1.6.1 Wettelijk kader

Het onderzoek naar luchtkwaliteit wordt uitgevoerd op grond van hoofdstuk 5, titel 5.2 'Luchtkwaliteitseisen' van de Wet milieubeheer. De titel 5.2 'Luchtkwaliteitseisen' is beter bekend als de Wet luchtkwaliteit.

De kern van de Wet luchtkwaliteit is het Nationaal Samenwerkingsprogramma Luchtkwaliteit (NSL). Het NSL is een bundeling maatregelen op regionaal, nationaal en internationaal niveau die de luchtkwaliteit verbeteren en waarin alle ruimtelijke ontwikkelingen/projecten zijn opgenomen die de luchtkwaliteit in belangrijke mate verslechteren.

Het doel van de NSL is om overal in Nederland te voldoen aan de Europese normen voor de luchtverontreinigende stoffen. Voor wegverkeer zijn stikstofdioxide (NO2) en fijn stof (PM10) de belangrijkste stoffen. De in de Wet luchtkwaliteit gestelde norm voor NO2 en PM10 jaargemiddelde grenswaarde is voor beide stoffen 40 µg/m3. Daarnaast mag de PM10 24 uurgemiddelde grenswaarde van 50 µg/m3 maximaal 35 keer per jaar worden overschreden. Met het van kracht worden van het NSL zijn de tijdstippen waarop moet worden voldaan aan de jaargemiddelde grenswaarden NO2 en PM10 vastgesteld op 11 juni 2011 voor PM10 en 1 januari 2015 voor NO2.

Naast de introductie van het NSL is het begrip 'niet in betekenende mate' (NIBM) bijdragen een belangrijk onderdeel van de Wet luchtkwaliteit. Een project draagt NIBM bij aan de verslechtering van de luchtkwaliteit als de NO2 en PM10 jaargemiddelde concentraties niet meer toeneemt dan 1,2 µg/m3. In dat geval is de ontwikkeling als NIBM te beschouwen.

Een ruimtelijke ontwikkeling vindt volgens de Wet luchtkwaliteit doorgang als tenminste aan een van de volgende voorwaarden is voldaan:

  • de ontwikkeling is opgenomen in het NSL;
  • de ontwikkeling aangemerkt wordt als een NIBM-project;
  • de gestelde grenswaarden in bijlage 2 van de Wet luchtkwaliteit niet worden overschreden;
  • projectsaldering kan worden toegepast.

Voor zover de ruimtelijke ontwikkeling is opgenomen in het NSL of de ontwikkeling kan worden aangemerkt als NIBM-project is toetsing aan de normen van de Wet luchtkwaliteit niet nodig.

4.1.6.2 Onderzoek

Beoordeling luchtkwaliteit

In de 'Regeling niet in betekenende mate bijdrage (luchtkwaliteitseisen)' (Regeling NIBM) zijn voor verschillende functiecategorieën cijfermatige kwantificaties opgenomen, waarbij een ontwikkeling als een NIBM-project kan worden beschouwd. Deze categorieën betreffen landbouwinrichtingen, spoorwegemplacementen, kantoorlocaties, woningbouwlocaties en een combinatielocatie van woningbouw en kantoren.

In de Regeling NIBM is aangegeven dat een woningbouwlocatie tot maximaal 1.500 woningen aan één ontsluitingsweg is aan te merken als een ontwikkeling die NIBM bijdraagt aan de verslechtering van de luchtkwaliteit. In voorliggend bestemmingsplan wordt uitgegaan van de realisatie van maximaal 10 nieuwe woningen.

Dit betekent dat de voorgenomen ontwikkeling in het bestemmingsplan 'Rietmade Hoeven' is aan te merken als een ontwikkeling die NIBM bijdraagt aan de verslechtering van de luchtkwaliteit. Daardoor is toetsing aan de grenswaarden uit de Wet luchtkwaliteit niet nodig.

Goede ruimtelijke ordening

In het kader van een goede ruimtelijke ordening zijn de jaargemiddelde concentraties NO2 en PM10 in de omgeving van het plangebied inzichtelijk gemaakt. Deze concentraties zijn afkomstig uit de NSL-monitoringstool 2014. In onderstaande afbeelding is een fragment uit de NSL-monitoringstool weergegeven met daarin opgenomen de plansituatie en de relevante rekenpunten.

afbeelding "i_NL.IMRO.1655.BP2009-C002_0020.png"

Afbeelding; Weergave NSL-monitoringstool ter plaatse van het plangebied

Voor de bepaling van de maatgevende concentraties NO2, PM10 en PM2,5 bij de rekenpunten is uitgegaan van planjaar 2015. In dat jaar zijn de (achtergrond-)concentraties het hoogst en is er sprake van een worst case-situatie.

Nabij het plangebied bedragen de jaargemiddelde concentraties NO2, PM10 en PM2,5 respectievelijk maximaal 20,5 ìg/m3, 22,5 ìg/m3 en 14,4 ìg/m3. De jaargemiddelde grenswaarde voor NO2, PM10 (beide 40 ìg/m3) en PM2,5 (25 ìg/m3) wordt niet overschreden. Ook het maximaal aantal overschrijdingsdagen van PM10 (35 dagen) wordt met de te verwachten maximaal 10,9 dagen niet overschreden.

In onderstaande tabel zijn de bevindingen uit de NSL-monitoringstool samengevat opgenomen.

afbeelding "i_NL.IMRO.1655.BP2009-C002_0021.jpg"

Tabel; Overzicht (achtergrond-)concentraties stoffen ter plaatse van het plangebied (bron: NSL-monitoringstool)

4.1.6.3 Conclusie

De voorgestane ontwikkeling is aan te merken als een project dat NIBM bijdraagt aan de verslechtering van de luchtkwaliteit. Toetsing aan de grenswaarden van de Wet luchtkwaliteit is dan ook niet nodig.

Uit de beoordeling in het kader van een goede ruimtelijke ordening volgt voorts dat er geen sprake zal zijn van een overschrijding van de normen voor jaargemiddelde concentraties en het maximaal aantal overschrijdingsdagen voor PM10.

Geconcludeerd kan worden dat het aspect luchtkwaliteit geen belemmeringen oplevert voor de voorgenomen ontwikkeling.

4.2 Archeologie en cultuurhistorie

4.2.1 Archeologie
4.2.1.1 Wettelijk kader

De bescherming van het archeologische erfgoed in de bodem en de inbedding ervan in de ruimtelijke ordening is geregeld in het Europese Verdrag van Valetta (Malta). In 1992 ondertekenden twintig Europese staten, waaronder Nederland, dit verdrag. De belangrijkste uitgangspunten van het verdrag zijn:

  • archeologische waarden dienen zoveel mogelijk (in situ) in de bodem bewaard te blijven en beheermaatregelen dienen genomen te worden om dit te bewerkstelligen;
  • vroeg in de ruimtelijke ordening dient al rekening gehouden te worden met archeologie;
  • bodemverstoorders betalen het archeologisch (voor)onderzoek en mogelijke opgravingen wanneer behoud in situ niet mogelijk is.

Het verdrag werd in 1998 door een goedkeuringswet bekrachtigd en op 1 september 2007 in de Wet op de archeologische monumentenzorg vertaald in nieuwe wetgeving. De wet regelt in aansluiting op het Europese verdrag de bescherming van archeologisch erfgoed in de bodem, onder andere door inpassing van de belangen van archeologie in de ruimtelijke ordening.

4.2.1.2 Beleidsnota archeologie gemeente Halderberge "ons ongeschreven verleden" 2011

Als gevolg van de herziene Monumentenwet 1988 hebben gemeenten er een kerntaak bij gekregen op het gebied van de archeologische monumentenzorg. Archeologie is een verplicht onderdeel geworden van ieder bestemmingsplan. Hiermee is archeologie een verplicht en onlosmakelijk onderdeel geworden van het ruimtelijk beleid wat in een beleidsnota is uitgewerkt. Het archeologiebeleid van de gemeente Halderberge heeft tot doel haar archeologische erfgoed te beschermen en ontsluiten als bron van het "gemeenschappelijke geheugen" en als middel voor wetenschappelijke studie, zondermeer maatschappelijke lasten in het leven te roepen dan strikt noodzakelijk.


Uitgangspunten

De uitgangspunten die voor het gemeentelijk archeologiebeleid worden gehanteerd, sluiten aan bij de uitgangspunten van de (herziene) Monumentenwet 1988:

  • Archeologische resten zoveel mogelijk in de bodem bewaren en alleen opgraven als behoud in de bodem (in situ) niet mogelijk is;
  • De relatie tussen archeologie en ruimtelijke ordening versterken zodat behoud en beheer van het bodemarchief onderdeel worden van het planologische besluitvormingsproces;
  • Bodemverstoorders betalen archeologisch onderzoek en mogelijke opgravingen;
  • Verbetering informatievoorziening over archeologisch erfgoed om het draagvlak voor
  • archeologie te vergroten.


Onderdelen

Het archeologisch beleid van de gemeente Halderberge bestaat uit de volgende onderdelen:

  • 1. Inbedding in de ruimtelijke ordening

Bij alle ruimtelijke plannen en ruimtelijke ontwikkelingen - op structuur-, bestemmings- en vergunningsniveau - dienen de archeologische waarden volwaardig te worden meegewogen. Om een goede afweging te kunnen maken is archeologische kennis noodzakelijk. Als basiskennis dienen de vastgestelde archeologische advieskaarten. Vaak echter is meer gedetailleerde informatie nodig. Deze wordt verkregen uit onderzoek. Deze onderzoeken dienen uitgevoerd te worden door gecertificeerde bureaus.

  • 2. De gemeente als regievoerder en bevoegd gezag

De gemeente is regievoerder bij archeologisch onderzoek en is bovendien bevoegd gezag. Dit betekent dat de gemeente bepaalt in welke gevallen onderzoek nodig is en hiertoe ondergrenzen stelt, zelf een beslissing neemt over de resultaten van de onderzoeken aan de hand van een selectiebesluit en aanvullende eisen stelt aan de uit te voeren onderzoeken.

  • 3. Toevalsvondsten

De gemeente probeert door haar beleid de kans op het aantreffen van toevalsvondsten zoveel mogelijk te beperken. Toch kunnen onverhoopt archeologische resten worden ontdekt. De gemeente dient, als regievoerder, adequaat te handelen en de verstoorder te adviseren, zodat eventuele belangrijke archeologische resten niet verloren zullen gaan.

  • 4. Opstellen gemeentelijk selectiebeleid

De gemeente Halderberge kiest er voor om voorlopig geen selectiebeleid op te stellen. Deze keuze wordt gemotiveerd en toegelicht.

  • 5. Aanwijzen nieuwe (gemeentelijke) monumenten

Behalve via het bestemmingsplan bestaat de mogelijkheid om een archeologisch terrein juridisch te beschermen door het als (gemeentelijk) monument aan te wijzen.

  • 6. Ontsluiting van de kennis over het archeologisch erfgoed

De gemeente acht het van belang dat de kennis over het archeologisch erfgoed voor bewoners, scholieren, bezoekers en plannenmakers beschikbaar wordt gesteld.


Economische waarde van archeologie

Aandacht voor archeologie anno nu is niet alleen een kwestie van cultuur behouden, maar ook van economie. Door het cultuurhistorisch erfgoed bij grootschalige ruimtelijke ingrepen nog beter te integreren en zichtbaar en beleefbaar te maken wordt een economische meerwaarde verkregen.
Bewezen is dat 'zichtbare en beleefbare' cultuurhistorie recreatie en toerisme stimuleert, een waardeverhogende werking heeft op de omgeving en het imago van een gemeente versterkt. Ook kan kostenbesparing worden gerealiseerd door vanaf de eerste fase van planvorming de ruimtelijke invullingen zoveel mogelijk af te stemmen op de (mogelijk) aanwezige archeologische waarden.

4.2.1.3 Onderzoek

Met het oog op de ontwikkelingsmogelijkheden die dit bestemmingsplan biedt, is het in de toekomst mogelijk dat nieuwe ontwikkelingen de mogelijke archeologische sporen in de bodem aantasten. Het plangebied is op grond van de archeologische verwachtingskaart van de gemeente Halderberge gelegen in de zone met een lage archeologische verwachting. In zones met een lage archeologische verwachting (grijs gebied) wordt de kans op het voorkomen van archeologische vindplaatsen (historische bebouwing) klein geacht. Onderzoek is hier niet benodigd.

afbeelding "i_NL.IMRO.1655.BP2009-C002_0022.png"

Afbeelding; Archeologische verwachtingskaart

4.2.1.4 Conclusie

Voor het plangebied zijn geen archeologische waarden in het geding. Archeologisch onderzoek is niet nodig en daarnaast is het niet noodzakelijk, indachting het vigerende bestemmingsplan, eventueel aanwezige waarden te beschermen door middel van een archeologische dubbelbestemming.

4.2.2 Cultuurhistorie

Vanaf 1 januari 2012 is het verplicht in het bestemmingsplan met cultuurhistorische waarden rekening te houden. In deze paragraaf is een beoordeling opgenomen over eventueel aanwezige cultuurhistorische waarden.

4.2.2.1 Beleidsnota cultureel erfgoed gemeente Halderberge “Inspirerend verleden” 2011

Aanleiding en doel

Een belangrijke pijler van de gemoderniseerde monumentenzorg is de verankering van de zorg voor het cultureel erfgoed in de ruimtelijke ordening. Die verankering is noodzakelijk voor een zorgvuldige omgang met het erfgoed binnen de snelle en omvangrijke veranderingen in de inrichting van stad en land.

De gemeente heeft op 22 september 2011 een beleid vastgesteld waarin sprake is van zorgvuldig omgaan met de aanwezige cultuurhistorische waarden binnen Halderberge. De centrale visie van deze nota luidt: cultuurhistorie is een

belangrijke drager van de identiteit van Halderberge en maakt integraal onderdeel uit van de ruimtelijke ontwikkeling van Halderberge, waardoor ontmoetingen van heden en verleden gelden als uitdaging en inspiratiebron voor de toekomst.

Speerpunten nieuw erfgoedbeleid

In de nota wordt de huidige stand van zaken met betrekking tot monumentenzorg besproken en worden voorstellen gedaan om te komen tot een adequaat, integraal en actief gemeentelijk beleid op het gebied van monumentenzorg. Bij het maken van beleidskeuzen moet het cultuurhistorisch aspect meer dan tot nu toe het geval is geweest een prominentere rol krijgen, die verder gaat dan alleen de zorg voor een bepaald monumentaal object. Deze gedachte sluit tevens aan op

internationale, nationale en provinciale ontwikkelingen. Daarnaast verdient het huidige uitvoeringskader een actualisering.

Voor het onderhavige bestemmingsplan richt het beleid zich voornamelijk op de volgende activiteit:

Halderberge in beweging – erfgoed en ruimtelijke ontwikkelingen

Motivatie: bij het ontwikkelen van nieuwe ruimtelijke plannen dient cultuurhistorie een volwaardige plaats én inbreng te krijgen. Derhalve dient er een gedegen kennis van de aanwezige cultuurhistorische / monumentwaarden verkregen te

worden. Cultuurhistorische waarden en ontwikkelpotenties van het erfgoed kunnen leidraad van en inspiratiebron zijn voor nieuwe ontwikkelingen, die daarmee aan (belevings) kwaliteit winnen. In de komende beleidsperiode wordt ingezet op het tijdig inbrengen van de erfgoeddiscipline in ruimtelijke ontwikkelingsprocessen.

4.2.2.2 Beoordeling

De Provincie Noord-Brabant heeft in december 2010 de Cultuurhistorische Waardenkaart herzien, welke sinds augustus 2012 volledig digitaal raadpleegbaar is.
Op de Cultuurhistorische Waardenkaart van de provincie Noord-Brabant is het plangebied gesitueerd op de dekzandrug Bosschenhoofd – Hoeven en omvat het gebied tussen de woonkernen Etten-Leur, Sint Willebrord en Oudenbosch. Dit landschap behoort tot de archeologische landschappen met de minste Archiswaarnemingen, zowel absoluut als relatief. Er is geen aanleiding te veronderstellen dat er bij de voorgenomen ontwikkeling van het projectgebied archeologische of cultuurhistorische waarden worden aangetast.

Op 6 februari 2014 heeft de gemeenteraad van Halderberge de 'Cultuurhistoriekaart Halderberge' en de bijbehorende rapportage 'Toelichting bij de Cultuurhistoriekaart van de gemeente Halderberge' vastgesteld. De kaart inclusief de legenda is gebaseerd op en sluit aan bij de cultuurhistorische Waardenkaart van de provincie Noord-Brabant.

4.2.2.3 Conclusie

Vanuit het aspect cultuurhistorie zijn er geen beperkingen voor de voorgenomen ontwikkeling van het plangebied.

4.3 Water

4.3.1 Wettelijk kader

Nationaal Waterplan

Het Nationaal Waterplan is de opvolger van de Vierde Nota Waterhuishouding uit 1998 en is opgesteld voor de planperiode 2009 - 2015. Het Nationaal Waterplan is in december 2009 door de ministerraad vastgesteld.

Het Nationaal Waterplan beschrijft de hoofdlijnen van het nationale waterbeleid. Het Rijk streeft naar een duurzaam en klimaatbestendig waterbeheer en heeft de ambitie om de komende decennia te investeren in bescherming tegen overstromingen en in de zoetwatervoorziening.

Voor een duurzaam en klimaatbestendig watersysteem is het van belang bij ruimtelijke ontwikkelingen rekening te houden met waterhuishoudkundige eisen op de korte en de lange termijn. Om een duurzaam en klimaatbestendig watersysteem te bereiken moet het water meer bepalend zijn bij de besluitvorming over grote ruimtelijke opgaven dan voorheen. De mate van bepalendheid wordt afhankelijk gesteld van, onder meer, de omvang en de aard van de ingrepen, bestaande functies, nieuwe andere ruimteclaims en de bodemgesteldheid van een gebied.

Op basis van de Wet ruimtelijke ordening heeft het Nationaal Waterplan voor de ruimtelijke aspecten de status van structuurvisie. Het Nationaal Waterplan is gedetailleerder dan de SVIR en blijft als uitwerking van de SVIR bestaan. Specifiek gaat het over de gebieden die deel uitmaken van de ruimtelijke hoofdstructuur, het IJsselmeer, de Noordzee en de rivieren. Ook de bescherming van vitale functies en kwetsbare objecten is een onderwerp van nationaal belang. Hiervoor geldt het Barro.

Waterwet

De Waterwet regelt het beheer van de waterkeringen, het oppervlaktewater en het grondwater, verbetert de samenhang tussen waterbeleid en ruimtelijke ordening en zorgt voor een eenduidige bestuurlijke procedure en daarbij behorende rechtsbescherming voor besluiten. De Waterwet dient als paraplu om de Kaderrichtlijn Water (KRW) te implementeren en geeft ruimte voor implementatie van toekomstige Europese richtlijnen.

De waterschappen hebben een bevoegdheid voor het verlenen van vergunningen voor grondwateronttrekkingen, bemalingen en infiltraties, met uitzondering van onttrekkingen voor drinkwater, koude en warmteopslag en grote industriële onttrekkingen van meer dan 150.000 m3/jaar. Gemeenten hebben verdergaande taken en bevoegdheden in het kader van de zorgplicht voor het inzamelen van afvalwater in de riolering en voor hemelwater en grondwater.

Nationaal Bestuursakkoord Water

In het Nationaal Bestuursakkoord Water (NBW) is het kabinetsstandpunt over het waterbeleid in de 21e eeuw vastgelegd. De hoofddoelstellingen zijn: het waarborgen van het veiligheidsniveau bij overstromingen en het verminderen van wateroverlast. Daarbij wordt de voorkeur gegeven aan ruimtelijke maatregelen boven technische maatregelen.

In het NBW is ook de watertoets als procesinstrument opgenomen. De watertoets is het proces van vroegtijdig informeren, adviseren en beoordelen van waterhuishoudkundige aspecten in ruimtelijke plannen en besluiten. Het doel van dit instrument is waarborgen dat de waterhuishoudkundige doelstellingen expliciet in beschouwing worden genomen als het gaat om waterhuishoudkundige relevante ruimtelijke plannen en besluiten. Uitvoering van de watertoets betekent in feite dat de gemeente en de waterbeheerder samenwerken bij het uitwerken van ruimtelijke plannen, zodat problemen in het gebied zelf en de omgeving worden voorkomen. De watertoets is sinds 2003 verankerd in het Besluit ruimtelijke ordening en hiermee verplicht voor alle ruimtelijke plannen en besluiten.

In 2008 is het NBW geactualiseerd met als doel de watersystemen in 2015 op orde te krijgen, met name op het gebied van wateroverlast en watertekort.

Kaderrichtlijn water

De Europese Kaderrichtlijn Water (KRW) geeft een kader voor de bescherming van de ecologische en chemische kwaliteit van oppervlaktewater en grondwater. Zo dienen alle waterlichamen in 2015 een ‘goede ecologische toestand’ (GET) te hebben bereikt en dienen sterk veranderende c.q. kunstmatige wateren in 2015 een ‘goed ecologisch potentieel’ (GEP) te hebben bereikt. De chemische toestand dient in 2015 voor alle wateren (natuurlijk en kunstmatig) goed te zijn.

Waterbeheer 21e eeuw (WB21)

In september 2000 heeft de commissie Waterbeheer 21e eeuw advies uitgebracht over het toekomstig waterbeheer in Nederland. Belangrijk onderdeel van WB21 is het uitgangspunt van ruimte voor water. Er mag geen afwenteling plaatsvinden. Berging moet binnen het stroomgebied plaatsvinden. Dit betekent onder andere het aanwijzen en in stand houden van waterbergingsgebieden. Daarnaast wordt verdroging bestreden en worden watertekorten verminderd.

Provinciaal niveau

De hierboven genoemde Europese en nationale richtlijnen zijn door de provincie Noord-Brabant op het gebied van water doorvertaald in een regionaal waterplan “Provinciaal Waterhuishoudingsplan 2010-2015”. Hierin staan op hoofdlijnen de doelen die de provincie wil bereiken op het gebied van water en op welke wijze deze te realiseren. Op punten waar de provincie meer in detail wil regelen hoe met water om te gaan is dit vastgelegd in Provinciale Verordeningen. Voor water zijn de volgende drie verordeningen van belang: de Verordening Water, Verordening Ruimte en de Provinciale Milieuverordening.
In de Verordening Water zijn regels opgenomen voor het waterbeheer. Zo zijn er normen gesteld voor de regionale waterkeringen en voor wateroverlast. Ook zijn in de verordening voorschriften opgenomen voor grondwateronttrekkingen waarvoor de provincie het bevoegd gezag is.

Binnen het plangebied liggen geen regionale waterkeringen. De norm voor wateroverlast is gesteld op 1 keer per 100 jaar als werknorm voor stedelijk gebied conform het NBW.

De Verordening ruimte Noord-Brabant bevat regels die gemeenten in acht moeten nemen bij het opstellen van bestemmingsplannen. Met betrekking tot water gaat het om de volgende onderwerpen:

  • regionale waterbergingsgebieden en reserveringsgebieden waterberging,
  • beschermingszones voor grondwaterwinningen voor de openbare drinkwatervoorziening (zie PMV)
  • hoogwaterbescherming.


In de Provinciale milieuverordening Noord-Brabant zijn milieuregels opgenomen die het grondwater, dat is bestemd voormenselijke consumptie, moeten beschermen. De grondwaterbeschermingsgebieden zijn onderverdeeld in verschillende gebieden waarin voor bedrijven bijzondere bepalingen gelden:

  • waterwingebieden (vroeger de 60-dagenzone);
  • beschermingszones (vroeger de 10 en 25 jaarszone);
  • boringsvrije zones.


Het plan is niet gelegen in een beschermingsgebied zoals aangeduid in de Verordening ruimte of de Provinciale milieuverordening.


Regionaal niveau

Het Provinciaal waterhuishoudingsplan is door Waterschap Brabantse Delta geconcretiseerd in een Waterbeheerplan, de Beleidsregel Waterwet en de waterschapsverordening (Keur 1 maart 2015). Hierin wordt onderscheid gemaakt in volledig Beschermde gebieden en Attentiezones (beschermde gebieden waterhuishouding) en beperkt Beschermde gebieden(bescherming landbouw/landschap/natuur).


Beleid waterschap Brabantse Delta

Het waterschap Brabantse Delta is verantwoordelijk voor het waterbeheer in de gemeente. Het gaat dan om het waterkwantiteits en - kwaliteitsbeheer, de waterkeringzorg, waterzuivering, het grondwaterbeheer, het waterbodembeheer en vaak ook het scheepvaartbeheer.


Het waterschap heeft de grondslag van haar beleid opgenomen in het waterbeheersplan 2010-2015, wat is afgestemd op Europees, nationaal en provinciaal beleid. Speerpunten uit het waterbeheerplan zijn veiligheid, droge voeten, voldoende water, gezonde natuur, schoon water, genieten van water en het waterschap als calamiteitenorganisatie.


Het waterschap heeft in een toetsingskader RO "De ruimte blauw geordend" aangegeven wat de ruimtelijke consequenties zijn van het waterbeleid. Daarnaast heeft het waterschap waar nodig nog toegespitst beleid en beleidsregels op de verschillende thema's/ speerpunten uit het waterbeheersplan en heeft het waterschap een eigen verordening; De Keur en de legger. De Keur bevat gebods- en verbodsbepalingen met betrekking tot ingrepen die consequenties hebben voor de waterhuishouding en het waterbeheer. De legger geeft aan waar de waterstaatswerken liggen, aan welke afmetingen en eisen die moeten voldoen en wie onderhoudsplichtig is. Veelal is voor deze ingrepen een watervergunning van het waterschap benodigd.
De Keur is onder andere te raadplegen via de site van waterschap Brabantse Delta. Het waterschap hanteert bij nieuwe ontwikkelingen het principe van waterneutraal bouwen, waarbij gestreefd wordt naar het behoud of herstel van de 'natuurlijke' waterhuishoudkundige situatie.

Vanwege dit principe wordt bij uitbreiding van verhard oppervlak voor de omgang met hemelwater uitgegaan van de voorkeursvolgorde infiltreren, bergen, afvoeren. De technische eisen en uitgangspunten voor het ontwerp van watersystemen zijn opgenomen in de "beleidsregel hydraulische randvoorwaarden 2009".

In het Ontwerp waterbeheerplan 2016 -2021 van het Waterschap Brabantse Delta is in de paragraaf Zoetwatervoorziening nog het volgende opgenomen wat relevant is voor de ontwikkeling.

Het voorzieningenniveau is een nieuwe term in deze planperiode. Het betreft de beschikbaarheid van zoetwater in normale en droge situaties in een gebied. Het gaat hierbij om oppervlakte- en grondwater, kwantiteit en kwaliteit (indien van toepassing). Het voorzieningenniveau geeft daarmee de grens van de overheidsverantwoordelijkheid (en waar die van de burger begint) en biedt transparantie en handelingsperspectief aan watergebruikers. De uitwerking loopt via een gezamenlijk proces van overheden en gebruikers.

De doelen van het voorzieningenniveau zijn:

  • handelingsperspectief bieden: aangeven wat het Rijk, de regio en gebruikers van elkaar kunnen verwachten in normale en droge situaties
  • Afstemming tussen zoetwatervoorziening en ruimtelijke ordening versterken.
  • Vergroten van het waterbewustzijn en het stimuleren van zuinig watergebruik.
  • Vergroten van de doelmatigheid en duurzaamheid van de watervoorziening door de inspanningen van Rijk, regio en gebruikers op elkaar af te stemmen.

In de uitvoering van maatregelen houdt het waterschap altijd rekening met de dan bekende ontwikkelingen, zoals de klimaatscenario's van het KNMI voor 2050). De verwachte klimaatveranderingen hebben een forse impact op het waterbeheer: meer extremen in droge en natte perioden, maar ook toename van plaagsoorten en meer kwaliteitsproblemen door warmer oppervlaktewater. Voor de afvalwaterketen is het van belang om het regenwater zoveel mogelijk (vertraagd) naar het watersysteem af te voeren. Op dit punt hebben burgers en bedrijven een belangrijke eigen verantwoordelijkheid om zo min mogelijk water van verharde oppervlakken via de riolering af te voeren. Opvangen en afvoeren van extreme neerslag via de riolering is niet kosteneffectief. Bij een robuuste afvalwaterketenbeheer wordt de bestaande infrastructuur in de eerste plaats ingezet voor het verwerken van afvalwater,

in tweede instantie voor de verwerking van relatief vuile regenwaterstromen en in de derde plaats voor de afvoer van relatief schone hemelwaterstromen indien dit toch de enige oplossing is voor een lokale situatie. Een voorziening voor vertraagde afvoer van regenwater. Het gezuiverde water wordt geloosd op het watersysteem. Het beïnvloedt de kwaliteit

van het oppervlaktewater, maar veroorzaakt bij normale bedrijfsvoering geen waterkwaliteitsknelpunten.

Voor een robuust watersysteem is het volgende van belang:

  • Er moet voldoende dynamiek zijn in peilen en afvoerkarakteristieken. Enerzijds omin te kunnen spelen op weersverwachtingen om meer water vast te houden in droge perioden en om voldoende bergingscapaciteit te hebben bij aanhoudende natte perioden. Anderzijds om een betere ecologische waterkwaliteit te bereiken met een groter zelf herstellend vermogen.
  • De bodem wordt optimaal benut om water te kunnen vasthouden en uitspoeling van stoffen te voorkomen. Door het intensievere landgebruik is de bodem namelijk uitgeput geraakt (De Bodem onder ons bestaan, 2009, Altera rapport 1908). Het organische stofgehalte en het bodemleven is achteruit gegaan. Door intensieve drainage en verstedelijking is bovendien de grondwateraanvulling beperkt. Het watersysteem kan deze versnelde afvoer samen met de klimaatsveranderingen niet zomaar opvangen. Een verandering naar zo traag mogelijk afvoeren van water en het reserveren van meer ruimte voor water en natte zones is daarom noodzakelijk.
  • Plaagsoorten mogen geen bedreiging vormen voor waterhuishoudkundige functies (geen toename aan risico's voor mens, milieu of economie). Het gaat dan om bijvoorbeeld muskusratten, parelvederkruid, grote waternavel en blauwalgen. In de planperiode werkt het waterschap, samen met partners, de klimaatadaptatiestrategieën van het nationale deltaprogramma verder uit in maatregelen die passen bij het gebied.

Waterplan Halderberge (2004)

Het Gemeentelijk Waterplan Halderberge, vastgesteld 30 september 2004, is een gezamenlijk beleidsplan voor watersysteem en waterketen in Halderberge van alle betrokken overheden: Gemeente Halderberge, Waterschap Brabantse Delta, BrabantWater en Provincie Noord-Brabant. De aanleiding voor het opstellen van het waterplan is dat het beheer van watersysteem en waterketen over verschillende partijen is versnipperd. De opstellers beogen met een gezamenlijk plan beleid en uitvoering beter op elkaar af te stemmen, met een beter rendement tot gevolg.
Het Gemeentelijk Waterplan Halderberge is opgehangen aan 6 thema's:

  • samen werken aan water;
  • water en kwantiteit;
  • water en kwaliteit en ecologie;
  • watervoorziening, watergebruik, riolering en afvalwaterzuivering;
  • water en ruimte;
  • gebruik, beleving en cultuurhistorie.

Knelpunt in verschillende kernen is het optreden van wateroverlast als gevolg van te geringe capaciteit van de riolering. Dit komt doordat het aangesloten verhard oppervlak veel groter is dan in het verleden is aangenomen en waarop derhalve de riolering gedimensioneerd is. Daarnaast treedt op verschillende locaties overlast van grondwater en soms oppervlaktewater op.
In het maatregelenprogramma zijn de maatregelen van het waterplan opgenomen, waaronder uitvoeringsmaatregelen, zoals de aanleg van een bergbezinkbassin of het inrichten van gebieden voor de waterberging. Het oplossen van wateroverlast door grondwater of als gevolg van een te geringe capaciteit van de riolering neemt in het maatregelenprogramma een belangrijke plaats in.

Dit betekent dat bij de ontwikkeling goed gekeken zal worden naar de gevolgen voor de waterhuishouding binnen en in de omgeving van het plangebied.

Verbreed Gemeentelijk Rioleringsplan

Het Gemeentelijk Rioleringsplan 2010-2014 is vervangen door het Verbreed Gemeentelijk Rioleringsplan 2014-2019, vastgesteld november 2013. Het gemeentelijk rioleringsplan van de gemeente Halderberge geeft aan hoe de gemeente het rioleringsstelsel in de diverse kernen van de gemeente wil beheren, onderhouden, verbeteren en uitbreiden.

De doelen voor de planperiode 2014-2019 zijn als volgt:

  • 1. Inzameling van het binnen gemeentelijk gebied geproduceerd stedelijk afvalwater;
  • 2. Doelmatige inzameling en verwerking van afvloeiend hemelwater;
  • 3. Het voorkomen van overlast of onderlast van de grondwaterstand;
  • 4. Het transport van het ingezamelde water naar een geschikt lozingspunt;
  • 5. Ongewenste emissies naar oppervlaktewater, bodem, grondwater voorkomen;
  • 6. Zorgen dat zo min mogelijk overlast voor de omgeving wordt veroorzaakt.

Hierbij is van belang dat de definitie van stedelijk afvalwater ten opzichte van voorheen beter is omschreven, zodat tegenwoordig duidelijk onderscheid wordt gemaakt in (stedelijk) afval- en hemelwater. Stedelijk afvalwater omvat

huishoudelijk water of een mengsel daarvan met bedrijfsafvalwater, afvloeiend hemelwater, grondwater of ander afvalwater. Hemelwater wordt, zolang het niet in aanraking komt met ander afvalwater of verontreinigingen, niet meer beschouwd als afvalwater.

Naast de beheerstaken dienen in de planperiode 2014-2019 de volgende

activiteiten te worden verricht:

  • Actualisering BRP’s
  • Opzetten grondwatermeetnet
  • Opzetten waterloket
  • Opstellen hemelwaterstructuurplan
  • Diverse maatregelen ten behoeve van het verbeteren hydraulisch functioneren
  • Doelmatig afkoppelen verhard oppervlak
  • Deelnemen aan OAS Studie

4.3.2 Onderzoek

Binnen de planlocatie worden maximaal 10 (half)vrijstaande woningen gerealiseerd. Op dit moment heeft de locatie een erf-/ tuinfunctie en is grotendeels onverhard. Om deze ontwikkeling mogelijk te maken is een ruimtelijke procedure noodzakelijk. Een verplicht onderdeel hierin vormt de watertoets. De watertoets is in essentie een procesinstrumentmet als doel te komen tot een betere inbreng van wateraspecten in ruimtelijke plannen en besluiten. Dit moet uiteindelijk leiden tot een goed functionerend en beheersbaar ontwerp van de waterhuishouding en de riolering voor het plangebied, dat aansluit op het vigerende beleid van het rijk, de provincie, het waterschap en de gemeente. Hiertoe worden in dit stadium de randvoorwaarden en uitgangspunten voor het ontwerp van de waterhuishouding en riolering uitgewerkt en eventuele kansen of knelpunten voor het ruimtelijk planproces gesignaleerd.

4.3.2.1 huidige waterhuishoudkundige situatie

Binnen de planlocatie worden maximaal 10 woningen gerealiseerd. Op dit moment heeft de locatie een erf-/ tuinfunctie met schapenwei en is grotendeels onverhard. De bodem op de projectlocatie bestaat voornamelijk uit zand. In de directe omgeving van het plangebied is geen oppervlaktewater aanwezig. De gemeten grondwaterstand ligt op gemiddeld 1,50 meter min maaiveld. De locatie is niet in een grondwaterbeschermingsgebied of waterwingebied gelegen (Provinciale Milieuverordening 2010), en evenmin in een beschermd gebied zoals aangegeven in de Keur (Keur Waterschap Brabantse Delta).

4.3.2.2 watercompensatie

Op dit moment heeft de locatie een erf-/ tuinfunctie en is grotendeels onverhard. Bij de realisatie van het bouwplan neemt het aandeel verhard oppervlak toe. De totale omvang van het plangebied bedraagt 4998 m2 Door de toevoeging van een bebouwingsvlak wordt circa 2304 m2 bebouwd oppervlak toegevoegd, waarvan 1925 m2 wordt geloosd in openbaar gebied. In principe geldt er geen verplichting voor de opvang van het hemelwater op de planlocatie, de grenst ligt op 2000 m2 nieuw verhard oppervlak.

De woningen zijn gegroepeerd rondom een plantsoen waarbinnen mogelijkheden zijn voor retentie. In het plantsoen kan een wadi ( retentiemogelijkheid) worden opgenomen en zodanig worden gedimensioneerd dat ook het regenwater van de omliggende woonstraat hierop kan worden afgevoerd. Naar aanleiding van de uitspraak van de Raad van State is in de bestemming 'Groen' opgenomen dat de gronden mede zijn bestemd voor een wadi. In het artikel aangaande de bestemming Wonen is een voorwaardelijke verplichting opgenomen waarin is geregeld dat de hoofdgebouwen pas gerealiseerd kunnen worden als vooraf binnen de bestemming Groen een wadi is gerealiseerd en deze wordt gehandhaafd.

Er geldt geen verplichting tot het compenseren van oppervlaktewater, gezien de diepe ligging van het grondwater ( ca. 1.70 meter minus maaiveld) is dit ook praktisch gezien niet uitvoerbaar.

Het verhard oppevlak dat wordt aangesloten op de openbare verharding:

  • 1. woningen +garage 10 x 77,94 m2 = 779,4 m2
  • 2. oprit 10 x 52,5 m2 = 525 m2
  • 3. weg verharding 500 m2 en parkeren 15m2 x 8 p.p = 120m2
  • 4. tuin verharding aanname 10 * 50 m2 = 500 m2 ; watert af op de tuin, niet aangesloten op openbaar gebied.

In het plantsoen wordt een wadi aangelegd met een diepte van 65 cm, hetgeen leidt tot een capaciteit van 225 m3 berging. Het aanleggen en instandhouden van de wadi inclusief de huisaansluiting op het schoonwater stelsel is geborgd in de regels, zie paragraaf 6.2.2 Toelichting bestemmingen.

afbeelding "i_NL.IMRO.1655.BP2009-C002_0023.jpg"
Afbeelding: indicatieve inrichting openbare ruimte met parkeerstrook en wadi

4.3.2.3 Waterafvoer

Advies behandeling regenwater (RWA)

Vanuit het waterschap Brabantse Delta dan wel de gemeente worden geen aanvullende voorzieningen in het kader van berging/ infiltratie van regenwater geëist. Ten behoeve van de toekomstige ontwikkeling moet het regenwater gescheiden worden afgevoerd.

Afspraken waterschap betreffende de inrichting van de wadi:

  • De wadi zal boven GHG-niveau worden aangelegd. De onderbouwing van de GHG is als Bijlage 4 Grondwaterstanden opgenomen in de toelichting. Hierbij is gebruik gemaakt van de grondwatermetingen binnen de planlocatie. De GWS relateert goed het neerslagverloop, de doorlaatbaarheid van de ondergrond is goed.
  • Regenwater wordt afgekoppeld en HWA wordt ondergronds afgevoerd naar de wadi. De HWA eindigt in de kolk in de wadi.
  • In de wadi wordt een overstort op eigen terrein opgenomen welke stroomt naar lager gelegen gebied (richting noorden net binnen de perceelsgrens van bouwkavel 10) naar de watergang van Brabantse Delta. Als alternatief is een overstort naar het gemeenteriool opgenomen. Een en ander zal in nader overleg met Brabantse Delta worden uitgewerkt.


Advies behandeling vuilwater (DWA)

Het DWA-stelsel vanuit het plangebied dient te worden aangesloten op het gemeentelijke GEMstelsel. Er dienen bij de gemeente vergunningen te worden aangevraagd voor de aansluiting op het gemeentelijk rioolstelsel.

De DWA riolering wordt met een voldoende, doch geringe doorsnede uitgevoerd, om te veel bezinking in het vuilwatersysteem te voorkomen en daarmee een goede afvoer naar het bestaande gemengde rioolsysteem te garanderen.

Ontwatering en drooglegging planlocatie

Om grondwateroverlast te voorkomen, wordt gestreefd naar een bepaalde minimale ontwateringsdiepte bij de gemiddelde hoogste grondwaterstand (GHG). Voor stedelijk bebouwd gebied wordt in de keur van het waterschap Brabantse Delta een ontwateringsdiepte van 0,70 m –mv nagestreefd; hier voldoet het plangebied ruimschoots aan, zelfs na een maximale infiltratie. In het bijgevoegd grondonderzoek en grondwaterstanden blijkt ook dat de zanderige bodemopbouw ter plaatse geschikt is voor infiltratie.Het grondwater zit minimaal 1,73 meter onder maaiveld.

Milieuvriendelijke bouwmaterialen

De ontwikkeling zal waar mogelijk aandacht schenken aan het gebruik van milieuvriendelijke bouwmaterialen en het achterwege laten van uitlogende bouwmaterialen, zoals lood, koper, zink en zacht PVC. Deze stoffen kunnen zich ophopen in het water(bodem)systeem en hebben hierdoor een zeer nadelige invloed op de water(bodem)kwaliteit en ecologie.

4.3.3 Conclusie

De toename verhard oppervlakte is kleiner dan 2000m2. Door de ontwikkelaar wordt echter wel een infiltratiebassin/wadi aangelegd voor de opvang van regenwater. De aanleg en gebruik van de wadi is tevens geborgd in de regels. De waterhuishoudkundige situatie is opgelost binnen de planlocatie, het aspect water vormt geen belemmering voor de ontwikkeling. Het aspect water is reeds voorbesproken met het waterschap. De uitwerking zal plaatsvinden in overleg met gemeente en waterschap.

4.4 Flora en Fauna

4.4.1 Wettelijk kader

Ruimtelijke ontwikkelingen moeten worden getoetst aan de natuurbeschermingswetgeving. Daarbij wordt onderscheid gemaakt in gebiedsbescherming (o.a. Natuurbeschermingswet 1998) en soortenbescherming (Flora- en faunawet). Met deze wetten zijn de Europese Vogelrichtlijn en de Europese Habitatrichtlijn verankerd in de nationale Flora- en fauna wetgeving. Onder gebiedsbescherming valt ook de toetsing aan het provinciaal ecologisch beleid, waarmee bepaalde gebieden en landschaps-elementen worden beschermd, zoals de Ecologische Hoofdstructuur en het weidevogelgebied.

4.4.1.1 Gebiedsbescherming

Natuurbeschermingswet 
Gebiedsbescherming wordt gewaarborgd door de Natuurbeschermingswet 1998 (hierna: Nbw). Deze wet beschermt Natura 2000-gebieden, beschermde natuurmonumenten en wetlands. Voor activiteiten met een mogelijk effect op deze gebieden is toetsing aan de Nbw noodzakelijk.

Natura 2000
Voor het uitvoeren van projecten en handelingen die negatieve effecten kunnen hebben op de instandhoudingsdoelstellingen van een Natura 2000-gebied en die niet nodig zijn voor het beheer van het Natura 2000-gebied, is een vergunning nodig. Het bevoegd gezag hiervoor zijn Gedeputeerde Staten, tenzij de Nbw-procedure aanhaakt bij de omgevingsvergunning. In dat geval zijn burgemeester en wethouders het bevoegd gezag, maar is er een verklaring van geen bedenkingen van GS nodig.


Instandhoudingsdoelstellingen beschrijven de doelen voor natuurlijke habitats of populaties van de in het wild levende dier- en plantensoorten om een gunstige staat van instandhouding te waarborgen. Bij het vaststellen van een bestemmingsplan moet op grond van artikel 19j van de Nbw rekening worden gehouden met de effecten van het plan op Natura 2000-gebieden. Ook activiteiten buiten het Natura 2000-gebied kunnen negatieve effecten op de instandhoudings-doelstellingen van het Natura 2000-gebied hebben. Dit wordt 'externe werking' genoemd. Van negatieve effecten is sprake als, gelet op de instandhoudingsdoelstellingen, een habitattype verslechtert of soorten significant worden verstoord. Deze bescherming geldt alleen voor de habitattypen en soorten waarvoor het gebied is aangewezen. Projecten en handelingen die de natuurlijke kenmerken van het Natura 2000-gebied aantasten zijn in ieder geval vergunningplichtig op grond van artikel 19d Nbw.

Beschermde Natuurmonumenten
Bij de aanwijzing van Natura 2000-gebieden is het mogelijk dat (delen van) Beschermde Natuurmonumenten binnen de grenzen van het Natura 2000-gebied vallen. Indien dit het geval is houdt dit in dat, het betreffende aanwijzingsbesluit tot natuurmonument is komen te vervallen (artikel 15a, lid 2 Nbw). Echter, het voormalig beschermd natuurmonument is nog wel beschermd op grond van de doelstellingen ten aanzien van het behoud, herstel en de ontwikkeling van het natuurschoon of de natuurwetenschappelijke betekenis van het gebied zoals bepaald in het van rechtswege vervallen besluit (artikel 15a, lid 3 Nbw). Concreet betekent houdt dit in dat de status van Natuurmonument, na aanwijzing als Natura 2000-gebied, is komen te vervallen maar de doelstellingen niet.


Op grond van artikel 19j lid 1 hoeft niet te worden getoetst aan de doelstellingen van een (voormalig) beschermd natuurmonument. Er moet echter wel op grond van de goede ruimtelijke ordening en het zorgplichtartikel 19l Nbw, worden getoetst aan deze doelstellingen. Met andere woorden: er moet zicht zijn op de haalbaarheid van het plan. Indien het plan effecten kan hebben op het voormalig beschermd natuurmonument, moet worden beoordeeld of hiervoor een vergunning ex artikel 16 Nbw noodzakelijk is en of deze kan worden verleend. In dit artikel is namelijk bepaald dat het verboden is zonder vergunning projecten of andere handelingen te realiseren die schadelijk kunnen zijn voor het natuurschoon, voor de natuurwetenschappelijke betekenis van het beschermd natuurmonument of voor dieren of planten in het beschermd natuurmonument of die het beschermd natuurmonument ontsieren.

Ecologische Hoofdstructuur
Het voormalige ministerie van LNV heeft in 1990 de Ecologische Hoofdstructuur (hierna: EHS) geïntroduceerd. De EHS bestaat uit een netwerk van natuurgebieden. Het doel van de EHS is de instandhouding en ontwikkeling van deze natuurgebieden om daarmee een groot aantal soorten en ecosystemen te laten voortbestaan. De EHS wordt beschermd via regelgeving onder de Wet ruimtelijke ordening.


Het in de Nota Ruimte vastgelegde rijksbeleid ten aanzien van de begrenzing en de bescherming van de EHS, is vertaald in regelgeving in het Besluit algemene regels ruimtelijke ordening, dat per provincie is uitgewerkt in een provinciale ruimtelijke verordening. In de Verordening ruimte 2014 van de provincie Noord-Brabant zijn verplichtingen opgenomen voor bescherming van de EHS. Kort gezegd is hier geregeld dat (ruimtelijke) ingrepen in de EHS die de wezenlijke kenmerken en waarden van de EHS significant aantasten niet zijn toegestaan, tenzij:

  • Er sprake is van een groot openbaar belang, en;
  • Er geen reële alternatieven zijn, en;
  • De negatieve effecten zoveel mogelijk worden beperkt, en;
  • De overblijvende effecten worden gecompenseerd.

Om te kunnen bepalen of de wezenlijke kenmerken en waarden van een gebied significant worden aangetast, moet het bevoegd gezag (de gemeente) erop toezien dat hiernaar door de initiatiefnemer onderzoek wordt verricht. Gemeenten moeten het in de verordeningen en beleidsregel vastgelegde beschermingsregime voor de EHS verankeren in bestemmingsplannen en ook de naleving daarvan borgen bij het (verlenen van omgevingsvergunningen voor het) afwijken van ruimtelijke regels.
Overigens kan een gebied, naast een onderdeel zijn van de EHS, tegelijkertijd een Natura 2000-gebied zijn. Als er sprake zou zijn van tegenstrijdige vereisten, dan is het beschermingsregime Natura 2000 leidend.

4.4.1.2 Soortenbescherming

Soortenbescherming wordt gewaarborgd door de Flora- en faunawet (hierna: Ffw). De Ffw beschermt alle in het wild levende soorten. Daarbij wordt onderscheid gemaakt in verschillende beschermingscategorieën. De beschermde diersoorten (vogels, vissen, zoogdieren, amfibieën, reptielen, insecten, ongewervelden, et cetera) en ongeveer 100 plantensoorten zijn te vinden in tabellen, die deel uitmaken van de Ffw. Daarnaast zijn alle broedende vogels, hun broedplaatsen én de functionele omgeving van de broedplaatsen beschermd tijdens de broedperiode en zijn van een aantal soorten de vaste rust- en verblijfplaatsen en functionele omgeving jaarrond beschermd.

Het uitgangspunt van de Ffw is dat alles wat schadelijk is voor beschermde soorten verboden is, zoals het verstoren, verontrusten, doden, vangen, plukken, vernielen, verwonden van soorten of het wegnemen, vernielen of verstoren van hun verblijfplaats. Van het verbod kan alleen onder bepaalde voorwaarden worden afgeweken. Voor álle activiteiten met een mogelijk effect op beschermde dier- en plantensoorten is toetsing aan de Ffw noodzakelijk. Activiteiten waarbij de verbodsbepalingen overtreden worden, dienen voorkomen te worden, bijvoorbeeld door het treffen van mitigerende maatregelen. Indien dit niet mogelijk is, dan is het uitvoeren van een dergelijke activiteit alléén toegestaan met een ontheffing van het Ministerie van EZ. Een mitigatieplan of ontheffing dient in het bezit te zijn voorafgaand aan de start van de uitvoeringsfase.


Naast de verbodsbepalingen staat in de Ffw dat voor alle in het wild levende planten- en dier-soorten de zogenaamde zorgplicht geldt. Deze zorgplicht houdt in dat nadelige gevolgen voor flora en fauna zoveel mogelijk voorkomen moeten worden. De zorgplicht geldt voor iedereen en voor alle planten en dieren, beschermd of niet. Bij beschermde planten of dieren geldt de zorgplicht ook als er een ontheffing of vrijstelling is verleend.

4.4.2 Onderzoek
4.4.2.1 Gebiedsbescherming

Het plangebied vormt geen onderdeel van een natuur- of groengebied met een beschermde status, zoals Natura 2000. Het projectgebied bestaat momenteel uit bebouwde grond.

Vanwege de grote afstand tot beschermde natuurgebieden en het feit dat het plangebied en het Natura 2000-gebied van elkaar worden gescheiden door wegen, wordt er geen enkele invloed van de ingreep op het Natuurbeschermingswetgebied verwacht. De Natuurbeschermingswet 1998 en het beleid van de provincie staan de uitvoering van het plan dan ook niet in de weg.

4.4.2.2 Soortenbescherming

Het bestemmingsplan is een besluit dat ingrepen mogelijk maakt en een aantasting van beschermde dier- of plantensoorten kan betekenen. Uiterlijk bij het nemen van een besluit dat ruimtelijke veranderingen mogelijk maakt, zal daarom zekerheid moeten zijn verkregen dat overtredingen van de Ffw niet optreden. Het verwijderen van opgaand groen, de grondwerkzaamheden en de bouwwerkzaamheden leiden tot verstoring van alle aanwezige soorten.

De Ffw is sinds 1 april 2002 van kracht. De wet regelt de bescherming van de in het wild levende planten en dieren in Nederland met het oog op de instandhouding van soorten. Dit betreft soorten die zijn aangemerkt als beschermd op basis van de Ffw. Om de instandhouding van de beschermde soorten te waarborgen moeten negatieve effecten op de instandhouding worden voorkomen. Hiertoe zijn in de wet verschillende verbodsbepalingen geformuleerd. Overtreding van een verbodsbepaling is alleen toegestaan met een ontheffing op basis van de Ffw (art. 75). Op 10 september 2004 is het 'Besluit houdende wijziging van een aantal algemene maatregelen van bestuur in verband met wijziging van artikel 75 van de Ffw en enkele andere wijzigingen' in werking getreden. In dit besluit zijn de volgende drie categorieën opgenomen:

  • 1. categorie 1: bij activiteiten die te kwalificeren zijn als bestendig beheer en onderhoud of bestendig gebruik of ruimtelijke ontwikkelingen, geldt voor de soorten in deze categorie een vrijstelling voor artikel 8 t/m 12 van de Ffwet. Er hoeft voor deze activiteiten geen ontheffing te worden aangevraagd;
  • 2. categorie 2: bij activiteiten die te kwalificeren zijn als bestendig beheer en onderhoud of bestendig gebruik of ruimtelijke ontwikkelingen, geldt voor de soorten in deze categorie een vrijstelling voor artikel 8 t/m 12 van de Ffwet, mits activiteiten worden uitgevoerd op basis van een door de minister van LNV goedgekeurde gedragscode. Deze gedragscode moet door een sector of ondernemer zelf worden opgesteld en ingediend voor goedkeuring. Is er geen goedgekeurde gedragscode aanwezig, dan dient ontheffing aangevraagd te worden;
  • 3. categorie 3: bij activiteiten die te kwalificeren zijn als ruimtelijke ontwikkelingen, geldt voor soorten in deze categorie geen vrijstelling. Ook niet op basis van een gedragscode. Hiervoor is een ontheffing nodig.

Ontheffingaanvragen op basis van categorie 1 en 2 worden getoetst aan het criterium 'doet geen afbreuk aan gunstige staat van instandhouding van de soort' (de zogenaamde lichte toets). Ontheffingaanvragen op basis van categorie 3 krijgen te maken met de 'uitgebreide toets'. Dit houdt in dat wordt getoetst op drie criteria, te weten 1) er is sprake van een in of bij de wet genoemd belang, 2) er is geen alternatief en 3) doet geen afbreuk aan gunstige staat van instandhouding van de soort. Aan alle criteria moet worden voldaan.

Aangezien er op de locatie Rietmade Hoeven ingrepen (nieuwbouw) uitgevoerd worden zijn negatieve effecten op vaste rust- en verblijfsplaatsen van strikt beschermde soorten denkbaar. Er is een flora en fauna quickscan uitgevoerd (zie Bijlage 5).

Het terrein bestaat uit een graslandperceel dat ingeklemd ligt door bebouwing. Langs de oost- en zuidrand is een bomenrij van berken en elzen aanwezig. De bomenrij langs de zuid- en oostrand scheiden het perceel af van de woonwijk aan de Rietmade. Het graslandperceel wordt niet geschikt geacht voor beschermde flora en fauna. Het wordt begraasd en heeft een voedselrijke bodem. Bij de bomen zijn geen holen of nesten ontdekt die het geschikt maken voor jaarrond beschermde vogels en vleermuizen. Voor de uitvoering van de geplande ruimtelijke ontwikkeling is derhalve geen ontheffing van de Ffw nodig. Mogelijk is voor het kappen van de bomen langs het terrein een vergunning nodig.

4.4.3 Conclusie

Flora en fauna vormt geen belemmerend aspect voor de voorgenomen ontwikkeling. Voor de uitvoering van de geplande ruimtelijke ontwikkeling is derhalve geen ontheffing van de Ffw nodig. Mogelijk is voor het kappen van de bomen langs het terrein een vergunning nodig.

4.5 Verkeer en parkeren

In deze paragraaf wordt ingegaan op de aspecten parkeren, bereikbaarheid en verkeersveiligheid.

4.5.1 Onderzoek

Dit bestemmingsplan maakt maximaal 10 extra woningen ten opzichte van de bestaande situatie mogelijk. Dit levert een andere parkeer- en verkeerssituatie op. De gemeentelijke kadernota parkeren 2012-2016 geldt als uitgangspunt.

Met de omwonenden wordt nader overleg gevoerd over de verkeersafwikkeling van bouwverkeer. Het bouwverkeer voor deze locatie wordt waar mogelijk gereduceerd en bij voorkeur via een eenzijdige verkeerscirculatie afgewikkeld.

Het streven is om het bouwverkeer door de Rietmade te leiden door aan de aansluiting vanaf de president Hopstakenlaan de Rietmade in te rijden en via de andere uitrit de Rietmade te verlaten. Hierdoor kan de verkeersdruk binnen de Rietmade worden verdeeld en de overlast worden beperkt. Ook is het streven om de bouwtransporten zo veel mogelijk te concentreren op een aantal dagen.

Ten aanzien van het bouw- en woonrijp maken geldt het principe van een gesloten grondbalans., waardoor de afvoer van grond uit het gebied minimaal zal zijn. Alleen voor het aanbrengen van het zandbed onder de verharding zal extra zand moeten worden aangevoerd.

4.5.1.1 Verkeersbewegingen

Het plangebied wordt ontsloten op de Rietmade. Voor wat betreft de verkeersgeneratie, gaat CROW-publicatie 317 er vanuit dat de verkeersproductie voor een twee-onder-een-kap woning een ritproductie heeft van 7,4 - 8,2 ritten per etmaal (niet stedelijk, rest bebouwde kom) en voor vrijstaande woningen een ritproductie van 7,8 - 8,6 ritten per etmaal. Bij gebruik van de maximale planologische ruimte en een gemiddelde ritproductie komt dat voor de planlocatie neer op (8,6 x 10=) 86 ritten / etmaal.

Rietmade is een erfontsluitingsweg in het dorpstedelijk gebied van Hoeven. Er zijn geen schattingen van de huidige intensiteiten beschikbaar. De extra verkeersbewegingen voor 10 extra woningen in relatie tot de huidige situatie zijn echter zeer beperkt. Deze kunnen verwerkt worden op het bestaande wegennet.

4.5.1.2 Parkeren

Voor het bepalen van de parkeerbehoefte hanteert de gemeente parkeernormen. Het aantal parkeerplaatsen dat op basis daarvan nodig is voor de ontwikkeling moet binnen het plangebied gerealiseerd worden.

De parkeernormen staan in de Kadernota Parkeren 2012-2016:

-       Woning < 90m2 = 1,9 parkeerplaats per woning

-       Woning > 90m2 = 2,1 parkeerplaats per woning

- hiervan voor bezoekers 0,3 parkeerplaats per woning

Op basis van deze norm is de totale parkeerbehoefte voor de nu voorliggende inrichtingssuggestie en maximaal planologisch scenario (2,1 x 10=)21 parkeerplaatsen.

Uitgangspunt in de ontwikkeling is dat minimaal 2 parkeerplaatsen per woning op eigen terrein wordt gerealiseerd.

In onderstaande tabel is een overzicht van parkeervoorzieningen opgenomen met een indicatieve factor voor het bepalen van het aantal parkeerplaatsen bij woningen.

afbeelding "i_NL.IMRO.1655.BP2009-C002_0024.png"

Tabel: rekenfactoren parkeervoorzieningen bij woningen (bron: kadernota parkeren 2012-2016, gemeente Halderberge)

Het bouwplan gaat uit van een garage met lange oprit. Dit telt als 1,3 parkeerplaats. De oprit is in totaal 11,66 meter lang, 6,60m van voorgevel tot garage en 4,80m van voorgevel tot perceelsgrens, zie onderstaande afbeelding met plattegrond. Bij de ontwikkeling van 10 woningen dienen nog (21-13=)8 parkeerplaatsen in de openbare ruimte te worden gerealiseerd. Langs de (nieuwe) Rietmade is in openbaar gebied ruimte voor 8 extra parkeerplaatsen. In het groen is een strook van 2,5 meter breed opgenomen in de vorm van een voor parkeren geschikt gemaakte strook plantsoen, aangrenzend aan de woonstraat (zie afbeelding inrichting openbare ruimte in paragraaf 2.2 ). Voor langsparkeervakken wordt uitgegaan van 2,5m x 6m. Het gaat dus om een reserveringsruimte. Dit geeft bij uitwerking nog flexibiliteit waar de parkeerplaatsten precies komen te liggen.

afbeelding "i_NL.IMRO.1655.BP2009-C002_0025.jpg"

Afbeeelding: parkeervoorzieningen bij woningen, lange oprit van 11,66 meter

4.5.2 Conclusie

Het aspect verkeer en parkeren vormt geen belemmering voor de uitvoering van dit plan.

Hoofdstuk 5 Uitvoerbaarheid

5.1 Economische uitvoerbaarheid

De Wet ruimtelijke ordening maakt het vaststellen van een exploitatieplan verplicht voor een aantal bouwactiviteiten wanneer de bouw daarvan planologisch mogelijk wordt gemaakt in een bestemmingsplan, een wijziging van een bestemmingsplan of een projectafwijkingsbesluit. De bouwplannen waarbij een exploitatieplan verplicht is staan in artikel 6.2.1 van het Bro. Dit betreft onder meer plannen voor de bouw van één of meer woningen en de bouw van één of meer andere hoofdgebouwen. Bovendien is een exploitatieplan nodig als locatie-eisen (aan openbare ruimte of woningcategorieën) gesteld moeten worden en/of het bepalen van een tijdvak of fasering noodzakelijk is.


Geen exploitatieplan is nodig indien het verhaal van de kosten van grondexploitatie anderszins verzekerd is en er geen fasering of tijdvak behoeft te worden vastgelegd én geen locatie-eisen (aan openbare ruimte of woningbouwcategorieën) hoeven te worden vastgesteld.

5.1.1 beoordeling

Voor de realisatie van het plan hoeft door de gemeente geen investering gedaan te worden. De ontwikkelingskosten worden geheel door de initiatiefnemer gedragen.
Op grond van artikel 6.2.1 Bro is er sprake van een ‘aangewezen bouwplan’. Derhalve dient de gemeenteraad een exploitatieplan vast te stellen of het verhaal van kosten van de grondexploitatie ‘anderszins te verzekeren’. Initiatiefnemer voert voor eigen rekening en risico de bouwwerkzaamheden geheel op eigen terrein uit. Hiermee is sprake is van een financieel uitvoerbaar plan. Voor dit bestemmingsplan is afgezien van een exploitatieplan aangezien het kostenverhaal anderzins is verzekerd. De gemeente Halderberge heeft op 16 november 2015 met de initiatiefnemer een anterieure overeenkomst afgesloten, waarin ook de verantwoordelijkheid voor eventuele planschadekosten en civiele zaken worden vastgelegd (collegebesluit 13 oktober 2015).

5.1.2 Conclusie

De economische uitvoerbaarheid van het onderhavige plan is verzekerd.

5.2 Maatschappelijke uitvoerbaarheid

Artikel 3.1.1 van het Bro bepaalt dat bij de voorbereiding van een bestemmingsplan het College van Burgemeester en Wethouders overleg voert met betrokken instanties en overheden. In het kader van het vooroverleg wordt kennisgeving gedaan bij verschillende belanghebbende organisaties en overheden.

Met de buurt heeft inmiddels een informatief gesprek plaats gevonden op 7 september 2015.

Overleg ex artikel 3.1.1 Bro

Op grond van het bepaalde in artikel 3.1.1 van het Besluit ruimtelijke ordening jo artikel 3.6 van de Algemene wet bestuursrecht is overleg voorgeschreven met de besturen van betrokken gemeenten en waterschappen en met die diensten van provincie en Rijk die betrokken zijn bij de zorg voor de ruimtelijke ordening of belast met de behartiging van belangen welke in het plan in het geding zijn. De gemeente Halderberge heeft de volgende instanties in de gelegenheid gesteld om binnen 4 weken de opmerkingen over het voorontwerp-bestemmingsplan te maken:

  • 1. Brandweer Midden- en West-Brabant
  • 2. Delta Netwerkbedrijf B.V.
  • 3. Gasunie Transport Services B.V.
  • 4. Provincie Noord-Brabant
  • 5. Omgevingsdienst Midden- en West-Brabant
  • 6. Waterschap Brabantse Delta
  • 7. Ministerie van Defensie
  • 8. Rijkswaterstaat
  • 9. ZLTO
  • 10. Cultureel erfgoed

Bovengenoemde instanties (nr. 2-5) hebben aangegeven geen belangen in onderhavig plangebied te hebben of betrokken ruimtelijke aspecten gaven geen aanleiding tot het maken van opmerkingen.

De brandweer (1) heeft in het kader van externe veiligheid het standaardadvies 2015 voor gemeente Halderberge van toepassing verklaard. De bijlage is opgenomen in het bestemmingsplan.

Waterschap Brabantse Delta (6) heeft een positief wateradvies gegeven met nog een aantal aandachtspunten met betrekking tot de wadi, GHG, ontwateringsdiepte, milieuvriendelijke bouwmaterialen en de Keur. De opmerkingen zijn in overleg met het waterschap verwerkt in het bestemmingsplan.

De instanties 7-10 hebben zich onthuoden van een reactie.

De vooroverlegreacties zijn opgenomen in Bijlage 6 Vooroverlegreacties.

Zienswijzen

Het ontwerp-bestemmingsplan Rietmade Hoeven heeft met diverse bijlagen ter inzage gelegen op het gemeentehuis in Oudenbosch alsmede digitaal via www.ruimtelijkeplannen.nl, vanaf 21 januari t/m 2 maart 2016. Van de terinzage is een bekendmaking geplaatst in de Halderbergse Bode en de Staatscourant op 20 januari 2016. Tijdens de inzage periode heeft de initiatiefnemer de buurt geinformeerd. Eenieder is in de gelegenheid gesteld bij de gemeenteraad van Halderberge een zienswijze in te dienen.

Tijdig, voor 2 maart 2016, is een viertal verschillende zienswijzen ingediend. In een separate zienswijzennota zijn de reacties samengevat en voorzien van een gemeentelijke beantwoording. Daarbij is aangegeven of de opmerkingen leiden tot aanpassing van het bestemmingsplan. Samenvattend zijn de vier zienswijzen met betrekking tot het ontwerpbestemmingsplan Rietmade Hoeve ongegrond met uitzondering van de onderdelen 1a (waarborgen stedenbouwkundige uitgangspunten als er vrijstaande woningen komen) en 3p (hoogtemaatvoering verbeelding afstemmen op bouwplan). Genoemde onderdelen zijn gegrond en zin aangepast in het vastgestelde bestemmingsplan.

Tussenuitspraak / bestuurlijke lus

Op 26 mei 2016 heeft de gemeenteraad van Halderberge het voorliggende bestemmingsplan vastgesteld. Het bijbehorende vaststellingsbesluit is opgenomen in Bijlage 7 1e raadsbesluit / vaststellingsbesluit 26 mei 2016 bij dit bestemmingsplan.

Op 12 april 2017 is er uitspraak gedaan inzake het ingediende beroep tegen het bestemmingsplan Rietmade Hoeven. Het voorliggende bestemmingsplan wordt opnieuw vastgesteld naar aanleiding van een tussenuitspraak / bestuurlijke lus van de Raad van State (Uitspraak 201605495/1/R2). De uitspraak van de Raad van State is als bijlage bij dit bestemmingsplan toegevoegd.

Het betoog dat gegrond werd verklaard had betrekking op het waarborgen van de aanleg van een wadi. De Raad van State heeft besloten dat de wadi als voorwaardelijke verplichting in het plan opgenomen moet worden. Vanwege het ontbreken van deze voorwaardelijke verplichting was het plan in zoverre in strijd met artikel 3.1 van de Wet ruimtelijke ordening. De Afdeling bestuursrechtspraak van de Raad van State heeft de raad van de gemeente Halderberge opgedragen om binnen 16 weken na verzending van de uitspraak, - met inachtneming van overweging 7.1 (Uitspraak 201605495/1/R2) het daar omschreven gebrek (met betrekking tot de wadi) te herstellen, en de Afdeling de uitkomst mede te delen en de wijziging van het besluit zo spoedig mogelijk op de wettelijk voorgeschreven wijze bekend te maken.

Naar aanleiding van de uitspraak van de Raad van State is in de bestemming 'Groen' opgenomen dat de gronden mede zijn bestemd voor een wadi.

Het is nu onderdeel van de omgevingsvergunning, zie hieronder toegevoegde sublid bij de gebruiksregels van artikel 5 Wonen.

In het artikel aangaande de bestemming Wonen is een voorwaardelijke verplichting opgenomen onder de gebruiksregels met een koppeling naar de omgevingsvergunning. Hierin is geregeld dat de hoofdgebouwen pas in gebruik kunnen worden genomen als binnen een termijn van twee maanden na oplevering van de laatste woning, binnen de bestemming Groen een wadi is gerealiseerd en deze wordt gehandhaafd. In het betreffende lid is ook de vereiste diepte en bergend vermogen in m3 van de wadi geregeld en tevens de borging van de huisaansluiting op het schoonwater stelsel.

Het eerste raadsbesluit van 26 mei 2016 en de tussenuitspraak van de Raad van State van 12 april 2017 zijn als bijlage Bijlage 7 en Bijlage 8 toegevoegd aan de toelichting van het bestemmingsplan. De versiecode is opgehoogd van C001 naar C002.

Het bestemmingsplan Rietmade Hoeven wordt gewijzigd vastgesteld.

Hoofdstuk 6 Juridische planopzet

6.1 Plansystematiek

Uitgangspunt voor de regels zijn de planregels van bestemmingsplan 'Kom Hoeven'.

6.2 Bestemmingen

6.2.1 Indeling bestemmingen

De regels zijn opgebouwd als volgt:

Hoofdstuk 1: "Inleidende regels" bevat een artikel met begripsbepalingen.
Daarnaast zijn in een apart artikel enkele bepalingen opgenomen omtrent de "wijze van meten". Die bepalingen zijn van belang voor een juiste interpretatie van de bouwregels.

Hoofdstuk 2: "Bestemmingsregels". In dit hoofdstuk zijn artikelsgewijs de regels behorende bij de specifieke bestemming neergelegd. De artikelen zijn opgezet volgens een vast stramien (conform SVBP 2012), in zoverre deze relevant zijn

voor het betreffende artikel:

  • Bestemmingsomschrijving

hierin is bepaald voor welke doeleinden de gronden bestemd zijn (m.a.w. voor welk gebruik de gronden zijn gereserveerd).

  • Bouwregels

in deze bepaling is aangegeven aan welke maatvoeringseisen de bebouwing binnen de betreffende bestemming moet voldoen.

  • Afwijken van de bouwregels

in deze bepaling zijn afwijkingsbevoegdheden toegekend aan het bevoegd gezag (doorgaans burgemeester en wethouders) ten aanzien van bepaalde bouwregels door middel van het verlenen van een (binnenplanse) omgevingsvergunning.

  • Specifieke gebruiksregels

in de bestemmingsregelingen is in bepaalde situaties expliciet aangegeven welk gebruik in ieder geval in strijd wordt geacht met de aan de gronden gegeven bestemming.

  • Afwijken van de gebruiksregels

deze bepaling bevat afwijkingsbevoegdheden van de gebruiksregels.

  • Omgevingsvergunning voor het uitvoeren van werken, geen bouwwerken zijnde, en van werkzaamheden

in deze bepaling is opgenomen voor welke werken en werkzaamheden een omgevingsvergunning vereist is.


Hoofdstuk 3: "Algemene regels" bevat bepalingen die van toepassing zijn op het gehele plangebied. De volgende artikelen zijn in dit hoofdstuk opgenomen:

  • Anti-dubbeltelregel

Met de anti-dubbeltelregel wordt geregeld dat grond die reeds eerder bij een verleende omgevingsvergunning voor het bouwen is meegenomen niet nog eens bij de verlening van een nieuwe omgevingsvergunning voor het bouwen mag worden meegenomen. Deze regel is rechtstreeks overgenomen uit het Besluit ruimtelijke ordening.

  • Algemene bouwregels:

In dit artikel is een afwijkingenregeling, een regeling voor ondergeschikte bouwdelen en een regeling voor ondergronds bouwen opgenomen.

  • Algemene gebruiksregels:

In dit artikel is strijdig gebruik opgenomen dat geldt voor alle bestemmingen binnen het bestemmingsplan. Het gaat onder meer om

- een seksinrichting;

- een publieksgerichte aan huis verbonden beroeps- of bedrijfsactiviteit, behoudens indien hiervoor een omgevingsvergunning is verleend of indien deze bestaand is.

  • Algemene aanduidingsregels:

In dit artikel is een regeling opgenomen voor de obstakelvrije zone middels de aanduidingen Luchtvaartverkeerzone 10.

  • Algemene afwijkingsregels

In dit artikel zijn enkele algemene afwijkingsregels opgenomen, zoals een afwijking van de maatvoering van 10 %.

Hoofdstuk 4: "Overgangs- en slotregel" bevat bepalingen die min of meer losstaan van de bestemmingsplanbepalingen, en worden om die reden in een apart hoofdstuk opgenomen. Hierin staan opgenomen:

  • Overgangsrecht

in dit artikel is onder meer aangegeven dat de bestaande bouwwerken dan wel vergunde rechten tot het oprichten van een bouwwerk worden gerespecteerd, ook al wijken deze af van het onderhavige bestemmingsplan. In dit artikel is een regeling opgenomen voor bestaande zaken en rechten die niet in overeenstemming zijn met de overige regelingen in dit bestemmingsplan. De regels voor het overgangsrecht zijn overgenomen uit het Besluit ruimtelijke ordening, waarin standaard overgangsrecht voor bestemmingsplannen is opgenomen.

  • Slotregel

in deze bepaling is de officiële benaming van het plan vastgelegd.

6.2.2 Toelichting bestemmingen

In dit hoofdstuk wordt de beheersregeling van het voorliggende bestemmingsplan nader gemotiveerd.

Groen

De bestemming betreft gronden waarop uitsluitend groenvoorzieningen, paden, sport- en spelvoorzieningen, water, waterberging, wadi, parkeren e.d. is toegestaan. Het onderscheid met de bestemming ‘Verkeer’ is gelegen in het feit dat groenvoorzieningen een daadwerkelijk structureel groen karakter hebben en behouden.

Verkeer

Deze bestemming is opgesteld voor de openbare verkeersruimte binnen de woonwijk. De woonstraten, aanliggende trottoirs, parkeerplaatsen, bermen en beplantingen zijn in deze bestemming opgenomen.

Een algemene bestemming voor zowel de verharding als het aanliggende groen maakt een eventuele herinrichting van het openbare gebied eenvoudiger te regelen.

Wonen

Het plangebied heeft overwegend een woonfunctie. Bij het beheer van de woningvoorraad wordt het gemeentebestuur regelmatig geconfronteerd met vragen ten aanzien van de uitbreiding van de woning en het bouwen van bijgebouwen e.d. Het bestemmingsplan geeft het noodzakelijk kader aan.

Het gebruik van de woning richt zich natuurlijk op wonen. Er kan in de praktijk ook een behoefte worden waargenomen om aan huis een beroep of bedrijf uit te oefenen. Deze vormen van medegebruik kunnen leiden tot overlast op de

omgeving; vooral wanneer activiteiten publieksaantrekkend zijn, is die kans aanwezig. Daarom is gekozen voor een regeling waarbij een aan huis verbonden beroeps- of bedrijfsactiviteit bij recht is toegestaan, mits het gebruik ondergeschikt blijft aan de woonfunctie. Publieksgerichte beroeps- of bedrijfsactiviteiten zijn enkel mogelijk via een omgevingsvergunning en onder een aantal stringente voorwaarden.

In het kader van het beleid omtrent arbeidsmigranten is in de woonbestemming een regeling opgenomen teneinde kamerverhuur toe te kunnen staan middels een omgevingsvergunning.

Bouw- en gebruiksregeling

In de bestemming "Wonen" wordt een regeling gegeven ten aanzien van de opbouw en het gebruik van de woonkavels.

Daarbij is een bouwvlak een vlak voor bijgebouwen aangegeven op de verbeelding.

In de gebruiksregels lid 5.4.3 is een voorwaarlijke verplichting, gekoppeld aan de omgevingsvergunning, opgenomen voor het realiseren en instandhouden van de wadi. Hierin is geregeld dat de hoofdgebouwen pas in gebruik kunnen worden genomen als binnen een termijn van twee maanden na oplevering van de laatste woning, binnen de bestemming Groen een wadi is gerealiseerd en deze wordt gehandhaafd. In het betreffende lid is ook de vereiste diepte van 65 cm en bergend vermogenvan 225 m3 van de wadi geregeld en tevens de borging van de huisaansluiting op het schoonwater stelsel.