direct naar inhoud van 2.2 Ligging en begrenzing
vastgesteld
NL.IMRO.1586.PBBUI101-VG01

2.2 Ligging en begrenzing

Het plangebied is gelegen in het buitengebied van de gemeente Oost Gelre. In de directe nabijheid zijn enkele agrarische bedrijven gelegen alsmede burgerwoningen.

afbeelding "i_NL.IMRO.1586.PBBUI101-VG01_0001.png"

Omgeving plangebied Koemaatsdijk te Lichtenvoorde

afbeelding "i_NL.IMRO.1586.PBBUI101-VG01_0002.png"

Het vakantiepark Résidence Lichtenvoorde

afbeelding "i_NL.IMRO.1586.PBBUI101-VG01_0003.png"

Plangebied met aangegeven chalets waarvoor aanvraag is ingediend.

2.2.1 Vigerende situatie

Het plangebied is gelegen in het bestemmingsplan Buitengebied 2011. Het perceel heeft de bestemming 'Recreatie - Verblijfsrecreatie' met nadere aanduiding 'specifieke vorm van recreatie - chaletterrein'. Hier mag bedrijfsmatige exploitatie plaatsvinden van een verblijfsrecreatieterrein door middel van chalets. In het vigerende bestemmingsplan is aangegeven dat de maximale bebouwde oppervlakte 55 m2 bedraagt inclusief bijbehorende inpandige aan- en uitbouwen en bijgebouwen.

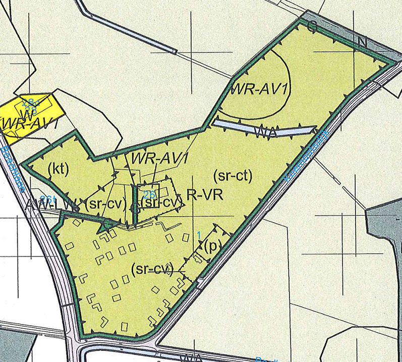
afbeelding "i_NL.IMRO.1586.PBBUI101-VG01_0004.png"

Bestemming perceel Koemaatsdijk te Lichtenvoorde