direct naar inhoud van Toelichting
Plan: Partiële herziening Vinkelse Slagen
Status: vastgesteld
Plantype: bestemmingsplan
IMRO-idn: NL.IMRO.0796.0002357-1401

Toelichting

Hoofdstuk 1 Inleiding

1.1 Aanleiding

Op 22 oktober 2013 heeft de gemeenteraad van de voormalige gemeente Maasdonk het bestemmingsplan "Vinkelse Slagen" vastgesteld. Dit bestemmingsplan (hierna "het moederplan") is op 14 januari 2014 onherroepelijk geworden. De gemeente Maasdonk is op 1 januari 2015 heringedeeld. De kern Vinkel is bij deze herindeling bij de gemeente 's-Hertogenbosch gevoegd.

Bij de totstandkoming van het moederplan is nog rekening gehouden met het woningbouwprogramma van de gemeente Maasdonk. Hierdoor waren er voor het plan tot het jaar 2023 (fase 1 en 2) circa 130 woningen beschikbaar. Fase 1 van het plan voorzag in 67 reguliere en 10 zogenaamde "Ruimte voor Ruimte"- woningen. Het moederplan Vinkelse Slagen voorziet hierin.

Deze partiële herziening van het bestemmingsplan "Vinkelse Slagen" is opgesteld om meer te kunnen voldoen aan de vraag naar kleinere woningen op kleinere kavels in dit uitbreidingsgebied. Dit bestemmingsplan maakt mogelijk dat fase 1 van de Vinkelse Slagen met maximaal 9 extra woningen wordt verdicht, waarmee dan in totaal 86 woningen mogelijk worden gemaakt. Bovendien beoogt het bestemmingsplan een versterking van de stedenbouwkundige structuur door een verbetering van de situering van de woningen in het plangebied. Dit gaat dan specifiek om de voorgevels van de woningen; er wordt mogelijk gemaakt dat woningen aan alle zijden met de voorgevel gesitueerd kunnen worden. Tot slot wordt uitgesloten dat in het noordelijk deel van het plangebied rijwoningen kunnen komen, om zo beter recht te doen aan de stedenbouwkundige opzet.

1.2 Leeswijzer

In de volgende hoofdstukken wordt aandacht besteed aan de verschillende aspecten van de ruimtelijke onderbouwing. Hoofdstuk 2 geeft de bestaande situatie weer volgens het bestemmingsplan "Vinkelse Slagen". Het geldende beleid wordt uiteengezet in hoofdstuk 3. In hoofdstuk 4 wordt het nieuwe plan beschreven en wordt ingegaan op de ruimtelijke aspecten stedenbouw, woningbouw en op de milieuaspecten en omgevingsaspecten.

De meeste milieu - en omgevingsaspecten zoals bodemkwaliteit, luchtkwaliteit, kabels en leidingen, flora en fauna, cultuurhistorie en archeologie zijn in het kader van het bestemmingsplan 'Vinkelse Slagen' onderzocht. De voorgenomen verdichting heeft hier geen invloed op. Kortheidshalve wordt voor planologische toetsing van deze aspecten naar de toelichting en de bijlage van het geldende bestemmingsplan 'Vinkelse Slagen' gewezen.

In hoofdstuk 5 wordt ingegaan op de economische uitvoerbaarheid van het plan. De juridisch bestuurlijke aspecten worden besproken in hoofdtuk 6. In hoofdstuk 7 zal na de voorontwerpprocedure ingegaan worden op het resultaat van het vooroverleg en de inspraakprocedure en het resultaat van de ontwerpfase.

Hoofdstuk 2 Huidige situatie

2.1 Geldend bestemmingsplan

Het geldend bestemmingsplan "Vinkelse Slagen" is op 22 oktober 2013 vastgesteld en op 14 januari 2014 onherroepelijk geworden. In het plan is gefaseerd de bouw van in totaal 127 woningen gepland. De eerste fase voorzag aanvankelijk in de bouw van 77 woningen. Dit is met maximale aantallen wooneenheden op de verbeelding van het bestemmingsplan vastgelegd in de bestemming Wonen.

Voor de tweede fase zijn met een uitwerkingsbevoegdheid eveneens woningen gepland (ca. 50 stuks). Naast de genoemde woningen voorziet het bestemmingsplan in de aanleg van groen, wegen, waterberging en natuur.

In het gebied van fase 1 is in het geldende bestemmingsplan ook vastgelegd dat uitsluitend de bouw van grondgebonden woningen is toegestaan. In vijf deelgebieden van fase 1 geldt voor de woningen een maximale goot -en bouwhoogte van respectievelijk 4,5 en 8,5 meter. In de andere zeven deelgebieden van fase 1 geldt voor de woningen een maximale goot -en bouwhoogte van respectievelijk 6 en 11 meter. Ook zijn in alle deelgebieden voorgevellijnen opgenomen. De woningen dienen in deze lijn of maximaal twee meter daarachter te worden gebouwd.

De marktontwikkelingen en gemeentelijke woningbouwopgaves geven aanleiding om fase 1 van de Vinkelse Slagen te verdichten met extra woningen. Dit past niet binnen de maximale aantallen wooneenheden zoals opgenomen per deelgebied op de verbeelding van het geldende bestemmingsplan. Bovendien is meer flexibiliteit gewenst bij de situering van de woningen ten aanzien van de positionering van de voorzijde; de nu verplichte situering van de voorgevels van woningen in het bestemmingsplan sluit hier niet op aan. Ook is het niet gewenst dat in het noordelijk deel van het plangebied rijwoningen kunnen worden gerealiseerd. Conform de stedenbouwkundige opzet zijn hier vrijstaande woningen en twee-onder-een-kapwoningen gewenst.

Derhalve wordt het bestemmingsplan dit plan partieel herzien.

afbeelding "i_NL.IMRO.0796.0002357-1401_0001.jpg"

Figuur 1: geldend bestemmingsplan Vinkelse Slagen

2.2 Plangebied en ligging

De nieuwe woonwijk Vinkelse Slagen wordt aansluitend aan de dorpskern van Vinkel gerealiseerd. De uitbreiding is aan de noordzijde van Vinkel voorzien. Vinkel ligt in het zuidoosten van de gemeente aan de zuidzijde van de A59.

Het plangebied van deze partiële herziening ziet uitsluitend op fase 1 van de Vinkelse Slagen. Echter, het plangebied omvat niet het volledige projectgebied van fase 1. Slechts waar aanpassingen van woningaantallen en waar wijzigingen in de situering van voorgevels van woningen gewenst zijn, wordt het geldende bestemmingsplan herzien. De volgende onderdelen uit fase 1 worden dan ook niet meegenomen in de partiële herziening:

  • De reeds gebouwde Ruimte-voor-Ruimte woningen aan de noord -en oostzijde van het gebied (9 stuks)
  • De twee nieuw te bouwen woningen aan de Lindenlaan 9
  • De groenzone aan de westzijde en de groenzone aan de oostzijde

In onderstaand figuur is het plangebied opgenomen en de ligging weergegeven.

afbeelding "i_NL.IMRO.0796.0002357-1401_0002.jpg"

Figuur 2: ligging plangebied partiële herziening bestemmingsplan Vinkelse Slagen

2.3 Ruimtelijke structuur

In de huidige situatie is de wegenstructuur al aangelegd conform het oorspronkelijke stedenbouwkundige plan (zie paragraaf 4.2). Aan de noordzijde zijn al enkele woningen gebouwd of in aanbouw. De huidige (wegen)structuur en stedenbouwkundige opzet zijn leidraad geweest voor de herverkaveling. De herverkaveling leidt dan ook niet tot aanpassingen hiervan.

De entree van het plangebied bevindt zich aan de Lindenlaan. Achter de bestaande bebouwing aan dit dorpslint bevindt zich de Vinkelse Slagen. In de oorspronkelijke opbouw van de Vinkelse Slagen is er sprake van meer intensieve bebouwing aan de zuidzijde van het plangebied en meer extensievere bebouwing aan de noordzijde. Dit is in de huidige situatie duidelijk zichtbaar met de grote 'Ruimte-voor-Ruimte' kavels aan de noordzijde die al gebouwd of in aanbouw zijn. De herverkaveling vindt met name in het zuidelijk deel plaats, waardoor de opbouw van dicht naar open in noordelijke richting gehandhaafd blijft.

Hoofdstuk 3 Beleidskader

3.1 Inleiding

Ieder bestemmingsplan moet worden getoetst aan rijks-, provinciaal -, regionaal - en gemeentelijk beleid. Op deze manier ontstaat er een goed beeld van het kader waarbinnen het bestemmingsplan mag worden opgesteld. Het beleidskader moet een volledig beeld opleveren van het relevante planologische beleid dat voor het gebied is vastgelegd en de ruimtelijke overwegingen die binnen dit kader zijn gedaan om tot een invulling te komen.

3.2 Rijksbeleid

3.2.1 Structuurvisie Infrastructuur en Ruimte

Op 13 maart 2012 is de Structuurvisie Infrastructuur en Ruimte in werking getreden. Met de Structuurvisie brengt het Rijk de ruimtelijke ordening zo dicht mogelijk bij burgers en bedrijven, laat het meer over aan gemeenten en provincies en komen de burgers en bedrijven centraal te staan. Het Rijk kiest voor een selectieve inzet van rijksbeleid op 13 nationale belangen. Buiten deze 13 belangen hebben decentrale overheden beleidsvrijheid:

  • 1. een excellent en internationaal bereikbaar vestigingsklimaat in de stedelijke regio's met een concentratie van topsectoren;
  • 2. ruimte voor het hoofdnetwerk voor (duurzame) energievoorziening en de energietransitie;
  • 3. ruimte voor het hoofdnetwerk voor vervoer van (gevaarlijke) stoffen via buisleidingen;
  • 4. efficiënt gebruik van de ondergrond;
  • 5. een robuust hoofdnetwerk van weg, spoor en vaarwegen rondom en tussen de belangrijkste stedelijke regio's inclusief de achterlandverbindingen;
  • 6. betere benutting van de capaciteit van het bestaande mobiliteitssysteem van weg, spoor en vaarwegen;
  • 7. het instandhouden van de hoofdnetwerken van weg, spoor en vaarwegen om het functioneren van de netwerken te waarborgen;
  • 8. verbeteren van de milieukwaliteit (lucht, bodem, water) en bescherming tegen geluidsoverlast en externe veiligheidsrisico's;
  • 9. ruimte voor waterveiligheid, een duurzame zoetwatervoorziening en klimaatbestendige stedelijke (her)ontwikkeling;
  • 10. ruimte voor behoud en versterking van (inter)nationale unieke cultuurhistorische en natuurlijke kwaliteiten;
  • 11. ruimte voor een nationaal netwerk van natuur voor het overleven en ontwikkelen van flora- en faunasoorten;
  • 12. ruimte voor militaire terreinen en activiteiten;
  • 13. zorgvuldige afwegingen en transparante besluitvorming bij alle ruimtelijke plannen.

Het laatstgenoemde nationaal belang houdt in dat bij stedelijke ontwikkelingen de ladder van duurzame verstedelijking (zoals opgenomen in artikel 3.1.6 lid 2 Besluit ruimtelijke ordening) dient te worden gemotiveerd.

3.2.2 Besluit Algemene Regels Ruimtelijke Ordening

Op 30 december 2011 is het Besluit algemene regels ruimtelijke ordening (Barro) in werking getreden. Dit besluit stelt eisen aan een bestemmingsplan daar waar het gaat om gebieden van nationaal belang:

  • rijksvaarwegen;
  • project Mainportontwikkeling Rotterdam;
  • kustfundament;
  • grote rivieren;
  • waddenzee en waddengebied;
  • defensie;
  • hoofdwegen en hoofdspoorwegen;
  • elektriciteitsvoorziening;
  • buisleidingen van nationaal belang voor vervoer van gevaarlijke stoffen;
  • ecologische hoofdstructuur;
  • primaire waterkeringen buiten het kustfundament;
  • IJsselmeergebied (uitbreidingsruimte);
  • erfgoederen van uitzonderlijke universele waarde.

De Vinkelse Slagen heeft geen invloed op de bovenstaande belangen. Het Barro stelt dan ook geen extra eisen aan het bestemmingsplan plan.

3.2.3 Ladder van duurzame verstedelijking

Eén van de nationale belangen heeft betrekking op 'zorgvuldige afwegingen en transparante besluitvorming bij alle ruimtelijke plannen'. Het rijk behartigt dit belang met de 'ladder voor duurzame verstedelijking'. Deze 'ladder voor duurzame verstedelijking' is als procesvereiste vastgelegd in artikel 3.1.6 lid 2 van het Besluit ruimtelijke ordening (Bro):

De toelichting bij een bestemmingsplan dat een nieuwe stedelijke ontwikkeling mogelijk maakt, bevat een beschrijving van de behoefte aan die ontwikkeling, en, indien het bestemmingsplan die ontwikkeling mogelijk maakt buiten het bestaand stedelijk gebied, een motivering waarom niet binnen het bestaand stedelijk gebied in die behoefte kan worden voorzien.

De Vinkelse Slagen wordt gezien als een stedelijke ontwikkeling (artikel 1.1.1 Bro) omdat het betrekking heeft op een woning(bouw)locatie. Er is in voorliggend plan sprake van een partiële bestemmingsplanherziening waarin de toevoeging van woningen is voorzien. De vraag is of deze toevoeging een stedelijke ontwikkeling betreft. Uit jurisprudentie blijkt dat de ondergens van het aantal woningen om als stedelijke ontwikkeling te kunnen worden aangemerkt nog niet eenduidig is, maar vooralsnog op ongeveer 14 wordt gezet. In dat geval zou met deze toevoeging op zichzelf (9 woningen) niet van een stedelijke ontwikkeling kunnen worden gesproken. Het plan maakt echter deel uit van de woningbouwontwikkeling Vinkelse Slagen fase 1, die weliswaar al een geldend planologisch kader heeft, maar met deze herziening opnieuw grotendeels wordt vastgesteld. Derhalve wordt zekerheidshalve deze laddertoets hieronder doorlopen.

Uit onderstaande blijkt dat de woningbouw in Vinkelse Slagen voorziet in een actuele behoefte.

Volgens de laatste bevolkingsprognoses van de provincie Noord-Brabant (2017) moet de woningvoorraad van 's-Hertogenbosch de komende jaren nog fors groeien. Van 70.255 woningen in 2017 naar 79.345 woningen in 2030 en 83.425 woningen in 2040 in het hoge scenario. De vraag naar woonruimte in 's-Hertogenbosch is en blijft dus groot. Om deze behoefte te kunnen opvangen, dienen er voldoende woningen te worden gebouwd.

De regionale woningbouwafspraken zijn vastgelegd in de Regionale Agenda's Wonen, onderdeel van het Regionaal Ruimtelijk Overleg (RRO). 's-Hertogenbosch maakt deel uit van het RRO Noordoost-Brabant. In de Regionale Agenda's Wonen worden de woningbouwcontingenten voor de komende tien jaar vastgelegd voor de verschillende regio's binnen de provincie Noord-Brabant. In de Regionale Agenda Wonen voor Noordoost-Brabant d.d. 8 december 2016 zijn de woningbouwopgaven opnieuw bepaald. De woningbouwopgave in de gemeente 's-Hertogenbosch is begroot op 7.365 woningen in de periode 2016 - 2026. Dit aantal betreft de netto toename van de woningvoorraad, exclusief vervangende woningbouw door sloop. De harde plancapaciteit betreft slechts circa 4.000 woningen. Er dienen dus nog veel woningen in planvorming te worden opgenomen.

Het plan Vinkelse Slagen is onderdeel van deze woningbouwprogrammering. Met het plan is dus rekening gehouden met betrekking tot de woningbouwprogrammering in de regio. Met het realiseren van de voorgenomen ontwikkeling wordt bijgedragen aan de genoemde opgave en de harde plancapaciteit. Het voornemen is daarnaast tevens in overeenstemming met de gemeentelijke woonvisie. Het voorgenomen initiatief, waarin maximaal 9 nieuwe woningen worden toegevoegd, voorziet, gelet op de harde plancapaciteit in verhouding tot de woningbouwopgave tot 2026 en daarna, in een actuele lokale en regionale behoefte, als bedoeld in artikel 3.1.6 lid 2 Bro.

De nieuwe woningen worden gerealiseerd binnen het in (ontwikkeling zijnde) bestaand stedelijk gebied (artikel 3.1.6 lid 2 Bro). In het moederplan is reeds gekozen voor deze ontwikkelingslocatie en is daarin de verantwoording opgesteld waarom niet binnen bestaand stedelijk gebied kan worden ontwikkeld. Voor de motivering hiervan wordt dan ook mede naar deze paragraaf verwezen: paragraaf 3.3.2 Bestemmingsplan Vinkelse Slagen. Voor het gemeentelijk woningbouwprogramma, ca. 130 woningen, dat is gepland voor de Vinkelse Slagen in Vinkel, is geen of onvoldoende ruimte te vinden door herstructurering of transformatie van bestaande percelen in Vinkel. Deze verdichting in deze partiele herziening bouwt voort op deze keuze en wordt derhalve gebouwd binnen het te ontwikkelen bestaand stedelijk gebied.

De beoogde verdichting voldoet aan de vereisten van de 'ladder voor duurzame verstedelijking'.

3.3 Provinciaal beleid

3.3.1 Structuurvisie Ruimtelijke Ordening

De structuurvisie ruimtelijke ordening 2010 (partieel herzien in 2014) geeft de hoofdlijnen van het ruimtelijk beleid van de provincie Noord-Brabant weer tot en met 2025. Het beleid is gestoeld op een evenwicht van het milieu (planet), de mens (people) en de markt (profit) in ruimtelijke kwaliteit. Hierbij is het van groot belang om bestaande kwaliteiten te benutten en als uitgangspunt te nemen bij ontwikkelingen.

Noord-Brabant heeft de ambitie om een goede mix van wonen, werken en voorzieningen te creëren. De leefbaarheid in woonmilieus moet van voldoende kwaliteit zijn. Dynamische stadscentra, vitale plattelandskernen, eigen identiteit en regionale afstemming zijn enkele uitgangspunten. Daarnaast dienen er voldoende veilige en goed bereikbare werkplekken te zijn voor de bevolking. Steden moet aantrekkelijk blijven voor diverse bevolkingsgroepen en dienen garant te staan voor het aanbieden van (bovenlokale) voorzieningen.

Voor wat betreft de markt is het van belang dat de gunstige ligging wordt benut. De ligging ten opzichte van andere economische clusters in Europa is uitstekend. Met de (internationale) bereikbaarheid is het echter slechter gesteld. Dit vormt dan ook een belangrijk uitgangspunt in het provinciale beleid. Belangrijk is om netwerken te vormen, tussen de kennisindustrie, regionale economische clusters en Europese clusters. Daarnaast is veiligheid een belangrijk aspect. Goederenvervoer per spoor zal in de toekomst om stedelijke gebieden heen geleid moeten worden.

Het landschap van Noord-Brabant is vrij karakteristiek. Er zijn veel beeldbepalende elementen en natuurlijke waarden in het landschap te vinden. Deze dienen beschermd en ontwikkeld te worden. Met name het watersysteem is erg belangrijk. Het landschap heeft ook een functie als werkterrein, voornamelijk voor de agrarische sector. Schaalvergroting van deze landbouw wordt geconcentreerd in speciaal aangewezen gebieden. De landbouw komt daarnaast steeds vaker in een verbrede vorm voor. Dit wordt gestimuleerd, met name ook het landschapsbeheer.

afbeelding "i_NL.IMRO.0796.0002357-1401_0003.png"

Figuur 3: Uitsnede structurenkaart provinciale structuurvisie Noord-Brabant met ligging plangebied

Het plangebied is op de structurenkaart, zoals hierboven weergegeven in figuur 3, gedeeltelijke gelegen binnen de aanduiding 'Kernen in het landelijke gebied' en gedeeltelijk binnen het 'Zoekgebied verstedelijking'. In de kernen in het landelijk gebied met de bijbehorende zoekgebieden voor verstedelijking wordt de lokale behoefte voor verstedelijking opgevangen (wonen, werken en voorzieningen). De provincie vraagt gemeenten om in regionaal verband afspraken te maken over de verdeling van het programma voor wonen en werken. Regionale afstemming vindt plaats in de regionale agenda´s voor wonen.

Over de ruimtelijke kwaliteit is de provincie van mening dat de gemeenten in hun ruimtelijke plannen aandacht moeten bieden aan de wijze waarop stedelijke ontwikkelingen het eigen karakter van de kernen en de relatie met het landschap kunnen versterken. De stedelijke ontwikkelingen moeten qua maat en schaal bij de kern passen. De ontwerpopgave hangt daarnaast samen met de historische gegroeide identiteit van de kern en omliggend landschap en met de fase van verstedelijking van de kern (suburbaan, dorps of plattelandskern). De kern Vinkel is geleidelijk gegroeid maar heeft haar dorpse karakter behouden en kan om die reden als dorpse kern worden beschouwd.

De beoogde toename van woningen binnen het plangebied past binnen de afspraken in de regionale agenda's voor wonen (zie paragraaf 3.2.3). De verdichting zal dusdanig plaatsvinden dat het dorpse karakter van Vinkel behouden blijft.

3.3.2 Verordening Ruimte Noord-Brabant

Uitgangspunt van zorgvuldig ruimtegebruik is dat de ruimte binnen het bestaand stedelijk gebied zo goed mogelijk wordt benut. Als er toch nieuw ruimtebeslag nodig is dan kan dit in afwijking van het verbod op nieuwvestiging alleen in de "zoekgebieden voor stedelijke ontwikkeling" of -onder specifieke voorwaarden- in de gebieden "integratie stad-land". De zoekgebieden voor stedelijke ontwikkeling zijn gebieden waar, gelet op de ruimtelijke kwaliteiten, verantwoorde uitbreidingsmogelijkheden liggen. Uiteraard dient hierbij ook ingegaan te worden op het aspect bevordering ruimtelijke kwaliteit waaronder zorgvuldig ruimtegebruik en de kwaliteitsverbetering landschap.

Het planvoornemen betreft een verdichting van woningen binnen de aanduiding "zoekgebied voor stedelijke ontwikkeling". Binnen deze aanduiding zijn stedelijke ontwikkelingen mogelijk, mits deze aansluitend aan het stedelijk gebied (art. 8, lid 2, onder a van de Verordening) en voldoende rekening wordt gehouden met de aanwezige ruimtelijke kwaliteiten en structuren (art. 8, lid 2, onder b). In het moederplan Vinkelse Slagen is aangetoond dat aan deze voorwaarden is voldaan (paragraaf 3.3.2 van de Toelichting).

afbeelding "i_NL.IMRO.0796.0002357-1401_0004.png"

Figuur 4: Uitsnede integrale plankaart met structuren en aanduidingen Verordening Ruimte 2014 provincie Noord Brabant met ligging plangebied

In het voorliggende bestemmingsplan is de noodzaak tot verdichting van de woningbouwlocatie Vinkelse Slagen verantwoord. Een goede landschappelijke en stedenbouwkundige inpassing is uitgangspunt van het planvoornemen. Onderdeel van de toelichting is een beschrijving van de toekomstige ruimtelijke structuur en de inpassing daarvan in de directe omgeving. Ook wordt in dit plan de verhouding van de aantallen woningen tot de daarover gemaakte afspraken en de beschikbare harde plancapaciteit beschreven (zie paragraaf 3.2.3). Daarmee wordt voldaan aan artikel 4.3 en 39.4 van de Verordening Ruimte.

3.4 Gemeentelijk beleid

3.4.1 Stedenbouwkundige visie "Uitbreiding Vinkel"

In 2005 was er voor de kern Vinkel een woningbouwopgave van ongeveer 133 woningen. De gemeenteraad van de voormalige gemeente Maasdonk heeft bij de vaststelling van het bestemmingsplan Kernen Maasdonk op 14 februari 2006 het college de opdracht gegeven een nader onderzoek met betrekking tot de mogelijkheden in relatie met de ruimtelijke aspecten voor een uitbreiding Vinkel. In dit onderzoek moesten ook de initiatieven van inbreiding en herstructurering, die tijdens de bestemmingsplanprocedure waren ingediend, op hun merites worden onderzocht. Dit heeft geresulteerd in de Stedenbouwkundige Visie uitbreiding Vinkel die op 15 april 2008 door de gemeenteraad van de voormalige gemeente Maasdonk is vastgesteld. De visie geeft een wensbeeld waarin Vinkel zich door middel van inbreiding/herstructurering en uitbreiding verantwoord kan ontwikkelen.

Bij de vaststelling van de visie werd geconcludeerd voor inbreiding en herstructurering de gemeente in Vinkel afhankelijk is van particulieren. Bovendien werd de ruimte binnen de bestaande structuur van Vinkel als te klein beschouwd om stedenbouwkundig verantwoord de totale opgave te kunnen ontwikkelen. Daarom heeft de gemeenteraad van de voormalige gemeente Maasdonk op basis van deze visie ook gekozen voor een uitbreiding. Op 22 september 2009 besloot de gemeenteraad uiteindelijk de uitbreiding aan de noordoostzijde van de kern Vinkel (de huidige Vinkelse Slagen) te laten plaatsvinden.

Inmiddels is de kern Vinkel bij de gemeente 's-Hertogenbosch gevoegd en heeft de provincie het beleid voor kernen in het landelijk gebied gewijzigd. Met respect voor het landelijk karakter van de kern Vinkel mag in de Vinkelse Slagen gebouwd worden uit de prognose van de gemeente 's-Hertogenbosch.

De verdichting van het nieuwe woongebied respecteert het landelijke karakter van de kern en past dan ook binnen de stedenbouwkundige visie "Uitbreiding Vinkel". In hoofdstuk 4, 'Planbeschrijving' onder paragraaf 4.2 'Stedenbouw' wordt hier nader op ingegaan.

3.4.2 Nota Wonen

Het woonbeleid van de gemeente 's-Hertogenbosch is vastgelegd in de Nota Wonen 2012 die is vastgesteld door de gemeenteraad op 11 september 2012. De ambitie voor het woonbeleid van 's-Hertogenbosch is het creëren van een evenwichtige woningmarkt met een gedifferentieerd en aantrekkelijk aanbod van woningen en woonmilieus zodat mensen naar tevredenheid in onze stad kunnen wonen en leven. Er wordt gestreefd naar een stad waar voldoende, betaalbare en passende woningen zijn en voldoende keuzemogelijkheden in gevarieerde en sterke buurten waarin mensen zich thuis kunnen voelen.

Deze ambitie is in de Nota Wonen 2012 uitgewerkt in vier speerpunten van beleid: voldoende woningen, betaalbaar wonen, passend wonen, in sterke en vitale buurten.

De beleidsinzet van de gemeente voor woningbouw is dan als volgt:

  • voorzien in de toekomstige woningbehoefte door te streven naar de realisatie van gemiddeld 700 (met een bandbreedte van 500 tot 800) nieuwe woningen per jaar in de periode tot 2030;
  • voorzien in de behoefte aan voldoende betaalbaar wonen voor specifieke doelgroepen door minimaal 25% van de nieuwbouw in het sociale segment (huur en koop) te realiseren. Dit percentage kan per woningbouwlocatie verschillen, van maatwerk kan sprake zijn;
  • het vergroten van de woningdifferentiatie en -variatie in buurten en wijken, waardoor enerzijds het soms eenzijdige woningaanbod in buurten wordt doorbroken en anderzijds de keuzemogelijkheden voor woonconsumenten worden vergroot.
  • het innemen van een positieve en proactieve houding t.o.v. (kansrijke) initiatieven, door (binnen wettelijke kaders) meer ruimte te bieden, meer flexibiliteit en maatwerk te leveren bij bouwplanontwikkeling;
  • woonconsumenten meer mogelijkheden geven om hun woonwensen te realiseren door middel van o.a. (collectief) particulier opdrachtgeverschap.

Daarnaast is begin april 2017 de Woonagenda 2017/2018 door de gemeenteraad vastgesteld. Het betreft de actualisatie van het woonbeleid zoals geformuleerd in de Nota Wonen. De belangrijkste uitgangspunten van de Woonagenda zijn:

• Opgave 1 - Versnellen van de woningproductie en slim programmeren van nieuwe woonmilieus

• Opgave 2 - Betaalbaar en bereikbaar wonen: balans op de woningmarkt in een ongedeelde stad

• Opgave 3 - Bestaande woningen verduurzamen en wijken vitaal houden

• Opgave 4 - Samen zorgen: passend woonzorgaanbod in een inclusieve samenleving

Onder het versnellen van de woningproductie wordt specifiek uitgegaan van een productie van 8.000 woningen in de koop -en huursector tot en met 2025. Dit plan draagt bij aan verschillende onderdelen van de Woonagenda (betaalbaar wonen, versnellen woonproductie), en ook wordt rekening gehouden met het gemeentelijk beleid om ook een deel van de woningbouwopgaves in het sociale en middeldure huursegment te bouwen. Met de verdichting van het aantal woningen in het plangebied komt het plan meer overeen met de woonbeleidsopgaven van de gemeente.

In hoofdstuk 4 'Planbeschrijving' in paragraaf 4.1 'Woningbouw' wordt op bovenstaande nader ingegaan.

3.4.3 Waterplan

Onlangs is het Waterplan "Waterstad 2016 - Beleidsplan voor een klimaatbestendig, robuust en mooi watersysteem" (31 januari 2017) vastgesteld door de gemeenteraad. Het doel van het waterplan is een klimaatbestendig, robuust en mooi watersysteem te bewerkstelligen in de gemeente 's-Hertogenbosch. Het Waterplan betreft een koepelplan voor alle waterzaken. Het gaat daarbij om de gewenste inrichting en het beheer van oppervlaktewater en grondwater, als ook om de afvoer van hemelwater en afvalwater.

Het Waterplan omvat het gemeenschappelijk beleid van gemeente en de waterschappen. De acties die door gemeente en waterschappen worden uitgevoerd, zijn opgenomen in het uitvoeringsprogramma dat loopt van 2016 tot 2020. Er wordt ingezet op het treffen van specifieke maatregelen om het watersysteem robuuster en aantrekkelijker te maken, en op het nog meer versterken van de integratie met andere beleidsvelden.

In hoofdstuk 4 Planbeschrijving onder paragraaf 4.4 'Waterparagraaf' wordt hier nader op ingegaan.

3.4.4 Gemeentelijk Verkeers- en Vervoersplan (de GVVP)

De gemeente voormalige Maasdonk heeft alle wegen duurzaam veilig gecategoriseerd. Daarom vallen alle wegen binnen de bebouwde kom binnen een 30 km/uur regime. In bestaande woonwijken heeft dit onder andere geleid tot herinrichting van de straten of aanleg van extra snelheidsbeperkende voorzieningen.

De wegen in de Vinkelse Slagen zullen dusdanig worden vormgegeven dat met zo min mogelijk snelheidsbeperkende maatregelen aan dit 30 km/uur regime kan worden voldaan.

3.4.5 Nota Parkeernormering

Voor ontwikkelingen op het gebied van de ruimtelijke ordening heeft de gemeente 's-Hertogenbosch een eigen parkeernormenbeleid vastgesteld. Dit beleid is vastgelegd in de "Nota Parkeernormering 2016", die op 21 september 2016 is vastgesteld. De nota geeft aan hoeveel parkeerplaatsen per functie en per stadsdeel gerealiseerd dienen te worden bij nieuwbouw. De Vinkelse Slagen is in de Nota ingedeeld in “Overige kernen” (zone 5).

In het bestemmingsplan worden deze gemeentelijke parkeernormen als verplicht kader gesteld. Dit is geborgd in de planregels. In hoofdstuk 4 'Planbeschrijving' onder paragraaf 4.3 'Verkeer en parkeren' wordt hier nader op ingegaan.

3.4.6 Nota Grondbeleid

In de Nota Grondbeleid 2005 (februari 2005) heeft de gemeenteraad primair de kaders vastgesteld voor het door het college te voeren grondbeleid. Grondbeleid wordt door de gemeente 's-Hertogenbosch gezien als het beleid dat, ten behoeve van de gemeentelijke doelstellingen op het gebied van ruimtelijke ordening, streeft naar het creëren van ruimte voor wonen, werken, winkelen en recreëren in zowel uitleggebieden als bestaand stedelijk gebied, door het oppakken of ondersteunen van concrete ontwikkelinitiatieven.

In de Nota Grondbeleid zijn vastgelegd: de kaders voor actief en passief grondbeleid, het prijsbeleid, de financiële grondslagen, het risicomanagement en de mate waarin voorzieningen worden opgenomen in de grondexploitatie.

In hoofdstuk 5 'Economische uitvoerbaarheid' wordt hier nader op ingegaan.

3.4.7 Archeologie

Op basis van de archeologische waarden en verwachtingenkaart van de voormalige gemeente Maasdonk is in het verleden geen archeologisch onderzoek verplicht gesteld voor het ontwikkelen van de nieuwbouwlocatie Vinkelse Slagen. Voor het zuidelijke deel was sprake van een onbekende archeologische verwachting. Dit betekent dat er onvoldoende informatie beschikbaar is om tot een gespecificeerde archeologische verwachting te komen. Aangezien het grootste deel van het plangebied een lage archeologische verwachting had, waarvoor geen onderzoek noodzakelijk is, is besloten om ook voor de zone met een onbekende verwachting geen archeologisch onderzoek uit te laten voeren. Het plangebied is inmiddels volledig bouwrijp gemaakt zodat de ondergrond is verstoord. Het is niet aannemelijk dat in dit gebied nog intacte, behoudenswaardige archeologische vindplaatsen aanwezig zijn.

Hoofdstuk 4 Planbeschrijving

4.1 Woningbouw

De eerste plannen voor het uitbreidingsgebied Vinkelse Slagen dateren van voor de crisis op de woningmarkt. Op basis van deze plannen zijn de gronden aangekocht en heeft de gemeente samen met Ontwikkelingsmaatschappij Ruimte voor Ruimte (hierna Ontwikkelingsmaatschappij) een stedenbouwkundige opzet vastgesteld. Hierbij moest rekening worden gehouden met het provinciaal beleid dat voor landelijke kernen alleen voor de natuurlijke aanwas woningen mochten worden gebouwd (migratiesaldo nul). Tot 2020 kon er in Vinkel nog 91 woningen worden gebouwd.

Tijdens de voorbereiding van het bestemmingsplan kwam de economische crisis en de daarmee samenhangende crisis op de woningmarkt. De productie van woningen stond in die tijd op een laag pitje. Gelet op de grootte van het plangebied en de afnemende verkoop van woningen moest de afname planning drastisch worden bijgesteld. Om toch met het plan door te kunnen gaan heeft de gemeente het bestemmingsplan gefaseerd ingebracht. Daarnaast heeft zij 10 "Ruimte-voor-Ruimte"-kavels teruggenomen zodat de Ontwikkelingsmaatschappij bij het project betrokken bleef en het uitbreidingsplan voor de leefbaarheid van Vinkel doorgang kon vinden. Het bestemmingsplan Vinkelse Slagen is op 22 oktober 2013 vastgesteld en op 14 januari 2014 onherroepelijk geworden.

De afgelopen jaren is de woningmarkt echter aan veel veranderingen onderhevig. De koopwoningmarkt is de afgelopen jaren duidelijk hersteld. Het aantal transacties is weer op het niveau van voor de crisis. De koopwoningprijzen stijgen weer. De combinatie van een lage rentestand en betere economische vooruitzichten doen ook hier z'n werk. Er is sprake van een zekere inhaalvraag van huishoudens die eerst zijn gaan huren en nu kunnen kopen, de koopstarters, maar ook doorstromers zien we weer actief worden op de koopmarkt.

Bovendien is de kern Vinkel op 1 januari 2015 samengevoegd met de gemeente 's-Hertogenbosch. Hierdoor maakt de woningbouwlocatie Vinkelse Slagen nu onderdeel uit van het grondgebied van de gemeente 's-Hertogenbosch. De bevolkingsprognose van de provincie voor 's-Hertogenbosch is van toepassing voor de gehele gemeente, inclusief Vinkel. De gemeente 's-Hertogenbosch kan nu zelf aangeven hoe zij met de woningbouw in Vinkel om kan gaan. Dit mag echter niet ten koste gaan van het landelijke karakter van Vinkel.

Omdat de stagnatie in de woningmarkt voorbij is, kan in een hoger tempo worden gebouwd en kan de oorspronkelijke woningbouwprogrammering en fasering worden aangepast. De gemeente 's-Hertogenbosch zal daarbij wel verantwoord om gaan met bouwen in de landelijke regio. Uit het woonwensenonderzoek 2015 (voor o.a. Vinkel), blijkt bovendien dat huishoudens er steeds meer voor kiezen om kleiner te gaan wonen. Ook is het van belang om te constateren dat uit alle bevolkingsprognoses naar voren komt dat de huishoudens in de toekomst steeds kleiner gaan worden: het aantal personen per woning daalt.

Het zijn steeds meer starters en senioren die op zoek zijn naar een nieuwe woning. In Vinkel zijn er weinig goedkope starters- en seniorenwoningen beschikbaar. Er is dan ook vooral behoefte aan goedkopere woningen op kleinere kavels. Vanuit volkshuisvestelijke overwegingen zijn dit de redenen om het opzet van het bestemmingsplan uit 2013 nogmaals tegen het licht te houden.

De gemeente 's-Hertogenbosch heeft er dan ook voor gekozen in fase 1 een herverkaveling te laten plaatsvinden waarbij in dit gebied meer woningen op kleinere kavels kunnen worden gebouwd. De realisatie van kleinere kavels komt tegemoet aan de huidige woningbehoefte in Vinkel. Hiervoor moet het bestemmingsplan Vinkelse Slagen partieel worden herzien, met name vanwege het feit dat er in het geldende plan specifieke maximale aantallen woningen zijn opgelegd per deelgebied in fase 1.

Dit betekent concreet het volgende. In het oorspronkelijke plan waren voor fase 1 in totaal maximaal 77 woningen voorzien, waaronder 14 rijwoningen. Het nieuwe, indicatieve woningbouwprogramma voor fase 1 is als volgt:

  • 28 rijwoningen
  • 24 twee-aangebouwde woningen
  • 34 vrijstaande woningen

Totaal: 86 woningen.

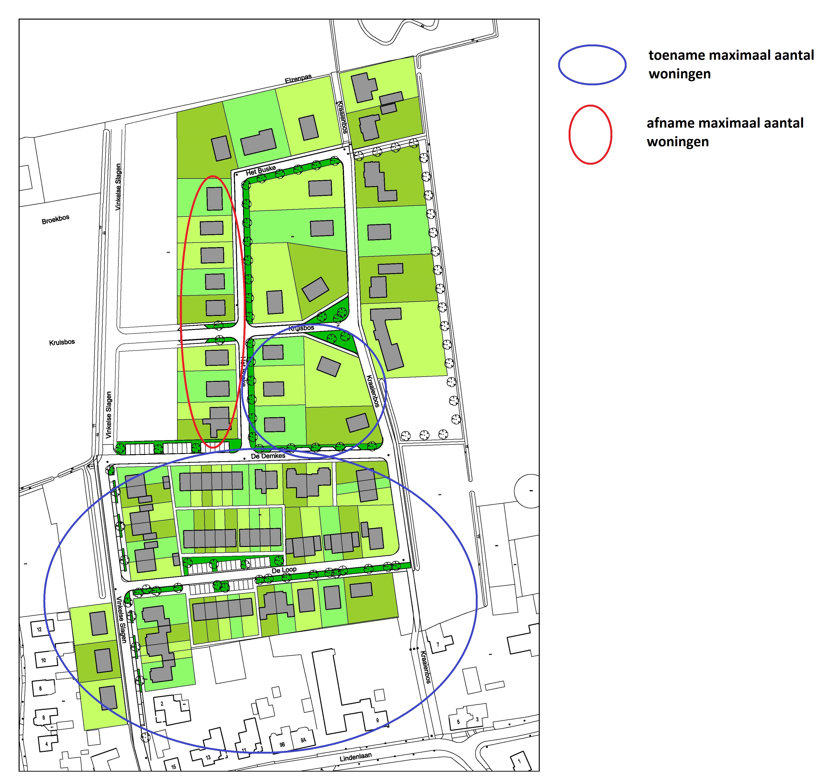
Om dit mogelijk te maken worden de maximale aantallen in dit plan per deelgebied waar nodig verhoogd, dus met name in het zuidelijk deel. Echter, aan de noordwestzijde worden tegelijkertijd minder woningen voorzien. Hier worden voor twee deelgebieden de maximale aantallen woningen verlaagd (zie figuur 8). Deze wijzigingen sluiten beter aan op de stedenbouwkundige opzet en op de huidige situatie waarin al een aantal kavels zijn verkocht.

In deze partiële herziening wordt tevens vastgelegd dat rijwoningen in het noordelijk deel van het plangebied niet mogelijk zijn. Hier worden uitsluitend vrijstaande woningen en twee-onder-een-kapwoningen toegestaan. Op de ruime kavels in het noordelijk deel zijn immers geen rijwoningen gewenst, en in het zuidelijk deel juist wel. Bij de uitwerking van de plannen is dan nog enige flexibiliteit door in het noordelijk deel vrijheid te geven aan vrijstaande woningen of twee-onder-een-kapwoningen.

Daarnaast worden met de woningcorporaties en ontwikkelaars van de plannen afspraken gemaakt over het aandeel sociale (koop of huur)woningen, gelet op het gemeentelijk woonbeleid waarin wordt uitgegaan van 25% sociale huurwoningen. Tevens is in de Woonagenda 2017 / 2018 vastgesteld dat 15% van het nieuwbouwprogramma dient te bestaan uit middeldure huurwoningen en/of sociale koopwoningen. Hiermee wordt voldaan aan dit gemeentelijk beleid.

4.2 Stedenbouw

4.2.1 Totaalopzet Vinkelse Slagen

In deze paragraaf wordt de stedenbouwkundige structuur van het totaalplan voor de Vinkelse Slagen beschreven, zoals het ook in het geldende bestemmingsplan is opgenomen. Het principe van deze stedenbouwkundige opzet wordt niet gewijzigd met de partiële herziening.

Het bestemmingsplan de Vinkelse Slagen ligt ten noordoosten van de kern Vinkel. Bij de stedenbouwkundige opzet is uitgegaan van de in de omgeving aanwezige landschappelijke context. Daarin zijn drie inspiratiebronnen vastgelegd:

  • de kleinschalige ontginningstructuur van greppels en houtwallen (slagenlandschap);
  • de oorspronkelijke aanwezigheid van landgoederen rondom de kern Vinkel;
  • de relatie van het dorp met het buitengebied, vormgegeven in de vorm van (groene) "stapstenen".

afbeelding "i_NL.IMRO.0796.0002357-1401_0005.png"

Figuur 5: schematische opbouw van de drie inspiratiebronnen

Uitgaande van de ligging van de locatie tussen de Weerscheut (aangemerkt als landschapslint), de Lindenlaan (aangemerkt als dorpslint) en de Elzenhof zijn voornoemde inspiratiebronnen vertaald in een concept met vijf verschillende woonmilieus en een opeenvolging van groene ruimten:

  • hoeven (Elzenhof);
  • moestuinen;
  • slagen;
  • ontginningslandgoed;
  • entree;
  • groen Vincent van Goghplein – groen speelplek – ontginningslandgoed - buitengebied.

Op basis van dit concept en het woningbouwprogramma is vervolgens een verkavelingsprincipe gemaakt voor de woningbouwlocatie Vinkelse Slagen. In dit ‘Verkavelingsprincipe Project: Vinkel Noord’ is een voorstel voor de ontsluitings- en verkavelingsstructuur gedaan, alsmede voor de situering van de woningen daarbinnen. Daarin herkenbaar zijn de vijf woonmilieus en de opeenvolging van groene ruimten.

Hierbij waren een set randvoorwaarden leidend (zie paragraaf 4.2 van het moederplan Vinkelse Slagen).

Ontginningslandgoed en omliggend woningen (centraal in fase 1)

Deze stedenbouwkundige uitgangspunten zijn in de verkavelingsopzet meegenomen. Centraal in de verkavelingsopzet ligt een landgoed met oprijlaan daar naartoe. Dit landgoed is groen omzoomd. In het oorspronkelijke plan is binnen deze omzooming ruimte voor een tiental 'landhuizen'. Deze landhuizen zijn georiënteerd op een klein, centraal gelegen driehoekig plein. De geplande oprijlaan vanaf de Weerscheut is op dit plein gericht. Direct ten noorden van het landgoed liggen zogenaamde "rentmeesterwoningen en boerderijen". Deze woningen maakten in vroeger tijden deel uit van de gronden gelegen direct om het eigenlijk landgoed. Zij liggen aan de langszaamverkeersroutes vanaf het pad langs de noordrand van het woongebied en naar de Lindenlaan (Kraaienbos).

afbeelding "i_NL.IMRO.0796.0002357-1401_0006.jpg"

Figuur 6: invulling fase 1 met de nog in te vullen fase 2

Hoeve Elzenhof en moestuinen (fase 2)

Aansluitend bij de rentmeesterswoningen en boerderijen, wordt de voormalige bedrijfswoning van de hoeve Elzenhof ten westen hiervan omgevormd tot een burgerwoning. De overige bedrijfsbebouwing op het bouwblok wordt gesloopt en vervangen door twee rentmeesterswoningen / boerderijen. De om de hoeve Elzenhof aanwezige groensingel wordt zoveel mogelijk intact gelaten. De hoeve vormt een afzonderlijke enclave binnen de verkaveling, met een eigen groene omzoming en georiënteerd op en ontsloten via het Weerscheutpad.

Middengebied: Slagen en entree (fases 1 en 2)

De invulling van het middengebied is geïnspireerd door het oorspronkelijke slagenlandschap. In het totale plan zijn vier "slagen" opgenomen: drie in noord-zuid richting en één in oost-west richting. De slagenstructuur komt terug in de ligging van de woonstraten en wordt geaccentueerd door de groenstroken die deel uitmaken van het profiel van deze woonstraten. Behalve door de oprijlaan (Kruisbos) worden deze slagen ook onderling verbonden door een afwisselend aan de noord- en zuidzijde aanwezige dwarsverbindingen (Broekbos). De woonstraten maken daardoor een aantal slagen door het uitbreidingsgebied. De eerste fase wordt nog ontsloten vanaf de Lindenlaan. Naar gelang de verdere ontwikkeling van de woningbouwlocatie wordt de noodzaak bezien tot een tweede ontsluiting vanaf de Weerscheut over het tracé van de oprijlaan naar het landgoed.

Opgenomen in de structuur van de slagen is de bestaande, uit te breiden groenplek aan de Jeroen Boschstraat. Eén van de groenstroken loopt door langs de westelijke rand van deze groenplek, als afscherming van het naastgelegen woonperceel. Een zelfde afschermende groenstrook is voorzien aan de zuidzijde van de speelplek in het verlengde van de oost-west gerichte slag. Deze wordt ook doorgezet in het profiel van de hier gelegen woonstraat, maar dan in oost-west richting en loopt door tot de groenvoorziening met trap of speelveld.

In de slagen is sprake van ‘burgerwoningen’. In de terminologie van het landgoed is hier sprake van een latere invulling van de voorheen open gronden binnen het landgoed met burgerwoningen. De gronden zijn daarbij op een efficiënte, van het oorspronkelijke landschap afgeleide wijze verkaveld.

Groenstructuur

De verkavelingsopzet in het geldende bestemmingsplan Vinkelse Slagen gaat uit van een groene omzoming van het landgoed. Verder zijn tussen de drie noord-zuid lopende slagen groensingels voorzien die de slagen verbinden met de laanstructuren aan de noordzijde, en de centrale groen- en speelvoorziening. Ook is een oost-west lopende groensingel gepland langs 'de Loop'. Langs de ontsluitingsweg vanaf de Lindenlaan (Vinkelse Slagen) en langs de oprijlaan naar het landgoed (Kruisbos) is, daar waar geen groensingel aanwezig is, in laanbeplanting voorzien. In deze laanbeplanting zijn uitsparingen mogelijk voor de aanleg van de benodigde parkeerplaatsen.

Waterstructuur

Het watersysteem in het plangebied is op basis van de bestaande bodem- en watersituatie in afstemming met de verkavelingsopzet uitgewerkt. Gezien de goede waterdoorlatendheid van de bodem en de ondiepe grondwaterstanden is het plangebied geschikt voor oppervlakkige berging en infiltratie van hemelwater. Mogelijk kan het te bergen hemelwater vertraagd worden afgevoerd naar nabijgelegen oppervlakte water.

Het hemelwater wordt in de verkavelingsopzet verzameld (berging, infiltratie en afvoer) in greppels in groensingels (langs de slagen) en in de groene omzoming van het landgoed. Waar onvoldoende ruimte is voor greppels, vindt de verzameling van hemelwater in een hemelwaterriool plaats. Het hemelwater wordt in voornamelijk noordwaartse richting afgevoerd. De waterafvoer volgt hiermee het verloop van het maaiveld. Ten noorden van het woongebied is een natuurgebied aangelegd in de vorm van een slagenlandschap. In dit gebied wordt het hemelwater geborgen en geïnfiltreerd.

Bij het afvoeren van het water wordt gebruik gemaakt van greppels in de groenvoorzieningen. Deze lopen naar de bestaande en te handhaven sloten langs de oost- en de zuidrand van het gebied Via dit bestaande systeem wordt het overtollig grond- en hemelwater opegvangen, geïnfiltreerd en, wanneer nodig, afgevoerd naar de waterberging ten noorden van het uitbreidingsgebied.

4.2.2 Beschrijving stedenbouwkundige opzet fase 1

Zoals gezegd ziet deze partiële herziening niet op gehele plangebied van fase 1, maar op een deel van fase 1 (zie paragraaf 2.2). Fase 1 omvat in hoofdzaak het landgoed, het entreedeel en een kleine strook van De Slagen. Bij deze partiële herziening wordt deze hoofdopzet niet gewijzigd, maar wordt een aantal wijzigingen doorgevoerd met het oog op de huidige marktomstandigheden, zoals verdichting (zie figuur 8). Die verdichting vindt met name plaats in de zones die het dichtstbij de Lindenlaan liggen. Uiteraard wordt het principe van de landhuizen niet aangetast, en vindt daar een beperkte verdichting plaats. De stedenbouwkundige opzet voor fase 1 wordt hieronder verder beschreven en uitgewerkt.

afbeelding "i_NL.IMRO.0796.0002357-1401_0007.jpg"

Figuur 7: meest recente stedenbouwkundig opzet fase 1

afbeelding "i_NL.IMRO.0796.0002357-1401_0008.jpg"

Figuur 8: Meest recente stedenbouwkundig plan met daarop tevens aangeduid de af - en toename van maximaal aantal woningen

Landgoed

Bij de verdere uitwerking van het verkavelingsprincipe zijn de genoemde uitgangspunten en randvoorwaarden vertaald in een verkavelingsplan met centraal daarin het landgoed met de oprijlaan daar naartoe. Het landgoed zelf is groen omzoomd. Binnen deze omzoming is in het aangepaste stedenbouwkundig plan ruimte voor een 13 ‘landhuizen’ (in de oorspronkelijke verkaveling 10 stuks). Deze woningen worden uitgevoerd in maximaal 2 bouwlagen met kap.

De vrijstaande woningen zijn met de voorzijde gericht op de openbare weg. Vanwege het verkleinen van enkele kavels vindt er een beperkte verdichting plaats. De woningen zijn in tegenstelling tot het oorspronkelijke plan niet enkel op het binnenterrein gericht, maar zullen een oriëntatie rondom naar de buitenzijde krijgen. Om het landgoed herkenbaar te maken wordt er rondom een bomenrij aangebracht in de groenstrook die het landgoed omzoomt. Vanwege deze aanpassing wordt er ook geen pleintje meer aangebracht, maar wordt gekozen voor een forse groenstrook aan beide zijden van de straat waar ook bomen in worden geplaatst.

In verband met de aanwezigheid van geurcontouren rond het agrarische bedrijf Koksteeg 64 kan niet het gehele landgoed bebouwd worden. Eén of twee kavels zijn geheel of grotendeels gelegen binnen de geurcontouren. Vooralsnog wordt dit deel van het landgoed groen ingericht. Dit deel aan de oostzijde van fase 1 maakt geen onderdeel uit van het plangebied van deze partiele herziening, omdat hier geen wijziging op plaatsvindt.

Woningen rondom landgoed (west, noord -en oostzijde)

Direct om het landgoed is sprake van een zone van een zone waar zich grotere kavels bevinden met daarop vrijstaande woningen. Deze vrijstaande woningen maken als in vroeger tijden deel uit van de gronden gelegen direct om het eigenlijke landgoed. In dit geval zijn de woningen gelegen aan de beide secundaire toegangswegen tot het landgoed, die aansluiten op de langzaamverkeersverbindingen vanaf het Weerscheutpad (de insteek vanaf de Weerscheut langs de noordrand van de locatie) en het pad langs Lindenlaan 9.

Aansluitend bij het niet te bebouwen deel van het landgoed is ook een deel in de rand van de locatie gelegen binnen de genoemde geurcontouren. Vooralsnog worden deze gronden eveneens groen ingericht, met ruimte voor een wat groter trap- of speelveld.

Entreedeel Vinkelse Slagen

De Vinkelse Slagen wordt ontsloten via de Lindenlaan. Bij de binnenkomst van het plangebied is er aan beide zijden ruimte voor vrijstaande of twee-onder-een-kapwoningen. Dit draagt bij aan het dorpse karakter van het plangebied.

Om de entree een goede begeleiding te geven in noord-zuid richting is er in tegenstelling tot het oorspronkelijke plan besloten om woningen te oriënteren aan de weg de Vinkelse Slagen (entreeweg vanaf de Lindenlaan). Hierdoor wordt het entreedeel richting het noordelijk gebied voorzien van voorzijden van woningen in plaats van zijkanten van woningen waardoor de uitstraling wordt verbeterd. In de oost-west verbindingen bevinden zich de Loop en de Demkes. Aan deze straten vindt de grootste verdichting plaats, met name door het inpassen van rijwoningen.

Hierdoor ontstaat een stedenbouwkundige opzet waarbij de verdichting het hoogst is nabij het bestaande dorpslint en een meer extensieve bebouwing kent richting de noordzijde, het landelijk gebied. Om het parkeren voor de rijwoningen op te lossen worden er ter plaatse van de rijwoningen haaksparkeervakken aangebracht. Deze bevinden zich in de secundaire straten waardoor de belangrijke noord-zuid verbindingen niet geconfronteerd worden met intensieve parkeeroplossingen. Op deze wijze wordt met de nieuwe opzet recht gedaan aan de oorspronkelijke opzet en het dorpse karakter.

4.3 Verkeer en parkeren

4.3.1 Verkeer

In de verkavelingsopzet is de navolgende hoofdontsluitingsstructuur opgenomen:

  • de hoofdontsluiting vindt in eerste instantie plaats vanaf de Lindenlaan (naast Lindenlaan 17), via een verbrede woonstraat. Deze verbrede woonstraat ontsluit de zone om het landgoed;
  • uiteindelijk is een tweede ontsluiting mogelijk (voor zover noodzakelijk) vanaf de Weerscheut, via de oprijlaan naar het landgoed. Via de oprijlaan worden alle woonstraten in de slagen en het landgoed ontsloten.

Gelet op de beoogde fasering en de nog niet verworven gronden aan de Weerscheut is er voor gekozen de hoofdontsluiting vooralsnog alleen vanaf de Lindenlaan te laten lopen. Op het moment dat fase 2 (en 3) aan de orde zijn worden de mogelijkheden bekeken om ook de hoofdontsluiting vanaf de Weerscheut te realiseren.

Beide genoemde ontsluitingen betreffen relatief lange, rechte of lichtgebogen straten. Daarbij is sprake van lengten van 300 à 350 m. Om te voorkomen dat te lange rechtstanden ontstaan, die aanleiding kunnen geven tot te hoge snelheden van het autoverkeer, wordt in de Lindenlaan een asverspringing aangelegd ter hoogte van de bestaande groenen speelvoorziening. Op vergelijkbare wijze worden lange rechtstanden voorkomen in de oprijlaan voor autoverkeer. Door een strategische situering van de benodigde asverspringingen wordt tevens voorkomen dat een sluiproute door de woningbouwlocatie ontstaat tussen Lindenlaan en Weerscheut.

Met deze partiele herziening worden maximaal 9 extra woningen toegevoegd ten opzichte van de planologische mogelijkheden uit het geldende bestemmingsplan. Dit gaat dan om maximaal 7 tot 8 ritten per woning per etmaal (= ca. 70 motorvoertuigen / etmaal). De huidige intensiteiten van de Lindenlaan ter plekke van de Vinkelse Slagen zijn ca. 2.400 motorvoertuigen per etmaal. De maximale intensiteit van dit type weg is ongeveer 5.000 motorvoertuigen per etmaal. De toevoeging van maximaal 70 motorvoertuigen per etmaal zal derhalve niet tot nauwelijks merkbaar zijn. Het heeft geen significante invloed op de doorstroming en/of de verkeersveiligheid.

4.3.2 Parkeren

Parkeerplaatsen op eigen terrein en in openbaar gebied

In de verkavelingsopzet wordt bij de vrijstaande en twee-onder-eenkapwoningen voorzien in bewonersparkeren op eigen terrein, terwijl voor de rijwoningen parkeerplaatsen in de openbare ruimte worden aangelegd. Dit zal gebeuren met parkeervakken nabij de woningen. Er wordt gestreefd om de parkeervakken zo dicht mogelijk bij de rijwoningen aan te leggen.

Vooralsnog is het de bedoeling om aan de Loop aan beide zijden rijwoningen te bouwen. Om aan de behoefte te voldoen zullen aan beide zijden haaksparkeervakken worden aangelegd. Aan de Demkes komen een zestal rijwoningen (CPO), hiervoor worden haaksparkeervakken aan de overzijde van de straat aangelegd. Ook worden langsparkeervakken aangelegd in het verlengde daarvan aan de Demkes, alsmede aan de entreeweg Vinkelse Slagen. Deze voorzien voornamelijk in de behoefte van het bezoekersparkeren.

Normen

Bij verlening van de omgevingsvergunningen voor alle woningen dient te worden voldaan aan de gemeentelijke parkeernormen zoals neergelegd in de Nota Parkeernormering 2016 of diens opvolgers. Deze verplichting is opgenomen in de planregels. Dit betekent dat de volgende parkeernormen gelden voor de woningen in de Vinkelse Slagen:

woningen 40-80 m² (sociale huur): 1,4 per woning

woningen 40-80 m²: 1,6 per woning

woningen 80-150 m²: 1,8 per woning

woningen > 150 m²: 2 per woning

Bovenstaande normen zijn inclusief 0,3 bezoekersparkeerplaatsen. In de openbare ruimte wordt, naast de behoefte aan parkeerplaatsen voor de rijwoningen, ook voorzien in parkeerplaatsen voor bezoekers; per woning dient minimaal 0,3 parkeerplaats aanwezig te zijn (op eigen terrein of openbare ruimte).

Parkeeroplossing

In fase 1 van de Vinkelse Slagen zijn 86 woningen gepland. Het is nog niet geheel duidelijk hoe deze woningen precies over de woningtypes verdeeld worden. Op grond van de parkeernormen in het bestemmingsplan wordt echter zekergesteld dat altijd voldoende parkeerplaatsen worden gerealiseerd.

Het is echter, gelet op onder andere de locatie, de vraag uit de markt en de financiele haalbaarheid, wel duidelijk dat circa tweederde van deze woningen vrijstaand of half-geschakeld zal zijn. De verwachting is dat de rijwoningen circa eenderde van deze woningen omvatten. Uitgaande van dit uitgangspunt, is voor het stedenbouwkundig plan uitgegaan van de volgende berekening.

De vrijstaande woningen en half-geschakelde woningen wordt op eigen terrein voorzien in de parkeerbehoefte. Dit zou bij een tweederde deel van de woningen gaan om 115 parkeerplaatsen op eigen terrein (58 woningen * 2 parkeerplaatsen).

De parkeerbehoefte van de rijwoningen wordt opgelost in het openbaar gebied. Er wordt in het stedenbouwkundig plan rekening gehouden met 70 parkeerplaatsen. Uitgaande van maximaal 28 rijwoningen (1,8 per woning * 28 = 51 parkeerplaatsen inclusief bezoekersparkeren), en het bezoekersparkeren van 0,3 per woning (18 bezoekersparkeerplaatsen voor de vrijstaande en geschakelde woningen), dienen 69 parkeerplaatsen te worden gerealiseerd in het openbaar gebied.

Uit deze (indicatieve) berekening blijkt dus dat in voldoende parkeerplaatsen wordt voorzien (52 haaksparkeervakken en 17 langsparkeervakken). Deze berekening houdt er overigens rekening mee dat alle bezoekersparkeren in de openbare ruimte zal plaatsvinden, terwijl het bezoekersparkeren van de vrijstaande en geschakelde woningen in beginsel volgens de norm op eigen terrein wordt opgelost. En naar verwachting wordt daar ook in de meeste gevallen aan voldaan door de aanleg van twee parkeerplaatsen op eigen terrein. Gelet op bovenstaande, wordt daarom ruim voldaan aan de parkeernorm.

Hoofdstuk 5 Milieu en omgevingswaarden

Ten aanzien van de milieu -en omgevingsaspecten bedrijvigheid, archeologie, stankcirkels en bodem vinden er geen wijzigingen plaats. Vandaar dat voor de onderbouwing van deze aspecten verwezen kan worden naar het op 22 oktober 2013 vastgesteld moederplan 'Vinkelse Slagen'.

5.1 Geluid

Bij het opstellen of herzien van een bestemmingsplan worden de regels van de Wet geluidhinder (Wgh) toegepast. Deze wet heeft betrekking op geluid dat veroorzaakt wordt door gezoneerde wegen, spoorwegen, gezoneerde industrieterreinen en luchthavens. De Wgh bevat geluidsnormen en richtlijnen over de toelaatbaarheid van geluidsniveaus als gevolg van voorgenoemde geluidsbronnen.

Het plangebied is niet gelegen binnen gezoneerde wegen. Voor wegen gelegen binnen een woonerf of voor wegen met een maximum snelheid van 30 km/uur geldt geen geluidzone. De verkeersintensiteit op de Lindenlaan is groter dan 1.000 motorvoertuigen per etmaal, maar betreft ook een 30 km/uur weg en heeft geen toetsing volgens de wet geluidhinder.

De geplande woningen liggen aan wegen met een maximale snelheid van 30 km/uur met voornamelijk bestemmingsverkeer. Geluidshinder van deze weg is niet te verwachten.

Andere 30-km/uur wegen in de directe omgeving (zoals de Lindenlaan) worden afgeschermd door bebouwing. Geluidshinder van deze wegen is ook niet aan de orde.

Woningbouw aan de kant van de Weerscheut is eventueel pas voorzien na de planperiode. Hiervoor wordt dan een nieuw bestemmingsplan opgesteld. In of nabij de woningbouwlocatie zijn naast de genoemde wegen, geen andere geluidsbronnen aanwezig die invloed hebben op de geluidsgevoelige objecten.

5.2 Luchtkwaliteit

Sinds 15 november 2007 vormt het aspect luchtkwaliteit uit de Wet milieubeheer de basis voor de besluitvorming in het kader van de Wet ruimtelijke ordening. Op basis van deze Wet luchtkwaliteit gelden milieukwaliteitseisen voor de luchtkwaliteit. Deze kwaliteitseisen zijn middels grenswaarden vastgelegd voor de luchtverontreinigingscomponenten.

Projecten en ruimtelijke plannen, waarvan duidelijk is dat deze niet in betekenende mate bijdragen aan de luchtkwaliteit, hoeven op grond van het 'Besluit niet in betekenende mate (NIBM)' niet te worden getoetst aan de grenswaarden voor luchtkwaliteit. In de Regeling niet in betekenende mate zijn bijdragen (luchtkwaliteitseisen) categorieën van gevallen aangewezen die per definitie niet in betekenende mate bijdragen. Voor deze categorieën van gevallen hoeft geen onderzoek plaats te vinden of hoeft niet aannemelijk gemaakt te worden dat ze niet in betekenende mate bijdragen. Eén van deze categorieën betreft de bouw van 1.500 woningen, waarbij is uitgegaan van een verkeersgeneratie van ten minste 7.500 motorvoertuigbewegingen per etmaal. De verkeersaantrekkende werking ligt ruim beneden deze 7.500 motorvoertuigbewegingen per etmaal en valt dus niet onder de Regeling niet in betekenende mate bijdragen.

In onderhavig geval is sprake van woningbouw aangezien er 9 extra woningen worden opgericht (86 in totaal met inachtneming van de reeds toegestane woningen). Uitgaande van het 3% criterium is binnen het plangebied geen sprake van een project dat in betekenende mate bijdraagt aan de luchtverontreiniging. Derhalve hoeft voor het planvoornemen geen onderzoek inzake luchtkwaliteit te worden uitgevoerd.

5.3 Externe veiligheid

Bij de ruimtelijke planvorming moet rekening gehouden worden met het aspect externe veiligheid. De risico's voor de bevolking, die verbonden zijn aan gevaar veroorzakende activiteiten moeten in beeld worden gebracht. De gemeente 's-Hertogenbosch heeft een Beleidskader externe veiligheid opgesteld.

Het beleidskader richt zich op het beheersen van externe veiligheidsrisico's. Dit zijn risico's die ontstaan bij het gebruik, de opslag en het transport van gevaarlijke stoffen waarbij slachtoffers kunnen vallen buiten de risicobron (inrichting, transportader), voor zover deze in termen als plaatsgebonden risico's en groepsrisico kunnen worden uitgedrukt.

Voor de omgeving van de Vinkelse Slagen zijn de risicobronnen in kaart gebracht. Hieruit is op te maken dat het plangebied ruim buiten de invloedsgebieden is gelegen van LPG en propaan tanken. Ook de gasleiding ten noordoosten van het plangebied en de transportroute gevaarlijke stoffen (weg, spoor en water) zijn op voldoende afstand gelegen. Deze bronnen hebben dan ook geen invloed op het planvoornemen.

Deze conclusie is ook van toepassing op de toevoeging van 9 extra woningen.

5.4 Water

Watertoets

Vanaf 1 november 2003 is het wettelijk verplicht in het kader van het Besluit op de Ruimtelijke Ordening (Bro), een watertoets te verrichten. Door middel van de watertoets dient inzicht te worden verkregen in de waterhuishoudkundige consequenties van ruimtelijke plannen en besluiten (zowel kwantitatief als kwalitatief). Als onderdeel hiervan dienen eventuele mitigerende en compenserende maatregelen schetsmatig te worden uitgewerkt. Bovendien wordt een ruimteclaim bepaald van eventuele waterhuishoudkundige maatregelen. De resultaten van de watertoets worden gebruikt bij de uitwerking van het stedenbouwkundig plan en voor de invulling van de waterparagraaf in het nieuwe bestemmingsplan.

Bij het tot stand komen van de waterparagraaf zijn de waterbeheerders, waterschap Aa en Maas en de gemeente Maasdonk, vanaf het eerste moment betrokken:

  • de “Gebiedsinventarisatie Vinkelse Slagen” (Grontmij, 19 januari 2011, kenmerk 289130.ehv.219.R001) is in overleg met het waterschap en de gemeente opgesteld en vastgesteld. In deze inventarisatie zijn de huidige bodem- en watersituatie en de randvoorwaarden voor de toekomstige waterhuishouding uiteengezet;
  • de huidige situatie en randvoorwaarden uit de gebiedsinventarisatie, zijn opgenomen en uitgewerkt in de waterparagraaf. Op 17 oktober 2011 is de uitwerking beoordeeld door de gemeente. De uit deze beoordeling voorgekomen opmerkingen zijn verwerkt in deze waterparagraaf;
  • eind februari 2012 heeft afstemming plaatsgevonden met het waterschap over het feit dat het plangebied volgens de waterkansenkaart gelegen is binnen een gebied waar eens per 100 jaar of vaker kans op inundatie is.

Aansluitend op de eerdere afstemming met de waterbeheerders worden de waterparagraaf en het planvoornemen in het kader van de watertoets voorgelegd aan het waterschap Aa en Maas.

Waterschap

In het kader van het huidige overheidsbeleid (4e nota Waterhuishouding en Waterwet) en het beleid van het waterschap Aa en Maas dient invulling te worden gegeven aan 'duurzaam stedelijk waterbeheer'. Het beleid van het Waterschap is opgenomen in het Waterbeheersplan 2016-2021 en de Keur 2015. Voor ruimtelijke ontwikkelingen, waaronder ver- en nieuwbouwplannen, hanteert het Waterschap uitgangspunten ten aanzien van het duurzaam omgaan met water, die van belang zijn als vertrekpunt van het overleg tussen initiatiefnemer en waterbeheerder.

Onderstaand zijn de uitgangspunten, afkomstig uit de nota Uitwerking uitgangspunten watertoets toegelicht:

  • gescheiden houden van vuil water en schoon hemelwater: het streefbeeld is het schone hemelwater af te koppelen/ niet aan te koppelen. Hierbij wordt het vuile water via de riolering afgevoerd en blijft het schone hemelwater in het ideale geval binnen het plangebied;
  • voor de afweging van de wijze waarop met het afgekoppelde/ niet aangekoppelde schone hemelwater dient te worden omgegaan, geldt de volgende afwegingsstrategie: hergebruik-infiltratie-buffering-afvoer;
  • hydrologisch neutraal bouwen: bij nieuwe ontwikkelingen dient de hydrologische situatie minimaal gelijk te blijven aan de uitgangssituatie. De gemiddeld hoogste grondwaterstand mag niet verlaagd worden en het waterpeil sluit aan bij de optimale grondwaterstanden;
  • water als kans: de belevingswaarde van bijvoorbeeld oppervlaktewater kan een bijdrage leveren aan de ruimtelijke kwaliteit binnen het plangebied;
  • meervoudig ruimtegebruik: omdat de vierkante meters duur zijn, wordt aangeraden naar meervoudig grondgebruik te kijken. Op deze manier kan het 'verlies' van vierkante meters als gevolg van de ruimtevraag van water beperkt worden;
  • voorkomen van vervuiling: nieuwe bronnen van verontreiniging dienen zoveel mogelijk voorkomen te worden;
  • wateroverlastvrij bestemmen: de voorkeur gaat uit naar het ontwikkelen op locaties die als gevolg van hun ligging 'hoog en droog genoeg' zijn en daarmee voldoen aan de NBW-norm voor de toekomstige functie. Indien dit niet mogelijk of wenselijk is, dient gezocht te worden naar compenserende of mitigerende maatregelen die het gewenste beschermingsniveau tegen wateroverlast helpen realiseren;
  • waterschapsbelangen: er zijn 'waterschapsbelangen' met een ruimtelijke component. Indien deze belangen een rol spelen in het ruimtelijke plan dient hieraan in de toelichting, de regels en de verbeelding aandacht besteed te worden. Het betreft de volgende onderwerpen:
    • 1. ruimteclaims voor waterberging;
    • 2. ruimteclaims voor de aanleg van natte ecologische verbindingszones en beekherstel;
    • 3. aanwezigheid en ligging watersysteem;
    • 4. aanwezigheid en ligging waterkeringen;
    • 5. aanwezigheid en ligging van infrastructuur en ruimteclaims ten behoeve van de af-valwaterketen in beheer van het Waterschap.

Plan

Dit plan is opgesteld en uitgewerkt onder de vorige norm, waarbij het waterschap als uitgangspunt hydrologisch neutraal te ontwikkelen. Inmiddels is er een aanpassing van de Keur geweest, waarbij een andere norm is vastgesteld. Het huidige plan zat in zijn oude hoedanigheid ruim in haar jasje en met enkele kleine ingrepen voldoet het plan ook aan de nieuwe norm. Deze aanpassingen zijn verwerkt in het stedenbouwkundig plan, waarbij eveneens de verkaveling en inrichting is aangepast.

Ten opzichte van het vorige stedenbouwkundige plan is er sprake van een reductie van het verharde oppervlak.

Sinds de eerste versie van het stedenbouwkundig plan is er eveneens sprake van gewijzigd gemeentelijk beleid, op 31 januari 2017 is het waterplan door de raad van de gemeente 's-Hertogenbosch goedgekeurd en daarmee ook het hemelwaterbeleid.

In navolging van het vastgestelde waterplan, is de gemeente begonnen met het waterbewustzijn van burgers en bedrijven te vergroten. In de verdere invulling zal samen met toekomstige bewoners/ontwikkelaars gekeken worden welke maatregelen op eigen terrein genomen kunnen worden om de afwenteling van neerslag van particulier terrein naar het openbaar gebied te reduceren.

De daaruit voortvloeiende maatregelen komen nog op de reeds beschikbare berging.

5.5 Flora en fauna

Inleiding

In 2011 is ten behoeve van het moederplan Vinkelse Slagen een natuurwaardenonderzoek uitgevoerd om invloeden van het planvoornemen uit te kunnen sluiten ("Locatieonderzoek natuurwaarden woningbouwlocatie Vinkelse Slagen", Grontmij, 18 januari 2011). De belangrijkste conclusies hieruit waren dat het projectgebied geen onderdeel uitmaakte beschermde natuurgebieden; en dat de aanwezigheid van beschermde flora en fauna in het plangebied zelf uitgesloten was.

Verkennend onderzoek

Volledigheidshalve is voor het plangebied van de partiële herziening een actualisatie van het natuurwaardenonderzoek uitgevoerd. Dit onderzoek, genaamd "Verkennend natuuronderzoek Vinkelse Slagen", Sweco, juni 2017, is bijgevoegd (bijlage 1).

De belangrijkste conclusie hieruit is dat de Wet natuurbescherming geen belemmering vormt voor de voorgenomen ontwikkeling van woonkavels binnen het plangebied. Nader onderzoek op het gebied van soortenbescherming is niet noodzakelijk.

Tijdens de uitvoeringsfase dient men rekening te houden met de aanwezigheid van broedvogels tijdens het broedseizoen. Alle broesgevallen zijn gedurende deze periode beschermd. Het broedseizoen loopt globaal van half maart tot augustus. Echter, afhankelijk van de lokale meteorologische omstandigheden kan deze periode eerder of later beginnen en eindigen. Van belang is dat broedende vogels niet zodanig opzettelijk verstoord worden, dat de gunstige staat van instandhouding van de soort in het geding komt.

Naast bepalingen voor specifiek aangewezen soorten geldt krachtens artikel 1.11 (lid 1 & 2) van de Wet natuurbescherming, de algemene zorgplicht voor alle in het wild levende dieren en planten, alsmede voor hun directe leefomgeving. Via dit artikel wordt eenieder medeverantwoordelijk gesteld voor de zorg en bescherming van flora en fauna en dient men een handelingen uit te voeren die opzettelijk soorten kunnen aantasten.

5.6 Duurzaamheid

Algemeen

Alles wat te maken heeft met maatschappelijk verantwoord leven, milieu, ecologie en toekomstgericht denken wordt onder duurzaamheid geschaard. Kortom, duurzaamheid kijkt naar de huidige behoefte die de mensen op de aarde hebben en hoe dit in de toekomst ontwikkeld kan worden zonder dat de mensen, het milieu of de economie in gevaar komt.

Duurzaamheid gaat dan ook veelal over de schaarste van hulpbronnen waarmee welvaart wordt voortgebracht, zowel nu als in de toekomst. De oppervlakte van de aarde is immers eindig, grondstoffen kunnen op raken en de opnamecapaciteit van de atmosfeer en onze natuurlijke omgeving kent haar grenzen.

Bij duurzame ontwikkeling is sprake van een ideaal evenwicht tussen ecologische, economische en sociale belangen. Alle ontwikkelingen die op technologisch, economisch, ecologisch, politiek of sociaal vlak bijdragen aan een gezonde aarde met welvarende bewoners en goed functionerende ecosystemen zijn derhalve duurzaam.

Energie

Klimaatakkoord en energietransitie

De klimaatverandering vraagt om maatregelen. Het klimaatakkoord in Parijs wordt vertaald naar landelijk en lokaal niveau. De gemeente 's-Hertogenbosch wil klimaatneutraal zijn in 2050; de gebouwde omgeving moet dat zelfs al in 2035 zijn. Voor de komende jaren werken we op basis van het Energie transitieprogramma. Als we snelheid willen maken vraagt dit om een (radicaal) andere manier van denken en werken.

Energietransitie bij nieuwbouw

Vanaf 2021 geldt voor nieuwe woningen een nieuwe norm: BENG (Bijna EnergieNeutrale Gebouwen). Deze norm komt overeen met een EPC (Energieprestatiecoefficiënt) van ongeveer 0,2. Door bij nieuwbouw nu al minimaal te voldoen aan de eis van 2021 hoeven deze woningen later niet tegen hogere kosten alsnog energieneutraal gemaakt te worden. Dit komt ook overeen met het energietansitieprogramma 2016-2020 en de woonagenda 2017-2018 die in januari 2017 door de raad is vastgesteld.

Hierin is afgesproken dat de gemeente tot 2020 energieneutrale nieuwbouw zal stimuleren. We stimuleren energieneutrale nieuwbouw, vooruitlopend op nieuwe regelgeving.

Materialen

  • Voor de woningen wordt zoveel mogelijk gebruik gemaakt van herbruikbare, natuurlijke en niet uitloogbare materialen. Bevordering van de toepassing van duurzame materialen.
  • ter voorkoming van roofbouw en illegale kap en om duurzaam bosbeheer te waarborgen wordt uitsluitend (hard)hout uit duurzaam beheerde bossen toegepast. Dit wordt gewaarborgd met een FSC-certificaat danwel met het Keurhout-duurzaam-keurmerk.

Openbare ruimte

Algemeen uitgangspunt is intensief ruimtegebruik. Het waarborgen van de kwaliteit van de leefomgeving is daarom een belangrijke en duurzame opgave. Van ontwerp, aanleg, inrichting tot beheer wordt de stedelijke ontwikkeling steeds duurzamer vormgegeven. Op termijn wil 's-Hertogenbosch klimaatneutraal worden waarvoor bij een grootschalige herstructurering goede kansen bestaan.

Aan materialen van de openbare ruimte worden vanuit milieu eisen gesteld. Dit betekent dat niet-uitlogende materialen en zoveel als mogelijk duurzame bouwmaterialen worden toegepast. Bovendien geldt voor de publieke ruimte dat het ontwerp van ieder “werk”, de inrichting en het beheer van o.a. het groen zal voldoen aan eisen van “duurzaamheid”.

Hoofdstuk 6 Economische uitvoerbaarheid

Artikel 6.12 Wro verplicht de gemeenteraad een exploitatieplan vast te stellen voor gronden waarop een bij algemene maatregel van bestuur aangewezen bouwplan is voorgenomen, tenzij kostenverhaal anderszins is verzekerd. In dit geval zijn alle gronden binnen het plangebied in eigendom van de gemeente. De onderbouwing voor de financieel economische uitvoerbaarheid van het plan is vastgelegd in de gemeentelijke grondexploitatie. De gemeente maakt de gronden bouw- en woonrijp en de woningbouwkavels worden verkocht aan particulieren/ontwikkelaars/corporaties. Kostenverhaal is daarmee anderszins verzekerd.

Hoofdstuk 7 Juridisch-bestuurlijke aspecten

7.1 Inleiding

In dit hoofdstuk wordt aangegeven hoe het beleid en de planuitgangspunten zijn verwoord in de planregels. Zo wordt een toelichting gegeven op het juridische systeem en op alle afzonderlijke bestemmingen. Ook moet het aansluiten op het nieuwe bestemmingsplan voor de kom van Vinkel.

7.2 Juridische toelichting

Bij het opstellen van dit bestemmingsplan is zoveel mogelijk vastgehouden aan de rechten en plichten die ook het moederplan aanwezig zijn. Voor de uniformiteit met het Bosch beleid en omwille van de duidelijkheid zijn een aantal zaken in de regels aangepast.

7.2.1 Bestemming Groen

Binnen deze bestemming is grotendeels het zelfde geregeld als in het moederplan. In de bestemming wordt wel tot maximaal 15 m2 oppervlakte voor een gebouw toegestaan met een hoogte van 3 meter. De in het moederplan opgenomen aanlegvergunningsplicht wordt niet overgenomen, omdat deze plicht niet geldt voor de in deze herziening opgenomen groenstrook.

7.2.2 Bestemming Verkeer - Verblijfsgebied

Bestaande openbare wegen en woonerven in het plangebied hebben in dit bestemmingsplan de bestemming 'Verkeer - Verblijfsgebied' gekregen. Ten opzichte van de regels in het moederplan is hierin weinig gewijzigd. Ook hierin wordt een gebouw toegestaan, tot 20 m2 en 3 meter hoogte; in verband met eventuele nutsvoorzieningen.

7.2.3 Bestemming Wonen -1 en -2

In deze bestemming is de basis van het moederplan overgenomen, maar zijn hierop een aantal zaken gewijzigd. De basis gaat uit van het bouwen in of maximaal twee meter achter de voorgevellijn van de woningen. Deze basis is vastgehouden, en ook worden dezelfde bouwhoogten overgenomen.

De voorgevellijn wordt niet meer op de verbeelding weergegeven. Dit komt de flexibiliteit ten goede, in die zin dat de voorgevels van woningen nu op meer plekken in het plangebied zijn toegestaan. In de planregels wordt echter wel geborgd dat de woningen maximaal twee meter achter de voorgevelrooilijn mogen worden gerealiseerd. Uitzondering hierop vormt het middengebied tussen De Loop en De Demkes, waarin een 'specifieke bouwaanduiding bijzondere bebouwingsregeling - 1' is opgenomen. Hiermee wordt toegestaan dat (onder bepaalde voorwaarden) uitsluitend voor rijwoningen ook verder dan 2 meter achter de voorgevel mag worden gebouwd.

Daarnaast worden op een aantal locaties in het plangebied de maximaal aantal toegestane wooneenheden verhoogd of soms ook verlaagd, om zo meer recht te doen aan de marktvraag. Ook regelt het bestemmingsplan dat in het noordelijk deel van het plangebied uitsluitend vrijstaande en halfgeschakelde woningen zijn toegestaan, evenals in het zuidwestelijk deel achter de Jan Steenstraat. In dit laatste deelgebied wordt ook geregeld dat hier uitsluitend drie bouwvolumes zijn toegestaan, met de 'specifieke bouwaanduiding - bijzondere bebouwingsregeling 2'.

In de twee deelgebieden het dichtste bij de dorpskern zijn in beginsel alle woningtypes toegestaan.

Tot slot wordt een deel van de woonbestemming onderverdeeld in Wonen - 1 en een deel in Wonen - 2. Dit is gedaan om het onderscheid te duiden tussen de bijgebouwenmogelijkheden in bouwblokken waar het bouwvlak het gehele achtererfgebied beslaat en in bouwblokken waar het bouwvlak slechts tot de helft van het perceel gaat.

7.2.4 Algemene regels

De algemene regels zijn aangepast aan de Bossche standaarden. Dat betekent dat hierin onder meer is geregeld dat overschrijdingen voor ondergeschikte bouwdelen tot 1 meter zijn toegestaan, en dat de gemeentelijke parkeernormen gelden op grond van Nota Parkeernormering 2016.

Daarnaast is de milieuzone - geurzone overgenomen conform het geldende plan.

Hoofdstuk 8 Maatschappelijke haalbaarheid

8.1 Inspraak en vooroverleg

Over het voorontwerp van dit bestemmingsplan is – overeenkomstig de gemeentelijke Inspraakverordening – gelegenheid tot inspraak geboden, en is vooroverleg gevoerd conform het overleg ex artikel 3.1.1. Besluit ruimtelijke ordening (Bro).

Inspraak

Het voorontwerp bestemmingsplan lag ter inzage van 19 juni 2017 tot en met 31 juli 2017. Gedurende de inspraaktermijn kon iedereen schriftelijk of mondeling een inspraakreactie bij het college van burgemeester en wethouders naar voren brengen. Er zijn vier inspraakreacties ingediend. De inhoud en de reactie daarop worden hieronder samengevat beschreven.

Toevoeging extra woning in zuidwestelijk plandeel 

Inspraakreactie

Insprekers sub 1 en 2 hebben identieke reacties ingediend, en worden in dit eindverslag dan ook gezamenlijk behandeld. Insprekers wonen aangrenzend aan het plangebied van de bestemmingsplanherziening. In het geldende plan Vinkelse Slagen zijn ten oosten van hun percelen maximaal drie bouwkavels ingetekend. Zij hebben bezwaar tegen het feit dat in deze partiele herziening ten oosten van hun percelen maximaal vier bouwkavels worden mogelijk gemaakt.

Insprekers noemen hierbij een aantal redenen van bezwaar tegen het plan, samengevat als volgt.

  • 1. Met de komst van vier bouwkavels wordt de belofte van drie bouwkavels uit het geldende bestemmingsplan verbroken, aldus insprekers.
  • 2. Met de wijziging naar vier bouwkavels wordt het aantal woningen met 33% verhoogd. Als gevolg van deze verdichting krijgen de woningen van insprekers minder lichtinval, verslechtering van bezonning en meer geluidoverlast.
  • 3. Het is volgens insprekers niet nodig om op deze plek vier woningen te realiseren, omdat elders in het plan, waar nog geen bestaande woningen zijn, voldoende mogelijkheden zijn om bouwkavels te realiseren.

Reactie:

In de oorspronkelijke stedenbouwkundige opzet is één van de uitgangspunten dat de dichtheid het grootst is bij het bestaande dorpslint, de Lindenlaan, en afneemt in noordelijke richting. Op deze wijze ontstaat een uitbreiding van de bestaande structuur die goed aansluit op bestaande situatie. Vanwege deze planopzet zijn in het meest noordelijke deel de grote Ruimte-voor-Ruimte kavels gerealiseerd, en worden aan de zuidzijde van deze kavels, aan het Buske, eveneens ruime kavels aangeboden waar ook twee-onder-een-kapwoningen mogelijk zijn.

De partiële herziening bouwt voort op het uitgangspunt van een verdichting van bebouwing in de zone het dichtste bij het bestaande dorpslint (Lindenlaan), terwijl verder van de Lindenlaan af nog steeds een lagere dichtheid is voorzien met ruime kavels. De toevoeging van één woning in dit zuidwestelijke deelgebied nabij de Lindenlaan en dus geen extra volume, past binnen de stedenbouwkundige opzet.

De gemeente begrijpt de vrees van insprekers voor meer bebouwingsvolume aan de achterzijde van hun woningen; het maximale woningaantal in dit deelgebied wordt verhoogd van drie naar vier.

Er is naar de mening van de gemeente echter geen sprake van onevenredige hinder voor insprekers door de toevoeging van een extra woning in dit deelgebied. Bovendien heeft de gemeente een aanpassing gedaan ten aanzien van het bouwvolume:

In het oorspronkelijke stedenbouwkundig plan was beoogd om maximaal drie vrijstaande bouwvolumes op te richten ten oosten van de woningen van insprekers. Het vigerende bestemmingsplan (en ook het voorontwerp bestemmingsplan) had echter opengelaten wat voor type woningen er zouden kunnen komen in dit deelgebied. Er hadden ook rijwoningen kunnen komen.

Gelet op de zorgen van insprekers, en de meest recente inzichten voor dit deelgebied, heeft de gemeente een aanpassing gedaan in het ontwerp bestemmingsplan. De aanpassing betreft het toestaan van maximaal drie bouwvolumes met handhaving van het maximale woningaantal van vier. Tevens worden rijwoningen uitgesloten. Dat betekent dat er ofwel drie vrijstaande woningen kunnen komen, ofwel twee vrijstaande woningen en twee twee-onder-een-kapwoningen (in totaal maximaal vier woningen).

Met deze wijziging wordt enerzijds geborgd dat er geen rijwoningen meer mogelijk zijn, en er dus altijd 'lucht' en ruimte tussen de nieuwe woningen zal zijn. Daarnaast wordt zo geregeld dat er geen uitbreiding is van het beoogde bebouwingsvolume van het oorspronkelijke plan. Er was namelijk door de gemeente beoogd maximaal drie bouwvolumes toe te staan.

Het kavel aan de achterzijde van Jan Steenstraat 12 is reeds verkocht, het betreft een perceel met een breedte van circa 20 meter waarop een vrijstaande woning gerealiseerd zal worden. In het huidige bestemmingsplan kunnen insprekers geconfronteerd worden ruime bouwvolumes in deze zone. Er hadden bijvoorbeeld drie brede rijwoningen kunnen komen of twee brede twee-onder-een-kap-woningen en een (brede) vrijstaande woning.

In het ontwerp bestemmingsplan blijft het aantal volumes dat opgericht kan worden gelijk (maximaal drie), alleen biedt het ontwerpbestemmingsplan de mogelijkheid om in één van deze volumes een twee-onder-kap-woning te realiseren waardoor er vier wooneenheden ontstaan. Hierbij wordt tevens geregeld dat de maximale breedte van een mogelijke twee-onder-een-kapwoning 13 meter is.

Onderstaande schema's visualiseren de bouwmogelijkheden van het huidige bestemmingsplan en van het ontwerpbestemmingsplan. Deze schema's laten de maximale bouwmogelijkheden zien, waarbij opgemerkt moet worden dat de positie van de vrijstaande woning en de twee-onder-een-kapwoning gespiegeld kunnen worden.

afbeelding "i_NL.IMRO.0796.0002357-1401_0009.png"

afbeelding "i_NL.IMRO.0796.0002357-1401_0010.png"

De toevoeging van een woning in de partiële herziening heeft daardoor geen negatieve invloed op het uitzicht, lichtinval of bezonning van de bestaande woning(en).

Toevoeging extra woning in noordelijk plandeel (landgoed)

Inspraakreactie

Insprekers sub 3 en 4 hebben eveneens identieke reacties ingediend, en worden in dit eindverslag dan ook gezamenlijk behandeld.

Insprekers wonen aangrenzend aan het plangebied van de bestemmingsplanherziening. In het geldende plan Vinkelse Slagen zijn ten zuiden van hun percelen geen woningen gepland, maar is er een fraai open gebied voorzien, aldus de insprekers. Zij hebben dan ook bezwaar tegen het feit dat in deze partiële herziening ten zuiden van hun percelen een extra woning wordt mogelijk gemaakt aan de overzijde van de weg (respectievelijk schuin tegenover en recht tegenover de woningen van insprekers). Insprekers hebben hun bouwkavel juist gekozen vanwege de ruime opzet van het plan en het vrije uitzicht. Deze extra woning voor hun woningen zal 'ontegenzeglijk' de waarde van de woning doen verminderen, aldus insprekers. Als insprekers vooraf van deze plannen hadden geweten, dan hadden ze kunnen kiezen voor een andere kavel of in het ergste geval hiermee rekening kunnen houden bij het ontwerp van de woning. Dat is nu niet meer mogelijk.

Insprekers stellen dat tegemoet dient te worden gekomen aan hun grootste bezwaar, namelijk de verwijdering van de 5e woning aan de overkant van hun woningen. Met die aanpassing wordt nog steeds gebleven binnen de grenzen van de verdichting en blijft de ruime opzet van het plan tussen Het Buske, Kruisbos en Kraaienbos behouden. Naar de mening van insprekers zijn de argumenten voor dit plandeel onvoldoende om tot wijziging te komen. Er is naar hun mening geen grond voor de gewenste verdichting van het woningbouwprogramma in het plangebied van fase 1 van de Vinkelse Slagen.

Reactie:

De gemeente heeft zorgvuldig kennisgenomen van de inspraakreacties van insprekers en de daarin geuite bezwaren. De gemeente begrijpt ook dat de in het voorontwerp bestemmingsplan voorgenomen toevoeging van één woning tegenover de woning van insprekers een verandering met zich meebrengt voor insprekers.

De gemeente is van mening dat, hoewel er wel een verandering zou zijn in het uitzicht, deze extra woning geen onevenredige hinder met zich mee zou brengen voor insprekers. Dit blijkt uit een aantal zaken. Het realiseren van een woning op de betreffende plek vormt een gebruikelijke woningbouwsituatie waarbij de voorkanten van de woningen tegenover elkaar staan met een onderlinge afstand van meer dan 20 meter. Gelet op die afstand, zou eventuele inkijk van deze woningen in de woning en tuin van insprekers naar onze mening beperkt zijn. Ook zou er weliswaar sprake zijn van een verandering van het uitzicht, maar zou dit slechts een beperkte verslechtering zijn ten opzichte van het geldende bestemmingsplan. Ook in dit geldende plan was al bebouwing mogelijk tegenover de woningen van insprekers, namelijk bebouwing van bijgebouwen en aanbouwen tot maximaal 5 meter hoogte.

Desondanks heeft de gemeente ervoor gekozen om voor dit gebied de beoogde extra woning uit het plan te verwijderen. Dit is gedaan om zo de zorgen van insprekers weg te kunnen nemen. De aanpassing voldoet daarnaast ook beter aan de stedenbouwkundige randvoorwaarden, en is bovendien conform het geldende bestemmingsplan.

De beoogde verdichting in het plan vindt met name plaats in de zones die het dichtst bij de dorpskern van Vinkel liggen, dus het gebied tussen De Demkes en De Loop, en de strook ten zuiden van De Loop. In die zones worden op deze manier meer betaalbare woningen gerealiseerd, om zo te kunnen voorzien in de steeds sterkere vraag naar dit type woningen. Het noordelijk deel van fase 1 van Vinkelse Slagen is anders van stedenbouwkundige opzet, met ruime kavels.

De samenvoeging van Maasdonk met 's-Hertogenbosch betekent dat uitgegaan moet worden van de gemeentebrede woningbouwopgave. Een beperkte verdichtingsslag binnen het project Vinkelse Slagen kan bijdragen aan deze grote opgave. Als aangegeven is een belangrijk uitgangspunt dat het dorpse en landelijke karakter van Vinkel daarbij behouden en gewaarborgd blijft. Gelet op de ruime stedenbouwkundige opzet waarbij landelijk wonen voorop straat, maar ook gelet op de betaalbare woningen voor het dorp, is de gemeente van mening dat voldaan wordt aan dat uitgangspunt.

De gemeente wil nadrukkelijk bestrijden dat verdichting binnen Vinkelse Slagen niet passend of wenselijk zou zijn. Hierbij wordt primair verwezen naar hetgeen hierover in verschillende passages in het bestemmingsplan is opgenomen, onder meer in:

paragraaf 3.3.1 Structuurvisie ruimtelijke ordening, laatste zin

paragraaf 4.2.2 Beschrijving stedenbouwkundige opzet fase 1, 'Entreedeel Vinkelse Slagen'

De gemeente wil eveneens nadrukkelijk bestrijden dat er geen actuele behoefte zou zijn voor de geplande woningen. Hierbij wordt primair verwezen naar hetgeen hierover in verschillende passages in het bestemmingsplan is opgenomen:

paragraaf 3.2.3 Ladder van duurzame verstedelijking

paragraaf 3.4.2 Nota Wonen

paragraaf 4.1 Woningbouw

Vooroverleg

Op basis van artikel 3.1.1 van het Bro (wettelijk vooroverleg) is het voorontwerp bestemmingsplan toegezonden aan de vooroverlegpartners.

Het waterschap Aa en Maas heeft op 10 juli 2017 schriftelijk bevestigd in te stemmen met de waterparagraaf uit het plan, en de provincie Noord-Brabant heeft per brief van 21 juli 2017 laten weten geen opmerkingen te hebben op het plan. Tot slot heeft ook de Gasunie op 5 juli 2017 laten weten in te kunnen stemmen met het plan.

8.2 Ontwerp bestemmingsplan

Het ontwerp bestemmingsplan is vanaf 9 oktober 2017 gedurende zes weken ter inzage gelegd. Gedurende deze termijn zijn geen zienswijzen ingediend. Het plan wordt nu ter vaststelling aangeboden aan de gemeenteraad.