Type plan: wijzigingsplan
Naam van het plan: Winkeldijk 28a Abcoude
Status: vastgesteld
Plan identificatie: NL.IMRO.0736.BPW006winkeldij28a-va01

Toelichting

  
1 Inleiding
1.1 Aanleiding
Op de Winkeldijk 28a was een rundveehouderijbedrijf gevestigd. De bedrijfsactiviteiten zijn beëindigd en de bedrijfsopstallen zijn verkocht. De nieuwe eigenaren willen op de locatie de bedrijfsactiviteiten voortzetten in de vorm van een paardenhouderij. De bestemming agrarisch blijft behouden; enkel het type dier dat gehouden wordt betreft niet langer uit rundvee maar betreft paarden.
 
In artikel 3.7 lid e van de regels van het bestemmingsplan Abcoude Buitengebied is een wijzigingsbevoegdheid opgenomen om de bestemming Agrarisch te wijzigen ten behoeve van de vestiging van een productiegerichtepaardenhouderij. Onder productiegerichtepaardenhouderij wordt begrepen: een grondgebondenpaardenhouderij die is gericht op het fokken van paarden, het bieden van leefruimte aan opgroeiende paarden met daarbij behorende trainingsfaciliteiten of het voortbrengen van producten door middel van het houden van paarden, zoals een paardenmelkerij of een daarmee gelijk te stellen bedrijfsvorm. Dit sluit aan bij het initiatief van de nieuwe eigenaren.
 
Een wijzigingsplan bestaat uit een plantoelichting, verbeelding en planregels
 
1.2 Ligging plangebied
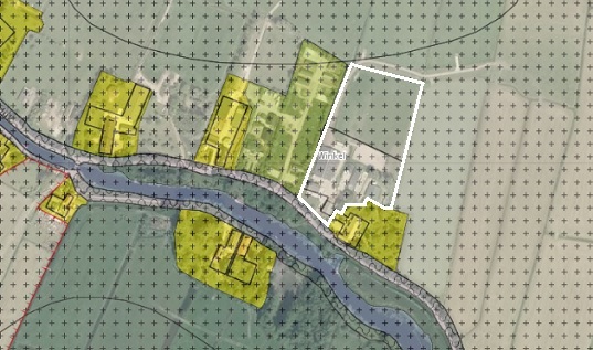
De planlocatie ligt aan de Winkeldijk 28a te Abcoude. De locatie heeft een agrarische bestemming en is gelegen tussen woonbebouwing en een recreatieve bestemming. 
  
Ligging plangebied (plangebied binnen wit kader)   
 
Ligging plangebied (indicatie plangebied witkader)      
1.3 Vigerend bestemmingsplan
Ter plaatse van het plangebied geldt het bestemmingsplan "Abcoude buitengebied", vastgesteld op 17 december 2009, onherroepelijk geworden op 23 november 2011. Ingevolge dit bestemmingsplan rust op het perceel de bestemming 'Agrarisch'. De voor 'Agrarisch' aangewezen gronden zijn bestemd voor
  • de uitoefening van een volledig en volwaardig grondgebonden agrarisch bedrijf;
  • openheid;
  • water en watergangen;
  • behoud en/of herstel van oever- en slootvegetaties;
  • groenvoorzieningen;
met de daarbij behorende:
  • bouwwerken;
  • erfbeplanting;
  • nutsvoorzieningen;
  • wegen en paden;
  • erven en terreinen.
De voorgestane paardenhouderij past niet binnen het vigerende bestemmingsplan. In artikel 3.7 lid e van de regels van het bestemmingsplan Buitengebied is een wijzigingsbevoegdheid opgenomen om de bestemming Agrarisch te wijzigen ten behoeve van de vestiging van een productiegerichte paardenhouderij, mits voldaan wordt aan de volgende voorwaarden:
  1. de bedrijfseconomische noodzaak wordt aangetoond door middel van een bedrijfsplan;
  2. de gebruiksmogelijkheden van aangrenzende gronden mogen niet worden aangetast;
  3. de paardenhouderij dient landschappelijk te worden ingepast.
Uitsnede vigerend bestemmingsplan 'Abcoude Buitengebied' (2009) (plangebied wit omkaderd)
  
1.4 Leeswijzer
In hoofdstuk 2 volgt allereerst een planbeschrijving van de huidige situatie met vervolgens een beschrijving van de voorziene ontwikkeling. In hoofdstuk 3 wordt het initiatief getoetst aan het geldend ruimtelijk beleid op verschillende schaalniveaus. In hoofdstuk 4 wordt ingegaan op de planopzet. Dit valt uiteen in twee delen een juridische en ruimtelijke planopzet. In hoofdstuk 5 wordt de ontwikkeling getoetst aan relevante omgevingsaspecten. De economische uitvoerbaarheid komt aan de orde in hoofdstuk 6, waarna de maatschappelijke uitvoerbaarheid wordt belicht in hoofdstuk 7.
 
2 Planbeschrijving
2.1 Bestaande situatie
Op de Winkeldijk 28a was een rundveehouderijbedrijf gevestigd. De bedrijfsactiviteiten zijn beëindigd en
de bedrijfsopstallen zijn verkocht. De huidige bebouwing bestaat uit een woonhuis (1), een kleine
kalveren- en paardenstal (2), schuur (3), werktuigschuur (10*10) (4), koeienstal (18 * 32) (5), open
voeropslag (3 stuks) (6) een open rijbak (7) en twee silo’s (niet op kaart). In de oude situatie had de
boerderij gezien de milieuvergunning recht op het houden van 85 runderen.
 
Luchtfoto van de huidige situatie (indicatie plangebied wit kader). Mogelijk
worden gebouwen 6 en 7 geïntegreerd.
     
                 
Zicht op de huidige situatie met de twee schuren en de boerderijwoning.
       
2.2 Toekomstige situatie
De nieuwe eigenaren willen starten met een paardenhouderij. Om dit mogelijk te maken moet de aanduiding "paardenhouderij"in de bestemming worden opgenomen.
 
Op de onderstaande afbeelding is een overzicht weer gegeven van de beoogde ontwikkelingen op het terrein. De bestaande schuur (positie 5) moet behouden worden en alle overdekte binnenactiviteiten t.b.v. het trainen van paarden moeten gaan plaatsvinden in de nieuw te realiseren overdekte paardenbak/schuur. Het is noodzakelijk hiervoor een nieuw opstal te realiseren met de specifieke afmetingen, dit is noodzakelijk om de bak voor de beoogde doeleinden geschikt te maken. 
 
In het kader van een goede ruimtelijke ordening is het noodzaak de inpassing aan het geldende beleid te toetsen. Omdat onderhavig plan een locatie buiten het stedelijk gebied betreft is het van belang dat de beoogde ontwikkeling past binnen de landschappelijke omgeving en binnen de gestelde eisen. Ook zal de nieuwe schuur moeten aansluiten op de overige bebouwingen (materialisatie en goothoogten). In het beleidskader wordt onderhavig plan getoetst aan de gestelde eisen. Om deze landschappelijke inpassing te kunnen realiseren is een voorwaardelijke verplichting opgenomen.
  
Nieuwe situatie ten opzichte van huidige situatie. Mogelijk worden nieuwbouw 6
en nieuwbouw 7 geïntegreerd.
 
1woningbestaand
2stallingbestaand
3open bergschuurbestaand
4bergingbestaand
5schuur stallingbestaand
6binnenbak paarden i.p.v. betonnen bakkennieuw
7paardenstallennieuw
8mestput (in grond_ gesloten dmv luik)nieuw
9longeercirkelnieuw
10rijbodem paardennieuw
 Overzicht ontwikkelingen
 
De ontwikkelingen achter het agrarisch bouwvlak passen binnen het vigerend beleid. Waarom deze voorzieningen niet zijn meegenomen in onderhavig plan wordt toegelicht in toelichting paragraaf 4.1 van deze toelichting, tevens wordt daar ingegaan op de beoogde ruimtelijke invulling van de toekomstige situatie.
3 Beleidskader
3.1 Inleiding
Dit hoofdstuk beschrijft in hoeverre de voorgenomen ontwikkeling, die dit wijzigingsplan mogelijk maakt, in overeenstemming is met het geldende ruimtelijke beleidskader van provincie en gemeente. Gezien de recente vaststellingsdatum van dit de gemeentelijke en de provinciale structuurvisie wordt het wijzigingsplan hier ook aan getoetst. 
3.2 Rijksbeleid
3.2.1 Barro
Op 30 december 2011 is het Besluit algemene regels ruimtelijke ordening (Barro) in werking getreden. Voortaan moeten gemeenten bij het vaststellen van bestemmingsplannen, wijzigingsplannen of uitwerkingsplannen rekening houden met het Barro. Doel van het Barro is bepaalde onderwerpen uit de Structuurvisie Infrastructuur en Ruimte te verwezenlijken.
 
In het Barro worden een aantal projecten die van Rijksbelang zijn met name genoemd en exact ingekaderd. Per project worden vervolgens regels gegeven, waaraan bestemmingsplannen zullen moeten voldoen. Het nationale belang dat het stellen van regels voor deze onderwerpen rechtvaardigt, is vastgelegd in de Structuurvisie Infrastructuur en Ruimte.
 
In het Barro worden, na de aanvulling van 1 oktober 2012, vijftien onderwerpen beschreven: mainportontwikkeling Rotterdam, kustfundament, grote rivieren, waddenzee en waddengebied, defensie, erfgoederen van uitzonderlijke universele waarde, rijksvaarwegen, hoofdwegen en landelijke spoorwegen, elektriciteitsvoorziening, ecologische hoofdstructuur, primaire waterkeringen buiten het kustfundament, IJsselmeergebied (uitbreidingsruimte), veiligheid rond rijksvaarwegen, verstedelijking in het IJsselmeer, toekomstige rivierverruiming van de Maastakken.
 
Planspecifiek
Het plan valt niet binnen één van de projecten aangewezen in het Barro. Zoals zichtbaar op onderstaande afbeelding grenst het plangebied zich aan de Ecologische Hoofdstructuur maar ligt het niet in de Ecologische Hoofdstructuur. Daarnaast is het plan dusdanig klein van schaal dat het niet direct van nationaal belang is. Vanuit het Barro zijn er dan ook geen specifieke randvoorwaarden voor dit plan.
 
 
Uitsnede Provinciale Structuurvisie kaart 10:natuur (plangebied binnen wit kader)
3.3 Provinciaal beleid
 
3.3.1 Provinciale Ruimtelijke Structuurvisie (2013)
De Provinciale Ruimtelijke Structuurvisie (PRS) is op 4 februari 2013 vastgesteld door Provinciale Staten van de provincie Utrecht. In de PRS beschrijft de provincie Utrecht haar ruimtelijk beleid voor de periode tot 2018. De provincie Utrecht geeft aan welke doelstellingen zij voor welke gebieden van provinciaal belang achten, welk beleid bij deze doelstellingen hoort en hoe zij uitvoering geven aan dit beleid. Deels wordt uitvoering gegeven aan het beleid via de Provinciale Ruimtelijke Verordening welke tegelijk met de PRS is opgesteld.
In de Provinciale ruimtelijke structuurvisie zijn de volgende provinciale belangen vastgelegd:
  • Duurzame leefomgeving
    1. ontwikkelen van een robuust en duurzaam bodem- en watersysteem en een waterveilige provincie;
    2. behoud van de strategische grondwatervoorraden;
    3. ruimte voor duurzame energiebronnen;
    4. anticiperen op de langetermijngevolgen van klimaatverandering;
    5. behouden en versterken van de kernkwaliteiten van het landschap;
    6. behouden en ontwikkelen van de kwaliteit van de cultuurhistorische hoofdstructuur en de aardkundige waarden.
  • Vitale dorpen en steden
    1. realiseren van voldoende en op de behoefte aansluitend woningaanbod, met een accent op binnenstedelijke ontwikkeling;
    2. een vitale en innovatieve regionale economie, met voldoende en diverse vestigingsmogelijkheden;
    3. optimaal gebruik van de binnenstedelijke ruimte;
    4. een goede bereikbaarheid voor woon-, werk- en vrijetijdsverkeer.
  • Landelijk gebied met kwaliteit
    1. uitnodigende stadlandzones die stad en land verbinden en met een adequaat recreatieaanbod;
    2. behouden en ontwikkelen van een vitaal en samenhangend stelsel van natuurgebieden;
    3. een economisch vitale en duurzame landbouwsector;
    4. behouden en ontwikkelen van de mogelijkheden voor vrijetijdsbesteding (recreatie en toerisme);
    5. behouden van gebieden waar rust en stilte kan worden ervaren.
Planspecifiek
Volgens artikel 6.6.1 valt de locatie binnen het landbouwgebied. Het beleid beschrijft dat landbouw de belangrijkste functie in het gebied moet blijven. Daarnaast is er ruimte voor verbreding. Met name op het gebied van recreatie en natuur. Aangezien de locatie zijn agrarische functie behoud voldoet de ontwikkeling aan het beleid voor landbouwgebieden.
Om de huidige landschapskwaliteit vast te leggen, aan te geven hoe deze landschapskwaliteit de ruimtelijke ontwikkelingen kan sturen en welke kwalitatieve randvoorwaarden het landschap aan deze ontwikkelingen meegeeft, is de kwaliteitsgids voor de Utrechtse Landschappen opgesteld. In de kwaliteitsgids zijn de kwaliteiten van verschillende Utrechtse landschappen vastgelegd in afzonderlijke katernen. Voor het plangebied zijn zoals te zien op onderstaande afbeeldingen het katern Groene Hart en Stelling van Amsterdam relevant.
 
Groene Hart
In dit gebied wil de provincie de volgende kernkwaliteiten behouden en versterken:
  • openheid;
  • (veen)weidekarakter (incl. strokenverkaveling, lintbebouwing, etc.);
  • landschappelijke diversiteit;
  • rust & stilte.
Stelling van Amsterdam
Het Landschap Stelling van Amsterdam is een cultuurhistorisch landschap dat over het landschap Groene Hart heen ligt en een extra laag toevoegt. Voor dit landschap willen we de volgende kernkwaliteiten behouden en versterken:
  • samenhangend stelsel van forten, dijken, kanalen en inundatiekommen;
  • groen en overwegend rustig karakter c.q. relatief ‘stille’ ring rond Amsterdam;
  • relatief grote openheid.
Bij ontwikkelingen in het landschap van de Stelling van Amsterdam wordt het waarborgen en versterken van de samenhang tussen de elementen van de Stelling van Amsterdam centraal gesteld.
 Uitsnede kaartblad 9: landschap PRS (plangebied binnen wit kader)
 
Uitsnede kaartblad 9: landschap PRS (plangebied binnen wit kader)
 
3.3.2 Provinciale Ruimtelijke Verordening (2013)
Tegelijk met de PRS is op 4 februari 2013 de Provinciale Ruimtelijke Verordening vastgesteld door Provinciale Staten van de provincie Utrecht. In maart 2014 is door Provinciale Staten van de provincie Utrecht een partiële herziening vastgesteld. In de PRV wordt deels uitvoering gegeven aan het beleid uit de PRS. De PRV geeft regels met betrekking tot de onderwerpen bodem, water, energie, cultureel erfgoed, wonen, werken, verkeer en vervoer, landelijk gebied, landschap, natuur en recreatie.
 
Planspecifiek
 
Landelijk gebied
De locatie ligt binnen het verstedelijkt landelijk gebied, zoals weergegeven op de kaart 'Landelijk gebied' van de PRV zoals onderstaande afbeelding laat zien.

Uitsnede partiële herziening PRV kaartblad 5: Landelijk gebied (plangebied binnen wit kader)
 
Middels artikel 4.7 wordt geregeld dat een ruimtelijk plan bestemmingen en regels kan bevatten die bij algehele agrarische bedrijfsbeëindiging of bedrijfsverplaatsing toestaan dat de bedrijfswoning en overige bedrijfsgebouwen een andere bedrijfsmatige functie krijgen, mits is voldaan aan de gestelde voorwaarden. Onderhavig plan betreft geen functieverandering. Het bestaande agrarische bedrijf wordt in de nieuwe situatie ook als zodanig gebruikt. Derhalve is onderhavig plan in lijn met de gestelde voorwaarden voor het landelijk gebied.
 
Cultuurhistorie 
Zoals de kaart 'Cultuurhistorie' uit de partiële herziening zoals onderstaande afbeelding weergeeft, ligt de planlocatie binnen het agrarisch cultuurlandschap en de zone militair erfgoed.
 
Agrarisch cultuurlandschap
Middels artikel 2.10 lid c sub 2 wordt geregeld dat een ruimtelijk plan bestemmingen en regels kan bevatten die ruimtelijke ontwikkelingen toestaan, mits voldaan wordt aan de voorwaarde dat de cultuurhistorische waarde van het agrarisch cultuurlandschap wordt behouden en versterkt.  Het Artikel 2.10 lid 2 sub c stelt dat de cultuurhistorische waarde met name ligt in:
  • de aanwezige ontginningstructuur en –richting;
  • de structuur en maatvoering van de boerderijlinten;
  • het waterbeheersingsysteem.
Uitsnede partiële herziening PRV kaartblad 3:Cultuurhistorie (plangebied binnen zwart kader)

In lid 3 wordt verwezen naar bijlage CHS-Agrarisch cultuurlandschap. De bijlage Cultuurhistorie bevat een overzicht van de verschillende gebieden binnen de vier cultuurhistorische thema's en beschrijft per gebied de te behouden en te versterken cultuurhistorische waarden.
 
Het radiale patroon van de middeleeuwse strokenverkaveling van de Ronde Venen, het turfwinningslandschap van de Vinkeveense Plassen en de orthogonale structuur van de droogmakerijen, vormen samen een staalkaart van kenmerkend agrarisch grondgebruik door de eeuwen heen. Vanaf de veenriviertjes Kromme Mijdrecht, Drecht, Waver en Winkel is in de middeleeuwen het grote veenkussen radiaal ontgonnen naar een centraal gelegen hoger punt. De zuid- en oostzijde werd benaderd vanuit de daartoe gegraven Ennipwetering, Geer- en Veenkade en de oostzijde vanuit de Oukoperdijk en de Groenlandsekade. Met zuwes werd het gebied in taartpunten verdeeld en in opstrekkende stroken ontgonnen. Halverwege vestigden zich de ringvormige boerderijlinten van Vinkeveen, Wilnis, Mijdrecht en Waverveen. Van deze ontginningen resteert langs de veenriviertjes nog slechts een smalle zone, terwijl ze in het zuidenoosten nog goed bewaard zijn gebleven. Door intensieve turfwinning in de zeventiende en achttiende eeuw zijn in het noordoosten de Vinkeveense Plassen ontstaan, met een karakteristiek patroon van legakkers en petgaten. In de negentiende eeuw zijn de overige plassen in een viertal droogmakerijen verkaveld binnen zware ringdijken.    
 
Militair erfgoed
Middels artikel 2.10 lid b sub 2 wordt geregeld dat een ruimtelijk plan bestemmingen en regels kan bevatten die ruimtelijke ontwikkelingen toestaan, mits voldaan wordt aan de voorwaarde dat de cultuurhistorische waarde van het militair erfgoed wordt behouden en versterkt. Het Artikel 2.10 lid 2 sub b stelt dat Bij ruimtelijke ontwikkelingen in de nabijheid van de linies het behouden en versterken van de openheid van de voormalige inundatiegebieden en van de samenhang tussen elementen van de linie van groot belang is. De linies zijn bepalend voor de ontwikkelingsrichting en vorm van verstedelijking en grootschalige infrastructuur. De cultuurhistorische waarde van de linies ligt met name in: 
  • de hoofdweerstandslijn inclusief de daarbij behorende elementen en, indien aanwezig, voorposten en stoplijn;
  • de inundatiegebieden en bijbehorende elementen;
  • de accessen en verdedigingswerken.
Conclusie
In onderhavig plan wordt rekening gehouden met de aanwezige ontginningsstructuur en -richting. Ten gevolge van de ontwikkeling blijft de verkavelingsstructuur behouden, blijven bestaande watergangen behouden en worden geen nieuwe watergangen toegevoegd. Met de beoogde ontwikkeling wordt rekening gehouden met de structuur en maatvoering van de huidige en de omliggende bebouwing. Derhalve voldoet het wijzigingsplan aan de provinciale ruimtelijke verordening.
 
3.4 Gemeentelijk beleid
   
3.4.1 Structuurvisie De Ronde Venen 2030
De gemeenteraad van De Ronde Venen heeft deze op 17 oktober 2013 vastgesteld. De structuurvisie biedt een doorkijk naar 2030. In de structuurvisie worden de hoofdlijnen van de voorgenomen ontwikkeling en de hoofdzaken van het gemeentelijk ruimtelijk beleid beschreven.
 
Planspecifiek
Landbouw
Landbouw is de belangrijkste drager van het landschap. Het gebruik door boerenbedrijven staat centraal en bepaalt mede het landschap. De landbouwsector krijgt binnen bepaalde grenzen zoveel mogelijk ruimte voor agrarische bedrijfsontwikkeling. Voor deze ontwikkeling zijn de volgende beleidsdoelen relevant.
  • Landbouw is de belangrijkste drager van het landschap. Het gebruik door boerenbedrijven staat centraal en bepaalt mede het landschap
  • Ontwikkeling van landbouw brengt ook ontwikkeling in het landschap met zich mee.
  • De landbouw heeft te maken met diverse wet- en regelgeving. Het gemeentelijk beleid (bestemmingsplan, Geurbeleid) is erop gericht om binnen deze wet- en regelgeving zoveel mogelijk ruimte te bieden voor agrarische bedrijfsontwikkeling.
  • Innovatie en verduurzaming van (multifunctionele) landbouwbedrijven worden toegejuicht. De gemeente wil hieraan een bijdrage leveren door een proactieve houding in eventuele planologische procedures
  • Intensieve, niet-grondgebonden, landbouw wordt, met name vanwege de effecten op de omgeving, niet toegelaten. Een uitzondering hierop vormen de bestaande intensieve veehouderijbedrijven.
  • Glastuinbouw buiten het glastuinbouwconcentratiegebied blijft mogelijk bij bedrijven met een bestemming ‘glastuinbouwbedrijven’. Vanwege de landschappelijke impact van glastuinbouw geldt hierbij een maximale oppervlakte van 2 ha.
Uit het beleid blijkt dat het behoud van de agrarische sector in het landschap van groot belang is. Met de transformatie blijft de locatie zijn agrarische functie houden. Het terrein behoud zijn functie als boerenbedrijf en is daarmee niet in strijd met de structuurvisie. De gemeente stelt tevens ruimte te geven binnen wet en regelgeving (geur) en geeft aan een proactieve houding te hebben. De structuurvisie is niet in strijd met de ontwikkeling.
 
3.4.2 Structuurvisie Buitengebied gemeente Abcoude 2009
In juli 2009 is de gemeentelijke structuurvisie voor het buitengebied van de voormalige gemeente Abcoude vastgesteld. De visie is verbeeld op twee kaarten: 'Landschappelijke zonering' en 'Functionele zonering' die samen de 'Duurzame Ruimtelijke Structuur' voor het plangebied vormen. Op deze kaarten zijn de ambities en ontwikkelingsmogelijkheden van het plangebied voor de langere termijn weergegeven.
 
De dynamiek in het landelijk gebied neemt toe. Sommige veranderingsprocessen zijn voorzienbaar, andere doen zich als het ware 'at random' en onvoorspelbaar voor op basis van initiatieven in het veld. Om de kernkwaliteiten te behouden is er een structuurvisie voor het buitengebied van de gemeente Abcoude opgesteld.  In de structuurvisie staan ontwerprichtlijnen opgesteld voor de inrichting van het erf.
 
Planspecifiek
Het plangebied bevindt zich in 'veenweidegebied' en 'open gebied'. Een belangrijk deel van het veengebied is vanaf de middeleeuwen door verkaveling met sloten ontwaterd en als grasland in cultuur gebracht. Door het ontwerpen van kades ontstonden polders, waaruit het water wordt afgevoerd via de boezemwateren. De veenbodem en de bijbehorende waterhuishouding hebben een grote invloed op de ontwikkelingsmogelijkheden voor de landbouw. De productie van groene diensten, verdieping en verbreding van de landbouw worden door de provincie gestimuleerd.
 
Volgens de Nota Belvedere is het veenweidelandschap binnen het Vecht- en Plassengebied belangrijk. Kenmerken zijn de zeer lange, opstrekkendeverkavelingen en de karakteristieke lintbebouwing langs ontginningsassen met waardevolle boerderijen, de cultuurhistorisch waardevolle verveningsrestanten en petgaten en de restanten van eendenkooien, jaagpaden, kaden en weteringen.
 
Tevens zijn per landschapstype ontwerprichtlijnen opgenomen, onder andere voor het landschap, de kavel en specifiek voor paardenbakken welke in het hele buitengebied van toepassing zijn. Voorliggend plan past binnen het gedachtegoed van de hiervoor genoemde ontwerprichtlijnen voor veenweidegebied.
  
4 Planopzet
 
4.1 Ruimtelijke planopzet
Impressie
Onderstaande afbeeldingen bieden een weergave van de toekomstige invulling van onderhavig plan
Impressie toekomstige invulling terrein
 
Ruimtelijke uitgangspunt 1: productiegerichtepaardenhouderij
In dit wijzigingsplan wordt een productiegerichtepaardenhouderij mogelijk gemaakt op het perceel Winkeldijk28a.
 
In de nieuwe situatie zullen er circa 15 tot 20 paarden gehouden worden. Het schema hieronder laat zien welke activiteiten er onder een paardenhouderij vallen. De activiteiten die in het schema in een groene kleur zijn weergegeven zijn de onderdelen waar volgens het business plan van de initiatiefnemer plaatsvinden binnen het bedrijf.
 
Schema activiteiten paardenhouderij (groen = relevant voor deze situatie)
 
Ruimtelijke uitgangspunt 2: hinderafstand geur
Een afstand van minimaal 50 meter vanaf het emissiepunt van de nieuw te bouwen stal tot aan de geurgevoelige objecten in de omgeving moet in acht worden genomen op grond van geurwetgeving. Zie voor de achtergronden hiervan: toelichting paragraaf 5.3 van deze plantoelichting.
 
Ruimtelijke uitgangspunt 3: landschappelijke inpassing
Om te voldoen aan een belangrijke voorwaarde, in de bestemmingsplanregels van  "Abcoude Buitengebied" gesteld aan een wijzigingsplan voor een productiegerichtepaardenhouderij, voorziet dit plan in een landschappelijke inpassing van de beoogde productiegerichtepaardenhouderij. 
 
De landschappelijke inpassing is voorbesproken met een ervenconsulent van Landschap Erfgoed Utrecht, tevens aanspreekpunt van Welstand en Monumenten. Dit overleg met de ervenconsulent heeft geleid tot een inpassing waarbij de invulling van het terrein vanaf de buitencontouren van laag naar hoog zijn opgebouwd en is afgezoomd met landelijk inpasbare functies en groen. Het project heeft een duurzame insteek waarbij een goede landelijke inpassing van een kleinschalig agrarisch bedrijf centraal staat. 
 
Ruimtelijke uitgangspunt4: voorzieningen
De gebouwen voor het nieuwe agrarische bedrijf worden binnen het bestaande bouwvlak gesitueerd. Deels wordt gebruik gemaakt van bestaande bebouwing. Buiten het bouwvlak worden ook enkele voorzieningen voor het bedrijf gesitueerd. Deze voorzieningen omvatten geen bouwwerken, te noemen mestzak (8), longeercirkel (9), rijbodem(10). De voorzieningen gelegen buiten het bouwvlak en in overeenstemming met het geldende planologische kader zoals opgenomen in het bestemmingsplan Abcoude Buitengebied. 
 
De longeercirkel wordt mogelijk op termijn vervangen door een loopmolen. De rijbodem, gelegen buiten het bouwvlak, betreft grondverbetering ten behoeve van het trainen van paarden. De rijbodem wordt omzoomd met streekgebonden struikgroen met als doel een landschappelijke inpassing realiseren. Bij het aanleggen of verplaatsen van een paardenbak heeft de plaatsing op het achtererf de voorkeur, de rijbodem valt dan weg achter de bebouwing.   
 
Ontwikkeling (voor de verklaring van de nummers, zie tabel in paragraaf 2.2.)
Mogelijk worden gebouwen 6 en 7 geïntegreerd.
4.2 Juridische planopzet
Algemene juridische uitgangspunten met betrekking tot het wijzigingsplan
Voor dit wijzigingsplan wordt aangesloten op het geldende planologische kader zoals opgenomen in het bestemmingsplan Abcoude Buitengebied. De regels vanuit het 'moederplan' worden van overeenkomstige toepassing verklaard. Voor het wijzigingsplan is gebruik gemaakt van de in de Wet ruimtelijke ordening opgenomen standaardvorm van de Standaard Vergelijkbare Bestemmingplannen 2012 (SVBP 2012).
 
Het wijzigingsplan bestaat uit een verbeelding, planregels en een toelichting. De verbeelding en de planregels vormen samen het juridisch bindende gedeelte van het bestemmingsplan. Beide planonderdelen dienen in onderlinge samenhang te worden bezien en toegepast. Op de verbeelding zijn de bestemmingen aangewezen. Aan deze bestemmingen zijn bouwregels en regels betreffende het gebruik gekoppeld.
 
De toelichting heeft geen rechtskracht, maar vormt niettemin een belangrijk onderdeel van het plan. De toelichting van dit wijzigingsplan geeft een weergave van de beweegredenen, de onderzoeksresultaten en de beleidsuitgangspunten die aan het wijzigingsplan ten grondslag liggen. Ook is de toelichting van wezenlijk belang voor een juiste interpretatie en toepassing van het bestemmingsplan.
 
Juridische aspecten van ruimtelijk uitgangspunt 1: productiegerichte paardenhouderij
Om een productiegerichte paardenhouderij mogelijk te maken op het perceel Winkeldijk 28a wordt gebruik gemaakt van de wijzigingsbevoegdheid die is opgenomen in artikel 3.7 lid e van de regels van bestemmingsplan Abcoude Buitengebied. Hierin staat dat de bestemming "Agrarisch" mag worden gewijzigd ten behoeve van de vestiging van een productiegerichte paardenhouderij, mits:
a. de bedrijfseconomische noodzaak wordt aangetoond door middel van een bedrijfsplan;
b. de gebruiksmogelijkheden van aangrenzende gronden niet wordt aangetast;
c. de paardenhouderij landschappelijk wordt ingepast.
 
Om de wijziging mogelijk te maken dient het initiatief getoetst te worden aan de gestelde voorwaarden.
 
Voorwaarde a
Samenvatting bedrijfsplan:
Het bedrijf genaamd Equi Smart, staat  voor kwaliteit en welzijn van paarden. Het directe doel is niet om snel geld te verdienen ten gunste van de directe investeringen. Het concept is bedoeld voor de langere termijn, een duurzame onderneming. De prognose ziet er als volgt uit:
 
Aantal verkopen
  • 2017: 2 jonge paarden of 1 volwassen (€10.000 totaal)
  • 2018: 2 volwassen (€22.500 totaal)
  • 2019: 3 volwassen (€45.000 totaal)
  • 2020: 3 volwassen (€90.000 totaal)
  • 2021: 4 volwassen (€105.000 totaal)
  • 2022: 4 of 5 volwassen paarden (€125.000 totaal)
 
Missie
Topsportpaarden fokken die zowel goed zijn op het gebied van dressuur, springen als de cross. Daarbij fokken, trainen en houden we paarden op een zo paardvriendelijke mogelijke manier.
 
Marktinformatie
Kerngegevens: 
Aantal vestigingen: 1.187
Aantal werkzame personen: 3.370
26% van de bedrijven heeft personeel aangenomen
 
Het aantal Nederlandse paardensporters met een eigen paard/pony is toegenomen van circa 90.800
(2006) tot circa 127.700 (2011). Dit is een stijging van ongeveer 41%.
 
Conclusie:
Door de initiatiefnemers is een bedrijfsplan opgesteld. Deze is te vinden in de bijlage. De onderneming heeft een duurzame ambitie door kleinschalig en kwalitatief hoogwaardig werk te leveren. Tevens blijkt uit het Business plan dat de vraag naar sportpaarden stijgt. Uit het Business plan valt te concluderen dat het een duurzame onderneming betreft waar voldoende economische vraag naar is. Er wordt voldaan aan voorwaarde a.
 
Voorwaarde b
De gebruiksmogelijkheden van aangrenzende gronden worden niet aangetast. In toelichting hoofdstuk 5 wordt aangetoond wat de gevolgen zijn van het wijzigingsplan en in hoeverre er eventueel nader onderzoek nodig is.
De punten Milieueffectrapportage, luchtkwaliteit en geur leveren geen belemmering vormt voor onderhavige planontwikkeling. Uit de toetsing blijkt ook dat er geen hinder of belemmeringen aan de aangrenzende gronden wordt verwacht. Daarnaast verminderd het aantal dieren in de nieuwe situatie ten opzichte van de bestaande situatie. De eventuele belasting van de aangrenzende gronden neemt in de nieuwe situatie af. Hieruit valt te concluderen dat er voldaan wordt aan voorwaarde b.
 
Voorwaarde c
Bij de transformatie worden vormgevende bestaande panden behouden. De nieuwe schuur zal aansluiten op de overige bebouwingen (materialisatie en goothoogten), zie toelichting paragraaf 2.2.
Voor de toekomstige bebouwing worden de bouwplannen in onderling overleg met een ervenconsulent ontwikkeld t.b.v. een landelijke inpassing. Tevens is het vooroverleg met Landschap Erfgoed Utrecht is reeds opgestart. De voorwaardelijke verplichting borgt de landelijke inpassing, hiertoe wordt een inpassingsplan opgesteld.
 
Zoals beschreven staat in de Structuurvisie De Ronde Venen, toelichting paragraaf 3.4.1, is landbouw de belangrijkste drager van het landschap. Het gebruik van het boerenbedrijven staat centraal en bepaalt mede het landschap. Het zijn de dragers van de landschappelijke kwaliteit. Het behoud van de agrarische functie in de vorm van een paardenhouderij sluit aan bij de visie uit de structuurvisie. De paardenhouderij draagt bij aan het agrarische landschap en voldoet daarbij aan een goede landschappelijke inpassing.
 
Geconcludeerd kan worden dat het initiatief voldoet aan de voorwaarden van de wijzigingsbevoegdheid. Het college kan dan ook door middel van dit wijzigingsplan de bestemming wijzigen. 
  
Juridische aspecten van ruimtelijk uitgangspunt 2: hinderafstand geur
Om de in acht te nemen minimale hinderafstand van 50 m voor geur te waarborgen is in regel 3 lid a van het wijzigingsplan een algemeen gebruiksverbod opgenomen voor het situeren van een emissiepunt op een kleinere afstand dan 50 meter ten opzichte van een geurgevoelig object zoals bedoeld in de Wet geurhinder en veehouderij.
  
Juridische aspecten van ruimtelijk uitgangspunt 3: landschappelijke inpassing
In artikel 2 van de regels van dit plan is een voorwaardelijke verplichting opgenomen om te waarborgen dat de noodzakelijke landschappelijke inpassing inderdaad plaatsvindt. Het plangebied is binnen het landelijk gebied gelegen. Uit het provinciaal en gemeentelijk beleid blijkt het belang van de landschappelijke inpasbaarheid van het plangebied. Met deze voorwaardelijke verplichting wordt dit belang in de uitvoering van landschappelijke inpasbaarheid gewaarborgd.
   
Juridische aspecten van ruimtelijk uitgangspunt 4: voorzieningen
Voor de realisatie /  ontwikkeling van de beoogde voorzieningen buiten het bouwvlak zijn er de volgende juridisch-procedurele mogelijkheden:
  • De realisatie van de mestzak zou plaats kunnen vinden via het aanvragen van een omgevingsvergunning in (binnenplanse) afwijking van het bestemmingsplan met gebruikmaking van artikel 3.3 sub d van de planregels. In dat artikel is een afwijkingsbevoegdheid opgenomen voor het toestaan van mestzakken net buiten het bouwvlak. Het gaat hierbij om een discretionaire bevoegdheid  van burgemeester en wethouders om al dan niet mee te werken. Dat betekent dat burgemeester en wethouders op een aanvraag daarvoor hun eigen afweging kunnen maken, een belangenafweging die pas wordt gemaakt / plaatsvindt naar aanleiding van een concrete aanvraag.
  • De realisatie van een loopmolen zou kunnen plaatsvinden via het aanvragen van een omgevingsvergunning in (buitenplanse) afwijking van het bestemmingsplan met gebruikmaking van artikel 2.12 lid 1 onder a2 of a3 Wet algemene bepalingen omgevingsrecht (Wabo) of door een verruiming van het bouwvlak bij de herziening van bestemmingsplan Abcoude Buitengebied. Ook hier geldt het voorbehoud dat er pas naar aanleiding van een concrete aanvraag een belangenafweging zal worden gemaakt die zal uitwijzen of de gemeente hieraan meewerkt.
  • Voor het realiseren van de rijbodem moet een omgevingsvergunning voor het uitvoeren van werken (grondverbetering) worden aangevraagd.
  
5 Omgevingsaspecten
In het kader van een 'goede' ruimtelijke ordening moet het aantoonbaar zijn dat een nieuwe ontwikkeling uitvoerbaar is. Hiervoor moeten de milieutechnische gevolgen in beeld gebracht worden. Omdat gebruik gemaakt wordt van de wijzigingsbevoegdheid, zoals deze in het geldende bestemmingsplan is opgenomen, kan verwezen worden naar de toelichting behorende bij het bestemmingsplan. Hierin is gemotiveerd dat de wijzigingsbevoegdheid voldoet aan een goede ruimtelijke ordening. In dit hoofdstuk worden per relevant milieuaspect de gevolgen beschreven en de eventueel noodzakelijke onderliggende haalbaarheidsonderzoeken toegelicht. De relevante aspecten zijn luchtkwaliteit en geur aangezien deze van toepassing zijn bij de verandering van een rundveehouderij naar een paardenhouderij.
5.1 Milieueffectrapportage
De milieueffectrapportage (m.e.r.) is een hulpmiddel om bij diverse procedures het milieubelang een volwaardige plaats in de besluitvorming te geven. Een m.e.r. is verplicht bij de voorbereiding van plannen en besluiten van de overheid over initiatieven en activiteiten van publieke en private partijen die belangrijke nadelige gevolgen voor het milieu kunnen hebben. De m.e.r. is wettelijk verankerd in hoofdstuk 7 van de Wet milieubeheer. Naast de Wet milieubeheer is het Besluit m.e.r. belangrijk om te kunnen bepalen of bij de voorbereiding van een plan of een besluit de m.e.r.-procedure moet worden doorlopen. Bij toetsing aan het Besluit m.e.r. zijn er vier mogelijkheden:
  1. het plan of besluit is direct m.e.r.-plichtig;
  2. het plan of besluit bevat activiteiten uit kolom 1 van onderdeel D, en ligt boven de (indicatieve) drempelwaarden, zoals beschreven in kolom 2 ‘gevallen’, van onderdeel D. Het besluit moet eerst worden beoordeeld om na te gaan of er sprake is van m.e.r.-plicht: het besluit is dan m.e.r.-beoordelingsplichtig. Voor een plan in kolom 3 ‘plannen’ geldt geen m.e.r-beoordelingsplicht, maar direct een (plan-)m.e.r.-plicht;
  3. het plan of besluit bevat wel de activiteiten uit kolom 1, maar ligt beneden de drempelwaarden, zoals beschreven in kolom 2 ‘gevallen’, van onderdeel D: er dient in overleg met de aanvrager van het bijbehorende plan of besluit beoordeeld te worden of er aanleiding is voor het uitvoeren van een m.e.r.-beoordeling (als sprake is van een besluit) of het direct uitvoeren van een m.e.r. (als sprake is van een plan). Deze keuze wordt uiteindelijk in het bijbehorende plan of besluit gemotiveerd;
  4. de activiteit(en) of het betreffende plan en/of besluit worden niet genoemd in het Besluit m.e.r.: er geldt geen m.e.r.-(beoordelings)plicht.
Planspecifiek
Het plan omvat de transformatie van een rundveehouderij naar een paardehouderij. De bestemming is per heden agrarisch met  een bedrijfsmatige rundveehouderij met ca. 85 stuks vee en de gewenste bestemming is agrarisch met een bedrijfsmatige paardenhouderij met ca. 20 stuks paarden.  Uit toetsing aan het Besluit m.e.r. volgt dat deze ontwikkeling valt onder mogelijkheid c. Het besluit bevat namelijk wel een activiteit uit kolom 1 (De oprichting, wijziging of uitbreiding van een installatie voor het fokken, mesten of houden van dieren - D14). Maar er wordt niet voldaan aan de gegeven drempelwaarde van 100 stuks paarden of pony’s of meer. Omdat het in onderhavig plan gaat om 20% van de drempelwaarde kan afgezien worden van een m.e.r.-beoordeling en kan worden volstaan met een vormvrije m.e.r. beoordeling. Deze vormvrije m.e.r.-beoordeling kan tot twee conclusies leiden:
  1. belangrijke nadelige milieugevolgen zijn uitgesloten: er is geen m.e.r.(-beoordeling) noodzakelijk;
  2. belangrijke nadelige gevolgen voor het milieu zijn niet uitgesloten: er moet toch een m.e.r.-beoor­de­ling plaatsvinden of er kan direct worden gekozen voor m.e.r.
In de hiernavolgende paragrafen worden geen belangrijke nadelige milieugevolgen gesignaleerd. Deze gevolgen kunnen derhalve worden uitgesloten. Daarmee is geen nadere m.e.r.-beoordeling noodzakelijk en kan volstaan worden naar de reguliere onderzoeken in het kader van een goede ruimtelijke ordening.
5.2 Luchtkwaliteit
In de Wet Milieubeheer gaat paragraaf 5.2 over luchtkwaliteit. Deze paragraaf vervangt het Besluit Luchtkwaliteit 2005 en staat ook wel bekend als de ‘Wet luchtkwaliteit’. De Wet luchtkwaliteit introduceert het onderscheid tussen 'kleine' en 'grote' projecten. Kleine projecten dragen 'niet in betekenende mate' (NIBM) bij aan de verslechtering van de luchtkwaliteit. Een paar honderd grote projecten dragen juist wel 'in betekenende mate' bij aan de verslechtering van de luchtkwaliteit. Het gaat hierbij vooral om bedrijventerreinen en infrastructuur (wegen).
Wat het begrip 'in betekenende mate' precies inhoudt, staat in een de algemene maatregel van bestuur ‘Niet in betekenende mate bijdragen’ (Besluit NIBM). Op hoofdlijnen komt het erop neer dat 'grote' projecten die jaarlijks meer dan 3 procent bijdragen aan de jaargemiddelde norm voor fijn stof en stikstofdioxide (1,2 microgram per m
3) een 'betekenend' negatief effect hebben op de luchtkwaliteit. 'Kleine' projecten die minder dan 3 procent bijdragen, kunnen doorgaan zonder toetsing. Dat betekent bijvoorbeeld dat lokale overheden een woonwijk van minder dan 1.500 huizen niet hoeven te toetsen aan de normen voor luchtkwaliteit. Deze kwantitatieve vertaling naar verschillende functies is neergelegd in de Regeling 'niet in betekenende mate bijdragen'.
Een belangrijk onderdeel voor de verbetering van de luchtkwaliteit is het Nationale Samenwerkingsprogramma Luchtkwaliteit (NSL). Binnen dit NSL, dat sinds 1 augustus 2009 in werking is, werken het Rijk, de provincies en gemeenten samen om de Europese eisen voor luchtkwaliteit te realiseren.
 
Besluit gevoelige bestemmingen
Op 16 januari 2009 is het Besluit gevoelige bestemmingen in werking getreden. Het Besluit gevoelige bestemmingen is gebaseerd op artikel 5.16a van de Wet milieubeheer. Met het Besluit wordt de vestiging van zogeheten 'gevoelige bestemmingen' in de nabijheid van provinciale- en rijkswegen beperkt. Dit heeft consequenties voor de ruimtelijke ordening.
Het Besluit is gericht op bescherming van mensen met een verhoogde gevoeligheid voor fijn stof (PM10) en stikstofdioxide (NO2), in het bijzonder kinderen, ouderen en zieken. Indien een project betrekking heeft op een gevoelige bestemming en geheel of gedeeltelijk is gelegen op een afstand van 300 m aan weerszijden van rijkswegen en 50 meter langs provinciale wegen (gemeten vanaf de rand van de weg) mag het totaal aantal mensen dat hoort bij een gevoelige bestemming niet toenemen als overschrijding van de grenswaarden voor PM10 of NO2 dreigt/plaatsvindt.
De volgende gebouwen met de bijbehorende terreinen zijn aangemerkt als gevoelige bestemming:
  • scholen;
  • kinderdagverblijven;
  • verzorgings-, verpleeg- en bejaardentehuizen.
Het gaat hierbij niet om bestemmingen in de meest enge zin van het woord, maar om alle vergelijkbare functies, ongeacht de exacte aanduiding ervan in bestemmingsplannen en andere besluiten.
In het kader van het opstellen van een bestemmingsplan moeten er twee aspecten in beeld gebracht worden. Ten eerste of de luchtkwaliteit de nieuwe functie toelaat. Ten tweede moet bekeken worden of het plan de luchtkwaliteit ‘niet in betekenende mate’ verslechtert. Indien het plan wel ‘in betekenende mate’ bijdraagt aan verslechtering van de luchtkwaliteit, is het van belang om te toetsen of de grenswaarden niet overschreden worden. Indien geen overschrijding van de grenswaarden plaatsvindt, kan het plan alsnog gerealiseerd worden.
 
Planspecifiek
Stikstof emissie
De transformatie van een rundveehouderij met een mogelijkheid tot 85 runderen naar een paardenhouderij met een mogelijkheid tot 20 paarden draagt in niet betekenende mate mee aan de verslechtering van de luchtkwaliteit. De hoeveelheid dieren neemt in der mate af dat hier geen problemen voorzien worden. Tevens bevinden zich geen gevoelige bestemmingen op het terrein. Uit de bijlage van de Regeling ammoniak en veehouderij blijkt dat de NH3 emissie per dier, per jaar hoger is bij rundvee dan bij paarden.
 
Verkeersbewegingen
Met de verkleining van het bedrijf is een afname van het aantal verkeersbewegingen aannemelijk. Hierdoor verbetert de luchtkwaliteit. Gezien het bovenstaande en de afnamen in het aantal verkeersbewegingen maakt dat het aspect luchtkwaliteit geen belemmering vormt voor onderhavige planontwikkeling.
5.3 Geur
De Wet geurhinder en veehouderij (Wgv) vormt sinds 1 januari 2007 het nieuwe beoordelingskader bij milieuvergunningen en ruimtelijke plannen. In tegenstelling tot eerdere regelgeving houdt de Wgv, naast de beleving, de omvang van de bron en de ruimtelijke scheiding, ook rekening met de meteorologische omstandigheden. Ook biedt de Wgv de mogelijkheid maatwerk te leveren voor de plaatselijke omstandigheden. Hiervoor moet een gemeente of een regio een gebiedsvisie opstellen.
 
Het buitengebied van de voormalige gemeente Abcoude inclusief Baambrugge vormt een belangrijk onderdeel van het Groene Hart, met name als uitloopgebied voor Amsterdam. De melkrundveehouderijen en paardenhouderijen zijn karakteristiek voor dit gebied. Het zijn de dragers van de landschappelijke kwaliteit. De gemeente streeft bij de ruimtelijke inrichting van het landelijk gebied naar behoud en versterking van deze landschappelijke kwaliteit. Vandaar dat de gemeente een lokaal geurbeleid landelijk gebied heeft. Door het beleid is de minimaal toegestane afstand tussen stallen en geurgevoelige gebouwen gehalveerd.
 
Notitie Lokaal geurbeleid Landelijk gebied Abcoude
Het beleid van de gemeente is gericht op het behoud en de versterking van de grondgebonden veehouderij en met name de melkrundveehouderijen zodat door hen het gevarieerde open weidelandschap in stand kan worden gehouden. Het ruimtelijke ordeningsbeleid van de gemeente is met name gericht op het - waar mogelijk - bieden van voldoende ruimte aan deze bedrijven en tegelijkertijd de kwaliteiten van het landschap te bewaren en zo mogelijk te verbeteren. Voor veel melkrundveehouderijen geldt dat een economisch rendabele bedrijfsvoering alleen mogelijk is als het aantal dieren wordt uitgebreid. Volwaardige agrarische bedrijven krijgen daarom in bestemmingsplannen, als enige in het landelijk gebied, de mogelijkheid om hun bedrijfsbebouwing uit te breiden binnen de bouwvlakken. Deze bouwmogelijkheden zijn wel gebonden aan regels die met name vanuit landschappelijk oogpunt (doorzicht, evenwijdig aan slagenlandschap) zijn gesteld.
 
De Wet geurhinder en veehouderij (Wgv) geeft de gemeente de mogelijkheid om via een verordening lokaal beleid vast te stellen voor de geurbelasting en de vaste afstanden. Dit om een gewenste ruimtelijke ontwikkeling mogelijk te maken.
 
De verordening lokaal geurbeleid voor het grondgebied van de voormalige gemeente Abcoude stelt dat indien het geurgevoelig object, zoals een woonhuis, buiten de bebouwde kom staat, schrijft de wet een vaste afstand van 50 m voor tussen de veehouderij en dit object. De verordening verkleint deze afstand tot 25 m. Dit geldt alleen voor bestaande dierenverblijven en geurgevoelige objecten. Dat betekent dat nieuwe dierenverblijven en nieuwe geurgevoelige objecten op de wettelijke afstand van 50 m moeten worden gerealiseerd.
 
Planspecifiek
Buiten de bebouwde kom geldt dat op grond van de Wgv een afstand van 50 m tussen het emissiepunt van het dierenverblijf (punt 7) en de naburige geurgevoelige objecten. De gemeentelijke verordening om af te wijken van de Wgv is niet van kracht op deze situatie aangezien de stallen nieuwbouw zijn. Op grond van de Wvg geldt dat de minimale afstand tussen geurgevoelige gebouwen en de stallen 50 m moet zijn. Op de onderstaande afbeelding is te zien dat om punt 7 een grijs kader (feitelijk een bouwzone) is ingetekend, dat zich bevindt op minstens 50 m afstand van de bestaande geurgevoelige bebouwing in de direct omgeving. De 50 m is middels maatvoering aangegeven. Hieruit valt te concluderen dat het aspect geur vormt geen belemmering vormt voor onderhavige planontwikkeling.
 
Geurcontour (voor de verklaring van de nummers, zie de tabel in paragraaf 2.2.)
Mogelijk worden gebouwen 6 en 7 geïntegreerd. Daarbij zullen de verplichte
minimumafstanden m.b.t. geur in acht moeten worden genomen.
 
5.4 Bodem
In de huidige situatie heeft het plangebied een agrarische functie. In de nieuwe situatie blijft het plangebied in gebruik voor agrarische doeleinden echter wordt de invulling veranderd van veehouderij naar paardenhouderij. Het bodemgebruik en de hierbij behorende bodeminvloeden blijven naar redelijke verwachting nagenoeg gelijk. Door het gebruik van de mestzak is de infiltratie van meststoffen in de bodem tot een minimum beperkt. Tevens neemt het aantal dieren in de nieuwe situatie af ten opzichte van de bestaande situatie. Hiermee neemt eventuele belasting van de aangrenzende gronden in de nieuwe situatie af. Derhalve is het niet noodzakelijk een bodemonderzoek uit te voeren.
 
5.5 Externe veiligheid
Sommige activiteiten brengen risico's op zware ongevallen met mogelijk grote gevolgen voor de omgeving met zich mee. Externe veiligheid richt zich op het beheersen van deze risico's. Het gaat daarbij om onder meer de productie, opslag, transport en het gebruik van gevaarlijke stoffen. Dergelijke activiteiten kunnen een beperking opleggen aan de omgeving. Door voldoende afstand tot de risicovolle activiteiten aan te houden kan voldaan worden aan de normen. Aan de andere kant is de ruimte schaars en het rijksbeleid erop gericht de schaarse ruimte zo efficiënt mogelijk te benutten. Het ruimtelijk beleid en het externe veiligheidsbeleid moeten dus goed worden afgestemd. De wetgeving rond externe veiligheid richt zich op de volgende risico’s:
  • risicovolle (Bevi-)inrichtingen;
  • vervoer gevaarlijke stoffen door buisleidingen;
  • vervoer gevaarlijke stoffen over weg, water en spoor.
Daarnaast wordt er in de wetgeving onderscheid gemaakt tussen de begrippen kwetsbaar en beperkt kwetsbaar en plaatsgebonden risico en groepsrisico.
 
Kwetsbaar en beperkt kwetsbaar
Kwetsbaar zijn onder meer woningen, onderwijs- en gezondheidsinstellingen, kinderopvang- en dagverblijven en grote kantoorgebouwen (>1500 m²). Beperkt kwetsbaar zijn onder meer kleine kantoren, winkels, horeca en parkeerterreinen. De volledige lijst wat onder (beperkt) kwetsbaar wordt verstaan is in het Besluit externe veiligheid inrichtingen (Bevi) opgenomen.
 
Plaatsgebonden risico en groepsrisico
Het plaatsgebonden risico (voorheen individueel risico) wordt uitgedrukt in een contour van 10-6 als grenswaarde. Het realiseren van kwetsbare objecten binnen deze contour is niet toegestaan. Het realiseren van beperkt kwetsbare objecten binnen deze contour is in principe ook niet toegestaan. Echter, voor beperkte kwetsbare objecten is deze 10-6 contour een richtwaarde. Mits goed gemotiveerd kan worden afgeweken van deze waarde tot de 10-5 contour.
Het groepsrisico is gedefinieerd als de cumulatieve kansen per jaar dat ten minste 10, 100 of 1000 personen overlijden als rechtstreeks gevolg van hun aanwezigheid in het invloedsgebied van een inrichting en een ongewoon voorval binnen die inrichting waarbij een gevaarlijke stof betrokken is. Het groepsrisico wordt niet in contouren vertaald, maar wordt weergegeven in een grafiek. In de grafiek wordt de groepsgrootte van aantallen slachtoffers (x-as) uitgezet tegen de cumulatieve kans dat een dergelijke groep slachtoffer wordt van een ongeval (y-as). Voor het groepsrisico geldt geen grenswaarde, maar een zogenaamde oriëntatiewaarde. Daarnaast geldt voor het groepsrisico een verantwoordingsplicht. Het bevoegd gezag moet aangeven welke mogelijkheden er zijn om het groepsrisico in de nabije toekomst te beperken, het moet aangeven op welke manier hulpverlening, zelfredzaamheid en bestrijdbaarheid zijn ingevuld. Hierbij geldt hoe hoger het groepsrisico, hoe groter het belang van een goede groepsrisicoverantwoording.
 
Risicovolle (Bevi-)inrichtingen
Voor (de omgeving van) de meest risicovolle bedrijven is het 'Besluit externe veiligheid inrichtingen' (Bevi) van belang. Het Bevi legt veiligheidsnormen op aan bedrijven die een risico vormen voor mensen buiten de inrichting. Het Bevi is opgesteld om de risico's, waaraan burgers in hun leefomgeving worden blootgesteld vanwege risicovolle bedrijven, te beperken. Het besluit heeft tot doel zowel individuele als groepen burgers een minimaal (aanvaard) beschermingsniveau te bieden. Via een bijhorende ministeriële regeling (Revi) worden diverse veiligheidsafstanden tot kwetsbare en beperkt kwetsbare objecten gegeven. Aanvullend op het Bevi zijn in het Vuurwerkbesluit en het Activiteitenbesluit (Besluit algemene regels inrichtingen milieubeheer) veiligheidsafstanden genoemd die rond minder risicovolle inrichtingen moeten worden aangehouden.
 
Vervoer gevaarlijke stoffen door buisleidingen
Met betrekking tot het beleid en de regelgeving voor het vervoer van gevaarlijke stoffen door buisleidingen zijn het Besluit externe veiligheid buisleidingen en de Structuurvisie buisleidingen van belang. Deze Structuurvisie bevat een lange termijnvisie op het buisleidingentransport van gevaarlijke stoffen. Het Besluit externe veiligheid buisleidingen (Bevb) en de bijbehorende Regeling externe veiligheid buisleidingen (Revb) zijn op 1 januari 2011 in werking getreden. Het Bevb regelt onder andere welke veiligheidsafstanden moeten worden aangehouden rond buisleidingen met gevaarlijke stoffen. Op basis van het Bevb wordt het voor gemeenten verplicht om bij de vaststelling van een bestemmingsplan, op basis waarvan de aanleg van een buisleiding of een kwetsbaar object of een risicoverhogend object mogelijk is, de grenswaarde voor het PR in acht te nemen en het GR te verantwoorden.
 
Vervoer gevaarlijke stoffen over weg, water en spoor
Het externe veiligheidsbeleid voor het vervoer van gevaarlijke stoffen staat beschreven in de nota Risiconormering vervoer gevaarlijke stoffen (Rnvgs). In de circulaire Rnvgs is dit beleid nader uitgewerkt. In de nota en circulaire Rnvgs staan normen voor het vervoer van gevaarlijke stoffen via weg, water en spoor. Deze normen hebben echter geen wettelijke status.
 
Thans is het Basisnet voor vervoer van gevaarlijke stoffen over weg, water en spoor in voorbereiding. Dit Basisnet geeft de relatie aan tussen de ruimtelijke ordening en de vervoersrisico’s. Zo wordt beschreven welke ruimtelijke ontwikkelingen wel en niet zijn toegestaan in een gebied tot 200 meter vanaf de infrastructuur. Om het Basisnet wettelijke grondslag te geven zal bestaande wetgeving aangepast en nieuwe wetgeving ontwikkeld moeten worden. Derhalve wordt een nieuwe Algemene Maatregel van Bestuur opgesteld om de regels voor de ruimtelijke ordening van het Basisnet vast te leggen: het Besluit transportroutes externe veiligheid (Btev). Het Btev zal op korte termijn de circulaire Rnvgs vervangen. Vanuit het Btev moet een basisveiligheidsniveau rond transportassen (plaatsgebonden risico) opgenomen worden en moet een transparante afweging van het groepsrisico worden gewaarborgd.
De Wet Basisnet, het Btev en de ontwerp regeling Basisnet zijn reeds gepubliceerd maar nog niet in werking getreden. Vooruitlopend op de inwerkingtreding zijn de Basisnetten Weg en Water al als bijlage bij de circulaire Rnvgs opgenomen.
 
Planspecifiek
Blijkens de provinciale risicokaart is nabij het plangebied een bovengrondse opslagtank aanwezig voor LPG. De hierbij behorende contour bedraagt volgens de risicokaart 15 meter. Het wijzigingsplan is gelegen buiten deze contour. Met de planwijziging nemen het aantal personen welke zich ophouden in het plangebied niet significant toe. Daarmee is er ook geen toename van het groepsrisico. Externe veilligheid is dan ook geen belemmering voor de beoogde wijziging van agrarische functie.
5.6 Duurzaamheid
De gemeenteraad heeft op 28 maart 2013 de Notitie Duurzaamheid Dichtbij vastgesteld. In de notitie worden de kaders en de doelstellingen beschreven op het gebied van duurzaamheid. Op 26 februari 2013 heeft het college van B en W het Programmaplan Duurzaamheid vastgesteld waarin de doelstellingen zijn uitgewerkt in projecten.
 
Als doelstelling wordt in de notitie geformuleerd inwoners bewust te maken van duurzaamheidsvraagstukken en handelen daarnaar door o.a. energie te besparen en duurzame maatregelen toe te passen in hun woning en leefomgeving. Voor de korte termijn betekend dit inwoners bewust maken van duurzaamheidsvraagstukken, energiebesparing, duurzame energie, afval en hergebruik, duurzaam consumeren, klimaatverandering, leefomgeving etc.
 
Specifiek voor ruimtelijke projecten wordt een checklist opgesteld voor nieuwbouwprojecten om duurzame
gebiedsmaatregelen te stimuleren. Bij nieuwbouw wordt een energieprestatie gevraagd die verder gaat dan de landelijke regelgeving. Daarbij wordt ingezet op energiebesparend ontwerpen (bijvoorbeeld compact bouwen en goede woningisolatie), het gebruik van duurzame energie (bijvoorbeeld het gebruik van zonnecollectoren en biomassa) en het gebruik van duurzame materialen (bijvoorbeeld duurzaam geproduceerd hout).
 
Planspecifiek
Bij de verdere planuitwerking wordt gekeken op welke wijze invulling gegeven kan worden aan deze ambitie. In de daadwerkelijke aanvraag omgevingsvergunning voor de nieuw te bouwen objecten zal dit inzichtelijk worden gemaakt. Vervolgens kan dan getoetst worden aan het geformuleerde duurzaamheidsbeleid.
5.7 Bedrijven en milieuzonering
Het aspect bedrijven en milieuzonering gaat in op de invloed die bedrijven kunnen hebben op hun omgeving. Deze invloed is afhankelijk van de afstand tussen een gevoelige bestemming en de bedrijvigheid. Milieugevoelige bestemmingen zijn gebouwen en terreinen die naar hun aard bestemd zijn voor het verblijf van personen gedurende de dag of nacht of een gedeelte daarvan (bijvoorbeeld woningen). Daarnaast kunnen ook landelijke gebieden en/of andere landschappen belangrijk zijn bij een zonering tot andere, minder gevoelige, functies zoals bedrijven.
 
Bij een ruimtelijke ontwikkeling kan sprake zijn van reeds aanwezige bedrijvigheid en van nieuwe bedrijvigheid. Milieuzonering zorgt er voor dat nieuwe bedrijven een juiste plek in de nabijheid van de gevoelige functie krijgen en dat de (nieuwe) gevoelige functie op een verantwoorde afstand van bedrijven komen te staan. Doel hiervan is het waarborgen van de veiligheid en het garanderen van de continuïteit van de bedrijven als ook een goed klimaat voor de gevoelige functie.
 
Milieuzonering beperkt zich tot milieuaspecten met een ruimtelijke dimensie zoals: geluid, geur, gevaar en stof. De mate waarin de milieuaspecten gelden en waaraan de milieucontour wordt vastgesteld, is voor elk type bedrijvigheid verschillend. De 'Vereniging van Nederlandse Gemeenten' (VNG) geeft sinds 1986 de publicatie 'Bedrijven en Milieuzonering' uit. In deze publicatie is een lijst opgenomen, met daarin de minimale richtafstanden tussen een gevoelige bestemming en bedrijven. Indien van deze richtafstanden afgeweken wordt dient een nadere motivatie gegeven te worden waarom dat wordt gedaan.
 
Het belang van milieuzonering wordt steeds groter aangezien functiemenging steeds vaker voorkomt. Hierbij is het motto: 'scheiden waar het moet, mengen waar het kan'. Het scheiden van milieubelastende en milieugevoelige bestemmingen dient twee doelen:
  1. het reeds in het ruimtelijk spoor voorkomen of zoveel mogelijk beperken van hinder en gevaar bij gevoelige bestemmingen;
  2. het bieden van voldoende zekerheid aan de milieubelastende activiteiten (bijvoorbeeld bedrijven) zodat zij de activiteiten duurzaam, en binnen aanvaardbare voorwaarden, kunnen uitoefenen.
Planspecifiek
In casu betreft het een bestaand gebied met bestaand gebruik. Vanuit deze situatie kan in zijn algemeenheid niet in alle gevallen voldaan worden aan de vuistregels zoals verwoord in de publicatie 'Bedrijven en Milieuzonering'. Voorliggend wijzigingsplan ziet op een wijziging van een rundveehouderij naar een paardenhouderij. Vanuit ruimtelijk oogpunt is de wijziging dan ook beperkt.
 
Voor een paardenhouderij gelden voor geur, stof, geluid en gevaar respectievelijk de volgende aan te houden afstanden 50, 30, 30 en 0 m. Lintbebouwing in het buitengebied met een overwegend agrarisch of bedrijfsmatig karakter kan aangemerkt worden als gemengd gebied. Daarmee kan een trede terug gedaan worden met de aan te houden afstanden, te weten 30, 10, 10 en 0 m. Binnen het opgenomen bouwvlak zijn de hindervoorzakende elementen op voldoende afstand van de maatgevende woning te situeren.
 
In het kader van de Wet milieubeheer is er sprake van een nieuwe situatie. Immers het betreft de vestiging van een nieuwe inrichting. Voor een paardenhouderij geldt een wettelijk bepaalde minimale afstand vanaf het emissiepunt van de stal tot een geurgevoelig object van 50 meter. Deze afstand is juridisch verankerd in de planregels.
5.8 Ecologie
De Natuurbeschermingswet richt zich op de bescherming van gebieden. In de Natuurbeschermingswet zijn de volgende gronden aangewezen en beschermd:
  • Natura 2000-gebieden (Habitat- en Vogelrichtlijngebieden);
  • beschermde Natuurmonumenten;
  • wetlands.
Naast deze drie soorten gebieden is de Ecologische Hoofdstructuur (EHS) in het kader van de gebiedsbescherming van belang. De EHS is een samenhangend netwerk van belangrijke natuurgebieden in Nederland en omvat bestaande natuurgebieden, nieuwe natuurgebieden en ecologische verbindingszones. De EHS draagt bij aan het bereiken van de hoofddoelstelling van het Nederlandse natuurbeleid, namelijk: 'Natuur en landschap behouden, versterken en ontwikkelen, als bijdrage aan een leefbaar Nederland en een duurzame samenleving'. Hiertoe zijn de volgende uitgangspunten van belang:
  • vergroten: het areaal natuur uitbreiden en zorgen voor grotere aaneengesloten gebieden;
  • verbinden: natuurgebieden zoveel mogelijk met elkaar verbinden;
  • verbeteren: de omgeving zo beïnvloeden dat in natuurgebieden een zo hoog mogelijke natuurkwaliteit haalbaar is.
Planspecifiek
Op een afstand van circa  900 m afstand is het Natura 2000-gebied De Botshol gelegen. De Botshol is een oud laagveenverlandingsgebied met een belangrijk areaal water. De opbouw van het gebied uit verschillende vegetatiestructuurcomponenten en een laagveenpolder is verantwoordelijk voor een rijke vogelstand. Door de vormingsgeschiedenis van het oorspronkelijke veen is het gebied steeds beïnvloed geweest door een hoge basenrijkdom, terwijl de verlanding na de vervening in enigszins brak water heeft plaatsgevonden.
 
De Botshol is een zogenaamd ammiakgevoelig gebied. Een toename van de ammoniakdepositie is dan ook niet wenselijk. In de oude situatie werden 85 stuks rundvee gehouden. In de nieuwe situatie worden maximaal 20 paarden gehouden. Per saldo neemt het aantal dieren wat gehouden wordt af. Daarmee is er een afname van de ammoniakemissie. Een voortoets in het kader van de Natuurbeschermingsweg wordt dan ook niet noodzakelijk geacht.
6 Economische uitvoerbaarheid
Bij de voorbereiding van een ruimtelijk plan dient, op grond van artikel 3.1.6 lid 1, sub f van het Bro, onderzoek plaats te vinden naar de (economische) uitvoerbaarheid van het plan. In principe dient bij vaststelling van een ruimtelijk besluit tevens een exploitatieplan vastgesteld te worden om verhaal van plankosten zeker te stellen. Op basis van ‘afdeling 6.4 grondexploitatie', artikel 6.12, lid 2 van de Wro kan de gemeenteraad bij het besluit tot vaststelling van het bestemmingsplan echter besluiten geen exploitatieplan vast te stellen indien:
  • het verhaal van kosten van de grondexploitatie over de in het plan of besluit begrepen gronden anderszins verzekerd is;
  • het bepalen van een tijdvak of fasering als bedoeld in artikel 6.13, eerste lid, onder c, 4°, onderscheidenlijk 5°, niet noodzakelijk is;
  • het stellen van eisen, regels, of een uitwerking van regels als bedoeld in artikel 6.13, tweede lid, onderscheidenlijk b, c of d, niet noodzakelijk is.
Planspecifiek
Het project wordt op particulier initiatief gerealiseerd. De kosten in verband met de realisatie van het plan zijn dan ook voor rekening van de initiatiefnemer. De kosten voor het volgen van de procedure zullen via de gemeentelijke legesverordening aan de initiatiefnemer worden doorberekend. Het project wordt op verzoek van en gefinancierd uit eigen middelen van de initiatiefnemer. Het verhaal van de kosten is dus anderszins verzekerd. Derhalve kan afgezien worden van het vaststellen van een exploitatieplan volgens artikel 6.12 lid 1 van de Wro.
7 Maatschappelijke uitvoerbaarheid
 Het ontwerpwijzigingsplan zal conform afdeling 3.4 Awb gedurende 6 weken ter inzage gelegd worden. Hierbij is er de mogelijkheid van zienswijzen voor een ieder, ook voor overlegpartners. Na vaststelling door het college van Burgemeester en Wethouders zal het vaststellingsbesluit bekend gemaakt worden. Het wijzigingsplan ligt na bekendmaking dan 6 weken ter inzage. Gedurende deze termijn is er de mogelijkheid van beroep bij de Afdeling bestuursrechtspraak Raad van State.