direct naar inhoud van Toelichting
Plan: Nieuw-Dijk, De Pontilaan 2
Status: vastgesteld
Plantype: bestemmingsplan
IMRO-idn: NL.IMRO.1955.bpsgnwdwonpontiln2-va01

Toelichting

Hoofdstuk 1 Inleiding

1.1 Aanleiding

In de kern Nieuw-Dijk is uitbreiding van de woningvoorraad gewenst. Deze woningen zijn nodig voor de opvang van de groei van de eigen woningbehoefte en om voldoende draagvlak te houden voor voorzieningen. Voor Nieuw-Dijk geldt een ambitie van 65 nieuwe woningen voor de periode 2010-2020.

Om de bouw van nieuwe woningen mogelijk te maken is in april 2016 het ontwerpbestemmingsplan 'Nieuw-Dijk, Meikamerlaan' in procedure gebracht. Beoogd was om aan de Meikamerlaan een achttal nieuwe woningen te realiseren op een gedeelte van de sportvelden van voetbalvereniging Sprinkhanen. Eind februari 2017 heeft de gemeenteraad van Montferland echter besloten dit bestemmingsplan niet vast te stellen. Samenhangend met dit besluit heeft de gemeenteraad de opdracht meegegeven aan het college van burgemeester en wethouders om de herontwikkeling van de locatie De Pontilaan 2 in Nieuw-Dijk nader te onderzoeken. Op deze locatie was de Antoniusschool gevestigd, maar deze heeft in de zomer van 2017 haar deuren gesloten, waardoor de locatie in aanmerking komt voor herontwikkeling ten behoeve van maximaal negen woningen.

De negen woningen zijn beoogd op gronden die bestemd zijn als 'Gemengd'. Omdat de voorgenomen ontwikkeling niet past binnen het voor de locatie geldende bestemmingsplan 'Kernen', is een herziening van het bestemmingsplan noodzakelijk.

1.2 Plangebied

Het plangebied is gelegen aan de zuidoostzijde van de kern Nieuw-Dijk. Het plangebied wordt begrensd door de De Pontilaan aan de westzijde, het plein aan de zuidzijde en woonpercelen aan de noord- en oostzijde.

Op de navolgende afbeeldingen zijn globaal de ligging en begrenzing van het plangebied weergegeven. Voor de exacte begrenzing wordt verwezen naar de verbeelding behorende bij dit bestemmingsplan.

afbeelding "i_NL.IMRO.1955.bpsgnwdwonpontiln2-va01_0001.png"

Globale ligging plangebied

afbeelding "i_NL.IMRO.1955.bpsgnwdwonpontiln2-va01_0002.png"

Globale begrenzing plangebied

1.3 Geldend bestemmingsplan

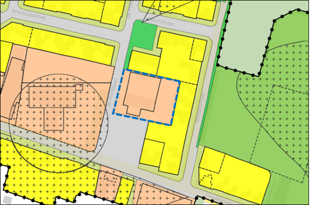
Zoals reeds is gesteld, valt het plangebied onder de werking van het bestemmingsplan 'Kernen'. Dit bestemmingsplan is vastgesteld door de raad van de gemeente Montferland op 30 juni 2016. In het geldend bestemmingsplan is het beheer van het gebied overeenkomstig het bestaande gebruik vastgelegd. Op de navolgende afbeelding is een uitsnede van de verbeelding van het geldende bestemmingsplan weergegeven. Het plangebied is daarop met een blauw kader weergegeven.

afbeelding "i_NL.IMRO.1955.bpsgnwdwonpontiln2-va01_0003.png"

Uitsnede geldend bestemmingsplan 'Kernen'

Op grond van het geldend bestemmingsplan is aan het plangebied de bestemming 'Gemengd' toegekend. Volgens de regels, behorende bij deze bestemming, zijn de gronden bestemd voor verschillende functies, waaronder bedrijvigheid (in categorie 1 van de Staat van bedrijfsactiviteiten) dienstverlening, detailhandel, kantoren en maatschappelijke voorzieningen.

Ter plaatse van de bestaande bebouwing is een bouwvlak opgenomen. Op grond van de regels is binnen het bouwvlak één woning toegestaan. De realisatie van negen woningen is op basis van het vigerende bestemmingsplan niet toegestaan. Om die reden is voorliggend bestemmingsplan opgesteld.

1.4 Leeswijzer

Dit bestemmingsplan bestaat uit een verbeelding, regels en een toelichting. De toelichting is opgebouwd uit vijf hoofdstukken. Het volgende hoofdstuk (hoofdstuk 2) beschrijft de bestaande en toekomstige situatie. Hoofdstuk 3 geeft een overzicht van het ruimtelijke beleidskader van de verschillende overheden waaraan het plan moet voldoen en bevat de milieu- en omgevingsaspecten van het plan. De toelichting besluit met hoofdstukken over de opbouw van de planregels (hoofdstuk 4) en de uitkomsten van de gevolgde procedure (hoofdstuk 5).

Hoofdstuk 2 Het plan

2.1 Bestaande situatie

Nieuw-Dijk is ontstaan na de verdeling van de gemeenschappelijke markegronden en heette tot 1911 buurtschap 'Den Bosch'. Het buurtschap bestond uit verspreid gelegen erven. Van echte wegen was nauwelijks sprake.

Na de stichting van de parochiekerk in 1911 veranderde de naam van het buurtschap in Nieuw-Dijk. Nieuw-Dijk is gegroeid langs de Bosstraat op de overgang van het oude hoeve- en akkerlandschap in het westen en de jonge heideontginning in het oosten. Nadat de parochiekerk en later de basisschool aan de Smallestraat gebouwd waren, werd deze weg het concentratiepunt van de kern Nieuw-Dijk.

afbeelding "i_NL.IMRO.1955.bpsgnwdwonpontiln2-va01_0004.png"

Uitsnede historische kaart (omstreeks 1931)

Na de tweede wereldoorlog is Nieuw-Dijk vooral in noordelijke richting in een laag tempo uitgebreid, vanaf de Smallestraat tot aan de Bosstraat. Het gros van de bebouwing tussen deze wegen is pas vanaf de jaren '60 gebouwd. De lintbebouwing aan de Smallestraat bestaat vooral uit woningen op grote kavels, maar ook een kerk, winkels en andere voorzieningen. Door de gevarieerde bebouwing en het kaarsrechte karakter wordt de Smallestraat ervaren als de centrale ruimte in Nieuw-Dijk.

De voorzieningen van Nieuw-Dijk zijn geconcentreerd rondom de kerk. Zo ook de Antoniusschool in Nieuw-Dijk. Het plein, tussen de Pontilaan en de Smallestraat is ingericht als multifunctioneel plein. Het plein is te gebruiken als parkeerplaats maar ook ten behoeve van dorpsevenementen.

De navolgende afbeeldingen geven een impressie van de huidige situatie in het plangebied.

afbeelding "i_NL.IMRO.1955.bpsgnwdwonpontiln2-va01_0005.jpg"

Impressie huidige situatie plangebied, gezien vanaf het plein aan de Smallestraat

afbeelding "i_NL.IMRO.1955.bpsgnwdwonpontiln2-va01_0006.png"

Impressie huidige situatie plangebied, gezien vanaf de De Pontilaan

2.2 Toekomstige situatie

De bestaande bebouwing in het plangebied wordt gesloopt. Hiervoor in de plaats worden maximaal negen grondgebonden woningen mogelijk gemaakt. De globale stedenbouwkundige opzet van de woningen is in samenspraak met de werkgroep Plan voor Nieuw-Dijk tot stand gekomen.

Het plein, ten zuiden van het plangebied is een belangrijk element voor de stedenbouwkundige oriëntatie van de woningen. Het plein is een van de weinige plekken in Nieuw-Dijk waar ruimte is voor gemeenschapsactiviteiten. Het gebruik, en de uitstraling van dit plein is dus van belang voor het dorp. Voor het plan zijn daarom de volgende stedenbouwkundige randvoorwaarden opgesteld:

  • Bebouwing wordt overwegend gericht op het plein (en de kerk);
  • Geen achterkanten naar het plein;
  • De openbare ruimte die de nieuwe woningen ontsluit vormt een verlengde van het plein en/of maakt deel uit van het plein.

De exacte invulling van het plangebied met de negen grondgebonden woning is nog niet bepaald. Het navolgende stedenbouwkundige plan geeft een mogelijke invulling van het plangebied weer.

afbeelding "i_NL.IMRO.1955.bpsgnwdwonpontiln2-va01_0007.png"

Stedenbouwkundig plan

Het stedenbouwkundige plan bestaat uit zeven rijwoningen en twee twee-aaneengesloten woningen. De maatvoering van de beoogde woningen schikt zich naar de stedenbouwkundige kenmerken van de bestaande bebouwing in de omgeving van het plangebied. Om die reden bedraagt de maximaal toegestane goot- en bouwhoogte van de woningen respectievelijk 6 m en 10 m.

In de regels van het bestemmingsplan en de verbeelding zijn de juridisch-planologische kaders van de herontwikkeling van het plangebied opgenomen. Zie hiervoor tevens paragraaf 4.2.1 van deze toelichting.

Met de realisatie van maximaal negen woningen in de kern Nieuw-Dijk wordt voorzien in een actuele behoefte aan woningen op lokaal en regionaal niveau. Onderhavig plan versterkt de vitaliteit van de kern Nieuw-Dijk door te zorgen voor een vergroting van het draagvlak van de bestaande voorzieningen.

Hoofdstuk 3 Haalbaarheid

3.1 Inleiding

Ten behoeve van de bestemmingsplanherziening moet de uitvoerbaarheid van het plan worden aangetoond. Het al dan niet voldoen aan verschillende randvoorwaarden en uitgangspunten is bepalend voor de vraag of een nieuwe ontwikkeling ook daadwerkelijk uitvoerbaar is. Hierbij moet worden gedacht aan onder meer het ruimtelijke beleid van de hogere overheden en de gemeente zelf, milieuaspecten als geluid, bodem en hinder van bedrijven, water, externe veiligheid, archeologie en economische haalbaarheid. De beoogde ontwikkeling is op deze aspecten getoetst. In dit hoofdstuk is aangegeven wat hiervan de resultaten zijn.

3.2 Beleid

3.2.1 Algemeen

In deze paragraaf wordt een analyse gegeven van het relevante beleidskader. De beleidsnota's die direct of indirect doorwerken in voorliggend bestemmingsplan, worden in deze paragraaf behandeld. Gezien de aard en de schaal van de ontwikkeling binnen bestaand stedelijk gebied is het relevante beleid op Europees niveau buiten beschouwing gelaten en op Rijksniveau beperkt gehouden. Per bestuurslaag is een korte samenvatting gegeven van de meest relevante aspecten uit de verschillende beleidsnota's, alsmede de consequenties voor het voorliggende plan.

3.2.2 Rijksbeleid

Structuurvisie Infrastructuur en Ruimte (SVIR) en Besluit algemene regels ruimtelijke ordening (Barro)

De Structuurvisie Infrastructuur en Ruimte (SVIR) bepaalt welke kaderstellende uitspraken van het kabinet bedoeld zijn om beperkingen te stellen aan de ruimtelijke besluitvormingsmogelijkheden op lokaal niveau. Het Besluit algemene regels ruimtelijke ordening (Barro) bevestigt in juridische zin die kaderstellende uitspraken. Het gaat onder meer om nationale belangen als Rijksvaarwegen, Defensie, Ecologische hoofdstructuur, Erfgoederen van uitzonderlijke universele waarde, Hoofdwegen en hoofdspoorwegen, Elektriciteitsvoorziening, Buisleidingen van nationaal belang voor vervoer van gevaarlijke stoffen en Primaire waterkeringen.

Slechts daar waar een directe doorwerking niet mogelijk is, bij de Ecologische Hoofdstructuur (de artikelen worden later aan het Barro toegevoegd) en bij de Erfgoederen van uitzonderlijke universele waarde, is gekozen voor indirecte doorwerking via provinciaal medebewind. Ten aanzien van de begrenzing van de EHS is bepaald dat niet het rijk, maar de provincies die grenzen (nader) bepalen.

Door de nationale belangen vooraf in bestemmingsplannen te borgen, wordt met het Barro bijgedragen aan versnelling van de besluitvorming bij ruimtelijke ontwikkelingen en vermindering van de bestuurlijke drukte.

Toetsing 

Het voorgenomen plan raakt geen van de nationale belangen en is niet in strijd met het rijksbeleid.

Ladder voor duurzame verstedelijking (Bro 3.1.6 tweede lid)

In artikel 3.1.6, lid 2 van het Besluit ruimtelijke ordening (Bro) is de ladder voor duurzame verstedelijking opgenomen. Het doel van de Ladder is zorgvuldig en duurzaam ruimtegebruik, met oog voor de toekomstige ruimtebehoefte en ontwikkelingen in de omgeving. De Ladder geeft daarmee invulling aan het nationaal ruimtelijk belang gericht op een zorgvuldige afweging en transparante besluitvorming bij ruimtelijke besluiten. Dit belang staat beschreven in de Structuurvisie Infrastructuur en Ruimte binnen een breder kader van een goed systeem van ruimtelijke ordening.

Met de ladder worden eisen gesteld aan de motivering van onder meer bestemmingsplannen en ruimtelijke onderbouwingen die nieuwe stedelijke ontwikkelingen mogelijk maken. De toelichting bij een bestemmingsplan of ruimtelijke onderbouwing voor een nieuwe stedelijke ontwikkeling bevat een beschrijving van de behoefte aan die ontwikkeling, en, indien die ontwikkeling mogelijk wordt gemaakt buiten het bestaand stedelijk gebied, een motivering waarom niet binnen het bestaand stedelijk gebied in die behoefte kan worden voorzien.

Toetsing 

Wat onder stedelijke ontwikkeling wordt verstaan is in het Bro opgenomen. Een stedelijke ontwikkeling is volgens het besluit 'een ruimtelijke ontwikkeling van een bedrijventerrein of zeehaventerrein, of van kantoren, detailhandel, woningbouwlocaties of andere stedelijke voorzieningen'. Voorliggend initiatief zou kunnen worden aangemerkt als een woningbouwlocatie. Deze term is echter niet gedefinieerd in het Bro. Uit jurisprudentie (zie bijvoorbeeld uitspraak ABRvS201501297/1/R4) blijkt dat woningbouwplannen met elf woningen niet hoeven te worden aangemerkt als woningbouwlocatie, maar grotere woningbouwplannen (circa veertien woningen) wel. In voorliggend plan worden negen nieuwe woningen mogelijk gemaakt Dit plan wordt dus niet aangemerkt als stedelijke ontwikkeling. Om die reden is de ladder voor duurzame verstedelijking niet van toepassing. Wel dient de behoefte aan woningen te worden aangetoond, zie hiervoor paragraaf 3.2.4.

3.2.3 Provinciaal beleid

Omgevingsvisie

De Omgevingsvisie richt zich formeel op de komende tien jaar, maar wil ook een doorkijk bieden aan Gelderland op een langere termijn. Veel maatschappelijke vraagstukken zijn zo complex dat alleen een gezamenlijke inzet succesvol kan zijn. In de omgevingsvisie zijn de opgaven voor Gelderland daarom in nauwe samenwerking met partners uitgedacht. Daarbij kijken de provincie en partners vanuit een integraal en internationaal perspectief naar Gelderland. Met deze bestuurlijke strategie kunnen voor Gelderland toekomstbestendige keuzes gemaakt worden.

De provincie heeft in de Omgevingsvisie twee doelen gedefinieerd. Het zijn doelen die de rol en kerntaken van de provincie als middenbestuur benadrukken.

  • 1. Een duurzame economische structuurversterking.
    Een gezonde economie met een aantrekkelijk vestigingsklimaat vraagt om sterke steden en een vitaal landelijk gebied met voldoende werkgelegenheid. Het streven is om de concurrentiekracht van Gelderland te vergroten door het duurzaam versterken van de ruimtelijk-economische structuur. De komende jaren zullen minder in het teken staan van denken in termen van 'groei' en meer in termen van 'beheer en ontwikkeling van het bestaande'.

  • 2. Het borgen van de kwaliteit en veiligheid van onze leefomgeving.
    Dit doel betekent vooral:
    - ontwikkelen met kwaliteit, recht doen aan de ruimtelijke, landschappelijke en cultuurhistorische kwaliteiten van de plek; uitgaan van doelen, niet van regels;
    - zorg dragen voor een compact en hoogwaardig stelsel van onderling verbonden natuurgebieden en behoud en versterking van de kwaliteit van het landschap;
    - een robuust en toekomstbestendig water- en bodemsysteem voor alle gebruiksfuncties; bij droogte, hitte en waterovervloed;
    - een gezonde en veilige leefomgeving.


Om deze doelen in beleid te vertalen, hanteert de provincie drie aandachtsgebieden: Dynamisch, Mooi en Divers Gelderland. Ontwikkelingen in Gelderland wil de provincie benaderen vanuit elk van deze drie perspectieven, die elkaar aanvullen:

  • Dynamisch: de (ruimtelijk-economische) ontwikkelingen en de geleiding daarvan op provinciaal niveau.
  • Mooi: de Gelderse kwaliteiten die bescherming nodig hebben en ruimte voor behoud door ontwikkeling.
  • Divers: het herkennen van de regionale verschillen in maatschappelijke vraagstukken en opgaven en het koesteren van de regionale identiteiten.

Omgevingsverordening

De provincie beschikt over verschillende instrumenten waarmee zij haar ambities realiseert. De verordening wordt ingezet voor die onderwerpen waarvoor de provincie eraan hecht dat de doorwerking van het beleid van de Omgevingsvisie juridisch gewaarborgd is. De verordening voorziet ten opzichte van de Omgevingsvisie niet in nieuw beleid en is daarmee dus beleidsneutraal. De inzet van de verordening als juridisch instrument om de doorwerking van het provinciaal beleid af te dwingen is beperkt tot die onderdelen van het beleid waarvoor de inzet van algemene regels noodzakelijk is om provinciale belangen veilig te stellen of om uitvoering te geven aan wettelijke verplichtingen.

De Omgevingsverordening richt zich net zo breed als de Omgevingsvisie op de fysieke leefomgeving in de Provincie Gelderland. Dit betekent dat vrijwel alle regels die betrekking hebben op de fysieke leefomgeving opgenomen zijn in de Omgevingsverordening. Het gaat hierbij om regels op het gebied van ruimtelijke ordening, milieu, water, mobiliteit en bodem. De verwachting is dat de Omgevingsverordening op termijn alle regels zal gaan bevatten die betrekking hebben op de fysieke leefomgeving.

Ten aanzien van voorliggend bestemmingsplan zijn de regels ten aanzien van het onderwerp 'wonen' relevant. In de verordening wordt aangegeven dat nieuwe woonlocaties en de daar te bouwen woningen slechts zijn toegestaan wanneer dit past in het vigerende door Gedeputeerde Staten vastgestelde Kwalitatief Woonprogramma, successievelijk de door Gedeputeerde Staten vastgestelde kwantitatieve opgave wonen voor de betreffende regio.

De gemeente Montferland maakt deel uit de subregio De Liemers. Gedeputeerde Staten van de provincie Gelderland heeft op 9 juni 2015 het woningbouwprogramma voor De Liemers vastgesteld. De omvang van de nieuwbouwplannen in de Liemers was aanvankelijk groter dan de verwachte woningbehoefte. De provincie Gelderland, de (voormalige) Stadsregio Arnhem Nijmegen en de gemeenten Doesburg, Duiven, Montferland, Rijnwaarden, Westervoort en Zevenaar hebben daarom de ambities in lijn gebracht met recente prognoses. In totaal wordt in de regio het licht op groen gezet voor de bouw van 1.940 woningen tot 2020. Van deze woningen mogen er 419 in de gemeente Montferland worden gebouwd.

Het akkoord over de plannen betekent niet dat er in de toekomst in De Liemers niets extra's meer gebouwd mag worden. Op basis van doorlopend marktonderzoek bekijken de gemeenten jaarlijks met elkaar of ontwikkelingen op de woningmarkt aanleiding geven om het meerjarige woningbouw-programma bij te stellen. Binnen het gehanteerde 'stoplichtmodel' beschikt iedere gemeente over een zogeheten 'oranje buffer' met woningbouwplannen. Indien de Liemerse woningmarkt zich als gevolg van aantrekkende economische omstandigheden of grote instroom van inwoners van buiten de regio onverwacht positief ontwikkelt, dan kan volgens het stoplichtenmodel voor een aantal 'oranje' plannen het licht alsnog op groen worden gezet.

De afspraken voorzien ook in voldoende flexibiliteit om te kunnen inspelen op vermindering van de vraag. Als een plan tegen de verwachting in niet gaat lopen, dan kan de gemeente in plaats daarvan een plan in ontwikkeling nemen waar op dat moment wel vraag naar is.

Toetsing

De voorgenomen ontwikkeling voorziet in maximaal negen woningen. Omdat binnen de huidige bestemming 'Gemengd' al één woning is toegestaan, is er sprake van een netto toename van acht woningen. Het initiatief wordt gerealiseerd binnen de bestaande kern van Nieuw-Dijk. Met de herontwikkeling van het plangebied is sprake van herstructurering in bestaand stedelijk gebied. De voorgenomen ontwikkeling is opgenomen in het woningbouwprogramma van de subregio De Liemers en is door de gemeente op basis van het stoplichtmodel als 'groen' gecodeerd. Het initiatief voorziet in een actuele regionale behoefte aan woningen. Het plan is in overeenstemming met het provinciale beleid.

3.2.4 Gemeentelijk beleid

Structuurvisie Montferland

Op 23 april 2009 is de Structuurvisie Montferland 'Ideeën voor een plek' vastgesteld. De structuurvisie geldt voor het gehele gemeentelijke grondgebied, met uitzondering van de bebouwde kommen. Het doel van de structuurvisie is tweeledig:

  • Het samenbrengen en actualiseren van bestaande visies en andere beleidsdocumenten in een nieuwe visie. Het gaat dus niet om het formuleren van nieuw beleid, maar om het samenbrengen in één visie van reeds bestaand beleid.
  • Het bestendigen van het gevestigde voorkeursrecht voor enkele uitbreidingslocaties; in het Regionaal Plan van de Stadsregio Arnhem/Nijmegen zijn een aantal uitbreidingsrichtingen van woonkernen opgenomen. In de structuurvisie worden deze zoekrichtingen vertaald en begrensd in concrete locaties. Daarnaast kan via de structuurvisie het gevestigde voorkeursrecht voor enkele uitbreidingslocaties worden bestendigd.

Deze structuurvisie blijft een visie op hoofdlijnen. De structuurvisie is in beeld gebracht op de kaart Structuurvisie Montferland. In de structuurvisie noemt de gemeente de locaties die zijn aangewezen voor mogelijke woningbouw. Dit betreffen de locaties die in het Regionaal Plan zijn aangegeven als 'zoekrichting voor uitbreiding woningbouw'.

Toetsing

Als nieuwe woningbouwlocatie voor de kern Nieuw-Dijk was de locatie 'Bosstraat – Smallestraat' in de structuurvisie aangeduid als 'zoekrichting voor uitbreiding woningbouw'. Het voornemen was om hier 28 woningen te realiseren. Dit initiatief was in overeenstemming met het regionaal plan Stadsregio 2005-2020. Door de komst van de ladder voor duurzame verstedelijking moest bij grootschalige woningbouwlocaties de behoefte worden aangetoond, daarnaast is bouwen buiten de rode contouren in eerste instantie niet langer toegestaan. Om die reden heeft de gemeente naar een alternatieve kleinschalige woningbouwlocaties gezocht. Zoals blijkt uit voorgaande paragraaf is voorliggend initiatief in overeenstemming met het provinciale beleid. Daarnaast is woningbouw in Nieuw-Dijk essentieel voor de leefbaarheid van het dorp.

Actualisering woningbehoefteonderzoek gemeente Montferland 2009

Woningbouwprojecten moeten qua programmering voldoen aan de Visie op de woningbouw 2010-2020 (Actualisering woningbehoefteonderzoek gemeente Montferland 2009). Dit woningbehoefteonderzoek is de actualisering van de Woonkwaliteitvisie 'Montferland, Visie op de woningbouw 2005-2015 (woningbehoefte onderzoek 2006) en schetst een beeld van de woningbehoefte van 2010 tot en met 2020. In het algemeen wordt gesteld dat nieuwe woningen een positieve bijdrage dienen te leveren aan de doorstroming en wooncarrière van inwoners van Montferland.

Voor de kern Nieuw-Dijk geldt een ambitie van 65 nieuwe woningen voor de periode 2010-2020. Hiermee wordt de bevolking in 2020 op het niveau van 2008 gehouden (1.640 inwoners). De eigen behoefte bestaat uit 45 woningen en het aantal extra vestigers wordt geschat op 20. Deze extra vestigers komen bovenop de zich al volgens de trend van de afgelopen jaren vestigende huishoudens. De totaalcapaciteit van bouwplannen binnen de bebouwde contour van de kern Nieuw-Dijk bedraagt 0 woningen. Voor de 65 woningen dient daarom buiten de bebouwde contour gekeken te worden. Vanuit de eigen behoefte bedraagt het aantal woningen voor starters 10, voor doorstromers jonger dan 55 bedraagt het aantal woningen 5, voor doorstromers ouder dan 55 zijn er 10 woningen begroot en voor reguliere vestigers 20 woningen. Onderstaande tabel geeft het indicatieve bouwprogramma voor de kern Nieuw-Dijk weer voor de periode 2010-2020.

afbeelding "i_NL.IMRO.1955.bpsgnwdwonpontiln2-va01_0008.png"

Indicatief bouwprogramma Nieuw-Dijk 2010-2020

Toetsing  

In onderhavig plan worden maximaal negen woningen gerealiseerd. In de 'actualisering woningbehoefte onderzoek Montferland 2009' is opgenomen dat in kleine kernen zoals Nieuw-Dijk extra uitbreiding van de woningvoorraad gewenst is. Deze woningen zijn nodig voor de opvang van de groei van de eigen woningbehoefte en om voldoende draagvlak te houden voor voorzieningen. Voor Nieuw-Dijk geldt een ambitie van 65 nieuwe woningen voor de periode 2010-2020. Hiervan is het de verwachting dat de eigen bevolking 45 woningen nodig heeft en 20 woningen nodig zijn voor nieuwe vestigers. De realisatie van de negen woningen voorziet in die zin in een lokale en regionale vraag.

In opdracht van de Stadsregio Arnhem Nijmegen is in januari 2014 een woningmarktonderzoek voor de Stadsregio uitgevoerd1. Hieruit blijkt dat er in Montferland sprake is van een surplus in de harde planning in de koopsector, ten opzichte van de behoefte, van bij benadering 300 woningen. In navolging op dit onderzoek hebben de gemeenten in de Stadsregio in regionale en subregionale woonagenda's een akkoord bereikt op de woningbouwaantallen in de regio (zie paragraaf 3.2.3). De opdracht voor de gemeente Montferland is om 300 woningen te herprogrammeren. Dit betekent volgens het stoplichtmodel dat de woningen op 'oranje' of 'rood' worden gezet.

De totale vraag naar woningen binnen de gemeente Montferland is afgenomen. De vraag naar woningen in de kern Nieuw-Dijk is echter nog steeds aanwezig. Dit blijkt ook uit het woningmarktonderzoek dat onder de inwoners van Nieuw-Dijk is gehouden. Dit onderzoek is als bijlage 1 bij de toelichting opgenomen.

Om die reden is de voorgenomen ontwikkeling opgenomen in het woningbouwprogramma van De Liemers en op basis van het stoplichtmodel als 'groen' gecodeerd. De woningen zijn beoogd binnen bestaand stedelijk gebied op een locatie waar in de huidige situatie reeds bebouwing aanwezig is. De ontwikkeling van het plangebied draagt bij aan de vergroting van het draagvlak voor voorzieningen in Nieuw-Dijk en wordt er voor een versterking van de vitaliteit gezorgd.

Groenstructuurplan

Op 27 januari 2011 is het Groenstructuurplan voor de gemeente Montferland vastgesteld. Het groen is kenmerkend voor de ruimtelijke kwaliteit en aantrekkelijkheid van het landschap, met name ook van de kernen. Velen hebben belang bij aantrekkelijke kernen die, naast mogelijkheden voor een vitale economie, rust en ruimte bieden.

Voor iedere kern is een werkboek opgesteld dat handreikingen biedt voor het ontwikkelen en begeleiden van projecten. Drie motto's staan in het Groenstructuurplan centraal:

  • 1. sluit aan bij het landschap;
  • 2. versterk de karakteristiek van de kern;
  • 3. draagvlak in projecten.

De visie benoemt op de groenstructuurkaart de volgende uitgangspunten tot het jaar 2030:

  • lanen herstellen met nieuwe linden;
  • pleksgewijs solitaire eiken en linden in historische linten;
  • laanbeplanting met allure als zuidelijke entree;
  • groene poorten bij rotondes randweg versterken;
  • parken nieuw leven inblazen;
  • brinken op knooppunten historische linten creëren;
  • iedere wijk eigen variatie op grote lijn;
  • groenstructuur in het centrum behouden en versterken;
  • twee groene corridors in hoofdgroenstructuur versterken;
  • water beleefbaar maken in de Blauwe Graaf;
  • beplanting om dorp langs randweg versterken;
  • belangrijke zichtlijnen koesteren;
  • doorzichten vanuit dorp naar landschap behouden.

Nieuw-Dijk  

Als onderdeel van het Groenstructuurplan, heeft de gemeente voor elke kern een werkboek gemaakt. Nieuw-Dijk is uniek als kleine kern op de rand van de ontginningen van de broekgebieden om de Montferlandse berg. De kern is ontstaan tussen een ontginningsas (Smallestraat) en de rand van de essen om Didam (Bosstraat). De bebouwing ligt om kleine veldjes die als gemeenschappelijke sierboomgaarden de sfeer bepalen. De rechte laan langs het bos en de rechte Smallestraat staan in contrast met de kronkelige aaneenschakeling van plekken en erven aan de Bosstraat. Eiken en hagen bepalen daar het beeld.

Voor de groenstructuur van Nieuw-Dijk is het van belang aan te sluiten bij het omliggende landschap en de bestaande karakteristiek van de kern te versterken. Navolgende kaart toont de elementen in de huidige groenstructuur die volgens het Groenstructuurplan behouden dienen te blijven.

afbeelding "i_NL.IMRO.1955.bpsgnwdwonpontiln2-va01_0009.png"

Kaart Visie op de groenstructuur in Nieuw-Dijk 2010-2030

Het plangebied is op de visiekaart deels aangegeven als 'versterking groenstructuur van het dorpshart'. De karakteristieke sferen van Nieuw-Dijk 'Esrand met weitjes, hagen en fruit', 'Groene erven aan de ontginningsas' en 'Langs bossen en lanen' komen samen in het dorpshart. In de visie wordt voorgesteld om eventuele werkzaamheden in de openbare ruimten van het dorp te koppelen aan de genoemde drie sferen die samen de identiteit van het dorp vormen. Door gerichte aanvullingen van de groenstructuur kunnen die hier aan elkaar geschakeld worden. Ook de pastorietuin en begraafplaats kunnen hieraan een bijdrage leveren.

De navolgende afbeelding geeft de kaart 'Te behouden waardevolle groenstructuur' weer.

afbeelding "i_NL.IMRO.1955.bpsgnwdwonpontiln2-va01_0010.png"

Kaart Te behouden waardevolle groenstructuur

Het groenstructuurplan richt zich onder andere op het behoud van waardevolle groene ruimtes en beplantingen. Dit is onder meer van belang voor het plein ten zuiden van het plangebied.

Toetsing

Met de ontwikkeling van het plangebied wordt de bestaande groene ruimte en beplanting aan het plein niet aangetast. De woningen zullen worden gericht op het plein, dat daarmee ruimtelijk een prominente plek krijgt. De herontwikkeling biedt mogelijkheden om de groenstructuur van het bestaande dorpshart te versterken.

3.3 Milieu

3.3.1 Bodem

Algemeen

In het kader van een bestemmingsplanprocedure moet zijn aangetoond dat de bodem en het grondwater geschikt zijn voor het beoogde gebruik. Hiertoe is het uitvoeren van een verkennend milieukundig bodem- en grondwateronderzoek noodzakelijk. Dit onderzoek moet uitwijzen of de locatie mag worden aangewend voor de gewenste ontwikkeling.

Toetsing

Door Buro Ontwerp & Omgeving is in mei 2017 een verkennend bodemonderzoek uitgevoerd2. Dit onderzoek is als bijlage 2 toegevoegd. Het verkennend bodemonderzoek is gebaseerd op de strategie voor een 'onverdachte locatie'. De conclusies uit het onderzoek worden hierna kort behandeld.

In het opgeboorde materiaal zijn zintuiglijk geen verontreinigingen waargenomen. Daarnaast zijn op het maaiveld en in het opgeboorde materiaal geen asbestverdachte materialen waargenomen.

Ten aanzien van de onderzoekslocatie wordt de hypothese 'onverdachte locatie' op basis van de resultaten van het verkennend bodemonderzoek bevestigd. Zowel de boven- als de ondergrond is niet verontreinigd. In het grondwater zijn eveneens geen verontreinigingen geconstateerd. De vastgestelde milieuhygienische bodemkwaliteit vormt op basis van het onderzoek geen belemmering voor de voorgenomen herontwikkeling (nieuwbouw) op de onderzoekslocatie.

Conclusie

Het aspect bodem vormt geen belemmering voor de uitvoering van het plan.

3.3.2 Geluid

Algemeen

De mate waarin het geluid onder andere het woonmilieu mag belasten, is geregeld in de Wet geluidhinder (Wgh). In het bestemmingsplan moet volgens de Wgh worden aangetoond dat gevoelige functies, zoals woningen, een aanvaardbare geluidsbelasting hebben als gevolg van omliggende (spoor)wegen en industrieterreinen. Indien nieuwe geluidsgevoelige functies binnen de geluidszone van (spoor)wegen en/of industrieterreinen worden toegestaan, stelt de Wgh de verplichting akoestisch onderzoek te verrichten naar de geluidsbelasting.

Toetsing
Voor het initiatief is door De Milieuadviseur in mei 2017 een akoestisch onderzoek uitgevoerd3. Dit onderzoek is als bijlage 3 bijgevoegd. In de omgeving van de beoogde woningen bevinden zich alleen wegen. Spoorlijnen en gezoneerde industrieterreinen zijn nabij deze locatie niet aanwezig. Het akoestisch onderzoek richt zich op de geluidhinder afkomstig van de snelweg A18, de Antoniusstraat, de De Pontilaan, de Sportstraat, de Smallestraat en de Meikamerlaan.

Toetsing aan de Wet geluidhinder

Snelweg A18

De hoogste geluidsbelasting afkomstig van snelweg A18 op de rand van het bouwvlak bedraagt 52 dB, inclusief aftrek op grond van artikel 110g Wgh van 2 dB. Bij de nieuwe woningen wordt de voorkeursgrenswaarde van 48 dB uit de Wgh overschreden, echter de hoogst toelaatbare geluidsbelasting van 53 dB wordt niet overschreden.

Omliggende 30 km-wegen

De hoogste geluidsbelasting afkomstig van de omliggende 30 km-wegen op de rand van het bouwvlak bedraagt 42 dB, inclusief aftrek op grond van artikel 110g Wgh van 5 dB. De omliggende 30 km-wegen hebben op basis van de Wgh geen zone. Formeel gelden de normen uit de Wgh dan ook niet voor 30 km-wegen. Echter, in het kader van een goede ruimtelijke ordening, zijn bij de beoordeling van de geluidsbelastingen de voorkeursgrenswaarde van 48 dB en de hoogste toelaatbare geluidsbelastingen van 63 dB gebruikt. Deze normen gelden voor een vergelijkbare weg met een 50 km-regime. Bij de nieuwe woningen wordt de voorkeursgrenswaarde van 48 dB uit de Wgh niet overschreden.

Verlening hogere grenswaarden

Het doel van de Wgh is geluidhinder te voorkomen. Maatregelen om de voorkeursgrenswaarde te bereiken zijn bijvoorbeeld het toepassen van stil wegdek op snelweg A18, het vergroten van de afstand tussen de woningen en de weg of het toepassen van dove gevels. Gezien de beperkte schaal van dit plan (realisatie van negen woningen) is het niet mogelijk of gewenst om effectieve maatregelen te treffen die de geluidsbelastingen terugbrengen tot de voorkeursgrenswaarde van 48 dB.

In de Wgh ligt de nadruk op het voorkomen van geluidshinder. Echter de verlening van hogere waarden is mogelijk wanneer de geluidsbelasting niet kosteneffectief is terug te brengen naar de voorkeursgrenswaarden, dan wel wanneer overwegende bezwaren bestaan van stedenbouwkundige, verkeerskundige, vervoerskundige, landschappelijke of financiële aard. Uit dit akoestisch onderzoek blijkt dat het niet mogelijk is om de geluidsbelasting bij de negen woningen terug te brengen naar de voorkeursgrenswaarde van 48 dB. Op basis van de Wgh kan de gemeente Montferland een hogere waarde van 52 dB voor negen woningen verlenen afkomstig van snelweg A18. De verlening van de hogere waarde vindt plaats in een aparte hogere waarde-procedure gelijktijdig met de ruimtelijke procedure.

Toetsing aan het Bouwbesluit 2012

Op grond van het Bouwbesluit 2012 dient bij woningen een akoestische binnenwaarde van 33 dB ten gevolge van wegverkeerslawaai en 35 dB(A) industrielawaai (sportvereniging Sprinkhanen, zie navolgende paragraaf) te worden gegarandeerd. De hoogste cumulatieve geluidsbelastingen en de minimaal benodigde gevelwering per nieuwe woning om een akoestische binnenwaarde van 33 dB te bereiken, zijn weergegeven in de navolgende tabel:

afbeelding "i_NL.IMRO.1955.bpsgnwdwonpontiln2-va01_0011.png"

Cumulatieve geluidsbelastingen en de minimaal benodigde gevelwering

Ter indicatie: volgens artikel 3.2 van het Bouwbesluit 2012 bezit een standaard gevelconstructie een minimale geluidsisolatie van 20 dB bij gesloten ramen en deuren. Echter door de hogere eisen voor de thermische isolatie voor nieuwe woningen is ook de geluidsisolatie van nieuwe woningen verbeterd. Bij nieuwe woningen is een gevelisolatie van 22 dB zonder extra geluidsisolatie goed mogelijk, wanneer er is gekozen voor goed geluidsgeïsoleerde ventilatievoorzieningen. Naar verwachting wordt de binnenwaarde van 33 dB in de nieuwe woningen gehaald.

Conclusie

Geconcludeerd wordt dat er vanuit het aspect geluid geen belemmeringen bestaan ten aanzien van de voorgenomen ontwikkeling in het plangebied.

3.3.3 Milieuzonering

Algemeen

Indien door middel van een plan nieuwe, gevoelige functies mogelijk worden gemaakt, moet worden aangetoond dat een goed leefmilieu mogelijk kan worden gemaakt. Hierbij moet rekening worden gehouden met omliggende functies met een milieuzone. Anderzijds mogen omliggende bedrijven niet in hun ontwikkelingsmogelijkheden worden aangetast door de realisatie van een nieuwe gevoelige functie.

Wat betreft de aanbevolen afstanden tussen bedrijvigheid en gevoelige functies, zoals wonen, is de brochure 'Bedrijven en milieuzonering' (2009) van de Vereniging van Nederlandse Gemeenten geraadpleegd. Hierin worden richtafstanden voor het omgevingstype 'gemengd gebied' als 'rustige woonwijk' en 'rustig buitengebied' aanbevolen.

Gemengde gebieden betreffen gebieden die langs hoofdinfrastructuur liggen en/of gebieden met matige tot sterke functiemenging. In een rustige woonwijk en het buitengebied komen vrijwel geen andere functies voor. De richtafstanden gelden voor een gemiddeld nieuw bedrijf en gaan uit van het gebiedstype 'rustig woongebied'. Voor gemengde gebieden kunnen de richtafstanden worden verminderd.

Toetsing

In het plangebied en zijn omgeving is er geen sprake van menging van bedrijven en woningen,hierdoor is er sprake van een rustige woonwijk.

Hinderveroorzakende functies in het plangebied

Binnen het plangebied worden geen functies gerealiseerd die milieuhinder veroorzaken. De woningen zelf zijn wel milieuhindergevoelig.

Hinderveroorzakende functies in de omgeving van het plangebied  

Naast voorgenoemde toetsing moet onderzocht worden of de functies in het plangebied hinder ondervinden van hinderveroorzakende functies in de omgeving van het plangebied. Hierna wordt daarop ingegaan.

Op basis van de VNG-brochure 'Bedrijven en milieuzonering' kunnen de omliggende hinderveroorzakende functies als volgt worden gecategoriseerd:

Functie   Adres   Categorie o.b.v. VNG brochure  
R.K.-kerk Antonius van Padua   Smallestraat 35   Kerkgebouwen e.d.  
Voetbalvereniging Sprinkhanen   Smallestraat 49   Veldsportcomplex (met verlichting)  
Woning- en projectinrichting F.
Baakman  
Smallestraat 31   Detailhandel voor zover n.e.g.  
Elti Stienissen B.V.   Smallestraat 40   Elektrotechnische industrie n.e.g.  
Sporthal   Smallestraat 40b   Sporthallen  
Restaurant Steak’m   Smallestraat 33   Restaurants, cafetaria's, snackbars, ijssalons met eigen ijsbereiding, viskramen e.d.  

De VNG-brochure geeft de volgende minimaal aanbevolen richtafstanden aan voor deze functies:

Functie   Geur   Stof   Geluid   Gevaar   Grootste afstand   Werkelijke afstand  
Kerkgebouwen e.d.   0   0   30   0   30   40  
Veldsportcomplex (met verlichting)   0   0   50   0   50   40  
Detailhandel voor zover n.e.g.   0   0   10   0   10   115  
Elektrotechnische industrie n.e.g.   30   10   30   10   30   63  
Sporthallen   0   0   50   0   50   80  
Restaurants, cafetaria's, snackbars, ijssalons met eigen ijsbereiding, viskramen e.d.   10   0   10   10   10   95  

Voorgaand zijn de aanbevolen hindercontouren voor de aspecten geur, stof, geluid en gevaar weergegeven voor wat betreft hun afstand tot een rustige woonwijk.

Voetbalvereniging Sprinkhanen

De werkelijke afstand tussen de voetbalvelden en de woningen is kleiner dan de richtafstand voor sportvelden die is opgenomen in de VNG-brochure. De richtafstanden uit de VNG-publicatie zijn echter indicatief en kunnen als leidraad fungeren bij nieuwe ruimtelijke ontwikkelingen. De grootste richtafstand voor de voetbalvelden komt voort uit het aspect 'geluid'. Om de daadwerkelijke geluidshinder op de woningen als gevolg van de voetbalvelden in beeld te brengen, is door De Milieuadviseur in mei 2017 een akoestisch onderzoek uitgevoerd4. Dit onderzoek is als bijlage 4 bijgevoegd.


De geluidsbelasting van de nieuwe woningen is getoetst aan de normen uit het Activiteitenbesluit en de VNG-publicatie 'Bedrijven en milieuzonering, editie 2009'.

Langtijdgemiddelde geluidsbelastingen5 

Bij de nieuwe woningen bedraagt de langtijdgemiddelde geluidsbelasting maximaal 46 dB(A). Hiermee worden de richtwaarde van 50, behorend bij stap 3 uit de VNG-publicatie ‘Bedrijven en milieuzonering, editie 2009’ niet overschreden. Tevens wordt de grenswaarde van 50 dB(A) uit het Activiteitenbesluit niet overschreden.

Tussen de voetbalvereniging Sprinkhanen en het plangebied liggen diverse woningen. Bij deze tussenliggende woningen bedraagt de langtijdgemiddelde geluidsbelasting maximaal 58 dB(A). Deze waarde wordt gevonden bij de woning Sportstraat 13. Bij de bestaande woningen zijn de langtijdgemiddelde geluidsbelastingen 13 dB(A) hoger dan bij de nieuwe woningen.

Maximale geluidsbelastingen

Bij de nieuwe woningen bedraagt de maximale geluidsbelasting maximaal 73 dB(A) in de dagperiode en 65 dB(A) in de avondperiode. Hiermee worden richtwaarden voor stap 3 uit de VNG-publicatie ‘Bedrijven en milieuzonering, editie 2009’ met 3 dB(A) in de dagperiode overschreden. Deze overschrijding wordt veroorzaakt door het gebruik van de scheidsrechterfluit. In het akoestisch onderzoek is uitgegaan het maximum bronvermogen (LMAX) van 118 dB(A) voor een scheidsrechterfluit. Echter, de meest gebruikte scheidsrechterfluiten (Fox 40 classic en anderen) produceren 3 dB(A) minder geluid (maximaal bronvermogen (LMAX) van 115 dB(A). Bij het gebruik van de veel gebruikte scheidsrechterfluit, zoals Fox 40 classic, treedt er geen overschrijding meer op bij de nieuwe woning. In de praktijk zal er dan ook geen overschrijding optreden van de richtwaarden die horen bij stap 3 uit de VNG-publicatie ‘Bedrijven en milieuzonering, editie 2009’.

Tussen de voetbalvereniging Sprinkhanen en het plangebied liggen diverse woningen. Bij deze bestaande tussenliggende woningen bedraagt de langtijdgemiddelde geluidsbelasting maximaal 81 dB(A). Deze waarde wordt gevonden bij de woning Meikamerlaan 2c. Bij de bestaande tussenliggende woningen zijn de maximale geluidsbelastingen 8 dB(A) hoger dan bij de nieuwe woningen. Bij de bestaande omliggende woningen kan de maximale geluidsbelasting afkomstig van de scheidsrechterfluit met 3 dB(A) worden verlaagd door het gebruik van de Fox 40 classic scheidsrechterfluit. In de praktijk wordt deze fluit door het overgrote deel van de scheidsrechters in Nederland al gebruikt.

Indirecte hinder

Het rijden van auto’s en vrachtwagen naar en van de voetbalvereniging zorgt mogelijk voor enige geluidshinder bij de nieuwe woningen. Deze geluidshinder wordt indirecte hinder genoemd. Voor de realisatie van de nieuwe woningen is akoestisch onderzoek naar het wegverkeerslawaai uitgevoerd (zie paragraaf 3.3.2). In dit onderzoek zijn de geluidsbelastingen van het wegverkeer op de Smallestraat en de Meikamerlaan bepaald. In de verkeersgegevens van dit onderzoek is het verkeer van en naar de voetbalvereniging opgenomen. Uit het akoestisch onderzoek wegverkeer blijkt dat de geluidsbelastingen afkomstig van de omliggende 30 km-wegen, zoals de Smallestraat en de Meikamerlaan, binnen de normen uit de Wet geluidhinder liggen. De geluidsbelastingen zijn daarmee acceptabel. De indirecte hinder is daarmee ook acceptabel.

Conclusie

Geconcludeerd kan worden dat vanuit het aspect bedrijven en milieuzonering geen belemmeringen bestaan ten aanzien van de gewenste ontwikkelingen in het plangebied.

3.3.4 Geur

Algemeen

De Wet geurhinder en veehouderij (Wgv) vormt in eerste instantie het wettelijk kader bij de beoordeling van een aanvraag om een milieuvergunning voor dierenverblijven van veehouderijen. De Wet geurhinder en veehouderij geeft hiervoor geurbelastings- en afstandsnormen in relatie met geurgevoelige objecten in de nabijheid van de (geprojecteerde) veehouderij. De Wgv heeft betrekking op twee aspecten. Ten eerste speelt de geurbelasting een rol bij de beoordeling of er in het kader van een goede ruimtelijke ordening een goed woon- en leefklimaat kan worden gegarandeerd. Ten tweede moet bij de belangenafweging ten behoeve van een zorgvuldige besluitvorming worden nagegaan of een in de omgeving gelegen veehouderij niet onevenredig in haar belangen wordt geschaad.

Toetsing

Met het plan is sprake van de realisatie van geurgevoelige objecten in de vorm van negen woningen. De dichtstbijzijnde veehouderijen in de omgeving betreffen een melkveehouderij aan de Tolweg 11 en een paardenhouderij aan de Bosstraat 26.

Voor melkveehouderijen en paardenhouderijen zijn in het kader van de Wgv geen geuremissies vastgesteld. Voor dergelijke bedrijven gelden dan ook vaste afstandsnormen. De Wgv maakt voor de afstandsnormen onderscheid tussen een geurgevoelig object binnen de bebouwde kom (100 meter tot emissiepunt) en buiten de bebouwde kom (50 meter tot emissiepunt). Het gaat hierbij niet om de verkeerskundige bebouwde kom, maar om de ruimtelijke situatie. Het plangebied ligt binnen de bebouwde kom en daarom moet de afstand van de nieuwe geurgevoelige objecten (woningen) tot het emissiepunt (stal) minimaal 100 meter bedragen.

De afstand van de geprojecteerde woningen in het plangebied tot de eerdergenoemde veehouderijen in de omgeving bedraagt circa 450 meter. Daarmee wordt voldaan aan de afstandsnormen uit de Wgv. Omdat de geplande woningen in het plangebied voldoen aan de afstandseis die is bepaald in de Wgv, zorgt het plan eveneens niet voor een (verdere) beperking van de bedrijfsvoering van de omliggende veehouderijen.

Conclusie
Geconcludeerd kan worden dat vanuit het aspect geur geen belemmeringen bestaan ten aanzien van de gewenste ontwikkelingen in het plangebied.

3.3.5 Luchtkwaliteit

Algemeen

De Wet luchtkwaliteit (verankerd in de Wet milieubeheer, hoofdstuk 5, titel 5.2) is een implementatie van diverse Europese richtlijnen omtrent luchtkwaliteit, waarin onder andere grenswaarden voor vervuilende stoffen in de buitenlucht zijn vastgesteld ter bescherming van mens en milieu. In Nederland zijn stikstofdioxide (NO2) en zwevende deeltjes als PM10 (fijn stof) de maatgevende stoffen waar de concentratieniveaus het dichtst bij de grenswaarden liggen. Overschrijdingen van de grenswaarden komen, uitzonderlijke situaties daargelaten, bij andere stoffen niet voor. Vanaf 1 januari 2015 dient het bevoegd gezag de luchtkwaliteit ook te toetsen aan de grenswaarde voor PM2,5. Op basis van onderzoek door het Planbureau voor de Leefomgeving kan worden gesteld dat als aan de grenswaarden voor PM10  wordt voldaan, ook aan de grenswaarde voor PM2,5 wordt voldaan.

Hoewel de luchtkwaliteit de afgelopen jaren flink is verbeterd, kan Nederland niet voldoen aan de luchtkwaliteitseisen die in 2010 van kracht zijn geworden. De EU heeft Nederland derogatie (uitstel) verleend op grond van het Nationaal Samenwerkingsprogramma Luchtkwaliteit (NSL). Dit betreft een gemeenschappelijke aanpak van het Rijk en diverse regio's om samen te werken aan een schonere lucht, waarbij ruimte wordt geboden aan noodzakelijke ruimtelijke ontwikkelingen. Plannen die in betekenende mate bijdragen aan luchtverontreiniging worden opgenomen in een gebiedsgericht programma van het NSL. Het maatregelenpakket in het NSL is hiermee in evenwicht en zodanig dat op termijn de luchtkwaliteit in heel Nederland onder de grenswaarden ligt. Plannen die 'niet in betekenende mate' (NIBM) bijdragen aan luchtverontreiniging hoeven niet langer individueel getoetst te worden aan de Europese grenswaarden aangezien deze niet leiden tot een significante verslechtering van de luchtkwaliteit. Deze grens is in de AMvB NIBM gelegd bij 3% van de grenswaarde van een stof: Voor NO2 en PM10 betekent dit dat aannemelijk moet worden gemaakt dat het project tot maximaal 1,2 øg/m³ verslechtering leidt. Voor een aantal functies (o.a. woningen, kantoren, tuin- en akkerbouw) is dit gekwantificeerd in de ministeriële regeling NIBM.

Uit het oogpunt van een goede ruimtelijke ordening wordt afgewogen of het aanvaardbaar is het project op deze plaats te realiseren. Hierbij kan de blootstelling aan luchtverontreiniging een rol spelen, ook als het project 'niet in betekenende mate' bijdraagt aan de luchtverontreiniging. Er is sprake van een significante blootstellingsduur als de verblijfsduur die gemiddeld bij de functie te verwachten is een aanzienlijk deel van de dag betreft. Volgens de toelichting op de Regeling Beoordeling luchtkwaliteit is dit onder andere het geval bij een woning, school of sportterrein.

Gevoelige bestemmingen als scholen, kinderdagverblijven, bejaarden- en zorgtehuizen genieten op grond van de gelijknamige AMvB extra bescherming. Substantiële uitbreiding of nieuwsvestiging binnen 50 meter van een provinciale weg of 300 meter van een Rijksweg is alleen toegestaan als de concentraties luchtvervuilende stoffen zich onder de grenswaarden bevinden, waardoor geen onacceptabele gezondheidsrisico's optreden.


Toetsing
Voorliggend initiatief maakt de bouw van maximaal tien nieuwe woningen mogelijk. Volgens de ministeriële regeling NIBM draagt een bouwplan van deze omvang (minder dan 1.500 woningen) niet in betekenende mate bij aan de luchtverontreiniging. Toetsing aan de grenswaarden is derhalve niet noodzakelijk.

In het kader van een goede ruimtelijke ordening is de lokale luchtkwaliteit onderzocht, zodat onacceptabele gezondheidsrisico's kunnen worden uitgesloten. Hiertoe is de monitoringstool6 uit het Nationaal Samenwerkingsprogramma Luchtkwaliteit (NSL) van de rijksoverheid geraadpleegd. De monitoringstool geeft inzicht in de concentraties stikstofdioxide (NO2) en fijn stof (PM10) in het plangebied tussen 2015 en 2030. De monitoringstool kent scenario's zonder en met lokale maatregelen die er voor moeten zorgen dat op termijn overal aan de grenswaarden wordt voldaan. Beide typen scenario's laten in de toekomst een afname van de concentraties zien. Dit komt doordat bedrijven en het verkeer steeds schoner worden door technologische verbeteringen. De monitoringstool maakt duidelijk dat de concentraties luchtvervuilende stoffen in de peiljaren 2015, 2020 en 2030 in het plangebied onder de grenswaarden liggen die op Europees niveau zijn vastgesteld ter bescherming van mens en milieu tegen schadelijke gevolgen van luchtverontreiniging. De blootstelling aan luchtverontreiniging is hierdoor beperkt en leidt niet tot onaanvaardbare gezondheidsrisico's.

In het plangebied worden geen gevoelige functies beoogd zoals bedoeld in het 'Besluit gevoelige bestemmingen'. Toetsing aan de grenswaarden is daarom niet noodzakelijk.


Conclusie
Op basis van voorgaande kan worden geconcludeerd dat zowel vanuit de Wet milieubeheer als vanuit een goede ruimtelijke ordening de luchtkwaliteit geen belemmering vormt voor het onderhavige initiatief.

3.3.6 Externe veiligheid

Algemeen

Het aspect externe veiligheid betreft het risico op een ongeval waarbij een gevaarlijke stof aanwezig is. Deze gevaarlijke stoffen kennen twee verschillende bronnen. Dit zijn de stationaire bronnen (chemische fabriek, lpg-vulpunt) en de mobiele bronnen (route gevaarlijke stoffen). Er wordt onderscheid gemaakt tussen de kans op een ramp en het aantal mogelijk slachtoffers. Er wordt bij externe veiligheid onderscheid gemaakt in plaatsgebonden risico en groepsrisico. Het plaatsgebonden risico biedt burgers in hun woonomgeving een minimum beschermingsniveau tegen gevaarlijke stoffen. Het groepsrisico heeft een oriënterende waarde en voor het plaatsgebonden risico geldt een grenswaarde voor kwetsbare objecten en een richtwaarde voor beperkt kwetsbare objecten.

Plaatsgebonden risico  

Het plaatsgebonden risico mag in principe nergens groter zijn dan 1 op 1 miljoen (ofwel 10-6). Dit is de kans dat een denkbeeldig persoon, die zich een jaar lang permanent op de betreffende plek bevindt (de plek waarvoor het risico is uitgerekend), dodelijk verongelukt door een ongeval. Deze kans mag niet groter zijn dan eens in de miljoen jaar. Elke ruimtelijke ontwikkeling wordt getoetst aan het plaatsgebonden risico van 10-6 als grenswaarde.

Groepsrisico  

Het groepsrisico geeft de kans aan dat in één keer een groep mensen die zich in de omgeving van een risicosituatie bevindt, dodelijk door een ongeval wordt getroffen. Groepsrisico legt een relatie tussen de kans op een ramp en het aantal mogelijke slachtoffers. Bij groepsrisico is het dan ook niet een contour die bepalend is, maar het aantal mensen dat zich gedurende een bepaalde periode binnen de effectafstand van een risicovolle activiteit ophoudt. Welke kans nog acceptabel geacht wordt, is afhankelijk van de omvang van de ramp. Een ongeval met 100 doden leidt tot meer ontwrichting, leed en emoties, dan een ongeval met 10 dodelijke slachtoffers. Aan de kans op een ramp met 100 doden wordt dan ook een grens gesteld, die een factor honderd lager ligt dan voor een ramp met 10 doden. In het Bevi (stb. 250, 2004) wordt verder een verantwoordingsplicht (door de overheid) voor het groepsrisico rond inrichtingen wettelijk geregeld (art. 13). De verantwoording houdt in dat wordt aangegeven of risico's acceptabel zijn en welke maatregelen worden genomen om de risico's te verkleinen.

Toetsing

Voorliggende ontwikkeling voorziet in de realisatie van nieuwe kwetsbare objecten, namelijk woningen. Ten opzichte van de mogelijkheden in het geldende bestemmingsplan (voormalige basisschool) neemt het aantal aanwezige personen af. Daarnaast geldt dat de toekomstige bewoners van de woningen meer zelfredzaam zijn dan de leerlingen van de basisschool.

Om te bepalen waar er zich stationaire en mobiele bronnen bevinden, is de risicokaart Nederland geraadpleegd. De navolgende afbeelding bevat een uitsnede van de risicokaart.

afbeelding "i_NL.IMRO.1955.bpsgnwdwonpontiln2-va01_0012.png"

Uitsnede risicokaart Nederland

Op de uitsnede van de risicokaart Nederland is te zien dat in het plangebied zelf geen risicovolle inrichtingen of transportroutes liggen. Ten zuidoosten van het plangebied ligt de rijksweg A18. De rijksweg A18 is een doorgaande transportroute voor gevaarlijke stoffen die hiervoor is aangewezen in de Regeling Basisnet. Conform bijlage 1 van deze Regeling heeft de rijksweg geen 10-6 contour of een plasbrandaandachtsgebied en heeft een invloedsgebied van 355 meter (brandbaar). Uit de meest recente tellingen (digitale tellingen 2013, bron Rijkswaterstaat.nl) blijkt dat een gering aantal transporten met giftige vloeistoffen plaatsvindt over A18. De planlocatie ligt op circa 375 meter van de A18 en is gelegen buiten het invloedsgebied van de rijksweg.

Echter, de locatie van de planontwikkeling is wel gelegen binnen het invloedsgebied van de Betuweroute ( = 4.000 meter) en de A12 ( = 4.000 meter). Over beide transportroutes worden hogere aantallen giftige vloeistoffen en giftige gassen getransporteerd (bron tellingen Rijskwaterstaat.nl en bijlage 2 regeling Basisnet) zodat ten aanzien van deze risicobronnen een verantwoording van het groepsrisico opgesteld dient te worden. Gelet op de afstand (2.300 meter t.o.v. de rijksweg A12 en 3.500 meter t.o.v. de Betuweroute) kan volstaan worden met een beperkte verantwoording.

Beperkte verantwoording groepsrisico

Uit toetsing aan de signaleringskaart externe veiligheid blijkt dat het ruimtelijk besluit betrekking heeft op het mogelijk maken van kwetsbare objecten binnen het invloedsgebied van toxische stoffen over de Betuweroute en de rijksweg A12 en geheel buiten de 200 meter van de transportroute. Op basis van het Bevt dient voor een ruimtelijk besluit buiten de 200 meter vanaf de transportroute ingegaan te worden op:

  • De mogelijkheden tot voorbereiding van bestrijding en beperking van de omvang van een ramp op die weg, spoorweg of dat binnenwater;
  • De mogelijkheden voor personen om zich in veiligheid te brengen indien zich op die weg, spoorweg of dat binnenwater een ramp voordoet. Dit is alleen van toepassing op nog niet aanwezige (beperkt) kwetsbare objecten.

Daarnaast stelt het Bevt dat de Veiligheidsregio in de gelegenheid gesteld moet worden om advies uit te brengen over de mogelijkheden voor de bestrijdbaarheid en zelfredzaamheid.

afbeelding "i_NL.IMRO.1955.bpsgnwdwonpontiln2-va01_0013.png"

Uitsnede signaleringskaart

Uit de notitie 'VGR voor standaard externe veiligheidssituaties' blijkt dat wanneer een ruimtelijk besluit buiten de 200 meter zone van een transportroute ligt en het besluit geen objecten toestaat voor verminderd zelfredzame personen, er sprake is van een standaard externe veiligheidssituatie. Voor deze situaties wordt de onderstaande verantwoording van het groepsrisico gehanteerd. De Veiligheidsregio heeft op 19 juni 2017 bevestigd dat e.e.a. van toepassing is op het onderhavige besluit.

Maatgevende scenario's

De maatgevende scenario's voor de mogelijkheden voor de bestrijdbaarheid en zelfredzaamheid waarbij het plangebied binnen het invloedsgebied van brandbare gassen en toxische vloeistoffen/gassen ligt is een wolkbrandexplosie en een toxische wolk. Onderstaand is vanuit deze scenario's ingegaan op de mogelijkheden voor de bestrijdbaarheid en zelfredzaamheid.

De mogelijkheden tot voorbereiding van bestrijding en beperking van de omvang van een ramp

Bij een calamiteit zal de brandweer zich inzetten om effecten ten gevolge van het incident te beperken of te voorkomen. Deze inzet zal voornamelijk plaatsvinden bij de bron. De brandweer richt zich dan niet direct op het bestrijden van effecten in of nabij het plangebied. Eventuele secundaire branden in het plangebied kunnen met behulp van de primaire bluswatervoorzieningen worden bestreden door de brandweer. De mogelijkheden voor bestrijdbaarheid worden daarom niet verder in beschouwing genomen.

De mogelijkheden voor personen om zich in veiligheid te brengen

Bij een calamiteit is het belangrijk dat de aanwezigen in het plangebied worden geïnformeerd hoe te handelen bij een incident. Hiervoor wordt gebruik gemaakt van de zogenaamde waarschuwings- en alarmeringspalen (WAS-palen) of NL-alert. Bij een scenario waarin toxische stoffen vrijkomen, is het advies om te schuilen in een gebouw,

Conclusie

Het aspect externe veiligheid vormt geen belemmering voor de uitvoering van het plan.

3.4 Water

3.4.1 Beleid

Het waterbeleid van Rijk en provincie is gericht op een veilig en goed bewoonbaar land met gezonde, duurzame watersystemen. Het plangebied ligt in het beheersgebied van het Waterschap Rijn en IJssel. In het Waterbeheerplan 2016-2021 van Waterschap Rijn en IJssel laat het waterschap zien welke ontwikkelingen voor het waterbeheer van belang zijn en welke accenten zij in de samenwerking met haar partners willen leggen. Vanuit die omgevingsverkenning is vervolgens het beleid voor de planperiode 2016-2021 beschreven voor primaire taakgebieden van het waterschap:

  • Bescherming tegen overstromingen en werken aan veiligheid: Veilig water.
  • Zorgen voor de juiste hoeveelheid water en passende waterpeilen: Voldoende water.
  • Zorgen voor een goede waterkwaliteit die nodig is voor mens, plant en dier: Schoon water.
  • Verwerken van afvalwater en het benutten van energie en grondstoffen daaruit: Afvalwater.
  • Zorgen voor goede randvoorwaarden voor beroepsvaart op de Oude IJssel: Vaarwegbeheer.
3.4.2 Watertoetstabel

Waterschap Rijn en IJssel heeft een watertoetstabel ontwikkeld waarmee met een aantal vragen in beeld te brengen is welke wateraspecten relevant zijn en met welke intensiteit het watertoetsproces doorlopen dient te worden. De vragen zijn gericht op de locatie van de ruimtelijke ontwikkeling en welke veranderingen er mogelijk worden gemaakt.

De intensiteit van het watertoetsproces is afhankelijk van de antwoorden op de vragen. Als erop een categorie 2 vraag een 'ja' is geantwoord, is een uitgebreide watertoets noodzakelijk. Is er op geen van de categorie 2 vragen een 'ja' geantwoord, dan kan een verkorte watertoets doorlopen worden. Als er alleen met 'nee' is geantwoord, dan is het RO-plan waterhuishoudkundig niet van belang en hoeft er geen wateradvies bij het waterschap gevraagd te worden.

Navolgend is de watertoetstabel opgenomen. De relevante waterthema's voor de ontwikkeling worden door middel van de watertoetstabel geselecteerd en vervolgens beschreven (wanneer de toetsvraag met 'ja' is beantwoord).


Thema  
Toetsvraag   Relevant   Intensiteit  
Veiligheid   1. Ligt in of binnen 20 meter vanaf het plangebied een waterkering? (primaire waterkering, regionale waterkering of kade)
2. Ligt het plangebied in een waterbergingsgebied of winterbed van een rivier?  


Nee

Nee  


2

2  
Riolering en Afvalwaterketen   1. Is de toename van het afvalwater (DWA) groter dan 1m3/uur?
2. Ligt in het plangebied een persleiding van WRIJ?
3. Ligt in of nabij het plangebied een RWZI of rioolgemaal van het waterschap?  

Nee
Nee

Nee  

2
1

1  
Wateroverlast (oppervlaktewater)
 
1. Is er sprake van toename van het verhard oppervlak met meer dan 2500m2?
2. Is er sprake van toename van het verhard oppervlak met meer dan 500m2?
3. Zijn er kansen voor het afkoppelen van bestaand verhard oppervlak?
4. In of nabij het plangebied bevinden zich natte en laag gelegen gebieden, beekdalen, overstromingsvlaktes?  

Nee

Nee

Nee


Nee  

2

1

1


1  
Oppervlaktewater- kwaliteit   1. Wordt vanuit het plangebied (hemel)water op oppervlaktewater geloosd?  
Nee  

1  
Grondwateroverlast   1. Is in het plangebied sprake van slecht doorlatende lagen in de ondergrond?
2. Is in het plangebied sprake van kwel?
3. Beoogt het plan dempen van perceelsloten of andere wateren?
4. Beoogt het plan aanleg van drainage?  

Nee
Nee

Nee
Nee  

1
1

1
1  
Grondwaterkwaliteit   1. Ligt het plangebied in de beschermingszone van een drinkwateronttrekking?  
Nee  

1  
Inrichting en beheer   1. Bevinden zich in of nabij het plangebied wateren die in eigendom of beheer zijn bij het waterschap?
2. Heeft het plan herinrichting van watergangen tot doel?  

Nee

Nee  

1

2  
Volksgezondheid
 
1. In of nabij het plangebied bevinden zich overstorten uit het gemengde stelsel?
2. Bevinden zich, of komen er functies, in of nabij het plangebied die milieuhygiënische of verdrinkingsrisico's met zich meebrengen (zwemmen, spelen, tuinen aan water)?  

Nee



Nee  

1



1  
Natte natuur   1. Bevindt het plangebied zich in of nabij een natte EVZ?
2. Ligt in of nabij het plangebied een HEN of SED water?
3. Bevindt het plangebied zich in beschermingszones voor natte natuur?
4. Bevindt het plangebied zich in een Natura 2000-gebied?  

Nee

Nee

Nee

Nee  

2

2

1

1  
Verdroging   1. Bevindt het plangebied zich in een TOP-gebied?   Nee   1  
Recreatie   1. Bevinden zich in het plangebied watergangen en/of gronden in beheer van het waterschap waar actief recreatief medegebruik mogelijk wordt?  

Nee  


2  
Cultuurhistorie   1. Zijn er cultuurhistorische waterobjecten in het plangebied aanwezig?  
Nee  

1  

Algemeen

In de huidige situatie is het plangebied grotendeels verhard. Het plangebied bestaat uit bebouwing en een schoolplein. Door de realisatie van de woningen zal het verhard oppervlak naar verwachting afnemen. Bij de woningen worden tuinen gerealiseerd die naar verwachting deels onverhard zullen zijn.

Bij de gemeente Montferland is bekend dat in Nieuw-Dijk plaatselijk grondwateroverlast voorkomt. Plaatselijk bestaan er verschillen in grondwaterstanden. Om grondwateroverlast te voorkomen dient de afstand tussen het grondwater en de beoogde functies voldoende groot te zijn. De ontwateringdiepte (afstand tussen het maaiveld en de grondwaterstand) van bebouwing hangt af van de functie en type van gebouwen. Het waterschap hanteert voor woningen met kruipruimte een ontwateringsdiepte van 0,70 m onder vloerpeil en 0,30 m onder vloerpeil voor woningen zonder kruipruimte. Tuinen en openbare groenvoorzieningen dienen een ontwateringsdiepe van 0,50 m beneden het maaiveld van groenvoorzieningen te hebben. Voor secundaire wegen en woonstraten geldt een ontwateringsdiepte van respectievelijk 0,70 m beneden straatpeil.

De grondwaterstanden in het plangebied zijn kort gemonitord om te kijken of de grondwaterstanden overeenkomen met naastgelegen peilbuizen die op zijn genomen in het landelijk meetnet. Peilbuizen in het landelijk meetnet worden continu gemonitord, waardoor er een goed beeld is van de grondwaterstand ter plaatse van deze peilbuizen. Een memo over de monitoring van de grondwaterstanden in het plangebied en de vergelijking hiervan met de in de buurt gelegen peilbuizen uit het landelijk meetnet is opgenomen als bijlage 5.

Van een peilbuis uit het landelijk meetnet (B40E1479, gelegen nabij de De Pontilaan 16) is bekend dat de GHG zich op circa 1 m -mv ligt. Uit de vergelijking komt naar voren dat de grondwaterstand van de peilbuis in het plangebied circa 0,1 m lager ligt. De GHG van het grondwater in het plangebied zal daarom op circa 1,1 m -mv liggen.

Uit het bodemonderzoek (zie bijlage 2) is naar voren gekomen dat de bovengrond in het plangebied voornamelijk uit zwak siltig, matig fijn zand bestaat met plaatselijk laagjes klei. De bovengrond is plaatselijk zwak tot matig humeus.

Het beleid van de gemeente Montferland is er op gericht dat hemelwater zoveel mogelijk op eigen terrein wordt verwerkt. Dit heeft veel voordelen:

  • Het plaatselijk infiltreren van regenwater voorkomt verdere verdroging;
  • piekafvoeren en lozingen van water op oppervlaktewater nemen niet toe, omdat er geen of minder nieuw verharde oppervlakken worden aangesloten op de riolering;
  • lokale gevolgen van klimaatverandering zijn kleiner.

Gezien de grondwaterstand en de samenstelling van de grond is infiltratie van hemelwater, afkomstig van de nieuw te bouwen bebouwing, in het plangebied mogelijk. Om de waterkwaliteit op peil te houden, zal bij de bouw van de woningen uitsluitend duurzame (niet-uitlogende) materialen worden toegepast.

In de straat ligt een hemelwaterriool die afvoert naar de waterschapssloot. Het toepassen van een wadi is denkbaar voor het opvangen van hemelwater van de verharding van de parkeerplaatsen en de toegangsweg. Dit kan worden gecombineerd met de bestaande hemelwaterriolering in de straat en een overloop op de wadi in extreme situaties.

3.4.3 Overleg Waterschap Rijn en IJssel

Bij de watertoetstabel zijn de vragen alleen met 'nee' beantwoord. Dit betekent dat het plan waterhuishoudkundig niet van belang is voor het waterschap en er geen wateradvies bij het waterschap gevraagd hoeft te worden. Om die reden is geen overleg met het waterschap gevoerd.

3.4.4 Conclusie

Het aspect water vormt geen belemmering voor de uitvoering van het plan.

3.5 Cultuurhistorie en archeologie

3.5.1 Archeologie

Algemeen

Door ondertekening van het verdrag van Malta (1992) heeft Nederland zich verplicht om bij ruimtelijke planvorming nadrukkelijk rekening te houden met het niet-zichtbare deel van het cultuurhistorisch erfgoed, te weten de archeologische waarden. In de Erfgoedwet is geregeld hoe met in de grond aanwezige dan wel te verwachten archeologische waarden moet worden omgegaan. Het streven is om deze belangen tijdig bij het plan te betrekken. Bij ingrepen waarbij de ondergrond wordt geroerd, dient te worden aangetoond dat de eventueel aanwezige archeologische waarden niet worden aangetast.

Toetsing

Op 7 april 2015 is door het college van b en w van de gemeente Montferland de geactualiseerde gemeentelijke archeologische waarden- en verwachtingskaarten en cultuurhistorische waardenkaart, inclusief de hieraan gekoppelde rapportage (onderbouwing), beleidskader en uitvoering hiervan, vastgesteld.

afbeelding "i_NL.IMRO.1955.bpsgnwdwonpontiln2-va01_0014.png"

Uitsnede archeologische beleidskaart gemeente Montferland

Volgens de gemeentelijke archeologische beleidskaart ligt het plangebied voor in een zone met een lage archeologische verwachting (AWV 8). Volgens het archeologische beleid van de gemeente Montferland is archeologisch onderzoek bij ruimtelijke ontwikkelingen ter plaatse van deze zone niet noodzakelijk.


Conclusie

Geconcludeerd kan worden dat vanuit het aspect archeologie geen belemmeringen bestaan ten aanzien van de gewenste ontwikkelingen in het plangebied.

3.5.2 Cultuurhistorie

Algemeen

Door de wijziging van artikel 3.1.6, vijfde lid, onderdeel a van het Besluit ruimtelijke ordening (Bro) moeten naast de in de grond aanwezige of te verwachten monumenten ook cultuurhistorische waarden worden meegewogen bij het vaststellen van bestemmingsplannen. Om die reden is een korte analyse verricht van de ontstaansgeschiedenis en de mogelijk aanwezige cultuurhistorische waarden in het gebied.


Toetsing

De historische groei van Nieuw-Dijk begint met de bouw van hoeven langs de Bosstraat en bij de Klauwenhof, die de overgang markeert van de bouwlanden ten westen van de Bosstraat naar de bosmarken en woeste heidegronden ten oosten van de Bosstraat. Westelijk van de Bosstraat liggen meer kronkelende wegen waaraan oude huiskampen te vinden zijn.

Omstreeks 1900 was de voormalige gemeente Didam een uitgestrekt gebied, waarvan het dorp Didam het centrum was. Daar stond ook de enige Rooms Katholieke kerk. Er was één kerkparochie in de gehele gemeente Didam. Omdat het aantal parochianen groeide, werd de kerk te klein en zocht men naar een passende oplossing. Deze nieuwe parochie werd in 1910/1911 gesticht in het buurtschap Den Bosch, dat toen hernoemd werd tot Nieuw-Dijk.

Aanvankelijk zou de kerk gebouwd worden aan de Beekseweg omdat dit de enige verharde weg op dat moment was (hoek Beekseweg- Bosstraat). Door een grondschenking werd de kerk uiteindelijk aan de Smallestraat gebouwd. Met de bouw van een kerk en de school (1915) groeit het buurtschap langzaam uit tot dorp. Daarmee ontstond behoefte aan (meer) voorzieningen. De Smallestraat werd in de loop van de jaren steeds meer het dorpscentrum.

In de navolgende figuren zijn fragmenten van de topografische kaarten uit 1931, 1957 en 1977 opgenomen. Uit de historische kaart van 1931 en 1957 blijkt dat het plangebied tot en met de eerste helft van de 20e eeuw onbebouwd is geweest.

afbeelding "i_NL.IMRO.1955.bpsgnwdwonpontiln2-va01_0015.png"

Uitsnede topografische kaart 1931, 1957, 1977, huidige situatie

Tot de jaren vijftig verandert er in Nieuw-Dijk weinig. Vanaf dan begint het kerkdorp zich aanmerkelijk uit te breiden. Op het kaartfragment uit 1977 is te zien dat het dorp zich voornamelijk vanuit de Smallestraat in noordelijke richting heeft uitgebreid tot aan het verlengde van de Bosstraat. Ook de infrastructuur in de omgeving is verder ontwikkeld met onder andere de realisatie van de autosnelweg A18. Ook het belang van de Bosstraat en Smallestraat als ontsluitingswegen in de kern Nieuw-Dijk is duidelijk te zien. De huidige bebouwing in het plangebied stamt ook uit deze periode.

In het plangebied is geen sprake van cultuurhistorisch waardevolle bebouwing. Met de voorgenomen ontwikkeling vindt geen aantasting aan cultuurhistorisch waardevolle lijnen of elementen plaats. Het initiatief heeft geen negatieve gevolgen voor het aspect cultuurhistorie.

Conclusie

Geconcludeerd kan worden dat vanuit het aspect cultuurhistorie geen belemmeringen bestaan ten aanzien van de gewenste ontwikkelingen in het plangebied.

3.6 Flora en fauna

3.6.1 Algemeen

Bij elke ruimtelijke ontwikkeling moet, in het kader van de Wet natuurbescherming, in beeld worden gebracht of er sprake is van invloeden op natuurwaarden en beschermde soorten.

3.6.2 Toetsing

In het kader van onderhavig plan is door Foreest Groen Consult in mei 2017 een quickscan natuuronderzoek uitgevoerd7. Dit onderzoek is als bijlage 6 bijgevoegd.

Gebiedsbescherming

Het plangebied ligt buiten de Natura 2000 gebieden en op ruime afstand tot deze gebieden. Van een externe werking zal geen sprake zijn, indien de locatie als wonen of kleine bedrijvigheid wordt bestemd.

Het plangebied ligt buiten de zones van het Gelders Natuurnetwerk (GNN) en de Gelderse Groene Ontwikkelingszone (GO) De kernkwaliteiten worden met de ontwikkeling niet aangetast. Er hoeft geen verdere toetsing uitgevoerd te worden.

Soortenbescherming

Uit de quickscan komt naar voren dat de school in potentie geschikt is voor vleermuizen als vaste rust- en verblijfplaats. De school heeft spouwmuren en zowel de begane grond als de eerste verdieping hebben holle plafonds. De school heeft echter een beperkt aantal toegangsmogelijkheden tot deze potentieel geschikte ruimten. De uitbouw heeft de meeste mogelijkheden door een groot aantal open stootvoegen net onder de dakrand. Het hoofdgebouw heeft een zeer beperkt aantal openingen die door vleermuizen gebruikt kunnen worden. Zo is er: een open stootvoeg aan de westzijde boven een raam, de kierende loodslabben bij de schoorsteen, de openingen aan de zuidzijde bij de raampartijen en de ronde openingen in de daklijst. Deze ronde openingen zitten voor vleermuizen niet op een handige plek en de dieren hebben hier, door het gladde oppervlak, weinig grip. De kans dat vleermuizen daadwerkelijk gebruik maken van de school is hierdoor klein. Maar helemaal uitsluiten is op basis van de quickscan niet mogelijk. Hiervoor zijn te veel kieren aanwezig.

De Wet natuurbescherming wordt voor de soortgroep vleermuizen mogelijk overtreden. Nader onderzoek is daarom noodzakelijk. Aandachtsoorten zijn de Laatvlieger en Gewone dwergvleermuis. De berging, de overkapping en de fietsenstalling zijn van geen belang voor vleermuizen.

Verstoring van overige beschermde flora en fauna niet wordt op basis van de quick scan niet verwacht.

Nader onderzoek

Naar aanleiding van de bevindingen in de quickscan natuuronderzoek is door Foreest Groen Consult van mei tot en met oktober 2017 een nader onderzoek naar vleermuizen uitgevoerd8. Dit onderzoek is als bijlage 7 bijgevoegd.

Uit het onderzoek komt naar voren dat tijdens de paartijd op één plek in de school drie gewone dwergvleermuizen zijn gezien bij het invliegen. In de school is dus een paarverblijf aanwezig. Bij de controle die op deze waarneming volgde zijn de dieren niet meer in- of uitvliegend waargenomen. Hierdoor kan een winterverblijf worden uitgesloten. In de kraam- en zomerperiode zijn eveneens geen in- of uitvliegende vleermuizen aangetroffen. Om de sloop van de school mogelijk te maken moet een ontheffing van de Wet natuurbescherming worden aangevraagd voor wat betreft een paarverblijf van gewone dwergvleermuizen.

Het schoolterrein zelf wordt vrijwel niet gebruikt om te foerageren. Beplantingselementen ontbreken hier waardoor de insecten dichtheid laag is. Wel worden de omringende tuinen van de woningen en de kerk gebruikt om veelvuldig in te jagen. De Wet natuurbescherming wordt voor het onderdeel foerageergebieden niet overtreden bij de sloop van de school.

De school ligt tussen een belangrijke verblijfplaats en foerageergebieden. Veel vleermuizen steken het schoolterrein over. Hierbij volgen de dieren geen vaste route. De ene keer vliegen de dieren noord van de gebouwen en de andere keer zuid van de gebouwen. Een enkele keer vliegen de dieren ook over de gebouwen heen. Als de school wordt gesloopt zal dit geen invloed hebben op het vlieggedrag van de vleermuizen. De school is geen onderdeel van een vaste route, maar meer een open ruimte die de dieren zo snel mogelijk willen oversteken. Bij de sloop van de school zullen de dieren geen schade ondervinden. De Wet natuurbescherming wordt voor wat betreft de vliegrouten niet overtreden.

Om de sloop van de school mogelijk te maken moet bij de provincie een ontheffing van de Wet natuurbescherming worden aangevraagd, voor wat betreft een paarverblijf van gewone dwergvleermuizen. Hierbij moet dit verblijf tijdelijk en vervolgens permanent worden gemitigeerd. De tijdelijke en of permanente voorzieningen kunnen gelijktijdig met het indienen van een ontheffingsaanvraag of vooruitlopend op een ontheffing worden aangebracht. Hiermee wordt voorkomen dat nadat een ontheffing is verleend men nog moet wachten op de gewenningsperiode voor het paarverblijf. Met het nemen van mitigerende maatregelen wordt de ontheffing van de Wet natuurbescherming voor wat betreft het paarverblijf van gewone dwergvleermuizen, naar verwachting verleend. 

3.6.3 Conclusie

Het aspect flora en fauna vormt geen belemmering voor de uitvoering van het plan.

3.7 Verkeer en parkeren

3.7.1 Verkeer

Voorliggend bestemmingsplan voorziet in de ontwikkeling van negen woningen in de kern Nieuw-Dijk. Voor wat betreft het te verwachten aantal verkeersbewegingen per woning is uitgegaan van de kengetallen van het CROW9. Uitgaande van 'koop, twee-onder-een-kap' in de verstedelijkingsgraad 'weinig stedelijk' en het gebiedstype 'rest bebouwde kom' is het aantal verkeersbewegingen per woning maximaal 8,2 per dag. Dit betekent dat met de realisatie van voorliggend project maximaal (9 x 8,2 =) 74 verkeersbewegingen per dag tot stand komen.

In de huidige situatie is er eveneens sprake van verkeersbewegingen in verband met de bestaande functie. In de eerder genoemde kengetallen zijn geen kengetallen gegeven voor de verkeersgeneratie voor basisonderwijs. Er vinden echter wel verkeersbewegingen plaats in verband met het personeel en als gevolg van het halen en brengen van leerlingen. In verband met de schooltijden zullen deze verkeersbewegingen geconcentreerd over de dag plaatsvinden.

De realisatie van negen woningen zal niet leiden tot een substantiële toename van het aantal verkeersbewegingen in de omgeving van het plangebied. De ontsluitingsweg Smallestraat heeft voldoende capaciteit om het aantal verkeersbewegingen te kunnen verwerken.

3.7.2 Parkeren

Het aantal benodigde parkeerplaatsen wordt bepaald door de aard en omvang van de activiteit waarin het plan voorziet.

In de huidige situatie is voor de huidige functie in het plangebied eveneens sprake van een parkeerbehoefte. De parkeerbehoefte van de huidige functie is eveneens te bepalen aan de hand van de kengetallen van het CROW. De parkeerbehoefte bedraagt bij 'basisonderwijs' minimaal 0,5 parkeerplaats per leslokaal. De school biedt ruimte aan vier klassen. De parkeerbehoefte bedraagt daarmee 2 parkeerplaatsen. Deze parkeerbehoefte valt in de toekomstige situatie weg.

Om de toekomstige parkeerbehoefte te bepalen, is gebruik gemaakt van de eerder genoemde kengetallen. De parkeerbehoefte bedraagt bij twee-onder-één-kapwoningen minimaal 1,8 parkeerplaatsen per woning. Een deel van de parkeerplaatsen zal op eigen terrein worden gerealiseerd. Het andere deel van de parkeerplaatsen zal in het plangebied, in de openbare ruimte worden gesitueerd. Op basis van het stedenbouwkundige plan in paragraaf 2.2 blijkt dat er voldoende ruimte is om de benodigde parkeerplaatsen in het plangebied te realiseren. Overigens zijn er ook parkeerplaatsen in de openbare ruimte buiten het plangebied (op het plein) beschikbaar.

3.7.3 Conclusie

Geconcludeerd kan worden dat vanuit het aspect verkeer en parkeren geen belemmeringen bestaan ten aanzien van de gewenste ontwikkelingen in het plangebied.

3.8 Economische haalbaarheid

Bij de voorbereiding van een bestemmingsplan moet op grond van artikel 3.1.6 van het Besluit ruimtelijke ordening (Bro) in de toelichting van een bestemmingsplan minimaal inzicht te worden gegeven in de economische uitvoerbaarheid van het plan. Tevens is met de inwerkingtreding van de Wet ruimtelijke ordening de verplichting ontstaan om, indien sprake is van ontwikkelingen waarvoor de gemeente redelijkerwijs kosten moet maken, bijvoorbeeld voor de aanleg van voorzieningen van openbaar nut, en de plankosten, deze moeten kunnen worden verhaald op de initiatiefnemer c.q. ontwikkelaar. Een en ander dient te worden vastgelegd in privaatrechtelijke (anterieure) overeenkomsten met iedere grondeigenaar. Als er met een grondeigenaar geen overeenkomst is gesloten en het kostenverhaal niet anderszins is verzekerd, dient een exploitatieplan te worden opgesteld welke tegelijkertijd met het bestemmingsplan moet worden vastgesteld.

De gemeente heeft de gronden in het plangebied in eigendom. De kosten die verband houden met het bestemmingsplan, komen voor rekening van de gemeente. De gronden worden na vaststelling van het bestemmingsplan uitgegeven.

De kosten voor de plantontwikkeling worden verrekend in de kostprijs voor de uit te geven bouwrijpe kavels. De economische uitvoerbaarheid wordt hiermee geacht aangetoond te zijn.

Hoofdstuk 4 Juridische planaspecten

4.1 Algemeen

4.1.1 Wat is een bestemmingsplan

Het gemeentelijke bestemmingsplan is een middel waarmee functies aan gronden worden toegekend. Het gaat dus om het toekennen van gebruiksmogelijkheden. Vanuit de Wet ruimtelijke ordening volgt een belangrijk principe: het gaat om toelatingsplanologie. Het wordt de grondgebruiker (eigenaar, huurder etc.) toegestaan om de functie die het bestemmingsplan geeft uit te oefenen. Dit houdt in dat:

  • 1. de grondgebruiker niet kan worden verplicht om een in het bestemmingsplan aangewezen bestemming ook daadwerkelijk te realiseren, en
  • 2. de grondgebruiker geen andere functie mag uitoefenen in strijd met de gegeven bestemming (het overgangsrecht is hierbij mede van belang).


Een afgeleide van de gebruiksregels in het bestemmingsplan zijn regels voor bebouwing (omgevingsvergunning voor het bouwen) en regels voor het verrichten van 'werken, geen bouwwerken zijnde, en werkzaamheden' (omgevingsvergunning ten behoeve van het uitvoeren van werken, geen bouwwerken zijnde, en werkzaamheden).


Een bestemmingsplan regelt derhalve het toegestane gebruik van gronden (en de bouwwerken en gebouwen) en een bestemmingsplan kan daarbij regels geven voor:

  • het bebouwen van de gronden;
  • het verrichten van werken, geen bouwwerken zijnde, en werkzaamheden (aanleggen).


Het bestemmingsplan is een belangrijk instrument voor het voeren van ruimtelijk beleid, maar het is zeker niet het enige instrument. Andere ruimtelijke wetten en regels zoals de Woningwet, de Erfgoedwet, de Algemene Plaatselijke Verordening, de Wet milieubeheer en de bouwverordening zijn ook erg belangrijk voor het uitoefenen van het ruimtelijke beleid.

4.1.2 Bestemmen, dubbelbestemmen en aanduiden

Op de verbeelding wordt aangegeven welke bestemming gronden hebben. Dit gebeurt via een bestemmingsvlak. Voor het op de verbeelding aangegeven bestemmingsvlak gelden de gebruiksmogelijkheden zoals die in de bijhorende regel worden gegeven. Die toegekende gebruiksmogelijkheden kunnen op twee manieren nader worden ingevuld:

  • Via een dubbelbestemming
    Een dubbelbestemming is, zoals de naam al zegt, een bestemming die óók aan de gronden wordt toegekend. Voor gronden kunnen dus meerdere bestemmingen gelden. Er geldt altijd één 'enkel' bestemming (dat is dé bestemming) en soms geldt er een dubbelbestemming (soms zelfs meerdere). In de regel van de dubbelbestemming wordt omschreven wat er voor de onderliggende gronden geldt aan extra bepalingen in aanvulling, of ter beperking, van de mogelijkheden van de onderliggende bestemmingen.
  • Via een aanduiding
    Een aanduiding is een teken op de verbeelding dat betrekking heeft op een vlak op die kaart. Via een aanduiding wordt in de regels 'iets' geregeld. Dat 'iets' kan betrekking hebben op extra mogelijkheden of extra beperkingen voor het gebruik en/of de bebouwing en/of het aanleggen van werken. Aanduidingen kunnen voorkomen in een bestemmingsregel, in meerdere bestemmingsregels en kunnen ook een eigen regel hebben.
4.1.3 Hoofdstukindeling van de regels


De regels zijn verdeeld over 4 hoofdstukken:

  • 1. Inleidende regels
    In dit hoofdstuk worden begrippen verklaard die in de regels worden gebruikt (artikel 1). Dit gebeurt om een eenduidige uitleg en toepassing van de regels te waarborgen. Ook is bepaald de wijze waarop gemeten moet worden bij het toepassen van de regels (artikel 2).

  • 2. Bestemmingsregels
    In dit tweede hoofdstuk zijn de bepalingen van de bestemmingen opgenomen. Dit gebeurt in alfabetische volgorde. Per bestemming is het toegestane gebruik geregeld en zijn bouwregels en, eventueel, ook bepalingen met betrekking tot het uitvoeren van werken, geen bouwwerken zijnde, en werkzaamheden opgenomen. Als er dubbelbestemmingen zijn worden die ook in dit hoofdstuk opgenomen. Die komen, ook in alfabetische volgorde, achter de bestemmingsbepalingen.

    Ieder artikel kent een vaste opzet. Eerst wordt het toegestane gebruik geformuleerd in de bestemmingsomschrijving. Vervolgens zijn bouwregels opgenomen. Aansluitend volgen afwijkingsbevoegdheden met betrekking tot bouw- en/of gebruiksregels. Ten slotte zijn eventueel bepalingen met betrekking tot het uitvoeren van werken, geen bouwwerken zijnde, en werkzaamheden en/of wijzigingsbevoegdheden opgenomen.

    Belangrijk om te vermelden is dat naast de bestemmingsbepalingen ook in andere artikelen relevante informatie staat die mede gelezen en geïnterpreteerd moet worden. Alleen zo is een volledig beeld te verkrijgen van hetgeen is geregeld.

  • 3. Algemene regels
    In dit hoofdstuk zijn bepalingen opgenomen met een algemeen karakter. Ze gelden dus voor het hele plan. Het zijn achtereenvolgens een anti-dubbeltelregel, algemene gebruiksregels en algemene afwijkingsregels.

  • 4. Overgangs- en slotregels
    In het laatste hoofdstuk zijn respectievelijk het overgangsrecht en een slotregel opgenomen. Hoewel het hier in wezen ook algemene regels betreft, zijn deze vanwege hun meer bijzondere karakter in een apart hoofdstuk opgenomen.

4.2 Dit bestemmingsplan

Dit bestemmingsplan bestaat uit een verbeelding, regels en een toelichting. De verbeelding en de regels vormen tezamen het juridisch bindende gedeelte van het bestemmingsplan. Beide planonderdelen dienen in onderlinge samenhang te worden bezien en toegepast. Op de verbeelding zijn de bestemmingen aangewezen. Aan deze bestemmingen zijn bouwregels en regels betreffende het gebruik gekoppeld.


De toelichting heeft geen rechtskracht, maar vormt niettemin een belangrijk onderdeel van het plan. De toelichting van dit bestemmingsplan geeft een weergave van de beweegredenen, de onderzoeksresultaten en de beleidsuitgangspunten die aan het bestemmingsplan ten grondslag liggen. Tot slot is de toelichting van wezenlijk belang voor een juiste interpretatie en toepassing van het bestemmingsplan.

4.2.1 Bijzonderheden in dit bestemmingsplan

In dit bestemmingsplan is de bestemming 'Woongebied' opgenomen.

'Woongebied'

Omdat de exacte invulling van het plangebied met de negen grondgebonden woning nog niet bepaald is, is het gehele plangebied bestemd als 'Woongebied'. De bestemming 'Woongebied' is ten opzichte van een reguliere bestemming 'Wonen' flexibeler, omdat de gronden tevens zijn bestemd voor openbare ruimte in de vorm van bijvoorbeeld een ontsluitingsweg of groenvoorzieningen. Een bestemming 'Wonen' heeft voornamelijk betrekking op gronden in particulier eigendom.

De voor 'Woongebied' aangewezen gronden zijn naast de grondgebonden woningen met bijbehorende tuinen en erven en een eventueel een beroep aan huis eveneens bestemd voor wegen, pleinen en straten, wandel- en fietspaden met een functie voornamelijk gericht op verblijf; parkeer-, groen-, speel- en nutsvoorzieningen; en waterhuishoudkundige doeleinden, waterberging en waterlopen.

Binnen de bestemming mogen woningen, bijbehorende bouwwerken en overige bouwwerken, zoals erf- of perceelafscheidingen en tuinmeubilair worden gebouwd. Binnen de bestemming zijn bouwvlakken opgenomen. De woningen moeten binnen de bouwvlakken worden gebouwd. Op de verbeelding is aangegeven dat maximaal negen woningen zijn toegestaan binnen de bestemming. De woningen mogen in vrijstaande, twee-aan-eengebouwde en aaneengebouwde vorm worden gebouwd. De maximale goot- en bouwhoogte van de woningen zijn op de verbeelding opgenomen.

Bijbehorende bouwwerken (bijvoorbeeld bijgebouwen) en overige bouwwerken (bouwwerken, geen gebouw zijnde) zijn, onder voorwaarden, ook toegestaan. De maatvoeringseisen van deze bouwwerken zijn opgenomen in de bouwregels.

Van de gebouwen binnen deze bestemming mag 30% van de vloeroppervlakte tot een maximum van 50 m2 gebruikt worden voor een beroep aan huis. In de regels van de bestemming is een afwijkingsbevoegdheid opgenomen ten behoeve van het toestaan van een aan huis gebonden bedrijf. Voor de afwijking gelden aanvullende voorwaarden voordat deze kan worden verleend.

4.2.2 Algemene regels

Naast de bestemmingen bevat het plan een aantal algemene regels over bijvoorbeeld begrippen, de wijze van meten, algemene afwijkingen en overgangsrecht. Deze min of meer standaardregels in bestemmingsplannen worden hier verder niet toegelicht.

Hoofdstuk 5 Procedure

Het ontwerpbestemmingsplan heeft vanaf 7 september 2017 gedurende zes weken ter inzage gelegen. Gedurende deze termijn is een ieder in de gelegenheid gesteld zienswijzen kenbaar te maken aan de gemeenteraad. Er zijn geen zienswijzen naar voren gebracht.

Omdat van mei tot en met oktober 2017 een nader onderzoek naar vleermuizen is uitgevoerd, zijn de uitkomsten van dit onderzoek ambtshalve opgenomen in paragraaf 3.6. Desondanks is het juridisch bindende deel van bestemmingsplan, bestaande uit de verbeelding en de regels, ongewijzigd vastgesteld.