direct naar inhoud van Toelichting
Plan: Hoofdstraat 6, Kilder
Status: vastgesteld
Plantype: bestemmingsplan
IMRO-idn: NL.IMRO.1955.bpsgkldwonhoofdst6-va01

Toelichting

Hoofdstuk 1 Inleiding

1.1 Aanleiding

In het voorjaar van 2020 heeft de Gabriëlparochie de Sint Jan de Doperkerk aan de Hoofdstraat 6 in Kilder verkocht aan een tweetal bouwbedrijven. De nieuwe eigenaren hebben het voornemen om in de kerk vijf woningen of acht appartementen te realiseren. De kerktoren blijft daarbij behouden. Verder is men voornemens om in de pastorietuin, aan de zijde van de Molenweg, vijf aaneengebouwde woningen te realiseren.

Voor de locatie geldt het bestemmingsplan 'Kernen'. Op grond van dat bestemmingsplan is het beoogde initiatief niet toegestaan. Om de ontwikkeling mogelijk te maken is de vaststelling van een nieuw bestemmingsplan noodzakelijk.

1.2 Plangebied

Het plangebied is gelegen in het centrum van Kilder. Aan de noordwestzijde bevindt zich een begraafplaats. Verder bevinden zich aan de noord- en oostzijde de Sint Jansstraat en de Molenweg, met aan de overzijde van beide wegen enkele woonpercelen. Het plangebied grenst aan de zuidoostzijde aan het perceel behorende tot 'Café Zaal Teunissen' en een stuk grasland. Ingeklemd tussen het plangebied bevindt zich aan de Hoofdstraatzijde een pastoriewoning en een deel van de pastorietuin die in particulier bezit zijn. Verder grens het plangebied aan de zuidwestzijde aan de Hoofdstraat met aan de overzijde enkele woonpercelen, buurtsuper Attent en cafetaria 'De Bikkerij'.

Op de navolgende afbeeldingen zijn globaal de ligging en begrenzing van het plangebied weergegeven. Voor de exacte begrenzing wordt verwezen naar de verbeelding behorende bij dit bestemmingsplan.

afbeelding "i_NL.IMRO.1955.bpsgkldwonhoofdst6-va01_0001.jpg" Globale ligging plangebied

afbeelding "i_NL.IMRO.1955.bpsgkldwonhoofdst6-va01_0002.jpg"

Globale begrenzing

1.3 Geldende bestemmingsplannen

Het plangebied valt onder de werking van het bestemmingsplan 'Kernen' dat is vastgesteld op 30 juni 2016. Op de navolgende afbeelding is een uitsnede van de verbeelding van het geldende bestemmingsplan weergegeven. Het plangebied is daarop met een blauwe belijning weergegeven.

afbeelding "i_NL.IMRO.1955.bpsgkldwonhoofdst6-va01_0003.jpg"

Uitsnede geldende bestemmingsplan 'Kernen'

Op grond van het bestemmingsplan 'Kernen' is aan de ontwikkellocatie de bestemmingen 'Gemengd' toegekend. Volgens de regels, behorende bij de bestemming 'Gemengd', zijn de gronden, onder voorwaarden, bestemd voor verschillende functies, waaronder maatschappelijke voorzieningen zoals religieuze instellingen, cultuur en ontspanning. Ter plaatse van de bestaande bebouwing is een bouwvlak, een functieaanduiding 'religie' en een bouwaanduiding 'specifieke bouwaanduiding - monument' opgenomen. Tevens zijn voor de bebouwing maatvoeringseisen voor de bouw- en goothoogte opgenomen. Op een deel van de pastorietuin is verder een functieaanduiding 'begraafplaats' en een maatvoeringseis voor een maximum bebouwingspercentage van 5% opgenomen.

De (her)ontwikkeling van de kerk en de realisatie van de vijf nieuwe woningen zijn op basis van de bepalingen van de bestemming 'Gemengd' niet toegestaan.

Op grond van het bestemmingsplan 'Kernen' is, ter bescherming van eventuele archeologische waarden, aan het plangebied tevens de dubbelbestemmingen 'Waarde - Archeologische verwachting 2' toegekend.

Voor de gronden binnen het plangebied geldt tevens het bestemmingsplan 'Parapluherziening Wonen en Horeca', dat door de raad van de gemeente Montferland is vastgesteld op 21 november 2019. Dit bestemmingsplan is opgesteld om de regie te houden op de huisvesting van arbeidsmigranten.

1.4 Leeswijzer

Dit bestemmingsplan bestaat uit een verbeelding, regels en een toelichting. De toelichting is opgebouwd uit vijf hoofdstukken. Het volgende hoofdstuk (Hoofdstuk 2) beschrijft de bestaande en toekomstige situatie. Hoofdstuk 3 geeft een overzicht van het ruimtelijke beleidskader van de verschillende overheden waaraan het plan moet voldoen en bevat de milieu- en omgevingsaspecten van het plan. De toelichting besluit met hoofdstukken over de opbouw van de planregels (Hoofdstuk 4) en de uitkomsten van de gevolgde procedure (Hoofdstuk 5).

Hoofdstuk 2 Het plan

2.1 Bestaande situatie

Het plangebied maakt deel uit van het centrum van Kilder. Aan de zuidwestzijde van het plangebied bevindt zich de Sint Jan de Doperkerk en een parkeerplaats. Het noordoostelijke en zuidoostelijke deel is in gebruik als pastorietuin en betreft hoofdzakelijk gazon. De kerk is opgenomen in de lijst van gemeentelijke monumenten van de gemeente Montferland. De kerk is inmiddels aan de eredienst onttrokken. Er vinden dan ook geen diensten meer plaats. De navolgende situatietekening en afbeeldingen geven een impressie van de huidige situatie in het plangebied.

afbeelding "i_NL.IMRO.1955.bpsgkldwonhoofdst6-va01_0004.jpg"

Pastorietuin gezien vanuit de kerktoren

afbeelding "i_NL.IMRO.1955.bpsgkldwonhoofdst6-va01_0005.jpg"

Kerk gezien vanuit de pastorietuin

afbeelding "i_NL.IMRO.1955.bpsgkldwonhoofdst6-va01_0006.jpg"

Kerk gezien vanaf de Hoofdstraat (bron google maps)

afbeelding "i_NL.IMRO.1955.bpsgkldwonhoofdst6-va01_0007.jpg"

Bestaande situatie plangebied

2.2 Toekomstige situatie

2.2.1 Algemeen

De kerk wordt intern verbouwd ten behoeve van vijf woningen of acht appartementen voor starters. De kerk zal in de toekomst niet meer structureel worden gebruikt voor religieuze doeleinden. In de pastorietuin worden vijf woningen gerealiseerd. Met het initiatief wordt de in het plangebied aanwezige Mariakapel verplaatst naar buiten het plangebied, ten noordoosten van de kerk. Op navolgende indeling is een voorlopige schets weergegeven met daarop de inrichting van het buitenterrein.

afbeelding "i_NL.IMRO.1955.bpsgkldwonhoofdst6-va01_0008.jpg"

Voorlopige inrichtingsschets

Aan weerszijden van de kerk worden tuinen gerealiseerd. De vijf nieuwe woonpercelen worden aan de Hoofdstraat gesitueerd. Op deze plaatsen wordt een aantal kleine bomen gerooid. Ten noorden en aan de achterzijde van deze percelen wordt een achterpad gerealiseerd vanuit de Molenweg richting de kerk en de vijftien nieuwe parkeerplaatsen aan de Hoofdstraat. Met het plan blijven de 21 parkeerplaatsen aan de Hoofdstraat gehandhaafd.

2.2.2 Wooneenheden in de kerk

De initiatiefnemers zijn voornemens of vijf woningen of acht appartementen in de kerk te realiseren. Voor beide plannen is een inrichtingsschets opgesteld. Omdat op voorhand nog niet duidelijk is of het om appartementen of woningen gaat, is de huidige bestemming van de kerk gehandhaafd en is een wijzigingsbevoegdheid opgenomen om de bestemming te wijzigen naar wonen. Op navolgende afbeelding is de mogelijke indeling van de vijf woningen weergegeven.

afbeelding "i_NL.IMRO.1955.bpsgkldwonhoofdst6-va01_0009.jpg"

Mogelijke indeling woningen

De woningen bestaan uit twee lagen en hebben een tuin aan weerszijde van de kerk. De woningen hebben een gebruiksoppervlakte van 122 tot 196 m². De huidige dagkapel zal in eerste instantie in gebruik worden genomen als kapel/gebedsruimte. Later zal deze functie waarschijnlijk verdwijnen ten behoeve van de woonfunctie. De op de tekening genoemde kantoorruimte valt buiten onderhavig plangebied. De op de tekening aangegeven rode stippellijn betreft een thermische schil.

Op navolgende afbeelding zijn twee dwarsdoorsnedes van de woningen in het kerkgebouw weergegeven.

afbeelding "i_NL.IMRO.1955.bpsgkldwonhoofdst6-va01_0010.jpg"

Dwarsdoorsnedes woningen

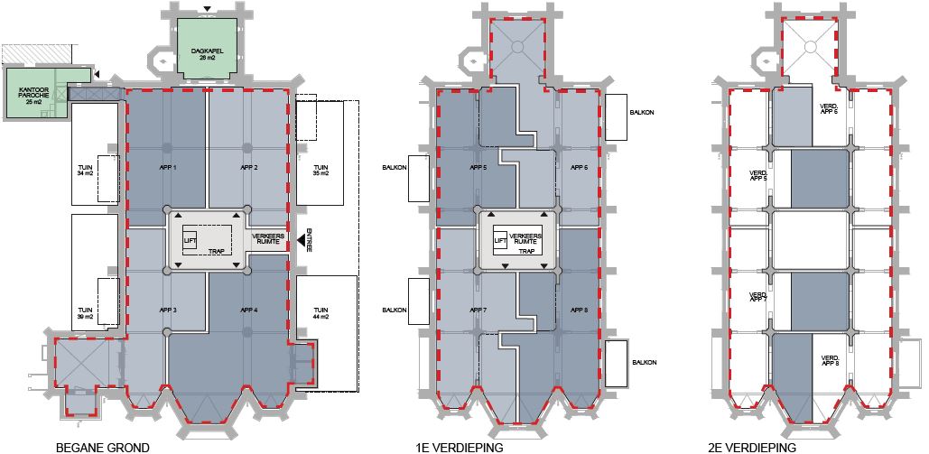
Op navolgende afbeelding is de mogelijke indeling van de acht appartementen weergegeven.

afbeelding "i_NL.IMRO.1955.bpsgkldwonhoofdst6-va01_0011.jpg" Mogelijke indeling appartementen

De appartementen worden verspreid over drie lagen gerealiseerd, waarbij de vier appartementen op de begane grond een tuin hebben. De appartementen hebben een gebruiksoppervlakte van 75 tot 113 m². De vier appartementen op de begane grond hebben een tuin. De vier appartementen op de eerste verdieping hebben een balkon en een extra verdieping. Het centrale deel van de kerk zal in gebruik worden genomen als verkeersruimte met entree, hal met trap en lift. Ook in deze variant zal de huidige dagkapel in eerste instantie in gebruik worden genomen als kapel/gebedsruimte. Op navolgende afbeelding zijn twee dwarsdoorsnedes van de appartementen weergegeven.

afbeelding "i_NL.IMRO.1955.bpsgkldwonhoofdst6-va01_0012.jpg"

Dwarsdoorsnedes appartementen

Voor de woningen en/of appartementen in de kerk wordt geopteerd voor het bouwen van betaalbare woningen, mede geschikt voor een starterslening. Bij Raadsbesluit Starterslening augustus 2020 was dit € 225.000. Omgerekend naar het prijspeil van september 2021 is dit circa € 250.000.

Woonpercelen aan de Molenweg

De percelen waar de woningen aan de Molenweg op komen te staan, hebben alle een oppervlakte van circa 265 m² en zijn gedraaid ten opzichte van de Molenweg. De percelen zijn daarmee georiënteerd op Molenweg, evenals de kerk en de pastoriewoning . Op navolgende afbeelding is de verkaveling van de vijf woonpercelen weergegeven.

afbeelding "i_NL.IMRO.1955.bpsgkldwonhoofdst6-va01_0013.jpg"

Toekomstige indeling nieuwe woonpercelen

De initiatiefnemer is voornemens om ter plaatse vijf geschakelde levensloopbestendige woningen met één bouwlaag te realiseren. Ter plaatse wordt een drietal kleine bomen gerooid. Voor de woningen zijn nog geen ontwerpen opgesteld.

Met het initiatief is voor de kerk een nieuwe economische drager gevonden en worden de kerk en het omliggende terrein daarmee voor de toekomst behouden van verval en sloop. Verder wordt met de ontwikkeling voor een deel voorzien in de behoefte aan betaalbare woningen in de gemeente Montferland en Kilder in het bijzonder.

Hoofdstuk 3 Haalbaarheid

3.1 Inleiding

Ten behoeve van de bestemmingsplanherziening moet de uitvoerbaarheid van het plan worden aangetoond. Het al dan niet voldoen aan verschillende randvoorwaarden en uitgangspunten is bepalend voor de vraag of een nieuwe ontwikkeling ook daadwerkelijk uitvoerbaar is. Hierbij moet worden gedacht aan onder meer het ruimtelijke beleid van de hogere overheden en de gemeente zelf, milieuaspecten als geluid, bodem en hinder van bedrijven, water, externe veiligheid, archeologie en economische haalbaarheid. De beoogde ontwikkeling is op deze aspecten getoetst. In dit hoofdstuk is aangegeven wat hiervan de resultaten zijn.

3.2 Beleid

3.2.1 Algemeen

In deze paragraaf wordt een analyse gegeven van het relevante beleidskader. De beleidsnota's die direct of indirect doorwerken in voorliggend bestemmingsplan, worden in deze paragraaf behandeld. Gezien de aard en de schaal van de ontwikkeling binnen bestaand stedelijk gebied is het relevante beleid op Europees niveau buiten beschouwing gelaten en op Rijksniveau beperkt gehouden. Per bestuurslaag is een korte samenvatting gegeven van de meest relevante aspecten uit de verschillende beleidsnota's, alsmede de consequenties voor het voorliggende plan.

3.2.2 Rijksbeleid


Structuurvisie Infrastructuur en Ruimte (SVIR) en Besluit algemene regels ruimtelijke ordening (Barro)

De Structuurvisie Infrastructuur en Ruimte (SVIR) bepaalt welke kaderstellende uitspraken van het kabinet bedoeld zijn om beperkingen te stellen aan de ruimtelijke besluitvormingsmogelijkheden op lokaal niveau. Het Besluit algemene regels ruimtelijke ordening (Barro) bevestigt in juridische zin die kaderstellende uitspraken. Het gaat onder meer om nationale belangen als Rijksvaarwegen, Defensie, Ecologische hoofdstructuur, Erfgoederen van uitzonderlijke universele waarde, Hoofdwegen en hoofdspoorwegen, Elektriciteitsvoorziening, Buisleidingen van nationaal belang voor vervoer van gevaarlijke stoffen en Primaire waterkeringen. Door de nationale belangen vooraf in bestemmingsplannen te borgen, wordt met het Barro bijgedragen aan versnelling van de besluitvorming bij ruimtelijke ontwikkelingen en vermindering van de bestuurlijke drukte.


Toetsing

Het voorgenomen plan raakt geen van de nationale belangen en is niet in strijd met het rijksbeleid.


Ladder voor duurzame verstedelijking (Bro 3.1.6 tweede lid)

Op 1 juli 2017 is het Besluit ruimtelijke ordening (Bro) gewijzigd, waarbij een nieuwe Laddersystematiek is opgenomen. In artikel 3.1.6, lid 2 van het Besluit ruimtelijke ordening (Bro) is de nieuwe ladder voor duurzame verstedelijking opgenomen. Het doel van de Ladder is zorgvuldig en duurzaam ruimtegebruik, met oog voor de toekomstige ruimtebehoefte en ontwikkelingen in de omgeving. De Ladder geeft daarmee invulling aan het nationaal ruimtelijk belang gericht op een zorgvuldige afweging en transparante besluitvorming bij ruimtelijke besluiten. Dit belang staat beschreven in de Structuurvisie Infrastructuur en Ruimte binnen een breder kader van een goed systeem van ruimtelijke ordening. Met de ladder worden eisen gesteld aan de motivering van onder meer bestemmingsplannen en ruimtelijke onderbouwingen die nieuwe stedelijke ontwikkelingen mogelijk maken. De toelichting bij een bestemmingsplan of ruimtelijke onderbouwing voor een nieuwe stedelijke ontwikkeling bevat een beschrijving van de behoefte aan die ontwikkeling, en, indien die ontwikkeling mogelijk wordt gemaakt buiten het bestaand stedelijk gebied, een motivering waarom niet binnen het bestaand stedelijk gebied in die behoefte kan worden voorzien.


Toetsing

Voorliggend plan voorziet in de realisatie van maximaal dertien nieuwe woningen binnen bestaand stedelijk gebied. Hiervan worden vijf woningen of acht appartementen in een bestaande kerk gerealiseerd. De voorgenomen ontwikkeling is opgenomen in het woningbouwprogramma van de gemeente Montferland, dat regionaal is afgestemd met de regio De Liemers (zie paragraaf 3.2.4). Met de realisatie van de woningen wordt voorzien in de actuele behoefte aan woningen in de gemeente Montferland. Het initiatief voldoet aan de uitgangspunten van de ladder voor duurzame verstedelijking.

3.2.3 Provinciaal beleid

Omgevingsvisie

Op 19 december 2018 is de omgevingsvisie 'Gaaf Gelderland' vastgesteld. In deze visie beschrijft de provincie welke richting de provincie op wil op het gebied van energie, klimaat, water, voedsel en ook hoe de provincie de omgeving wil inrichten.

Om samen een Gaaf Gelderland te bereiken, legt de provincie bij het uitvoeren van haar taken de focus op een duurzaam, verbonden en economisch krachtig Gelderland. Met behulp van zeven ambities geeft de provincie hier richting aan:

  • energietransitie;
  • klimaatadaptatie;
  • circulaire economie;
  • biodiversiteit;
  • bereikbaarheid;
  • economisch vestigingsklimaat;
  • woon- en leefklimaat.

Voor dit bestemmingsplan is de ambitie voor het woon- en leefklimaat van toepassing. De provincie streeft naar een duurzaam en divers woon- en leefklimaat, dat steeds weet te anticiperen op ontwikkelingen. Zo worden de economische kracht en kwaliteit van leven in Gelderland versterkt, nu en in de toekomst.

Om Gelderland voor mensen en bedrijven aantrekkelijk te houden, is de kwaliteit van de leefomgeving van groot belang. Bovendien draagt een goede kwaliteit van de leefomgeving bij aan gezondheid. Goed bereikbare voorzieningen, aansprekende evenementen, unieke cultuurhistorie, inspirerende culturele voorzieningen, een mooie natuur; het is allemaal van belang. Ook goed wonen hoort daarbij. Gelderland heeft op woongebied een bijzondere positie met uiteenlopende woonkwaliteiten, zowel stedelijke als landelijke. De Gelderse streken hebben ieder hun eigen aard, waar mensen zich thuis en verbonden met elkaar voelen. In onze groeiende Gelderse steden komen veel activiteiten samen. Tegelijkertijd wordt geïnvesteerd in een vitaal platteland, juist als daar krimp plaatsvindt. Om het landschap open, groen en het voorzieningenniveau op peil te houden en leegstand te voorkomen, is bouwen binnen bestaand stedelijk gebied het vertrekpunt. De provincie geeft de voorkeur aan het benutten van bestaande gebouwen en gaat voor concentraties van bebouwing. Pas als er geen andere goede mogelijkheden zijn, kan worden uitgebreid aan de randen van de steden of dorpen.

Omgevingsverordening

De provincie beschikt over verschillende instrumenten waarmee zij haar ambities realiseert. De verordening wordt ingezet voor die onderwerpen waarvoor de provincie eraan hecht dat de doorwerking van het beleid van de Omgevingsvisie juridisch gewaarborgd is. De verordening voorziet ten opzichte van de Omgevingsvisie niet in nieuw beleid en is daarmee dus beleidsneutraal. De inzet van de verordening als juridisch instrument om de doorwerking van het provinciaal beleid af te dwingen is beperkt tot die onderdelen van het beleid waarvoor de inzet van algemene regels noodzakelijk is om provinciale belangen veilig te stellen of om uitvoering te geven aan wettelijke verplichtingen.

De Omgevingsverordening richt zich net zo breed als de Omgevingsvisie op de fysieke leefomgeving in de Provincie Gelderland. Dit betekent dat vrijwel alle regels die betrekking hebben op de fysieke leefomgeving opgenomen zijn in de Omgevingsverordening. Het gaat hierbij om regels op het gebied van ruimtelijke ordening, milieu, water, mobiliteit en bodem. De verwachting is dat de Omgevingsverordening op termijn alle regels zal gaan bevatten die betrekking hebben op de fysieke leefomgeving.

Ten aanzien van voorliggend bestemmingsplan zijn de regels ten aanzien van het onderwerp 'wonen' relevant.

Wonen

In de verordening wordt aangegeven dat nieuwe woonlocaties en de daar te bouwen woningen slechts zijn toegestaan wanneer dit past in het vigerende door Gedeputeerde Staten vastgestelde Kwalitatief Woonprogramma, successievelijk de door Gedeputeerde Staten vastgestelde kwantitatieve opgave wonen voor de betreffende regio.

Toetsing provinciaal beleid

Met de realisatie van de woningen binnen het bestaand stedelijk gebied van Kilder wordt voorzien in een actuele behoefte aan woningen in de gemeente Montferland. Het plan wordt zorgvuldig ingepast in de omgeving van het plangebied. De voorgenomen ontwikkeling is opgenomen in het woningbouwprogramma van de gemeente Montferland dat regionaal is afgestemd met de regio 'De Liemers' (zie paragraaf 3.2.4).

3.2.4 Regionaal beleid

Liemerse Woonagenda 2020-2025

Op 13 oktober 2020 is door de Gedeputeerde Staten van de provincie Gelderland de Liemerse Woonagenda 2020-2025 vastgesteld, waarmee de agenda onderdeel is van het provinciaal beleid. Bij de vaststelling van de Liemerse Woonagenda is aangegeven dat Woonvisie 2016-2020 van de gemeente nog het geldend beleidskader is.

De regionale woningbouwafspraken zijn tot stand gekomen op basis van recentelijk uitgevoerd onderzoek naar de toekomstige woonbehoeftes in de Liemers en is doorvertaald naar de verschillende gemeenten. Waar men vijf jaar geleden nog bezig was met de aanstaande krimp en het terugbrengen van de nieuwbouw aantallen, voorziet men nu dat er hard aan de slag gegaan moet worden met extra locaties om in de groeiende woningbehoefte te voorzien.

In de nieuwe woningbehoefte prognoses is er geen sprake meer van een krimp in de Liemers. De prognoses uit 2019 laat tenminste tot 2040 een huishoudensgroei zien. Voor die groeiende vraag van huishoudens zullen nieuwe woningen gebouwd moeten worden. De groei is het grootst in de komende vijf jaar (ongeveer 500 woningen per jaar). Vanaf 2025 ligt deze op ongeveer 300 per jaar en na 2030 is vooralsnog een beperkte groei van 50 woningen per jaar voorzien.

Met de woonagenda wordt sterker ingezet op bouwen naar behoefte (zowel kwalitatief als kwantitatief) en is men afgestapt van harde afspraken over het aantal te bouwen woningen. Ten opzichte van 2017 ligt het accent nu sterk op de oplopende woningtekorten en de betaalbaarheid van woningen voor midden inkomensgroepen. Volgens het woningbehoefte onderzoek zou tot 2025 bijna de helft van het woningbouwprogramma moeten bestaan uit betaalbare koopwoningen. De gemeente moet daarom bij nieuwbouwprojecten sturen op de te realiseren prijsklassen en het aandeel sociale huurwoningen. In de kleine kernen wordt bijvoorbeeld ingezet op specifiek maatwerk met woningbouw waarmee naar aard en omvang van de kern gericht wordt ingespeeld op de lokale woningvraag met het behouden en versterken van de groene kwaliteiten van de Liemers.

Toetsing

Voorliggend plan voorziet in het mogelijk maken van vijf aaneengebouwde woningen, de transformatie van een kerk naar maximaal acht wooneenheden en de herinrichting van de openbare ruimte binnen bestaand stedelijk gebied. Er is daarmee sprake van inbreiding binnen bestaand stedelijk gebied. De toevoeging van maximaal dertien (levensloopbesstendige) woningen is noodzakelijk om gedeeltelijk te voorzien in de vraag naar woningen in de gemeente Montferland. De ontwikkeling past binnen de afgesproken provinciale en regionale kaders.

3.2.5 Gemeentelijk beleid

Structuurvisie Montferland 2009

Op 23 april 2009 is de Structuurvisie Montferland 'Ideeën voor een plek' vastgesteld. De structuurvisie geldt voor het gehele gemeentelijke grondgebied, met uitzondering van de bebouwde kommen. Het doel van de structuurvisie is tweeledig:

  • Het samenbrengen en actualiseren van bestaande visies en andere beleidsdocumenten in een nieuwe visie. Het gaat dus niet om het formuleren van nieuw beleid, maar om het samenbrengen in een visie van reeds bestaand beleid.
  • Het bestendigen van het gevestigde voorkeursrecht voor enkele uitbreidingslocaties; in het Regionaal Plan van de Stadsregio Arnhem/Nijmegen zijn een aantal uitbreidingsrichtingen van woonkernen opgenomen. In de structuurvisie worden deze zoekrichtingen vertaald en begrensd in concrete locaties. Daarnaast kan via de structuurvisie het gevestigde voorkeursrecht voor enkele uitbreidingslocaties worden bestendigd.


Deze structuurvisie blijft een visie op hoofdlijnen. De structuurvisie is in beeld gebracht op de kaart Structuurvisie Montferland. Op de kaart is het plangebied aangeduid als 'contour bebouwd gebied'. Hierbinnen is woningbouw mogelijk.

afbeelding "i_NL.IMRO.1955.bpsgkldwonhoofdst6-va01_0014.jpg"

Uitsnede kaart Structuurvisie Montferland

Toetsing

Onderhavig plangebied ligt binnen de contour bebouwd gebied. Woningbouw is mogelijk binnen de contour bebouwd gebied. Op basis hiervan kan worden gesteld dat onderhavige ontwikkeling past binnen de Structuurvisie van de gemeente Montferland.

Woonvisie Montferland 2016-2020

In de Woonvisie Montferland 2016-2020 legt de gemeente haar ambities, doelstellingen en maatregelen vast over het wonen in de gemeente voor de komende jaren. De gemeente hanteert daarbij de volgende visie op het wonen:

De gemeente Montferland is een groene gemeente, die haar inwoners de kans geeft binnen deze gemeente de wooncarrière te doorlopen. Bijzondere aandacht krijgen de jonge, vaak startende huishoudens en de groeiende groep ouderen. Bestaande woongebieden, woningen en vastgoed worden optimaal benut en ontbrekende woningen en woonruimten voegen we toe. De gemeente Montferland wil haar bewoners een prettige woon- en leefsituatie op kernenniveau blijven bieden. De gemeente heeft vooral een regierol bij het realiseren van haar doelen.


Bij deze visie behoren de volgende ambities:

  • Inwoners moeten binnen de gemeente een wooncarrière kunnen doorlopen. Dat houdt in dat de gemeente jonge en startende woningzoekenden de kans wil geven binnen de gemeente de gewenste woning te vinden, waar mogelijk op kernenniveau.
  • Huishoudensgroei neemt af en bevolking verandert van samenstelling, o.a. vergrijzing. De gemeente wil deze groeiende groep ouderen en mensen met een zorgvraag ondersteunen om zo lang mogelijk zelfstandig te kunnen blijven wonen.
  • De gemeente wil een huurwoningvoorraad die wat betreft omvang en betaalbaarheid past bij de woningvraag van de huidige en toekomstige inwoners. Daarnaast streeft de gemeente naar een meer duurzame en energiezuinige woningvoorraad.
  • Er zijn nog ruim 1.000 woningen nodig in de periode 2015-2025; met de provincie zijn afspraken gemaakt voor het realiseren van 419 woningen in de periode 2015-2019.
  • Huisvesten van vergunninghouders om bijdrage te leveren aan het actuele vraagstuk.
  • Leefbaarheid in de kernen en wijken bevorderen door woningbouw, door verbetering van bestaande woningen en de woonomgeving.

Toetsing

Met het vaststellen van de Liemerse Woonagenda 2020-2025 (zie paragraaf 3.2.4) wordt sterker ingezet op bouwen naar behoefte (zowel kwalitatief als kwantitatief) en is men afgestapt van harde afspraken over het aantal te bouwen woningen. Bij de vaststelling van de Liemerse Woonagenda is aangegeven dat Woonvisie 2016-2020 van de gemeente nog het geldend beleidskader is. In de Liemerse Woonagenda worden vrijkomende kerken aangemerkt als 'transformatielocatie'.

Voorliggend plan voorziet in het mogelijk maken van vijf aaneengebouwde woningen, de transformatie van een kerk naar maximaal acht wooneenheden en de herinrichting van de openbare ruimte binnen bestaand stedelijk gebied. De kerk is karakteristiek, van historische waarde en heeft de status van een gemeentelijk monument. Door de herontwikkeling van de kerk tot woningen en de realisatie van vijf aaneengebouwde woningen wordt het mogelijk om de kerk te behouden. De geprognosticeerde woningbehoefte voor Kilder bedraagt tot 2030 circa 25 woningen op basis van de recent vastgestelde 'Notitie woningbouwbehoefte 2019 – 2030'. De voornoemde dertien woningen passen daarbinnen. Met de voorgenomen ontwikkeling wordt voorzien in de actuele woningbehoefte in de gemeente Montferland in het algemeen en Kilder in het bijzonder.

Groenstructuurplan

Op 27 januari 2011 is het Groenstructuurplan voor de gemeente Montferland vastgesteld. Het groen is kenmerkend voor de ruimtelijke kwaliteit en aantrekkelijkheid van het landschap, met name ook van de kernen. Velen hebben belang bij aantrekkelijke kernen die, naast mogelijkheden voor een vitale economie, rust en ruimte bieden.

Voor iedere kern is een werkboek opgesteld dat handreikingen biedt voor het ontwikkelen en begeleiden van projecten. Drie motto's staan in het Groenstructuurplan centraal:

  • 1. sluit aan bij het landschap;
  • 2. versterk de karakteristiek van de kern;
  • 3. draagvlak in projecten.

De visie benoemt op de groenstructuurkaart de volgende uitgangspunten tot het jaar 2030:

  • lanen herstellen met nieuwe linden;
  • pleksgewijs solitaire eiken en linden in historische linten;
  • laanbeplanting met allure als zuidelijke entree;
  • groene poorten bij rotondes randweg versterken;
  • parken nieuw leven inblazen;
  • brinken op knooppunten historische linten creëren;
  • iedere wijk eigen variatie op grote lijn;
  • groenstructuur in het centrum behouden en versterken;
  • twee groene corridors in hoofdgroenstructuur versterken;
  • water beleefbaar maken in de Blauwe Graaf;
  • beplanting om dorp langs randweg versterken;
  • belangrijke zichtlijnen koesteren;
  • doorzichten vanuit dorp naar landschap behouden.

Kilder

Als onderdeel van het Groenstructuurplan, heeft de gemeente voor elke kern een werkboek gemaakt. Het werkboek vormt als het ware een brug tussen de groenstructuurvisie en de uitwerking ervan in projecten.

In vergelijking met de andere kleine kernen is Kilder bijzonder door de monumentale bomenrij aan de hoofdweg die van de hoge es naar het open lage veld loopt. Volgens de kaart met aandachtsgebieden en projecten in het werkboek "Groen in de kern Kilder!" is het plangebied en de directe omgeving aangeduid als 'Het kruis van Kilder'. Dit Kilder Kruis vormt door de aanwezigheid van de kerk met pastorie en begraafplaats, de school, allerlei winkels en diverse horecagelegenheden het hart van Kilder. De grote beuk bij de kerk vormt samen met de kastanjes van de overkant van de straat voor een groene uitstraling van dit verblijfsgebied.

Toetsing

De grote beuk bij de kerk wordt met het plan niet aangetast. Met het behoud van de kerk wordt het hart van Kilder niet aangetast. Het initiatief is daarmee in overeenstemming met de uitgangspunten uit het groenstructuurplan.

Bomenbeleid 'De kracht van Bomen'

3.3 Milieu

3.3.1 Bodem

Algemeen

In het kader van een bestemmingsplanprocedure moet zijn aangetoond dat de bodem en het grondwater geschikt zijn voor het beoogde gebruik. Hiertoe is het uitvoeren van een verkennend bodemonderzoek noodzakelijk. Dit onderzoek moet uitwijzen of de locatie mag worden aangewend voor de gewenste ontwikkeling.

Toetsing

In januari 2020 is door Econsultancy uitgevoerd1 ter plaatse van het plangebied en dat deel van de pastorietuin dat niet tot het plangebied behoort. Het onderzoek is als Bijlage 1 bijgevoegd. In het opgeboorde materiaal zijn, naast een lokale bijmenging met grind, zintuiglijk geen bijmengingen waargenomen. Lokaal is een lichte verontreiniging met koper aangetoond in de bovengrond. Voor het overige zijn zowel in de boven- als in de ondergrond geen verontreinigingen aangetoond. Het grondwater is licht verontreinigd met barium en zink.

De tijdens het onderzoek vastgestelde milieuhygiënische bodemkwaliteit vormt geen belemmering voor de voorgenomen ontwikkeling.

Conclusie

Het aspect bodem vormt geen belemmering voor de uitvoering van het plan.

3.3.2 Geluid

Algemeen

De mate waarin het geluid onder andere het woonmilieu mag belasten, is geregeld in de Wet geluidhinder (Wgh). In het bestemmingsplan moet volgens de Wgh worden aangetoond dat gevoelige functies, zoals woningen, een aanvaardbare geluidsbelasting hebben als gevolg van omliggende (spoor)wegen en industrieterreinen. Indien nieuwe geluidsgevoelige functies binnen de geluidszone van (spoor)wegen en/of industrieterreinen worden toegestaan, stelt de Wgh de verplichting akoestisch onderzoek te verrichten naar de geluidsbelasting.

Toetsing

Met het initiatief worden geluidgevoelige objecten mogelijk gemaakt, namelijk woningen. Het gaat daarbij om de nieuwe woningen in het kerkgebouw en de vijf nieuw te realiseren aaneengebouwde woning. In de omgeving van het plangebied zijn geen spoorwegen en/of gezoneerde industrieterreinen aanwezig. Er is daarom geen sprake van geluidhinder als gevolg van industrielawaai en/of spoorwegen.

De nieuwe woningen liggen nabij de Zeddamseweg (N815). Deze weg ligt in stedelijk gebied en heeft twee rijstroken. De onderzoekszone van deze weg bedraagt 200 meter op basis van de Wgh. Het plangebied ligt dan ook in deze zone van de Zeddamseweg (N815). De nieuwe woningen liggen verder aan de Hoofdstraat en de Molenstraat en nabij de Beekseweg. Deze wegen hebben een 30 km/uur-regime. Formeel geldt voor deze wegen volgens de Wgh geen onderzoeksplicht, omdat de maximaal toegestane snelheid 30 km/uur bedraagt. De verkeersintensiteiten op deze 30 km-wegen zijn dusdanig dat een overschrijding van de voorkeursgrenswaarde van 48 dB niet kan worden uitgesloten. Daarom is in het kader van een goede ruimtelijke ordening toch akoestisch onderzoek nodig naar de omliggende 30 km-wegen (Hoofdstraat, Molenstraat en Beekseweg). De ontwikkeling ligt tevens aan de Sint Janstraat. Deze woonstraat heeft ook een 30 km/uur-regime. Gezien de lage verkeersintensiteiten op de Sint Janstraat is het te verwachten dat de er geen overschrijding van de voorkeursgrenswaarde van 48 dB is. Voor de Sint Janstraat is dan ook geen akoestisch onderzoek noodzakelijk. Akoestisch onderzoek is noodzakelijk naar de geluidhinder afkomstig van de Zeddamseweg (N815) en de omliggende 30 km-wegen Hoofdstraat, Molenstraat en Beekseweg. Om de haalbaarheid van het plan te beoordelen is in oktober 2020 door Buro Ontwerp & Omgeving een akoestisch onderzoek uitgevoerd2. Het onderzoek is als Bijlage 2 opgenomen.

Zeddamseweg (N815)

De hoogste geluidsbelasting afkomstig van de Zeddamseweg (N815) bedraagt 38 dB, inclusief aftrek op grond van artikel 110g Wgh bij de nieuwe woningen. Bij de nieuwe woningen wordt voldaan aan de voorkeursgrenswaarde van 48 dB uit de Wgh.

Omliggende 30 km wegen

De hoogste geluidsbelasting afkomstig van de omliggende 30 km-wegen bedraagt 55 dB, inclusief aftrek op grond van artikel 110g Wgh. De omliggende 30 km-wegen hebben op basis van de Wgh geen zone. Formeel gelden de normen uit de Wgh dan ook niet voor 30 km-wegen. Echter, in het kader van een goede ruimtelijke ordening, zijn bij de beoordeling van de geluidsbelastingen de voorkeursgrenswaarde van 48 dB en de hoogste toelaatbare geluidsbelastingen van 63 dB gebruikt. Deze normen gelden voor een vergelijkbare weg met een 50 km-regime. Bij de nieuwe woningen wordt de voorkeursgrenswaarde van 48 dB uit de Wgh overschreden, echter de hoogst toelaatbare geluidsbelasting van 63 dB wordt niet overschreden.

Gevelgeluidwering

Volgens artikel 3.2 van het Bouwbesluit 2012 bezit een standaard gevelconstructie een minimale geluidsisolatie van 20 dB. Echter door de hogere eisen voor de thermische isolatie voor nieuwe woningen is ook de geluidsisolatie van nieuwe woningen verbeterd. Bij nieuwe woningen is een gevelisolatie van 24 dB zonder extra geluidsisolatie goed mogelijk, wanneer er is gekozen voor goed geluidsgeïsoleerde ventilatievoorzieningen. Naar verwachting wordt de binnenwaarde van 33 dB in de nieuwe woningen gehaald zonder dat er aanvullende geluidsisolerende maatregelen worden getroffen. Bij de woningen of appartementen in de kerk zal naar verwachting de gevelwering minimaal 20 dB (minimale waarde uit het Bouwbesluit 2012 voor nieuwbouwwoningen) bedragen. Hierdoor wordt bij de woningen of appartementen in de kerk voldaan aan de 41 dB voldaan voor transformaties, waarbij wordt geanticipeerd op de nieuwe omgevingswet.

Conclusie

Geconcludeerd wordt dat er vanuit het aspect geluid geen belemmeringen bestaan ten aanzien van de voorgenomen ontwikkeling in het plangebied.

3.3.3 Bedrijven en milieuzonering

Algemeen

Indien door middel van een plan nieuwe, gevoelige functies mogelijk worden gemaakt, moet worden aangetoond dat een goed leefmilieu mogelijk kan worden gemaakt. Hierbij moet rekening worden gehouden met omliggende functies met een milieuzone. Anderzijds mogen omliggende bedrijven niet in hun ontwikkelingsmogelijkheden worden aangetast door de realisatie van een nieuwe gevoelige functie.

Wat betreft de aanbevolen afstanden tussen bedrijvigheid en gevoelige functies, zoals wonen, is de brochure 'Bedrijven en milieuzonering' (2009) van de Vereniging van Nederlandse Gemeenten geraadpleegd. Hierin worden richtafstanden voor het omgevingstype 'gemengd gebied' als 'rustige woonwijk' en 'rustig buitengebied' aanbevolen.

Gemengde gebieden betreffen gebieden die langs hoofdinfrastructuur liggen en/of gebieden met matige tot sterke functiemenging. In een rustige woonwijk en het buitengebied komen vrijwel geen andere functies voor. De richtafstanden gelden voor een gemiddeld nieuw bedrijf en gaan uit van het gebiedstype 'rustig woongebied'. Voor gemengde gebieden kunnen de richtafstanden worden verminderd.

Toetsing

Het plangebied ligt in een gebied dat zich kenmerkt door een menging van functies. Ten zuidwesten van het plangebied bevinden zich een cafetaria en een buurtsuper en ten zuidoosten bevindt zich een café/zalencentrum. Voor het overige is er sprake van woonfuncties. Het gebied kan worden aangemerkt als een gemengd gebied.

Bedrijvigheid in het besluitgebied

Binnen het besluitgebied worden geen functies gerealiseerd die milieuhinder veroorzaken. De woningen kunnen worden aangemerkt als milieuhindergevoelig.

Bedrijvigheid in de omgeving van het besluitgebied

Naast voorgenoemde toetsing moet onderzocht worden of de functies in het besluitgebied hinder ondervinden van hinderveroorzakende functies in de omgeving van het plangebied. In de omgeving van het plangebied zijn enkele hinderveroorzakende functies gelegen:

Adres   Functie  
Hoofdstraat 3H   Cafetaria De Bikkerij  
Hoofdstraat 3DE   Supermarkt Attent  
Hoofdstraat 2   Zalencentrum Teunissen  

De navolgende tabel laat zien hoe de functies kunnen worden gecategoriseerd op basis van de VNG-brochure 'Bedrijven en milieuzonering'. Daarnaast geeft de tabel de minimaal aanbevolen richtafstanden (in meters) aan voor deze functies en de daadwerkelijke afstanden:

Functie   Type inrichting   Geur   Stof   Geluid   Gevaar   Daadwerkelij-ke afstand  
Cafetaria De Bikkerij     10   0   10   10   38  
Supermarkt Attent     0   0   10   10   38  
Zalencentrum Teunissen   Discotheken, muziekcafé's   0   0   10   0   6  

Uit de tabel blijkt dat bij de nieuwe woningen niet wordt voldaan aan de richtwaarden voor geluid uit de VNG-publicatie 'Bedrijven en milieuzonering, editie 2009' vanwege het zalencentrum.

Zalencentrum Teunissen

De grootste richtafstand voor de genoemde functies geldt voor het zalencentrum, namelijk 30 m voor een rustig woongebied. Omdat sprake is van een gemengd gebied, kan de richtafstand met één stap worden verminderd tot 10 m. Binnen 10 m van de genoemde functies worden geen hindergevoelige functies mogelijk gemaakt. Middels akoestisch onderzoek moet dit aangetoond worden. Door buro ontwerp & omgeving is een akoestisch onderzoek industrielawaai uitgevoerd. Het rapport is als Bijlage 3 bij dit bestemmingsplan gevoegd.

Voor de realisatie van deze nieuwe woningen is akoestisch onderzoek verricht naar de optredende geluidshinder afkomstig van Café Zaal Teunissen (Hoofdstraat 2, Kilder). Woningen zijn geluidsgevoelige bestemmingen waarvoor akoestisch onderzoek moet worden verricht. De geluidsbelasting van de nieuwe woningen wordt getoetst aan de normen uit de VNG-publicatie ‘Bedrijven en milieuzonering, editie 2009’, het Activiteitenbesluit.

Bij de nieuwe bungalows wordt voldaan aan de grenswaarde voor de langtijdgemiddelde en de maximale geluidsbelastingen (piekniveaus) uit het Activiteitenbesluit. Tevens wordt bij de nieuwe bungalows voldaan aan de richtwaarde (stap 3) uit de VNG-publicatie ‘Bedrijven en milieuzonering, editie 2009’. Aangezien de bestaande omliggende woningen een hogere langtijdgemiddelde en maximale geluidsbelasting hebben dan de nieuwe bungalows zijn zowel in de huidige als de toekomstige situatie de bestaande omliggende woningen maatgevend voor Café Zaal Teunissen. Door de realisatie van het plan wordt Café Zaal Teunissen niet in zijn bedrijfsvoering beperkt.

Luiden klokken kerkgebouw

Binnen de ontwikkelingslocatie staat de Sint Jan de Doperkerk. De kerk wordt getransformeerd naar appartementen maar de traditie van het luiden van de klokken wordt voortgezet. Hiermee is er enige geluidsemissie afkomstig van de kerkklokken. Op basis van het Activiteitenbesluit zijn alle activiteiten van de kerk vrijgesteld bij het toetsing aan de geluidsnormen uit het Activiteitenbesluit.

Hiermee wordt in het gehele ontwikkelingsgebied voldaan aan de grenswaarden uit het Activiteitenbesluit. Over het algemeen zijn zowel de langtijdgemiddelde als de maximale geluidsbelastingen afkomstig van het luiden van de kerkklokken dusdanig hoog dat de richtwaarden uit de VNG-publicatie worden overschreden. Echter doordat klokken op vaste tijdstippen en relatief beperkt, zullen worden geluid, zal de hinder door het luiden van de klokken beperkt zijn. Hierdoor kan de gemeente ervoor kiezen om een hogere geluidsniveau bij de nieuwe woningen acceptabel te vinden.

Conclusie

Geconcludeerd kan worden dat vanuit het aspect bedrijven en milieuzonering geen belemmeringen bestaan ten aanzien van de gewenste ontwikkelingen in het plangebied.

3.3.4 Geur

Algemeen

De Wet geurhinder en veehouderij (Wgv) vormt in eerste instantie het wettelijk kader bij de beoordeling van een aanvraag om een milieuvergunning voor dierenverblijven van veehouderijen. De Wet geurhinder en veehouderij geeft hiervoor geurbelastings- en afstandsnormen in relatie met geurgevoelige objecten in de nabijheid van de (geprojecteerde) veehouderij. De Wgv heeft betrekking op twee aspecten. Ten eerste speelt de geurbelasting een rol bij de beoordeling of er in het kader van een goede ruimtelijke ordening een goed woon- en leefklimaat kan worden gegarandeerd. Ten tweede moet bij de belangenafweging ten behoeve van een zorgvuldige besluitvorming worden nagegaan of een in de omgeving gelegen veehouderij niet onevenredig in haar belangen wordt geschaad.

Toetsing

In het plangebied worden geurgevoelige objecten gerealiseerd in de vorm van woningen. In de directe omgeving van het plangebied zijn geen veehouderijen aanwezig. De dichtstbijzijnde veehouderij betreft een schapen- en geitenhouderij en -fokkerij aan de Rozenpas 6a in Kilder. Deze bevindt zich op een afstand van circa 330 meter ten noordoosten van het plangebied. Aangenomen kan worden dat ter plaatse van het plangebied sprake is van een aanvaardbaar woon- en leefklimaat voor wat betreft het aspect geur.

Gezien het feit dat er op kortere afstand van de omliggende veehouderijen reeds andere geurgevoelige objecten zijn gelegen, worden de veehouderijen door de realisatie van onderhavig plan bovendien niet (verder) in hun ontwikkelingsmogelijkheden belemmerd.


Conclusie
Geconcludeerd kan worden dat vanuit het aspect geur geen belemmeringen bestaan ten aanzien van de gewenste ontwikkelingen in het plangebied.

3.3.5 Luchtkwaliteit

Algemeen

De Wet luchtkwaliteit (verankerd in de Wet milieubeheer, hoofdstuk 5, titel 5.2) is een implementatie van diverse Europese richtlijnen omtrent luchtkwaliteit, waarin onder andere grenswaarden voor vervuilende stoffen in de buitenlucht zijn vastgesteld ter bescherming van mens en milieu. In Nederland zijn stikstofdioxide (NO2) en zwevende deeltjes als PM10 (fijn stof) de maatgevende stoffen waar de concentratieniveaus het dichtst bij de grenswaarden liggen. Overschrijdingen van de grenswaarden komen, uitzonderlijke situaties daargelaten, bij andere stoffen niet voor. Vanaf 1 januari 2015 dient het bevoegd gezag de luchtkwaliteit ook te toetsen aan de grenswaarde voor PM2,5. Op basis van onderzoek door het Planbureau voor de Leefomgeving kan worden gesteld dat als aan de grenswaarden voor PM10  wordt voldaan, ook aan de grenswaarde voor PM2,5 wordt voldaan.


Hoewel de luchtkwaliteit de afgelopen jaren flink is verbeterd, kan Nederland niet voldoen aan de luchtkwaliteitseisen die in 2010 van kracht zijn geworden. De EU heeft Nederland derogatie (uitstel) verleend op grond van het Nationaal Samenwerkingsprogramma Luchtkwaliteit (NSL). Dit betreft een gemeenschappelijke aanpak van het Rijk en diverse regio's om samen te werken aan een schonere lucht, waarbij ruimte wordt geboden aan noodzakelijke ruimtelijke ontwikkelingen. Plannen die in betekenende mate bijdragen aan luchtverontreiniging worden opgenomen in een gebiedsgericht programma van het NSL. Het maatregelenpakket in het NSL is hiermee in evenwicht en zodanig dat op termijn de luchtkwaliteit in heel Nederland onder de grenswaarden ligt. Plannen die 'niet in betekenende mate' (NIBM) bijdragen aan luchtverontreiniging hoeven niet langer individueel getoetst te worden aan de Europese grenswaarden aangezien deze niet leiden tot een significante verslechtering van de luchtkwaliteit. Deze grens is in de AMvB NIBM gelegd bij 3% van de grenswaarde van een stof: Voor NO2 en PM10 betekent dit dat aannemelijk moet worden gemaakt dat het project tot maximaal 1,2 µg/m³ verslechtering leidt. Voor een aantal functies (o.a. woningen, kantoren, tuin- en akkerbouw) is dit gekwantificeerd in de ministeriële regeling NIBM.

Uit het oogpunt van een goede ruimtelijke ordening wordt afgewogen of het aanvaardbaar is het project op deze plaats te realiseren. Hierbij kan de blootstelling aan luchtverontreiniging een rol spelen, ook als het project 'niet in betekenende mate' bijdraagt aan de luchtverontreiniging. Er is sprake van een significante blootstellingsduur als de verblijfsduur die gemiddeld bij de functie te verwachten is een aanzienlijk deel van de dag betreft. Volgens de toelichting op de Regeling Beoordeling luchtkwaliteit is dit onder andere het geval bij een woning, school of sportterrein.

Gevoelige bestemmingen als scholen, kinderdagverblijven, bejaarden- en zorgtehuizen genieten op grond van de gelijknamige AMvB extra bescherming. Substantiële uitbreiding of nieuwvestiging binnen 50 meter van een provinciale weg of 300 meter van een Rijksweg is alleen toegestaan als de concentraties luchtvervuilende stoffen zich onder de grenswaarden bevinden, waardoor geen onacceptabele gezondheidsrisico's optreden.


Toetsing

Voorliggend plan voorziet in het mogelijk maken van vijf aaneengebouwde woningen, de transformatie van een kerk naar maximaal acht wooneenheden en de herinrichting van de openbare ruimte binnen bestaand stedelijk gebied. Voorliggend initiatief maakt daarmee de realisatie van maximaal dertien nieuwe woningen mogelijk. Volgens de ministeriële regeling NIBM draagt een bouwplan van deze omvang (minder dan 1.500 woningen) niet in betekenende mate bij aan de luchtverontreiniging. Toetsing aan de grenswaarden is derhalve niet noodzakelijk.

In het kader van een goede ruimtelijke ordening is de lokale luchtkwaliteit onderzocht, zodat onacceptabele gezondheidsrisico's kunnen worden uitgesloten. Hiertoe is de monitoringstool3 uit het Nationaal Samenwerkingsprogramma Luchtkwaliteit (NSL) van de rijksoverheid geraadpleegd. De monitoringstool geeft inzicht in de concentraties stikstofdioxide (NO2) en fijn stof (PM10) in het plangebied tussen 2017 en 2030. De monitoringstool kent scenario's zonder en met lokale maatregelen die er voor moeten zorgen dat op termijn overal aan de grenswaarden wordt voldaan. Beide typen scenario's laten in de toekomst een afname van de concentraties zien. Dit komt doordat bedrijven en het verkeer steeds schoner worden door technologische verbeteringen. De monitoringstool maakt duidelijk dat de concentraties luchtvervuilende stoffen in de peiljaren 2018, 2020 en 2030 in het plangebied onder de grenswaarden liggen die op Europees niveau zijn vastgesteld ter bescherming van mens en milieu tegen schadelijke gevolgen van luchtverontreiniging. De blootstelling aan luchtverontreiniging is hierdoor beperkt en leidt niet tot onaanvaardbare gezondheidsrisico's.


In het plangebied worden geen gevoelige functies beoogd zoals bedoeld in het 'Besluit gevoelige bestemmingen'. Toetsing aan de grenswaarden is daarom niet noodzakelijk.


Conclusie
Het aspect luchtkwaliteit vormt geen belemmering voor de uitvoering van het plan.

3.3.6 Externe veiligheid

Algemeen

Het beleid voor externe veiligheid is gericht op het verminderen en beheersen van risico's van zware ongevallen met gevaarlijke stoffen in inrichtingen en tijdens het transport ervan. Op basis van de criteria zoals onder andere gesteld in het Besluit externe veiligheid inrichtingen (Bevi) worden bedrijven en activiteiten geselecteerd die een risico op zware ongevallen met zich mee (kunnen) brengen. Daarbij gaat het vooral om de grote chemische bedrijven, maar ook om kleinere bedrijven als LPG-tankstations en opslagen van bestrijdingsmiddelen. Daarnaast zijn (hoofd)transportassen voor gevaarlijke stoffen, zoals buisleidingen, spoor-, auto-, en waterwegen, ook als potentiële gevarenbron aangemerkt.

Het externe veiligheidsbeleid heeft tot doel zowel individuele burgers als groepen burgers een minimum beschermingsniveau te bieden tegen een ongeval met gevaarlijke stoffen. Om dit doel te bereiken zijn gemeenten en provincies verplicht om bij besluitvorming in het kader van de Wet algemene bepalingen omgevingsrecht (Wabo), de Wet milieubeheer en de Wet op de ruimtelijke ordening de invloed van een risicobron op zijn omgeving te beoordelen. Daartoe wordt binnen het werkveld van de externe veiligheid veelal het plaatsgebonden risico (PR) en het groepsrisico (GR) gehanteerd.

Het plaatsgebonden risico is de kans dat een persoon die zich gedurende een jaar onafgebroken onbeschermd op een bepaalde plaats bevindt, overlijdt als gevolg van een ongeval met gevaarlijke stoffen. Dit risico wordt per bedrijf en transportas vastgelegd in contouren. Er geldt een contour waarbinnen deze kans 1x10-6 (één op de miljoen) bedraagt.

Het groepsrisico is een berekening van de kans dat een groep personen binnen een bepaald gebied overlijdt ten gevolge van een ongeval met gevaarlijke stoffen. De oriëntatiewaarde geeft hierbij de indicatie van een aanvaardbaar groepsrisico. Indien een ontwikkeling is gepland in de nabijheid van een risicobron geldt afhankelijk van de ontwikkeling een verantwoordingsplicht voor het toelaten van gevoelige functies.

Besluit externe veiligheid inrichtingen (Bevi)

Voor bepaalde risicovolle bedrijven geldt het Besluit externe veiligheid inrichtingen en Regeling externe veiligheid inrichtingen (Bevi en Revi). Hierin zijn de risiconormen voor externe veiligheid met betrekking tot bedrijven met gevaarlijke stoffen wettelijk vastgelegd.

Circulaire effectafstanden LPG-tankstations

In de circulaire is de effectbenadering uitgewerkt voor LPG-tankstations. In beginsel zijn geen (beperkt) kwetsbare objecten binnen een effectafstand van 60 meter en geen zeer kwetsbare objecten binnen een effectafstand van 160 meter toegestaan. Naast de circulaire blijft ook de toetsing aan het Bevi noodzakelijk.

Transport van gevaarlijke stoffen (water, spoor, weg)

Voor de beoordeling van de risico's vanwege transport van gevaarlijke stoffen geldt het Besluit externe veiligheid transportroutes (Bevt en basisnet), met als uitvloeisel het zogeheten Basisnet en de bijbehorende regeling Basisnet.

Transport van gevaarlijke stoffen door buisleidingen

Voor de beoordeling van de risico's van transport van gevaarlijke stoffen door buisleidingen geldt het Besluit externe veiligheid buisleidingen (Bevb en Revb). Naast de toetsing aan het plaatsgebonden risico en het groepsrisico is hierin vastgelegd dat aan weerszijden van een buisleiding een bebouwingsvrije afstand moet worden aangehouden voor beheer en onderhoud aan de buisleidingen.

Toetsing

Om te bepalen waar er zich stationaire en mobiele bronnen in de omgeving van het plangebied bevinden, is de risicokaart Nederland geraadpleegd. De navolgende afbeelding bevat een uitsnede van de risicokaart. De globale ligging van het plangebied is aangeduid met een rode marker.

afbeelding "i_NL.IMRO.1955.bpsgkldwonhoofdst6-va01_0015.jpg"

Uitsnede risicokaart Nederland

Op de risicokaart is te zien dat de meest nabijgelegen hogedruk aardgasleidingen zijn gelegen op een afstand van ruim 380 m ten zuiden, en op een afstand van 535 ten westen van het plangebied. De plaatsgebonden risicocontour ligt op de leidingen. De leidingen hebben de volgende kenmerken:

Naam leiding   Uitwendige diameter   Werkdruk   Invloed groepsrisico  
N-556-01   12,76 inch   40 bar   144 m  
N-566-03   8,62 inch   40 bar   103 m  

Het plangebied ligt buiten het invloedsgebied van het groepsrisico voor voorgenoemde leidingen. Een nadere beoordeling van het groepsrisico is daarom niet noodzakelijk. De voorgenomen ontwikkeling wordt niet belemmerd door de aanwezigheid van deze en de overige in de omgeving gelegen buisleidingen.

Ten noorden van het plangebied ligt de rijksweg A18. Uit de meest recente telling van juni 2019 (Jaarintensiteiten VGS op de weg, RWS) blijkt dat er toxische stoffen over de A18 getransporteerd worden, namelijk LT1 stoffen. Hiervoor moet een invloedsgebied van 730 meter aangehouden worden. Het plangebied ligt op ruim 800 meter van de A18 en is daarmee gelegen buiten het invloedsgebied van de rijksweg. Hierdoor zijn er geen belemmeringen voor het plangebied.

In de omgeving van het plangebied bevinden zich verder geen risicovolle inrichtingen of transportroutes.

Conclusie

Het aspect externe veiligheid vormt geen belemmering voor de uitvoering van het plan.

3.4 Water

3.4.1 Algemeen

In bestemmingsplannen moet worden aangetoond dat de waterhuishouding ter plaatse niet negatief wordt beïnvloed door de beoogde ruimtelijke ontwikkelingen.

3.4.2 Beleidsuitgangspunten

Het waterbeleid van Rijk en provincie is gericht op een veilig en goed bewoonbaar land met gezonde, duurzame watersystemen. Het plangebied ligt in het beheersgebied van het Waterschap Rijn en IJssel. In het Waterbeheerplan 2016-2021 van Waterschap Rijn en IJssel laat het waterschap zien welke ontwikkelingen voor het waterbeheer van belang zijn en welke accenten zij in de samenwerking met haar partners willen leggen. Vanuit die omgevingsverkenning is vervolgens het beleid voor de planperiode 2016-2021 beschreven voor primaire taakgebieden van het waterschap:

  • Bescherming tegen overstromingen en werken aan veiligheid: Veilig water.
  • Zorgen voor de juiste hoeveelheid water en passende waterpeilen: Voldoende water.
  • Zorgen voor een goede waterkwaliteit die nodig is voor mens, plant en dier: Schoon water.
  • Verwerken van afvalwater en het benutten van energie en grondstoffen daaruit: Afvalwater.
  • Zorgen voor goede randvoorwaarden voor beroepsvaart op de Oude IJssel: Vaarwegbeheer.

Sinds 2016 is het gemeentelijk waterbeleid geregeld in het 'gemeentelijk rioleringsplan Montferland 2016-2020' (GRP). Het betreft een verbreed GRP waarin beschreven staat hoe de gemeente Montferland, invulling geeft aan het beheer van het afvalwaterketen en het oppervlaktewater in stedelijk gebied. Het beschrijft het beleid van de gemeente aan de hand van vijf thema's: hemelwater, grondwater, afvalwater, zuivering en stedelijk water. De focus voor de omgang met hemelwater hierin ligt op:

  • a. kwantitatief: vasthouden, bergen en afvoeren;
  • b. kwalitatief: schoonhouden, scheiden en schoonmaken.

Op basis van de Waterwet heeft de gemeente de zorgplicht voor het in de openbare ruimte van bebouwd gebied treffen van maatregelen om structureel nadelige gevolgen van de grondwaterstand zoveel mogelijk te voorkomen of te beperken. De zorgplicht voor het inzamelen en afvoeren van afvalwater ligt bij de gemeente.

3.4.3 Waterhuishoudkundige consequenties en uitgangspunten

Waterschap Rijn en IJssel heeft een watertoetstabel ontwikkeld waarmee met een aantal vragen in beeld te brengen is welke wateraspecten relevant zijn en met welke intensiteit het watertoetsproces doorlopen dient te worden. De vragen zijn gericht op de locatie van de ruimtelijke ontwikkeling en welke veranderingen er mogelijk worden gemaakt.

De intensiteit van het watertoetsproces is afhankelijk van de antwoorden op de vragen. Als er op een categorie 2 vraag een 'ja' is geantwoord, is een uitgebreide watertoets noodzakelijk. Is er op geen van de categorie 2 vragen een 'ja' geantwoord, dan kan een verkorte watertoets doorlopen worden. Als er alleen met 'nee' is geantwoord, dan is het RO-plan waterhuishoudkundig niet van belang en hoeft er geen wateradvies bij het waterschap gevraagd te worden.

Navolgend is de watertoetstabel opgenomen. De relevante waterthema's voor de ontwikkeling worden door middel van de watertoetstabel geselecteerd en vervolgens beschreven (wanneer de toetsvraag met 'ja' is beantwoord).


Thema  
Toetsvraag   Relevant   Intensiteit  
Veiligheid   1. Ligt in of binnen 20 meter vanaf het plangebied een waterkering? (primaire waterkering, regionale waterkering of kade)
2. Ligt het plangebied in een waterbergingsgebied of winterbed van een rivier?  


Nee

Nee  


2

2  
Riolering en Afvalwaterketen   1. Is de toename van het afvalwater (DWA) groter dan 1 m3/uur?
2. Ligt in het plangebied een persleiding van WRIJ?
3. Ligt in of nabij het plangebied een RWZI of rioolgemaal van het waterschap?  

Nee
Nee
Nee  

2
1

1  
Wateroverlast (oppervlaktewater)
 
1. Is er sprake van toename van het verhard oppervlak met meer dan 2.500 m2?
2. Is er sprake van toename van het verhard oppervlak met meer dan 500 m2?
3. Zijn er kansen voor het afkoppelen van bestaand verhard oppervlak?
4. In of nabij het plangebied bevinden zich natte en laag gelegen gebieden, beekdalen, overstromingsvlaktes?  

Nee

Ja

Nee


Nee  

2

1

1


1  
Oppervlaktewater- kwaliteit   1. Wordt vanuit het plangebied (hemel)water op oppervlaktewater geloosd?  
Nee  

1  
Grondwateroverlast   1. Is in het plangebied sprake van slecht doorlatende lagen in de ondergrond?
2. Is in het plangebied sprake van kwel?
3. Beoogt het plan dempen van perceelsloten of andere wateren?
4. Beoogt het plan aanleg van drainage?  

Nee
Nee

Nee
Nee  

1
1

1
1  
Grondwaterkwaliteit   1. Ligt het plangebied in de beschermingszone van een drinkwateronttrekking?  
Nee  

1  
Inrichting en beheer   1. Bevinden zich in of nabij het plangebied wateren die in eigendom of beheer zijn bij het waterschap?
2. Heeft het plan herinrichting van watergangen tot doel?  

Nee

Nee  

1

2  
Volksgezondheid
 
1. In of nabij het plangebied bevinden zich overstorten uit het gemengde stelsel?
2. Bevinden zich, of komen er functies, in of nabij het plangebied die milieuhygiënische of verdrinkingsrisico's met zich meebrengen (zwemmen, spelen, tuinen aan water)?  

Nee



Nee  

1



1  
Natte natuur   1. Bevindt het plangebied zich in of nabij een natte EVZ?
2. Ligt in of nabij het plangebied een HEN of SED water?
3. Bevindt het plangebied zich in beschermingszones voor natte natuur?
4. Bevindt het plangebied zich in een Natura 2000-gebied?  

Nee

Nee

Nee

Nee  

2

2

1

1  
Verdroging   1. Bevindt het plangebied zich in een TOP-gebied?   Nee   1  
Recreatie   1. Bevinden zich in het plangebied watergangen en/of gronden in beheer van het waterschap waar actief recreatief medegebruik mogelijk wordt?  

Nee  


2  
Cultuurhistorie   1. Zijn er cultuurhistorische waterobjecten in het plangebied aanwezig?  
Nee  

1  

Wateroverlast en omgang met hemelwater

In de huidige situatie is het terrein rondom de kerk grotendeels verhard waardoor ter plaatse per saldo geen toename plaatsvindt in het verhard oppervlak. De locatie van de vijf aaneengebouwde woningen is in de huidige situatie in gebruik als gazon en grotendeels onverhard. De vijf toekomstige woonpercelen hebben een oppervlak van circa 300 m². Indien deze voor circa ¾ bebouwd en verhard zullen worden, is daarmee ter plaatse sprake van een toename van circa 1.125 m² aan verhard oppervlak. Verder heeft het nieuwe parkeerterrein een oppervlakte van in totaal 500 m². De totale toename in verhard oppervlak bedraagt daarmee circa 1.625 m².

Regen- en afvalwater moeten zoveel mogelijk gescheiden worden ingezameld. Verontreiniging van regenwater moet zoveel mogelijk voorkomen worden. Omdat er een toename zal zijn van het verhard oppervlak moet regenwater zoveel mogelijk op de locatie worden geborgen geïnfiltreerd. Daarbij wordt het uitgangspunt gehanteerd dat minimaal een bui T=100+10% (80 mm) geborgen moet kunnen worden. De toename van het verhard oppervlak bedraagt circa 1.625 m2. Dit betekent dat in of in de nabije omgeving van het plangebied circa (1.625*0,08) = 130 m3 aan ruimte voor waterberging moet worden gereserveerd. Dit zou mogelijk kunnen door het realiseren van een infiltratievoorziening ter plaatse van de nieuwe parkeerplaats. Er is voldoende ruimte om deze benodigde waterberging binnen het plangebied op te lossen.

In de verdere uitwerking dient rekening gehouden te worden met de juiste aanlegniveaus zoals een verhoogd vloerpeil ten opzichte van de weg om wateroverlast tegen te gaan.

3.4.4 Overleg Waterschap Rijn en IJssel

Er is volgens de watertoetstabel een verkorte watertoetsprocedure nodig vanwege de toename van het verhard oppervlak. Het bestemmingsplan wordt in het kader van het vooroverleg aan het waterschap voorgelegd.

P.M. vooroverleg Waterschap

3.4.5 Conclusie

Met de voorgenomen ontwikkelingen binnen het plangebied zijn geen negatieve gevolgen te verwachten voor de waterhuishouding ter plaatse. Het aspect water vormt daarmee geen belemmering voor de uitvoerbaarheid van de voorgenomen ontwikkeling.

3.5 Archeologie en cultuurhistorie

3.5.1 Archeologie

Algemeen

Door ondertekening van het verdrag van Malta (1992) heeft Nederland zich verplicht om bij ruimtelijke planvorming nadrukkelijk rekening te houden met het niet-zichtbare deel van het cultuurhistorisch erfgoed, te weten de archeologische waarden. In de Erfgoedwet is geregeld hoe met in de grond aanwezige dan wel te verwachten archeologische waarden moet worden omgegaan. Het streven is om deze belangen tijdig bij het plan te betrekken. Bij ingrepen waarbij de ondergrond wordt geroerd, dient te worden aangetoond dat de eventueel aanwezige archeologische waarden niet worden aangetast.

Toetsing

Volgens het archeologisch beleid van de gemeente Montferland geldt voor het plangebied zone onderzoeksverplichting bij plangebieden groter dan 250 m² en bij bodemingrepen dieper dan 40 cm-mv. Vanwege de overschrijding van de vrijstellingsgrens is door Hamaland Advies in oktober 2020 een bureauonderzoek en verkennend booronderzoek archeologie uitgevoerd4. Dit onderzoek is als Bijlage 4 bijgevoegd.

Archeologische verwachting

Het plangebied ligt volgens het bestemmingsplan 'Kernen gemeente Montferland (2016)' in een zone met dubbelbestemming Waarde – Archeologische verwachting 2. Archeologisch onderzoek is noodzakelijk bij bodemingrepen groter dan 250 m² en dieper dan 40 cm-mv.

Archeologisch bureauonderzoek

Uit het bureauonderzoek blijkt dat het plangebied op een gordeldekzandrug ligt waarop hoge bruine enkeerdgronden zijn ontstaan. Daarnaast blijkt uit de gemeentelijke beleidskaart en onderzoeken uit de omgeving dat er waarschijnlijk een esdek aanwezig is binnen het plangebied van minstens 0,5 m dik. De hoge ligging van het plangebied maakt het een aantrekkelijke locatie voor bewoning en landgebruik in alle archeologische periodes. Archeologische resten kunnen bestaan uit kampementen, nederzettingen, begravingen en restanten van landinrichting. Daarnaast kunnen er resten die verband houden met het gebruik als kerk aanwezig zijn. Uit het cartografische onderzoek blijkt dat het plangebied als bouwland is gebruikt voordat de kerk werd gebouwd in 1886. Aangenomen kan worden dat de bodem onder de kerk verstoord is. Aangezien de kerk niet gesloopt gaat worden, heeft dit verder geen invloed op het onderzoek. De bodem van de rest van het plangebied kan door de landbouw werkzaamheden verstoord zijn. Dit kan een maximale verstoring van 0,5 m -mv hebben veroorzaakt. Het mogelijke esdek kan de eventuele archeologische resten echter beschermd hebben tegen bodemverstorende activiteiten.

afbeelding "i_NL.IMRO.1955.bpsgkldwonhoofdst6-va01_0016.jpg"

Archeologisch booronderzoek

Uit de resultaten van het booronderzoek blijkt dat in het plangebied sprake is van een hoge bruine enkeerdgrond op een gordeldekzandrug. De akkerlaag kent een tweedeling, een jongere iets humeuze fase en een oudere lichtbruine fase die als plaggendek kan worden geclassificeerd. De top van de akkerlaag bevindt zich op een diepte variërend van 0,25 m -mv tot 0,7 m -mv. De top van het dekzand is aangetroffen op dieptes variërend van 0,6 m -mv tot 1,35 m -mv. Voor het overige is de bodem verstoord tot in de top van het dekzand als gevolg van eerdere graafwerkzaamheden.

Selectiebesluit

Voor de bouw van de appartementen in de kerk zijn geen grootschalige bodemingrepen gepland. Het bestaande gebouw blijft gehandhaafd. Daarom wordt geadviseerd om de ontwikkeling in de kerk vrij te stellen van archeologisch onderzoek. Vanwege de grote mate van intactheid van de bodem en de aanwezigheid van enkele archeologische indicatoren ter plaatse van de nieuwe grondgebonden woningen is de kans groot dat er in het plangebied een vindplaats aanwezig is. Sporen en vondsten zullen zich naar verwachting vooral in de basis van het plaggendek bevinden en in de top van het dekzand. Deze worden door de geplande nieuwbouw vergraven. Derhalve is geadviseerd om de aanwezigheid van vindplaatsen te controleren met behulp van proefsleuvenonderzoek. Hiervoor is een door het bevoegd gezag (gemeente Montferland, mw. A. Zonneveld) goedgekeurd Programma van Eisen opgesteld.

Proefsleuven

In het Programma van eisen is ter plaatse van de beoogde vijf geschakelde levensloopbestendige woningen geadviseerd om de aanwezigheid van vindplaatsen te controleren met behulp van proefsleuvenonderzoek. Ter plaatse van het bouwvlak van de 5 woningen is op de verbeelding een dubbelbestemming opgenomen, waarbij voorafgaand aan de bouw eerste proefsleuvenonderzoek moet worden uitgevoerd conform het daartoe opgestelde en vastgestelde Programma van eisen.

Conclusie

Het aspect archeologie vormt geen belemmering voor voorliggend plan.

3.5.2 Cultuurhistorie

Algemeen

Door de wijziging van artikel 3.1.6, vijfde lid, onderdeel a van het Besluit ruimtelijke ordening (Bro) moeten naast de in de grond aanwezige of te verwachten monumenten ook cultuurhistorische waarden worden meegewogen bij het vaststellen van bestemmingsplannen of verlenen van omgevingsvergunningen.


Plangebied

Historische analyse

Kilder behoorde oorspronkelijk tot het kerspel Zeddam. In 1886 werd het met de bouw van de Sint Jankerk een zelfstandige parochie. De kerk van Sint-Jan de Doper in Kilder is een neogotisch gebouw, ontworpen door Alfred Tepe. De glas-in-loodramen van de kerk zijn ontworpen door de franciscaanse pater Humbert Randag. Voor de kerk staat een Heilig Hartbeeld uit 1926.

Volgens de 'Cultuurhistorische waarderingskaart' van de gemeente Montferland is de locatie ter plaatse van de ontwikkellocatie gewaardeerd als zeer laag, zie onderstaande figuur.

afbeelding "i_NL.IMRO.1955.bpsgkldwonhoofdst6-va01_0017.jpg"

Uitsnede 'Cultuurhistorische waarderingskaart' (plangebied in rode ovaal).

Op de 'Cultuurhistorische kenmerkenkaart' van de gemeente Montferland is de locatie gelegen binnen de zone 'Kampontginningen met plaatselijk essen - droge kampontginningen'. De kerk en de pastoriewoning zijn aangemerkt als gemeentelijk monument. Het terrein aan de voorzijde van de kerk is aangemerkt als 'Niet-beschermde bouwkunst - MIP object', in verband met de aanwezigheid van een H. Hartbeeld.

afbeelding "i_NL.IMRO.1955.bpsgkldwonhoofdst6-va01_0018.jpg"

Uitsnede cultuurhistorische kenmerkenkaart (plangebied in rode ovaal).

Beschrijving kerk en pastorie

De R.K. kerk, gewijd aan de St. Johannes de Doper, is gelegen aan de noordoostzijde van de Hoofdstraat in Kilder, aan een voorplein waar ter rechterzijde de bijbehorende pastorie is gelegen, waarmee de kerk middels een tussenlid is verbonden. De kerk werd gelijktijdig met de pastorie in 1886 gebouwd naar ontwerp van architect Alfred Tepe. Links van de kerk is op het kerkplein bij het 40-jarig bestaan van de parochie in 1926 een H. Hartbeeld onthuld, dat door de parochianen werd aangeboden. Het is vervaardigd door de firma Jozef Thissen & Zn. uit Roermond. Ter gelegenheid van het 60-jarig bestaan van de parochie werd door de parochianen het beeld Maria Koningin van de Vrede aangeboden. Dit beeld staat rechts van de pastorie in een klein plantsoen.

Architectuurhistorische criteria

Het object is van belang als voorbeeld van een neogotische kerk, in 1886 gebouwd, waarvan het oorspronkelijke karakter bijzonder gaaf bewaard is gebleven. Het object valt op door esthetische kwaliteiten in het exterieur en het interieur, het heeft gave verhoudingen en een bijzondere detaillering in vormgeving en materiaalgebruik. In detaillering en materiaalgebruik zijn er duidelijke overeenkomsten met de naastgelegen gelijktijdig gebouwde pastorie. Kerk en pastorie zijn een ontwerp van architect A. Tepe. Als zodanig is de kerk in samenhang met de pastorie, van belang als representatief voorbeeld van het oeuvre van Tepe.

Stedenbouwkundige criteria

Het object maakt deel uit van een historisch gegroeid dorpsbeeld en speelt daarin, gelegen in de Hoofdstraat, een beeldbepalende rol door massa, vorm en silhouet. In relatie tot de ter rechterzijde gelegen pastorie heeft de kerk een ensemblewaarde.

Cultuurhistorische waarde

Vanwege de bestemming als R.K. kerk, gewijd aan St. Johannes de Doper, is het object van belang als onderdeel van een complex, bestaande uit kerk en pastorie, dat een belangrijk element vormt in de lokale geschiedenis, in casu de religieuze geschiedenis van Kilder.

Toetsing

Voorliggend plan voorziet in het mogelijk maken vijf aaneengebouwde woningen en de transformatie van een kerk naar vijf woningen of acht appartementen en de herinrichting van de openbare ruimte. Hierbij wordt de kerk enkel inpandig verbouwd en in gebruik genomen als reguliere woningen. Aan de zuidzijde bestaat de mogelijkheid balkons te realiseren, uiteraard na overleg en instemming van de monumentencommissie. De kerk en pastorie blijven in samenhang behouden, waarmee de ensemblewaarde behouden blijft. Door het behoud blijft de beeldbepalende rol aan de Hoofdstraat in tact. Het H. Hartbeeld aan de voorzijde blijft behouden en de aanwezige Mariakapel blijft eveneens behouden en wordt verplaatst naar buiten het plangebied.

Met de voorgenomen ontwikkeling vindt vanwege het behoud van cultuurhistorische bebouwing geen aantasting aan cultuurhistorisch waardevolle lijnen of elementen plaats. Met het initiatief is voor de kerk een nieuwe economische drager gevonden en wordt de kerk en het omliggende terrein voor de toekomst behouden van verval en sloop. Het initiatief heeft geen negatieve gevolgen voor het aspect cultuurhistorie.

Conclusie

Geconcludeerd kan worden dat vanuit het aspect cultuurhistorie geen belemmeringen bestaan ten aanzien van de gewenste ontwikkelingen in het plangebied.

3.6 Flora en fauna

3.6.1 Algemeen

Bij elke ruimtelijke ontwikkeling moet, in het kader van de Wet natuurbescherming, in beeld worden gebracht of er sprake is van invloeden op natuurwaarden en beschermde soorten.

3.6.2 Toetsing

Door Buro Ontwerp & omgeving is in oktober 2020 een quickscan natuurtoets uitgevoerd5. Dit onderzoek is als Bijlage 5 bijgevoegd.

Gebiedsbescherming

Als gevolg van de bouw en gebruik van de woningen en/of appartementen kunnen er negatieve effecten optreden op nabijgelegen Natura 2000-gebieden. Het gaat om vermesting en verzuring door stikstofdepositie uit de lucht. Omdat de Rijntakken en Unterer Niederrhein op minder dan 10 km afstand van het projectgebied ligt vindt er mogelijk stikstofdepositie plaats op stikstofgevoelige habitattypen. Om de toename van stikstofdepositie als gevolg van onderhavig initiatief op stikstofgevoelige habitattypen of leefgebieden te berekenen is in oktober 2020 door Buro Ontwerp & Omgeving een effectenbeoordeling stikstofdepositie uitgevoerd6. Het onderzoek is opgenomen als Bijlage 6 bij deze toelichting. Uit de berekeningen blijkt dat zowel tijdens de realisatiefase als de gebruiksfase geen stikstofdepositie groter dan 0,00 mol/ha/jr plaatsvindt als gevolg van voorgenomen initiatief.

Het projectgebied ligt op circa 1.000 meter afstand van gebieden die behoren tot de Groene Ontwikkelingszone (GO) en circa 600 meter afstand van het Natuurnetwerk Nederland (NNN). Gezien de ligging buiten deze gebieden worden de kernkwaliteiten en ontwikkelingen van de GO en het NNN bij de werkzaamheden niet aangetast. De kernkwaliteiten worden met de ontwikkeling niet aangetast.

Soortenbescherming en houtopstanden

Grondgebonden zoogdieren

Verschillende algemene grondgebonden zoogdieren kunnen voorkomen in en rondom het plangebied. Voor de meeste grondgebonden zoogdieren geldt in Gelderland een vrijstelling van de Wet natuurbescherming. Wel geldt voor deze soorten de algemene zorgplicht, waarbij alle handelingen die nadelige gevolgen veroorzaken achterwege gelaten moeten worden. Op basis van verspreidingsgegevens kunnen de eekhoorn, bunzing, wezel, hermelijn, boommarter, steenmarter en das in de omgeving van het plangebied voorkomen. Met uitzondering van de eekhoorn en steenmarter zijn deze soorten op voorhand uit te sluiten, aangezien deze niet in de bebouwde kom voorkomen. Van de eekhoorn en de steenmarter zijn in het plangebied geen sporen aangetroffen. Negatieve effecten op de soortgroep kunnen daarom worden uitgesloten.

Vogels

Verschillende algemene vogelsoorten kunnen voorkomen in en rondom het plangebied . Alle in het wild levende vogelsoorten mogen niet opzettelijk gestoord, gevangen of gedood worden volgens de Vogelrichtlijn. Omdat niet kan worden uitgesloten dat algemene vogels het volgende broedseizoen zullen nestelen in het plangebied , geldt dat buiten het broedseizoen gewerkt moet worden om verstoring te voorkomen. Voor de meeste vogels kan worden aangenomen dat het broedseizoen van 15 maart tot en met 15 juli loopt, maar bij enkele soorten begint het seizoen eerder of loopt het langer door. Geldend hierbij is de aanwezigheid van een broedgeval op het moment van ingrijpen. Van sommige vogelsoorten zijn de vaste rust- en verblijfplaatsen jaarrond beschermd. Het kerkgebouw biedt mogelijk ruimte langs de dakkapellen en de dakrand van de torenspits voor de gierzwaluw, maar deze zullen intact blijven en worden niet aangetast als gevolg van de werkzaamheden. Daarnaast bevinden zich enkele hagen in het plangebied die kunnen behoren tot de essentiële functionele leefomgeving. Ook deze zullen behouden blijven. Negatieve effecten op de soortgroep kunnen worden uitgesloten.

Reptielen en amfibieën

Er zijn geen aquatische elementen aanwezig in het plangebied , waardoor negatieve effecten op de voortplantingsplaatsen voor algemene soorten niet aan de orde zijn. Voor de algemene amfibieën geldt een vrijstelling van de Wet natuurbescherming. Verder moet wel de algemene zorgplicht in acht worden gehouden, waarbij alle handelingen die nadelige gevolgen veroorzaken achterwege gelaten moeten worden. Aanwezigheid van strikt beschermde soorten kan ook op voorhand worden uitgesloten. Negatieve effecten op de soortgroep kunnen worden uitgesloten.

Vlinders en overige beschermde soorten

Negatieve effecten op de soortgroepen kunnen worden uitgesloten.

Vaatplanten

Gezien de habitatkeuze van de te verwachten soorten en de ligging van het plangebied binnen de bebouwde kom, worden negatieve effecten op strikt beschermde vaatplanten uitgesloten.

Vleermuizen

De kerk heeft diverse openingen die gebouwbewonende vleermuizen kunnen gebruiken om bij hun verblijfplaatsen te komen. Als gevolg van de werkzaamheden kunnen enkel ter hoogte van de toren negatieve effecten op zomer-, kraam-, paar- en winterverblijven optreden. Alle vleermuissoorten zijn beschermd volgens artikel 3.5 van de Wet natuurbescherming. Hierdoor is het verboden om de soorten opzettelijk te storen, vangen of doden en hun vaste verblijf- of rustplaatsen opzettelijk te beschadigen of vernielen. De herontwikkeling van het kerkgebouw zou kunnen leiden tot overtreding van de Wnb als deze als verblijfplaats fungeert voor vleermuizen. Nader onderzoek naar gebouwbewonende vleermuizen is nodig om vast te stellen wat voor verblijfsfunctie(s) het gaat en welk deel van het gebouw al dan niet wordt gebruikt.

Onderbouwing pastorietuin

De in Nederland voorkomende vleermuizen leven allemaal van insecten. Ze foerageren daarom op allerlei plekken waar veel vliegende insecten aanwezig zijn. Enkele voorbeelden van dit soort gebieden zijn windbeschutte plaatsen langs lijnvormige elementen (bijv. sloten, beken en houtwallen), maar ook open plekken in bosgebieden of langs oevers met rietkragen. Bij het verdwijnen van essentiële foerageergebieden gaan de verblijfplaatsen ook verloren. Het dichtstbijzijnde gebied dat mogelijk de functie van essentieel foerageergebied heeft bevindt zich achter Hoofdstraat 29. Hier wisselen vijvers en houtopstanden elkaar af.

Bij het verwijderen van enkele middelgrote bomen in de pastorietuin worden geen essentiële foerageergebieden aangetast, aangezien het gaat om enkele vrijstaande bomen waar hooguit kortstondig wordt gefoerageerd. In de nabije omgeving blijven voldoende houtopstanden aanwezig om te voorzien in kortstondige foerageeractiviteit. Negatieve effecten op essentiële foerageergebieden kunnen worden uitgesloten.

Houtopstanden

De bomen in het projectgebied vallen niet onder de definitie houtopstanden, zoals bedoeld in paragraaf 4.1 van de Wet natuurbescherming. De te kappen bomen bevinden zich binnen de bebouwde kom en betreffen houtopstanden in de openbare ruimte. De bomen staan ook niet op de lijst van gemeentelijke bomen. Wel kan een kapvergunning nodig zijn als gemeente Montferland dat vereist.

Nader onderzoek

Uit de quickscan natuuronderzoek is naar voren gekomen dat nader onderzoek naar vleermuis noodzakelijk is. Het onderzoek wordt eind september 2021 afgerond. Indien blijkt dat de genoemde soorten aanwezig zijn, dan dient ontheffing voor de Wet natuurbescherming aangevraagd te worden. In dat geval dienen mitigerende dan wel compenserende maatregelen worden uitgevoerd.

In de regels van het bestemmingsplan is een voorwaardelijke verplichting opgenomen (artikel 10.4) die bepaald dat de werkzaamheden in het plangebied niet eerder mogen plaatsvinden dan nadat uit onderzoek is gebleken dat bij de realisatie van de plannen geen nadelige effecten op beschermde plant- en diersoorten ontstaan. Als uit het nader onderzoek blijkt dat overtreding van de Wet natuurbescherming niet kan worden voorkomen, dan mogen de activiteiten alleen plaatsvinden als een ontheffing is verleend.

3.6.3 Conclusie

Het aspect flora en fauna vormt geen belemmering voor de uitvoering van het plan.

3.7 Verkeer en parkeren

3.7.1 Verkeer

Als gevolg van de realisatie van vijf aaneengebouwde woningen en de transformatie van de kerk naar maximaal acht wooneenheden, zal het aantal verkeersbewegingen naar verwachting toenemen.

Voor wat betreft het te verwachten aantal verkeersbewegingen per woning is uitgegaan van de kengetallen van het CROW7. Hierbij is uitgegaan van de verstedelijkingsgraad 'weinig stedelijk', centrum. Voor de vijf aaneengebouwde woningen ('Koop, huis, tussen/hoek') geeft dit een gemiddelde verkeersaantrekkende werking van 36, uitgaande van 7,2 per woning. Voor de wooneenheden in de kerk ('koop, appartementen, midden') geeft dit, bij een worst case scenario, een verkeersaantrekkende werking van 46,4 uitgaande van 5,8 per woning. De totale extra verkeersaantrekkende werking als gevolg van de ontwikkeling bedraagt daarmee 82,4 verkeersbewegingen per dag.

De realisatie van het initiatief zal niet leiden tot een onevenredige toename van het aantal verkeersbewegingen in de omgeving van het plangebied. De Hoofdstraat heeft voldoende capaciteit om het aantal verkeersbewegingen te kunnen verwerken.

3.7.2 Parkeren

Het aantal benodigde parkeerplaatsen wordt bepaald door de aard en omvang van de activiteit waarin het plan voorziet. De toekomstige parkeerbehoefte is bepaald aan de hand van de eerder genoemde kengetallen van het CROW. Hierbij is uitgegaan van de verstedelijkingsgraad 'weinig stedelijk', centrum. Voor de geschakelde woningen ('Koop, huis, tussen/hoek') geeft dit een parkeerbehoefte van 10 (5 x 2,0). Hierbij wordt uitgegaan van deels (50%) parkeren op eigen terrein. Voor de appartementen ('koop, appartementen, midden') geeft dit een parkeerbehoefte van 11,2 (8 x 1,4). De totale parkeerbehoefte bedraagt daarmee 18,7 (8 x 1,4).

Op navolgende afbeelding is de toekomstige parkeersituatie in de toekomstige situatie weergegeven.

afbeelding "i_NL.IMRO.1955.bpsgkldwonhoofdst6-va01_0019.jpg"

Parkeersituatie toekomstige situatie

In het plangebied zijn reeds 3, te behouden, parkeerplaatsen aan de noordwestzijde van de kerk aanwezig. Aan de zuidzijde van het plangebied worden 15 nieuwe parkeerplaatsen gerealiseerd. Het totaal aantal parkeerplaatsen binnen het plangebied komt daarmee op 18. Verder wordt per geschakelde woning uitgegaan van 5 parkeerplaatsen (1 per woning). Met het plan blijven verder de 21 parkeerplaatsen aan de Hoofdstraat gehandhaafd. Deze parkeerplaatsen worden in de huidige situatie tevens gebruikt voor de huidige functie van het plangebied (kerk). Verder is aan de Hoofdstraat voldoende ruimte om het (incidentele) tekort aan parkeerplaatsen op te vangen. Er is daarmee aangetoond dat er in en aansluitend aan het plangebied voldoende ruimte is om te voorzien in de parkeerbehoefte.

3.7.3 Conclusie

Geconcludeerd kan worden dat vanuit het aspect verkeer en parkeren geen belemmeringen bestaan ten aanzien van de gewenste ontwikkelingen in het plangebied.

3.8 Economische haalbaarheid

Algemeen

In artikel 6.12 van de Wro is opgenomen dat een gemeenteraad een exploitatieplan vaststelt voor gronden waarop een bouwplan is voorgenomen. Uitzondering daarop vormt de situatie waarin het verhaal van kosten van de grondexploitatie anderszins is verzekerd.

De kosten die gepaard gaan met de bestemmingsplanherziening en de kosten voor ontwikkeling en inrichting van het plangebied zijn voor rekening van de initiatiefnemers. Door middel van een anterieure overeenkomst tussen de gemeente en initiatiefnemers is vastgelegd dat de gemeentelijke kosten, die verband houden met de ruimtelijke procedure en mogelijke planschade, op initiatiefnemer worden verhaald. Het vaststellen van een exploitatieplan is daarmee niet noodzakelijk. Naast een anterieure overeenkomst wordt er voor het behoud van de toren een stichting opgericht en is de gemeente bereid een instandhoudingssubsidie te verstrekken. Dit laatste verloopt via een apart besluitvormingsspoor dat los staat van de bestemmingsplanprocedure.

Hoofdstuk 4 Juridische planaspecten

4.1 Algemeen

4.1.1 Wat is een bestemmingsplan

Het gemeentelijke bestemmingsplan is een middel waarmee functies aan gronden worden toegekend. Het gaat dus om het toekennen van gebruiksmogelijkheden. Vanuit de Wet ruimtelijke ordening volgt een belangrijk principe: het gaat om toelatingsplanologie. Het wordt de grondgebruiker (eigenaar, huurder etc.) toegestaan om de functie die het bestemmingsplan geeft uit te oefenen. Dit houdt in dat:

  • 1. de grondgebruiker niet kan worden verplicht om een in het bestemmingsplan aangewezen bestemming ook daadwerkelijk te realiseren, en
  • 2. de grondgebruiker geen andere functie mag uitoefenen in strijd met de gegeven bestemming (het overgangsrecht is hierbij mede van belang).


Een afgeleide van de gebruiksregels in het bestemmingsplan zijn regels voor bebouwing (omgevingsvergunning voor het bouwen) en regels voor het verrichten van 'werken, geen bouwwerken zijnde, en werkzaamheden' (omgevingsvergunning ten behoeve van het uitvoeren van werken, geen bouwwerken zijnde, en werkzaamheden).


Een bestemmingsplan regelt derhalve het toegestane gebruik van gronden (en de bouwwerken en gebouwen) en een bestemmingsplan kan daarbij regels geven voor:

  • het bebouwen van de gronden;
  • het verrichten van werken, geen bouwwerken zijnde, en werkzaamheden (aanleggen).


Het bestemmingsplan is een belangrijk instrument voor het voeren van ruimtelijk beleid, maar het is zeker niet het enige instrument. Andere ruimtelijke wetten en regels zoals de Woningwet, de Erfgoedwet, de Algemene Plaatselijke Verordening, de Wet milieubeheer en de bouwverordening zijn ook erg belangrijk voor het uitoefenen van het ruimtelijke beleid.

4.1.2 Bestemmen, dubbelbestemmen en aanduiden

Op de verbeelding wordt aangegeven welke bestemming gronden hebben. Dit gebeurt via een bestemmingsvlak. Voor het op de verbeelding aangegeven bestemmingsvlak gelden de gebruiksmogelijkheden zoals die in de bijhorende regel worden gegeven. Die toegekende gebruiksmogelijkheden kunnen op twee manieren nader worden ingevuld:

  • Via een dubbelbestemming
    Een dubbelbestemming is, zoals de naam al zegt, een bestemming die óók aan de gronden wordt toegekend. Voor gronden kunnen dus meerdere bestemmingen gelden. Er geldt altijd één 'enkel' bestemming (dat is dé bestemming) en soms geldt er een dubbelbestemming (soms zelfs meerdere). In de regel van de dubbelbestemming wordt omschreven wat er voor de onderliggende gronden geldt aan extra bepalingen in aanvulling, of ter beperking, van de mogelijkheden van de onderliggende bestemmingen.
  • Via een aanduiding
    Een aanduiding is een teken op de verbeelding dat betrekking heeft op een vlak op die kaart. Via een aanduiding wordt in de regels 'iets' geregeld. Dat 'iets' kan betrekking hebben op extra mogelijkheden of extra beperkingen voor het gebruik en/of de bebouwing en/of het aanleggen van werken. Aanduidingen kunnen voorkomen in een bestemmingsregel, in meerdere bestemmingsregels en kunnen ook een eigen regel hebben.
4.1.3 Hoofdstukindeling van de regels


De regels zijn verdeeld over vier hoofdstukken:

  • 1. Inleidende regels
    In dit hoofdstuk worden begrippen verklaard die in de regels worden gebruikt (artikel 1). Dit gebeurt om een eenduidige uitleg en toepassing van de regels te waarborgen. Ook is bepaald de wijze waarop gemeten moet worden bij het toepassen van de regels (artikel 2).

  • 2. Bestemmingsregels
    In dit tweede hoofdstuk zijn de bepalingen van de bestemmingen opgenomen. Dit gebeurt in alfabetische volgorde. Per bestemming is het toegestane gebruik geregeld en zijn bouwregels en, eventueel, ook bepalingen met betrekking tot het uitvoeren van werken, geen bouwwerken zijnde, en werkzaamheden opgenomen. Als er dubbelbestemmingen zijn worden die ook in dit hoofdstuk opgenomen. Die komen, ook in alfabetische volgorde, achter de bestemmingsbepalingen.

    Ieder artikel kent een vaste opzet. Eerst wordt het toegestane gebruik geformuleerd in de bestemmingsomschrijving. Vervolgens zijn bouwregels opgenomen. Aansluitend volgen afwijkingsbevoegdheden met betrekking tot bouw- en/of gebruiksregels. Ten slotte zijn eventueel bepalingen met betrekking tot het uitvoeren van werken, geen bouwwerken zijnde, en werkzaamheden en/of wijzigingsbevoegdheden opgenomen.

    Belangrijk om te vermelden is dat naast de bestemmingsbepalingen ook in andere artikelen relevante informatie staat die mede gelezen en geïnterpreteerd moet worden. Alleen zo is een volledig beeld te verkrijgen van hetgeen is geregeld.

  • 3. Algemene regels
    In dit hoofdstuk zijn bepalingen opgenomen met een algemeen karakter. Ze gelden dus voor het hele plan. Het zijn achtereenvolgens een anti-dubbeltelregel, algemene gebruiksregels en algemene afwijkingsregels.

  • 4. Overgangs- en slotregels
    In het laatste hoofdstuk zijn respectievelijk het overgangsrecht en een slotregel opgenomen. Hoewel het hier in wezen ook algemene regels betreft, zijn deze vanwege hun meer bijzondere karakter in een apart hoofdstuk opgenomen.

4.2 Dit bestemmingsplan

Dit bestemmingsplan bestaat uit een verbeelding, regels en een toelichting. De verbeelding en de regels vormen tezamen het juridisch bindende gedeelte van het bestemmingsplan. Beide planonderdelen dienen in onderlinge samenhang te worden bezien en toegepast. Op de verbeelding zijn de bestemmingen aangewezen. Aan deze bestemmingen zijn bouwregels en regels betreffende het gebruik gekoppeld.


De toelichting heeft geen rechtskracht, maar vormt niettemin een belangrijk onderdeel van het plan. De toelichting van dit bestemmingsplan geeft een weergave van de beweegredenen, de onderzoeksresultaten en de beleidsuitgangspunten die aan het bestemmingsplan ten grondslag liggen. Tot slot is de toelichting van wezenlijk belang voor een juiste interpretatie en toepassing van het bestemmingsplan.

4.2.1 Bijzonderheden in dit bestemmingsplan

In dit bestemmingsplan zijn de bestemmingen 'Tuin', 'Verkeer - Verblijfsgebied', 'Wonen' en de dubbelbestemming 'Waarde - Archeologie' opgenomen.

Gemengd

Omdat op voorhand nog niet duidelijk is of in de bestaande kerk appartementen of woningen worden gerealiseerd, is er voor gekozen de bestaande bestemming te handhaven. Op de verbeelding is een 'wetgevingszone - wijzigingsgebied' opgenomen en ter plaatse kan het college van burgemeester en wethouders de besteming wijzigen naar de bestemming wonen. Aan deze wijzigingsbevoegdheid zijn voorwaarden gesteld.

Tuin

De gronden aan de voorzijde van de nieuw te bouwen aaneengebouwde woningen alsmede de gronden aan weerszijden van de kerk zijn bestemd als ' Tuin'.

Op en in de gronden van deze bestemming mogen, onder voorwaarden, uitsluitend erkers en ingangspartijen aan een woning en bij de bestemming behorende overige bouwwerken, zoals erf- of perceelafscheidingen en tuinmeubilair, niet zijnde carports en overkappingen worden gebouwd.

In de bouwregels van deze bestemming zijn de maatvoeringseisen voor de bouw van de toegestane bouwwerken opgenomen.

Verkeer - Verblijfsgebied

De nieuwe parkeerplaats aan de Hoofdstraat is bestemd als 'Verkeer - Verblijfsgebied'. De voor deze bestemming aangewezen gronden zijn bestemd voor wegen, pleinen en straten, wandel- en fietspaden met een functie voornamelijk gericht op verblijf, markten, parkeer-, groen-, water- en speelvoorzieningen, waterhuishoudkundige doeleinden, waterberging en waterlopen, abri's, esthetische kunstwerken en overige bouwwerken waaronder ook begrepen zitelementen, podiums en bankjes.


Binnen deze bestemming mogen geen gebouwen worden gebouwd. Overige bouwwerken zijn, onder voorwaarden, wel toegestaan.

Wonen

De gronden ter plaatse van de kerk en de vijf nieuw te realiseren aaneengebouwde woningen zijn bestemd als 'Wonen'. Hiermee zijn de gronden bestemd voor woningen, beroepen aan huis, tuinen en erven.

Ter plaatse van de dagkapel aan de voorzijde van de kerk is een functieaanduiding 'religie' opgenomen. De huidige dagkapel zal in eerste instantie in gebruik worden genomen als kapel/gebedsruimte. Later zal deze in gebruik worden genomen ten behoeve van de woonfunctie.

Van de gebouwen binnen deze bestemming mag, onder voorwaarden, 30% van de vloeroppervlakte tot een maximum van 50 m2 gebruikt worden voor een beroep aan huis.

Binnen de bestemming mogen woningen, aan- of uitbouwen, bijgebouwen, overkappingen en overige bouwwerken, zoals erf- of perceelafscheidingen en tuinmeubilair worden gebouwd. Binnen de bestemming is één bouwvlak opgenomen, ter plaatse van de nieuwe aaneengebouwde woningen. De woningen moeten binnen het bouwvlak worden gebouwd en binnen het vlak zijn vijf woningen toegestaan. De maximale bouwhoogte van de nieuwe woningen bedraagt respectievelijk 4 m.

Bijbehorende bouwwerken (bijvoorbeeld bijgebouwen) en overige bouwwerken (bouwwerken, geen gebouw zijnde) zijn, onder voorwaarden, ook toegestaan. De maatvoeringseisen van deze bouwwerken zijn opgenomen in de bouwregels.

In de regels van de bestemming is een afwijkingsbevoegdheid opgenomen ten behoeve van het toestaan van een bedrijf aan huis. Voor de afwijkingen gelden aanvullende voorwaarden voordat deze kan worden verleend.

Waarde - Archeologie

De gronden in het plangebied zijn tevens bestemd als Waarde - Archeologie. De gronden zijn daarmee mede bestemd voor het behoud en de bescherming van de archeologische waarden in de bodem.

4.2.2 Algemene regels

Specifieke bouwaanduiding - monument

Ter plaatse van de kerk is een 'specifieke bouwaanduiding - monument' opgenomen ter behoud en/of herstel van de cultuurhistorische en/of monumentale waarden van deze bebouwing. Dit is geregeld in de algemene bouwregels.

Voorwaardelijke verplichting

In de algemene gebruiksregels (10.4) is opgenomen dat de activiteiten in het plangebied niet eerder mogen plaatsvinden dan nadat uit onderzoek is gebleken dat bij de realisatie van de plannen geen nadelige effecten op beschermde plant- en diersoorten ontstaan. Als uit het nader onderzoek blijkt dat overtreding van de Wet natuurbescherming niet kan worden voorkomen, dan mogen de activiteiten alleen plaatsvinden als een ontheffing van de wet is verleend.

Overige bepalingen

Naast de bestemmingen en de genoemde algemene aanduidingsregels en gebruiksregels bevat het plan een aantal algemene regels over bijvoorbeeld begrippen, de wijze van meten, algemene afwijkingen en overgangsrecht. Deze min of meer standaardregels in bestemmingsplannen worden hier verder niet toegelicht.

Hoofdstuk 5 Procedure

Zienswijze

Het ontwerpbestemmingsplan heeft vanaf 2 juni 2021 gedurende zes weken ter inzage gelegen. Gedurende deze termijn is een ieder in de gelegenheid gesteld zienswijzen kenbaar te maken aan de gemeenteraad. Ten aanzien van het ontwerpbestemmingsplan zijn binnen de daarvoor gestelde termijn vier zienswijzen naar voren gebracht.

De zienswijzen zijn beantwoord door de gemeente en de nota hiervan is als bijlage bij dit plan opgenomen (Bijlage 7). De zienswijzen hebben niet geresulteerd in aanpassingen aan het plan.

Ambtshalve wijziging

Naast de aanpassingen aan het ontwerpbestemmingsplan in het kader van zienswijzen is het plan ook ambtshalve gewijzigd. De mogelijkheid van een tweede bouwlaag op de woningen in de voormalige pastorietuin is uit het bestemmingsplan gehaald. Dit brengt met zich dat artikel 6.4.1 van de regels van het ontwerpbestemmingsplan is komen te vervallen. Als gevolg hiervan is tevens de laatste alinea onder het kopje Wonen van paragraaf 4.2.1 van de toelichting verwijderd.

Amendement

Bij de vaststelling van het bestemmingsplan is een amendement aangenomen. Dit heeft geresulteerd in een gewijzigde vaststelling. Dit amendement is bijgevoegd aan het Vaststellingsbesluit. Dit heeft geresulteerd in het bijvoegen van de volgende tekst aan paragraaf 2.2.2 van de toelichting: "Voor de woningen en/of appartementen in de kerk wordt geopteerd voor het bouwen van betaalbare woningen, mede geschikt voor een starterslening. Bij Raadsbesluit Starterslening augustus 2020 was dit € 225.000. Omgerekend naar het prijspeil van september 2021 is dit ca. € 250.000."