direct naar inhoud van Toelichting
Plan: Verzamel bestemmingsplan - 2018 I
Status: vastgesteld
Plantype: bestemmingsplan
IMRO-idn: NL.IMRO.1952.bpmigverzamel2018I-va01

Toelichting

Hoofdstuk 1 Inleiding

1.1 Aanleiding opstellen verzamelbestemmingsplan

Per 1 januari 2018 zijn de voormalige gemeenten Hoogezand-Sappemeer, Slochteren en Menterwolde samengegaan tot de nieuwe gemeente Midden-Groningen. De gemeente Midden-Groningen gaat werken met het instrument 'verzamelbestemmingsplannen'.

Een verzamelbestemmingsplan is een bestemmingsplan waarbij diverse particuliere verzoeken en ambtelijke aanpassingen in één bestemmingsplanprocedure worden meegenomen. Het gaat hierbij om niet-controversiële verzoeken die in strijd zijn met het geldende bestemmingsplan, ambtelijke aanpassingen en/of verwerking van verleende vergunningen.

Het toepassen van het instrument verzamelbestemmingsplannen heeft een aantal voordelen. Ten eerste hoeft maar één bestemmingsplanprocedure gevoerd te worden, in plaats van voor ieder verzoek en/of ambtelijke wijziging een aparte procedure. Hierdoor kan er efficiënter gewerkt worden en kan het werk beter ingepland worden. Ten tweede kan door samenvoeging van diverse verzoeken en ambtelijke aanpassingen op procedurekosten worden bespaard. Initiatiefnemers betalen hierdoor minder leges.

Met voorliggend verzamelbestemmingsplan worden een aantal (kleine) ambtshalve wijzigingen/correcties doorgevoerd. Ook wordt er 1 particulier verzoek meegenomen.

1.2 Locaties in verzamelbestemmingsplan

Het plangebied bestaat uit diverse losse percelen in de gemeente Midden-Groningen. De verschillende percelen worden ieder apart weergegeven op de verbeelding.

afbeelding "i_NL.IMRO.1952.bpmigverzamel2018I-va01_0001.png"
Figuur 1. Overzichtskaart

  • 1. Oudeweg 113A - Siddeburen 
    In 2017 is een vergunning verleend voor de bouw van een kapschuur bij de bedrijvigheden aan de Oudeweg 113A. Deze kapschuur ligt deels buiten het bouwvlak. Het bouwvlak wordt aangepast, zodat de kapschuur binnen het bouwvlak komt te liggen. Tevens wordt het bebouwingspercentage van het bouwvlak gehaald.
  • 2. Oudeweg 186 - Siddeburen
    In 2006 is na een calamiteit (opnieuw) een vergunning verleend voor een woonhuis met werkplaats en showroom voor motoren aan de Oudeweg 186 in Siddeburen. Op het perceel is een boerderij aanwezig waar naast een woning ook een motorzaak aanwezig is. Het gaat hierbij om kleinschalige detailhandel in motoren en motoronderdelen en reparatie. De eerdere verleende vrijstelling is per abuis niet opgenomen in het huidige bestemmingsplan. Met dit verzamelplan wordt dit gerepareerd. Op basis van de eerder verleende vergunning krijgt het perceel de bestemming 'Gemengd-2'.
  • 3. Hamweg/Buitenbaan - Lageland (ijsbaangebouw)
    Het gebouwtje aan de Hamweg/Lagelaan is tijdelijk vergund voor de ijsbaan, maar is binnen de bestemming 'Recreatie' niet toegestaan. Met dit verzamelbestemmingsplan worden de gronden voorzien van de juiste bestemming en bouwvlak en wordt het bestaande gebouw juridisch-planologisch definitief mogelijk gemaakt.
  • 4. Hoofdweg 13-15 - Harkstede
    In 2015 is een bestemmingsplan voor deze locatie vastgesteld. In dit plan zijn drie bouwvlakken opgenomen waar in totaal 17 woningen mogen worden gebouwd. Binnen het bouwvlak dat ligt aan de Hoofdweg zijn maximum 3 woningen toegestaan. Inmiddels zijn de bouwplannen gewijzigd en passen deze niet meer binnen de bestaande bouwvlakken. Daarnaast wordt één extra woning toegevoegd. Met voorliggend verzamelplan wordt het bouwvlak aan de Hoofdweg gesplitst in twee bouwvlakken ten behoeve van in totaal vier woningen.
  • 5. Hoofdweg 21 - Scharmer
    Ter plaatse van de Hoofdweg 21 wordt een buskeerlus met wc en abri door het OV-bureau van de provincie aangelegd. Binnen de huidige bestemming 'Agrarisch' is dit niet toegestaan. De bestemming wordt met dit verzamelplan gewijzigd in 'Verkeer-Verblijfsgebied'.
  • 6. Rijksweg Oost 113 - Sappemeer
    In het bestemmingsplan Buitengebied uit 2010 en de partiële herziening in 2014 is verzuimd een agrarisch bouwvlak op te nemen aan de Rijksweg Oost 113 ter plaatse van de agrarische activiteiten. Daarnaast zijn ook de zorgactiviteiten niet in een aanduiding opgenomen. Dit wordt nu gerepareerd.
  • 7. Meerweg 56B - Kropswolde (kanogebouw)
    Aan de Meerweg 56B is de kanoclub gevestigd. De kanovereniging heeft concrete plannen voor uitbreiding van het clubgebouw. Bij de vaststelling van het bestemmingsplan 'Woongebieden' heeft de gemeente deze uitbreiding per abuis niet meegenomen. Met voorliggend verzamelbestemmingsplan wordt dit gerepareerd en wordt het bouwvlak aangepast.

1.3 Geldende bestemmingsplannen

Voor het verzamelplan 2018 I zijn diverse bestemmingsplannen relevant. Hieronder is per locatie aangegeven welk bestemmingsplan van toepassing is. In hoofdstuk 2 worden deze bestemmingsplannen en de verschillende locaties beschreven.

  • 1. Oudeweg 113A - Siddeburen

Bestemmingsplan 'Verzamelplan Gemeente Slochteren 2014', vastgesteld op 18 december 2014.

  • 2. Oudeweg 186 - Siddeburen

Bestemmingsplan 'Buitengebied 2012', vastgesteld op 4 april 2013.

  • 3. Hamweg/Buitenbaan - Lageland (ijsbaangebouw)

Bestemmingsplan 'Meerstad-Midden, partiële herziening 2015', vastgesteld op 2 juli 2015.

  • 4. Hoofdweg 13-15 - Harkstede

Bestemmingsplan 'Harkstede, Hoofdweg 13-15', vastgesteld op 17 december 2015.

  • 5. Hoofdweg 21 - Scharmer

Bestemmingsplan 'Harkstede - Scharmer', vastgesteld op 7 juli 2012.

  • 6. Rijksweg Oost 113 - Sappemeer

Bestemmingsplan 'Buitengebied, partiële herziening diverse percelen', partiële herziening, diverse percelen, vastgesteld op 27 mei 2013.

  • 7. Meerweg 56B - Kropswolde (kanogebouw) 

Bestemmingsplan 'Woongebieden', vastgesteld op 10 juni 2013.

1.4 Leeswijzer

Na deze inleiding worden in hoofdstuk 2 de verschillende percelen in het plangebied beschreven. Per perceel wordt de huidige- en de nieuwe situatie beschreven en aangegeven welke onderzoeken relevant zijn. In hoofdstuk 3 zijn de beleidskaders beschreven die het toetsingskader zijn voor de verschillende percelen. De onderzoeken die ten grondslag liggen aan het plan worden in hoofdstuk 4 toegelicht. Hoofdstuk 5 bevat de juridische toelichting op het bestemmingsplan. De hoofdstukken 6 en 7 beschrijven tot slot de financiële consequenties en de uitvoerbaarheid van het plan.

Hoofdstuk 2 Planbeschrijving

In dit hoofdstuk wordt ingegaan op de verschillende locaties/ontwikkelingen in het plangebied.

2.1 Oudeweg 113A - Siddeburen

2.1.1 Bestaande situatie

De Oudeweg 113A is een bedrijfsperceel aan de rand van het bedrijventerrein Kalverkampen in Siddeburen. Het perceel wordt ontsloten via twee eigen ontsluitingen op de Oudeweg. Het gehele bedrijventerrein wordt omsloten door een brede sloot. Aan de andere zijde van de sloot bevindt zich een groot bosperceel.

Het plangebied bestaat uit het perceel dat kadastraal bekend is als: voormalig gemeente Slochteren, sectie T, nummer 1162. Op de volgende afbeelding is het plangebied met rood aangegeven.

afbeelding "i_NL.IMRO.1952.bpmigverzamel2018I-va01_0002.png" Figuur 2. Weergave huidige situatie plangebied Oudeweg 113A.

2.1.1.1 Bestemmingsplan 'Verzamelplan Gemeente Slochteren 2014'

In het plangebied is het bestemmingsplan 'Verzamelplan 2014' van toepassing. De gronden zijn hierin bestemd voor 'Bedrijf' en hebben een bijpassend bouwvlak. Tevens geldt een maximaal bebouwingspercentage van 35%. Binnen de bestemming 'Bedrijf' zijn bedrijven in de categorie 1, 2 en 3.1 toegestaan. Gebouwen en overkappingen mogen alleen binnen het bouwvlak worden gebouwd. Aan de zuidzijde van het perceel ligt de aanduiding 'geluidszone - weg'.

afbeelding "i_NL.IMRO.1952.bpmigverzamel2018I-va01_0003.png" Figuur 3. Uitsnede bestemmingsplan

2.1.2 Nieuwe situatie

Op het perceel is een bedrijf gevestigd voor de aanleg en onderhoud van groen en terrein. In 2017 is een vergunning verleend voor de bouw van een kapschuur en het plaatsen van een keerwand. Een deel van deze kapschuur, circa 140 m2 past niet binnen het huidige bouwvlak. De kapschuur wordt gebruikt als stalling voor landbouwmachines en als opslag voor overige materialen. Daarmee wordt een nette uitstraling van het perceel bewerkstelligd.

In de nieuwe situatie blijft de huidige bedrijvigheid bestaan. Om de reeds vergunde bebouwing ook planologisch mogelijk te maken wordt het bouwvlak vergroot met 140 m2 aan de zuidzijde van het perceel.

Tevens wordt op verzoek van de eigenaar het bebouwingspercentage van het bouwvlak gehaald. Dit past ruimtelijk gezien prima binnen de intentie en de uitstraling van het bedrijventerrein. De andere bouwvlakken hebben ook geen beperkende bebouwingspercentage.

2.1.3 Relevante onderzoeken

Voor deze ontwikkeling zijn de volgende onderzoeken van toepassing:

Bedrijven en milieuzonering (4.2.2.1), Bodem (4.6.2.1) en Ecologie (4.8.2.1).

2.2 Oudeweg 186 - Siddeburen

2.2.1 Bestaande situatie

Het perceel aan de Oudeweg 186 ligt aan de doorgaande weg tussen Siddeburen en Wagenborgen. In 2006 is na een calamiteit (opnieuw) een vergunning verleend voor een woonhuis met werkplaats en showroom voor motoren. Op het perceel is een boerderij aanwezig waar naast een woning kleinschalige detailhandel in motoren en dito onderdelen plaatsvindt.

Het plangebied bestaat uit het perceel dat kadastraal bekend is als: voormalig gemeente Slochteren, sectie T, nummer 1224. Op de volgende afbeelding is het plangebied met rood aangegeven.

afbeelding "i_NL.IMRO.1952.bpmigverzamel2018I-va01_0004.png" Figuur 4. Weergave huidige situatie plangebied.

2.2.1.1 Bestemmingsplan 'Buitengebied 2012'

Het perceel is opgenomen in het geldende bestemmingsplan 'Buitengebied 2012'. De gronden hebben hierin de bestemming 'Wonen' met bijbehorend bouwvlak. Naast wonen zijn aan huis-verbonden-beroepen in het hoofdgebouw toegestaan. Aan de voorzijde van het perceel ligt de aanduiding 'geluidzone - industrie' en de 'veiligheidszone - vervoer gevaarlijke stoffen'.

afbeelding "i_NL.IMRO.1952.bpmigverzamel2018I-va01_0005.png" Figuur 5. Uitsnede bestemmingsplan

2.2.2 Nieuwe situatie

Op het perceel staat een boerderij waarin naast een woning kleinschalige detailhandel in de vorm van een motorzaak aanwezig is. Dit gaat zowel om reparatie als verkoop. Hoewel deze activiteiten al geruime tijd aanwezig zijn, zijn de gronden in het bestemmingsplan Buitengebied 2012 bestemd als 'Wonen'. Binnen deze bestemming is detailhandel niet toegestaan. Door middel van het opnemen van de enkelbestemming 'Gemengd - 2' wordt met dit verzamelbestemmingsplan alsnog het juiste juridische kader geboden.

2.2.3 Relevante onderzoeken

Voor deze ontwikkeling zijn de volgende onderzoeken van toepassing:

Bedrijven en milieuzonering (4.2.2.2), Bodem (4.6.2.2) en Geluid (4.9.2.1).

2.3 Hamweg/Buitenbaan - Lageland (ijsbaangebouw)

2.3.1 Bestaande situatie

Het perceel aan de Hamweg maakt onderdeel uit van de buurtschap Lageland. Het ligt ten noorden van Harkstede aan het Slochterdiep. Lageland ligt in het gebied dat bestemd is voor de ontwikkeling van Meerstad. Aan de oostzijde van het plangebied zijn inmiddels enkele woningen gebouwd.

De gronden direct naast het plangebied zijn in de huidige situatie in gebruik als natuurijsbaan. In het plangebied is een unit aanwezig dat door het waterschap en Arcadis gebruikt is voor het project Slochterdiep en omgeving. Inmiddels zijn deze werkzaamheden afgerond en wordt de unit niet langer gebruikt door het waterschap en Arcadis.

Het plangebied bestaat uit het perceel dat kadastraal bekend is: voormalig gemeente Slochteren, sectie V, perceelnummer 171. Op de volgende afbeelding is het plangebied met rood aangegeven.

afbeelding "i_NL.IMRO.1952.bpmigverzamel2018I-va01_0006.png" Figuur 6. Weergave plangebied Hamweg 4 te Lageland.

2.3.1.1 Bestemmingsplan 'Meerstad-Midden, partiële herziening 2015'

Het plangebied ligt in het bestemmingsplan Meerstad-Midden, partiële herziening 2015. Deze partiële herziening heeft enkele wijzigingen aangebracht in het bestemmingsplan Meerstad-Midden, maar houdt dit bestemmingsplan verder gewoon in stand. Naast deze partiële herziening is het moederbestemmingsplan dus ook nog van kracht. Hierbinnen heeft het plangebied de bestemming 'Recreatieve doeleinden(IJ)'. Hiermee zijn de gronden specifiek bestemd voor het gebruik ten behoeve van een ijsbaan. Gebouwen zijn binnen deze bestemming niet toegestaan.

afbeelding "i_NL.IMRO.1952.bpmigverzamel2018I-va01_0007.png"
Figuur 7. Uitsnede bestemmingsplan

2.3.2 Nieuwe situatie

De werkzaamheden van het project 'Slochterdiep en omgeving' zijn afgerond. De bestaande unit wordt dan ook niet langer gebruikt door het waterschap en Arcadis. De naastgelegen ijsvereniging heeft de wens om het gebouw in stand te houden en te gebruiken als kleedruimte, kantine en vergaderruimte. Hiervoor wordt met voorliggend verzamelplan het juiste juridische kader geboden en wordt het plangebied voorzien van de bestemming 'Recreatie - 2' met bouwvlak.

2.3.3 Relevante onderzoeken

Voor deze ontwikkeling zijn de volgende onderzoeken van toepassing:

Bedrijven en milieuzonering (4.2.2.3), Externe veiligheid (4.3.2.2), Geluid (4.9.2.2) en Archeologie (4.10.2.1).

2.4 Hoofdweg 13-15 - Harkstede

2.4.1 Huidige situatie

De percelen aan de Hoofdweg 13 en 15 liggen in het centrale dorpsdeel van Harkstede. Voorheen was hier de discotheek 2Brothers (voormalig Skopje) en boerderij Tepper gevestigd. De beide bedrijfsgebouwen hebben hun functie verloren en zijn kort na elkaar volledig door brand verwoest. Met als gevolg een gehavende plek in het hart van het dorp. In de structuurvisie Harkstede 2022 (2014) wordt aanheling zeer wenselijk geacht, bij voorkeur door middel van woningbouw om ook de volkshuisvestelijke doelstellingen te kunnen bereiken.

Eigenaar en projectontwikkelaar Bun heeft op basis van die uitgangspunten een stedenbouw plan bedacht; een erf-gebonden oplossing met het nieuwe boerderij-wonen als inspiratie. De eenheden worden ondergebracht in een samenhangende gebouwenensemble van schuur, stal en boerderij. Om deze ontwikkeling mogelijk te maken is in 2015 is een nieuw bestemmingsplan voor deze locatie vastgesteld. In dit plan zijn drie bouwvlakken opgenomen waar in totaal 17 woningen mogen worden gebouwd.

Op de volgende afbeelding is het plangebied met rood aangegeven.

afbeelding "i_NL.IMRO.1952.bpmigverzamel2018I-va01_0008.png" Figuur 8. Weergave huidige situatie.

2.4.1.1 Bestemmingsplan 'Harkstede, Hoofdweg 13-15'

In het geldend bestemmingsplan 'Harkstede, Hoofdweg 13-15', zijn de gronden bestemd voor 'Woongebied'. Hierbinnen zijn 3 bouwvlakken opgenomen, waar in totaal 17 woningen gebouwd mogen worden. Binnen het bouwvlak dat ligt aan de Hoofdweg zijn maximum 3 woningen toegestaan. Daarnaast zijn diverse milieuzones in het plangebied van toepassing. Het gehele plangebied ligt in een vrijwaringszone - molenbiotoop. Hierbinnen is geen hoge bebouwing of beplanting toegestaan die het zicht en de windvang op de molen belemmerd. Zowel de zuid- als noordzijde van het plangebied is voorzien van een strook met de aanduiding milieuzone - geluidsgevoelige functie vanwege de naastgelegen bedrijvigheid. Aan de wegzijde van het perceel ligt een aanduiding 'wetgevingzone - afwijkingsbevoegdheid dh' in deze gedeelten in het lint kan kleinschalige detailhandel bij woningen worden toegestaan. Tenslotte geldt aan de wegzijde de geluidzone - weg ten behoeve van de geluidbelasting van de nabijgelegen weg.

afbeelding "i_NL.IMRO.1952.bpmigverzamel2018I-va01_0009.png" Figuur 9. Uitsnede huidig bestemmingsplan. 

2.4.2 Nieuwe situatie

De bouwplannen uit 2015 zijn gewijzigd en passen niet meer binnen de bestaande bouwvlakken. Een aanpassing van het stedenbouwkundig plan en het bestemmingsplan is dan ook gewenst. Deze aanpassing is feite een verdere evoluering. In het voorliggend plan worden langs de Hoofdweg nu twee gebouwen (2 x 2^1 kappers) voorzien. Het ene gebouw vormt nu nog nadrukkelijker de boerderijwoning; kloeker en voornamer vormgegeven, en met een meer teruggetrokken positie op het erf. Het andere gebouw – veel kleiner, dichter op de weg geplaatst en veel ingetogener van vormgeving – wordt daarmee in feite buiten het erfconcept geplaatst. Dit uitgeplaatst gebouw voegt zich prima in het heersende bebouwingsritme van het lint.

afbeelding "i_NL.IMRO.1952.bpmigverzamel2018I-va01_0010.png"

Figuur 10. Weergave nieuwe situatie

Het initiatief oogst waardering in de commissie van Libau. Daarnaast meldt Regio Groningen-Assen dat toevoeging van een eenheid op deze plek binnen de volkshuisvestelijke afspraken te legitimeren is.

Met het nieuwe stedenbouwkundig plan komen aan de wegzijde 4 woningen en twee separate bouwvlakken. Met voorliggend verzamelbestemmingsplan wordt het huidige bouwvlak en maximum aantal woningen aangepast naar de nieuwe plannen.

2.4.3 Relevante onderzoeken

Voor deze ontwikkeling zijn de volgende onderzoeken van toepassing:

Milieuhinder (4.2.2.4), Bodem (4.6.2.3), Ecologie (4.8.2.2), Geluid (4.9.2.3) en Cultuurhistorie (4.11.2.1).

2.5 Hoofdweg 21 - Scharmer

2.5.1 Bestaande situatie

Tot een paar jaar terug was op perceel Hoofdweg 21 een agrarisch bedrijf gevestigd. Brand heeft ervoor gezorgd dat een deel van de behuizing (woondeel) en erfbeplanting (beuk) verloren is gegaan. Door grondaankoop van de provincie Groningen kon een langdurig vervallen aanblik worden voorkomen. Het voorhuis en een schuur zijn inmiddels gesloopt. Een nog resterende schuur en de omliggende landerijen zijn doorverkocht aan de boerende buurman op perceel Hoofdweg 25. De landerijen en de resterende schuur worden daarmee onderdeel van het perceel en bebouwingsensemble Hoofdweg 25.

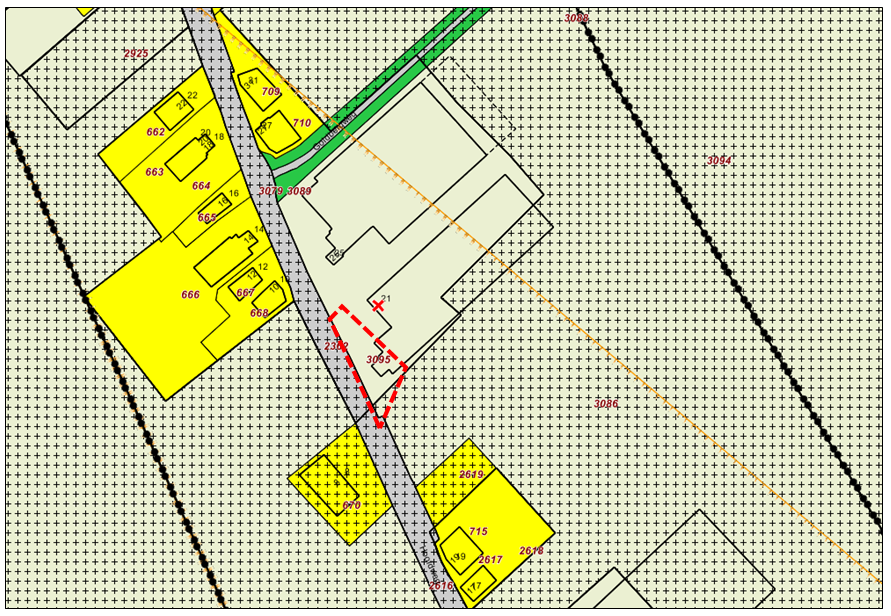
Het perceel ligt aan het lint van Scharmer en is omgeven door agrarische bedrijvigheid en een open agrarisch landschap. De gronden zijn kadastraal bekend, voormalig gemeente Slochteren, sectie U, perceelnummer 3095.

afbeelding "i_NL.IMRO.1952.bpmigverzamel2018I-va01_0011.png" Figuur 11. Huidige situatie plangebied.

2.5.1.1 Bestemmingsplan 'Harkstede - Scharmer'

In het plangebied geldt het bestemmingsplan 'Harkstede - Scharmer' (2012). De gronden zijn bestemd voor agrarische doeleinden en hebben een bijpassend bouwvlak. Daarnaast ligt op het overgrote deel van de gronden een aanduiding ' geluidszone - weg'. Op een deel van de gronden is de dubbelbestemming 'Waarde - Archeologie 3' van toepassing.

afbeelding "i_NL.IMRO.1952.bpmigverzamel2018I-va01_0012.png" Figuur 12. Uitsnede geldend bestemmingsplan.

2.5.2 Nieuwe situatie

Het OV-bureau Groningen-Drenthe heeft met de komst van P+R en stadswijk Meerstad kansen gezien voor een verdere optimalisering van het openbaar vervoer over het lintdorpenlandschap Duurswold. Door Qlink lijn 5 vanuit de stad Groningen in een halfuursdienst via Meerstad door te trekken naar Scharmer, kunnen alle ov-bewegingen van en naar Siddeburen plaatsvinden via Q-link 178 via Kolham/A7. Voor reizigers in het oostelijk lintdeel betekent dat een reistijdreductie van een kwartier. Reizigers in het westelijk lintdeel kunnen elk half uur van en naar de stad in plaats van één keer per uur. Deze nieuwe route vraagt ruimte voor een voorziening waar Q-link lijn 5 kan keren en halteren. Die voorziening is gedacht ter hoogte van Hoofdweg 21 te Scharmer.

De keuze voor Hoofdweg 21 is gebaseerd op rijdtijdencalculatie, alsmede op beschikbaarheid en ruimtelijke inpassingsmogelijkheden. Door de sloop van gebouwen en verkoop van schuur en landerijen aan de buurman op nummer 25 is aan de wegzijde ruimte ontstaan om een deel van het perceel aan Hoofdweg 21 af te splitsen ten behoeve van een kleine uitbuiging van de wegstructuur.

In de nieuwe situatie wordt het plangebied ingericht als locatie waar de bus kan keren en halteren. Het terrein wordt daarbij voorzien van sanitaire voorzieningen voor de buschauffeurs. Het aanwezige fietspad buigt in de nieuwe situatie om de voorzieningen heen om verkeersonveilige situatie te voorkomen. De exacte inrichting voor de voorziening is nog onbekend. De afgesplitste ruimte wordt toereikend geacht om het keren en halteren van Q-link lijn 5 op ontspannende wijze te kunnen laten inpassen.

Hieronder een weergave van de oude en indiciatieve nieuwe situatie.

afbeelding "i_NL.IMRO.1952.bpmigverzamel2018I-va01_0013.png" Figuur 13. Nieuwe situatie Hoofdweg 21, Scharmer.

2.5.3 Relevante onderzoeken

Voor deze ontwikkeling zijn de volgende onderzoeken van toepassing:

Bedrijven en milieuzonering (4.2.2.5), Bodem (4.6.2.4), Luchtkwaliteit en geur (4.8.2.3) en Geluid (4.9.2.4).

2.6 Rijksweg Oost 113 - Sappemeer

2.6.1 Bestaande situatie

Rijksweg Oost 113 betreft een agrarisch tuinbouwperceel gelegen aan de parallelweg nabij de A7. De omliggende percelen zijn allen bestemd voor agrarisch doeleinden. Ter plaatse is agrarische tuinbouwbedrijvigheid met bijbehorende bedrijfswoning aanwezig. Daarnaast wordt een ondergeschikte zorgfunctie uitgeoefend op het perceel.

De gronden zijn kadastraal bekend voormalige gemeente Hoogezand-Sappemeer, sectie K, perceelnummer 318.

afbeelding "i_NL.IMRO.1952.bpmigverzamel2018I-va01_0014.png" Figuur 14. Weergave huidige situatie plangebied.

2.6.1.1 Bestemmingsplan 'Buitengebied, partiële herziening diverse percelen'

Het perceel is gelegen in het plangebied van het bestemmingsplan 'Buitengebied, partiële herziening diverse percelen'. De gronden hebben de bestemming 'Agrarisch - Tuinbouw' en zijn hiermee bestemd voor agrarisch tuinbouwbedrijven. De gronden zijn tevens voorzien van diverse aanduidingen. Ter plaatse van de huidige bebouwing ligt de aanduiding 'milieuzone - geur en geluidzone 50 m'. Op het gehele perceel ligt de aanduiding 'milieuzone - geur en geluidzone 100 m'. Aan de noordzijde van het perceel ligt de dubbelbestemming 'Waarde - Beschermd dorpsgezicht' en de aanduiding 'dorpsgebied'. In het midden van het plangebied is een agrarisch bouwvlak aanwezig. Ter plaatse van de bebouwing aan de voorzijde van het perceel zijn de gronden niet voorzien van een agrarisch bouwvlak. Ook de aanwezige zorgfunctie is strijdig met de huidige juridische kaders.

afbeelding "i_NL.IMRO.1952.bpmigverzamel2018I-va01_0015.png" Figuur 15. Uitsnede geldend bestemmingsplan

2.6.2 Nieuwe situatie

De nieuwe situatie is overeenkomstig de huidige situatie, feitelijk verandert er niets. In voorliggend verzamelplan worden dezelfde bestemmingen opgenomen zoals in het moederplan 'Buitengebied, herziening diverse percelen', maar worden de gronden aan de voorzijde van het perceel voorzien van een bouwvlak. Het bouwvlak op het midden van het perceel vervalt. De oppervlakte van het oude en nieuw bouwvlak is gelijk. Tevens wordt het nieuwe bouwvlak voorzien van een aanduiding 'maatschappelijk'.

2.6.3 Relevante onderzoeken

Voor deze ontwikkeling zijn de volgende onderzoeken van toepassing:

Externe veiligheid (4.3.2.3), Bodem (4.6.2.5), Archeologie (4.10.2.2) en Cultuurhistorie (4.11.2.2).

2.7 Meerweg 56B - Kropswolde (kanogebouw)

2.7.1 Huidige situatie

Aan de Meerweg 56B is de kanovereniging Futen gevestigd. Aan de oever van het Zuidlaardermeer staat het clubgebouw dat in gebruik is als lesruimte, omkleedruimte, vergaderlocatie, stallingslocatie en ontmoetingsplaats. Het plangebied wordt omgeven door diverse recreatieve voorzieningen.

afbeelding "i_NL.IMRO.1952.bpmigverzamel2018I-va01_0016.png" Figuur 16. Weergave plangebied

2.7.1.1 Bestemmingsplan 'Woongebieden'

Het clubgebouw zelf en de omgeving daarvan is bestemd voor 'Recreatie' in het bestemmingsplan 'Woongebieden' (06-10-2013) en heeft een bouwvlak. Het volgende figuur geeft het huidige bouwvlak weer. Binnen deze bestemming zijn verschillende functies toegestaan, waaronder dagrecreatie, verblijfsrecreatie, recreatie, en sport. Maar ook de bijbehorende voorzieningen zoals sanitair, horeca, en vergaderruimtes. Gebouwen zijn alleen toegestaan binnen een bouwvlak.

afbeelding "i_NL.IMRO.1952.bpmigverzamel2018I-va01_0017.png" Figuur 17. Uitsnede vigerend bestemmingsplan 'Woongebieden'(2013).

2.7.2 Nieuwe situatie

De kanovereniging groeit sterk waarbij de huidige clubgebouw niet meer toereikend is voor het aantal leden en het gebruik. Naast een grotere en betere accommodatie wenst de vereniging de mogelijkheid voor bijvoorbeeld een keuken, kantine en sanitair. De beoogde bouwplannen vallen buiten het huidige bouwvlak. Met voorliggend verzamelplan wordt het bouwvlak aangepast aan de nieuwe plannen. Het toekomstige gebruik is wel passend binnen de huidige juridische kaders.

Hieronder een weergave van de mogelijk nieuwe situatie.

afbeelding "i_NL.IMRO.1952.bpmigverzamel2018I-va01_0018.png" Figuur 18. Indicatieve weergave nieuwe situatie.

2.7.3 Relevante onderzoeken

Voor deze ontwikkeling zijn de volgende onderzoeken van toepassing:

Bedrijven en milieuzonering (4.2.2.7).

Hoofdstuk 3 Beleidskader

3.1 Rijksbeleid

3.1.1 Structuurvisie Infrastructuur en Ruimte

De Structuurvisie Infrastructuur en Ruimte (SVIR) geeft een integraal kader voor het ruimtelijk- en mobiliteitsbeleid op rijksniveau. De structuurvisie schetst de rijksambities tot 2040 en formuleert doelen, belangen en opgaven tot 2028.

De leidende gedachte in de SVIR is ruimte maken voor groei en beweging. De SVIR is de eerste rijksnota die de onderwerpen infrastructuur en ruimte integraal behandelt. In de SVIR richt het rijk zich vooral op decentralisatie. De verantwoordelijkheid wordt verplaatst van rijksniveau naar provinciaal en gemeentelijk niveau. Door urbanisatie, individualisering, vergrijzing en ontgroening nemen de ruimtelijke verschillen toe. Vanaf 2035 groeit de bevolking niet meer. De samenstelling van de bevolking, en daarmee de samenstelling van huishoudens, verandert. Ambities tot 2040 zijn onder andere het aansluiten van woon- en werklocaties op de (kwalitatieve) vraag en het zoveel mogelijk benutten van locaties voor transformatie en herstructurering.

Ook wil het Rijk ervoor zorgen dat in 2040 een veilige en gezonde leefomgeving met een goede milieukwaliteit wordt geboden. Dit moet voor zowel het landelijk als het stedelijk gebied gelden. In de SVIR is verder vastgelegd dat provincies en (samenwerkende) gemeenten verantwoordelijk zijn voor programmering van verstedelijking. (Samenwerkende) gemeenten zorgen voor (boven) lokale afstemming van woningbouwprogrammering die past binnen de provinciale kaders. Ook zijn de gemeenten verantwoordelijk voor de uitvoering van de woningbouwprogramma's. Ter versterking van het vestigingsklimaat in de stedelijke regio's rondom de main-, brain- en greenports geldt een gebiedsgerichte, programmatische urgentieaanpak. In krimpregio's wordt het interbestuurlijke programma bevolkingsdaling doorgezet.

Nationaal belang 13 van de SVIR van het Rijk vraagt om een zorgvuldige afweging en transparante besluitvorming bij alle ruimtelijke en infrastructurele besluiten. Dit moet met behulp van de zogeheten Ladder voor duurzame verstedelijking (hierna: de Ladder) worden onderbouwd. Deze onderbouwing is opgenomen in paragraaf 4.1 Ladder voor duurzame verstedelijking.

3.1.2 Besluit algemene regels ruimtelijke ordening

Het kabinet heeft in de hiervoor genoemde Structuurvisie Infrastructuur en Ruimte (SVIR) vastgesteld dat voor een aantal onderwerpen algemene regels moeten worden gesteld. Hiermee wordt de doorwerking van de nationale belangen op lokaal niveau geborgd. In het Besluit algemene regels ruimtelijke ordening (Barro) zijn de nationale belangen uit de SVIR voorzien van juridische kaders.

De volgende nationale belangen uit het Barro zijn van toepassing op de gemeente Midden-Groningen:

  • Waddenzee en waddengebied.
  • Hoofdwegen en landelijke spoorwegen.
  • Elektriciteitsvoorziening.
  • Buisleidingen van nationaal belang voor het vervoer van gevaarlijke stoffen.
  • Natuurnetwerk Nederland.
3.1.3 Conclusie

Het verzamelbestemmingsplan heeft geen betrekking op rijksbelangen. Het rijksbeleid werkt wel door in het beleid van lagere overheden. Het rijksbeleid werkt tevens door in de verschillende omgevingsaspecten die in dit bestemmingsplan zijn getoetst. Dit komt in de volgende paragrafen en Hoofdstuk 4 Onderzoeken aan de orde. In dit hoofdstuk wordt onder andere ingegaan op de 'Ladder voor duurzame verstedelijking'.

3.2 Provinciaal beleid

3.2.1 Provinciale Omgevingsvisie

De Omgevingsvisie 2016 - 2020 van de provincie Groningen bevat de integrale lange termijnvisie van de provincie op de fysieke leefomgeving. In de Omgevingsvisie zijn zoveel mogelijk de visies op verschillende terreinen zoals ruimtelijke ontwikkeling, landschap en cultureel erfgoed, natuur, verkeer en vervoer, water, milieu en gebruik van natuurlijke hulpbronnen samengevoegd en inhoudelijk met elkaar verbonden. Er zijn ook onderdelen opgenomen van het provinciale beleid voor economie, energie en cultuur en welzijn, voor zover die gevolgen hebben voor de fysieke leefomgeving.

Doel van de omgevingsvisie is het aantrekkelijke woon- en leefklimaat in de provincie verder verbeteren. Het accent in het beleid ligt op het benutten van de ontwikkelingsmogelijkheden, naast het beschermen van de karakteristieke bebouwde en onbebouwde elementen. De provincie wil ruimte bieden voor ondernemerschap om in te spelen op de dynamische ontwikkelingen. Activiteiten lopen steeds meer door elkaar heen. Dat heeft gevolgen voor het ruimtegebruik. Functies, als bijvoorbeeld wonen en werken, zijn steeds minder van elkaar gescheiden.

In de Omgevingsvisie is al het provinciale beleid dat op een of andere manier raakt aan de fysieke leefomgeving geformuleerd en geordend in vijf samenhangende thema's en elf provinciale 'belangen':

Ruimte

  • 1. Versterken van ruimtelijke kwaliteit bij nieuwe bovenlokale ontwikkelingen;
  • 2. Het creëren van een aantrekkelijk vestigingsklimaat voor woningbouw, bedrijventerreinen, kantoorlocaties en detailhandel door het concentreren van ruimtelijke ontwikkelingen in stedelijke gebieden en vitale kernen;
  • 3. Voorwaarden scheppen voor een goede infrastructuur ven ruimte voor veilige winning, transport en opslag van duurzame energie;
  • 4. Zorgen voor een vitale landbouwsector in balans met de omgeving.


Natuur en landschap

  • 5. Beschermen en versterken van de kenmerkende landschapsstructuren en het culturele erfgoed dat bijdraagt aan de identiteit en de variëteit van de diverse landschappen in onze provincie;
  • 6. Beschermen en ontwikkelen van de biodiversiteit, zowel binnen als buiten het Nationaal Natuurnetwerk Nederland.


Water

  • 7. Zorgen voor bescherming tegen wateroverlast en overstromingen
  • 8. Zorg dragen voor de beschikbaarheid van kwalitatief en voldoende schoon water


Mobiliteit

  • 9. Zorgen voor goede en veilige (inter)nationale, provinciale en regionale bereikbaarheid over weg, water, spoor, door de lucht en digitaal


Milieu

  • 10. Tegengaan van milieueffecten en -hinder door te sturen op de kwaliteit van water, lucht, geluid en bodem;
  • 11. Streven naar een zorgvuldig gebruik van de ondergrond en een veilige winning en opslag van (delf)stoffen

Naast de genoemde provinciale belangen worden er in het beleid 5 specifieke opgaven genoemd voor specifieke onderwerpen of gebieden. De 5 opgaven zijn:
Gaswinning, Energyport, Groei en krimp, Regio Groningen-Assen en Waddengebied. Met uitzondering van het laatste onderwerp zijn de andere 4 opgaven in meer of mindere mate relevant voor de gemeente Midden-Groningen.

3.2.2 Provinciale Omgevingsverordening

In de Omgevingsverordening Provincie Groningen 2016 (hierna Omgevingsverordening genoemd) heeft de provincie regels opgenomen om de doelstellingen aangegeven in de omgevingsvisie te realiseren. De Omgevingsverordening bevat dan ook regels voor de fysieke leefomgeving in de provincie Groningen. Deze regels richten zich op de thema's ruimtelijke ordening, water, infrastructuur, milieu en ontgrondingen.

De relevante bepalingen uit de Omgevingsverordening zijn integraal opgenomen in dit bestemmingsplan. Hieronder zijn de titels weergegeven die, al dan niet deels, betrekking op het onderhavig plangebied. Voor meer informatie over de inhoud van de titels wordt verwezen naar de Omgevingsverordening.

  • Titel 2.2 Zorg voor ruimtelijke kwaliteit
  • Titel 2.3 Bundeling van verstedelijking

3.2.3 Provinciaal buitengebied

In het provinciaal beleid wordt onderscheid gemaakt tussen stedelijk gebied en buitengebied. Binnen het stedelijk gebied laat de provincie veel ruimtelijke bevoegdheden over aan gemeenten. In het buitengebied ziet de provincie, in verband met taken op het gebied van onder meer natuur, water, landschap en erfgoed een grotere verantwoordelijkheid voor zichzelf.

In de provinciale omgevingsverordening is het provinciaal buitengebied vastgelegd. De volgende locaties vallen binnen het provinciaal buitengebied:

  • Oudeweg 186 - Siddeburen
  • Hoofdweg 21 - Scharmer
  • Rijksweg Oost 113 - Sappemeer
  • Meerweg 56B - Kropswolde (kanogebouw)

De overige locaties die in dit verzamelbestemmingsplan zijn opgenomen vallen onder het 'bebouwd gebied'.

Voor een uitgebreide planbeschrijving wordt verwezen naar Hoofdstuk 2. Samengevat geldt voor de Oudeweg 186 in Siddeburen en Rijksweg Oost 113 in Sappemeer dat de bestaande en vergunde situatie per abuis niet goed in de vigerende bestemmingsplannen is opgenomen. Dit wordt hersteld in dit verzamelbestemmingsplan. Verder biedt het verzamelplan de mogelijkheid om aan de Hoofdweg 21 in Scharmer een buskeerlus met wc en abri aan te leggen. Dit gebeurd op initiatief van het OV-bureau van de provincie. De grond is tevens door de provincie aangekocht. Aan de Meerweg 56B in Kropswolde is tot slot de geplande uitbreiding van het clubgebouw van de kanoclub per ongelijk niet in het geldende bestemmingsplan opgenomen. Ook dit wordt hersteld.

Rijksweg Oost 113
Aan de Rijksweg Oost 113 te Sappemeer is een agrarisch bedrijf aanwezig. Per abuis is in het geldende bestemmingsplan geen bijbehorend bouwvlak ter plaatse van de aanwezige bebouwing opgenomen. Op het middengedeelte van het perceel ligt wel een agrarisch bouwvlak.

In het voorontwerp bestemmingsplan is een agrarisch bouwvlak over de gehele oppervlakte van het perceel aan de Rijksweg Oost 113 opgenomen. Dit overeenkomstig de systematiek van omliggende agrarische percelen.

Met de wijziging zoals opgenomen in het voorontwerp bestemmingsplan wordt een agrarisch bouwperceel toegevoegd aan het provinciale buitengebied. De bebouwingsmogelijkheden zijn namelijk ruimer dan in het huidige planologische regime.

Naar aanleiding van de binnengekomen reactie van de provincie wordt in het ontwerp bestemmingsplan dit bouwvlak afgestemd op de bestaande situatie en niet langer op de systematiek van naastgelegen agrarische percelen.

Het huidige bouwvlak op het perceel heeft een oppervlakte van circa 5.000 m2 en is onbebouwd. Dit bouwvlak wordt verschoven naar de locatie aan de wegzijde waar wel bebouwing aanwezig is. De oppervlakte blijft hiermee gelijk. Er is hiermee geen sprake van nieuw agrarisch bouwperceel zoals bedoeld in de Omgevingsverordening maar van een technische en niet inhoudelijke aanpassing.

3.2.4 Conclusie

De relevante bepalingen uit de Omgevingsverordening zijn integraal opgenomen in dit verzamelbestemmingsplan. Het plan is in overeenstemming met het provinciale beleid uit de Omgevingsvisie en -verordening.

3.3 Regionaal beleid

De gemeente Midden-Groningen valt binnen twee woningmarkt regio's. De voormalige gemeenten Hoogezand-Sappemeer en Slochteren zijn deelnemer in de Regio Groningen-Assen. De voormalige gemeente Menterwolde is deelnemer in de Regio Oost-Groningen. Voor de gemeente Midden-Groningen wordt één gezamenlijke nieuwe Woonvisie opgesteld. In deze Woonvisie wordt onder andere vastgelegd hoe wordt omgegaan met de regionale afspraken uit de twee woningmarkt regio's. Totdat de nieuwe Woonvisie wordt vastgesteld blijft het beleid van en de gemaakte afspraken in de voormalige gemeenten van kracht.

Onderstaand wordt ingegaan op de Regiovisie Groningen-Assen 2030. Het beleid uit Oost-Groningen wordt niet besproken, omdat de locaties die zijn meegenomen in dit verzamelbestemmingsplan niet binnen deze regio liggen.

3.3.1 Regiovisie Groningen-Assen 2030

De provincies Groningen en Drenthe en elf gemeenten daaruit werken sinds 1996 samen in de Regio Groningen-Assen. Zij zien de noodzaak om gezamenlijk op te trekken in de ruimtelijke ontwikkeling. De provincies en gemeenten kijken daarbij over hun grenzen heen. Het uitgangspunt is dat de steden niet zonder de omliggende regio kunnen, maar de omliggende regio ook niet zonder de steden. De regio wordt beschouwd als was zij één gemeente. Het collectieve belang weegt zwaarder dan de belangen van de individuen.

De doelen van de ontwikkeling en samenwerking zijn neergelegd in de Regiovisie Groningen-Assen 2030 en in de daaraan gekoppelde uitvoeringsconvenant. Deze regiovisie is in 29 november 2004 vastgesteld. Aan de hand van de ontwikkelingsvisie wordt gericht gewerkt aan het creëren van kansen voor de regio. Hierbij wordt uitgegaan van de eigen kwaliteiten: de rust en de ruimte, de aantrekkelijke steden en groene dorpen, de verscheidenheid in landschappen en de relatief goede bereikbaarheid. Voor de uitvoering van de regiovisie zijn vier regionale programma's geformuleerd, te weten: Wonen, Economie, Bereikbaarheid en Regionale & Innovatieve projecten.

3.3.2 Conclusie

Met dit verzamelbestemmingsplan wordt één extra woning mogelijk gemaakt aan de Hoofdweg 13-15 in Harkstede. In het geldende bestemmingsplan zijn binnen het bouwvlak dat ligt aan de Hoofdweg maximum 3 woningen toegestaan. In dit verzamelplan wordt dit bouwvlak gesplitst in twee bouwvlakken ten behoeve van in totaal 4 woningen. Deze aanpassing past binnen de afspraken die gemaakt zijn met de Regio Groningen-Assen.

3.4 Gemeentelijk beleid

3.4.1 Kompas gemeente Midden-Groningen

Per 1 januari 2018 zijn de voormalige gemeenten Hoogezand-Sappemeer, Slochteren en Menterwolde samengegaan tot de nieuwe gemeente Midden-Groningen. In het Kompas is de richting beschreven waarin de nieuwe gemeente zich wil gaan ontwikkelen. Hierbij is de gemeente eerst en vooral bondgenoot van inwoners, bedrijven en organisaties. Het motto is: minder voorschrijven, meer samenwerken.

Het Kompas benoemt drie bouwstenen voor een gemeenschappelijke maatschappelijke agenda. Deze bouwstenen bevatten de gemeenschappelijke doelen waar gemeente, inwoners, ondernemers, organisaties en bestuur de komende jaren aan gaan werken.

Bouwsteen 1: Groots in kleinschaligheid
De gemeente zet sterk in op zelfredzame en leefbare dorpen en kernen. Hierbij zijn inwoners medeverantwoordelijk voor de leefbaarheid. Leefbaarheid heeft sterk te maken met 'schoon, heel en veilig'. Gemeente en inwoners worden hierin steeds meer gelijkwaardige partners.

De nieuwe gemeente is een verband van vitale, lokale gemeenschappen die bestaan uit de inwoners van dorpen, kernen en wijken. Al deze gemeenschappen hebben hun eigen identiteit en alle dorpen en wijken zijn anders. De omstandigheden, mogelijkheden en wensen zijn op elke plek anders en vragen om specifieke initiatieven, arrangementen en maatregelen. Daarom wordt nadrukkelijk gekozen voor maatwerk. Door inwoners zelf meer verantwoordelijkheid en zeggenschap te geven, wordt eveneens meer ruimte gegeven aan de verschillen tussen dorpen en kernen.

Het maatwerk dat geleverd wordt, valt binnen een overkoepelende visie. In alle dorpen en wijken kunnen mensen goed en plezierig wonen. Iedere lokale gemeenschap beschikt over een gelegenheid of voorziening waar inwoners elkaar kunnen ontmoeten. Daarnaast zijn alle dorpen en kernen fysiek en digitaal goed bereikbaar. Het streven is om de voorzieningen die van belang zijn voor het dagelijks leven, zo dicht mogelijk bij mensen te brengen of te zorgen dat deze goed bereikbaar zijn. Daarbij blijven we realistisch: wie in een klein dorp woont, mag een bij die schaal passend aanbod van voorzieningen verwachten. Meer gemeente-brede of regionale voorzieningen worden geconcentreerd in de stedelijke kern van Hoogezand.

Bouwsteen 2: Ieder mens telt
In de gemeenschap telt ieder mens: iedereen heeft betekenis voor zichzelf en zijn omgeving, en komt tot zijn recht om wie hij is. Het uitgangspunt is 'eigen kracht': alle inwoners - van jong tot oud, met of zonder beperking - nemen zelf de regie over hun leven en zijn zelf verantwoordelijk voor hun leven.

Voor mensen die maatschappelijk kwetsbaar zijn, is het soms moeilijk hun eigen kracht te vinden. Scholing voor kinderen is de manier om de vicieuze cirkel van maatschappelijke kwetsbaarheid te doorbreken. De integrale kindcentra kunnen daar goed bij helpen, maar niet per se en overal. Ook hier is ruimte voor verschillen en maatwerk. De sociale teams leveren ook maatwerk. De sociale teams spelen in individuele situaties een belangrijke rol bij het vinden van oplossingen. Samen met de ouders en/of gezinnen gaan zij na hoe belemmeringen op het gebied van geld, gezondheid, onderwijs en/of werkloosheid kunnen worden weggenomen. Ze redeneren daarbij vanuit het gezin, niet vanuit de verschillende hokjes of budgetten bij de gemeente. Verder wil de gemeente samen met werkgevers en onderwijsinstellingen snel een concreet plan maken en uitvoeren om werkzoekenden 'fit' te maken voor werk.

Bouwsteen 3: Economie van de toekomst
De gemeente Midden-Groningen heeft een stevige economische basis, dankzij de bedrijvigheid in stuwende sectoren zoals (maak-)industrie, landbouw, handel, bouw en energie. Vooral met de maakindustrie, met name scheepsbouw, onderscheiden wij ons regionaal. Voor de werkgelegenheid zijn ook de publiek gefinancierde instellingen en ondernemingen van belang. De maakindustrie en de landbouw kunnen worden versterkt. Nieuwe kansen bieden de energietransitie en de vrijetijdseconomie. De gemeente heeft weinig mogelijkheden om de economie en de arbeidsmarkt te veranderen; daarvoor zijn vooral partijen als onderwijs en bedrijfsleven aan zet. De gemeente zet zich wel samen met lokale en regionale partners in voor onder andere de volgende zaken:

  • het innoveren van de arbeidsmarkt en economie;
  • het creëren van nieuwe partnerschappen en allianties en bestaande allianties versterken:
  • excellente dienstverlening voor ondernemers en instellingen;
  • beschikbaarheid van snel internet;
  • meer regionale waarde voor de landbouw;
  • blijvende vernieuwing van de maakindustrie;
  • duurzame inzetbaarheid van de beroepsbevolking;
  • energietransitie om de afhankelijkheid van fossiele energie te verkleinen;
  • bredere samenwerkingsverbanden;
  • uitwerken van de regionale agenda.
3.4.2 Harmonisatie beleid

Het beleid van de voormalige gemeenten Hoogezand-Sappemeer, Slochteren en Menterwolde moet geharmoniseerd worden tot nieuw beleid voor Midden-Groningen. Hierbij vormen de uitgangspunten en bouwstenen uit het Kompas de basis. Het huidige beleid is (met een aantal uitzonderingen, waaronder bestemmingsplannen) geldig tot 1 januari 2020. Voorliggend bestemmingsplan wordt dan ook getoetst aan het beleid van de voormalige gemeenten, voor zover het relevant is voor dit verzamelbestemmingsplan.

3.4.3 Ecologische basiskaart

Ruimtelijke ontwikkelingen en werkzaamheden kunnen gevolgen hebben voor beschermde en/of bedreigde planten en dieren. De Wet natuurbescherming stelt daar regels voor. Concrete ontwikkelingen, werkzaamheden en beheer en onderhoud moeten daaraan getoetst worden. Als hulpmiddel daarbij heeft de gemeente Midden-Groningen de 'Ecologische basiskaart en leidraad Midden-Groningen’ opgesteld.

De ecologische basiskaart bestaat uit meerdere kaarten, waarop onder meer de ligging van natuurgebieden en de populaties van soorten zijn aangegeven. In de bijbehorende leidraad is aangegeven wanneer bepaalde werkzaamheden op het vlak van bouwen (en slopen) en groenbeheer kunnen plaatsvinden.

Er is vooral gekeken buiten de reeds beschermde natuurgebieden. Binnen de natuurgebieden zijn de bijzondere waarden namelijk al beschermd door de planologische status van die gebieden. De aandacht is vooral gevestigd op bijzondere soorten en waarden uit de Wet natuurbescherming die voorkomen in bepaalde typen gebieden, zoals agrarische cultuurgronden, bosgebieden en landschapselementen. In paragraaf 4.8 Ecologie wordt per locatie verder ingegaan op de ecologische toetsing en verantwoording.

Hoofdstuk 4 Onderzoeken

Dit hoofdstuk bevat de resultaten van de verschillende onderzoeken naar de randvoorwaarden voor de uitvoerbaarheid van het bestemmingsplan en de bijbehorende regelingen.

4.1 Ladder voor duurzame verstedelijking

4.1.1 Inleiding

Een bestemmingsplan dat een nieuwe stedelijke ontwikkeling mogelijk maakt, moet voldoen de 'Ladder voor duurzame verstedelijking'. Het doel van de Ladder is zorgvuldig en duurzaam ruimtegebruik, met oog voor de toekomstige ruimtebehoefte en ontwikkelingen in de omgeving.

Op 1 juli 2017 is de nieuwe 'Ladder voor duurzame verstedelijking' in werking getreden. Deze is opgenomen in het Besluit ruimtelijke ordening (Bro). De Ladder houdt in dat de toelichting bij een bestemmingsplan dat een nieuwe stedelijke ontwikkeling mogelijk maakt, de volgende onderdelen moet bevatten:

  • Beschrijving van de behoefte aan de ontwikkeling.
  • Indien de ontwikkeling ligt buiten het bestaande stedelijk gebied moet tevens gemotiveerd worden waarom niet binnen het bestaand stedelijk gebied in de behoefte kan worden voorzien.

Beoordeeld moet worden of sprake is van een nieuw beslag op de ruimte. Daarvan is in beginsel sprake als het nieuwe ruimtelijke besluit meer bebouwing mogelijk maakt dan er op grond van het voorheen geldende planologische regime aanwezig was, of kon worden gerealiseerd.

4.1.2 Toetsing

Stedelijke ontwikkeling

Voordat de Ladder voor de duurzame verstedelijking wordt doorlopen, moet de vraag worden beantwoord of er wel sprake is van een nieuwe stedelijke ontwikkeling. Of er sprake is van een stedelijke ontwikkeling wordt bepaald door de aard en omvang van de ontwikkeling in relatie tot de omgeving.

Met voorliggend verzamelplan worden een aantal (kleine) ambtshalve wijzigingen/correcties doorgevoerd. Ook wordt er 1 particulier verzoek meegenomen. Deze wijzigingen zijn in aard en omvang zo klein dat deze niet als nieuwe stedelijke ontwikkeling zijn aan te merken. Nadere motivatie van de ladder is dan ook niet van toepassing.

Behoefte

Wanneer de ladder niet van toepassing is op een plan is wel een motivering nodig waaruit blijkt dat er sprake is van een goede ruimtelijke ordening. daarbij moet onder andere aandacht worden besteed aan de uitvoerbaarheid van het plan. In het kader van de uitvoerbaarheid moet aandacht worden besteed aan de behoefte.

De ontwikkelingen/ambtshalve wijzigingen die in voorliggend verzamelplan worden meegenomen vloeien voort uit directe behoeftes. De ambtshalve wijzigingen betreffen met name correcties van eerdere bestemmingsplannen.

4.1.3 Conclusie

De Ladder voor duurzame ontwikkeling is niet van toepassing op het plan. Daarnaast vloeien de meegenomen ontwikkelingen/ambtshalve wijzigingen voort uit een directe behoefte.

4.2 Bedrijven en milieuzonering

4.2.1 Inleiding

Milieuaspecten worden in principe geregeld via de daartoe geëigende wetgeving, het Activiteitenbesluit en/of de Wet Milieubeheer. Daar waar het de ruimtelijke ordening raakt, moet met deze aspecten echter rekening worden gehouden. Het gaat dan met name om de situering van milieugevoelige functies (zoals woningen) ten opzichte van milieuhinderlijke inrichtingen (zoals bedrijven).

Om te bepalen welke afstanden dienen te worden aangehouden, wordt de VNG-brochure 'Bedrijven en milieuzonering' gehanteerd. De VNG-brochure geeft informatie over de milieu- en hinderaspecten van verschillende typen bedrijven. Per type bedrijf wordt tevens een milieucategorie aangegeven. Uit de milieucategorie volgt een indicatie van de afstanden die voor dat type bedrijf worden aangehouden tot woningen of andere gevoelige objecten. Deze richtafstanden hebben betrekking op de aspecten geluid, stof, geur en gevaar. De gegeven afstanden zijn richtafstanden en geen harde eisen. Dit betekent dat afwijken van de afstanden, mits goed gemotiveerd, is toegestaan. De afstand wordt gerekend van de grens van de bestemming die milieubelastende functies toelaat tot de gevel van de milieugevoelige functies. Naast het omgevingstype 'rustige woonwijk' wordt het omgevingstype 'gemengd gebied' onderscheiden. Een gemengd gebied is een gebied met een matig tot sterke functiemenging. Voor gemengde gebieden kunnen de richtafstanden met één stap terug worden gebracht. Daarnaast kan in sommige gevallen er uit het oogpunt van een goed woon- en leefklimaat aanleiding bestaan op basis van de VNG-brochure een grotere afstand aan te houden.

De richtafstand werkt twee kanten op. Nieuwe bedrijvigheid moet voldoende afstand houden tot gevoelige objecten, maar nieuwe woningen moeten ook afstand houden tot bedrijvigheid. Niet alleen het woon- en leefklimaat telt immers. Ook de continuïteit van het bedrijf en de uitbreidingsmogelijkheden moeten worden gewogen.

4.2.2 Toetsing
4.2.2.1 Oudeweg 113A - Siddeburen

Volgens de VNG-brochure vallen hoveniersbedrijven en loonbedrijven met een bebouwde oppervlakte van 500 m2 onder milieucategorie 3.1 bedrijven. Hiervoor geldt een grootste richtafstand van 50 meter. De dichtstbijzijnde woning ligt op een afstand van 80 meter. Aan de richtafstand wordt dan ook voldaan.

4.2.2.2 Oudeweg 186 - Siddeburen

Aan de Oudeweg 186 vindt handel en reparatie in motoronderdelen plaats. Volgens de VNG-brochure zijn deze activiteiten te beschouwen als milieucategorie 2 bedrijven. Voor deze categorie geldt een standaard richtafstand van 30 meter. De omgeving van het plangebied kan echter beschouwd worden als gemengd gebied. De locatie ligt direct aan de hoofdinfrastructuur en het betreft hier lintbebouwing in het buitengebied waar wonen en bedrijvigheid elkaar afwisselen. Gemotiveerd kan de richtafstand dan met één afstandsstap verkleind worden. Met die reden kan voor onderhavige situatie een afstand van 10 meter worden aangehouden. Aan deze afstand wordt voldaan. De naastgelegen woning ligt op circa 20 meter afstand. Daar komt bij dat het hier gaat om en reeds vergunde situatie.

4.2.2.3 Hamweg/Buitenbaan - Lageland (ijsbaangebouw)

In de directe nabijheid van het ijsbaangebouw bevinden zich geen voor hinder gevoelige functies (zoals woningen) of hinderveroorzakende functies (zoals bedrijven). Op ruim 50 meter bevindt zich een horecagelegenheid. Dit levert geen belemmeringen op voor het voornemen.

4.2.2.4 Hoofdweg 13-15 - Harkstede

Op een afstand van circa 40 meter, aan de Hoofdweg 11, bevindt zich een agrarisch loonbedrijf. Een loonbedrijf valt volgens de VNG-brochure in de milieucategorie 3.1. Hiervoor geldt een richtafsand van 50 meter. De omgeving van het plangebied kan beschouwd worden als gemengd gebied, er bevinden zich verschillende functies op korte afstand van elkaar. Gemotiveerd kan de richtafstand dan met één afstandsstap verkleind worden. Met die reden kan voor onderhavige situatie een afstand van 30 meter worden aangehouden. Aan deze richtafstand wordt voldaan.

Voor de bedrijven aan Hoofdweg 19 en Hoofdweg 26 zijn binnen de bestemming 'Gemengd - 1 bedrijven tot en met milieucategorie 2 toegestaan. Aan het Rijpmakanaal 4 is een bedrijf tot milieucategorie 3.1 toegestaan. Voor het moederbestemmingsplan is akoestisch onderzoek uitgevoerd naar de geluidsbelasting van omliggende bedrijvigheid. Uit dit onderzoek is naar voren gekomen dat diverse ontwikkelingsmogelijkheden in het plangebied zijn. Om een goed woon- en leefklimaat te waarborgen is een gebiedsaanduiding 'milieuzone - geluidsgevoelige functie' in het plangebied opgenomen. Uit dit onderzoek is naar voren gekomen dat er geen belemmeringen zijn voor het planvoornemen.

4.2.2.5 Hoofdweg 21 - Scharmer

Een buskeerlus is niet aan te merken als hindergevoelig object. Daarentegen liggen in de omgeving van het plangebied wel hindergevoelige objecten, namelijk woningen. De woningen bevinden zich op circa 30 meter afstand tot de buskeerlus. Een buskeerlus is niet als categorie in de VNG-brochure opgenomen, maar zou beschouwd kunnen worden als autoparkeerterrein/-parkeergarage of als bus- tram of metrostation of remise. Voor de eerste categorie geldt een richfafstand van 30 meter. Voor de tweede categorie geldt een grootste richtafstand van 100 meter. De tweede categorie is echter voor het voorgenomen gebruik te zwaar, de locatie wordt alleen gebruikt voor het keren van bussen. De activiteit kan dan ook eerder beschouwd worden als een parkeerterrein. Aan de genoemde richtafstanden van 30 m kan worden voldaan.

4.2.2.6 Rijksweg Oost 113 - Sappemeer

Aan de Rijksweg Oost 113 bevindt zich een agrarisch tuinbouwbedrijf. Volgens de VNG-brochure zijn deze bedrijven te beschouwen als milieucategorie 2 bedrijven, waarvoor een richtafstand geldt van 30 meter. De dichtsbijzijnde woning bevindt zich aan de Rjiksweg Oost 111, de gevel van de betreffende woning bevindt zich op circa 15 meter afstand. De nieuwe situatie op het perceel verandert niet ten opzichte van de huidige situatie, met het planvoornemen wordt alleen het juiste juridische kader geboden voor reeds bestaande activiteiten. Hoewel niet kan worden voldaan aan de genoemde richtafstanden verandert er feitelijk niets. Veronderstelt kan worden dat het aspect milieuhinder geen belemmeringen vormt voor het planvoornemen.

4.2.2.7 Meerweg 56B - Kropswolde (kanogebouw)

Het verenigingsgebouw aan de Meerweg is aan te merken als clubgebouw, waarvoor een richtafstand geldt van 30 meter. In de directe nabijheid van het plangebied zijn geen hindergevoelige objecten (zoals woningen) aanwezig. Daarnaast is er sprake van een reeds bestaande situatie.

4.2.3 Conclusie

Wat betreft het aspect milieuhinder is het verzamelbestemmingsplan uitvoerbaar.

4.3 Externe Veiligheid

4.3.1 Inleiding

Wetgeving inrichtingen
Het Besluit Externe Veiligheid Inrichtingen (BEVI) is het wettelijk kader voor risicovolle inrichtingen als het gaat om afstanden tot risicogevoelige objecten. Uitgangspunt is dat personen die ergens langdurig of permanent verblijven geen onevenredig groot risico lopen als er ramp gebeurt.

Kwetsbare en beperkt kwetsbare objecten  
Het BEVI maakt onderscheid tussen twee categorieën risicogevoelige objecten: kwetsbare objecten en beperkt kwetsbare objecten. Dit onderscheid is gebaseerd op maatschappelijke opvattingen over welke groepen mensen in het bijzonder moeten worden beschermd. Daarnaast spelen ook het aantal personen en de verblijfsduur een rol.

Het BEVI geeft geen harde definities van kwetsbaar of beperkt kwetsbaar. Het noemt enkele categorieën kwetsbare objecten, met daarbij voorbeelden. Er kan bijvoorbeeld worden gedacht aan woningen, ziekenhuizen, verpleeghuizen, scholen, kinderopvang, grote kantoren, hotels en winkelcomplexen en grote kampeer- en recreatieterreinen. Beperkt kwetsbare objecten zijn volgens het besluit in ieder geval verspreid liggende woningen, dienstwoningen van derden, kleinere kantoren, hotels, winkels, bedrijfsgebouwen, sporthallen, zwembaden, overige sport- en kampeerterreinen en objecten van hoge infrastructurele waarde zoals elektriciteitscentrales.

Plaatsgebonden risico
Het BEVI onderscheidt twee vormen van risico: het plaatsgebonden risico en het groepsgebonden risico.

Het plaatsgebonden risico (PR) is een maat voor het overlijdensrisico van één persoon op een bepaalde plaats in de omgeving van een ongeval. Het maakt niet uit of daar echt personen aanwezig zijn. Het plaatsgebonden risico is gedefinieerd als: de kans per jaar dat een persoon die onafgebroken en onbeschermd op een bepaalde plaats in de omgeving van een inrichting zou verblijven, overlijdt als rechtstreeks gevolg van een ongewoon voorval met een gevaarlijke stof.

Het plaatsgebonden risico laat zich goed vertalen op een kaart. De verschillende punten in de omgeving met hetzelfde risico worden verbonden en zo ontstaat een contour. Zo wordt op de kaart een gebied met een bepaald risico aangegeven. Voor kwetsbare objecten geldt een zogenaamde grenswaarde: een kans van 10-6 per jaar. Die mag niet worden overschreden. Voor beperkt kwetsbare objecten is de kans van 10-6 een zogenoemde richtwaarde. Als het risico groter wordt, moet dat goed gemotiveerd worden.

Groepsrisico
Het groepsrisico (GR) is de kans per jaar dat een groep van bijvoorbeeld 10, 100 of 1000 personen tegelijk slachtoffer wordt van een ongeval met gevaarlijke stoffen. Het groepsrisico is niet een vast getal, maar wordt uitgezet in een grafiek. Die geeft een curve waarin de kans op een bepaald aantal doden is af te lezen: zoveel kans op één dode, zoveel kans op twee doden en zo verder. Het groepsrisico geeft inzicht in de eventuele maatschappelijke ontwrichting. Daardoor kan er bewuster worden omgegaan met risico's. Het groepsrisico kan op twee manieren toenemen:

  • door uitbreiding van risicovolle activiteiten: de kans op een ongeval neemt toe;
  • door het verhogen van de personendichtheid (bijvoorbeeld door woningbouw): het aantal mogelijke doden neemt toe.

In beide gevallen neemt het groepsrisico toe. Daarom wordt er bij het opstellen van ruimtelijke plannen naar het groepsrisico gekeken.

Voor het groepsrisico gelden geen harde normen, maar alleen oriënterende waarden. Als die waarden worden overschreden, moet het bestuur dat motiveren. De regels daarvoor staan in het BEVI en de Bevb. Er moeten in ieder geval aandacht besteedt worden aan:

  • het aantal personen in het invloedsgebied;
  • het groepsrisico;
  • de mogelijkheden om het risico te verminderen;
  • de alternatieven;
  • de mogelijkheden om de omvang van de ramp te beperken;
  • de mogelijkheden tot zelfredzaamheid.

Wetgeving buisleidingen
Sinds 1 januari 2011 geldt het Besluit externe veiligheid Buisleidingen (Bevb). Het Bevb regelt de taken en verantwoordelijkheden van de leidingexploitant en van de gemeente. De gemeente moet in bestemmingsplannen rekening houden met risicovolle buisleidingen.

  • De gemeente moet een ruimtelijke reservering opnemen voor het plaatsgebonden risico (PR). Het bestemmingsplan mag binnen de PR 10-6 risicocontour geen kwetsbare objecten mogelijk maken. Ook risicoverhogende objecten mogen niet. Risicoverhogende objecten zijn bijvoorbeeld windmolens (afvallende wieken) en hoogspanningslijnen. Beperkt kwetsbare objecten moeten zoveel mogelijk worden voorkomen.
  • De gemeente moet het groepsrisico (GR) verantwoorden. Het verwachte aantal aanwezigen binnen het invloedsgebied van de buisleiding moet worden verantwoord. Het invloedsgebied bij brandbare vloeistoffen reikt tot net buiten de 10-6 contour. Voor leidingen met aardgas en chemicaliën moet het invloedsgebied per geval berekend worden.
  • De gemeente moet een ruimtelijke reservering opnemen voor belemmeringenstrook met aanleg vergunningstelsel: de voor onderhoud gereserveerde ruimte bedraagt ten minste 5 meter aan beide zijden van de leiding.

Voorheen vielen de transportleidingen voor chemische stoffen (anders dan aardgas of aardolieproducten) nog niet onder het Bevb, maar onder de Circulaire Risiconormering vervoer gevaarlijke stoffen. De Circulaire is echter in 2015 vervallen. Deze types leidingen zijn vanaf dat moment ook onder het Bevb gaan vallen. Als de ruimtelijke inpassing van deze leidingen echter voldoet aan het Bevb, wordt automatisch voldaan aan de huidige Circulaire.

Wetgeving transportroutes
Voor ruimtelijke plannen binnen het invloedsgebied (1% letaliteitsgebied) van de risicovolle transportassen (spoor, weg of water) is het Besluit externe veiligheid transportroutes(Bevt) van toepassing.

Basisnet
Aan het Bevt is het zogenaamde basisnet gekoppeld. Dat is bedoeld om de transportroutes vast te leggen. Het basisnet houdt rekening met de veiligheid, maar ook met de dynamiek van het transport en met toekomstige groei. In het basisnet is de grotere weg-, spoor- en waterinfrastructuur opgenomen.

De provincie Groningen heeft ook al een provinciaal basisnet vastgesteld, als onderdeel van de Provinciale Omgevingsverordening. Het basisnet geeft aan voor welke provinciale wegen aspecten van externe veiligheid aan de orde zijn. Het basisnet ziet op plaatsgebonden risico en het groepsrisico. Provincie specifiek is een extra regel voor de bescherming voor minder zelfredzame personen.

  • Binnen 30 meter van de rand van wegen en spoorwegen in het basisnet mogen geen nieuwe objecten of functies voor beperkt zelfredzame personen worden toegestaan (scholen, zorgwoningen, zorgcentra et cetera).
  • In de toelichting van bestemmingsplannen moeten aandacht besteedt worden aan het groepsrisico binnen 200 meter van een weg uit het basisnet. Met name de risico's van een plasbrand (een brandende plas) en een BLEVE (gasexplosie) moeten beschouwd worden.
  • In de toelichting moet ook aandacht besteedt worden aan het groepsrisico in gebieden binnen 1500 meter van de spoorweg Groningen-Zuidbroek.
4.3.2 Toetsing
4.3.2.1 Oudeweg 186 - Siddeburen

Op een afstand van circa 10 meter ligt een aardgasleiding NEN 3650-leiding (N-509-97) met een maximale werkdruk van 40 bar. Voor deze aardgasleiding is een 'gebiedsaanduiding veiligheidszone - vervoer gevaarlijke stoffen' opgenomen. Bescherming van kwetsbare of beperkt kwetsbare objecten is hiermee gewaarborgd. Feitelijk verandert het plangebied niet, de dichtheid van het aantal personen in het plangebieden neemt eveneens niet toe. Er zijn dan ook geen belemmeringen voor het voornemen.

4.3.2.2 Hamweg/Buitenbaan - Lageland (ijsbaangebouw)

Op een afstand van circa 150 meter liggen twee aardgasleidingen NEN-3650 (A-639 en A-640) van de Gasunie. De risicocontour van deze leidingen reikt niet verder dan de vrijwaringszone, zoals vastgelegd via een dubbelbestemming. Het plangebied ligt niet in deze vrijwaringszone. Daarnaast ligt op dezelfde afstand een K1-leiding (NM-500110) en een NEN-3650 (NM-501051) van de NAM.

Voor de beide aardgasleidingen geldt een PR 10-6 van 5 meter aan weerszijden van het hart van de buisleiding. Voor beoordeling van het groepsrisico is het van belang te weten of het plangebied ligt in de 1% letaliteitszone van de aardgastransportleiding. Voor de betreffende leidingen is deze zone 580 meter (diameter 48 mm, maximale druk 8000 kpa). Het plangebied ligt hiermee in de 1% letaliteitscontour van de beide leidingen. Wanneer het plangebied binnen de 1% letaliteitscontour ligt moet het groepsrisico worden berekend. Op basis van deze berekening kan worden bepaald of:

  • het groepsrisico lager is dan 10% van de oriëntatiewaarde;
  • de toename van het groepsrisico ten gevolge van het besluit minder is dan 10% van de oriëntatiewaarde.

Indien hier sprake van is, of het plangebied ligt buiten de 100% letaliteitscontour kan worden overgegaan op een beperkte verantwoording. Voor de betreffende leidingen ligt deze contour op 220 meter. Gezien de afstand van het plangebied tot de buisleiding zou een uitgebreide verantwoording aan de orde zijn.

Het gaat hier echter om een bestaande situatie, het ijsbaangebouw is reeds aanwezig. Met het planvoornemen neemt het aantal mensen op deze locatie niet toe. Het groepsrisico is dan ook lager dan de 10% oriëntatiewaarde en neem ten gevolge van het besluit niet toe met meer dan 10% van de oriëntatiewaarde. Nadere verantwoording is dan ook niet van toepassing.

4.3.2.3 Rijksweg Oost 113 - Sappemeer

Op een afstand van circa 40 meter ligt de snelweg A7, dat onderdeel uitmaakt van het Basisnet. Over deze weg vindt vervoer van gevaarlijke stoffen plaats, maar heeft geen plasbrandaandachtsgebied. Over deze weg worden 1.500 tankauto's per jaar vervoerd, stofcategorie GF3. Het risicoplafond GR ligt op een afstand van 48 meter van het hart van de weg.

Voor autosnelwegen gelden geen 10-5 contouren. Wanneer het aantal GF3 transporten per jaar lager is dan 4000 heeft een autosnelweg geen 10-6 contour. De drempelwaarde GF3 vervoer voor overschrijding 10% van de oriëntatiewaarde voor een autosnelweg is op een afstand van 40 meter tot de as van de weg en bij een dichtheid van circa 50 personen per ha voor een tweezijdige bebouwing, is 7.580 tankauto's (Handleiding Risicoberekeningen Bevt).

Het planvoornemen maakt geen ontwikkelingen mogelijk die leiden tot een hogere dichtheid van personen in het plangebied binnen een zone van 200 meter langs de A7. Zelfredzaamheid en bestrijdbaarheid zijn een punt van aandacht. Een groepsrisicoverantwoording is hier niet aan de orde.

Daarnaast loopt langs de A7 een aardgasleiding NEN-3650 (N-508-50) met een maximale werkdruk van 40 bar en een uitwendige diameter van 168,0 mm. De 1% letaliteitsgrens voor deze leiding ligt op 70 m. De 100%-letaliteitsgrens ligt op 50 m. De afstand van het plangebied tot het hart van de leiding bedraagt circa 15 m. Wanneer het plan geheel of gedeeltelijk binnen de 1% letaliteitscontour ligt, moet het groepsrisico worden berekend. De inschatting is dat het risico niet boven de oriëntatiewaarde uitkomt. De reden hiervoor is dat het een dunbevolkt gebied betreft waarin geen extra risicobronnen voorkomen. De achtergrond met betrekking tot externe veiligheid is te vinden in Bijlage 1. Op het perceel verandert feitelijk niets. Het betreft hier slechts een juridisch-planologische wijziging van een reeds bestaande situatie. Met het planvoornemen neemt het aantal mensen op deze locatie niet toe. Het groepsrisico is naar verwachting lager dan de 10% oriëntatiewaarde en neemt ten gevolge van het besluit niet toe met meer dan 10% van de oriëntatiewaarde. Nadere verantwoording is dan ook niet van toepassing.

4.3.2.4 Overige adressen

Voor de overig adressen: Oudeweg 113A in Siddeburen, Hoofdweg 13-15 in Harkstede, Hoofdweg 21 in Scharmer en Meerweg 56B in Kropswolde zijn in of in de nabijheid van de plangebieden geen risicovolle inrichtingen aanwezig.

4.3.3 Conclusie

Het verzamelbestemmingsplan is wat betreft het aspect externe veiligheid uitvoerbaar.

4.4 Verantwoording groepsrisico

Als gevolg van de invloedsgebieden van de verschillende risicobronnen in en/of nabij de locaties die zijn opgenomen in het verzamelbestemmingsplan wordt het groepsrisico beoordeeld. Het voorontwerp verzamelplan is hiertoe toegezonden aan de Omgevingsdienst Groningen en de Veiligheidsregio Groningen.

4.4.1 Bestrijdbaarheid

Betreffende de beoordeling van de bestrijdbaarheid wordt gekeken naar, of het rampenscenario te bestrijden is, én of het gebied voldoende is ingericht om bestrijding te faciliteren. Met het planvoornemen worden geen grote ontwikkelingen mogelijke gemaakt waar bestrijdbaarheid aan de orde is.

4.4.2 Zelfredzaamheid

Zelfredzaamheid is het zichzelf kunnen onttrekken aan een dreigend gevaar, zonder daadwerkelijke hulp van hulpverleningsdiensten. Voor voorliggend plan is zelfredzaamheid niet aan de orde.

4.4.3 Conclusie

Nadere verantwoording van het groepsrisico is niet noodzakelijk. De uitvoerbaarheid van het bestemmingsplan wordt dan ook niet door het groepsrisico belemmerd.

4.5 Water

4.5.1 Inleiding

Het opnemen van een waterparagraaf in een bestemmingsplan is wettelijk verankerd in artikel 3.1.6 van het Besluit ruimtelijke ordening (Bro) en het overleg met het waterschap wordt gevoerd op basis van artikel 3.1.1 Bro. In die paragraaf dient te worden uiteengezet wat voor gevolgen het plan in kwestie heeft voor de waterhuishouding, dat wil zeggen het grondwater en het oppervlaktewater.

Het waterbeleid, zoals opgenomen in het Nationaal Waterplan 2016-2021 geeft de hoofdlijnen, principes en richting van het nationale waterbeleid in de planperiode 2016-2021, met een vooruitblik richting 2050. Het kabinet zet hiermee in op een robuust en toekomstgericht inrichten van het watersysteeem, gericht op een goede bescherming tegen overstromingen, het voorkomen van wateroverlast en droogte en het bereiken van een goede waterkwaliteit en een gezond ecosysteem als basis voor welzijn en welvaart.

Keur Waterschap
Voor alle aanpassingen aan de waterhuishouding, zoals genoemd in de keur, is ook een watervergunning van het waterschap vereist.
In de keur van waterschap Hunze en Aa's (2010) is ook opgenomen dat binnen het beheersgebied zonder vergunning van het bestuur geen verhard oppervlak mag worden aangebracht, voor zover dit leidt tot een versnelde afvoer richting oppervlaktewaterlichamen. Hierbij geldt binnen de bebouwde kom een norm van 150 m² en daarbuiten 1500 m². Bij nieuwe verharding met een oppervlak boven deze normen zullen compenserende maatregelen moeten worden genomen.

Daarnaast zijn er in de keur ook regels opgenomen over beschermingszone langs (boezem)kades en beschermings- en obstakelvrije zones langs hoofdwatergangen. De beschermingszones worden aangegeven of omschreven in de legger. Bij het ontbreken van een legger geldt als beschermingszone een strook van 5 meter, waarbij de 5 meter moet worden gerekend vanaf de insteek of de teen van het waterstaatswerk. Als een onderhoudsstrook aanwezig is dan hoort die bij het waterstaatswerk en niet bij de beschermingszone.

Notitie Stedelijk Waterbeheer
In 2011 heeft het waterschap Hunze en Aas de notitie Stedelijk Waterbeheer vastgesteld. Hierin zijn doelstellingen en aandachtspunten geformuleerd inzake het stedelijk waterbeheer, waarbij alle betrokken partijen hun rol moeten pakken, waaronder de gemeenten in hun ruimtelijke plannen.
Dit gebeurt mede door de verplichte waterparagraaf in bestemmingsplannen, met als doelstelling: “Water wordt door overheden, stedenbouwkundigen en projectontwikkelaars geaccepteerd en gehanteerd als ordenend principe. Het waterschap is de vanzelfsprekende wateradviseur bij locatiekeuze en inrichting.“

Aandachtspunten in de notitie die relevant zijn voor bestemmingsplannen zijn:

Onderwerp   Probleem   Oplossingsrichting  
Ruimte voor water   Onvoldoende inspelen op wateraspecten bij ruimtelijke plannen, wateroverlast, slechte waterkwaliteit in nieuwe gebieden.   Waterschap eerder betrekken, deskundigheid gebruiken.  
Taakverdeling   Onduidelijkheid voor gemeenten en burgers.   Heldere afspraken, eenduidigheid, helder communiceren over taken en verwachtingen.  
Watersysteem   Slechte waterkwaliteit, wateroverlast, vervuilde waterbodem, weinig natuurvriendelijke oevers, verstoring watersysteem.   Duurzame inrichting, basisinspanning/waterkwaliteitsspoor intensiveren, alternatieve oplossingen, aanpak diffuse bronnen, wateroverlastmaatregelen met gemeente, oplossingen op maat, herstel watersysteem.  

4.5.2 Toetsing

Het bestemmingsplan is primair conserverend van karakter, waarbij de bestaande functies worden bestemd. Er worden geen wezenlijke veranderingen in de waterhuishouding voorzien. Grootschalige ontwikkelingen zijn op grond van dit bestemmingsplan aldus niet mogelijk.

Zowel bij de ontwikkelingen bij recht als bij de ontwikkelingen na wijziging van het bestemmingsplan dienen de beleidsuitgangspunten van het Waterplan (waaronder afnemen watertoets) te worden nagekomen. Het toevoegen van nieuwe bebouwing of verharding in de bebouwde kom (met een groter oppervlakte dan 150 m2) en in het buitengebied (bij een oppervlakte groter dan 1.500 m2) zal dan ook gecompenseerd moeten worden met waterberging.

In het gebied bevinden zich geen grondwaterbeschermingsgebieden.

Onderstaand wordt ingegaan op de percelen in het plangebied. Er is bij de volgende percelen geen sprake van toevoeging van bebouwing of verharding. het gaat om de gebruikswijziging van de bestaande bebouwing. Er zijn met betrekking tot water (en afvoer) geen aanvullende maatregelen nodig.

  • Oudeweg 113A - Siddeburen (bouwvlak o.b.v. omgevingsvergunning). Het gaat hier om een kleine toevoeging van het bouwvlak (140 m2). Er is voor deze kleine oppervlakte geen compensatie nodig in de vorm van de aanleg van waterberging;
  • Oudeweg 186 - Siddeburen (wijziging gebruik o.b.v. omgevingsvergunning);
  • Hamweg/Buitenbaan - Lageland (wijziging bouwmogelijkheden o.b.v. omgevingsvergunning);
  • Hoofdweg 21 - Scharmer (wijziging bestemming). Hoewel de bestemming voor dit perceel wijzigt, worden met dit verzamelplan minder bebouwingsmogelijkheden geboden door het verwijderen van het bouwvlak ter plaatse. Zowel in de huidige bestemming als in de nieuwe bestemming 'Verkeer - Verblijfsgebied' is het mogelijk het gehele perceel van verharding, met de nieuwe bestemming verandert dan ook feitelijk niets. Compensatie is dan ook niet noodzakelijk;
  • Rijksweg Oost 113 - Sappemeer (wijziging bouwmogelijkheden o.b.v. omgevingsvergunning);
  • Meerweg 56B - Kropswolde (bouwvlak vergroting) Ook hier gaat het om een kleine toevoeging van het bouwvlak waarvoor geen compensatie nodig is.

Vooroverleg
Het voorontwerpbestemmingsplan is in het kader van het vooroverleg voorgelegd aan het waterschap Hunze en Aa's.

Naar aanleiding hiervan is onderstaande aanvullende tekst opgenomen.

HOOFDWEG 13-15
Aan de Hoofdweg 15 stond de voormalige discotheek 2Brothers. De bebouwing en verharding besloeg circa 2.480 m2. De boerderij aan de Hoofdweg 13 besloeg een ruimte van 1.340 m2 aan gebouwen (verharding van oprit en terras komt hier nog bij). De totale feitelijke verharde oppervlakte komt hiermee neer op circa 3.820 m2 (excl. terreinverharding).

Op de locatie aan de Hoofdweg 13-15 te Harkstede geldt op dit moment een apart bestemmingsplan vastgesteld op 17 december 2015. In dit bestemmingsplan zijn drie bouwvlakken voor in totaal 17 woningen opgenomen. Eén bouwvlak aan de wegzijde en twee haaks hierop op de achterzijde van het perceel. De gezamenlijke oppervlakte van deze bouwvlakken is circa 2.200 m2.

De bouwplannen zijn echter gewijzigd. Aan de wegzijde zijn geen drie maar vier woningen beoogd. Deze drie woningen staan niet in een rij naast elkaar maar worden geclusterd per twee. In totaal worden er met de nieuwe plannen 18 woningen mogelijk gemaakt. Het totale ruimtebeslag van de bouwvlakken komt neer op 2.130 m2. Hier bovenop komen de eventuele verhardingen in tuinen en erven bij de woningen. Ten opzichte van de zowel feitelijke als planologisch-juridische situatie neemt de verharding in de nieuwe situatie (het ontwerpbestemmingsplan Verzamelbestemmingsplan 2018-1) af.

In het gebied bevinden zich geen grondwaterbeschermingsgebieden. In het plangebied bevinden zich echter wel enkele watergangen. Wanneer aanpassingen worden gedaan aan de watergangen en/of schouwsloten dient rekening gehouden te worden met de keur van het Waterschap en de bijbehorende vergunningplicht.

De uitgangspunten zoals genoemd in het geldend bestemmingsplan 'Harkstede 13-15' (17-12-2015) zijn ook in het nieuwe voornemen van toepassing. Met het planvoornemen worden twee watergangen gedempt. Als compensatie hiervan wordt aan de noordzijde van het gebied een nieuwe grenssloot aangelegd. De bodem van de nieuwe sloot zal op circa – 3.7 m NAP worden aangelegd. Voor de taludhelling wordt een helling van 1:1,5 of minder steil worden aangehouden. Zie onderstaande afbeelding. Het plangebied wordt ingericht met halfverharding. Daarnaast wordt een gescheiden rioolstelsel aangelegd.

afbeelding "i_NL.IMRO.1952.bpmigverzamel2018I-va01_0019.png"

Figuur 19. Waterhuishoudelijke nieuwe situatie

De nadere afstemming tussen de ontwikkelende partij en het waterschap over de waterhuishouding en eventuele noodzakelijke compensatie is in de regels van dit bestemmingsplan geborgd door middel van een voorwaardelijke verplichting. Hiermee dient bij de aanvraag omgevingsvergunning voor bouwen te worden aangetoond dat deze nadere afstemming heeft plaatsgevonden en op welke wijze de eventuele compensatie invulling krijgt.

4.5.3 Conclusie

Het verzamelbestemmingsplan is voor wat betreft het aspect water uitvoerbaar.

4.6 Bodem

4.6.1 Inleiding

De aanwezige milieuhygiënische bodemkwaliteit behoort te passen bij het huidige of het toekomstige gebruik van de bodem. De bodemkwaliteit mag geen onaanvaardbaar risico opleveren voor de gebruikers van de bodem. Bovendien mag de bodemkwaliteit niet verslechteren door menselijk handelen (zorgplicht).

Informatie over uitgevoerde bodemonderzoeken, bodemsaneringen en historisch verdachte locaties staan vermeld op de Bodeminformatiekaart (via www.provinciegroningen.nl).

Grondverzet
Voor toepassing van grond, bouwstoffen en baggerspecie gelden de regels van het Besluit bodemkwaliteit. Een deel van de regels voor hergebruik van grond staan beschreven in de gemeentelijke de Regionale bodemkwaliteitskaart Groningen en de Regionale Nota bodembeheer provincie Groningen (2014).

Bodemtoets
Bij graafwerkzaamheden, bouwactiviteiten, uitbreiding of verandering van (bedrijfs-) activiteiten dient de initiatiefnemer bij de gemeente na te gaan of een actueel bodemonderzoek ingediend moet worden of niet.

4.6.2 Toetsing
4.6.2.1 Oudeweg 113A - Siddeburen

Ten behoeve van het 'Verzamelplan Gemeente Slochteren 2014' is de bodemkwaliteit van het perceel beoordeeld. Hierbij is een inventarisatie gemaakt van uitgevoerde bodemonderzoeken:

  • Nulsituatie/BSB onderzoek door Wijnia-Van Dorsser; kenmerk 5971291.R01; 1997
  • Nulsituatie bestrijdingsmiddelenopslag door Tauw; projectnummer 3897389; 2001
  • Verkennend bodemonderzoek achterterrein door Klijn Bodemonderzoek; projectnummer 14KL0005; 2014.

Uit de onderzoeksresultaten blijkt dat er geen sprake is van risico's voor de volksgezondheid of het milieu. De onderzochte grond is vanuit milieuhygiënisch oogpunt geschikt voor het gebruik als bedrijventerrein, voor woningbouw en het achterterrein voor landbouw/natuur. De bodeminformatiekaart geeft dan ook weer dat het plangebied voldoende is onderzocht/gesaneerd voor het beoogde gebruik.

4.6.2.2 Oudeweg 186 - Siddeburen

De bodeminformatiekaart geeft voor het betreffende perceel aan dat de bodem voldoende onderzocht/gesaneerd is. Feitelijk verandert er niets voor het perceel. Het planvoornemen betreft slechts een functiewijziging en is reeds in 2006 (opnieuw) vergund. Het aspect bodem vormt dan ook geen belemmering voor het voornemen.

4.6.2.3 Hoofdweg 13-15 - Harkstede

Ten behoeve van bestemmingsplan 'Harkstede, Hoofdweg 13-15' (vastgesteld 17-12-2015) is in het plangebied bodemonderzoek uitgevoerd. Naar aanleiding van dit onderzoek zijn er geen belemmeringen voor het huidige voornemen.

4.6.2.4 Hoofdweg 21 - Scharmer

De bodeminformatiekaart geeft voor het perceel aan de Hoofdweg 21 weer dat dit gebied voldoende is onderzocht/gesaneerd. Ten aanzien van het aspect bodemkwaliteit zijn er dan ook geen belemmeringen voor het voornemen.

4.6.2.5 Rijksweg Oost 113 - Sappemeer

In 2007 is een verkennend bodemonderzoek NEN-5740 uitgevoerd. Uit dit onderzoek is naar voren gekomen dat aanvullend historisch onderzoek noodzakelijk is. Dit onderzoek moet aantonen of op de onderzoekslocatie activiteiten aanwezig zijn of zijn geweest die de bodem mogelijk hebben verontreinigd. Het voorliggende verzamelplan betreft een reparatie van het geldende bestemmingsplan ter plaatse. Feitelijk vinden er geen veranderingen plaats.

4.6.2.6 Overige adressen

Voor de adressen, Meerweg 56B - Kropswolde, en Hamweg/Buitenbaan - Lageland is geen bodeminformatie bekend over de bodemkwaliteit ter plaatse. Dit houdt in dat zowel geen informatie bekend is over eventuele bodemvervuiling of andere historische activiteiten als ook informatie over uitgevoerd onderzoek. Met de planvoornemens vindt op geen van alle percelen grondroerende werkzaamheden plaats en is het toekomstige gebruik overeenkomstig met het huidige gebruik. Veronderstelt kan worden dan de bodemkwaliteit geen belemmeringen vormt voor de planvoornemens.

4.6.3 Conclusie

Het verzamelbestemmingsplan is wat betreft het aspect bodem uitvoerbaar.

4.7 Luchtkwaliteit en geur

4.7.1 Inleiding

In hoofdstuk 5 van de Wet milieubeheer (Wm) zijn de grenswaarden op het gebied van de luchtkwaliteit vastgelegd. Daarbij zijn in de ruimtelijke ordeningspraktijk vooral de grenswaarden voor stikstofdioxide (NO2), fijn stof (PM10) en zeer fijn stof (PM2,5) van belang. Grenswaarden ten aanzien van de jaargemiddelde concentratie betreffen 40 µg/m3 voor zowel NO2 als PM10 en 25 µg/m3 voor PM2,5. Projecten met een invloed van 'niet in betekenende mate' (nibm) op de luchtkwaliteit zijn verder vrijgesteld van toetsing aan de grenswaarden. Op grond van de Regeling niet in betekenende mate bijdragen (luchtkwaliteitseisen) zijn (onder andere) de volgende projecten vrijgesteld van toetsing:

  • woningbouwprojecten met minder dan 1.500 woningen;
  • projecten die leiden tot minder dan 3% verslechtering van de luchtkwaliteit (een toename van maximaal 1,2 µg/m3 NO2 of PM10). Deze grens komt overeen met 1.401 auto's dan wel 109 vrachtwagens per weekdagetmaal.

PM10 en PM2,5 zijn overigens sterk gerelateerd, aangezien PM2,5 onderdeel uitmaakt van de emissie van PM10. Als aan PM10 wordt voldaan, mag daarom worden aangenomen dat ook de grenswaarde van PM2,5 niet wordt overschreden.

4.7.2 Toetsing

De planvoornemens voor de verschillende adressen zoals meegenomen in dit verzamelbestemmingplan betreffen met name ambtelijke wijzigingen en blijven ruimschoots onder de hierboven genoemde grenzen. Dit verzamelplan leidt dan ook niet tot een verslechtering van de luchtkwaliteit van meer dan 3%.

4.7.3 Conclusie

Het planvoornemen is wat betreft het aspect luchtkwaliteit uitvoerbaar.

4.8 Ecologie

4.8.1 Inleiding

Op 1 januari 2017 is de Wet natuurbescherming in werking getreden. Deze wet vervangt de Natuurbeschermingswet 1998, de Flora- en faunawet en de Boswet. De Wet natuurbescherming voorziet in vereenvoudigde regels ter bescherming van de natuur, decentralisatie van bevoegdheden naar provincies en een goede aansluiting op het omgevingsrecht.

De volgende gebieden genieten bescherming op grond van de Wet natuurbescherming:

  • Natura 2000-gebieden (Vogel- en Habitatrichtlijngebied);
  • staatsnatuurmonumenten (gebieden in eigendom van de staat);
  • beschermde natuurmonumenten (gebieden die in eigendom zijn van particulieren, waaronder terreinbeheerders);
  • Wetlands.

Ook de provincie heeft gebieden aangewezen waarbinnen beschermende regels gelden ten aanzien van het behoud van ecologische waarden. In de omgevingsverordening zijn voor enkele van deze aspecten, waaronder Natuur Netwerk Nederland en Bos- en natuurgebieden buiten het Natuur Netwerk Nederland, bindende regels opgenomen.

Leidraad Gemeente Midden-Groningen
De gemeente Midden-Groningen heeft in 2017 een leidraad met bijbehorende themakaarten opgesteld dat als handreiking dient voor ruimtelijk beleid en inzicht geeft in de ecologische waarden in de gemeente Midden-Groningen. Met behulp van de leidraad kan een goed beeld worden verkregen van de natuurwaarden in de gemeente.

4.8.2 Toetsing
4.8.2.1 Oudeweg 113A - Siddeburen

Ten behoeve van het Verzamelplan gemeente Slochteren 2014, is een ecologisch onderzoek in het plangebied uitgevoerd. Naast de algemene zorgplicht voor soorten zijn met dit ecologisch onderzoek geen bijzonderheden aangetroffen die de huidige ontwikkelingen kunnen belemmeren.

4.8.2.2 Hoofdweg 13-15 - Harkstede

Ten aanzien van bestemmingsplan 'Harkstede, Hoofdweg 13 en 15' is ecologisch onderzoek uitgevoerd naar mogelijke aanwezige soorten in het plangebied. Hieruit is naar voren gekomen dat de werkzaamheden buiten het broedseizoen dienen plaats te vinden. Voor de aanwezige kerkuil moet ontheffing worden aangevraagd. Deze ontheffingsaanvraag wordt gezamenlijk met de aanvraag omgevingsvergunning bouwen ingediend. Voor de steenmarter is deze ontheffing niet nodig.

4.8.2.3 Hoofdweg 21 - Scharmer

Op een afstand van circa 500 meter ligt een gebied aangewezen voor NNN ambitie gebied. Dit gebied is nog geen NNN maar zal de komende jaren ontwikkeld worden als natuurgebied. In het plangebied zelf is geen vegetatie of bebouwing aanwezig waar beschermde soorten verblijven of aanwezig kunnen zijn.  

4.8.2.4 Overige locaties

Voor de overige locaties verandert feitelijk niets aan de bestaande situatie. De aanwezigheid van beschermde soorten of verblijfplaatsen hiervan komen hiermee niet in het geding. Daarnaast zijn in de nabijheid van deze locaties geen beschermde natuurgebieden aanwezig waar negatieve effecten naar aanleiding van het planvoornemen kunnen optreden.

4.8.3 Conclusie

Het planvoornemen is wat betreft het aspect ecologie uitvoerbaar.

4.9 Geluid

4.9.1 Inleiding

Wat betreft geluid zijn de regels uit de Wet geluidhinder van toepassing. In deze wet wordt onderscheid gemaakt in wegverkeerslawaai, railverkeerslawaai en industrielawaai.

Wegverkeerslawaai
In het kader van de Wet geluidhinder bevinden zich langs alle wegen zones, met uitzondering van wegen waar een maximumsnelheid van 30 km/geldt en wegen die zijn aangeduid als 'woonerf'. In geval van geluidgevoelige bebouwing binnen een zone dient akoestisch onderzoek plaats te vinden. Bij 30 km wegen moet vooraf duidelijk aannemelijk kunnen worden gemaakt dat de geluidsbelasting niet hoger zal zijn dan 48 dB. Alleen indien geen twijfel bestaat over het beperkte aantal voertuigbewegingen over de weg is akoestisch onderzoek niet noodzakelijk. Behoudens situaties waarbij door burgemeester en wethouders een hogere waarde is vastgesteld, geldt voor geluidgevoelige bebouwing, waaronder woningen. binnen een zone als hoogst toelaatbare geluidsbelasting van de gevel 48 dB.

Railverkeerslawaai
Ook hoofdstuk 7 (Zones langs spoor-, tram- en metrowegen) van de Wet geluidhinder is van belang. Behoudens situaties waarbij door Gedeputeerde Staten een hogere waarde is vastgesteld, geldt voor woningen binnen een zone als hoogst toelaatbare geluidsbelasting van de gevel 55 dB (artikel 106 Wet geluidhinder).

Bij het voorbereiden van de vaststelling of de herziening van een bestemmingsplan dat geheel of gedeeltelijke betrekking heeft op grond behorende bij een zone als bedoeld in artikel 106b van de Wet geluidhinder, dienen burgemeester en wethouders een akoestisch onderzoek in te stellen naar:

  • de geluidsbelasting die door woningen, door andere geluidgevoelige gebouwen of door geluidgevoelige terreinen binnen de zone vanwege de spoorweg zou worden ondervonden, zonder de invloed van maatregelen die de geluidsoverdracht beperken;
  • de doeltreffendheid van de in aanmerking komende maatregelen om te voorkomen dat de in de toekomst vanwege de spoorweg optredende geluidsbelasting van de woningen te boven zou gaan.

In de nabijheid van de verschillende percelen is geen spoorlijn aanwezig die kan bijdragen aan eventuele geluidhinder op de perceen.

Industrielawaai
Zonering van industrielawaai in het kader van de Wet geluidhinder is het ruimtelijk scheiden van (grote) lawaaimakers enerzijds (zowel solitaire bedrijven als gevestigd op industrieterreinen) en woningen en andere geluidsgevoelige bestemmingen anderzijds.

Met zonering wordt beoogd rechtszekerheid te bieden aan zowel bedrijven als bewoners/gebruikers van woningen en andere geluidsgevoelige bestemmingen. Bedrijven kunnen aan de ene kant hun geluidsproducerende activiteiten niet onbeperkt uitbreiden ter bescherming van woningen en andere geluidsgevoelige bestemmingen binnen en buiten de zone. Aan de andere kant wordt, ter bescherming van hun akoestische ruimte, voorkomen dat woningen en andere geluidsgevoelige bestemmingen te veel oprukken naar de bedrijven toe.

In het plangebied liggen geen inrichtingen waar een geluidscontour van uitgaat (geluidszoneringsplichtige bedrijven). Er zijn in de directe omgeving van het plangebied geen inrichtingen met een geluidscontour die over (een deel van) het plangebied reikt.

4.9.2 Toetsing
4.9.2.1 Oudeweg 186 - Siddeburen

Ter plaatse van de Oudeweg 186 is een woning aanwezig. Met het planvoornemen wordt een reeds bestaande en vergunde ondergeschikte detailhandelsfunctie planologisch mogelijk gemaakt. De zuidzijde van het perceel ligt in een geluidzone - industrie. Hiervoor zijn eerder, conform de Wet geluidhinder, geluidzones vastgesteld. Deze geluidzone (50 dB(A)contour valt voor een deel binnen het plangebied. Vanuit de gebiedsaanduiding is rekening gehouden en afstemming bereikt is met de bepalingen uit de Wet geluidhinder. Feitelijk verandert er niets. Het planvoornemen wordt niet door het aspect geluid belemmerd.

4.9.2.2 Hamweg/Buitenbaan - Lageland (ijsbaangebouw)

Het ijsbaangebouw ligt op de kruising Hamweg/Buitenbaan te Lageland. De Buitenbaan is een doodlopende weg waar vooralsnog alleen bestemmingsverkeer voor de naastgelegen woonwijk in aanbouw gebruik van maakt. De Hamweg is in de nabijheid van het plangebied aangewezen als weg met een maximumsnelheid van 30 km/uur. Het Slochterdiep aan de overzijde van het water is ook aangemerkt als weg met maximumsnelheid van 30 km/uur. Afhankelijk van de verkeersintensiteiten kan akoestisch onderzoek noodzakelijk zijn. Een ijsbaangebouw is echter niet te beschouwen als geluidsgevoelig object. Akoestisch onderzoek is dan ook niet nodig, het planvoornemen is uitvoerbaar.

4.9.2.3 Hoofdweg 13-15 - Harkstede

De ontwikkelingen aan de Hoofdweg 13-15 betreffen het verschuiven en splitsen van een bouwvlak en het toevoegen van 1 woning. Voor het bestemmingsplan 'Harkstede, Hoofdweg 13 en 15' (vastgesteld op 17-12-2015) is akoestisch onderzoek uitgevoerd. Naar aanleiding van dit onderzoek is een hogere waarde verleend voor het bouwen van de woningen nabij de Hoofdweg. Vanwege de verschuiving en toevoeging van een woning aan de wegzijde dient opnieuw een hogere waarde te worden aangevraagd. Deze procedure wordt gelijktijdig met het de procedure van het bestemmingsplan doorlopen. Verondersteld kan worden dat met dit onderzoek en de vastgestelde hogere waarden geen belemmeringen zijn voor het planvoornemen op deze locatie.

4.9.2.4 Hoofdweg 21 - Scharmer

Een buskeerlus is geen geluidsgevoelig object. Anderszijds kan een buskeerlus wel beschouwd worden als hinderveroorzakend object. Het planvoornemen kan extra geluidhinder vanuit de bussen veroorzaken. In de directe nabijheid van het plangebied zijn woningen/geluidsgevoelige objecten aanwezig. De locatie kan echter beschouwd worden als gewone bushalte waar bussen even stilstaan en weer doorrijden. Ten opzichte van de naastgelegen weg waar 60 km/uur mag worden gereden zijn de effecten van de buskeerlus minimaal.

4.9.2.5 Overige adressen

Aan de Oudeweg 113A wordt uitbreiding van bedrijvigheid mogelijk gemaakt. De Oudeweg is een weg waarop een snelheid van maximaal 60 km/uur is toegestaan. Bedrijven zijn echter niet aan te merken als geluidsgevoelig object. Akoestisch onderzoek ten aanzien van wegverkeerslawaai is dan ook niet noodzakelijk.

Met voorliggend verzamelplan wordt het bouwvlak van het huidige verenigingsgebouw aan de Meerweg 56B vergroot. Ter plaatse is geen sprake van nieuwvestiging en evenmin van een geluidsgevoelig object. Ook de naastgelegen recreatiewoningen zijn geen geluidsgevoelige objecten in de zin van de Wet geluidhinder. Het planvoornemen is wat betreft het aspect geluid dan ook uitvoerbaar.

Het plangebied aan de Rijksweg Oost betreft een agrarisch tuinbouwbedrijf. Een agrarisch bedrijf en bedrijfswoning zijn niet te beschouwen als geluidsgevoelige objecten. De zorgfunctie die ondergeschikt op deze locatie mogelijk wordt gemaakt is eveneens niet te beschouwen als geluidsgevoelig.

4.9.3 Conclusie

Het planvoornemen is wat betreft het aspect geluid uitvoerbaar.

4.10 Archeologie

4.10.1 Inleiding

Begin 1992 ondertekende Nederland het Verdrag van Valletta (Malta). Daarna heeft de rijksoverheid beleid ontwikkeld voor een zorgvuldige omgang met het archeologisch erfgoed. Het uitgangspunt is het behoud van archeologische waarden “in situ” (ter plekke; in de bodem).

In 2007 heeft het verdrag zijn neerslag gekregen in de Nederlandse wetgeving. Op 1 september van dat jaar trad de Wet op de Archeologische Monumentenzorg (Wamz) in werking. In samenhang daarmee werden ook de Monumentenwet 1988 en drie andere wetten aangepast.

De Monumentenwet 1988 is per 1 juli 2016 vervallen. Een deel van de wet is op deze datum overgegaan naar de Erfgoedwet. Het deel dat betrekking heeft op de besluitvorming in de fysieke leefomgeving gaat over naar de Omgevingswet, wanneer deze naar verwachting in 2021 in werking treedt. Vooruitlopend op de datum van ingang van de Omgevingswet zijn deze artikelen te vinden in het Overgangsrecht in de Erfgoedwet, waar ze ongewijzigd van toepassing blijven zolang de Omgevingswet nog niet van kracht is.

De Erfgoedwet bundelt en wijzigt een aantal wetten op het terrein van cultureel erfgoed. De kern van deze wet is dat wanneer de bodem wordt verstoord, de archeologische resten intact moeten blijven (in situ). Wanneer dit niet mogelijk is, worden archeologische resten opgegraven en elders bewaard (ex situ).

De gemeente Midden-Groningen is gestart met een grote harmonisatie van de bescherming van het gemeentelijk erfgoed. In de drie voormalige gemeenten heeft in 2017 een inventarisatie plaatsgevonden van het gemeentelijk erfgoed. Het is de bedoeling medio 2018 meer gemeentelijke monumenten te selecteren en aan te wijzen, enerzijds om bijzonder waardevolle panden zo goed mogelijk te kunnen beschermen tegen gevolgen van de gaswinning, anderzijds vanwege benodigde harmonisatie van erfgoedbeleid.

Nederlandse gemeenten zijn vanwege wetgeving op het gebied van archeologische monumentenzorg (Wet op de archeologische monumentenzorg) verplicht om archeologische waarden in de ruimtelijke planprocedures te betrekken en waardevolle resten te beschermen. Om deze wettelijke taak goed te kunnen uitvoeren en direct mee te kunnen nemen in de actualisering van bestemmingsplannen is gemeentelijk archeologiebeleid, bestaande uit een beleidsnota en beleidskaart, opgesteld. Op de archeologische beleidskaart is aangegeven welk archeologisch beleid van toepassing is in het bestemmingsplan. Voor de gemeente Midden-Groningen is nog geen gezamenlijk archeologiebeleid, voor dit plan wordt dan ook teruggevallen op het archeologiebeleid van de voormalige gemeenten afzonderlijk.

Nota archeologie beleid Hoogezand-Sappemeer
In de nota Archeologiebeleid zijn een drietal gebiedscategorieën onderscheiden waarvoor archeologische beschermingsregimes gelden. In alle gebiedscategorieën geldt dat bouwwerken en werkzaamheden (geen gebouwen zijnde) zijn toegestaan, mits daardoor de grond niet dieper dan 40 cm onder het maaiveld wordt geroerd. Wordt de bodem dieper geroerd, dan is archeologisch onderzoek nodig om te bepalen of door de bodemroering eventuele archeologische waarden worden aangetast.

Nota archeologie Slochteren
Lage verwachtingswaarde
Aan een deel van het plangebied is een lage archeologische verwachtingswaarde op basis van de Archeologische beleidskaart Slochteren (2013) toegekend. Dit heeft te maken met de bodemverstorende activiteiten in het verleden (aanwezige woonbebouwing, aanleggen woonwijken en sportterreinen). Dit betekent dat bij het aanvragen van een omgevingsvergunning geen archeologisch onderzoek is vereist. In deze gebieden zijn is ook geen omgevingsvergunning voor het uitvoeren van werken en/of werkzaamheden nodig op grond van archeologie.

Hoge verwachtingswaarde
Er zijn binnen het plangebied verschillende terreinen waar vanwege de (hoge) archeologische (verwachtings)waarden specifieke regels gelden voor bouwen en gebruik, in aanvulling op de basisbestemming. Daarbij wordt onderscheid gemaakt tussen: AMK terreinen, borgterreinen, historische bebouwing en boerderijplaatsen. In de eerste twee gebieden zijn de ingrepen die onderzoeksplichtig zijn het kleinst (vanaf 50 m²). Bij historische kernen en bebouwing en boerderijplaatsen ligt de grens op 100 m².

4.10.2 Toetsing
4.10.2.1 Hamweg/Buitenbaan - Lageland (ijsbaangebouw)

Ter plaatse van het ijsbaangebouw is de hoge archeologische verwachtingswaarde (archeologische beleidskaart Slochteren, 2013) van toepassing. Voor deze gebieden geldt dat bureauonderzoek nodig is bij ingrepen groter dan 200 m2 en dieper reiken dan 45 cm. Met het planvoornemen vinden geen bodemroerende werkzaamheden plaats, mogelijke archeologische waarden worden dan ook niet aangetast.

4.10.2.2 Rijksweg Oost 113 - Sappemeer

Het planvoornemen aan de Rijksweg Oost 113 betreft een ambtelijke wijziging. Feitelijk verandert er niets; er vinden geen bouw- en graafwerkzaamheden plaats. Archeologisch onderzoek is dan ook niet noodzakelijk.

4.10.2.3 Overige adressen

Deze lage verwachtingswaarde zoals opgenomen in de Archeologische beleidskaart Slochteren (2013) is van toepassing voor de volgende percelen:

  • Harkstede, Hoofdweg 13-15;
  • Scharmer, nabij Hoofdweg 21;
  • Siddeburen, Oudeweg 113A;
  • Siddeburen, Oudeweg 186.
4.10.3 Conclusie

Het verzamelplan is wat betreft het aspect archeologie uitvoerbaar.

4.11 Cultuurhistorie

4.11.1 Inleiding

Ieder ruimtelijk plan moet een analyse van de overige cultuurhistorische waarden van het plangebied te bevatten. Voor zover in een plangebied sprake is van erfgoed, dient op grond van voorgaande dan ook aangegeven te worden op welke wijze met deze cultuurhistorische waarden en in de grond aanwezige of te verwachten archeologie rekening wordt gehouden.

4.11.2 Toetsing

In 2017 heeft de gemeente Midden-Groningen een inventarisatie uitgevoerd naar karakteristieke bebouwing in de gemeente. Deze karakteristieke bebouwing zal worden opgenomen in een nieuw op te stellen bestemmingsplan. In het plangebied van dit verzamelplan is geen karakteristieke bebouwing aanwezig.

4.11.2.1 Hoofdweg 13-15 - Harkstede

Ten aanzien van cultuurhistorische waarden is in het moederbestemmingsplan een uitgebreide beschrijving gegeven van de aanwezige waarden. Op basis hiervan is in voorliggend verzamelplan de aanduiding 'vrijwaringszone - molenbiotoop' overgenomen.

4.11.2.2 Rijksweg Oost 113 - Sappemeer

Op de achterzijde van het perceel is de dubbelbestemming 'Waarde - Beschermd dorpsgezicht' van toepassing. De gronden zijn hier behalve voor de andere daar voorkomende bestemming(en) mede bestemd voor het behoud, het herstel en bescherming van karakteristieke, met de historische ontwikkeling samenhangende structuur en bebouwingsbeeld.

4.11.2.3 Overige adressen

Voor de overige adressen zijn geen cultuurhistorische waarden aanwezig.

4.11.3 Conclusie

Het planvoornemen is wat betreft het aspect cultuurhistorie uitvoerbaar.

4.12 Kabels en leidingen

Nabij de verschillende locaties liggen een aantal hogedrukgasleidingen. Deze zijn al beschreven in de paragraaf 4.3 Externe Veiligheid. Verder liggen in of nabij de locaties geen kabels en/of leidingen die een belemmering vormen voor de uitvoering van de plannen.

Bij de realisering van nieuwe bebouwing wordt wel geadviseerd een Klic-melding te doen, voor de ligging van eventuele kabels en/of leidingen (aansluitleidingen). Dit is de verantwoordelijkheid van de betrokken initiatiefnemer.

4.13 M.e.r.-beoordeling

4.13.1 Inleiding

In de Wet milieubeheer en het bijbehorende Besluit milieueffectrapportage (Besluit m.e.r.) is wettelijk geregeld voor welke projecten en besluiten een vorm van m.e.r.-verplichting geldt. Hierbij wordt onderscheid gemaakt tussen activiteiten, waarvoor altijd een m.e.r.-procedure moet worden doorlopen (m.e.r.-plicht) en activiteiten waarvoor het bevoegd gezag nader moet beoordelen of een m.e.r.-procedure al dan niet nodig is (m.e.r.-beoordelingsplicht). In bijlage C van het Besluit m.e.r. is aangegeven voor welk type activiteiten het maken van een milieueffectrapportage verplicht is. In bijlage D van het Besluit m.e.r. is aangegeven voor welk type activiteiten een m.e.r.-beoordelingsprocedure moet worden doorlopen. Hierbij zijn per type activiteiten drempelwaarden opgenomen.

Wanneer ontwikkelingen onder de in lijst D opgenomen drempelwaarden blijven, moet wel beoordeeld worden of de geplande activiteiten geen belangrijke nadelige milieugevolgen hebben. Voor deze motivering/toets wordt de term vormvrije m.e.r.-beoordeling gehanteerd. Uit de vormvrije m.e.r.-beoordeling kunnen twee conclusies volgen: belangrijke nadelige milieueffecten zijn uitgesloten of belangrijke nadelige milieueffecten zijn niet uitgesloten. In het eerste geval is de activiteit niet m.e.r.-(beoordelings)plichtig, in het andere geval dient een m.e.r.-beoordeling te worden uitgevoerd en de bijbehorende procedure te worden gevolgd.

4.13.2 Toetsing

De voorgenomen plannen zijn geen concreet benoemde activiteiten die in kolom D van het Besluit m.e.r. is genoemd. Er is dan ook geen sprake van het overschrijden van drempelwaarden in de D-lijst van het Besluit m.e.r. Voor het planvoornemen geldt daarom geen plan-MER-plicht en een (vormvrije) m.e.r.-beoordeling is ook niet aan de orde.

Verder kan op basis van voorgaande verantwoording van de omgevingsaspecten in redelijkheid worden aangenomen dat geen onaanvaardbare milieueffecten in het projectgebied hoeven te worden verwacht.

4.13.3 Conclusie

Voor het verzamelbestemmingsplan hoeft gezien het voorgaande geen m.e.r.-(beoordelings)procedure te worden doorlopen. Het plan is op dit punt uitvoerbaar.

4.14 Duurzaamheid

Met het bestemmingsplan 'Verzamelbestemmingsplan 2018-I wordt naast één verzoek van een particulier een aantal (kleine) ambtshalve wijzigingen/correcties doorgevoerd. Omdat het plan, buiten reeds bebouwde percelen, niet voorziet in nieuwe ontwikkelingen zijn er in het plan geen specifieke eisen met betrekking tot duurzaamheid opgenomen.

Met betrekking tot duurzaam ruimtegebruik kan bij het voorgaande worden aangesloten, omdat geheel nieuwe ontwikkelingen buiten de reikwijdte van het plan blijven. Bij de bouwregels voor zowel wonen als bedrijven wordt wel een efficiënt ruimtegebruik nagestreefd door eisen op te nemen voor de situering van (bij)gebouwen binnen het bouwperceel en bouwpercelen zo efficiënt mogelijk te bestemmen.

Hoofdstuk 5 Juridische toelichting

In dit hoofdstuk wordt als eerste uitgelegd wat een bestemmingsplan is en welke systematiek gekozen is voor het verzamelbestemmingsplan. Hierna wordt een toelichting gegeven op de bestemmingen die zijn opgenomen in het plan. Hierbij moet altijd worden bedacht dat de regels en de verbeelding in samenhang moeten worden gelezen. Op de verbeelding zijn namelijk de bestemmingen, de aanduidingen en de verklaringen aangegeven die voor een locatie gelden.

5.1 Wat is een bestemmingsplan

In een bestemmingsplan is geregeld hoe gronden en de bouwwerken daarop gebruikt mogen worden, en wat en hoe er gebouwd mag worden.

Een bestemmingsplan bestaat uit drie delen: de verbeelding, de regels en de toelichting. Op de verbeelding is aangegeven welke bestemming een perceel heeft. Het kan bijvoorbeeld gaan om een woon-, bedrijfs- of verkeersbestemming. In de regels is vervolgens bepaald wat er wel en niet is toegestaan binnen deze bestemming. Hier staat onder andere hoe de grond gebruikt mag worden en of er gebouwd mag worden. Als er gebouwd mag worden, dan staan in de regels onder andere de goothoogte en bouwhoogte die maximaal zijn toegestaan op het perceel. In de toelichting zijn onder andere de aanleiding, de achtergronden en uitgevoerde onderzoeken beschreven. Een bestemmingsplan gaat uitdrukkelijk niet over allerlei uitvoeringsgerichte zaken, zoals bijvoorbeeld de inrichting van wegen en het openbaar gebied of de aanleg of het functionering van rioleringssystemen.

Als een persoon of bedrijf wil gaan bouwen of verbouwen, is hier vaak een omgevingsvergunning voor nodig. Een aanvraag om een omgevingsvergunning wordt onder andere getoetst aan het bestemmingsplan. Als een aanvraag past binnen de regels van het bestemmingsplan wordt in de meeste gevallen een omgevingsvergunning verleend.

De wijze waarop een bestemmingsplan juridisch kan worden vormgegeven, wordt in grote lijnen bepaald door de Wet ruimtelijke ordening, evenals door het daarbij behorende Besluit ruimtelijke ordening.

5.2 Systematiek verzamelbestemmingsplan

Een verzamelbestemmingsplan is een bestemmingsplan waarbij diverse particuliere verzoeken en ambtelijke aanpassingen in één bestemmingsplan worden meegenomen. In het verzamelbestemmingsplan zijn dan ook verschillende locaties opgenomen die verspreid over het grondgebied van de gemeente Midden-Groningen liggen.

Bij het bepalen van de bestemmingen en regels voor de verschillende locaties is zo veel mogelijk aansluiting gezocht bij de bestemmingsplannen die nu gelden voor de betreffende locatie en/of de omgeving. In paragraaf 1.3 Geldende bestemmingsplannen is per locatie aangegeven welk 'moederplan' per locatie van toepassing is.

Voor een toelichting op de inleidende regels (zoals de begripsbepalingen en de wijze van meten), de algemene regels (zoals algemene bouw-, gebruiks- en afwijkingsregels) en de overgangsregels wordt verwezen naar de 'moederplannen'. In deze plannen is vaak ook een uitleg te vinden van de verschillende onderdelen van de bestemmingsregels. In de paragrafen 5.3, 5.4 en 5.5 worden de bestemmingen, dubbelbestemmingen en gebiedsaanduidingen toegelicht dit in het verzamelbestemmingsplan voorkomen.

5.3 Toelichting basisbestemmingen

In deze paragraaf wordt een toelichting gegeven over de bestemmingsregels die in het plangebied voorkomen.

5.3.1 Agrarisch - tuinbouw

De tuinbouw onderscheidt zich van de reguliere agrarische bestemming door drie zaken:

  • De aard van de producten. Tuinbouwproducten zijn in het algemeen klaar voor gebruik; ze hebben geen industriële bewerking nodig.
  • De aard van de werkmethoden. Nog steeds wordt de tuinbouw gekenmerkt door veel handarbeid en door behandeling van elke plant afzonderlijk. Is het onderscheid moeilijk te maken dan is dit tweede kenmerk eigenlijk het belangrijkst want de werkmethode geeft namelijk de doorslag of het gaat om akkerbouw of tuinbouw.
  • De zeer grote hoeveelheid arbeid en geïnvesteerd kapitaal per oppervlakte - eenheid, vergeleken met akkerbouw. Tuinbouw is de meest arbeidsintensieve, kapitaalintensieve en grondextensieve vorm van landbouw. En voor de glastuinbouw geldt dat in het kwadraat.

De bestemming Agrarisch-Tuinbouw is toegekend aan het perceel aan de Rijksweg Oost 113 te Sappemeer. De bestemmingsregeling is gebaseerd op het moederplan 'Buitengebied 2012'.

Bouwregels - afstandseisen en bouweisen
In het bouwvlak wordt het grotendeels aan de ondernemers overgelaten wat de meest efficiënte indeling van het bouwvlak is en wat waar gebouwd wordt. Wel houdt het college sturingsmogelijkheden door de nadere eisen en bouwregels. Met het oog op de landschappelijke inpassing en het waarborgen van een goed leefklimaat, worden in de regels minimale afstanden gegeven tussen gebouwen en andere bouwwerken en de weg of tussen gebouwen onderling. De maatvoering van de te onderscheiden bebouwing is gedifferentieerd. Hiervoor is in de bouwregels een bouwschema opgenomen.

Met een gebiedsaanduiding worden zones rondom de reeds aanwezige (woon)bebouwing gelegd. Binnen de zone van 50 meter mogen geen tuinbouwactiviteiten plaatsvinden in verband met het voorkomen van geluid en geurhinder. De VNG brochure Bedrijven en milieuzonering (uitgave 2009) stelt de afstand op 30 meter in verband met geluid. Maar 50 meter is een richtafstand uit het Besluit glastuinbouw betreffende mestopslag, zodat deze verruiming acceptabel wordt geacht. Binnen de 100 meter zone geldt het regime dat in verband met het voorkomen van geurhinder geen mestopslag- en fermentatie is toegestaan. Deze richtafstand is conform de VNG brochure Bedrijven en milieuzonering.

Met de aanduiding 'Maatschappelijk' wordt geregeld dat binnen de bestemming 'Agrarisch - tuinbouw' ook zorgfuncties zoals dagbesteding mogelijk zijn.

Bouwregels - ontheffing
Mits kan worden aangetoond dat de regels een onevenredige aantasting van een efficiënte bedrijfsvoering met zich meebrengen, kan ontheffing worden verleend van de aan te houden minimale afstanden ten opzichte van de perceelsgrens en tussen bouwwerken onderling. De ontheffing is gekoppeld aan een aantal voorwaarden, voornamelijk bedoeld ter bescherming van het landschap en leefklimaat.

Gebruiksregels
De hiervoor beschreven geur- en geluidzones van respectievelijk 50 en 100 meter zijn geregeld met de specifieke gebruiksregels.

Ontheffing gebruiksregels
Hiermee wordt voorzien in ontheffingsmogelijkheden van de specifieke gebruiksregels. Ook hiervoor geldt dat in verband met een onevenredige aantasting van efficiënte bedrijfsvoering onder voorwaarden medewerking kan worden verleend. Het woon- en leefklimaat van omliggende woningen is daarvoor de leidraad.

Wijzigingsbevoegdheid
De bouwruimte is dusdanig ruim door de nieuw toegekende bouwvlakken dat een wijzigingsbevoegdheid voor het wijzigen van grenzen niet nodig wordt geacht.

5.3.2 Recreatie

De bestemming Recreatie is toegekend aan het kanogebouw aan de Meerweg 56B, overeenkomstig het bestemmingsplan 'Woongebieden'. Het gebied Meerwijck is een woon- en recreatiegebied. De verschillende vormen van recreatie zijn voorzien van de bestemming die in deze paragraaf wordt beschreven. De bestemming laat veel vormen van recreatie toe.

Bij de recreatieve functie behorende voorzieningen zijn toegestaan, zoals centrale voorzieningen, receptie/informatie, kantoor-, kleed- en doucheruimten, clubgebouwen, educatieve doeleinden en meer. Ook voorzieningen die in kwalitatief opzicht de recreatieve functie kunnen versterken zijn toegelaten, zoals kantine, zwembad, sauna, sportvelden en dergelijke.

5.3.3 Recreatie - 2

De bestemming Recreatie - 2 is van toepassing op de gronden aan de Hamweg/Buitenbaan te Lageland. Hierbij is zoveel mogelijk aangesloten bij de regeling zoals opgenomen in het bestemmingsplan 'Meerstad - Midden', waarin de gronden de bestemming 'Recreatieve doeleinden' met aanduiding 'IJ' voor ijsbaan droegen. In het moederbestemmingsplan waren geen gebouwen binnen deze bestemming toegestaan. In de bestemming Recreatie - 2 zijn gebouwen wel toegestaan maar alleen binnen een bouwvlak en alleen met de afmetingen zoals het reeds bestaande gebouw omvat.

De gronden zijn binnen deze bestemming alleen te gebruiken ten behoeve van de ijsbaan.

5.3.4 Woongebied

Deze bestemming is gegeven aan het gehele plangebied aan de Hoofdweg 13-15 te Harkstede. Op deze gronden mogen woningen worden gebouwd met de daarbij bijbehorende gronden (tuinen en erven). Ook maakt deze bestemming de aanleg van de binnenplanse ontsluitingswegen, parkeervoorzieningen, groen, speelvoorzieningen en water mogelijk.

Op het perceel mogen maximaal 18 woningen worden gebouwd waarvan maximaal 2 per bouwvlak aan de voorzijde van het plangebied.

Bouwregels
Bij de woonbestemmingen wordt de situering van de bebouwing bepaald door 3 vlakken die op de verbeelding zijn aangegeven in combinatie met de bouwregels: het bestemmingsvlak; het bouwvlak waarbinnen het woongebouw c.q. hoofdgebouw moet zijn gesitueerd, zodoende wordt de bebouwing geconcentreerd; het bouwperceel waarbinnen alle bebouwing behorend bij het woongebouw c.q. hoofdgebouw is gesitueerd.

Het bouwperceel is bedoeld om de schaal en intensiteit van de bebouwing in de hand te houden door een bebouwingspercentage van ten hoogste 50% voor alle bebouwing vast te stellen. De keuze voor een zelfstandige, bij elkaar behorende bebouwing zorgt voor het onderscheid met het bestemmingsvlak. Hierdoor wordt namelijk geregeld dat binnen het bouwperceel slechts één (of twee) hoofdgebouw c.q. woongebouw wordt toegestaan en dat bijgebouwen daaraan worden gekoppeld. Om in gevallen waarbij meerdere woningen op één kadastraal perceel staan een juiste benadering bij bijgebouwen te hanteren, wordt de koppeling met een woning gelegd. De relatie tussen de grond en één bestemmingsvlak moet duidelijkheid bieden dat slechts gronden binnen een bestemming worden meegerekend voor de bouwmogelijkheden; aankoop gronden bestemd als (openbaar) groen of agrarische grond biedt geen extra bebouwingsmaatregelen. Daarom geldt voor het bepalen van het bouwperceel de ondergrond behorende bij het voorliggende plan. Daarnaast is een aanduiding 'milieuzone - geluidsgevoelige functie' opgenomen, waarbinnen een geluidsgevoelig object niet is toegestaan, zodat omliggende bedrijfsactiviteiten niet worden belemmerd en een goed woon- en leefklimaat is gegarandeerd.

Voor het woon- en/of hoofdgebouw zijn verschillende specifieke regels opgenomen die de grootte en situering bepalen.

Bijgebouwen
Overkappingen worden onder hetzelfde regime geschaard als (vrijstaande) bijgebouwen. Dit omdat de ruimtelijke impact van overkappingen nauwelijks beperkter is dan die van (vrijstaande) bijgebouwen en onderlinge uitwisselbaarheid in toegestane oppervlakten op bouwpercelen te versimpelen. Bijgebouwen zijn toegestaan op een gedeelte van het bouwperceel. Vrijstaande bijgebouwen en vrijstaande overkappingen zijn toegestaan in het gebied tenminste 3 meter achter de voorgevel van het hoofd- of woongebouw en moeten binnen het bouwvlak, dan wel binnen 30 meter daar vandaan zijn gelegen.

Om de invloed van vrijstaande bijgebouwen (en vrijstaande overkappingen) op het straatbeeld te beperken geldt er in het gebied op minder dan 10 meter achter het voorerf een gezamenlijke oppervlakte van ten hoogste 30 m². In hoeksituaties wordt daarnaast de voorwaarde gesteld dat bijgebouwen, die buiten het bouwvlak worden gesitueerd, op tenminste 5 meter van de kant van de weg staan.

Om uitbreidingsmogelijkheden aan de voorgevel te regelen worden erkers en entreeportalen met een diepte van ten hoogste 1,50 meter, dan wel 0,75 meter en een hoogte van ten hoogste 3 meter toegestaan. De toegestane diepte is afhankelijk van de bestemming, waarbij de volgende voorwaarden gelden:

  • daarna blijft tenminste 2 meter onbebouwd gebied tot bestemmingsgrens over, en
  • de uitbreiding betreft minder dan 50% van de breedte van het hoofdgebouw.

Afmetingen
De toegestane maatvoering van (vrijstaande) bijgebouwen en overkappingen is als volgt:

  Goothoogte   Bouwhoogte   Dakhelling  
Bijgebouw of overkapping   ten hoogste 3 m   ten hoogste 5,5 m   platte afdekking of meerzijdige kap van ten hoogste 60o  

Om te voorkomen, dat belendende percelen worden geconfronteerd met relatief lange wanden hoger dan 3 meter (topgevels) en bescherming van woon- en/of gebruiksgenot te geven, is een voor bebouwing voor de zone op minder dan 3 meter van de zijdelingse perceelsgrens een specifieke regeling opgenomen. Voor bijgebouwen hoger dan 3 meter geldt dat de nok min of meer evenwijdig aan de richting van die perceelsgrens moet liggen of, als dat niet zo is een wolfseind aan de zijde van de perceelsgrens moet worden toegepast. Uitzondering vormen bijgebouwen die zich uitstrekken over beide aan elkaar grenzende bouwpercelen. Hier zijn namelijk geen hinderlijke effecten voor de buren, als gevolg van de hoge topgevel, omdat die ook op hun eigen perceel staat.

Oppervlaktes
De toegestane gezamenlijke oppervlakte van bijgebouwen is afhankelijk van de grootte van het bouwperceel. Mits het toegestane bebouwingspercentage niet wordt overschreden is 50 m² aan bijgebouwen en overkappingen toegestaan. Des te groter het bouwperceel is, des meer m² aan (vrijstaande) bijgebouwen en overkappingen wordt toegestaan, met een maximum van 100 m² op bouwpercelen groter dan 600 m².

Afwijken bouwregels
Afwijking mits positief advies door stedebouwkundige commissie
Als gevolg van de Wet Algemene Bepalingen Omgevingsrecht (Wabo) is het voor een aantal uitbreidingen of toevoeging van bijbehorende bouwwerken niet langer nodig om een omgevingsvergunning aan te vragen. Met name de categorie onder artikel 3 van bijlage II van het Besluit omgevingsrecht (Bor) is relevant voor bestemmingsplannen. Deze categorie vergunningsvrij bouwen geldt voor het bouwen van bouwwerken, mits passend in het bestemmingsplan, gesitueerd op het achtererf of zijerf (mits 1 meter achter de voorgevel) en niet hoger dan 5 meter. Als het om een dergelijk geval gaat wordt een aanvraag niet meer vooraf getoetst worden door een ambtenaar of een welstandscommissie: de burger of ondernemer die een vergunningsvrij bouwwerk wil bouwen moet er voortaan zelf voor zorgen dat het aan alle regels voldoet.

Slagboomconstructie
Vanwege de komst van de Wabo is er in nieuwe bestemmingsplannen vanaf 2010 bewust voor gekozen om bepaalde bouwmogelijkheden bij recht te beperken. Dit geldt voor wat betreft de breedte van het woongebouw of het hoofdgebouw inclusief aangebouwde bijgebouwen. De oppervlakte voor bijgebouwen op het zijerf is daardoor beperkt. Een deel van de bebouwingsruimte is 'achter de slagboom' gezet door binnenplanse afwijkingsbevoegdheden op te nemen om af te wijken van bouwregels. De enige afwijkingsvoorwaarde om aan die gevallen mee te werken is dat het college advies bij een door haar aangewezen stedebouwkundige commissie heeft ingewonnen, dit om te ruimtelijke kwaliteit te borgen. Wanneer het verzoek om af te mogen wijken door de commissie positief is beoordeeld kan de omgevingsvergunning voor afwijking van het bestemmingsplan worden verleend, waarna de aanvrager alsnog vergunningsvrij ten aanzien van bouwen de uitbreiding mag realiseren.

Relatie met vergunningsvrij bouwen
Per 1 november 2014 zijn de regels voor vergunningsvrij bouwen in bijlage II van het Bor verder verruimd. De mogelijkheden om op basis van artikel 2 van bijlage II zonder bestemmingsplantoets in het achterfgebied vergunningsvrij 'bijbehorende bouwwerken' te bouwen zijn aanzienlijk vergroot. Door deze verruiming is vrijwel de gehele bebouwingsruimte die in het bestemmingsplan bij recht voor bijgebouwen wordt geboden, vergunningsvrij zonder bestemmingsplan toets. Dit geldt ook voor vrijwel alle bouwmogelijkheden die in het bestemmingsplan vanwege invoering van de Wabo 'achter de slagboom' zijn geplaatst.

In de nieuwe regels van het Bor worden in artikel 2, bij het bepalen van de maximale oppervlakte die aan 'bijbehorende bouwwerken' mogelijk is, alle bestaande (al dan niet vergunde) bouwwerken meegeteld. Deze aanpassing betekent dat op percelen waar de bouwmogelijkheden voor 'bijbehorende bouwwerken' op grond van het bestemmingsplan al zijn benut, geen ruimte meer is voor vergunningsvrije 'bijbehorende bouwwerken'.

Toegestaan gebruik
Binnen de bestemmingen in de hoofdgroep Wonen moet de woonfunctie de belangrijkste functie zijn, met dien verstande dat deze niet is toegestaan in vrijstaande bijgebouwen. Binnen de bestemming wonen zijn vrije beroepen bij recht toegestaan daarnaast kan een omgevingsvergunning voor het afwijken van de regels worden verleend voor bepaalde andere aan-huis-verbonden beroepen of bedrijfsactiviteiten. Deze zijn opgenomen in de bijlage op een limitatieve lijst. Bij de vrijstaande woningen is een bed & breakfast toegestaan, mits wordt voldaan aan hetgeen is gesteld in de beleidsregels recreatieve verblijfsaccommodaties. Om tegemoet te komen aan de opkomst van internetverkoop wordt het in de woonbestemmingen toegestaan om administratieve werkzaamheden met betrekking tot internetwinkels en telefonische verkoop van goederen uit te voeren onder enkele voorwaarden. Paardenbakken die hobbymatig worden gebruikt zijn ook toegestaan binnen de bestemming Wonen. Voor een situering op aangrenzende (cultuur)gronden kan onder voorwaarden een omgevingsvergunning worden verleend.

Strijdig gebruik
Tot een gebruik strijdig met van de woonbestemmingen wordt in ieder geval begrepen het gebruik ten behoeve van bewoning dan wel de mogelijkheid daartoe essentiële woonvoorzieningen als de al dan niet gecombineerde aanwezigheid van de een slaapkamer, toilet, badkamer en keuken, in vrijstaande bijgebouwen. Hiermee wordt voorkomen dat een zelfstandige woning op een oneigenlijke manier ontstaat.

5.3.5 Bedrijf

Deze bestemming voorziet in een regeling voor (individuele) bedrijven die niet zijn gelegen op een bedrijventerrein. Branches die hierbinnen vallen worden geregeld in de Staat van Bedrijven die in de bijlage van het bestemmingsplan is opgenomen.

Bij recht zijn bedrijven tot en met milieucategorie 3.1 toegestaan. Bestaande bedrijven die niet passen binnen de bestemmingsregeling worden specifiek benoemd. Daarnaast is er een afwijkingsbevoegdheid opgenomen bedoeld voor bedrijven die niet genoemd worden binnen de Staat van Bedrijven maar naar aard en effecten op het woon- en leefklimaat van de aangrenzende woongebieden, al dan niet onder te stellen voorwaarden, voor wat betreft geur, stof, gevaar en geluid, gelijk kunnen worden gesteld met de bedrijven welke wel zijn genoemd.

In dit plan is de bestemming gebruikt voor het perceel Oudeweg 113a in Siddeburen (Vertisol).

Op het perceel Oudeweg 113a in Siddeburen is geen bedrijfswoning toegestaan.

5.3.6 Gemengd - 2

De bestemming 'Gemengd- 2' voorziet in een bestemmingsregeling waarbij uitwisseling en combineren van de volgende functies mogelijk is: wonen en lichte bedrijven. De bestemming wordt toegekend aan het perceel aan de Oudeweg 186 te Siddeburen.

Binnen de bestemming 'Gemengd - 2' is in principe geen detailhandel en/of horeca toegestaan, met uitzondering van ondersteunende horeca en detailhandel middels een aanduiding 'specifieke vorm van detailhandel - motorfietsen'. Detailhandel in motorfietsen en daarmee rechtstreeks samenhangende accessoires, onderhoudsmiddelen, onderdelen en/of materialen is hiermee toegestaan.

De bebouwingsmogelijkheden zijn afgestemd op de bestaande hoofdgebouwen (woning of indien sprake is van een boerderijvorm, de boerderij met inpandige woning).

5.3.7 Verkeer - verblijfsgebied

De bestemming Verkeer - Verblijfsgebied is gericht op de verblijfsfunctie en secundair op de verkeersfunctie. Deze gronden hebben in principe een multifunctioneel karakter waarbij de inrichting gericht is op woonstraten, pleinen, fiets- en voetpaden, speel- en parkeervoorzieningen en daarnaast ook groen en water. Standplaatsen kunnen met een afwijkingsregeling worden mogelijk gemaakt.

De bestemming Verkeer - Verblijfsgebied is opgenomen op het perceel aan de Hoofdweg 21 te Scharmer. Binnen deze bestemming zijn dan ook overige voorzieningen voor de buskeerlus toegestaan.

5.4 Toelichting dubbelbestemmingen

Aan een dubbelbestemming bestaat de behoefte, wanneer een bestemming onvoldoende recht doet aan de functies/gebruiksdoeleinden die op de gronden toelaatbaar zijn of wanneer ruimtelijk relevante belangen veilig moeten worden gesteld die niet of onvoldoende met een bestemming kunnen worden gewaarborgd. Een dubbelbestemming heeft altijd betrekking op een geometrisch bepaald vlak.

In de SVBP is een drietal hoofdgroepen vastgelegd waarbij moet worden aangesloten voor het toekennen van een dubbelbestemming. Dit zijn de hoofdgroepen:

  • Leiding: waarbinnen beschermingszones van o.a. gasleidingen en hoogspanningsleidingen worden geregeld. Op en binnen de beheerszone van deze leidingen mag niet gebouwd worden en mag niet in de bodem worden gegraven, noch beplanting worden aangebracht.
  • Waarde: bijv. landschappelijke en/of archeologische waarden.
  • Waterstaat: bijv. waterbergingsgebieden of waterkeringen.

De bouw- c.q. gebruiksregels in de dubbelbestemming bepalen de verhouding van de basisbestemming ten opzichte van de dubbelbestemming.

5.4.1 Waarde - Archeologie 3

Waarde - Archeologie 3: van toepassing op gebieden met een hoge archeologische verwachtingswaarde. Voor dit bestemmingsplan is deze dubbelbestemming op het perceel aan de Hoofdweg 21 te Scharmer van toepassing. Bouwwerken en werken of bepaalde werkzaamheden met een oppervlakte groter dan 200 m² zijn verbonden aan een omgevingsvergunning om af te wijken van het bestemmingsplan.

5.4.2 Waarde - Karakteristieke bebouwing

De bebouwingslinten, anders dan het beschermd dorpsgezicht, in de gemeente geven goed zichtbaar en herkenbaar de veenkoloniale ontstaansgeschiedenis van het landschap weer. De linten hebben elk hun karakteristiek voor wat betreft de afwisseling van open en gesloten ruimten, de kavelstructuur, de richting van de kavels ten opzichte van de ontginningsas, de omvang van de bouwvolumes etc.

Door sloop kunnen deze karakteristieken aangetast worden en verloren gaan. Met name in het geval bestaande gebouwen worden gesloopt en niet worden vervangen.

Ter bescherming van de karakteristiek van de linten, moet worden voorkomen dat open gaten ontstaan in de bestaande bebouwingsstructuur. Dit gebeurt door het slopen van gebouwen vergunningplichtig te stellen voor zover die sloop de karakteristiek van het lint kan aantasten. Voorheen was deze bescherming niet mogelijk, maar met de komst van de nieuwe Wet ruimtelijke ordening is dat veranderd. Om deze bescherming mogelijk én herkenbaar te maken, zijn alle karakteristieke linten in de gemeente als 'Waarde - Karakteristieke bebouwing' bestemd. De bestemming Waarde - Karakteristieke bebouwing is van toepassing op het perceel aan de Rijksweg Oost 113 te Sappemeer.

5.5 Toelichting gebiedsaanduidingen

5.5.1 Algemeen

Indien een dubbelbestemming niet tot de mogelijkheden behoort en er - bijvoorbeeld op grond van sectorale regelgeving - toch aanleiding bestaat om extra mogelijkheden of beperkingen in het plan op te nemen, kan van gebiedsaanduidingen gebruik worden gemaakt. Een gebiedsaanduiding is een aanduiding die verwijst naar een gebied waarvoor bij de toepassing van het bestemmingsplan specifieke regels gelden of waar nadere afwegingen moeten worden gemaakt, hetzij ter beperking van de gebruiksmogelijkheden hetzij ter verruiming daarvan.

Gebiedsaanduidingen overlappen meestal meerdere bestemmingen. Bij gebiedsaanduidingen gaat het veelal om zones en (deel)gebieden die aan sectorale regelgeving zijn ontleend. In alle gevallen gaan gebiedsaanduidingen vergezeld van een daarop betrekking hebbende regeling (meestal in Hoofdstuk 3 - Algemene Regels, van de regels). Indien dit niet het geval is en de gebiedsaanduiding louter een informatief doel dient, dient gebruik van deze aanduiding achterwege te blijven. Met het oog hierop kunnen aan een gebiedsaanduiding specifieke bouw- of gebruiksregels worden gekoppeld. Om belangen nader te kunnen afwegen, kan een gebiedsaanduiding ook vergezeld gaan van een vergunningenstelsel of een afwijkings- of wijzigingsbevoegdheid.

In de SVBP is een limitatieve lijst met te gebruiken gebiedsaanduidingen opgenomen. Onderstaande lijst is gegroepeerd naar hoofdgroepen de in een bestemmingsplan te hanteren gebiedsaanduidingen opgesomd. Bij het opstellen van een bestemmingsplan moet voor zover van toepassing - van deze gebiedsaanduidingen gebruik worden gemaakt.

In het voorliggende bestemmingsplan wordt gebruik gemaakt van de volgende gebiedsaanduidingen:

5.5.2 Veiligheidszone - vervoer gevaarlijke stoffen

Langs de wegen N387, N865 en N33 is de aanduiding 'veiligheidszone - vervoer gevaarlijke stoffen' toegepast. De wegen zijn opgenomen in het Provinciaal Basisnet Groningen, waarin een borging van risico-afstanden als gevolg van transporten van gevaarlijke stoffen is vastgelegd. Op grond van het Basisnet geldt voor deze infrastructuur dat binnen een zone van 30 meter geen nieuwe kwetsbare objecten worden opgericht en tevens het vestigen van nieuwe functies (scholen, zorgwoningen, zorgcentra, et cetera) voor beperkt zelfredzame personen wordt uitgesloten. Ter plaatse van de aanduiding is het niet toegestaan objecten ten behoeve van minder zelfredzame personen te bouwen of in gebruik te nemen. Deze gebiedsaanduiding is van toepassing op het perceel aan de Oudeweg 186 te Siddeburen.

5.5.3 Milieuzone - geur- en geluidzone .50 m

Ter plaatse van de aanduiding 'milieuzone - geur en geluidzone 50 m' moet een goed woon- en leefklimaat worden geschept en in stand worden gehouden. Binnen de zone van 50 m mogen geen tuinbouwactiviteiten plaatsvinden in verband met het voorkomen van geluid en geurhinder. VNG-brochure Bedrijven en Milieuzonering (2009) stelt de afstand op 30 m in verband met geluid. 50 m is een richtafstand uit het Besluit glastuinbouw betreffende mestopslag, zodat deze verruiming acceptabel wordt geacht. Deze aanduiding is van toepassing voor het perceel aan de Rijksweg Oost 113 te Sappemeer.

5.5.4 Milieuzone - geurzone - 100 m

Ter plaatse van de aanduiding 'milieuzone - geurzone - 100 m' moet een goed woon- en leefklimaat worden geschept en in stand worden gehouden. Binnen de zone van 100 m geldt het regime dat in verband met het voorkomen van geurhinder geen mestopslag- en fermentatie is toegestaan. Deze richtafstand is conform de VNG-brochure Bedrijven en Milieuzonering. Ook deze aanduiding is van toepassing voor het perceel aan de Rijksweg Oost 113 te Sappemeer.

5.5.5 Milieuzone - geluidsgevoelige functie

Over delen van het plangebied aan de Hoofdweg 13-15 te Harkstede loopt de milieuzone - geluidsgevoelige functie. Zie hiervoor ook paragraaf 4.2.2.4 van deze toelichting. Deze milieuzone is op de plankaart aangegeven middels de gebiedsaanduiding 'milieuzone - geluidsgevoelige functie'. Dit betekent dat vanuit de gebiedsaanduiding rekening is gehouden en afstemming is bereikt met de bepalingen uit de Wet geluidhinder.

5.5.6 Geluidzone - weg

In de voormalige gemeente Slochteren is langs enkele wegen de gebiedsaanduiding 'geluidzone - weg' toegepast, te weten de A7, N387 en N33. De reikwijdte van de gebiedsaanduiding is gelijk aan de 48 dB-contour zoals deze blijkt uit de Nota Wegverkeerslawaai gemeente Slochteren.

Langs andere wegen is geen toepassing gegeven aan zulke geluidzones, omdat de eerstelijns bebouwing aldaar met de voorzijde is gericht op de betreffende wegen. In die gevallen kan door de bouwgrens parallel aan de weg te leggen worden voorkomen dat woningen en andere geluidsgevoelige objecten dichter op de weg worden gebouwd dan in de huidige situatie. Met andere woorden: woningen mogen niet dichter op de weg worden gebouwd dan de kortste afstand tussen gevel en weg, tenzij de geluidbelasting lager is dan de voorkeurswaarde of de vastgestelde hogere waarde.

Indien de weg, waarvan de geluidzone tot de woningen of andere geluidsgevoelige objecten reikt, aan de achterzijde ligt, is beperking van het bouwvlak een minder praktisch instrument om te voorkomen dat wordt uitgebreid in de richting van de betreffende weg. Daarom wordt daar een 'geluidzone - weg' toegepast, waardoor het mogelijk is om geluidsgevoelige ruimten in/bij woningen of andere geluidsgevoelige objecten uit te breiden mits blijkt dat:

  • de uitbreiding niet tot gevolg heeft dat de geluidbelasting door wegverkeerslawaai niet groter is dan de geldende voorkeursgrenswaarde of;
  • de afstand van de woning tot de weg na uitbreiding niet afneemt of;
  • de uitbreiding niet tot gevolg heeft dat de geluidbelasting door wegverkeerslawaai niet groter is dan de vastgestelde hogere waarde.

Indien bovengenoemde 3 voorwaarden niet van toepassing zijn, kunnen burgemeester en wethouders een omgevingsvergunning verlenen om de geluidsgevoelige ruimten uit te breiden, mits hiervoor reeds een hogere waarde is vastgesteld.

De aanduiding is van toepassing voor de plangebieden aan de Oudeweg 113A te Siddeburen, en Hoofdweg 21 te Scharmer.

5.5.7 Geluidzone- industrie

Over delen van het plangebied loopt de geluidzone van industrieterreinen. Daarvoor zijn eerder, conform de Wet geluidhinder, geluidzones vastgesteld. Deze geluidzone (de 48 c.q. 50 dB-contour) valt voor een deel binnen het plangebied en is op de plankaart aangegeven middels de gebiedsaanduiding 'geluidzone - industrie'. Dit betekent dat vanuit de gebiedsaanduiding rekening is gehouden en afstemming is bereikt met de bepalingen uit de Wet geluidhinder. Deze aanduiding is van toepassing op het perceel aan de Oudeweg 186 te Siddeburen.

5.5.8 Vrijwaringszone- molenbiotoop

De molenbeschermingszone rondom een molen heeft als doel het gebied binnen de invloedssfeer van de molen te vrijwaren van hoge bebouwing en beplanting om de windvang en het zicht op de molen te behouden.
Bij het toepassen van de molenbeschermingszone wordt gewerkt met een formule, op basis waarvan de toegestane bouwhoogte kan worden berekend. De aanduiding is van toepassing op de gronden aan de Hoofdweg 13-15 te Harkstede.

5.5.8.1 Biotoopformule

Bij de bouw van bouwwerken op de gronden die zijn aangeduid als molenbeschermingszone dienen de volgende bepalingen in acht genomen te worden:

  • binnen 100 meter mag de bouwhoogte maximaal de hoogte van de stelling of belt bedragen;
  • in het gebied tussen 100 en 400 van de voet van de molen geldt als maximum bouwhoogte de uitkomst van de volgende formule (afstand tot de molen / n) + (0,2 * askophoogte).

Er wordt een uitzondering gemaakt voor bestaande bouwwerken en de gronden binnen de molenbeschermingszone waar een andere maximum bouwhoogte is toegestaan op grond van de Toetsingskaart molenbiotoop. Hier is een afwijkende bouwhoogte mogelijk omdat dit situaties betreft waar de vrije windvang en/of het zicht op de molen reeds is beperkt door bestaande bebouwing. Uit een inventarisatie van bestaande hogere bebouwing (bouwhoogte minimaal 7 meter) en situaties direct in het verlengde van deze bebouwing (verder afgaand van de molen) zijn de oranje aangeduide percelen voortgekomen. Voor deze situaties is binnen de bouwvlakken een bouwhoogte toegestaan van ten hoogste 7 meter. Voor percelen binnen de molenbeschermingszone die niet oranje zijn aangeduid, geldt de regeling van biotoopformule.

Er is in de regels een afwijkingsmogelijkheid voor hogere bebouwing dan de biotoopformule (en de aanduiding op de toetsingskaart) aangeeft. Bij deze afweging wordt het advies van een molendeskundige betrokken.

Toelichting formule:
De waarde 'n' staat voor ruwheidscategorie. Voor open gebied bedraagt deze waarde 140; voor ruw en gesloten (stedelijk) gebied bedraagt de waarde 75 respectievelijk 50.

De askophoogte is de hoogte waarop de wieken zijn bevestigd, gemeten vanaf het peil van waaraf de hoogte van de in de aanhef van artikel 1.2 bedoelde bouwwerken wordt gemeten. Bij de aanwezigheid van een stelling of belt wordt deze hoogte meegeteld. De askophoogte kan op de volgende manier worden bepaald (voorbeeld op basis van de molen in Harkstede): de helft van de vlucht (20.60 m / 2 = 10.30 m) + stellinghoogte (= 5.50 m), totaal = 15.80 m (dit is de askophoogte).

5.5.8.2 Molens in of nabij het plangebied

Binnen het plangebied zijn geen molens. Wel reikt de molenbiotoop van Stel's meuln in Harkstede tot binnen het plangebied aan de Hoofdweg 13-15 te Harkstede.

De molen in Harkstede staat door de naoorlogse dorpsuitbreidingen tegenwoordig midden in het dorp. Vanwege de omringende bebouwing en beplanting is de huidige molenbiotoop als matig van kwaliteit. Binnen 100 meter rondom de molen is de bestaande bebouwing namelijk hoger dan de biotoopregeling aangeeft: de bouwhoogte is hoger dan de stellinghoogte van 5,5 meter. Het gaat voornamelijk om woningen tot 7 meter hoog, maar ook enkele hogere objecten. De bijgebouwen, standaard toegestaan tot 5,5 meter, hebben geen invloed. Ook de zone tussen 200 en 400 meter is niet optimaal. De biotoopformule geeft een bouwhoogte tussen 7,20 meter en 11,20 meter (bij ruwheidscategorie 50).

Dit bestemmingsplan maakt geen nieuwe ontwikkelingen mogelijk die een onevenredige aantasting van de molenbiotoop veroorzaken. Bij nieuwe ontwikkelingen binnen het gebied dat aangeduid is als 'vrijwaringszone - molenbiotoop' zal worden getoetst aan de regels in de algemene aanduidingsregels. Indien nodig kan daarbij ook gebruik worden gemaakt van de afwijkingsbevoegdheid. Bij het bepalen van de ruwheidsfactor in de vrijwaringszone van de verschillende molens is rekening gehouden met het de aanwezige elementen en structuren die het zicht op de molen en de windvang al belemmeren.

5.5.9 Wetgevingzone - afwijkingsgebied - detailhandel

In delen van het lint aan de Harkstede (binnen bestaand bebouwd gebied) waar sprake is van functiemenging is een aanduiding weergegeven om een omgevingsvergunning (voor het afwijken van de bestemmingsregels) te kunnen verlenen voor kleinschalige detailhandel bij woningen. De regeling sluit aan bij verschillende verzoeken van (aspirant) ondernemers in het lint. Door de strikte voorwaarden, waardoor de activiteit ondergeschikt blijft aan de woonfunctie, kan de kleinschaligheid worden gewaarborgd en wordt er geen afbreuk gedaan aan de bestaande detailhandelstructuur in de kernen.

De voorwaarden van de beleidsregels aan-huis-verbonden beroep zijn hierbij grotendeels van toepassing, met een aantal afwijkingen:

  • de maximum oppervlakte is vastgelegd op 30 m²;
  • het verbod op detailhandel is losgelaten;
  • de limitatieve lijst met activiteiten is niet van toepassing voor detailhandel.

De regel kan worden toegepast bij woningen langs het lint in het plangebied aan de Hoofdweg 13-15 te Harkstede.

5.5.10 Overige zone - dorpsgebied

De gebiedsaanduiding 'overige zone - dorpsgebied' is overgenomen uit het oorspronkelijke bestemmingsplan Buitengebied, zoals vastgesteld in 2010. Met deze aanduiding wordt een onderscheid gemaakt tussen bebouwd gebied en het buitengebied en vindt hiermee aansluiting op het beleid van de Provincie Groningen. Met deze aanduiding zijn meerdere bebouwingslinten in het buitengebied als 'dorpsgebied' aangeduid. Hierbij is gekozen voor een globale, ruimere begrenzing dan de begrenzing zoals opgenomen in het provinciale beleid. Binnen deze begrenzing is meer ruimte voor nieuwe bebouwing dan er buiten. De begrenzing sluit echter niet 1 op 1 aan bij het provinciale beleid.

Deze constructie heeft tot gevolg dat een nieuwe ontwikkeling binnen de aanduiding 'dorpsgebied' niet zondermeer met slechts een ontheffing uit dit bestemmingsplan mogelijk kan worden gemaakt. Er zal ook gekeken moeten worden of de betreffende locatie voldoet aan de provinciale begrenzing en in voorkomend geval zal eerst ontheffing van de POV moeten worden aangevraagd voordat de binnenplanse ontheffing kan worden verleend.

Hoofdstuk 6 Economische uitvoerbaarheid

6.1 Algemeen

Dit plan heeft primair het doel de bestaande situatie te actualiseren. De kosten voor het opstellen van dit plan komen voor rekening van de gemeente. In het plan wordt een aantal (kleinschalige) ontwikkelingsmogelijkheden geboden. Deze ontwikkelingen kunnen hoofdzakelijk mogelijk worden gemaakt door middel van het verlenen van een omgevingsvergunning voor het afwijken van de bestemmingsregels of het toepassen van een wijzigingsbevoegdheid. Het betreft in de meeste gevallen particulier initiatief waaraan in beginsel geen kosten voor de gemeente zijn verbonden, afgezien van kosten van het ambtelijk apparaat voor de begeleiding en toetsing van aanvragen. Deze laatste kosten worden door middel van leges gedekt.

6.2 Exploitatieplan

Op grond van artikel 6.12 van de Wro kan de raad bij de vaststelling van een bestemmingsplan ook een exploitatieplan vaststellen. Dit is niet noodzakelijk indien:

Het voorliggende bestemmingsplan heeft hoofdzakelijk betrekking op de bestaande situatie in het plangebied van Verzamelplan 2018-I en omvat dan ook grotendeels een regeling die conserverend van karakter is. In een aantal gevallen wordt voortgeborduurd op besluitvorming in het verleden, waarbij de economische uitvoerbaarheid al aan de orde is geweest.

Weliswaar zijn ook nieuwe ontwikkelingen voorzien, doch deze zijn veelal nog niet op hun financiële merites te beoordelen (het betreft dan zaken die via flexibiliteitsbepalingen te zijner tijd mogelijk worden gemaakt). Verder gaat het om particuliere initiatieven, waarvan de economische uitvoerbaarheid in handen ligt van de initiatiefnemers.

Daarom is het weergeven van de economische uitvoerbaarheid in de vorm van een exploitatieplan niet noodzakelijk.

6.3 Planschade

In artikel 6.1 Wro is bepaald dat burgemeester en wethouders een belanghebbende die als gevolg van een bepaling van een bestemmingsplan (of een ander ruimtelijk besluit) schade lijdt, in de vorm van inkomensderving of waardevermindering van een onroerende zaak, op zijn verzoek een tegemoetkoming in de schade toekennen. Daarbij geldt dat de schade redelijkerwijs niet voor rekening van de aanvrager behoort te blijven en dat een tegemoetkoming op een andere wijze niet is verzekerd. Binnen het normale maatschappelijke risico vallende schade blijft voor rekening van de aanvrager. Daarnaast wordt ook een waardevermindering van maximaal 2% ontstaan door een verandering in het planologisch regime binnen het normale maatschappelijke risico gerekend.

Het voorliggende bestemmingsplan is een actualisering van de bestaande situatie waarin niet wordt voorzien in planologische wijzigingen die het normale maatschappelijk risico zoals hiervoor genoemde overschrijden.

Hoofdstuk 7 Maatschappelijke uitvoerbaarheid

7.1 Vooroverleg

Het voorontwerp verzamelbestemmingsplan wordt op grond van artikel 3.1.1. van het Besluit ruimtelijke ordening (Bro) toegezonden aan de volgende instanties:

  • Provincie Groningen;
  • Waterschap Hunze en Aa's;
  • Veiligheidsregio Groningen;
  • Omgevingsdienst Groningen;
  • Tennet;
  • Gasunie;
  • NAM;
  • Enexis B.V.

Ingekomen overlegreacties kunnen leiden tot een inhoudelijke aanpassing van het verzamelbestemmingsplan. Ingekomen overlegreacties en eventuele inhoudelijke aanpassingen worden benoemd in de 'Nota van overlegreacties'. Deze nota is als bijlage aan deze toelichting toegevoegd.

7.2 Inspraak

De Wet ruimtelijke ordening (Wro) verplicht niet om een voorontwerp bestemmingsplan ter inzage te leggen voor inspraak. Om betrokkenen in een vroeg stadium bij de planvorming te betrekken en eventuele onjuistheden uit het plan te halen wordt het voorontwerp verzamelbestemmingsplan wel ter inzage gelegd.

Het voorontwerp verzamelbestemmingsplan ligt gedurende zes weken ter inzage. Tijdens deze periode kan iedereen het plan bekijken, vragen stellen en een inspraakreactie indienen. Ingekomen inspraakreacties kunnen leiden tot een inhoudelijke aanpassing van het bestemmingsplan. Ingekomen inspraakreacties en eventuele inhoudelijke aanpassingen worden benoemd in de 'Nota van inspraakreacties'. Deze nota is als bijlage aan deze toelichting toegevoegd.

7.3 Zienswijzen

Het ontwerp verzamelbestemmingsplan is op grond van artikel 3.8 Wet ruimtelijke ordening (Wro) gedurende zes weken ter inzage gelegd. Tijdens deze periode kon iedereen het plan bekijken, vragen stellen en een zienswijze indienen. In deze periode zijn twee reacties ontvangen: een schriftelijke reactie van het waterschap Hunze en Aa's (bijgevoegd als Bijlage 3) en een mondelinge reactie van het steunpunt externe veiligheid. In deze paragraaf wordt ingegaan op de ingekomen reacties.


Reactie waterschap
Het waterschap vraagt om afspraken over goede waterhuishouding m.b.t. de planologische aanpassing in Harkstede (Hoofdweg 13-15) vast te leggen. Het waterschap had graag gezien dat deze afspraken al in het ontwerpbestemmingsplan waren benoemd.


Beantwoording gemeente:
In de tekst van de toelichting is aandacht besteed aan de waterhuishoudkundige situatie van de ontwikkeling aan de Hoofdweg 13-15 te Harkstede. Ook is benoemd dat er een extra watergang wordt gerealiseerd. Met betrekking tot verharding en bebouwing geldt dat er in ieder geval minder bebouwing en verharding wordt gerealiseerd dan aanwezig was bij de oude situatie. Waterschap en ontwikkelaar zullen onderlinge afspraken maken hoe één en ander qua waterhuishouding zal worden uitgevoerd (waterhuishoudkundig plan). Deze afspraken waren nog niet afgerond in september 2018, toen het bestemmingsplan als ontwerp ter inzage lag. Met die reden is in de regels behorende bij dit plan een voorwaardelijke verplichting opgenomen waarin bij de aanvraag omgevingsvergunning voor bouwen aangetoond dient te worden dat afstemming met het Waterschap over eventuele compensatiemaatregelen heeft plaatsgevonden. Waar nodig kunnen nadere eisen in de omgevingsvergunning over deze compensatie worden opgenomen.

Conclusie 
De reactie van het waterschap is gegrond. De toelichting en regels zijn aangepast naar aanleiding van de opmerkingen.

Reactie Steunpunt externe veiligheid
Er is een mondelinge reactie ontvangen van het steunpunt externe veiligheid. Het steunpunt geeft aan dat een aanvulling nodig is in de toelichting met betrekking tot externe veiligheid. Er is een berekening van het groepsrisico (externe veiligheid) nodig aangaande Rijksweg Oost 113 Sappemeer. Deze berekening is slechts een extra onderbouwing van het genoemde in paragraaf 4.3.2.3, en veranderd niets aan de conclusie over de uitvoerbaarheid van het bestemmingsplan.

Beantwoording gemeente: 
In de toelichting heeft een aanpassing plaatsgevonden in paragraaf 4.3.2.3. De berekening groepsrisico is als Bijlage 1 toegevoegd.

Conclusie
De mondelinge reactie van het Steunpunt externe veiligheid is gegrond. De toelichting is inhoudelijk aangepast.

7.4 Vaststelling

Nadat het ontwerp verzamelbestemmingsplan zes weken ter inzage heeft gelegen besluit de gemeenteraad over de vaststelling van het plan. Het vastgestelde verzamelbestemmingsplan wordt vervolgens zes weken ter inzage gelegd. Tijdens deze periode kunnen belanghebbenden die op tijd een zienswijze hebben ingediend beroep instellen tegen het vastgestelde plan.

Het vastgestelde verzamelbestemmingsplan treedt in werking nadat het vastgestelde plan zes weken ter inzage heeft gelegen. Het instellen van beroep schorst de inwerkingtreding van het verzamelbestemmingsplan niet, tenzij hier een specifiek verzoek voor wordt ingediend.