direct naar inhoud van Toelichting
Plan: Linge 22 te Naaldwijk
Status: vastgesteld
Plantype: bestemmingsplan
IMRO-idn: NL.IMRO.1783.KERNNWKLINGE22pbp-VA01

Toelichting

Hoofdstuk 1 Inleiding

1.1 Aanleiding

Door BAS1S Architecten is een verzoek tot het vaststellen van een bestemmingsplan ingediend voor het mogelijk maken van de bouw van een extra woning op een deel van het perceel Linge 22 te Naaldwijk. Het perceel Linge 22 te Naaldwijk heeft een totale oppervlakte van ca. 888m2. Het perceel is momenteel bebouwd met een vrijstaande woning met omliggende tuin en verharding en bijgebouwen. Voorgesteld wordt om een deel van het perceel af te splitsen en voor het hieruit ontstane kavel met een oppervlakte van 389m2 een bestemmingsplan op te stellen teneinde de bouw van een woning mogelijk te maken.

afbeelding "i_NL.IMRO.1783.KERNNWKLINGE22pbp-VA01_0001.jpg"

Situatie afgesplitst kavel

1.2 Ligging plangebied

Het plangebied is gelegen op een stuk grond gelegen aan de noordwest zijde van de straat De Linge. Aan de zuidoost zijde wordt het gebied begrenst door een watergang met hieraansluitend openbaar groen. Het plangebied is kadastraal bekend gemeente Naaldwijk, sectie G nummers 9947 en 9951.

afbeelding "i_NL.IMRO.1783.KERNNWKLINGE22pbp-VA01_0002.jpg"

Luchtfoto bestaande situatie met indicatie ligging plangebied

1.3 Geldend bestemmingsplan

Het perceel is gelegen binnen het vigerende bestemmingsplan 'Woonkern Naaldwijk'. Volgens voormeld bestemmingsplan geldt ter plaatse van de gronden waarop het plan is gesitueerd ingevolge artikel 15 de bestemming ”Tuin”, ingevolge artikel 19 de bestemming "Wonen", ingevolge artikel 26 de dubbelbestemming ”Waarde - Archeologie - 4”.

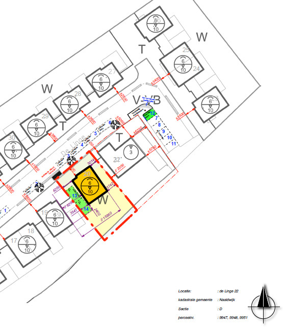
afbeelding "i_NL.IMRO.1783.KERNNWKLINGE22pbp-VA01_0003.jpg"

fragment plankaart met ligging plangebied

Gebruiksregels

Ingevolge artikel 15.1. van het bestemmingsplan zijn de voor "Tuin" aangewezen gronden bestemd voor:

a. tuinen bij de op de aangrenzende gronden gelegen hoofdgebouwen;

b. toegangen tot achterpaden.

Het voorgenomen gebruik van de gronden voor wonen is in strijd met bovenstaande gebruiksregel.

Ingevolge artikel 19.1. van het bestemmingsplan zijn de voor "Wonen" aangewezen gronden bestemd voor het wonen.

Het voorgenomen gebruik van de gronden voor wonen is in overeenstemming met bovenstaande gebruiksregel.

Bouwregels

Ingevolge artikel 15.2. van het bestemmingsplan mogen op de voor "Tuin" aangewezen gronden uitsluitend erkers, carports en bouwwerken, geen gebouwen zijnde gebouwd worden.

Het bouwvlak is gedeeltelijk geprojecteerd op voormelde gronden.

Ingevolge artikel 19.2. onder a. van het bestemmingsplan worden hoofdgebouwen uitsluitend binnen de op de planverbeelding aangegeven bouwvlakken gebouwd.

Ter plaatse van het plangebied ontbreekt een bouwvlak. Gelet op het voorgaande is het plan in strijd met bovenstaande bouwregel.

Ingevolge artikel 26.2. van het bestemmingsplan zijn de voor 'Waarde - Archeologie - 4' aangewezen gronden zijn – behalve voor de andere aldaar voorkomende bestemming(en) – mede bestemd voor de bescherming en veiligstelling van archeologische waarden.

Het plangebied is gelegen binnen bovengenoemde dubbelbestemming.

1.4 Leeswijzer

Het voorliggende bestemmingsplan bestaat uit een toelichting, planregels en planverbeelding. Allereerst wordt in hoofdstuk 2 ingegaan op de gebiedsvisie van het plangebied. Op het niveau van de gemeente, de regio, de provincie en het rijk wordt het relevante beleid voor het plangebied en de beoogde ontwikkelingen aangegeven. Tevens wordt onder voornoemd hoofdstuk de ruimtelijke opbouw en de gebiedsvisie van het plangebied geschetst waaronder ruimtelijke kwaliteiten en verkeersaspecten.

Hoofdstuk 3 bevat de uitkomsten van de noodzakelijke (milieu)technische onderzoeken met de hier aan verbonden conclusies. In hoofdstuk 4 wordt dieper ingegaan op de planvorm en de achtergrond bij de regels die zijn opgenomen voor de verschillende bestemmingen. Tot slot wordt in hoofdstuk 5 ingegaan op de economische en de maatschappelijke uitvoerbaarheid van het bestemmingsplan.

Hoofdstuk 2 Gebiedsvisie

2.1 Beleidskader

De beleidscontext voor de visie op het plangebied wordt gevormd door gemeentelijke, regionale, provinciale en landelijke beleidsrapportages. In dit hoofdstuk is het relevante beleid samengevat. Het hier samengevatte beleidskader is niet uitputtend. In de toelichting wordt op een aantal plaatsen verwezen naar specifiek beleid of beleidsnotities die niet in deze paragraaf worden behandeld. Tot slot wordt in dit hoofdstuk een beschrijving gegeven van de visie op het plangebied. Deze visie is gericht op het behoud en beheer van de ruimtelijke kwaliteit.

2.1.1 Gemeentelijk beleid

Structuurvisie Westland 2025 en perspectief 2040

De op 17 december 2013 vastgestelde Structuurvisie Westland 2020 en Perspectief 2040 bieden het ruimtelijk toekomstig ruimtelijk kader van de gemeente in woord en beeld. In het in dialoog met de samenleving tot stand gekomen perspectief 2040 staan de ambities en kernwaarden met het hieraan gekoppelde toetsingskader voor de ruimtelijke ontwikkelingen van de gemeente Westland beschreven. Naast de ruimtelijke vertaling op hoofdlijnen bieden voormelde documenten ook de onderlinge afstemming van de ambities van de gemeente op de gebieden water en groen, verkeer en vervoer, wonen, de glastuinbouwsector en economische voorzieningen.

afbeelding "i_NL.IMRO.1783.KERNNWKLINGE22pbp-VA01_0004.jpg"

Relatie met het plangebied 

Volgens de structuurvisie is het projectgebied aangewezen als dorpskern. Binnen dit gebied dient een groot deel van de woningbouwproductie opgevangen te worden. Deze verdichting komt mede voort uit het vergroten van het draagvlak voor het voorzieningenniveau en het behouden van duurzaam glas in het buitengebied. De voorgestane ontwikkeling waarbij de woning binnen de kern van Naaldwijk opgericht wordt past hier binnen.

afbeelding "i_NL.IMRO.1783.KERNNWKLINGE22pbp-VA01_0005.jpg"

Fragment structuurplan met ligging projectgebied

Verkeer- en vervoerbeleid

In de structuurvisie Westland uit 2014 is in hoofdlijnen het verbeteren van de bereikbaarheid van Westland opgenomen. Het verbeteren van de bereikbaarheid ondersteunt de ambities om een duurzame Greenport gemeente zijn, waar het goed wonen, werken en recreëren is. Speerpunten voor de bereikbaarheid zijn:

  • Aansluiting op het rijkswegennet verbeteren;
  • Realiseren vlinderstructuur Westland;
  • Mobiliteitsmanagement;
  • Hoogwaardig openbaar vervoer ontwikkelen;
  • Langzaam verkeer stimuleren;
  • Ontsluiting kernen en glastuinbouwgebieden verbeteren.


De kaders voor onder andere duurzaam veilige inrichting van de wegen en de parkeernormen zijn opgenomen in het Westlands Verkeer en Vervoerplan, vastgesteld door de raad van de gemeente op 28 november 2006.

Woonvisie

“Westland is een unieke, internationaal toonaangevende, goed bereikbare en duurzame Greenportgemeente, waarin het goed wonen, werken, ondernemen en recreëren is”. Dit is de kernambitie van de Structuurvisie Westland 2025 (perspectief 2040), die in 2013 door de gemeenteraad is vastgesteld. De woonvisie is een actualisatie van de Woonvisie Westland 2003 en richt zich op het deelonderwerp “wonen” van de structuurvisie Westland.

Karakter en functie woonvisie

De woningmarkt is continu in beweging. Dit verdraagt geen strak gedetailleerd programma, maar een kader voor beslissingen. De woonvisie biedt het kader voor besluiten over programma's, inzet van middelen en capaciteit en geeft richting aan het handelen van de gemeente en haar partners. De woonvisie is in overleg met de woningcorporaties tot stand gekomen en via een discussiebijeenkomst met andere partners op volkshuisvestingsgebied besproken.

Prioriteiten en uitgangspunten van de woonvisie

De huidige woonvisie Westland richt zich op de periode tot 2020. De uitgangspunten van deze woonvisie zijn als volgt:

  • Vergroten van kansen en keuzemogelijkheden op de woningmarkt;
  • Blijvende aandacht voor betaalbaarheid (huur én koop);
  • Meer kansen voor jonge huishoudens (waaronder starters);
  • Inspelen op de groeiende behoefte aan wonen met zorg;
  • Bijzondere doelgroepen;
  • Dynamiek op de woningmarkt (doorstroming);
  • Kwaliteit bieden voor gevorderde huishoudens.

2.1.2 Regionaal beleid

Regionaal structuurplan Haaglanden

Het Regionaal Structuurplan Haaglanden (RSP) is een integraal plan voor de ruimtelijke ontwikkeling van Haaglanden en het kader voor het regionale beleid op het gebied van milieu, groen, mobiliteit, wonen en economie en voor lokale plannen, zoals de bestemmingsplannen. Het vastgestelde Regionaal Structuurplan Haaglanden kijkt naar 2020 (en soms 2030) en omvat de grote lijnen voor de ambities en ontwikkelingen op verschillende terreinen, zoals verkeer, wonen, werken, water, groen, etc..

De vraag naar woningen, bedrijven en kantoren houdt aan, maar de ontwikkeling van nieuw stedelijk gebied gaat al snel ten koste van het groen, de Greenport of de ruimte voor water. Dit betekent dat deze ruimte in het bestaande stedelijke gebied gevonden moet worden en efficiënt moet worden gebruikt. Het plan voor het oprichten van een woning binnen de kern Naaldwijk past binnen het regionale beleid.

2.1.3 Provinciaal beleid

Het omgevingsbeleid Zuid-Holland is op 1 april 2019 in werking getreden. In het Omgevingsbeleid is al het bestaande provinciale beleid voor de fysieke leefomgeving samengevoegd in een Omgevingsvisie en een Omgevingsverordening. Omdat onderdelen uit het Programma ruimte naar het visiedeel zijn omgezet, is het resterende deel hiervan nu onderdeel van het Omgevingsbeleid. Het gehele Omgevingsbeleid is alleen redactioneel gewijzigd, de beleidsinhoud is niet veranderd.

Het beleid is eenvoudiger, transparanter en toegankelijker gemaakt voor initiatiefnemers in Zuid-Holland. Al het sectorale beleid is samengevoegd in een digitaal systeem, dubbele teksten zijn er uit gehaald en samenhang is inzichtelijker gemaakt. Hiermee is een einde gekomen aan sectorale visies en nota's. Het beleid kan nu modulair worden aangepast en daarmee kan het Omgevingsbeleid doorontwikkeld worden richting inwerkingtreding van de Omgevingswet.

Met het samenbrengen van verschillende beleidsplannen voor de fysieke leefomgeving tot 1 integraal Omgevingsbeleid sorteert de provincie voor op de Omgevingswet. De Omgevingswet verplicht provincies om 1 Omgevingsvisie en een Omgevingsverordening te maken.

De Omgevingsvisie bestaat uit de volgende onderdelen:

  • Een introductie op het Omgevingsbeleid, waarin opgenomen de ruimtelijke hoofdstructuur;
  • De ontwikkelrichting die is opgenomen in het deel Ambities en sturing;
  • Een beschrijving van de omgevingskwaliteit van Zuid-Holland, waaronder de provinciale inzet voor het verbeteren van de ruimtelijke kwaliteit;
  • Samenhangende beleidskeuzes, integraal toegankelijk via de digitale raadpleegomgeving.

Met het Omgevingsbeleid van Zuid-Holland streeft de provincie naar een optimale wisselwerking tussen gewenste ruimtelijke ontwikkelingen en een goede leefomgevingskwaliteit. Hieraan geven wij richting door het maken van samenhangende beleidskeuzes, die volgen uit onze provinciale opgaven. Deze beleidskeuzes werken door naar uitvoeringsprogramma's en naar regels in de verordening. Het geheel aan bestaande beleidskeuzes, inclusief de doorwerking naar programma's en verordening, vormt het provinciale beleid voor de fysieke leefomgeving.

Ruimtelijke hoofdstructuur

De ruimtelijke hoofdstructuur toont de essentie en de samenhang van verschillende ruimtelijke beleidskeuzes uit de Omgevingsvisie. Het integrale kaartbeeld van de ruimtelijke hoofdstructuur is opgebouwd uit de volgende kaartbeelden:

  • het dagelijks stedelijk systeem, dat bestaat uit de stedelijke agglomeratie en de daarmee via h.o.v. verbonden regiokernen;
  • de hoogstedelijke zone tussen leiden en dordrecht;
  • het logistiek-industriële systeem van mainport, greenports langs vaarwegen en zware infrastructuur;
  • de samenhang van grote landschappelijke eenheden met de stedelijke agglomeratie;
  • de groene ruimte en de groenblauwe structuur;
  • het bodem- en watersysteem;
  • energie.

afbeelding "i_NL.IMRO.1783.KERNNWKLINGE22pbp-VA01_0006.jpg"

Fragment kaart Ruimtelijke hoofdstructuur

Ruimtelijke hoofdstructuur van de ondergrond

De drukte in de ondergrond neemt toe als gevolg van nieuwe mogelijkheden om de ondergrondse ruimte te benutten en de toenemende druk op de bovengrondse ruimte. Dat vraagt om een actieve ordening van ondergrondse functies, afgestemd met bovengrondse ontwikkelingen, in een driedimensionale planvorming (3D-ordening).

De ruimtelijke hoofdstructuur van de ondergrond toont indicatief en informatief de huidige ruimtelijke situatie van de ondergrond en strategische doelstellingen voor de ondergrond. De kaart verbeeldt de grotere ondergrondse infrastructuur van bovenlokaal belang én de gebieden met een specifieke betekenis vanuit een ondergronds belang. Onder de grote ondergrondse infrastructuur van bovenlokaal belang zijn meegenomen de (buis)leidingen, warmtenetwerken, tunnels in het openbaar vervoer en wegennetwerk. Gebieden met een specifiek ondergronds belang hebben betrekking op de bescherming/reservering voor de drinkwatervoorziening, de ambitie voor bodemenergie, de stimulering van ondergrondse waterberging, aardkundige waarden en hoge archeologische waarden.

afbeelding "i_NL.IMRO.1783.KERNNWKLINGE22pbp-VA01_0007.jpg"

Fragment kaart Ruimtelijke hoofdstructuur ondergrond

Programma Ruimte

Een nieuwe versie van het Programma ruimte is gelijktijdig met de Omgevingsvisie en de Omgevingsverordening vastgesteld en in werking getreden. De nieuwe Programma ruimte heeft een iets andere opzet gekregen dan voorheen. Er is gekozen om het algemene beleid zoveel mogelijk bij elkaar te zetten in de Omgevingsvisie. Een deel van het beleid uit het oude Programma ruimte is daarom overgezet naar de Omgevingsvisie. Het resterende deel van het Programma ruimte bevat vooral locatie specifieke en programmatische gegevens. Het gaat om een nadere invulling en uitwerking van een aantal ruimtelijk relevante onderdelen van de Omgevingsvisie. De 3 ha kaart en de tabellen met locaties groter dan 3 ha buiten bestaand stads- en dorpsgebied is terug te vinden in het nieuwe Programma ruimte.

Glastuinbouw

De tuinbouw in Zuid-Holland is in de fase van volwassenheid van hun levenscyclus beland. De werkgelegenheid, de afzet en innovatiekracht van deze sectoren stabiliseren en dreigen zonder bijsturing op termijn wellicht zelfs af te nemen. De opgave voor de glastuinbouw is om te vernieuwen en verduurzamen. Kansen op innovatie en groei ontstaan door meer interactie tussen economische clusters en door nieuwe economische sectoren binnen de traditioneel sterke clusters. Nauwe samenwerking tussen overheden, ondernemers en onderzoekers en een betere aansluiting van het onderwijs op de arbeidsmarkt kunnen daarbij tot stroomversnelling leiden. Het sneller naar de markt brengen van nieuwe kennis (valorisatie) wordt daardoor bevorderd.

De opgave voor de sector is om meer toegevoegde waarde te genereren bij het zelfde ruimtegebruik met minder verbruik van energie en water. Het proces van schaalvergroting stelt eisen aan de ruimtelijke inrichting van de Greenports en vraagt om modernisering van teeltareaal. Verder experimenteert de sector op grote schaal met nieuwe vormen van energiewinning en waterberging. Naast de primaire productie groeien vooral de toeleverende bedrijven sterk, wat tot conflicterende ruimteclaims leidt, omdat het eveneens van groot belang voor het innovatief vermogen van de sector is dat binnen de provincie voldoende teeltareaal voor (glas)tuinbouw beschikbaar blijft.

Westland is een glastuinbouwgebied dat zich door herstructurering, modernisering en intensivering van het bestaande areaal verder moet ontwikkelen. Binnen Westland is ruimte voor glasopstanden, maar de Provincie biedt bij uitzondering ook ruimte voor weloverwogen vormen van functiemenging, als die het greenportcluster versterken. Bedrijven kunnen worden toegelaten als ze behoren tot de keten glastuinbouw en een bijdrage leveren aan de ontwikkeling van de Greenport als internationaal centrum voor teelt, kennis en handel.

2.1.4 Rijksbeleid

Structuurvisie Infrastructuur en Ruimte & AMvB ruimtelijke ordening

Nederland concurrerend, bereikbaar, leefbaar & veilig. Daar streeft het Rijk naar met een aanpak die ruimte geeft aan regionaal maatwerk, de gebruiker voorop zet, investeringen scherp prioriteert en ruimtelijke ontwikkelingen en infrastructuur met elkaar verbindt. Een actualisatie van het ruimtelijk- en mobiliteitsbeleid is daarvoor nodig. De verschillende beleidsnota's op het gebied van ruimte en mobiliteit zijn gedateerd door nieuwe politieke accenten en veranderende omstandigheden zoals de economische crisis, klimaatverandering en toenemende regionale verschillen onder andere omdat groei, stagnatie en krimp gelijktijdig plaatsvinden. De structuurvisie Infrastructuur en Ruimte geeft een nieuw, integraal kader voor het ruimtelijk- en mobiliteitsbeleid op rijksniveau en is de 'kapstok' voor bestaand en nieuw rijksbeleid met ruimtelijke consequenties. 

 

Doelen

In de structuurvisie Infrastructuur en Ruimte formuleert het Rijk drie hoofddoelen om Nederland concurrerend, bereikbaar, leefbaar & veilig te houden voor de middellange termijn (2028):

  • het vergroten van de concurrentiekracht van Nederland door het versterken van de ruimtelijk-economische structuur van Nederland;
  • het verbeteren, in stand houden en ruimtelijk zeker stellen van de bereikbaarheid waarbij de gebruiker voorop staat;
  • het waarborgen van een leefbare en veilige omgeving waarin unieke natuurlijke en cultuurhistorische waarden behouden zijn.

Het Westland is op de kaart van de nationale ruimtelijke hoofdstructuur aangewezen als Greenport.

afbeelding "i_NL.IMRO.1783.KERNNWKLINGE22pbp-VA01_0008.jpg" 

Figuur - Uitsnede kaart nationale ruimtelijke hoofdstructuur

 

Nationale belangen

De structuurvisie Infrastructuur en Ruimte is vertaald in de AMvB ruimtelijke ordening. De AMvB omvat alle ruimtelijke rijksbelangen die juridisch doorwerken op het niveau van bestemmingsplannen. Het gaat om kaders voor onder meer het bundelen van verstedelijking, de bufferzones, nationale landschappen, de Ecologische Hoofdstructuur, de kust, grote rivieren, militaire terreinen, mainportontwikkeling van Rotterdam en de Waddenzee. Met de AMvB Ruimte maakt het Rijk proactief duidelijk waar provinciale verordeningen en gemeentelijke bestemmingsplannen aan moeten voldoen. Uit de regels en kaarten behorende bij de AMvB kan worden afgeleid welke aspecten relevant zijn voor het ruimtelijke besluit. Voor het projectgebied zijn geen nationale belangen in het geding.

2.1.5 Conclusie

Gelet op het voorgaande kan geconcludeerd worden dat het bestemmingsplan past in het overheidsbeleid.

2.2 Ruimtelijk-functionele structuur

Het plangebied maakt onderdeel uit van een rij vrijstaande woningen en twee-onder-één-kap woningen met achterkanten aan een watergang. De omliggende woningen bestaan uit twee lagen met veelal een samengestelde kap in een met elkaar overeenkomstige architectuur. De kavels liggen een klein beetje schuin ten opzichte van de weg waardoor de woningen enigszins gestaffeld staan.

afbeelding "i_NL.IMRO.1783.KERNNWKLINGE22pbp-VA01_0009.jpg"

Luchtfoto situering plangebied en positionering omringende woningen

De woningen aan De Linge zijn veelal geschakeld met garages die ruim achter de voorgevel gesitueerd zijn op een dusdanige afstand van de weg dat parkeren voor de garage mogelijk is. Het plangebied is op gelijke wijze ingevuld.

2.3 Gebiedsvisie

Stedenbouwkundig is enige verdichting op deze locatie mogelijk onder de randvoorwaarde dat:

- de woning aansluit op de bestaande bebouwingsstructuur met bij voorkeur een architectuur overeenkomstig aan de omliggende nieuwbouw;

- er niet vòòr de voorgevel van het hoofdgebouw van de woning geparkeerd wordt. De voorgevel van het hoofdgebouw vormt de straatwand en bepaalt daarmee grotendeels het straatprofiel en straatbeeld;

- het hoofdgebouw òf in de zijdelingse perceelgrens- òf tenminste 3 meter uit de zijdelingse perceelgrens gesitueerd wordt .

Uit onderstaand overzicht blijkt dat het binnen het plangebied opgenomen bouwvlak overeenkomstig de bestaande omringende bebouwingsstructuur én op meer dan 3 meter uit de zijdelingse perceelgrenzen gesitueerd is. Parkeren op eigen terrein vindt plaats achter de voorgevel van het hoofdgebouw van de woning.

afbeelding "i_NL.IMRO.1783.KERNNWKLINGE22pbp-VA01_0010.jpg"

Overzicht invulling plangebied met ligging hoofdgebouw en parkeerplaatsen (de groen gekleurde zijn gerelateerd aan het bestemmingsplan).

2.4 Verkeer

Beleidsregel Parkeernormering gemeente Westland 2018

In de vergadering van burgemeester en wethouders van 16 januari 2018 is de 'Beleidsregel Parkeernormering gemeente Westland 2018' vastgesteld. In voornoemd beleid is de parkeernormering van de gemeente Westland geactualiseerd en in overeenstemming gebracht met de meest recente kerncijfers van het CROW (landelijke richtlijnen). Ingevolge de beleidsregel geldt voor deze vrijstaande woning een parkeernorm van 2,5 parkeerplaats waarvan 1 in de openbare ruimte.

Ten behoeve van het plan worden aan de zijkant van de woning achter de voorgevel twee parkeerplaatsen op eigen terrein aangelegd. Tevens wordt aan de noordoostzijde van De Linge 22 aan de vijf aan de straat gelegen haakse parkeerplaatsen één parkeerplaats toegevoegd. Hiervoor wordt de bestaande lantaarnpaal verplaatst. De aanleg van de extra parkeerplaats en het verplaatsen van de lantaarnpaal vindt plaats op kosten van de aanvrager.

In de in paragraaf 2.3. opgenomen afbeelding is de ligging van de aan het bestemmingsplan toe te schrijven parkeerplaatsen inzichtelijk gemaakt.

Hoofdstuk 3 Onderzoek

3.1 Externe veiligheid

3.1.1 Wettelijk kader

Externe veiligheid is een begrip in het milieurecht en gaat over het beheersen van de risico's voor de omgeving bij gebruik, opslag en vervoer over de weg, water en spoor en door buisleidingen van gevaarlijke stoffen. Als gevaarlijke stoffen kunnen worden genoemd vuurwerk, lpg en munitie. Het beleid en de wetgeving zijn erop gericht om maatregelen te treffen om de risico's van deze risicovolle activiteiten te reguleren.


Voor dit bestemmingsplan is toetsing aan het Besluit externe veiligheid inrichtingen, Besluit externe veiligheid buisleidingen en de daarop gestoelde regelingen, en aan de Circulaire Risiconormering vervoer gevaarlijke stoffen (2004) van belang. Deze Circulaire heeft een looptijd tot 31 juli 2012 en zal opgaan in het nieuwe Besluit transportroutes externe veiligheid en Basisnet vervoer gevaarlijke stoffen.

Op grond van de regels voor externe veiligheid moeten afstanden in acht worden genomen tussen risicovolle activiteiten en (beperkt) kwetsbare objecten. In de regelgeving wordt uitgegaan van een risicobenadering - en niet het volledig uitsluiten van het risico - waarbij onderscheid wordt gemaakt tussen het plaatsgebonden risico en het groepsrisico.

Het plaatsgebonden risico is een rekenkundig begrip. Het risico kan op een afbeelding zichtbaar worden gemaakt door een (iso)risicocontour die de punten met een gelijk risico met elkaar verbindt. Het groepsrisico is een maat om de kans weer te geven dat een incident met dodelijke slachtoffers plaatsvindt. Het drukt de kans per jaar uit dat een groep mensen van minimaal een bepaalde omvang overlijdt als direct gevolg van een ongeval in een inrichting, als bedoeld in de Wet milieubeheer, of bij het vervoer van gevaarlijke stoffen. Het groepsrisico moet onderzocht - en verantwoord - worden omdat ook buiten de genoemde risicocontour van het plaatsgebonden risico nog letale effecten kunnen optreden in het invloedgebied van de risicovolle activiteit en groepen personen slachtoffer kunnen worden van een calamiteit.

3.1.2 Onderzoek

Het plangebied bevindt zich op de rand van het invloedsgebied van Flora Holland en het bedrijf Van den Bos Flower Bulbs.


Door de aanwezigheid van deze risicobronnen aan de rand van het plangebied zijn beheersmaatregelen nodig. Om de effecten van de omliggende risico's te beperken en om de zelfredzaamheid van de aanwezigen te verhogen zullen aanvullende maatregelen getroffen worden. Het gaat hierbij om de bouwtechnische maatregel om ventilatie in het gebouw uit te kunnen schakelen én de organisatorische maatregelen over risicocommunicatie. De checklist waarin de geadviseerde maatregelen terug te vinden zijn is als bijlage bij deze toelichting opgenomen (document "Bijlage externe veiligheid" van 16 februari 2018). Deze maatregelen dragen bij aan het verminderen van de gevolgen van een eventuele calamiteit en worden in het kader van een omgevingsvergunning meegenomen.

3.1.3 Conclusie

Het aspect externe veiligheid vormt geen belemmering voor het herzien van de bestemming.

3.2 Water

3.2.1 Wettelijk kader

Op verschillende bestuursniveaus zijn de afgelopen jaren beleidsnota's verschenen aangaande de waterhuishouding, alle met het doel een duurzaam waterbeheer (kwalitatief en kwantitatief). Deze paragraaf geeft een overzicht van de voor het plangebied relevante nota's waarbij het beleid van het Hoogheemraadschap en de gemeente nader wordt behandeld.

 

Europa:

  • Kaderrichtlijn Water (KRW).

Nationaal:

  • Waterbeleid voor de 21ste eeuw (WB21);
  • Nationaal Bestuursakkoord Water (NBW);
  • Waterwet.
  • Nationaal waterplan

Provinciaal:

  • Provinciaal Waterplan;
  • Visie Ruimte en Mobiliteit;
  • Verordening Ruimte en de waterverordening Zuid-Holland.


Nationaal beleid
Het Rijk, de provincies, de gemeenten en de Unie van Waterschappen hebben op 25 juni 2008 een geactualiseerde versie van het Nationaal Bestuursakkoord Water (NBW-Actueel) ondertekend. Hierin zijn afspraken vastgelegd voor een duurzame en klimaatbestendige waterhuishouding in Nederland. In de afgelopen vijf jaar is een groot deel van de gemaakte afspraken in het oorspronkelijke NBW inmiddels uitgevoerd. De NBW-partijen gaan nu gezamenlijk verder met de uitvoering van de nieuwe afspraken in het akkoord, onder meer over klimaatveranderingen, de stedelijke wateropgave en de ontwikkelingen in woningbouw en infrastructuur. Ook is er meer aandacht voor de implementatie van de Kaderrichtlijn Water. Het NBW heeft tot doel om in de periode tot 2015 de waterhuishouding in Nederland op orde te brengen en te houden en te anticiperen op klimaatverandering.

Nationaal Waterplan

Op 10 december 2015 hebben de minister van Infrastructuur en Milieu en de staatssecretaris van Economische Zaken het Nationaal Waterplan 2016-2021 vastgesteld. In het Nationaal Waterplan 2016-2021 staan de volgende ambities centraal:

  • Nederland blijft de veiligste delta in de wereld;
  • Nederlandse wateren zijn schoon en gezond en er is genoeg zoetwater;
  • Nederland is klimaatbestendig en waterrobuust ingericht;
  • Nederland is en blijft een gidsland voor watermanagement;
  • Nederlanders leven waterbewust.

Structuurvisie Infrastructuur en Ruimte

Op 13 maart 2012 is de Structuurvisie Infrastructuur en Ruimte vastgesteld. De structuurvisie sluit aan op de uitgangspunten van het Nationaal Waterplan en vult deze op onderdelen aan. Uitgangspunten zijn het verbeteren van de waterkwaliteit, het voorkomen van wateroverlast, ruimte voor waterveiligheid, een duurzame zoetwatervoorziening en klimaatbestendige stedelijke (her)ontwikkeling.

 

Provinciaal beleid
Het provinciaal waterbeleid voor de periode 2016-2021 bestaat uit: de Visie Ruimte en Mobiliteit, Voortgangsnota Europese Kaderrichtlijn Water (KRW) 2016 - 2021 en onderdelen van het Provinciaal Waterplan 2010 - 2015.

In de Visie Ruimte en Mobiliteit (VRM) zijn de ruimtelijke componenten opgenomen van het waterbeleid. Hoofdstuk 4 geeft de hoofdlijnen van het provinciaal waterbeleid:

  • de ambitie om een duurzaam, concurrerende en leefbare Europese topregio te zijn. De Provincie bevordert de transitie naar een water -en energie efficiënte samenleving. Daar spelen het verbeteren van toekomstwaarde, de gebruikswaarde en de belevingswaarde een belangrijke rol;
  • aan het watersysteem worden grote uitdaging gesteld door verzilting, klimaatverandering, inklinking, veranderd ruimtegebruik en de daarbij passende veranderingen van het watersysteem;
  • het beter benutten van de kansen en natuurlijke kwaliteiten van de bodem en de ondergrond is tevens een speerpunt van het provinciaal waterbeleid;
  • tenslotte door een verandering naar een duurzame voorziening in de energiebehoefte kan worden ingezet op een energie-efficiënte samenleving.

De doelen, maatregelen en afspraken  voor de kwaliteit van het water van grond- en oppervlakte water zijn opgenomen het Stroomgebied beheerplan Rijn-West 201-2015 (SGB-1). Voor opvolgende periode 2016-2021 is het SGB-2 op 22 december 2014 gereedgekomen. De invulling van de verantwoordelijkheid in dit SGB-2 is vastgelegd in de KRW 2016-2021.

Het Waterplan Zuid-Holland 2015 was van kracht tot 22 december 2015. Op grond van artikel 48 Waterwet moet het plan om de zes jaar door de Provinciale Staten worden herzien. Het is niet noodzakelijk om een nieuw plan vast te stellen. Voldaan kan worden met het nemen van een planherzieningsbesluit. Dit besluit is genomen op 29 juni 2016 en bekend gemaakt op 8 juli 2016.

De onderdelen 'Waarborgen waterveiligheid (hoofdstuk 4)' en 'Realiseren mooi en schoon water (hoofdstuk 5)' en 'operationeel grondwaterbeleid (bijlage 7)' van het Waterplan 2015 blijven van kracht.

De Visie op Zuid-Holland bestaat uit de Visie Ruimte en Mobiliteit, de Verordening Ruimte en de Uitvoeringsagenda. Hierin beschrijft de provincie haar doelstellingen en provinciale belangen (Visie Ruimte en Mobiliteit), stelt zij regels aan ruimtelijke ontwikkelingen (Verordening) en geeft zij aan wat nodig is om dit te realiseren (Uitvoeringsagenda). In de Verordening Ruimte zijn bijvoorbeeld regels opgenomen met betrekking tot regionale keringen in bestemmingsplannen. Daarnaast is de Waterverordening Zuid-Holland van belang. Daarin zijn onder meer veiligheidsnormeringen voor regionale keringen en waterkwantiteitsnormen opgenomen. De waterkwantiteitsnormen geven aan, waar de regionale wateren met het oog op de bergings- en afvoercapaciteit op ingericht moeten zijn. Deze normen definiëren de gemiddelde overstromingskans vanuit het oppervlaktewater per jaar van daarbij aan te wijzen gebieden. Het beschermingsniveau verschilt per vorm van landgebruik en is gerelateerd aan de economische waarde van landgebruik en de te verwachten schade bij overstromingen. De waterkwaliteitsnormen zijn gerelateerd aan het landgebruik en daarmee bepalend voor de mogelijkheden, die het bestemmingsplan biedt.

De provincie heeft samen met de gemeente Den Haag en Westland een Visie Vaartenland opgesteld, een visie op hoe de vaartenstructuur in Westland en Den Haag recreatief/toeristisch en economisch elkaar kan versterken. Het project Westlandse Waterlijnen heeft de provincie in samenwerking met heel veel stakeholders uit het gebied ten westen van het Rijn-Schiekanaal opgesteld (Westland, Den Haag, Delft, Midden-Delfland, Schiedam, Vlaardingen en Maassluis). Dit heeft een wensenlijst met een soort top 5 opgeleverd, met betrekking tot versterking van de vaarrecreatie en economische spin-off, waar burgers, verenigingen en ondernemers hun zinnen op hebben gezet. Verder is in de Visie Ruimte en Mobiliteit aangegeven dat de juridische borging en versterking van het vaarnetwerk overgedragen is aan de gemeenten die hierop hun lokale beleid en bestemmingsplannen moeten aanpassen.

 

Waterschapsbeleid  
Het Hoogheemraadschap Delfland heeft haar waterbeleid vastgelegd in het Waterbeheersplan 2016-2021 'Strategie richting een toekomstbestendig en samenwerkingsgericht waterschap'. In dit Waterbeheerplan 5 (WBP 5) heeft het Hoogheemraadschap van Delfland (Delfland) zijn strategie voor de uitvoering van de kerntaken voor de komende jaren beschreven. Het is de leidraad voor het handelen van Delfland in de planperiode 2016-2021. Het WBP 5 is tevens een uitnodiging aan private, particuliere en publieke partijen om binnen de uitgezette koers met initiatieven te komen. Bij de uitvoering van het WBP 5 staan de kerntaken vanzelfsprekend voorop:

  • de waterveiligheid;
  • het waterbeheer;
  • de waterkwaliteit;
  • het zuiveren van afvalwater.

Delfland zal hierbij nadrukkelijk kijken naar een doelmatige uitvoering daarvan waarbij ambities, kosten en het tempo op een evenwichtig manier zijn afgewogen. Delfland voert zijn kerntaken uit ten behoeve van het behouden en verbeteren van de leefomgeving voor inwoners, medeoverheden, bedrijven en de natuurwaarden in het beheergebied. Het is een uitdaging om bij de uitvoering van die taken aan te sluiten bij de beleving en de behoeften van de maatschappij. Waterbewustzijn vormt de onmisbare schakel voor draagvlak. Delfland wil dat mensen zich in de komende planperiode bewust worden van het water om hen heen, van de gevolgen van klimaatverandering en van hun eigen gedrag. Het vergroten van waterbewustzijn is daarom verweven in alle programma's en handelingen van Delfland in de komende planperiode.

De werkzaamheden en projecten die de komende zes jaar geïnitieerd worden zijn terug te brengen tot de volgende vier speerpunten van het waterschap:

  • 1. In stand houden: Investeringen in de infrastructuur worden op een adequate manier in stand gehouden. De waterkeringen, het watersysteem, de ecologische structuren en het afvalwatersysteem worden met beheer verder geoptimaliseerd. Delfland werkt bij het bestendigen van het beheer van de infrastructuur toe naar de levenscyclusbenadering;
  • 2. Investeren: Veranderende wetgeving en veranderingen in de omgeving vragen om aanpassing en verdere verbetering van ons watersysteem, de waterkeringen en het afvalwatersysteem. Dit betekent de kans op natte voeten verkleinen door bij het zoeken naar oplossingen om water langer vast te houden, de waterkeringen op orde te houden met oog voor de multifunctionaliteit, de waterkwaliteit te verbeteren en toe te spitsen op de potenties van het gebied en de waterzuiveringen om te bouwen tot zoetwaterfabrieken. Bij elk project, proces en activiteit worden de innovatieve mogelijkheden en de meest duurzame wijze van uitvoering meegenomen in de afwegingen;
  • 3. Samenwerken: Het waterschap kan en doet het niet alleen, sterker nog, waterbeheer is ook een taak van andere overheden zoals gemeenten en van burgers en bedrijven. De samenwerking in het waterbeheer is pluriform van karakter. Het waterschap speelt hierop in door goed omgevingsmanagement en door op basis van transparantie en vertrouwen de samenwerking te zoeken en structureel te onderhouden. Delfland wil het waterbewustzijn bevorderen door samenwerking met belanghebbenden en delen van verantwoordelijkheden;
  • 4. Flexibel en duidelijk: Partners komen een flexibel waterschap tegen die rol en houding afstemt op basis van vraagstukken die voorliggen. Duidelijke kaders worden neergezet, zoals financieel gezond en bijdragen aan toekomstbestendig waterbeheer, maar dogma's zijn er niet. Dit betekent dat er in de werk- en beleidsprocessen van de ambtelijke organisatie en bij bestuurlijke besluitvorming binnen de wettelijke mogelijkheden voldoende ruimte moet zijn om maatwerk te leveren. Innovatie fungeert daarbij als aanjager om te blijven vernieuwen, mee te bewegen met veranderingen en te voorkomen dat het waterschap statisch wordt.

In 2007 (herzien in oktober 2018) is een Handreiking Watertoets, ruimte voor water in ruimtelijke plannen opgesteld. Het Hoogheemraadschap van Delfland stelt voorwaarden aan de inhoud van de watertoets (waterparagraaf) als verplicht onderdeel van de onderbouwing van ruimtelijke plannen. De watertoets berust op twee uitgangspunten:

Standstill-beginsel - negatieve effecten van ruimtelijke ontwikkelingen op het watersysteem worden voorkomen; Het is belangrijk om water al bij de locatiekeuze en het ontwerp van ruimtelijke ontwikkelingen als ordenend principe te gebruiken. Dat voorkomt het ontstaan van knelpunten achteraf, zoals (grond)wateroverlast of slechte waterkwaliteit.

Verbetering - in ruimtelijke ontwikkelingen worden de kansen die zich voordoen om bestaande knelpunten in het watersysteem te helpen oplossen, benut. Het gaat daarbij ook om de relatie tussen de verschillende waterthema's (droogte en wateroverlast, afvalwater, waterkwaliteit en ecologie, waterkeringen). Waterknelpunten en/of problemen met waterkeringen worden niet afgewenteld op de omgeving of verschoven naar de toekomst.

De toelichting van bestemmingsplannen dient een beschrijving te bevatten van de volledige watersituatie binnen het plangebied, alsmede de te verwachten ontwikkelingen. Deze beschrijving dient in te gaan op de volgende aspecten:

  • beleidskader omtrent water;
  • Veiligheid en waterkeringen;
  • Waterkwantiteit;
  • Grondwater en voorkomen van (zoet)watertekort;
  • Onderhoud en bagger;
  • Watersysteemkwaliteit en ecologie;
  • Afvalwater en riolering;
  • Klimaatadaptatie.

Gemeentelijk beleid

Het Waterplan Westland, met als ondertitel 'Westlands water, nu en later' is een product van de gemeente Westland en het Hoogheemraadschap van Delfland. Hierin wordt onder andere de waterhuishoudkundige visie en ambities tot 2027 en de daarbij horende uitvoeringsplan 2015 tot 2018 beschreven. De thema's: ”Toekomstig ruimtelijk beleid, Duurzaamheid, Schoon water, waterkeringen, Droge voeten, Afvalwaterketen Beheer en onderhoud, Zoetwatervoorzieningen en grondwater, Recreatie“, worden hierin uitgewerkt. De ruimtelijke vertaling van de hieruit voortkomende maatregelen is per polder in kaart gebracht. De gewenste waterstructuur wordt door de gemeente vertaald in bestemmingsplannen en structuurvisies. In het Verbreed Gemeentelijk Rioleringsplan Westland 2011-2015 heeft de gemeente haar visie op het stedelijk waterbeheer vastgelegd. Met het eerste Verbreed GRP Westland 2011-2015 wordt niet alleen uitvoering gegeven aan de wettelijke eisen, maar wordt ook de onderlinge samenhang tussen de drie zorgplichten en reeds in gang gezette ontwikkelingen zoals het project Riolering Glastuinbouw Westland (RGW) weergegeven. Het Verbreed GRP is een logisch vervolg op de wijzigingen in wetgeving/beleid en een noodzakelijke verdere optimalisatie van het beleid dat de afgelopen 5 jaar is gevolgd.

afbeelding "i_NL.IMRO.1783.KERNNWKLINGE22pbp-VA01_0011.jpg"

3.2.2 Onderzoek

Ten behoeve van het plan is onderzoek naar de aspecten op het gebied van water uitgevoerd (Waterstudie De Linge 22 te Naaldwijk, Aqua Terra Nova, rapportnummer 2190210/Aqua-Terra Nova 302d WT/AW, datum 19 juli 2019). In voornoemd onderzoek is getoetst aan de navolgende aspecten:

Veiligheid en waterkeringen

Het Hoogheemraadschap van Delfland is verantwoordelijk voor de veiligheid van haar beheergebied. Het bouwen en opslaan op waterkeringen mag niet zonder meer en hierop is de Delflands Algemene Keur van toepassing. Met de Keurbepalingen wil Delfland voorkomen dat de stabiliteit of het functioneren van de waterkering wordt beïnvloed. Tevens moet de waterkering in de toekomst, indien nodig, opgehoogd of verbreed kunnen worden.


Aan de zuidoostzijde grenst het plangebied aan een secundaire watergang. Er is geen regionale waterkering in de buurt van het plangebied.

afbeelding "i_NL.IMRO.1783.KERNNWKLINGE22pbp-VA01_0012.png"

Uitsnede Leggerkaart Hoogheemraadschap Delfland 'Legger Regionale Waterkeringen.

Waterkwantiteit

Delfland streeft naar een duurzame, robuuste waterstructuur met voldoende mogelijkheden voor waterberging. Dit streven heeft uiteindelijk tot doel wateroverlast voor de nieuwe en de al aanwezige functies in het gebied te voorkomen. Bij het voorkomen van wateroverlast en het verwerken van hemelwater hebben perceel eigenaar, gemeente en Hoogheemraadschap van Delfland elk een eigen verantwoordelijkheid. De perceel eigenaar moet het hemelwater zoveel mogelijk zelf verwerken bij de plaats waar het valt. De gemeente draagt zorg voor de inzameling en verwerking van het afstromend hemelwater. Dit betekent, dat de gemeente in eerste instantie inspanning moet doen om dit hemelwater vast te houden of terug te brengen in de bodem. Vervolgens kan het (al dan niet na zuivering) worden afgevoerd naar het oppervlaktewater. Delfland is vervolgens verantwoordelijk voor de ontvangst van hemelwater in het oppervlaktewater.

Het plangebied ligt in het boezemland van Delfland. Het vastgestelde boezemwaterpeil is -0,43 m NAP en een toelaatbare peilstijging van 0,25 m. In de nieuwe situatie is er sprake van een toename van verhard oppervlak. Uit de watersleutel komt naar voren dat de ontwikkeling niet tot een verslechtering van de waterhuishoudkundige situatie leidt indien er 7 m3 waterberging gegraven wordt. Dit staat bij een toelaatbare peilstijging van 0,25m gelijk aan 7 m3/0,25m = 28 m2 extra te realiseren waterberging. Hiervoor zal door de initiatiefnemer het aan de achterzijde van het perceel gelegen bestaande oppervlakte water met een strook van 1,9 meter verbreed worden. Hiermee kan aan het stand-still principe voldaan worden. De ingevulde watersleutel is als bijlage 5 bij de voormelde waterstudie toegevoegd.

Binnen het in eigendom van de aanvrager zijnde perceel zal in aansluiting op de aan het perceel grenzende oppervlaktewater voorzien worden in 28m2 extra waterberging

afbeelding "i_NL.IMRO.1783.KERNNWKLINGE22pbp-VA01_0013.jpg"

Ligging achterzijde plangebied in aansluiting op bestaand oppervlakewater

Voor het realiseren van oppervlakte water is een watervergunning van het Hoogheemraadschap van Delfland benodigd.

Watersysteemkwaliteit en ecologie

Delfland en gemeenten zijn in de Kaderrichtlijn Water (KRW) Delfland overeengekomen om de toestand van de waterlichamen te verbeteren. Onderdeel van deze overeenkomst is dat daar waar langs waterlichamen ruimtelijke mogelijkheden zijn om invulling te geven aan de KRW-opgave, deze worden benut, en dat bij ruimtelijke ontwikkelingen wordt onderzocht of een deel van de ruimtelijke KRW-opgave hieraan kan worden gekoppeld. In het Waterplan Westland is aangegeven dat als er ruimte is, er een natuurvriendelijke oever moet worden aangelegd. En als er geen ruimte is maar wel dynamiek, kansen worden benut. Daarnaast mogen ruimtelijke ontwikkelingen niet leiden tot een verslechtering van de ecologische en chemische toestand van deze waterlichamen.

In zijn algemeenheid is bij het omzetten naar wonen en natuur sprake van minder uitstoot van nutriënten en gewasbeschermingsmiddelen, waardoor de waterkwaliteit zou kunnen verbeteren. Belangrijk onderdeel is het natuurvriendelijk oeverprincipe (NVO). De NVO's bestaan onder meer uit een flauwe oever, moeras en rietoevers. De NVO's voorzien in meerdere ecologische functies. Het natte profiel heeft naast zijn ecologische en visuele functie op meerdere locaties ook en belangrijke functie als bypass voor de omliggende vaarten. Mogelijk kan er een NVO worden toegepast langs de watergang.

Het afstromend hemelwater vanaf het plangebied kan een gering positief effect op de waterkwaliteit hebben, doordat hemelwater weinig nutriënten bevat. Door de infiltratie van hemelwater in de bodem kan door de bodempassage eveneens een kwaliteitsverbetering plaatsvinden van het grondwater.

Onderhoud en bagger

Delfland is verantwoordelijk voor het onderhoud van het primaire watersysteem en de waterkeringen. Voor secundair boezemwater en polderwateren zijn veelal andere partijen (gemeente, grondeigenaar) onderhoudsplichtig. Onderhoudsplichtigen zijn in de Legger Delfland vastgesteld. Onderhoud aan water en waterkering betekent dat deze toegankelijk moeten zijn voor onderhoud. Ook houdt Delfland ruimte die eventueel nodig is voor dijk- of kadeverzwaring, vrij van andere, conflicterende functies. Het beheer en onderhoud van het watersysteem binnen het plangebied is vastgelegd in de Keur Delfland en Legger Delfland.

Voor onderhoud van watergangen is het van belang rekening te houden met de benodigde onderhoudsstroken. Onderhoudsstroken zijn noodzakelijk voor onderhoudsmateriaal en werkruimte, en er kan bagger op de onderhoudsstroken worden gezet. Er gelden de volgende criteria:

  • als er sprake is van 'varend' onderhoud van watergangen, natuurvriendelijke oevers en waterkeringen zijn de dimensionering van het doorstromingsprofiel en van de kunstwerken aan specifieke ontwerpeisen gebonden, bijvoorbeeld een vaardiepte en doorvaarthoogte van 1,0 m en een minimale doorvaarbreedte van 3,1 m bij bruggen. Dit is zeker het geval bij een breedte van meer dan 10 m (gemeten op de waterlijn).
  • voor onderhoudsdoeleinden langs primaire watergangen is aan weerszijde een onderhoudsstrook (4 m) vrij van bebouwing en obstakels. Is de primaire watergang 5 m of smaller, dan kan in veel gevallen volstaan met een strook van 5 m aan één zijde en 1 m aan de andere zijde.
  • voor natuurvriendelijke oevers langs watergangen, bijvoorbeeld in verband met de Kaderrichtlijn Water, is ruimte nodig om onderhoud te plegen. Hierbij geldt hetzelfde als voor primaire watergangen.

Ten behoeve van onderhoud door de onderhoudsplichtige (i.c. de aanliggend eigenaar) is een onderhoudsstrook benodigd. De wijze van onderhoud als gevolg van de ontwikkeling wijzigt niet, omdat eerder rijdend onderhoud langs het water al niet mogelijk was (zie luchtfoto "Ligging achterzijde plangebied in aansluiting op bestaand oppervlakewater').

Bodem en grondwater

Wanneer er ondergronds veel gebouwd wordt (denk bijvoorbeeld aan een parkeergarage) kan dit invloed hebben op de grondwaterstroming en op de drooglegging. In het voorliggende plan zijn geen ingrijpende bodemactiviteiten voorzien: de beoogde ontwikkelingen zullen weinig effect hebben op de grondwaterstroming. De huidige droogleging is 1,04m, geadviseerd wordt om een drooglegging aan te houden van minimaal 1.0m.

Afvalwater en riolering

Het projectgebied is aangesloten op een gescheiden rioolsysteem (Verbreed GRP Westland 2011- 2015). Het rioleringsstelsel loost op AWZI Nieuwe Waterweg te Hoek van Holland.

Voor een vertraagde afvoer van het hemelwater zijn creatieve en efficiente maatregelen mogelijk, zoals het ophogen van gronden, een hoger bouwpeil van woningen, open verharding ter plekke van parkeerplaatsen of water vasthouden op particulier terrein, bijvoorbeeld door middel van de aanleg van wadi's, groene daken, het afkoppelen van hemelwaterafvoer, en dergelijke. Wij verzoeken u deze maatregelen in de toelichting op te nemen.

3.2.3 Conclusie

Het aspect water vormt geen belemmering voor het plan.

3.3 Bodem

3.3.1 Wettelijk kader

Wet bodembescherming

De Wet bodembescherming ziet, vanuit een goed milieubeheer, op de bodembescherming en bodemsanering. Met deze wet moet rekening worden gehouden met het ontwikkelen en realiseren van ruimtelijke plannen. In een bestemmingsplan dat voorziet in ruimtelijke ontwikkeling, moet verantwoord zijn dat het bestemmingsplan uitvoerbaar is op grond van de bodemkwaliteit voor die ruimtelijke ontwikkeling.

Met het oog op een goede ruimtelijke ordening dient in verband met de uitvoerbaarheid van een plan rekening te worden gehouden met de bodemgesteldheid in het plangebied. Bij functiewijzigingen dient te worden bekeken of de bodemkwaliteit voldoende is voor de betreffende functiewijziging. Nieuwe bestemmingen dienen bij voorkeur op schone grond te worden gerealiseerd. De provincie hanteert de richtlijn dat bij de beoordeling van ruimtelijke plannen ten minste het eerste deel van het verkennend bodemonderzoek, het historisch onderzoek, moet worden verricht. Indien uit historisch onderzoek wordt geconcludeerd dat op de betreffende locatie sprake is geweest van activiteiten met een verhoogd risico op verontreiniging dan dient het volledig verkennend bodemonderzoek te worden verricht.

3.3.2 Onderzoek

Ter plaatse van het plangebied is een verkennend bodemonderzoek uitgevoerd (Verkennend bodemonderzoek en verkennend onderzoek asbest De Linge 22 Naaldwijk Gemeente Westland; BMA Milieu, kenmerk VBO-VOA.2018.0203, datum 30 april 2019). Op grond van de resultaten van het onderzoek is door de Omgevingsdienst Haaglanden aangegeven dat door het bodemonderzoek voldoende inzicht wordt verkregen in de bodemkwalilteit en dat er geen sprake is van een geval van ernstige bodemverontreiniging. Hierbij is opgemerkt dat in de grond de achtergrondwaarde (AW2000) niet overschreden wordt.

3.3.3 Conclusie

Het aspect bodem vormt geen belemmering voor het plan.

3.4 Ecologie

3.4.1 Wettelijk kader

Natuurnetwerk Nederland

Op basis van het nieuwe rijksbeleid zoals opgenomen in het Natuurnetwerk Nederland (NNN), heeft de provincie Zuid-Holland in december 2013 de Ecologische Hoofdstructuur (EHS) herijkt. De EHS is een samenhangend netwerk van bestaande en te ontwikkelen natuurgebieden. Het netwerk wordt gevormd door kerngebieden, natuurontwikkelingsgebieden en ecologische verbindingszones.


Bij de herijkte EHS is de prioriteit komen te liggen bij het bereiken van de doelen van de Natura-2000-gebieden en de Europese Kaderrichtlijn Water. Voor wat betreft het beleidsveld Natuur richt de provincie zich niet alleen op de kwantitatieve prestaties (output: hoeveel hectare verworven en ingericht, hoeveel beheerplannen Natura 2000 vastgesteld) maar vooral ook op de effecten (outcome: de natuurkwaliteit, hoe ontwikkelt de Zuid-Hollandse biodiversiteit zich). Het voorgaande is breder dan de reikwijdte van het NNN omdat er door de provincie van uitgegaan wordt dat de bijdrage aan de biodiversiteit ook buiten de begrenzing van het NNN plaatsvindt, bijvoorbeeld het leveren van een bijdrage aan de biodiversiteit door recreatiegebieden en het agrarisch gebied.


Wet natuurbescherming
Sinds 1 januari 2017 is de Wet natuurbescherming (Wnb) in werking. De Wnb is het nieuwe wettelijke stelsel voor natuurbescherming en vervangt drie tot dan bestaande wetten, namelijk de Natuurbeschermingswet 1998, de Flora- en faunawet en de Boswet. Het beschermingsregime gaat uit van het "nee, tenzij-principe". Dit betekent dat de genoemde verbodsbepalingen in de Wnb voor bescherming van gebieden, soorten en houtopstanden altijd gelden. Het afwijken hiervan is alleen onder voorwaarden toegestaan. Gedeputeerde Staten (GS) van de provincie Zuid-Holland is het bevoegd gezag voor het verlenen van toestemming door middel van een vergunning, ontheffing of vrijstelling.


In de Wnb zijn bepalingen opgenomen voor de bescherming van in het wild levende dier- en plantensoorten. Het gaat onder meer om soorten die in Nederland, maar ook in Europa in hun voortbestaan bedreigd worden. De Wnb kent drie beschermingsregimes:

  • Vogels: het gaat hier om alle inheemse vogels in hun natuurlijk verspreidingsgebied. Ze zijn
    beschermd via de vogelrichtlijn;
  • Dieren en planten: het gaat hier om alle inheemse dieren en planten. Ze zijn beschermd via de Habitatrichtlijn en de verdragen van Bern en Bonn;
  • Nationale soorten: het gaat hier om de soorten, die niet onder de reikwijdte van de Vogel- of Habitatrichtlijn vallen. Deze soorten zijn wel nationaal beschermd.


Per beschermingsregime is bepaald welke verboden er gelden en onder welke voorwaarden ontheffing, vergunning of vrijstelling kan worden verleend door het bevoegd gezag. De bepalingen zijn samengevat in onderstaande tabel. De bepalingen voorzien in een bescherming van verblijfplaatsen, evenals de bescherming tegen verstorende invloeden. Gedeputeerde Staten van provincie Zuid-Holland kan een ontheffing verlenen van de verboden als genoemd in de artikelen 3.1, 3.5 en 3.10. van de Wnb.

afbeelding "i_NL.IMRO.1783.KERNNWKLINGE22pbp-VA01_0014.png"

Vrijstellingen
In de Wnb is een aantal algemene soorten amfibieën en zoogdieren beschermd onder de categorie "Nationale soorten", zoals gewone pad, bruine kikker en konijn. Provincie Zuid-Holland heeft bevoegdheid om bij verordening deze soorten "vrij te stellen" van de ontheffing/vergunningsplicht (Provincie Zuid-Holland, 2016). Dit betekent dat geen ontheffing nodig is voor werken gericht op ruimtelijke inrichting en ontwikkeling en beheer en onderhoud. Vrijgestelde soorten zijn niet meegenomen in deze toetsing.

Zorgplicht
De zorgplicht (artikel 1.11. Wnb) houdt in dat handelingen, die nadelige gevolgen kunnen hebben voor in het wild levende dieren en planten:

  • 1. Achterwege gelaten worden, of
  • 2. Noodzakelijke maatregelen treft om die gevolgen te voorkomen, of
  • 3. Deze zoveel mogelijk beperkt of ongedaan maakt


Het betreft alle in het wild levende dieren en planten. De zorgplicht dient onder meer als vangnet voor de bescherming van soorten waarvoor op grond van de Wnb geen specifiek verbod geldt. De zorgplicht is daarnaast van toepassing op beschermde gebieden.

3.4.2 Onderzoek

Uit onderzoek blijkt dat het plangebied niet ligt- of direct grenst aan een beschermd natuurgebied van natura 2000 of de Ecologische Hoofdstructuur (EHS). Hoewel het project buiten de invloedssfeer van gemeentelijke beschermde natuurwaarden of ecologische verbindingszones is gelegen, komen binnen het projectgebied ingevolge de Flora- en faunawet beschermde soort of soortgroepen voor.

Vogels

De werkzaamheden op de planlocatie kunnen leiden tot verstoring van jaarrond beschermde nesten. Ingevolge de Wnb bestaat zorgplicht voor alle in het wild levende dieren en planten en is het verboden om broedvogels te verontrusten. Deze vogels zijn ingevolge de voormelde wet beschermd. Om verstoring van broedvogels te voorkomen wordt geadviseerd om ook buiten het broedseizoen (periode maart t/m juli) te controleren op de aanwezigheid broedvogels. De kans dat er dan broedvogels voorkomen is wellicht kleiner maar nog steeds aanwezig en zijn op dezelfde wijze beschermd als binnen het broedseizoen. Voor verstoring van broedvogels wordt geen ontheffing verleend voor activiteiten van ruimtelijke ontwikkeling.

3.4.3 Conclusie

Het aspect ecologie vormt geen belemmering voor het plan.

3.5 Cultuurhistorische aspecten

3.5.1 Wettelijk kader

Als gevolg van het Verdrag van Valetta, dat in 1998 door het Nederlandse parlement is goedgekeurd en in 2006 zijn beslag heeft gekregen in de gewijzigde Monumentenwet 1988, stellen Rijk en Provincie zich op het standpunt dat in het ruimtelijk beleid zorgvuldig met het archeologische erfgoed moet worden omgegaan. Voor gebieden waar archeologische waarden voorkomen of waar reële verwachtingen bestaan dat ter plaatse archeologische waarden aanwezig zijn, dient voorafgaand aan bodemingrepen archeologisch onderzoek te worden uitgevoerd. De uitkomsten van het archeologisch onderzoek dienen vervolgens volwaardig in de belangenafweging te worden betrokken. Het Rijk heeft deze beleidsuitgangspunten neergelegd in onder meer de Cultuurnota 2005 - 2008, de Nota Belvedère, de Nota Ruimte en het Structuurschema Groene Ruimte 2.

De provincie Zuid-Holland hanteert het uitgangspunt dat op terreinen die voorkomen op de Archeologische Monumentenkaart Zuid-Holland en in gebieden die op de kaart archeologische waarden van de Cultuurhistorische Hoofdstructuur (CHS-kaart) ten minste een redelijke tot grote kans op archeologische sporen hebben, archeologisch vooronderzoek in het kader van de planvoorbereiding dient plaats te vinden. Voor zover er onzekerheid bestaat over de precieze aanwezigheid van archeologische waarden, dient in het bestemmingsplan voor het bouwrijp maken een omgevingsvergunningplicht te worden gehanteerd. Het verlenen van een omgevingsvergunning wordt daarbij afhankelijk gesteld van de uitkomsten van nader archeologisch onderzoek en de belangenafweging op grond daarvan.

Doelstelling van het Verdrag van Valetta is de bescherming en het behoud van archeologische waarden. Als gevolg van dit verdrag wordt in het kader van de ruimtelijke ordening het behoud van het archeologisch erfgoed meegewogen zoals alle andere belangen die bij de voorbereiding van het plan een rol spelen.

3.5.2 Onderzoek

Volgens het voorheen geldende bestemmingsplan is het plangebied gelegen binnen de dubbelbestemming "Waarde - Archeologie - 4" . Hierbij geldt dat voor het uitvoeren van grondbewerkingen op een grotere diepte of hoogte dan 30 cm en 50cm, waartoe worden gerekend afgraven, woelen, mengen, diepploegen, egaliseren, ontginnen, ophogen en aanleggen van drainage en/of het uitvoeren van heiwerkzaamheden of het op een of ander wijze indrijven van voorwerpen archeologisch onderzoek vereist is. Ter waarborging van het voorgaande is in het voorliggende bestemmingsplan de dubbelbestemming opgenomen.

Uit bureauonderzoek is naar voren gekomen dat de bestemming zonder directe consequenties voor archeologische waarden gewijzigd kan worden. Indien in later stadium omgevingsvergunning benodigd is zal als onderdeel hiervan alsnog een archeologisch onderzoek uitgevoerd worden.

3.5.3 Conclusie

Het aspect cultuurhistorie vormt geen belemmering voor het herzien van de bestemming.

3.6 Ladder duurzame verstedelijking

3.6.1 Wettelijk kader

In de voorliggende paragraaf is het bestemmingsplan getoetst aan de Ladder voor duurzame verstedelijking, als neergelegd in artikel 3.1.6, tweede lid, van het Besluit ruimtelijke ordening en specifiek artikel 2.1.1 van de Verordening ruimte 2014 (geconsolideerd, in werking per 19 januari 2018) van de provincie Zuid-Holland. Bij de beoordeling of de Ladder voor duurzame verstedelijking toegepast moet worden op het voorliggende bestemmingsplan, dient bepaald te worden of er sprake is van een nieuwe stedelijke ontwikkeling.


Indien er sprake is van de ontwikkeling van een bedrijventerrein of zeehaventerrein, of van kantoren, detailhandel, woningbouwlocaties of andere stedelijke voorzieningen is er sprake van een nieuwe stedelijke ontwikkeling. Het ministerie van IenM heeft hiervoor een handreiking opgesteld: http://ladderverstedelijking.minienm.nl/. Hierin staat welke aspecten van belang zijn bij de motivering van de 3 stappen (treden van de ladder).

3.6.2 Onderzoek

In de in paragraaf 3.8.1. genoemde handreiking is geen ondergrens gegeven aan wat nog een 'stedelijke ontwikkeling' genoemd wordt. Op basis van onderstaande jurisprudentie blijkt dat één of enkele woningen niet gezien worden als een stedelijke ontwikkeling:

  • drie woningen rechtstreeks, drie woningen via een wijzigingsbevoegdheid bij bestaande lintbebouwing (ABRvS 18 december 2013, 201302867/1/R4 (Weststellingerwerf);
  • één woning (ABRvS 14 januari 2014, nr. 201308263/2/R4 (Midden-Delfland).


Het begrip "woningbouwlocatie" (zoals in artikel 1.1.1 Bro in de omschrijving van het begrip "stedelijke ontwikkeling" is opgenomen) is niet nader gedefinieerd. Gelet op de kleinschaligheid van de woningbouw die in bovenstaande jurisprudentie centraal staat, is de Afdeling van oordeel "dat deze gevallen niet voorzien in een woningbouwlocatie als bedoeld in artikel 1.1.1 Bro. Deze gevallen worden dan ook niet aangemerkt als een "stedelijke ontwikkeling".


In dit bestemmingsplan is sprake van het mogelijk maken van een extra bouwvlak voor een woning. Deze kleinschalige bebouwing kan op basis van de aangehaalde jurisprudentie beschouwd worden als een ontwikkeling, die niet valt onder een stedelijke ontwikkeling, zoals bedoeld in artikel 1.1.1, lid 1 Bro. Een onderbouwing van de Ladder van duurzame verstedelijking is daarom niet benodigd voor dit bestemmingsplan.

3.6.3 Conclusie

Het aspect Ladder voor duurzame verstedelijking vormt geen belemmering voor het herzien van de bestemming.

Hoofdstuk 4 Juridische planbeschrijving

4.1 Planvorm

4.1.1 Wettelijk voorgeschreven standaardisering

De planregels en de planverbeelding van dit bestemmingsplan zijn overeenkomstig de Standaard Vergelijkbare Bestemmingsplannen als gepubliceerd door het ministerie van VROM (SVBP 2012) en als wettelijk voorgeschreven in de ministeriële Regeling standaarden ruimtelijke ordening 2012.

 

Daarnaast zijn in de planregels de standaardregels opgenomen als geboden in artikelen 3.2.1 en 3.2.2 van het Besluit ruimtelijke ordening. In een apart artikel zijn de bijzondere gebruiksverboden opgenomen voor alle bestemmingen, welke verboden aansluiten op het wettelijk verbod als neergelegd in artikel 7.10 van de Wet ruimtelijke ordening.

Voor uitleg van die planregels wordt verwezen naar de toelichting op het Besluit ruimtelijke ordening en de Regeling standaarden ruimtelijke ordening 2008, in samenhang met de jurisprudentie over die uitleg.

Voorts is de "Werkafspraak terminologie Wabo in Standaard voor Vergelijkbare bestemmingsplannen" van september 2010 verwerkt. Die werkafspraak in het kader van de ministeriële regeling is gemaakt met het oog op de invoering van de Wet algemene bepalingen omgevingsrecht (Wabo) op 1 oktober 2010.

4.1.2 Aanvulling en geoorloofde afwijking van de SVBP 2012

De planregels en planverbeelding van dit bestemmingsplan zijn toegesneden op de specifieke behoefte aan planregulering voor het gegeven plangebied. In de hierna volgende paragrafen is de aan het bestemmingsplan eigen plansystematiek toegelicht voor zover die een aanvulling of een geoorloofde afwijking vormt van de SVBP 2012.

4.1.3 Systematiek van de planregels

Opbouw planregels

De regels van het bestemmingsplan bestaan uit de volgende onderdelen:

  • Inleidende regels; 
  • Bestemmingsregels; 
  • Algemene regels; 
  • Overgangs- en slotregels.

Inleidende regels

Begrippen (artikel 1)

Dit artikel definieert de begrippen die in het bestemmingsplan worden gebruikt. Dit wordt gedaan om interpretatieverschillen te voorkomen.

 

Wijze van meten (artikel 2)

Dit artikel geeft aan hoe de lengte, breedte, hoogte, diepte en oppervlakte en dergelijke van gronden en bouwwerken wordt gemeten of berekend. Alle begrippen waarin maten en waarden voorkomen worden in dit artikel verklaard.

 

Bestemmingsregels

De bestemmingsregels van het bestemmingsplan bestaan uit de volgende onderdelen:

  • doeleindenomschrijving (gebruiksregels); 
  • bouwregels; 
  • nadere eisen; 
  • afwijkingsregels.

 

Gebruiksregels

De doeleindenbeschrijving van de bestemming of de dubbelbestemming, waarvan opname in de planregels is geboden in artikel 3.1.3 van het Besluit ruimtelijke ordening, is in de planregels voor elke bestemming in eerste instantie vervat in het onderdeel "Bestemmingsomschrijving". Van het onderdeel "Specifieke gebruiksregels" wordt in de planregels vooral gebruik gemaakt om regels te geven voor de onder de bestemming of dubbelbestemming vallende functieaanduidingen en bouwaanduidingen en andere aanduidingen.

 

Afwijkingsregels

In het onderdeel "Afwijken van de gebruiksregels" wordt alleen die afwijkingsbevoegdheid opgenomen die uitsluitend ziet op het gebruik. Zodra sprake is van het afwijken van de bouwregels - ook al vormt dat bouwen een (klein) onderdeel van het gebruik in ruime zin - wordt de bevoegdheid daartoe geplaatst in het onderdeel "Afwijken van de bouwregels".

 

Aanleggen of slopen

De aanlegregels of sloopregels zijn uitvoerig met het oog op een zorgvuldige verlening van de omgevingsvergunning daartoe, voor zover regels daarvoor niet reeds zijn voorzien in de Wet ruimtelijke ordening of het Besluit ruimtelijke ordening. De aanlegregels of sloopregels kennen de volgende onderverdeling:

  • het aanlegverbod of sloopverbod zelf;
  • de voorwaarden waaronder een omgevingsvergunning mag worden verleend en het inwinnen van deskundigenadvies;
  • de specifieke aanlegverboden of sloopverboden met de daarop gegeven uitzonderingen.

 

Algemene gebruiksregels

In het artikel 'Algemene gebruiksregels' zijn naast een verwijzing naar het algemene gebruiksverbod van artikel 7.2 van de Wet ruimtelijke ordening, specifieke gebruiksverboden ter invulling van het algemene gebruiksverbod opgenomen. Daarin is onderscheid gemaakt tussen het verbod op het gebruik van gronden en het verbod op het gebruik van bouwwerken.

 

Overgangs- en slotregels

In het artikel 'Slotregels' zijn de volgende onderdelen opgenomen:

  • het onderdeel "Vervangen bestemmingsplannen" waarin een overzicht van de bestemmingsplannen en andere planregimes is opgenomen die met dit bestemmingsplan zijn vervangen;
  • en het onderdeel "Citeertitel".

4.1.4 Systematiek van de planverbeelding

Wettelijke vereisten

De Wro bepaalt dat ruimtelijke plannen digitaal en analoog beschikbaar moeten zijn. Hierbij vormt de inhoud van de digitale versie de beslissende versie. De digitalisering brengt met zich mee dat bestemmingsplannen digitaal uitwisselbaar en op vergelijkbare wijze gepresenteerd moeten worden. Met het oog hierop stellen de Wro en de onderliggende regelgeving eisen waaraan digitale en analoge plannen moeten voldoen. Zo bevat de Standaard Vergelijkbare Bestemmingsplannen (SVBP) bindende afspraken waarmee bij het maken van bestemmingsplannen rekening moet worden gehouden. De SVBP kent (onder meer) hoofdgroepen van bestemmingen, een lijst met functie- en bouwaanduidingen, gebiedsaanduidingen en een verplichte opbouw van de planregels en het renvooi.

De planverbeelding is digitaal vorm gegeven overeenkomstig de Regeling standaarden ruimtelijke ordening 2008. De digitale planverbeelding en de andere onderdelen van de dataset hebben het volgende planidentificatie-nummer gekregen:

NL.IMRO.1783.KERNNWKLINGE22pbp-VA01

De dataset bestaat uit:

  • het GML-bestand van de planverbeelding;
  • het XML-geleideformulier;
  • de onderliggende bestanden zoals ondergrond en overige topografische informatie;
  • de PDF- en HTML-bestanden voor respectievelijk de verbeelding van plantoelichting en planregels.

 

Leeswijzer verbeelding

Wegwijzer via internet

Met de digitalisering van ruimtelijke plannen is het lezen en interpreteren van de verbeelding (voorheen plankaart) een nieuwe aangelegenheid. Via de website www.ruimtelijkeplannen.nl kunnen bestemmingsplannen (ook in voorbereiding zijnde plannen voor zover deze ter inzage zijn gelegd) worden ingezien. Via het tabblad 'bestemmingsplannen' kan worden doorgeklikt naar de provincie, de woonplaats of nog specifieker de straatnaam. De gebieden die zwart omlijnd op de kaart staan aangeduid, zijn de gebieden waarvoor een bestemmingsplan digitaal raadpleegbaar is.

Zodra het gewenste bestemmingsplan is gevonden en deze voldoende is ingezoomd, wordt de betreffende bestemmingslegging zichtbaar. Om een beter beeld van de omgeving te krijgen, kan voor verschillende ondergronden worden gekozen (luchtfoto, topografie). Zodra linksonder 'legenda' wordt aangeklikt, wordt inzichtelijk wat de verschillende kleuren betekenen. Door vervolgens op een locatie binnen het plangebied te klikken wordt aan de rechterzijde van de kaart de bijbehorende informatie getoond. Indien meer informatie is gewenst, kan worden doorgeklikt naar de toelichting en/of de regels van het plan.

 

Analoge verbeelding

Alhoewel de digitale verbeelding het uitgangspunt vormt, blijft het mogelijk het bestemmingsplan analoog in te zien. Het lezen van de analoge verbeelding is verschillend van de digitale verbeelding. Op de analoge verbeelding zijn alle functies zodanig bestemd, dat het mogelijk is om met behulp van het renvooi direct te zien welke bestemmingen aan de gronden binnen het plangebied zijn gegeven en welke regels daarbij horen. Uitgangspunt daarbij is dat de verbeelding zoveel mogelijk informatie geeft over de in acht te nemen maten en volumes.  

 

Bestemmingsvlak en bouwvlak

Vrijwel elke bestemming bestaat doorgaans uit twee vlakken: een bestemmingsvlak en een bouwvlak. Het bestemmingsvlak geeft aan waar een bepaald gebruik toegestaan is. Het bouwvlak is een gebied waarvoor de mogelijkheden om gebouwen te bouwen in de regels zijn aangegeven. Bouwvlakken worden doorgaans voorzien van aanduidingen die betrekking hebben op de maatvoering. Soms komt het voor dat het bestemmingsvlak en het bouwvlak met elkaar samenvallen. Op de plankaart is dan uitsluitend een bouwvlak te zien (het bestemmingsvlak ligt hieronder).

4.2 Bestemmingsregeling

De bestaande functies in het plangebied die overeenkomstig het voorheen geldende bestemmingsplan in dit plan zijn bestemd, zijn de volgende (in alfabetische volgorde van bestemming).

4.2.1 Bestemmingen

Bestemming "Wonen"

In het bestemmingsplan is Wonen de belangrijkste functie. De basis voor de regeling van de woonfunctie wordt gevormd door een regeling bestaande uit een bouwvlak ter plaatse van het hoofdgebouw. Rekening houdend met karakteristieke voorgevel verspringingen en rooilijnen is hiervoor op de plankaart een bouwvlak opgenomen waarmee de plaats en omvang van het hoofdgebouw juridisch vastgelegd is. Per hoofdgebouw is de goot- en/of bouwhoogte vastgelegd.

Bestemming "Tuin"

De voor "Tuin" aangewezen gronden zijn bestemd voor de voortuinen of de zijtuinen bij de op de gronden aanwezige bebouwing. Op gronden met de bestemming "Tuin" zijn uitsluitend bouwwerken, geen gebouwen zijnde, toegestaan.

4.2.2 Dubbelbestemmingen

Waarde - Archeologie - 4

Het plangebied krijgt overeenkomstig het voorheen geldende bestemmingsplan de dubbelbestemming "Waarde - Archeologie - 4" .

Hoofdstuk 5 Uitvoerbaarheid

5.1 Economische uitvoerbaarheid

De Wet ruimtelijke ordening voorziet in een verplichting tot het verhaal van gemeentelijke kosten. Dat kan op publiekrechtelijke grondslag, via een exploitatieplan dat gelijktijdig met het ontwerpbestemmingsplan ter inzage gelegd dient te worden. Maar ook kan het gemeentelijke kostenverhaal anderszins geregeld worden via een zogenoemde anterieure overeenkomst over grondexploitatie met de initiatiefnemer/ontwikkelaar, als bedoeld in artikel 6.24 lid 1 van de Wet ruimtelijke ordening of door kostenverhaal via de grondprijs. De reikwijdte van de exploitatieplanplicht en het daaruit voortvloeiende kostenverhaal, volgt uit de omschrijving van bouwplannen zoals bepaald in artikel 6.2.1 van het Besluit ruimtelijke ordening.

De bouwmogelijkheden die het bestemmingsplan biedt vallen onder "de bouw van een of meer andere woningen" in de zin van artikel 6.2.1 onder a Bro. Voor het plan bestaat daarom in beginsel een verplichting tot kostenverhaal. Een exploitatieplan is echter niet noodzakelijk omdat de kosten 'anderszins verzekerd' zijn. Op 14 oktober 2019 is tussen de aanvrager en de Gemeente Westland een anterieure overeenkomst getekend.

5.2 Maatschappelijke uitvoerbaarheid

5.2.1 Overleg

In de periode van 30 juli 2019 tot en met 27 augustus 2019 heeft over het voorontwerp van dit bestemmingsplan bestuurlijk overleg plaatsgehad als geboden in artikel 3.1.1 van het Besluit ruimtelijke ordening. Hierbij hebben de volgende instanties gereageerd:

  • Provincie Zuid-Holland
  • Hoogheemraadschap van Delfland
  • Veiligheidsregio Haaglanden

De uitkomsten van het overleg, als bedoeld in artikel 3.1.6, eerste lid, onder c., van het Besluit ruimtelijke ordening, zijn opgenomen in bijlage 'Nota beantwoording vooroverlegreacties' van deze toelichting.

5.2.2 Zienswijzen

Van 13 december 2019 tot en met 23 januari 2020 heeft het ontwerp van dit bestemmingsplan ter visie gelegen voor het indienen van zienswijzen, als bedoeld in artikel 3.8, lid 1, van de Wet ruimtelijke ordening in verbintenis met Afdeling 3.4 van de Algemene wet bestuursrecht. Gedurende de periode van tervisielegging zijn geen zienswijzen ingediend.