Inhoudsopgave
2.2 Provinciaal en regionaal beleid
Hoofdstuk 3 Huidige en nieuwe situatie
Hoofdstuk 4 Onderzoek en milieu
4.1 Ladder duurzame verstedelijking
Hoofdstuk 5 Juridische vormgeving
Hoofdstuk 6 Economische uitvoerbaarheid
Hoofdstuk 7 Maatschappelijke uitvoerbaarheid
Hoofdstuk 1 Inleiding
1.1 Aanleiding
De voormalige OBS Paterswolde Noord op het perceel Groningerweg 8 te Paterswolde heeft al enige tijd geen onderwijsfunctie meer. Dit hangt samen met het accommodatiebeleid van de gemeente, waarin wordt voorzien in de herhuisvesting van een aantal basisscholen. In dit kader is de voormalige basisschool gesloten. Totdat het gebouw wordt gesloopt, wordt de school anti-kraak bewoond. Door de initiatiefnemer PC Vastgoed is een bouwplan ontwikkeld voor de bouw van maximaal 12 kwalitatief-hoogwaardige vrijstaande woningen in de vrije koopsector. De gemeente Tynaarlo heeft met dit planvoornemen ingestemd.
Gezien het type woning en de mate van flexibiliteit in het bouwplantraject wordt er van uitgegaan dat deze bouwlocatie in een duidelijke regionale woningbehoefte voorziet. Omdat de nieuwbouwlocatie tot op heden een maatschappelijke bestemming heeft is een nieuw, flexibel bestemmingsplan noodzakelijk.
1.2 Vigerend bestemmingsplan
Het geldende bestemmingsplan is het bestemmingsplan voor de kleinere kernen, dat op 27 april 2010 is vastgesteld. Zoals hiervoor is weergegeven, heeft het gebied grotendeels een maatschappelijke bestemming en deels een groenbestemming.
![i_NL.IMRO.1730.BPPaterswoldeNoord-0401_402000.jpg [image]](i_NL.IMRO.1730.BPPaterswoldeNoord-0401_402000.jpg)
Uitsnede uit het geldende bestemmingsplan
1.3 Beeldkwaliteitsplan
In overleg tussen de initiatiefnemer en de gemeente is een beeldkwaliteitsplan opgesteld. Dit is de leidraad voor onderhavig bestemmingsplan. In hoofdstuk 3 wordt hier nader op ingegaan. Op de verbeelding wordt gewerkt met een ruim bouwvlak, waardoor er een grote mate van flexibiliteit is. Eveneens is in de regels sprake van flexibiliteit in aantal en type woning. De architectonische en stedenbouwkundige kwaliteit wordt geborgd middels het beeldkwaliteitsplan met referentiebeelden dat als bijlage aan dit plan is toegevoegd.
Hoofdstuk 2 Beleid
2.1 Rijksbeleid
Structuurvisie Infrastructuur en Ruimte
De Structuurvisie Infrastructuur en Ruimte (SVIR) geeft een totaalbeeld van het ruimtelijk en mobiliteitsbeleid op rijksniveau en is de 'kapstok' voor bestaand en nieuw rijksbeleid met ruimtelijke consequenties. De SVIR vervangt de Nota Ruimte, de Structuurvisie Randstad 2040, de Nota Mobiliteit, de Mobiliteits-Aanpak en de Structuurvisie voor de Snelwegomgeving. Tevens vervangt het de ruimtelijke doelen en uitspraken in de volgende documenten: PKB Tweede structuurschema Militaire terreinen, de agenda landschap, de agenda Vitaal Platteland en Pieken in de Delta.
In de SVIR schetst het kabinet hoe Nederland er in 2040 uit moet zien: concurrerend, bereikbaar, leefbaar en veilig. Het ruimtelijke- en mobiliteitsbeleid wordt meer aan provincies en gemeenten overgelaten. Hieronder valt bijvoorbeeld het landschapsbeleid. De Rijksoverheid richt zich op nationale belangen, zoals een goed vestigingsklimaat, een degelijk wegennet en waterveiligheid. Tot 2028 heeft het kabinet in de SVIR drie Rijksdoelen geformuleerd:
-
de concurrentiekracht vergroten door de ruimtelijk-economische structuur van Nederland te versterken. Dit betekent bijvoorbeeld een aantrekkelijk (internationaal) vestigingsklimaat;
-
de bereikbaarheid verbeteren;
-
zorgen voor een leefbare en veilige omgeving met unieke natuurlijke en cultuurhistorische waarden.
De provincies en gemeenten krijgen in het nieuwe ruimtelijke beleid en mobiliteitsbeleid meer bevoegdheden. Bijvoorbeeld op het gebied van landschappen, verstedelijking en het behoud van groene ruimte. Provincies en gemeenten zijn volgens het kabinet beter op de hoogte van de situatie in de regio en de vraag van bewoners, bedrijven en organisaties. Daardoor kunnen zij beter afwegen wat er in een gebied moet gebeuren. Het opstellen van dit bestemmingsplan past in die lijn.
LADDER VOOR DUURZAME VERSTEDELIJKING
In de SVIR is 'de ladder voor duurzame verstedelijking' geïntroduceerd. De ladder is per 1 oktober 2012 ook als procesvereiste opgenomen in het Besluit ruimtelijke ordening (Bro). Dat betekent dat overheden nieuwe stedelijke ontwikkelingen moeten motiveren met oog voor (1) de onderliggende vraag in de regio, (2) de beschikbare ruimte binnen het bestaande stedelijke gebied en (3) een multimodale ontsluiting. De ladder voor duurzame verstedelijking draagt bij aan een optimale benutting van de ruimte in stedelijke gebieden, ondersteunt gemeenten en provincies in de vraaggerichte programmering van hun grondgebied en helpt bij het maken van een zorgvuldige afweging van belangen bij ruimtelijke en infrastructurele besluiten.
![i_NL.IMRO.1730.BPPaterswoldeNoord-0401_402001.jpg [image]](i_NL.IMRO.1730.BPPaterswoldeNoord-0401_402001.jpg)
In paragraaf 4.1 komt dit nader aan de orde.
2.2 Provinciaal en regionaal beleid
Omgevingsvisie Drenthe
De provincie Drenthe heeft op 2 juni 2010 het nieuwe omgevingsplan vastgesteld: de Omgevingsvisie Drenthe. De Omgevingsvisie is het strategische kader voor de ruimtelijk-economische ontwikkeling van Drenthe voor de periode tot 2020. De Omgevingsvisie 2010 is op een aantal inhoudelijke thema’s geactualiseerd. Deze wijzigingen zijn opgenomen in het document Actualisatie Omgevingsvisie Drenthe 2014. De geactualiseerde visie is op 20 augustus 2014 in werking getreden. Vervolgens is in 2015 ook nog een aantal onderdelen geactualiseerd. De actualisatie heeft geen directe gevolgen voor ontwikkeling van het plangebied, met uitzondering van de Ladder duurzame verstedelijking die hierna aan de orde komt.
ZORGVULDIG RUIMTEGEBRUIK (LADDER DUURZAME VERSTEDELIJKING)
De provincie wil zorgvuldig omgaan met de beschikbare ruimte. Gemeenten dienen bij nieuwbouwplannen een werkwijze te hanteren die leidt tot zorgvuldig ruimtegebruik. Om zorgvuldig ruimtegebruik te bevorderen en verrommeling tegen te gaan, is de voormalige SER-ladder (nu Ladder duurzame verstedelijking) opgesteld. Deze helpt een goede afweging te maken bij het inpassen van ruimtebehoefte voor wonen, bedrijvigheid en infrastructuur. De ladder is deel van de Wet ruimtelijke ordening (Wro) en met een Algemene Maatregel van Bestuur (AMvB) bekrachtigd, waardoor gemeenten en provincies verplicht zijn de ‘redeneerlijn’ consequent toe te passen.
De ladder dient in de toelichting van ruimtelijke plannen te worden opgenomen en krijgt zo een doorwerking in het besluitvormingsproces rond ruimtelijke ontwikkelingen. Toepassing van de ladder is juridisch bindend voor ruimtelijke ontwikkelingen van alle decentrale overheden: provincies, regio’s en gemeenten. Toetsing gebeurt primair door decentrale overheden.
Samen met een aantal Drentse gemeenten heeft de provincie een handreiking ontwikkeld over hoe deze treden goed kunnen worden doorlopen voor de functies: bedrijventerreinen, kantoren, verblijfsrecreatie, wonen en detailhandel. De handreiking is opgesteld als hulpmiddel en inspiratiebron, voor zowel provincie als gemeenten, hoe de ladder kan worden toegepast in de Drentse praktijk. De handreiking geeft concrete handvatten hoe de ladder kan werken in Drenthe met voorbeelden en tips. De handreiking is in de bijlage van de omgevingsvisie opgenomen.
Het toepassen van de ladder vergt een andere manier van denken en handelen en andere financiële modellen. Het betreft nieuwe vormen van planvorming en ruimtelijke ontwikkeling: adaptief, regionaal, dichter op de marktvraag, met kwalitatieve insteek en bovenal maatwerk. De handreiking geeft hiervoor handvatten. Het traditionele verdienmodel in de ruimtelijke ontwikkeling geënt op groei, grondverkoop en nieuwbouw voldoet immers niet meer. Er blijft wel nieuwbouw nodig, maar het gaat om: lange termijn, kwaliteit toevoegen en het onderscheidende vermogen.
LEEGSTAND
Het is van maatschappelijk belang dat leegstand en verpaupering wordt voorkomen. De aanpak van leegstand is in eerste instantie primair een gemeentelijk belang. De provincie zet zich in voor de aanpak van leegstand en overcapaciteit, zonder de verantwoordelijkheid daarvoor weg te nemen bij vastgoedeigenaren en gemeenten. Haar rol ziet zij vooral als faciliterend c.q. het bij elkaar brengen van partijen.
TOETSING LADDER
De toetsing aan de ladder komt in paragraaf 4.1 nader aan de orde.
RUIMTELIJKE KWALITEIT
De provincie heeft als doelstelling de ruimtelijke identiteit van Drenthe te versterken en ontwikkelingen stimuleren die een bijdrage leveren aan de ruimtelijke kwaliteit van Drenthe. In dit kader wordt gewerkt met het begrip ruimtelijke kwaliteit. Het begrip ruimtelijke kwaliteit kent geen scherpe definitie. Ruimtelijke kwaliteit gaat over de kwaliteit van de ruimte waarin we wonen, werken en recreëren. Het is de optelsom van de gebruikswaarde, de belevingswaarde en de toekomstwaarde. De provincie vindt dat een omgeving een goede ruimtelijke kwaliteit heeft wanneer deze geschikt is voor mens, plant en dier. Dit is een omgeving die mooi is, waar mensen zich thuis voelen, waar de historie van de streek kan worden beleefd, waar lucht, bodem en water schoon zijn en waar huizen, bedrijven en wegen een logische plek kennen. Kortom: een omgeving die mede door deze kenmerken aantrekkelijk is voor vestiging en verblijf.
De ruimtelijke kwaliteit van Drenthe is hoog. Het tot dusver gevoerde ruimtelijk beleid heeft ertoe geleid dat ontwikkelingen altijd in samenhang met de ondergrond en met besef van de cultuurhistorie hebben plaatsgevonden. Er is evenwicht tussen stad en platteland, tussen rust en dynamiek, tussen historie en het heden. Het landschap is rijk aan herinneringen aan vroegere bewoning, kent karakteristieke bebouwingspatronen en heeft hoge natuurwaarden. In Drenthe kan nog steeds openheid, rust, ruimte en duisternis worden ervaren. En het verschil tussen stad en land is duidelijk. Deze aspecten worden in de rest van het land steeds zeldzamer en worden door de samenleving steeds meer gewaardeerd.
BUNDELING EN VERDICHTING
Ruimtelijke kwaliteit zit in het behouden en waar mogelijk versterken van de kernkwaliteiten, in het zorgvuldig gebruikmaken van de ruimte (zie ook vorenstaande) en in het waarborgen van de kwaliteit van het milieu en de leefomgeving. Om zorgvuldig ruimtegebruik in Drenthe te stimuleren, streeft de provincie naar het bundelen van wonen en werken. De provincie laat verdichting vóór uitbreiding gaan. Extra ruimte voor wonen en werken is er in of aansluitend op het bestaande bebouwde gebied en gebundeld rond de regionale voorzieningen voor infrastructuur en openbaar vervoer. Uiteraard is het niet de bedoeling dat dit streven ten koste gaat van cultuurhistorisch waardevolle dorpskernen. In zulke situaties wordt gezocht met de betrokken partijen naar een maatwerkoplossing.
KERNKWALITEITEN
De provincie heeft meerdere kernkwaliteiten benoemd. Van belang voor dit plangebied zijn onder meer de landschappelijke, cultuurhistorische en archeologische kwaliteiten. In het navolgende en de volgende hoofdstukken wordt hier nader op ingegaan in relatie tot deze planontwikkeling.
Cultuurhistorisch kompas
Het provinciale beleid ten aanzien van cultuurhistorie is beschreven in het Cultuurhistorisch Kompas. Hierin staan twee doelstellingen centraal: het herkenbaar houden van de cultuurhistorie en het versterken van de ruimtelijke identiteit. Wat de provincie tot de cultuurhistorie rekent, is vastgelegd in de Cultuurhistorische Hoofdstructuur, zoals deze is weergegeven op de Kernkwaliteitenkaart–kernkwaliteit cultuurhistorie van de Omgevingsvisie.
Om de cultuurhistorische waarden veilig te stellen en tegelijkertijd ruimte voor ontwikkelingen te bieden, is gekozen voor drie sturingsniveaus. Deze zijn gebiedsgericht toegepast.
-
Respecteren: het waarborgen van de cultuurhistorische samenhang voor de toekomst. Plannen en initiatieven worden beoordeeld op het benutten van de Cultuurhistorische Hoofdstructuur als inspiratiebron.
-
Voorwaarden stellen: de cultuurhistorische samenhang geldt als randvoorwaarde. Vroegtijdig in het planproces moet inzichtelijk worden gemaakt op welke wijze de cultuurhistorische samenhang als een van de (ruimtelijke) onderleggers voor nieuwe plannen wordt benut.
-
Eisen stellen: de provincie bedingt vanaf het begin een plek in het plan-vormingsproces en stuurt de ontwikkelingen in de gewenste richting.
Voor het plangebied geldt het niveau ‘eisen stellen’.
Het Cultuurhistorisch Kompas geeft aan dat het plangebied deel uit maakt van het landschap ‘De Kop van Drenthe´. Dit gebied heeft de volgende kenmerken:
-
breed hoefijzervormig beekdal, met een open karakter, dat benadrukt en scherp begrensd wordt door een rand van opgaande beplanting;
-
esdorpen met daarbinnen de karakteristieke afwisseling van open en gesloten ruimtes, verspreide bebouwing en doorzichten naar essen en beekdal;
-
diverse boscomplexen, onder andere stuifzandbossen bij Norg, een sterrenbos bij Huize Mensinge en het Norgerholt als oorspronkelijk middeleeuws gebruiksbos;
-
licht slingerende linten van de randveenontginningen in een coulissenlandschap met fijnmazige percelering en houtwallen; Roderwolde is daarbij samen met Sandebuur een voorbeeld van een verschoven lint;
-
aan weerszijden van het Peizerdiep een reeks van veenterpen, deels zichtbaar als lichte verhogingen in het laaggelegen open landschap;
-
landgoederen bij Eelde en Paterswolde;
-
vrijwel aaneengesloten gebied met afwisseling in open landbouwgronden en besloten delen met bos- en parkaanleg;
-
centrale ligging van de hoofdhuizen binnen de parkaanleg en sterke relatie tussen huis en omgeving.
De volgende ambities voor dit landschap zijn opgenomen in het Cultuurhistorisch Kompas:
-
Het in stand houden van de karakteristiek van het esdorpenlandschap. Deze karakteristiek uit zich in een zichtbare ruimtelijke samenhang tussen esdorp, es, beekdal en veld, met bijbehorend microreliëf en beplantingselementen als houtwallen, esrandbosjes en middeleeuwse gebruiksbossen. Bovendien kent het esdorpenlandschap een grote tijdsdiepte, wat blijkt uit zichtbare en onzichtbare (pre)historische bewoningssporen als nederzettingen, grafmonumenten en celtic fields.
-
Het vasthouden en zorgvuldig doorzetten van de ruimtelijke opzet van de esdorpen. Deze opzet wordt getypeerd door een vrije ordening van bebouwing en boerderijen, afwisseling tussen bebouwde plekken en open ruimtes (in het bijzonder de brinken) en doorzichten naar het omliggende buitengebied.
-
Het behouden van de openheid van de brede beekdalen als contrast met hun scherpe begrenzingen in de vorm van houtwallen en bossen.
Bij het ontwerp van het woongebied is met de bovenstaande ambities rekening gehouden.
Regiovisie Groningen-Assen 2030
De Regiovisie Groningen-Assen 2030 (juni 1999) geeft de langetermijnvisie op de ruimtelijke en economische ontwikkeling van de regio Groningen-Assen weer. Deze regio vervult een motorfunctie binnen het Noorden op het gebied van werkgelegenheid, onderwijs, woningbouw, voorzieningen, vervoersverbindingen en cultuur.
REGIONAAL INSTEMMINGSMODEL
Op 24 februari 2012 werd in regionaal verband overeenstemming bereikt over verlaging van de regionale woningbouwopgave in verband met de economische recessie en de veranderde woningmarktsituatie. Afgesproken werd de woningbouwplanningen vooralsnog te richten op als reëel ingeschatte marktscenario’s van 1.000 tot 1.500 woningen per jaar.
Voor de gemeenten Groningen en Assen wordt nu uitgegaan van een opgave volgens een 1.500 woningenscenario. Voor Haren en Tynaarlo is het 1.500-scenario gekoppeld aan de vraag naar excellente woonmilieus. Voor Bedum, Hoogezand-Sappemeer, Leek, Noordenveld, Slochteren, Ten Boer, Winsum en Zuidhorn is een 1.000 woningen scenario het uitgangspunt. Voor de regio als geheel betekende dit een verlaging van de woningbouwopgave van 2.900 naar circa 1.340 woningen per jaar. Voor de gemeente Tynaarlo wordt gerekend met ruim 100 woningen per jaar.
Het regionaal instemmingsmodel zorgt ervoor dat de woningbouwafspraken meer in balans worden gebracht tot het aanbod van locaties, verkleining van risico’s, benutting van marktkansen en het realiseren van regionale kwaliteitsdoelstellingen op het vlak van bereikbaarheid en landschap. Kern van dit model is dat voor wonen en bedrijventerreinen planningslijsten zijn opgesteld en dat wijzigingen regionaal worden afgestemd. Bij de afstemming wordt gekeken naar de (sub)regionale marktontwikkeling, de risico's, kwalitatieve concurrentie en toepassing van de ladder. Met deze werkwijze wordt voldaan aan de omgevingsverordeningen van de provincies Groningen en Drenthe.
Voor onderhavige locatie is op basis van de regionale woningbouwmonitor ruimte gereserveerd voor 24 woningen.
2.3 Gemeentelijk beleid
Structuurplan
De gemeente Tynaarlo heeft voor haar grondgebied een structuurplan opgesteld (vastgesteld 10 oktober 2006). Het Structuurplan is kaderstellend en initiërend voor het ruimtelijk beleid. Tevens dient het als communicatiemiddel richting de bevolking inzake toekomstige veranderingen en koersbepaling.
Binnen de beleidsterreinen wonen, archeologie en cultuurhistorie zijn inmiddels afzonderlijke visies opgesteld. Wat nog relevant is voor het plangebied is het volgende: het gebied valt in het bebouwde gebied. Het plangebied betreft een voormalig schoolgebouw, dat door het gemeentelijk accommodatiebeleid is vrijgekomen. In de structuurvisie is voor deze vrijkomende locaties opgenomen dat hier eventueel ruimte is voor nieuwbouw van woningen.
Structuurvisie Wonen
In augustus 2013 heeft de gemeenteraad van Tynaarlo de Structuurvisie Wonen 2013 vastgesteld. Hierin wordt de visie geschetst op het wonen in de gemeente Tynaarlo tot 2020. Het woonplan is dan ook de inzet voor regionale samenwerking, zowel binnen de regio Groningen-Assen als met de buurgemeenten in de regio Noord Drenthe (regionale woonvisie). Binnen de regio Groningen-Assen worden regionale bouwprojecten gefaciliteerd. De ambitie van deze structuurvisie wonen is om op basis van een goede marktanalyse de bestaande speerpunten van beleid te vertalen naar de huidige marktsituatie. Gestuurd wordt op het tot stand brengen van een evenwichtige toekomstbestendige woningvoorraad die:
-
tegemoet komt aan de woonbehoeften van de vergrijzende bevolking;
-
goede voorwaarden schept voor het binden van jonge huishoudens voor een zo gemêleerd mogelijke bevolkingssamenstelling in dorpen en wijken;
-
bijdraagt tot een goede (omgevings)kwaliteit van woonwijken en dorpscentra met voorzieningen;
-
bijdraagt tot een duurzame samenleving.
Met betrekking tot de kern Eelde Paterswolde worden de volgende zaken weergegeven:
WOONPROFIEL 2010
-
Dorps- en landelijk/exclusief wonen, groene en landelijke uitstraling met twee voorzieningencentra, onder de rook van Groningen in een aantrekkelijke recreatieve omgeving.
-
Ontwikkeling meer ingegeven door visie op dorpskwaliteit dan (sterke) marktpotentie.
-
Circa 4.615 woningen; 1.255 huur en 3.360 koop, aandeel huur 27%.
-
Inwonertal 10.460, groei 2005-10: - 285.
WONINGBEHOEFTE 2010-2019
Ten aanzien van de woningbehoefte wordt het volgende opgemerkt:
-
De eigen woningbehoefte bedraagt circa 45 woningen, die van de omgeving die op Eelde-Paterswolde is georiënteerd circa 60, in totaal 105 woningen.
-
De sterk vergrijsde bevolking (32% 60-plussers) veroorzaakt een oplopende sterfte-overschot dat veel groter is dan de jaarlijkse migratie van circa + 30 personen per jaar. Hierdoor zal het inwonertal met ruim 500 personen afnemen. De krimp voltrekt zich in de leeftijdsgroepen tot 60 jaar (circa -900), het aantal 60-plussers blijft met circa 400 toenemen. Door de opvang van de woningbehoefte uit de omgeving zal de krimp op een wat lager niveau uitkomen, circa 300-350 personen.
-
De kwalitatieve woningbehoefte betreft per saldo vooral huur- en koopappartementen en in beperkte mate vrijstaande koopwoningen in de prijscategorie € 300.000- € 400.000. Een groot deel van de behoefte aan koopwoningen kan worden bediend door het natuurlijke woningaanbod van circa 600 woningen in 2010-2019.
PROGRAMMA
Voor het plangebied is in de woonvisie afzonderlijke nieuwbouwruimte gereserveerd, dit in het kader van het integraal accommodatiebeleid (24 woningen tussen 2012 en 2019). Het woonprofiel kan hierbij worden gekenmerkt als landelijk/exclusief, waarbij (qua plancapaciteit) voldaan kan worden aan de regionale behoefte.
![i_NL.IMRO.1730.BPPaterswoldeNoord-0401_402002.png [image]](i_NL.IMRO.1730.BPPaterswoldeNoord-0401_402002.png)
Structuurvisie cultuurhistorie
De gemeente Tynaarlo heeft ten behoeve van het aspect cultuurhistorie de Structuurvisie Cultuurhistorie 2014-2024 Een juweel tussen twee provinciehoofdsteden vastgesteld. Het doel van deze visie is het cultuurhistorische erfgoed een onderscheidende plek en rol geven bij ruimtelijke plannen en een bijdrage te leveren aan het behoud en de ontwikkeling van de ruimtelijke kwaliteit. De gemeente heeft het waarborgen van het erfgoed en de ruimtelijke identiteit van Tynaarlo samengevat in één centrale boodschap: de gemeente wil historische structuren en karakteristieken herkenbaar houden, de kwaliteit bewaken en de historische gelaagdheid in acht nemen.
De Structuurvisie Cultuurhistorie is gebouwd op een drietal uitgangspunten:
-
de focus ligt op gebiedsgerichte erfgoedzorg in plaats van objectgerichte monumentenzorg;
-
bij ruimtelijke ontwikkelingen is cultuurhistorie ontwikkelingsgericht (en niet alleen behoudend);
-
erfgoed heeft niet slechts een cultuurhistorische waarde, maar kent ook een economische, sociale, educatieve en een duurzaamheidswaarde.
De structuurvisie bevat een afwegingskader dat bij nieuwe ontwikkelingen moet worden toegepast. Dit kader bevat een driedeling. In gebieden van (zeer) hoge waarde wordt gestreefd naar behoud en/of inpassing. Bij gebieden van een (hoog of laag) gemiddelde waarde wordt gestreefd naar verbetering van de ruimtelijke en cultuurhistorische kwaliteit. Daar waar gebieden (zeer) laag zijn gewaardeerd, dient cultuurhistorie vooral ter inspiratie om de ruimtelijke kwaliteit te verbeteren.
Structuurvisie archeologie
In de Structuurvisie Archeologie, welke vastgesteld is op 28 mei 2013, is vastgelegd op welke wijze de gemeente Tynaarlo wil omgaan met het archeologisch erfgoed. De Structuurvisie Archeologie inventariseert de bekende en verwachte archeologische waarden en geeft invulling aan het ruimtelijke beleid. Het belangrijkste instrument daarbij zijn de bestemmingsplannen. In deze bestemmingsplannen zullen te beschermen zones worden aangewezen en van op maat gesneden bestemmingsregels voorzien. In onderhavig plan is dit ook het geval, zie hiervoor ook de paragraaf omtrent archeologie.
Welstandsnota
De welstandsnota bevat criteria waaraan een bouwplan qua uiterlijke verschijning wordt getoetst. De welstandscriteria zijn onderverdeeld naar ligging, massa en vorm, gevelopbouw, detaillering en materiaal- en kleurgebruik. Het bouwplan zal aan de welstandscriteria die voor het desbetreffende plangebied gelden worden getoetst. In het volgende hoofdstuk komt dit nader aan de orde (beeldkwaliteitseisen).
Bestemmingsplan
De locatie is gelegen in het bestemmingsplan voor de kleinere kernen, dat op 27 april 2010 is vastgesteld. Het gebied heeft grotendeels een maatschappelijke bestemming en deels een groenbestemming. Dit is niet passend omdat het plangebied wordt ingericht als woongebied.
Gemeentelijke visie omtrent planvoornemen
De voorgestelde ontwikkeling in onderhavig plangebied past in het integrale accommodatiebeleid, waarin wordt gesteld dat vrijkomende schoolgebouwen kunnen worden gebruikt voor woningbouw. Omdat er ook sprake is van behoefte aan dit type woningbouw (luxere, vrije koopsector, levensloopbestendig zoals aangegeven in de Structuurvisie Wonen) is er sprake van een positieve toetsing aan de Ladder duurzame verstedelijking (stappen 1 en 2, zie ook hoofdstuk 4 met de nadere onderbouwing).
CONCLUSIE
Op basis van het vorenstaande wordt de ontwikkeling in onderhavig plangebied dan ook als gewenst beschouwd.
Hoofdstuk 3 Huidige en nieuwe situatie
3.1 Historie
De Groningerweg en westelijk het gehucht de Schelfhorst maken deel uit van de rug van Tynaarlo. Een zandrug, parallel aan de Hondsrug, die is ontstaan in de laatste ijstijd. Het kruiende ijs heeft de onderliggende keileemlagen als het ware geschaafd en een structuur achtergelaten in noord-noordwestelijke richting. Deze ruggen hebben plaatselijk lagere gedeelten. Noordelijk van de locatie zijn bijvoorbeeld het Kruilingbos en de Esburgeronlanden te vinden. Rondom de rug van Tynaarlo zijn de beekdalen van de Drentse Aa en de Eelder- en Peizermaden te vinden.
Zoals in de cultuurhistorische paragraaf is beschreven, is het gebied vooral in de volle middeleeuwen in ontwikkeling gekomen. Aan de zijde van het Paterswoldsemeer bijvoorbeeld werd bodemdaling in de loop van de 13e eeuw een serieus probleem. Dit had te maken met de onderliggende veengronden. Ten behoeve van de waterhuishouding werd in deze periode een dijk aangelegd onder andere ter plaatse van de Meerweg en de Hoornsedijk. De ontginning van de veengronden werd in de 16e en 17e eeuw ter hand genomen. In deze tijd waren er feitelijk twee manieren om vanuit het gebied naar de stad te gaan. Via de Schelfhorst, westelijk van de locatie, liep een pad naar het noorden langs het huidige omgelegde Eelderdiep om in het huidige ter Borch bij het Bakkerslaantje af te slaan richting de stad. Een tweede route verliep via de Meerweg. Op navolgende afbeelding zijn deze structuren te zien. Net als de route naar Paterswolde en de Boterdijk. De Groningerweg naar het noorden is deels een zandpad. Het grootste gedeelte van de hoger gelegen gedeelten van de rug zijn ontgonnen als een hollandveenontginning, op navolgende afbeelding als een onregelmatig blokverkaveling te zien.
![i_NL.IMRO.1730.BPPaterswoldeNoord-0401_402003.jpg [image]](i_NL.IMRO.1730.BPPaterswoldeNoord-0401_402003.jpg)
Topografische kaart van 1813–1818. Rechts boven zijn de veenverkavelingen van het Paterswoldsemeer te zien. Ook de route over de Schelfhorst en de Boterdijk zijn duidelijk zichtbaar. Boven aan de tekening is de laagte van het Elsburgeronland te zien. Deze laagte werd in 1860 afgesneden van het Paterswoldsemeer door de aanleg van de Groningerweg.
![i_NL.IMRO.1730.BPPaterswoldeNoord-0401_402004.jpg [image]](i_NL.IMRO.1730.BPPaterswoldeNoord-0401_402004.jpg)
Topografische kaart anno 2015 te zien. Hier zijn de diverse gedeelten van Eelderwolde te zien. Ook zijn Ter Borch en de Piccardthof duidelijk zichtbaar.
Rond 1860 werd de Groningerweg verhard en verlengd als een route richting de stad. De weg volgt overigens hoogtelijnen van de rug van Tynaarlo. In de 2e helft van de 19e eeuw zijn op de hoger gelegen gedeelten in totaal zes boerderijen aanwezig. De periode van de veenontginning is voorbij met de aanleg van de Groningerweg. Ook met de verharding van de Meerweg in 1907 wordt het gebied toegankelijk gemaakt voor recreatie. Voor de WOII worden op diverse plekken recreatieve voorzieningen aangelegd. Ook komt er geleidelijk aan woonbebouwing in het gebied. Aan de Groningerweg wordt nog steeds vooral op de hoger gelegen gedeelten gebouwd. Vooral na de WOII volgen steeds nieuwe kleine groepen woningen in eenzelfde bouwstroom, die steeds een eigen villa-architectuur hebben, passend bij hun tijd. Als gevolg van deze reeks van ruimtelijke ingrepen is in de loop van de tijd het volgende beeld ontstaan van de Groningerweg:
-
De straat volgt het natuurlijke karakter van een van de hoogtelijnen van de rug van Tynaarlo.
-
Naast een lineair karakter kent de straat een reeks van sub-ruimtes. De nieuwbouw, die vooral vanaf de WOII werd geïntroduceerd werd steeds in groepen, enkele meters achter de bestaande bebouwing geplaatst.
-
De verkavelingen staat in de meeste gevallen onder een hoek ten opzichte van de straat. De veenverkavelingen volgende hun eigen richting.
-
De school vormde door haar specifieke ligging tussen een bestaande boerderij en de bebouwing van de Boterdijk en eigen sub-ruimte. Een sub-ruimte, die tevens als beëindiging of begin fungeert van de Groningerweg richting het noorden. Zuidelijk van de plek wordt de bebouwing geleidelijk grootschaliger en ook de ruimtes zijn anders van aard.
-
De architectuur aan de Groningerweg kent villa-achtige bebouwing.
3.2 Huidige situatie
PLANGEBIED
Het plangebied is gelegen aan de Groningerweg ten noorden van de kern Paterswolde. Het plangebied kent een oppervlakte van bijna 2 ha (ruim 19.000 m2). Het plangebied bestaat uit een voormalig schoolgebouw (voormalige OBS Paterswolde Noord, tijdelijk bewoond), drie schuurtjes, twee weiden, een speelveld van de school en een perceel met ruige vegetatie. Verder zijn er een aantal ondiepe (begroeide) watergangen, opgaande beplanting en verharding. Aan de zuidzijde is een schakelstation met trafo aanwezig. Eveneens is een antenne-inrichting aanwezig die zal worden verplaatst.
![i_NL.IMRO.1730.BPPaterswoldeNoord-0401_402005.jpg [image]](i_NL.IMRO.1730.BPPaterswoldeNoord-0401_402005.jpg)
Luchtfoto van de school en haar omgeving (bron: Google Maps)
![i_NL.IMRO.1730.BPPaterswoldeNoord-0401_402006.jpg [image]](i_NL.IMRO.1730.BPPaterswoldeNoord-0401_402006.jpg)
Huidige inrit plangebied vanaf Groningerweg (bron: Google Maps)
OMGEVING
De (smalle) Boterdijk ligt aan de zuidzijde van het plangebied. Aan de Boterdijk is sprake van gevarieerde (deels beeldbepalende) woonbebouwing, die in leeftijd en architectuur uiteenlopend is. De bebouwing is in een royale groene setting gesitueerd (laanbomen) met relatief veel ruimte tussen de woningen.
De doorgaande Groningerweg kent eveneens gevarieerde (deels beeldbepalende) woonbebouwing, die ook royaal in het groen is gelegen. Richting de rotonde (naar het noorden) heeft de bebouwing meer volume en is hoger. Hier is ook sprake van appartementen en bedrijfsbebouwing. Over het algemeen is deze bebouwing recenter gerealiseerd ten opzichte van het zuidelijker gelegen deel van de Groningerweg.
Direct ten noorden van het plangebied ligt een oorspronkelijke boerderij, eveneens in een landelijke setting.
3.3 Nieuwe situatie
In navolging van de vorenstaande karakteristieken (paragraaf 3.1 Historie) is voor de locatie een nieuw ruimtelijk beeld geïntroduceerd. Hierbij wordt net als in het overige gedeelte van de Groningerstraat een kleine groep villa-achtige woningen voorzien. Samen vormen zijn een nieuwe overgang tussen de bestaande boerderij en de achterkanten van de Boterdijk.
De plek vormt de beëindiging van de reeks van ruimtes in de straat. Omdat de bestaande boerderij vrij ver naar achteren geplaatst is en de Boterdijkbebouwing juist vrij ver naar de straatzijde komt is de uitwerking specifiek. Om deze overgangen op een elegante manier te op te lossen, zijn de woningen alzijdig. Zij zijn van meerdere zijden aansprekend. Ook het ontwerp van de openbare ruimte en de tuinen sluit zowel aan op de specifieke ligging van de locatie in het lint als op het alzijdige karakter.
Dit leidt tot een aantal uitgangspunten voor het stedenbouwkundig ontwerp:
-
er is sprake van een samenhangend architectonisch beeld met veel aandacht voor de overgangen naar de belendende percelen (waaronder de boerderij aan de noordkant en de woning ten zuiden van de locatie);
-
er is sprake van villa-achtige architectuur, met gebruikmaking van grote dakoverstekken;
-
de gebouwen worden zo ontworpen dat de overgang met de omgeving geleidelijk is;
-
de bebouwing bestaat uit samengestelde volumes.
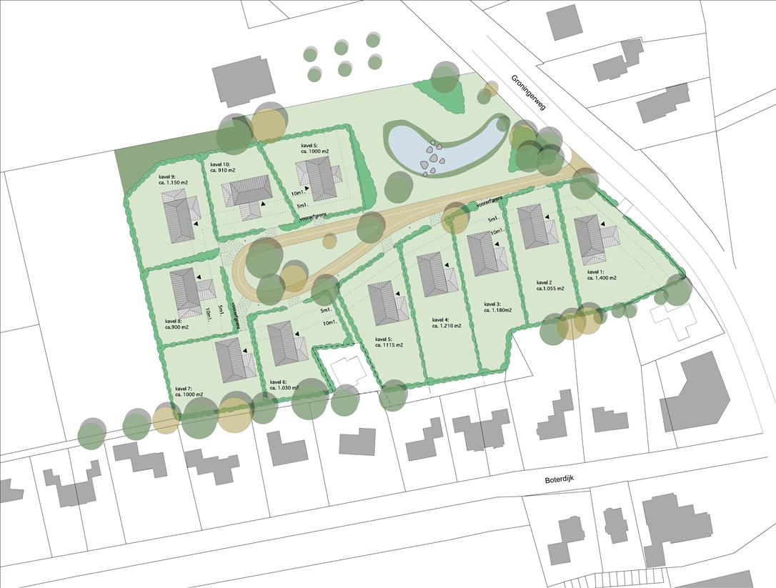
In het als bijlage toegevoegde beeldkwaliteitsplan is het vorenstaande nader uitgewerkt, zo ook is hieronder het voorgestelde inrichtingsplan opgenomen waarin dit tot uitdrukking komt.
![i_NL.IMRO.1730.BPPaterswoldeNoord-0401_402007.jpg [image]](i_NL.IMRO.1730.BPPaterswoldeNoord-0401_402007.jpg)
Voorlopig inrichtingsplan
Hoofdstuk 4 Onderzoek en milieu
4.1 Ladder duurzame verstedelijking
De ladder duurzame verstedelijking bestaat uit een drietal treden, zoals ook weergegeven in paragraaf 2.1 (Rijksbeleid).
Trede 1
Trede 1 betreft de vraag of er een actuele regionale woningbehoefte is. Voor de beantwoording van die vraag is het relevant hoe de behoefte zich verhoudt tot de ontwikkeling in de regio. De Regio Groningen-Assen (RGA) komt hierover op basis van woningbehoefteonderzoek tot de volgende conclusies op hoofdlijnen:
-
dat de behoefte aan toevoeging van woningen in de regio Groningen – Assen (RGA) aanwezig blijft;
-
binnen de RGA is vooral het stedelijk wonen in de gemeente Groningen in trek. De behoefte aan stedelijk wonen in deze gemeente zal de komende jaren alleen nog maar groeien;
-
buiten de gemeente Groningen wordt dit minder. Het woningbehoefte onderzoek laat zien dat deze groei vooral zal neerslaan in de kernen met goede voorzieningen. Kwalitatief gezien kan het onderscheid tussen stad en ommeland als volgt worden aangeduid: in de stad meer huur en rij en daarbuiten meer koop en vrij;
-
op termijn krijgen bijna alle gemeenten te maken met een krimp van de bevolking en later nog een krimp van het aantal huishoudens (vraaguitval). Er moet slim worden gepland (vastgoedstrategie) in verband met de omslag van groei naar krimp (hobbel). Dit betekent niet dat er niet geïnvesteerd moet worden, maar dat vooral ook bewuste keuzes gemaakt moeten worden over investeringen in vastgoed;
-
woningprogrammering dient plaats te vinden op basis van behoefte. De bestaande kernen en steden worden steeds belangrijker in het voldoen aan de woningbehoefte;
-
‘vinger aan de pols’ houden om te kunnen anticiperen op veranderende woningmarkt- en demografische ontwikkelingen.
bron: http://www.regiogroningenassen.nl/programma-s/woningbehoefteonderzoek
De oorsprong van het woningbehoefteonderzoek ligt in de afspraken die in 2012 door de regionale deelnemers zijn gemaakt op het vlak van woningbouw. Deze afspraken zijn gemaakt om te zorgen dat de vraag en het aanbod van locaties in goede balans komt en blijft. Deze regionale afspraken zijn gevat in het regionale instemmingsmodel. In het regionale instemmingsmodel is voor onderhavige locatie ruimte gereserveerd voor 24 woningen (zie ook paragraaf 2.2 Provinciaal en regionaal beleid). Het gaat hierbij een herontwikkelingslocatie, waarop middels dit bestemmingsplan maximaal 12 woningen kunnen worden gerealiseerd.
De gemeente Tynaarlo wil tijdig kunnen inspelen op trends en ontwikkelingen die van invloed zijn op de toekomstige woningbehoefte in kwantitatieve en kwalitatieve zin. Daarom is in 2015 gevraagd aan het bureau Companen hier nader onderzoek naar te doen. Dat heeft geleid tot het rapport “Extra onderzoek ter onderbouwing van de prestatieafspraken”, welke is opgeleverd in februari 2016. Dit rapport bevat tevens voor de kern Eelde-Paterswolde een uitgebreide uitwerking van de demografische ontwikkeling en van de huidige en toekomstige woningvraag. Het rapport is als bijlage toegevoegd aan de toelichting van het bestemmingsplan.
Companen concludeert dat de bevolking in Eelde-Paterswolde nagenoeg stabiel blijft tot 2030. Daarbij is er wel sprake van een toename van het aantal huishoudens, variërend van 320 tot 410, echter er doet zich tevens een huishoudensverdunning voor. Het aantal ouderenhuishoudingen neemt flink toe, terwijl in de leeftijdscategorie 30-40 jaar dit flink terug loopt. In de cijfermatige trendprognose 2015-2030 laat het onderzoek zien dat de grootste vraagverwachting zich voordoet in de categorie ‘koop vrijstaand’ met 110 woningen (zie onderstaande tabel 4.6 uit het rapport ‘Extra onderzoek ter onderbouwing van de prestatieafspraken’). Het is een doorkijk tot 2030 en daarmee een eerste indicatie. Daarmee wordt aangetoond dat er sprake is van een regionale behoefte aan woningen in de categorie ‘koop vrijstaand’.
![i_NL.IMRO.1730.BPPaterswoldeNoord-0401_402008.jpg [image]](i_NL.IMRO.1730.BPPaterswoldeNoord-0401_402008.jpg)
De woningbouwmonitor van de Regio Groningen Assen van april 2017 laat zien dat de woningmarkt zowel regionaal, als gemeentelijk zich in de afgelopen periode gunstig heeft ontwikkeld. Dit maakt dat het inwonertal van de gemeente in 2016 ruim uitkomt boven de prognoses zoals door het bureau Companen zijn opgesteld. Dit maakt dus dat de werkelijke vraag en behoefte hoger zullen uitvallen dan in de prognoses voorzien. Hierbij geldt tevens dat de druk op de markt toeneemt naarmate de locatie dichter bij de stad Groningen ligt.
In deze beoogde ontwikkeling in Paterswolde Noord is sprake van 11 vrijstaande woningen, welke worden aangeboden in het hoogste prijssegment (> € 500.000,-). Dat is een prijssegment waarbinnen in Eelde-Paterswolde ook niet wordt voorzien middels andere nieuwbouwprojecten.
De gemeente concludeert dat er voldoende is aangetoond dat het beoogde woningbouwplan van maximaal 12 vrijstaande woningen voorziet in een regionale behoefte. Daarmee wordt trede 1 van de Ladder van duurzame verstedelijking met ‘ja’ beantwoord.
Trede 2
Vervolgens is aan de tweede trede getoetst. De tweede trede betreft de vraag of (een deel van) de regionale woningbehoefte is op te vangen binnen bestaand stedelijk gebied. Allereerst is onderzocht of het plangebied binnen het bestaande stedelijk gebied ligt. Uit de provinciale kaart (Omgevingsvisie) blijkt dat het plangebied in bestaand stedelijk gebied, zo ook binnen het stedelijk netwerk ligt. Het plangebied betreft bovendien bestaand bebouwd gebied. In het plangebied is een voormalig schoolgebouw gesitueerd. Dit schoolgebouw heeft tijdelijk een marginale woon- en gebruiksfunctie. De school heeft als gevolg van het integrale accommodatiebeleid van de gemeente geen onderwijsfunctie meer. Deze bestaande bebouwing wordt gesaneerd ten behoeve van een landschappelijk en stedenbouwkundig ingepast woongebied. Daarmee voldoet het bestemmingsplan aan de tweede trede van de ladder.
Trede 3
De derde trede van de ladder betreft de vraag of het plangebied ook multimodaal kan worden ontsloten. Langs de Groningerstraatweg is een fietspad gelegen, zo ook zijn er (zeer) frequent busverbindingen richting de stad Groningen en overige plaatsen. De locatie is dan ook per auto, fiets en bus goed bereikbaar. Vanuit de stad Groningen is eveneens een treinverbinding richting de rest van het land beschikbaar. Conclusie is dan ook dat ook aan deze derde trede kan worden voldaan.
CONCLUSIE
Voldaan kan worden aan alle treden van de ladder.
4.2 Wegverkeerslawaai
Het planvoornemen voorziet in de realisatie van 12 woningen. In het kader van de Wet geluidhinder bevinden zich langs alle wegen zones, met uitzondering van wegen die zijn gelegen binnen een als woonerf aangeduid gebied en wegen waarvoor een maximumsnelheid van 30 km/uur geldt. Onderhavig plangebied ligt aan de Groningerweg, die een hogere maximumsnelheid dan 30 km/uur heeft. In de akoestische verkenning zijn de volgende zaken aan de orde gekomen:
-
vanuit het aspect geluid kunnen de woningen gerealiseerd worden binnen het getekende bouwvlak van de verbeelding;
-
in verband met de geluidsbelasting (vanaf 48 dB, minder dan 63 dB) van de woningen die het dichtstbij de Groningerweg komen, moet er een nadere onderbouwing komen om een hogere grenswaarde te verlenen. Het college van burgemeester en wethouders heeft op 30 mei 2017 besloten hiervoor het besluit hogere grenswaarde Wet geluidhinder vast te stellen.
Het vorenstaande is middels nader onderzoek berekend in verband met een ontheffingsaanvraag (in overleg tussen gemeente en Regionale Uitvoeringsdienst) en is als bijlage toegevoegd. De hoogste berekende waarde is 57 dB (dichtstbij Groningerweg). De waarden voor het Bouwbesluit zijn 5 dB hoger. Hiermee wordt met de gevelisolatie rekening gehouden.
4.3 Parkeren
Er dient te worden geparkeerd op eigen erf. Er is hierbij ruimte voor twee auto’s. Verwezen wordt naar het beeldkwaliteitsplan en het van toepassing zijnde gemeentelijk parkeerbeleid.
4.4 Luchtkwaliteit
Nederland heeft de Europese regels ten aanzien van luchtkwaliteit geïmplementeerd in de Wet milieubeheer. De in deze wet gehanteerde normen gelden overal, met uitzondering van een arbeidsplaats (hierop is de Arbeidsomstandighedenwet van toepassing).
Kern van de wet is het Nationaal Samenwerkingsprogramma Luchtkwaliteit (NSL). Hierin staat wanneer en hoe overschrijdingen van de luchtkwaliteit moeten worden aangepakt. Het programma houdt rekening met nieuwe ontwikkelingen zoals bouwprojecten of de aanleg van infrastructuur. Projecten die passen in dit programma, hoeven niet meer te worden getoetst aan de normen (grenswaarden) voor luchtkwaliteit. Het NSL is op 1 augustus 2009 in werking getreden.
Ook projecten die 'niet in betekenende mate' (nibm) van invloed zijn op de luchtkwaliteit hoeven niet meer te worden getoetst aan de grenswaarden voor luchtkwaliteit. De criteria om te kunnen beoordelen of er voor een project sprake is van nibm, zijn vastgelegd in de AMvB-nibm. In de AMvB-nibm is vastgelegd dat een grens van 3% verslechtering van de luchtkwaliteit (een toename van maximaal 1,2 µg/m³ NO2 of PM10) als 'niet in betekenende mate' wordt beschouwd.
Het plan biedt de mogelijkheid tot het realiseren van 12 woningen in de luxe koopsector. Op grond van de CROW-publicatie 317 'Kencijfers parkeren en verkeersgeneratie' (oktober 2012) is de verkeersgeneratie van een dergelijke woning bepaald op 8,6 ritten per etmaal. De toename van de totale verkeersgeneratie bedraagt derhalve afgerond 103 ritten.
NIBM-TOOL
Voor kleinere ruimtelijke plannen en verkeersplannen die effect kunnen hebben op de luchtkwaliteit heeft het Ministerie van Volkshuisvesting, Ruimtelijke Ordening en Milieubeheer in samenwerking met InfoMil een specifieke rekentool ontwikkeld. Daarmee kan op een eenvoudige en snelle manier worden bepaald of een plan niet in betekenende mate bijdraagt aan luchtverontreiniging. Met behulp van deze rekentool is de toename van de stoffen NO2en PM10 bepaald.
![i_NL.IMRO.1730.BPPaterswoldeNoord-0401_402009.png [image]](i_NL.IMRO.1730.BPPaterswoldeNoord-0401_402009.png)
CONCLUSIE
Uit de berekeningen blijkt dat het plan de grens van 3% (een toename van 0,4 µg/m³ NO2 of PM10) niet overschrijdt. Het project moet derhalve worden beschouwd als een nibm-project. Nader onderzoek naar de luchtkwaliteit kan derhalve achterwege blijven.
4.5 Bodem
Voorafgaand aan afgifte van een omgevingsvergunning voor het bouwen zal onderzoek naar de milieuhygiënische gesteldheid van de bodem worden verricht. Op basis van historisch onderzoek en de bodemkaart van de provincie Drenthe (zie navolgende afbeelding met legenda) wordt verwacht dat de bodem geschikt (te maken) is voor de woonbestemming en dat daarbij geen sprake is van een zodanige bodemverontreiniging dat dit onevenredig hoge kosten met zich meebrengt waardoor realisatie van het voornemen twijfelachtig zou zijn. Eveneens is uit een bodemonderzoek uit 2005 (onderzoek IJB Geotechniek bv) gebleken dat de milieuhygienische kwaliteit van de bodem geen belemmering vormde voor de nieuwe uitbreiding van de toenmalige school. Ondanks dat deze bodemgegevens wat ouder zijn, kan worden aangenomen dat de bodemsituatie sinds 2005 niet is gewijzigd en daarmee de nieuwbouw van woningen realiseerbaar is. Zie hiervoor ook de bijlage met het bodemonderzoek uit 2005.
![i_NL.IMRO.1730.BPPaterswoldeNoord-0401_402010.jpg [image]](i_NL.IMRO.1730.BPPaterswoldeNoord-0401_402010.jpg)
![i_NL.IMRO.1730.BPPaterswoldeNoord-0401_402011.jpg [image]](i_NL.IMRO.1730.BPPaterswoldeNoord-0401_402011.jpg)
4.6 Water
Op grond van artikel 3.1.6 van het Besluit ruimtelijke ordening dient in de toelichting op ruimtelijke plannen een waterparagraaf te worden opgenomen. Deze waterparagraaf doet verslag van de wijze waarop rekening is gehouden met de gevolgen van het plan voor de waterhuishoudkundige situatie, dat wil zeggen voor het grondwater en het oppervlaktewater. Het is de schriftelijke weerslag van de zogenaamde watertoets: ‘het hele proces van vroegtijdig informeren, adviseren (door de waterbeheerder), afwegen en beoordelen van waterhuishoudkundige aspecten in ruimtelijke plannen en besluiten’.
Het Waterschap Noorderzijlvest is d.d. 20 oktober 2015 geïnformeerd middels de online watertoets. Uit het wateradvies blijkt dat de normale procedure moet worden doorlopen. De wijziging van de bestemming en/of de omvang van onderdelen in het plan hebben volgens het waterschap invloed op de waterhuishouding en/of raken de belangen van het waterbeheer en/of die van de initiatiefnemer. Het betreft de volgende zaken:
Gelijkblijvend/afname verhard oppervlak
Indien het verhard oppervlak in een ruimtelijk plan toeneemt met meer dan 750 m2 is het vereist de mogelijkheden voor afkoppelen van regenwater te onderzoeken en vast te leggen.
Riolering
Bij de aanleg van riolering in een nieuw plan wordt uitgegaan van de aanleg van een gescheiden stelsel, daar waar het, gelet op de aard van de aangesloten verharde oppervlakken en de mogelijke verontreiniging daarvan, verantwoord is. De initiatiefnemer van een afkoppelproject dient aannemelijk te maken dat het omringende watersysteem over voldoende berging- en afvoercapaciteit beschikt. Dit wordt in samenspraak met Waterschap Noorderzijlvest vastgelegd. Tevens worden mogelijkheden om water langer vast te houden zoveel mogelijk benut.
Vervuiling verhard oppervlak
Het is alleen mogelijk om verhard oppervlak, aangemerkt als schoon, af te koppelen. Dit wordt in overleg met waterschap Noorderzijlvest bepaald. Maatregelen om vervuiling te voorkomen dan wel te verminderen kunnen noodzakelijk zijn. Voorbeelden hiervan zijn:
Voorbeelden beperken gebruik uitlogende materialen
-
Uitlogende materialen voorzien van een coating.
-
Toepassen van olie-/ vetafscheiders bij wegen en parkeerplaatsen.
-
In sommige gevallen mag hemelwater van vervuild verhard oppervlak via een voorzuivering, zoals een bodempassage(groenstrook), helofytenfilter of afscheider worden afgevoerd naar het oppervlaktewater of grondwater. Bij ernstiger vervuild oppervlak dient een verbeterd gescheiden rioolsysteem te worden toegepast.
Nieuw stedelijk gebied
In nieuwe stedelijke gebieden dient het watersysteem zodanig aangelegd te worden dat wateroverlast wordt voorkomen. Door de toename van het verharde oppervlak zal neerslagwater sneller tot afvoer komen. Dit veroorzaakt pieken in de waterafvoer. Om het afwentelen van problemen te voorkomen dient de afvoer in de nieuwe situatie de huidige maatgevende afvoer niet te overschrijden. Veelal kan wateroverlast voorkomen worden door voldoende bergingscapaciteit in het oppervlaktewatersysteem te creëren, eventueel in combinatie met infiltratie in de bodem als het gebied hier de mogelijkheid voor heeft.
Bestaand stedelijk gebied
In bestaand stedelijk gebied is ruimte moeilijk te vinden. Bij herinrichting zal het als streefdoel worden ingebracht door het waterschap in het planvormingsproces. Ruimte voor oppervlaktewater in stedelijk gebied is vaak duur. Inzetten op meervoudig ruimtegebruik is daarom een mogelijkheid om te overwegen. Als dat niet voldoende ruimte oplevert zal buiten het stedelijk gebied ruimte moeten worden gezocht ter compensatie. Uitgangspunt is het behoud van het watersysteem en het bergend vermogen ervan in het stedelijk gebied. Binnen het bebouwde gebied mogen hiertoe geen watergangen worden gedempt, tenzij er met het waterschap afspraken zijn gemaakt over compensatie van de afvoer en berging. Met het dempen van sloten, aanleggen van dammen en lange duikers in plaats van een sloot moet kritisch worden omgegaan. Goed omgaan met het relatief schone hemelwater biedt veel kansen. Zo kunnen we veel problemen in het stedelijk watersysteem oplossen of voorkomen. Grondwateronttrekking voor drinkwater worden minder als men in stedelijk gebied meer gebruik maakt van hemelwater. Bijvoorbeeld voor sproeien van tuinen of spoelen van toiletten vanuit een grijs watercircuit.
Grondwater
In nieuw bebouwd gebied wordt een minimale drooglegging voor woningen geadviseerd van 1,30 m. Daarnaast dient rekening te worden gehouden met een minimale ontwateringsdiepte van 0,70 m. Bij kruipruimteloos bouwen kan een kleinere drooglegging worden toegepast. In een ruimtelijk plan kan een variërende drooglegging gerealiseerd worden in overleg met het Waterschap Noorderzijlvest. Bij gebieden die met enige regelmaat mogen inunderen, kan een kleinere drooglegging worden toegepast (groenstroken, ecologische zones). Op deze manier kan op creatieve wijze invulling worden gegeven aan de vereiste waterberging (zie navolgende tabel minimale droogleggingseisen). Als dit wordt toegepast, dient dit in de waterparagraaf te worden vastgelegd.
Droogleggingeisen:
-
Woningen met kruipruimte 1,30 meter
-
Woningen zonder kruipruimte 1,00 meter
-
Gebiedsontsluitingswegen 0,80 meter
-
Erftoegangswegen 0,80 meter
-
Groenstroken / ecologische zones 0,50 meter
Invloed op de waterhuishouding
Het aanwezige oppervlaktewater dient niet alleen voldoende ruimte te hebben voor het afstromende hemelwater, maar ook aan de inrichting dient aandacht te worden besteed. Voor een gezond watersysteem is de inrichting en het beheer van het bestaande of nieuw te realiseren oppervlaktewater belangrijk. Bij oppervlaktewatersystemen in stedelijk gebied wordt daarom gestreefd naar zo groot mogelijke eenheden.
Specifiek voor dit plan zijn de volgende zaken eveneens benoemd:
-
Het areaal verhard oppervlak van daken en terreinen neemt toe met meer dan 750 m2, waardoor 10% van die toename als open water dient te worden gerealiseerd. Hiervoor wordt in nadere afstemming met het waterschap een ontwerp gemaakt, bijvoorbeeld in de vorm van een vijver.
-
Beleid is dat schoon water wordt afgekoppeld en niet naar de rioolwaterzuiveringsinstallatie wordt gebracht. Daarom moet er gescheiden worden afgevoerd. Schoon water kan naar het regenwaterriool worden afgevoerd. Als er geen gescheiden stelsel aanwezig is dan is rechtstreeks afvoeren naar oppervlaktewater een optie. Bekeken moet worden of de ontvangende sloot daarvoor geschikt is c.q. geschikt wordt gemaakt. Er mogen geen negatieve effecten optreden in de waterhuishouding als gevolg van het plan. Uitgangspunt bij de gemeente Tynaarlo is een gescheiden rioolstelsel. Bij de technische uitwerking worden de vorenstaande aspecten nader bekeken.
-
Gezien het verschil in maaiveldhoogte zijn drooglegging, ontwatering en afwatering aandachtspunten bij de detailuitwerking.
-
De eisen voor minimale drooglegging en andere waterhuishoudkundige zaken zijn te vinden in de Beleidsnotitie Water en Ruimte. Hierover vindt nadere afstemming plaats (na onherroepelijkheid van het bestemmingsplan) tussen initiatiefnemer, gemeente en waterschap.
De volledige uitgangspuntennotitie is als bijlage aan het plan toegevoegd. De genoemde aandachtspunten worden uitgewerkt in overleg tussen de initiatiefnemer, het waterschap en de gemeente. Dit overleg wordt afgerond voor afloop van de ter inzage termijn van het ontwerpbestemmingsplan. De detailuitwerking is tevens vooroverleg voor de benodigde watervergunning.
Door toepassing van de watertoets wordt voldaan aan het relevante waterschapsbeleid dat in het waterbeheerplan en -programma van het Waterschap Noorderzijlvest is beschreven.
4.7 Archeologie
Door ondertekening van het verdrag van Malta (1992) heeft Nederland zich verplicht om bij ruimtelijke planvorming nadrukkelijk rekening te houden met het niet zichtbare deel van het cultuurhistorisch erfgoed, te weten de archeologische waarden. In de Monumentenwet is geregeld hoe met archeologische vindplaatsen en zichtbare monumenten moet worden omgegaan. Het streven is om deze belangen tijdig bij de planvorming te betrekken.
In mei 2013 heeft de gemeenteraad de Structuurvisie Archeologie vastgesteld. Op de archeologische beleidskaart heeft het plangebied een hoge tot middelhoge verwachting op basis van landschap. Inventariserend veldonderzoek is noodzakelijk bij geplande bodemverstoringen met oppervlakten ≥ 1.000 m2 en dieper dan 30 cm -mv.
Op basis van het vorenstaande is door onderzoeksbureau RAAP archeologisch bodemonderzoek uitgevoerd (RAAP-NOTITIE 5226, Plangebied Klein Schelfhorst in Paterswolde Gemeente Tynaarlo Archeologisch vooronderzoek: een bureauonderzoek en verkennend booronderzoek, 18 november 2015). Dit onderzoek is als bijlage aan het plan is toegevoegd.
Hierna worden de conclusies van het onderzoek weergegeven in de vorm van antwoorden op specifieke onderzoeksvragen.
-
Wat is de gespecificeerde archeologische verwachting voor het plangebied?
Op basis van de resultaten van het bureauonderzoek is het archeologisch relevante niveau in het plangebied de top van het dekzand. In het dekzand in het plangebied heeft zich een podzolbodem gevormd. Een podzolbodem bestaat van boven naar beneden uit een A-horizont (accumulatielaag), een E-horizont (uitspoelingslaag), een B-horizont (inspoelingslaag), een BC-horizont (overgangslaag) en een C-horizont (onveranderd moedermateriaal). Podzolbodems ontstaan in relatief hoge en goed ontwaterde zandgronden. Dit zijn daarom aantrekkelijke locaties geweest voor bewoning. In het dekzand kunnen resten uit de periode Steentijd tot Nieuwe tijd worden verwacht. Bodembewerking en bebouwing hebben, in ieder geval lokaal, tot verstoring van de laagopeenvolging geleid. Aan het dekzandniveau in het plangebied is daarom een middelhoge archeologische verwachting toegekend.
-
Zijn de archeologisch relevante niveaus intact?
Het archeologisch relevante niveau, de top van het dekzand, is vergraven en opgenomen in de verstoorde laag boven het dekzand. De podzolbodem is verstoord tot in de C-horizont.
-
Zijn er aanwijzingen voor (grotere) archeologische nederzettingen?
Het booronderzoek heeft geen archeologische indicatoren opgeleverd. Aanwijzingen voor (grotere) archeologische nederzettingen ontbreken.
-
Heeft dat gevolgen voor de archeologische verwachting?
De middelhoge archeologische verwachting voor de top van het dekzand kan vanwege de verstoring van dit niveau en het ontbreken van archeologische indicatoren worden bijgesteld naar een lage archeologische verwachting.
-
Is archeologisch vervolgonderzoek noodzakelijk?
Archeologisch vervolgonderzoek wordt op basis van de resultaten van het booronderzoek niet noodzakelijk geacht.
AANBEVELINGEN
De resultaten van het onderzoek geven geen aanleiding om archeologisch maatregelen (planaanpassing, vervolgonderzoek et cetera) aan te bevelen. Wanneer bij de werkzaamheden toch archeologische resten worden aangetroffen, moet hiervan direct melding worden gemaakt bij de provinciaal archeoloog van Drenthe (de heer W.A.B. van der Sanden; 0592-365220/06-22662601, w.vandersanden@drenthe.nl).
4.8 Cultuurhistorie
Cultuurhistorie gaat over de geschiedenis van de gebouwde omgeving, de landschappen, tradities en de verhalen die erbij horen. Sinds 1 januari 2012 is de gemeente wettelijk verplicht om cultuurhistorische belangen mee te wegen in ruimtelijke vraagstukken. Het doel van deze visie is het borgen van cultuurhistorisch erfgoed. De gemeente heeft het waarborgen van het erfgoed en de ruimtelijke identiteit van Tynaarlo samengevat in één centrale boodschap: de gemeente wil historische structuren en karakteristieken herkenbaar houden, de kwaliteit bewaken en de historische gelaagdheid in acht nemen.
De opgave van dit gebied betreft economische ontwikkeling, gecombineerd met ontwikkeling van natuurwaarden en waterbergingsmogelijkheden. De belangrijkste opgave is dan ook het samenbinden van deze belangen. Het doel is de verwachte ontwikkelingen te gebruiken om verdere vervlakking van het kleinschalige cultuurlandschap te voorkomen, zo ook om te buigen naar een cultuurhistorische en landschappelijke kwaliteitsimpuls. Het aspect cultuurhistorie speelt in dit proces een belangrijke rol.
Uitgangspunt voor deze opgave is dat het ligt in twee gewaardeerde landschappen, te weten:
-
Historische kern met huispercelen, type lintdorp (Sl, omschrijving landschapstype in deel C cultuurhistorische waardenkaart van Structuurvisie Cultuurhistorie 2014-2024). Dit landschap is hoog gewaardeerd (roze) en voor de ontwikkeling van dit gebied is cultuurhistorie mede een bepalende factor, waarbij gewenste ontwikkelingsrichtingen en adviezen in acht moeten worden genomen. Wanneer kan worden aangetoond dat een ontwikkeling een dusdanig groot maatschappelijk of openbaar belang heeft dat behoud van cultuurhistorie niet mogelijk is, dan dient uit cultuurhistorisch onderzoek te blijken welke kansen en beperkingen zijn onderzocht. Hierbij ontwikkelingsrichtingen en adviezen ter inspiratie hanteren. Bij ontwikkeling van dit landschapstype streven naar:
-
behoud van de specifieke lintstructuur van op zich staande erven met woonhuizen;
-
uitbreiding van bebouwing in het lint is mogelijk, maar behoud doorzichten tussen de erven naar het boerenland.
-
Hollandveenontginning met bouwlandkampen (Ahk, omschrijving landschapstype in deel C cultuurhistorische waardenkaart van Structuurvisie Cultuurhistorie 2014-2024). Dit landschap heeft een laag gemiddelde waarde (lichtgeel). Cultuurhistorie is een factor bij ruimtelijke plannen. Het kan zijn dat er nader onderzoek wordt gevraagd waarin de kansen en beperkingen worden benoemd. Cultuurhistorisch onderzoek dat voorafgaat aan ruimtelijke plan- en besluitvorming sluit aan bij de aard en schaal van het gebied en -vooral- de opgave en is gebaseerd op een omschrijving van de opdracht. Bij concrete ontwikkelingen dienen de volgende gewenste ontwikkelingsrichtingen en adviezen in acht te worden genomen. Bij ontwikkeling van dit landschapstype streven naar:
-
behoud of versterking van de strookvormige verkavelingsstructuur;
-
streven naar een gesloten landschap met houtsingels op perceelsgrenzen;
-
stimuleren van bouwland als primair landgebruik;
-
tegengaan van bebouwing en verrommeling.
Conclusie
In hoofdstuk 3 blijkt dat in het voorgestelde inrichtingsplan rekening is gehouden met de hiervoor beschreven cultuurhistorische uitgangspunten.
![i_NL.IMRO.1730.BPPaterswoldeNoord-0401_402012.jpg [image]](i_NL.IMRO.1730.BPPaterswoldeNoord-0401_402012.jpg)
![i_NL.IMRO.1730.BPPaterswoldeNoord-0401_402013.jpg [image]](i_NL.IMRO.1730.BPPaterswoldeNoord-0401_402013.jpg)
![i_NL.IMRO.1730.BPPaterswoldeNoord-0401_402014.jpg [image]](i_NL.IMRO.1730.BPPaterswoldeNoord-0401_402014.jpg)
4.9 Ecologie
KADER
Om de uitvoerbaarheid van onderhavig project te toetsen, is een ecologische inventarisatie van de natuurwaarden uitgevoerd. Het doel hiervan is om na te gaan of een vooronderzoek in het kader van de Flora- en faunawet (Ffw), een Voortoets in het kader van de Natuurbeschermingswet 1998 (Nbw 1998) of een analyse in het kader van het provinciaal ruimtelijk natuurbeleid noodzakelijk is. Naast het raadplegen van bronnen is het plangebied ten behoeve van de inventarisatie op 23 november 2015 bezocht door mevrouw ing. J.G. Lindenholz, ecoloog van BügelHajema Adviseurs bv.
Conclusie
Op basis van de uitgevoerde ecologische inventarisatie is, gezien de aangetroffen terreinomstandigheden en de aard van het plan, een voldoende beeld van de natuurwaarden ontstaan.
Uit de ecologische inventarisatie is naar voren gekomen dat een vooronderzoek in het kader van de Flora- en faunawet, een Voortoets in het kader van de Natuurbeschermingswet 1998 of een analyse in het kader van het provinciaal ruimtelijk natuurbeleid niet noodzakelijk is. Met inachtneming van het broedseizoen van vogels is een ontheffing van de Flora- en faunawet of een vergunning op grond van de Nbw 1998 voor de beoogde activiteiten op voorhand niet nodig. Het plan is daarnaast op het punt van provinciaal ruimtelijk natuurbeleid niet in strijd met de Provinciale Omgevingsverordening.
Op voorhand kan in redelijkheid worden gesteld dat natuurwet- en -regelgeving de uitvoerbaarheid van het ruimtelijke plan niet in de weg staat.
De volledige ecologische inventarisatie is als bijlage aan het plan toegevoegd.
4.10 Externe veiligheid
Op 27 oktober 2004 zijn het Besluit externe veiligheid inrichtingen en de Regeling externe veiligheid inrichtingen van kracht geworden. In het Besluit externe veiligheid inrichtingen zijn risiconormen voor externe veiligheid met betrekking tot inrichtingen met gevaarlijke stoffen wettelijk vastgelegd.
Uit de risicokaart Drenthe blijkt dat in de directe omgeving van het plangebied geen risicovolle inrichtingen aanwezig zijn.
Eveneens liggen er in de nabijheid geen wegen (ook geen waterwegen, spoorwegen) waarover transport van gevaarlijke stoffen plaatsvindt. In de nabijheid van het plangebied ligt een buisleiding van de Gasunie (N507-36, werkdruk 40 bar). Gelet op dat de dichtstbijzijnde afstand van de buisleiding tot aan het plangebied circa 135 m bedraagt, vormt de ligging van deze leiding geen belemmering in het kader van de externe veiligheid.
![i_NL.IMRO.1730.BPPaterswoldeNoord-0401_402015.jpg [image]](i_NL.IMRO.1730.BPPaterswoldeNoord-0401_402015.jpg)
Risicokaart met plangebied aan de noord(oost)zijde
4.11 Milieuzonering
VNG-PUBLICATIE
Bedrijven worden ingedeeld in categorieën met behulp van de VNG-publicatie Bedrijven en milieuzonering (2009). Deze publicatie biedt een handreiking ten behoeve van de afstemming tussen ruimtelijke ordening en milieu op lokaal niveau en geeft informatie over de milieukenmerken van verschillende typen bedrijven. Op basis van de milieu-kenmerken van de verschillende typen bedrijven en inrichtingen wordt een indicatie van de afstanden gegeven, die als gevolg van deze kenmerken moeten worden aangehouden tussen de diverse typen bedrijven en een rustige woonwijk. Deze afstanden hebben uitdrukkelijk niet het karakter van een norm of een richtlijn.
De informatie heeft geen betrekking op individuele bedrijven, maar op bedrijfstypen. Dit betekent dat een concrete situatie altijd in de context moet worden bekeken:
-
binnen bepaalde bedrijfstypen kunnen zich grote verschillen voordoen;
-
concrete milieu-informatie over een specifiek bedrijf heeft meer waarde dan algemene informatie;
-
de afstanden hebben betrekking op de afstand tot een rustige woonwijk; bij andere gebiedsfuncties kunnen dus andere afstanden mogelijk zijn;
-
afdoende milieuhygiënische maatregelen bij de bron, bij de overdracht of bij de ontvanger, kunnen een kortere afstand eventueel mogelijk maken.
Uit de verbeelding behorend bij het vigerende bestemmingsplan blijkt dat in de omgeving van het plangebied geen bedrijvigheid voorkomt die eventueel belemmerend kan zijn voor ontwikkeling van het plangebied tot woongebied. Eveneens leidt deze ontwikkeling niet tot hinder voor bedrijven in de (verdere) omgeving.
Wel is er in het plangebied een schakelstation van Enexis aanwezig. Er is hierbij sprake van geluidsproductie. Voldaan moet worden aan de Wet Activiteitenbesluit Milieubeheer. De desbetreffende trafo (schakelstation) produceert maximaal 50 dB(A) aan geluid. Omdat de trafo ingebouwd staat tussen vier muren en in de nachtperiode geen vol vermogen hoeft te leveren, zal de grenswaarde van de dag-, avond- en nachtperiode (respectievelijk 50 dB(A), 45 dB(A) en 40 dB(A)) niet worden overschreden.
4.12 M.e.r.-beoordeling
In het Besluit m.e.r. onder 11.2 in de D-lijst staat dat een m.e.r,-beoordeling moet plaatsvinden in gevallen waarin de activiteit betrekking heeft op:
-
een oppervlakte van 100 ha of meer;
-
een aaneengesloten gebied en 2.000 of meer woningen omvat;
-
een bedrijfsvloeroppervlakte van 200.000 m2 of meer.
Zoals blijkt uit de planbeschrijving in hoofdstuk 2, is de realisatie van een beperkt aantal woningen qua aard, omvang en ligging niet gelijk te stellen aan de betreffende activiteit, zoals bedoeld in het Besluit m.e.r. Maar sinds de wijziging van het Besluit op 1 april 2011 is een beoordeling van een activiteit die op de D-lijst voorkomt noodzakelijk, ook al ligt de omvang van de activiteit (ver) onder de drempelwaarde.
Voor elk besluit of plan dat betrekking heeft op activiteit(en) die voorkomen op de D-lijst die beneden de drempelwaarden vallen moet een toets (vormvrije m.e.r.-beoordeling) worden uitgevoerd of belangrijke nadelige milieugevolgen kunnen worden uitgesloten. Deze zogenaamde vormvrije m.e.r.-beoordeling kan tot twee conclusies leiden:
-
belangrijke nadelige milieugevolgen zijn uitgesloten: er is geen m.e.r.(-beoordeling) noodzakelijk;
-
belangrijke nadelige gevolgen voor het milieu zijn niet uitgesloten: er moet een m.e.r.-beoordeling plaatsvinden of er kan direct worden gekozen voor m.e.r.
In bijlage III van de EU richtlijn m.e.r. staan de criteria genoemd waarna gekeken moet worden bij de beoordeling. In dit geval is gekeken naar deze Europese criteria.
De resultaten van de onderzoeken zoals deze zijn samengevat in dit hoofdstuk Onderzoeken laten zien dat er geen belangrijke nadelige gevolgen zijn voor de omgeving en het milieu. Beschermde gebieden liggen op voldoende afstand van het plangebied en zijn hiervan gescheiden door bebouwing en infrastructuur. De locatie en de omgeving hebben geen bijzondere kenmerken waardoor er een verwaarloosbare kans is op belangrijke nadelige effecten, de activiteit leidt niet tot een verslechtering van de luchtkwaliteit. Gezien de aard van de ingrepen zijn geen negatieve effecten te verwachten.
Op grond hiervan is het verrichten van een (nadere vormvrije) m.e.r.-beoordeling verder niet noodzakelijk.
Hoofdstuk 5 Juridische vormgeving
5.1 Algemeen
In dit onderdeel van de toelichting wordt nader ingegaan op de vormgeving van de verbeelding en de regels.
De Wet ruimtelijke ordening (Wro) bevat de regeling voor de opzet en de inhoud van een bestemmingsplan. In het Besluit ruimtelijke ordening (Bro) is deze regeling verder uitgewerkt.
Het bestemmingsplan bestaat uit:
-
een verbeelding van het bestemmingsplangebied waarin alle bestemmingen van de gronden worden aangewezen;
-
de regels waarin de bestemmingen worden beschreven en waarbij per bestemming het doel wordt of de doeleinden worden genoemd.
Bij het bestemmingsplan hoort een toelichting.
Ook zijn de regels van de Standaard Vergelijkbare BestemmingsPlannen 2012 (SVBP 2012) toegepast. Met deze standaard worden de regels en de verbeelding zodanig opgebouwd en ingericht dat bestemmingsplannen goed met elkaar kunnen worden vergeleken. De terminologie van de regels in het voorliggende bestemmingsplan is in overeenstemming gebracht met de terminologie die in de Wet algemene bepalingen omgevingsrecht (Wabo, inwerkingtreding sinds 1 oktober 2010) wordt gehanteerd.
Het bestemmingsplan met de daarbij behorende toelichting wordt langs elektronische weg vastgelegd. Vanaf 1 januari 2010 wordt het bestemmingsplan ook in die vorm vastgesteld, tegelijk met een verbeelding van het bestemmingsplan op papier. Als de digitale en papieren verbeelding tot interpretatieverschillen leiden, is de digitale verbeelding beslissend.
5.2 Bestemming
De in dit bestemmingsplan voorkomende bestemming en bijbehorende regels zullen in deze paragraaf nader worden toegelicht.
Er is gekozen voor de bestemming Woongebied, waarbij de (nieuw)bouw van maximaal 12 vrijstaande woningen mogelijk is.
Wat betreft de inhoud wordt voor deze bestemmingen zoveel mogelijk aangesloten bij het vigerend bestemmingsplan.
Woongebied
Binnen de bestemming Woongebied zijn maximaal 12 vrijstaande nieuwe woningen toegestaan. Binnen de woonfunctie zijn aan huis verbonden beroepen toegelaten, voor zover de woonfunctie in overwegende mate blijft gehandhaafd.
Groen en Verkeer
Binnen de bestemming Groen zijn onder meer groenvoorzieningen, water en oeverstroken begrepen. De bestemming Verkeer is bestemd voor wegen met een functie voor de ontsluiting van aanliggende gronden, voet- en fietspaden, parkeer- en groenvoorzieningen, openbare nutsvoorzieningen, dagrecreatieve voorzieningen, kunstobjecten en het bestaande schakelstation.
Hoofdstuk 6 Economische uitvoerbaarheid
De kosten die de gemeente maakt voor het opstellen van het bestemmingsplan, het voeren van de procedure en eventuele planschade voortkomend uit onderhavig bestemmingsplan komen voor rekening van de initiatiefnemer. Met de initiatiefnemer is een exploitatie- en planschadeovereenkomst gesloten. Hierdoor is het kostenverhaal anderszins verzekerd en als gevolg daarvan is geen exploitatieplan benodigd.
Hoofdstuk 7 Maatschappelijke uitvoerbaarheid
Het ontwerp van het bestemmingsplan met bijlagen, het beeldkwaliteitsplan en het ontwerpbesluit hogere grenswaarde Wet Geluidhinder hebben vanaf vrijdag 13 januari 2017 gedurende zes weken voor een ieder ter inzage gelegen op het gemeentehuis, Kornoeljeplein 1 te Vries. De tervisielegging heeft plaatsgevonden conform de bepalingen van de Wet op de Ruimtelijke Ordening (WRO) en de Algemene wet bestuursrecht (Awb).
Gedurende de termijn van terinzagelegging, kon iedereen schriftelijk, dan wel mondeling zienswijzen over het ontwerpbestemmingplan, het beeldkwaliteitsplan en het ontwerpbesluit hogere grenswaarde Wet geluidhinder indienen bij de gemeenteraad van Tynaarlo.
Binnen de termijn zijn vijf schriftelijke zienswijzen ontvangen afkomstig uit het postcode gebied 9765 EA en een schriftelijke zienswijze van de Vereniging voor Natuur- en Milieueducatie (IVN), afdeling Eelde-Paterswolde. Alle zienswijzen zijn tijdig ingediend en daarmee ontvankelijk verklaard.
De zienswijzen hebben betrekking op het ontwerpbestemmingsplan en concept beeldkwaliteitsplan. Er zijn geen zienswijzen ingediend tegen het ontwerpbesluit hogere grenswaarde Wet geluidhinder.
In het kader van het overleg ex artikel 3.1.1. van het Besluit ruimtelijke ordening is het ontwerpbestemmingsplan ook toegezonden aan de Provincie Drenthe en Waterschap Noorderzijlvest. Van beide instanties is een reactie ontvangen. Provincie Drenthe geeft aan dat de ontwikkeling in overeenstemming is met het provinciaal beleid. Het Waterschap Noorderzijlvest heeft geen bezwaar en geeft aan de verdere detailuitwerking in gezamenlijkheid met initiatiefnemer en gemeente te willen oppakken. Hieraan zal gevolg worden gegeven. De reacties zijn toegevoegd als bijlage in de zienswijzennota.
7.1 Conclusies zienswijzen
De zienswijzen zijn beantwoord in de zienswijzennota ‘Ontwerpbestemmingsplan en beeldkwaliteitsplan Woningbouw Paterswolde Noord’. Deze nota is toegevoegd aan de bijlagen van het bestemmingsplan. De conclusies uit de nota worden omschreven in de volgende twee alinea’s.
Als gevolg van de zienswijzen worden de volgende wijzigingen doorgevoerd in het bestemmingsplan:
-
op de verbeelding wordt de zuidelijke grens van het bouwvlak nabij de Boterdijk 8 meter opgeschoven in noordelijke richting; hierdoor bedraagt de afstand van de achtergevels van de woningen aan de Boterdijk tot aan het bouwvlak circa 25 tot 40 meter;
-
op de verbeelding wordt het huidige voetpad achter de woningen aan de Boterdijk buiten de begrenzing gelaten van het nieuwe plangebied;
-
in de regels wordt de maximale oppervlakte van een hoofdgebouw beperkt door artikel 5.2.1. lid j2, welke naar verhouding grote hoofdgebouwen vanaf 360 m2 toestaat, te verwijderen.
In het beeldkwaliteitsplan wordt in paragraaf 3.2 gesuggereerd dat het groengebied grenzend aan de noordelijke kavel van Groningerweg 12 onderdeel is van de openbare ruimte. Echter, dit deel van het plangebied is niet in eigendom van de initiatiefnemer of gemeente. Derhalve is dit geen openbaar gebied. Wel is tussen initiatiefnemer en de huidige eigenaar vastgelegd dat het groenontwerp en -aanleg van dit perceel geschiedt door initiatiefnemer, in aansluiting bij het totale ontwerpconcept voor de openbare ruimte van het plangebied. De tekst in het definitieve beeldkwaliteitsplan zal dan ook dien overeenkomstig worden aangepast.
7.2 Ambtshalve wijzigingen
Verder zijn in het bestemmingsplan ambtshalve wijzigingen doorgevoerd, welke zijn beschreven in hoofdstuk 5 van de zienswijzennota Ontwerpbestemmingsplan en beeldkwaliteitsplan Woningbouw Paterswolde Noord van mei 2017.