direct naar inhoud van Ruimtelijke onderbouwing
Plan: Hoeve de Plei
Status: vastgesteld
Plantype: omgevingsvergunning
IMRO-idn: NL.IMRO.1729.OVeperweg2d-VG01

Ruimtelijke onderbouwing

Hoofdstuk 1 Inleiding

Ter plekke van de locatie Overgeul 1 te Mechelen is hotel 'Hoeve de Plei' te Mechelen gevestigd. Aldaar wordt een hotel met 17 hotelkamers en bijbehorend restaurant geëxploiteerd. Bovendien is bij Hoeve de Plei een bedrijfswoning gesitueerd die aanwezig is op het adres Overgeul 1a te Mechelen.

Recent is door de bedrijfsvoerster de locatie Eperweg 2, 2a, 2b, 2c en 2d aangekocht. Op deze locatie is een reguliere burgerwoning aanwezig en zijn drie vakantiewoningen vergund.

Als gevolg van persoonlijke omstandigheden en het feit dat de eigendomssituatie de afgelopen jaren is gewijzigd, is een aantal aspecten niet meer in overeenstemming met het planologisch kader. Daarnaast wordt een aantal ontwikkelingen beoogd op genoemde locaties. Deze ontwikkelingen zijn via een principeverzoek voorgelegd aan de gemeente Gulpen-Wittem.

afbeelding "i_NL.IMRO.1729.OVeperweg2d-VG01_0001.png"

Uitsnede topografische kaart met aanduiding projectgebied

Middels schrijven d.d. 11 oktober 2021 heeft de gemeente Gulpen-Wittem kenbaar gemaakt onder voorwaarden medewerking te verlenen aan de beoogde ontwikkelingen. Het principestandpunt is bijgevoegd in Bijlage 1. Om onderhavige ontwikkeling mogelijk te maken, wordt een 'projectafwijkingsbesluit' doorlopen.

Afwijken van een bestemmingsplan is alleen toegestaan, indien deze afwijking in overeenstemming is met de goede ruimtelijke ordening. Dit dient te worden aangetoond door een ruimtelijke onderbouwing.

Voorliggend document betreft de ruimtelijke onderbouwing ten behoeve van de beoogde afwijking van het geldende bestemmingsplan.

Hoofdstuk 2 Projectgebied en beoogde ontwikkeling

In dit hoofdstuk worden het projectgebied, de huidige situatie en het project beschreven. Tevens wordt in dit hoofdstuk ingegaan op de ruimtelijke effecten van het project.

2.1 Ligging projectgebied

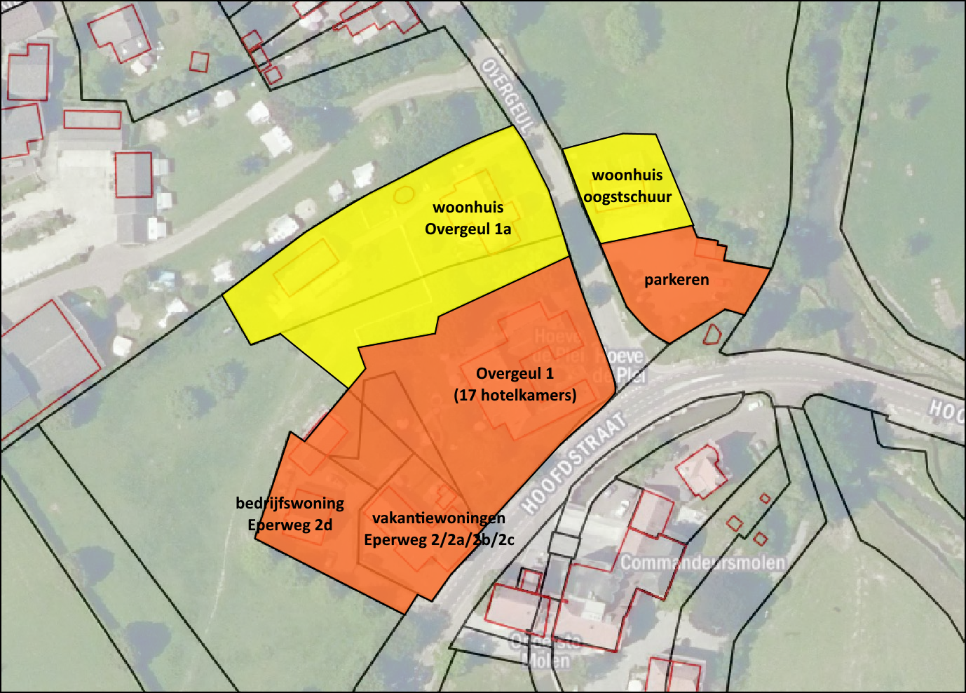
Onderhavig projectgebied is gelegen aan de wegen Overgeul respectievelijk de Eperweg, in het noordelijk deel van Mechelen. De Eperweg vormt de verbindingsweg tussen de dorpskernen Mechelen en Epen. De locatie is kadastraal bekend als gemeente Wittem - sectie M - nummers 91, 368, 370, 371, 372 (gedeeltelijk), 631, 533, 534 en 535.

afbeelding "i_NL.IMRO.1729.OVeperweg2d-VG01_0002.png"

Luchtfoto met aanduiding projectgebied

2.2 Bestaande situatie

In de bestaande situatie wordt op de locatie Overgeul 1 te Mechelen hotel 'Hoeve de Plei' geëxploiteerd. Deze locatie is kadastraal bekend als gemeente Wittem - sectie M - nummer 631. Parkeren ten behoeve van het hotel vindt plaats aan de overzijde van de weg Overgeul, namelijk op het kadastrale perceel 91. Van oudsher is bij hotel 'Hoeve de Plei' een bedrijfswoning aanwezig op de locatie Overgeul 1a. Deze locatie is kadastraal bekend als gemeente Wittem - sectie M - nummer 371. Momenteel wordt de bedrijfswoning bewoond door de voormalige bedrijfsvoerders van hotel 'Hoeve de Plei'.

Voorts is recent omgevingsvergunning verleend om de vervallen oogstschuur aan de oostzijde van de Overgeul, gelegen tegenover het woonhuis Overgeul 1a en in bestemmingsplanmatig opzicht onderdeel uitmakend van de horeca-inrichting, om te vormen tot een reguliere burgerwoning.

De huidige bedrijfsvoerster is met haar partner sinds 2003 woonachtig op de locatie Eperweg 2d. Dit betreft het pand vergund als vakantiewoning dat ten noorden van de locatie Eperweg 2, 2a, 2b en 2c is gelegen, en ten westen van hotel 'Hoeve de Plei'. Bovendien zijn op de locatie Eperweg 2, 2a, 2b en 2c een reguliere burgerwoning aanwezig en zijn drie vakantiewoningen vergund.

De bestaande situatie wordt weergegeven aan de hand van de volgende afbeeldingen.

afbeelding "i_NL.IMRO.1729.OVeperweg2d-VG01_0003.png"

Gebruikssituatie bestaand

afbeelding "i_NL.IMRO.1729.OVeperweg2d-VG01_0004.png"

afbeelding "i_NL.IMRO.1729.OVeperweg2d-VG01_0005.png"

Foto's bestaande situatie

2.3 Beoogde planontwikkeling

Ter plekke van onderhavig projectgebied is een aantal ontwikkelingen voorzien. Hieronder worden deze ontwikkelingen uiteengezet.

Overgeul 1a

In planologisch-juridisch opzicht vormt de woning Overgeul 1a de bedrijfswoning bij hotel 'Hoeve de Plei'. Deze bedrijfswoning wordt bewoond door de voormalige bedrijfsvoerders, die niet meer actief zijn in het hotel. De wens bestaat om deze woning in planologisch-juridisch opzicht los te koppelen van de horeca-activiteiten van 'Hoeve de Plei' door deze om te vormen tot een reguliere burgerwoning conform het feitelijke gebruik ter plaatse.

Eperweg 2d

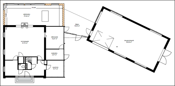
Daarop aansluitend is van belang dat de huidige bedrijfsvoerster van hotel 'Hoeve de Plei' woonachtig is in de als vakantiewoning vergunde bebouwing op de locatie Eperweg 2d. Het voornemen is om deze bebouwing om te vormen tot bedrijfswoning bij 'Hoeve de Plei' conform het feitelijke gebruik ter plaatse. In dat verband bestaat de behoefte om deze bebouwing, zijnde de toekomstige bedrijfswoning, uit te breiden om zo afdoende ruimte te kunnen bieden voor het hele gezin. Het voornemen is om deze bebouwing aan de noordwestzijde uit te breiden met circa 40 m2. In onderstaande figuren wordt de gewenste uitbreiding gevisualiseerd.

afbeelding "i_NL.IMRO.1729.OVeperweg2d-VG01_0006.png"

afbeelding "i_NL.IMRO.1729.OVeperweg2d-VG01_0007.png"

Plattegronden nieuwe toestand

afbeelding "i_NL.IMRO.1729.OVeperweg2d-VG01_0008.png"

afbeelding "i_NL.IMRO.1729.OVeperweg2d-VG01_0009.png"

Gevelaanzichten nieuwe toestand

Eperweg 2, 2a, 2b en 2c

Op de locatie Eperweg 2, 2a, 2b en 2c is sprake van karakteristieke bebouwing ingericht voor 1 reguliere woning en 3 (vergunde) vakantieappartementen. De bebouwing is bestemd voor 'Wonen – Cultuur en ontspanning'. Het voornemen bestaat om deze bebouwing toe te voegen aan de exploitatie van hotel 'Hoeve de Plei', waarbij de reguliere woning zal worden omgevormd tot vakantiewoning. Daarmee biedt de bebouwing aan de Eperweg 2/2a/2b/2c in totaal 4 vakantiewoningen. De woontitel kan vervolgens worden overgeheveld naar de bebouwing aan de Eperweg 2d ten behoeve van het gebruik als bedrijfswoning door initiatiefneemster. Hierdoor is per saldo géén sprake van het toevoegen van permanente wooneenheden.

Oogstschuur

Tot slot is recente omgevingsvergunning verleend voor het omvormen van de vervallen oogstschuur aan de oostzijde van de Overgeul, gelegen tegenover het woonhuis Overgeul 1a, om te vormen tot één reguliere burgerwoning. Daarmee is het gebruik van deze bebouwing losgekoppelen van de horeca-activiteiten van hotel 'Hoeve de Plei'.

Gelet op vorenstaande impliceert het initiatief feitelijk primair een verschuiving van het huidige 'programma' aan functies. Immers, in de huidige situatie is sprake van 2 permanente woningen (bedrijfswoning Overgeul 1a en woonhuis Eperweg 2), 17 hotelkamers (Overgeul 1), en 4 vergunde vakantie-eenheden (Eperweg 2a, 2b, 2c, en 2d). In de door initiatiefneemster gewenste situatie is sprake van hetzelfde 'programma': 2 permanente woningen (bedrijfswoning Overgeul 1a wordt reguliere woning, en vakantiewoning Eperweg 2d wordt bedrijfswoning), 17 hotelkamers (Overgeul 1), en 4 vakantie-eenheden (Eperweg 2, 2a, 2b, en 2c).

In onderstaande figuur is vorenstaande gebruikssituatie in de nieuwe toestand gevisualiseerd.

afbeelding "i_NL.IMRO.1729.OVeperweg2d-VG01_0010.png"

Gebruikssituatie nieuw

2.4 Ruimtelijke effecten

Elk bouwplan heeft ruimtelijke effecten tot gevolg. De vraag is of deze effecten aanvaardbaar zijn.

Voorliggende ontwikkeling is in beginsel gericht op het doorvoeren van een verschuiving van functies tussen de locaties Overgeul 1 en 1a en de locaties Eperweg 2, 2a, 2b, 2c en 2d. Omdat deze functiewijziging wordt beoogd binnen de contouren van de bestaande bebouwing, heeft deze geen noemenswaardige effecten tot gevolg.

Wel is van belang dat het voornemen is om de beoogde bedrijfswoning Eperweg 2d te Mechelen uit te breiden zodat het woongenot wordt vergroot en afdoende ruimte kan worden geboden aan alle gezinsleden. Deze ontwikkeling ziet op het uitbreiden van de bestaande bebouwing met circa 40 m2. De uitbreiding wordt voorzien aan de westzijde van het pand zodat een en ander vanaf de straatzijde niet zichtbaar zal zijn. Daar komt bij dat het pand Eperweg 2d reeds wordt afgeschermd door de bestaande bebouwing Eperweg 2, 2a, 2b en 2d. Dientengevolge is de ruimtelijke uitstraling van onderhavige ontwikkeling beperkt van aard. Tot slot is van belang dat de dorpsbouwmeester van de gemeente Gulpen-Wittem op 30 maart 2022 een positief advies heeft afgegeven jegens de beoogde uitbreiding.

Geconcludeerd wordt dat de ruimtelijk-visuele effecten die te verwachten zijn naar aanleiding van de beoogde ontwikkeling, aanvaardbaar worden geacht.

Hoofdstuk 3 Planologisch-juridische situatie

3.1 Bestemmingsplan 'Gulpen-Wittem buitengebied'

Onderhavig projectgebied is gelegen binnen het plangebied van het bestemmingsplan 'Gulpen-Wittem buitengebied'. Dit bestemmingsplan is op 5 januari 2011 vastgesteld door de gemeenteraad van Gulpen-Wittem.

afbeelding "i_NL.IMRO.1729.OVeperweg2d-VG01_0011.png"

Uitsnede bestemmingsplan 'Gulpen-Wittem buitengebied'

Ten behoeve van de overzichtelijkheid is ervoor gekozen om per locatie het planologisch-juridisch kader uiteen te zeten. Ook wordt aangegeven hoe de beoogde ontwikkelingen zich verhouden tot het geldende bestemmingsplan.

Overgeul 1

De locatie Overgeul 1 is op basis van het bestemmingsplan 'Gulpen-Wittem buitengebied' bestemd tot 'Horeca' met bijbehorend bouwvlak. De voor 'Horeca' aangewezen gronden zijn onder andere bestemd voor horeca en bedrijven gericht op verblijven, recreëren, verzorgen en verwennen. Daarnaast heeft deze bebouwing een rijksmonumentaal karakter omdat ter plekke de lettertekenaanduiding 'monument rijk' van toepassing is.

De locatie Overgeul 1 vormt geen onderdeel (meer) van hotel 'Hoeve de Plei'. Recent is middels separate omgevingsvergunning verleend voor het omvormen van deze locatie ten behoeve van 1 reguliere burgerwoning.

Overgeul 1a

Ter plekke van de locatie Overgeul 1a is eveneens de bestemming 'Horeca' van toepassing, met bijbehorend bouwvlak. De locatie Overgeul 1a fungeert als bedrijfswoning bij hotel 'Hoeve de Plei'. In artikel 1.20 van de planregels is bepaald dat een bedrijfswoning is bedoeld voor het huishouden van één persoon, gezin of andere groep van personen, van wie huisvesting daar, gelet op de bestemming van het gebouw of het terrein noodzakelijk is.

Momenteel wordt de bedrijfswoning bewoond door de voormalige bedrijfsvoerders die niet meer actief zijn in het bedrijf. Feitelijk is de woning momenteel als reguliere burgerwoning in gebruik. Het voornemen is om de woning Overgeul 1a in planologisch-juridisch opzicht los te koppelen van de horeca-activiteiten van hotel 'Hoeve de Plei'. Concreet bestaat de wens om de bedrijfswoning Overgeul 1a om te vormen tot een reguliere burgerwoning conform het feitelijke gebruik ter plaatse.

Eperweg 2d

Op de locatie Eperweg 2d is de bestemming 'Horeca' van kracht met bijbehorend bouwvlak. Voor deze locatie is een omgevingsvergunning verleend voor het gebruik als vakantiewoning. Betreffend pand wordt bewoond door de bedrijfsvoerster en haar haar gezin. Feitelijk fungeert deze bebouwing als bedrijfswoning bij hotel 'Hoeve de Plei'. Het voornemen is om de feitelijke situatie correct planologisch-juridisch te regelen. Derhalve wordt beoogd om de bebouwing Eperweg 2d om te vormen tot bedrijfswoning bij 'Hoeve de Plei'. Bovendien is het voornemen om deze bebouwing uit te breiden met circa 40 m2. Rekening houdend met dit bouwplan staat voorop dat deze uitbreiding buiten het bouwvlak wordt voorzien.

Eperweg 2, 2a, 2b en 2c

Ter plekke van de locatie Eperweg 2, 2a, 2b en 2c is de bestemming 'Wonen - en ontspanning' van toepassing met bijbehorend bouwvlak. Op deze locatie zijn een reguliere burgerwoning en drie vakantiewoningen vergund. Bovendien geldt op onderhavige locatie de lettertekenaanduiding 'karakteristieke bebouwing' van toepassing. Het voornemen is om de bebouwing Eperweg 2, 2a, 2b en 2c toe te voegen aan de exploitatie van 'Hoeve de Plei', waarbij de reguliere woning zal worden omgevormd tot vakantiewoning. Daarmee biedt de bebouwing aan de Eperweg 2/2a/2b/2c in totaal 4 vakantiewoningen. De woontitel wordt zodoende overgeheveld naar de bebouwing aan de Eperweg 2d ten behoeve van het gebruik als bedrijfswoning door initiatiefneemster. Hierdoor is per saldo géén sprake van het toevoegen van permanente wooneenheden.

Onderhavige ontwikkeling is enkel mogelijk middels het doorlopen van een 'projectafwijkingsbesluit' waarbij wordt afgeweken van het geldende bestemmingsplan 'Gulpen-Wittem buitengebied'.

Hoofdstuk 4 Beleid

In dit hoofdstuk wordt ingegaan op het Rijks-, provinciale en gemeentelijke beleid. Het Rijksbeleid wordt besproken aan de hand van de Nationale Omgevingsvisie (NOVI). Voor de beschrijving van het provinciale beleid is gebruik gemaakt van de Provinciaal Omgevingsvisie Limburg (POVI). Het gemeentelijke beleid is ontleend aan de 'Intergemeentelijke Structuurvisie Gulpen-Wittem, Vaals en Valkenburg', 'Lokale Woonvisie 2018-2025', 'Toeristische visie Gulpen-Wittem' en de 'Strategische visie Gulpen-Wittem 2009-2020'.

4.1 Rijksbeleid

4.1.1 Nationale omgevingsvisie (NOVI)

Voorsorterend op de inwerkingtreding van de Omgevingswet is op 11 september 2021 de Nationale Omgevingsvisie (NOVI) vastgesteld. Met de NOVI biedt het Rijk een duurzaam toekomstperspectief voor onze leefomgeving. Met ruim 17 miljoen mensen op ruim 41.000 m2 is het zoeken om goede keuzes te maken ten aanzien van ruimtebeslag, om Nederland over 30 jaar nog steeds een plek te laten zijn waar het goed wonen, werken en recreëren is.
De NOVI richt zich op die ontwikkelingen waarin meerdere nationale belangen bij elkaar komen en keuzes in samenhang moeten worden gemaakt tussen de 21 nationale belangen die in de NOVI worden onderscheiden. De belangrijkste keuzes zijn:

  • De inpassing van duurzame energie(opwekking) met oog voor omgevingskwaliteit.
  • Het bieden van ruimte voor een overgang naar een circulaire economie.
  • Woningbouw faciliteren in een stedelijk netwerk van gezonde en groene steden.
  • Landgebruik meer in balans laten zijn met natuurlijke systemen.


Het realiseren van deze wensen, het benutten van kansen en het oplossen van knelpunten vraagt om samenwerking tussen overheden. Zowel bij nationale vraagstukken als bij gebiedsgerichte regionale opgaven.
De Nationale Omgevingsvisie (NOVI) richt zich op onderstaande vier prioriteiten. Deze onderwerpen hebben onderling veel met elkaar te maken en ze hebben gevolgen voor hoe de fysieke leefomgeving wordt ingericht. De Nationale Omgevingsvisie helpt bij het maken van de noodzakelijke keuzes.


1. Ruimte voor klimaatadaptatie en energietransitie

  • Nederland is in 2050 klimaatbestendig en waterrobuust. We reserveren voldoende ruimte voor toekomstige waterveiligheidsmaatregelen.
  • We maken de energie-infrastructuur geschikt voor duurzame energiebronnen en reserveren daarvoor ruimte.
  • We passen duurzame energie in met oog voor de kwaliteit van de omgeving en combineren deze zo veel mogelijk met andere functies, zoals zonnepanelen op daken en clustering van windmolens. Voor de inpassing van duurzame energie op land worden regionale energiestrategieën opgesteld.

2. Duurzaam economisch groeipotentieel

  • De Nederlandse economie verandert van karakter en is in 2050 geheel circulair en de broeikasgasemissies zijn dan met 95% gereduceerd, met 55% reductie als beoogd tussendoel in 2030.
  • We zetten in op optimale (inter)nationale bereikbaarheid van steden en economische kerngebieden in het Stedelijk Netwerk Nederland.
  • Overheden investeren in een aantrekkelijke, gezonde en veilige leefomgeving in steden en regio's en bevorderen een aantrekkelijk vestigingsklimaat.

3. Sterke en gezonde steden en regio's

  • We versterken het Stedelijk Netwerk Nederland door de ontwikkeling van de stedelijke regio's te ondersteunen en te zorgen voor goede onderlinge en externe verbindingen. Verstedelijking koppelen we aan de ontwikkeling van de (ov-) infrastructuur en vindt plaats in de regio's waar er vraag is.
  • Het Rijk hanteert een integrale verstedelijkingsstrategie. Dit is een samenhangende aanpak van wonen, werken, mobiliteit, gezondheid, veiligheid en leefomgevingskwaliteit. Zo kunnen steden zich duurzaam ontwikkelen.
  • Verstedelijking vindt geconcentreerd plaats in de regio. Toe te voegen nieuwe woon- en werklocaties worden zorgvuldig en op efficiënte wijze ingepast met oog voor beschikbare ruimte en mobiliteit. Het woningaanbod in de regio's sluit aan bij de vraag naar aantallen en typen woningen, woonmilieus en prijsklasse.
  • We richten de leefomgeving zo in dat deze een actieve, gezonde leefstijl en maatschappelijke participatie bevordert. We verbeteren de luchtkwaliteit, zodat in 2030 wordt voldaan aan de advieswaarden van de Wereldgezondheidsorganisatie.
  • We versterken het aanbod en de kwaliteit van het groen in de stad en verbeteren de aansluiting op het groene gebied buiten de stad. Een natuurinclusieve ontwikkeling van de stedelijke regio's en natuurinclusief bouwen zijn het uitgangspunt.
  • We richten steden en regio's klimaatbestendig in.
  • Het stedelijke mobiliteitssysteem levert een goede bereikbaarheid op. De auto, het ov, fietsen en lopen zijn onderling verknoopt. Het systeem draagt zo bij aan een gezonde leefomgeving en een gezonde leefstijl.
  • Voor gebieden buiten het Stedelijk Netwerk Nederland, die liggen aan de grens van het land en/of waar vraagstukken rond bevolkingsdaling spelen, ontwikkelen de overheden gezamenlijk een integrale gebiedsgerichte aanpak.

4. Toekomstbestendige ontwikkeling van het landelijk gebied

  • Unieke landschappelijke kwaliteiten worden versterkt en beschermd. Nieuwe ontwikkelingen in het landelijk gebied voegen landschapskwaliteit toe. Omgevingsbeleid wordt landschapsinclusief.


Conclusie

Met betrekking tot het voornemen zijn er weinig directe en concrete raakvlakken tussen deze visies en onderhavig plan, anders dan de meer algemene uitgangspunten ten aanzien van een veilige en gezonde leefomgeving, duurzaam ruimtegebruik, etc. Op deze onderwerpen wordt in navolgende paragrafen en hoofdstukken nog nader ingegaan.

4.1.2 Besluit algemene regels ruimtelijke ordening (Barro)

Het Barro voorziet in de juridische borging van het nationale ruimtelijke beleid. Het bevat regels die de beleidsruimte van andere overheden ten aanzien van de inhoud van ruimtelijke plannen inperken, daar waar nationale belangen dat noodzakelijk maken. Navolgende onderwerpen met nationaal belang zijn opgenomen in het Barro en de eerste aanvulling (Stb. 2012, nr. 388):

  • project Mainportontwikkeling Rotterdam;
  • kustfundament en de daarbuiten gelegen primaire waterkeringen;
  • grote rivieren en rijksvaarwegen en de veiligheid daarom heen;
  • toekomstige rivierverruiming van de Maastakken;
  • Waddenzee en Waddengebied, en IJsselmeergebied;
  • verstedelijking in het IJsselmeer;
  • defensie;
  • erfgoederen van uitzonderlijke universele waarde;
  • hoofdwegen en landelijke spoorwegen;
  • elektriciteitsvoorziening;
  • ecologische hoofdstructuur.
4.1.3 Regeling algemene regels ruimteljike ordening (Rarro)

Naast het Barro is ook de Regeling algemene regels ruimtelijke ordening (Rarro) in werking getreden. In het Barro is bepaald dat bij ministeriële regeling verschillende militaire terreinen, gebieden, objecten en zones worden aangewezen, waar gemeenten bij de vaststelling van bestemmingsplannen rekening mee moeten houden. In de Rarro wordt daar uitvoering aan gegeven.

4.1.4 Conclusie Rijksbeleid

Voorliggende ontwikkeling levert geen strijd op met de Nationale Omgevingsvisie, het Barro en de Rarro. Het Rijksbeleid is niet aan de orde, omdat sprake is van een kleinschalige ontwikkeling en er geen onderwerpen vanuit de NOVI en Barro op het projectgebied van toepassing zijn. Ook gelden er vanuit de Rarro geen beperkingen ten aanzien van het project.

4.2 Provinciaal beleid

4.2.1 Omgevingsvisie Limburg (POVI)

Op 1 oktober 2021 hebben Provinciale Staten van Limburg de Omgevingsvisie Limburg vastgesteld, met inachtneming van de aanvaarde amendementen. De Omgevingsvisie Limburg vervangt de Omgevingsvisie POL 2014. De Omgevingsvisie is een strategische en lange termijn (2030-2050) visie op de fysieke leefomgeving en beschrijft onderwerpen zoals wonen, infrastructuur, milieu, water, natuur, landschap, bodem, ruimtelijke economie, luchtkwaliteit en cultureel erfgoed. Daarnaast worden ook de aspecten gezondheid, veiligheid en een gezonde leefomgeving in de Omgevingsvisie meegenomen.

In het POVI is onderhavig projectgebied gelegen in de zone 'Groenblauwe mantel'. Vanuit beleidsmatig oogpunt in relatie tot voorliggende ontwikkeling is geen sprake van relevante wijzigingen. Over de 'Groenblauwe mantel' is in het POVI het volgende opgenomen.

Groenblauwe mantel

In de zone 'Groenblauwe mantel' worden goede combinatiemogelijkheden gezien van duurzame vormen van land- en tuinbouw en meer ruimte voor de beken en de Maas, de biodiversiteit en de kernkwaliteiten van het landschap. Deze kernkwaliteiten betreffen het groene karakter, het visueel-ruimtelijk karakter, het cultuurhistorisch erfgoed, het reliëf en ruimte voor water en waterberging in laagten en beekdaelen.

Voorliggende ontwikkeling wordt niet belemmerd door de beleidsuitgangspunten van de provincie Limburg.

afbeelding "i_NL.IMRO.1729.OVeperweg2d-VG01_0012.png"

Uitsnede kaart 'Limburgse principes' POVI met ligging projectgebied

4.2.2 Omgevingsverordening Limburg 2014 (OvL 2014)

Naast de indeling in zoneringen is tevens sprake van diverse provinciale beschermingsgebieden, waartoe op grond van de Omgevingsverordening Limburg 2014 specifieke regelgeving geldt. Onderhavig plangebied is gelegen binnen het 'Beschermingsgebied Nationaal Landschap Zuid-Limburg'.

afbeelding "i_NL.IMRO.1729.OVeperweg2d-VG01_0013.png"

Uitsnede kaart 'milieubeschermings-gebieden' Omgevingsverordening Limburg 2014 met ligging projectgebied

Beschermingsgebied Nationaal Landschap Zuid-Limburg

Onderhavig projectgebied is blijkens de kaart 'Milieubeschermingsgebieden' gelegen in het beschermingsgebied Nationaal Landschap Zuid-Limburg. In Nederland zijn in totaal 20 zogenaamde nationale landschappen aangewezen. Dit zijn landschappen met elk een unieke combinatie van cultuurhistorische en natuurlijke elementen. De Nationale Landschappen kenmerken zich door de specifieke samenhang tussen de verschillende onderdelen van het landschap, zoals natuur, reliëf, grondgebruik en bebouwing.

De kernkwaliteiten zijn voor het Nationaal Landschap Zuid-Limburg betreffen: 'schaalcontrast van zeer open naar besloten', 'het groene karakter', 'reliëf en ondergrond' en 'rijk en gevarieerd cultuurhistorisch erfgoed'. Bij (ruimtelijke) ontwikkelingen binnen een nationaal landschap dienen de geformuleerde kernkwaliteiten in acht te worden genomen en/of versterkt te worden. Dienaangaande het volgende:

Schaalcontrast van zeer open naar besloten

Onderhavig projectgebied is gelegen op de overgang van de dorpskern Mechelen naar open agrarisch gebied. Dit contrast wordt in stand gehouden doordat de uitbreiding van de beoogde bedrijfswoning (Eperweg 2d) direct rond de bebouwing wordt voorzien. Daarmee wordt de openheid richting het buitengebied bewaard.

Het groene karakter

Voorliggend project voorziet in hoofdzaak in het doorvoeren van een verschuiving aan functies. Binnen de bestaande bebouwing worden namelijk een aantal functieveranderingen doorgevoerd. Daarmee wordt het groene karakter niet aangetast. Daar komt bij dat het voornemen ziet op het beperkt uitbreiden van de bebouwing aan de Eperweg 2d. Deze ontwikkeling wordt doorgevoerd om het woongenot in de toekomstige bedrijfswoning te vergroten. Deze ontwikkeling wordt aan de westzijde van het bestaande pand, binnen de bestemming 'Horeca' doorgevoerd waardoor het groene karakter zo min mogelijk wordt aangetast.

Reliëf en ondergrond

Het bestaande reliëf en de bestaande ondergrond blijft in hoofdzaak onaangeroerd. Vanwege het beperkte oppervlak van het bouwplan op de locatie Eperweg 2d, worden het reliëf en de ondergrond gerespecteerd.

Rijk en gevarieerd cultuurhistorisch erfgoed

Ter plekke van de locatie Eperweg 2, 2a, 2b en 2c is op basis van het geldende bestemmingsplan de lettertekenaanduiding 'karakteristieke bebouwing' van toepassing. Ter plaatse van deze bebouwing wordt enkel een verschuiving van functies beoogd waardoor de karakteristieke waarden niet worden aangetast. Op de locatie Eperweg 2d, waar een uitbreiding van de bestaande bebouwing wordt voorzien, is een dergelijke aanduiding niet van toepassing. Deze bebouwing heeft dan ook geen karakteristieke waarde. Het cultuurhistorisch erfgoed wordt dan ook niet aangetast.

De kernkwaliteiten worden vanwege voorliggend project niet onevenredig aangetast.

Voorts geldt op grond van de Omgevingsverordening primair een verbod op het verrichten van handelen in beekdalen, bronnen of bronzones, graften en holle wegen. Daarvan is ter plekke van onderhavig projectgebied geen sprake.

4.2.3 Ladder voor duurzame verstedelijking

De zogenaamde 'ladder voor duurzame verstedelijking', zoals deze inwerking is getreden op 1 juli 2017, is opgenomen in artikel 3.1.6, tweede lid, Besluit ruimtelijke ordening en luidt als volgt:

De toelichting bij een bestemmingsplan dat een nieuwe stedelijke ontwikkeling mogelijk maakt, bevat een beschrijving van de behoefte aan die ontwikkeling, en, indien het bestemmingsplan die ontwikkeling mogelijk maakt buiten het bestaand stedelijk gebied, een motivering waarom niet binnen het bestaand stedelijk gebied in die behoefte kan worden voorzien.

De ladder voor duurzame verstedelijking is door de provincie verankerd in de Omgevingsverordening Limburg 2014 (OvL2014) in artikel 2.2.2, lid 1. Aanvullend op deze ladder heeft de provincie in de bepaald dat tevens de mogelijkheden van herbenutting van leegstaande monumentale en beeldbepalende gebouwen worden onderzocht.

Uitgangspunt voor toepassing van de ladder voor duurzame verstedelijking is dat sprake dient te zijn van een stedelijke ontwikkeling. Conform artikel 2.2.1 van de OvL2014 is de definitie van een stedelijke ontwikkeling een 'ruimtelijke ontwikkeling van een bedrijventerrein of van kantoren, detailhandel, woningbouwlocaties of andere stedelijke voorzieningen'.

Het doorvoeren van een functieverandering ter plekke van het projectgebied en het beperkt uitbreiden van een bestaand gebouw wordt, gelet op de jurisprudentie, niet aangemerkt als een 'stedelijke ontwikkeling'. Het doorlopen van de ladder voor duurzame verstedelijking is dan ook niet noodzakelijk.

4.2.4 Limburgs Kwaliteitsmenu

Voor (ruimtelijke) ontwikkelingen buiten de zogenaamde 'rode contouren' is het Limburgs Kwaliteitsmenu van kracht. In dit Kwaliteitsmenu geeft de provincie de Limburgse gemeenten een handreiking op welke wijze deze om moeten gaan met ontwikkelingen in het buitengebied. Gemeenten dienen in een structuurvisie dit provinciale beleidskader te verwerken en aan te geven op welke wijze zij toepassing geven aan het Limburgs Kwaliteitsmenu.

In z'n algemeenheid betreft het Limburgs Kwaliteitsmenu een beleidsregel die onder voorwaarden ruimtelijke ontwikkelingen in het buitengebied van Limburg toestaat. Daarbij dient sprake te zijn van 'kwaliteitswinst'. Deze kwaliteitswinst kan op diverse wijze tot stand komen, zoals bijvoorbeeld het realiseren van een landschappelijke inpassing, het slopen van bedrijfsbebouwing of glasopstanden, het realiseren van natuur of het leveren van een financiële bijdrage in een (gemeentelijk) 'groenfonds'. De provincie geeft in het Limburgs Kwaliteitsmenu richtlijnen en drempelwaarden voor het bepalen van de hoogte van de tegenprestatie bij verschillende soorten ruimtelijke ontwikkelingen.

De gemeente Gulpen-Wittem heeft samen met de gemeenten Valkenburg aan de Geul en Vaals de Intergemeentelijke Structuurvisie Gulpen-Wittem, Valkenburg aan de Geul en Vaals vastgesteld waarin een uitwerking wordt gegeven van het Limburgs Kwaliteitsmenu. Daarop wordt nader ingegaan in paragraaf 4.3.1.

4.2.5 Conclusie provinciaal beleid

Gelet op vorenstaande uiteenzetting van het vigerende provinciale beleid, bestaan er geen onoverkomelijke belemmeringen met betrekking tot voorliggende ontwikkeling.

De ter plekke van onderhavig projectgebied van toepassing zijnde provinciale zonering 'Groenblauwe mantel' impliceert geen belemmeringen vanuit beleidsoogpunt. Voorts is geen sprake van strijdigheid met de uitgangspunten van het beschermingsgebied 'Nationaal Landschap Zuid-Limburg'.

Voor wat betreft de van toepassing zijnde provincie beleidsregel 'Limburgs Kwaliteitsmenu' heeft de gemeente Gulpen-Wittem deze vertaald in de intergemeentelijke structuurvisie. Daarop wordt in paragraaf 4.3.1 van voorliggende toelichting nader ingegaan.

4.3 Gemeentelijk beleid

4.3.1 Intergemeentelijke Structuurvisie Gulpen-Wittem, Vaals en Valkenburg

Door de provincie Limburg is op 12 januari 2010 als uitwerking van de POL-aanvulling Verstedelijking, gebiedsontwikkeling en kwaliteitsverbetering, de beleidsregel Limburgs Kwaliteitsmenu (LKM) vastgesteld. In het LKM zijn de 'extra' condities en voorwaarden opgenomen die bepaalde ontwikkelingen in het buitengebied (gebieden buiten de rode contouren om de kernen) mogelijk maken. De gemeente Gulpen-Wittem heeft, samen met de gemeente Vaals en Valkenburg aan de Geul, en Gemeentelijk Kwaliteitsmenu (GKM) vastgesteld.

Vooropgesteld moet worden dat onderhavige ontwikkeling wordt doorgevoerd binnen de bebouwde kom van de dorpskern Mechelen. Daarnaast wordt de ontwikkeling binnen de contouren van de ter plaatse geldende bestemming 'Horeca' doorgevoerd waardoor met onderhavige ontwikkeling geen extra verstening plaatsvindt.

4.3.2 De Lokale Woonvisie 2018-2025

Binnen De Lokale Woonvisie 2018 – 2025 wil de gemeente Gulpen-Witten de gemeentelijke ambities weergeven betreffende het lokale woonbeleid. De visie schetst dan ook de koers die de gemeente Gulpen-Wittem wil volgen in de periode 2018-2025 en is opgesteld om het prettig wonen en leven in de gemeente te bevorderen. Dat dient te geschieden door te sturen op een optimale woonkwaliteit voor alle burgers door uit te gaan van de verantwoordelijkheid en de wensen en noden van eenieder.

De gemeente wil voor doorstromers met verhuisplannen meer keuze creëren in de bestaande woningvoorraad en overig leegstaand of -komend waardevol vastgoed. Als dat geen soelaas geeft, kan beperkte additionele nieuwbouw worden ingezet. Tegelijkertijd is te constateren dat senioren in minder passende woningen niet of nauwelijks willen doorstromen naar passender woningen (honkvast). Hier ligt een aanleiding om de mogelijkheden ten aanzien van kwaliteitsverbetering van de bestaande voorraad door transformatie of herbestemming nadrukkelijk op de agenda te zetten middels communicatie en bewustwordingscampagnes.

Voorliggende ontwikkeling voorziet niet in het toevoegen van wooneenheden. In onderhavig voornemen is slechts sprake van de verschuiving van diverse functies tussen de locaties Overgeul en Eperweg. Daarmee voldoet voorliggend voornemen aan het beleid zoals opgenomen in de Lokale Woonvisie 2018-2035.

4.3.3 Toeristische visie Gulpen-Wittem

Onderhavige ontwikkeling heeft betrekking op de toeristische sector in de gemeente Gulpen-Wittem. De gemeente beschikt over de 'Toeristische visie Gulpen-Wittem' waarin nader wordt ingegaan op het door haar te hanteren beleid. De gemeente Gulpen-Wittem geeft aan dat het belang van toerisme voor haar gemeente erg groot is omdat:

  • Toerisme en recreatie vormen een draagvlak voor andere activiteiten en voorzieningen, zoals detailhandel, horeca, maar ook bijvoorbeeld evenementen. De eigen bevolking kan hiervan meeprofiteren, waardoor de leefbaarheid van de gemeente voor de eigen inwoners toeneemt;
  • De toeristische sector is goed voor de werkgelegenheid. Bovendien levert het een differentiatie in de lokale economische structuur op;
  • Het imago en de naamsbekendheid van een gemeente / regio kan toenemen door toerisme en recreatie. Dit positieve imago kan ook doorwerken op andere sectoren in het gebied (aantrekkelijkheid als woongebied of investeringsklimaat bedrijven);
  • Toeristische ontwikkeling kan een aanjager (vliegwiel) voor integrale gebiedsontwikkeling zijn. Hiermee wordt bedoeld dat nieuwbouw of herstructurering van bijvoorbeeld een hotel of bungalowpark verder gaat dan bouwen/verbouwen alleen. Een hele regio kan hierdoor een impuls krijgen. Ook verandering, aanleg van infrastructuur en natuurontwikkeling spelen een belangrijke rol.

Toerisme en recreatie zijn dus belangrijk voor de gemeente Gulpen-Wittem. De gemeente wil deze sector graag ondersteunen en stimuleren in de toekomst om de bovenstaande voordelen te behouden en verder te versterken. Vooropgesteld moet worden dat onderhavige ontwikkeling niet voorziet in het toevoegen van vakantieappartementen, enkel op het doorvoeren van een functieverandering tussen de locaties aan de Overgeul respectievelijk de Eperweg. De verblijfsrecreatieve activiteiten op onderhavig projectgebied blijven dan ook behouden waardoor wordt ingespeeld op de 'Toeristische visie Gulpen-Wittem'.

4.3.4 Strategische visie Gulpen-Wittem 2009-2020

In de 'Strategische visie Gulpen-Wittem 2009-2020' geeft de gemeente Gulpen-Wittem nadere aanknopingspunten omtrent de vormgeving van haar gemeentelijke beleid. Vooropgesteld wordt dat primair wordt ingezet op de versterking van de agrarische, toeristisch-recreatieve en dienstverlenende sector. De gemeente Gulpen-Wittem voert een actief voorwaardenscheppend beleid om het verblijfstoerisme te versterken en de toeristisch-recreatieve bestedingen te vergroten en tegelijkertijd de toeristisch-recreatieve druk te verminderen. De aandacht gaat hierbij primair uit naar de kwaliteit van de infrastructurele voorzieningen en verblijfsaccommodaties. Ingezet wordt op infrastructurele investeringen met als doel het toeristisch-recreatief verknopen van de kernen en het buitengebied door nieuwe lokale en (grensoverschrijdende) regionale thematische routestructuren die zoveel mogelijk bij de kernen starten. Ook wordt ingezet op invulling van vrijkomende panden rond de gekozen thema's en wordt geïnvesteerd in de presentatie van de gemeente op strategische locaties binnen Gulpen-Wittem. Daarnaast wordt ingezet op (verdere) samenwerking tussen de eigenaren van verblijfsaccommodaties om de kwaliteit van de accommodaties en het verblijfstoerisme te verbeteren.

Bovenstaande uitgangspunten zijn in overeenstemming met de beoogde ontwikkelingen die initiatiefneemster ter plekke van het projectgebied wenst door te voeren. Er wordt namelijk een verschuiving van functies beoogd waarbij een samenwerking wordt voorzien tussen de locatie aan de Overgeul respectievelijk de Eperweg.

4.3.5 Conclusie gemeentelijk beleid

Gelet op vorenstaande uiteenzetting van het gemeentelijke beleid wordt geconcludeerd dat onderhavige ontwikkeling niet strijdig is met dit beleid.

Hoofdstuk 5 Milieutechnische aspecten

Bij de realisering van een ontwikkeling moet in de eerste plaats rekening worden gehouden met aspecten uit de omgeving die een negatieve invloed kunnen hebben op het projectgebied. Dit geldt omgekeerd ook voor de uitwerking die het project heeft op zijn omgeving. Voor de locatie zijn in dit hoofdstuk de milieuaspecten bodem, geluid, milieuzonering, luchtkwaliteit en externe veiligheid onderzocht.

5.1 Bodem

5.1.1 Algemeen

Indien sprake is van een planologische functiewijziging, dient te worden bezien of de milieuhygiënische kwaliteit van de bodem ter plaatse geschikt is voor het voorgenomen gebruik.

5.1.2 Beoordeling per deellocatie

Hiernavolgend wordt per deellocatie beoordeeld of sprake is van de noodzaak tot het uitvoeren van een bodemonderzoek.

Overgeul 1a

Het voornemen is om de bedrijfswoning Overgeul 1a te Mechelen los te koppelen van de bedrijfsvoering van hotel 'Hoeve de Plei'. Daarmee wordt beoogd om deze bebouwing om te vormen tot een reguliere burgerwoning overeenkomstig het feitelijk gebruik ter plaatse. Deze ontwikkeling gaat niet gepaard met het realiseren van nieuwe verblijfsruimten. Het uitvoeren van een verkennend bodemonderzoek op de locatie Overgeul 1a is dan ook niet vereist.

Eperweg 2d

Ter plaatse van de locatie Eperweg 2d te Mechelen is op basis van het geldende bestemmingsplan de bestemming 'Horeca' van toepassing. Deze bebouwing is vergund als vakantiewoning. Initiatiefneemster is voornemens om deze bebouwing om te vormen tot bedrijfswoning behorende bij hotel 'Hoeve de Plei'. Daarop aansluitend is initiatiefneemster voornemens om de beoogde bedrijfswoning uit te breiden met circa 40 m2. In de aanbouw worden nieuwe verblijfsruimten gerealiseerd, waaronder een leefkeuken. Het uitvoeren van een bodemonderzoek op de locatie Eperweg 2d is in dat verband vereist.

Eperweg 2, 2a, 2b en 2c

In de bestaande situatie zijn op deze locatie één reguliere burgerwoning en drie vakantiewoningen aanwezig. Het voornemen is om de reguliere burgerwoning om te vormen tot een vakantiewoning en de woontitel over te hevelen naar de locatie Eperweg 2d. Dat maakt dat in deze bebouwing geen gevoeligere functie wordt geëxploiteerd waardoor het uitvoeren van een bodemonderzoek niet noodzakelijk is.

5.1.3 Verricht bodemonderzoek

Ten behoeve van onderhavige ontwikkeling is, specifiek vanwege de uitbreiding van het pand aan de Eperweg 2d, een verkennend bodem- en asbestonderzoek uitgevoerd. De rapportage van het verrichte onderzoek is bijgevoegd als Bijlage 2. Op grond van dat onderzoek zijn de volgende conclusies en aanbevelingen gedaan.

Bovengrond

Op basis van een indicatieve toetsing aan het Besluit bodemkwaliteit kan voornoemde bovengrond deels als klasse industrie grond (MM 01) en deels als klasse AW2000 grond (MM 02) worden gekwalificeerd. De lichte verontreinigingen zijn van dien aard, dat ze geen belemmeringen voor de toekomstige nieuwbouw veroorzaken.

Ondergrond

In de ondergrond zijn geen parameters verhoogd aangetoond. Op basis van een indicatieve toetsing aan het Besluit bodemkwaliteit kan de ondergrond als klasse AW2000 grond worden bestempeld.

Grondwater

In het grondwater zijn diverse lichte overschrijdingen aangetroffen. Deze marginale overschrijdingen kunnen als te verwaarlozen worden beschouwd en vormen geen belemmering voor de beoogde ontwikkeling. De lichte verontreinigingen zijn van dien aard, dat ze geen belemmeringen voor de toekomstige nieuwbouw veroorzaken.

 Asbest

Tijdens het verrichten van het bodemonderzoek zijn zintuiglijk geen asbestverdachte materialen aangetoond. Uit de resultaten van het asbestonderzoek blijkt, dat er sprake is van een lichte overschrijding. Deze is dermate marginaal dat deze geen belemmeringen voor de beoogde plannen oplevert.

Resumerend kan worden gesteld, dat ondanks de licht verhoogde concentraties in de bovengrond en het grondwater deze vanuit milieuhygiënisch oogpunt geen belemmeringen vormen voor de beoogde bouwplannen. Voor wat betreft de onderzoekslocatie is er geen aanleiding om over te gaan tot het uitvoeren van een nader onderzoek.

5.1.4 Conclusie bodem

Gelet op het vorenstaande vormt het aspect bodem geen belemmeringen voor de beoogde ontwikkeling.

5.2 Geluid

5.2.1 Algemeen

Met betrekking tot het aspect geluid kan sprake zijn van geluidbelasting als gevolg van wegverkeerslawaai, industrielawaai en spoorweglawaai.

Bij voorliggende ontwikkeling is enkel het aspect wegverkeerslawaai relevant in het kader van een goede ruimtelijke ordening. Het aspect spoorweglawaai is niet aan de orde. Wat betreft het aspect industrielawaai kan worden verwezen naar paragraaf 5.3 van voorliggende toelichting.

Ten aanzien van alle wegen, behalve 30 km/u wegen en wegen behorende bij een woonerf, geldt een geluidszone, die ook wettelijk is vastgelegd in de Wet geluidhinder. Voor wegen die buitenstedelijk zijn gelegen en die bestaan uit één of twee rijstroken, geldt een wettelijk vastgestelde geluidzone van 250 meter aan weerszijden van de weg (gemeten vanuit de wegas). Wegen waarop een maximum snelheid geldt van 30 km/u zijn niet voorzien van geluidzones.

Wanneer ontwikkelingen worden gerealiseerd binnen geluidzones van wegen, zal middels een akoestisch onderzoek moeten worden aangetoond dat de gevelbelasting vanwege het wegverkeerslawaai niet zodanig is dat de, in de Wet geluidhinder opgenomen, voorkeursgrenswaarde van 48 dB voor burgerwoningen wordt overschreden. Is dit wel het geval, dan zal een procedure voor het vaststellen van een Hogere Waarde gevolgd dienen te worden.

5.2.2 Beoordeling per deellocatie

Hiernavolgend wordt per deellocatie beoordeeld of sprake is van de noodzaak tot het uitvoeren van een akoestisch onderzoek.

Overgeul 1a

Voorliggende ontwikkeling is ter plekke van de locatie Overgeul 1a gericht op het omvormen van de bestaande bedrijfswoning tot een reguliere burgerwoning. Deze ontwikkeling gaat dan ook niet gepaard met het realiseren van nieuwe verblijfsruimten. Het gebruik van de woning als zodanig blijft gelijk. Sprake is van een planologische wijziging van 'bedrijfswoning' naar 'burgerwoning'. De Wet geluidhinder (artikel 76, lid 3) schrijft voor dat geluidbelasting op bestaande woningen niet getoetst hoeven te worden aan de grenswaarden.

Eperweg 2d

Op de locatie Eperweg 2d wordt beoogd om een bestaande vakantiewoning om te vormen tot een bedrijfswoning. Op basis van de Wet geluidhinder worden recreatieve verblijven niet als geluidsgevoelige bestemming aangemerkt. Een permanente woning wordt daarentegen wél als geluidsgevoelige bestemming aangeduid. In dat kader is van belang dat voor de Eperweg een maximum snelheid van 50 km/u geldt. Dergelijke wegen zijn op basis van de Wet geluidhinder gezoneerd. Het verrichten van een akoestisch onderzoek naar de gevelbelasting vanwege wegverkeerslawaai is derhalve noodzakelijk.

Eperweg 2, 2a, 2b en 2c

In de bestaande situatie zijn op deze locatie één reguliere burgerwoning en drie vakantiewoningen aanwezig. Het voornemen is om de reguliere burgerwoning om te vormen tot een vakantiewoning en de woontitel over te hevelen naar de locatie Eperweg 2d. Dat maakt dat in deze bebouwing geen gevoeligere functie wordt geëxploiteerd waardoor het uitvoeren van een akoestisch onderzoek niet noodzakelijk is.

5.2.3 Verricht akoestisch onderzoek

Ten behoeve van onderhavige ontwikkeling is, specifiek vanwege de omvorming van het als vakantiewoning vergunde pand aan de Eperweg 2d tot bedrijfswoning, een akoestisch onderzoek wegverkeerslawaai uitgevoerd. De rapportage van het verrichte onderzoek is bijgevoegd als Bijlage 3. Op grond van dat onderzoek zijn de volgende conclusies en aanbevelingen gedaan.

In het kader van een goede ruimtelijke ordening is de cumulatie bepaald inclusief alle gemodelleerde geluidbronnen. Ter bepaling van de milieukwaliteit in de omgeving is deze gecumuleerde waarde getoetst aan de 'methode Miedema'. De maximale gecumuleerde waarde, welke wordt bepaald door de Eperweg/Hoofdstraat, bedraagt 55 dB, waarmee gesteld kan worden dat er sprake is van de kwalificatie 'redelijk' en daarmee van een aanvaardbaar woon- en leefklimaat.

Bij toepassing van moderne bouwmaterialen is een binnenniveau van 33 dB gewaarborgd. Tevens beschikt het bouwplan over een geluidluwe gevel/buitenruimte. Daarmee is er sprake van een aanvaardbaar woon- en leefklimaat.

Aangezien de cumulatieve geluidbelasting hoger is dan 53 dB dient er een nader onderzoek te worden uitgevoerd ter bepaling van de geluidwering van de gevel. Het is echter aannemelijk dat de gevels van het pand een grotere geluidwering hebben dan de minimale 20 dB uit het Bouwbesluit en de kleine overschrijding op enkele toetspunten er niet voor zullen zorgen dat een aanvaardbaar woon- en leefklimaat in het geding is. Derhalve is een nader onderzoek ter bepaling van de geluidwering van de gevel niet aan de orde. Bij toepassing van moderne bouwmaterialen is een binnenniveau van 33 dB en daarmee een aanvaardbaar woon- en leefklimaat gewaarborgd.

5.2.4 Conclusie geluid

Gelet op vorenstaande vormt het aspect geluid geen belemmeringen voor de beoogde ontwikkeling.

5.3 Milieuzonering

5.3.1 Algemeen

Milieuzonering zorgt ervoor dat nieuwe bedrijven een passende locatie in de nabijheid van woningen krijgen en dat (andersom) nieuwe woningen op een verantwoorde afstand van bedrijven gesitueerd worden. Het waar mogelijk scheiden van bedrijven en woningen bij nieuwe ontwikkelingen dient twee doelen:

  • het reeds in het ruimtelijke spoor voorkomen of zoveel mogelijk beperken van hinder en gevaar voor woningen;
  • het tegelijk daarmee aan de bedrijven voldoende zekerheid bieden dat zij hun activiteiten duurzaam binnen aanvaardbare voorwaarden kunnen uitoefenen.

Teneinde te bepalen of een goed woon- en leefklimaat respectievelijk verblijfklimaat aanwezig is, dient bestaande bedrijvigheid in de (directe) omgeving te worden beoordeeld. Daartoe kan gebruik worden gemaakt van de VNG-publicatie 'Bedrijven en milieuzonering (editie 2009)'.

In de VNG-handreiking worden twee omgevingstypen onderscheiden, namelijk ‘rustige woonwijk’/‘rustig buitengebied’ en ‘gemengd gebied’. De indicatieve afstanden uit de bedrijvenlijst zijn de afstanden die moeten worden aangehouden tot de gevels van woningen in een ‘rustige woonwijk’. Deze afstand dient in principe te worden gemeten tussen de gevel van het hindergevoelige object (de woning) enerzijds en de perceelsgrens van de hinderveroorzakende activiteit anderzijds. Voor woningen in een ‘gemengd gebied’ mag deze afstand worden gecorrigeerd en kan de indicatieve afstand met één trede worden verlaagd. Omdat ter plekke sprake is van gemengd gebied met tal van functies, wordt deze correctie toegepast.

5.3.2 Beoordeling deellocaties

Hiernavolgend wordt per deellocatie ingegaan op het aspect milieuzonering.

Overgeul 1a

Het voornemen is om de bedrijfswoning Overgeul 1a los te koppelen van de bedrijfsvoering van hotel 'Hoeve de Plei'. Teineinde te bepalen of in de beoogde burgerwoning een goed woon- en leefklimaat aanwezig is, dient bestaande bedrijvigheid in de (directe) omgeving van onderhavig plangebied te worden beoordeeld. Daartoe kan gebruik worden gemaakt van de VNG-publicatie 'Bedrijven en milieuzonering (editie 2009)'.

Allereerst is van belang dat op de locatie Overgeul 1 hotel 'Hoeve de Plei' wordt geëxploiteerd. Doordat de voormalige bedrijfswoning wordt losgekoppeld van 'Hoeve de Plei', dient te worden bepaald of de beoogde burgerwoning geen belemmeringen opwerpt voor de bedrijfsvoering van het hotel. Met inachtneming van de VNG-brochure 'Bedrijven en Milieuzonering (versie 2009)' geldt voor de categorie 'Hotels en pensions met keuken, conferentie-oorden en congrescentra' (SBI-2008: 5510) een minimale richtafstand van 10 meter. De afstand tussen de bebouwing op de locaties Overgeul 1 en Overgeul 1a bedraagt meer dan 10 meter. Aan de minimale richtafstand wordt dan ook voldaan.

Bovendien wordt op de locatie Overgeul 13 een agrarisch bedrijf met bijbehorende boerderijcamping geëxploiteerd. Daarnaast is op de locatie Hoofdstraat 105 een graanmolen aanwezig. Onderhavige ontwikkeling levert geen (extra) beperkingen op voor de exploitatie van deze bedrijven omdat geen sprake is van een nieuwe gevoelige functie. In de bestaande situatie dienen deze bedrijven reeds rekening te houden met de woonfunctie ter plekke van Overgeul 1a, in het kader van het garanderen van een goed woon- en leefklimaat.

Eperweg 2d

Voorts is het voornemen om de vakantiewoning Eperweg 2d om te vormen tot bedrijfswoning bij 'Hoeve de Plei'. Deze ontwikkeling heeft dan ook tot gevolg dat op onderhavige locatie een gevoeligere functie tot stand wordt gebracht. In de beoogde situatie is ter plekke namelijk geen permanente bewoning toegestaan. Hierbij dient rekening te worden gehouden met het feit dat op de locatie Hoofdstraat 105 een graanmolen is gelegen. Ter plekke zijn bedrijven toegestaan van mlieucategorie 1 en 2, waarvoor in gemengd gebied een maximale richtafstand geldt van maximaal 30 meter. De afstand van de beoogde bedrijfswoning tot de inrichtingsgrens bedraagt circa 45 meter, waardoor aan deze afstand ruimschoots wordt voldaan.

Wat betreft de locatie Overgeul 13 is van belang dat ter plekke een agrarisch bedrijf met een boerderijcamping is gelegen. Uitgaande van de VNG-brochure 'Bedrijven en milieuzonering (editie 2009)' dient voor het 'fokken en houden van rundvee' (SBI-2008: 0141, 0142) een minimale richtafstand van 50 meter te worden aangehouden in gemengd gebied. Met betrekking tot de categorie 'Kampeerterreinen, vakantiecentra, e.d. (met keuken)' (SBI-2008: 553, 552) dient een minimale richtafstand van 30 meter tot het aspect geluid te worden aangehouden in gemengd gebied. De afstand van de beoogde bedrijfswoning tot de grens van de inrichting bedraagt circa 50 meter. Daarmee wordt aan de geldende richtafstanden voldaan.

Eperweg 2, 2a, 2b en 2c

Op onderhavige locatie zijn momenteel één reguliere burgerwoning en drie vakantieappartementen vergund. Het voornemen is om de woontitel op de locatie over te hevelen naar de locatie Eperweg 2d. Vervolgens wordt beoogd om de vrijgekomen woning om te vormen tot een vakantiewoning. Deze ontwikkeling gaat niet gepaard met de intrede van een nieuwe gevoeligere functie waardoor bedrijven in de omgeving reeds rekening moeten houden met de activiteiten ter plaatse.

5.3.3 Conclusie milieuzonering

Gelet op het vorenstaande vormt het aspect milieuzonering geen belemmering voor de voorgenomen ontwikkeling.

5.4 Luchtkwaliteit

5.4.1 Algemeen

Sinds 15 november 2007 zijn de belangrijkste bepalingen inzake de luchtkwaliteit opgenomen in hoofdstuk 5, titel 5.2 van de Wet milieubeheer (hierna ook: Wm). Omdat de luchtkwaliteitseisen op zijn genomen in titel 5.2 van de Wm, staat deze ook wel bekend als de 'Wet luchtkwaliteit'.

Het doel van titel 5.2 Wm is om de mensen te beschermen tegen de negatieve gevolgen van luchtverontreiniging op hun gezondheid. In de wet- en regelgeving zijn de richtlijnen uit de Europese regelgeving opgenomen, waaraan voorgenomen ontwikkelingen dienen te voldoen.

Als aan minimaal één van de volgende voorwaarden wordt voldaan, vormen de luchtkwaliteitseisen in beginsel geen belemmering voor het uitoefenen van de bevoegdheid van een bestuursorgaan ex. artikel 5.16 Wm:

  • er is geen sprake van een feitelijke of dreigende overschrijding van de grenswaarde;
  • een project leidt al dan niet per saldo, niet tot een verslechtering van de luchtkwaliteit;
  • een project draagt 'niet in betekenende mate' (NIBM) bij aan de verslechtering van de luchtkwaliteit;
  • een project past binnen het NSL (Nationaal Samenwerkingsprogramma Luchtkwaliteit) of een regionaal programma van maatregelen.
5.4.2 Het besluit NIBM

Deze Algemene maatregel van Bestuur (AmvB) legt vast wanneer een project 'niet in betekenende mate' bijdraagt aan de toename van concentraties van bepaalde stoffen in de lucht. Een project is NIBM wanneer het aannemelijk is dat het een toename van de concentratie veroorzaakt van maximaal 3%. De 3% grens wordt gedefinieerd als 3% van de grenswaarde voor de jaargemiddelde concentratie van fijn stof (PM10) of stikstofdioxide (NO2). Dit komt overeen met 1,2 microgram/m3 voor zowel PM10 als NO2. Het NSL is vanaf augustus 2009 van kracht, zodat de 3% grens aangehouden dient te worden.

In de regeling NIBM is (onder andere) aangegeven dat een plan tot 1.500 woningen niet in betekenende mate bijdraagt aan de toename van de concentratie fijn stof en stikstofdioxide in de lucht. Onderhavige ontwikkeling ziet niet op het toevoegen van woningen of vakantiewoningen, enkel op een verschuiving van functies binnen het projectgebied. Met inachtneming van de kleinschalige aard van onderhavige ontwikkeling kan worden geconcludeerd dat het voornemen geen invloed heeft op het aspect luchtkwaliteit. Het voornemen leidt niet tot een verslechtering van de luchtkwaliteit.

NIBM-tool InfoMil

Ook zal het plan niet leiden tot een dusdanig aantal toenemende verkeersbewegingen dat de grenswaarde van de luchtkwaliteit daarmee wordt overschreden. InfoMil heeft een NIBM-tool ontwikkeld waarmee een 'worst-case' berekening kan worden verricht voor de bijdrage van het extra verkeer als gevolg van een plan op de luchtkwaliteit. Dit rekenmodel toont aan dat tot 1.887 extra voertuigen (weekdaggemiddelde) niet in betekenende mate bijdragen aan de verslechtering van de luchtkwaliteit. Hierbij wordt uitgegaan van 0% vrachtverkeer. Van een dergelijk aantal verkeersbewegingen is bij onderhavige ontwikkeling geen sprake.

5.4.3 Besluit gevoelige bestemmingen

Dit besluit is gericht op de beperking van de vestiging in de nabijheid van provinciale en rijkswegen van gevoelige bestemmingen, zoals gebouwen voor kinderopvang, scholen, verzorgings- of verpleegtehuizen.

Het Besluit gevoelige bestemmingen is niet op onderhavig voornemen van toepassing.

5.4.4 Conclusie luchtkwaliteit

Gelet op vorenstaande vormt het aspect luchtkwaliteit geen belemmeringen voor onderhavige ontwikkeling.

5.5 Externe veiligheid

In onderhavig geval is sprake van het realiseren van een zogenaamd kwetsbaar object. Het beleid is derhalve van toepassing en er is een afweging gemaakt of de ontwikkeling ertoe leidt dat er een onaanvaardbaar risico ontstaat in het kader van de externe veiligheid.

5.5.1 Beleid

Het beleid in het kader van de externe veiligheid is gericht op het beperken en beheersen van risico's voor de omgeving voor wat betreft handelingen met gevaarlijke stoffen. Deze handelingen kunnen zowel betrekking hebben op het gebruik, de opslag en de productie van gevaarlijke stoffen, als op het vervoer van deze stoffen.

Uit het Besluit externe veiligheid inrichtingen (Bevi) en de richtlijnen voor het vervoer van gevaarlijke stoffen, vloeit de verplichting voort om in het kader van ruimtelijke plannen in te gaan op de risico's in het plangebied als gevolg van handelingen met gevaarlijke stoffen. Deze risico's worden beoordeeld op twee soorten risico: het groepsrisico en het plaatsgebonden risico.

Groepsrisico

Het groepsrisico beschrijft de kans dat een groep van 10 of meer personen tegelijkertijd komt te overlijden als gevolg van een ongeval met gevaarlijke stoffen. Dit risico geeft een indicatie van de maatschappelijke ontwrichting in geval van een ramp. Het groepsrisico wordt uitgedrukt in een grafiek. In het Bevi is een verantwoordingsplicht binnen het invloedsgebied opgelegd, i.c. het gebied binnen de zogenaamde 1%-letaliteitsgrens, zijnde de afstand vanaf een risicobedrijf waarop nog slechts 1% van de blootgestelde mensen in de omgeving overlijdt bij een ongeval op het risicobedrijf. Voor elke verandering van het groepsrisico, dit kan een af- of toename zijn, in het invloedsgebied moet verantwoording worden afgelegd.

Deze verantwoording ziet toe op de wijze waarop de toelaatbaarheid van de verandering van het groepsrisico in de besluitvorming is betrokken. Samen met de hoogte van het groepsrisico, worden ook andere aspecten meegewogen in de beoordeling van het groepsrisico. Hieronder vallen onder meer de zelfredzaamheid en de bestrijdbaarheid van een calamiteit.

Plaatsgebonden risico

Het plaatsgebonden risico beschrijft de kans dat een onbeschermd individu in een jaar komt te overlijden als gevolg van een ongeval met gevaarlijke stoffen. Het plaatsgebonden risico wordt uitgedrukt in risicocontouren rondom de risicobron. Voorbeelden van risicobronnen zijn bedrijven, (vaar)wegen en spoorlijnen. De 10-6-contour is de maatgevende grenswaarde, binnen welke contour geen kwetsbare objecten mogen worden opgericht.

5.5.2 Risicovolle bronnen

Blijkens de Risicokaart Limburg zijn binnen een straal van 1 kilometer rondom onderhavig projectgebied geen geen risicovolle bronnen, transportassen (weg, spoor en/of water) en transportleidingen aanwezig die mogelijk een belemmering kunnen vormen voor het project.

afbeelding "i_NL.IMRO.1729.OVeperweg2d-VG01_0014.png"

Uitsnede Risicokaart Limburg met aanduiding projectgebied

5.5.3 Conclusie externe veiligheid

Gelet op vorenstaande uiteenzetting vormt het aspect externe veiligheid geen belemmeringen voor onderhavig voornemen. Daarbij kan worden gesteld dat de zelfredzaamheid in casu goed te noemen is. Ook is de bereikbaarheid van de locatie bij een eventuele calamiteit goed. Hierdoor is de ontwikkeling in het kader van de externe veiligheid verantwoord te noemen.

Gelet op het vorenstaande vormt het aspect externe veiligheid geen belemmeringen voor de ontwikkeling.

Hoofdstuk 6 Overige ruimtelijke aspecten

Naast de diverse milieutechnische aspecten, zoals uiteengezet in hoofdstuk 5, dient tevens te worden gekeken naar de overige ruimtelijke aspecten. In dit hoofdstuk wordt ingegaan op de aspecten archeologie, kabels en leidingen, verkeer en parkeren, waterhuishouding, natuur- en landschap, flora en fauna en duurzaamheid.

6.1 Archeologie en cultuurhistorie

6.1.1 Archeologie

Archeologische waarden zijn bij wet beschermd. Daaromtrent zijn in de Erfgoedwet bepalingen opgenomen die de gemeenteraad in acht moet nemen.

Voorliggende ontwikkeling ziet op het doorvoeren van een verschuiving van functies binnen het plangebied. In het kader van deze inpandige functiewijzigingen zijn geen bodemingrepen aan de orde. Wel is van belang dat initiatiefneemster voornemens is om de bebouwing Eperweg 2d uit te breiden met circa 40 m2.

Op basis van de archeologische beleidskaart van de gemeente Gulpen-Wittem d.d. 4 april 2016 is ter plaatse van het projectgebied in hoofdzaak de zone 'AMK-terrein (archeologisch monument); overig' van toepassing.

afbeelding "i_NL.IMRO.1729.OVeperweg2d-VG01_0015.png"

Uitsnede 'Archeologische beleidskaart van de gemeente Gulpen-Wittem' met aanduiding projectgebied

Ook ter plaatse van de beoogde uitbreiding aan de Eperweg 2d geldt de zone 'AMK-terrein (archeologisch monument); overig'. Op basis van deze archeologische verwachtingswaarde dient archeologisch onderzoek plaats te vinden indien de bodemingreep groter is dan 100 m2 en de bodemingreep dieper dan 30 centimeter beneden maaiveld plaatsvindt. Aangezien de beoogde uitbreiding een oppervlak van circa 40 m2 omvat en de bijbehorende bodemingreep niet dieper dan 30 centimeter beneden maaiveld plaatsvindt, is het uitvoeren van een archeologisch onderzoek niet noodzakelijk.

Het vorenstaande laat onverlet dat, indien tijdens toekomstige graafwerkzaamheden desondanks archeologische materialen en/of sporen aangetroffen worden, deze per direct gemeld dienen te worden bij de gemeente Gulpen-Wittem.

6.1.2 Cultuurhistorie

Voor onderhavig projectgebied is gelet op het bestemmingsplan ‘Buitengebied 2009’ voorts de dubbelbestemming ‘Waarde – Cultuurhistorie van kracht. Behorende bij deze dubbelbestemming dient de kaart ‘Cultuurhistorie’ te worden bestudeerd. Raadpleging van deze kaart toont aan dat onderhavig projectgebied gedeeltelijk is gelegen in een 'gebied met ensemble van waardevolle cultuurhistorische resten' en ‘historische kern anno 1800’. Bovendien zijn ten westen van de locatie enkele waardevolle hoogstambomen aanwezig.

afbeelding "i_NL.IMRO.1729.OVeperweg2d-VG01_0016.png"

Uitsnede kaart ‘Cultuurhistorie’ met aanduiding projectgebied

Voorliggende ontwikkeling ziet in hoofdzaak op het doorvoeren van een verschuiving van functies tussen de locaties Overgeul en Eperweg. Daarmee wordt de cultuurhistorische waarde van de bestaande bebouwing niet aangetast. Bovendien is initiatiefneemster voornemens om de bebouwing Eperweg 2d beperkt uit te breiden. Ten aanzien van deze ontwikkeling is van belang dat de bebouwing Eperweg 2d geen cultuurhistorisch waardevol karaker heeft.

6.1.3 Conclusie archeologie en cultuurhistorie

Gelet op vorenstaande vormt het aspect archeologie en cultuurhistorie geen belemmeringen voor onderhavige ontwikkeling.

6.2 Kabels en leidingen

6.2.1 Boven- en ondergrondse leidingen

Door het projectgebied lopen geen boven- en/of ondergrondse leidingen met een planologische beschermingszone. Er is op dat gebied derhalve geen sprake van bijbehorende (planologische) beschermingszones en/of belangen van derden op dit punt.

6.2.2 Nutsvoorzieningen

De aanwezigheid van kabels en leidingen met betrekking tot de nutsvoorzieningen in de omgeving is evident. Indien aanpassingen aan de bestaande aansluitingen moeten worden doorgevoerd, dient met de verschillende netwerkbeheerders contact te worden opgenomen.

6.2.3 Conclusie kabels en leidingen

Het aspect kabels en leidingen vormt geen belemmeringen.

6.3 Verkeer en parkeren

6.3.1 Algemeen

In het kader van voorliggend project is beoordeeld welke gevolgen dit heeft voor de verkeersstructuur en het parkeren.

6.3.2 Beoordeling

Vooropgesteld moet worden dat bij onderhavige ontwikkeling primair sprake is van een verschuiving van functies tussen de panden Overgeul en Eperweg. Deze ontwikkelingen hebben echter niet tot gevolg dat het huidige programma aan functies wijzigt. De functies worden namelijk enkel op een andere plek uitgeoefend. Derhalve heeft voorliggende ontwikkeling in hoofdzaak geen gevolgen voor de verkeersstructuur en de parkeerbehoefte.

Wel is van belang dat initiatiefneemster voornemens is om de beoogde bedrijfswoning Eperweg 2d uit te breiden. Deze ontwikkeling wordt enkel doorgevoerd om het woongenot te vergroten en voldoende ruimte te bieden voor alle gezinsleden. Deze ontwikkeling impliceert geen verkeersaantrekkende werking. Bovendien heeft de uitbreiding van de beoogde bedrijfswoning geen invloed op de parkeerbehoefte ter plekke.

6.3.3 Conclusie verkeer en parkeren

Op basis van het voorgaande wordt geconcludeerd dat het aspect verkeer en parkeren geen belemmeringen vormt voor onderhavig voornemen.

6.4 Waterhuishouding

6.4.1 Nationaal Waterplan 2016-2021

In het Nationaal waterplan is het (strategische) waterbeleid van het Rijk vastgelegd. De hoofdlijnen van het Nationaal waterplan luiden als volgt (artikel 4.1, lid 2 Waterwet):

  • a. een aanduiding, in het licht van de wettelijke doelstellingen en normen, van de gewenste ontwikkeling, werking en bescherming van de watersystemen, alsmede van de bijbehorende termijnen;
  • b. een uiteenzetting van de maatregelen en voorzieningen, die met het oog op die ontwikkeling, werking en bescherming nodig zijn;
  • c. een aanduiding van de redelijkerwijze te verwachten financiële en economische gevolgen van het te voeren beleid;
  • d. een visie op de gewenste ontwikkelingen in verband met de voorkoming en waar nodig beperking van overstromingen en waterschaarste, voor een periode van ten minste veertig jaren mede in verband met de verwachte klimaatveranderingen.

Het Nationaal waterplan kent een looptijd van 2016 tot 2021 en vormt het kader voor de regionale waterplannen en de beheerplannen.

6.4.2 Provinciaal beleid

De provincie Limburg kent als uitgangspunt dat verdroging zo veel mogelijk moet worden tegengegaan en dat de waterkwaliteit, met het oog op een duurzaam gebruik in de toekomst, erg belangrijk is. Verder sluit de provincie aan bij het beleid van de Vierde Nota Waterhuishouding om infiltratie van water in de bodem te bevorderen en water meer terug te brengen in stedelijk gebied.

Binnen de waterbeheersplannen van Limburg is integraal waterbeheer een belangrijk begrip. Ook hier speelt verdroging en waterkwaliteit een belangrijke rol in het beleidsproces. Ter invulling van (specifiek) ecologische functies stelt het Waterschap onder andere dat, ter voorkoming van verdroging, grondwaterstanden (daar waar dat mogelijk is) verhoogd moeten worden door peilbeheer. Ook dient het rioleringsbeheer door gemeenten op en aan de aan watergangen en -plassen toegekende functies, afgestemd te worden. Naast die ecologische functie dienen er ook mensgerichte hoofdfuncties ten behoeve van industrie of drinkwater ingepast te worden. Tevens dient er plaats te zijn voor mensgerichte nevenfuncties.

6.4.3 Afvalwater en hemelwater

Het projectgebied is gelegen binnen de gemeente Gulpen-Wittem en in het beheergebied van Waterschap Limburg. Het Waterschap Limburg is verantwoordelijk voor de waterhuishouding en waterveiligheid binnen haar beheergebied. Sinds 1 april 2019 is de nieuwe Keur van het Waterschap Limburg van kracht.

Op welke wijze wordt omgegaan met het afval- en hemelwater binnen onderhavig projectgebied wordt hierna uiteengezet.

Afvalwater

Het afvalwater als gevolg van onderhavige ontwikkeling zal conform de bestaande situatie worden geloosd op de gemeentelijke riolering van de gemeente Gulpen-Wittem. Vanuit milieuhygiënisch oogpunt is het afvoeren van afvalwater via de gemeentelijke riolering vereist en daarmee tevens de beste optie.

Hemelwater van onverhard en semi-verhard terrein

Het hemelwater dat valt op de onverharde en semi-verharde terreindelen binnen het projectgebied zal, zo nodig na beperkte oppervlakkige afstroming, rechtstreeks infiltreren in de bodem.

Hemelwater (dak)verhardingen

Initiatiefneemster is voornemens om de bebouwing Eperweg 2d uit te breiden met circa 40 m2. In dit verband is van belang op welke wijze het hemelwater dat valt op de nieuwe (dak)verharding op eigen terrein zal worden opgevangen. Hierbij is relevant dat aan de westzijde van onderhavig pand een ruim agrarisch perceel aanwezig is dat in eigendom is van initiatiefneemster. Ter plaatse van deze gronden kan het hemelwater rechtstreeks infiltreren in de bodem. Het voornemen is er dan ook op gericht om het hemelwater af te laten vloeien naar dit agrarisch perceel. Daarmee wordt wateroverlast voor nabijgelegen woningen en het openbaar gebied voorkomen.

Voorkomen van wateroverlast

Door bij het bepalen van het bouwpeil en afschot hiermee rekening te houden, wordt voorkomen dat water in de te realiseren gebouwen kan vloeien. Daarnaast kan ten aanzien van wateroverlast voor derden worden gesteld dat hiervan geen sprake zal zijn.

6.4.4 Conclusie waterhuishouding

Gelet op het vorenstaande vormt het aspect waterhuishouding geen belemmering voor voorliggende ontwikkeling.

6.5 Natuurbescherming

6.5.1 Natura 2000

Natura2000 is een Europees netwerk van beschermde natuurgebieden. In Natura2000 gebieden worden bepaalde diersoorten en hun natuurlijke leefomgeving beschermd door de biodiversiteit te behouden. Natura2000 gebieden worden beschermd door de 'Wet Natuurbescherming'.

Het dichtstbijzijnde Natura 2000 gebied betreft het 'Geuldal'. Dit Natura-2000 gebied ligt op circa 10 meter ten oosten en ten zuiden van het projectgebied. Ter plekke van het projectgebied zelf is geen Natura2000-gebied aanwezig.

De sloopfase en de realisatiefase zijn met ingang van het Besluit stikstofreductie en natuurverbetering (Bsn), vastgesteld d.d. 1 juli 2021, en gebaseerd op de Wet stikstofreductie en natuurverbetering (Wsn), vastgesteld d.d. 1 juli 2021, vrijgesteld van vergunningplicht in het kader van de Wet natuurbescherming. Deze vrijstelling geldt echter niet voor structurele stikstofemissies in de gebruiksfase of voor andere emissies dan stikstof.

Rekening houdend met onderhavig voornemen is de gebruiksfase echter niet relevant. Het aantal verkeersbewegingen in de beoogde situatie neemt namelijk niet toe omdat enkel sprake is van het doorvoeren van een verschuiving aan functies en het uitbreiden van een bestaand pand. Gelet op de aard en het kleinschalige karakter van onderhavig voornemen, wordt vooropgesteld dat onderhavige ontwikkeling geen invloed heeft op nabijgelegen Natura2000-gebieden. Daar komt bij dat met onderhavige ontwikkeling geen dierhuisvesting mogelijk wordt gemaakt.

6.5.2 Flora en fauna

Op 1 januari 2017 is de Wet natuurbescherming in werking getreden. Deze wet vervangt 3 wetten: de Natuurbeschermingswet 1998, de Boswet en de Flora- en faunawet. In deze wet zijn de onderdelen uit de Europese Habitatrichtlijn en onder meer de Vogelrichtlijn, die de bescherming van soorten betreft, geïmplementeerd. De wet biedt ook het kader voor de bescherming van inheemse dier- en plantensoorten die geen bescherming genieten op grond van de Habitatrichtlijn. Er gelden een aantal verboden ter bescherming van beschermde dier- en plantensoorten.

Artikel 1.11 Wet natuurbescherming voorziet in een algemene verplichting voor een ieder om voldoende zorg te dragen voor Natura 2000-gebieden, bijzondere nationale natuurgebieden en voor in het wild levende dieren en planten en hun directe leefomgeving.

Voorliggende ontwikkeling heeft in hoofdzaak betrekking op het doorvoeren van een functiewijziging ter plekke van de bestaande bebouwing. Deze functiewijziging heeft geen invloed op eventueel aanwezige flora en fauna omdat deze binnen de bestaande bouwmassa wordt doorgevoerd.

Bovendien ziet de ontwikkeling op het uitbreiden van de bebouwing Eperweg 2d. Ten behoeve van deze ontwikkeling is de website www.waarneming.nl geraadpleegd welke recente data bevat met waarnemingen over flora en fauna. Uitgaande van waarneming.nl zijn tot voor kort geen beschermde flora en fauna aangetroffen op de gronden waar de uitbreiding van Eperweg 2d wordt voorzien. In onderstaande figuur wordt een en ander nader gevisualiseerd.

afbeelding "i_NL.IMRO.1729.OVeperweg2d-VG01_0017.png"

Uitsnede website www.waarneming.nl met aanduiding beoogde uitbreidingslocatie

Gesteld wordt dat er binnen het projectgebied geen negatieve effecten verwacht worden als gevolg van de uit te voeren werkzaamheden. Derhalve wordt geconcludeerd dat het aspect flora en fauna geen belemmeringen vormt voor onderhavige ontwikkeling.

6.5.3 Conclusie natuurbescherming

Het aspect natuurbescherming vormt geen belemmering voor onderhavig project.

6.6 Duurzaamheid

Duurzame stedenbouw verbreedt de aandacht naar meer aspecten dan alleen de verkaveling en ontsluiting. Duurzaamheid gaat ook om een zuinig ruimtegebruik, milieuvriendelijkheid, veilig verkeer en vervoer en natuur en rekening houden met het waterhuishoudingsysteem, omgevingsinvloeden, landschapsstructuren en landschapselementen.

Dit betekent in de praktijk dat gelet moet worden op het materiaalgebruik, de vormgeving, gebruik van alternatieve energiebronnen, compact bouwen, intensief ruimtegebruik en flexibel bouwen.

Duurzaam bouwen heeft een volwaardige plaats in het ontwerp, het bouwen en beheren van de bebouwing. Tijdens de bouw kan door zuinig om te gaan met bouwmaterialen worden voorkomen dat er onnodig afval ontstaat.

Hoofdstuk 7 Uitvoerbaarheid

De uitvoerbaarheid van de ontwikkeling dient in relatie tot de gemeentelijke financiën te zijn gewaarborgd. Daarbij dient ook te worden onderzocht of en in hoeverre de voorgenomen afwijkingen ten opzichte van het vigerende bestemmingsplan aanleiding kunnen geven tot aanspraken om planschade als bedoeld in artikel 6.1 van de Wet ruimtelijke ordening.

7.1 Grondexploitatie

7.1.1 Algemeen

Afdeling 6.4 van de Wet ruimtelijke ordening draagt de titel 'Grondexploitatie'. In dit hoofdstuk wordt ingegaan op de mogelijkheden voor gemeenten (en ook provincie en Rijk indien deze als planwetgever optreden) om langs publiekrechtelijke weg eisen te stellen aan het in exploitatie brengen van gronden. Het gaat dan onder andere om eisen op het gebied van kostenverhaal, sociale woningbouw, particulier opdrachtgeverschap en fasering van de invulling van de openbare ruimte. Ook zijn in afdeling 6.4 Wro twee bepalingen opgenomen over de wijze waarop langs privaatrechtelijke weg eisen gesteld kunnen worden aan het in exploitatie brengen van gronden.

7.1.2 Exploitatieplan

Afdeling 6.4 Wro beschrijft een publiekrechtelijk stelsel waarbinnen door gemeenten (en in voorkomend geval provincie of Rijk) eisen gesteld kunnen worden aan de grondexploitatie. Dit publiekrechtelijk instrumentarium is aanvullend van aard. Het primaat ligt bij vrijwillige civielrechtelijke afspraken op grond van artikel 6.24 Wro. Deze civielrechtelijke afspraken worden gemaakt in hetzij een anterieure overeenkomst (er is nog geen exploitatieplan vastgesteld) hetzij een posterieure overeenkomst (er is al een exploitatieplan vastgesteld).

Artikel 6.12, lid 1 Wro bepaalt dat de gemeenteraad verplicht is om voor de gronden, waarop een bij algemene maatregel van bestuur aangewezen bouwplan is voorgenomen, een exploitatieplan op te stellen. Artikel 6.2.1 Besluit ruimtelijke ordening geeft aan om welke bouwplannen het gaat.

Hoofdregel is dat er een plicht bestaat voor het opstellen van een exploitatieplan. Onder artikel 6.12, lid 2 Wro wordt hierop echter een aantal uitzonderingsmogelijkheden geboden:

  • het verhaal van kosten over de in het plan of besluit begrepen kosten is anderszins verzekerd;
  • het is niet nodig een tijdvak te bepalen waarbinnen de grondexploitatie zal plaatsvinden;
  • het is niet nodig een fasering op te nemen waarbinnen werken, werkzaamheden en bouwplannen uitgevoerd moeten worden;
  • het is niet nodig eisen en/of regels omtrent de uitvoering te stellen aan het bouwrijp maken en/of de inrichting van de openbare ruimte en/of de aanleg van nutsvoorzieningen;
  • het is niet nodig regels te stellen omtrent de uitvoering van de in het bestemmingsplan opgenomen bepalingen omtrent sociale huur en/of koopwoningen, kavels voor particulier opdrachtgeverschap of branches in de detailhandel.

Omdat bij voorliggend voornemen geen sprake is van een bouwplan genoemd in artikel 6.2.1 van het Bro, is het opstellen van een exploitatieovereenkomst tussen de gemeente Gulpen-Wittem en de initiatiefneemster niet aan de orde.

7.2 Planschade

Artikel 6.1 Wet ruimtelijke ordening biedt de grondslag voor de vergoeding van zogenoemde planschade. Deze schadevergoeding wordt (in beginsel) door het college van burgemeester en wethouders van de betreffende gemeente toegekend aan degene die als gevolg van een planontwikkeling schade lijdt.

Artikel 6.4a Wro bepaalt dat de gemeente de mogelijkheid heeft om met een initiatiefnemer van een planontwikkeling een overeenkomst te sluiten. De strekking van dergelijke planschadeovereenkomst is dat de door derden geleden schade geheel (of gedeeltelijk) voor rekening komt van de initiatiefnemer, omdat de schade voortvloeit uit het op zijn of haar verzoek ten behoeve van een planontwikkeling wijzigen van het bestemmingsplan of verlenen van een omgevingsvergunning.

De gemeente Gulpen-Wittem sluit een planschade-verhaalsovereenkomst met de initiatiefneemster. Eventuele tegemoetkomingen in planschade zijn dan ook niet voor rekening van de gemeente Gulpen-Wittem.

Hoofdstuk 8 Afweging van belangen en conclusie

Het voornemen is om op de locaties Overgeul 1 en 1a en Eperweg 2, 2a, 2b, 2c en 2d een verschuiving van functies door te voeren. Daarnaast wordt beoogd om de bebouwing Eperweg 2d beperkt uit te breiden met circa 40 m2. Ten behoeve van deze ontwikkeling dient te worden afgeweken van het geldende bestemmingsplan 'Gulpen-Wittem buitengebied'.

De gemeente Gulpen-Wittem heeft kenbaar gemaakt hieraan medewerking te willen verlenen door toepassing van de procedure voor het afwijken van het bestemmingsplan ex artikel 2.1, eerste lid, onder c van de Wabo. Dit is op basis van artikel 2.12, lid 1, onder a, sub 3 Wabo mogelijk, indien de activiteit niet in strijd is met een goede ruimtelijke ordening en de motivering van het besluit een goede ruimtelijke onderbouwing bevat.

Ten behoeve van de afwijkingsprocedure is aldus een ruimtelijke onderbouwing vereist. Voorliggend document voorziet daarin.

Tegen de realisering van het project bestaat vanuit ruimtelijk en stedenbouwkundig oogpunt geen bezwaar aangezien aan de volgende uitgangspunten c.q. randvoorwaarden wordt voldaan:

  • het project is niet strijdig met het Rijks-, provinciale en regionale beleid;
  • het project past binnen het gemeentelijke beleid en voldoet aan de door de gemeente gestelde randvoorwaarden;
  • door de beoogde ontwikkeling treden er geen conflicterende belangen op ten aanzien van bedrijven en woningen in de omgeving;
  • de milieuaspecten bodem, geluid, milieuzonering, luchtkwaliteit en externe veiligheid vormen geen beletsel voor de realisatie van het project;
  • het project heeft geen negatieve invloed op de aspecten archeologie, kabels en leidingen, verkeer en parkeren, waterhuishouding, flora en fauna en natuur en landschap;
  • het kostenverhaal met betrekking tot voorliggende ontwikkeling is verzekerd.

Op grond van vorenstaande overwegingen kan worden geconcludeerd dat het voornemen niet bezwaarlijk is en in overeenstemming is met de goede ruimtelijke ordening.