direct naar inhoud van Toelichting
Plan: Cuijk, Padbroek, Harlekijn
Status: vastgesteld
Plantype: bestemmingsplan
IMRO-idn: NL.IMRO.1684.BPCUHarlekijn-VA01

Toelichting


Hoofdstuk 1 Inleiding

1.1 Aanleiding voor het bestemmingsplan

De basisschool 'Harlekijn' aan het Hermelijnkwartier 43 in Cuijk is deel uit gaan maken van het Integraal Kindcentrum Padbroek, waardoor het voormalige schoolgebouw van de Harlekijn nu leeg staat. Jan Oosterhout ontwikkeling B.V. heeft het voornemen om het schoolgebouw te slopen en daarvoor in de plaats 14 woningen te ontwikkelen. Ten behoeve van dit plan wordt tevens een rechtstreekse ontsluiting op het Hagelkruis aangelegd.

Omdat het realiseren van de woningen en de aanleg van de weg strijdig is met het geldende bestemmingsplan, maar wel past op de locatie en gewenst is, wordt medewerking verleend. Via voorliggend document wordt gemotiveerd waarom medewerking wordt verleend en waarom dat kan volgens de Wet ruimtelijke ordening (Wro).

1.2 Ligging plangebied

Het plangebied is gelegen aan het Hermelijnkwartier 43 in de wijk Padbroek in het zuiden van Cuijk. Onderstaande afbeelding toont globaal de ligging van het plangebied in de omgeving.

afbeelding "i_NL.IMRO.1684.BPCUHarlekijn-VA01_0001.png"  
Ligging plangebied in omgeving (bron: www.openstreetmap.org)  

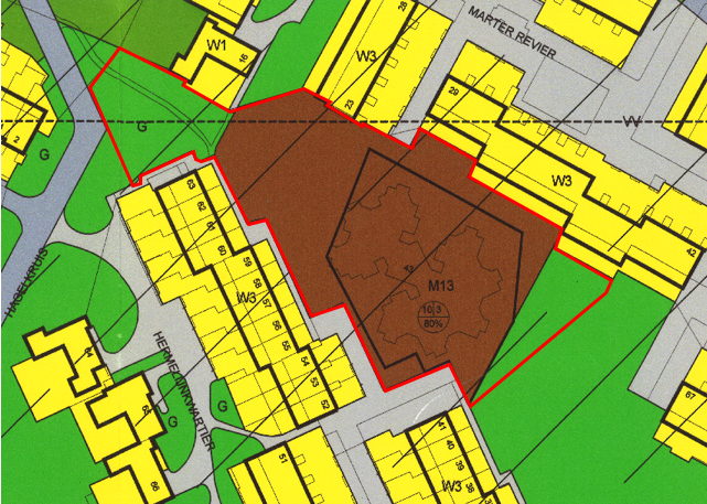
1.3 Geldend bestemmingsplan

Het plangebied maakt onderdeel uit van het vigerende bestemmingsplan 'Padbroek', vastgesteld op 3 juli 2006. Hierbinnen gelden de bestemmingen 'Maatschappelijke doeleinden' met een bouwvlak en 'Groenvoorziening'. Het realiseren van woningen binnen deze bestemmingen is niet toegestaan.

afbeelding "i_NL.IMRO.1684.BPCUHarlekijn-VA01_0002.png"  
Uitsnede vigerend bestemmingsplan met plangebied (rood omlijnd)  

1.4 Leeswijzer

Na dit inleidende hoofdstuk wordt in hoofdstuk 2 de huidige situatie in het plangebied beschreven. In hoofdstuk 3 wordt het initiatief beschreven. In hoofdstuk 4 is een beschrijving van het relevante Rijks-, provinciale-, en gemeentelijke beleid en de relevante wetgeving opgenomen. In hoofdstuk 5 wordt het project inhoudelijk op haalbaarheid getoetst aan de hand van het geldende beleid en (milieu)wetgeving. Tevens wordt in dit hoofdstuk ingegaan op de economische haalbaarheid van het plan. In hoofdstuk 6 wordt vervolgens een juridische planbeschrijving gegeven. Tot slot bevat hoofdstuk 7 de maatschappelijke uitvoerbaarheid van het plan, waarbij de uitkomsten van de inspraak en overlegmomenten zijn opgenomen.

Hoofdstuk 2 Huidige situatie

2.1 Bouwgeschiedenis en ruimtelijke structuur

Het plangebied is gelegen aan het Hermelijnkwartier in het zuiden van de kern Cuijk. Cuijk stond al in de Romeinse tijd op de kaart als Ceuclum, waar het zich in de loop van de tijd van een strategisch verdedigingspunt aan de Maas tot een dorp ontwikkelde. Cuijk is in noordelijke en zuidelijke richting gegroeid op hoge gronden evenwijdig aan de rivier de Maas, waardoor het een langgerekte vorm heeft gekregen.

De wijk Padbroek waar het plangebied deel van uitmaakt is eind jaren '70 gebouwd. Padbroek heeft de structuur van een bloemkoolwijk en de bebouwing bestaat voornamelijk uit rijwoningen met twee bouwlagen en een kap. De wijk kenmerkt zich door de aanwezigheid van veel groen. Op circa 300 meter ten westen van het plangebied bevindt zich de spoorlijn Nijmegen - Venlo.

afbeelding "i_NL.IMRO.1684.BPCUHarlekijn-VA01_0003.png"  
Luchtfoto met plangebied blauw omlijnd (bron: PDOK viewer)  

In het plangebied staat een leegstaand, verouderd schoolgebouw bestaande uit één bouwlaag en een kap en aan de noordzijde ligt een schoolplein. Groenvoorzieningen liggen tussen het plangebied en de omliggende woningen. Het plangebied is te bereiken via de woonstraten Hermelijnkwartier en Marter-Revier en via enkele paden voor langzaam verkeer. Onderstaande foto geeft een beeld van de huidige situatie in het plangebied.

afbeelding "i_NL.IMRO.1684.BPCUHarlekijn-VA01_0004.png"

Aanzicht schoolgebouw vanaf voetpad dat uitkomt op de straat Hagelkruis

2.2 Functies

Het plangebied maakt onderdeel uit van de bebouwde kom van Cuijk. De omgeving is een woonwijk. Rondom het plangebied staan dan ook voornamelijk woningen. Verder ten zuidoosten van het plangebied staat de basisschool De Wingerd. Het schoolgebouw in het plangebied staat in de huidige situatie leeg.

Hoofdstuk 3 Planbeschrijving

3.1 Ontwikkeling

Aangezien het schoolgebouw leeg staat en verouderd is, heeft de initiatiefnemer het plan om het plangebied te herstructureren door het schoolgebouw te slopen en daarvoor in de plaats 14 woningen te ontwikkelen. De woningen zullen bestaan uit twee bouwlagen met een plat dak en de ontwikkeling krijgt een groen karakter. Onderstaand een indicatieve situatieschets.

afbeelding "i_NL.IMRO.1684.BPCUHarlekijn-VA01_0005.png"

Toekomstige situatie (ontwerp: Bulkens architecten)

3.2 Ruimtelijke structuur

De woningen worden in twee rijen gebouwd, georiënteerd aan een nieuwe ontsluitingsweg die centraal door het plangebied zal lopen vanaf de Hagelkruis tot aan het Hermelijnkwartier. Het betreft een ontsluitingsweg uitsluitend bestemd voor de te realiseren woningen. De weg zal niet doorlopen in het groen. Door bijvoorbeeld het plaatsen van paaltjes en/of bebording (doodlopende weg) zal worden voorkomen dat een ontsluitingsroute voor de wijk ontstaat. De woningen worden gebouwd in een rij van 6 en een rij van 8 woningen. De hoekwoningen in iedere rij kunnen worden gebouwd als levensloopbestendige woningen. Het parkeren zal plaatsvinden op nieuw aan te leggen parkeerplaatsen die te bereiken zijn vanaf de nieuwe ontsluitingsweg. De hoekwoningen krijgen één parkeerplaats op eigen terrein.

3.3 Functies

De nieuwe gebouwen krijgen een woonfunctie. Rondom de woningen worden verkeers-, parkeer- en groenfuncties mogelijk gemaakt. In de regels van dit bestemmingsplan wordt hieraan invulling gegeven.

Hoofdstuk 4 Beleidskader

4.1 Rijksbeleid

Structuurvisie Infrastructuur en Ruimte (SVIR) en Besluit algemene regels ruimtelijke ordening (Barro)

Gebiedsgericht

De SVIR benoemt een aantal aspecten van nationaal ruimtelijk belang. Het betreft de bescherming van de waterveiligheid aan de kust en rond de grote rivieren, bescherming en behoud van de Waddenzee en enkele werelderfgoederen, de uitoefening van defensietaken, het Natuurnetwerk Nederland (voorheen de ecologische hoofdstructuur), de elektriciteitsvoorziening, de toekomstige uitbreiding van het hoofd(spoor)wegennet en de veiligheid rond rijksvaarwegen. Voorts betreft het enkele specifieke gebieden zoals de mainportontwikkeling van Rotterdam en Schiphol.

In het Barro heeft het Rijk voor deze onderwerpen regels opgesteld waarmee de SVIR juridisch verankerd is richting lagere overheden. Via het Besluit ruimtelijke ordening en het Besluit omgevingsrecht zijn deze regels aanvullend vastgelegd.

In de SVIR worden, naast de onderwerpen van nationaal belang, accenten geplaatst op het gebied van bestuurlijke verantwoordelijkheden. Het beleid betekent een decentralisatie van rijkstaken en bevoegdheden. Het Rijk gaat zo min mogelijk op de stoel van provincies en gemeenten zitten en lagere overheden, burgers en bedrijven krijgen, zolang het nationaal belang niet in het geding is, de ruimte om oplossingen te creëren.

Ladder duurzame verstedelijking

Een meer algemeen onderwerp uit de SVIR is 'duurzame verstedelijking'. Via de 'ladder voor duurzame verstedelijking' wordt een zorgvuldige afweging en besluitvorming geborgd bij ruimtelijke vraagstukken in stedelijk gebied. Het gebruik van deze ladder is opgenomen in het Bro (artikel 3.1.6 onder 2).

De ladder richt zich op nieuwe stedelijke ontwikkelingen. In de toelichting van een bestemmingsplan dat een nieuwe stedelijke ontwikkeling mogelijk maakt, dient de behoefte aan die ontwikkeling te worden beschreven. Als de ontwikkeling buiten het bestaand stedelijk gebied plaatsvindt, moet bovendien gemotiveerd worden waarom niet binnen het bestaand stedelijk gebied in die behoefte kan worden voorzien.

Het Bro beschrijft wat een stedelijke ontwikkeling is: "een ruimtelijke ontwikkeling van een bedrijventerrein of zeehaventerrein, of van kantoren, detailhandel, woningbouwlocaties of andere stedelijke voorzieningen." Onder 'bestaand stedelijk gebied' wordt het volgende verstaan: "bestaand stedenbouwkundig samenstel van bebouwing ten behoeve van wonen, dienstverlening, bedrijvigheid, detailhandel of horeca, alsmede de daarbij behorende openbare of sociaal culturele voorzieningen, stedelijk groen en infrastructuur."

Per 01 juli 2017 is de ladder voor duurzame verstedelijking herzien. Bij de herziening zijn onder meer de drie afzonderlijke 'treden' van de ladder losgelaten en is het begrip 'actuele regionale behoefte' gewijzigd in 'behoefte'. Nieuw is dat de laddertoets bij flexibele plannen kan worden doorgeschoven naar het moment van vaststelling van een wijzigings- of uitwerkingsplan.

Planspecifiek

Concreet is het belang 'Defensie' van toepassing binnen het plangebied. Ook zal moeten worden voldaan aan de 'Ladder voor duurzame verstedelijking'.

Defensie

In het Barro zijn regels opgenomen om een veilig en doelmatig gebruik van defensieterreinen te waarborgen. Het gaat bijvoorbeeld om veiligheidszones rond munitiedepots, obstakelvrije aanvliegroutes en radarverstoringsgebieden. De gehele gemeente Cuijk heeft te maken met het radarverstoringsgebied van militair vliegveld Volkel. Voor het veilig afwikkelen van vliegverkeer gelden in een bepaald gebied rond een luchtvaartterrein maximaal toelaatbare hoogtes voor objecten, zoals woon- en kantoorgebouwen, antennemasten, windmolens en bomen. Hiermee wordt voorkomen dat radarsignalen worden verstoord en vliegtuigen met objecten in botsing kunnen komen. De maximaal toelaatbare hoogtes en de ligging en omvang van het gebied worden bepaald door de ligging van de start- en landingsbanen en berusten op internationale vastgelegde afspraken. In de regels en op de verbeelding wordt de gebiedsaanduiding 'vrijwaringszone - radar' opgenomen voor het radarverstoringsgebied. Bouwwerken hoger dan 65 meter + NAP vormen een belemmering voor het radarverstoringsgebied. In onderhavige situatie is van een dergelijke hoogte geen sprake.

Ladder voor duurzame verstedelijking

Onderhavig plan omvat het toevoegen van maximaal 14 woningen, waarmee er sprake is van een stedelijke ontwikkeling. Toetsing aan de ladder is dan ook nodig. De ontwikkeling past binnen het gemeentelijke en regionale woningbouwbeleid. Een uitgebreide toelichting hierop staat in paragraaf 4.3.1. Doordat het bestemmingsplan en het te realiseren aantal woningen past binnen het gemeentelijke en regionale woningbouwbeleid, is er sprake van een behoefte aan de woningen. De nieuwe bebouwing wordt in bestaand stedelijk gebied gerealiseerd op een locatie waar in de huidige situatie verouderde, leegstaande bebouwing aanwezig is. Hiermee is de ladder voor duurzame ontwikkeling succesvol doorlopen.

Conclusie

Onderhavig bestemmingsplan vormt geen belemmering voor de uitvoering van het Rijksbeleid.

4.2 Provinciaal beleid

Structuurvisie Ruimtelijke Ordening

Deze structuurvisie is een actualisatie van de visie welke in 2010 werd vastgesteld. De SVRO geeft de hoofdlijnen van het provinciaal ruimtelijk beleid tot 2025 (met een doorkijk naar 2040). De visie is bindend voor het ruimtelijk handelen van de provincie. Het is de basis voor de wijze waarop de provincie de instrumenten inzet die de Wet ruimtelijke ordening biedt. De visie ondersteunt daarnaast het beleid op andere provinciale beleidsterreinen. Een deel van het provinciale beleid uit de vigerende beleidsstukken is nog steeds actueel en blijft ongewijzigd. De provinciale sturingsfilosofie is gebaseerd op vijf rollen: ontwikkelen, ordenen, beschermen, regionaal samenwerken en stimuleren.

De ordenende rol gaat uit van het behartigen van ruimtelijke belangen en keuzes. Deze zijn geordend in vier ruimtelijke structuren. De structuren geven een hoofdkoers aan: een ruimtelijk ontwikkelingsperspectief voor een combinatie van functies. Maar ook waar functies worden uitgesloten of welke randvoorwaarden de provincie aan functies stelt. Binnen de structuren is ruimte voor regionaal maatwerk. De vier onderscheidende structuren zijn: groenblauwe structuur, agrarische structuur, stedelijke structuur en infrastructuur.

Het uitgangspunt van de beschermende rol is zorgvuldig ruimtegebruik. Bij ruimtelijke afwegingen betekent dat eerst gekeken wordt naar mogelijkheden voor intensivering of hergebruik op of binnen bestaand bebouwd gebied. De provincie wil nieuw ruimtebeslag zoveel mogelijk voorkomen.

Verordening ruimte

In de Verordening ruimte staan regels waarmee een gemeente rekening moet houden bij het ontwikkelen van bestemmingsplannen. Door deze regels weten de gemeenten al in een vroeg stadium waar ze aan toe zijn.

Per onderwerp zijn in de verordening gebieden tot op perceelniveau begrensd op een kaart. De onderwerpen die in de verordening staan, komen uit de provinciale structuurvisie. Daarin staat welke belangen de provincie wil behartigen en hoe ze dat wil doen. De verordening is daarbij een van de manieren om die provinciale belangen veilig te stellen.

Belangrijke onderwerpen in de Verordening ruimte zijn:

  • ruimtelijke kwaliteit;
  • stedelijke ontwikkelingen;
  • natuurgebieden en andere gebieden met waarden;
  • agrarische ontwikkelingen, waaronder de zorgvuldige veehouderij;
  • overige ontwikkelingen in het landelijk gebied.

Belangrijk bij de beoordeling van nieuwe plannen is de inpasbaarheid in het provinciaal beleid. De Verordening ruimte is daarbij het document wat de meest concrete regels biedt voor nieuwe ontwikkelingen. Binnen bestaand stedelijk gebied is stedelijke ontwikkeling mogelijk. Indien sprake is van nieuwbouw van woningen dient verantwoord te worden hoe dit zich verhoudt tot de beschikbare harde plancapaciteit en andere woningbouwafspraken.

Planspecifiek

De voorgenomen ontwikkeling draagt bij het vestigings- en leefklimaat van Noord-Brabant, doordat het plangebied met daarin leegstaande, verouderde bebouwing door middel van herstructurering een kwaliteitsimpuls krijgt.

Relevante informatie uit de verordening die betrekking heeft op het plangebied is o.a. dat het plangebied onderdeel uitmaakt van het besluitvlak 'Structuur - Bestaand stedelijk gebied, kern in landelijk gebied'. Hoofdregel van het beleid is dat stedelijke ontwikkeling binnen het bestaand stedelijk gebied plaatsvindt. Dit is in onderhavige situatie het geval, de nieuwe gebouwen liggen binnen het besluitvlak dat het bestaand stedelijk gebied aanduidt. Wel dient de beoogde nieuwbouw zich te verhouden tot de afspraken die zijn gemaakt in het regionaal ruimtelijk overleg, en tot de beschikbare harde plancapaciteit voor woningbouw. Dit is het geval (zie paragraaf 4.3.1), waarmee het plan past binnen de uitgangspunten van het provinciaal beleid.

De Verordening ruimte staat uitvoering van het initiatief niet in de weg.

4.3 Gemeentelijk beleid

4.3.1 Woonvisie gemeente Cuijk

De Woonvisie van de gemeente Cuijk bestaat uit een combinatie van het gemeentelijk woningbouwprogramma én de Regionale Woningmarktstrategie Land van Cuijk. Het woningbouwprogramma van de gemeente Cuijk past qua aantallen geplande woningbouw binnen de woningbouwcijfers/-prognoses van de provincie Noord-Brabant en de Regionale Woningmarktstrategie Land van Cuijk. De regionale woningbouwafspraken worden jaarlijks neergelegd c.q. bevestigd in de Regionale Agenda Wonen, deel A, van het Regionaal Ruimtelijk Overleg Noordoost-Brabant.

Regionale woningbouwafspraken

In mei 2017 heeft de provincie Noord-Brabant haar bevolkings- en behoefteprognose geactualiseerd. De prognose is een belangrijk richtinggevend kwantitatief instrument voor het volkshuisvestelijke beleid van de gemeente. In de provinciale prognose wordt gewerkt met een 'hoog scenario' (1.255) en een 'laag scenario' (1.040). Het verschil tussen beide scenario's zit in het al dan niet inlopen van het thans bestaande woningtekort (215).

In relatie tot de nieuwe prognose heeft de gemeenteraad in zijn vergadering van 18 december 2017 een nieuw woningbouwprogramma voor de periode 2018-2030 vastgesteld. De 14 in dit bestemmingsplan opgenomen woningen maken deel uit van het gemeentelijk woningbouwprogramma en leidt er niet toe dat de voor de gemeente Cuijk toegestane harde plancapaciteit voor woningbouw wordt overschreden.

Regionale woningmarktstrategie Land van Cuijk

In 2018 hebben de vijf gemeenten in het Land van Cuijk een nieuwe gezamenlijke regionale woningmarktstrategie vastgesteld, de vorige dateert van 2013. In deze strategie wordt rekening gehouden met de meest actuele volkshuisvestelijke ontwikkelingen.

Belangrijke trends daarin zijn de demografische ontwikkelingen als vergrijzing, ontgroening, gezinsverdunning, de groei van het aantal eenpersoonshuishoudens en de toenemende vraag voor de huisvesting van specifieke doelgroepen.

Het plan voorziet in de realisatie van levensloopbestendige woningen waarmee gereageerd wordt op de oplopende vraagdruk ten aanzien van deze categorie/type woningen.

Resumerend: het plan voldoet aan de kwantitatieve randvoorwaarden van het gemeentelijke woningbouwprogramma en geeft invulling aan de (toenemende) vraag naar levensloopbestendige woningen.

4.3.2 Structuurvisie Cuijk

In de Structuurvisie Cuijk is op hoofdlijnen de gewenste ruimtelijke ontwikkeling tot 2030 weergegeven.

De structuurvisie is opgedeeld in twee gebieden:

  • 1. Het op de hogere gronden gelegen Dynamisch Cuijk;
  • 2. Vitaal landelijk Cuijk, het lager gelegen gebied.

Het plangebied is gelegen in het gebied 'Dynamisch Cuijk'. De altijd al aanwezige dynamiek in ‘Dynamisch Cuijk’ dient behouden en versterkt te worden. Belangrijk is dat dit gebied zich blijft ontwikkelen, zowel in landschappelijk als in economisch opzicht, om haar nieuwe identiteit en kwaliteit inhoud en vorm te kunnen geven. Ten opzichte van Vitaal landelijk Cuijk biedt Dynamisch Cuijk meer mogelijkheden voor ‘stedelijke’ ontwikkelingen en/of grootschaligere c.q. bezoekersintensievere ontwikkelingen die bijdragen aan de gewenste ambitie om een aangename en veelzijdige leef- en werkomgeving te creëren met goede basisvoorzieningen en oog voor kwaliteit en duurzaamheid. Daar waar geen bestaande bebouwingslocatie aanwezig is, dient terughoudend te worden omgegaan met het faciliteren van ontwikkelingen.

De gemeente hanteert de volgende leidende principes om te komen tot het totaalbeeld van de toekomstige ruimtelijke structuur:

  • water (als kans);
  • innoveren en duurzaamheid (als ambitie);
  • samenwerking (als middel).

Op het gebied van wonen wil de gemeente blijven werken aan een aantrekkelijke, veilige en duurzame woon- en leefomgeving. Hier is het prettig wonen in gevarieerde woonmilieus; van stedelijk in de kern Cuijk tot zeer landelijk in de kleinere dorpskernen. De kwaliteit van het wonen kan aantrekkelijker worden gemaakt door ontwikkelingen te stimuleren en daarbij de leidende principes te hanteren. In de kern Cuijk moeten daartoe de woon- en centrumfuncties versterkt worden, onder meer door meer diversiteit in aanbod. Voor de gemeente Cuijk ligt er tot en met 2030 nog een bouwopgave van circa 1500 woningen.

Planspecifiek

Het initiatief betreft de ontwikkeling van woningen in de kern Cuijk, die zorgt voor een versterking van woonfuncties. Door leegstaande, verouderde bebouwing te vervangen door (deels levensloopbestendige) nieuwbouwwoningen en de locatie in te passen in het groene karakter van de wijk, wordt bijgedragen aan een aantrekkelijke, veilige en duurzame woon- en leefomgeving. Het initiatief sluit daarmee aan bij de Structuurvisie Cuijk.

Hoofdstuk 5 Uitvoerbaarheid

De uitvoerbaarheid van een bestemmingsplan moet als gevolg van het Besluit ruimtelijke ordening (Bro) aangetoond worden (artikel 3.1.6 van het Bro). Daaronder valt zowel de onderzoeksverplichting naar verschillende ruimtelijk relevante aspecten (geluid, bodem, etc.) als ook de economische uitvoerbaarheid van het plan.

5.1 Milieuaspecten

5.1.1 Bodem

Op grond van de Wet Bodembescherming (Wbb) moet aangetoond worden dat de kwaliteit van de bodem en het grondwater in het plangebied in overeenstemming zijn met het beoogde gebruik. De bodemkwaliteit kan namelijk van invloed zijn op de beoogde functie van het plangebied. Bij een functiewijziging zal in veel gevallen een specifiek bodemonderzoek moeten worden uitgevoerd.

Planspecifiek

Voor de ontwikkeling is een historisch bodemonderzoek uitgevoerd. Het onderzoeksrapport is opgenomen in bijlage 1. In het onderzoek wordt geconcludeerd dat er twee verdachte locaties aanwezig zijn, namelijk een voormalige weg die tot 1962 in het plangebied heeft gelegen en het voormalige pad voor langzaam verkeer naar de school. Het uitvoeren van verkennend bodemonderzoek is daarom voor deze verdachte locaties geadviseerd. Dit zal in het kader van de aanvraag van de omgevingsvergunning voor het bouwen worden uitgevoerd.

Het plan is uitvoerbaar op het gebied van bodem.

5.1.2 Lucht

De mate van blootstelling aan luchtverontreiniging speelt een rol in het kader van een goede ruimtelijke ordening. Met betrekking tot 'luchtkwaliteit' zijn twee aspecten van belang. Ten eerste of de luchtkwaliteit ter plaatse de nieuwe functie toelaat (de gevoeligheid van de bestemming) en ten tweede wat de bijdrage is van het plan aan die luchtkwaliteit.

Luchtkwaliteit ter plaatse

In de Wet milieubeheer zijn normen opgenomen voor de concentraties van een aantal stoffen in de buitenlucht ter bescherming van de mens. De twee belangrijkste stoffen zijn PM10 (fijnstof) en NO2 (stikstofdioxide). Voor beide stoffen bedraagt de grenswaarde 40 µg/m3.

Bijdrage aan luchtkwaliteit

In de Wet milieubeheer zijn de belangrijkste bepalingen over luchtkwaliteitseisen opgenomen. De Wet maakt een onderscheid tussen 'kleine' en 'grote' projecten. Kleine projecten dragen 'niet in betekenende mate' (NIBM) bij aan verslechtering van de luchtkwaliteit. Een paar honderd grote projecten dragen juist wel 'in betekenende mate' bij aan de verslechtering van de luchtkwaliteit. Het gaat hierbij vooral om bedrijventerreinen en infrastructuur (wegen).

Wat het begrip 'in betekenende mate' precies inhoudt, staat in de algemene maatregel van bestuur "Niet in betekenende mate bijdragen" (Besluit NIBM). Op hoofdlijnen komt het erop neer dat 'grote' projecten die jaarlijks meer dan 3 procent bijdragen aan de jaargemiddelde norm voor fijn stof en stikstofdioxide (1,2 microgram per m3) een 'betekenend' negatief effect hebben op de luchtkwaliteit. 'Kleine' projecten die minder dan 3 procent bijdragen, kunnen doorgaan zonder toetsing. Dat betekent bijvoorbeeld dat lokale overheden een toevoeging van minder dan 1.500 huizen niet hoeven te toetsen aan de normen voor luchtkwaliteit, omdat een dergelijk project per definitie niet boven de 3%-norm komt.

Planspecifiek

Luchtkwaliteit ter plaatse van het initiatief

Vanuit een goede ruimtelijke ordening is de huidige luchtkwaliteit ter plaatse getoetst met behulp van de NSL Monitoringstool (www.nsl-monitoring.nl). Door de metingen ter plaatse te toetsen aan de grenswaarden is gekeken of er sprake is van een goed woon- en leefklimaat. Uit metingen van het rekenpunt 63224 (aan de Hapsebaan ter hoogte van plangebied) zijn de volgende concentraties naar voren gekomen:

  NO2 (stikstofdioxide)   PM10 (Fijn stof)  
Gemeten totale concentratie jaargemiddelde 2016 (µg/m3)   22,2 µg/m3   18,7 µg/m3  
Grenswaarde concentratie (µg/m3)   40 µg/m3   40 µg/m3  

De gemeten concentraties stikstofdioxide en fijn stof liggen ruim onder de gestelde grenswaarden. Met betrekking tot de luchtkwaliteit zijn geen belemmeringen voor onderhavig initiatief.

Bijdrage initiatief

De ontwikkeling van 14 woningen blijft ruim onder de 1.500 woningen, waardoor het project gezien kan worden als een project dat 'niet in betekende mate' bijdraagt aan de verslechtering van de luchtkwaliteit. Een nadere toetsing ten aanzien van het aspect luchtkwaliteit kan daarom achterwege blijven.

Het initiatief is uitvoerbaar met betrekking tot het aspect luchtkwaliteit.

5.1.3 Geluid

De mate waarin het geluid het woonmilieu mag belasten, is geregeld in de Wet geluidhinder (Wgh). De kern van de wet is dat geluidsgevoelige objecten worden beschermd tegen geluidhinder uit de omgeving. In de Wgh worden de volgende objecten beschermd:

  • woningen;
  • geluidgevoelige gebouwen, zoals scholen, ziekenhuizen, verzorgings- en verpleeghuizen, psychiatrische instellingen en kinderdagverblijven;
  • geluidsgevoelige terreinen (woonwagenstandplaatsen en bestemde ligplaatsen voor woonschepen).

Het beschermen van deze geluidsgevoelige objecten gebeurt aan de hand van vastgestelde zoneringen. Binnen deze zones bepaalt het bevoegd gezag de te hanteren grenswaarden. Er geldt een voorkeursgrenswaarde en een bovengrens (hoger mag niet). De Wgh gaat verder onder meer ook in op geluidwerende voorzieningen, geluidbelastingkaarten en actieplannen. De belangrijkste bronnen van geluidhinder die bij een ruimtelijke ontwikkeling aan de orde kunnen zijn betreffen: industrielawaai, wegverkeerslawaai en spoorweglawaai.

Planspecifiek

In het plangebied worden met de woningen geluidgevoelige functies toegevoegd. Het plangebied ligt in een 30 km-zone. Voor wegen waar de maximum snelheid 30 km per uur is, is akoestisch onderzoek op basis van de Wet Geluidhinder niet noodzakelijk. De omliggende wegen zijn allen rustige woonstraten voor bestemmingsverkeer, waardoor geen geluidhinder verwacht wordt en ook in het kader van een goede ruimtelijke ordening geen akoestisch onderzoek nodig is.

Het initiatief is uitvoerbaar met betrekking tot het aspect geluid.

5.1.4 Milieuzonering

Milieuzonering is het aanbrengen van een ruimtelijke scheiding tussen milieubelastende en milieugevoelige functies. Doel is om bij het opstellen van een ruimtelijk plan een goed en veilig leefklimaat te waarborgen, maar tegelijkertijd ook aan bedrijven voldoende milieuruimte te bieden voor het uitoefenen van hun activiteiten.

De mate waarin bedrijven invloed hebben op hun omgeving is afhankelijk van de aard van de bedrijvigheid en de afstand tot een gevoelige bestemming. Milieugevoelige bestemmingen zijn gebouwen en terreinen die naar hun aard bestemd zijn voor het verblijf van personen gedurende de dag of nacht of een gedeelte daarvan (bijvoorbeeld woningen). Daarnaast kunnen ook landelijke gebieden en/of andere landschappen belangrijk zijn bij een zonering tot andere, minder gevoelige, functies zoals bedrijven.

Milieuzonering heeft betrekking op aspecten met een ruimtelijke dimensie, zoals geluid, geur, gevaar en stof. De mate van belasting, en daarmee de gewenste aan te houden afstand, kan per aspect en per bedrijfstype en verschillen. In de publicatie 'Bedrijven en Milieuzonering' van de Vereniging van Nederlandse Gemeenten (VNG) is een lijst opgenomen met daarin de minimale richtafstanden tussen een gevoelige bestemming en bedrijven. Van deze richtafstanden kan worden afgeweken, mits wordt onderbouwd waarom de feitelijke milieuhinder als minder belastend wordt gezien.

Het belang van milieuzonering wordt steeds groter aangezien functiemenging steeds vaker voorkomt. Hierbij is het motto: 'scheiden waar het moet, mengen waar het kan'.

Planspecifiek

De nieuwe woningen zijn milieugevoelige functies. Rondom het plangebied komen voornamelijk woningen voor. Op circa 80 meter van het plangebied bevindt zich de basisschool De Wingerd. De VNG geeft voor deze functie een richtafstand van 30 meter op basis van het aspect geluid. Aan deze richtafstand wordt voldaan. Verder bevinden zich geen milieubelastende functies in de omgeving van het plangebied. Bij de woningen zal sprake zijn van een goed woon- en leefklimaat en er worden door de ontwikkeling geen bedrijven in hun bedrijfsvoering belemmerd.

Op het gebied van milieuzonering is het plan uitvoerbaar.

5.1.5 Externe veiligheid

Het beleid voor externe veiligheid is gericht op het beperken en beheersen van risico's voor de omgeving die ontstaan door opslag, productie, gebruik en vervoer van gevaarlijke stoffen. Hierbij gaat het om risicovolle inrichtingen, transportroutes voor het vervoer van gevaarlijke stoffen en buisleidingen.

De verplichting om in een ruimtelijk plan in te gaan op deze risico's komt voort uit het 'Besluit externe veiligheid inrichtingen' (Bevi), het 'Besluit externe veiligheid transportroutes' (Bevt) en het 'Besluit externe veiligheid buisleidingen' (Bevb). Daarnaast zijn in het Activiteitenbesluit milieubeheer en het Vuurwerkbesluit veiligheidsafstanden genoemd die moeten worden aangehouden rond stationaire risicobronnen, niet zijnde een Bevi-inrichting.

De wetgeving richt zich op het beschermen van kwetsbare en beperkt kwetsbare objecten. Kwetsbaar zijn onder meer woningen, onderwijs- en gezondheidsinstellingen, en kinderopvang- en dagverblijven, en grote kantoorgebouwen (>1500 m²). Beperkt kwetsbaar zijn kleinere kantoren en winkels, horeca, parkeerterreinen en bedrijfsgebouwen waarin geen grote aantallen personen aanwezig zijn.

Binnen het beoordelingskader voor externe veiligheid staan twee kernbegrippen centraal: het plaatsgebonden risico (PR) van 10-6 per jaar en het groepsrisico (GR). Het plaatsgebonden risicobeleid bestaat uit harde afstandscontouren tussen risicobron en (beperkt) kwetsbaar object. Het wordt uitgedrukt in een contour van 10-6 per jaar (de kans dat per jaar 1 persoon overlijdt door een ongeluk met een gevaarlijke stof mag niet groter zijn dan 1 op een miljoen). Het groepsrisico legt een relatie tussen de kans op een ramp en het aantal mogelijke slachtoffers. Bij de berekening van het groepsrisico spelen mee de aard en hoeveelheid van de gevaarlijke stoffen en het aantal potentiële slachtoffers.

Voor de beoordeling van een ruimtelijk plan moet worden vastgesteld of het plangebied is gelegen binnen de PR en/of de invloedsgebieden van het GR. Binnen de 10-6-contour is het realiseren van kwetsbare objecten niet toegestaan.

Planspecifiek

Via de website risicokaart.nl kan voor de locatie worden vastgesteld of er in de directe omgeving inrichtingen, buisleidingen en / of belangrijke transportroutes aanwezig zijn die in het kader van de externe veiligheid van belang zijn. Bijgevoegd een screenshot van die website.

afbeelding "i_NL.IMRO.1684.BPCUHarlekijn-VA01_0006.png"

Uitsnede risicokaart met plangebied blauw omcirkeld

Hieruit is op te maken dat er op een afstand van circa 280 een buisleiding aanwezig is. Gezien de grote afstand ligt het plangebied echter buiten het invloedsgebied van deze buisleiding.

Verder zijn er geen risicovolle inrichtingen, transportroutes voor gevaarlijke stoffen of buisleidingen aanwezig in de directe omgeving van het plangebied die een belemmering kunnen vormen voor de voorgenomen ontwikkeling.

Op het gebied van externe veiligheid is het plan uitvoerbaar.

5.1.6 Milieueffectrapportage

Voor activiteiten die belangrijke milieugevolgen kunnen hebben, is het verplicht een milieueffectrapportage (m.e.r.) uit te voeren en een Milieu Effect Rapport (MER) te maken. Hiermee krijgt het milieubelang een volwaardige plaats in de besluitvorming. De m.e.r. onderzoekt de milieugevolgen van een plan of een besluit en (milieuvriendelijker) alternatieven. Een plan of besluit is m.e.r.-plichtig in een van de volgende situaties:

  • in het Besluit milieueffectrapportage, artikel 7.4 bijlagen C en D zijn activiteiten aangewezen waarvoor direct een m.e.r.-plicht geldt;
  • een m.e.r.-plicht kan volgen uit een passende beoordeling in het kader van de Wet Natuurbescherming;
  • op grond van de provinciale milieuverordening kunnen aanvullend op het Besluit m.e.r. activiteiten worden aangewezen waarvoor een m.e.r.-plicht geldt.

M.e.r.-beoordeling

Een aantal activiteiten op kleinere schaal zijn m.e.r.-beoordelingsplichtig als een indicatieve drempelwaarde uit bijlage D wordt overschreden. Ook als de drempelwaarden niet worden overschreden kan in overleg worden bekeken of er aanleiding is voor het uitvoeren van een m.e.r.-beoordeling, omdat er mogelijk belangrijke nadelige milieugevolgen kunnen optreden. Er kunnen twee uitkomsten zijn:

  • als de conclusie is dat er geen belangrijke nadelige milieugevolgen optreden hoeft er geen m.e.r.-procedure te worden doorlopen. Dit wordt in het betreffende plan of besluit gemotiveerd en moet ook formeel bekend worden gemaakt door het bevoegd gezag;
  • als belangrijke nadelige milieugevolgen niet uitgesloten kunnen worden, moet er een m.e.r.-procedure worden doorlopen.

Planspecifiek

Het onderhavige plan behelst het realiseren van 14 woningen en blijft daarmee (ver) onder de drempel van 2.000 woningen uit bijlage D. Daarom kan volstaan worden met een vormvrije m.e.r.-beoordeling. Voorliggend bestemmingsplan is die vormvrije m.e.r.-beoordeling omdat in het kader van dit bestemmingsplan de belangrijkste milieuaspecten in beeld zijn gebracht.

In lijn met 'Bijlage III EU richtlijn milieubeoordeling projecten' wordt in deze toelichting ingegaan op de kenmerken van het project, de plaats van het project en de kenmerken van de potentiële effecten.

  • 1. Kenmerken van het project

Bij een overweging van de kenmerken van het project zijn de volgende criteria van belang: de omvang van het project, de cumulatie met andere projecten, gebruik van natuurlijke hulpbronnen, de productie van afvalstoffen, verontreiniging en hinder, het risico van zware ongevallen en/of rampen, waaronder rampen door klimaatverandering en risico's voor de menselijke gezondheid.

Toetsing

Voorliggend plan betreft de ontwikkeling van 14 woningen. De ontwikkeling van deze woningen zorgt niet voor belemmeringen wat betreft gebruik van natuurlijke hulpbronnen, productie van afvalstoffen, verontreiniging en hinder. Ook is er gezien de aard van de ontwikkeling geen verhoogd risico voor de menselijke gezondheid door bijvoorbeeld rampen.

  • 2. Plaats van het project

De mate van kwetsbaarheid van het milieu van gebieden waarop het project invloed heeft is afhankelijk van de volgende criteria: het bestaande grondgebruik, relatieve rijkdom aan de kwaliteit en het regeneratievermogen van de natuurlijke hulpbronnen van het gebied en het opnamevermogen van het natuurlijke milieu met in het bijzonder aandacht voor gevoelige gebieden op basis van ecologie, landschappelijke, archeologische en cultuurhistorische waarden en wateraspecten. In onderdeel A van de bijlage bij het Besluit m.e.r is bepaald wat verstaan wordt onder een gevoelig gebied.

Toetsing

Het voormalige gebruik van het plangebied ten behoeve van een school en de beperkte aanwezigheid van natuurlijke hulpbronnen in het plangebied zorgen ervoor dat het project zich niet in een qua milieu kwetsbaar gebied bevindt. Zoals beschreven in dit bestemmingsplan ligt het plangebied niet binnen gevoelige gebieden op basis van ecologie, landschappelijke, archeologische en cultuurhistorische waarden en wateraspecten.

  • 3. Kenmerken van de potentiële effecten

De potentiële effecten van het project worden bepaald door de kenmerken en plaats van het project, in samenhang met de volgende criteria: de orde van grootte, het ruimtelijk bereik, de aard, het grensoverschrijdend karakter, de intensiteit en complexiteit, de waarschijnlijkheid en de verwachte duur, frequentie en omkeerbaarheid van de effecten. Daarnaast kunnen ook de cumulatie van effecten met effecten van andere projecten en de mogelijkheid om de effecten doeltreffend te verminderen in overweging worden genomen.

Toetsing

Gezien de beperkte omvang en de aard van de ontwikkeling van 14 woningen is er geen sprake van onevenredige effecten voor het milieu in de omgeving.

Conclusie

Uit het voorgaande is gebleken dat er geen sprake is van een ontwikkeling die een forse invloed heeft op het milieu in de omgeving. Belangrijke milieugevolgen kunnen worden uitgesloten. Verder onderzoek in het kader van het Besluit milieueffectrapportage is niet nodig: het plan is niet m.e.r.-plichtig.

5.2 Fysieke aspecten

5.2.1 Water

Water is een belangrijk thema in de ruimtelijke ordening. Door verstandig om te gaan met het water kan verdroging en wateroverlast voorkomen worden en de kwaliteit van het water hoog gehouden worden.
Op Rijksniveau en Europees niveau zijn de laatste jaren veel plannen en wetten gemaakt met betrekking tot water. De belangrijkste hiervan zijn het Waterbeleid voor de 21e eeuw, de Waterwet en het Nationaal Waterplan.

Waterbeleid voor de 21e eeuw

De Commissie Waterbeheer 21e eeuw heeft advies uitgebracht over het toekomstige waterbeleid in Nederland. De adviezen van de commissie staan in het rapport 'Anders omgaan met water, Waterbeleid voor de 21ste eeuw' (WB21). De kern van het rapport WB21 is dat water de ruimte moet krijgen, voordat het die ruimte zelf neemt. In het Waterbeleid voor de 21e eeuw worden twee principes (drietrapsstrategieën) voor duurzaam waterbeheer geïntroduceerd:

  • vasthouden, bergen en afvoeren: dit houdt in dat water zoveel mogelijk bovenstrooms wordt vastgehouden in de bodem en in het oppervlaktewater. Indien nodig wordt overtollig water tijdelijk geborgen in bergingsgebieden en pas als vasthouden en bergen niet meer mogelijk is wordt het water afgevoerd.
  • schoonhouden, scheiden en zuiveren: hier gaat het erom dat het water zoveel mogelijk schoon wordt gehouden. Vervolgens worden schoon en vuil water zoveel mogelijk gescheiden en als laatste komt het zuiveren van verontreinigd water aan bod.

Waterwet

De Waterwet regelt het beheer van oppervlaktewater en grondwater en verbetert ook de samenhang tussen waterbeleid en ruimtelijke ordening. Daarnaast levert de Waterwet een flinke bijdrage aan kabinetsdoelstellingen zoals vermindering van regels, vergunningstelsels en administratieve lasten. Een belangrijk gevolg van de Waterwet is dat de aloude vergunningstelsels uit de voorheen afzonderlijke waterbeheerwetten zijn gebundeld. Dit resulteert in één vergunning, de watervergunning.

Nationaal Waterplan

Op basis van de Waterwet is het Nationaal Waterplan vastgesteld door het kabinet. Dit Nationaal Waterplan geeft de hoofdlijnen, principes en richting van het nationale waterbeleid in de planperiode 2016-2021, met een vooruitblik richting 2050. Het Nationaal Waterplan richt zich op bescherming tegen overstromingen, beschikbaarheid van voldoende en schoon water en de diverse vormen van gebruik van water. Het geeft maatregelen die in de periode 2016-2021 genomen moeten worden om Nederland ook voor toekomstige generaties veilig en leefbaar te houden en de kansen die water biedt te benutten.


Watertoets

De 'watertoets' is een instrument dat waterhuishoudkundige belangen expliciet en op evenwichtige wijze laat meewegen bij het opstellen van ruimtelijke plannen en besluiten. Het is geen technische toets, maar een proces waarbij de initiatiefnemer van een ruimtelijk plan en de waterbeheerder met elkaar in gesprek gaan voorafgaand aan de vaststelling van het plan. De watertoets bestaat uit twee onderdelen:

  • de verplichting aan initiatiefnemers van ruimtelijke plannen om de waterbeheerder vroegtijdig in de planvorming te betrekken, en
  • de verplichting aan initiatiefnemers van ruimtelijke plannen om in hun plan verantwoording af te leggen over de manier waarop omgegaan is met de inbreng van de waterbeheerder. Dit laatste gebeurt doorgaans in de waterparagraaf bij het betreffende plan.

Planspecifiek

Voor de voorgenomen ontwikkeling is een watermemo opgesteld, die is opgenomen in bijlage 2. De gemeente Cuijk hanteert het principe dat alle verharding gecompenseerd dient te worden, ongeacht hoe het terrein voorheen was ingericht. Voor elke vierkante meter toekomstig verhard of bebouwd oppervlak moet 60 mm berging worden aangelegd. Op basis van dit principe is berekend dat ter compensatie van het toekomstige verhard oppervlak een waterberging van 165,6 m³ noodzakelijk is. In de Memo Waterplan (zie bijlage 3) is vervolgens onderzocht op welke wijze de waterberging uitgevoerd kan worden. Hiervoor bestaan verschillende opties:

- aanleg van wadi's in de groenzone;

- aanleg van een IT-riool onder de nieuwe ontsluitingsweg in combinatie met infiltratiekratten onder de parkeervlakken;

- aanleg van een waterbergende fundering onder de weg.

Alle oplossingen kunnen ruim boven de GHG (gemiddelde hoogste grondwaterstand) worden gerealiseerd. De uitwerking van het complete rioolsysteem inclusief de invulling van de waterbergingsopgave zal in de civieltechnische voorbereidingsfase plaatsvinden.

Het plan is uitvoerbaar op het aspect water.

5.2.2 Verkeer

Onderdeel van goede ruimtelijke ordening is het effect van een beoogd nieuw project op de verkeersstructuur. Het bestaande pad dat vanaf de Hagelkruis naar het schoolgebouw loopt wordt omgevormd tot een ontsluitingsweg die doorloopt tot aan het Hermelijnkwartier.

Aan deze weg worden 29 parkeerplaatsen gerealiseerd. Deze parkeerplaatsen bevinden zich binnen 150 meter, wat de gemeente Cuijk in haar Parkeernota Cuijk 2016-2023 als een acceptabele loopafstand beschouwt. De hoekwoningen hebben ieder één parkeerplaats op eigen terrein. In totaal worden er daarmee 33 parkeerplaatsen gerealiseerd. Op basis van de Parkeernota Cuijk 2016-2023 is de parkeernorm 2 parkeerplaatsen per woning. Dit levert een parkeerbehoefte van 28 parkeerplaatsen op. Aan deze parkeerbehoefte wordt ruimschoots voldaan.

Op het gebied van verkeer en parkeren is het initiatief uitvoerbaar.

5.2.3 Ecologie

Bij ruimtelijke ingrepen dient rekening te worden gehouden met de natuurwaarden ter plaatse. Per 1 januari 2017 zijn de Natuurbeschermingswet 1998, de Flora en faunawet en de Boswet opgegaan in de nieuwe Wet natuurbescherming. De Wet natuurbescherming beschermt natuurgebieden, inheemse soorten en het bosopstanden in Nederland.

Gebiedsbescherming

In de Wet natuurbescherming worden de zogenoemde Natura 2000-gebieden beschermd. Natura 2000 is de overkoepelende naam voor gebieden die worden beschermd vanuit de Vogel- en Habitatrichtlijn. Volgens deze Europese richtlijnen moeten lidstaten specifieke diersoorten en hun natuurlijke leefomgeving (habitat) beschermen om de biodiversiteit te behouden. Natura 2000-gebieden kennen een zogenaamde 'externe werking'. Dit betekent dat ontwikkelingen die buiten de begrenzing van de Natura 2000-gebieden gelegen zijn, ook getoetst moeten worden of er significant negatieve effecten optreden op het betreffende gebied.


Soortenbescherming

Een hoofdstuk in de Wet natuurbescherming regelt de bescherming van de in het wild voorkomende inheemse planten en dieren: de soortenbescherming. De wet richt zich vooral op het in stand houden van populaties van soorten die bescherming behoeven. In de wet zijn algemene en specifieke verboden vastgelegd ten aanzien van beschermde dier- en plantensoorten. Bekeken moet worden in hoeverre ruimtelijke plannen negatieve gevolgen hebben op beschermde dier- en plantensoorten en of er compenserende of mitigerende maatregelen genomen moeten worden. De wet geeft de mogelijkheid aan provincies om voor een bepaald aantal soorten via een verordening een algemene vrijstelling op bepaalde verbodsbepalingen te geven.

Daarnaast geldt voor iedereen in Nederland altijd, dus ook los van het voorliggende beoogde ruimtelijke project, dat de zorgplicht nageleefd moet worden bij het verrichten van werkzaamheden. Voor menige soort geldt dat indien deze zorgplicht nagekomen wordt een bepaald beoogd project uitvoerbaar is.

Planspecifiek

Voor de ontwikkeling is een verkennend ecologisch onderzoek uitgevoerd. Deze is opgenomen in bijlage 4. Hierin is geconcludeerd dat er vanuit Natura 2000 geen bezwaren zijn tegen de voorgenomen ontwikkeling. De groenstrook die ten noorden van het plangebied dwars door de wijk Padbroek loopt, is als 'droog bos met productie' opgenomen in het Natuurnetwerk Noord-Brabant. Deze zone blijft met voorliggend plan in tact. De bomen in de overige directe omgeving zijn eigendom van de gemeente. Zij zijn door de gemeente niet beoordeeld als monumentaal of beeldbepalend. Bij eventuele kap van bomen zal overleg plaatsvinden met de wijkraad over herplant.

Wat betreft soortenbescherming kunnen overtredingen ten aanzien van algemene broedvogels worden voorkomen door voorafgaand aan de werkzaamheden een controle op broedgevallen uit te voeren en buiten het broedseizoen materiaalopslag en snoeiafval te verwijderen.

Uit het verkennend ecologisch onderzoek bleek dat het voorkomen van huismussen, gierzwaluwen en vleermuizen niet bij voorbaat kon worden uitgesloten. Voor deze soorten is in het voorjaar/zomer van 2018 een aanvullend onderzoek uitgevoerd (zie bijlage 5). Genoemde soorten zijn echter geen van allen aangetroffen. Uitgesloten kan worden dat de onderzoekslocatie een vast rust- of verblijfplaats van de huismus, de gierzwaluw of de vleermuis is. Ook is het geen essentieel foerageergebied of aanvliegroute voor vleermuizen.

Het plan is uitvoerbaar op het aspect ecologie.

5.2.4 Cultuurhistorie en archeologie

In elk bestemmingsplan moet een beschrijving worden opgenomen van de wijze waarop met de in het gebied aanwezige cultuurhistorische waarden wordt omgegaan. Denk aan aanwezige monumenten, historische gebieden, kenmerkende (straat)beelden en landschapselementen. Bij het maken van plannen kan ook (weer) rekening gehouden worden met al deze elementen die er vroeger wel waren maar nu niet meer. Een bijzonder onderdeel van cultuurhistorie is archeologie.

Cultuurhistorie

Het belang van cultuurhistorie is wettelijk vastgelegd in het Besluit ruimtelijke ordening. Het Besluit geeft aan dat “een beschrijving van de wijze waarop met de in het gebied aanwezige cultuurhistorische waarden en in de grond aanwezige of te verwachten monumenten rekening is gehouden” in het bestemmingsplan opgenomen moet worden. Het voornaamste doel hiervan is om het cultuurhistorische karakter van Nederland op gebiedsniveau te behouden en te versterken.

Archeologie

De bescherming van archeologische waarden bij ruimtelijke ontwikkelingen is geregeld in de Erfgoedwet. De essentie van de wettelijke bescherming is dat archeologische resten zoveel mogelijk in de bodem bewaard blijven. Bij ruimtelijke plannen geldt de verplichting om rekening te houden met bekende en te verwachten archeologische waarden. Indien ingrepen gepaard gaan met een verstoring van de bodem, kan het nodig zijn om nader onderzoek te doen, zodat - waar nodig - de archeologische waarden veiliggesteld kunnen worden en/of het plan aangepast kan worden. De verantwoordelijkheid voor archeologische waarden ligt bij de gemeente.

Op basis van artikel 5.10 van de Erfgoedwet zijn mogelijke (toevals)vondsten bij het verrichten van werkzaamheden in de bodem altijd beschermd. Er geldt een meldingsplicht bij het vinden van (mogelijke) waardevolle zaken.

Planspecifiek

Cultuurhistorie

In en rondom het plangebied komen geen cultuurhistorische waarden of objecten voor. Op het gebied van cultuurhistorie zijn er geen belemmeringen voor het initiatief.

Archeologie

Op basis van de Archeologische beleidskaart van de gemeente Cuijk geldt voor het gehele plangebied de waarde Archeologie 5 (hoge archeologische verwachting). Voor deze categorie geldt dat voor ingrepen dieper dan 0,5 meter en groter dan 2.500 m2 een archeologisch rapport nodig is. Voor de ontwikkeling is een archeologisch onderzoek uitgevoerd. Het onderzoeksrapport is opgenomen in bijlage 6. Hierin is op basis van booronderzoek geconcludeerd dat er sprake blijft van een hoge trefkans voor het aanwezig zijn van archeologische resten binnen het plangebied. Het uitvoeren van nader archeologisch onderzoek is daarom noodzakelijk. Er wordt een Programma van Eisen opgesteld welke dient te worden goedgekeurd door het bevoegd gezag. Dit wordt in het uitgevoerd in het kader van de omgevingsvergunning voor het bouwen. Ter bescherming van de archeologische waarden wordt een dubbelbestemming opgenomen in het plangebied.

Op het gebied van cultuurhistorie en archeologie is het plan uitvoerbaar.

5.2.5 Duurzaamheid

Duurzaamheid is een integraal onderdeel van de kwaliteit van de gebouwde omgeving. Duurzaam bouwen staat voor het ontwikkelen en beheren van de gebouwde omgeving met respect voor mens en milieu. Gezondheids- en milieuaspecten zijn in alle fasen van de inrichting, de bouw en het gebruik van de gebouwde omgeving van belang. Er wordt gestreefd naar duurzame (stedelijke) ontwikkeling, lage milieubelasting, extensiever energieverbruik en behoud en versterking van de kwaliteit van de gebouwde omgeving.

Planspecifiek

Op verschillende manieren en op meerdere schaalniveaus wordt het aspect duurzaamheid in het plan betrokken:

  • Zuinig ruimtegebruik. De nieuwe woningen worden gebouwd binnen bestaand stedelijk gebied, passend binnen het concept van een duurzame verstedelijking. De verouderde bebouwing in het plangebied wordt vervangen door nieuwbouw, die past in de structuur van de omgeving, zodat de stedenbouwkundige kwaliteit wordt verbeterd en op lange termijn behouden blijft.
  • De woningen worden gasloos gebouwd. Ook het toepassen van duurzame voorzieningen is mogelijk, zoals zonnepanelen of het gebruik van passieve zonne-energie.
  • Het hemelwater dat in het plangebied terecht komt wordt ter plekke geborgen. De wijze waarop dit plaatsvindt wordt in het kader van de civieltechnische voorbereiding uitgewerkt. Bovengronds bergen draagt bij aan de bewustwording van de noodzaak op zorgvuldige wijze met water om te gaan.
  • In de omgeving van het plangebied zijn meerdere vleermuiskasten opgehangen.
  • Onderdeel van het plan is de groene aankleding van de woningen. Aan de voorzijde worden hagen geplaatst en groene beplanting langs de gevel.

5.3 Economische aspecten

Bij de voorbereiding van een bestemmingsplan dient, op grond van artikel 3.1.6 lid 1, sub f van het Bro, onderzoek plaats te vinden naar de (economische) uitvoerbaarheid van het plan. In principe dient bij vaststelling van een ruimtelijk besluit tevens een exploitatieplan vastgesteld te worden om verhaal van plankosten zeker te stellen. Op basis van 'afdeling 6.4 grondexploitatie', artikel 6.12, lid 2 van de Wro kan de gemeenteraad bij het besluit tot vaststelling van het bestemmingsplan echter besluiten geen exploitatieplan vast te stellen indien:

  • het verhaal van kosten van de grondexploitatie over de in het plan of besluit begrepen gronden anderszins verzekerd is;
  • het bepalen van een tijdvak of fasering als bedoeld in artikel 6.13, eerste lid, onder c, 4°, onderscheidenlijk 5°, niet noodzakelijk is;
  • het stellen van eisen, regels, of een uitwerking van regels als bedoeld in artikel 6.13, tweede lid, onderscheidenlijk b, c of d, niet noodzakelijk is.

Planspecifiek

In onderhavig plan hoeft geen exploitatieplan vastgesteld te worden, aangezien de kosten van het plan anderszins verzekerd zijn. Er is sprake van een particulier initiatief. De kosten van de realisatie, alsmede de kosten voor het opstellen van het voorliggende bestemmingsplan worden door de initiatiefnemer gedragen. De afspraken zijn vastgelegd in een anterieure overeenkomst tussen de gemeente en de initiatiefnemer. In deze overeenkomst wordt ook de eventuele planschade geregeld. Deze overeenkomst vormt voldoende onderbouwing om af te zien van het opstellen van een exploitatieplan. Het initiatief wordt daarmee voldoende financieel haalbaar geacht.

5.4 Handhaafbaarheid

De gemeente Cuijk heeft haar beleid ten aanzien van toezicht en controle op regelgeving vastgelegd in het 'Integraal Handhavingsbeleidsplan 2011-2014'. Het handhavingsbeleid moet leiden tot gemeentebrede, gestructureerde en integrale handhaving. Het betreft een beleidscyclus, waarbij de monitoring van de uitvoering van de handhaving kan leiden tot bijstelling van het beleid. Het beleidsplan initieert een lerende organisatie, waarbij de kwaliteit van de handhaving toeneemt en de uitvoering van de handhaving steeds efficiënter wordt.

Bij handhaving wordt onderscheid gemaakt tussen preventieve en repressieve handhaving. Onder preventieve handhaving wordt in eerste instantie verstaan: het houden van toezicht. Daarnaast is ook goede informatievoorziening en gerichte voorlichting aan de burger van belang. De kwaliteit van verleende vergunningen staat voorop. Daarnaast dient ook aandacht besteed te worden aan de actualiteit en de handhaafbaarheid van verordeningen, vergunningen en bestemmingsplannen. Indien wordt afgeweken van geldende regelgeving en er dus sprake is van illegale activiteit(en) zal repressieve handhaving worden toegepast. Dit kan bestuursrechtelijk, strafrechtelijk of privaatrechtelijk van aard zijn.

In het geldende handhavingsbeleidsplan zijn, op basis van een uitgevoerde risicoanalyse, voor alle gemeentelijke handhavingstaken met betrekking tot de fysieke leefomgeving prioriteiten gesteld. In het handhavingsbeleidsplan wordt nader ingegaan op de verschillende vormen van handhaving (nalevingsstrategie, preventiestrategie). Er zijn ook beleidsregels ten aanzien van gedogen opgenomen in het plan. Dit bestemmingsplan biedt juridisch-planologische kaders waaraan kan worden getoetst.

Hoofdstuk 6 Juridische planbeschrijving

6.1 Algemeen

Het bestemmingsplan is opgezet volgens de in de Wet ruimtelijke ordening opgenomen standaardvorm van de Standaard Vergelijkbare Bestemmingplannen 2012 (SVBP 2012).

Het bestemmingsplan bestaat uit een verbeelding, planregels en een toelichting. De verbeelding en de planregels vormen samen het juridisch bindende gedeelte van het bestemmingsplan. Beide planonderdelen dienen in onderlinge samenhang te worden bezien en toegepast. Op de verbeelding zijn de bestemmingen aangewezen. Aan deze bestemmingen zijn bouwregels en regels betreffende het gebruik gekoppeld.

De toelichting heeft geen rechtskracht, maar is wel een belangrijk onderdeel van het plan. De toelichting geeft een weergave van de beweegredenen, de onderzoeksresultaten en de beleidsuitgangspunten die aan dit plan ten grondslag liggen. De toelichting is van wezenlijk belang voor een juiste interpretatie en toepassing.

Daarnaast maken ook eventuele bijlagen onlosmakelijk onderdeel uit van het bestemmingsplan.

Verbeelding

De verbeelding is een digitale kaart, waarop bestemmingen en aanduidingen zijn weergegeven. Aanduidingen worden gebruikt om bepaalde zaken specifieker te regelen, bijvoorbeeld in de vorm van gebiedsaanduidingen, bouwaanduidingen, bouwvlakken, functieaanduidingen etc.

Voor de analoge verbeelding is gebruik gemaakt van een digitale ondergrond (Grootschalige Basiskaart en/of kadastrale kaart). Daar waar een verschil is tussen de digitale en de analoge verbeelding, is de digitale versie leidend.

Regels

De planregels zijn standaard onderverdeeld in vier hoofdstukken.

  • Hoofdstuk I : Inleidende regels, deze bevatten de begrippen en wijze van meten;
  • Hoofdstuk II: Bestemmingsregels, dit zijn de verschillende bestemmingen op alfabetische volgorde. De regels bevatten een bestemmingsomschrijving en regels voor het bouwen en het gebruik.
  • Hoofdstuk III: Algemene regels, dit zijn regels die gelden voor alle bestemmingen. Dit zijn onder meer (mogelijke) flexibiliteitsbepalingen in de vorm van wijzigings- en afwijkingsbevoegdheden.
  • Hoofdstuk IV: Overgangs- en slotbepalingen.

6.2 Wijze van bestemmen

De regels van dit bestemmingsplan zijn opgezet conform de systematiek die elders in de gemeente Cuijk wordt gebruikt (i.c. de regels van het bestemmingsplan 'Cuijk, De Valuwe'). Voorliggend bestemmingsplan bevat de volgende bestemmingen:

  • 'Wonen'. De hoofdgebouwen (de woningen) mogen worden gebouwd binnen het op de verbeelding aangegeven bouwvlak. In de regels is geregeld dat er maximaal 14 woningen zijn toegestaan. De maximale goot- en bouwhoogte is 7 respectievelijk 10 meter. Met de aanduiding 'aaneengebouwd' is bepaald dat enkel rijwoningen zijn toegestaan. Er is een afwijkingsbevoegdheid opgenomen waarmee het maximale bebouwingspercentage van het achtererf kan worden verhoogd van 50% tot 60%, zodat de levensloopbestendige hoekwoningen, ook bij een lichte overschrijding van het toegestane bebouwd oppervlak, na afwijking, gerealiseerd kunnen worden.
  • 'Groen', voor de groenvoorzieningen die rondom de woningen aanwezig zijn. Naast groenvoorzieningen zijn hier onder meer paden, speelgelegenheden, nutsvoorzieningen en voorzieningen voor de waterhuishouding toegestaan. Binnen de bestemming mag niet worden gebouwd, met uitzondering van bouwwerken geen gebouwen zijnde.
  • 'Verkeer', ten behoeve van de ontsluitingsweg en parkeervoorzieningen. Hierbinnen zijn enkel bouwwerken, geen gebouwen zijnde toegestaan.
  • Waarde - Archeologie 5' voor het behoud en de bescherming van de archeologische waarden van de gronden.

Verder zijn de gebiedsaanduidingen 'vrijwaringszone – radar' en 'overige gebiedsaanduiding - funnel' opgenomen op de verbeelding, die voorzien in het vrijwaren van het luchtruim ten behoeve van de vliegbasis Volkel.
Met dit hoofdstuk is voldaan aan artikel 3.1.3 van het Bro.

Hoofdstuk 7 Procedure

7.1 Algemeen

Bij de voorbereiding van een (voor)ontwerp bestemmingsplan dient overleg te worden gevoerd als bedoeld in artikel 3.1.1 Bro. Op basis van het eerste lid van dit artikel wordt overleg gevoerd met waterschappen en met die diensten van provincie en Rijk die betrokken zijn bij de zorg voor de ruimtelijke ordening of belast zijn met de behartiging van belangen welke in het plan in het geding zijn. Voor wat kleinere plannen kan, in overleg, afgezien worden van dit overleg.

Op basis van artikel 3.1.6 Bro dient verslag te worden gedaan van de wijze waarop burgers en maatschappelijke organisaties bij de voorbereiding van het bestemmingsplan zijn betrokken. Dit is de inspraak. Van (formele) inspraak kan, zeker bij wat kleinere plannen, worden afgezien. De gemeentelijke inspraakverordening is daarbij ook van belang.

Een ontwerpbestemmingsplan dient conform afdeling 3.4 Awb gedurende 6 weken ter inzage gelegd worden. Hierbij is er de mogelijkheid voor een ieder om zienswijzen in te dienen op het plan Na vaststelling door de Raad wordt het vaststellingsbesluit bekend gemaakt. Het bestemmingsplan ligt na bekendmaking 6 weken ter inzage. Gedurende deze termijn is er de mogelijkheid beroep in te dienen bij de Afdeling bestuursrechtspraak Raad van State. Het bestemmingsplan treedt vervolgens daags na afloop van de tervisielegging in werking als er geen beroep is ingesteld.

7.2 Participatie met wijkraad Padbroek

De herontwikkeling van de voormalige basisschool tot woningbouw is meerdere malen en in goed overleg besproken met het bestuur van de Wijkraad Padbroek. Ook is tweemaal een inloopavond gehouden.

De gesprekken met de het bestuur van de Wijkraad hebben plaatsvonden vanaf september 2015. Vanaf het begin heeft het bestuur aandacht gevraagd voor een duurzame ontwikkeling met een groene uitstraling. Ook heeft het bestuur een enquête laten houden door HAN studenten.

In juli 2016 is de startnotie besproken en in september 2016 is afgesproken dat een schetsplan/ verkavelingsplan zal worden opgesteld. In maart 2017 heeft de architect een presentatie gegeven van de uitgewerkte plannen. Naar aanleiding van opmerkingen door het bestuur van de Wijkraad zijn de (schets)plannen aangepast. In een overleg april 2017 zijn de aangepaste tekeningen gepresenteerd.

Vervolgens heeft op 23 mei 2017 een inloopavond plaatsgevonden in de basisschool de Harlekijn. Deze avond was goed bezocht. Opmerkingen zijn met name gemaakt over de ontsluiting van het verkeer, het gebrek aan parkeerplaatsen in de nabijheid van de school en het behoud van groen. In juni 2017 zijn de tijdens de inloopavond ontvangen opmerkingen besproken met het bestuur van de Wijkraad. In het bijzonder is afgesproken dat de gemeente een aangepast parkeervoorstel zal maken. In maart 2018 is de gewijzigde opzet besproken. Toegevoegd zijn nieuwe parkeerplaatsen aan een nieuw aan te leggen toegangsweg.

Op 18 april 2018 is een 2e inloopavond gehouden in het Doehuis te Cuijk. Tijdens deze avond is het gewijzigd plan toegelicht. De tekening van de nieuwe toegangsweg met de gewijzigde parkeeropzet is eveneens beschikbaar gesteld via de gemeentelijke website www.cuijk.nl.

7.3 Verslag artikel 3.1.1 Bro overleg

Dit bestemmingsplan is in het kader van het wettelijk vooroverleg toegezonden aan de provincie Noord-Brabant, het waterschap Aa en Maas en aan de brandweer. Alle drie de partijen hebben aangegeven geen opmerkingen te hebben.

7.4 Verslag inspraak

Het voorontwerpbestemmingsplan heeft van 30 januari tot en met 12 februari 2019 ter inzage gelegen. Er zijn in deze periode twee inspraakreacties binnengekomen. Deze hebben geleid tot een aanpassing van de verbeelding. Een verslag van de inspraak is opgenomen in bijlage 8.

7.5 Verslag zienswijzen

Het ontwerpbestemmingsplan heeft van 15 mei tot en met 25 juni 2019 ter inzage gelegen. Er zijn geen zienswijzen ingediend. Het plan is ongewijzigd vastgesteld.