direct naar inhoud van Ruimtelijke onderbouwing
Plan: Omgevingsvergunning locatie Welkoop Lichtenvoorde
Status: vastgesteld
Plantype: omgevingsvergunning
IMRO-idn: NL.IMRO.1586.PBLIC101-VG01

Ruimtelijke onderbouwing

Hoofdstuk 1 Algemene gegevens bestemmingsplan

Omgevingsvergunning locatie Welkoop Lichtenvoorde  
Verleend maart 2015  
 
Inlichtingen:  
Afdeling Ruimtelijke Ontwikkeling en Beheer  
de heer N. Rondeel  
Telefoonnummer 0544 - 393 482  

Hoofdstuk 2 Ruimtelijk kader

2.1 Aanleiding

Welkoop heeft op 12 november 2014 een aanvraag voor omgevingsvergunning ingediend voor het realiseren van een Welkoop winkel op de locatie Hagenstraat - Carel Looierstraat te Lichtenvoorde.

Welkoop Zieuwent is al enkele jaren op zoek naar een nieuwe locatie. Welkoop Zieuwent en de organisatie daarachter hebben in 2013 schriftelijk aangegeven de Welkoop vestiging in Zieuwent te willen verplaatsen naar Lichtenvoorde. Zowel Welkoop als de gemeente hebben verschillende mogelijkheden voor een nieuwe locatie onderzocht. De locatie Hagenstraat - Carel Looierstraat is de beste beschikbare locatie gebleken. Het college heeft in september 2013 in principe ingestemd met ontwikkeling van deze locatie. De raad is hierover geïnformeerd in november 2013.

In de vergadering van 14 oktober 2014 heeft de raad een verklaring van geen bedenkingen afgegeven.

2.2 Ligging en begrenzing

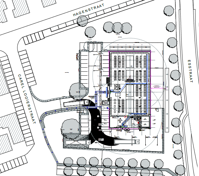
Het gebouw ten behoeve van de Welkoop komt te liggen op het braak liggend terrein op de hoek Hagenstraat en Carel Looierstraat te Lichtenvoorde. Voorheen werd het terrein gebruikt voor onderwijs door de F.E. van Veldenschool. De omgeving is te omschrijven als een mix tussen woon- en werkgebied.

afbeelding "i_NL.IMRO.1586.PBLIC101-VG01_0001.png"

Omgeving plangebied

afbeelding "i_NL.IMRO.1586.PBLIC101-VG01_0002.png"

Beoogd plangebied

2.3 Planbeschrijving

In dit hoofdstuk worden de uitgangspunten van het voorliggende plan beschreven.

2.3.1 Aanleiding vestiging Welkoop

In 2006 is besloten de Van Veldenschool te verplaatsen. Nadien zijn er een aantal plannen geweest voor nieuwbouw op deze locatie met verschillende functies zoals een gezondheidscentrum en een school voor speciaal onderwijs met zorgwoningen. Beide ontwikkelingen zijn niet doorgegaan en de locatie is nu aangewezen als locatie voor de Welkoop. De huidige Welkoop is gevestigd in een voormalig coöperatiegebouw uit omstreeks 1900 aan de Pastoor Zanderinkstraat in het centrum van Zieuwent. Omdat de huidige locatie niet meer past bij de huidige formule cq. uitgangspunten van de Welkoop is een verhuizing naar een locatie elders in de gemeente Oost Gelre gewenst. Deze locatie is dus gevonden aan de Hagenstraat / Carel Looierstraat in Lichtenvoorde.

2.3.2 Vigerende bestemde situatie

Het plangebied is in het geheel gelegen in het bestemmingsplan 'Dorpskern Lichtenvoorde' van 25 mei 2010. Het perceel heeft de bestemming 'Maatschappelijk' (bruine vlak) met de nadere functieaanduiding 'onderwijs' en voorzien van een bouwvlak. De gronden zijn hierin bestemd voor maatschappelijke voorzieningen. Vanwege de aanduiding onderwijs is op deze locatie een schoolgebouw toegestaan.

Het bestemmingsplan geeft tevens aan dat de bebouwing voor het onderwijs maximaal 10 meter hoog mag worden en dat de maximale bebouwingspercentage 35% bedraagt. Laatstgenoemde wil zeggen dat het aangegeven bouwvlak voor maximaal 35% bebouwd mag worden.

afbeelding "i_NL.IMRO.1586.PBLIC101-VG01_0003.png"

Plankaart uit vigerende bestemmingsplan

afbeelding "i_NL.IMRO.1586.PBLIC101-VG01_0004.png"

Aangegeven bouwvlak binnen de bestemming Maatschappelijk

2.3.3 Gewenste situatie

Het huidige perceel is momenteel braak liggend en niet in gebruik voor een specifieke functie. Op het perceel vindt nieuwbouw plaats, worden parkeerplaatsen en een toegangsweg aangelegd. Het nieuwe gebouw zal zoveel mogelijk in het groen worden ingepast.

De gewenste situatie ziet er als volgt uit:

afbeelding "i_NL.IMRO.1586.PBLIC101-VG01_0005.png"

Inrichtingsschets

afbeelding "i_NL.IMRO.1586.PBLIC101-VG01_0006.png"

afbeelding "i_NL.IMRO.1586.PBLIC101-VG01_0007.png"

Aanzichten te realiseren welkoopwinkel

Nieuwbouw van een bedrijfsgebouw op het beoogde perceel aan de Carel Looierstraat past niet in de geldende bestemming 'Maatschappelijk' zoals aangegeven in het vigerende bestemmingsplan 'Dorpskern Lichtenvoorde'. Daarnaast past het bouwplan niet geheel in het aangegeven bouwvlak (kleine afwijking aan de zijde van de Esstraat) waarbij een klein deel van het gebouw in de bestemming 'Groen' komt te liggen. Wel wordt voldaan aan de in het bestemmingsplan aangegeven maximale bouwhoogte van 10 meter en aan de maximale bebouwingsoppervlakte van 35%.

Voor bovengenoemde afwijkingen van het bestemmingsplan is een herziening van het geldende bestemmingsplan noodzakelijk of een omgevingsvergunning Wabo waarbij wordt afgeweken van het geldende bestemmingsplan. Middels het indienen van een aanvraag om omgevingsvergunning heeft verzoeker aangegeven een procedure om projectafwijking Wabo conform artikel 2.12. lid 1 onder a sub 3 van de Wet algemene bepaling omgevingsrecht (Wabo) te willen volgen, zodat medewerking kan worden verleend aan het realiseren van het gebouw.

2.3.4 Groenstructuur

Ten behoeve van de bouwkundige nieuwbouw en daarbij behorende parkeerplaatsen dient het gebouw ingepast te worden. Dit wil zeggen dat het gebouw in een 'groene setting' komt te staan. Een groot deel van het parkeerterrein en toegangsweg wordt voorzien van een beukenhaag. Op het terrein blijven de meeste bomen behouden evenals de bomen aan de Esstraat. Langs het bestaande fietspad aan de zijde van de Richterslaan worden nieuwe bomen geplant.

2.3.5 Stedenbouwkundig en welstand

Om door de invulling van het braak liggend terrein voldoende ruimtelijke kwaliteit te bereiken, is advies gevraagd aan het Gelders Genootschap. Het Gelders Genootschap heeft een notitie opgesteld waarin ruimtelijke randvoorwaarden en uitgangspunten zijn aangegeven voor de beeldkwaliteit om het nieuwe gebouw inpasbaar te maken op de beoogde locatie. Deze notitie heeft de basis gegeven voor het onderliggend verzoek tot realisatie van een Welkoop vestiging.

De notitie 'Advies Locatie Welkoop, Lichtenvoorde' van het Gelders Genootschap is als bijlage bijgevoegd.

Hoofdstuk 3 Beleidskader

3.1 Algemeen

Dit hoofdstuk beschrijft het rijks-, provinciaal- en gemeentelijk beleid. Naast de belangrijkste algemene uitgangspunten worden de specifiek voor dit plangebied geldende uitgangspunten weergegeven. Het beleid is in dit hoofdstuk verwoord en afgewogen en indien noodzakelijk op de verbeelding en in de regels vertaald.

De volgende beleidsstukken zijn wel bekeken voor het plangebied, maar hebben geen invloed op dit bestemmingsplan.

  • Vogelrichtlijn (Internationaal);
  • Habitatrichtlijn (Internationaal);
  • Het verdrag van Valetta (Internationaal);
  • Kaderrichtlijn water (Internationaal);
  • Structuurvisie Infrastructuur en Ruimte (Rijk);
  • Natuurbeleid (Rijk);
  • Streekplan Gelderland 2005 (Provincie);
  • Waterplan Gelderland 2010-2015 (Provincie);

Deze plannen zijn daarom ook niet verder toegelicht in dit plan.

3.2 Provinciaal beleid

3.2.1 Omgevingsverordening Gelderland

Provinciale Staten van de provincie Gelderland hebben op 24 september 2014 de Omgevingsverordening Gelderland vastgesteld.

De omgevingsverordening richt zich op de fysieke leefomgeving in de provincie Gelderland. Dit betekent dat vrijwel alle regels die betrekking heben op de fysieke leefomgeving opgenomen zijn in de Omgevingsverordening. Het gaat hierbij om regels op het gebied van ruimtelijke ordening, milieu,water, verkeer en bodem. De verwachting is dat de Omgevingsverordening op termijn alle regels zal gaan bevatten die betrekking hebben op de fysieke leefomgeving.

3.2.1.1 Relatie plangebied

Het plangebied wordt geschikt gemaakt voor detailhandel. In de omgevingsverordening is in artikel 2.3.3.1 eerste lid aangegeven dat 'in een bestemmingsplan geen nieuwe locaties voor detailhandel mogelijk worden gemaakt die leiden tot een duurzame ontwrichting van de bestaande detailhandelsstructuur'. Daarbij is in het derde lid aangegeven dat 'in de toelichting bij het bestemmingsplan wordt aangegeven hoe een nieuwe detailhandelontwikkeling zich verhoudt tot het bepaalde in het eerste lid en een eventuele intergemeentelijke samenwerking op het gebied van detailhandel'.

Het tweede lid is van toepassing op plangebieden waarvoor regionale afspraken zijn gemaakt over de programma van detailhandel. Dit is op onderhavig plangebied niet van toepassing.

Om te bezien of de komst van nieuwe detailhandel op de beoogde locatie aan de Carel Looierstraat tot duurzame ontwrichting van de bestaande detailhandelstructuur kan leiden, is door MKB Reva een ruimtelijk-economische analyse gemaakt. Deze analyse is verwoord in een rapport van november 2014 welke als bijlage is bijgevoegd.

Het rapport wordt afgesloten met een conclusie. In de conclusie is onder andere het volgende aangegeven: 'De verplaatsing van het bedrijf van de solitaire winkellocatie in Zieuwent naar de rand van het kernwinkelgebied van Lichtenvoorde maakt dat voor de meeste consumenten binnen het verzorgingsgebied de betreffende voorziening dichterbij komt te liggen. Van het in gevaar brengen van een dergelijke voorziening op aanvaardbare afstand is derhalve geen sprake. De conclusie kan dan ook niet anders zijn dan dat van een aantasting of verstoring van de detailhandelsstructuur geen sprake kan zijn'.

De beoogde locatie kent een goede bereikbaarheid en ontsluiting en beschikt over voldoende ruimte om een passende parkeervoorziening te realiseren. Met de voorgestelde verplaatsing wordt binnen het verzorgingsgebied de binnen het gemeentelijk beleid gewenste concentratie van voorzieningen verder vormgegeven. Hierdoor versterken de aanwezige voorzieningen elkaar en daarmee wordt het toekomstige functioneren van alle aanwezige voorzieningen meer toekomstbestendig gemaakt. Binnen het kernwinkelgebied van Lichtenvoorde zijn geen bestaande leegstaande locaties gevonden van voldoende omvang die qua bereikbaarheid, ontsluiting en parkeermogelijkheden voldoen aan de bij deze onderneming te stellen eisen. De beoogde locatie kan dan ook, gelet op de ladder van duurzame verstedelijking, als bijzonder geschikt worden aangemerkt'.

Ladder duurzame verstedelijking

In voorgaand rapport van MKB Reva wordt gesproken van de 'ladder van duurzame verstedelijking'. In het Besluit ruimtelijke ordening is de verplichting opgenomen om in het geval van nieuwe stedelijke ontwikkeling in de toelichting een onderbouwing op te nemen van nut en noodzaak van de nieuwe stedelijke ruimtevraag en de ruimtelijke inpassing. Hierbij wordt uitgegaan van de 'ladder voor duurzame verstedelijking'.
De 'stappen van de ladder' worden in artikel 3.1.6, lid 2 Bro als volgt omschreven:

  • voorziet de voorgenomen stedelijke ontwikkeling in een actuele regionale behoefte;
  • kan binnen bestaand stedelijk gebied van de betreffende regio in de behoefte worden voorzien door benutting van beschikbare gronden door herstructurering, transformatie of anderszins;
  • wanneer blijkt dat de stedelijke ontwikkeling niet binnen het bestaand stedelijk gebied kan plaatsvinden, wordt beschreven in hoeverre wordt voorzien in die behoefte op locaties die, gebruikmakend van verschillende middelen van vervoer, passend ontsloten zijn of als zodanig worden ontwikkeld (m.a.w. zorgen voor optimale inpassing en bereikbaarheid).

Zoals hierboven al is omschreven is de beoogde locatie, gelet op de ladder van duurzame verstedelijking, als bijzonder geschikt aan te merken.

3.3 Gemeentelijk beleid

3.3.1 Wonen en werken in Lichtenvoorde 2015

Deze nota biedt een integraal overzicht van het ruimtelijk beleid dat de gemeente in de periode tot 2015 wil voeren.

Het gemeentelijk beleid is gericht op het instandhouden en zo mogelijk versterken van het voorzieningenaanbod in de gemeente. Daarbij ligt het accent op de hoofdkern Lichtenvoorde die een centrumfunctie vervult voor een gemeeentegrensoverschrijdend gebied. Om ook in de toekomst een redelijk aanbod van voorzieningen veilig te stellen, wordt uitgegaan van het zoveel mogelijk concentreren van voorzieningen, wanneer zich daartoe mogelijkheden voordoen.

Voor de bestaande kern is een ruimtelijk streefbeeld opgesteld. Dit is een lange termijn visie die verder gaat dan 2015, mede om te kunnen bepalen waar binnen de bestaande kern wel en niet gebouwd kan worden. Hierbij zijn de ruimtelijk-functionele karakteristieken van de kern Lichtenvoorde als uitgangspunt gekozen.

De beoogde locatie aan de Carel Looierstraat is in het ruimtelijk streefbeeld gelegen in het 'Centrum' zoals op onderstaande kaart is te zien. Het centrum is het kernwinkelgebied van Lichtenvoorde. Hier zijn de meeste, aaneengesloten winkels te vinden met drie trekkers: het gemeentehuis, de Varkensmarkt en het te ontwikkelen ziekenhuisterrein (ontwikkelingen Nieuwmarkt). In de Ontwikkelingsvisie Centrum Lichtenvoorde, zoal omschreven in paragraaf 3.3.2 is dit verder omschreven.

Ook de ontsluitingswegen zijn in het ruimtelijk streefbeeld aangegeven. Dit zijn de wegen de Aaltenseweg, de Varsseveldseweg, de Lievelderweg en de Richterslaan. De combinatie van deze wegen vormt de interne hoofdwegenstructuur voor auto en openbaar vervoer. Langs deze komt functiemenging voor, waarbij in beginsel gedacht kan worden aan wonen gemengd met kleinschalige bedrijvigheid, kleinschalige detailhandel, kantoorpanden en voorzieningen. De invloed op de omgeving is altijd bepalend voor de mogelijkheid voor vestiging of de wens voor verplaatsing. Deze invloed is in deze toelichting omschreven.

Er zijn kansen voor aanpassingen van ruimtelijke afwijkingen (braakliggende terreinen, grote en hinderlijke bedrijven). Hier kan de ruimtelijke structuur en de leefomgeving worden versterkt. Voor deze terreinen geldt wel dat de versterking plaatsvindt na zorgvuldig onderzoek en overleg.

afbeelding "i_NL.IMRO.1586.PBLIC101-VG01_0008.png"

Kaart ruimtelijk streefbeeld kern Lichtenvoorde 2015, de 'centrumschil' is het gele gebied

3.3.2 Ontwikkelingsvisie Centrum Lichtenvoorde

In januari 2001 bracht MKB Reva in opdracht van de gemeente het rapport "Centrum Lichtenvoorde, detailhandelsvoorzieningen nu en in de toekomst" uit. De uitkomsten van dit onderzoek vormden de basis voor de Ontwikkelingsvisie centrum Lichtenvoorde.

De belangrijkste ruimtelijke doelstelling van de visie is de herstructurering en de opwaardering van de winkels in het centrum. De herstructurering houdt in dat winkels zo hergegroepeerd dienen te worden dat er lusvormige looproutes in het dorpscentrum ontstaan. Het overige deel van het centrum fungeert daarnaast als een belangrijke aanlooproute naar het winkelgebied. De hoofdfunctie zal in dit aanloopgebied gericht zijn op wonen maar om de levendigheid te versterken kunnen er ook culturele of maatschappelijke functies of zelfs een winkel aanwezig zijn. Via deze aanloopgebieden kan met de auto het kernwinkelgebied goed bereikt worden.

Het kernwinkelgebied krijgt twee belangrijke trekkers. Aan de noordzijde de Varkensmarkt en aan de zuidkant van het centrum het te ontwikkelen ziekenhuisterrein (ontwikkelingen Nieuwmarkt). Voor centrumbezoekers van buiten Lichtenvoorde is de Richterslaan de belangrijkste toegangsweg naar het centrum. Om een aantrekkelijke entree tot het centrum te creëren is het noordelijk deel van het centrum opgewaardeerd. Hierbij is de verkeerssituatie aangepast en zijn nieuwe parkeerplaatsen ontwikkelt. Ook de Carel Looierstraat is ingericht om te parkeren. Hierdoor is een goed startpunt ontstaan voor een bezoek aan het centrum.

Het braakliggend terrein aan de Carel Looierstraat is in de ontwikkelingsvisie als ontwikkellocatie aangemerkt en benoemd als 'Nieuwe entree tot het centrum'. In de ontwikkelingsvisie wordt de mogelijkheid genoemd om een extra ontsluitingsstraat vanaf de Esstraat aan te leggen. Ook zou het terrein voor een groot deel als parkeerplaatsen kunnen worden ingericht.

afbeelding "i_NL.IMRO.1586.PBLIC101-VG01_0009.png"

Actiekaart uit de Ontwikkelingsvisie Lichtenvoorde

afbeelding "i_NL.IMRO.1586.PBLIC101-VG01_0010.png"

Bij bovenstaande actiekaart behorende legenda

3.3.3 Verkeersprogramma 2014 - 2024

Op 16 december 2014 is door de gemeenteraad van Oost Gelre het Integraal Verkeersprogramma Oost Gelre 2014 - 2024 vastgesteld. Dit Verkeersprogramma vervangt het Gemeentelijk Verkeer en Vervoer Plan welke is verouderd.

Het nieuwe Verkeersprogramma heeft een brede insteek en kan als volgt worden samengevat: "rekening houden met landschap, omgeving en verkeerskundige richtlijnen om een zo veilig en aantrekkelijk mogelijke omgeving voor de verkeersdeelnemers te creëren, waarbij verkeersdeelnemers rekening moeten houden met elkaar".

Voor Lichtenvoorde is de (verkeers)structuur weergegeven in onderstaand kaartje. Het plangebied op de hoek Hagenstraat - Carel Looierstraat is aangeduid als een ontwikkellocatie waarvoor een nieuwe invulling wordt gezocht. Daarnaast is de omliggende ruimte aangeduid voor langparkeren. De blauwe lijnen op de bestaande wegen geven de parkeerroute (30 km/h) aan. De ontwikkeling op de hoek Hagenstraat - Carel Looierstraat kan invloed hebben op de verkeersstructuur en parkeren. In paragraaf 4.6 van deze ruimtelijke onderbouwing wordt hier nader op ingegaan.

afbeelding "i_NL.IMRO.1586.PBLIC101-VG01_0011.png"

Uitsnede uit het verkeersprogramma

Hoofdstuk 4 Onderzoeksresultaten

4.1 Bodemonderzoek

In opdracht van de gemeente Oost Gelre heeft Econsultancy een actualiserend bodemonderzoek uitgevoerd ter plaatse van het te ontwikkelen perceel aan de Carel Looierstraat. Doel van dit onderzoek is om de algemene bodemkwaliteit te bepalen ter plaatse van de onderzoekslocatie, waarmee bekeken kan worden in hoeverre deze bodemkwaliteit een belemmering kan vormen voor het beoogde gebruik en/of de voorgenomen ontwikkelingen.

Op basis van de onderzoeksresultaten bestaan er geen milieuhygiënische belemmeringen voor de voorgenomen nieuwbouw op de onderzoekslocatie en wijziging van het bestemmingsplan. Ten behoeve van de verwerking van de vrijkomende grond wordt verwezen naar de uitgangspunten van het Besluit bodemkwaliteit.

Het onderzoeksrapport met nummer 14096050, versienummer D1 is als bijlage bijgevoegd.

4.2 Watertoets

Het waterbeleid van rijk en provincie is gericht op een veilig en goed bewoonbaar land met gezonde, duurzame watersystemen. In het Waterbeheerplan 2010-2015 van Waterschap Rijn en IJssel staat het beleid beschreven op een drietal hoofdthema's. Voor het thema Veiligheid is bescherming tegen hoog water op de rivieren het speerpunt. Het functioneren van de primaire en regionale waterkeringen staat hierbij centraal. Het thema watersysteembeheer is gericht op het voorkomen van afwenteling door het hanteren van de drietrapsstrategie 'Vasthouden-Bergen-Afvoeren'. Voor de waterkwaliteit is het uitgangspunt 'stand still - step forward'. Watersysteembenadering en integraal waterbeheer dienen als handvatten voor het benutten van de natuurlijke veerkracht van een watersysteem. Het einddoel is een robuust en klimaatbestendig watersysteem voor de toekomst. Voor het thema Waterketenbeheer streeft Waterschap Rijn en IJssel naar een goed functionerende waterketen waarbij er een optimale samenwerking met de gemeenten wordt nagestreefd.

Thema   Toetsvraag   Relevant  
HOOFDTHEMA'S  
Veiligheid
 
1. Ligt in of nabij het plangebied een primaire of regionale waterkering?
2. Ligt in of nabij het plangebied een kade?  
Nee

Nee  
Riolering en Afvalwaterketen   1. Is er toename van het afvalwater (DWA)?
2. Ligt in het plangebied een persleiding van WRIJ?
3. Ligt in of nabij het plangebied een RWZI van het waterschap?  
Ja
Nee
Nee  
Wateroverlast (oppervlaktewater)
 
1. Is er sprake van toename van het verhard oppervlak?
2. Zijn er kansen voor het afkoppelen van bestaand verhard oppervlak?
3. In of nabij het plangebied bevinden zich natte en laag gelegen gebieden, beekdalen, overstromingsvlaktes?  
Ja
Nee

Nee
 
Grondwater-
overlast  
1. Is in het plangebied sprake van slecht doorlatende lagen in de ondergrond?
2. Bevindt het plangebied zich in de invloedzone van de Rijn of IJssel?
3. Is in het plangebied sprake van kwel?
4. Beoogt het plan dempen van slootjes of andere wateren?  
Nee

Nee

Nee
Nee  
Oppervlakte-
waterkwaliteit
 
1. Wordt vanuit het plangebied water op oppervlaktewater geloosd?
2. Ligt in of nabij het plangebied een HEN of SED water?
3. Ligt het plangebied geheel of gedeeltelijk in een Strategisch actiegebied?  
Nee

Nee
Nee
 
Grondwaterkwaliteit   1. Ligt het plangebied in de beschermingszone van een drinkwateronttrekking?   Nee  
Volksgezondheid
 
1. In of nabij het plangebied bevinden zich overstorten uit het gemengde of verbeterde gescheiden stelsel?
2. Bevinden zich, of komen er functies, in of nabij het plangebied die milieuhygiënische of verdrinkingsrisico's met zich meebrengen (zwemmen, spelen, tuinen aan water)?  
Nee

Nee

 
Verdroging   1. Bevindt het plangebied zich in of nabij beschermingszones voor natte natuur?   Nee  
Natte natuur   1. Bevindt het plangebied zich in of nabij een natte EVZ?
2. Bevindt het plangebied zich in of nabij beschermingszones voor natte natuur?  
Nee
Nee  
Inrichting en beheer   1. Bevinden zich in of nabij het plangebied wateren die in eigendom of beheer zijn bij het waterschap?
2. Heeft het plan herinrichting van watergangen tot doel?  
Nee

Nee  
AANDACHTSTHEMA'S  
Recreatie   1. Bevinden zich in het plangebied watergangen en/of gronden in beheer van het waterschap waar actief recreatief medegebruik mogelijk wordt?   Nee
 
Cultuurhistorie   1. Zijn er cultuurhistorische waterobjecten in het plangebied aanwezig?   Nee  

Op een braakliggend perceel vindt nieuwbouw plaats van een gebouw, vindt er verharding plaats ten behoeve van parkeerplaatsen en wordt er een toegangsweg aangelegd. Deze nieuwe ontwikkeling heeft tot gevolg dat het waterverbruik zal toenemen alsmede het daarbij behorend afvalwater. Het afvalwater (grijs) vanuit de inrichting wordt direkt geloosd op de gemeentelijke riolering.

Door de ontwikkelingen in het plangebied wordt het terrein gedeeltelijk verhard. Het hemelwater van de aan te leggen verharding wordt niet in de gemeentelijke riolering geloosd maar zovel mogelijk op eigen terrein opgevangen en via de trits vasthouden - bergen - afvoeren behandeld. De totale hoeveelheid verharding in het plangebied zal na ontwikkeling 4.440 m2 bedragen. Om wateroverlast te voorkomen wordt het hemelwater niet afgevoerd naar het rioolstelsel maar volgens de trits vasthouden - bergen – afvoeren behandeld. Het hemelwater wordt ter plaatse geïnfiltreerd/geborgen in de omliggende gronden. Hiervoor zal het buitenterrein op lichte afschot worden gelegd. De omliggende grond is van een dusdanige samenstelling (zeer fijn zand, zwak siltig en matig humeus) dat deze goed geschikt is voor infiltratie in de bodem.

Daarnaast wordt het dakvlak van het op te richten gebouw aangesloten op een aan te leggen Wadi met een inhoud van 40 m3. Een regenbui T=10+10% (40 mm) kan in deze wadi worden geborgen en langzaam in de bodem infiltreren.

4.3 Flora en Fauna

Op het perceel vinden nieuwe ontwikkelingen plaats. Deze beoogde ontwikkeling kan negatieve consequenties voor flora en fauna hebben zodat een onderzoek naar flora en fauna is uitgevoerd.

Door Stichting Staring Advies is een Quickscan natuurtoets uitgevoerd. De resultaten van het onderzoek zijn opgenomen in een onderzoeksrapport met nummer 1466 welke als bijlage is bijgevoegd. In het rapport wordt geconcludeerd dat er geen aanvullend onderzoek of een ontheffing in het kader van de Flora- en faunawet noodzakelijk is wanneer de houtsingel en de ondergroei van de houtsingel ongemoeid blijven. Mocht (een deel van) de houtsingel of de ondergroei in de houtsingel verdwijnen dan is nader onderzoek noodzakelijk. In onderhavig plan blijft de houtsingel en de ondergroei in de houtsingel instand.

Algemene voorwaarde:

Ten aanzien van de ingrepen is een algemeen geldende voorwaarde vanuit de Flora- en faunawet van toepassing: Op basis van de zorgplicht volgens artikel 2 van de Flora- en faunawet dient bij de uitvoering van de werkzaamheden voldoende zorg in acht te worden genomen voor in het wild levende dieren en hun leefomgeving. Dit houdt in dat bij het uitvoeren van werkzaamheden altijd rekening moet worden gehouden met aanwezige planten en dieren. Dieren moeten de gelegenheid hebben om uit te wijken en mogen niet opzettelijk worden gedood.

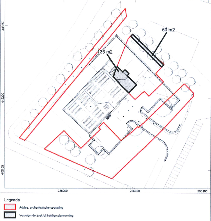
4.4 Archeologie

Het te ontwikkelen perceel is gelegen in een gebied met de bestemming Waarde - Archeologische Verwachtingswaarde 1, zoals aangegeven in het geldende bestemmingsplan Dorpskern Lichtenvoorde. Dit wil zeggen dat voor het oprichten van een bouwwerk groter dan 30 m2 er een rapport moet worden overlegd waarin de archeologische waarde van de gronden waarop de aanvraag betrekking heeft in voldoende mate is onderzocht.

Door ADC ArcheoProjecten is in 2013 een archeologisch onderzoek op de locatie uitgevoerd bestaande uit een Archeologische Begeleiding (AB) en een Inventariserend Veldonderzoek (IVO) in de vorm van proefsleuven. Het archeologisch rapport met nummer 3356 is als bijlage bijgevoegd. Een vervolg onderzoek is niet uitgevoerd.

In verband met de huidige ontwikkelingen heeft de medewerker cultuurhistorie van de gemeente Oost Gelre het uitgevoerde archeologisch rapport, zoals hierboven is omschreven, nader bestudeerd. Hij geeft aan dat, uitgaande van de huidige maaiveldhoogte (gemiddeld op ca. 20,3 m +NAP) en de aangetroffen archeologische resten dieper dan 19 m +NAP, het voor het grootste deel van de geplande inrichting van het terrein geen archeologisch vervolgonderzoek noodzakelijk is. De aanwezige archeologische resten zullen niet worden verstoord maar in situ bewaard blijven (bestrating, parkeerplaatsen, e.d.). Uitzondering hierop vormen de noordzijde van het terrein waar twee semi-ingegraven containers zijn gepland en de laan met bomen. Gebruikelijk is om het boomgat van de te planten boom uit te graven dan wel archeologisch te begeleiden, een arbeidsintensieve werkwijze met meestal een gering archeologisch resultaat. Aangezien het doel van het archeologisch onderzoek ter plaatse met name gelegen is in het in kaart brengen van de (middeleeuwse) grachten en waterlopen op het terrein wordt geadviseerd een werkput aan te leggen ter hoogte van de (wortelvoet van de) rij bomen om de exacte ligging dan wel overlap van de waterlopen inzichtelijk te krijgen.

De geplande bebouwing overlapt aan de noordzijde met het gebied dat naar aanleiding van het vooronderzoek is aangewezen als archeologisch behoudenswaardig. Om de oude waterloop inzichtelijk te krijgen wordt geadviseerd om dit gebied op te graven.

Het totaal aantal vierkante meters bedraagt 136 m2 (gebouw + vuilcontainers) en 60 m2 (bomenrij). Met dien verstande dat binnen de overige delen van het terrein geen verstoring zal plaatsvinden dieper dan 19 m + NAP.

Daarnaast dient bij het afgeven van een omgevingsvergunning de wettelijke meldingsplicht (ex artikel 53 Monumentwet 1988) kenbaar te worden gemaakt om het documenteren van toevalsvondsten te garanderen: Degene die anders dan bij het doen van opgravingen een zaak vindt waarvan hij weet dan wel redelijkerwijs moet vermoeden dat het een monument is (in roerende of onroerende zin), meldt die zaak zo spoedig mogelijk bij Onze Minister. Deze aangifte dient te gebeuren bij de Rijksdienst voor het Cultureel Erfgoed in Amersfoort. Het dient aanbeveling ook de verantwoordelijk ambtenaar van de gemeente Oost Gelre hiervan direct in kennis te stellen.

afbeelding "i_NL.IMRO.1586.PBLIC101-VG01_0012.png"

4.5 Geluid

De ruimtelijke ordening en het milieubeleid zijn gericht op het handhaven van een goede ruimtelijke kwaliteit van het leefmilieu. Bij nieuwe ontwikkelingen kan daartoe gebruik worden gemaakt van de zgn. milieuzonering. Hieruit volgt welke afstanden minimaal moeten worden aangehouden tussen inrichtingen cq. activiteiten en woningen. Dat dient een tweeledig doel:

  • het beperken van hinder bij omwonenden;
  • borgen van voldoende geluidruimte voor inrichtingen.

Om dit te waarborgen is door Adviesburo VanderBoom een akoestisch onderzoek uitgevoerd. In dit onderzoek is onderzocht of aan de eisen uit de VNG-brochure 'bedrijven en milieuzonering 2009' is voldaan. Daartoe zijn de activiteiten gemodelleerd en wordt de geluidbelasting op de omgeving berekend en getoetst aan de richt- of streefwaarde van 50 dB(A) voor woon-werkgebieden. De onderzoeken hebben geresulteerd in een akoestisch rapport met nummer 14-204 van 18 november 2014.

In het rapport wordt geconcludeerd dat de inrichting voldoet aan de voorkeursgrenswaarden die gelden voor woon-werk gebieden. Deze waarden sluiten aan bij de grenswaarden zoals gesteld in het Activiteitenbesluit. Het akoestisch rapport is als bijlage bijgevoegd.

4.5.1 Handboek bedrijven en milieuzonering

Met behulp van de VNG-brochure Bedrijven en milieuzonering is bekeken of de gewenste ontwikkeling kan voldoen aan de richtafstanden die nodig zijn om geen overlast te ervaren van de activiteiten in en om de inrichting. Een Welkoop-winkel is te scharen onder de noemer 'Bouwmarkten, tuincentra, hypermarkten', zoals aangegeven in voornoemde brochure. In de brochure is een richtafstand aangegeven van 30 m ten opzichte van gevoelige objecten zoals woningen om o.a. geluidsoverlast te voorkomen. De dichtstbijzijnde woningen zijn gelegen op minimaal 30 meter van het op te richten gebouw. Hiermee wordt voldaan aan de richtafstand zoals aangegeven in de brochure om (geluids)overlast van de voorgenomen activiteiten te voorkomen.

4.5.2 Wegverkeerslawaai

Ingevolge de Wet geluidhinder (Wgh) dient bij een ruimtelijke planontwikkeling ter waarborging van een akoestisch goed woon- en leefklimaat in verblijfsobjecten rekening te worden gehouden met het aspect wegverkeerslawaai. Op basis van de Wet geluidhinder (Wgh) hebben alle wegen een geluidzone met uitzondering van wegen waar een maximum snelheid van 30 km/uur geldt.

Het te ontwikkelen object is geen object die ingevolge de Wet geluidhinder bescherming behoeft. Het wegverkeerslawaai levert dus geen belemmeringen voor de geplande planontwikkeling.

4.6 Verkeer en parkeren

Verkeersaantrekkende werking

Het plangebied wordt ontsloten via de Carel Looierstraat. Zowel auto's, vrachtauto's, fietsers, voetgangers en invaliden maken gebruik van de aan te leggen inrit aan de Carel Looierstraat. Het winkel concept heeft, net als tuincentra en bouwcentra, een redelijk aantrekkende werking.

Naar verwachting, en gebaseerd op ervaringscijfers, worden in de inrichting per etmaal maximaal 3 vrachtwagens en 200 personen- cq. bestelauto's verwacht. De vrachtauto's komen allen in de dagperiode van 07.00 uur tot 19.00 uur. De personen- en bestelauto's komen voor 75% in de dagperiode en de overige 25% in de avondperiode (koopavond) van 19.00 uur tot en met 23.00 uur.

Gemiddeld wordt er per uur in de dagperiode ongeveer 20 personen- cq. bestelauto's verwacht. In de avondperiode (koopavond) ongeveer 17 per uur.

De vrachtwagens komen via de Esstraat en de Hagenstraat in de Carel Looierstraat en rijden direct de inrit naar de winkel op. Bij het weer wegrijden worden de vrachtwagens geacht rechtsaf te slaan richting Hagenstraat en Esstraat. Door middel van een aangepast profiel voor de in-, uitrit, waarbij eigenlijk alleen rechtsafslaan mogelijk is (voor vrachtwagens), en verkeersborden zal dit worden bewerkstelligd.

Parkeren

Parkeren zal plaatsvinden op eigen terrein. Hiervoor worden 27 parkeerplaatsen aangelegd en 1 invalideparkeerplaats. Gezien de gegevens dat er gemiddeld per uur 20 personen- cq. bestelauto's komen en, indien ze allemaal tegelijk zouden aankomen, is er voldoende parkeergelegenheid ten behoeve van de inrichting beschikbaar.

4.7 Luchtkwaliteit

De luchtkwaliteit is afhankelijk van de mate van verontreiniging door diverse luchtverontreinigende stoffen waarbij de voornaamste bronnen van luchtverontreiniging het wegverkeer, industriële bedrijven en de landbouw zijn. Deze stoffen zijn zwaveldioxide (SO2), stikstofdioxide (NO2), lood, koolmonoxide (CO), fijn stof (PM10), en benzeen (C6H6) Vanuit Europese richtlijnen wordt aangegeven welke luchtkwaliteitsnormen voor deze stoffen gelden. In Nederland zijn deze richtlijnen sinds 15 november 2007 geïmplementeerd in de Wet milieubeheer middels een wetswijziging van hoofdstuk 5 (milieukwaliteitseisen) titel 5.2 Luchtkwaliteitseisen, beter bekend als de Wet Luchtkwaliteit.

Artikel 5.16 lid 1 en 2 van de Wet milieubeheer geeft aan dat bestuursorganen bevoegdheden of wettelijke voorschriften die betrekking hebben op de luchtkwaliteit kunnen uitoefenen of toepassen, tenzij:

  • 1. het aannemelijk is gemaakt dat het uitoefenen van deze bevoegdheden niet leidt tot het overschrijden, of tot het op of na het tijdstip van ingang waarschijnlijk overschrijden, van een in bijlage 2 van de Wet luchtkwaliteit opgenomen grenswaarde;
  • 2. het aannemelijk is gemaakt dat de concentratie in de buitenlucht van de desbetreffende stof als gevolg van die uitoefening of toepassing per saldo verbetert of ten minste gelijk blijft of bij een beperkte toename van de concentratie van de desbetreffende stof, door een met die uitoefening of toepassing samenhangende maatregel of een door die uitoefening of toepassing optredend effect, de luchtkwaliteit per saldo verbetert;
  • 3. het aannemelijk is gemaakt dat die uitoefening of toepassing niet in betekenende mate bijdraagt aan de concentratie in de buitenlucht van een stof waarvoor in bijlage 2 een grenswaarde is opgenomen;
  • 4. de uitoefening dan wel toepassing is genoemd of beschreven in, dan wel betrekking heeft op, een ontwikkeling of voorgenomen besluit welke is genoemd of beschreven in, dan wel past binnen of in elk geval niet in strijd is met een op grond van artikel 5.12 lid 1 of artikel 5.13 lid 1 vastgesteld programma.

De hierboven aangegeven grenswaarden zijn in de onder staande tabel aangegeven

Stof   Grenswaarde  
SO2   350 µg/m³ als uurgemiddelde concentratie, waarbij geldt dat deze maximaal 24 maal per kalenderjaar mag worden overschreden  
  125 µg/m³ als 24 uurgemiddelde concentratie, waarbij geldt dat deze maximaal 3 maal per kalenderjaar mag worden overschreden  
NO2   200 µg/m³ als uurgemiddelde concentratie, waarbij geldt dat deze maximaal 18 maal per kalenderjaar mag worden overschreden  
  40 µg/m³ als jaargemiddelde concentratie, uiterlijk op 1 januari 2010  
PM10   40 µg/m³ als jaargemiddelde concentratie  
  50 µg/m³ als 24 uurgemiddelde concentratie, waarbij geldt dat deze maximaal 35 maal per kalenderjaar mag worden overschreden  
Lood   0,5 µg/m³ als jaargemiddelde concentratie  
CO   10.000 µg/m³ als 8 uursgemiddelde concentratie  
C6H6   10 µg/m³ tot 1-1-2010 en 5 µg/m³ na 1-1-2010 als jaargemiddelde concentratie  

Het Besluit niet in betekenende mate bijdragen (luchtkwaliteitseisen):

Dit Besluit NIBM, legt vast wanneer een project niet in betekenende mate bijdraagt aan de concentratie van een bepaalde stof. Dat is het geval wanneer aannemelijk is dat het project een toename van de concentratie van fijn stof (PM10) of stikstofdioxide (NO2) veroorzaakt die niet meer bedraagt dan 3% van de jaargemiddelde concentratie van die stof. Dit komt overeen met een toename van maximaal 1,2 microgram/m3 voor zowel PM10 als NO2. De systematiek voor het bepalen of een project NIBM is voor het grootste gedeelte geregeld in de Regeling niet in betekende mate bijdragen (luchtkwaliteitseisen).

De Regeling niet in betekenende mate bijdragen (luchtkwaliteitseisen).

Deze Ministeriële Regeling, verder aan te duiden als de Regeling NIBM, geeft voor een aantal categorieën van projecten een - getalsmatige - invulling aan de NIBM-grens. Het gaat ondermeer om woningbouw- en kantoorprojecten en enkele soorten van inrichtingen (bijv. emplacementen, kassen en andere landbouwinrichtingen). Als een project binnen de - getalsmatige - begrenzing van de Regeling NIBM valt, dan is geen verdere toetsing aan de 3% grens en de grenswaarden nodig en kan doorgaan zonder dat extra maatregelen worden genomen. Voor woningbouw is het huidige 3% criterium 1500 woningen (netto) bij minimaal 1 ontsluitingsweg en 3000 woningen bij minimaal 2 ontsluitingswegen met een gelijkmatige verkeersverdeling.

De voorgenomen ontwikkeling aan de Carel Looierstraat heeft een redelijk aantrekkende werking waardoor er extra verkeersbewegingen ten opzichte van de huidige verkeersbewegingen zijn te verwachten. In het akoestsich rapport is aangegeven dat er per etmaal ongeveer 200 personen- en bestelauto's in de inrichting zijn te verwachten waarvan ongeveer 75% in de dagperiode. Dit wil zeggen dat er 400 verkeersbewegingen extra ten opzichte van de huidige verkeersbewegingen zijn.

De Hagenstraat is een toegangs- en uitgangsweg naar het centrum en aan te duiden als een parkeerroutestraat. Aan het eind van de Hagenstraat kan het verkeer zich opsplitsen. Dit wil ook zeggen dat van twee kanten het verkeer uit het centrum bij elkaar komt en via de Hagenstraat wordt weggeleid. De Hagenstraat is dan ook aan te merken als een representatieve straat voor de verkeersbewegingen in de omliggende straten.

In 1999 hebben in de Hagenstraat voor het laatst verkeerstellingen plaatsgevonden. De gemiddelde werkdag intensiteit bedroeg toen 2.477 motorvoertuigen per etmaal. Uitgaande van een jaarlijkse groei van 1 procent is de huidige intensiteit geschat op 2.900 motorvoertuigen per etmaal. Dit wil zeggen dat, er van uitgaande dat de 200 motorvoertuigen 'nieuwe' voertuigen zijn dus bovenop de reeds aanwezige motorvoertuigen komen, dan zal in 2015 het aantal motorvoertuigen 3.100 per etmaal bedragen. Deze 200 'extra' motorvoertuigen bedragen dan 6,9% van het totale aantal motorvoertuigen. Dit aantal is dermate gering ten opzichte van het huidige aantal motorvoertuigen dat in dit geval sprake is van 'niet in betekenende mate bijdragen'. Een uitvoerig onderzoek naar de luchtkwaliteit is dan ook niet noodzakelijk.

Er is geen sprake van ontoelaatbare luchtverontreiniging als gevolg van de voorgenomen ontwikkelingen aan de Carel Looierstraat en Hagenstraat te Lichtenvoorde.

4.8 Externe veiligheid

Het externe veiligheidsbeleid in Nederland is gericht op het verminderen en beheersen van risico's van activiteiten voor de omgeving (mens en milieu). Het gaat hierbij om de risico's die verbonden zijn aan opslag, vervoer en gebruik van gevaarlijke stoffen.

Het Besluit Externe Veiligheid Inrichtingen (BEVI) is op 27 oktober 2004 in werking getreden. Het BEVI heeft als doel zowel individuele als groepen burgers een minimum beschermingsniveau te bieden tegen een ongeval met gevaarlijke stoffen. Het BEVI legt veiligheidsafstanden vast tussen bedrijven die risicovolle activiteiten met gevaarlijke stoffen verrichten (zoals LPG-tankstations en chemische fabrieken) en zogenoemde kwetsbare objecten (zoals woningen en scholen). Tevens beperkt het BEVI het totale aanwezige personen in de directe omgeving van een risicovol bedrijf. In de directe omgeving van het plangebied zijn geen risicovolle bedrijven gevestigd. In de directe omgeving van het plangebied is een Rijksweg (N18) gelegen welke is aangewezen als route voor gevaarlijke stoffen.

Route voor gevaarlijke stoffen

In de nabijheid van de Varssveldseweg (ong.) is de N18 (Twenteroute) gelegen. Dit betreft een doorgaande weg waar vervoer van gevaarlijke stoffen plaatsvindt.

Om te kunnen bepalen of het vervoer van gevaarlijke stoffen over een bepaalde route voldoet aan de externe veiligheidsnormen, moeten het plaatsgebonden risico (PR) en het groepsrisico (GR) worden berekend. De circulaire 'Risiconormering vervoer gevaarlijke stoffen' is hiervoor het toetsingskader.

De normen, genoemd in de circulaire, gaan alleen over de bescherming van personen die in de omgeving van infrastructuur dan wel inrichtingen verblijven. Zij heeft geen betrekking op de bescherming van verkeersdeelnemers of werknemers. Hierop is veelal de term 'interne veiligheid' en 'arbeidsveiligheid' van toepassing. Wel spelen de begrippen 'kwetsbaar object' en 'beperkt kwetsbaar object' een rol bij de toetsing van het PR en het GR.

De voorgenomen ontwikkeling wordt in de cirulaire aangemerkt als een 'beperkt kwetsbaar object' (winkels). Voor de ontwikkeling geldt dan ook dat aan de richtwaarde PR 10-6 moet worden voldaan. Bij de algehele herziening van het bestemmingsplan Bedrijventerreinen Oost Gelre uit 2013 is een Externe veiligheidsscan opgesteld waarin ook het vervoer van gevaarlijke stoffen in is meegenomen. In deze scan is geconcludeerd dat de N18 geen 10-6 contour heeft. Dit wil zeggen dat het plangebied niet in de risicocontour is gelegen voor zowel de PR als de GR. Het deel van de Externe veiligheidsscan zoals hierboven is genoemd, wat betrekking heeft op de transportroutes is als bijlage bijgevoegd.

Het plaatsgebonden risico en het groepsrisico vormen geen belemmeringen voor de vestiging van de Welkoop winkel.

afbeelding "i_NL.IMRO.1586.PBLIC101-VG01_0013.png"

Risicokaart plangebied en directe omgeving

afbeelding "i_NL.IMRO.1586.PBLIC101-VG01_0014.png" afbeelding "i_NL.IMRO.1586.PBLIC101-VG01_0015.png"

Hoofdstuk 5 Economische en maatschappelijk uitvoerbaarheid

5.1 Haalbaarheid en exploitatieplan

Met het voorliggende plan wordt de oprichting van een bedrijfsgebouw mogelijk gemaakt. De gemeente Oost Gelre is eigenaar van de grond en zal een deel van het perceel onder erfpacht in gebruik geven aan verzoeker. De kosten voor de ontwikkeling liggen onder de drempelwaardes zoals bepaald in de Besluit ruimtelijk ordening, waardoor er geen exploitaiteplanplicht is.

De economische uitvoerbaarheid van het plan is gewaarborgd. De exploitatie van de winkel biedt ruimte dat een marktconforme grondprijs kan worden opgebracht.

5.2 Maatschappelijke uitvoerbaarheid

5.2.1 Informatie

Op 13 november 2014 heeft er een informatieavond plaatsgevonden voor de omwonenden van het plangebied. Tijdens deze avond hebben de omwonenden aandachtspunten naar voren gebracht die, voor zover mogelijk, in de omgevingsvergunning zijn verwerkt.

5.2.2 Inspraak

Voor het plan wordt de uitgebreide procedure doorlopen zoals bepaald in de Wet algemene bepalingen omgevingsrecht. Dit betekent dat de ontwerp omgevingsvergunning (projectafwijking) voor een periode van zes weken ter inzage wordt gelegd. Een ieder kan gedurende deze periode een zienswijze indienen. Het ontwerp heeft op grond van artikel 3.8 van de Wet ruimtelijke ordening gedurende zes weken ter inzage gelegen van 30 december 2014 tot en met 9 februari 2015. Er zijn een vijftal zienswijzen ingediend. Deze zienswijzen zijn verwoord en beantwoord in de 'Nota Inhoud en beantwoording zienswijzen'.

5.2.3 Artikel 3.1.1.-overleg

In artikel 6.18 van het Besluit Omgevingsrecht is voor de projectafwijking (artikel 2.12. eerste lid a, onder 3) overeenkomstig artikel 3.1.1. van het Besluit ruimtelijke ordening (Bro) van toepassing. Op grond van artikel 3.1.1 Bro dient bij de voorbereiding van een bestemmingsplan overleg te worden gevoerd met de besturen van betrokken gemeenten en waterschappen en met die diensten van provincie en Rijk die betrokken zijn bij de zorg voor de ruimtelijke ordening of belast zijn met de behartiging van belangen welke in het plan in het geding zijn. In het tweede lid van artikel 3.1.1 Bro is aangegeven dat in bepaalde gevallen van het vooroverleg kan worden afgezien.

De ontwikkeling op deze lokatie wordt beschouwd als een inbreidingslokatie. De ontwikkeling is een lokale ontwikkeling waarbij de provincie heeft aangegeven bij lokale ontwikkelingen geen vooroverleg te willen voeren.

Het waterschap Rijn en IJssel heeft belang bij een goede behandeling van het afval- en hemelwater. Dit is in dit plan gewaarborgd door de opslag en afvoer van hemelwater en afvalwater. Vooroverleg in het kader van artikel 3.1.1. Bro lijkt dan ook niet noodzakelijk.

Beide diensten kunnen reageren op het ontwerpplan. Beide diensten hebben hierop geen reactie ingediend.