direct naar inhoud van Ruimtelijke onderbouwing
Plan: Omgevingsvergunning woningsplitsing Tankweg 13 Lievelde
Status: vastgesteld
Plantype: omgevingsvergunning
IMRO-idn: NL.IMRO.1586.PBBUI2003-VG01

Ruimtelijke onderbouwing

Hoofdstuk 1 Algemene gegevens bestemmingsplan

Omgevingsvergunning woningsplitsing Tankweg 13 Lievelde  
 
Inlichtingen:  
Afdeling Ruimtelijke Ontwikkeling en Beheer  
de heer N. Rondeel  
Telefoonnummer 0544-393482  

Hoofdstuk 2 Ruimtelijk kader

2.1 Aanleiding

Op 30 oktober 2017 is bij de gemeente Oost Gelre een aanvraag om omgevingsvergunning ingekomen voor woningsplitsing aan de Tankweg 13 te Lievelde. De bestaande voormalige boerderij wordt geheel geschikt gemaakt voor bewoning en gesplitst in twee wooneenheden dus voor twee huishoudens. Het perceel wordt hierbij landschappelijk ingepast door middel van erfinpassing.

2.2 Ligging en begrenzing

De voormalige boerderij is gelegen in het buitengebied van de gemeente Oost Gelre ten noord-westen van de bebouwde kom Lievelde. De directe omgeving is te omschrijven als een mix tussen woningen, agrarische bedrijven en recreatieve bedrijven. Aan de voorzijde van de woning is de spoorlijn Winterswijk - Zutphen gelegen.

afbeelding "i_NL.IMRO.1586.PBBUI2003-VG01_0001.png"

Omgeving plangebied

afbeelding "i_NL.IMRO.1586.PBBUI2003-VG01_0002.png"

Omgeving plangebied

afbeelding "i_NL.IMRO.1586.PBBUI2003-VG01_0003.png"

Tankweg 13 Lievelde

2.3 Planbeschrijving

In dit hoofdstuk worden de uitgangspunten van het voorliggende plan beschreven.

2.3.1 Aanleiding

De voormalige boerderij Tankweg 13 te Lievelde wordt geschikt gemaakt voor de bewoning van twee huishoudens. Hiervoor vindt een interne verbouwing plaats en zal de boerderij worden gesplitst in twee wooneenheden. De vorm van de boerderij wordt niet gewijzigd.

 

2.3.2 Vigerende bestemde situatie

Het plangebied is in het geheel gelegen in het bestemmingsplan 'Buitengebied Oost Gelre 2011' met bijbehorende 'Reparatieplan Buitengebied Ooste Gelre' en 'Buitengebied, Reparatieplan 2016'. Het perceel heeft de bestemming 'Wonen'. Daarnaast geldt de dubbelbestemming 'Waarde - Archeologische verwachtingswaarde 2' en de gebiedsaanduiding 'overige zone - groene ontwikkelingszone'. Op het perceel is 1 woning bij recht toegestaan.

afbeelding "i_NL.IMRO.1586.PBBUI2003-VG01_0004.png"

Plankaart uit vigerend bestemmingsplan

2.3.3 Gewenste situatie

De bestaande voormalige boerderij wordt geheel geschikt gemaakt voor bewoning en gesplitst in twee wooneenheden dus voor twee huishoudens. Bij elke wooneenheid mag 150 m2 aan bijbehorende bouwwerken aanwezig zijn. Op het perceel bevinden zich bestaande bijbehorende bouwwerken met een gezamenlijke oppervlakte van ongeveer 315 m2. Dit is inclusief de L-vormige bebouwing aan de zijkant van de woning. Bestaande bebouwing op het perceel is toegestaan. Nu de maximale oppervlakte aan bijbehorende bouwwerken is bereikt mag er geen nieuwe bebouwing gerealiseerd worden. Het perceel wordt landschappelijk ingepast door middel van erfinpassing.

De woningsplitsing, waarbij een nieuwe wooneenheid wordt gerealiseerd, past niet in de regels van het geldende bestemmingsplan met bijbehorende Reparatieplannen. Via een procedure om omgevingsvergunning (projectafwijking Wabo) of een herziening van het bestemmingsplan kan een extra wooneenheid op het perceel worden toegestaan. Middels het indienen van een aanvraag om omgevingsvergunning heeft verzoeker aangegeven een procedure om projectafwijking Wabo conform artikel 2.12. lid 1 onder a sub 3 van de Wet algemene bepaling omgevingsrecht (Wabo) te willen volgen, zodat medewerking kan worden verleend aan de beoogde woningsplitsing.

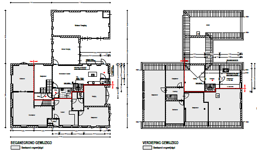
De gewenste situatie ziet er als volgt uit:

afbeelding "i_NL.IMRO.1586.PBBUI2003-VG01_0005.png"

Gewenste woningsplitsing

afbeelding "i_NL.IMRO.1586.PBBUI2003-VG01_0006.png"

afbeelding "i_NL.IMRO.1586.PBBUI2003-VG01_0007.png"

Aanzichten woningen

2.3.4 Landschappelijke inpassing

Ten behoeve van de ruimtelijke ontwikkeling dient er landschappelijke inpassing plaats te vinden. Verzoeker heeft een landschapsplan ingediend waarbij het perceel landschappelijk wordt ingepast. Dit landschapsplan is door de gemeente goedgekeurd en als bijlage bijgevoegd.

2.3.5 Stedenbouw en welstand

De uitstraling van de woning wordt iets gewijzigd. De woning wordt niet verplaatst. Stedenbouw en welstand zijn akkoord.

Hoofdstuk 3 Beleidskader

3.1 Algemeen

Voor het gebied geldt een groot aantal juridische- en beleidskaders. In dit hoofdstuk worden de belangrijkste samengevat die relevant zijn voor het plangebied.

3.2 Europese wetgeving

3.2.1 Natura 2000

Op internationaal niveau zijn diverse regelingen van kracht die de duurzame instandhouding van habitats en soorten tot doel hebben. De meest verplichtende regeling van de Europese Unie is de Europese natuurbeschermingsregelgeving rond Natura 2000-gebieden. Deze regels zijn verder uitgewerkt in de Natuurbeschermingswet en de aanwijzing van zogenaamde Natura 2000-gebieden. In een straal van 3 kilometer rondom het plangebied is geen Natura 2000-gebied gelegen. Het plan past daarmee binnen Europese wetgeving.

3.3 Nationaal beleid

3.3.1 Structuurvisie Infrastructuur en Ruimte (SVIR)

De Structuurvisie Infrastructuur en Ruimte bevat de visie van het kabinet op de ruimtelijke ontwikkeling van Nederland tussen nu en 2040. Met deze visie trekt de Rijksoverheid een beleidslijn door die al met de Nota Ruimte werd ingezet, namelijk een verdere concentratie (voor wat betreft beleidsbemoeienis en investeringen) op de ruimtelijke ordening van de hoofdinfrastructuur van Nederland, te weten de havens, Schiphol, belangrijke wegen, spoorwegen, waterwegen en andere netwerken die van wezenlijk belang zijn voor het economisch functioneren van het land. Daaronder vallen verder industriële en agrarische complexen van nationaal belang. Verder wil het Rijk zich concentreren op de maatregelen die noodzakelijk zijn om het land te beschermen tegen de zee.

Voor verstedelijking en economische activiteiten gaat het Rijk nog steeds uit van de bundelingsstrategie. Daarbij wordt voldoende aanbod van ruimte gereserveerd voor stedelijke functies en bij de vraag aangesloten. Er wordt optimaal gebruik gemaakt van de ruimte die in het bestaande bebouwde gebied aanwezig is en er wordt ruimte geboden aan gemeenten om te kunnen bouwen voor de eigen bevolkingsgroei.

De provincies en gemeenten zijn meer dan voorheen verantwoordelijk voor de ruimtelijke ordening met betrekking tot verstedelijking, de afbakening van de bebouwde kommen en het landelijk gebied en het veilig stellen en de verschillende waarden van het landelijk gebied.

In de Structuurvisie is een aantal nationale belangen benoemd. Voor een planologische procedure is het belang 'zorgvuldige afweging en transparante besluitvorming bij alle ruimtelijke en infrastructurele besluiten' van toepassing. Deze omgevingsvergunning doorloopt in afwijking van het bestemmingsplan de gebruikelijke procedure in de gemeente. Daarbij wordt een ieder in de gelegenheid gesteld een zienswijze op een omgevingsvergunning in te dienen.

De overige nationale belangen zijn voor dit plan niet van toepassing omdat het om belangen op een hoger schaalniveau dan het lokale schaalniveau gaat.

3.4 Provinciaal beleid

3.4.1 Omgevingsvisie Gelderland

Op 9 juli 2014 heeft Provinciale Staten van Gelderland de Omgevingsvisie Gelderland vastgesteld. De meest recente geconsolideerde versie is van 28 juni 2017.

De provincie kiest er in deze Omgevingsvisie voor om vanuit twee hoofddoelen bij te dragen aan gemeenschappelijke maatschappelijke opgaven. Deze zijn:

  • Een duurzame economische structuur;

Een gezonde economie met een aantrekkelijk vestigingsklimaat vraagt om krachtige steden en vitale dorpen met voldoende werkgelegenheid. Het verbeteren van de economische structuur is een belangrijke opgave voor de Gelderse samenleving. Er zijn veel kansen om de economische structuur te verbeteren. De provincie wil samen met haar partners de kansen benutten, mét oog voor de unieke kwaliteiten van Gelderland. Het streven is om de concurrentiekracht van Gelderland te vergroten door een duurzame versterking van de ruimtelijk-economische structuur. Concreet betekent dit dat bestaande en nieuwe bedrijven kansen moeten krijgen;

  • Het borgen van de kwaliteit en veiligheid van onze leefomgeving.

Een aantrekkelijke leefomgeving vergt een goede kwaliteit en beleving van natuur en landschap in Gelderland, een gezonde en veilige leefomgeving en een robuust bodem- en watersysteem. De provincie zet daarom in op het waarborgen en op het verder ontwikkelen van die kwaliteiten van Gelderland.

Dit houdt onder meer in: ontwikkelen met kwaliteit, recht doen aan de ruimtelijke, landschappelijke en cultuurhistorische kwaliteiten van de plek. Daarnaast moet de kwaliteit van het landschap behouden en versterkt worden. In Hoofdstuk 4 Onderzoeksresultaten wordt hier nader op ingegaan.

3.4.2 Omgevingsverordening Gelderland

Provinciale Staten hebben 24 september 2014 de Omgevingsverordening vastgesteld. In de Omgevingsverordening staan de regels die horen bij de Omgevingsvisie. De regels uit de Omgevingsverordening stellen de provinciale belangen veilig omdat bestemmingsplannen voor nieuwe ruimtelijke ontwikkelingen hieraan moeten voldoen. De meest recente versie van de omgevingsverordening is een gecondoliseerde versie van 10 juli 2017.

In artikel 2.2.1.1. van de verordening is het volgende gesteld over nieuwe woningen:

In een bestemmingsplan worden nieuwe woonlocaties en de daar te bouwen woningen slechts toegestaan wanneer dit past in het vigerende door Gedeputeerde Staten vastgestelde Kwalitatief Woonprogramma successievelijk de door Gedeputeerde Staten vastgestelde kwantitatieve opgave wonen voor de betreffende regio.

Het voorliggende plan voldoet aan de Omgevingsverordening. De gemeente Oost Gelre heeft op basis van de afspraken met de provincie en de regio een planningslijst voor woningbouwprojecten vastgesteld. In deze lijst zijn voor 2017 en vooralsnog ook voor 2018 woningen voor woningsplitsing gereserveerd. De woning die met deze omgevingsvergunning mogelijk worden gemaakt past binnen deze reservering.

3.5 Gemeentelijk beleid

3.5.1 Vigerend bestemmingsplan

Het plangebied is gelegen in het bestemmingsplan 'Buitengebied Oost Gelre 2011'. Dit plan is voor een deel herzien in het 'Reparatieplan Buitengebied Oost Gelre' en 'Buitengebied, Reparatieplan 2016' . Deze laatste herziening heeft in dit geval betrekking op de planregels. Het plangebied heeft de bestemming 'Wonen'. Bij recht laat het bestemmingsplan 1 woning toe.

Op het perceel ligt de dubbelbestemming "Waarde - archeologische verwachtingswaarde - 2". Dit houdt in dat het gebied een lage archeologische verwachtingswaarde heeft. Bij bodemingrepen die dieper gaan dan 30 centimeter én een oppervlakte beslaan van meer dan 2.500 m2 is het verplicht een archeologisch onderzoek uit te voeren. Nu er geen graafwerkaamheden plaatsvinden is een archeologisch onderzoek niet noodzakelijk.

Daarnaast geldt nog de gebiedsaanduiding 'overige zone - groene ontwikkelingszone'. In deze zones, voorheen bekent als EHS - verbindingszones, wil de provincie de ontwikkeling van functiecombinaties van natuur met andere functies mogelijk maken wanneer deze substantieel bijdragen aan de versterking van de ecologische samenhang van de natuur van het Gelders Natuurnetwerk (GNN) en van de aanwezige landschappelijke en cultuurhistorische kwaliteiten. Woningsplitsing vindt plaats in de bestaande boerderij. De bebouwing op het perceel zal niet toenemen maar hooguit worden vervangen. Hierdoor zal er geen aantasting zijn van de ecologische samenhang van de natuur. Deze kan worden versterkt door het toepassen van landschappelijke inpassing wat bij deze ontwikkeling door middel van een ingediend landschappelijk inpassingsplan is aangetoond. In hoofdstuk 4 wordt de landschappelijke inpassing nader omschreven.

3.5.2 Landschapsontwikkelingsplan 'Groen licht voor het landschap'

Het Landschapsontwikkelingsplan is een beleidsnota van de gemeente waarin het landschapsbeleid is vastgelegd. Het Landschapsontwikkelingsplan (LOP) biedt de mogelijkheid de landschappelijke eenheid en kwaliteit in de gemeente te versterken en toch ruimte te bieden aan bestaande bedrijven en nieuwe ontwikkelingen in de toekomst. In het LOP zijn elf landschapsensembles benoemd. Elk landschapsensemble kenmerkt zich door eigen karakteristieke landschapselementen. Het zijn meestal elementen die hier historisch gezien thuis horen, en soms varianten daarop die aansluiten bij het hedendaagse gebruik van het landschap. Die visie in het LOP is in hoofdlijnen: 'Groen licht voor het landschap, maar voor wat hoort wat!'

Het plangebied ligt in het landschapsensemble 'Lievelder Krans'. Hierbij geldt het motto: 'vang de dynamiek in de dorpsranden en om de es op door elke ingreep in het landschap te verevenen met een kwaliteitsverbetering op de plek en de omgeving daarvan: voor wat hoort wat !'.

In het Visiedeel van het landschapsontwikkelingsplan is aangegeven dat Lievelde in de dynamische zone valt. Voor die zone geldt dat ontwikkelingen op het gebied van wonen en werken in het buitengebied mogelijk zijn, maar dat dit altijd op een gebiedseigen schaal en met gebiedseigen vormen en beplantingen dient te geschieden: de "voor-wat-hoort-wat-benadering". Deze benadering kan o.a. toegepast worden bij vrijkomende agrarische bebouwing. Als nieuwe functies een verdichting in het landschap tot gevolg hebben, is dat hier in veel gevallen acceptabel, maar er zal voldoende ruimte moeten blijven om geen stadslandschap te worden. Clusters van nieuwe woningen en bedrijfjes in het groen zijn goed denkbaar. Het bestaande landschap moet daarbij als inspiratiebron dienen.

Op te poetsen parels:

  • de vernieuwende en verbredende ondernemingen
  • de grote open es met de lindelaan
  • de zuideres aan de dorpsrand
  • Lievelderveld
  • de restanten van circumvallatielinie, o.a. Engelse schans, Landweer
  • plekken om te verpozen eventueel met bankjes
  • verschraalde bermen bij erf en typerende erfbeplantingen
  • karakteristieke bestaande beplantingen bijv. op steilranden
  • boerenbosjes, soms met hulst

Te behouden en stimuleren landschapselementen:

  • kranspaden om de essen: eiken, linden en ook fruit bij erven
  • esrandpaden: steilrandbeplantingen eventueel met zandpad erlangs
  • lindenlaan en lindebrinken op en om de essen
  • boerenlanen; losse lanen met menging van eik en berk, zwarte els (nat) en es. Soms ook populier en wilg
  • boerenhagen van meidoorn, beuk en hazelaar
  • overlopers kunnen bestaan uit openbare stroken langs kavelgrenzen met daarin heischrale vegetatie in brongebied en verder benedenloops met beekbegeleidende beplanting.

Deze uitgangspunten zijn de basis geweest voor het opgestelde landschappelijk inpassingplan voor het plangebied. De geschiedenis van het landschap heeft hierbij als basis gediend voor de investeringen in de ruimtelijke kwaliteit. Het erf wordt op een dusdanige manier ingepast rekening houdend met de karakteristieke lijnen en steilranden van de open es.

Het landschappelijk inpassingsplan wordt hierna nog verder omschreven en is als bijlage bijgevoegd.

Hoofdstuk 4 Onderzoeksresultaten

4.1 Bodem

Bij een bestemmingsplanprocedure moet worden nagegaan of de bodemkwaliteit de planontwikkeling in de weg staat. Aan de hand van de beschikbare bodeminformatie moet onderbouwd worden wat de verwachte bodemkwaliteit is, of bodemonderzoek nodig is en of er maatregelen nodig zijn om de bodem geschikt te maken voor het beoogde gebruik.

Wanneer de ontwikkeling betrekking heeft op een zogenaamde verblijfsruimte moet op grond van de Bouwverordening/Woningwet een bodemonderzoek worden verricht om uit te sluiten dat sprake is van enig risico voor de gebruikers van het bouwwerk.

Wanneer de ontwikkeling betrekking heeft op bedrijfsmatige activiteiten die mogelijk de bodem kunnen verontreinigen, zal een nulsituatie-bodemonderzoek noodzakelijk zijn in het kader van de vergunningverlening voor de omgevingsvergunning.

Door Rouwmaat groep is een verkennend bodemonderzoek op het perceel uitgevoerd. Het daarbij behorende onderzoeksrapport is ter beoordeling voorgelegd aan de Omgevingsdienst Achterhoek. Zij geven aan dat het uitgevoerde bodemonderzoek actueel en de rapportage volledig is. Het onderzoek en de rapportage voldoen aan de gestelde kwaliteitseisen. Met het onderzoek is geen noemenswaardige verontreiniging vastgesteld. Het uitvoeren van nader bodemonderzoek is niet nodig. Geconcludeerd wordt dat de bodemkwaliteit op de onderzochte locatie geschikt is voor het beoogde gebruik. Aan de vergunning hoeven geen bodemspecifieke voorschriften te worden verbonden.

Het uitgevoerde verkennend bodemonderzoek met nummer MT17409 van 15 september 2017 is als bijlage bijgevoegd. Ook het beoordelingsrapport van de Omgevingsdienst Achterhoek is als bijlage bijgevoegd.

4.2 Watertoets

Het waterbeleid van Rijk en provincie is gericht op een veilig en goed bewoonbaar land met gezonde, duurzame watersystemen. In het Waterbeheerplan 2016-2021 van Waterschap Rijn en IJssel staat het beleid beschreven op een drietal hoofdthema's. Voor het thema Veiligheid is bescherming tegen hoog water op de rivieren het speerpunt. Het functioneren van de primaire en regionale waterkeringen staat hierbij centraal. Het thema Watersysteembeheer is gericht op het voorkomen van afwenteling door het hanteren van de drietrapsstrategie 'Vasthouden - Bergen - Afvoeren'. Voor de waterkwaliteit is het uitgangspunt 'stand still - step forward'. Watersysteembenadering en integraal waterbeheer dienen als handvatten voor het benutten van de natuurlijke veerkracht van een watersysteem. Het einddoel is een robuust en klimaatbestendig watersysteem voor de toekomst. Voor het thema Waterketenbeheer streeft Waterschap Rijn en IJssel naar een goed functionerende waterketen waarbij er een optimale samenwerking met de gemeenten wordt nagestreefd.

Ruimtelijke ordening en water zijn onlosmakelijk met elkaar verbonden. Er is meer ruimte nodig voor het waterbeheer van de toekomst. Ook op andere terreinen, zoals recreatie, wonen en landbouw speelt water een centrale rol. Het waterschap wil in het watertoetsproces vroegtijdig meedenken over de rol van het water in de ruimtelijke ontwikkeling en wil samen met de gemeente op zoek naar de bijdrage die water kan leveren aan de verbetering van de leefomgeving.

Thema   Toetsvraag   Relevant  
HOOFDTHEMA'S  
Veiligheid
 
1. Ligt in of binnen 20 meter vanaf het plangebied een waterkering? (primaire waterkering, regionale waterkering of kade)
2. Ligt het plangebied in een waterbergingsgebied of winterbed van een rivier?  
Nee

Nee  
Riolering en Afvalwaterketen   1. Is de toename van het afvalwater (DWA) groter dan 1 m3/uur?
2. Ligt in het plangebied een persleiding van WRIJ?
3. Ligt in of nabij het plangebied een RWZI van het waterschap?  
Nee
Nee
Nee  
Wateroverlast (oppervlaktewater)
 
1. Is er sprake van toename van het verhard oppervlak met meer dan 2500 m2?
2. Is er sprake van toename van het verhard oppervlak met meer dan 500 m2?
3. Zijn er kansen voor het afkoppelen van bestaand verhard oppervlak? 4. In of nabij het plangebied bevinden zich natte en laag gelegen gebieden, beekdalen, overstromingsvlaktes?  
Nee

Nee

Nee
Nee  
Oppervlakte-
waterkwaliteit  
1. Wordt vanuit het plangebied (hemel)water op oppervlaktewater geloosd?   Nee
 
Grondwater-
overlast  
1. Is in het plangebied sprake van slecht doorlatende lagen in de ondergrond?
2. Is in het plangebied sprake van kwel?
3. Beoogt het plan dempen van perceelsloten of andere wateren?  
Nee

Nee
Nee  
Grondwater-
kwaliteit  
1. Ligt het plangebied in de beschermingszone van een drinkwateronttrekking?   Nee  
Inrichting en beheer
 
1. Bevinden zich in of nabij het plangebied wateren die in eigendom of beheer zijn bij het waterschap?
2. Heeft het plan herinrichting van watergangen tot doel?  
Ja

Nee  
Volksgezondheid   1. In of nabij het plangebied bevinden zich overstorten uit het gemengde stelsel?
2. Bevinden zich, of komen er functies, in of nabij het plangebied die milieuhygiënische of verdrinkingsrisico's met zich meebrengen (zwemmen, spelen, tuinen aan water)?  
Nee

Nee  
Natte natuur   1. Bevindt het plangebied zich in of nabij een natte EVZ?
2. Ligt in of nabij het plangebied een HEN of SED water?
3. Bevindt het plangebied zich in beschermingszones voor natte natuur?
4. Bevindt het plangebied zich in een Natura 2000-gebied?  
Ja
Nee
Nee

Nee  
Verdroging   1. Bevindt het plangebied zich in een TOP-gebied?   Nee  
Recreatie   1. Bevinden zich in het plangebied watergangen en/of gronden in beheer van het waterschap waar actief recreatief medegebruik mogelijk wordt?   Nee  
Cultuurhistorie   1. Zijn er cultuurhistorische waterobjecten in het plangebied aanwezig?   Nee  

Uit bovengenoemde watertoetstabel blijkt dat er twee relevante thema's zijn die nader dienen te worden bekeken.

Inrichting en beheer

Het perceel Tankweg 13 is op ruim 100 m gelegen van de dichtstbijzijnde watergang in eigendom van Waterschap Rijn en IJssel. De voorgenomen ontwikkelingen zijn geen belemmering voor het reguliere beheer en onderhoud van dit watersysteem.

Natte natuur

Het plangebied bevindt zich in een groene ontwikkelingszone (voorheen Ecologische Verbindingszone (EVZ)). De beoogde ontwikkelingen zijn geen belemmering voor de EVZ maar versterken juist de ontwikkeling en bescherming van de gewenste natuurwaarden mede door landschappelijke inpassing.

4.3 Natuurwaardenonderzoek

In verband met deze ruimtelijke ontwikkeling is het noodzakelijk om onderzoek uit te voeren naar relevante soorten in het kader van de Wet natuurbescherming. Met name bij sloop van gebouwen is onderzoek noodzakelijk.

Op het perceel vinden geen sloopwerkzaamheden plaats of werkzaamhden waarbij flora en fauna kan worden aangetast. Onderzoek hierna is dan ook niet noodzakelijk.

Wel geldt ten alle tijde de zorgplicht:

Ten aanzien van de ingrepen is nog een algemeen geldende voorwaarde vanuit de Wet natuurbescherming van toepassing: Op basis van de zorgplicht volgens artikel 1.11 van de Wet natuurbescherming dient bij de uitvoering van de werkzaamheden voldoende zorg in acht te worden genomen voor in het wild levende dieren en hun leefomgeving. Dit houdt in dat bij het uitvoeren van werkzaamheden altijd rekening moet worden gehouden met aanwezige planten en dieren. Dieren moeten de gelegenheid hebben om uit te wijken en mogen niet opzettelijk worden gedood.

4.4 Archeologie

Het te ontwikkelen perceel is gelegen in een gebied met een lage archeologische verwachtingswaarde. Dit wil zeggen dat bij bodemingrepen dieper dan 30 cm onder maaiveld en meer dan 2.500 m2 groot er een inventariserend archeologisch onderzoek moet plaatsvinden.

Uit het ingediende bouwplan blijkt dat er geen bodemingrepen plaatsvinden. Op het perceel zijn al wel in het verleden bodemingrepen gepleegd bij oprichting van de gebouwen op het perceel. Een archeologisch onderzoek ter plekke is dan ook niet noodzakelijk. Wel geldt te allen tijde de zorgplicht:

Wel dient bij het afgeven van een omgevingsvergunning de wettelijke meldingsplicht (ex artikel 5.10 Erfgoedwet) kenbaar te worden gemaakt om het documenteren van toevalsvondsten te garanderen: Degene die anders dan bij het verrichten van opgravingen een vondst doet waarvan hij weet dan wel redelijkerwijs moet vermoeden dat het een archeologische vondst betreft, meldt dit zo spoedig mogelijk bij Onze Minister. Deze aangifte dient te gebeuren bij de Rijksdienst voor het Cultureel Erfgoed in Amersfoort. Het dient aanbeveling ook de verantwoordelijk ambtenaar van de gemeente Oost Gelre hiervan direct in kennis te stellen.

4.5 Leefomgeving

4.5.1 Wegverkeerslawaai

Ingevolge de Wet geluidhinder (Wgh) dient bij een ruimtelijke planontwikkeling ter waarborging van een akoestisch goed woon- en leefklimaat in verblijfsobjecten rekening te worden gehouden met het aspect wegverkeerslawaai. Op basis van de Wet geluidhinder (Wgh) hebben alle wegen een geluidzone met uitzondering van wegen waar een maximum snelheid van 30 km/uur geldt. De nieuw te realiseren wooneenheid komt te liggen in de geluidzone van de Tankweg en Ebberinkweg waarvoor een maximale snelheid geldt van 80 km/uur.

In de Wet geluidhinder is aangegeven dat bij ruimtelijke ontwikkelingen dat geheel of gedeeltelijk betrekking heeft op gronden die zijn gelegen in een zone van een weg rekening wordt gehouden met de geluidsbelasting van deze weg op gevels van woningen, van andere geluidgevoelige gebouwen en van geluidsgevoelige terreinen. De daarvoor geldende geluidsbelastingen worden weergegeven in artikel 82 en 100 van de Wet geluidhinder.

De nieuw te realiseren wooneenheid is aan te merken als een geluidgevoelig object. Om de geluidbelasting van het wegverkeer op de Tankweg op de gevel van de nieuwe wooneenheid te bepalen is een indicatieve berekening gemaakt van de mogelijke geluidsbelasting op de gevel(s). Hierbij is uitgegaan van aannames van het aantal motorvoertuigen nu er geen actuele gegevens bekend zijn.

Uit de indicatieve berekeningen is op te maken dat de voorkeursgrenswaarde van 48 dB niet wordt overschreden.

Ebberinkweg is een zandweg en dichter bij de nieuwe wooneenheid gelegen. Het verkeer maakt sporadisch gebruik van deze zandweg. Een berekening voor deze zandweg is niet mogelijk. De verwachting is echter dat, nu het aantal vervoersbewegingen laag zijn, geen vrachtverkeer van deze weg gebruik maakt en de snelheid laag is de geluidsbelasting op de gevel van de nieuwe wooneenheid de voorkeursgrenswaarde van 48 dB niet overschrijd. Daarbij komt ook nog dat de nieuwe wooneenheid grotendeels wordt afgeschermd door de bestaande wooneenheid.

Het wegverkeerslawaai zal dan ook geen belemmeringen opleveren voor de geplande planontwikkeling.

4.5.2 Woon- en leefklimaat

Bekeken is of de gewenste ontwikkeling past in haar omgeving ten opzichte van aanwezige bedrijven en omgekeerd of er sprake zal zijn van een goed woon- en leefklimaat in de nieuwe wooneenheid.

De nieuwe wooneenheid mag geen beperkende factor zijn voor toekomstige ontwikkelingen van omliggende (agrarische)bedrijven. Daarnaast is bekeken of er sprake is van een goed woon- en leefklimaat in nieuwe woning(en).

De beoordeling is uitgevoerd op de onderwerpen 'bedrijven en milieuzonering' en 'geur veehouderij'.

Bedrijven en milieuzonering

In de directe omgeving van het perceel zijn enkele melkrundveehouderijen gelegen. De aangevraagde ontwikkeling vindt plaats buiten de richtafstanden van deze bedrijven (waarbij de richtafstand voor veehouderijen is gecorrigeerd naar de wettelijke minimumafstand van 50 meter). De ontwikkeling werkt daarom op voorhand niet belemmerend voor deze bedrijven. Ook het woon- en leefklimaat ter plaatse van de door woningsplitsing te realiseren woning zelf is hierbij niet in het geding.

Geur veehouderijen

De voorgenomen woningsplitsing vindt plaats op voldoende afstand van de omliggende veehouderijen. De voorgenomen ontwikkeling werkt niet belemmerend voor deze bedrijven. Ook het woon- en leefklimaat op de locatie zelf is hierbij niet in het geding.

De woningsplitsing zal geen nadelige gevolgen hebben voor de omliggende agrarische bedrijven. Ook zal er sprake zijn van een goed woon- en leefklimaat in de nieuwe wooneenheid.

4.6 Luchtkwaliteit

Beoordelingskader

Om een goede luchtkwaliteit in Europa te garanderen heeft de Europese unie een viertal kaderrichtlijnen opgesteld. De hieraan afgeleide Nederlandse wetgeving is vastgelegd in hoofdstuk 5, titel 2 van de Wet milieubeheer. Deze wetgeving staat ook bekend als de Wet luchtkwaliteit.

Luchtkwaliteitseisen vormen onder de Wet luchtkwaliteit geen belemmering voor ontwikkelingen als:

  • er geen sprake is van een feitelijke of dreigende overschrijding van een grenswaarde;
  • een project, al dan niet per saldo, niet tot een verslechtering van de luchtkwaliteit leidt;
  • een project “niet in betekenende mate” bijdraagt aan de luchtverontreiniging.

In de Wet luchtkwaliteit staan onder meer de grenswaarden voor de verschillende luchtverontreinigende stoffen. Met name stikstofdioxide (NO2) en fijn stof (PM10) kunnen in Nederland zorgen voor overschrijding van de grenswaarden. In de praktijk blijft toetsing aan grenswaarden daarom vaak beperkt tot de grenswaarden uit onderstaande tabel.

Stof   Grenswaarde  
NO2   Jaargemiddelde concentratie   40 µg/m3  
  Uurgemiddelde concentratie die 18 x per jaar mag worden overschreden   200 µg/m3  
PM10   Jaargemiddelde concentratie   40 µg/m3  
  Daggemiddelde concentratie die 35 x per jaar mag worden overschreden   50 µg/m3  

De wet voorziet in een planmatige aanpak om de Europese luchtkwaliteitseisen te halen. Daarvoor heeft het rijk het Nationaal Samenwerkingsprogramma Luchtkwaliteit (NSL) opgesteld. Het NSL bevat afspraken om op nationaal, provinciaal en regionaal niveau de gestelde eisen te halen. Daarbij is rekening gehouden met gewenste en geplande ruimtelijke ontwikkelingen.

Onderdeel van de Wet luchtkwaliteit zijn de volgende Besluiten en Regelingen:

  • Besluit en de Regeling niet in betekenende mate bijdragen (luchtkwaliteitseisen);
  • Besluit gevoelige bestemmingen (Luchtkwaliteitseisen);
  • Regeling beoordeling luchtkwaliteit 2007.

Besluit en de Regeling niet in betekenende mate bijdragen (luchtkwaliteitseisen)

Het Besluit niet in betekenende mate bijdragen (nibm) staat bouwprojecten toe wanneer de bijdrage aan de luchtkwaliteit van het desbetreffende project niet in betekenende mate is. Het begrip “niet in betekenende mate” is gedefinieerd als 3% van de grenswaarden uit de Wet milieubeheer. Het gaat hierbij uitsluitend om stikstofdioxide (NO2) en fijn stof (PM10). Toetsing aan andere luchtverontreinigende stoffen uit de Wet luchtkwaliteit vindt niet plaats.

In de Regeling nibm is een lijst met categorieën van gevallen (inrichtingen, kantoor- en woningbouwlocaties) opgenomen die niet in betekenende mate bijdragen aan de luchtverontreiniging. Enkele voorbeelden zijn:

  • woningen: 1500 met een enkele ontsluitingsweg;
  • woningen: 3000 met twee ontsluitingswegen;
  • kantoren: 100.000 m2 bruto vloeroppervlak met een enkele ontsluitingsweg.

Als een ruimtelijke ontwikkeling niet genoemd staat in de Regeling nibm kan deze nog steeds niet in betekenende mate bijdragen. De bijdrage aan NO2 en PM10 moet dan minder zijn dan 3% van de grenswaarden. Met grenswaarden voor beide stoffen van 40 µg/m3 komt dit neer op een bijdrage van 1,2 µg/m3.

Besluit gevoelige bestemmingen (luchtkwaliteitseisen)

Dit besluit is opgesteld om mensen die extra gevoelig zijn voor een matige luchtkwaliteit aanvullend te beschermen. Deze “gevoelige bestemmingen” zijn scholen, kinderdagverblijven en verzorgings-, verpleeg- en bejaardentehuizen. Woningen en ziekenhuizen zijn geen gevoelige bestemmingen.

De grootste bron van luchtverontreiniging in Nederland is het wegverkeer. Het Besluit legt aan weerzijden van rijkswegen en provinciale wegen zones vast. Bij rijkswegen is deze zone 300 meter, bij provinciale wegen 50 meter. Bij realisatie van “gevoelige bestemmingen” binnen deze zones is toetsing aan de grenswaarden die genoemd zijn in de Wet luchtkwaliteit nodig.

Regeling Beoordeling luchtkwaliteit 2007

In deze regeling staan criteria en eisen waaraan berekeningen en rekenmodellen moeten voldoen. Hieronder een overzicht van de rekenmodellen:

  • NIBM-tool: eenvoudige berekening van maximale bijdragen van verkeer aan fijn stof en stikstofdioxide volgens worst case benadering;
  • NSL-rekentool: berekening van emissies en immissies van binnenstedelijk en buitenstedelijk verkeer;
  • CARII: berekening van emissies en immissies van binnenstedelijk verkeer (dit model wordt in 2014 niet meer geactualiseerd);
  • ISL2: berekening van emissies en immissies van buitenstedelijk verkeer (dit model wordt in 2014 niet meer geactualiseerd);
  • ISL3a: berekening van emissies en immissies van industrie (ook voor veehouderijen);
  • Nieuw Nationaal Model (NNM): berekening van emissies en immissies van punt- en oppervlaktebronnen.

In deze regeling is het “toepasbaarheidsbeginsel” opgenomen. Dit beginsel geeft aan op welke plaatsen de luchtkwaliteitseisen toepasbaar zijn. In grote lijnen gelden daarbij de volgende bepalingen:

  • geen beoordeling van de luchtkwaliteit op plaatsen waar het publiek geen toegang heeft en waar geen bewoning is;
  • geen beoordeling van de luchtkwaliteit op bedrijfsterreinen (met uitzondering van voor het publiek toegankelijke plaatsen, waarbij het zogenaamde blootstellingscriterium een rol speelt);
  • geen beoordeling van de luchtkwaliteit op de rijbaan van wegen.

Overwegingen

De nieuwe woning is gelegen op korte afstand van de Tankweg, een weg in eigendom van de gemeente Oost Gelre. Toetsing aan de grenswaarden voor Luchtkwaliteitseisen is niet noodzakelijk nu het niet om een provinciale- of rijksweg gaat. De nieuwe ontwikkeling zal niet in betekenende mate bijdragen aan de luchtkwaliteit. Aanvullend onderzoek naar de luchtkwaliteit is dan ook niet noodzakelijk.

4.7 Externe veiligheid

Het Besluit Externe Veiligheid Inrichtingen (BEVI) is op 27 oktober 2004 in werking getreden. Het BEVI heeft als doel zowel individuele als groepen burgers een minimum beschermingsniveau te bieden tegen een ongeval met gevaarlijke stoffen. Het BEVI legt veiligheidsafstanden vast tussen bedrijven die risicovolle activiteiten met gevaarlijke stoffen verrichten (zoals LPG-tankstations en chemische fabrieken) en zogenoemde kwetsbare objecten (zoals woningen en scholen). Tevens beperkt het BEVI het totale aanwezige personen in de directe omgeving van een risicovol bedrijf. In de directe omgeving van het plangebied zijn geen risicovolle bedrijven gevestigd zoals onderstaande uitsnede uit de Risicokaart van de Provincie Gelderland aangeeft.

De dichtstbijzijnde risicovolle bedrijf is de benzinepomp met LPG aan de rand van Lievelde. Deze afstand is dusdanig groot dat deze voor de woningsplitsing geen dreiging vormt.

afbeelding "i_NL.IMRO.1586.PBBUI2003-VG01_0008.png"

Route voor gevaarlijke stoffen

De Rijksweg N18 is aangewezen als een route voor het vervoer van gevaarlijke stoffen. Het perceel Tankweg 13 is op een dusdanige grote afstand van deze Rijksweg gelegen dat aanvullend onderzoek naar mogelijke risico's van het vervoer van gevaarlijke stoffen achterwege kan blijven.

Hoofdstuk 5 Economische en maatschappelijk uitvoerbaarheid

5.1 Haalbaarheid

Het project en bijbehorende procedure worden door verzoeker bekostigd. Indien het project aanleiding geeft tot vergoeding van planschade (artikel 6.1 Wro) zullen de kosten worden doorberekend aan verzoeker. Ten behoeve van het project is een anterieure overeenkomst afgesloten met verzoeker inzake planschade.

5.2 Exploitatieplan

De omgevingsvergunning voorziet in de realisatie van een nieuwe wooneenheid door middel van woningsplitsing. Hierbij is sprake van een bouwactiviteit zoals bedoeld in artikel 6.2.1 van het Besluit ruimtelijke ordening, waardoor voor de betrokken gronden een exploitatieplan als bedoeld in artikel 6.12 Wro dient te worden vastgesteld. Burgemeester en Wethouders mogen op grond van artikel 6.12 Wro afzien van een exploitatieplan indien het verhaal van de kosten van de grondexploitatie over de in het plan of besluit begrepen gronden anderzins verzekerd is. Met verzoeker is een anterieure overeenkomst afgesloten waarin is opgenomen dat de te maken kosten, waaronder eventuele planschade, voor rekening van verzoeker zijn. Burgemeester en wethouders achten het plan economisch uitvoerbaar.

5.3 Maatschappelijke uitvoerbaarheid

5.3.1 Verklaring van geen bedenkingen

De gemeenteraad dient voor het verlenen van omgevingsvergunningen Wabo met de uitgebreide procedure (projectafwijking) een verklaring van geen bedenkingen af te geven. De gemeenteraad heeft in haar vergadering van 2 november 2010 beleidsregels Wabo vastgesteld waarin categorieën van gevallen zijn aangewezen waarin een verklaring van geen bedenkingen niet is vereist. Voor deze gevallen is het college van burgemeester en wethouders het bevoegd gezag. Wel heeft de gemeenteraad besloten op de hoogte te willen blijven van ingekomen verzoeken om omgevingsvergunning Wabo onderdeel planologie door ingekomen verzoeken als kennisgeving te behandelen in het presidium. Indien nodig kan het presidium beslissen alsnog een projectafwijking te behandelen in de gemeenteraad.

Ingevolge voornoemde beleidsregels Wabo is het project gelegen in het buitengebied en aan te merken als realisatie van woningbouw in het buitengebied waarvoor geen verklaring van geen bedenkingen is vereist, mits het te realiseren aantal woningen niet meer bedraagt dan 5 in stedelijk gebied en 3 in het buitengebied, mits niet gesitueerd op het bedrijventerrein. In onderhavig geval gaat het om de realisatie van 1 woning in het buitengebied.

De te realiseren woning blijft onder het genoemde aantal van drie woningen zodat het verzoek als kennisgeving is toegezonden naar het presidium. In haar vergadering van 8 januari 2018 heeft het presidium aangegeven het verzoek om omgevingsvergunning niet verder te behandelen in de gemeenteraad. Het college mag het verzoek om omgevingsvergunning Wabo verder afhandelen.

5.3.2 Inspraak

Voor het plan wordt de uitgebreide procedure doorlopen zoals bepaald in de Wet algemene bepalingen omgevingsrecht. Dit betekent dat de ontwerp omgevingsvergunning voor een periode van zes weken ter inzage wordt gelegd. Een ieder kan gedurende deze periode een zienswijze indienen. In deze periode zijn geen zienswijzen ingekomen.

5.3.3 Artikel 3.1.1.-overleg

Op grond van artikel 3.1.1 van het Besluit op de ruimtelijke ordening dient bij de voorbereiding van een bestemmingsplan overleg te worden gevoerd met de besturen van betrokken gemeenten en waterschappen en met die diensten van provincie en Rijk die betrokken zijn bij de zorg voor de ruimtelijke ordening of belast zijn met de behartiging van belangen welke in het plan in het geding zijn.

Binnen het plan zijn geen nationale en provinciale belangen in het geding. Vooroverleg met de Vrom-inspectie en de provincie Gelderland is dan ook geen verplichting. Daarnaast zijn er geen wateraspecten in het geding waardoor er vooroverleg moet worden gevoerd met het Waterschap Rijn en IJssel.

In de ontwerpfase zijn de diensten van provincie en het Waterschap door middel van een kennisgeving op de hoogte gebracht van het ontwerpbestemmingsplan. Gedurende de inzage termijn zijn er geen zienswijzen en/of op- en/of aanmerkingen ingekomen van deze diensten.