direct naar inhoud van Hoofdstuk 3 PLANBESCHRIJVING
Plan: Velmolen Oost, Zuidzijde Morgenweg, Uden
Status: vastgesteld
Plantype: uitwerkingsplan
IMRO-idn: NL.IMRO.0856.BPUmorgenwgzuid-VG01

Hoofdstuk 3 PLANBESCHRIJVING

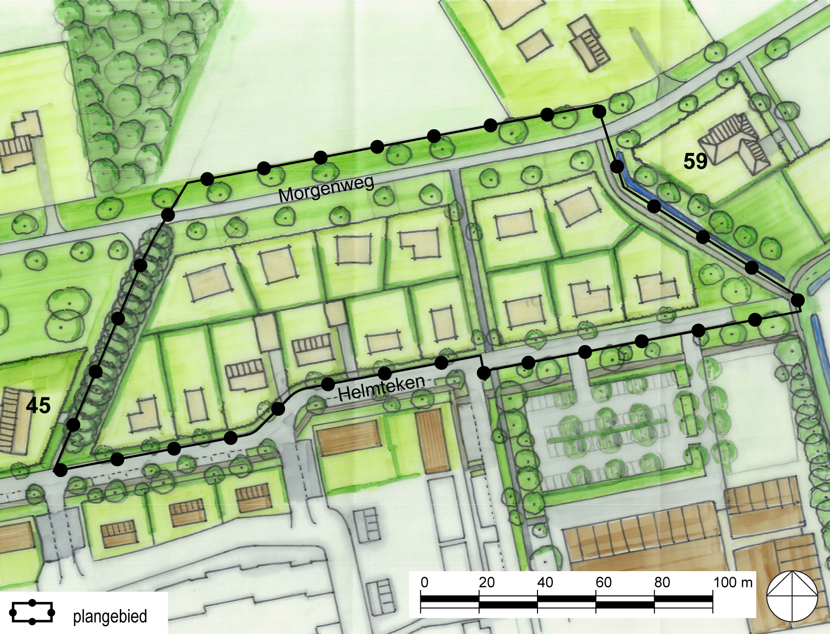
Na voorgaande inventarisatie en analyse volgt in dit hoofdstuk de beschrijving van het feitelijke plan. Op onderstaande afbeelding is de inrichtingsschets weergegeven.

afbeelding "i_NL.IMRO.0856.BPUmorgenwgzuid-VG01_0005.jpg"

inrichtingsschets