direct naar inhoud van 1.2 Ligging en kadastrale begrenzing
Plan: Velmolen Oost, Zuidzijde Morgenweg, Uden
Status: vastgesteld
Plantype: uitwerkingsplan
IMRO-idn: NL.IMRO.0856.BPUmorgenwgzuid-VG01

1.2 Ligging en kadastrale begrenzing

Onderstaande afbeelding geeft de topografische situatie weer.

afbeelding "i_NL.IMRO.0856.BPUmorgenwgzuid-VG01_0001.jpg"

topografische situatie

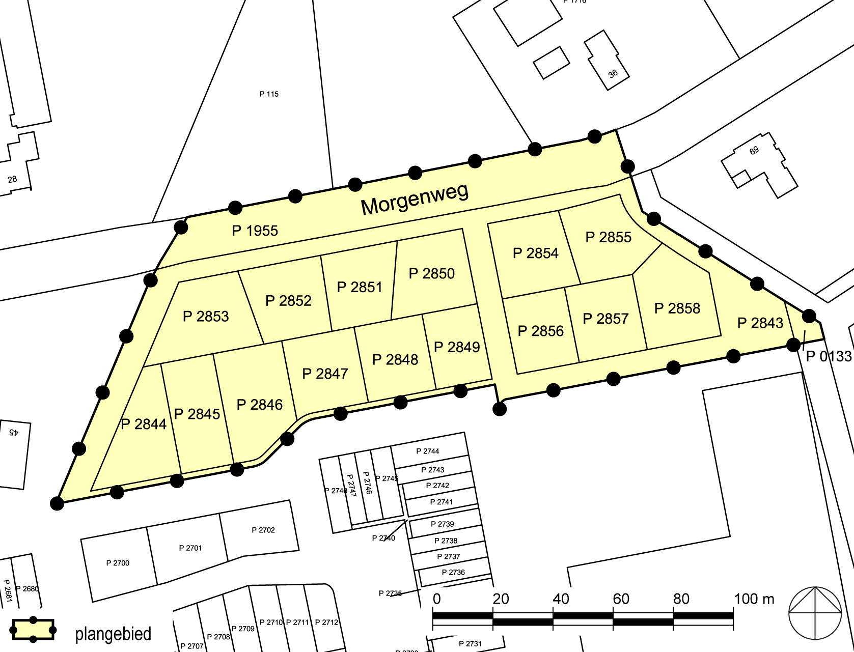
Onderstaande afbeelding geeft de kadastrale situatie weer. Tevens is de plangrens van voorliggend uitwerkingsplan ingetekend.

afbeelding "i_NL.IMRO.0856.BPUmorgenwgzuid-VG01_0002.jpg"

kadastrale situatie

In onderstaande tabel zijn de perceelnummers, oppervlakten en eigenaren opgenomen.

perceelnummer   oppervlakte     perceelnummer   oppervlakte    
P 0133 (ged.)   100 m²       P 2850   653 m²    
P 1955 (ged.)   2361 m²       P 2851   587 m²    
P 2843 (ged.)   3701 m²       P 2852   651 m²    
P 2844   685 m²       P 2853   777 m²    
P 2845   663 m²       P 2854   645 m²    
P 2846   792 m²       P 2855   630 m²    
P 2847   627 m²       P 2856   536 m²    
P 2848   587 m²       P 2857   587 m²    
P 2849   480 m²       P 2858   715 m²    

De totale oppervlakte van het plangebied bedraagt circa 1,6 hectare.