Reeshof Oost 2010, 1e herziening (Reeshofdijk 25)
| Status: | vastgesteld |
| Identificatie: | NL.IMRO.0855.BSP2019019-e001 |
| Plantype: | bestemmingsplan |
Toelichting
Hoofdstuk 1 Plan en plangebied
1.1 Aanleiding tot planontwikkeling
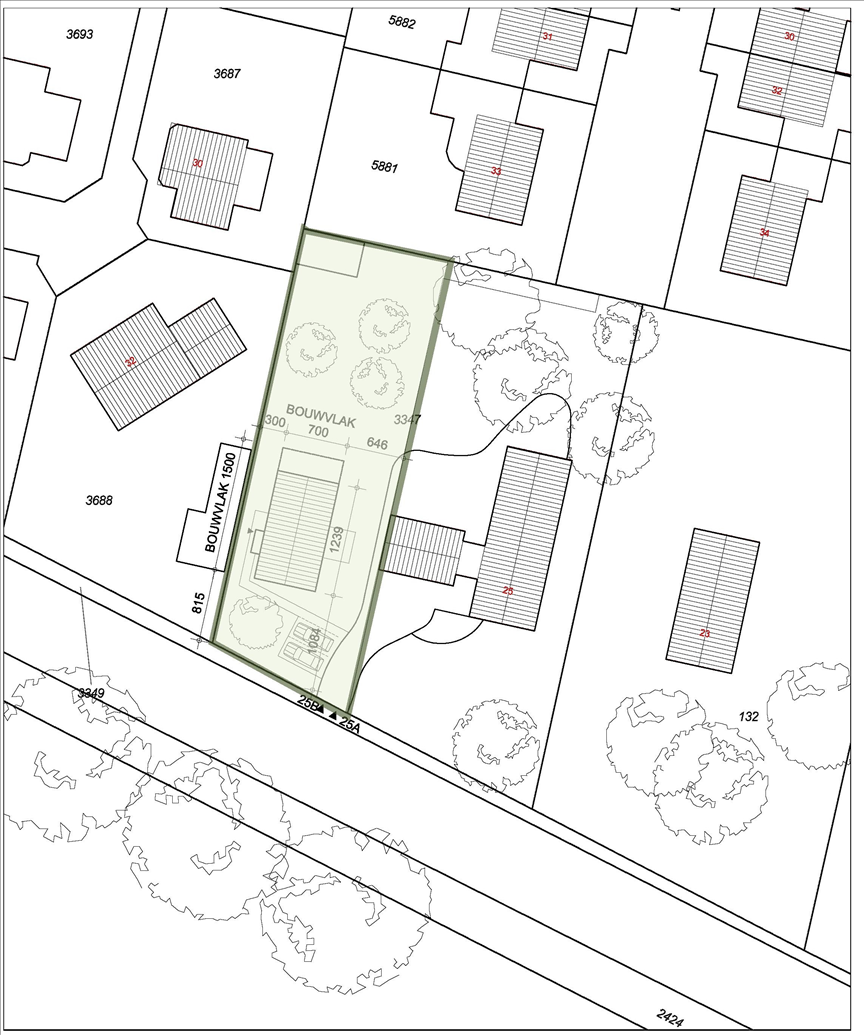
Er is een verzoek om herziening van het bestemmingsplan ingediend voor de realisatie van 1 woning aan de Reeshofdijk 25 te Tilburg. Het betreft het perceel sectie AF, nr. 3347. Op dit perceel is reeds een woning aanwezig. Het perceel wordt gesplitst en op het nieuwe afgesplitste perceel wordt een nieuwe woning gebouwd.
Figuur: Situatie nieuwe woning
Met deze toelichting wordt een basis gegeven voor de bestemmingsplanherziening waarmee medewerking kan worden verleend aan het initiatief. De toelichting geeft aan waarom de beoogde ontwikkeling past binnen de visie op het gebied. Er wordt nader ingegaan op de wijze waarop het initiatief aansluit op de plaatselijke situatie en het beleid dat de gemeente voorstaat. Tevens worden de (stedenbouwkundige) richtlijnen en randvoorwaarden welke aan de basis van de planontwikkeling hebben gestaan in de toelichting verwoord. De toelichting geeft ook de resultaten van de uitgevoerde onderzoeken weer.
1.2 Het plangebied
Het plangebied is gelegen in het westen van Tilburg en omvat een gedeelte van het perceel aan de Reeshofdijk 25. dit perceel wordt begrensd door de woningen aan de Reeshofdijk 23 en Diepenveenstraat 32. Aan de achterzijde grenst het perceel aan de woning Distelbergstraat 33. Tegenover het perceel is het Reeshofbos gelegen.
![i_NL.IMRO.0855.BSP2019019-e001_402001.png [image]](i_NL.IMRO.0855.BSP2019019-e001_402001.png)
Figuur: Ligging plangebied in Tilburg
1.3 Voorgaande plannen
Dit bestemmingsplan is een gedeeltelijke herziening van het bestemmingsplan "Reeshof Oost" dat op 26 september 2011 is vastgesteld. In dit bestemmingsplan is op het perceel Reeshofdijk 25, 1 bouwvlak opgenomen. Op de plaats waar de nieuwe woning wordt gesitueerd ligt geen bouwvlak.
Figuur: Uitsnede vigerende bestemmingsplan
1.4 Ruimtelijke en functionele structuur
Er is langs de Reeshofdijk sprake van een ruim opgezette verkaveling met vrijstaande landelijke woningen die in een groene setting zijn gelegen. Uitgangspunt is om dit stedenbouwkundige karakter te behouden.
Het perceel Reeshofdijk 25, dat aanzienlijk breder is dan de naastliggende percelen, is breed genoeg om, ook bij één extra woning, mits goed ingepast, te waarborgen dat er sprake is van een riante verkaveling met het bijbehorende stedenbouwkundige karakter. Op basis van deze overweging is het bouwvlak voor één woning in dit plan geprojecteerd.
Er staan veel grote bomen op het perceel. Waardevolle bomen en eventuele natuurwaarden moeten gerespecteerd worden.
Ook langs de Reeshofdijk staan grote bomen. Deze vormen een waardevolle structuur die niet aangetast mag worden. Hiermee dient dus rekening te worden gehouden, o.a. bij de situering van inrit(ten).
De Reeshofdijk is een belangrijke fietsroute met zeer beperkt autoverkeer (bestemmingsverkeer). Dit belang zal nog verder toenemen als hier de snelfietsroute naar Breda gerealiseerd wordt. Er is verkeerskundig echter geen bezwaar om één extra woning via de Reeshofdijk te ontsluiten.
Figuur: straatbeeld Reeshofdijk
Hoofdstuk 2 Ruimtelijk beleidskader
2.1 Rijk
2.1.1 Structuurvisie Infrastructuur en Ruimte (SVIR)
Deze structuurvisie bundelt het nationale ruimtelijke en infrastructurele beleid en schetst een beeld van Nederland in 2040. Zo beschrijft het kabinetin de Structuurvisie in welke infrastructurele plannen het de komende jaren wil investeren en op welke wijze bestaande infrastructuur beter benut kan worden. Provincies en gemeenten krijgen in de plannen meer bewegingsvrijheid op het gebied van ruimtelijke ordening.
2.1.2 Besluit algemene regels ruimtelijke ordening (Barro)
Op 17 december 2011 is de Algemene Maatregel van Bestuur (AMvB) Ruimte gedeeltelijk in werking
getreden. Deze nieuwe AMvB Ruimte heeft de eerdere ontwerp AMvB Ruimte 2009 vervangen. Juridisch
wordt de AMvB Ruimte aangeduid als Besluit algemene regels ruimtelijke ordening (Barro). Het Barro is
op 1 oktober 2012 geactualiseerd en is vanaf die datum geheel in werking getreden. Met de
inwerkingtreding van het Barro naast het Besluit ruimtelijke ordening (Bro), is de juridische verankering van
de uitgangspunten uit de Structuurvisie Infrastructuur en Ruimte compleet.
In het Barro zijn de nationale belangen die juridische borging vereisen opgenomen. Het Barro is gericht op
doorwerking van de nationale belangen in gemeentelijke bestemmingsplannen. Het Barro is deels
opgebouwd uit hoofdstukken afkomstig van de ontwerp AMvB Ruimte die eind 2009 is aangeboden en
deels uit nieuwe onderwerpen. Per onderwerp worden vervolgens regels gegeven, waaraan
bestemmingsplannen zullen moeten voldoen.
Het besluit bepaalt tevens:
"Voor zover dit besluit strekt tot aanpassing van een bestemmingsplan dat van kracht is, stelt de
gemeenteraad uiterlijk binnen drie jaar na het tijdstip van inwerkingtreding van dit besluit een
bestemmingsplan vast met inachtneming van dit besluit."
Volgens de toelichting bij dit artikel geldt als hoofdregel, dat de regels van het Barro alleen van toepassing
zijn wanneer na inwerkingtreding van het Barro een nieuw bestemmingsplan voor het eerst nieuwe
ontwikkelingen mogelijk maakt binnen de aangegeven projectgebieden. Alleen wanneer het Barro expliciet
een aanpassing van bestemmingsplannen vergt, omdat een reeds bestaand bestemmingsplan binnen een
of meerdere van de projectgebieden is gelegen, dan moet dat binnen drie jaar gebeuren.
Het Barro draagt bij aan versnelling van de besluitvorming bij ruimtelijke ontwikkelingen van nationaal belang en "vermindering van de bestuurlijke drukte". Belemmeringen die de realisatie van de genoemde
projecten zouden kunnen frustreren of vertragen worden door het Barro op voorhand onmogelijk gemaakt.
Daar staat tegenover dat de regelgeving voor lagere overheden weer wat ingewikkelder is geworden.
Gemeenten die een bestemmingsplan opstellen dat raakvlakken heeft met een of meerdere belangen van
de projecten in het Barro, zullen nauwkeurig de regelgeving van het Barro moeten controleren. Het Barro
vormt daarmee een nieuwe, dwingende checklist bij de opstelling van bestemmingsplannen.
In het Barro zijn de projecten van nationaal belang beschreven. Deze projecten zijn in beeld gebracht in de
bij het Barro behorende kaarten.
De voorliggende planlocatie is niet in één van de aangewezen projectgebieden van nationaal belang gelegen.
Hiermee zijn de bepalingen uit het Barro niet van toepassing op de planlocatie en is geen sprake van
strijdigheid met nationale belangen.
2.1.3 (Ladder voor) Duurzame verstedelijking
Op grond van art. 3.1.6 Bro zijn provincies en gemeenten verplicht om in de toelichting van een ruimtelijk plan aandacht te besteden aan het aspect 'duurzame verstedelijking', wanneer een nieuwe stedelijke ontwikkeling mogelijk wordt gemaakt. Art. 1.1.1. Bro definieert het begrip stedelijke ontwikkeling als een ruimtelijke ontwikkeling van een bedrijventerrein of zeehaventerrein, of van kantoren, detailhandel, woningbouwlocaties of andere stedelijke voorzieningen. Overheden dienen op grond van art. 3.1.6 Bro nieuwe stedelijke ontwikkelingen te motiveren. In de eerste plaats geschiedt dat door de behoefte aan de desbetreffende stedelijke ontwikkeling te onderbouwen. Uitgangspunt is vervolgens dat, met het oog op een zorgvuldig ruimtegebruik, de nieuwe stedelijke ontwikkeling in bestaand stedelijk gebied wordt gerealiseerd. Indien de nieuwe stedelijke ontwikkeling daarentegen voorzien wordt buiten het bestaand stedelijk stedelijk gebied, dan moet dat eveneens worden gemotiveerd in de plantoelichting. Het is toegestaan om de motivering van de behoefte aan en de locatie van een nieuwe stedelijke ontwikkeling door te schuiven naar een eventueel uitwerkings- of wijzigingsplan.
Met dit bestemmingsplan wordt woningbouw mogelijk gemaakt. Het betreft de ontwikkeling van 1 woning. De woning wordt gesitueerd op een perceel waar al een woonbestemming ligt. Er wordt een extra bouwvlak toegevoegd. Uit de jurisprudentie van de Afdeling Bestuursrechtspraak Raad van State blijkt dat een dergelijke kleine ontwikkeling niet als een 'nieuwe stedelijke ontwikkeling' wordt aangemerkt en dat daarmee een toets aan de ladder voor duurzame verstedelijking achterwege kan blijven.
Ondanks het feit dat de ladder voor duurzame verstedelijking niet van toepassing is, is volledigheidshalve wel de actuele behoefte bekeken (zie paragraaf 3.4 volkshuisvesting).
2.2 Provincie
2.2.1 Structuurvisie
Op 19 maart 2014 is de Structuurvisie ruimtelijke ordening 2014 in werking getreden. Deze structuurvisie is een actualisatie van de visie die op 1 oktober 2010 werd vastgesteld door Provinciale Staten. Belangrijke onderwerpen zijn de realisatie van natuur en de transitie naar een zorgvuldige veehouderij in Brabant.
In de Structuurvisie geeft de provincie de hoofdlijnen van het ruimtelijk beleid tot 2025 (met een doorkijk naar 2040). De visie is bindend voor het ruimtelijk handelen van de provincie, maar bindt gemeenten niet rechtstreeks. Het is de basis voor de wijze waarop de provincie de instrumenten inzet die de Wet ruimtelijke ordening biedt.
Inhoud van de Structuurvisie
Deel A
Deel A bevat de hoofdlijnen van het beleid. Op basis van trends en ontwikkelingen heeft de provincie haar ruimtelijke belangen gedefinieerd en ruimtelijke keuzes gemaakt. In haar sturing biedt zij gemeenten meer ruimte om afwegingen te maken in een aantal vooraf gestelde kaders. Daarnaast zet de provincie zelf een aantal ontwikkelingen in gang. De provinciale filosofie is: ‘Samenwerken aan kwaliteit’. De provincie realiseert haar doelen op vier manieren: door regionaal samen te werken, te ontwikkelen, te beschermen en te stimuleren.
Deel B
In deel B staan de ambities, het beleid en de uitvoering voor de vier ruimtelijke structuren: de groenblauwe structuur, het landelijk gebied, de stedelijke structuur en de infrastructuur. Voor iedere structuur formuleert de provincie ambities en beleid. Per beleidsdoel is aangegeven welke instrumenten de provincie inzet om haar doelen te bereiken.
Uitwerking van de Structuurvisie
De provincie gaat geen aparte ruimtelijke visie op het landschap ontwikkelen, maar geeft die onder andere vorm in de Uitwerking gebiedspaspoorten. Daarin beschrijft de provincie welke landschapskenmerken zij op regionaal niveau van belang vindt en hoe deze versterkt kunnen worden. Tilburg ligt in het gebiedspaspoort van De Meierij. Daarnaast zijn er deelstructuurvisies opgesteld. Deelstructuurvisies bevatten de onderbouwing van een locatiekeuze, visie op een thema of inrichting van een gebied. De huidige deelstructuurvisies zijn niet van toepassing op Tilburgs grondgebied.
2.2.2 Verordening Ruimte
Provinciale Staten hebben naast de Structuurvisie een Verordening ruimte vastgesteld. Deze wordt regelmatig gewijzigd en aangepast aan nieuw beleid. In de Verordening ruimte staan regels waarmee een gemeente rekening moet houden bij het ontwikkelen van bestemmingsplannen. In tegenstelling tot de provinciale Structuurvisie bindt de Verordening ruimte de gemeenten wèl rechtstreeks.
Relatie met de structuurvisie
De onderwerpen die in de verordening staan, komen uit de provinciale structuurvisie. Daarin staat wat de provincie van belang vindt en hoe de provincie die belangen wil realiseren. De verordening is daarbij een van de manieren om die provinciale belangen veilig te stellen.
Inhoud
Belangrijke onderwerpen in de Verordening ruimte zijn:
ruimtelijke kwaliteit;
stedelijke ontwikkelingen;
natuurgebieden en andere gebieden met waarden;
agrarische ontwikkelingen, waaronder de zorgvuldige veehouderij;
overige ontwikkelingen in het buitengebied.
Voor een paar onderwerpen zijn in de verordening regels opgenomen die rechtstreeks doorwerken naar de vergunningverlening bij gemeenten.
Wijzigingen en ontheffingen
In de verordening is voor een aantal onderwerpen de mogelijkheid opgenomen om de grens van een gebied te wijzigen. Daarnaast is er een algemene ontheffingsmogelijkheid opgenomen.
Het plan is gelegen in bestaand stedelijk gebied. Met het plan wordt planologisch 1 woning toegevoegd. Voor wat betreft de bouw van woningen is in de verordening opgenomen dat in de toelichting van een bestemmingsplan, dat de toevoeging van woningen toestaat, moet worden gemotiveerd op welke wijze de afspraken uit het regionaal overleg wordt voldaan. In paragraaf 3.4 van deze toelichting wordt hier nader op in gegaan.
Ten allen tijde geldt de zorgplicht voor ruimtelijke kwaliteit. In dat kader dient verantwoord te worden dat er sprake is van zorgvuldig ruimtegebruik. Om dit geval wordt de woning gerealiseerd op een perceel dat al een woonbestemming heeft. Hierdoor is sprake van verdichting en zorgvuldig ruimtegebruik.
2.3 Gemeente
2.3.1 Omgevingsvisie Tilburg 2040
Op 21 september 2015 heeft de Raad de Omgevingsvisie Tilburg 2040 vastgesteld.
De Omgevingsvisie richt zich op Tilburg als vitale, duurzame stad in een moderne netwerksamenleving. De ontwikkelingen in de economie, de maatschappij en de leefomgeving gaan niet ten koste van elkaar, maar sluiten op elkaar aan en versterken elkaar. People, planet en profit zijn in balans.
People: Het is prettig wonen en werken in Tilburg, een stad met veel verschillende woonbuurten en verschillende soorten werklocaties. De woonmilieus passen bij de leefstijl van de mensen.
Planet: We gaan voor een gezonde en leefbare stad, anticiperen op de effecten van klimaatverandering, zoals hitte, droogte en hogere temperaturen. In het economisch systeem wordt herbruikbaarheid van producten en grondstoffen steeds belangrijker. Verder krijgen groen en water een steeds prominentere rol in de stad. De grote natuurgebieden om de stad zijn met elkaar verbonden. Dat versterkt het ecologisch systeem en de veerkracht van de natuur.
Profit: Om ook in de toekomst sterk genoeg te zijn, wil Tilburg de kracht van BrabantStad benutten. Tilburg is een stad die mensen kansen biedt: op aangenaam werk en op een fijne woon- en leefomgeving.
Om antwoord te geven op de vraag hoe we dit gewenste toekomstbeeld samen met burgers en partners in de stad voor elkaar kunnen krijgen volgt de Omgevingsvisie Tilburg 2040 een strategie met drie sporen:
de Brabantstrategie
de Regiostrategie
de Stadsstrategie.
Brabantstrategie: Tilburg kiest voor de kracht van stedelijke samenwerking
Samen met de andere Brabantse steden wil Tilburg de kracht van het stedelijk netwerk BrabantStad versterken. Om de benodigde schaalsprong naar een stedelijk netwerk te kunnen maken, moet Tilburg aantrekkelijk bereikbaar en concurrerend zijn.
Aantrekkelijk: Tilburg wil een aantrekkelijke stad zijn waar mensen graag wonen en werken, en waar het voor bedrijven interessant is om zich te vestigen. Niet alleen moet het aanbod van voorzieningen in de stad zelf aansprekend en hoogwaardig zijn, ook de groene omgeving en religieus en historisch erfgoed zijn belangrijke factoren.
Bereikbaar: goede verbindingen (weg, water, rail én digitaal) met de andere Brabantse steden zijn essentieel voor een sterk stedelijk netwerk.
Concurrerend: En duurzame concurrentiekracht kent in Tilburg twee belangrijke pijlers, namelijk kennis & creativiteit en smart industries. Concreet richt de Brabantstrategie zich op vier stedelijke knooppunten en drie stadsregionale parken.
De vier stedelijke knooppunten:
Binnenstad van de 21e eeuw
Tilburg University Campus: kennisontwikkeling en -toepassing
Modern Industrieel Cluster Vossenberg-Loven
Modern Industrieel Cluster Midden-Brabant
De drie stadsregionale parken zijn:
Stadsregionaal park Moerenburg - Koningshoeven
Stadsregionaal park Stadsbos013
Stadsregionaal park Noord
De regiostrategie: de kracht van Tilburg als centrumstad
Bij de regiostrategie draait het om Tilburg in haar rol als centrumstad; Tilburg als belangrijke spil in de regio Hart van Brabant. Een goed bereikbare stad, waar bewoners uit de gehele omliggende regio graag komen voor werk, hoogwaardige medische zorg, uitstekend onderwijs, een compleet aanbod van winkels en spannende cultuur. Waar bedrijven hun ambities optimaal kunnen ontplooien. En waar het uitstekend (meerdaags) recreëren is. Een sterke stad kan niet zonder een sterke regio; omgekeerd geldt dat een sterke regio niet zonder een sterke stad kan. De regiostrategie richt zich op drie stedelijke knooppunten en twee regionale ecologische verbindingszones ten westen en oosten van de stad.
De drie stedelijke knooppunten zijn:
Bedrijvenpark Zuid
Zorgcluster Leijpark
Duurzaam energielandschap Noord
De twee ecologische verbindingszones:
Aan de oostzijde bestaat de verbinding uit ecologische stapstenen in het bestaande landschap en agrarisch productiegebied.
Aan de westzijde van de stad bestaat de verbinding uit een fijnmazig netwerk van ecologische verbindingszones langs wegen en waterlopen.
De stadsstrategie: leefbaarheid met oog voor de menselijke maat
De stadsstrategie richt zich op het realiseren van prettig leefbare wijken, dorpen en buitengebied.
Hoofdpunten van de stadsstrategie zijn:
Ruimte voor zelf- en samenredzaamheid in wijken en buurten
Basis op orde: wijken zijn schoon, heel en veilig
Vitale wijkeconomie: dynamiek en ondernemerschap in de wijk
Brandpunten in wijken zorgen voor dynamiek, ontmoeting en sociale binding.
Differentiatie in woonmilieus: aansluiten bij de leefstijlen van bewoners
Cultureel erfgoed: het verhaal van Tilburg centraal
Groen en water in de stad: toegankelijk en zichtbaar
Goede bereikbaarheid van wijken en buurten borgen
Betere verbinding stad en buitengebied: groene inprikkers
Economische vitaliteit van het landschap behouden en versterken
Functie van de Omgevingsvisie
De Omgevingsvisie Tilburg 2040 is een koers- en inspiratiedocument. Het is een kompas voor investeringen in
het fysieke domein. Een uitnodiging aan de stad om samen te werken aan de ontwikkeling van een stad waar het fijn wonen, werken, leven en recreëren is. De visie biedt burgers en bedrijven ruimte om initiatief te ontplooien en reikt de gemeente handvatten aan om haar strategie af te stemmen op het geschetste toekomstperspectief. De Omgevingsvisie Tilburg 2040 geeft ook richting aan de inzet van de gemeente; in welke onderdelen de gemeente haar geld, tijd en bestuurskracht investeert. En welke prioriteiten daarbij gelden.
Hoofdstuk 3 Thematische beleidskaders
3.1 Inleiding
In dit hoofdstuk volgt een beschrijving van de bij het opstellen van dit bestemmingsplan van kracht zijnde beleidskaders ten aanzien van de in relatie tot het plan relevante thema´s. Daar waar nodig, wordt dieper ingegaan op de keuzes die in het plan zijn gemaakt op basis van deze kaders. Aan de onderwerpen Milieu en Water zijn aparte hoofdstukken gewijd.
3.2 Stedenbouwkundige aspecten en welstand
3.2.1 Stedenbouwkundige uitgangspunten
De nieuwe woning moet zich voegen in de bestaande straatwand. Planologisch wordt een maximale bouwhoogte van 10m mogelijk gemaakt. De voorgevelrooilijn komt overeen met die van de naastgelegen woning en de afstand tot de zijdelingse perceelsgrenzen bedraagt minimaal 3m t.o.v. de westelijke perceelsgrens en 6 meter t.o.v. oostelijke perceelsgrens.
3.2.2 Welstand
Bouwplannen moeten worden getoetst aan ´redelijke eisen van welstand´, zo zegt de Woningwet. Naast het bestemmingsplan is het welstandsbeleid een middel om de ruimtelijke kwaliteit van de publieke omgeving te waarborgen bij de vele bouwplannen die in de stad worden gerealiseerd. Sinds 1 juli 2004 moet iedere gemeente de gehanteerde welstandscriteria vastleggen in een Welstandsnota, die door de raad moet worden vastgesteld. In Tilburg is dat in juni 2004 gebeurd. Nadien is de nota meerdere keren geactualiseerd (2010 en 2012). De afgelopen jaren heeft zich aantal ontwikkelingen voorgedaan waardoor actualisatie van het uitwerkingsdeel van de Welstandsnota noodzakelijk is. Zo zijn de Omgevingsvisie Tilburg 2040 en de structuurvisie Linten in de Oude Stad vastgesteld en zijn er verschillende nieuwe woonwijken gereed gekomen. De nota van 2012 is in navolging daarop aangevuld en bijgewerkt. Voor het overige zijn de kaarten samengevoegd, geactualiseerd en afgestemd op het kaartbeeld van de Omgevingsvisie. Op die manier beschikt de Omgevingscommissie over een actueel toetsingskader voor de beoordeling van (bouw)plannen.
Architectuur, stedenbouw, cultuurhistorie en landschap zijn onlosmakelijk met elkaar verbonden. Onder het motto van de welstandsnota 'aandacht waar dat moet, vrijheid waar dat kan' streeft het stadsbestuur ernaar om op de plekken die er toe doen in te zetten op een hoge ruimtelijke kwaliteit.
Op 15 november 2016 heeft het college van burgemeester en wethouders ingestemd met de actualisatie van de Welstandsnota 2012. De geactualiseerde nota is op 1 januari 2017 in werking getreden.
3.3 Archeologie, cultuurhistorie en monumentenzorg
3.3.1 Historische geografie
Het plangebied ligt in het westen van Tilburg aan de noordzijde van de Reeshofdijk ten westen van de Burgemeester Baron van Voorst tot Voorstweg en ten zuiden van de Huibevendreef. De spoorlijn Breda-Tilburg ligt ten zuiden van het plangebied.
Het plangebied ligt op de westelijke rand van het Tilburgs plateau ten noorden van de Oude Ley (Lee) en de zgn. drassige driehoek. De kaart van Diederik Zijnen uit ca. 1760 laat zien dat het plangebied destijds bestond uit woeste, geaccidenteerde heidegronden met enkele opduikingen en een aantal vennen. Het grootste deel van het plangebied bestond uit lagergelegen moerassen die naar het zuidwesten steeds lager en natter werden en overgingen in een opvallende laagte, het dal van de Werft.
Tot het begin van de twintigste eeuw behoorde het gebied tot de Tilburgse Heide, die doorsneden door de Oude Leij en Donge het middendeel vormde van een uitgestrekt heidegebied (Tilburgse Heide) ten westen van Tilburg tussen de gemeenten Loon op Zand, Dongen, Hulten en Riel. Deze heide werd gekenmerkt door een geaccidenteerd reliëf met afwisselend vennen en duinwallen of stuifduinen;
Aanvankelijk heide werd het plangebied bebost in de negentiende eeuw en bleef naaldbos tot begin 20ste eeuw. Huidig grondgebruik is licht agrarisch, met bosgebied en horeca.
De zuidgrens van het deelgebied Bosgebied Reeshof wordt gevormd door de in 1863 aangelegde spoorlijn tussen Breda en Tilburg.
3.3.2 Archeologie
Het plangebied is gekarteerd op de Indicatieve Kaart van Archeologische Waarden (IKAW) van de Rijksdienst voor het Cultureel Erfgoed (RCE) als een gebied met een lage archeologische verwachting.
Het plangebied ligt op de Archeologische Waarschuwingskaart Tilburg (ArWaTi) in een gebied met hoge verwachting.
Het plangebied ligt niet in of grenst niet aan een AMK-Terrein (Archeologische Monumenten Kaart van de RCE);
ARCHIS en ArWaTi: geen bekende archeologische waarnemingen in of direct grenzend aan het plangebied.;
Ten westen van het plangebied zijn twee archeologische waarnemingen bekend in ArWaTi (bron:Regionaal Archief Tilburg). Het betreft een vondst van twee vuursteenklingen, waarvan 1 met retouches, in het zuidwesten van Drijflanen bij de baron van Voorst tot Voorstweg (50EN-20) en de vondst van enkele vermoedelijk mesolithische vuursteenafslagen in het noordoosten van Drijflanen (50FN-73). Ten zuiden van Drijflanen in het bosperceel aan de zuidzijde van de Reeshofdijk, ten westen van het plangebied, is eveneens een vondst bekend van enkele vuursteen afslagen uit vermoedelijk mesolithicum (50EN-16). Het is niet bekend of bovenstaande waarnemingen louter losse vondsten betreffen of aanduidingen zijn voor de aanwezigheid nederzettingsterreinen.
In 2010 werd door Fontys Hogescholen/BILAN een cultuurhistorisch en archeologisch bureauonderzoek voor het plangebied Reeshof-Oost uitgevoerd: Dijk, H. van. 2010. Van Lang Laar tot Groenven. Tilburg (NB) – Tilburg, Reeshof Oost –Drijflanen. Verwachting: het voormalige heidegebied ten noordwesten van de Warande en bij de Zwartvenseweg (“drassige driehoek”), blijkt relatief rijk aan archeologische waarnemingen uit de steentijden.
Gelet op de geringe omvang van de te verwachten nieuwe bodemverstoring, is geen verder archeologisch onderzoek noodzakelijk.
3.3.3 Cultuurhistorie, objecten en structuren, historisch groen
In dit plangebied liggen geen beschermde monumenten, geen MIP-panden en geen panden of objecten die in het kader van de naoorlogse architectuur als cultuurhistorisch waardevol worden beschouwd.
Direct ten zuidoosten en ten noordoosten van het plangebied bevinden zich twee parken: het tussen 1712 en 1715 aangelegde jachtbos de Oude Warande en het in 1921 als werklozenproject aangelegde Wandelbos. Beide groengebieden zijn aangewezen als beschermd gemeentelijk monument.
Voor architectuur en stedenbouw uit de periode 1945-1970 dient in 2005 dor STOA uitgevoerd onderzoek als basis. In of in de nabijheid van het plangebied komen geen als waardevol aan te merken objecten of structuren voor.
3.3.4 Conclusie
Vanuit het oogpunt van cultuurhistorie bestaat er geen bezwaar de bouw van een nieuwe woning.
Voor wat betreft de archeologie is er vanwege de geringe omvang van de te verwachten nieuwe bodemverstoring, geen verder archeologisch onderzoek noodzakelijk.
3.4 Volkshuisvesting
Duurzame verstedelijking
De gemeente Tilburg maakt samen met acht andere gemeenten deel uit van de regio Hart-van-Brabant. In deze
regio maken de gemeenten periodiek samen met de provincie Noord-Brabant afspraken over de kwantitatieve
woningbouwopgave, dit voor een voortschrijdende tienjaarsperiode. Basis hiervoor vormt de provinciale
bevolkings- en woningbehoefteprognose, waarvan de recentste dateert uit mei 2017.
In de periode 2017-2027 bedraagt de bouwopgave voor Tilburg ruim 9.600 woningen. Hiermee wordt voorzien
in de natuurlijke aanwas en de huishoudenverdunning van de gemeente, plus in de migratie afkomstig uit de
regio (en daarbuiten). Wanneer en waar nodig worden er regionaal ook kwalitatieve afspraken gemaakt,
getuige de afspraak waarbij Tilburg van de eigen opgave 730 woningen beschikbaar stelt aan een drietal
buurgemeenten ter verwezenlijking van hun programmadoelen tussen 2009 en 2019.
Zeker tot 2025 behelst de gemeentelijke woningbouwopgave gemiddeld zo’n 1.000 woningen per jaar, dit
gecorrigeerd voor circa 200 w/jr. sloop. De effectieve vraag –uitgeoefend door de woonconsument– ligt
gemiddeld op 850-900 woningen per jaar; het gemeentelijke bouwprogramma is hierop afgestemd.
Het plan tot de bouw van in totaal 1 woning past binnen de gemeentelijke bouwopgave in regionale context
(ingevolge artikel 3.1.6. Bro).
3.5 Groen
3.5.1 Bomenbeleid Tilburg
Bomen staan steeds meer onder druk van de stad. De verwachting is dat in de loop van de tijd steeds meer bomen of zelfs complete bomenstructuren kunnen uitvallen als gevolg van deze stedelijke druk. Dit beeld is onwenselijk. Bomen dienen juist een toegevoegde waarde aan stedelijke ontwikkelingen te bieden. Om er niet te laat achter te komen dat er teveel bomen op cruciale plekken voor stedelijke ontwikkelingen zijn gesneuveld en om een kwalitatief hoogwaardig bomenbestand te behouden is het noodzakelijk om belangrijke zaken rondom bomen goed te regelen en vast te leggen. Daarom zijn onderstaande documenten vastgesteld:
Bomenverordening 2017
Beoordelingscriteria houtopstanden
Nota 'overige houtopstanden'
Boomwaarde zoneringskaart 2017
Gemeentelijke Lijst Monumentale Bomen
Deze documenten samen vormen het bomenbeleid van de gemeente Tilburg.
Bomenverordening
De Bomenverordening Tilburg 2017 biedt het particuliere en het gemeentelijke bomenbestand bescherming door middel van een velverbod met bijbehorende regels.
Boomwaarde zoneringskaart 2017 (BWZ-kaart)
Deze kaart doet uitspraken over de huidige openbare en particuliere houtopstanden binnen de gemeente Tilburg. Op de BWZ-kaart krijgen bomen een waarde toegekend; zones met houtopstanden met een eco-, hoofd-, neven of basiswaarde en daarnaast is er de Buiten-zone. Voor deze zones zijn criteria opgesteld o.a. met betrekking tot het verlenen van omgevingsvergunningen (bescherming tegen vellen), herplantplicht en straatbeeld.
Gemeentelijke Lijst Monumentale Bomen (GLMB)
Het hebben van een GLMB zorgt ervoor dat deze bomen voldoende juridische bescherming hebben via de Bomenverordening Tilburg 2007. Daarnaast krijgen deze bomen de hoogste prioriteit bij beheer en onderhoud.
Wet Natuurbescherming (buiten grens bebouwde kom)
In de gemeente Tilburg heeft de gemeenteraad de bebouwde kom ex artikel 4.1 Wet natuurbescherming (Wnb) vastgesteld. Voor bepaalde groepen houtopstanden die buiten deze komgrens staan, geldt op grond van de Wnb een verplichting. Bij velling in groepen houtopstanden met een grootte van meer dan 10 are of bij velling in een rij van meer dan 20 bomen, geldt een meldplicht aan Gedeputeerde Staten (GS) van de Provincie Noord-Brabant. Daarnaast geldt een herplantplicht. Het college van Gedeputeerde Staten kan een velverbod opleggen. Als er geveld gaat worden, dan is er op grond van de Wnb de eis, dat er ook weer een gelijk aantal houtopstanden terug wordt geplant. Bos dat wordt gekapt, moet worden herplant. Als dat niet op dezelfde plaats kan, dan zal hiervoor ontheffing aan GS moeten worden gevraagd en elders (compensatie op grond van de Wnb) moeten worden herplant. De houtopstanden waarop de Wet natuurbescherming van kracht is, liggen in de zogenaamde Buiten-zone. Daar kan daarnaast ook een gemeentelijk velverbod op grond van de Bomenverordening gelden. Beide regelingen kunnen dus naast elkaar van toepassing zijn.
Maatregelen in bestemmingsplan
De BWZ-kaart dient gebruikt te worden als basis bij alle nieuwbouw-, herontwikkelings- of herstructureringsplannen waar bestaande houtopstanden mee gemoeid zijn. In het bestemmingsplan wordt de BWZ-kaart aangeduid als Boomwaardekaart (bijlage bij de regels). Bomen met een eco- en hoofdwaarde en monumentale bomen zijn op deze bijlagekaart opgenomen als beschermwaardige bomen. In de regels wordt verwezen naar deze kaart.
De juridisch-planologische bescherming bestaat uit een bouwverbod en een omgevingsvergunningplicht voor het uitvoeren van werken, geen bouwwerken zijnde, en werkzaamheden binnen een straal van 15 meter uit het hart van de desbetreffende boom.
Op het perceel staan nu verschillende bomen. Om de bouw van de woning mogeljik te maken, zal een aantal daarvan worden gekapt. Zoveel mogelijk bomen blijven behouden. Er is een Bomen Effect Analyse opgesteld (bijlage 1). In deze inventarisatie is inzichtelijk gemaakt welke bomen op het perceel op het perceel staan en zijn conditie en vitaliteit genoteerd. Van de geinventariseerde bomen zal voor boomnrs. 3, 6, 7, 8, 9, 10, 15, 18, 19, 23 en 26 een kapvergunning worden aangevraagd. De overige bomen kunnen blijven behouden en worden geintegreerd in de nieuwe tuininrichting.
3.5.2 Nota Groen
De Nota Groen, vastgesteld door de gemeenteraad op 19 april 2010, vormt de herziening van de Groenstructuurplannen uit 1992 en 1998. Tilburg wil zich in de toekomst blijven profileren als een groene stad waar het goed wonen en werken is. Tilburg moet in 2020 een stad zijn waar zowel haar inwoners, bezoekers als bedrijven een aantrekkelijk groene woon- en werkomgeving hebben en waar de recreatieve omgeving wordt ervaren als een kwaliteit van de gemeente. Tilburg streeft er dan ook naar een kwalitatief hoogwaardige groenstructuur duurzaam te ontwikkelen en deze veilig te stellen binnen de stedelijke context. Om dit te bereiken wil het gemeentebestuur de Tilburgers letterlijk en figuurlijk dichter bij groen brengen. Op hoofdlijnen betekent dit:
Inzet op buitenstedelijke groengebieden en het groene netwerk;
het tot zijn recht laten komen van de verschillende karakters van het groen (klassiek-, recreatief- en natuurlijk groen);
het versterken en behouden van het natuurlijk groen.
In 2012 is het bijbehorende Uitvoeringsprogramma Groen en Biodiversiteit vastgesteld.
3.6 Verkeer en parkeren
3.6.1 Mobiliteitsaanpak Tilburg
De 'Mobiliteitsaanpak Tilburg, Samen op weg naar 2040' schetst een toekomst waarin slim en duurzaam vervoer centraal staat. Dat betekent: nieuwe technologieën toepassen, maar ook de gebruiker centraal stellen. Niet als doel op zich, maar om bij te dragen aan een leefbare stad. Daarnaast zet Tilburg in op duurzaamheid: we houden nadrukkelijk rekening met toekomstige generaties.
De gemeentelijke mobiliteitsaanpak is het vervolg op het Tilburgs Verkeers- en Vervoersplan (TVVP). Dat ging vooral over verkeersstromen en vervoermiddelen. In de nieuwe werkwijze vormt de mens het uitgangspunt: wat hebben inwoners, bezoekers en bedrijven nodig om van A naar B te komen? Met deze aanpak wil de gemeente niet alleen verkeersstromen in goede banen leiden, maar ook de kwaliteit van leven in de stad behouden en verbeteren.
Mobiliteitsagenda 013
De hoofdlijnen uit de mobiliteitsaanpak zijn nu uitgewerkt in een agenda met concrete maatregelen en opgaven voor de korte, middellange en lange termijn. In een aantal Tilburgse proeftuinen wordt samen met onderwijs, bedrijfsleven en uiteraard de gebruikers gewerkt aan innovaties op het gebied van slimme mobiliteit. Deze MobiliteitsAgenda013 wordt jaarlijks geactualiseerd in september.
3.6.2 Hoofdlijnennotitie Parkeren 2016
Het gemeentelijk parkeerbeleid is vastgelegd in de Hoofdlijnennotitie Parkeren. Deze is april 2016 door de gemeenteraad vastgesteld. Wij richten ons als stad op gastvrijheid voor de bezoeker, een betere leefkwaliteit voor bewoners en economische vitaliteit van de binnenstad. Wij willen de beschikbare parkeercapaciteit optimaal benutten. Daar hoort bij dat wij parkeerders op de juiste plek faciliteren, ook voor specifieke voorzieningen zoals deelauto’s, elektrische auto’s en andere doelgroepen. Het beter benutten van bestaande parkeercapaciteit van garages en terreinen leidt tot minder zoekverkeer en blik in de woonstraten en biedt kansen voor versterking van ruimtelijke kwaliteit en nieuw groen. De vastgestelde kaders voor het parkeervraagstuk bij bouwontwikkelingen zijn:
Voor het inschatten van de parkeerbehoefte bij nieuwe ontwikkelingen de CROW-richtlijn te hanteren;
In de toepassing van parkeernormen meer vrijstellingen te hanteren, zonder daarbij de (directe) omgeving van de ontwikkeling te belasten met (toekomstige) parkeeroverlast;
Het PPS-gebied in de Spoorzone aan te wijzen als een gebiedsontwikkeling die in zijn eigen parkeerbehoefte moet voorzien, waarbij alleen op (tijdelijke) piekmomenten de parkeercapaciteit in de directe omgeving een uitwijkmogelijkheid is, met name voor bezoekers;
Het basisprincipe te blijven hanteren dat een nieuwe ontwikkeling de parkeerbehoefte op eigen terrein oplost, maar wel de mogelijkheid te bieden af te wijken van deze verplichting zolang daar met voldoende zekerheid geen parkeeroverlast voor de omgeving uit volgt;
Indien wordt afgeweken van het basisprincipe daarvoor het instrument van een afkoopregeling in te zetten, waarmee de afkoopsom de gemeente de gelegenheid geeft om zo nodig maatregelen te treffen om (toekomstige) parkeeroverlast in de omgeving te voorkomen.
3.6.3 nota 'Parkeernormen Tilburg 2017'
In de nota 'Parkeernormen Tilburg 2017' (bijlage 2) zijn de parkeernormen en berekeningsmethode vastgelegd.
Bij het hanteren van de parkeernormen wordt uitgegaan van een minimaal te realiseren aantal parkeerplaatsen. Deze parkeereis dient bij een bouwplan waarvoor een omgevingsvergunning vereist is, minimaal te worden gerealiseerd. De hoofdfunctie is bepalend voor de toe te passen parkeernorm. Het CROW kent voor een range aan functies een parkeernorm. Om de parkeernormen overzichtelijk te houden, is ervoor gekozen om de belangrijkste functies die in gemeente voor komen, op te nemen.
Bij de berekening van de parkeerbehoefte wordt rekening gehouden met zaken als dubbelgebruik, regeling 'oud voor nieuw', rekenregels parkeervoorzieningen bij woningen en het beïnvloeden van de parkeerbehoefte door maatregelen als regulering en mobiliteitsplannen bij bedrijven.
Voor kleine bouwontwikkelingen wordt geen parkeereis gesteld. Kleine ontwikkelingen (ontwikkelingen met een (toename van de) parkeerbehoefte van maximaal 3 parkeerplaatsen) hebben in de regel een marginaal effect op een toename van de parkeerdruk in de omgeving. Dit geldt ongeacht de locatie van de ontwikkeling.
Het plan behelst de bouw van 1 woning. Hiervoor wordt geen parkeereis gesteld. Afgezien daarvan is er in voldoende ruimte op het perceel voorzien om op eigen terrein 2 auto's te parkeren. De ontwikkeling zal dan ook niet leiden tot verhoging van de parkeerdruk in de buurt.
Hoofdstuk 4 Milieuaspecten
4.1 Inleiding
Dit hoofdstuk geeft weer hoe milieuaspecten een rol hebben gespeeld bij het opstellen van het voorliggende bestemmingsplan.
4.2 Milieueffectrapportage
4.2.1 Algemeen
Nagegaan is of voor dit bestemmingsplan een Milieueffectenrapport of een m.e.r. beoordeling opgesteld moet
worden. voor ruimtelijke plannen dient een m.e.r.(beoordeling) te worden opgesteld indien:
er sprake is van een m.e.r.-(beoordelings)plichtige activiteit op grond van de bijlagen bij het Besluit m.e.r.;
voor het plan een passende beoordeling op grond van de Natuurbeschermingswet (Nbw) is vereist.
ad. a.
In de bijlage bij het Besluit mer is opgenomen welke activiteiten mer-plichtig zijn (de C-lijst) en welke
activiteiten mer-beoordelingsplichtig zijn (de D-lijst). De activiteiten die dit bestemmingsplan mogelijk maakt
zijn op grond van de bijlagen bij het Besluit niet m.e.r. (beoordelings)plichtig.
Bij de vraag of er sprake is van een stedelijk ontwikkelingsproject in de zin van het Besluit mer, worden de
concrete omstandigheden afgewogen, waarbij onder meer aspecten als de aard en omvang van de voorziene
wijziging van de stedelijke ontwikkeling een rol spelen (zie o.a. uitspraak RvS ECLI:NL:RVS:2019:1879). Gelet
hierop wordt de bouw van 1 woning niet aangemerkt als een stedelijk ontwikkelingsproject. Weliswaar
verandert het gebruik van het perceel door de toevoeging van 1 woning, maar het ruimtebeslag van de
voorziene bebouwing is te beperkt om aangemerkt te worden als een stedelijk ontwikkelingsproject als
bedoeld in kolom 1 van categorie 11.2 van onderdeel D van de bijlage bij het Besluit milieueffectrapportage.
ad b.
Binnen het plangebied zijn geen Natura2000 of NNN-gebieden aanwezig. De voorgenomen ontwikkeling heeft
derhalve geen directe effect op de Natura2000- of NNN-gebieden. Het dichtstbijzijnde Natura 2000-gebied
betreft Regte Heide & Riels Laag op 5,6 km van het plangebied. Gezien deze afstand en de zeer beperkte
externe invloed van de geplande ontwikkeling kunnen negatieve effecten op dit Natura 2000-gebied op
voorhand redelijkerwijs worden uitgesloten.
Geconcludeerd wordt dat er geen verplichting is tot het opstellen van een MER of een m.e.r.-beoordeling voor deze ontwikkeling.
4.3 Milieuhinder bedrijven
Bij het beoordelen van ( de binnen het plangebied of elders gelegen) bedrijven welke invloed hebben op het plangebied, is gebruik gemaakt de VNG-brochure Bedrijven en Milieuzonering. De VNG brochure is een richtlijn en vormt geen wettelijk kader. Er is voor deze richtlijn gekozen omdat er verder geen goede andere richtlijnen of kaders voorhanden zijn om milieuzonering goed in ruimtelijke plannen af te wegen. In de VNG-uitgave staan richtafstanden voor geur, stof, geluid en gevaar die gebaseerd zijn op een “gemiddeld” modern bedrijf. Deze richtafstanden gelden vanaf de perceelsgrens (of de opslagvoorziening of installatie) tot aan de gevel van woningen in een ´rustige woonwijk´. Indien het bedrijf afwijkt door grootte, technische voorzieningen et cetera is het mogelijk om gemotiveerd af te wijken van de (indicatieve) afstanden.
Het betreft een overwegende woonomgeving. Op zo'n 170 meter afstand van het initiatief ligt een drukke weg met een tankstation. De indicatieve richtafstand voor gevaar van dit tankstation ligt over het plangebied heen. Omdat er sprake is van opslag van LPG is dit aspect nader uitgewerkt in paragraaf 4.4.
Geitenmoratorium
In juni 2017 heeft de Provincie een geitenmoratorium (voor geitenhouderijen met meer dan 50 geiten) opgenomen in de Verordening ruimte. Dit betekent dat geitenhouderijen hun dierenverblijven niet mogen uitbreiden en er geen nieuwe geitenhouderijen mogen worden opgericht. Aanleiding hiervoor was het RIVM-onderzoek "Veehouderij en gezondheid Omwonenden- aanvullende studies" (VGO2). Uit dit onderzoek blijkt dat mensen die binnen 2 kilometer van een geitenhouderij wonen een verhoogde kans op longontsteking hebben. De oorzaak van dit verhoogde risico op longontsteking is niet bekend en wordt op dit moment in opdracht van het Rijk nader onderzocht door het RIVM.
De provinciale verordening regelt alleen de situatie gezien vanuit de positie van geitenboeren (voor hen geldt namelijk dat verbod). Echter, bij het opstellen van ruimtelijke plannen (o.a. bestemmingsplannen) moet ook aan de zgn. omgekeerde werking worden getoetst. Hiervoor heeft het college op d.d. 14 mei 2019 de beleidslijn geitenmoratorium in ruimtelijke plannen vastgesteld.
Dit houdt in dat:
wooninitiatieven binnen stedelijk gebied (zgn. inbreidingslocaties) zonder meer worden toegestaan;
kleine woningbouwinitiatieven buiten de bebouwde kom worden toegestaan met een maximum van 5 Ruimte voor Ruimte-woningen in ruil voor het inleveren van vergunde fosfaatrechten binnen de gemeentelijke grenzen;
met initiatiefnemers worden afspraken gemaakt om potentiële bewoners van nieuwe woningen binnen een straal van 2 km van een geitenhouderij te informeren over de gezondheidsrisico's;
nieuwe initiatieven met de planologische bestemmingen kinderdagverblijf, verzorgingshuis, verpleeghuis en zorgwoning niet worden toegestaan binnen een straal van 2 km van een geitenhouderij;
de overige initiatieven waarvoor een ruimtelijke afweging nodig is en niet passen in bovenstaande criteria worden voorgelegd aan de GGD voor screening van de gezondheidsrisico's.
Wanneer nieuwe onderzoeken tot andere inzichten over gezondheidsrisico's in relatie tot geitenhouderijen leiden zal een nieuw beleidsvoorstel worden gedaan.
Er liggen geen geitenhouderijen binnen 2 km van het initiatief. Hiermee is er geen belemmering voor dit initiatief.
4.4 Externe veiligheid
4.4.1 Inleiding
Externe veiligheid beschrijft de risico's die kunnen ontstaan als gevolg van opslag of handelingen met gevaarlijke stoffen. Dit heeft betrekking op inrichtingen (bedrijven), transportroutes en buisleidingen. Omdat de gevolgen bij een calamiteit groot kunnen zijn, is in wetgeving bepaald wanneer risico's verantwoord moeten worden. Deze zogenoemde verantwoordingsplicht betekent dat in ruimtelijke procedure de keuzes moeten worden onderbouwd én verantwoord door het bevoegd gezag. Hierbij geeft het bevoegd gezag aan in te stemmen met de risico's en de betreffende situatie aanvaardbaar te vinden.
De volgende besluiten zijn van belang bij ruimtelijke procedures:
Besluit externe veiligheid inrichtingen (Bevi) van 2004 (sindsdien enkele keren aangepast);
Besluit externe veiligheid transportroutes (Bevt) van 1 april 2015;
Besluit externe veiligheid buisleidingen (Bevb) van 1 januari 2011.
Daarnaast heeft de gemeente Tilburg een beleidsvisie externe veiligheid vastgesteld met de titel "Veilig en verantwoord ontwikkelen".
4.4.2 Verantwoordingsplicht
Bij het opstellen van een bestemmingsplan moet worden beschreven of een ontwikkeling ligt in het invloedsgebied van een risicobron. Per risicobron (transportas, buisleiding of inrichting) is vastgelegd wanneer de verantwoordingsplicht moet worden ingevuld en is de inhoud van de verantwoording bepaald.
In de bij dit plan gevoegde Risico-inventarisatie en verantwoording groepsrisico (bijlage 3) zijn de relevante risicobronnen geïnventariseerd. Uit de inventarisatie blijkt dat het plangebied ligt in het invloedsgebied van Versteijnen Logistic Services B.V., de spoorlijn Breda - Tilburg en de Rijksweg A58. De verantwoordingsplicht is hiervoor ingevuld en opgenomen in de genoemde bijlage. Het invloedsgebied van het nabijgelegen LPG-tankstation aan de Burgemeester Baron van Voorst tot Voorstweg 151 (150 meter vanaf het vulpunt en het reservoir) reikt niet tot het plangebied en is daarmee geen relevante risicobron.
4.4.3 Beleidsvisie externe veiligheid
In de beleidsvisie externe veiligheid wordt het gebied waarin het plangebied ligt aangemerkt als een luw gebied. Binnen een luw gebied gelden de volgende voorwaarden:
Kwetsbare objecten zijn overal mogelijk;
Geschikt voor bijzonder kwetsbare functies/objecten;
Bestaande risicovolle inrichtingen en kwetsbare objecten zijn onder voorwaarden mogelijk;
Bevi-inrichtingen zijn niet mogelijk;
Beheersbaarheid gericht op effecten van mogelijke calamiteiten op orde.
Aan bovengenoemde randvoorwaarden wordt voldaan. De ruimtelijke ontwikkeling is niet strijdig met het gemeentelijke externe veiligheidsbeleid.
4.4.4 Conclusie en restrisico
Het plangebied ligt binnen het invloedsgebied van Versteijnen Logistic Services B.V., de spoorlijn Breda - Tilburg en de Rijksweg A58. Personen in het plangebied worden aan externe veiligheidsrisico's blootgesteld, ook na maatregelen. Vanwege de ligging van het bestemmingsplan binnen het invloedsgebied van deze risicobronnen is de verantwoordingsplicht ingevuld (zie de eerdergenoemde bijlage Risico-inventarisatie en verantwoording groepsrisico).
De brandweer Midden -en West Brabant heeft aangegeven dat gebruik kan worden gemaakt van het standaardadvies, de relevante onderdelen uit het advies zijn verwerkt in de verantwoording.
Uit het bovenstaande worden de volgende relevante conclusies getrokken:
De plaatsgebonden risicocontour van 10-6 per jaar van risicobronnen in de omgeving van het plangebied vormt geen belemmering voor het initiatief;
Aangezien het plan op ≥400 meter van de relevante transportroutes gevaarlijke stoffen ligt, neemt het groepsrisico van deze risicobronnen in de toekomstige situatie niet toe;
De bereikbaarheid van het plangebied is goed;
Goede communicatie kan een bijdrage leveren aan de zelfredzaamheid van personen. In Tilburg vindt communicatie plaats via de Risicokaart, en de risicocommunicatie-campagne Denk Vooruit;
Het plangebied ligt in het dekkingsgebied van de WAS-installatie (Waarschuwings- en alarmeringssysteem), dit biedt de mogelijkheid de bewoners tijdig te waarschuwen;
De aanwezigen kunnen het plangebied goed ontvluchten;
Bij een incident met een toxische wolk is binnen schuilen vaak de beste oplossing. Bij mechanische ventilatie heeft het de voorkeur dat deze in de meterkast kan worden uitgezet. Hiermee is langdurig verblijf inpandig bij een toxische wolk mogelijk.
De brandweer voldoet aan de opkomsttijd conform het dekkings- en spreidingsplan.
Het bevoegd gezag accepteert de externe veiligheidsrisico's en neemt de verantwoording voor het groepsrisico.
4.5 Geluid
Sinds het einde van de jaren zeventig vormt de Wet geluidhinder (Wgh) het juridische kader voor het Nederlandse geluidbeleid. De Wgh bevat een uitgebreid stelsel van bepalingen ter voorkoming en bestrijding van geluidhinder door wegverkeer, railverkeer en industriële activiteit. Het stelsel is gericht op het voorkomen van nieuwe geluidgehinderden.
4.5.1 Wegverkeerlawaai
Binnen het plangebied zijn geluidgevoelige bestemmingen gelegen binnen de zones van wegen, zoals bedoeld in hoofdstuk VI van de wet ("zones langs wegen"). Het betreft de bouw van één woning.
Voor deze geluidgevoelige bestemming is een akoestisch onderzoek (Vliex Akoestiek en Lawaaibeheersing, 9 september 2019, projectnummer 2019033.G1) (bijlage 4) uitgevoerd en heeft een toetsing plaatsgevonden aan de normen uit de Wet geluidhinder. Uit het akoestisch onderzoek blijkt dat de voorkeursgrenswaarde van 48 dB vanwege de omliggende wegen niet wordt overschreden. Er sprake van een acceptabel woon- en leefklimaat.
4.5.2 Railverkeerlawaai
De geplande woning is gelegen binnen de zone van het spoortraject Tilburg-Breda.
Voor deze woning is een akoestisch onderzoek (Vliex Akoestiek en Lawaaibeheersing, 9 september 2019, projectnummer 2019033.G1) uitgevoerd en heeft een toetsing plaatsgevonden aan de normen uit hoofdstuk VII ("zones langs spoorwegen") van de Wet geluidhinder. Uit het akoestisch onderzoek blijkt dat de geluidbelasting vanwege railverkeerslawaai ten hoogste 59 dB bedraagt. Er zijn maatregelen onderzocht om de geluidbelasting te reduceren. De resultaten staan in het akoestisch onderzoek.
Het plaatsen van een geluidsscherm langs het spoor is vanuit financieel oogpunt niet doelmatig en vanuit stedenbouwkundig oogpunt niet wenselijk. Bronmaatregelen aan het spoor is gezien de zeer beperkte invloed die gemeenten en ontwikkelaar op dergelijke maatregelen hebben en het maar om één woning gaat niet realistisch. Vergroting van de afstand tussen bron en ontvanger is niet mogelijk.
Voor de te realiseren woning heeft het college van burgemeester en wethouders een hogere waarde-besluit genomen. Dit besluit is bij de regels van dit bestemmingsplan gevoegd.
4.5.3 Industrielawaai
In het plangebied is de vestiging uitgesloten van bedrijven die vallen onder Onderdeel D van Bijlage I van het Besluit omgevingsrecht. Hoofdstuk V "Zones rond industrieterreinen" van de Wet geluidhinder is hierdoor niet van toepassing.
4.5.4 Luchtvaartlawaai
Als gevolg van de nabijheid van het militaire vliegveld Gilze-Rijen gelden in delen van Tilburg geluidzones (de zogenaamde Ke-zones). Deze zones liggen niet over het plangebied.
4.6 Lucht
Het doel van de Wet luchtkwaliteit (opgenomen in hoofdstuk 5, titel 2 van de Wet milieubeheer) is het beschermen van mens en milieu tegen de negatieve effecten van luchtverontreiniging. Het besluit is primair gericht op het voorkomen van effecten op de gezondheid van mensen. De grenswaarden voor zwaveldioxide, stikstofdioxide en stikstofoxiden, zwevende deeltjes (PM10; fijn stof), lood, koolmonoxide en benzeen geven het kwaliteitsniveau van de buitenlucht aan dat op een gegeven tijdstip moet zijn bereikt en daar waar het juiste kwaliteitsniveau al aanwezig is, zoveel mogelijk in stand moet worden gehouden.
De bestemmingen in het plangebied zijn getoetst aan de luchtkwaliteitsnormen uit hoofdstuk 5, titel 2 van de Wet milieubeheer. Het plan voorziet in de realisatie van één woning. Hierdoor kan het plan worden gekenmerkt als een "niet in betekenende mate"-project, zoals bedoeld in het Besluit niet in betekenende mate bijdragen (luchtkwaliteitseisen). Er zijn geen luchtgevoelige bestemmingen, zoals bedoeld in het Besluit gevoelige bestemmingen (luchtkwaliteitseisen). Vanuit de Wet milieubeheer bestaat dan ook geen bezwaar tegen dit plan.
4.7 Geur
4.7.1 Industriële geurhinder
In en om het plangebied is geen zware industrie toegestaan. Hier zal dus ook geen sprake zijn van industriële geurhinder.
4.7.2 Agrarische geurhinder
In en om het plangebied zijn geen agrarische bedrijven toegestaan. Hier zal dus ook geen sprake zijn van agrarische geurhinder.
4.8 Bodem
In het belang van de bescherming van het milieu zijn, ten einde de bodem te beschermen, regels gesteld in de Wet bodembescherming (Wbb). De wet is van toepassing op bestemmingsplannen die nieuwe ruimtelijke ontwikkelingen mogelijk maken zoals bijvoorbeeld stedelijke uitleggebieden, stedelijke herstructurering of herontwikkelingsopgaven, waarbij het gebruikelijk is om in de toelichting nader in te gaan op eventuele verontreinigingsituaties op basis van een bodemonderzoek. In beginsel dient een bestemmingsplan(-wijziging) minimaal vergezeld te worden van een verkennend bodemonderzoek, conform de NEN 5740, die niet ouder is dan 5 jaar.
Er is geen bodemonderzoek aangeleverd doch er zijn bij ons genoeg bodemgegevens bekend: zie navolgend onder 'Bodemkwaliteit plangebied'.
Algemeen: Bodembeleid gemeente Tilburg:
Naast het bovengenoemde, landelijk erkende onderzoeksprotocol is voor de paragraaf en de herontwikkeling verder van belang:
Nota 'In goede aarde':
In deze nota valt te lezen hoe de gemeente Tilburg te werk gaat bij bodemsanering in Tilburg (specifiek Bodembeleid gemeente Tilburg). In deze context en de navolgende wordt opgemerkt dat in Noord-Brabant, zo ook in Tilburg, regelmatig verhoogde waarden voor (zware) metalen in grond en grondwater aangetroffen worden zonder direct aanwijsbare bron. Dergelijke verhoogde waarden zijn eerder regel dan uitzondering, hebben een diffuus verspreidingsbeeld en kunnen sterk in tijd en ruimte variëren. Conform de nota zijn verhoogde waarden aan (zware) metalen, met name nikkel, koper, zink en arseen, in dergelijke gevallen als verhoogde achtergrondgehalten te beschouwen. Deze vormen over het algemeen geen actuele risico's voor de gezondheid en het milieu;
Bodembeheerplan (Bodemkwaliteitskaart)
Op basis van reeds uitgevoerde bodemonderzoeken op onverdachte terreinen is de Tilburgse bodemkwaliteitskaart vastgesteld. In de Tilburgse bodemkwaliteitskaart worden bodemkwaliteitszones onderscheiden. Per bodemkwaliteitszone is de gemiddelde bodemkwaliteit vastgesteld. Het plangebied is gelegen in de bodemkwaliteitszone 'Wonen' (Toepassingskaart/Bodemfunctieklassenkaart). Ten aanzien van voornoemde zone mag de bodemkwaliteit niet verslechteren d.w.z., er mag in principe geen grond worden toegepast van een slechtere kwaliteit. Grond uit deze zone kan worden toegepast in worden in de eigen zone of een zone met dezelfde kwaliteit ('Wonen') en in de zone 'Industrie'.
Uitdrukkelijk wordt verwezen naar het de 'Nota bodembeheer gemeente Tilburg' (volg de eerder geven weblink). Daarin staat beschreven wat de (on-)mogelijkheden en uitzonderingen zijn van de toepassing of hergebruik van gebiedseigen grond van een mindere kwaliteit. De actuele/werkelijke grondkwaliteit wordt behandeld 'Bodemkwaliteit Plangebied' (navolgend).
Bodemkwaliteit Plangebied
Er is geen bodemonderzoek aangeleverd. Er zijn bij ons bodemgegevens bekend van "Reeshof" e.o. maar niet van dit gedeelte. T.b.v. deze wijziging zijn bodemrapporten van omringende grootschalige herontwikkelingslocaties Huibeven I/II - bodemrapporten met Tilburgse rapportcodes AA085507287 (1985), AA085507288 (1988) en AA085507289 (1990) - en Witbrand-Oost, rapport AA085523799 (2003), beschouwd: deze rapporten laten dezelfde ontstaansgeschiedenis en analyseresultaten zien:
Tot het eind van de vorige eeuw bestond het gebied uit zogenaamde woeste grond; afwisselend heidevelden, bos en zandverstuivingen. Rond de eeuwwisseling is het gebied in cultuur gebracht: akkerbouw en weidland (veeteelt);
De grond bevat als gevolg van met name de akkerbouw (gewasbestrijdingsmiddelen) en depositie in haar algemeenheid geen tot, in wisselende samenstellingen, ten hoogste licht verhoogde gehalten aan één of meer zware metalen en EOX. Incidenteel wordt PAK licht verhoogd gemeten. EOX als gevolg van gewasbestrijdingsmiddelen. PAK mogelijk als gevolg dat koolgruis door de boeren als bodemverbeteraar is toegepast. Deze kwaliteit uit zich ook in de bodemkwaliteitskaart;
Het grondwater bevat structureel licht tot matig verhoogde gehalten aan een rits aan zware metalen. Incidenteel is een enkel metaal, zoals zink, zelfs sterk verhoogd: In Noord-Brabant worden regelmatig verhoogde waarden voor (zware) metalen in grond en grondwater aangetroffen zonder direct aanwijsbare bron (verhoogde achtergrondgehalten). Dergelijke verhoogde achtergrondgehalten zijn eerder regel dan uitzondering, hebben een diffuus verspreidingsbeeld en kunnen sterk in tijd en ruimte variëren. Deze vormen over het algemeen geen actuele risico's voor de gezondheid en het milieu.
Incidenteel worden in wisselende samenstellingen ook EOX, door een individuele VOCL, vluchtige aromaten (BTEX) en/of naftaleen (als onderdeel van de analyse BTEXN) licht verhoogd gemeten. Behoudens EOX is voor de andere genoemde stoffen geen directe oorzaak te noemen waarom deze in dit gebied incidenteel licht verhoogd wordt gemeten.
Conclusie
Voor de bodem ter plaatse van het plangebied zijn er op basis van de verwachte bodemkwaliteit, gelet op dat hier een splitsing van een woonkavel betreft (en de bouw van een extra woning), gelegen in een woonwijk, en met in achtneming van het navolgende advies, geen directe gezondheidsrisico's. Er zijn geen gebruiksbeperkingen voor de grond. Geadviseerd wordt om niet tot terughoudend te zijn met het gebruik van grondwater: gezien de gemeten gehalten en stofsoorten, is het grondwater niet zonder meer geschikt voor alle gebruiksdoeleinden. Bij incidenteel gebruik van ondiep grondwater om eetbare gewassen te besproeien - het grondwater vangt aan op circa 2 meter minus maaiveld, zal er overigens naar verwachting geen sprake zijn van een belangrijk gezondheidsrisico. Alleen een ter plaatse uitgevoerd grondwateronderzoek kan uitsluitsel geven wat de daadwerkelijk kwaliteit is. Aansluitend wordt opgemerkt dat voor een bouwaanvraag (Omgevingsvergunning) een relevant en actueel bodemonderzoek, niet ouder dan 5 jaar, conform de NEN5740 zal worden verlangd.
In het kader van de maatschappelijk-financiële afweging worden er vanuit dit oogpunt geen of geen noemenswaardige belemmeringen verwacht.
Op aanvoer van grond of afvoer van overtollige, overwegend licht verontreinigde grond, is het landelijk Besluit bodemkwaliteit van toepassing en de gemeentelijke bodembeheerplan/bodemkwaliteitskaart, indien de overtollige grond binnen Tilburg wordt hergebruikt/toegepast.
4.9 Natuur en ecologie
4.9.1 Wettelijke kaders
De bescherming van de natuur is in Nederland wettelijk vastgelegd in de Wet Natuurbescherming. De Wet Natuurbescherming bestaat uit een hoofdstuk "Natura 2000-gebieden" (ter vervanging van de Natuurbeschermingswet), een hoofdstuk "soorten" (ter vervanging van de Flora- en faunawet) en een hoofdstuk "houtopstanden" (ter vervanging van de Boswet). De Wet natuurbescherming voorziet ten opzichte van de oude wetten in een meer directe doorvertaling en interpretatie van de Europese Vogel- en Habitatrichtlijn en andere internationale verdragen en overeenkomsten. Daarnaast is onder de nieuwe wet het bevoegd gezag van het rijk naar de provincies verschoven.
Het hoofdstuk Natura 2000-gebieden heeft betrekking op de Natura-2000-gebieden, die Nederland heeft aangewezen ter bescherming van natuurwaarden uit de Vogelrichtlijn en Habitatrichtlijn. Als er door projecten, plannen en activiteiten mogelijkerwijs significante effecten optreden op de natuurwaarden in deze gebieden, dienen deze vooraf in kaart gebracht en beoordeeld te worden. Projecten, plannen en activiteiten die mogelijk een negatief effect hebben op de aangewezen natuurwaarden van een Natura 2000-gebied zijn vergunningsplichtig. Als significante effecten aan de orde zijn, wordt slechts onder zeer strikte voorwaarden een vergunning verleend.
Het hoofdstuk Soorten heeft betrekking op alle in Nederland in het wild voorkomende zoogdieren, vogels, reptielen en amfibieën en op een aantal vissen, ongewervelde diersoorten en vaatplanten. Voor alle plant- en diersoorten geldt een zorgplicht. Deze zorgplicht houdt in dat de initiatiefnemer dat wat redelijkerwijs mogelijk is doet of nalaat om schade aan soorten te voorkomen of zoveel mogelijk te beperken. Voor de wettelijk beschermde soorten gelden bovenop de zorgplicht verbodsbepalingen voor schadelijke ingrepen. Voor het beoordelen van ruimtelijke ingrepen zijn de soorten in te delen in de volgende categorieën:
Vogels met een jaarrond beschermde nestplaats (deze soorten zijn benoemd in het document "Aangepaste lijst jaarrond beschermde vogelnesten ontheffing Flora- en faunawet ruimtelijke ingreep", Dienst Regelingen, 2009. Hierin worden 4 categorieën vogels genoemd waarvan de nesten jaarrond beschermd zijn, en een categorie 5 waarvan de nesten onder bepaalde voorwaarden jaarrond beschermd zijn)
Overige inheemse broedvogels
Soorten vermeld in bijlage IV van de Habitatrichtlijn
Nationaal beschermde soorten zonder algemene vrijstelling (de algemene vrijstellingen zijn door iedere provincie in verordeningen vastgelegd. In Noord-Brabant zijn de vrijgestelde soorten benoemd in de Verordening natuurbescherming Noord-Brabant)
Nationaal beschermde soorten met algemene vrijstelling.
Voor vogelsoorten met jaarrond beschermde nestplaats en soorten van bijlage IV van de Habitatrichtlijn geldt het strengste beschermingsregime. Het is verboden dieren van deze soorten te doden, te vangen, opzettelijk te verstoren en tevens om rust- en voortplantingsplaatsen te beschadigen of vernielen. Voor planten geldt een verbod op plukken, ontwortelen en vernielen. Ontheffing van deze verboden is slechts mogelijk voor een beperkt aantal in de wet genoemde belangen, en mits er geen andere bevredigende oplossing bestaat en de gunstige staat van instandhouding gewaarborgd blijft. Om de gunstige staat van instandhouding te waarborgen is het bovendien in de meeste gevallen nodig om mitigerende en/of compenserende maatregelen te nemen. Voor vogels zonder jaarrond beschermde nestplaatsen gelden deze voorwaarden ook. Voor deze soorten kan overtreding van de verbodsbepalingen echter worden voorkomen door werkzaamheden uit te voeren buiten de broed- en nestperiode.
Voor nationaal beschermde diersoorten is het verboden om deze opzettelijk te doden of te vangen en om rust- en voortplantingsplaatsen te beschadigen of vernielen. Voor nationaal beschermde plantensoorten is het verboden om deze opzettelijk te plukken, ontwortelen of vernielen. De provincie kan ontheffing van de verboden verlenen voor ruimtelijke ontwikkelingen, mits er geen andere bevredigende oplossing bestaat en de gunstige staat van instandhouding gewaarborgd blijft. Er geldt een vrijstelling van de verbodsbepalingen indien wordt gewerkt conform een goedgekeurde gedragscode.
Naast dit wettelijk kader vindt beleidsmatige bescherming van natuurwaarden plaats in het Nationaal Natuurnetwerk (voorheen bekend als ecologische hoofdstructuur - EHS), die is geïntroduceerd in het ‘Natuurbeleidsplan’ (1990) van het Rijk en op provinciaal niveau is vastgelegd. De provinciale groenstructuur bestaande uit het Natuurnetwerk Brabant (NNB) en Groenblauwe Mantel is ruimtelijk vastgelegd in de Verordening ruimte Noord-Brabant 2014. Het Natuurnetwerk Brabant is een robuust netwerk van natuurgebieden en tussenliggende verbindingszones. Dit netwerk bestaat uit bestaande natuurgebieden, nieuw aan te leggen natuur en verbindingszones tussen de gebieden. Het beleid binnen het Natuurnetwerk Brabant is gericht op behoud en ontwikkeling van natuur- en landschapswaarden via een "nee-tenzijbenadering". De feitelijke beleidsmatige gebiedsbescherming vindt plaats via de uitwerking van het provinciaal beleid in de gemeentelijke bestemmingsplannen. De groenblauwe mantel vormt het gebied tussen het kerngebied groenblauw en het agrarisch gebied, alsook het stedelijk gebied. De groenblauwe mantel bestaat overwegend uit multifunctioneel landelijk gebied met grondgebonden landbouw. Het beleid binnen de groenblauwe mantel is gericht op het behoud en vooral de ontwikkeling van natuur, watersysteem en landschap. De groenblauwe mantel geeft ook ruimte voor de ontwikkeling van gebruiksfuncties, zoals landbouw en recreatie, mits deze bijdragen aan de kwaliteiten van natuur, water en landschap: de “ja-mitsbenadering”. De groenblauwe mantel biedt echter geen ruimte voor stedelijke ontwikkeling of de ontwikkeling van nieuwe (kapitaal)intensieve vormen van recreatie en landbouw.
4.9.2 Analyse plangebied
Er is een natuurtoets uitgevoerd (quickscan flora en fauna Reeshofdijk 25 Tilburg) waarin wordt ingegaan op gebiedsbescherming en soortenbescherming. Hieronder volgen de belangrijkste bevindingen en conclusies van deze natuurtoets. Voor de volledige rapportage wordt verwezen naar bijlage 5.
Natura 2000-gebieden
Het plangebied ligt op ruime afstand van wettelijk beschermde natuurgebieden. Het dichtstbijzijnde Natura 2000-gebied betreft Regte Heide & Riels Laag op circa 5,6 km van het plangebied. Gezien deze afstand en de zeer beperkte externe invloed van de geplande ontwikkeling kunnen negatieve effecten op dit Natura 2000-gebied op voorhand redelijkerwijs worden uitgesloten.
Natuurbescherming in Verordening ruimte
Het plangebied ligt buiten het Natuurnetwerk Brabant (voorheen Ecologische Hoofdstructuur) en de Groenblauwe Mantel, zoals begrensd op de kaarten van de Verordening Ruimte. De provincie Noord-Brabant hanteert een externe werking als het gaat om NNB, indien een bestemmingsplan leidt tot aantasting van de ecologische waarden anders dan door de verspreiding van stoffen in lucht of water. Het dichtstbijzijnde NNB-gebied ligt op circa 30 meter van het plangebied. Tussen het plangebied en het NNB-gebied zijn echter een weg en een woning met tuin aanwezig. In de quickscan is beoordeeld dat gezien de beperkte aard van de werkzaamheden de bestemmingsplanwijziging geen significant negatief effect zal hebben op dit gebied.
Soortenbescherming
Er zijn binnen het plangebied geen beschermde wilde plantensoorten aangetroffen. Deze soorten zijn ook niet te verwachten. Om deze redenen zullen er door de voorgenomen plannen geen nadelige effecten optreden ten aanzien van deze soortgroep en zijn er, naast de zorgplicht, vanuit de Wnb geen verdere verplichtingen.
Er zijn geen vogelnesten c.q. verblijfplaatsen aangetroffen. Algemeen voorkomende soorten zonder jaarrond beschermd nest kunnen blijven broeden in de directe omgeving van het plangebied. Indien broedende vogels in de directe omgeving van het plangebied aanwezig zijn, kunnen verstorende werkzaamheden zoals bouwwerkzaamheden of een verwijdering van beplanting mogelijk echter niet plaatsvinden zonder hinder te veroorzaken. Wanneer er geen broedende vogels aanwezig zijn kunnen de werkzaamheden wel plaatsvinden. Indien er op deze manier wordt gehandeld, treden er geen nadelige effecten op ten aanzien van vogels. Wanneer de werkzaamheden in het geheel plaatsvinden in de minst kwetsbare periode (tussen begin oktober en half februari) worden eveneens geen nadelige effecten verwacht. Dit laatste verdient derhalve aanbeveling. Indien de werkzaamheden worden uitgevoerd op bovenstaande wijze, zullen er geen nadelige effecten optreden ten aanzien van vogels.
Er zijn geen vaste verblijf- of voortplantingsplaatsen van vleermuizen aanwezig binnen het plangebied. Mogelijk wordt er gefoerageerd binnen of nabij het plangebied. Foerageergebied is alleen beschermd wanneer dit gebied noodzakelijk is om de functionaliteit van een vaste verblijfplaats te behouden. In de directe omgeving van het plangebied is echter voldoende alternatief foerageergebied aanwezig in de vorm van tuinen en bomenrijen. Ook is het verstorend effect op foeragerende vleermuizen uit te sluiten indien de bouwwerkzaamheden overdag uitgevoerd worden. Een negatief effect op vaste vliegroutes is eveneens niet te verwachten. Gezien het vorenstaande zijn er derhalve geen negatieve effecten te verwachten met betrekking tot vleermuizen.
Binnen het plangebied zijn geen vaste verblijf- of voortplantingsplaatsen vastgesteld van soorten uit overige soortgroepen die zijn beschermd bij de Habitatrichtlijn of van soorten die niet zijn vrijgesteld door de provincie. Algemeen voorkomende soorten zijn door de provincie vrijgesteld van de verbodsbepalingen als het een ruimtelijke ingreep of inrichting betreft. Wel geldt de zorgplicht voor dergelijke soorten. Zolang de zorgplicht wordt nageleefd zijn er derhalve geen negatieve effecten te verwachten met betrekking tot overige diersoorten.
Conclusie
Vanuit de wettelijke gebiedsbescherming van Natura 2000-gebieden zijn geen beperkingen of voorwaarden aan het plan verbonden. Ook vanuit de natuurbeschermingsregels uit de Verordening Ruimte (Natuurnetwerk Brabant en Groenblauwe Mantel) zijn geen beperkingen of voorwaarden aan het plan verbonden.
Het bestemmingsplan kan in overeenstemming met de wettelijke soortenbescherming worden uitgevoerd, mits de volgende voorwaarden in acht worden genomen:
begroeiingen waarin vogels kunnen nestelen worden verwijderd buiten het broedseizoen;
werkzaamheden worden overdag uitgevoerd om een verstorend effect op vleermuizen uit te sluiten.
Hoofdstuk 5 Wateraspecten
5.1 Bestaand watersysteem
De belangrijkste kenmerken van het gebied en perceel zijn weergegeven in tabel 1. Het te ontwikkelen perceel is in de bestaande situatie niet verhard.
|
Kenmerk |
In plangebied |
|
Stroomgebied |
Donge |
|
Waterbeheerders |
Stedelijk watersysteem: gemeente Tilburg Zuivering afvalwater: waterschap De Dommel Oppervlaktewater: waterschap Brabantse Delta |
|
Bruto oppervlakte |
Ca. 805 m2 |
|
Terreinhoogte |
Tussen NAP+10,3 m en NAP+10,5 m |
|
Gemiddelde hoogste grondwaterstand (GHG) |
ca. NAP+9,0 m |
|
Ontwateringdiepte |
1,3 à 1,5 m |
|
Bodem |
Zwak lemig, matig fijn zand |
|
Riolering |
Gescheiden riolering |
|
Afkoppelgebied |
Niet van toepassing |
|
Oppervlaktewater |
In heel Reeshof bevinden zich watergangen bijhorend bij de gescheiden riolering. Zie afbeelding 1. |
|
Keur beschermde gebieden |
Het plangebied valt binnen het invloedgebied Natura 2000. Zie afbeelding 2. |
Tabel 1: gebiedskenmerken
Afbeelding 1: Locatie plangebied ten opzichte van oppervlaktewater. Met rood is het perceel aangegeven
Direct aan de noordoostzijde van het bestaande perceel 3347 en aan de westzijde van de percelen direct ten westen van het bestaande perceel is gescheiden riolering aanwezig. Aan de zuidzijde ligt geen riolering. Het perceel zelf is gedeeltelijk verhard/bebouwd. Het te ontwikkelen deelperceel is onverhard en bebost, en er is geen riolering op het plangebied aanwezig. Op het plangebied infiltreert het regenwater in de bodem tot het grondwater.
Aan de overkant van de Reeshofdijk ligt een watervoerende watergang, die zorgt voor de afwatering van de weg en overtollig regenwater van aangrenzende percelen. Het regenwater stroomt af tot het watersysteem van Reeshof.
![i_NL.IMRO.0855.BSP2019019-e001_402005.png [image]](i_NL.IMRO.0855.BSP2019019-e001_402005.png)
Afbeelding 2; Locatie plangebied (rood vlak) ten opzichte van de beschermingsgebieden keur.
5.2 Beleidskader
Het waterschap De Brabantse Delta heeft het Waterbeheerplan 'Grenzeloos Verbindend' 2016 - 2021 vastgesteld op 14 oktober 2015. Het Waterbeheerplan is opgesteld vanuit de invalshoeken: Risico’s beheersen, Duurzame ontwikkeling, Maatschappelijk verantwoord en vernieuwend en Effectief en efficiënt. Het plan is gericht op het bereiken van de volgende doelen: droge voeten, voldoende water, bevaarbare rivieren, gezonde natuur en schoon water, door samenwerking met partners. Naast dit beheerplan beschikt het waterschap over verschillende beleidsregels en de Keur die van belang zijn voor eventuele ontwikkelingen.
Het Provinciale Milieu- en Waterplan 2016 - 2021 (PMWP) is in 2015 door de provincie Noord-Brabant vastgesteld. Zowel het PMWP als het waterbeheerplan lopen parallel met de 2e termijn van de Kaderrichtlijn Water.
Het waterbeleid van de gemeente Tilburg is vastgelegd in het vGRP 2016-2020 (vastgesteld november 2016). Bij de totstandkoming van dit beleid zijn de waterbeheerders nauw betrokken. In het vGRP is invulling aan het lange termijn beleid dat gestart is met het Waterplan (1997), het Waterstructuurplan (2002), de Structuurvisie Water en Riolering 2010-2015 en voorgaande Gemeentelijke Rioleringsplannen. Ook de Omgevingsvisie 2040 (vastgesteld september 2015) is van belang. In deze omgevingsvisie zijn alle uitgangspunten en opgaves voor de komende decennia vastgelegd.
5.3 Toekomstige situatie
De ontwikkeling betreft een deelperceel van het huidige perceel 3347. Op het deelperceel wordt de bouw van een woning mogelijk gemaakt. Voor de nieuwe situatie van het deelperceel wordt uitgegaan van de gegevens in tabel 2.
|
Oppervlakken * |
Oppervlak (m²) |
Verharding (%) |
Afvoerend (m²) |
|
Daken |
105 |
100 |
105 |
|
Erf |
700 |
50 |
350 |
|
Totaal (m²) |
805 |
|
455 |
Tabel 2: Afvoerende oppervlakken in de plansituatie
Duurzaam watersysteem
De eigenaar van de grond bepaalt de hoogten van de terreinpeilen en de vloerpeilen binnen de perceelgrenzen. Deze peilen moeten afgewogen en gekozen worden aan de hand van de volgende factoren:
voldoende ontwateringdiepte;
de water- en vochtdichtheid van alle ondergrondse bouwdelen dient te allen tijde voldoende te zijn voor de nieuwe functie van de ruimte;
de vuil- en regenwaterafvoer moet mogelijk zijn via de aangeboden lozingspunten en dus op het juiste peil worden aangeboden;
aansluiten op de bestaande aangrenzende percelen en op de (toekomstige) terreinhoogte van de openbare ruimte ter plaatse van de grens (T-hoogte);
geen afvloeiend regenwater afwentelen buiten de (toekomstige) percelen;
afdoende bescherming tegen overstroming bij extreem neerslag.
De gemeente bepaalt de hoogte van de (toekomstige) openbare ruimte. Daarbij zijn verschillende factoren van belang, waaronder de ontwateringdiepte. In de bestaande situatie is de ontwateringdiepte voldoende voor de nieuwe functies. Hierom worden geen preventieve maatregelen vastgesteld om grondwater- of vochtoverlast te voorkomen. Om de aansluiting op nabije terreinhoogten optimaal te houden wordt de bestaande terreinhoogte ter plaatse van de perceelgrens (T-hoogte) gehandhaafd.
De gemeente adviseert de terreinhoogten aansluitend op de bestaande openbare ruimte en aangrenzende percelen en de vloerhoogten minimaal 15 à 20 cm hoger te kiezen in verband met mogelijke effecten van extreme neerslag.
Door de ligging binnen de invloedsfeer van Natura 2000 gebieden (zie afbeelding 2) zijn nieuwe grondwateronttrekkingen niet toegestaan en geldt er een beregeningsbeleid. Draineren is uitgesloten in verband met nadelige effecten op de waterhuishouding.
Regen- en afvalwater
Tilburg streeft naar een betere leefomgeving. Daarbij speelt de trits vasthouden-bergen-afvoeren een centrale rol. In eerste instantie gaat het om het gebiedseigen water zoveel mogelijk vast te houden (trits vasthouden-bergen-afvoeren).
Mogelijkheden hiervoor zijn:
Minder terrein verharden;
Hergebruik van regenwater voor bijvoorbeeld toiletspoeling of wassen van voertuigen;
Groene daken;
Water opvangen in poelen, regentonnen e.d.;
Waterdoorlatende verharding.
Alle beetjes helpen, andere / innoverende ideeën zijn mogelijk.
In 2019 is / wordt beleid vastgesteld waarmee van iedere ontwikkeling verlangd wordt dat ze hier invulling aan geeft door in een vastgestelde bergingsopgave voor het plangebied te voorzien. De voorgenomen bergingsopgave bedraagt 60 mm, oftewel 60 l/m² verharding van de nieuwe situatie. Hiermee draagt het plangebied bij aan het hydrologisch neutraal (her)ontwikkelen van Tilburg.
Vooruitlopend op het nieuwe beleid en op basis van afvoerende oppervlakken in de toekomstige situatie is daarmee voor het plangebied de bergingsopgave vastgesteld op minimaal 28 m³. Als invulling wordt de toepassing van bovengrondse waterbergende voorzieningen als wadi, greppel en groene of waterbergende daken als kansrijk gezien. Het overtollig regenwater kan overlopen op de bestaande watergangen in Reeshofdijk, via bijvoorbeeld een stuw en een duiker tot de watergang. Voor verdere afwikkeling van de aansluiting op het oppervlaktewater, moet het waterschap Brabantse Delta betrokken worden.
Het toepassen van uitlogende bouwmaterialen is uitgesloten om verontreiniging van bodem- en oppervlaktewater te voorkomen.
In de Reeshofdijk is geen riolering aanwezig aan de kant van Reeshofdijk. Daarom is de aansluiting voor de afvoer van huishoudelijk afvalwater te realiseren richting de bestaande riolering in Distelbergstraat, via een strook tot de openbare ruimte met een minimale breedte van 3 m. De aansluitleiding wordt in deze breedte aangelegd en kan in de toekomst beheerd en onderhouden worden.
5.4 Watertoets
De impact van deze ontwikkeling op het watersysteem is beperkt. De ontwikkeling valt daarom binnen het maatwerk dat de gemeente heeft vastgesteld in het verbreed gemeentelijke rioleringsplan 2016-2019. Conform deze aanpak kan het watertoets-proces een verkort traject doorlopen. In dit verkorte traject geeft het waterschap geen voorlopig wateradvies, in plaats daarvan wordt het wateradvies pas verstrekt bij de terinzagelegging van het bestemmingsplan.
Hoofdstuk 6 Opzet planregels
6.1 Inleiding
De indeling en inhoud van de regels bij dit bestemmingsplan zijn gebaseerd op de Tilburgse bestemmingsplansystematiek, die primair ten behoeve van het opstellen van bestemmingsplannen door de afdeling Ruimte van de gemeente Tilburg is opgesteld. De plansystematiek is vastgesteld door het gemeentebestuur en wordt doorlopend aan veranderende regelgeving en beleidsinzichten aangepast. De plansystematiek is gebaseerd op en sluit aan bij SVBP2012 (Standaard Vergelijkbare Bestemmingsplannen) en IMRO2012 (Informatie Model Ruimtelijke Ordening). De systematiek is te vinden op www.tilburg.nl/ruimtelijkeplannen.
6.2 Bestemmingen en aanduidingen
In het bestemmingsplan is enkel de bestemming 'wonen' aanwezig. Binnen deze bestemming mogen
grondgebonden woningen worden gebouwd. De functieaanduiding 'erf' is op de verbeelding aangegeven. Hier
mogen aan- en bijgebouwen worden opgericht.
6.3 Bouw- en gebruiksregels
Bouwregels
De bouwregels bevatten een uitgebreide regeling ten aanzien van het oprichten van gebouwen en overige bouwwerken in het plangebied (bouwvlak, erf, bouwhoogte, regeling bijgebouwen etc.). Er wordt hierbij een onderscheid gemaakt in bouwregels voor (hoofd)gebouwen, aan- en uitbouwen en bijgebouwen, bouwwerken, geen gebouwen zijnde en bouwwerken van algemeen nut.
Het hoofdgebouw moet binnen het bouwvlak worden opgericht. De goothoogte bedraagt maximaal 6 meter en de bouwhoogte max. 9 meter. Max. 40% van het erf mag worden aangewend voor aan- en bijgebouwen, met een maximum van 60-100m2 afhankelijk van de oppervlakte van de erf.
Gebruiksregels
Binnen de bestemming worden regels omtrent het gebruik van gronden en bouwwerken gegeven, al dan niet aangevuld met een aantal afwijkingsmogelijkheden.
Hoofdstuk 7 Uitvoerbaarheid
Artikel 3.1.6. van het Bro bepaalt dat in een vast te stellen bestemmingsplan een toelichting moet worden
opgenomen, waarin (o.a.) de inzichten staan over de uitvoerbaarheid van het plan. Het onderhavige plan bevat
een bouwplan als bedoeld in artikel 6.2.1 Bro. De grondexploitatiewet (afdeling 6.4 van de Wro) is om die
reden van toepassing en in beginsel is dus een exploitatieplan vereist. Gelet op het bepaalde in artikel 6.12 lid
2 van de Wro hoeft in casu echter geen exploitatieplan te worden opgesteld. Doordat met initiatiefnemer een
exploitatieovereenkomst is gesloten, is het verhaal van kosten die de gemeente moet maken 'anderszins
verzekerd' door die overeenkomst.
Met betrekking tot de gemeentelijke plan- en apparaatskosten ten behoeve van het opstellen van dit plan zijn
door de initiatiefnemer leges betaald. Daarnaast is met de initiatiefnemer een overeenkomst inzake het
verhaal van tegemoetkomingen in planschade gesloten. In deze overeenkomst is bepaald dat schade als gevolg
van dit bestemmingsplan, die op grond van afdeling 6.1. Wro voor vergoeding in aanmerking komt, zal worden
vergoed door de initiatiefnemer. Gelet op het voorgaande is het plan economisch uitvoerbaar.
Hoofdstuk 8 Omgevingsdialoog en vooroverleg
8.1 Kennisgeving ex artikel 1.3.1 Bro
Artikel 1.3.1 van het Bro verplicht bestuursorganen, die een structuurvisie of een bestemmingsplan voorbereiden, waarbij sprake is van een ruimtelijke ontwikkeling en waarbij geen milieu-effectrapport wordt opgesteld, kennis te geven van het voornemen te komen tot vaststelling van die structuurvisie of dat bestemmingsplan. In casu is het voornemen te komen tot vaststelling van het voorliggende bestemmingsplan op 6 september 2019 gepubliceerd in het Gemeenteblad.
8.2 Omgevingsdialoog
De initiatiefnemer heeft in het kader van de omgevingsdialoog gesproken met de direct omwonenden van de percelen aan de Diepenveenstraat 32, 34, Distelbergstraat 32, 34 en Reeshofdijk 23. De ontwikkeling is over het algemeen positief ontvangen en er zijn naar aanleiding van deze gesprekken geen verzoeken geweest om de plannen aan te passen. Het verslag van de omgevingsdialoog is opgenomen in bijlage 6. Met 1 omwonende is nog een extra gesprek geweest, waarin mogelijke aanpassingen zijn besproken. Een verslag van dit gesprek is opgenomen in bijlage 7.
8.3 Zienswijzen
Het ontwerpbestemmingsplan heeft, in overeenstemming met het bepaalde in artikel 3.8 van de Wet
ruimtelijke ordening (Wro), gedurende zes weken ter inzage gelegen, te weten van maandag 25 november 2019 tot en met 6 januari 2020. Tijdens deze periode is er 1 zienswijze ingediend. In de notitie behandeling
zienswijzen (bijlage 8)wordt een zakelijke puntsgewijze samenvatting van de ingekomen zienswijze weergegeven en het standpunt van de gemeente hierop. Naar aanleiding van de zienswijze is een bezonnningsstudie uitgevoerd, zie bijlage 9.
De zienswijze is ongegrond. Het bestemmingsplan wordt evenwel gewijzigd vastgesteld, in die zin dat binnen
het bouwvlak de goothoogte max. 6m en de bouwhoogte max. 9m mag bedragen en de bouwdiepte max. 13m mag bedragen.