Theresia Loven Besterd 2016, 2e herziening (Bosscheweg 296)
| Status: | vastgesteld |
| Identificatie: | NL.IMRO.0855.BSP2018020-e001 |
| Plantype: | bestemmingsplan |
Toelichting
Hoofdstuk 1 Inleiding
1.1 Aanleiding
Lidl Nederland is voornemens het bestaande filiaal aan de Bosscheweg 296 in Tilburg te slopen en te voorzien in nieuwbouw. Het bestaande pand is gedateerd en biedt onvoldoende ruimte om de bestaande inboedel ruimer op te stellen. Upgraden van het bestaande pand is financieel gezien dusdanig ingrijpend dat gekozen is voor de sloop van het bestaande pand en het ontwerpen en realiseren van een nieuw pand dat voldoet aan de huidige eisen van Lidl Nederland.
De huidige toegangsweg vanaf de Bossscheweg ligt op slechts 150 meter van de Ringbaan-Oost en zal in de nieuwe situatie 50 meter van de Ringbaan-Oost vandaan verschuiven. De in het verleden aangekochte naastgelegen woonpercelen, die nu in gebruik zijn als parkeerterrein, worden middels voorliggend bestemmingsplan van een passende bestemming voorzien.
Afbeelding 1: straatbeeld huidige situatie vanaf overzijde Bosscheweg.
1.2 Plangebied
Het Lidl filiaal is gelegen aan de Bosscheweg 296 in Tilburg, ten oosten van de Ringbaan-Oost langs de spoorverbinding tussen Tilburg en 's-Hertogenbosch.![i_NL.IMRO.0855.BSP2018020-e001_402001.png [image]](i_NL.IMRO.0855.BSP2018020-e001_402001.png)
Afbeelding 2: ligging Lidl filliaal aan de Bosscheweg in groter verband (bron: ESRI Nederland)
1.3 Doel
Het doel van voorliggend bestemmingsplan is het bieden van een passende juridisch-planologische regeling voor het herbouwen van een Lidl-filliaal aan de Bosscheweg in Tilburg.
1.4 Geldend bestemmingsplan
Ter plaatse van het plangebied geldt het bestemmingsplan "Theresia-Loven-Besterd 2016". Het bestemmingsplan is op 17 januari 2017 vastgesteld door de gemeenteraad van Tilburg en geheel onherroepelijk en in werking.
Afbeelding 3: Uitsnede vigerend bestemmingsplan met begrenzing van de inrichting(rood). (bron: www.ruimtelijkeplannen.nl)
Voor het plangebied gelden de bestemmingen "Detailhandel", "Wonen" en "Verkeer - Railverkeer". Tevens gelden de gebiedsaanduidingen "luchtvaartverkeerszone" en "veiligheidszone - aandachtsgebied vervoer gevaarlijke stoffen". Binnen de bestemming "Detailhandel" is een bouwvlak opgenomen dat strak rondom het bestaande filiaal is getrokken. De delen met de bestemming "Wonen" hebben nu nog een kleiner bouwvlak ten behoeve van woningen en een aantal daaraan gerelateerde functieaanduidingen. Dit terrein wordt bij de bestemming "Detailhandel" getrokken.
1.5 Leeswijzer
Hoofdstuk 2 gaat in op de huidige en de toekomstige situatie van het plangebied en gaat tevens in op de verkeerssituatie en het parkeren. Hoofdstuk 3 behandelt het vigerend beleid op zowel rijks-, provinciaal-, regionaal- als gemeentelijke niveau. Hoofdstuk 4 bevat een beschrijving van de milieukundige en planologische (sectorale) aspecten en verantwoordt (al dan niet met behulp van uitgevoerde onderzoeken) de voorgenomen ingreep. De juridische planbeschrijving van dit bestemmingsplan is opgenomen in hoofdstuk 5. De maatschappelijke uitvoerbaarheid staat omschreven in hoofdstuk 6. De toelichting wordt afgesloten met hoofdstuk 7 waarin de economische uitvoerbaarheid van het planvoornemen wordt toegelicht.
Naast deze toelichting bestaat het bestemmingsplan uit een set regels en een verbeelding die samen het juridische plan vormen. De toelichting dient ter onderbouwing / motivering van het plan. De onderzoeksrapporten die als bijlagen bij deze toelichting zijn gevoegd, hebben betrekking op de ontwikkeling binnen het plangebied van voorliggend bestemmingsplan 'Lidl Bosscheweg'.
Hoofdstuk 2 Planbeschrijving
2.1 Bestaande situatie
De vestiging van de Lidl is gelegen aan de Bosscheweg 296 in Tilburg. De Bosscheweg is een belangrijke verkeersader vanaf de Ringbaan-Oost in de richting van Berkel-Enschot, Oisterwijk en de aansluiting op de N65/A65. De directe omgeving laat zich kenmerken door een zeer divers karakter. Ten noorden van het plangebied bevind zich het uiteinde van bedrijventerrein Kanaalzone. Aan de oostelijke en westelijke zijde van het plangebied staan hoofdzakelijk woningen, met in het westen de Ringbaan Oost en in het oosten het Wilhelminakanaal als harde grenzen. De zuidzijde van het plangebied wordt gedomineerd door de spoorzone.
Afbeelding 4: Ligging plangebied (rood) in groter verband (bron: PDOK)
Het huidige filiaal is een vrijstaand commercieel gebouw op een terrein met twee inritten: direct ten westen van het gebouw zit de hoofdontsluiting en gescheiden door enkele woningen bevindt zich een secundaire uitrit ten oosten van het filiaal.
De bruto vloeroppervlakte bedraagt in de bestaande situatie circa 1.260 m². Het winkelvloeroppervlak bedraagt circa 890 m².![i_NL.IMRO.0855.BSP2018020-e001_402004.png [image]](i_NL.IMRO.0855.BSP2018020-e001_402004.png)
Afbeelding 5: Straatbeeld huidige situatie met aan de rechterzijde de hoofdinrit.![i_NL.IMRO.0855.BSP2018020-e001_402005.png [image]](i_NL.IMRO.0855.BSP2018020-e001_402005.png)
Afbeelding 6: Het langs het spoor gelegen deel van het parkeerterrein.
2.2 Toekomstige situatie
Het plan is om het bestaande gebouw te slopen en een nieuw, groter pand te realiseren op de locatie en een deel van het huidige parkeerterrein en de huidge, westelijke inrit. Het huidige pand is inmiddels gedateerd en voldoet niet meer aan de huidige eisen van Lidl Nederland. De vergroting van de binnenruimte komt met name ten goede van de ruimere opzet van het bestaande aanbod in de winkel.
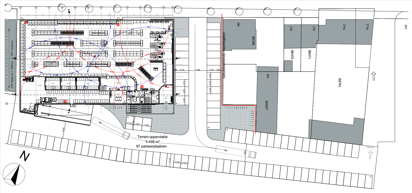
Dit drukt zich uit in de oppervlakten: de bruto vloeroppervlakte van het nieuw te realiseren pand bedraagt 1.934 m² en het winkelvloeroppervlak bedraagt 1.309 m². De uitbreiding bedraagt in totaal kortom 674 m2 bruto vloeroppervlak, waarbij het winkelvloeroppervlak toeneemt met 419 m2. Daaruit is op te maken dat deze uitbreiding voor een groot deel ten goede komt van nevenruimten. De uitbreiding van het winkelvloeroppervlak gaat geheel op aan meer ruimte tussen de schappen en daarmee een verhoging van het comfort voor het winkelend publiek.
Afbeelding 7: plattegrond nieuwe inrichting (bron: Lidl Nederland)
Een groot deel van de nieuwe ruimte komt ten goede aan nevenruimten zoals koel- en vriescellen. Ook kan het magazijn efficienter ingericht worden en komt er meer ruimte voor het personeel met een ruime kantine en kleedruimtes.
Het verzorgingsgebied verandert door de herbouw niet. Zeker in de directe omgeving zijn meerdere filialen van de Lidl aanwezig. Het doel van de vergroting is dus niet om meer bezoekers te trekken, maar om de gemiddelde besteding per bezoeker te laten stijgen.![i_NL.IMRO.0855.BSP2018020-e001_402007.png [image]](i_NL.IMRO.0855.BSP2018020-e001_402007.png)
Afbeelding 8: ligging van onderhavig filiaal (geel: 529) en overige filialen (geel)
Ten zuiden van het plangebied ligt op hemelsbreed 1,1 kilometer een filiaal en ten noorden op 2,6 kilometer. Aan de andere zijde van het centrum bevindt zich een vierde filiaal. De verschillende vestigingen hebben hun eigen verzorgingsgebied.
2.3 Verkeer en parkeren
2.3.1 Verkeer
In het kader van de ontwikkeling is een verkeerskundige notitie opgesteld. Onderstaand wordt kort ingegaan op de conclusies. Voor meer informatie wordt verwezen naar het als Bijlage 1 bij deze toelichting opgenomen onderzoek.
In de gemeentelijke beleidstukken zijn geen normen of kengetallen opgenomen voor de verkeersgeneratie waardoor aansluiting wordt gezocht bij de normen van het CROW (publicatie 381 'Kencijfers parkeren en verkeersgeneratie'). In de gemeentelijke nota wordt bij het onderdeel parkeren uitgegaan van de minimale kencijfers, hetzelfde uitgangspunt wordt gehanteerd voor de verkeersgeneratie.
De Lidl sluit het beste aan bij de functie 'supermarkt'. De locatie kent een stedelijkheidsgraad van 'sterk stedelijk' en is gelegen binnen de bebouwde kom. Ten gevolge van deze combinatie bedraagt de verkeersgeneratie 91,9 motorvoertuigen/etmaal/100m² bvo.
De Lidl in de huidige situatie (1.260,4 m² bvo) genereert al verkeer. Uitgaande van de kencijfers bedraagt de huidige verkeersgeneratie 1.160 mvt/etm. Het totale bvo in de toekomstige situatie bedraagt 1.934 m² waardoor de totale verkeersgeneratie in de toekomstige situatie 1.778 mvt/etmaal bedraagt. Ten gevolge van de uitbreiding zal het verkeer kortom toenemen met circa 620 mvt/etm.
De verkeerstoename ten gevolge van de uitbreiding is merkbaar op de nabij gelegen kruispunten Ringbaan-Oost en Hoevense Kanaaldijk.
De verkeerstoename richting het VRI-kruispunt met de Ringbaan-Oost betreft 58 voertuigen tijdens het drukste uur. In het ergste geval komen hier 35 voertuigen van de tweede uitrit bij, waardoor het totaal 93 voertuigen per uur bedraagt. In het maatgevende uur betekent dit een toename van 6,7%.
De verkeerstoename richting het VRI-kruispunt met de Hoevense Kanaaldijk betreft 32 voertuigen tijdens het drukste uur. In het ergste geval komen hier 35 voertuigen van de tweede uitrit bij, waardoor het totaal 67 voertuigen per uur bedraagt. In het maatgevende uur betekent dit een toename van 2,4%. Deze uitbreiding is acceptabel. Het kruispunt aan de Ringbaan Oost loopt tegen de maximale capaciteit aan, echter het aandeel van de uitbreiding van de Lidl is zeer beperkt t.o.v. de totale verkeersintensiteit.
De in/uitrit wordt enkele tientallen meters verplaatst richting het oosten waardoor deze op grotere afstand van het kruispunt met de Ringbaan-Oost komt te liggen. Het verplaatsen van de in/uitrit heeft geen nadelige gevolgen voor de verkeersveiligheid en - afwikkeling. Het verplaatsen van de in/uitrit heeft mogelijk positieve gevolgen doordat de uitrit niet meer naast de bushalte komt te liggen, waardoor halterende bussen niet langer het uitzicht belemmeren. De in/uitrit kan, vanwege de op korte afstand van de inrit gelegen boom aan de Bosscheweg, in deze richting niet verder worden verbreed. Hierdoor kan het vrachtverkeer (gezien de draaicirkel) het terrein niet via deze uitrit verlaten. Het vrachtverkeer dat is oostelijke richting het terrein wil verlaten, moet gebruik maken van de verderop gelegen uitrit. Dit zal met een verkeersbord bij de uitrit worden aangeduid.
Conclusie
Het verplaatsen van de in/uitrit heeft geen nadelige gevolgen voor de verkeersveiligheid en - afwikkeling. Het vrachtverkeer dat is oostelijke richting het terrein wil verlaten, moet gebruik maken van de verderlop gelegen uitrit. Het aandeel van de uitbreiding van de Lidl op de totale verkeersafwikkeling aan de bosscheweg is zeer beperkt ten opzichte van de totale verkeersintensiteit en is acceptabel.
2.3.2 Parkeren
Voor het berekenen van de parkeerbehoefte wordt aangesloten op Nota Parkeernormen Tilburg 2017, die als Bijlage 2 bij deze toelichting is opgenomen. In de huidige situatie zijn 133 parkeerplaatsen beschikbaar. Door de vergroting van het nieuw te bouwen filiaal zal de parkeergelegenheid teruglopen tot 97 parkeerplaatsen. In de nieuwe situatie wordt voorzien in een totaal BVO van 1.934 m2.
De beoogde ontwikkeling is te scharen onder de hoofdgroep winkelen en boodschappen. De hoofdgroep is onderverdeeld in subgroepen waarvan de subgroep 'supermarkt' van toepassing is. Voor de gemeente is daarbij een zonering opgenomen waarbij het plangebied ligt in zone C. De opgenomen parkeernorm die geldt voor de beoogde ontwikkeling is 4,4 parkeerplaatsen per 100 m2 BVO. Uitgaande van het toekomstige BVO van 1.934 m² ontstaat een parkeerbehoefte van 85 parkeerplaatsen. Geconcludeerd wordt dat de voorziene 97 parkeerplaatsen ruim voldoende zijn om te voldoen aan de berekende parkeerbehoefte.
Hoofdstuk 3 Beleidskader
3.1 Rijksbeleid
3.1.1 Structuurvisie Infrastructuur en Ruimte
In de Structuurvisie Infrastructuur en Ruimte (SVIR) schetst het Rijk ambities voor Nederland in 2040: een visie hoe Nederland er in 2040 voor moet staan. Uitgaande van de verantwoordelijkheden van het Rijk zijn de ambities uitgewerkt in rijksdoelen tot 2028 en is aangegeven welke nationale belangen daarbij aan de orde zijn. De SVIR is vastgesteld op 13 maart 2012.
Nederland moet concurrerend, bereikbaar, leefbaar en veilig zijn in 2040. Dit is het uitgangspunt van de SVIR. Om dit te bereiken moet het roer in het ruimtelijk en mobiliteitsbeleid om. De ruimtelijke ordening wordt zo dicht mogelijk bij burgers en bedrijven gebracht. Provincies en gemeenten krijgen meer verantwoordelijkheden en beleidsvrijheid (decentraal, tenzij) en de gebruiker komt centraal te staan.
Het Rijk zet zich met name in op de drie hoofddoelen:
Het vergroten van de concurrentiekracht van Nederland door het versterken van de ruimtelijk-economische structuur van Nederland.
Het verbeteren en ruimtelijk zekerstellen van de bereikbaarheid waarbij de gebruiker voorop staat.
Het waarborgen van een leefbare en veilige omgeving waarin unieke natuurlijke en cultuurhistorische waarden behouden zijn.
Naast het benoemen van bovenstaande beleidsdoelen onderscheidt het Rijk 13 nationale belangen. Voor deze belangen is het Rijk verantwoordelijk en wil het resultaten boeken:
Een excellente ruimtelijk-economische structuur van Nederland door een aantrekkelijk vestigingsklimaat en goede internationale bereikbaarheid van de stedelijke regio's met een concentratie van topsectoren.
Ruimte voor het hoofdnetwerk voor (duurzame) energievoorziening en de energietransitie.
Ruimte voor het hoofdnetwerk voor vervoer van (gevaarlijke) stoffen via buisleidingen.
Efficiënt gebruik van de ondergrond.
Een robuust hoofdnet van wegen, spoorwegen en vaarwegen rondom en tussen de belangrijkste stedelijke regio's inclusief de achterlandverbindingen (ketenmobiliteit en multimodale knooppunten).
Betere benutting van de capaciteit van het bestaande mobiliteitssysteem.
Het in standhouden van het hoofdnet van wegen, spoorwegen en vaarwegen om het functioneren van het mobiliteitssysteem te waarborgen.
Verbeteren van de milieukwaliteit (lucht, bodem, water) en bescherming tegen geluidsoverlast en externe veiligheidsrisico's.
Ruimte voor waterveiligheid, een duurzame zoetwatervoorziening en kaders voor klimaatbestendige stedelijke (her)ontwikkeling.
Ruimte voor behoud en versterking van (inter)nationale unieke cultuurhistorische en natuurlijke kwaliteiten.
Ruimte voor een nationaal netwerk van natuur voor het overleven en ontwikkelen van flora- en faunasoorten.
Ruimte voor militaire terreinen en activiteiten.
Zorgvuldige afweging en transparante besluitvorming bij alle ruimtelijke en infrastructurele besluiten.
Relevantie voor het plan
Het herbouwen en vergroten van een filliaal van de Lidl leidt niet tot strijdigheid met de voornoemde nationale beleidsdoelen.
3.1.2 Besluit algemene regels ruimtelijke ordening (Barro)
De AMvB Ruimte wordt in juridische termen aangeduid als Besluit Algemene Regels Ruimtelijke Ordening (Barro). Met uitzondering van enkele onderdelen is het Barro eind december 2011 in werking getreden. In de AMvB zijn de nationale belangen die juridische borging vereisen opgenomen. De AMvB Ruimte is gericht op doorwerking van de nationale belangen in gemeentelijke bestemmingsplannen. Op 1 oktober 2012 is de eerste wijziging van het Barro in werking getreden.
Het kabinet heeft in de hiervoor genoemde SVIR vastgesteld dat voor een beperkt aantal onderwerpen de bevoegdheid om algemene regels te stellen zou moeten worden ingezet. Het gaat om de volgende nationale belangen:
Rijksvaarwegen.
Project Mainportontwikkeling Rotterdam.
Kustfundament.
Grote rivieren.
Waddenzee en waddengebied.
Defensie.
Hoofdwegen en landelijke spoorwegen.
Elektriciteitsvoorziening.
Buisleidingen van nationaal belang voor het vervoer van gevaarlijke stoffen.
Natuurnetwerk Nederland.
Primaire waterkeringen buiten het kustfundament.
IJsselmeergebied (uitbreidingsruimte).
Erfgoederen van uitzonderlijke universele waarden.
Ruimtereservering parallelle Kaagbaan.
Bovengenoemde belangen vinden hun doorwerking in regels opgenomen in het Barro. De SVIR bepaalt welke kader stellende uitspraken zodanig zijn geformuleerd dat deze bedoeld zijn om beperkingen te stellen aan de ruimtelijke besluitvormingsmogelijkheden op lokaal niveau. Ten aanzien daarvan is een borging door middel van normstelling, gebaseerd op de Wro, gewenst. Die uitspraken onderscheiden zich in die zin dat van de provincies en de gemeenten wordt gevraagd om de inhoud daarvan te laten doorwerken in de ruimtelijke besluitvorming. Zij zijn dus concreet normstellend bedoeld en worden geacht direct of indirect, dat wil zeggen door tussenkomst van de provincie, door te werken tot op het niveau van de lokale besluitvorming, zoals de vaststelling van bestemmingsplannen. Bijvoorbeeld ten aanzien van activiteiten binnen een rivierbed zijn daarom kaderstellende regels opgenomen, die in een bestemmingsplan dienen te worden overgenomen/waaraan een bestemmingsplan dient te voldoen.
Relevantie voor het plan
Het herbouwen en vergroten van een filliaal van de Lidl leidt niet tot strijdigheid met de voornoemde nationale beleidsdoelen.
3.1.3 Ladder duurzame verstedelijking
De 'ladder voor duurzame verstedelijking' is in de Structuurvisie Infrastructuur en Ruimte (SVIR) geïntroduceerd en vastgelegd als procesvereiste in het Besluit ruimtelijke ordening (Bro).
Per 1 juli 2017 is een gewijzigde nieuwe 'ladder voor duurzame verstedelijking' van kracht. Deze wordt geregeld in artikel 3.1.6 leden 2 – 4 Besluit ruimtelijke ordening (Bro) en luidt:
“Lid 2. De toelichting bij een bestemmingsplan dat een nieuwe stedelijke ontwikkeling mogelijk maakt, bevat een beschrijving van de behoefte aan die ontwikkeling, en, indien het bestemmingsplan die ontwikkeling mogelijk maakt buiten het bestaand stedelijk gebied, een motivering waarom niet binnen het bestaand stedelijk gebied in die behoefte kan worden voorzien.
Lid 3.Indien in een bestemmingsplan als bedoeld in het tweede lid toepassing is gegeven aan artikel 3.6, eerste lid, onder a of b, van de wet kan bij dat bestemmingsplan worden bepaald dat de beschrijving van de behoefte aan een nieuwe stedelijke ontwikkeling en een motivering als bedoeld in het tweede lid eerst wordt opgenomen in de toelichting bij het wijzigings- of het uitwerkingsplan als bedoeld in dat artikel.
Lid 4. Een onderzoek naar de behoefte als bedoeld in het tweede lid, heeft, in het geval dat een bestemmingsplan als bedoeld in het tweede lid, ziet op de vestiging van een dienst als bedoeld in artikel 1 van de Dienstenwet en dit onderzoek betrekking heeft op de economische behoefte, de marktvraag of de beoordeling van de mogelijke of actuele economische gevolgen van die vestiging, slechts tot doel na te gaan of de vestiging van een dienst in overeenstemming is met een goede ruimtelijke ordening."
De begrippen “bestaand stedelijk gebied” en “nieuwe stedelijke ontwikkeling“, opgenomen in artikel 1.1.1 lid 1 aanhef en onder h en i Bro, blijven ongewijzigd.
Om te bepalen of het initiatief voldoet aan de ladder voor duurzame verstedelijking is een ruimtelijk-economische effectenstudie uitgevoerd. Onderstaand wordt kort ingegaan op de conclusies. Voor meer informatie wordt verwezen naar het als Bijlage 3 bij deze toelichting opgenomen onderzoek.
Uit het onderzoek blijkt vanuit kwantitief oogpunt dat in 2030 op basis van aannames van vraag- en aanbodzijde van de markt en de uitbreidingen van Aldi en Lidl, sprake zal blijven van een marktevenwicht. Er is slechts sprake van een beperkt overschot. Naar verwachting zijn de effecten zeer beperkt. Gelet op de groei van de bestedingen en omzetten met jaarlijks 2-3% én een mogelijke bevolkingstoename (verdichting binnen steden als landelijke trend) wordt zelfs verwacht dat binnen 1 tot 2 jaar een (latent) tekort aan metrages ontstaat in plaats van het huidige evenwicht.
Vanuit kwalitatief oogpunt wordt aangegeven dat de schaalvergroting en professionalisering van Lidl aan de Bosscheweg noodzakelijk is om bij te blijven bij omringende wijken waar het supermarktaanbod versterkt.
De herbouw en uitbreiding van Lidl is relatief bescheiden van omvang en hoofdzakelijk toe te schrijven aan bredere gangpaden en extra ruimte voor koel- en vriescellen, magazijn en personeelsruimte. De consument wordt daarmee meer comfort geboden zodat zij in een prettige en moderne winkel de boodschappen kan doen. Doordat de uitbreiding vooral gericht is op meer comfort en gemak voor de klant, wordt verwacht dat er géén ontwrichting in de detailhandelsstructuur zal optreden.
Doordat er niet van uit wordt gegaan dat door de uitbreiding van Lidl leegstandseffecten optreden, zal het resterende dagelijkse aanbod zonder meer kunnen voorzien in de eerste levensbehoeften van de
inwoners. Kortom, het woon- en leefklimaat in Oost-Tilburg wordt daarmee niet verder aangetast. Het wordt juist gestimuleerd als Lidl als enige supermarkt in dit gebied gevestigd kan blijven met toekomstgerichte vestigingscondities.
Relevantie voor het plan
Op basis van de ruimtelijk-economische effectenstudie wordt geconcludeerd dat het initiatief voldoet aan de ladder voor duurzame verstedelijking.
3.2 Provinciaal beleid
3.2.1 Omgevingsvisie Noord-Brabant
Op 14 december 2018 is de Omgevingsvisie Noord-Brabant in werking getreden, een samenhangende visie op de fysieke leefomgeving. De Omgevingsvisie bevat de belangrijkste ambities voor de fysieke leefomgeving voor de komende jaren.
Die visie is zelfbindend, dat wil zeggen dat een overheidslaag zich aan haar eigen visie moet houden. Een overheid kan de keuzes uit de Omgevingsvisie vastleggen in regels, de Omgevingsverordening. Aan die regels moeten overheden, bedrijven en burgers zich houden.
De basisopgave van de Brabantse Omgevingsvisie is: “Werken aan veiligheid, gezondheid en omgevingskwaliteit”. Voor 2030 is het doel om voor alle aspecten te voldoen aan de wettelijke normen. Brabant heeft dan een aanvaardbare leefomgevingskwaliteit. Voor 2050 is het doel om een goed leefomgevingskwaliteit te hebben door op alle aspecten beter te presteren dan wettelijk als minimumniveau is bepaald.
De visie noemt een vijftal hoofdopgaven:
De basis op orde: veiligheid, gezondheid en omgevingskwaliteit zijn van essentieel belang om goed te kunnen wonen, werken en leven in Brabant.
Brabantse energietransitie: om Brabant op termijn energieneutraal te maken moeten we minder energie gebruiken en meer duurzame energie op gaan wekken.
Slimme netwerkstad: de manier waarop we ons verplaatsen verandert en we stellen andere eisen aan steden. Dit heeft gevolgen voor het netwerk van steden en dorpen.
Klimaatproof Brabant: als gevolg van klimaatverandering krijgen we meer extremen in temperatuur en neerslag. Hoe gaan we deze gevolgen aanpakken?
Concurrerende, duurzame economie: Brabant wil top kennis- en innovatieregio blijven, waarbij de omslag naar een circulaire economie nodig is en digitalisering steeds belangrijker wordt.
De doorvertaling van de Omgevingsvisie Noord-Brabant vindt zijn doorvertaling in een Omgevingsverordening en programma’s. Om straks als de Omgevingswet in werking treedt (volgens de huidige planning in 2022) echt klaar te zijn, is er eerst een Interim omgevingsverordening Noord-Brabant gemaakt. In deze interim omgevingsverordening worden de bestaande regels over de fysieke leefomgeving al zoveel mogelijk in één verordening onder gebracht. De interim omgevingsverordening is relatief beleidsarm en wordt besproken in paragraaf 3.2.2.
Relevantie voor het plan
De voorgenomen ontwikkeling past binnen de algemene beleidskaders van de Omgevingsvisie Noord-Brabant. De ontwikkeling past binnen het gedachtegoed van zorgvuldig ruimtegebruik. Voor de nadere toetsing aan het provinciaal beleid zoals opgenomen in de Interim omgevingsverordening vindt plaats in paragraaf 3.2.2.
3.2.2 Interim omgevingsverordening
In de Interim omgevingsverordening Noord-Brabant zijn de regels over de fysieke leefomgeving in Noord-Brabant zoveel mogelijk ondergebracht. De Interim omgevingsverordening vervangt diverse provinciale verordeningen, te weten de Provinciale milieuverordening, Verordening natuurbescherming, Verordening Ontgrondingen, Verordening ruimte, Verordening water en de Verordening wegen. De omgevingsverordening is een doorvertaling van de Omgevingsvisie Noord-Brabant.
In Afdeling 3.5 'Stedelijke ontwikkeling en mobiliteit' is onder artikel 3.42 'Duurzame stedelijke ontwikkeling' het volgende opgenomen:
Lid 1. Een bestemmingsplan dat voorziet in de ontwikkeling van een locatie voor wonen, werken of voorzieningen ligt binnen Stedelijk gebied en bevat een onderbouwing dat:
de ontwikkeling past binnen de regionale afspraken, bedoeld in afdeling 5.4 Regionaal samenwerken;
het een duurzame stedelijke ontwikkeling is.
Lid 2. Een duurzame stedelijke ontwikkeling voor wonen, werken of voorzieningen:
bevordert een goede omgevingskwaliteit met een veilige en gezonde leefomgeving;
bevordert zorgvuldig ruimtegebruik, waaronder de transformatie van verouderde stedelijke gebieden;
geeft optimaal invulling aan de mogelijkheden voor productie en gebruik van duurzame energie;
houdt rekening met klimaatverandering, waaronder het tegengaan van hittestress en voldoende ruimte voor de opvang van water;
geeft optimaal invulling aan de mogelijkheden voor duurzame mobiliteit;
draagt bij aan een duurzame, concurrerende economie.
Voor stedelijke ontwikkeling zijn er twee werkingsgebieden opgenomen:
1. Stedelijk gebied met een onderverdeling in stedelijk concentratiegebied en kernen in landelijk gebied
2. Verstedelijking afweegbaar
Er is een basisregeling geformuleerd voor een duurzame stedelijke ontwikkeling. Uitgangspunt daarbij is dat eerst de mogelijkheden in Stedelijk gebied worden benut of de mogelijkheden in leegkomend of leegstaand erfgoed elders in de gemeente. Als daarbinnen vanuit kwalitatieve- of kwantitatieve overwegingen geen ruimte beschikbaar is, kan een afweging worden gemaakt voor nieuw ruimtebeslag in Verstedelijking afweegbaar.
Op basis van de kaart 'stedelijke ontwikkeling en erfgoed', zoals opgenomen in de Interim omgevingsverordening Noord-Brabant, ligt het plangebied binnen het stedelijk concentratiegebied, waarbinnen stedelijke ontwikkelingen zoals de herbouw van een supermarkt, bij uitstek dienen te worden gesitueerd.
![i_NL.IMRO.0855.BSP2018020-e001_402008.png [image]](i_NL.IMRO.0855.BSP2018020-e001_402008.png)
Afbeelding 9: Kaart stedelijke ontwikkeling en erfgoed.
Relevantie voor het plan
De voorgenomen ontwikkeling past binnen de algemene beleidskaders van de Interim omgevingsverordening Noord-Brabant. De toelichting van dit bestemmingsplan laat zien dat rekening is gehouden met de verschillende omgevingsaspecten en dat zo invulling is gegeven aan het principe van zorgvuldig ruimtegebruik. Ook heeft er een afweging plaatsgevonden voor wat betreft de behoefte aan het vernieuwen en vergroten van het filiaal van de Lidl aan de Bosscheweg in Tilburg.
3.3 Gemeentelijk beleid
3.3.1 Omgevingsvisie Tilburg 2040
Op 21 september 2015 heeft de Raad de Omgevingsvisie Tilburg 2040 vastgesteld. De Omgevingsvisie richt zich op Tilburg als vitale, duurzame stad in een moderne netwerksamenleving. De ontwikkelingen in de economie, de maatschappij en de leefomgeving gaan niet ten koste van elkaar, maar sluiten op elkaar aan en versterken elkaar. People, planet en profit zijn in balans.
People: Het is prettig wonen en werken in Tilburg, een stad met veel verschillende woonbuurten en verschillende soorten werklocaties. De woonmilieus passen bij de leefstijl van de mensen.
Planet: We gaan voor een gezonde en leefbare stad, anticiperen op de effecten van klimaatverandering, zoals hitte, droogte en hogere temperaturen. In het economisch systeem wordt herbruikbaarheid van producten en grondstoffen steeds belangrijker. Verder krijgen groen en water een steeds prominentere rol in de stad. De grote natuurgebieden om de stad zijn met elkaar verbonden. Dat versterkt het ecologisch systeem en de veerkracht van de natuur.
Profit: Om ook in de toekomst sterk genoeg te zijn, wil Tilburg de kracht van BrabantStad benutten. Tilburg is een stad die mensen kansen biedt: op aangenaam werk en op een fijne woon- en leefomgeving.
Om antwoord te geven op de vraag hoe we dit gewenste toekomstbeeld samen met burgers en partners in de stad voor elkaar kunnen krijgen volgt de Omgevingsvisie Tilburg 2040 een strategie met drie sporen:
de Brabantstrategie.
de Regiostrategie.
de Stadsstrategie.
Brabantstrategie: Tilburg kiest voor de kracht van stedelijke samenwerking
Samen met de andere Brabantse steden wil Tilburg de kracht van het stedelijk netwerk BrabantStad versterken. Om de benodigde schaalsprong naar een stedelijk netwerk te kunnen maken, moet Tilburg aantrekkelijk bereikbaar en concurrerend zijn.
Aantrekkelijk: Tilburg wil een aantrekkelijke stad zijn waar mensen graag wonen en werken, en waar het voor bedrijven interessant is om zich te vestigen. Niet alleen moet het aanbod van voorzieningen in de stad zelf aansprekend en hoogwaardig zijn, ook de groene omgeving en religieus en historisch erfgoed zijn belangrijke factoren.
Bereikbaar: goede verbindingen (weg, water, rail én digitaal) met de andere Brabantse steden zijn essentieel voor een sterk stedelijk netwerk.
Concurrerend: en duurzame concurrentiekracht kent in Tilburg twee belangrijke pijlers, namelijk kennis & creativiteit en smart industries. Concreet richt de Brabantstrategie zich op vier stedelijke knooppunten en drie stadsregionale parken.
De vier stedelijke knooppunten:
Binnenstad van de 21e eeuw
Tilburg University Campus: kennisontwikkeling en -toepassing
Modern Industrieel Cluster Vossenberg-Loven
Modern Industrieel Cluster Midden-Brabant
De drie stadsregionale parken zijn:
Stadsregionaal park Moerenburg - Koningshoeven
Stadsregionaal park Stadsbos013
Stadsregionaal park Noord
De regiostrategie: de kracht van Tilburg als centrumstad
Bij de regiostrategie draait het om Tilburg in haar rol als centrumstad; Tilburg als belangrijke spil in de regio Hart van Brabant. Een goed bereikbare stad, waar bewoners uit de gehele omliggende regio graag komen voor werk, hoogwaardige medische zorg, uitstekend onderwijs, een compleet aanbod van winkels en spannende cultuur. Waar bedrijven hun ambities optimaal kunnen ontplooien. En waar het uitstekend (meerdaags) recreëren is. Een sterke stad kan niet zonder een sterke regio; omgekeerd geldt dat een sterke regio niet zonder een sterke stad kan. De regiostrategie richt zich op drie stedelijke knooppunten en twee regionale ecologische verbindingszones ten westen en oosten van de stad.
De drie stedelijke knooppunten zijn:
Bedrijvenpark Zuid
Zorgcluster Leijpark
Duurzaam energielandschap Noord
De twee ecologische verbindingszones:
Aan de oostzijde bestaat de verbinding uit ecologische stapstenen in het bestaande landschap en agrarisch productiegebied.
Aan de westzijde van de stad bestaat de verbinding uit een fijnmazig netwerk van ecologische verbindingszones langs wegen en waterlopen.
De stadsstrategie: leefbaarheid met oog voor de menselijke maat
De stadsstrategie richt zich op het realiseren van prettig leefbare wijken, dorpen en buitengebied.
Hoofdpunten van de stadsstrategie zijn:
Ruimte voor zelf- en samenredzaamheid in wijken en buurten
Basis op orde: wijken zijn schoon, heel en veilig
Vitale wijkeconomie: dynamiek en ondernemerschap in de wijk
Brandpunten in wijken zorgen voor dynamiek, ontmoeting en sociale binding.
Differentiatie in woonmilieus: aansluiten bij de leefstijlen van bewoners
Cultureel erfgoed: het verhaal van Tilburg centraal
Groen en water in de stad: toegankelijk en zichtbaar
Goede bereikbaarheid van wijken en buurten borgen
Betere verbinding stad en buitengebied: groene inprikkers
Economische vitaliteit van het landschap behouden en versterken
Functie van de Omgevingsvisie
De Omgevingsvisie Tilburg 2040 is een koers- en inspiratiedocument. Het is een kompas voor investeringen in het fysieke domein. Een uitnodiging aan de stad om samen te werken aan de ontwikkeling van een stad waar het fijn wonen, werken, leven en recreëren is. De visie biedt burgers en bedrijven ruimte om initiatief te ontplooien en reikt de gemeente handvatten aan om haar strategie af te stemmen op het geschetste toekomstperspectief. De Omgevingsvisie Tilburg 2040 geeft ook richting aan de inzet van de gemeente; in welke onderdelen de gemeente haar geld, tijd en bestuurskracht investeert, en welke prioriteiten daarbij gelden.
Relevantie voor het plan
De beoogde sloop en herbouw van een filiaal van de Lidl sluit aan bij het onderdeel aantrekkelijk van de Brabantstrategie. Het doel van de herbouw en vergroting is om zowel meer ruimte voor medewerkers als voor klanten te creëeren waarbij geen sprake is van een vergroot aanbod. Deze kwaliteitsverbetering van de Lidl draagt dus bij aan een aantrekkelijk leefmilieu voor omwonenden die ook klant zijn. De huidige locatie is al geheel verhard en er zal geen sprake zijn van de aantasting van ecologisch waardevolle gebieden in Tilburg. Geconcludeerd wordt dat het plan geen bezwaren kent vanuit de omgevingsvisie, en op delen aansluit aan gestelde doelen van de omgevingsvisie.
3.3.2 Tilburg, Detailhandelsvisie 2020
In 2020 is de beleidsnota 'Tilburg, Detailhandelsvisie 2020' vastgesteld. In deze detailhandelsvisie zijn 13 prioritaire uitgangspunten opgenomen:
Prioriteit bij kwaliteit bestaande structuur;
Geen nieuwe detailhandel buiten de structuur van winkelgebieden;
Terugdringen van de plancapaciteit detailhandel;
Samenhang detailhandel en horeca;
Inzet bestedingspotentieel eigen inwoners;
Regionale positie behouden en versterken;
Prioriteit bij de binnenstad;
Boodschappenaanbod clusteren in centra;
Perifere detailhandelslocaties handhaven;
Ruimte geven voor innovatie binnen de structuur;
Ruimte voor maatwerk;
Structurele samenwerking;
Structurele monitoring.
Ten aanzien van de periferende detailhandelslocatie (PDV) aan de Bosscheweg wordt gesteld dat het toekomstperspectief matig tot goed is. De Bosscheweg is een overloopgebied voor klassieke PDV-branches in het thema ‘in en om het huis’, inclusief woonwinkels. Dit betekent concreet dat juridisch
meer ruimte moet komen voor tuincentra (doe-het-zelf en wonen is reeds toegestaan), maar dat de juridische mogelijkheden voor bruin- en witgoed(electra), sport, speelgoed en fietsen moet worden ingeperkt. Bestaande winkels worden gerespecteerd. Het inperken van deze mogelijkheden dient conform de algemene beleidsuitgangspunten in alle bestemmingsplannen van de gemeente Tilburg plaats te vinden.
Voor wat betreft supermartken geldt dat er geen mogelijkheden worden geboden voor nieuwe solitaire supermarkten. Waar mogelijk wordt ingezet op verplaatsing van bestaande solitaire supermarkten naar winkelcentra. Uitbreiding van bestaande solitaire supermarkten wordt in principe niet toegestaan, tenzij aangetoond is dat verplaatsing ruimtelijk niet mogelijk is en wordt voldaan aan de ladder voor duurzame verstedelijking.
Relevantie voor het plan
In het voorliggende geval is sprake van de herbouw van een bestaande supermarkt, met inbegrip van een uitbreiding van het aantal vierkante meters winkelvloeroppervlak. Aangezien verplaatsing geen reële optie is en het initiatief voldoet aan de ladder voor duurzame verstedelijking, zoals omschreven in paragraaf 3.1.3, past de ontwikkeling binnen de beleidskader van de beleidsnota 'Tilburg, Detailhandelsvisie 2020'.
3.3.3 Welstand
Bouwplannen moeten worden getoetst aan ´redelijke eisen van welstand´, zo zegt de Woningwet. Naast het bestemmingsplan is het welstandsbeleid een middel om de ruimtelijke kwaliteit van de publieke omgeving te waarborgen bij de vele bouwplannen die in de stad worden gerealiseerd. Sinds 1 juli 2004 moet iedere gemeente de gehanteerde welstandscriteria vastleggen in een Welstandsnota, die door de raad moet worden vastgesteld. In Tilburg is dat in juni 2004 gebeurd, onder de titel ´Welstandsnota 2004. Meer aandacht waar dat moet, meer vrijheid waar dat kan´.
Op 19 december 2011 heeft de gemeenteraad besloten tot actualisering van de Welstandsnota 2004. Voor een gedetailleerde beschrijving van de thans geldende regeling wordt verwezen naar de Welstandsnota 2004 en het raadsbesluit van 19 december 2011.
Verder heeft de raad in mei 2011 besloten om een omgevingscommissie in te stellen. Deze commissie is op 1 januari 2012 van start gegaan en vervangt drie voormalige adviescommissies, te weten de Welstandscommissie, de Monumentencommissie en de Adviescommissie Stedelijk Groen.
Op 1 januari 2017 is door de gemeenteraad een nieuwe Welstandsnota Tilburg vastgesteld. Bij de beoordeling of een bouwwerk voldoet aan redelijke eisen van welstand zal door de Omgevingscommissie worden gelet op de volgende aspecten (dit kunnen ook algemene welstandscriteria worden genoemd):
De samenhang tussen de architectonische vorm, de plattegronden en de constructieve samenstelling van een gebouw.
De balans tussen helderheid en complexiteit.
De (her)kenbaarheid van de architectonische (totaal)expressie.
De wijze waarop de architectonische middelen worden ingezet.
vorm, maat en schaal van bouwvolume(s), zowel op zichzelf als in relatie met elkaar en met de omgeving
gevelindeling
materialisering en kleur
detaillering
De relatie van het gebouw met het karakter (sfeer, identiteit) van reeds aanwezige bebouwing, de openbare ruimte, het landschap dan wel de stedenbouwkundige context.
Het plangebied ligt in een gebied met welstandsniveau 2. Het uitgangspunt van de nota is dat middels de voorgestelde “schilbenadering” elke wijk, elk gebied, een zekere basiszorg voor ruimtelijke kwaliteit behoudt. Uitgangspunt bij de toetsing is altijd de bestaande architectonische kwaliteit (van zowel object als directe omgeving). De bestaande situatie is normstellend. Is er sprake van een nog gaaf architectonisch/ stedenbouwkundig totaalbeeld, dan is het doel die kwaliteit minimaal te behouden. Is er sprake van een minder gaaf totaalbeeld, waarin al een diversiteit aan ingrepen heeft plaatsgevonden, dan is meer vrijheid toegestaan. Er wordt, in tegenstelling tot in het niveau 1 gebied, hier niet ingezet op een kwaliteitsimpuls maar op beheer en behoud.
Niveau 2 omvat de overige stedelijke beheergebieden en het buitengebied. Het zijn gebieden waarvan de ruimtelijke structuur en de gebouwen in mindere mate beeldbepalend zijn voor de stad, ten dele wél voor buurt of wijk. Van nieuwbouwplannen in deze gebieden mag gevraagd worden dat zij niet alleen op zichzelf redelijk zijn, maar ook dat zij bestaande ruimtelijke kwaliteiten in de omgeving respecteren. Kortom: een voldoende kwaliteit is hier de norm. Voor nieuwbouw betekent dit toetsing aan de algemene criteria b t/m e, voor verbouwplannen aan c, d en e.
Relevantie voor het plan
Voorliggend plan betreft de nieuwbouw van een filiaal van de Lidl op de plaats van een bestaand filiaal. Derhalve moet voldaan worden aan de algemene cirteria b t/m e. Het bouwvolume zal vooral in oppervlakte toenemen, maar qua hoogte aansluiten op bestande bouwwerken en de vergelijkbare utiliteitsbouw aan de overzijde van de Bosscheweg. Derhalve is en blijft het gebouw herkenbaar als zijnde een supermarkt. Qua uitstraling zal aangesloten worden bij de uitstraling van het huidige filiaal. Geconcludeerd kan worden dat de herbouw voorziet in voldoende kwaliteit en daarbij aansluit aan de norm zoals gesteld in de Welstrandsnota.
Hoofdstuk 4 Milieuhygiënische en planologische aspecten
In de navolgende paragrafen komen diverse milieuhygiënische en planologische aspecten aan de orde. Voor een aantal aspecten zijn onderzoeken uitgevoerd. Deze onderzoeken zijn opgenomen in separate rapportages die als bijlage bij deze toelichting zijn gevoegd. Voor inzicht in het gehele onderzoek wordt hier verwezen naar de bijlagen. Hierna is een korte samenvatting van deze onderzoeken opgenomen. Voor alle aspecten is de relevantie voor het plan omschreven.
4.1 Milieueffectrapportage
Op 1 juli 2010 is de Wet Modernisering m.e.r. in werking getreden. Deze wet wijzigt de Wet milieubeheer daar waar het gaat om de procedures en de wettelijke bepalingen aangaande het (al dan niet verplicht) opstellen van een milieueffectrapport (MER) en heeft tot doel de regelgeving te vereenvoudigen. Samenhangend hiermee is op 1 april 2011 het besluit tot wijziging van het Besluit m.e.r. in werking getreden.
De belangrijkste wijzigingen betreffen het aanpassen van de richtlijnen m.b.t. de activiteiten waarvoor een m.e.r.-beoordeling of een m.e.r. moet worden opgesteld. De plandrempels zijn gewijzigd, maar het karakter ervan is eveneens gewijzigd. Het bevoegd gezag zal zich er voortaan van moeten vergewissen of de activiteiten in dit onderdeel ook beneden de drempel geen aanzienlijke milieugevolgen kunnen hebben.
Het komt er op neer dat voor elk besluit of plan dat betrekking heeft op activiteit(en) die voorkomen op de D-lijst die beneden de drempelwaarden vallen een toets moet worden uitgevoerd of belangrijke nadelige milieugevolgen kunnen worden uitgesloten. Voor deze toets, die dus een nieuw element is in de m.e.r.-regelgeving, wordt de term vormvrije m.e.r.-beoordeling gehanteerd. Deze vormvrije m.e.r.-beoordeling kan tot twee conclusies leiden:
Belangrijke nadelige milieugevolgen zijn uitgesloten: er is geen m.e.r.(-beoordeling) noodzakelijk.
Belangrijke nadelige gevolgen voor het milieu zijn niet uitgesloten: er moet een m.e.r.-beoordeling plaatsvinden of er kan direct worden gekozen voor m.e.r.
In bijlage III van de Europese richtlijn 'betreffende de milieubeoordeling van bepaalde openbare en particuliere projecten' zijn de selectiecriteria beschreven die bepalen of er mogelijk sprake is van aanzienlijke negatieve gevolgen voor het milieu. Hierbij moet worden gedacht aan de omvang van het project, de cumulatie met andere projecten en natuurlijk de mate van verontreiniging of hinder. Ten tweede is de locatie van de projecten natuurlijk van belang. Daarbij moet in ogenschouw worden genomen of een project in de nabijheid van een gevoelig gebied is gelegen. Voorbeelden van gebieden die extra aandacht vragen zijn wetlands, berg- en bosgebieden, reservaten en natuurgebieden en bij wet beschermde gebieden.
Bij de samenhangende beoordeling van bovenstaande kenmerken van een project en de potentiële aanzienlijke milieugevolgen dient het volgende te allen tijde te worden meegewogen:
Het bereik van het effect (geografische zone en grootte van de getroffen bevolking).
Het grensoverschrijdende karakter van het effect.
De waarschijnlijkheid van het effect.
De duur, de frequentie en de omkeerbaarheid van het effect.
Op lijst D van de bijlage bij het Besluit m.e.r. is de aanleg, wijziging of uitbreiding van een stedelijk ontwikkelingsproject met inbegrip van de bouw van winkelcentra of parkeerterreinen (D11.1). Wanneer de ontwikkeling betrekking heeft op één van de volgende gevallen is een project m.e.r.-beoordelingsplichtig:
een oppervlakte van 100 hectare of meer.
een aaneengesloten gebied en 2.000 of meer woningen.
een bedrijfsvloeroppervlakte van 200.000m2 of meer. In gevallen waarin de activiteit betrekking heeft op een oppervlakte van 75 hectare of meer.
Een bestemmingsplan wordt specifiek genoemd in kolom 4 van de onderdelen C en D van de bijlage bij het Besluit milieueffectrapportage. De aanleg, wijziging of uitbreiding van een stedelijk ontwikkelingsproject met inbegrip van de bouw van winkelcentra of parkeerterreinen (cat. D 11.1) betreft een activiteit waarvoor een vormvrije m.e.r. beoordeling noodzakelijk is.
Relevantie voor het plan
De nieuwe planologische regeling biedt niet zodanig veel ruimte dat de drempelwaarden overschreden worden. Alleen bij dergelijke groottes is er op basis van het Besluit m.e.r. mogelijk sprake van significante effecten. Het plangebied (het initiatief) is veel minder omvangrijk dan de aantallen die genoemd zijn als drempelwaarden. Gezien de aard en omvang van de ontwikkeling en de afstand tot beschermende gebieden zijn geen negatieve effecten op de nabijgelegen gevoelige gebieden en Natura 2000-gebieden te verwachten. Ook tijdelijke effecten tijdens de aanlegfase zullen niet aan de orde zijn. Significante gevolgen zijn daarom niet te verwachten.
4.2 Vormvrije m.e.r. beoordeling
Zoals in paragraaf 4.1 van deze toelichting is omschreven, is op 1 april 2011 een wijziging van het Besluit milieueffectrapportage (Besluit m.e.r.) in werking getreden. Eén van de wijzigingen in dit Besluit is dat in elk initiatief dat betrekking heeft op activiteiten die voorkomen op de D-lijst (m.e.r.-beoordelingsplichtige activiteiten) van het Besluit m.e.r., aandacht moet worden besteed aan de vraag of een m.e.r.(-beoordeling) nodig is.
In bijlage D van het Besluit m.e.r. is een groot aantal activiteiten genoemd waarvoor een m.e.r.-beoordelingsplicht geldt. Eén van de genoemde activiteiten betreft "de aanleg, wijziging of uitbreiding van een stedelijk ontwikkelingsproject met inbegrip van de bouw van winkelcentra of parkeerterreinen".
Deze activiteit is m.e.r.-beoordelingsplichtig in geval deze betrekking heeft op:
Een oppervlakte van 100 hectare of meer.
Een aaneengesloten gebied en 2.000 of meer woningen.
Een bedrijfsvloeroppervlakte van 200.000m2 of meer. In gevallen waarin de activiteit betrekking heeft op een oppervlakte van 75 hectare of meer.
Het planvoornemen ligt ruim onder de plandrempels waarvoor conform het Besluit m.e.r. een m.e.r.-beoordelingsprocedure noodzakelijk is: de oppervlakte van het gehele plangebied bedraagt circa 0,6 hectare en is niet gelegen in gevoelig gebied. Gelet hierop blijft de beoogde ontwikkeling ruimschoots verwijderd van de (indicatieve) drempelwaarden uit het Besluit m.e.r., zodat een zogenaamde 'vormvrije m.e.r.-beoordeling' dient te worden uitgevoerd.
In het kader van de vormvrije m.e.r.-beoordeling is een aanmeldnotitie opgesteld. Op basis hiervan kan het college van burgemeester en wethouders de beslissing nemen dat het opstellen van een milieueffectrapport niet noodzakelijk is. De aanmeldnotitie is als Bijlage 4 bij deze toelichting opgenomen.
4.3 Archeologie, historisch geografie en cultuurhistorie
Beleidskader
Op basis van de Erfgoedwet en het gemeentelijke archeologiebeleid is het verplicht om bij de vaststelling van een ruimtelijk plan rekening te houden met bekende én te verwachten archeologische waarden in het plangebied.
Archeologie
In of in de directe nabijheid van het plangebied zijn geen terreinen gelegen die zijn opgenomen in de Archeologische Monumenten Kaart (AMK) van de Rijksdienst voor het Cultureel Erfgoed (RCE). Het plangebied zelf is niet gekarteerd op de Indicatieve Kaart van Archeologische Waarden (IKAW) van de RCE.
Het plangebied heeft op de IKAW, afhankelijk van de bodemkundige en geomorfologische gesteldheid, een lage tot hoge verwachting. Op basis van de archeologische waardenkaart van de gemeente Tilburg is het plangebied gelegen in een zone met een hoge archeologische verwachting.
In 2004 is een archeologisch inventariserend onderzoek uitgevoerd op basis van verder cultuurhistorisch verkennend onderzoek (H. van Dijk en K. Gheysen: Van De Logt tot Rauwe Braken, Beheerbestemmingsplan Theresia-Loven-Besterd. BILAN-rapport 2004-65). Het plangebied wordt daarin aangeduid als verstoord, zoals te zien op de navolgende verstoringenkaart.
Afbeelding 10: verstoringenkaart met ligging plangebied(rood) (bron: Bilanrapport 2004-65)
Historische geografie
Het plangebied bevindt zich op de dekzandrug Tilburg -Oisterwijk. De gronden bestaan uit lemig zand. Tot het begin van de negentiende eeuw is het plangebied in gebruik geweest als agrarisch land. De Bosscheweg werd in de jaren vanaf 1826 aangelegd als onderdeel van de rijksweg tussen Tholen en Grave. In Tilburg maakt daarvan ook de Bredaseweg deel uit. De infrastructuur is typisch voor de nieuwe grote doorgaande wegen die toen in de provincie werden aangelegd, met de rechtlijnige beloop en de beplanting met eiken aan weerszijden. De weg is zeer gaaf bewaard gebleven, mede door de aanleg van ventwegen kort na 1910, toen de eerste villa's langs de Bosscheweg gebouwd werden.
De belangrijkste 'moderne' ingrepen waren de aanleg van de spoorlijn van Tilburg naar Oisterwijk die in 1865 in gebruik werd genomen en het graven van het Wilhelminakanaal tussen 1917 en 1921.
Tussen de Ringbaan-Oost en het Wilhelminakanaal ligt het bedrijventerrein 'Kanaalzone'. Het is een element uit het plan Rückert uit 1917, maar voor het grootste deel pas ingevuld na de Tweede Wereldoorlog. De bebouwing op het terrein is zeer divers, zowel in massa als in architectonische kwaliteit. Steeds meer oudbouw op het terrein wordt vervangen door nieuwbouw. Daarbij treedt vaak ook schaalvergroting op.
Cultuurhistorie, objecten en structuren, historisch groen
In of in de directe nabijheid van het plangebied bevinden zich geen op grond van de Erfgoedwet (voorheen Monumentenwet 1988) of de Monumentenverordening Gemeente Tilburg beschermde (rijks)monumenten.
Circa 200 meter ten noordoosten van het plangebied bevindt zich over het Wilhelminakanaal een in 2016 als beschermd gemeentelijk monument aangewezen hefbrug uit 1953-1954 met kenmerkende betonnen hefpijlers. De bebouwing uit de periode 1850 - 1940 is geïnventariseerd in het Monumenten Inventarisatie Project (MIP). In de nabijheid van het plangebied komen langs de Bosscheweg diverse panden voor uit die periode, al bevinden die zich op geruime afstand ten noordoosten van het plangebied.
Historische structuren.
Op de cultuurhistorische waardenkaart van de provincie Noord-Brabant zijn de Bosscheweg, de Ringbaan-Oost, het Wilhelminakanaal en de Spoorlijn Tilburg -Den Bosch/Eindhoven aangeduid als historisch-geografische lijnen van hoge waarde.
Voor de architectuur en stedenbouw uit de periode na de Tweede Wereldoorlog dient onderzoek uit 2005 als basis. In of in de directe nabijheid van het plangebied zijn geen waardevolle panden uit de periode na de Tweede Wereldoorlog aanwezig.
Conclusie cultuurhistorie
Vanuit het oogpunt van cultuurhistorie bestaat er geen bezwaar tegen de geplande ontwikkeling. Er worden geen historisch waardevolle gebouwen of structuren aangetast.
Relevantie voor het plan
Het plangebied ligt in een zone welke geheel verstoord is waardoor archeologisch waardevol bodemarchief naar verwachting volledig vernietigd is. Archeologisch onderzoek wordt daarom niet noodzakelijk geacht. Sprake is van het vervangen van een gebouw zonder cultuurhistorische waarden voor een vergelijkbaar maar groter nieuwe bouwwerk. Qua vorm en uitstraling wordt aangesloten op het bestaande straatbeeld. De beoogde ontwikkeling heeft geen negatieve invloed op cultuurhistorische waarden.
Hoewel de kans op het aantreffen van archeologische waarden binnen het plangebied zeer klein wordt geacht, dient tot slot te worden opgemerkt dat voor alle toekomstige ontwikkelingen waarbij tijdens werkzaamheden archeologische waarden worden aangetroffen, conform paragraaf 5.4, 5.10 en 5.11 van de Erfgoedwet, een meldingsplicht geldt bij de bevoegde minister of door het hem vertegenwoordigde bevoegd gezag, zijnde de gemeente Tilburg.
4.4 Bedrijven en milieuzonering
Algemeen
Bij de aanpassing van een bestemmingsplan dienen de ruimtelijke randvoorwaarden gerespecteerd te worden, door het waarborgen van een acceptabel woon- en leefklimaat ter plaatse van de planlocatie en de omgeving. Voor deze beoordeling in het kader van een goede ruimtelijke ordening wordt aansluiting gezocht bij de VNG-publicatie "Bedrijven en milieuzonering". Tevens dient, met het oog op milieuwetgeving, onderzocht te worden of de supermarkt voldoet aan de normen uit aan het Activiteitenbesluit milieubeheer.
Bedrijven die aan te merken zijn als een inrichting in de zin van de Wet algemene bepalingen omgevingsrecht (Wabo) en waarop tevens een categorie uit bijlage I van het Besluit omgevingsrecht van toepassing is, dienen te voldoen aan de Wabo. Onder de Wabo kunnen inrichtingen te maken hebben met vergunningplicht, de algemene regels uit het Activiteitenbesluit of een combinatie daarvan.
Het Besluit omgevingsrecht wijst de bedrijven aan die vergunningplichtig zijn. Voor inrichtingen die niet als vergunningplichtig zijn aangewezen, zijn algemene regels van toepassing. Hiertoe geldt het Activiteitenbesluit milieubeheer. Met behulp van het Activiteitenbesluit milieubeheer is de milieuwet- en regelgeving gestroomlijnd en geüniformeerd. Het merendeel van de bedrijven, waar voorheen de vergunningplicht van toepassing was, valt onder de werkingssfeer van het Activiteitenbesluit milieubeheer. Dit geldt ook in onderhavige situatie voor de Lidl aan de Bosscheweg te Tilburg. Afhankelijk van het type inrichting kan het Activiteitenbesluit milieubeheer geheel of gedeeltelijk van toepassing zijn op de inrichting.
Bedrijven en Milieuzonering
Ten behoeve van de ruimtelijke afweging wordt aansluiting gezocht bij het stappenplan uit de VNG-publicatie "Bedrijven en milieuzonering" uit 2009. De VNG-publicatie mag alleen gemotiveerd toegepast worden. Er is voor deze richtlijn gekozen omdat er verder geen goede andere richtlijnen of kaders voorhanden zijn om milieuzonering goed in ruimtelijke plannen af te wegen.
De VNG -publicatie: "Bedrijven en milieuzonering (versie 2009), geeft informatie over de ruimtelijk relevante milieuaspecten van diverse bedrijfsactiviteiten. Tevens geeft deze publicatie richtafstanden voor het ontwikkelen van milieugevoelige functies (woningen) in de nabijheid van milieubelastende activiteiten (bedrijvigheid) in relatie tot het lokale omgevingstype. De publicatie is een hulpmiddel bij de ruimtelijke inpassing van plannen en vormt op basis van vaste jurisprudentie een goed vertrekpunt voor deze beoordeling.
Voor de beoordeling of er sprake is van een goed woon- en leefklimaat wordt onderscheid gemaakt in twee omgevingstypes. De twee omgevingstypes die de VNG hanteert, zijn enerzijds "rustige woonwijk en rustig buitengebied" en anderzijds "gemengd gebied". Voor beide omgevingstypen gelden verschillende richtafstanden, zoals weergegeven in de navolgende tabel.
|
Milieucategorie |
Richtafstand in meters, rustige woonwijk/buitengebied |
Richtafstand in meters, gemengd gebied |
|
1 |
10 |
0 |
|
2 |
30 |
10 |
|
3.1 |
50 |
30 |
|
3.2 |
100 |
50 |
Tabel: richtafstanden conform VNG-publicatie "Bedrijven en milieuzonering"
De te onderscheiden omgevingstypen worden onderstaand nader getypeerd.
Rustige woonwijk en een rustig buitengebied
"Een rustige woonwijk is een woonwijk die is ingericht volgens het principe van functiescheiding. Afgezien van wijkgebonden voorzieningen komen vrijwel geen andere functies (zoals bedrijven en kantoren) voor. Langs de randen (in de overgang naar mogelijke bedrijfsfuncties) is weinig verstoring door verkeer. Een vergelijkbaar omgevingstype qua aanvaardbare milieubelasting is een rustig buitengebied (eventueel inclusief verblijfsrecreatie), een stilte gebied of een natuurgebied."
Gemengd gebied
"Een gemengd gebied is een gebied met een matige tot sterke functiemenging. Direct naast woningen komen andere functies voor zoals winkels, horeca en kleine bedrijven. Ook lintbebouwing in het buitengebied met overwegend agrarische en andere bedrijvigheid kan als gemengd gebied worden beschouwd. Gebieden die direct langs de hoofdinfrastructuur liggen, behoren eveneens tot het omgevingstype gemengd gebied. Hier kan de verhoogde milieubelasting voor geluid de toepassing van kleinere richtafstanden rechtvaardigen. Geluid is voor de te hanteren afstand van milieubelastende activiteiten veelal bepalend."
Het omgevingstype wordt bepaald door de omgeving waarin de planrealisatie plaatsvindt en niet door het plan zelf. Het vetrekpunt vormt in algemene zin de afstanden behorend bij een rustige woonwijk en rustig buitengebied. De richtafstanden die hierbij behoren kunnen echter met één stap worden verkleind indien er sprake is van een gemengd gebied.
In onderhavig geval is het plan gelegen aan de Bosscheweg waar reeds meerdere bedrijven aan zijn gelegen. Het betreft met name veel detailhandel. Ook de spoorlijn Breda-Tilburg is in de onmiddellijke nabijheid van het plangebied gelegen. Daarom is in onderhavig geval sprake van een "gemengd gebied".
De supermarkt (SBI2008-code 471, milieucategorie 1) heeft in een "gemengd gebied" een richtafstand van 0 meter. De omliggende woningen zijn daarmee gelegen buiten de richtafstand uit de VNG-publicatie. Geconcludeerd wordt dat er sprake is van een goed woon- en leefklimaat ter plaatse van de omliggende woningen ten gevolge van de supermarkt. Een gedetailleerd onderzoek naar de optredende geluidniveaus in het kader van de ruimtelijke beoordeling is derhalve niet aan de orde. Wel is een nader onderzoek verricht in het kader van het Activiteitenbesluit en een goede ruimtelijke ordening.
Het huidige filiaal wordt gesloopt en vervangen door een nieuw en groter winkelpand. Het doel van het vergrote nieuwe filiaal is om meer ruimte te creëeren voor nevenruimten en grotere afstanden tussen de schappen waardoor niet zozeer nieuwe klanten getrokken worden, maar dat de huidige klanten meer kopen. Daarbij wordt de huidige inrichting van het plangebied niet groter en is geen sprake van een grotere bedrijfsbestemming. Wel worden gevaarlijke stoffen welke bedoeld zijn voor de verkoop (terpentine, spiritus) opgeslagen in het deel van het magazijn wat zo ver mogelijk van de omliggende woningen is gelegen.
Voor de eventuele opslag van gevaarlijke stoffen is de PGS15 van toepassing. Een dergelijke opslag leidt bij een supermarkt nooit tot risicocontouren tot buiten de inrichtingsgrens. Wat betreft een ammoniakkoelinstallatie is ook pas sprake van een risicocontour als sprake is van een installatie met meer dan 1.500 kg ammoniak. Bij een supermarkt is hiervan geen sprake.
Relevantie voor het plan
Gezien het voorgaande wordt er vanuit gegaan dat er over en weer geen extra hinder is tussen dete bouwen supermarkt en woningen in de omgeving. De herbouw van de supermarkt wordt daarom vanuit het oogpunt van bedrijven en milieuzonering toelaatbaar geacht.
4.5 Bodem
In Nederland regelt de Wet bodembescherming de omgang met gronden met als doel te voorkomen dat nieuwe bodemverontreinigingen ontstaan en bestaande bodemverontreinigingen worden verspreid. Ook worden eisen gesteld aan de bodemkwaliteit bij verschillende gebruiksfuncties. De kwaliteit van de bodem (aan/afwezigheid van verontreinigingen) dient bijvoorbeeld beter te zijn bij de toekenning van een woonfunctie dan bij het gebruik van gronden voor industrie.
Relevantie voor het plan
Door de jaren heen zijn er verschillende bodemonder-zoeken op en direct rond de locatie uitgevoerd. Tevens is er sprake een saneringsplan, van een BUS-melding en van 'monitoringsrapportages'. Meerdere (vervolg-)onderzoeken, saneringsplan en monitoring wijzen op de aanwezigheid van belangwekkende bodemverontreiniging.
Op, al dan niet voormalig kadastraal perceel 6893, is er sprake van een bodemsanering, uitgevoerd in 2003. Na sanering is een (sterke) restverontreiniging achtergebleven in de grond en het grondwater, deels onder het pand (olie-/benzineproduct). De restverontreiniging in het grondwater onder het pand wordt periodiek gemonitord, in opdracht van de LIDL.
Omdat er sprake is van sloop dient er, in het kader van de sloopmelding, een asbestinventarisatie te worden uitgevoerd. Afhankelijk van de uitkomst van die inventarisatie wel/niet asbestverdacht. Indien blijkt t dat er asbest is toegepast kan tijdens de bouw, door bewerking van asbesthoudende materialen asbest in de bodem zijn geraakt zo ook door brand. Door verwering kan door uitpandig toegepaste asbesthoudende materialen asbest in de bodem zijn ge-raakt.
De locatie is door een vorm van (verdere) bodemsanering geschikt te maken. Een eventuele (verdere) bodemsanering, mede gelet op dat het pand wordt gesloopt, wordt procedureel geregeld in de aanstaande Omgevingsvergunning. Een dergelijke vergunning wordt dan onder voorwaarden afgegeven, met een koppeling naar een saneringsprocedure en bevoegd gezag Wet bodembescherming: er kan niet eerder worden gesloopt/gebouwd dan na instemming van (gemandateerd) bevoegd gezag
4.6 Externe veiligheid
4.6.1 Inleiding
Externe veiligheid beschrijft de risico's die kunnen ontstaan als gevolg van opslag of handelingen met gevaarlijke stoffen. Dit heeft betrekking op inrichtingen (bedrijven), transportroutes en buisleidingen. Omdat de gevolgen bij een calamiteit groot kunnen zijn, is in wetgeving bepaald wanneer risico's verantwoord moeten worden. Deze zogenoemde verantwoordingsplicht betekent dat in ruimtelijke procedure de keuzes moeten worden onderbouwd én verantwoord door het bevoegd gezag. Hierbij geeft het bevoegd gezag aan in te stemmen met de risico's en de betreffende situatie aanvaardbaar te vinden.
De volgende besluiten zijn van belang bij ruimtelijke procedures:
Besluit externe veiligheid inrichtingen (Bevi) van 2004 (sindsdien enkele keren aangepast);
Besluit externe veiligheid transportroutes (Bevt) van 1 april 2015;
Besluit externe veiligheid buisleidingen (Bevb) van 1 januari 2011.
Daarnaast heeft de gemeente Tilburg een beleidsvisie externe veiligheid vastgesteld met de titel "Veilig en verantwoord ontwikkelen".
4.6.2 Verantwoordingsplicht
Bij het opstellen van een bestemmingsplan moet worden beschreven of een ontwikkeling ligt in het invloedsgebied van een risicobron. Per risicobron (transportas, buisleiding of inrichting) is vastgelegd wanneer de verantwoordingsplicht moet worden ingevuld en is de inhoud van de verantwoording bepaald.
In de bij dit plan gevoegde bijlagen Risico-inventarisatie en Verantwoording groepsrisico (bijlage 5) zijn de relevante risicobronnen geïnventariseerd. Uit de inventarisatie blijkt dat het plangebied ligt in het invloedsgebied van de Rijksweg A58 en het spoor Breda-Tilburg-Vught/Boxtel. De verantwoordingsplicht is hiervoor ingevuld en opgenomen in de genoemde bijlage. Er is een groepsrisicoberekening uitgevoerd door Bureau Kragten getiteld ‘Externe Veiligheid Spoor, LIDL Bosscheweg 296 Tilburg, d.d. 12 juli 2020, TIL038’ (bijlage 6). Deze QRA is op 1 september 2020 goedgekeurd door de gemeente Tilburg.
4.6.3 Beleidsvisie externe veiligheid
In de beleidsvisie externe veiligheid wordt het gebied waarin het plangebied ligt aangemerkt als een transportasgebied. Binnen een transportasgebied gelden de volgende voorwaarden:
Kwetsbare objecten zijn onder voorwaarden mogelijk.
Combinatie met gemengd of intensief gebied is mogelijk.
Niet geschikt voor bijzonder kwetsbare functies/objecten.
Beheersbaarheid spoor en gemeentelijke wegen op orde.
Aan bovengenoemde randvoorwaarden wordt voldaan. De ruimtelijke ontwikkeling is niet strijdig met het gemeentelijke externe veiligheidsbeleid.
4.6.4 Conclusie en restrisico
Het plangebied ligt binnen het invloedsgebied van de Rijksweg A58 en het spoor Breda-Tilburg-Vught/Boxtel. Personen in het plangebied worden aan externe veiligheidsrisico's blootgesteld, ook na maatregelen. Vanwege de ligging van het bestemmingsplan binnen het invloedsgebied van deze risicobronnen is de verantwoordingsplicht ingevuld (zie de eerdergenoemde bijlage Verantwoording groepsrisico).
De brandweer Midden -en West Brabant heeft d.d. 27 oktober 2020 advies uitgebracht (bijlage 12), de relevante onderdelen uit het advies zijn verwerkt in de verantwoording.
Uit de verantwoording groepsrisico worden de volgende relevante conclusies getrokken:
De plaatsgebonden risicocontour van 10-6 per jaar van risicobronnen in de omgeving van het plangebied vormt geen belemmering voor het initiatief;
In de toekomstige situatie blijkt dat het groepsrisico veroorzaakte door de spoorlijn ruim onder de oriëntatiewaarde ligt (<0,1 maal OW). Ten opzichte van de huidige situatie is sprake van een zeer geringe toename van het groepsrisico.
Bij een incident met een toxische wolk is binnen schuilen vaak de beste oplossing. Luchtbehandelingsinstallaties moeten met één handeling zijn uit te schakelen. Hiermee is langdurig verblijf inpandig bij een toxische wolk mogelijk.
Personen kunnen haaks op de wolk en van de bron af gericht onder dekking van het gebouw vluchten (nooduitgangen aan de noordzijde). Vluchtwegen zijn daartoe ingericht. De reeds aanwezige wegenstructuur biedt daartoe voldoende mogelijkheden.
In het ontruimingsplan van de supermarkt dient onder andere te worden beschreven a) wie de organisatie van het evacueren begeleidt, b) de verantwoordelijkheden, c) waart de verzamelplaats is, d) de organisatie op de verzamelplaats, e) wie zorgdraagt voor alarmering.
In het bedrijfsnoodplan dient te zijn opgenomen dat wordt geoefend in het geval van een calamiteit volgens het scenario voor een calamiteit met gevaarlijke stoffen op het spoor. Het ontruimings- / bedrijfsnoodplan dient opgesteld te worden in samenspraak met de brandweer.
De bereikbaarheid van het plangebied is goed;
Goede communicatie kan een bijdrage leveren aan de zelfredzaamheid van personen. In Tilburg vindt communicatie plaats via de Risicokaart, en de risicocommunicatie-campagne Denk Vooruit;
Het plangebied ligt in het dekkingsgebied van de WAS-installatie (Waarschuwings- en alarmeringssysteem), maar NL-Alert biedt de mogelijkheid de bewoners tijdig te waarschuwen;
De aanwezigen kunnen het plangebied goed ontvluchten;
De brandweer voldoet aan de opkomsttijd conform het dekkings- en spreidingsplan.
Het bevoegd gezag accepteert de externe veiligheidsrisico's en neemt de verantwoording voor het groepsrisico.
4.7 Geluid
In de zin van de Wet geluidhinder (Wgh) zijn de objecten woningen, geluidsgevoelige terreinen en andere geluidsgevoelige gebouwen beschermt tegen wegverkeerslawaai, industrielawaai, spoorweglawaai en omgevingslawaai. Om de nieuwe situatie in beeld te brengen is een akoestisch onderzoek industrielawaai uitgevoerd. Onderstaand wordt kort ingegaan op de conclusies. Voor meer informatie wordt verwezen naar het als bijlage 7 bij deze toelichting opgenomen onderzoek.
De supermarkt (SBI2008-code 471, milieucategorie 1) heeft in een “gemengd gebied” een richtafstand van 0 meter tot omliggende milieugevoelige objecten. De omliggende woningen zijn daarmee gelegen buiten de richtafstand uit de VNG-publicatie 'Bedrijven en milieuzonering'. Geconcludeerd wordt dat er sprake is van een goed woon- en leefklimaat ter plaatse van de omliggende woningen ten gevolge van de supermarkt. Een gedetailleerd onderzoek naar de optredende geluidniveaus in het kader van de ruimtelijke beoordeling is derhalve niet aan de orde. Wel is nader onderzoek verricht in het kader van het Activiteitenbesluit.
Ten aanzien van het langtijdgemiddelde beoordelingsniveau (LAr,LT) wordt voldaan aan de standaard normstelling van 50 dB(A) etmaalwaarde conform het Activiteitenbesluit milieubeheer. Ten aanzien van het maximale geluidniveau (LAmax) wordt de grenswaarde uit het Activiteitenbesluit in de dag- en avondperiode niet gerespecteerd ter plaatse van één woning (Bosscheweg 286). Ter plaatse van de overige woningen wordt de grenswaarde uit het Activiteitenbesluit wel gerespecteerd. Het optredende maximale geluidniveau ter plaatse van de Bosscheweg 286 wordt veroorzaakt door het dichtslaan van portieren op de parkeerplaatsen grenzend aan de woning. In de huidige situatie zijn hier reeds parkeerplaatsen gesitueerd. Ook in de huidige situatie treden deze maximale geluidniveaus al op.
De overschrijding van de geluidrichtwaarden in de dag- en de avondperiode ten gevolge van het dichtslaan van autoportieren wordt aanvaardbaar geacht omdat:
er sprake is van een bestaande situatie en er geen verdere verslechtering plaatsvindt;
er sprake is van omgevingsgeluid van de Bosscheweg;
de gevel waar de overschrijding plaatsvindt zodanig goed geïsoleerd is dat voldaan kan worden aan de geluidgrenswaarden voor het binnenniveau op basis van het Activiteitenbesluit milieubeheer.
Conform artikel 2.20 van het Activiteitenbesluit kan het bevoegd gezag bij maatwerkvoorschrift hogere geluidniveaus voor het maximale geluidniveau ter plaatse van de Bosscheweg 286 vaststellen.
De inrichting voldoet verder aan het BBT-principe.
Ten aanzien van de verkeersaantrekkende werking van de inrichting is sprake van een goed woon- en leefklimaat.
Relevantie voor het plan
Gezien het voorgaande vormt het aspect geluid geen belemmering vormt voor de realisatie van het plan.
4.8 Luchtkwaliteit
Inleiding
Sinds 15 november 2007 is de Wet luchtkwaliteit in werking getreden en staan de hoofdlijnen voor regelgeving rondom luchtkwaliteitseisen beschreven in de Wet milieubeheer (hoofdstuk 5 Wm). Hiermee is het Besluit luchtkwaliteit 2005 vervallen. Artikel 5.16 Wm (lid 1) geeft weer, onder welke voorwaarden bestuursorganen bepaalde bevoegdheden (uit lid 2) mogen uitoefenen. Als aan minimaal één van de volgende voorwaarden wordt voldaan, vormen luchtkwaliteitseisen in beginsel geen belemmering voor het uitoefenen van de bevoegdheid:
er is geen sprake van een feitelijke of dreigende overschrijding van een grenswaarde;
een project leidt, al dan niet per saldo, niet tot een verslechtering van de luchtkwaliteit;
een project draagt 'niet in betekenende mate' (NIBM) bij aan de luchtverontreiniging;
een project past binnen het NSL (Nationaal Samenwerkingsprogramma Luchtkwaliteit), of binnen een regionaal programma van maatregelen.
Het Besluit NIBM
Deze AMvB legt vast, wanneer een project niet in betekenende mate (NIBM) bijdraagt aan de concentratie van een bepaalde stof. De achtergrond van het beginsel 'Niet in betekenende mate' een ontwikkeling voor de luchtkwaliteit in een aantal gevallen (beschreven in de ministeriële Regeling NIBM) worden tenietgedaan door de ontwikkeling van bijvoorbeeld schonere motoren in het gehele land.
Op 1 augustus 2009 is het nationaal samenwerkingsprogramma luchtkwaliteit (NSL) in werking getreden. Hierdoor dient bij plannen die de luchtkwaliteit beïnvloeden niet langer te worden uit gegaan van de normen uit de interim-periode. Nu het NSL in werking is getreden is een project NIBM, als aannemelijk is dat het project een toename van de concentratie veroorzaakt van maximaal 3%. De 3% grens wordt gedefinieerd als 3% van de grenswaarde voor de jaargemiddelde concentratie van fijn stof (PM10) of stikstofdioxide (NO2). Dit komt overeen met 1,2 microgram/m³ voor zowel fijn stof en NO2. Als de 3% grens voor PM10 of NO2 niet wordt overschreden, dan hoeft geen verdere toetsing aan grenswaarden plaats te vinden.
Op te bepalen of een project 'niet in betekenende mate' bijdraagt aan een verslechtering van de luchtkwaliteit, hebben het ministerie van Infrastructuur en Milieu en Kenniscentrum InfoMill de NIBM-tool ontwikkeld. Hiermee kan eenvoudig en snel worden bepaald of een plan niet-in-betekenende-mate bijdraagt aan de concentratie van een stof in de buitenlucht.![i_NL.IMRO.0855.BSP2018020-e001_402010.png [image]](i_NL.IMRO.0855.BSP2018020-e001_402010.png)
|
|
|
Tabel: NIMB-tool. |
Relevantie voor het plan
Voorliggend bestemmingsplan voorziet in de herbouw en vergroting van een Lidl-filiaal. Op grond van de ingevulde NIBM-tool kan worden geconcludeerd dat het voorliggende plan niet in betekende mate bijdraagt aan de concentraties van voor luchtkwaliteit relevante stoffen. Vanuit het aspect luchtkwaliteit bestaan er kortom geen belemmeringen.
4.9 Natuur
Voor de beoogde ontwikkeling is een verkennend flora- en faunaonderzoek uitgevoerd om de mogelijke effecten van de werkzaamheden in kaart te brengen. Het volledige onderzoek is als bijlage 8 opgenomen.
Gebiedsbescherming
De Wet natuurbescherming (Wnb), die per 1 januari 2017 is ingegaan, vervangt drie wetten: de Natuurbeschermingswet 1998, de Flora- en Faunawet en de Boswet. Deze nieuwe wet bestaat uit minder regels en is overzichtelijker. Het doel is het in stand houden en beschermen van in het wild voorkomende plant- en diersoorten. Provincies zijn in dit geval verantwoordelijk voor de vergunningen en ontheffingen.
Natura 2000-gebieden
Natura 2000 is de benaming voor een Europees netwerk van natuurgebieden waarin de belangrijke flora en fauna voorkomen. Per gebied, dat onder Natura 2000 valt, zijn (instandhoudings)doelen opgesteld. Wanneer een activiteit nadelige gevolgen heeft voor een Natura 2000-gebied dient de activiteit niet door te gaan of te beperken. Het bevoegd gezag kan schadelijke activiteiten beperken en eisen dat een vergunning op de Wnb wordt aangevraagd. Het regulier beheer en bestaand gebruik zijn opgenomen in Natura 2000-beheerplannen. Na vaststelling van de beheerplannen hoeft daarvoor dan geen vergunning aangevraagd te worden.
Natuurnetwerk Nederland (NNN)
Het Natuurnetwerk Nederland (NNN), vroeger de Ecologische Hoofdstructuur (EHS), is het Nederlandse netwerk van bestaande en nieuw aan te leggen natuurgebieden. Het netwerk moet natuurgebieden met elkaar verbinden en met het omringende agrarisch gebied. Het NNN is gebaseerd op provinciale regelgeving, die met ingang van de Wnb niet is veranderd. Uiteindelijk is het de bedoeling dat het NNN de natuurgebieden in andere Europese landen verbindt en zo het aaneengesloten pan-Europees Ecologisch Netwerk (PEEN) vormt.
Veldbezoek
Op basis van de resultaten uit het verkennend flora- en faunaonderzoek, blijkt dat onderhavig plan negatieve effecten kan veroorzaken op beschermde diersoorten. Voor de verschillende soort(groep)en wordt beschreven welke verbodsbepalingen uit de Wet natuurbescherming worden overtreden en in hoeverre dit de realisatie van het voornemen in gevaar kan brengen. Eventueel te treffen vervolgstappen worden daarbij aangegeven.
Beschermde soorten
Als gevolg van de werkzaamheden binnen het plangebied treden mogelijk negatieve effecten op algemeen voorkomende zoogdieren en broedvogels op. Daarnaast leiden de werkzaamheden mogelijk tot een negatief effect op vaste rust- en verblijfplaatsen voor vleermuizen. Voor overige beschermde soorten worden negatieve effecten als gevolg van de voorgenomen werkzaamheden en het toekomstige gebruik van het nieuwe winkelpand niet verwacht.
Broedvogels
Het slopen van gebouw binnen het plangebied leidt mogelijk tot negatieve effecten op broedvogels, zoals het doden of verwonden van vogels (Wnb artikel 3.1 lid1) en het vernielen van nesten of eieren (Wnb artikel 3.1 lid 2). Het is hiernaast mogelijk dat als gevolg van de werkzaamheden vogels verstoord worden (Wnb artikel 3.1 lid 4). Doordat de staat van instandhouding van de te verwachten vogelsoorten binnen het plangebied gunstig is, als gevolg van een grote hoeveelheid geschikt leefgebied voor de te verwachten soorten in de omgeving, leidt het verstoren van vogels niet tot een overtreding van de Wet natuurbescherming.
In gebruik zijnde nesten zijn streng beschermd en mogen daarom niet worden vernield ten behoeve van ruimtelijke ontwikkelingen. De sloopwerkzaamheden dienen daarom uitgevoerd te worden buiten het broedseizoen. Het broedseizoen duurt globaal van half maart tot half juli. Deze periode is echter afhankelijk van de weersomstandigheden en de betreffende vogelsoort.
Algemeen voorkomende zoogdieren
Het voorkomen van de huisspitsmuis in de panden binnen het plangebied kan niet op voorhand worden uitgesloten. De omgeving van het plangebied biedt voldoende (tijdelijke) uitwijkmogelijkheden voor deze soort. Permanente negatieve effecten als gevolg van de uitbreiding worden derhalve niet verwacht. De werkzaamheden zelf hebben mogelijk wel een negatief effect op individuen van voorkomende soorten. Met de sloop van de panden kunnen individuen worden gedood (Wnb artikel 3.10 lid 1).
De huisspitsmuis is echter in de provinciale verordening van de provincie Noord-Brabant vrijgesteld van ontheffing voor het vernielen van vaste rust- en verblijfplaatsen. Het doden van individuen van deze soort blijft verboden, maar het verjagen of vangen, met het oog op het verplaatsen van de soort, is daarentegen wel vrijgesteld van ontheffing. De dieren dienen vrijgelaten te worden in het aanliggende gebied, buiten invloed van de werkzaamheden. Door middel van zorgvuldig handelen tijdens de uitvoering van de werkzaamheden kan daarom een overtreding van de Wet natuurbescherming voorkomen worden.
Vleermuizen
Het winkelpand van de Lidl en het aangrenzende pand (Bosscheweg 314) bieden in potentie geschikte verblijfslocaties voor gebouwbewonende vleermuizen. Op basis van het verkennend veldbezoek is het niet mogelijk om uitsluitsel te geven over de aanwezigheid van verblijven. Daardoor bestaat het risico op het vernielen van vaste rust- en verblijfplaatsen van vleermuizen, waarbij mogelijk dieren worden gedood (Wnb artikel 3.5 lid 1 en 4). Middels een nader soortenonderzoek dient derhalve in kaart gebracht te worden in hoeverre vleermuizen gebruik maken van de gebouwen binnen en aangrenzend aan het plangebied als verblijfplaats. Op basis hiervan kan beoordeeld worden of sloop en geplande nieuwbouw leidt tot een overtreding van de Wet natuurbescherming.
Gebiedsbescherming
Het plangebied bevindt zich op geruime afstand van het meest nabij gelegen Natura 2000-gebied 'Kampina & Oisterwijkse Vennen'. De werkzaamheden betreffen het slopen en de nieuwbouw van een winkelpand en het herinrichten van het parkeerterrein. Indirecte effecten zoals stikstofdepositie of grondwateronttrekking zijn door het huidige gebruik en de beperkte omvang van de ingreep niet aan de orde. Er is derhalve geen sprake van directe of indirecte negatieve effecten op Natura 2000-gebieden.
Het dichtstbijzijnde NNN gebied bevindt zich op circa 200 meter afstand van het plangebied. Gezien de aard, inclusief het toekomstige gebruik, de geringe omvang en ligging van het project, is elk effect op de natuurdoelstellingen die voor deze natuurgebieden gelden op voorhand uit te sluiten.
Stikstofdepositie
Volledigheidshalve is aanvullend een onderzoek naar stikstofdepositie uitgevoerd. De rapportage van het onderzoek is als bijlage 9 te raadplegen. Onderstaand zijn de conclusies kort samengevat.
Uit de uitgevoerde berekeningen naar de gebruiksfase en de aanlegfase blijkt dat de stikstofdepositie in beide situaties niet meer dan 0,00 mol N/ha/jaar bedraagt. Het onderhavige plan zal afzonderlijk - of in combinatie met andere plannen - geen relevante significante cumulatieve effecten veroorzaken ter plaatse van nabijgelegen Natura 2000-gebieden. In het kader van een voortoets kunnen significant negatieve effecten derhalve worden uitgesloten waardoor het uitvoeren van een passende beoordeling niet aan de orde is en het aspect stikstofdepositie geen belemmering vormt voor de realisatie van het plan.
Aanvullend vleermuisonderzoek
Naar aanleiding van het verkennend flora- en fauna onderzoek is een aanvullend vleermuisonderzoek uitgevoerd. Het volledige vleermuisonderzoek is als Bijlage 10 toegevoegd aan voorliggend plan. Onderstaand zijn de conclusies uit het onderzoek opgenomen.
Verblijfplaatsen
Binnen het plangebied zijn geen verblijfplaatsen aangetroffen. Wel zijn er, naar verwachting, twee zomerverblijven en een paarverblijf van de gewone dwergvleermuis in de omgeving van het plangebied aanwezig. Verblijfplaatsen van overige vleermuissoorten zijn niet waargenomen.
Foerageergebied en vliegroutes
De bomenrij ten zuiden van het plangebied wordt door gewone dwergvleermuizen uit de omgeving gebruikt als foerageergebied. Doordat in de omgeving diverse soortgelijke groenstructuren aanwezig zijn, is er geen sprake van een essentieel foerageergebied. Bovendien is de bomenrij buiten het plangebied gelegen, waardoor deze bij de geplande herontwikkeling behouden blijft. Van negatieve effecten op in de omgeving voorkomende gewone dwergvleermuizen is daarom geen sprake.
Boomeffectanalyse
In aanvulling op bovengenoemde flora- en fauna onderzoeken is i.v.m. met de verplaatsing van de in-/uitrit en de twee bomen die langs de Bosscheweg nabij de uitrit staan, een bomen effect analyse uitgevoerd. Onderstaand wordt kort ingegaan op de conclusies. Voor meer informatie wordt verwezen naar het als Bijlage 11 bij deze toelichting opgenomen onderzoek.
In eerste instantie is gekeken naar de kwaliteit van de bomen. De beide bomen hebben een matige conditie en toekomstverwachting. De bomen ontwikkelen dood hout en vormen een risico door takbreuk. Het regelmatig verwijderen van dood hout kan dit risico wegnemen zodat de bomen kunnen worden behouden.
De boom aan de westzijde staat op voldoende afstand van de uitrit waardoor er geen impact verwacht wordt. De boom aan de oostzijde staat op korte afstand van de uitrit. Het duurzaam voortbestaan van de boom zal afhangen van de werkzaamheden:
Geadviseerd wordt om niet te graven binnen de kwetsbare zone van de boom en de verharding niet te vervangen. Dan valt geen impact te verwachten naar aanleiding van de aanleg van de uitrit.
Als de verharding moet worden vervangen maar er wordt verder niet gegraven wordt geadviseerd om de verharding in de kwetsbare zone handmatig te verwijderen zodat er zo weinig mogelijk wortelschade optreedt.
Als de verharding wordt vervangen en gegraven dient te worden dient minimale graafafstand te worden gerespecteerd. Dat wil zeggen dat er niet gegraven wordt binnen 1.75m van de stamvoet. De boom behoudt op die manier voldoende stabiliteitswortels om stabiel te kunnen blijven staan. Wel wordt een groot deel van het (oppervlakkig) wortelpakket van fijnere wortels beschadigd buiten de minimale graafafstand. Door het verlies aan wortels zal de conditie van de boom mogelijk voor enkele jaren worden verminderd. Dan wordt de impact als beperkt ingeschat. Toch kan een beperkte impact mogelijk aanzienlijk worden aangezien de boom reeds een matige conditie heeft omwille van de beperkte groeiplaatsomstandigheden. Om het effect te beperken wordt bij voorkeur niet dieper dan 40 cm gegraven zodat de dikkere stabiliteitswortels (<5 cm) worden gespaard. Als gegraven dient te worden is het eventueel mogelijk om een groeiplaatsverbetering toe te passen voor de boom aan de westzijde.
Als toch wordt gegraven binnen de minimale graafafstand wordt zal de boom niet behouden kunnen worden. Er zal dan grote wortelschade optreden waardoor instabiliteit kan optreden.
In het kader van de omgevingsvergunningaanvraag wordt in nauw overleg met de gemeente Tilburg nader uitgewerkt op welke wijze wordt omgegaan met de betreffende bomen in relatie tot de in-/uitrit.
Relevantie voor het plan
Naar aanleiding van het verkennend flora en faunaonderzoek en het aanvullende vleermuisonderzoek kan geconcludeerd worden dat de beoogde ontwikkeling geen negatief effect heeft op de aanwezige natuurwaarden. Wel dient voor een aantal soorten de zorgplicht in acht genomen te worden en dient bij de plaatsing van verlichting voorkomen te worden dat er een toename aan lichtintensiteit in het gebied optreedt om verstoring van het aanwezige foerageergebied van vleermuizen en in de omgeving voorkomende verblijven te voorkomen. Indien aan deze vereisten wordt voldaan, heeft de voorgenomen uitbreiding van de Lidl aan de Bosscheweg te Tilburg geen negatief effect op in de omgeving voorkomende vleermuizen. Van een overtreding van de Wet natuurbescherming is dan geen sprake.
4.10 Water
4.10.1 Beleidskader
Het waterschap De Dommel heeft in 2015 het 'Waterbeheerplan Waardevol Water 2016 - 2021' vastgesteld. Dit plan is opgesteld vanuit de insteek van het waterschap: samen met gebruikers en (maatschappelijke) organisaties meerwaarde geven aan water. Dit doet het waterschap vanuit vier uitgangspunten:
beekdalbenadering;
gebruiker centraal;
samen sterker;
gezonde toekomst.
Naast dit beheerplan beschikt het waterschap over verschillende beleidsregels en de Keur die van belang zijn voor eventuele ontwikkelingen.
Het Provinciale Milieu- en Waterplan 2016 - 2021 (PMWP) is in 2015 door de provincie Noord-Brabant vastgesteld. Zowel het PMWP als het waterbeheerplan lopen parallel met de 2e termijn van de Kaderrichtlijn Water.
Het waterbeleid van de gemeente Tilburg is vastgelegd in het Programma Water en Riolering 2020-2023 (vastgesteld november 2019). Bij de totstandkoming van dit beleid zijn de waterbeheerders nauw betrokken. Ook de Omgevingsvisie 2040 (vastgesteld september 2015) is van belang. In deze omgevingsvisie zijn alle uitgangspunten en opgaves voor de komende decennia vastgelegd.
4.10.2 Bestaand watersysteem
Het Tilburgs stedelijke watersysteem is omschreven in het Programma Water en Riolering 2020-2023. De gebiedskenmerken van dit plangebied zijn weergegeven de navolgende tabel.
|
Kenmerk |
In plangebied |
|
Waterbeheerders |
Stedelijk watersysteem: gemeente Tilburg |
|
Bruto oppervlakte |
Ca. 5.400 m² |
|
Terreinhoogte |
Ca. 13,9 m+NAP |
|
Gemiddeld hoogste grondwaterstand (GHG) |
Ca. 11,9 m+NAP |
|
Ontwateringdiepte (verschil maaiveld en grondwaterpeil) |
Ca. 2 m |
|
Bodem |
Zandige bodem (Formatie van Boxtel) |
|
Riolering |
Gemengd stelsel |
|
Oppervlaktewater |
n.v.t. |
|
Keur beschermde gebieden |
Niet relevant (zie navolgende afbeelding) |
Tabel: Gebiedskenmerken
|
|
|
Afbeelding 11: Uitsnede Keurkaart voor plangebied en omgeving (plangebied aangeduid met zwarte pijl) |
Het afvalwater en het regenwater worden gecombineerd ingezameld en getransporteerd naar de zuiveringsinstallatie van waterschap De Dommel aan de noordkant van Tilburg. Bij hevige neerslag treden de riooloverstorten in werking. Het met regenwater verdunde afvalwater wordt dan geloosd op oppervlaktewater.
De referentiesituatie voor wat de afvoerende oppervlakten betreft is de bestaande situatie. In de navolgende tabel zijn de bestaande oppervlakten weergegeven.
|
Oppervlakten * |
Niet-afvoerende oppervlakte (m²) |
Afvoerende oppervlakte (m²) |
Totaal |
|
Dak en terreinverharding |
0 |
circa 5.400 m² |
circa 5.400 m² |
|
Tuin |
n.v.t. |
n.v.t. |
n.v.t. |
|
Totaal (m²) |
0 |
circa 5.400 m² |
circa 5.400 m² |
Tabel: Afvoerende oppervlakten in de bestaande situatie
4.10.3 Toekomstig watersysteem
Het plangebied is in de bestaande situatie reeds vrijwel geheel verhard. Deze situatie blijft ongewijzigd. De belangrijkste wijziging bestaat uit een vegroting van de hoeveelheid bebouwd oopervlak ter plaatse van momenteel aanwezige asfaltverharding.
Het afvalwater wordt overeenkomstig de bestaande situatie samen met het regenwater afgevoerd naar de gemengde riolering. De afvoerende oppervlakten in de nieuwe situatie zijn in z'n totaliteit ongewijzigd, met dien verstande dat de hoeveelheid terreinverharding afneemt als gevolg van de toename aan bebouwing. In de navolgende tabel zijn deze oppervlakten weergegeven.
|
Oppervlakten |
Niet-afvoerende oppervlakte (m²) |
Afvoerende |
Totaal |
|
Dak en terreinverharding |
0 |
circa 5.400 m² |
circa 5.400 m² |
|
Tuin |
n.v.t. |
n.v.t. |
n.v.t. |
|
Totaal (m²) |
0 |
circa 5.400 m² |
circa 5.400 m² |
Tabel: Afvoerende oppervlakten in de plansituatie
Het toepassen van uitlogende bouwmaterialen is uitgesloten om verontreiniging van bodem- en oppervlaktewater te voorkomen.
Naast vasthouden van het gebiedseigen water is het bergen (inzamelen) van regenwater uitgewerkt in de Tilburgse aanpak. De impact van deze ontwikkeling op het watersysteem is niet significant. Er is feitelijk geen wijziging in de hoeveelheid verhard oppervlak. Aangezien de toename van afvoerende oppervlakte minder dan 2.000 m² bedraagt, worden er geen bijzondere compensatiemaatregelen / (bergings)eisen vastgesteld voor deze ontwikkeling. De vuil- en regenwaterafvoer kunnen direct aangesloten worden op de bestaande riolering.
Om in te kunnen spelen op een mogelijk toekomstig regenwaterriool is het belangrijk dat beide waterstromen, regenwater en huishoudelijk afvalwater, inpandig apart worden ingezameld. Als de gemengde riolering in de omgeving van het plangebied in de toekomst wordt gescheiden dan kunnen de waterstromen ieder op het daarvoor bestemde riool aangesloten worden. Tot dat moment worden beide afvoerstromen bij de perceelgrens gecombineerd en door de gemengde riolering afgevoerd.
Bij extreme neerslag kunnen zich situaties voordoen waarbij het bestaande watersysteem ontoereikend is. Als de afvoer- en bergingscapaciteit van het systeem volledig benut zijn kunnen de waterpeilen in een dergelijk geval stijgen tot boven het maaiveld. De laag gelegen delen zullen als eerste overstromen.
Geadviseerd wordt om de vloerpeilen bij bebouwing ten minste 10 cm hoger dan de openbare ruimte ter plaatse van de perceelgrens (T-hoogte) te realiseren. Zo wordt de kans op inpandige schade zo veel mogelijk beperkt.
De eigenaar van de grond bepaalt de hoogten van de terreinpeilen en de vloerpeilen binnen de perceelgrenzen. Deze peilen moeten afgewogen en gekozen worden aan de hand van de volgende factoren:
voldoende ontwateringdiepte;
de water- en vochtdichtheid van alle ondergrondse bouwdelen dient te allen tijde voldoende te zijn voor de nieuwe functie van de ruimte;
de vuil- en regenwaterafvoer moet mogelijk zijn via de aangeboden lozingspunten en dus op het juiste peil worden aangeboden;
aansluiten op de bestaande aangrenzende percelen en op de (toekomstige) terreinhoogte van de openbare ruimte ter plaatse van de grens (T-hoogte);
geen afvloeiend regenwater afwentelen buiten de (toekomstige) percelen;
afdoende bescherming tegen overstroming bij extreme neerslag.
4.10.4 Watertoets
De impact van deze ontwikkeling op het watersysteem is zeer beperkt. Het watertoetsproces kan daarom een verkort traject doorlopen. In dit verkorte traject geeft het waterschap geen voorlopig wateradvies. In plaats daarvan wordt het wateradvies pas verstrekt bij de terinzagelegging van het bestemmingsplan.
Verder dient te worden opgemerkt dat sprake is van een bestemmingsplan dat een kader biedt voor de toekomstige omgevingsvergunningaanvraag ten behoeve van het bouwen. In het kader van de omgevingsvergunningaanvraag wordt de exacte wijze waarop met hemelwater wordt omgegaan nader uitgewerkt.
4.11 Geur
De Wet geurhinder en veehouderij (Wgv) vormt het toetsingskader voor het aspect geurhinder als gevolg van dierenverblijven van veehouderijen. Met minimumafstanden en maximale waarden voor geurbelasting krijgen geurgevoelige objecten bescherming tegen geurhinder.
De in de Wgv opgenomen (vaste) afstanden van veehouderijen tot geurgevoelige objecten gelden voor dieren waarvoor in de Regeling geurhinder en veehouderij (Rgv) geen omrekeningsfactoren zijn vastgesteld, zoals melkrundvee, vrouwelijk jongvee en paarden. De minimaal aan te houden afstand bedraagt 50 meter tot een geurgevoelig object buiten de bebouwde kom en 100 meter tot een geurgevoelig object binnen de bebouwde kom. Deze afstanden gelden ongeacht het aantal dieren
dat er gehouden wordt en worden gemeten vanaf het dichtstbijzijnde emissiepunt van een stal waarin de betreffende dieren worden gehouden. In het voorliggende geval wordt ruimschoots voldaan aan deze afstanden aangezien binnen een straal van meer dan 1.000 meter geen veehouderijen aanwezig of toegestaan zijn.
Naast de geurbelasting door individuele veehouderijen (de voorgrondbelasting) wordt het woon- en leefklimaat in een gebied ook bepaald door de achtergrondbelasting, de geurbelasting ten gevolge van alle veehouderijen samen. De Wgv kent geen normen voor de achtergrondbelasting of de mogelijkheid
dergelijke normen te stellen. Het is aan de gemeente om te beoordelen of de geurbelasting en geurhinder in een specifiek gebied acceptabel worden geacht.
In het voorliggende geval zijn in de directe omgeving van het plangebied geen veehouderijen gelegen. Op grond daarvan kan redelijkerwijs worden aangenomen dat binnen het plangebied voor wat betreft het aspect geur, sprake is van een goed woon- en leefklimaat. Vanuit het aspect geur in relatie tot veehouderijen bestaan er kortom geen belemmeringen.
Hoofdstuk 5 Juridische planbeschrijving
5.1 Inleiding
De indeling en inhoud van de regels bij dit bestemmingsplan zijn gebaseerd op de Tilburgse bestemmingsplansystematiek, die primair ten behoeve van het opstellen van bestemmingsplannen door de afdeling Ruimte van de gemeente Tilburg is opgesteld. De plansystematiek is vastgesteld door het
gemeentebestuur en wordt doorlopend aan veranderende regelgeving en beleidsinzichten aangepast. De plansystematiek is gebaseerd op en sluit aan bij SVBP2012 (Standaard Vergelijkbare Bestemmingsplannen) en IMRO2012 (Informatie Model Ruimtelijke Ordening). De systematiek is te vinden op www.tilburg.nl/ruimtelijkeplannen.
5.2 Standaard plansystematiek
5.2.1 Bouwvlak en erf
De Tilburgse plansystematiek (en dus ook dit plan) maakt onderscheid tussen het bouwvlak en het erf.
Het bouwvlak komt in principe bij alle bestemmingen voor. Hoofdgebouwen moeten binnen het bouwvlak worden opgericht. Bijgebouwen, aan- en uitbouwen en bouwwerken, geen gebouwen zijnde, mogen er eveneens worden gebouwd, uiteraard slechts voor zover deze passen binnen de bestemming en de bouwregels. Soms mag het bouwvlak volledig worden volgebouwd, soms niet. Het eerste blijkt normaliter uit de planregels, het tweede wordt in de regel op de verbeelding weergegeven met een maatvoeringsaanduiding.
In het erf mogen geen hoofdgebouwen worden opgericht. Bijgebouwen, aan- en uitbouwen en bouwwerken, geen gebouwen zijnde, zijn wel toegestaan, voor zover deze passen binnen de bestemming en de bouwregels.
Het erf komt met name voor bij woningen en bebouwing langs de linten.
Binnen het onbebouwd erf (perceel minus bouwvlak en minus erf) beperken de bouwmogelijkheden zich over het algemeen tot hetgeen vergunningvrij mag worden gebouwd en enkele bouwwerken, geen gebouwen zijnde (denk vooral aan erfafscheidingen).
5.3 Algemene toelichting verbeelding
Op de verbeelding hebben alle gronden binnen het plangebied een bestemming gekregen. Binnen een bestemming kunnen nadere aanduidingen zijn opgenomen. Deze aanduidingen hebben juridische betekenis indien en voor zover deze daaraan in de planregels wordt gegeven. Een aantal aanduidingen heeft geen juridische betekenis en is uitsluitend op de verbeelding aangegeven ten behoeve van de leesbaarheid, zoals kadastrale en topografische gegevens.
5.4 Algemene toelichting regels
Hoofdstuk 1 bevat de begrippen en de wijze van meten. In hoofdstuk 2 zijn de regels opgenomen behorende bij de bestemmingen die op de verbeelding aan de gronden zijn toegekend. In hoofdstuk 3 zijn algemene regels opgenomen die op het gehele plangebied van toepassing zijn dan wel aanduidingen die betrekking hebben op meer dan één bestemmingsvlak. In hoofdstuk vier zijn de regels opgenomen waarmee het overgangsrecht wordt geregeld en is een artikel opgenomen waarin de formele naamgeving van de planregels is vastgelegd.
Hoofdstuk 1, 3 en 4 zijn vrij algemeen van aard en worden niet nader beschreven in deze paragraaf. Hiervoor zijn de gebruikte bestemmingen toegelicht, zoals opgenomen in hoofdstuk 2 van de planregels.
5.5 Bestemmingen en aanduidingen
De planregels zijn opgesteld op basis van de landelijke standaarden zoals vastgelegd in het rapport Standaard Vergelijkbare Bestemmingsplannen. De planregels zijn conform deze standaard verdeeld in vier hoofdstukken, te weten hoofdstuk 1 Inleidende regels, hoofdstuk 2 Bestemmingsregels, hoofdstuk 3 Algemene regels en hoofdstuk 4 Overgangs- en slotregels.
Voor het gehele plangebied is de bestemming 'Detailhandel' opgenomen. Ter plaatse is detailhandel toegestaan, voor zover het voorzieningen en de categorie betreft die zijn genoemd in de als bijlge bij de regels opgenomen 'Staat van bedrijfsactiviteiten - functiemenging'. Het aantal vierkante meters winkelvloeroppervlak mag niet meer bedragen dan 1.310 m².
Binnen de bestemming 'Detailhandel' is verder een bouwvlak opgenomen waarbinnen gebouwen gebouwd dient te worden. Op de verbeelding is ter hoogte van het bouwvlak de aanduiding 'maximum bouwhoogte (m), maximum bebouwingspercentage (%)' opgenomen, waarmee binnen het bouwvlak een maximale bouwhoogte van 9 meter is toegestaan en een maximum bebouwingspercentage van 85%.
Voor de grond buiten het bouwvlak zijn de aanduidingen 'erf' en 'parkeerterrein' opgenomen, evenals de aanduiding 'maximum bouwhoogte (m), maximum bebouwingspercentage (%)'. Ter plaatse is een maximale bouwhoogte van 5 meter toegestaan en een maximum bebouwingspercentage van 5%.
Naast de bovengenoemde aanduidingen zijn binnen het plangebied nog de volgende gebiedsaanduidingen opgenomen:
'Luchtvaartverkeerzone', in verband met een obstakelvrij start-en landingsvlak met zijkanten ten behoeve van de vliegverkeersveiligheid, met dien verstande dat binnen deze zone een bepaalde maximale hoogte geldt voor gebouwen en bouwwerken, geen gebouwen zijnde.
'Veiligheidszone - aandachtsgebied vervoer gevaarlijke stoffen', in verband met het transport van gevaarlijke stoffen over het nabij gelegen spoor.
'Veiligheidszone - plasbrandaandachtsgebied', in verband met het plasbrandaandachtsgebied in relatie tot het transport van gevaarlijke stoffen over het nabij gelegen spoor.
Binnen de beide veiligheiszones zijn voorwaarden opgenomen voor de realisatie van (beperkt) kwetsbare objecten.
Hoofdstuk 6 Uitvoerbaarheid
Artikel 3.1.6. van het Bro bepaalt dat in een vast te stellen bestemmingsplan een toelichting moet worden opgenomen, waarin (o.a.) de inzichten staan over de uitvoerbaarheid van het plan. Het voorliggende plan bevat een bouwplan als bedoeld in artikel 6.2.1 Bro. De Grondexploitatiewet (afdeling 6.4 van de Wro) is om die reden van toepassing en in beginsel is dus een exploitatieplan vereist.
Gelet op het bepaalde in artikel 6.12 lid2 van de Wro hoeft in casu echter geen exploitatieplan te worden opgesteld. Doordat met initiatiefnemer een exploitatieovereenkomst is gesloten, is het verhaal van kosten die de gemeente moet maken 'anderszins verzekerd' door die overeenkomst. Met betrekking tot de gemeentelijke plan- en apparaatskosten ten behoeve van het opstellen van dit plan zijn door de initiatiefnemer leges betaald. Daarnaast is met de initiatiefnemer een overeenkomst inzake het verhaal van tegemoetkomingen in planschade gesloten. In deze overeenkomst is bepaald dat schade als gevolg van dit bestemmingsplan, die op grond van afdeling 6.1. Wro voor vergoeding in aanmerking komt, zal worden vergoed door de initiatiefnemer.
Gelet op het voorgaande is het plan economisch uitvoerbaar.
Hoofdstuk 7 Procedure
7.1 Kennisgeving ex artikel 1.3.1 Bro
Artikel 1.3.1 van het Bro verplicht bestuursorganen die een bestemmingsplan voorbereiden waarbij sprake is van een ruimtelijke ontwikkeling en waarbij geen milieueffectrapport wordt opgesteld, kennis te geven van het voornemen te komen tot vaststelling van dat bestemmingsplan. Het voornemen om te komen tot vaststelling van dit bestemmingsplan is op 28 september 2018 gepubliceerd in het Gemeenteblad.
7.2 Omgevingsdialoog
De gemeente Tilburg heeft een 'Richtlijn Omgevingsdialoog' opgesteld met als doel te bereiken dat inwoners eerder betrokken worden bij ruimtelijke plannen. Gelet op de situatie omtrent Covid-19 is geen informatieavond gehouden, maar zijn omwonenden middels een brief over de plannen geïnformeerd en in de gelegenheid gesteld vragen te stellen aan de initiatiefnemer. Naar aanleiding van de reacties is door de Lidl is aan de omwonenden een brief met vragen en antwoorden gestuurd (bijlage 13). De vragen hadden betrekking op de verkeerssituatie aan de Bosscheweg, de overlast van het lossen van vrachtwagens in de nacht en de opstelplaats van de koelmotoren in verband met mogelijke geluidsoverlast. Lidl heeft aangegeven dat de 2e uitrit wel in gebruik blijft, dat het nieuwe magazijn verder van de woning van betreffende omwonende wordt gesitueerd en dat de koelmotoren zo veel mogelijk richting de spoorlijn worden geplaatst.
7.3 Zienswijzen
Het ontwerpbestemmingsplan heeft gedurende een periode van 6 weken ter inzage gelegen. Een ieder is in de gelegenheid gesteld een zienswijze in te dienen. Er zijn geen zienswijzen ingediend.