2 Initiatief
Een voormalig bedrijfspand aan de Voorbancken 1a te Vinkeveen dient verbouwd te worden naar een bedrijfsgebouw met inpandig een bedrijfswoning.
In het bestemmingsplan is een afwijkingsmogelijkheid opgenomen om binnen een periode van twee jaar na vaststelling van het plan een bedrijfswoning te realiseren met gebruikmaking van deze bevoegdheid. Door initiatiefnemer is binnen deze periode van 2 jaar een aanvraag bouwvergunning ingediend,fase 1. Deze fase 1 vergunning is afgegeven. De fase 2 vergunning is nimmer afgegeven.
Inmiddels is de twee jaar termijn verstreken en kan geen gebruik meer gemaakt worden van de opgenomen afwijkingsmogelijkheid. Recentelijk heeft de gemeente De Ronde Venen aangeven te willen afwijken van het onlangs vastgestelde regime ten einde het voornemen, waarop in het verleden is ingestemd, alsnog te kunnen realiseren. Hiertoe dient een omgevingsvergunning afgegeven te worden met uitgebreide procedure. Voor het doorlopen van deze procedure is een ruimtelijke onderbouwing noodzakelijk.
3.2.1 Ruimtelijke Structuurvisie 2013 - 2028
De Provinciale Ruimtelijke Structuurvisie (PRS) is op 4 februari 2013 vastgesteld door Provinciale Staten van de provincie Utrecht. In de PRS beschrijft de provincie Utrecht haar ruimtelijk beleid voor de periode tot 2028. De provincie Utrecht geeft aan welke doelstellingen zij van provinciaal belang achten, welk beleid bij deze doelstellingen hoort en hoe zij uitvoering geven aan dit beleid. Deels wordt uitvoering gegeven aan het beleid via de Provinciale Ruimtelijke Verordening welke tegelijk met de PRS is opgesteld.
In de Provinciale ruimtelijke structuurvisie zijn de volgende provinciale belangen vastgelegd.
- Ontwikkelen van een robuust en duurzaam bodem- en watersysteem en een waterveilige provincie.
- Behoud van de strategische grondwatervoorraden.
- Ruimte voor duurzame energiebronnen.
- Anticiperen op de langetermijngevolgen van klimaatverandering.
- Behouden en versterken van de kernkwaliteiten van het landschap.
- Behouden en ontwikkelen van de kwaliteit van de cultuurhistorische hoofdstructuur en de aardkundige waarden.
- Realiseren van voldoende en op de behoefte aansluitend woningaanbod, met een accent op binnenstedelijke ontwikkeling.
- Een vitale en innovatieve regionale economie, met voldoende en diverse vestigingsmogelijkheden.
- Optimaal gebruik van de binnenstedelijke ruimte.
- Een goede bereikbaarheid voor woon-, werk en vrijetijdsverkeer
Bedrijventerreinen
- het versterken van die bedrijfssectoren die veel gebruikmaken van kennis en creativiteit (life sciences, creatieve industrie en duurzaamheidseconomie);
- het zoveel als mogelijk accommoderen van de dynamiek van de al in onze provincie gevestigde bedrijven.
Planspecifiek
Het plangebied ligt op een bedrijventerrein. Op bedrijventerreinen heeft de provincie Utrecht de nadruk gelegd op herstructurering, intensivering en transformatie van bestaand bedrijventerrein.
Om de huidige landschapskwaliteit vast te leggen en aan te geven hoe deze de ruimtelijke ontwikkelingen kan sturen en welke kwalitatieve randvoorwaarden het landschap aan deze ontwikkelingen meegeeft, is de kwaliteitsgids voor de Utrechtse Landschappen opgesteld. In de kwaliteitsgids zijn de kwaliteiten van verschillende Utrechtse landschappen vastgelegd in afzonderlijke katernen. Voor het plangebied is het katern Groene Hart relevant. In dit gebied wil de provincie de volgende kernkwaliteiten behouden en versterken:
- openheid;
- (veen)weidekarakter (incl. strokenverkaveling, lintbebouwing, etc.);
- landschappelijke diversiteit;
- rust & stilte.
Het plan voor de herbestemming van het bedrijfspand doet gezien de kleine schaal en de aard van de ontwikkeling, geen afbreuk aan de hiervoor genoemde kernkwaliteiten. De functionele verandering van bedrijfsbestemming naar woonbestemming heeft geen directe invloed op de openheid, karakter of diversiteit van het gebied. Het plan is derhalve niet in strijd met de PRS.
3.2.2 Provinciale Ruimtelijke Verordening
Tegelijk met de PRS is op 4 februari 2013 de Provinciale Ruimtelijke Verordening vastgesteld door Provinciale Staten van de provincie Utrecht. In de PRV wordt deels uitvoering gegeven aan het beleid uit de PRS. De PRV geeft regels met betrekking tot de onderwerpen bodem, water, energie, cultureel erfgoed, wonen, werken, verkeer en vervoer, landelijk gebied, landschap, natuur en recreatie.
Planspecifiek
Het plangebied ligt op het bedrijventerrein Mijdrecht Vinkenveen. Met betrekking tot bedrijventerreinen in stedelijk gebied stelt artikel 3.3 van de PRV dat verstedelijking mogelijk is mits voldaan wordt aan de volgende voorwaarden:
Een ruimtelijk plan bevat planregels voor nieuwvestiging van bedrijventerreinen of uitbreiding van bestaande bedrijventerreinen zoals genoemd in de bijlage Bedrijventerreinen, onder het kopje inbreiding, waarin de voorwaardelijke verplichting is opgenomen dat nieuwvestiging of uitbreiding plaats kan vinden, mits voldaan is aan de volgende voorwaarden:
- de herstructurering van bestaande bedrijventerreinen is verzekerd door middel van een herstructureringsplan;
- de nieuwvestiging of uitbreiding wordt in samenhang ontwikkeld met de herstructurering van een bestaand bedrijventerrein waarbij de hoeveelheid nieuw te ontwikkelen bedrijventerrein in redelijke verhouding staat tot de omvang van de herstructurering van één of meerdere bestaande bedrijventerreinen;
- de tijdige realisering van de herstructurering is verzekerd.
Het plan voor de verbouwing van het bedrijfspand zorgt niet voor een verdere verstedelijking. De schaal en omvang van de aanwezige bebouwing blijft ongewijzigd. Gesteld kan worden dat het plan voldoet aan de gestelde voorwaarden. Het PRV kent inhoudelijk geen bepalingen omtrent het toevoegen van bedrijfswoningen op bedrijventerreinen. Omringende functies zullen door de verbouwing niet onevenredig aangetast worden (zie ook hoofdstuk 4). Daarnaast zal het plan geen afbreuk doen aan de bestaande ruimtelijke kwaliteit van het gebied. Het plan is derhalve in overeenstemming met de PRV. Opgemerkt moet worden dat voor het plangebied geen formeel herstructureringsplan van toepassing.
3.3.2 Vigerend bestemmingsplan
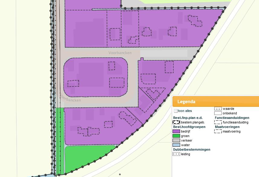
Het plangebied maakt onderdeel uit van het Bedrijventerreinen Mijdrecht en Vinkeveen vastgesteld op 20-04-2010 en heeft hierin de bestemming Bedrijf -1 . De gronden bestemd voor Bedrijf -1 zijn bestemd voor bedrijven in de daartoe aangewezen bedrijfscategorieën en bestaande bedrijfswoningen. Burgemeester en wethouders zijn bevoegd om voor bedrijventerrein Voorbancken per bedrijf ontheffing te verlenen voor de realisatie van ten hoogste één bedrijfswoning, waarvan de inhoud niet meer dan 500 m³ mag bedragen; de bedrijfswoning moet met de voorgevel ten minste 5 m uit de voorste perceelsgrens gebouwd worden. Deze ontheffingsbevoegdheid kan worden toegepast binnen twee jaar na vaststelling van het plan.
Planspecifiek
Het ontwerp van de bedrijfswoning voldoet aan de eisen conform het bestemmingsplan en aan de eisen van de opgenomen ontheffingsmogelijkheid (maximale inhoud van 500 m3 en minimaal 5 meter uit de voorste perceelsgrens). De woning krijgt een inhoud van 420 m3 en is op meer dan 5 meter van de voorste perceelsgrens gesitueerd. Inmiddels is de twee jaar termijn verstreken en kan geen gebruik meer gemaakt worden van de opgenomen afwijkingsmogelijkheid. Het verlopen van de twee jaren termijn staat in de weg aan het gebruik van de afwijkingsmogelijkheid. Recentelijk heeft de gemeente De Ronde Venen aangeven te willen afwijken van het onlangs vastgestelde regime ten einde het voornemen, waarop in het verleden is ingestemd, alsnog te kunnen realiseren.
Uitsnede vigerend bestemmingsplan
4.1.1 Bedrijven en milieuzonering
Het aspect bedrijven en milieuzonering gaat in op de invloed die bedrijven kunnen hebben op hun omgeving. Deze invloed is afhankelijk van de afstand tussen een gevoelige bestemming en de bedrijvigheid. Milieugevoelige bestemmingen zijn gebouwen en terreinen die naar hun aard bestemd zijn voor het verblijf van personen gedurende de dag of nacht of een gedeelte daarvan (bijvoorbeeld woningen). Daarnaast kunnen ook landelijke gebieden en/of andere landschappen belangrijk zijn bij een zonering tot andere, minder gevoelige, functies zoals bedrijven.
Bij een ruimtelijke ontwikkeling kan sprake zijn van reeds aanwezige bedrijvigheid en van nieuwe bedrijvigheid. Milieuzonering zorgt er voor dat nieuwe bedrijven een juiste plek in de nabijheid van de gevoelige functie krijgen en dat de (nieuwe) gevoelige functie op een verantwoorde afstand van bedrijven komen te staan. Doel hiervan is het waarborgen van de veiligheid en het garanderen van de continuïteit van de bedrijven als ook een goed klimaat voor de gevoelige functie.
Milieuzonering beperkt zich tot milieuaspecten met een ruimtelijke dimensie zoals: geluid, geur, gevaar en stof. De mate waarin de milieuaspecten gelden en waaraan de milieucontour wordt vastgesteld, is voor elk type bedrijvigheid verschillend. De 'Vereniging van Nederlandse Gemeenten' (VNG) geeft sinds 1986 de publicatie 'Bedrijven en Milieuzonering' uit. In deze publicatie is een lijst opgenomen, met daarin de minimale richtafstanden tussen een gevoelige bestemming en bedrijven. Indien van deze richtafstanden afgeweken wordt dient een nadere motivatie gegeven te worden waarom dat wordt gedaan.
Het belang van milieuzonering wordt steeds groter aangezien functiemenging steeds vaker voorkomt. Hierbij is het motto: 'scheiden waar het moet, mengen waar het kan'. Het scheiden van milieubelastende en milieugevoelige bestemmingen dient twee doelen:
- het reeds in het ruimtelijk spoor voorkomen of zoveel mogelijk beperken van hinder en gevaar bij gevoelige bestemmingen;
- het bieden van voldoende zekerheid aan de milieubelastende activiteiten (bijvoorbeeld bedrijven) zodat zij de activiteiten duurzaam, en binnen aanvaardbare voorwaarden, kunnen uitoefenen.
Planspecifiek
Het plangebied is gelegen op een bedrijventerrein. Door de organische groei van het terrein is er een gemengd gebied ontstaan met diverse bedrijven met bijbehorende bedrijfswoningen. De bedrijfswoningen welke geen onderdeel uitmaken van de betreffende inrichting zijn maatgevend voor de milieuvergunning van de betreffende inrichtingen. De onderstaande afbeelding geeft de bedrijfswoningen weer in relatie tot de bestaande bedrijvigheid. Uit deze afbeelding is te herleiden dat de nieuw toe te voegen woning voor geen van de aanwezige bedrijven aan te merken is als de maatgevende woning. Daarmee leidt deze nieuwe woning dan ook niet tot een verdere belemmering van de aanwezige bedrijfsvoeringen. Wel kan de situatie ontstaan dat bij een eventuele verkoop van de nieuw te realiseren woning deze woning maatgevend wordt voor de voorgelegen bedrijfsvoering.
Conform het vigerend bestemmingsplan is er bij de volgende woningen geen sprake van geconstateerde hinder door bedrijven, of beperkingen voor bedrijven. Deze woningen bevinden zich op een vergelijkbare afstand, of dichter tot een bron als het de projectlocatie :
- Voorbancken 11
- Voorbancken 12 a
- Voorbancken 12 b
- Voorbancken 18
- Voorbancken 20
- Voorbancken 22

Bedrijfswoningen rood omlijnd, projectlocatie blauw aangeduid
In het bestemmingsplan is een afwijkingsmogelijkheid opgenomen om binnen een periode van twee jaar na vaststelling van het plan een bedrijfswoning te realiseren met gebruikmaking van deze bevoegdheid. Door initiatiefnemer is binnen deze periode van 2 jaar een aanvraag bouwvergunning ingediend, fase 1. Deze fase 1 vergunning is afgegeven. De fase 2 vergunning is nimmer afgegeven vanwege een misverstand omtrent de gefaseerde vergunningen bij de initiatiefnemer.
Inmiddels is de twee jaar termijn verstreken en kan geen gebruik meer gemaakt worden van de opgenomen afwijkingsmogelijkheid. De gemeente De Ronde Venen heeft aangeven te willen afwijken van het onlangs vastgestelde regime ten einde het voornemen, waarop in het verleden is ingestemd, alsnog te kunnen realiseren.
locatie specifiek onderzoek
Door de Milieuadviseur is een locatie specifiek onderzoek verricht naar de inpasbaarheid van de beoogde ontwikkeling gezien de omliggende bedrijven. Dit onderzoek is als bijlage aan deze onderbouwing toegevoegd. Hieronder is de conclusie vanuit de rapportage opgenomen. Uit de onderzoek blijkt dat de woning inpasbaar is.
De nieuwe woning ligt binnen de richtafstand van 10 meter van het bedrijf Gym Syppan. Hierdoor wordt er niet voldaan aan de richtafstanden uit de VNG-publicatie ‘Bedrijven en Milieuzonering, editie 2009’. Uit bijlage 4 ‘Staat van Bedrijfsactiviteiten functiemenging’ van de VNG-publicatie ‘Bedrijven en milieuzonering, editie 2009’ blijkt in een gemengd gebied tussen een sportschool en woningen een bouwkundige scheiding voldoende is voor een acceptabel woon- en leefklimaat in de woning. Tussen de nieuwe woning en de Gym Syppan zit een ruimte van 5 meter hierdoor wordt een goed woon- en leefklimaat in de nieuwe woning gegarandeerd. In de praktijk zal de geluidsuitstraling van Gym Syppan in de richting van de nieuwe woning ook zeer beperkt zijn door het ontbreken van ramen en deuren. In de praktijk zal dan ook sprake zijn van een goed woon- en leefklimaat heersen ten gevolge van Gym Syppan. De afstand van de nieuwe bedrijfswoning tot de omliggende bedrijven is dusdanig dat wordt voldaan aan de richtwaarden voor een gemengd gebied. Hierdoor wordt bij de nieuwe bedrijfswoning een goed woon- en leefklimaat gegarandeerd.
Door de realisatie van de nieuwe bedrijfswoning neemt de afstand van Gym Sypan (Voorbanken 4) en bedrijf Rob van de Velde (Voorbancken 3) neemt de afstand tot de dichtstbijzijnde woning af. Het bedrijf Gym Syppan wordt niet belemmerd in zijn bedrijfsvoering, aangezien het stemgeluid maatgevend is en deze op grond van het Activiteitenbesluit uitgezonderd is. Ondanks de kleine afstand tussen de nieuwe woning en Gym Syppan wordt het bedrijf niet in zijn huidige bedrijfvoering beperkt. Ook blijft er uitbreidingsruimte over.
Bij bedrijf Rob van de Velde (Voorbancken 3) wordt ruim voldaan aan de richtafstand. Bedrijf Rob van de Velde wordt dan ook niet belemmerd in zijn huidige bedrijfsvoering. Ook blijft er voor het bedrijf voldoende milieuruimte over om te kunnen uitbreiden. Daarmee is ook de toekomstige bedrijfsvoering gegarandeerd.
Bij de overige omliggende omliggende bedrijven verandert de kortste afstand van het bedrijf tot de woning niet, doordat de nieuwe woning op grotere afstand wordt gebouwd dan één van de reeds aanwezige bedrijfswoningen van derden. Hierdoor wordt de bedrijfsvoering van de omliggende bedrijven niet in de huidige noch in de toekomstige situatie verder beperkt door de realisatie van de nieuwe bedrijfswoning.
Uit de beoordeling van het milieuonderzoek Bedrijven en milieuzonering volgt, na beoordeling door de Omgevingsdienst Utrecht (ODRU), dat in het bedrijfsgedeelte van de woning zich alleen bedrijven met milieucategorie 1 en 2 VNG uitgave 'Bedrijven en milieuzonering', 2009 kunnen vestigen. Dit wordt opgenomen als voorwaarde in de Omgevingsvergunning. Bij de actualisatie van het bestemmingsplan wordt deze maximale milieucategorie opgenomen in de gebruiksregels.
4.1.2 Bodem
Ten behoeve van een goede ruimtelijke ordening moet worden aangetoond dat de kwaliteit van de bodem en het grondwater in het plangebied in overeenstemming zijn met het beoogde gebruik. Dit is geregeld in de Wet Bodembescherming. Ontwikkelingen kunnen pas plaatsvinden als de bodem waarop deze ontwikkelingen plaatsvinden geschikt is of geschikt is gemaakt voor het beoogde doel.
Bij een bestemmingswijziging is een bodemonderzoek slechts noodzakelijk, indien de bestemmingswijziging tevens een wijziging naar een strenger bodemgebruik inhoudt. Bij een bestemmingswijziging die een gelijkblijvend of minder streng bodemgebruik oplevert, is de bodemkwaliteit in het kader van de bestemmingswijziging niet relevant en is bodemonderzoek niet noodzakelijk. Voor bodemgebruik wordt uitgegaan van acht verschillende bodemfuncties:
- landbouw;
- moestuin/volkstuin;
- wonen met tuin;
- kinderspeelplaatsen;
- natuurgebieden;
- groen met natuurwaarden;
- industrie en ander groen;
- bebouwing en infrastructuur.
In het kader van de Wet bodembescherming worden de acht bodemfuncties in het Besluit Bodemkwaliteit onderscheiden in drie bodemklassen:
- klasse landbouw en natuur (1, 2 en 5);
- klasse wonen (3, 4 en 6);
- klasse industrie/bedrijven (7 en 8).
Planspecifiek
Om inzicht te krijgen in de bodemkwaliteit is in mei 2014 een verkennend bodemonderzoek uitgevoerd door Mateboer Milieutechniek
1. In dit onderzoek concludeert Mateboer dat in de onderzochte bodem licht tot sterk verhoogde gehalten aanwezig zijn. In de bovengrond zijn maximaal licht verhoogde gehalten aan zink, kwik, lood en PAK aangetoond.
In de ondergrond zijn licht tot sterk verhoogde gehalten aan barium aangetoond. Verder zijn in de ondergrond maximaal licht verhoogde gehalten aan kobalt, nikkel, koper, zink, molybdeen, kwik, lood, PAK en minerale olie aangetoond. In het grondwater is maximaal een licht verhoogd gehalte aan barium aangetoond.
In de ondergrond ter plaatse van boring 2 is een verhoogd gehalte aan barium aangetoond. Binnen de Wet bodembescherming is voor het component barium geen toetsnorm beschikbaar, de toetsnorm is ingetrokken omdat de verhoogde gehalten aan barium in de grond in de meeste gevallen een natuurlijke oorsprong hebben. In onderhavig geval wordt dit ook verwacht, derhalve worden vervolgmaatregelen naar aanleiding van het vastgestelde gehalte aan barium niet noodzakelijk geacht. De herkomst van de aangetoonde licht verhoogde gehalten aan de diverse zware metalen en PAK in de zandige ondergrond zijn vermoedelijk te relateren aan de bijmenging met puin.
De herkomst van het aangetoonde licht verhoogde gehalte aan PCB (som 7) in de zandige ondergrond is niet exact bekend. Er zijn ter plaatse geen antropogene bijmengingen waargenomen waaraan de verontreiniging gerelateerd kan worden. De herkomst van de aangetoonde licht verhoogde gehalten aan diverse zware metalen en PAK in de zandige bovengrond en de aangetoonde licht verhoogde gehalten aan diverse zware metalen in de venige ondergrond zijn niet exact bekend. Er zijn ter plaatse geen antropogene bijmengingen waargenomen waaraan de verontreiniging gerelateerd kan worden. De herkomst van de licht verhoogde gehalten aan barium in het grondwater betreffen eveneens mogelijk van nature verhoogde achtergrondwaarden.
De kwaliteit van de bodem is met het uitgevoerde onderzoek voldoende vastgelegd. In de onderzochte bodem is een sterk verhoogd gehalte aan barium aangetoond. Verder zijn maximaal licht verhoogde gehalten gemeten. Bij de gemeten waarden zijn geen milieuhygiënische risico’s aanwezig.
Op grond van het onderliggend onderzoek hoeven er, ten aanzien van de kwaliteit van de bodem, vanuit milieuhygiënisch oogpunt geen beperkingen te worden gesteld aan het gebruik van de onderzochte locatie.
4.1.5 Externe veiligheid
Externe veiligheid gaat met name over de beheersing van activiteiten met gevaarlijke stoffen. Die activiteiten kunnen bestaan uit het opslaan, verwerken of transporteren van gevaarlijke stoffen. Deze activiteiten kunnen een risico veroorzaken voor de leefomgeving. Ook worden de risico's van het opstijgen en landen op vliegvelden onder het thema externe veiligheid gevangen. De risico's worden uitgedrukt in twee risicomaten; het plaatsgebonden risico en het groepsrisico.
Voor de beoordeling van een ruimtelijk plan moet voor externe veiligheid worden vastgesteld of dit plan is gelegen binnen het invloedsgebied van een inrichting die valt onder het Besluit externe veiligheid inrichtingen (Bevi). Daarnaast wordt gekeken of het plan ligt binnen het invloedsgebied van de transportroute (weg, spoor, water of buisleiding) waarover gevaarlijke stoffen (o.a. LPG en benzine) worden vervoerd.
Planspecifiek
Voor de beoordeling of in de omgeving van het plangebied risicovolle inrichtingen en/of transportroutes gevaarlijke stoffen aanwezig zijn is de risicokaart geraadpleegd. De volgende afbeelding toont een uitsnede van deze kaart.
Uitsnede risicokaart externe veiligheid
Uit raadpleging van de risicokaart volgt dat er in de directe omgeving van het plangebied geen risicovolle inrichtingen aanwezig zijn. Daarnaast is er ook geen sprake van het vervoer van gevaarlijke stoffen in de omgeving van het plangebied. Het aspect externe veiligheid vormt derhalve geen belemmering voor de voorgenomen ontwikkeling.
4.2 Water
Het aspect water is van groot belang binnen de ruimtelijke ordening. Door verstandig om te gaan met het water kan verdroging en wateroverlast (waaronder ook risico van overstromingen e.d.) voorkomen worden en de kwaliteit van het water hoog gehouden worden.
Op Rijksniveau en Europees niveau zijn de laatste jaren veel plannen en wetten gemaakt met betrekking tot water. De belangrijkste hiervan zijn het Waterbeleid voor de 21e eeuw, de Waterwet en het Nationaal Waterplan.
Waterbeleid voor de 21e eeuw
De Commissie Waterbeheer 21ste eeuw heeft in augustus 2000 advies uitgebracht over het toekomstige waterbeleid in Nederland. De adviezen van de commissie staan in het rapport ‘Anders omgaan met water, Waterbeleid voor de 21ste eeuw’ (WB21). De kern van het rapport WB21 is dat water de ruimte moet krijgen, voordat het die ruimte zelf neemt. In het Waterbeleid voor de 21e eeuw worden twee principes (drietrapsstrategieën) voor duurzaam waterbeheer geïntroduceerd:
- vasthouden, bergen en afvoeren: dit houdt in dat overtollig water zoveel mogelijk bovenstrooms wordt vastgehouden in de bodem en in het oppervlaktewater. Vervolgens wordt zo nodig het water tijdelijk geborgen in bergingsgebieden en pas als vasthouden en bergen te weinig opleveren wordt het water afgevoerd.
- schoonhouden, scheiden en zuiveren: hier gaat het erom dat het water zoveel mogelijk schoon wordt gehouden. Vervolgens worden schoon en vuil water zoveel mogelijk gescheiden en als laatste komt het zuiveren van verontreinigd water aan bod.
Waterwet
Centraal in de Waterwet staat een integraal waterbeheer op basis van de ‘watersysteembenadering’. Deze benadering gaat uit van het geheel van relaties binnen watersystemen. Denk hierbij aan de relaties tussen waterkwaliteit, -kwantiteit, oppervlakte- en grondwater, maar ook aan de samenhang tussen water, grondgebruik en watergebruikers. Het doel van de Waterwet is het integreren van acht bestaande wetten voor waterbeheer. Door middel van één watervergunning regelt de wet het beheer van oppervlaktewater en grondwater en de juridische implementatie van Europese richtlijnen, waaronder de Kaderrichtlijn Water. Via de Waterwet gelden verschillende algemene regels. Niet alles is onder algemene regels te vangen en daarom is er de integrale watervergunning. In deze integrale watervergunning zijn zes vergunningen uit eerdere wetten (inclusief keurvergunning) opgegaan in één aparte watervergunning.
Nationaal Waterplan
Op basis van de Waterwet is het Nationaal Waterplan vastgesteld door het kabinet. Het Nationaal Waterplan geeft op hoofdlijnen aan welk beleid het Rijk in de periode 2009 - 2015 voert om te komen tot een duurzaam waterbeheer. Het Nationaal Waterplan richt zich op bescherming tegen overstromingen, beschikbaarheid van voldoende en schoon water en de diverse vormen van gebruik van water. Het geeft maatregelen die in de periode 2009-2015 genomen moeten worden om Nederland ook voor toekomstige generaties veilig en leefbaar te houden en de kansen die water biedt te benutten.
Beleid Hoogheemraadschap Amstel, Gooi en Vecht
Het plangebied valt binnen het beheersgebied van het hoogheemraadschap Amstel, Gooi en Vecht (AGV). Waternet zorgt namens AGV voor schoon oppervlaktewater, veilige dijken en het waterpeil in de sloten en vaarten. Het verzorgingsgebied van Waternet omvat de gemeente Amsterdam en een groot gebied in de provincie Utrecht en Noord Holland. Het beleid van AGV is verwoord in het Waterbeheerplan en diverse beleidsnota’s. In de keur van AGV zijn geboden en verboden opgenomen voor de bescherming van de functionaliteit van waterlopen en waterkeringen. Met de Keur wil AGV de waterkwaliteit verbeteren, de doorstroming in sloten veilig stellen en de dijken sterk houden. Bij de Keur horen Keurkaarten met informatie over wateren en waterkeringen.
In de legger van het waterschap worden gegevens vastgelegd over de locatie van wateren, dijken en kunstwerken, aan welke eisen deze moeten voldoen (diepte, hoogte, sterkte etc.) en de onderhoudsverplichtingen. De legger dient als basis voor de vergunningverlening door de waterbeheerder.
AGV hanteert het beleid dat bij het aanbrengen van meer dan 1000 m2 verharding in stedelijk gebied
of meer dan 5000 m2 in landelijk gebied 10% daarvan gecompenseerd moet worden in de vorm van oppervlaktewater voor waterberging. Door compensatie wordt voorkomen dat ernstige peilstijging optreedt door afstromend regenwater met wateroverlast tot gevolg.
Watertoets
De ‘watertoets’ is een instrument dat waterhuishoudkundige belangen expliciet en op evenwichtige wijze laat meewegen bij het opstellen van ruimtelijke plannen en besluiten. Het is geen technische toets maar een proces dat de initiatiefnemer van een ruimtelijk plan en de waterbeheerder met elkaar in gesprek brengt in een zo vroeg mogelijk stadium. In de waterparagraaf worden de watertoets en de uitkomsten van een eventueel overleg opgenomen. Het betreffende Hoogheemraadschap neemt geen deel aan de digitale watertoets (
www.dewatertoets.nl). In het kader van het reguliere vooroverleg zal dit initiatief voorgelegd worden aan het hoogheemraadschap.
Planspecifiek
Het initiatief betreft het verbouwen van een bedrijfspand. De verbouwing vindt plaats aan het bestaande pand. Het plan heeft derhalve geen invloed op de waterhuishouding ter plaatse. Daarnaast is het plan niet strijdig met het beleid van de waterbeheerder. Het aspect water vormt daarmee geen belemmering.