direct naar inhoud van Toelichting
Plan: Torenweg 1-5, Rockanje - Ruigendijk, Tinte
Status: vastgesteld
Plantype: bestemmingsplan
IMRO-idn: NL.IMRO.0614.bpTorenwRuig-0100

Toelichting

Hoofdstuk 1 Inleiding

1.1 Aanleiding

Het tegengaan van verspreid gelegen kassen buiten het glastuinbouwgebied vormt een belangrijk uitgangspunt in het ruimtelijke beleid van zowel de provincie Zuid-Holland als de gemeente Westvoorne. Met ondersteuning van de provincie spant de gemeente zich in om het aantal verspreid liggende kassencomplexen buiten het glastuinbouwgebied Tinte te verminderen. De afgelopen jaren zijn diverse bestemmingsplannen vastgesteld voor bedrijfslocaties van glastuinbouwbedrijven, waarbij de mogelijkheden voor uitoefening van glastuinbouw weg zijn genomen. Ter compensatie voor de sanering wordt vaak de mogelijkheid geboden om een of enkele woningen te bouwen (gebaseerd op de vroegere provinciale Ruimte voor Ruimte-regeling). Daarnaast heeft de gemeente sinds enige jaren beleid vastgesteld waarmee de verplaatsing of nieuwvestiging van glastuinbouwbedrijven in het glastuinbouwgebied Tinte mogelijk kan worden gemaakt.

In dit bestemmingsplan staan de sanering van een glastuinbouwbedrijf aan de Torenweg 1/5 Rockanje en de verplaatsing van de bedrijfsactiviteiten naar een nieuwe locatie aan de Ruigendijk in het glastuinbouwgebied Tinte centraal.

Het glastuinbouwcomplex aan de Torenweg wordt gesloopt en de mogelijkheden voor een agrarisch bedrijf ter plaatse worden weg bestemd. De bestaande bedrijfswoningen Torenweg 1 en Torenweg 5 worden omgezet naar een reguliere woning. Op de gronden bij het bedrijf worden in totaal 13 nieuwe vrijstaande woningen mogelijk gemaakt. Ook wordt een deel van de grond als Natuur bestemd.

Aan de Ruigendijk in Tinte wordt de bouw van een nieuw glastuinbouwcomplex mogelijk. Aan de Ruigendijk wordt een bouwvlak voor een glastuinbouwbedrijf gesitueerd. In dit bouwvlak wordt een nieuw bedrijfscentrum gebouwd. Bijbehorend wordt de bouw van ruim 4,3 hectare kassen mogelijk.

Voor de bedrijfsverplaatsing zijn diverse afspraken vastgelegd in een overeenkomst tussen de gemeente en de betrokken ondernemer. Omdat deze afspraken niet binnen de kaders van het geldende bestemmingsplan kunnen worden gerealiseerd is het voorliggende bestemmingsplan nodig.

Toelichting gefaseerde bedrijfsverplaatsing

Het glastuinbouwbedrijf waar het hier om gaat beschikt naast het kassencomplex aan de Torenweg, ook over een complex aan de Middelweg in Rockanje. Met de ondernemer zijn afspraken gemaakt over een verplaatsing van alle bedrijfsactiviteiten naar het glastuinbouwgebied Tinte.

Vanwege de omvang van het bedrijf is gekozen voor een gefaseerde sanering en nieuwbouw van het bedrijf. Op korte termijn wordt de bedrijfslocatie aan de Middelweg gesaneerd en wordt gestart met nieuwbouw aan de Ruigendijk (fase 1). Wanneer de nieuwe productielocatie aan de Ruigendijk in bedrijf is, worden geleidelijk aan de activiteiten uit het bedrijfscentrum aan de Torenweg hier naar toe verplaatst. Dit zodat op termijn van enkele jaren ook het complex aan de Torenweg kan worden gesaneerd. Gekoppeld daaraan vindt dan ook nog een verdere uitbreiding van het kassencomplex aan de Ruigendijk plaats (fase 2).

Het voorliggende bestemmingsplan ziet op de tweede fase van de bedrijfsverplaatsing: sanering van de locatie Torenweg Rockanje en nieuwbouw aan de Ruigendijk in Tinte. De sanering van het kassencomplex aan de Middelweg 13 Rockanje en in samenhang daarmee de realisatie van het eerste deel van het nieuwe bedrijfscomplex aan de Ruigendijk is in een apart bestemmingsplan mogelijk gemaakt (bestemmingsplan Middelweg 13 Rockanje / Ruigendijk Tinte).

Feitelijk ziet het voorliggende bestemmingsplan op een verdere uitbreiding van het glastuinbouwbedrijf wat met het bestemmingsplan voor de eerste fase mogelijk is gemaakt. Dit bestemmingsplan maakt aan de Ruigendijk de bouw van kassen en bedrijfsgebouwen mogelijk, in aansluiting op de bestaande mogelijkheden op het aangrenzende perceel. Omdat met het bestemmingsplan voor de eerste fase al een bedrijfswoning mogelijk is gemaakt, kent het bestemmingsplan voor de tweede fase geen mogelijkheden voor een bedrijfswoning.

Op bijgaande afbeelding (fig. 1.1) is een indicatieve weergave te zien van het beoogde eindbeeld van het bedrijf aan de Ruigendijk. Het bedrijfscentrum is gevestigd aan de Ruigendijk. Aangebouwd is een complex van ruim 8,6 ha kassen. Aan de Aelbrechtsweg is de bedrijfswoning gebouwd, met eventueel nog bij het bedrijf behorende voorzieningen zoals een waterbassin of een buitenveld om planten uit te zetten.

afbeelding "i_NL.IMRO.0614.bpTorenwRuig-0100_0001.png"

Figuur 1.1 - Indicatieve inrichtingsschets

1.2 Plangebied

De locatie aan de Torenweg 1/5 ligt in het buitengebied ten noorden van Rockanje. Het glastuinbouwconcentratiegebied waarin de locatie aan de Ruigendijk zich bevindt valt onder het dorpsgebied van Tinte en strekt zich uit van Oostvoorne tot aan Brielle. Op figuur 1.2 is de ligging van de beide locaties aangeduid.

afbeelding "i_NL.IMRO.0614.bpTorenwRuig-0100_0002.png"

Figuur 1.2 - Indicatieve aanduiding van de plangebieden

1.3 Vigerend bestemmingsplan

Op de locatie aan de Torenweg vigeert momenteel de beheersverordening 'Landelijk gebied Westvoorne', vastgesteld door de gemeenteraad op 21 maart 2017. Binnen deze verordening ligt het plangebied in het besluitvlak waar de regeling van het bestemmingsplan Landelijk Gebied van toepassing is verklaard.

Nadien zijn nog de 3e herziening (die betrekking had op de woonbestemming) en de 4e herziening (met betrekking tot kassen buiten het glastuinbouwconcentratiegebied) vastgesteld die eveneens hun doorwerking hebben in de regels. Tot slot is ook de parapluherziening 'Erfafscheiding, BenB, gastenverblijf en parkeren' van toepassing die op 10 mei 2016 is vastgesteld.

Voor de locatie aan de Ruigendijk geldt het bestemmingsplan Glastuinbouwintensiveringsgebied Tinte, dat op 5 april 2011 werd vastgesteld.

1.4 Leeswijzer

Deze toelichting is als volgt opgebouwd:

  • hoofdstuk 2 geeft een beschrijving van de huidige en toekomstige situatie in het plangebied. In dit hoofdstuk wordt ook de ruimtelijke kwaliteitsverbetering aan de Torenweg als gevolg van de sanering beschreven;
  • het relevante ruimtelijke beleidskader is beschreven in hoofdstuk 3. Daarbij is toegelicht op welke manier dit bestemmingsplan past binnen de beleidskaders van de diverse overheden;
  • hoofdstuk 4 beschrijft de juridische opzet van dit bestemmingsplan;
  • het onderzoek dat voor dit bestemmingsplan is uitgevoerd komt in hoofdstuk 5 aan de orde;
  • op de economische uitvoerbaarheid en het aspect handhaving wordt in hoofdstuk 6 ingegaan;
  • hoofdstuk 7 bevat de samenvatting en toelichting op het gevoerde overleg met de andere overheden en een toelichting op de maatschappelijke uitvoerbaarheid.

Om de toelichting beknopt te houden zijn een aantal zaken als bijlage bij de toelichting gevoegd.

Hoofdstuk 2 Planbeschrijving

2.1 Huidige situatie

Torenweg 1-5, Rockanje

In de huidige situatie bevindt zich op de locatie Torenweg 1-5 een glastuinbouwbedrijf met twee bedrijfswoningen, die beide aan de Torenweg liggen. Tussen de twee bedrijfswoningen bevindt zich nog een perceel met twee woningen, dat niet bij het plangebied hoort. De locatie ligt hoofdzakelijk aan de westzijde aan de Torenweg en wordt in het zuidoosten begrensd door de Vleerdamsedijk. Ten westen van de Torenweg ligt een klein perceel dat ook bij het glastuinbouwbedrijf hoort. De kassen die horen bij het bedrijf liggen solitair in het landelijk gebied ten noorden van Rockanje. Dit gebied valt landschappelijk gezien onder de zanderijen en betreft een middeleeuwse polder genaamd Stuifakker. De bestemming die op de locatie rust is 'Agrarisch gebied met landschappelijke waarde'. Het oostelijke deel heeft de aanduiding 'zonder kassen'. In figuur 2.1 wordt op de luchtfoto ingezoomd naar het bedrijf perceelsniveau en wordt de planologische situatie getoond.

afbeelding "i_NL.IMRO.0614.bpTorenwRuig-0100_0003.png"

Figuur 2.1 - Torenweg 1-5: luchtfoto (l) en planologische situatie (r)

Ruigendijk naast nr. 1, Tinte

Voor het perceel aan de Ruigendijk naast nummer 1 geldt het bestemmingsplan Glastuinbouwintensiveringsgebied Tinte. Dit plan is afgestemd op de doelstellingen van de gemeente Westvoorne om nabij Tinte glasopstanden te verdichten en tegelijkertijd glasopstanden buiten dit gebied te saneren. Gelijktijdig wenst de gemeente een duurzaam ontwikkelingsperspectief te bieden aan de bestaande glastuinbouw in Tinte. Op het betreffende perceel bestaat volgens dit bestemmingsplan de mogelijkheid om het te verplaatsen glas van elders uit de gemeente in het plangebied te accommoderen en dit glas zoveel mogelijk te concentreren en aan te sluiten bij bestaande glasopstanden. Het perceel is in de huidige toestand onbebouwd en in gebruik als akkerbouwgrond (zie figuur 2.2).

afbeelding "i_NL.IMRO.0614.bpTorenwRuig-0100_0004.png"

Figuur 2.2 - Ruigendijk naast nr. 1: luchtfoto (l) en planologische situatie (r)

2.2 Voorgenomen ontwikkeling

Torenweg 1-5, Rockanje

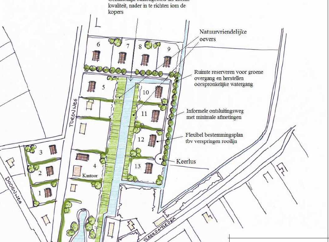
Op de locatie Torenweg 1-5 worden de kassen en de overige bedrijfsbebouwing van het glastuinbouwbedrijf gesaneerd. De twee bedrijfswoningen binnen het plangebied blijven staan en worden omgezet naar de bestemming 'wonen'. De bedrijfsactiviteiten worden verplaatst naar de locatie Ruigendijk in het glastuinbouwintensiveringsgebied Tinte. Op de vrijgekomen grond bestaat het voornemen om een totaal van dertien compensatiewoningen te bouwen. De schets in figuur 2.3 geeft een indicatie van de nieuwe situatie. Op het perceel aan de westkant van de Torenweg gaat het om een drietal woningen. Twee nieuwe woningen worden gebouwd langs de oostkant van de Torenweg, in lijn met de huidige bedrijfswoningen. De overige acht woningen liggen aan de noord- en oostkant van het te saneren bedrijfsperceel aan een nieuw aan te leggen ontsluitingsweg. Deze weg loopt ter hoogte van de dertiende woning dood en heeft daar een keerlus. In het binnengebied tussen de woningen worden een watergang en natuurlijke oevers aangelegd. De nieuwe watergang sluit aan de oostzijde van de woningen aan op bestaande watergangen.

afbeelding "i_NL.IMRO.0614.bpTorenwRuig-0100_0005.png"

Figuur 2.3 - Indicatieve weergave van het woonplan aan de Torenweg 1-5.

Ruigendijk naast nr. 1, Tinte

De bedrijfsactiviteiten van het te saneren glastuinbouwbedrijf aan de Torenweg worden verplaatst naar een nieuw op te richten bedrijfscomplex aan de Ruigendijk (naast nr. 1). Het bedrijfscentrum wordt aan de Ruigendijk gebouwd, met daarachter op het restant van het plangebied de kassen. Een plattegrond van het beoogde eindbeeld van het nieuwe bedrijf aan de Ruigendijk is opgenomen in figuur 1.1. Figuur 2.4 toont welk deel van het nieuwe bedrijfsperceel aan de Ruigendijk in dit bestemmingsplan is vastgelegd. Dit betreft de noordwestelijke helft van het bedrijfsperceel.

afbeelding "i_NL.IMRO.0614.bpTorenwRuig-0100_0006.jpg"

Figuur 2.4 - Plankaart bij dit bestemmingsplan

2.3 Verbetering van de ruimtelijke kwaliteit

Toekomstperspectief en alternatieven

Het toekomstperspectief voor het bedrijf aan de Torenweg 1-5 is mede door de veranderingen in de omgeving niet meer van dien aard dat sprake is van op de lange termijn duurzaam voort te zetten agrarisch bedrijf op de bestaande plek. Het is sterk in haar mogelijkheden ingeperkt door de omringende burgerwoningen van derden. Daarnaast beschikt het bedrijf over een relatief beperkt areaal kas. Door de ligging nabij burgerwoningen van derden zijn de mogelijkheden voor een eventuele verbreding van de agrarische bedrijfsactiviteiten eveneens beperkt. De locatie ligt daarnaast relatief solitair in het landschap, in vergelijking met de concentraties van glastuinbouwbedrijven bij Tinte en Vierpolders (Brielle). Ook de economische binding met greenports elders in Zuid-Holland is beperkt. Vanwege de ligging buiten het glastuinbouwintensiveringsgebied Tinte is uitbreiding van het areaal kassen niet wenselijk. Het bedrijf is daarom in het gemeentelijke glastuinbouwbeleid aangewezen als op termijn te saneren glastuinbouwbedrijf, evenals in het provinciale ruimtelijke beleid (zogenaamd ‘verspreid glas’).

Gelet op deze omstandigheden zijn op verzoek van de eigenaar van het bedrijf afspraken gemaakt over de beëindiging van het agrarische bedrijf op de huidige plek en de sloop van de bedrijfsbebouwing. De bedrijfsactiviteiten worden verplaatst naar de locatie Ruigendijk in het glastuinbouwintensiveringsgebied Tinte, waar een nieuw glastuinbouwbedrijf kan worden gerealiseerd met minimale landschappelijke impact.

Verbetering van de ruimtelijke kwaliteit

De belangrijkste ruimtelijke kwaliteitsverbetering wordt gevonden in de blijvende sanering van de agrarische bedrijvigheid. Op de locatie Torenweg wordt ruim 3 hectare aan kassen gesaneerd. Samen met de productielocatie aan de Middelweg gaat het in totaal om sanering van ruim 5,5 hectare aan kassen en daarnaast de overige bebouwing en inrichting zoals bedrijfsgebouwen, waterbassins en containervelden. Met de gecombineerde sanering van beide productielocaties wordt een bedrijf van flinke omvang voor het buitengebied van de gemeente Westvoorne gesaneerd, waarmee een belangrijke verbetering van de ruimtelijke kwaliteit wordt bereikt.

Daarnaast wordt het planologisch onmogelijk gemaakt om op deze locatie nog nieuwe (agrarische) bedrijfsactiviteiten van enige omvang te ontplooien of agrarische bebouwing op te richten. Realisatie van eventuele nieuwe kassencomplexen met bijbehorende bedrijfsbebouwing zou een sterk negatieve invloed hebben op de (beoogde) ruimtelijke kwaliteit in het gebied. Verstoring van het landschap door kassencomplexen met een hoogte die kan oplopen naar 5 meter - ook wel 'verspreid glas' - buiten de daarvoor aangewezen glastuinbouwintensiveringsgebieden is gezien het gemeentelijk en provinciaal beleid ongewenst. Door de ontwikkeling die in dit bestemmingsplan mogelijk wordt gemaakt en in combinatie daarmee de daaropvolgende verplaatsing van het glastuinbouwbedrijf aan de Torenweg 1-5, worden de twee grootste glastuinbouwbedrijven in de zanderijen ten noorden van Rockanje wegbestemd. Hierdoor wint dit gebied, dat zich kenmerkt door een halfopen, kleinschalig agrarisch landschap, sterk aan ruimtelijke kwaliteit.

Om de sanering van het bestaande glastuinbouwbedrijf aan de Torenweg te compenseren en de realisatie van een nieuw glastuinbouwbedrijf in glastuinbouwintensiveringsgebied Tinte voor de eigenaar een economisch haalbaar alternatief te laten zijn, krijgt de vrijgekomen grond de bestemming 'wonen'. Op die locatie kunnen in dit bestemmingsplan 13 woningen worden gerealiseerd op de plek waar voorheen kassen stonden. Daarmee neemt het bebouwd en verhard oppervlak af van circa 40.000m2 naar circa 23.000 m2. (15 woningen x 300 m2 = 4.500 m2) + (tuinen x 50% = 15.000 m2) + (bestemming Verkeer = 3.250 m2).

De sanering en de vervangende woningbouw past binnen de Structuurvisie Glasherstructurering (herzien in 2011) en de bijbehorende businesscase glassanering. Voortvloeiend uit deze beleidsstukken is in de Omgevingsvisie Westvoorne 2030, ter plaatse van de glastuinbouwbedrijven aan de Torenweg 1-5, een toekomstige bouwlocatie aangeduid voor meer dan vijf woningen. De bouw van deze woningen wordt, zoals hieronder nader wordt toegelicht, zorgvuldig ingepast in het kleinschalige agrarische landschap van de zanderijen.

Landschappelijke inpassing van de compensatiewoningen

Figuur 2.3 toont een schets van de verkaveling en situering van de woningbouw aan de Torenweg. Vijf van de dertien woningen worden gesitueerd in het bestaande bebouwingslint aan de Torenweg. Op deze manier wordt er aangesloten bij het karakteristiek van het lint. De overige acht woningen komen te liggen op de plaats van de te saneren kassen. Bij de aanleg van de nieuwe watergangen en de ontsluitingsweg worden de bestaande cultuurhistorische lijnen gerespecteerd en waar mogelijk hersteld. De verkaveling van het plan sluit daarmee aan bij de rechte, regelmatige en blokvormige verkaveling die de polder Stuifakker kenmerkt. Verder is de kavelafscheiding zoveel mogelijk natuurlijk en gebiedseigen.

Hoofdstuk 3 Beleidskader

3.1 Inleiding

In dit hoofdstuk wordt het relevante ruimtelijke beleidskader beschreven. Achtereenvolgens komt het

rijksbeleid, het provinciale beleid en het gemeentelijke beleid aan bod.

3.2 Rijksbeleid

3.2.1 Structuurvisie Infrastructuur en Ruimte

Het rijksbeleid voor de ruimtelijke ordening is vastgelegd in de structuurvisie Infrastructuur en Ruimte

(maart 2012). Het Rijk streeft naar een concurrerend, bereikbaar, leefbaar en veilig Nederland. Om dit te bereiken is een aanpak geformuleerd die ruimte geeft aan regionaal maatwerk, de gebruiker voorop zet en ruimtelijke ontwikkelingen en infrastructuur met elkaar verbindt. Bij deze aanpak gaat het Rijk uit van vertrouwen, heldere verantwoordelijkheden en eenvoudige regels. Zo ontstaat er ruimte voor maatwerk en initiatieven van burgers en bedrijven. Vertrouwen in medeoverheden is de basis voor het bepalen van verantwoordelijkheden, regelgeving en de betrokkenheid van het Rijk. De gemeente is de overheid die het dichtste bij de burger staat en in eerste instantie zorgt voor een veilige en leefbare woon-en werkomgeving. Bij de inrichting van de ruimte gaat het om de ruimtelijke ontwikkeling van stad en platteland in brede zin, waarbij onder meer de belangen van mobiliteit, milieu, natuur, water, economie en wonen worden afgewogen. In de structuurvisie Infrastructuur en Ruimte heeft het Rijk dertien zogenaamde ‘nationale belangen’ geformuleerd. Deze nationale belangen geven aan voor welke onderwerpen het Rijk verantwoordelijk is en waarvoor zij resultaten wil bereiken. De sanering van het betrokken glastuinbouwbedrijf is geen onderwerp vallend binnen een van die nationale belangen. Wel draagt de sanering bij aan het waarborgen en verbeteren van de kwaliteit van de leefomgeving. Met de sanering vervallen de ruimtelijke impact en de mogelijke negatieve effecten op de kwaliteit van het milieu en de leefomgeving die gepaard (kunnen) gaan met een glastuinbouwbedrijf. Het bestemmingsplan past hiermee binnen de door het Rijk gestelde algemene doelen voor de ruimte. De uitwerking en verantwoordelijkheid voor de realisatie wordt aan de gemeentelijke overheid gelaten.

3.3 Provinciaal ruimtelijk beleid

3.3.1 Provinciale structuurvisie en programma Ruimte

Het relevante provinciale beleid is vastgelegd in de structuurvisie Ruimte en Mobiliteit (juli 2014). Bij deze structuurvisie hoort een programma Ruimte (juli 2014). Een belangrijk uitgangspunt in de structuurvisie is het tegengaan en actief verbeteren van de ruimtelijke situatie op plekken waar sprake is van (dreigende) verrommeling. Daarbij moet rekening worden gehouden met de kernkwaliteiten van het landschap, natuur en cultuurhistorie en moet sprake zijn van een ruimtelijke kwaliteitsverbetering. Binnen dit uitgangspunt past de sanering van verspreid liggende glastuinbouwlocaties. Een van de bijbehorende beleidsuitgangspunten is de aanpak van zogenaamde ‘papieren glaslocaties’. Het provinciale beleid gaat in principe uit van een beperking van de uitbreidingsmogelijkheden voor verspreid liggende glastuinbouwlocaties met een beperkte economische waarde in relatie tot de greenports. De provincie heeft daarnaast een faciliterende en stimulerende rol in de nog te realiseren sanering van verspreid liggende kassen. De inzet van de provincie verschilt per gebied. Leidend is de te bereiken verbetering van de ruimtelijke kwaliteit. Het behalen van de doelstelling hangt vooral af van de mate waarin gemeenten zelf actie ondernemen en de bereidheid van eigenaren om te saneren.

Het voorliggende bestemmingsplan is een uitwerking van het provinciale beleid. Het glastuinbouwbedrijf ligt buiten een aangewezen glastuinbouwgebied. Sanering leidt tot een ruimtelijke kwaliteitsverbetering door het verdwijnen van de mogelijkheden voor uitoefening van een agrarisch (glastuinbouw)bedrijf. Het bedrijf is relatief kleinschalig en heeft een beperkte economische waarde in relatie tot de greenports in Zuid-Holland. Met de sanering komt een oppervlakte van ruim 30.000 m2 te verdwijnen en komt eveneens de mogelijkheid te vervallen om nog glastuinbouw (in enige mate) op te richten. De vervangende woningbouw zorgt door middel van landschappelijke inpassing tot een ruimtelijke kwaliteitsverbetering.

Daarnaast sluit het oprichten van een nieuw bedrijfscomplex voor glastuinbouw aan de Ruigendijk aan bij het beleidsdoel om nieuwe mogelijkheden voor glastuinbouw te bieden op geconcentreerde locaties waar tevens ruimte is voor schaalvergroting.

3.3.2 Provinciale verordening

Naast de structuurvisie heeft de provincie ook de verordening Ruimte 2014 vastgesteld (juli 2014). In

deze verordening staan de algemeen verbindende regels waaraan een gemeentelijk bestemmingsplan

moet voldoen. De verordening bevat enkele regels die relevant zijn voor dit bestemmingsplan.

Ruimtelijke kwaliteit

Op grond van artikel 2.2.1 zijn regels voorgeschreven met betrekking tot ruimtelijke kwaliteit bij nieuwe ontwikkelingen. De criteria die aan een ontwikkeling worden gesteld zijn afhankelijk van het type ontwikkeling. In lid 1 van het artikel staat onder andere het volgende hierover:

"Een bestemmingsplan kan voorzien in een nieuwe ruimtelijke ontwikkeling, onder de volgende voorwaarden ten aanzien van ruimtelijke kwaliteit:

  • a. de ruimtelijke ontwikkeling past binnen de bestaande gebiedsidentiteit, voorziet geen wijziging op structuurniveau, past bij de aard en schaal van het gebied en voldoet aan de relevante richtpunten van de kwaliteitskaart (inpassen);
  • b. als de ruimtelijke ontwikkeling past binnen de gebiedsidentiteit, maar wijziging op structuurniveau voorziet (aanpassen), wordt deze uitsluitend toegestaan mits de ruimtelijke kwaliteit per saldo ten minste gelijk blijft door:
    • a. zorgvuldige inbedding van de ontwikkeling in de omgeving, rekening houdend met de relevante richtpunten van de kwaliteitskaart, en
    • b. het zo nodig treffen van aanvullende ruimtelijke maatregelen zoals bedoeld in het derde lid;"

Allereerst kan worden opgemerkt dat in deze sprake is van ontwikkelingen die passen binnen de aard en schaal van het gebied (inpassen). De sanering van een glastuinbouwbedrijf en de omzetting van de bedrijfswoning naar een burgerwoning past binnen de bestaande ruimtelijke inrichting. Ook onder de geldende bestemmingsplanregels was een dergelijke omschakeling mogelijk. De sloop van de kassen en het wegbestemmen van de bouw- en gebruiksmogelijkheden voor een glastuinbouwbedrijf zijn in dit geval niet aan te merken als nieuwe ruimtelijke ontwikkelingen. De voorgenomen ontwikkeling past dus in het bestaande karakter van het gebied (inpassing).

De dertien extra woningen die ter compensatie voor de sanering van de glastuinbouwactiviteiten mogelijk worden gemaakt worden ingepast in de ruimtelijke structuur van het gebied. Vijf van de dertien woningen komen aan een bestaande weg en aansluitend aan het bestaande bebouwingslint. De overige acht woningen komen in de scherpe hoek van de Torenweg met de Vleerdamsedijk. Zoals beschreven is in hoofdstuk 2 van de toelichting worden de woningen uitsluitend gebouwd op de grond die vrijkomt door de sanering van het glastuinbouwbedrijf. Ook leidt de ruimtelijke ontwikkeling in kwestie tot een verbetering van de ruimtelijke kwaliteit, mede door de landschappelijke inpassing van de nieuw te bouwen woningen, zoals onderbouwd in paragraaf 2.3.

Omdat het plangebied in het buitengebied is gelegen, zou gemotiveerd kunnen worden dat met de voorgenomen bestemmingswijziging sprake is van een gebiedsvreemde ontwikkeling. In dat geval is geen sprake van inpassen, maar spreekt de provincie van aanpassen en dient er sprake te zijn van een verbetering of gelijkblijvende ruimtelijke kwaliteit door een zorgvuldige inbedding van de ontwikkeling in het landschap. Omdat de woningen een vervanging vormen van een groot areaal aan kassen en andere glastuinbouw-gerelateerde bebouwing, kan worden gesteld dat de ruimtelijke kwaliteit per saldo toeneemt.

In artikel 2.2.1 van de verordening staat in het derde lid onder a welke aanvullende ruimtelijke maatregelen - waarnaar in lid 1 word verwezen - de provincie als mogelijkheden ziet:

"De aanvullende ruimtelijke maatregelen kunnen bestaan uit (een combinatie van):

  • 1. duurzame sanering van leegstaande bebouwing, kassen en/of boom- en sierteelt;
  • 2. wegnemen van verharding;
  • 3. toevoegen of herstellen van kenmerkende landschapselementen;
  • 4. andere maatregelen waardoor de ruimtelijke kwaliteit verbetert."

In dit geval is er sprake van de duurzame sanering van ruim 30.000 m2 aan kassen en gerelateerde bedrijfsbebouwing op het terrein van het glastuinbouwbedrijf. Met voorliggend bestemmingsplan wordt het bouwen van kassen planologisch onmogelijk. Hierdoor worden ook bestaande en potentiële negatieve effecten van de glastuinbouwbedrijvigheid op naast- en omliggende burgerwoningen uitgesloten. In het woonplan op deze locatie wordt tevens een oorspronkelijke watergang hersteld en ingepast. Ook wordt er bijgedragen aan de ruimtelijke kwaliteit door het aanleggen van een centrale watergang en natuurvriendelijke oevers. Ook hier geldt overigens dat een nadere toelichting voor wat betreft de ruimtelijke kwaliteitsverbetering te vinden is in paragraaf 2.3. Hiermee is voldoende verzekerd dat sprake is van een verbetering van de ruimtelijke kwaliteit in het plangebied.

Voor de locatie aan de Ruigendijk geldt met het oog op ruimtelijke kwaliteit dat in het glastuinbouwintensiveringsgebied de focus is gericht op vestiging en uitbreiding van glastuinbouwbedrijven. De impact daarvan op het landschap is geaccepteerd en mede bedoeld om de impact van glastuinbouwbedrijven elders in het buitengebied te doen afnemen. Voor het nieuw te vestigen bedrijfscomplex zijn de bouwregels afgestemd op de bouwregels voor bestaande glastuinbouwbedrijven in het gebied. Op die manier wordt onder andere aangesloten bij afstands- en hoogtematen.

Glastuinbouw

Op grond van artikel 2.3.1 zijn regels voorgeschreven voor agrarische bedrijven. Daarbij is onder andere bepaald dat nieuwe kassen alleen toegelaten worden bij bestaande, volwaardige glastuinbouwbedrijven tot een maximum oppervlak van 2 ha. Dit betreft het vertrekpunt voor kassen in het buitengebied, maar heeft geen betrekking op het glastuinbouwconcentratiegebied. De regels daarvoor zijn opgenomen in artikel 2.1.5, waarvan lid 1 bepaalt dat in dit gebied (zoals weergegeven in figuur 3.1) uitsluitend glastuinbouwbedrijven en openlucht tuinbouwbedrijven zullen worden toegestaan, alsmede de daarbij behorende voorzieningen. De realisatie van het nieuwe bedrijfscomplex aan de Ruigendijk voldoet daarom aan de regeling om nieuwe kassen binnen dit gebied te realiseren en niet elders in het buitengebied.

afbeelding "i_NL.IMRO.0614.bpTorenwRuig-0100_0007.png"

Figuur 3.1 - Begrenzing glastuinbouwconcentratiegebied Tinte

Lid 8 van datzelfde artikel stelt daarbij als aanvullende bepaling dat wanneer sprake is van nieuwe glastuinbouw of een uitbreiding van bestaande glastuinbouw met een oppervlakte van ten minste vijf hectare aan aaneengesloten percelen, het bestemmingsplan een verantwoording dient te bevatten waarmee de behoefte aan nieuwe gronden voor glastuinbouw als gevolg van de vervangings- en uitbreidingsvraag wordt aangetoond. Ook dient te worden onderbouwd waarom niet in deze behoefte kan worden voorzien door herstructurering of intensivering van elders in de betrokken regio gelegen bestaande glastuinbouwgebieden. Deze verantwoording is beschreven in paragraaf 2.2.

3.3.3 Regionale woningmarktafspraken

In 2014 hebben de colleges van de gemeenten Bernisse, Brielle, Hellevoetsluis, Rotterdam (namens de deelgemeente Rozenburg), Spijkenisse en Westvoorne de woningmarktafspraken Voorne-Putten/Rozenburg vastgesteld. De dertien nieuwe woningen die met het voorliggende bestemmingsplan mogelijk worden gemaakt zijn in de woningmarktafspraken benoemd als te realiseren in Westvoorne in de periode 2014-2020. Hiermee voldoet dit bestemmingsplan aan de voorwaarde van regionale afstemming van woningbouwplannen.

3.3.4 Conclusies

Gelet op deze toelichting is de conclusie dat het voorliggende bestemmingsplan voldoet aan het door de provincie in haar structuurvisie Ruimte en Mobiliteit, verordening Ruimte 2014 en programma Ruimte vastgelegde beleid en de daarbij behorende regels en uitgangspunten.

3.4 Gemeentelijk beleid

Het ruimtelijk beleid van de gemeente Westvoorne is vastgelegd in de Omgevingsvisie Westvoorne 2030. De visie op sanering en ontwikkeling van glas is daarbij onverkort overgenomen uit de structuurvisie Glasherstructurering (na 1e herziening, april 2011).

Uitgangspunt is een sanering van de verspreid liggende glastuinbouwlocaties in Westvoorne. De structuurvisie beschrijft hoe de sanering van de verspreide glastuinbouw samenhangt met de optimalisatie van het glastuinbouwgebied Tinte en de eventuele bouw van woningen. Ook geeft de structuurvisie aan wat de belangrijkste randvoorwaarden zijn bij de sanering van bedrijven. Tot slot wordt in de structuurvisie aangegeven hoe de sanering planologisch, financieel en juridisch mogelijk wordt gemaakt. De financiële aspecten van de sanering zijn verder uitgewerkt in de bij de structuurvisie horende Businesscase. De Businesscase wordt jaarlijks herzien. Dit bestemmingsplan vormt de juridisch-planologische basis voor de realisering van een deel van de sanering die is aangegeven in de structuurvisie Glasherstructurering. Het bestemmingsplan draagt bij aan de realisatie van de beleidsdoelen voor het landelijk gebied van Westvoorne. Het bestemmingsplan is onderdeel van een recente reeks aan bestemmingsplannen met betrekking tot de sanering van verspreid liggende glastuinbouwbedrijven in Westvoorne.

3.5 Conclusie

Het voorliggende bestemmingsplan past binnen het relevante beleid van de diverse overheden.

 

Hoofdstuk 4 Juridische planbeschrijving

4.1 Inleiding

In dit hoofdstuk wordt een toelichting gegeven op de juridische opzet van het bestemmingsplan. Er wordt ingegaan op de gekozen planvorm en de toegepaste plansystematiek wordt toegelicht.

4.2 Planvorm

Er is gekozen voor een gedetailleerde planvorm, waarbij de functies direct zijn vastgelegd op hun locatie. Hierdoor kunnen op basis van dit bestemmingsplan eventuele relevante omgevingsvergunningen worden verleend. De gekozen planvorm biedt hiermee duidelijkheid aan alle betrokkenen. Inhoudelijk is aansluiting gezocht bij de regeling in andere recente bestemmingsplannen voor de sanering van verspreid liggende glastuinbouw in Westvoorne. Waar nodig is de regeling aangepast aan het ter plaatse toegepaste maatwerk.

De planregels zijn opgesteld met inachtneming van de regels uit de Wet ruimtelijke ordening en de bijbehorende wettelijke regelingen. De plansystematiek is in overeenstemming met de verplicht toe te passen Standaard Vergelijkbare Bestemmingsplannen 2012 (SVBP2012).

4.3 Plansystematiek

Verbeelding

De verbeelding is de kaart waarop te zien is welke bestemming voor welke gebieden geldt. Alle functies in dit bestemmingsplan zijn apart bestemd, waardoor het direct mogelijk is om op de verbeelding te zien welke bestemmingen aan de gronden binnen het plangebied zijn gegeven.

In dit plan wordt gebruikgemaakt van bestemmingsvlakken en bouwvlakken. Het bestemmingsvlak geeft aan waar een bepaald gebruik is toegestaan. Een gebruik betekent niet altijd dat er ook mag worden gebouwd. Het bouwvlak is een gebied dat op de verbeelding is aangeven waarvoor de mogelijkheden om gebouwen te bouwen in de regels zijn aangegeven.

Bestemmingsregels

In de bij de verbeelding horende regels zijn de bestemmingsomschrijving, de bouwregels en de gebruiksregels en de afwijkings-en wijzigingsbevoegdheden te vinden.

Begrippen en wijze van meten

Het artikel Begrippen definieert de begrippen die in het bestemmingsplan worden gebruikt. Dit wordt gedaan om interpretatieverschillen te voorkomen.

Het artikel Wijze van meten geeft aan hoe de maatvoering van bouwwerken wordt gemeten of berekend.

Alle begrippen, waarin maten en waarden voorkomen, worden in dit artikel verklaard.

Voor beide artikelen geldt dat een deel bindend is voorgeschreven in het Besluit ruimtelijke ordening

(Bro).

- Agrarisch - Glastuinbouwintensiveringsgebied

De bestemming Agrarisch - Glastuinbouwintenviseringsgebied is toegekend aan de nieuwe bedrijfslocatie aan de Ruigendijk. De bestemming is integraal overgenomen uit het bestemmingsplan 'Glastuinbouwintensiveringsgebied Tinte', waarmee in 2011 uniforme mogelijkheden zijn geboden voor bestaande en toekomstige glastuinbouwbedrijven in dit gebied.

Ten opzichte van deze oorspronkelijke regeling zijn uitsluitend wijzigingen aangepast of achterwege gelaten voor zover de oorspronkelijke regels voor deze specifieke bedrijfslocatie niet relevant zijn, en zijn regels toegevoegd voor zover die in het kader van de beoogde ontwikkeling nodig zijn.

Daarnaast is een regeling in de algemene bouwregels aangepast die betrekking heeft op de afstand van gebouwen tot zij- en achterperceelsgrenzen. Hiermee wordt toegestaan dat gebouwen aan de zuidoostkant van het agrarische perceel tot in de perceelsgrens worden gebouwd, zodat fysiek aangesloten kan worden bij de kassen die in het naastgelegen bestemmingsplan mogelijk zijn gemaakt.

De belangrijkste bepalingen zijn verder dat gebouwen anders dan kassen uitsluitend binnen het bouwvlak zijn toegestaan. Kassen mogen op hun beurt ook buiten het bouwvlak, voor zover ze aaneengesloten en vanuit het bouwvlak worden gesitueerd. De oppervlakte van kassen is daarbij gemaximeerd via een aanduiding op de verbeelding.

Daarnaast zijn diverse afstandseisen van toepassing vanuit omliggende wegen en tot omliggende burgerwoningen.

- Natuur

Het perceel ten oosten van de woningbouwlocatie wordt in het kader van kwaliteitsontwikkeling omgezet in natuur. Hiervoor is de bestemming Natuur opgenomen, waarmee natuur- en landschapswaarden beschermd worden. Bebouwing is om die reden zeer beperkt (en zoals gewoonlijk uitsluitend ten dienste van de bestemming) mogelijk.

- Verkeer

De bestemming Verkeer staat wegen, voet- en fietspaden toe en daarbij behorende voorzieningen als groen en water. De formulering van het artikel is afgestemd op de standaardformulering zoals die ook is opgenomen in andere bestemmingsplannen van de gemeente Westvoorne. In het plangebied geldt voor de ontsluitingsweg dat deze vanaf de Middelweg tot en met de keerlus de bestemming Verkeer heeft.

- Wonen

Met het oog op het verminderen van regeldruk is een uniforme bouwregeling voor woonbestemmingen voor het gehele grondgebied van de gemeente Westvoorne opgesteld. Deze is inmiddels doorgevoerd in

bijna alle bestemmingsplannen van Westvoorne. De regeling is ook in dit plan opgenomen.

Gelet op de specifieke inrichting die beoogd wordt, zijn in het artikel ook enkele maatwerkbepalingen opgenomen. Zo is voor de nieuw te bouwen woningen met een aanduiding op de kaart aangegeven waar hoeveel woningen gebouwd mogen worden.

Daarnaast is de bouwvlakgrens van de bouwvlakken aan de Torenweg aangepast, wat te maken heeft met de uitkomsten van het onderzoek naar wegverkeerslawaai.

Tot slot is bij één van de (nieuwe) woningen aan de Torenweg een aanduiding opgenomen voor de functie kantoor. Deze functie mag in combinatie met de functie wonen of zelfstandig worden uitgeoefend. Hiertoe is een extra bouwmogelijkheid van 100 m2 toegekend aan het betreffende perceel. Op deze wijze wordt een passende functie mogelijk gemaakt bij een bestaand, te behouden gebouw op dit perceel.

Binnen de woonfunctie is, conform de algemene systematiek die in Westvoorne wordt gehanteerd bij woonbestemmingen, het uitoefenen van aan-huis-gebonden beroepen in hoofdgebouwen en bijgebouwen onder voorwaarden mogelijk. Eén van de voorwaarden is dat wordt voorzien in voldoende parkeergelegenheid. Of aan dit criterium wordt voldaan wordt getoetst aan de aanbevelingen van het ASVV. Het ASVV bundelt alle bestaande kennis over verkeersvoorzieningen. Om te garanderen dat de woonfunctie in overwegende mate behouden blijft, mag ten hoogste 50 m² van het vloeroppervlak van de hoofdgebouwen, aan-, uitbouwen en bijgebouwen, worden benut voor de bedrijfsmatige activiteiten.

- Waarde - Archeologie (dubbelbestemming)

De bestemming 'Waarde -Archeologie' is een dubbelbestemming. Om de (mogelijke) archeologische waarden in de ondergrond te beschermen, is binnen het plangebied de dubbelbestemming Waarde Archeologie van toepassing. Voor bepaalde bouw-of aanlegwerkzaamheden wordt pas toestemming verleend nadat de archeologische waarde van het betreffende gebied is vastgesteld en duidelijk is dat de activiteiten geen schade aan kunnen brengen aan de aanwezige archeologische resten.

Algemene regels

In dit onderdeel van de regels komen algemene regels aan de orde die gelden voor alle bestemmingen in het bestemmingsplan.

Anti-dubbeltelbepaling

Een Anti-dubbeltelregel wordt opgenomen om te voorkomen dat, wanneer volgens een bestemmingsplan bepaalde bouwwerken niet meer dan een bepaald deel van een bouwperceel mogen beslaan, het opengebleven terrein niet nog eens meetelt bij het toestaan van een ander gebouw of bouwwerk, waaraan een soortgelijke eis wordt gesteld. De formulering van de anti-dubbeltelregel is bindend voorgeschreven in het Besluit ruimtelijke ordening (artikel 3.2.4 Bro).

Algemene bouwregels

Het artikel Algemene bouwregels bevat enkele algemene regels voor het bouwen. Zo zijn er regels over parkeergelegenheid, de geringe overschrijding van bouwgrenzen of oppervlaktematen door ondergeschikte onderdelen van gebouwen. Ook wordt voorzien in een regeling voor overkappingen, luifels, overstekken en ondergrondse gebouwen, waarin wordt vastgelegd waar deze zijn toegestaan en in hoeverre deze meetellen bij de inhouds- en oppervlaktemaat van de bovengrondse gebouwen.

Algemene gebruiksregels

Hoewel het gebruik van gronden en bouwwerken is geregeld in de Wro, zijn voor de duidelijkheid regels

opgenomen over dit gebruik. Een voorbeeld is een algemeen verbod om gronden en bouwwerken te gebruiken in strijd met de bestemming of de bijbehorende regels.

Algemene afwijkingsregels en wijzigingsregels

In deze artikelen wordt een opsomming gegeven van de regels waarvan kan worden afgeweken. Ook wordt een opsomming gegeven van de regels waarmee door middel van een wijzigingsbevoegdheid ex artikel 3.6 Wro het mogelijk is enige flexibiliteit in het plan aan te brengen. Het gaat hierbij om een bevoegdheid en dus geen verplichting.

Overige regels

Werking wettelijke regelingen

In de regels van een bestemmingsplan wordt in een toenemend aantal gevallen met verwijzing naar een (andere) wettelijke regeling een procedure, begrip en/of functie uit die andere regeling van toepassing verklaard. De van toepassing verklaarde wettelijke regeling geldt zoals deze luidt op het moment van de vaststelling van het plan. Wijziging van de wettelijke regeling na de vaststelling van het bestemmingsplan zou anders zonder Wro-procedure een wijziging van het bestemmingsplan kunnen betekenen.

Overgangs-en slotregel

In het afsluitende onderdeel van de regels komen de overgangs-en slotregel aan de orde. De formulering van het overgangsrecht is bindend voorgeschreven in het Besluit ruimtelijke ordening (artikel 3.2.1 Bro). De slotregel bevat de titel van het plan.

Hoofdstuk 5 Sectorale onderzoeken

5.1 Inleiding

Dit hoofdstuk bevat de motivering van het bestemmingsplan voor de diverse relevante omgevingsaspecten. Uit de onderzoeken blijkt dat het bestemmingsplan voldoet aan de relevante wet- en regelgeving.

5.2 Milieueffectrapportage

Beleid en normstelling

In onderdeel C en D van de bijlage bij het Besluit m.e.r. is aangegeven welke activiteiten in het kader van het omgevingsvergunning planmer-plichtig, projectmer-plichtig of mer-beoordelingsplichtig zijn. Voor deze activiteiten zijn in het Besluit m.e.r. drempelwaarden opgenomen. Daarnaast dient het bevoegd gezag bij de betreffende activiteiten die niet aan de bijbehorende drempelwaarden voldoen, na te gaan of sprake kan zijn van belangrijke nadelige gevolgen voor het milieu, gelet op de omstandigheden als bedoeld in bijlage III van de EEG-richtlijn milieueffectbeoordeling. Deze omstandigheden betreffen:

  • de kenmerken van de projecten;
  • de plaats van de projecten;
  • de kenmerken van de potentiële effecten.

Onderzoek en conclusie

In het Besluit milieueffectrapportage is opgenomen dat de aanleg, wijziging of uitbreiding van een stedelijk ontwikkelingsproject mer-beoordelingsplichtig is indien (Besluit milieueffectrapportage, Bijlage onderdeel D11.2);

  • de activiteit betrekking heeft op een oppervlakte van 100 hectare of meer;
  • een aaneengesloten gebied en 2000 of meer woningen omvat;
  • een bedrijfsvloeroppervlakte van 200.000 m2 of meer.

De beoogde ontwikkeling betreft de verplaatsing van een glastuinbouwbedrijf en de realisatie van zeven woningen. De ontwikkeling overschrijdt de drempelwaarden niet. Opgemerkt dient te worden dat voor activiteiten die niet aan de bijbehorende drempelwaarden voldoen, toch dient te worden nagegaan of er sprake kan zijn van belangrijke gevolgen voor het milieu. Gelet op de kenmerken van het plan zoals het kleinschalige karakter in vergelijking met de drempelwaarden uit het Besluit m.e.r., de plaats van het plan en de kenmerken van de potentiële effecten zullen geen belangrijke negatieve milieugevolgen optreden. Dit blijkt ook uit de onderzoeken van de verschillende milieuaspecten zoals deze in de navolgende paragrafen zijn opgenomen. Voor dit bestemmingsplan is dan ook geen mer-procedure of mer-beoordelingsprocedure noodzakelijk conform het Besluit m.e.r.

5.3 Archeologie en cultuurhistorie

Beleidskader

De gemeente Westvoorne onderschrijft de uitwerking van het 'Verdrag van Malta': behoud van het archeologische erfgoed waar mogelijk en documentatie waar nodig. Westvoorne heeft op 22 april 2008 een gemeentelijk archeologisch beleid vastgesteld, waarvan de Archeologische Waarden- en Beleidskaart (AWK) een belangrijk instrument vormt. De kaart toont de archeologische waarden en verwachtingen binnen Westvoorne en geeft aan hoe de gemeente daarmee omgaat.

In het momenteel voor het plangebied geldende bestemmingsplan Landelijk Gebied Westvoorne is een dubbelbestemming ter bescherming van de mogelijk aanwezige archeologische waarden opgenomen. De AWK is het achterliggende beleidskader voor de motivering van die dubbelbestemming.

Het wettelijk kader voor de bescherming van (archeologische) monumenten en de aanwijzing van beschermde stads- of dorpsgezichten is vastgelegd in de Monumentenwet 1988.

Onderzoek en conclusies

Op onderstaande figuur zijn de uitsneden van de AWK opgenomen waarop de twee locaties van het plangebied zijn af te lezen. Voor het grootste deel van de locatie aan de Torenweg geldt een redelijk hoge tot hoge archeologische verwachting (gebiedscategorie 3.2). Archeologisch onderzoek is verplicht bij ingrepen en werkzaamheden die een oppervlak beslaan van meer dan 200 m2 en die dieper reiken dan 80 cm beneden het maaiveld. De Vleerdamsedijk heeft een zeer hoge archeologische verwachtingswaarde (gebiedscategorie 2), wat met zich meebrengt dat er onderzoek nodig is bij ingrepen die groter zijn de 100m2, ongeacht de diepte. Ook voor de locatie aan de Ruigendijk gelden meerdere verwachtingswaarden. De dijk zelf en het voorste deel van het perceel daar direct langs, hebben een zeer hoge archeologische verwachtingswaarde (gebiedscategorie 2). De rest van de gronden vallen binnen de categorie redelijk hoge tot hoge archeologische verwachting, waarbij zowel categorie 3.1 en 3.2 voorkomen. In deze drie zone's is respectievelijk onderzoek nodig bij ingrepen groter en dieper dan 100 m2/50cm, 200 m2/40 cm en 200m2/80 cm.

afbeelding "i_NL.IMRO.0614.bpTorenwRuig-0100_0008.png"    
Locatie Torenweg    
afbeelding "i_NL.IMRO.0614.bpTorenwRuig-0100_0009.png"  




afbeelding "i_NL.IMRO.0614.bpTorenwRuig-0100_0010.png"  
Locatie Ruigendijk   Legenda  

Figuur 5.1 - Uitsneden AWK

De archeologische verwachtingswaardes zijn vertaald in archeologische dubbelbestemmingen. De dubbelbestemmingen die in het vigerende bestemmingsplan op het plangebied van toepassing waren en corresponderen met AWK, zijn overgenomen in de regels van dit bestemmingsplan.

Vanuit cultuurhistorisch oogpunt heeft de bestaande bebouwing en inrichting binnen het plangebied geen bijzondere beschermde waarde. In de directe omgeving bevinden zich geen aangewezen monumenten of beschermde gezichten. De beoogde wijziging in het gebruik en de sloop van bebouwing heeft een positieve invloed op het bestaande beeld van de omgeving. Het aspect cultuurhistorie vraagt geen nader beschermingsregime.

5.4 Beeldkwaliteit en welstand

De provinciale verordening Ruimte 2014 (juli 2014) geeft aan dat een beeldkwaliteitparagraaf wordt gevraagd bij aanpassingen van het bestemmingsplan voor het buitengebied wanneer er ruimtelijke effecten te verwachten zijn voor de omgeving. In deze paragraaf worden de effecten van dit plan beschreven.

Dit bestemmingsplan levert een bijdrage aan de ambities die zijn aangeduid op de kwaliteitskaart van de provinciale structuurvisie. Het grondgebied van Westvoorne is op deze kaart voorzien van verschillende aanduidingen. De locatie aan de Torenweg in het gebied 'zeekleipolder' en grenst in de noordoosthoek van het perceel met het gebied 'duinlandschap'. De locatie aan de Ruigendijk ligt binnen het gebied 'zeekleipolder'. Beide locaties grenzen daarnaast aan de aanduiding 'lint' die is opgenomen voor de Middelweg, de Ruigendijk en de Aelbrechtsweg.

Dit bestemmingsplan voorziet in de eerste plaats in het opheffen van het (glas)tuinbouwbedrijf aan de Torenweg 1-5 en sanering van bestaande bebouwing. De mogelijkheid voor onder andere het oprichten van 3 hectare kassen verdwijnt. De bestaande twee bedrijfswoningen worden binnen de bestemming Wonen gebracht. Daarnaast worden ter compensatie dertien nieuwe woningen toegevoegd, ter plaatse van de huidige tuinbouwkassen. De beoogde ontwikkeling op deze locatie betekent een verbetering van de beeldkwaliteit van het buitengebied en draagt bij aan de (provinciale) ambities ten aanzien van de ruimtelijke kwaliteit.

Daarnaast voorziet het bestemmingsplan ook in de realisatie van een nieuw bedrijfscomplex voor glastuinbouw aan de Ruigendijk. Het deel van dit bedrijfscomplex dat in dit bestemmingsplan wordt mogelijk gemaakt, omvat circa 4 ha aan kassen met aan de voorzijde van het perceel tevens mogelijkheden voor overige bedrijfsbebouwing.

Voor het plangebied wordt geen afzonderlijke beeldkwaliteitparagraaf (bedoeld als aanvulling op de gemeentelijke Nota ruimtelijke kwaliteit) vastgesteld. Voor de toetsing van eventuele bouwplannen in het plangebied wordt de geldende gemeentelijke Nota ruimtelijke kwaliteit van toepassing verklaard.

5.5 Bodem

Toetsingskader

Op grond van het Besluit ruimtelijke ordening dient in verband met de uitvoerbaarheid van een plan rekening gehouden te worden met de bodemgesteldheid in het plangebied. Bij functiewijziging dient te worden bekeken of de bodemkwaliteit voldoende is voor de beoogde functie en moet worden vastgesteld of er sprake is van een saneringsnoodzaak. In de Wet bodembescherming is bepaald dat indien de desbetreffende bodemkwaliteit niet voldoet aan de norm voor de beoogde functie, de grond zodanig dient te worden gesaneerd dat zij kan worden gebruikt door de desbetreffende functie (functiegericht saneren). Nieuwe bestemmingen dienen bij voorkeur op schone grond te worden gerealiseerd.

Ten behoeve van ruimtelijke plannen dient ten minste het eerste deel van het verkennend bodemonderzoek, het historisch onderzoek, te worden verricht. Indien uit het historisch onderzoek wordt geconcludeerd dat op de betreffende locatie sprake is geweest van activiteiten met een verhoogd risico op verontreiniging dient een volledig verkennend bodemonderzoek te worden uitgevoerd.

Onderzoek en conclusie

Het onderzoek voor de locatie Ruigendijk is uitgevoerd door Mol Ingenieursbureau, rapport nummer A1135, datum 8 mei 2017 (definitief). Het onderzoek voor de locatie Torenweg is ook uitgevoerd door Mol Ingenieursbureau, rapport nummer A1334, datum 21 juni 2017 (definitief). Uit beide onderzoeken blijken geen belemmeringen voor de voorgenomen bestemmingswijzigingen.

5.6 Ecologie

5.6.1 Toetsingskader

Bij de voorbereiding van een ruimtelijk plan dient onderzocht te worden of de Wet natuurbescherming (hierna: Wnb) en het beleid van de provincie ten aanzien van de bescherming van dier- en plantensoorten en de bescherming van het Natuurnetwerk Nederland de uitvoering van het plan niet in de weg staan. In elk geval moet aannemelijk zijn dat vergunning of ontheffing van de van de bij of krachtens deze wet geldende verbodsbepalingen kan worden verkregen voor de activiteiten die met dit bestemmingsplan mogelijk worden gemaakt. Dit is anders indien uit de Wnb voortvloeit dat een passende beoordeling moet worden gemaakt. Deze dient te zijn verricht ten tijde van vaststelling van het bestemmingsplan.

5.6.2 Ruigendijk (naast nr. 1), Tinte

Gebiedsbescherming

Het plangebied vormt geen onderdeel van een natuur- of groengebied met een beschermde status, zoals Natura 2000. Het plangebied maakt ook geen deel uit van het Natuurnetwerk Nederland. Uit de kaart van de ecologische hoofdstructuur (geo-loket provincie Zuid-Holland) blijkt dat in het plangebied of directe omgeving geen beschermde weidevogelgebieden aanwezig zijn. De afstand tot het dichtstbijzijnde Natura 2000-gebied Voornes Duin bedraagt circa 3 kilometer. Het dichtstbijzijnde NNN gebied ligt op een afstand van circa 600 meter.

Het plangebied ligt buiten beschermde natuurgebieden. Directe effecten zoals areaalverlies en versnippering kunnen hierdoor worden uitgesloten. Gezien de afstand tot natuurgebieden en de geringe ontwikkeling kunnen ook verstoring, vermesting/verzuring en verandering van de waterhuishouding worden uitgesloten. De ontwikkeling leidt niet tot negatieve effecten op beschermde gebieden.

 

afbeelding "i_NL.IMRO.0614.bpTorenwRuig-0100_0011.png"

Figuur 5.3 - Globale ligging plangebied (rode cirkel) ten opzichte van beschermde natuurgebieden (bron: geo-loket provincie Zuid-Holland)

Onderzoek soortenbescherming

Er is het voornemen voor de realisatie van een glastuinbouwgebied aan de Ruigendijk te Tinte. Deze activiteit zou kunnen samen gaan met effecten op beschermde planten- en diersoorten. Op grond hiervan is een verkennend veldonderzoek uitgevoerd naar het voorkomen van beschermde soorten (bijlage 1). Er is vastgesteld dat het voorkomen van matig of zwaar beschermde soorten is uitgesloten. Het plangebied bezit geen mogelijkheden voor vleermuizen of vogels om te verblijven. Wel foerageren er vleermuizen in lage dichtheid. Gedurende en na realisatie van de plannen kunnen deze soorten er blijven foerageren. Effecten op vleermuizen worden derhalve uitgesloten. Voor overige soort(groep)en is het gebied verder volledig ongeschikt.

In verband met het voorkomen van algemene broedvogels is het van belang om werkzaamheden buiten het broedseizoen uit te voeren of te werken op een manier dat vogels niet tot broeden komen (vogelverschrikkers gebruiken). Voor overige soort(groep)en is het gebied verder volledig ongeschikt. Op grond van bovenstaande analyse worden effecten op beschermde planten- en diersoorten uitgesloten; de aanleg en het gebruik van het glastuinbouwgebied aan de Ruigendijk te Tinte zijn niet in strijd met het gestelde binnen de Natuurwet.

5.6.3 Torenweg 1-5, Rockanje

Onderzoek gebiedsbescherming

Het plangebied vormt geen onderdeel van een natuur- of groengebied met een beschermde status, zoals Natura 2000. Het plangebied maakt ook geen deel uit van het Natuurnetwerk Nederland. Uit de kaart van de ecologische hoofdstructuur (geo-loket provincie Zuid-Holland) blijkt dat in het plangebied of directe omgeving geen beschermde weidevogelgebieden aanwezig zijn. De afstand tot het dichtstbijzijnde Natura 2000-gebied Voornes Duin bedraagt circa 700 meter. Het dichtstbijzijnde NNN gebied ligt op een afstand van circa 160 meter.

Het plangebied ligt buiten beschermde natuurgebieden. Directe effecten zoals areaalverlies en versnippering kunnen hierdoor worden uitgesloten. Gezien de afstand tot natuurgebieden en de geringe ontwikkeling kunnen ook verstoring en verandering van de waterhuishouding worden uitgesloten. Qua stikstofdepositie genereert het plan geen problemen. In vergelijking met de huidige situatie, glastuinbouwbedrijf, zal er door de realisatie van woningen sprake zijn van een verbetering. De ontwikkeling leidt niet tot negatieve effecten op beschermde gebieden.

afbeelding "i_NL.IMRO.0614.bpTorenwRuig-0100_0012.png"

Figuur 5.2 - Globale ligging plangebied (rode cirkel) ten opzichte van beschermde natuurgebeiden (bron: geo-loket provincie Zuid-Holland)

Onderzoek soortenbescherming

Er is het voornemen voor de realisatie van woningbouw aan de Torenweg 1-5 te Rockanje. Deze activiteit zou kunnen samen gaan met effecten op beschermde planten- en diersoorten. Op grond hiervan is een verkennend veldonderzoek uitgevoerd naar het voorkomen van beschermde soorten (bijlage 2). Er is vastgesteld dat het voorkomen van matig of zwaar beschermde soorten is uitgesloten. Het plangebied bezit geen mogelijkheden voor vleermuizen of vogels om te verblijven. Wel foerageren er vleermuizen in lage dichtheid. Gedurende en na realisatie van de plannen kunnen deze soorten er blijven foerageren. Effecten op vleermuizen worden derhalve uitgesloten. Voor overige soort(groep)en is het gebied verder volledig ongeschikt.

Op grond van bovenstaande analyse worden effecten op beschermde planten- en diersoorten uitgesloten; de plannen aan de Torenweg 1-5 te Rockanje zijn niet in strijd met het gestelde binnen de Natuurwet.

5.6.4 Conclusie

De voorgenomen ontwikkeling leidt niet tot negatieve effecten op beschermde natuurgebieden of beschermde soorten. Het aspect ecologie vormt dan ook geen belemmering voor de uitvoering van het plan

5.7 Water

5.7.1 Toetsingskader

Waterbeheer en watertoets

De initiatiefnemer dient in een vroeg stadium overleg te voeren met de waterbeheerder over een ruimtelijk planvoornemen. Hiermee wordt voorkomen dat ruimtelijke ontwikkelingen in strijd zijn met duurzaam waterbeheer. Het plangebied ligt binnen het beheersgebied van het waterschap Hollandse Delta, verantwoordelijk voor het waterkwantiteits- en waterkwaliteitsbeheer. Bij het tot stand komen van het plan wordt overleg gevoerd met de waterbeheerder over deze waterparagraaf. De opmerkingen van de waterbeheerder zijn vervolgens verwerkt in deze waterparagraaf.

Beleid duurzaam stedelijk waterbeheer

Op verschillende bestuursniveaus zijn de afgelopen jaren beleidsnota's verschenen aangaande de waterhuishouding, alle met als doel een duurzaam waterbeheer (kwalitatief en kwantitatief). Deze paragraaf geeft een overzicht van de voor het plangebied relevante nota's, waarbij het beleid van het waterschap Hollandse Delta nader wordt behandeld.

Europees:

  • Kaderrichtlijn Water (KRW)

Nationaal:

  • Nationaal Waterplan (NW)
  • Nationaal Bestuursakkoord Water (NBW)
  • Waterwet

Provinciaal:

  • Provinciaal Waterplan
  • Provinciale Structuurvisie
  • Verordening Ruimte

Waterschapsbeleid

In het Waterbeheerprogramma (WBP) (2016-2021) staan de doelen van het waterschap Hollandse Delta voor de taken waterveiligheid (dijken en duinen), voldoende water, schoon water en de waterketen (transport en zuivering van afvalwater). Ook wordt aangegeven welk beleid gevoerd wordt en wat het waterschap in de planperiode wil doen om de doelen te bereiken. De maatregelen voor de Europese Kaderrichtlijn Water (KRW) zijn onderdeel van het plan.

Uit het oogpunt van waterkwaliteit moet schoon hemelwater bij voorkeur worden afgekoppeld en direct worden geloosd op oppervlaktewater. Dit vermindert de vuiluitworp uit het gemengde rioolstelsel en verlaagt de belasting van de afvalwaterzuivering. De toename van verhard oppervlak leidt tot een zwaardere belasting van het oppervlaktewatersysteem en leidt met regelmaat tot wateroverlast stroomafwaarts. Om de zwaardere belasting van het oppervlaktewatersysteem onder normale omstandigheden tegen te gaan is het brengen van hemelwater vanaf verhard oppervlak op het oppervlaktewaterlichaam specifiek vergunningplicht gesteld. Bij een toename van aaneengesloten verhard oppervlak van 500 m² of meer in stedelijk gebied of 1500 m2 of meer in landelijk gebied dient een vergunning aangevraagd te worden in het kader van de Keur. De versnelde afvoer als gevolg van de toename aan verharding moet volledig worden gecompenseerd door het aanbrengen van een gelijkwaardige vervangende voorziening (compensatieplicht), met een oppervlakte van 10% van de toename van verharding. Het waterschap geeft in volgorde de voorkeur aan de volgende gelijkwaardige voorzieningen:

  • Nieuw te graven oppervlaktewater in de directe nabijheid van de verhardingstoename;
  • Nieuw te graven oppervlaktewater binnen hetzelfde peilgebied;
  • Nieuw te graven oppervlaktewater in het benedenstrooms gelegen peilgebied of een eventueel alternatief.
5.7.2 Huidige situatie

Algemeen

  • Torenweg: Het plangebied bestaat hoofdzakelijk uit kassen. Volgens de bodemkaart van Nederland (www.bodemdata.nl) bestaat de bodem uit zavel met homogeen profiel. Hier is sprake van grondwatertrap VI. Dat wil zeggen dat de gemiddelde hoogste grondwaterstand meer dan 0,4 meter beneden het maaiveld ligt en dat de gemiddelde laagste grondwaterstand varieert tussen de 0,8 en de 1,2 meter beneden het maaiveld.
  • Ruigendijk: Het plangebied bestaat uit agrarische landen en is onbebouwd. Volgens de bodemkaart van Nederland (www.bodemdata.nl) bestaat de bodem uit lichte zavel. Hier is sprake van grondwatertrap VI. Dat wil zeggen dat de gemiddelde hoogste grondwaterstand tussen de 0,4 en 0,8 m beneden het maaiveld ligt en dat de gemiddelde laagste grondwaterstand lager dan 1,2 m beneden het maaiveld ligt.

Waterkwantiteit en –kwaliteit

  • Torenweg: Ten westen van het plangebied is een wegsloot gelegen met een beschermingszone van 5 meter. Aan de zuid en noordzijde liggen overige watergangen met een beschermingszone van 2 meter. Binnen deze beschermingszones gelden beperkingen voor bouwen en aanleggen.

afbeelding "i_NL.IMRO.0614.bpTorenwRuig-0100_0013.png"

Figuur 5.4 - Uitsnede Legger Waterschap Hollandse Delta (www.wshd.nl) 

  • Ruigendijk: Het plangebied wordt begrensd door verscheidene watergangen. Ten westen van het plangebied ligt een hoofdwatergang met een beschermingszone van 5 meter. Aan de noordkant ligt een wegsloot met een beschermingszone van 5 meter. Aan de oost- en zuidoostkant liggen overige watergangen met een beschermingszone van 2 meter. Binnen deze beschermingszones gelden beperkingen voor bouwen en aanleggen.

 afbeelding "i_NL.IMRO.0614.bpTorenwRuig-0100_0014.png"

Figuur 5.5 - Uitsnede Legger Waterschap Hollandse Delta (www.wshd.nl)

Veiligheid en waterkeringen

Beide planlocaties zijn niet gelegen binnen de kern- of beschermingszone van een waterkering.

Afvalwaterketen en riolering

De planlocatie Torenweg is aangesloten op het gemeentelijk rioleringsstelsel, de planlocatie aan de Ruigendijk is nog niet aangesloten op het gemeentelijk rioleringsstelsel.

5.7.3 Toekomstige situatie

Algemeen

De beoogde ontwikkeling heeft betrekking op de realisatie van nieuwbouw en de verplaatsing van een glastuinbouwbedrijf. Bij een toename aan verhard oppervlak van meer dan 500 m2 in stedelijk gebied dient er volgens het beleid van waterschap Hollandse Delta, 10% van de toename aan functioneel open water gerealiseerd te worden

  • Torenweg: Op de locatie aan de Torenweg wordt nieuwbouw gepleegd. Er worden in totaal dertien nieuwe woningen gerealiseerd. Ten opzichte van de huidige situatie is er geen toename in verhard oppervlak maar juist een sterke afname, zodat er geen compensatieplicht voor deze planlocatie. In het verkavelingsontwerp worden er echter wel nieuwe waterpartijen gerealiseerd die in verbinding komen te staan met de bestaande watergangen.

afbeelding "i_NL.IMRO.0614.bpTorenwRuig-0100_0015.png"

Figuur 5.6 - Indicatieve verkaveling Torenweg

  • Ruigendijk: Ter plaatse van de kavel aan de Ruigendijk te Tinte vindt er sterke toename in verharding plaats. Het bouwvlak waarbinnen bedrijfsgebouwen mogen worden opgericht omvat circa 0,9 ha. Daarbuiten wordt de realisatie van ruim 4 ha aan kassen toegestaan. Ook wordt de aanleg van een verhard buitenveld van 0,6 ha beoogd. Per saldo is daarom sprake van ongeveer 5,5 ha aan toekomstige verharding. Op eigen terrein wordt ter compensatie voorzien in de aanleg van nieuw water, waarmee voldaan wordt aan de 10%-eis. De exacte invulling hiervan wordt nog bepaald.

Afvalwaterketen en riolering

Conform de Leidraad Riolering en vigerend waterschapsbeleid is het voor nieuwbouw gewenst een gescheiden rioleringsstelsel aan te leggen zodat schoon hemelwater niet bij een rioolzuiveringsinstallatie terecht komt. Afvalwater wordt aangesloten op de bestaande gemeentelijke riolering. Voor hemelwater wordt de volgende voorkeursvolgorde aangehouden:

  • hemelwater vasthouden voor benutting;
  • (in)filtratie van afstromend hemelwater;
  • afstromend hemelwater afvoeren naar oppervlaktewater;
  • afstromend hemelwater afvoeren naar RWZI.

Watersysteemkwaliteit en ecologie

Ter voorkoming van diffuse verontreinigingen van water en bodem is het van belang om duurzame, niet-uitloogbare materialen te gebruiken, zowel gedurende de bouw- als de gebruiksfase.

Waterbeheer

Voor aanpassingen aan het bestaande watersysteem dient bij het waterschap vergunning te worden aangevraagd op grond van de 'Keur'. Dit geldt dus bijvoorbeeld voor het graven van nieuwe watergangen, het aanbrengen van een stuw of het afvoeren van hemelwater naar het oppervlaktewater. In de Keur is ook geregeld dat een beschermingszone voor watergangen en waterkeringen in acht dient te worden genomen. Dit betekent dat binnen de beschermingszone niet zonder ontheffing van het waterschap gebouwd, geplant of opgeslagen mag worden. De genoemde bepaling beoogt te voorkomen dat de stabiliteit, het profiel en/of de veiligheid wordt aangetast, de aan- of afvoer en/of berging van water wordt gehinderd dan wel het onderhoud wordt gehinderd. Ook voor het onderhoud gelden bepalingen uit de 'Keur'. Het onderhoud en de toestand van de (hoofd)watergangen worden tijdens de jaarlijkse schouw gecontroleerd en gehandhaafd.

5.7.4 Conclusie

De ontwikkeling heeft geen negatieve gevolgen voor het waterhuishoudkundige systeem ter plaatse.

5.8 Wegverkeerslawaai

Langs alle wegen - met uitzondering van 30 km/h-wegen en woonerven - bevinden zich op grond van de Wet geluidhinder (Wgh) geluidzones waarbinnen de geluidhinder vanwege de weg moet worden getoetst. De breedte van de geluidzone is afhankelijk van het aantal rijstroken en van binnen- of buitenstedelijke ligging. De geluidhinder wordt berekend aan de hand van de Europese dosismaat Lden (L day-evening-night). Deze dosismaat wordt weergegeven in dB. Deze waarde vertegenwoordigt het gemiddelde geluidsniveau over een etmaal.

De woningbouw aan de Torenweg is gelegen binnen de geluidzone van de Torenweg, Doornweg en

Vleerdamsedijk.

Voor de geluidsbelasting aan de buitengevels van woningen binnen de wettelijke geluidzone van een weg geldt een voorkeursgrenswaarde van 48 dB. In bepaalde gevallen is vaststelling van een hogere waarde mogelijk. Hogere grenswaarden kunnen alleen worden verleend nadat is onderbouwd dat maatregelen om de geluidsbelasting aan de gevel van geluidsgevoelige bestemmingen terug te dringen onvoldoende doeltreffend zijn, dan wel overwegende bezwaren ontmoeten van stedenbouwkundige, verkeerskundige, vervoerskundige, landschappelijke of financiële aard. Deze hogere grenswaarde mag de maximale ontheffingswaarde niet te boven gaan. Beide ontwikkelingen zijn gelegen in buitenstedelijk gebied. De maximale ontheffingswaarde bedraagt 53 dB.

Het akoestisch onderzoek is uitgevoerd conform de Standaard Rekenmethode II uit het Reken- en meetvoorschrift geluid 2012 (RMG 2012), het rapport is toegevoegd in bijlage 3.

Uit de modelresultaten blijkt dat de voorkeursgrenswaarde van 48 dB in het plangebied overschreden wordt. Door de positionering van de woningen nader vast te leggen binnen de bestemming Wonen, kan worden bereikt dat ze op voldoende afstand van de weg worden gebouwd en om die reden alsnog voldoen aan de voorkeursgrenswaarde. Daartoe moeten de woningen ten oosten van de Torenweg tenminste 15 m uit de as van de weg worden gebouwd en moeten de woningen ten westen van de Torenweg tenminste 18 m uit de as van de weg worden gebouwd. Binnen de bestemming Wonen zijn bouwvlakken opgenomen die deze afstanden aanhouden. Hiermee is voldoende afstand tot de weg en daarmee ook een acceptabele geluidbelasting op de gevels van de woningen gegarandeerd.

5.9 Verkeer en parkeren

Toetsingskader

De verkeersgeneratie van een ontwikkeling wordt bepaald op basis van kencijfers van het CROW (publicatie 317 'Kencijfers parkeren en verkeersgeneratie', 2012). Daarnaast wordt voor de parkeervraag aangesloten bij de 'Parkeerbeleidnota Westvoorne 2012-2016'. Hierin wordt grotendeels aangesloten bij de kencijfers van het CROW. Uitgangspunten hierbij zijn een ligging in een weinig stedelijke gemeente in het buitengebied. Tevens dient op basis van het autobezit in de gemeente Westvoorne ten opzichte van het landelijk gemiddelde uitgegaan te worden van de gemiddelde kencijfers. Voor de parkeerbehoefte en de verkeersgeneratie te bepalen van de glastuinbouwlocatie zijn verwachte verkeersbewegingen aangeleverd door de opdrachtgever.

Onderzoek

Ontsluiting

Het plangebied op het perceel Torenweg1-5 in Rockanje bestaat uit een voormalige glastuinbouwlocaties waar nu de bestemming 'Wonen' op komt. Daarnaast wordt aan de Ruigendijk in Tinte nieuwe glastuinbouw mogelijk gemaakt. Beide locaties zijn gelegen aan plattelandswegen, erftoegangsweg type twee. Beide wegen ontsluiten met name bestemmingsverkeer. De nieuwe woningbouwlocatie aan de Torenweg ontsluit in zuidelijke richting naar Rockanje en in noordelijke richting naar Oostvoorne en het hoger gelegen netwerk. De glastuinbouw aan de Ruigendijk is gelegen tussen de kernen Oostvoorne en Tinte/Brielle. Via de Molendijk wordt aangesloten op de N496, van waaruit het hoger gelegen netwerk wordt bereikt.

Gemotoriseerd verkeer en langzaam verkeer maken in de aanliggende wegen gebruik van dezelfde rijbaan. De dichtstbijzijnde openbaar vervoerhalte ligt voor de woningbouwlocatie direct naast het plangebied aan de Vleerdamsedijk. De glastuinbouw aan de Ruigendijk kent aan de N218 de dichtstbijzijnde openbaar vervoershalte op 20 minuten loopafstand. Langzaam verkeer en vraag naar openbaar vervoer wordt in deze landelijke ligging niet verwacht. De ontsluiting van het plangebied is daarmee voor alle modaliteiten goed.

Parkeerbehoefte

Volgens het beleid wordt bij ontwikkelingen van bouwplannen de meest actuele parkeernorm toegepast zoals deze is opgenomen in de ASVV (Aanbevelingen voor verkeersvoorzieningen binnen de bebouwde kom) van het CROW, wat aansluit bij de kencijfers uit publicatie 317. Voor de parkeerbehoefte van de woningbouwlocatie wordt gerekend met 13 vrijstaande woningen. Per woning is de parkeernorm 2,4 = 3 parkeerplaatsen. De parkeerbehoefte voor de glastuinbouwlocatie is bepaald vanuit de autobewegingen van de werknemers en bezoekers op een gemiddelde werkdag. Per werkdag zullen circa 10 autobewegingen vanuit werknemers tot stand komen en 3 autobewegingen van bezoekers. De parkeerbehoefte bedraagt 13 parkeerplaatsen. Voor beide locaties zal de parkeerbehoefte op eigen terrein worden voorzien.

Verkeersgeneratie en verkeersafwikkeling

Voor de woningbouwlocatie met 13 vrijstaande woningen bedraagt de verkeersgeneratie 13 x 8,2 = 107 motorvoertuigen per etmaal (mvt/etmaal). Door sanering van de glastuinbouw zal de nieuwe verkeersgeneratie in worst case-scenario beperkt toenemen. Eventuele toename op de Middelweg zal opgaan in de dagelijkse fluctuaties van het verkeer.

De verkeersgeneratie van de glastuinbouwontwikkeling aan de Ruigendijk is bepaald met de aangeleverde gegevens:

  • Personeel: 40 mvt (20 auto's, 20 bussen);
  • Leveranciers: 10 mvt (4 vrachtauto's, 4 bestelbussen en 2 auto's);
  • Product transport: 10 mvt (10 vrachtauto's);
  • Bezoekers: 6 mvt (6 auto's).

De verkeersgeneratie op een gemiddelde werkdag bedraagt 66 mvt/etmaal. In de spits (10%) moet de Ruigendijk circa 7 mvt verwerken. Dit aantal zal opgaan in de dagelijkse fluctuaties van het verkeer.

Conclusie

De ontsluiting van het plangebied is voor alle modaliteiten goed. De parkeerbehoefte zal voor beide locaties op eigen terrein worden voorzien. De eventuele verkeerstoenamen gaan bij beide locaties op in de huidige fluctuaties van het verkeer. Het aspect verkeer en parkeren staat de ontwikkeling niet in de weg.

5.10 Industrielawaai

Normstelling en beleid

Volgens de Wet geluidhinder dienen alle industrie- en bedrijventerreinen, waarop inrichtingen zijn of kunnen worden gevestigd die in belangrijke mate geluidshinder kunnen veroorzaken, gezoneerd te zijn. Rondom deze industrieterreinen geldt een geluidzone die wordt vastgelegd in bestemmingsplannen. Buiten deze zone mag de geluidsbelasting als gevolg van het industrieterrein niet meer dan 50 dB(A) bedragen. Binnen de zonegrens van het industrieterrein, de 50 dB(A)-contour, zijn nieuwe geluidsgevoelige functies (zoals woningen) niet zonder meer toegestaan.

Onderzoek en conclusie

De locatie aan de Torenweg ligt buiten de geluidzone van het industrieterrein EuropoortMaasvlakte. De locatie aan de Ruigendijk ligt wel binnen de geluidzone, zoals blijkt uit figuur 5.7. Met dit bestemmingsplan worden op die locatie echter geen geluidgevoelige functies (zoals woningen) mogelijk gemaakt. Het aspect industrielawaai staat de ontwikkeling om die reden niet in de weg.

afbeelding "i_NL.IMRO.0614.bpTorenwRuig-0100_0016.png"

Figuur 5.7 - Geluidscontouren industrielawaai

(bron: uitsnede contourenkaart industrielawaai DCMR)

5.11 Bedrijven en milieuhinder

Beleid en normstelling

In het kader van een goede ruimtelijke ordening is het van belang dat bij de aanwezigheid van bedrijven in de omgeving van milieugevoelige functies zoals woningen:

  • ter plaatse van de woningen een goed woon- en leefmilieu kan worden gegarandeerd;
  • rekening wordt gehouden met de bedrijfsvoering en milieuruimte van de betreffende bedrijven.

Om in de bestemmingsregeling de belangenafweging tussen bedrijvigheid en nieuwe woningen in voldoende mate mee te nemen, wordt in dit plan gebruikgemaakt van de VNG-publicatie Bedrijven en milieuzonering (editie 2009). ). In deze publicatie is een lijst opgenomen waarin de meest voorkomende bedrijven en bedrijfsactiviteiten zijn gerangschikt naar mate van milieubelasting. Voor elke bedrijfsactiviteit is de maximale richtafstand ten opzichte van milieugevoelige functies aangegeven op grond waarvan de categorie-indeling heeft plaatsgevonden. De richtafstanden gelden ten opzichte van het omgevingstype 'rustige woonwijk'.

Onderzoek en conclusie

De beoogde ontwikkeling betreft zowel een milieuhinderlijke als milieugevoelige functie. Op de voormalige locatie van het glastuinbouwbedrijf wordt woningbouw gepleegd. Het glastuinbouwgebied wordt verplaatst naar het glastuinbouw concentratiegebied in Tinte. De locaties worden derhalve apart getoetst.

  • Ruigendijk (naast 1) Tinte: Gezien de ligging in glastuinbouwintensiveringsgebied kan het gebied getypeerd worden als gemengd gebied. Conform de VNG-publicatie kan een glastuinbouwbedrijf (tuinbouwbedrijf met kassen) geschaald worden onder milieucategorie 2 met een bijbehorende richtafstand van 10 m in gemengd buitengebied. In de nabije omgeving zijn woningen gelegen. De dichtstbijzijnde woning aan de Ruigendijk 1 ligt op een afstand van circa 100 meter van het plangebied. Aan de genoemde richtafstand wordt dan ook voldaan. Geconcludeerd wordt dat ter plaatse van de omliggende woningen ook in de toekomstige situatie sprake is van een aanvaardbaar woon- en leefklimaat.
  • Torenweg: De beoogde woningbouw ter plaatse van de Torenweg betreft een milieugevoelige functie. In de omgeving van het plangebied zijn nog enkele glastuinbouw bedrijven aanwezig. Voor deze bedrijven is echter het bestemmingsplan Sanering glastuinbouw opgesteld. Het uitoefenen van een agrarisch glastuinbouwbedrijf komt hierdoor te vervallen en de agrarische bedrijven worden voortgezet als open grond tuinbouwbedrijven. Ter compensatie voor de sanering en het wegbestemmen worden er drie nieuwe burgerwoningen mogelijk gemaakt. Ter plaatse van het plangebied zijn over het algemeen woningen gelegen, de omgeving van het gebied kan worden getypeerd als rustig buitengebied. De glastuinbouwbedrijven ten zuiden van het plangebied die worden voortgezet als open grond tuinbouwbedrijven, liggen op dusdanige afstand dat deze niet van invloed zijn op de milieusituatie ter plaatse van het plangebied. Geconcludeerd wordt dat er ter plaatse van de beoogde woningen sprake is van een aanvaardbaar woon- en leefklimaat en de omliggende bedrijven niet in hun bedrijfsvoering worden beperkt.

5.12 Luchtkwaliteit

Toetsingskader

In het kader van een goede ruimtelijke ordening wordt bij het opstellen van een ruimtelijk plan uit het oogpunt van de bescherming van de gezondheid van de mens rekening gehouden met de luchtkwaliteit. Het toetsingskader voor luchtkwaliteit wordt gevormd door hoofdstuk 5, titel 5.2 van de Wet milieubeheer. Dit onderdeel van de Wet milieubeheer (Wm) bevat grenswaarden voor zwaveldioxide, stikstofdioxide en stikstofoxiden, fijn stof, lood, koolmonoxide en benzeen. Hierbij zijn in de ruimtelijke ordeningspraktijk langs wegen vooral de grenswaarden voor stikstofdioxide (jaargemiddelde) en fijn stof (jaar- en daggemiddelde) van belang. De grenswaarden van de laatstgenoemde stoffen zijn in tabel 5.1 weergegeven.

Stof   Toetsing van   Grenswaarde  
stikstofdioxide (NO2)   jaargemiddelde concentratie   40 µg/m³  
fijn stof (PM10)   jaargemiddelde concentratie   40 µg/m³  
  24-uurgemiddelde concentratie   max. 35 keer p.j. meer dan 50 µg / m³  
fijn stof (PM2,5)   jaargemiddelde concentratie   25 µg /m³  

Tabel 5.1 - Grenswaarden maatgevende stoffen Wm

Op grond van artikel 5.16 van de Wm kunnen bestuursorganen bevoegdheden die gevolgen kunnen hebben voor de luchtkwaliteit onder andere uitoefenen indien de bevoegdheden/ontwikkelingen niet leiden tot een overschrijding van de grenswaarden of de bevoegdheden/ontwikkelingen niet in betekenende mate bijdragen aan de concentratie in de buitenlucht.

In het Besluit niet in betekenende mate is bepaald in welke gevallen een plan vanwege de gevolgen voor de luchtkwaliteit niet aan de grenswaarden hoeft te worden getoetst. Hierbij worden 2 situaties onderscheiden:

  • een plan heeft een effect van minder dan 3% van de jaargemiddelde grenswaarde NO2 en PM10 (= 1,2 µg/m³);
  • een plan valt in een categorie die is vrijgesteld aan toetsing aan de grenswaarden; deze categorieën betreffen onder andere woningbouw met niet meer dan 1.500 woningen bij één ontsluitingsweg en 3.000 woningen bij twee ontsluitingswegen, kantoorlocaties met een bruto vloeroppervlak van niet meer dan 100.000 m2 bij één ontsluitingsweg en 200.000 m2 bij twee ontsluitingswegen.

Onderzoek - Ruigendijk (naast nr. 1), Tinte

De beoogde ontwikkeling heeft betrekking op de verplaatsing van een glastuinbouwbedrijf en leidt tot een toename van verkeer van 66 mvt/etmaal (weekdaggemiddelde). Hierbij wordt uitgegaan van een aandeel vrachtverkeer van 21%. Uit de nimb-tool blijkt dat deze verkeerstoename zorgt voor een toename van het gehalte stikstof in de lucht van 0,20 µg/m³ en van fijn stof van 0,02 µg/m³ (zie figuur 5.8). Beide toenames blijven beneden de 1,2 µg/m³. Het plan draagt dan ook niet in betekenende mate bij aan de toename van de hoeveelheid stikstofdioxide en fijn stof in de lucht. Er wordt voldaan aan de luchtkwaliteitswetgeving en nader onderzoek is niet noodzakelijk.

afbeelding "i_NL.IMRO.0614.bpTorenwRuig-0100_0017.png"

Figuur 5.8 - Berekening NIBM-tool

In het kader van een goede ruimtelijke ordening is een indicatie van de luchtkwaliteit ter plaatse van het plangebied gegeven. Dit is gedaan aan de hand van de NSL-monitoringstool 2015 (http://www.nsl-monitoring.nl/viewer/) die bij het Nationaal Samenwerkingsprogramma Luchtkwaliteit hoort. De maatgevende weg betreft de Ruigendijk. Uit de NSL-monitoringstool blijkt dat in 2015 de jaargemiddelde concentraties stikstofdioxide en fijn stof langs deze weg ruimschoots onder de grenswaarden lagen. De concentraties luchtverontreinigende stoffen bedroegen in 2015; 17,8 µg/m³ voor NO2, 17 µg/m³ voor PM10 en 9,8 µg/m³ voor PM2,5. Het aantal overschrijdingsdagen van de 24-uur gemiddelde concentratie PM10 bedraagt 6 dagen. Hierdoor is er ter plaatste van het plangebied sprake van een aanvaardbaar leefklimaat.

Onderzoek - Torenweg 1-5, Rockanje

Het bestemmingsplan maakt de realisatie van dertien woningen mogelijk. Dit aantal valt ruim onder de grens van 1.500 woningen, die is vrijgesteld aan toetsing aan de grenswaarden voor luchtkwaliteit. Het plan draagt dan ook niet in betekenende mate bij aan de toename van de hoeveelheid stikstofdioxide en fijn stof in de lucht. Er wordt dan ook voldaan aan de luchtkwaliteitswetgeving en nader onderzoek is niet noodzakelijk.

In het kader van een goede ruimtelijke ordening is een indicatie van de luchtkwaliteit ter plaatse van het plangebied gegeven. Dit is gedaan aan de hand van de NSL-monitoringstool 2015 (http://www.nsl-monitoring.nl/viewer/) die bij het Nationaal Samenwerkingsprogramma Luchtkwaliteit hoort. De dichtstbijzijnde maatgevende weg betreft de Vleerdamsedijk, direct ten zuiden van het plangebied. Uit de NSL-monitoringstool blijkt dat in 2015 de jaargemiddelde concentraties stikstofdioxide en fijn stof langs deze weg ruimschoots onder de grenswaarden lagen. De concentraties luchtverontreinigende stoffen bedroegen in 2015; 16,4 µg/m³ voor NO2, 16,8 µg/m³ voor PM10 en 9,8 µg/m³ voor PM2,5. Het aantal overschrijdingsdagen van de 24-uur gemiddelde concentratie PM10 bedroeg 6 dagen. Hierdoor is er ter plaatste van het plangebied sprake van een aanvaardbaar woon- en leefklimaat.

Conclusie

Het aspect luchtkwaliteit vormt geen belemmering voor de beoogde ontwikkeling in het plangebied. Ter plaatse van het plangebied is er sprake van een aanvaardbaar woon- en leefklimaat.

5.13 Externe veiligheid

Beleid en normstelling

Bij ruimtelijke plannen dient ten aanzien van externe veiligheid naar verschillende aspecten te worden gekeken, namelijk:

  • bedrijven waar activiteiten plaatsvinden die gevolgen hebben voor de externe veiligheid;
  • vervoer van gevaarlijke stoffen over wegen, spoor, water of door buisleidingen.

Voor zowel bedrijvigheid als vervoer van gevaarlijke stoffen zijn twee aspecten van belang, te weten het plaatsgebonden risico (PR) en het groepsrisico (GR). Het PR is de kans per jaar dat een persoon dodelijk wordt getroffen door een ongeval, indien hij zich onafgebroken (dat wil zeggen 24 uur per dag gedurende het hele jaar) en onbeschermd op een bepaalde plaats zou bevinden. Het PR wordt weergegeven met risicocontouren rondom een inrichting dan wel infrastructuur. Het GR drukt de kans per jaar uit dat een groep van minimaal een bepaalde omvang overlijdt als direct gevolg van een ongeval waarbij gevaarlijke stoffen betrokken zijn. De norm voor het GR is een oriëntatiewaarde. het bevoegd gezag heeft een verantwoordingsplicht als het GR toeneemt en/of de oriëntatiewaarde overschrijdt.

Onderzoek

  • Ruigendijk (naast 1) Tinte: In de directe omgeving van het plangebied vindt geen vervoer van gevaarlijke stoffen plaats over het spoor, de weg, het water of door buisleidingen. Volgens de professionele risicokaart zijn in nabijheid van het plangebied geen risicovolle inrichtingen gelegen.
  • Torenweg 1-5 Rockanje: In de omgeving van het plangebied zijn geen risicovolle inrichtingen gelegen en vindt geen vervoer van gevaarlijke stoffen plaats over de weg, het spoor, het water of via buisleidingen.

Conclusie

Het aspect externe veiligheid vormt geen belemmering voor de vaststelling van het bestemmingsplan.

5.14 Kabels en leidingen

Toetsingskader

Rond planologisch relevante leidingen dient rekening te worden gehouden met zones waarbinnen mogelijke beperkingen gelden (belemmeringenzones).

Onderzoek en conclusie

Binnen het plangebied en in de directe omgeving zijn geen planologisch relevante buisleidingen, hoogspanningsverbindingen of straalpaden aanwezig. Het aspect kabels en leidingen staat de beoogde ontwikkeling niet in de weg.

Hoofdstuk 6 Uitvoerbaarheid

6.1 Inleiding

In dit hoofdstuk wordt een korte toelichting gegeven op de uitvoerbaarheid van het bestemmingsplan. Naast de economische uitvoerbaarheid wordt ook ingegaan op de handhaving van het bestemmingsplan.

6.2 Economische uitvoerbaarheid

De ontwikkelingen die met dit bestemmingsplan worden beoogd, vinden plaats in het kader van de concentratie van glastuinbouwactiviteiten in het glastuinbouwgebied bij Tinte en de sanering van de verspreide glastuinbouwbedrijven in het overige deel van het buitengebied van Westvoorne. Het glastuinbouwbeleid is vastgelegd in de structuurvisie Glasherstructurering (na 1e herziening). De financiële aspecten zijn verder uitgewerkt in de daarvoor bij de structuurvisie opgestelde Businesscase. Met de eigenaar van het agrarische bedrijf uit het voorliggende bestemmingsplan is een anterieure exploitatieovereenkomst gesloten.

Met deze overeenkomst en de borging in de Businesscase is sprake van een volledig kostenverhaal, waardoor het niet nodig is om een exploitatieplan vast te stellen. De gesloten exploitatieovereenkomst bevat specifieke informatie in relatie tot de financiële belangen van de betrokken grondeigenaar. Deze informatie is alleen van belang voor de afspraken tussen gemeente en grondeigenaar en wordt daarom aangemerkt als vertrouwelijk. De sanering en verplaatsing van het bedrijf en de ontwikkeling van woningen vindt verder plaats voor rekening en risico van de betrokken eigenaar. De gemeente is dan verder niet meer bij de realisatie van het plan betrokken. De financiële aspecten vormen geen belemmering voor de uitvoering van het plan.

6.3 Handhaving

Het college van burgemeester en wethouders is het bevoegd gezag voor de handhaving van het bestemmingsplan. De gemeente heeft een beginselplicht tot handhaving. Ook in Westvoorne is de afgelopen decennia de handhaving steeds meer tot ontwikkeling gekomen.

In het Beleidsplan toezicht en handhaving is het handhavingsbeleid voor ruimtelijke ordening en bouwen neergelegd. In het beleidsplan wordt aangegeven hoe de gemeente handhavend optreedt tegen overtredingen van de regelgeving. Het formuleren en vaststellen van het handhavingsbeleid biedt onder andere meer duidelijkheid (intern en extern), bevordert de rechtszekerheid en voorkomt rechtsongelijkheid. Het plan vormt een beleidsmatige onderlegger voor een jaarlijks op te stellen uitvoeringsprogramma. Het uitvoeringsprogramma is een schriftelijke vastlegging van alle uit te voeren handhaving activiteiten in het aankomende jaar. Bij nieuw op te stellen bestemmingsplannen wordt bovendien een handhaving paragraaf opgenomen, waarin beschreven staat hoe en met welke middelen wordt gehandhaafd.

Handhavingmiddelen

De gemeente heeft verschillende instrumenten tot haar beschikking om handhavend op te treden. Er kan onderscheid worden gemaakt tussen bestuursrechtelijke, privaatrechtelijke en strafrechtelijke instrumenten. De bestuursrechtelijke handhaving staat in het Beleidsplan toezicht en handhaving centraal. De bestuursrechtelijke instrumenten kunnen onderverdeeld worden in preventieve en repressieve instrumenten. Preventieve instrumenten hebben tot doel het begaan van overtredingen te voorkomen. Hierbij moet niet alleen worden gedacht aan het houden van goed toezicht, maar onder andere ook aan het tijdig actualiseren en handhaafbaar houden van bestemmingsplannen en het verstrekken van juiste informatie en gerichte voorlichting aan inwoners en eigenaren.

Met behulp van repressieve instrumenten kan worden opgetreden tegen geconstateerde overtredingen.

De gemeente is bijvoorbeeld bevoegd een last onder bestuursdwang of een last onder dwangsom op te

leggen om te bewerkstelligen dat de strijdige situatie wordt beëindigd.

Hoofdstuk 7 Overleg en inspraak

7.1 Inleiding

In dit hoofdstuk worden de resultaten van het gevoerde overleg beschreven.

7.2 Overleg artikel 3.1.1 Bro

In het kader van het overleg ex artikel 3.1.1 Bro is afstemming nodig met de vooroverlegpartners. De ontvangen overlegreacties zijn als bijlage bij de toelichting van dit bestemmingsplan gevoegd. In deze paragraaf staat kort een samenvatting van de reacties gegeven en is aangegeven hoe de reacties eventueel in het plan zijn verwerkt.

Vooroverlegreactie Waterschap Hollandse Delta

Het waterschap heeft een overlegreactie ingediend, die als bijlage 4 is opgenomen in dit bestemmingsplan. Uit de overlegreactie volgen een viertal opmerkingen:

  • 1. In paragraaf 5.7.1 wordt onder het kopje 'Waterbeheer en watertoets' geschreven dat uit de Digitale Watertoets 'geen aandachtspunten naar voren [kwamen] die aanleiding geven tot nader overleg met het waterschap'. Deze uitspraak is in strijd is met een eerdere uitspraak in dezelfde alinea, waarin wordt gesteld dat de initiatiefnemer in een vroeg stadium overleg dient te voeren met de waterbeheerder over een ruimtelijk planvoornemen.
  • 2. Aangegeven wordt dat de toename van verharding door het nieuwe kassencomplex aan de Ruigendijk volledig gecompenseerd dient te worden binnen het betreffende peilgebied, conform de 'Nota toetsingskaders en beleidsregels voor het watersysteem 2014'.
  • 3. Daarnaast wordt verzocht om te verduidelijken dat met de zin 'daarnaast worden in overleg met het waterschap de mogelijkheden bestudeerd om het waterbassin van het glastuinbouwbedrijf eveneens te benutten voor (extra) wateropslag' niet de vereiste 10% compensatie bedoeld wordt als gevolg van de toename van verharding.
  • 4. Op basis van de bovenstaande opmerkingen wordt geconcludeerd dat het nodig is voorafgaand aan de ter inzagelegging van het ontwerpbestemmingsplan nadere afstemming te zoeken met het waterschap.

De opmerkingen van het waterschap zijn als volgt in het bestemmingsplan verwerkt:

  • 1. Omdat uit de vooroverlegreactie blijkt dat er wel degelijk aandachtspunten zijn die aanleiding geven tot nader overleg met het waterschap, is de betreffende alinea in paragraaf 5.7.1 van de toelichting op dit punt herschreven. Aangegeven wordt nu dat er bij het tot stand komen van het plan wordt overleg gevoerd met de waterbeheerder over deze waterparagraaf.
  • 2. In het bestemmingsplan is deze compensatie-vereiste reeds opgenomen en is de verwijzing naar de aangehaalde Nota toegevoegd. Overigens wordt in het bestemmingsplan onderbouwd dat met de voorgenomen inrichting van de locatie Ruigendijk aan deze compensatievereiste wordt voldaan.
  • 3. De vereiste 10% compensatie wordt in de voorgenomen inrichting van de locatie Ruigendijk behaald zonder dat de waterbassins daarbij meegerekend worden. In de waterparagraaf wordt benadrukt hieraan op eigen terrein in kan worden voorzien. De exacte invulling van het nieuwe water wordt nog nader bepaald.
  • 4. De waterparagraaf is na het doorvoeren van de hierboven opgesomde aanpassingen opnieuw aan het waterschap voorgelegd. Dit heeft niet tot noemenswaardige veranderingen geleid.

7.3 Inspraak

Het voorontwerp bestemmingsplan heeft van 16 februari tot en met 15 maart 2017 ter inzage gelegen in het kader van een inspraakprocedure op basis van de gemeentelijke inspraakverordening. Het voorontwerp bestemmingsplan kon in deze periode in het gemeentehuis, via de gemeentelijke website en via de website RO-Online (www.ruimtelijkeplannen.nl) worden geraadpleegd. Tijdens deze periode van vier weken konden inwoners en andere belanghebbenden in de gemeente een reactie geven op het voorontwerp bestemmingsplan. De start van de inspraakprocedure is bekend gemaakt op 15 februari 2017 in het Weekblad Westvoorne en op de gemeentelijke website.

De resultaten uit de inspraakprocedure zijn opgenomen in de Nota Inspraak in bijlage 5 waarin ook de gemeentelijke beantwoording is verwerkt. De inspraakprocedure heeft niet tot aanpassing van de juridisch relevante plandelen geleidt.

7.4 Vaststellingsprocedure

Het ontwerp-bestemmingsplan heeft van 2 november t/m 13 november ter inzage gelegen. In die periode is er één zienswijze ingediend en ontvankelijk verklaard. Deze zienswijze is in het bij het raadsbesluit gevoegde document Nota zienswijzen samengevat, beantwoord en ongegrond verklaard.