direct naar inhoud van Toelichting
Plan: De Volkstuin
Status: vastgesteld
Plantype: uitwerkingsplan
IMRO-idn: NL.IMRO.0532.UWPVolkstuin-VG01

Toelichting

Hoofdstuk 1 Inleiding

1.1 Aanleiding

De gemeente werkt samen met marktpartijen aan de ontwikkeling van Waterweide. Vanwege de ligging en ontsluitingsmogelijkheden is het gebied een geschikte locatie voor de ontwikkeling van een woonwijk. Een woonwijk die past binnen de structuur van de naoorlogse, zuidelijke uitbreidingen van Stede Broec. Op 25 april 2013 werd het bestemmingsplan Stede Broec – Zuid onherroepelijk. Met dit bestemmingsplan kreeg het gebied Waterweide (onder de naam 'Buitenveld') een uit te werken woonbestemming. Dit betekent dat, voordat een omgevingsvergunning voor het bouwen kan worden verleend, eerst een uitwerkingsplan door het college van burgemeester en wethouders moet worden vastgesteld. Op 17 juli 2018 werd het uitwerkingsplan Waterweide vastgesteld. De locatie 'De Volkstuin' was niet meegenomen in uitwerkingsplan Waterweide, omdat de gemeente Stede Broec de aanpak en transformatie zorgvuldig wilde invullen. Dit door een afzonderlijk uitwerkingsplan met stedenbouwkundig plan vast te stellen. Met het voorliggende uitwerkingsplan wordt het gebied De Volkstuin uitgewerkt en wordt er een planologisch regime vastgesteld op basis waarvan omgevingsvergunningen voor het bouwen kunnen worden verleend. De omvang van voorliggend plangebied is circa 1,3 hectare. Per hectare zijn er maximaal 25 woningen toegestaan, wat betekent dat er circa 32 woningen kunnen worden gebouwd. De voorliggende locatie wordt in de bestaande situatie aangeduid als 'Kweeklust'. In voorliggend uitwerkingsplan wordt de locatie aangeduid als De Volkstuin.

1.2 Ligging en begrenzing plangebied

Plangebied De Volkstuin is gelegen aan de zuidwest zijde van Grootebroek. Aan de westzijde van het plangebied ligt het pad van Amiëns en de nieuwbouwlocatie Waterweide. Aan de oostzijde grenst het plangebied aan de buurt Kloosterhof. De navolgende afbeelding toont in een rood bolletjeskader het plangebied.

afbeelding "i_NL.IMRO.0532.UWPVolkstuin-VG01_0001.png"

Figuur 1.1 - Ligging en begrenzing plangebied

1.3 Vigerend bestemmingsplan

Voorliggend uitwerkingsplan betreft een uitwerking van het bestemmingplan 'Stede Broec-Zuid'. Dit bestemmingsplan is vastgesteld op 28 februari 2013. Na inwerkingtreding maakt het uitwerkingsplan onderdeel uit van dit zogenaamde moederplan. Onderstaand figuur geeft de ligging van het plangebied ten opzichte van het vigerende bestemmingsplan weer.

afbeelding "i_NL.IMRO.0532.UWPVolkstuin-VG01_0002.png"

Figuur 1.2 - Ligging en begrenzing plangebied binnen het bestemmingsplan Stede Broec-Zuid

Het plangebied van voorliggend uitwerkingsplan is binnen het bestemmingsplan Stede Broec-Zuid bestemd als enkelbestemming 'Wonen – Uit te werken'. Binnen deze bestemming geldt voor een groot deel tevens de functieaanduiding 'volkstuin'. Daarnaast is het gehele plangebied aangewezen met de dubbelbestemming 'Waarde – Archeologie'.

Wonen - uit te werken (artikel 15)

De bestemming Wonen - uit te werken geeft aan dat de gronden zijn bestemd voor:

  • a. woningen al dan niet met ruimte voor een aan-huis-verbonden beroep of een aan-huis-verbonden bedrijf;
  • b. bijbehorende bouwwerken;

met daaraan ondergeschikt:

  • c. volkstuinen, ter plaatse van de aanduiding 'volkstuin';
  • d. tuinen en erven;
  • e. water;
  • f. groenvoorzieningen;
  • g. parkeervoorzieningen;
  • h. nutsvoorzieningen;

met de daarbij behorende:

  • i. bouwwerken, geen gebouwen zijnde.

In de bestemming 'Wonen – Uit te werken' is vastgelegd dat burgemeester en wethouders de bestemming kunnen uitwerken met inachtneming van de volgende regels (artikellid 15.2.1):

  • a. er mogen maximaal 25 woningen per hectare worden gerealiseerd;
  • b. er mogen zowel woningen in gestapelde vorm als woningen in niet-gestapelde vorm gerealiseerd worden;
  • c. er dient sprake te zijn van een goede ruimtelijke en stedenbouwkundige inpassing;

en met als voorwaarde dat het uitwerkingsplan vergezeld gaat van (artikellid 15.2.2):

  • a. een analyse van de dan aanwezige ruimtelijke situatie binnen de gemeente, waarvan een nadere afweging van de onderhavige bouwlocatie ten opzichte van andere dan in de gemeente aanwezige bouwlocaties onderdeel zal uitmaken;
  • b. een onderbouwing van zowel de kwantitatieve als de kwalitatieve noodzaak van de ontwikkeling van de onderhavige bouwlocatie binnen de kaders van de dan geldende provinciale woningtaakstelling en het dan geldend provinciaal beleid;

waarbij het uitwerkingsplan qua ruimtelijke structuur, ruimtelijke elementen en milieuhygiënische aspecten voldoet aan de voorwaarden zoals geformuleerd in de toelichting van het bestemmingsplan Stede Broec – Zuid in hoofdstuk 5 bij uitgangspunt 9 (artikellid 15.2.4).

In artikellid 15.2.3 zijn bouwregels gegeven voor bouwwerken die na uitwerking kunnen worden gebouwd.

Waarde - Archeologie (artikel 17)

De dubbelbestemming Waarde - Archeologie bepaalt dat voor bouwwerken met een oppervlakte groter dan 1.000 m² en dieper dan 0,40 m onder het maaiveld, alvorens een omgevingsvergunning voor het bouwen wordt verleend een archeologisch rapport dient te worden overlegd waaruit blijkt of archeologische waarden worden verstoord.

Toets aan het bestemmingsplan

Om een uitwerkingsplan te kunnen vaststellen is het van belang dat wordt voldaan aan de uitwerkingsregels die in het bestemmingsplan staan aangegeven. De regels die hiervoor zijn aangegeven onder het kopje Wonen - uit te werken (artikel 15) zijn de uitwerkingsregels.

In voorliggen uitwerkingsplan zijn de randvoorwaarden zoals aangegeven in 15.2.1 en 15.2.3 opgenomen in de bestemming Wonen van dit uitwerkingsplan en zijn op deze wijze juridisch geborgd. De onderbouwing van de kwantitatieve en kwalitatieve noodzaak binnen het geldend provinciaal en regionaal beleid wordt gegeven in paragraaf 3.1.2, 3.3.2 en 3.4.4. De milieuhygiënische aspecten zijn onderbouwd in hoofdstuk 4. In het stedenbouwkundig plan De Volkstuin, dat is opgesteld door ECHO gaat in op de ruimtelijke structuur en - elementen van het uitwerkingsgebied. Geconcludeerd wordt dat voorliggend uitwerkingsplan voldoet aan de uitwerkingsregels uit artikel 15 van bestemmingsplan Stede Broec-Zuid.

De dubbelbestemming Waarde - Archeologie is overgenomen in voorliggend uitwerkingsplan. Het plangebied is groter dan 1.000 m2. Om de uitvoerbaarheid van het uitwerkingsplan aan te tonen is een archeologisch bureauonderzoek uitgevoerd. Hiervoor wordt verwezen naar paragraaf 4.6.

1.4 Leeswijzer

Hoofdstuk 2 geeft een beschrijving van de huidige situatie. Vervolgens wordt in hoofdstuk 3 het relevante beleidskader behandeld. In hoofdstuk 4 wordt ingegaan op de relevante milieu- en omgevingsaspecten. Hoofdstuk 5 gaat in op de planuitgangspunten van de ontwikkeling van Waterweide en hoofdstuk 6 geeft een toelichting op de planregels en de verbeelding. Tot slot wordt in hoofdstuk 7 de uitvoerbaarheid van het uitwerkingsplan behandeld.

Hoofdstuk 2 Huidige situatie

2.1 Oorsprong gebied

Voor de jaren '70 had de ruilverkaveling nog niet plaatsgevonden. In die tijd was Stede Broec een grote polder met daarbinnen allerlei verschillende kavels en eilanden: 'Het Grootslag'. De waterranden, kades en gebouwen waren ingericht op het vervoer via water. Zo waren er schuren waar de schuiten werden aangelegd, veilinghuizen waar men in kon varen om goederen te veilen en allerlei (ontmoetings)plekken gericht op het water.

afbeelding "i_NL.IMRO.0532.UWPVolkstuin-VG01_0003.png"

Figuur 2.1

Rond de jaren '70 wordt ruilverkaveling noodzakelijk door ontwikkelingen in de land- en tuinbouw met als gevolg dat aaneengesloten stukken land ontstaan. Dit is ook het moment dat in Grootebroek en Bovenkarspel een begin wordt gemaakt met het bouwen van grotere aantallen woningen ten zuiden van de spoorlijn Amsterdam - Hoorn - Enkhuizen. Er ontstonden grote uitbreidingsplannen zoals voor Plan Zuid en Princenhof. Aansluitend op Princenhof volgden de buurten Oostersluis, Kloosterhof en Monnikenveld die samen de wijk Grootebroek-Zuid vormen.

2.2 Ruimtelijke structuur

Het plangebied De Volkstuin bevindt zich aan de zuidwestzijde van het dorp Grootebroek en is op dit moment een volkstuinencomplex. De locatie vormt een logische inbreiding tussen de buurten Waterweide en Kloosterhof.

Verkeersstructuur

Ten zuiden van het plangebied ligt de N307. Deze weg zorgt voor een goede doorstroming tussen Alkmaar en Zwolle. Langs de N307 ligt een groene bufferzone. Deze zone werkt geluidswerend en is ingericht met verschillende recreatieve voorzieningen.

De ontsluiting vanuit het plangebied geschied via Waterweide. Via de Raadhuislaan is zuidelijk de N307 te bereiken. De Raadhuislaan vormt een entree van de gemeente Stede Broec. Via de Raadhuislaan en de Stede Broecweg worden het centrum of aanliggende buurten ontsloten, zoals het Kloosterhof en Waterweide.

Direct aansluitend aan het plangebied ligt ten westen, noorden en zuiden het Pad van Amiëns: een fietspad dat de aanliggende buurten verbindt met het centrum van Grootebroek en de dorpen in de regio. Ten westen ligt de nieuwbouwlocatie Waterweide, waarop dit plan zich ontsluit (buurtontsluitingsweg Waterweide).

2.3 Functionele structuur

Het plangebied grenst aan de oostzijde aan de bestaande woonbuurt Kloosterhof. Het omringende gebied is vooral een woongebied met een tweetal scholen: op 150 meter ten noorden het Martinicollege en op circa 175 ten oosten OBS 't Vierspan. Aangrenzend aan het gebied liggen geen noemenswaardige functies.

In het plangebied bevindt zich nu nog het volkstuinencomplex van amateurvereniging 'Kweeklust'. Om dit volkstuinencomplex te transformeren wordt in overleg met de vereniging gezocht naar een locatie om de functie naar te verplaatsen. De gemeente Stede Broec had dit plangebied bewust buiten het uitwerkingsplan Waterweide gelaten om een de aanpak van de transformatie zorgvuldig te kunnen vormgeven.

Hoofdstuk 3 Beleidskader

3.1 Rijksbeleid

3.1.1 Nationale Omgevingsvisie (NOVI)

De Nationale Omgevingsvisie (NOVI) biedt een duurzaam perspectief voor de Nederlandse leefomgeving. Hiermee kan worden ingespeeld op de grote uitdagingen die voor ons liggen. De NOVI biedt een kader, geeft richting en maakt keuzes waar dat kan. Tegelijkertijd is er ruimte voor regionaal maatwerk en gebiedsgerichte uitwerking. Omdat de verantwoordelijkheid voor het omgevingsbeleid voor een groot deel bij provincies, gemeenten en waterschappen ligt, kunnen inhoudelijke keuzes in veel gevallen het beste regionaal worden gemaakt. Met de NOVI zet de Rijksoverheid een proces in gang waarmee keuzes voor onze leefomgeving sneller en beter gemaakt kunnen worden.

Aan de hand van een toekomstperspectief op 2050, brengt de NOVI de langetermijnvisie in beeld. Het Rijk wil sturen op- en richting geven aan- nationale belangen. Die komen samen in vier prioriteiten:

  • Ruimte voor klimaatadaptatie en energietransitie;
  • Duurzaam economisch groeipotentieel;
  • Sterke en gezonde steden en regio's;
  • Toekomstbestendige ontwikkeling van het landelijk gebied.

De druk op de fysieke leefomgeving in Nederland is zo groot, dat belangen soms botsen. Het streven vanuit de NOVI is combinaties te maken en win-win situaties te creëren. Soms zijn er scherpe keuzes nodig en moeten belangen worden afgewogen. Hiertoe gebruikt de NOVI drie afwegingsprincipes:

  • Combinaties van functies gaan voor enkelvoudige functies: in het verleden is scheiding van functies vaak te rigide gehanteerd. Met de NOVI wordt gezocht naar maximale combinatiemogelijkheden tussen functies, gericht op een efficiënt en zorgvuldig gebruik van de ruimte;
  • Kenmerken en identiteit van een gebied staan centraal: wat de optimale balans is tussen bescherming en ontwikkeling, tussen concurrentiekracht en leefbaarheid, verschilt van gebied tot gebied. Sommige opgaven en belangen wegen in het een gebied zwaarder dan in het andere;
  • Afwentelen wordt voorkomen: het is van belang dat de leefomgeving zoveel mogelijk voorziet in mogelijkheden en behoeften van de huidige generatie van inwoners zonder dat dit ten koste gaat van die van toekomstige generaties.

Betekenis voor het uitwerkingsplan

Het plangebied maakt geen onderdeel uit van een NOVI-gebied. De ontwikkeling voorziet in de duurzame stedelijke ontwikkeling van De Volkstuin dat, naast een sterk en gezonde stad en regio, ervoor zorgt dat het landelijk gebied wordt ontlast van verstedelijking. Dit creëert ruimte in het landelijk gebied voor andere toekomst bestendige ontwikkelingen. De ontwikkeling past daarmee binnen de prioriteiten van de NOVI betreffende sterke en gezonde steden en regio's. Het is niet in strijd met de doelstellingen uit het NOVI.

3.1.2 Besluit algemene regels ruimtelijke ordening

De juridische borging van de nationale belangen vindt plaats in het Besluit algemene regels ruimtelijke ordening (Barro). Het Barro is gericht op doorwerking van de nationale belangen in gemeentelijke bestemmingsplannen. Een aantal regelingen is 'getrapt' vastgelegd. Dit wil zeggen dat de provincies, gemeenten en hoogheemraadschappen verplicht zijn dit beleid nader uit te werken. In het Barro wordt een aantal projecten die van nationaal belang zijn genoemd en met behulp van digitale kaartbestanden exact ingekaderd. Het gaat om de volgende projecten: Rijksvaarwegen, Project Mainportontwikkeling Rotterdam, Kustfundament, Grote rivieren, Waddenzee en waddengebied, Defensie, Ecologische hoofdstructuur, erfgoederen van uitzonderlijke universele waarde, hoofdwegen en hoofdspoorwegen, elektriciteitsvoorziening, buisleidingen van nationaal belang voor vervoer van gevaarlijke stoffen, primaire waterkeringen buiten het kustfundament en IJsselmeergebied (uitbreidingsruimte). Aan elk soort project wordt een set regels gekoppeld waaraan bestemmingsplannen moeten voldoen.

Het doel is dat belemmeringen die de realisatie van de genoemde projecten zouden kunnen frustreren of vertragen door het Barro op voorhand onmogelijk worden gemaakt. Het Barro brengt ook met zich mee dat gemeenten die een bestemmingsplan opstellen dat raakt aan een belang van één van de projecten in het Barro, nauwkeurig de regelgeving van het Barro moeten controleren. Het Barro vormt daarmee een dwingende checklist bij de opstelling van ruimtelijke plannen.

Betekenis voor het uitwerkingsplan

Onderhavige ontwikkeling raakt de aangewezen nationale belangen niet. De beleidsruimte van de gemeente bij het invullen van deze ontwikkeling wordt derhalve niet beperkt. De ontwikkeling voldoet aan de regels uit het Barro.

3.1.3 Ladder voor duurzame verstedelijking

De 'ladder voor duurzame verstedelijking’ is in de Structuurvisie Infrastructuur en Ruimte (SVIR) geïntroduceerd en op 1 oktober 2012 vastgelegd als procesvereiste in het Besluit ruimtelijke ordening (Bro). Op 1 juli 2017 is een wijziging van het Bro in werking getreden, waarbij de Ladder voor duurzame verstedelijking is aangepast. Het Bro bepaalt dat voor onder meer ruimtelijke plannen die nieuwe woningen mogelijk maken, de behoefte moet worden beschreven. Doel van de ladder voor duurzame verstedelijking is een goede ruimtelijke ordening in de vorm van een optimale benutting van de ruimte in stedelijke gebieden.

De (gewijzigde) Ladder is in artikel 3.1.6 lid 2 Bro vastgelegd en luidt als volgt: De toelichting bij een bestemmingsplan dat een nieuwe stedelijke ontwikkeling mogelijk maakt, bevat een beschrijving van de behoefte aan die ontwikkeling, en, indien het bestemmingsplan die ontwikkeling mogelijk maakt buiten het bestaand stedelijk gebied, een motivering waarom niet binnen het bestaand stedelijk gebied in die behoefte kan worden voorzien.

Het doel dat hiermee wordt beoogd is het stimuleren van zuinig en zorgvuldig ruimtegebruik en het bewerkstelligen van een goede ruimtelijke ordening, onder meer door een optimale benutting van de ruimte in stedelijke gebieden, het bevorderen van vraaggerichte programmering en het voorkomen van overprogrammering. Met de ladder wordt een zorgvuldige afweging en transparante besluitvorming bij alle ruimtelijke besluiten nagestreefd. Een nieuwe stedelijke ontwikkeling moet daarom altijd worden afgewogen en gemotiveerd. Daarbij moet een beschrijving worden gegeven van de behoefte aan de betreffende ontwikkeling. Indien de ontwikkeling buiten bestaand stedelijk gebied mogelijk wordt gemaakt, dient te worden gemotiveerd waarom de ontwikkeling niet binnen bestaand stedelijk gebied wordt voorzien.

Wat onder 'stedelijke ontwikkeling' en 'bestaand stedelijk gebied' wordt verstaan is in het Bro opgenomen en verder uitgekristalliseerd in jurisprudentie. Een stedelijke ontwikkeling is volgens het Bro 'een ruimtelijke ontwikkeling van een bedrijventerrein of zeehaventerrein, of van kantoren, detailhandel, woningbouwlocaties of andere stedelijke voorzieningen'.

Onder 'bestaand stedelijk gebied' verstaat het Bro een 'bestaand stedenbouwkundig samenstel van bebouwing ten behoeve van wonen, dienstverlening, bedrijvigheid, detailhandel of horeca, alsmede de daarbij behorende openbare of sociaal culturele voorzieningen, stedelijk groen en infrastructuur.'

Artikel 3.1.6 van het Bro:

  • 1. lid 2: de toelichting bij een bestemmingsplan dat een nieuwe stedelijke ontwikkeling mogelijk maakt, bevat een beschrijving van de behoefte aan die ontwikkeling, en, indien het bestemmingsplan die ontwikkeling mogelijk maakt buiten het bestaand stedelijk gebied, een motivering waarom niet binnen het bestaand stedelijk gebied in die behoefte kan worden voorzien.
  • 2. Lid 3: indien in een bestemmingsplan als bedoeld in het tweede lid toepassing is gegeven aan artikel 3.6, eerste lid, onder a of b, van de wet kan bij dat bestemmingsplan worden bepaald dat de beschrijving van de behoefte aan een nieuwe stedelijke ontwikkeling en een motivering als bedoeld in het tweede lid eerst wordt opgenomen in de toelichting bij het wijzigings- of het uitwerkingsplan als bedoeld in dat artikel.
  • 3. Lid 4: een onderzoek naar de behoefte als bedoeld in het tweede lid, heeft, in het geval dat het bestemmingsplan als bedoeld in het tweede lid, ziet op de vestiging van een dienst als bedoeld in artikel 1 van de Dienstenwet en dit onderzoek betrekking heeft op de economische behoefte, de marktvraag of de beoordeling van de mogelijke actuele economische gevolgen van die vestiging, slechts tot doel na te gaan of de vestiging van een dienst in overeenstemming is met een goede ruimtelijke ordening.

Betekenis voor het uitwerkingsplan

Om te bepalen of sprake is van een Ladderplichtige ontwikkeling is allereerst van belang of sprake is van een nieuwe stedelijke ontwikkeling. Het plangebied valt onder het bestemmingsplan 'Stede Broec - Zuid 2013'. Op het plangebied rust een nader uit te werken woonbestemming. Deze uitwerkingsregels bieden ruimte aan maximaal 25 woningen per hectare, circa 32 in totaal. Strikt genomen voorziet deze uitwerkingsplicht, mits conserverend uitgewerkt (niet meer dan 32 eenheden), niet in een nieuwe stedelijke ontwikkeling en is daarmee niet Ladderplichtig.

Uit jurisprudentie blijkt dat wanneer de ladder niet van toepassing is, gemotiveerd zal moeten worden dat de ontwikkeling voldoet aan een goede ruimtelijke ordening en uitvoerbaar is1 . Onderdeel hiervan is dat er sprake moet zijn van een behoefte. Wel dient sprake te zijn van een goede ruimtelijke ordening en in dat kader dient nut en noodzaak te worden onderbouwd. Daarom wordt ook ten aanzien van dit plan zo dicht mogelijk bij de principes van de Ladder gebleven.

Behoefte

Woonakkoord Westfriesland

In 2020 hebben de provincie Noord-Holland en regio Westfriesland het Woonakkoord West-Friesland (2020) vastgelegd dat het RAP vervangt. Het woonakkoord vloeit voort uit de regionale woonvisie (zie paragraaf 3.3.2). Het woonakkoord stelt dat de indicatieve woningbehoefte op basis van de provinciale bevolkingsprognose uitkomt op 7.150 woningen voor de periode 2019-2030. De regio gaat de komende 5 jaar jaarlijks minimaal 900 woningen opleveren. De regio heeft 8.000 woningen in plancapaciteit tot 2030. Hiervan zijn 4.300 woningen onderdeel van harde plancapaciteit. Daarnaast wil de regio een diversiteit in haar woningvoorraad vergroten. Dit door woonvormen te ontwikkelen die aansluiten bij de vragen van huishouden met een midden en hoger inkomen buiten de regio en van jongeren en studenten.

Met het woonakkoord en tekort aan harde plancapaciteit, biedt dit plan een toevoeging aan de harde plancapaciteit tot 2030

afbeelding "i_NL.IMRO.0532.UWPVolkstuin-VG01_0004.png"

Figuur 3.2 plancapaciteit woonakkoord 2030

Monitor Woningbouw 2020

De Monitor Woningbouw 2020 bevat cijfers over de ontwikkeling van de woningvoorraad en
huishoudens, op basis van gegevens van het Centraal Bureau voor de Statistiek (CBS). Daarnaast is de ontwikkeling van de plancapaciteit opgenomen. De gegevens over plancapaciteit zijn gebaseerd op de Monitor Plancapaciteit 2020. In deze (jaarlijkse) monitor delen alle gemeenten in Noord-Holland informatie over hun (potentiële) woningbouwlocaties. De cijfers op gemeenteniveau zijn te vinden op www.plancapaciteit.nl. De plancapaciteit is ook afgezet tegen de woningbehoefte. De cijfers voor woningbehoefte komen uit de Bevolkingsprognose Noord-Holland 2019-2040.

Voor de regio Westfriesland is voldoende plancapaciteit aanwezig om te voldoen aan de woningbehoefte tot 2040 (ook wanneer de inhaalvraag wordt opgeteld bij de groei van de woningbehoefte). De groei van woningbehoefte zit voornamelijk voor/tot 2030. Het is dus wel van belang dat een deel van de zachte plannen op korte termijn hard wordt.

Het voorliggende uitwerkingsplan is onderdeel van de harde plancapaciteit.

Afwegingskader Wonen Westfriesland 2021

In het hiervoor beschreven woonakkoord is afgesproken om het regionale afwegingskader wonen aan te passen aan de afspraken uit dit akkoord. Het afwegingskader is de basis voor de kwalitatieve en kwantitatieve woningbouwprogrammering. Alle uit te werken harde en zachte woningbouwplannen onderbouwen, beoordelen en stemmen de gemeenten regionaal af aan de hand van de criteria in dit afwegingskader.

Uitgangspunt is dat woningbouw primair binnenstedelijk plaatsvindt, tenzij dit om uiteenlopende redenen niet mogelijk is. De regio geeft per plan aan of het plan in stedelijk of in landelijk gebied gelegen is. Wanneer een plan in het landelijk gebied gelegen is, moet aangetoond worden dat alternatieven binnenstedelijk (zoals inbreidings- of transformatielocaties) geen passend alternatief zijn. Voorliggend initiatief is gelegen binnen bestaand stedelijk gebied, zie hiervoor ook paragraaf 3.2.2.

De regio realiseert zich dat niet elk plan op alle criteria positief kan scoren. Wel wil de regio een kwaliteitsimpuls geven en spreken de gemeenten daarom met elkaar de inspanningsverplichting af om minimaal 4 van de 8 ambities te realiseren. De volgende criteria zijn opgenomen in het afwegingskader:

  • 1. Het plan levert een positieve bijdrage aan betaalbaar wonen.
  • 2. Het plan voorziet in woningen in de vrije huursector voor middeninkomens.
  • 3. Het plan levert een bijdrage aan het langer zelfstandig wonen.
  • 4. Het plan is circulair en energieneutraal.
  • 5. Het plan draagt bij aan klimaatadaptatie, een gezonde leefomgeving en verbetering van de natuur en het landschap.
  • 6. Nieuwe woningbouw wordt zoveel mogelijk gerealiseerd in de nabijheid van een OV-knooppunt.
  • 7. Het plan draagt bij aan de versnelling van de woningbouwproductie in Westfriesland.
  • 8. Het plan draagt bij aan de aantrekkingskracht van de regio door het bieden van een aantrekkelijke onderscheidende woonomgeving.

Het woonprogramma dat is opgenomen in het stedenbouwkundig plan De Volkstuin is als volgt:

  • 17 sociale rijwoningen
  • 6 twee-onder-een-kapwoningen
  • 4 patiowoningen
  • 3 vrijstaande woningen

Met de 17 sociale rijwoningen wordt een positieve bijdrage geleverd aan betaalbaar wonen. In het naastgelegen Waterweide worden veel minder sociale woningen gerealiseerd, waardoor hier sprake is van een zekere compensatie. Door de realisatie van levensloopbestendige patiowoningen wordt tevens een bijdrage geleverd aan het langer zelfstandig wonen. Klimaatadaptatie is een belangrijk onderdeel van de planontwikkeling. Te denken valt aan de toepassing van waterdoorlatende halfverharding, natuurlijke afwatering vanaf de parkeerhoven naar watergangen en oriëntatie van de woningen zoveel mogelijk op het zuiden in combinatie met PV-panelen. Ook is sprake van een natuurlijke inrichting door natuurinclusief bouwen: nestgelegenheden voor zwaluwen en vleermuizen en toepassing van bloeiende bomen, aantrekkelijk voor vogels en bijen en hommels. Het treinstation Bovenkarspel-Grootebroek is gelegen op circa 1,5 kilometer afstand. Het woonprogramma is als aantrekkelijk en onderscheidend te kwalificeren. Het betreft een mix ten behoeve van verschillende doelgroepen in een gebied waarin wordt ontworpen met aandacht voor landschap en natuur. Het uitwerkingsplan draagt bij aan een versnelling van de woningbouwproductie.

Conclusie

Het realiseren van maximaal 32 grondgebonden woningen binnen het bestaand stedelijk gebied is op basis van de Ladder voor duurzame verstedelijking goed gemotiveerd. De ontwikkeling is passend binnen de regionale en lokale behoefte, zowel kwantitatief als kwalitatief. De ontwikkeling is hiermee in overeenstemming met de ladder. Bovendien voldoet het aan meer dan de helft van de afwegingscriteria uit het Afwegingskader Wonen Westfriesland 2021. Daarnaast is de ontwikkeling regionaal afgestemd conform het Woonakkoord en is opgenomen in de Monitor Plancapaciteit van de Provincie.

3.2 Provinciaal beleid

3.2.1 Omgevingsvisie NH2050

Op 19 november 2018 heeft de provincie Noord-Holland de “Omgevingsvisie NH2050 – Balans tussen economische groei en leefbaarheid” vastgesteld. Deze Omgevingsvisie vervangt de Structuurvisie Noord-Holland 2014. De provincie wil balans tussen economische groei en leefbaarheid. Dit betekent dat in heel Noord-Holland een basiskwaliteit van de leefomgeving wordt gegarandeerd. De provincie ontwikkelt zoveel mogelijk natuurinclusief en met behoud van (karakteristieke) landschappen, clustert ruimtelijke economische ontwikkelingen rond infrastructuur en houdt rekening met de ondergrond.


Ambities

Noord-Holland heeft een relatief hoog welvaarts- en welzijnsniveau. Om deze ook voor de toekomst vast te kunnen houden, richt de provincie zich op een goede balans tussen economische groei en leefbaarheid. Zodanig dat bij veranderingen in het gebruik van de fysieke leefomgeving de doelen voor een gezonde en veilige leefomgeving overeind blijven. Dit is de hoofdambitie. Als subambities zijn er een aantal opgenomen:

  • I. Leefomgeving
    • a. Klimaatverandering: Noord Holland moet voorbereid zijn op klimaatverandering en waterrobuust worden ingericht.
    • b. Gezondheid en veiligheid: De ambitie is het behouden en waar mogelijk verbeteren van de kwaliteit van bodem-, water- en lucht, externe veiligheid, geluidbelasting en (ontwikkelingen in) de ondergrond. Gestreefd wordt naar een gezonde leefomgeving, wat inhoudt: een woonwerkomgeving waar je zo min mogelijk wordt blootgesteld aan ongezonde stoffen en veiligheidsrisico’s en die een gezonde levensstijl ondersteunt.
    • c. Biodiversiteit en natuur: De ambitie is om de biodiversiteit in Noord-Holland te vergroten, ook omdat daarmee andere ambities/doelen kunnen worden bereikt. Dit betekent dat ontwikkelingen zoveel mogelijk natuurinclusief zullen zijn.
  • II. Gebruik van de leefomgeving
    • a. Economische transitie: De ambitie is een duurzame economie, met innovatie als belangrijke motor. Economische ontwikkelingen dienen qua aard, omvang en vorm aan te sluiten bij de regio of plek.
    • b. Wonen en werken: De ambitie is dat vraag en aanbod van woon- en werklocaties (kwantitatief en kwalitatief) beter met elkaar in overeenstemming zijn.
    • c. Mobiliteit: De ambitie is dat de inwoners en bedrijven van Noord-Holland zichzelf of producten effectief, veilig en efficiënt kunnen verplaatsen, waarbij de negatieve gevolgen van de mobiliteit op klimaat, gezondheid, natuur en landschap steeds nadrukkelijk meegewogen worden. Clustering van functies is een belangrijk duurzaamheidsprincipe.
    • d. Landschap: De ambitie is het benoemen, behouden en versterken van de unieke kwaliteiten van de diverse landschappen en de cultuurhistorie.
  • III. Energietransitie

De ambitie is dat Noord-Holland als samenleving in 2050 volledig klimaatneutraal en gebaseerd is op (een maximale inzet op opwekking van) hernieuwbare energie.


Sturingsfilosofie

In de aanpak om de ambities waar te maken geldt het principe 'lokaal wat kan, regionaal wat moet' als sturingsfilosofie. Daarbij staat de opgave altijd centraal. Deze bepaalt het schaalniveau, de samenstelling van samenwerkende partijen en de tijdspanne. Vanuit een gedeelde visie op de (bestaande en toekomstige) kwaliteiten van een gebied.

Vijf bewegingen

Vanuit de ambities zijn een vijftal bewegingen opgesteld die laten zien hoe Noord-Holland wil omgaan met de opgaven die op onze samenleving afkomen en die de provincie wil faciliteren.

  • a. Dynamisch schiereiland: Benutten van de unieke ligging, waarbij de kustverdediging voorop staat, waar toeristische- en recreatieve kansen worden benut en waar natuurwaarden worden toegevoegd.
  • b. Metropool in ontwikkeling: De Metropoolregio Amsterdam gaat steeds meer als één stad functioneren en de reikwijdte wordt groter.
  • c. Sterke kernen, sterke regio's: deze beweging gaat over de ontwikkeling van centrumgemeenten die daarmee het voorzieningenniveau in de gehele regio waarin ze liggen vitaal houden en de kernen hun herkenbare identiteit behouden.
  • d. Nieuwe energie: het benutten van de economische kansen van de energietransitie en circulaire economie.
  • e. Natuurlijk- en vitaal landelijke omgeving: het ontwikkelen van natuurwaarden in combinatie met het versterken van de (duurzame) agrifoodsector.


Betekenis voor het uitwerkingsplan

De voorliggende ontwikkeling vindt vooral aansluiting bij de beweging 'sterke kernen, sterke regio's'. Deze beweging beoogt handvatten te geven om de werkgelegenheid, het voorzieningenniveau en de bereikbaarheid op peil te houden. En om dorpen, steden en regio’s de krachtige identiteit die ze zo kenmerkt te laten behouden of te ontwikkelen. Het is zaak dat regio’s vitaal blijven en zich verder kunnen ontwikkelen. Hiertoe maken zij kwalitatieve en kwantitatieve afspraken over woningbouw. Als kritische succesfactor wordt aangehaald gebiedsgericht maatwerk voor ontwikkelingen in de regio. De woningbouwontwikkeling die met voorliggend uitwerkingsplan wordt mogelijk gemaakt is regionaal afgestemd en voldoet daarom aan de beweging die vanuit de Omgevingsvisie voor ogen wordt gehouden met ontwikkelingen in de kleinere kernen. Daarnaast wordt er op basis van het stedenbouwkundig plan uitwerking gegeven aan de ambities die bestaan op het gebied van klimaatverandering en biodiversiteit en natuur.

3.2.2 Omgevingsverordening Noord-Holland NH 2020

Op 22 oktober 2020 is de Omgevingsverordening NH2020 vastgesteld door Provinciale Staten. In de Omgevingsverordening NH2020 zijn regels voor de fysieke leefomgeving samengevoegd op het gebied van natuur, milieu, mobiliteit, erfgoed, ruimte en water.

De provincie Noord-Holland wil met de omgevingsverordening ontwikkelingen, zoals woningbouw en de energietransitie, mogelijk maken en zet in op het beschermen van mooie en bijzondere gebieden in Noord-Holland. Hierbij wordt gezocht naar een evenwichtige balans tussen economische groei en leefbaarheid. De ambities voor Noord-Holland, zoals die zijn Omgevingsvisie NH2050, zijn verankerd in de nieuwe Omgevingsverordening NH2020.

Zo zijn er in de Omgevingsverordening NH2020 onder andere instructieregels opgenomen voor het realiseren van stedelijke functies, zoals die met voorliggend uitwerkingsplan mogelijk worden gemaakt. Deze regels zijn bijvoorbeeld gericht op het actief stimuleren van de regionale afstemming. Regionale afstemming staat centraal bij het realiseren van stedelijke functies. De gemeenten in de regio moeten het gezamenlijk eens worden over de nieuwe stedelijke ontwikkelingen. Duurzaam ruimtegebruik en het voorkomen van overprogrammering zijn hierbij belangrijke aspecten. Een ruimtelijk plan kan uitsluitend voorzien in een nieuwe stedelijke ontwikkeling als de ontwikkeling in overeenstemming is met de binnen de regio gemaakte schriftelijke afspraken. Dit vormt geen belemmering voor de uitvoerbaarheid van het uitwerkingsplan. De ontwikkeling van het beoogde aantal woningen is namelijk in lijn met de gemaakte afspraken, er is geen sprake van overprogrammering.

Afdeling 6.1 van de Omgevingsverordening gaat over stedelijke functies. Bepaald is dat nieuwe stedelijke ontwikkelingen in overeenstemming dienen te zijn met de binnen de regio gemaakte afspraken. Zoals in paragraaf 3.1.3 is aangegeven is in voorliggend geval geen sprake van een nieuwe stedelijke ontwikkeling. Op de provinciale Monitor Plancapaciteit is de voorliggende ontwikkeling opgenomen als kaartnummer 14 (Kweeklust). Er wordt uitgegaan van 35 woningen in de monitor. Van woningen die zijn opgenomen in de Monitor Plancapaciteit mag worden uitgegaan dat deze regionaal zijn afgestemd.

Betekenis voor het uitwerkingsplan

Voorliggend plan is opgesteld met inachtneming van de instructieregels uit de Omgevingsverordening NH2020. Vanuit deze instructieregels zijn er geen belemmeringen voor de uitvoerbaarheid van voorliggend plan. Het plan maakt een ontwikkeling mogelijk welke voldoet aan de afspraken die in regionaal verband zijn gemaakt.

3.2.3 Woonagenda 2020 - 2025

De Woonagenda is de uitvoeringsagenda van het woonbeleid van de provincie Noord-Holland voor de komende vijf jaar. De Woonagenda volgt uit en past binnen de randvoorwaarden van het provinciaal ruimtelijk beleid, zoals beschreven in de provinciale Omgevingsvisie NH2050 en het coalitieakkoord ‘Duurzaam doorpakken’. Vanuit het provinciaal én regionaal belang dat de woningmarkt goed functioneert en het wonen optimaal bijdraagt aan het versterken van de kwaliteiten van Noord-Holland, maakt deze agenda de inzet en bijdrage van de provincie daaraan concreet.

De provincie wil ruimte bieden voor woningbouw, uitgaande van zorgvuldig ruimtegebruik. De speerpunten richten zich op een woning voor iedereen:

  • a. Adaptief en vraaggestuurd programmeren.
  • b. Productie op peil: aanjagen woningbouwproductie.
  • c. Kwalitatief, betaalbaar en divers woningaanbod.

En tevens richt het zich op gezond, duurzaam en toekomstbestendig wonen in een aantrekkelijke provincie.

Richtinggevende principes zijn o.a.:

  • 1. De vraag is leidend. De regionale programmeringen worden bepaald op basis van gegronde onderbouwing van vraag, aanbod en het kwalitatieve en kwantitatieve verschil daartussen voor nu en in de toekomst.
  • 2. Er zijn snel meer woningen nodig. De provincie zet in op het versnellen van de woningbouwproductie en helpt gemeenten hierbij door voortzetting van het Uitvoeringsprogramma Binnenstedelijk Bouwen en Versnellen Woningbouw.
  • 3. De woningmarkt heeft structureel meer flexibiliteit en betaalbare opties voor alle verschillende doelgroepen van woningzoekenden nodig.

Betekenis voor het uitwerkingsplan

De woningen die met voorliggend plan worden mogelijk gemaakt komen tegemoet aan de grote vraag naar woningen.

3.3 Regionaal beleid

3.3.1 Regionale structuurschets 'Westfriesland een dijk van een regio' 2016

Westfriesland is een regio met veel kwaliteiten. De regio ligt prachtig aan het Markermeer /IJsselmeer, heeft een vitale, diverse agrarische sector, kent mooie steden, bestaat uit aantrekkelijke landschappen en bezit een sterke ondernemersgeest. Een regio die gunstig gelegen is in Noord-Holland ten opzichte de dynamische Amsterdamse regio en goed verbonden is. Om de regio verder te versterken is het Pact van Westfriesland opgesteld. De zeven gemeenten van Westfriesland hebben aangegeven dat ze binnen vijf jaar tot de top 10 van meest aantrekkelijke regio’s van Nederland willen horen. Om de ambitie te bereiken heeft de regio onder andere een regionale structuurschets opgesteld.

De regionale ambities zijn vertaald in zeven doelstellingen. Samen dragen ze bij aan de ambitie om tot de aantrekkelijkste regio’s in Nederland te behoren en spelen ze in op de gewenste economische, sociale- en ruimtelijke structuurversterking. Met de zeven doelstellingen wordt bijgedragen aan de ambities uit het Pact. Westfriesland:

  • 1. versterkt de leefbaarheid van (kleine) kernen;
  • 2. benut recreatieve potenties van kust en steden;
  • 3. bouwt aan een duurzame, klimaatadaptieve regio;
  • 4. zorgt voor woonruimte voor de Westfriese samenleving;
  • 5. versterkt de externe woonkwaliteit;
  • 6. biedt ruimte voor ondernemen;
  • 7. versterkt de agribusiness.

Betekenis voor het uitwerkingsplan

De realisatie van de nieuwe woonbuurt De Volkstuin die op basis van voorliggend uitwerkingsplan kan worden gerealiseerd draagt qua opzet en programma bij aan een krachtigere kern Grootebroek. Het versterkt de leefbaarheid van Grootebroek. Daarnaast sluit het aan op de waterrijke opzet van Waterweide, wat extra woonkwaliteit toevoegt aan de regio Westfriesland.

3.3.2 Woonakkoord Westfriesland

Op het Woonakkoord Westfriesland en het daarmee samenhangende Afwegingskader Wonen Westfriesland 2021 is reeds ingegaan in paragraaf 3.1.3.

3.4 Gemeentelijk beleid

3.4.1 Toekomstvisie Stede Broec

In de Toekomstvisie Stede Broec 2014-2024 wordt in de eerste plaats een ruimtelijke visie beschreven op gemeentelijk niveau, daarbij kijkend over de gemeentegrenzen. De visie gaat in op trends en bewegingen binnen de gemeente en hoe deze ruimtelijk een plaats krijgen. Keuzes die in buurgemeenten en op regionaal niveau worden gemaakt kunnen daarbij doorwerken naar de gemeente Stede Broec.

Betekenis voor het uitwerkingsplan

Ten aanzien van de ontwikkeling van De Volkstuin wordt in de visie opgemerkt dat bij nieuwe woningbouwontwikkelingen in plaats van op aanbod er op basis van vraag en identiteit gebouwd gaat worden. De eigen kernkwaliteiten moeten uitgangspunt worden in plaats van de concurrentie aan te gaan met omliggende regio's. In de toekomstvisie wordt ten aanzien van De Volkstuin dan ook de ambitie uitgesproken dat de inrichting van deze wijk niet aanbod- maar vraaggestuurd plaatsvindt zodat de juiste woningen in het juiste tempo gebouwd worden. Hier is ruimte voor duurzaam, thematisch en experimenteel bouwen.

3.4.2 Gebiedsvisie Stede Broec Zuidwest - Landschap in Beweging

Op 30 maart 2017 heeft de gemeenteraad de Gebiedsvisie Stede Broec Zuidwest vastgesteld. Deze visie vormt het ontwikkelkader waarmee initiatieven in het projectgebied ruimtelijk en programmatisch kunnen worden beoordeeld: sluiten ze aan bij de gebiedsambities en onder welke voorwaarden mag er worden ontwikkeld? Het gemeentelijke uitgangspunt is ‘ja, tenzij’: de gemeente wil ontwikkelingen graag faciliteren, mits ze bijdragen aan de vitaliteit en aansluiten bij de kwaliteiten van het gebied.

In de visie worden de volgende kansen en opgaven benoemd:

  • Kans: versterking van het karakter met het waterrijke landschap, sport en recreëren als kernwaarden. Zichtbaarheid van landschap, sport en recreëren versterken.
  • Kans: versterking van de landschappen, waarbij de lanen heldere structuurdragers zijn. De Raadhuislaan vormgeven als groene entree van Stede Broec.
  • Opgave: afbakening van de dorpsrand: waar eindigt het dorp en begint het agrarisch gebied?

Betekenis voor het uitwerkingsplan

Het plangebied De Volkstuin valt in de Gebiedsvisie onder het projectgebied van Waterweide. Voor Waterweide zijn de volgende ontwikkelambities geformuleerd:

  • Waterrijke woonwijk, goed verbonden met omgeving door langzaam verkeersroutes.
  • Doorzichten over de Raadhuislaan.
  • Vrijliggende fietspaden rond de rotonde zorgen voor een veilige fietsroute.
  • Entree van Waterweide gekoppeld aan een nieuwe entree van het sportpark voor langzaam verkeer (sportboulevard).

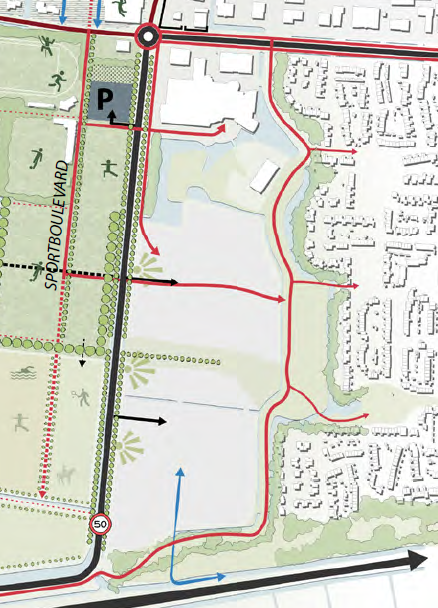
Het plangebied van De Volkstuin is relatief klein in verhouding tot Waterweide en ligt ver af van de Raadhuislaan. Veel van de ontwikkelambities zijn daarom niet van toepassing op De Volkstuin. Voor wat betreft de ambitie met betrekking tot het waterrijke gebied en de langzaamverkeerroutes kan worden gesteld dat daaraan wordt voldaan.

afbeelding "i_NL.IMRO.0532.UWPVolkstuin-VG01_0005.png"

Figuur 3.4 - Structuurkaart Waterweide in Gebiedsvisie Stede Broec Zuidwest

3.4.3 Duurzaamheidsvisie 2018 - 2021

Klimaatverandering is in de afgelopen jaren meer en meer centraal komen te staan en vraagt om een integraal duurzaamheidsbeleid om de negatieve effecten tegen te gaan en de leefomgeving bestendig te maken tegen de nieuwe omstandigheden. In deze visie hebben we het over duurzaamheid in de fysieke leefomgeving, waaronder duurzame opwekking van energie, isoleren van de woningvoorraad, terugdringen van de CO2 uitstoot, toekomstbestendig inrichten van de leefomgeving en hergebruik van waardevolle afvalstromen.

Visie en doelen

De gemeente Stede Broec ziet duurzaamheid als het ontwikkelen van beleid en uitvoeren van projecten, zonder roofbouw te plegen op de leefomgeving en grondstoffen. De voordelen van vandaag worden niet afgewenteld op de toekomst. Stede Broec gelooft in een duurzame leefomgeving, waarin we vandaag en in de toekomst gezond en veilig kunnen leven. Stede Broec stelt zich de volgende doelen:

  • 14% duurzame energie in 2020; in 2050 wil Stede Broec een geheel duurzame en energieneutrale gemeente zijn.
  • Klimaatbestendige inrichting van de gebouwde omgeving.
  • Afval wordt zoveel mogelijk tegengegaan en afvalstoffen worden zoveel mogelijk hergebruikt. In 2020 is de hoeveelheid restafval teruggebracht naar maximaal 100 kg per inwoner per jaar met een scheidingspercentage van 75 %.
  • Duurzame ambtelijke organisatie in 2020.

De doelstellingen zijn uitgewerkt in vijf thema's die in het onderliggende programma verder uitgewerkt worden. De thema's zijn als volgt:

  • 1. verduurzamen fysieke leefomgeving
  • 2. klimaatadaptatie
  • 3. circulaire economie
  • 4. bewustwording en communicatie
  • 5. eigen organisatie

Samenwerkingspartners

De ambities zijn te groot en de doelstellingen onmogelijk te behalen zonder samenwerking. Stede Broec hoeft het gelukkig niet alleen te doen en hoeft het wiel niet opnieuw uit te vinden. De gemeente heeft verschillende samenwerkingsverbanden met onder meer gemeenten in West-Friesland, de Omgevingsdienst NHN, het Duurzaam Bouwloket, de Provincie Noord Holland en de Rijksoverheid. Ook lokale organisaties zoals de Stichting Puur Slim West-Friesland (PSWF) en de Zonnecoöperatie West-Friesland zijn belangrijke partners.

Betekenis voor het uitwerkingsplan

Het toepassen van duurzame principes is een belangrijk element binnen de realisatie van Kweeklust. In paragraaf 4.11 wordt dit verder toegelicht.

3.4.4 Woonvisie 2021-2025 Stede Broec

Met de Woonvisie Stede Broec schetst de gemeente haar visie op het wonen in de gemeente Stede Broec. Deze woonvisie houdt rekening met de kaders van het landelijk, provinciaal en regionaal woonbeleid.

Stede Broec kent haar kracht als plattelandsgemeente met een stedelijk karakter en breed gedragen voorzieningenniveau. De gemeente is goed bereikbaar via spoor en weg en groen en water zijn onderscheidende kenmerken. Dit maakt de gemeente populair en daarom wordt het voor sommige mensen lastig om een betaalbare woning te vinden. Een groeiopgave in woningen staat de komende vijf jaar centraal voor de gemeente Stede Broec. Daarnaast wordt de woonopgave gecombineerd voor de aanpak van vergrijzing, duurzaamheid en vermaatschappelijking van de zorg. Er is een grote vraag naar woningen, koopprijzen lopen verder op en het woningaanbod daalt.

Gemeente Stede Broec heeft voor haar woonopgave van 2021-2025 de volgende ambities en uitgangspunten:

  • I. Een gezonde, evenwichtige woningmarkt met passende woningen, voor nu en later.

Deze ambitie leidt tot enkele uitdagingen: Het uitbreiden van de woningvoorraad voor starters met betaalbare woningen: Sociale huur en betaalbare koop. Daarnaast meer differentiatie in de woningvoorraad zoals, bungalows, patio woningen, mantelzorgwoningen of tiny houses.

Er wordt gestreefd naar een plancapaciteit van 630 woningen tot en met 2025, met streefpercentages van:

  • 20% Sociale huur
  • 10% Middeldure huur
  • 30% Betaalbare koop tot 250.000 euro
  • 25% Middeldure koop 250.000 tot 350.000 euro
  • 15% Dure koop 350.000 euro en meer.

De voorraad sociale huurwoningen dient te worden uitgebreid met netto circa 120 woningen tot en met 2025. Woningcorporatie De Woonschakel zet in op de toevoeging van 100 woningen in deze periode.

  • II. Zorgzame wijken

Wijken moeten een mix van inkomensgroepen en leefstijlen kunnen houden. Mensen met een zorgbehoefte moeten hun wooncarrière in eigen omgeving kunnen maken. Belangrijkste uitdagingen zijn:

  • 1. Mensen kunnen hun eigen woning aanpassen voor hun zorgbehoefte of verhuizen naar een geschikte woning.
  • 2. Er komen voldoende woningtypen die aansluiten bij de doelgroep 'vitale' senioren en mensen met een beperking. Woningtypen die aansluiten bij deze doelgroep zijn: grondgebonden woningen met kleine tuin/terras of gemeenschappelijk tuin, slapen en sanitair op begane grond en ontwerpen die uitnodigen tot sociaal contact.

  • III. Verduurzaming van de woningvoorraad

Nieuwbouw wordt aardgasloos gerealiseerd en vanaf 2021 geldt de verplichting BENG. De gemeenteraad stelt een Warmtetransitievisie vast, uiterlijk eind 2021. Kansen om circulariteit te vergroten worden waar mogelijk benut.

Betekenis voor het uitwerkingsplan

Het plan ziet toe op een inbreiding door middel van een gemixt woningprogramma. Het programma bestaat uit meer dan 50% sociale huur, middeldure koop en dure koop.

De grondgebonden woningen zijn levensloopvriendelijk doordat de woning aan te passen zijn naar de bewoners zorgbehoefte. De patiowoningen zijn na de bouw direct levensloopvriendelijk. De woningbouw wordt aardgasloos gerealiseerd en voldoet aan de BENG-verplichting.

Gesteld kan worden dat het uitwerkingsplan een woningontwikkeling faciliteert dat aansluit op alle drie de ambities uit de Woonvisie.

3.4.5 Bouwstenen voor de omgevingsvisie van Stede Broec

De gemeente Stede Broec heeft als eerste stap in de richting van een omgevingsvisie een document opgesteld waarin via participatie naar voren is gekomen wat bewoners vinden van de gemeente en wat ze in de toekomst graag zouden willen zien. Dit document heet 'Bouwstenen voor de omgevingsvisie van Stede Broec'.

De koers van de omgevingsvisie op hoofdlijnen is:

  • Stede Broec blijft ook in de toekomst een sterke woongemeente met eigen voorzieningen, een dorpse uitstraling, goede bereikbaarheid en ruimte voor groen en water.
  • Er zijn kansen voor recreatie en toerisme, vooral in het landschap en aan/op het water.
  • Er is veel aandacht voor de ontwikkelingen in de samenleving zoals de vergrijzing, gezondheid en het behoud van saamhorigheid.
  • Er zijn kansen voor bovenlokale samenwerking op gebied van de energietransitie, economie, de woningbouwopgave, mobiliteit en recreatie.

Er wordt ingezet op toekomstbestendige woonwijken. Hierbij gaat het om leefbaarheid, duurzaamheid en een passend woningaanbod. Uitbreiding van het woonaanbod aan de randen vraagt om een kwalitatieve aanpak waarin de dorpsranden een groene overgangszone vormen naar het landschap. Inbreiding gaat voor uitbreiding. Kweeklust is in het document opgenomen als hard plan. Met voorliggend uitwerkingsplan wordt invulling gegeven aan de woningbehoefte op een landschappelijk ingepaste wijze.

Hoofdstuk 4 Milieu- en omgevingsaspecten

4.1 Algemeen

De gevolgen voor de milieu- en omgevingskwaliteit vormen een belangrijke afweging bij het al dan niet toelaten van nieuwe ruimtelijke ontwikkelingen. Dit hoofdstuk beschrijft per relevant milieu- en omgevingsaspect wat de mogelijke effecten zijn van de gebiedsontwikkeling.

4.2 Bedrijven- en milieuzonering

4.2.1 Toetsingskader

Een goede ruimtelijke ordening voorziet in het voorkomen van voorzienbare hinder en gevaar door milieubelastende activiteiten. Door bij nieuwe ontwikkelingen voldoende afstand in acht te nemen tussen milieubelastende activiteiten (zoals bedrijven) en gevoelige functies (zoals) woningen worden hinder en gevaar voorkomen. Op deze wijze wordt:

  • 1. ter plaatse van de woningen een goed woon- en leefmilieu gegarandeerd;
  • 2. rekening gehouden met de bedrijfsvoering en milieuruimte van de betreffende bedrijven.

Om in de bestemmingsregeling de belangenafweging tussen bedrijvigheid en nieuwe woningen in voldoende mate mee te nemen, is in dit uitwerkingsplan gebruikgemaakt van de VNG-publicatie Bedrijven en milieuzonering (editie 2009). In deze publicatie zijn richtafstanden aangegeven tussen milieubelastende activiteiten en gevoelige functies. De richtafstand geldt tussen enerzijds de grens van de bestemming die bedrijven of andere milieubelastende functies toelaat en de uiterste situering van de gevel van een woning die volgens het uitwerkingsplan mogelijk is.

De richtafstanden hebben betrekking op de ruimtelijk relevante milieuaspecten geur, stof, geluid en gevaar. De grootste van de vier richtafstanden is bepalend voor de indeling van een milieubelastende activiteit in een milieucategorie. De richtafstanden van de richtafstandenlijst gelden ten opzichte van het omgevingstype rustige woonwijk. Een rustige woonwijk is ingericht volgens het principe van de functiescheiding: afgezien van wijkgebonden voorzieningen komen vrijwel geen andere functies voor, langs de randen is weinig verstoring door verkeer.

Milieucategorie   Richtafstand tot omgevingstype rustige woonwijk  
1   10 meter  
2   30 meter  
3.1   50 meter  
3.2   100 meter  
4.1   200 meter  
4.2   300 meter  
5.1   500 meter  
5.2   700 meter  
5.3   1000 meter  
6   1500 meter  

Figuur 4.1 - Tabel richtafstanden tot omgevingstype rustige woonwijk

Benadrukt wordt dat het gaat om indicatieve richtafstanden waarvan gemotiveerd kan worden afgeweken. Wanneer aan de afstandsnormen wordt voldaan, is in beginsel sprake van een goede ruimtelijke ordening in de zin van artikel 3.1 van de Wet op de ruimtelijke ordening (Wro).

4.2.2 Toetsing
  • Ter plaatse van Raadhuislaan 21 bevindt zicht een LPG-tankstation met een maximale doorzet van 1.000 m³ per jaar. Hiervoor geldt een richtafstand van 50 meter. Het plangebied Kweeklust bevindt zich op meer dan 50 meter van het tankstation.
  • Ten zuidwesten van het plangebied is een rioolgemaal aanwezig. Hiervoor geldt een richtafstand van 30 meter, waarbij het aspect geur maatgevend is voor deze 30 meter. Het plangebied bevindt zich op meer dan 30 meter van het rioolgemaal.
  • Een school voor voortgezet onderwijs of een basisschool hebben een richtafstand van 30 meter. Het Martinuscollege en OBS 't Vierspan liggen op meer dan 30 meter afstand van het plangebied.
4.2.3 Betekenis voor het uitwerkingsplan

Uit het voorgaande blijkt dat het plangebied in voldoende mate ruimtelijk gescheiden is van milieubelastende activiteiten. Het aspect bedrijven- en milieuzonering voor geen belemmering voor de uitvoerbaarheid van het uitwerkingsplan.

4.3 Water

4.3.1 Inleiding

Het is op grond van artikel 3.1.1. van het Besluit ruimtelijke ordening wettelijk verplicht een watertoets uit te voeren bij ruimtelijke ontwikkelingen. Met de watertoets wordt de waterbeheerder vroegtijdig in de plannen betrokken. In ruimtelijke plannen dient vervolgens een waterparagraaf te worden opgenomen. Deze waterparagraaf geeft weer hoe met de wateraspecten van het plan wordt omgegaan.

4.3.2 Toetsingskader

Waterwet

De Waterwet stelt integraal waterbeheer op basis van de watersysteembenadering centraal. Er wordt uitgegaan van het geheel van relaties tussen waterkwaliteit, waterkwantiteit, oppervlaktewater, grondwater, watergebruikers en grondgebruikers. Hierbij wordt het kader geschept voor het Nederlandse waterbeheer in de komende decennia.

Waterbeheer 21e eeuw

WB21 anticipeert op toekomstige ontwikkelingen zoals klimaatverandering, bodemdaling en zeespiegelstijging. Deze ontwikkelingen stellen strengere eisen aan het waterbeheer. In WB21 wordt uitgegaan van twee principes (tritsen) voor duurzame waterkwantiteit- en duurzaam waterkwaliteitsbeheer:

  • 1. vasthouden, bergen en vertraagd afvoeren;
  • 2. schoonhouden, scheiden en zuiveren.

Bij 'vasthouden, bergen en afvoeren' wordt regenwater zoveel als mogelijk bovenstrooms vastgehouden in de bodem en het oppervlaktewater. Wanneer er toch een wateroverschot ontstaat, wordt het water eerst tijdelijk geborgen in bergingsgebieden en dan pas afgevoerd. Bij 'schoonhouden, scheiden en zuiveren' gaat het om een voorkeursvolgorde waarbij de voorkeur uitgaat naar het voorkomen van verontreiniging (schoonhouden). Als toch verontreiniging ontstaat, moeten schoon en vuil water zoveel mogelijk worden gescheiden. Ten slotte wordt het verontreinigde water zo goed mogelijk gezuiverd.

Beleid Hoogheemraadschap

Het beleid van het Hoogheemraadschap Hollands Noorderkwartier is vastgelegd in het Waterbeheerplan 2016-2021. Het waterschap laat in dit waterbeheerplan zien welke ontwikkelingen voor het waterbeheer van belang zijn en welke accenten ze in de samenwerking met haar partners willen leggen. Hoogheemraadschap Hollands Noorderkwartier heeft samen met haar partners haar waterbeleid op lange termijn (Deltavisie) en op middellange termijn (Waterprogramma 2016-2021) opgesteld. In het Waterprogramma 2016-2021 (voorheen waterbeheersplan) zijn de programma's en beheerstaken van het hoogheemraadschap opgenomen met de programmering en uitvoering van het waterbeheer. Het programma is nodig om het beheersgebied klimaatbestendig te maken, toegespitst op de thema s waterveiligheid, wateroverlast, watertekort, schoon en gezond water en crisisbeheersing. Door het veranderende klimaat wordt het waterbeheer steeds complexer. Alleen door slim samen te werken is integraal en doelmatig waterbeheer mogelijk. Bij de ontwikkeling van het Waterprogramma is hieraan invulling gegeven door middel van een partnerproces en de ontwikkeling van gezamenlijke bouwstenen. Daarnaast beschikt het Hoogheemraadschap over een verordening: de Keur 2016. Hierin staan de geboden en verboden die betrekking hebben op watergangen en waterkeringen. Voor het uitvoeren van werkzaamheden kan een vergunning nodig zijn. Het waterschap beschikt over de Keur met bijbehorende beleidsregels en algemene regels. Hierin staat de regels die betrekking hebben op watergangen. Het beleid van het waterschap zijn uitgangspunten voor de uitwerking van de toekomstige waterhuishouding in het plangebied.

4.3.3 Toetsing

In Bijlage 1 is een watertoets bijgevoegd. In dit document zijn de hoofdprincipes voor de toekomstige waterhuishouding van het plangebied uitgewerkt. De watertoets heeft de volgende doelen:

  • De ontwerprichtlijnen, kansen en knelpunten ten aanzien van het thema water voor De Volkstuin vastleggen;
  • Voorkomen van negatieve effecten voor de waterhuishouding;
  • Het is een achtergronddocument ten behoeve van de waterparagraaf in dit uitwerkingsplan.

Voor de watertoets heeft overleg plaatsgevonden met het HHNK.

De belangrijkste conclusies zijn als volgt:

  • Voor het plangebied ‘De Volkstuin’ dient minimaal circa 0,2 ha waterberging te worden gerealiseerd als watercompensatie.
  • De extra waterberging zal worden gecompenseerd in het naastgelegen plangebied ‘Waterweide’ of vanuit de gemeentelijke waterbank.
  • Er wordt een gescheiden rioleringsstelsel toegepast in het plan. Voor de ontwatering van het plan wordt een drainage transport riool toegepast.
  • Het vuilwater wordt aangesloten op het gemeentelijk rioolstelsel van het gebied
    ‘Waterweide’ ten westen van het plangebied.

Voor de start van de uitvoering wordt een watervergunning aangevraagd. Hierin worden de volgende werkzaamheden opgenomen:

  • aanbrengen verharding;
  • plaatsen beschoeiing.
4.3.4 Betekenis voor het uitwerkingsplan

Uit de watertoets komen geen belemmeringen naar voren voor de uitvoerbaarheid van voorliggend uitwerkingsplan.

4.4 Ecologie

4.4.1 Toetsingskader

In het kader van de uitvoerbaarheid van een ruimtelijk plan is het van belang om aandacht te besteden aan beschermde natuurwaarden. De effecten op natuurwaarden dienen te worden beoordeeld in relatie tot bestaande wet- en regelgeving op het gebied van soortenbescherming en gebiedsbescherming. Op 1 januari 2017 is de Wet natuurbescherming (Wnb) in werking getreden. De Wnb betreft zowel soortenbescherming (voorheen Flora- en faunawet) als bescherming van (Europese) natuurgebieden (voorheen Natuurbeschermingswet 1998).

4.4.1.1 Natura 2000-gebieden

Bescherming van Natura 2000-gebieden is geregeld in hoofdstuk 2 van de Wet natuurbescherming. Onder Natura 2000-gebieden vallen de gebieden die op grond van de Europese Vogelrichtlijn en/of Habitatrichtlijn zijn aangewezen. De essentie van het beschermingsregime voor deze gebieden is dat de duurzame instandhouding van soorten en habitats binnen de Europese Unie wordt gewaarborgd. Daarbij zijn instandhoudingsdoelstellingen geformuleerd voor natuurlijke habitats en/of soorten. Dit kunnen behoudsdoelstellingen zijn voor habitats en leefgebieden van soorten die zich al op het gewenste niveau (kwalitatief en kwantitatief) bevinden of uitbreidings- respectievelijk verbeterdoelstellingen voor habitats en leefgebieden van soorten die zich nog niet op het gewenste niveau bevinden.

Om dit toetsbaar te maken kent de Wet natuurbescherming (Wnb) een goedkeuringsvereiste voor plannen die significante gevolgen voor de betreffende gebieden zouden kunnen hebben (artikel 2.7, eerste lid, Wnb), en een vergunningplicht voor projecten die significant negatieve gevolgen voor de betreffende gebieden zouden kunnen hebben (artikel 2.7, tweede lid, Wnb). De goedkeuring of de vergunning wordt alleen verleend wanneer voldoende zeker is dat de instandhoudingsdoelstellingen voor het betreffende Natura 2000-gebied niet in het geding zijn. Wanneer significante gevolgen voor Natura 2000-gebieden op grond van een passende beoordeling niet kunnen worden uitgesloten, kan alleen goedkeuring aan het plan of een vergunning voor het project worden verleend indien de ADC-toets met succes doorlopen kan worden (artikel 2.8, vierde lid, Wnb). Dat betekent dat het project nodig is omwille van een dwingende reden van groot openbaar belang, er geen alternatief mag zijn met minder grote effecten op Natura 2000 en de nodige compenserende maatregelen worden getroffen.

Op 29 mei 2019 heeft de Afdeling bestuursrechtspraak van de Raad van State (ABRvS) uitspraak gedaan over het Programma Aanpak Stikstof (PAS). De Afdeling heeft geoordeeld dat het PAS niet aan alle eisen van de Habitatrichtlijn voldoet. Het PAS geeft onvoldoende zekerheid dat met de uitgifte van ontwikkelingsruimte significante gevolgen voor Natura 2000 zijn uitgesloten. De consequentie is dat het PAS niet als basis voor toestemming voor projecten of andere activiteiten kan worden gebruikt. Toetsing van effecten van stikstofdepositie gaat daarom weer volgens de in voorgaande alinea beschreven procedure. De provinciale beleidsregels stikstof geven hier een nadere inhoudelijke invulling aan.

In de navolgende paragrafen is verkend of er effecten op kunnen treden op Natura 2000-gebieden op basis van de ligging van het plangebied en reikwijdte van effecten. Indien op basis van deze verkenning effecten niet op voorhand zijn uit te sluiten kunnen de volgende vervolgstappen aan de orde zijn:

  • Een voortoets geeft een aanwijzing over de mogelijke negatieve effecten van een plan of project op Natura 2000-gebieden. Uit de voortoets volgt ook welke vervolgstappen nodig zijn. Soms blijk uit de voortoets dat er zeker geen significant negatieve effecten voor Natura 2000-gebieden zijn. Dan is er geen vergunningplicht en de initiatiefnemer hoeft verder niets te doen. Als er wel mogelijke significant negatieve effecten zijn volgt een passende beoordeling.
  • Passende beoordeling: een beoordeling of significante gevolgen van het plan of project zijn uit te sluiten rekening houdend met de instandhoudingsdoelstellingen. In een passende beoordeling mag rekening gehouden worden met mitigerende maatregelen. Als significante gevolgen niet zijn uit te sluiten volgt ADC-toets.
  • ADC-toets: Aangetoond dient te worden dat er geen alternatieven zijn met minder effecten, er sprake is Dwingende redenen van groot openbaar belang en in Compensatie is voorzien.
4.4.1.2 Soortenbescherming

In de Wet natuurbescherming is de soortenbescherming in Nederland geregeld. In de Wet natuurbescherming worden drie verschillende beschermingsregimes gehanteerd waaraan verschillende verbodsbepalingen zijn gekoppeld:

Soorten Vogelrichtlijn (artikel 3.1 e.v.)

  • lid 1) Het is verboden opzettelijk van nature in Nederland in het wild levende vogels van soorten als bedoeld in artikel 1 van de Vogelrichtlijn te doden of te vangen;
  • lid 2) Het is verboden opzettelijk nesten, rustplaatsen en eieren van vogels als bedoeld in het eerste lid te vernielen of te beschadigen, of nesten van vogels weg te nemen;
  • lid 3) Het is verboden eieren van vogels als bedoeld in het eerste lid te rapen en deze onder zich te hebben;
  • lid 4) Het is verboden vogels als bedoeld in het eerste lid opzettelijk te storen;
  • lid 5) Het verbod, bedoeld in het vierde lid, is niet van toepassing indien de storing niet van wezenlijke invloed is op de staat van instandhouding van de desbetreffende vogelsoort.

Soorten Habitatrichtlijn (artikel 3.5 e.v.)

  • lid 1) Het is verboden in het wild levende dieren van soorten, genoemd in bijlage IV, onderdeel a, bij de Habitatrichtlijn, bijlage II bij het Verdrag van Bern of bijlage I bij het Verdrag van Bonn, in hun natuurlijk verspreidingsgebied opzettelijk te doden of te vangen;
  • lid 2) Het is verboden dieren als bedoeld in het eerste lid opzettelijk te verstoren;
  • lid 3) Het is verboden eieren van dieren als bedoeld in het eerste lid in de natuur opzettelijk te vernielen of te rapen;
  • lid 4) Het is verboden de voortplantingsplaatsen of rustplaatsen van dieren als bedoeld in het eerste lid te beschadigen of te vernielen;
  • lid 5) Het is verboden planten van soorten, genoemd in bijlage IV, onderdeel b, bij de Habitatrichtlijn of bijlage I bij het Verdrag van Bern, in hun natuurlijke verspreidingsgebied opzettelijk te plukken en te verzamelen, af te snijden, te ontwortelen of te vernielen.

Andere Soorten (artikel 3.10 e.v.)

  • lid 1) Onverminderd artikel 3.5, eerste, vierde en vijfde lid, is het verboden:
    • 1. onderdeel a. in het wild levende zoogdieren, amfibieën, reptielen, vissen, dagvlinders, libellen en kevers van de soorten, genoemd in de bijlage, onderdeel A, bij deze wet, opzettelijk te doden of te vangen;
    • 2. onderdeel b. de vaste voortplantingsplaatsen of rustplaatsen van dieren als bedoeld in onderdeel a opzettelijk te beschadigen of te vernielen, of
    • 3. onderdeel c. vaatplanten van de soorten, genoemd in de bijlage, onderdeel B, bij deze wet, in hun natuurlijke verspreidingsgebied opzettelijk te plukken en te verzamelen, af te snijden, te ontwortelen of te vernielen.

Voor Vogelrichtlijn- en Habitatrichtlijnsoorten geldt dat voortplantings- en rustplaatsen (inclusief functionele leefomgeving) van beschermde soorten niet opzettelijk verstoord of vernietigd mogen worden en dat exemplaren van beschermde soorten niet opzettelijk mogen worden gedood of verwond. In gebruik zijnde nesten van vogels zijn te allen tijde beschermd gedurende het broedseizoen. Van een aantal vogelsoorten geniet de vaste rust- en verblijfplaats een aanvullende jaarronde bescherming. Deze soorten worden genoemd in een beleidsdocument dat onder de Flora- en faunawet is opgesteld. Ook onder Wet natuurbescherming is deze lijst van kracht, maar provincies hebben de mogelijkheid deze aan te passen. Voor provincie Noord-Holland geldt de reguliere landelijke lijst. Soorten waarvan de nesten altijd jaarrond beschermd zijn, zijn de volgende: boomvalk, buizerd, gierzwaluw, grote gele kwikstaart, havik, huismus, kerkuil, oehoe, ooievaar, ransuil, roek, slechtvalk, sperwer, steenuil, wespendief en zwarte wouw. Van een aantal andere soorten zijn de nesten enkel beschermd als er onvoldoende alternatieven zijn.

Voor andere beschermde soorten geldt dat voortplantingsplaatsen en rustplaatsen (inclusief functionele leefomgeving) van beschermde soorten niet (opzettelijk) vernietigd mogen worden en dat exemplaren van beschermde soorten niet (opzettelijk) mogen worden gedood of verwond. Verbodsbepalingen ten aanzien van de verstoring zijn niet van toepassing op deze soorten. Ten aanzien van de andere beschermde soorten geldt dat het bevoegd gezag (provincies c.q. ministerie van LNV) de vrijheid hebben om soorten binnen deze categorie vrij te stellen van de verbodsbepalingen uit artikel 3.10 Wet natuurbescherming.

Met artikel 3.10 van de wet wordt het mogelijk gemaakt om die bescherming op te heffen om redenen die onder meer verband houden met de ruimtelijke inrichting of ontwikkeling van gebieden, daaronder begrepen het daarop volgende gebruik van het ingerichte of ontwikkelde gebied, bestendig beheer of onderhoud in de landbouw of bosbouw, bestendig beheer of onderhoud aan vaarwegen, watergangen, waterkeringen, waterstaatswerken, oevers, vliegvelden, wegen, spoorwegen of bermen, of in het kader van natuurbeheer en/of bestendig beheer of onderhoud van de landschappelijke kwaliteiten van een bepaald gebied. Met artikel 8.1 van de verordening uitvoering Wet natuurbescherming van provincie Zuid-Holland wordt een dergelijke vrijstelling gegeven. De diersoorten waarop de vrijstelling ten behoeve van ruimtelijke ingrepen ziet, worden genoemd in tabel 1.

afbeelding "i_NL.IMRO.0532.UWPVolkstuin-VG01_0006.png"

Tabel 4.2 Vrijgestelde soorten in Noord-Holland (Provincie Noord-Holland 2016)

Voor beschermde soorten die niet zijn vrijgesteld en de voorgenomen activiteiten strijdig zijn met de bepalingen in de wet geldt een ontheffingsplicht. Deze kan alleen worden verleend, indien de gunstige staat van instandhouding niet in het geding is. Voor vogels geldt in afwijking hierop dat voor verstoring geen ontheffing nodig is, indien de gunstige staat van instandhouding niet in het geding is. Het is ook mogelijk om voor beide categorie soorten te werken volgens een goedgekeurde gedragscode die is afgestemd op de nieuwe wet. Er is dan geen ontheffing op grond van de Wet natuurbescherming nodig. Naast bovengenoemde verbodsartikelen bevat de Wnb een algemeen geldende zorgplicht. Deze zorgplicht is te allen tijde van toepassing en geldt ook voor niet beschermde flora en fauna.

Zorgplicht (artikel 1.11):

  • 1. Eenieder neemt voldoende zorg in acht voor Natura 2000-gebieden, bijzondere nationale natuurgebieden en voor in het wild levende dieren en planten en hun directe leefomgeving.
  • 2. De zorg, bedoeld in het eerste lid, houdt in elk geval in dat eenieder die weet of redelijkerwijs kan vermoeden dat door zijn handelen of nalaten nadelige gevolgen kunnen worden veroorzaakt voor een Natura 2000-gebied, een bijzonder nationaal natuurgebied of voor in het wild levende dieren en planten:
    • a. onderdeel a: dergelijke handelingen achterwege laat, dan wel,
    • b. onderdeel b: indien dat achterwege laten redelijkerwijs niet kan worden gevergd, de noodzakelijke maatregelen treft om die gevolgen te voorkomen, of
    • c. onderdeel c: voor zover die gevolgen niet kunnen worden voorkomen, deze zoveel mogelijk beperkt of ongedaan maakt.
  • 3. Het eerste lid is niet van toepassing op handelen of nalaten in overeenstemming met het bij of krachtens deze wet of de Visserijwet 1963 bepaalde.
4.4.1.3 Natuurbeleidskaders

Het beleidskader van de overheid dat niet in wetgeving is vastgelegd bestaat uit:

  • Provinciaal beleid
    • 1. Natuurnetwerk Nederland (NNN).
    • 2. Gebieden buiten het NNN (zoals habitat voor weidevogels, ganzenfoerageergebied)
  • Gemeentelijk beleid (varieert per gemeente).
4.4.2 Toetsing

Op 11 juni 2021 heeft Van der Goes en Groot namens Sweco Nederland een verkennend ecologisch veldonderzoek uitgevoerd naar het voorkomen van beschermde soorten. Dit onderzoek is als Bijlage 2 bij dit uitwerkingsplan gevoegd.

Gebiedsbescherming: Natura 2000-gebieden

In de nabijheid van het plangebied is een Natura 2000-gebied gelegen, namelijk het Markermeer dat op een afstand van 1,8 kilometer ligt. De werkzaamheden in het projectgebied resulteren niet in een oppervlakteverlies, verontreiniging of verdroging van deze Natura 2000-gebieden. Negatieve effecten van geluid, licht en trilling op de instandhoudingsdoelstellingen zijn uit te sluiten.

De werkzaamheden ten behoeve van de aanleg van de verbindingsweg en de aanpassingen aan de kruispunten, kunnen gepaard gaan met de emissie van stikstof. Omdat de nabijgelegen Natura 2000-gebieden stikstofgevoelige habitattypen omvatten, zijn negatieve effecten op voorhand niet uit te sluiten. De omvang van de stikstofdepositie als gevolg van de werkzaamheden zijn daarom met een AERIUS-berekening inzichtelijk gemaakt (Bijlage 5). Nagegaan is of negatieve effecten optreden in stikstofgevoelige habitattypen en/of stikstofgevoelige leefgebieden.

Er is, op basis van de gehanteerde uitgangspunten, in de gebruiksfase van de planontwikkeling geen toename van de stikstofdepositie >0,00 mol/ha/jaar in de omliggende Natura 2000-gebieden. De Wet stikstofreductie en natuurverbetering voorziet in een partiële vrijstelling voor de tijdelijke emissies gedurende de aanlegfase van bouw- en sloopwerkzaamheden. Deze wet is op 1 juli 2021 in werking getreden. Daarom is de aanlegfase van de voorgenomen planontwikkeling niet beschouwd. Hiermee is het plan niet vergunningplichtig onder de Wet natuurbescherming.

Gebiedsbescherming overige gebieden

De voorgenomen werkzaamheden hebben geen effect op beschermde gebieden op basis van het NNN of Bijzonder Provinciaal Landschap (BPL). Er is geen nader veldonderzoek en/of effectonderzoek noodzakelijk. Tevens zijn er geen maatregelen nodig om effecten te voorkomen.

Soortenbescherming

Er zijn beschermde soorten aanwezig in of nabij het projectgebied. Negatieve effecten op de Wezel en Bunzing als gevolg van de werkzaamheden zijn niet uitgesloten.

Om nader te onderzoeken of de Wezel en/of Bunzing in het plangebied voorkomen is een inventarisatie naar kleine marterachtigen uitgevoerd door Van der Goes en Groot. De rapportage van dit onderzoek is bijgevoegd (Bijlage 3). Het onderzoek is uitgevoerd conform de handreiking voor het uitvoeren van onderzoek naar kleine marterachtigen van de provincie Noord-Holland.

Geconcludeerd wordt dat het volkstuinencomplex niet wordt gebruikt door kleine marterachtigen of andere beschermde, niet vrijgestelde soorten. Het terrein is daarvoor ongeschikt. De ODNHN onderschrijft de conclusies uit de rapportage. Zie het advies in Bijlage 4.

Tenslotte geldt de zorgplicht voor alle (ook de onbeschermde) plant- en diersoorten. De zorgplicht houdt in dat de werkzaamheden die nadelig kunnen zijn voor dieren en planten, in redelijkheid zo veel mogelijk worden nagelaten of maatregelen worden genomen om onnodige schade aan dieren en planten te voorkomen. Een manier om aan de zorgplicht te voldoen is om in verband met verstoring van aanwezige dieren de werkzaamheden zoveel mogelijk overdag uit te voeren.

Houtopstanden

Het plangebied ligt binnen de bebouwde kom, Er worden derhalve geen onder de Wnb genoemde beplantingen gekapt. Er is voor de kap van de bomen waarschijnlijk wel een gemeentelijke kapvergunning noodzakelijk.

4.4.3 Betekenis voor het uitwerkingsplan

De ontwikkeling van het plangebied op basis van dit uitwerkingsplan wordt in de uitvoerbaarheid niet belemmerd door het aspect ecologie. De uitstoot van stikstof overschrijdt de kritische depositiewaarde op gevoelige Natura 2000-gebieden niet en negatieve effecten op beschermde soorten worden niet verwacht.

4.5 Bodem

4.5.1 Toetsingskader

Besluit ruimtelijke ordening

In het Besluit ruimtelijke ordening (Bro) is bepaald dat in de toelichting op een ruimtelijk plan inzicht verkregen moet worden in de uitvoerbaarheid van het plan. Dit betekent dat er onder meer duidelijkheid over de noodzakelijke financiële investering in een (mogelijk noodzakelijke) bodemsanering moet bestaan. Een onderzoek naar de milieu hygiënische kwaliteit van de bodem is derhalve onderdeel van de onderzoeksverplichting bij de voorbereiding van een ruimtelijk plan.

Wet bodembescherming

Het doel van de Wet bodembescherming (Wbb) is in de eerste plaats het beschermen van de land- of waterbodem zodat deze nu en in de toekomst kan worden benut door mens, dier en plant. Via de Wbb heeft de Rijksoverheid de mogelijkheid algemene regels te stellen voor de uitvoering van werken, het transport van stoffen en het toevoegen van stoffen aan de bodem. Ontwikkelingen kunnen pas plaatsvinden als de bodem, waarop deze ontwikkelingen gaan plaatsvinden, geschikt is of geschikt is gemaakt voor de beoogde functie. Bij nieuwbouwactiviteiten dient de bodemkwaliteit door middel van onderzoek in beeld te zijn gebracht. In het algemeen geldt dat nieuwe bestemmingen bij voorkeur op een schone bodem dienen te worden gerealiseerd.

Besluit bodemkwaliteit

Het doel van het Besluit bodemkwaliteit (2008) is de bodem beter te beschermen en meer ruimte te bieden voor nieuwe bouwprojecten. Ook geeft het besluit gemeenten en provincies meer verantwoordelijkheid om de bodem te beheren.

4.5.2 Toetsing

In juli 2021 is een verkennend bodemonderzoek uitgevoerd. Doel van het bodemonderzoek is het vaststellen van de algemene milieuhygiënische bodemkwaliteit van grond en grondwater. Op basis van de onderzoeksresultaten moet worden vastgesteld of de gewenste vorm van bodemgebruik vanuit milieuhygiënisch oogpunt gezien mogelijk is en zo niet, welke vervolgacties noodzakelijk zijn. Dit onderzoek is als Bijlage 6 bij dit uitwerkingsplan gevoegd. Hieronder worden de belangrijkste bevindingen weergegeven.

Grond

Uit het onderzoek blijkt dat in de bovengrond plaatselijk een licht verhoogd gehalte aan zink aanwezig is. In de overige onderzochte grondmonsters van de boven- en ondergrond zijn geen verhoogde gehalten aangetoond.

Grondwater

Het grondwaterpeil is op circa 1m-mv waargenomen. In het grondwater zijn geen verhoogde gehalten aangetroffen.

Dempingen

De schone grond ten plaatse van voormalige watergang bevestigt het vermoeden dat de demping ten tijde van grootschalige ontwikkeling heeft plaatsgevonden met gebiedseigen grond.

Asbest

Na afstemming met de ODNHN is besloten een veldinventarisatie naar asbest te verrichten. Dit om het risico van asbest binnen het plangebied in kaart te brengen. Dit onderzoek wordt uitgevoerd nadat de moestuinen zijn opgeruimd.

Conclusie

Uit het onderzoek blijkt dat er geen belemmeringen voor het uitwerkingsplan op het gebied van bodem bestaan.

4.5.3 Betekenis voor het uitwerkingsplan

Gezien de relatief lage gehalten en de toekomstige bestemming van de locatie is er geen aanleiding tot het verrichten van vervolgonderzoek. Op basis van de gemeten gehalten kan worden gesteld dat er vanuit milieuhygiënisch oogpunt geen belemmeringen zijn om het terrein te ontwikkelen voor woningbouw. De bodemkwaliteit voldoet aan de kwaliteitseisen voor de te realiseren functie. Wel is na afstemming met ODNHN besloten een aanvulllend onderzoek naar asbest te verrichten om asbestverontreiniging op het perceel volledig te kunnen uitsluiten.

4.6 Archeologie

4.6.1 Toetsingskader

De Monumentenwet 1988 is per 1 juli 2016 vervallen. Een deel van de wet is op deze datum overgegaan naar de Erfgoedwet. Het deel dat betrekking heeft op de besluitvorming in de fysieke leefomgeving gaat over naar de Omgevingswet, wanneer deze naar verwachting in 2022 in werking treedt. Vooruitlopend op de datum van ingang van de Omgevingswet zijn deze artikelen te vinden in het Overgangsrecht in de Erfgoedwet, waar ze ongewijzigd van toepassing blijven zolang de Omgevingswet nog niet van kracht is. De Erfgoedwet bundelt en wijzigt een aantal wetten op het terrein van cultureel erfgoed. De kern van deze wet is dat wanneer de bodem wordt verstoord, de archeologische resten intact moeten blijven (in situ). Wanneer dit niet mogelijk is, worden archeologische resten opgegraven en elders bewaard (ex situ). Daarnaast dient ieder ruimtelijk plan een analyse van de overige cultuurhistorische waarden van het plangebied te bevatten. Voor zover in een plangebied sprake is van erfgoed, dient op grond van voorgaande dan ook aangegeven te worden op welke wijze met deze cultuurhistorische waarden en in de grond aanwezige of te verwachten archeologie rekening wordt gehouden.

4.6.2 Toetsing

Archeologisch Quickscan

Er is een archeologisch quickscan uitgevoerd door Archeologie West-Friesland (Bijlage 7). Voor het plangebied geldt een middelhoge tot hoge archeologische verwachting voor vindplaatsen uit de Bronstijd. De archeologische resten bevinden zich in het aangrenzende gebied direct onder de bouwvoor, op circa 1,9 m – NAP. Onderhavig plangebied ligt duidelijk hoger. Om vast te stellen of het plangebied is opgehoogd is een veldtoets uitgevoerd. Hierbij zijn twee boringen gezet. Uit de veldtoets is gebleken dat het volkstuinencomplex is opgehoogd. De top van de mariene afzettingen waarin de archeologische sporen zich aftekenen (het archeologisch relevante vlak) bevindt zich op circa 1,2 m –Mv (rond 1,8 m – NAP).

4.6.3 Betekenis voor het uitwerkingsplan

Het plangebied ligt in een gebied waar een hoge verwachting geldt voor vindplaatsen uit de Bronstijd, op basis van de bodemkaart, archeologisch onderzoek grenzend aan het plangebied en vondstmeldingen. Deze verwachting is vertaald naar een vrijstellingsgrens van 1.000 m2 op de beleidskaart archeologie van de gemeente Stede Broec en het bestemmingsplan Stede Broec – Zuid. Zoals blijkt uit de Deze grens zal worden overschreden.

Op basis van de omvang van het plangebied en de geplande ontwikkeling, en de hoge archeologische verwachting, is een archeologisch onderzoek in het kader van de AMZ-cyclus vereist. Dit archeologisch onderzoek dient te bestaan uit een Inventariserend Veldonderzoek (IVO) in de vorm van proefsleuven. Het doel van het inventariserend veldonderzoek is het aanvullen en toetsen van de gespecificeerde verwachting en het vaststellen van de mate van intactheid van het bodemarchief. Als leidraad voor het proefsleuvenonderzoek dient een Programma van Eisen te worden opgesteld dat vervolgens aan het bevoegd gezag ter goedkeuring wordt voorgelegd. In de uitgevoerde quickscan is voor het plangebied een gespecificeerde archeologische verwachting
geformuleerd. Deze gespecificeerde verwachting wordt tijdens het proefsleuvenonderzoek getoetst. Een bureauonderzoek zal in dit geval geen nieuwe gegevens betreffende de verwachting binnen het plangebied genereren. Geadviseerd wordt om in dit geval een bureauonderzoek achterwege te laten en de gespecificeerde verwachting uit de quickscan te hanteren.

Met Archeologie West-Friesland is afgestemd dat een proefsleuvenonderzoek in het kader van het uitwerkingsplan niet benodigd is. Door het overnemen van de dubbelbestemming en bijhorende vergunningensysteem uit het moederplan, worden eventueel aanwezige archeologisch waarden beschermd tot het moment dat het proefsleuvenonderzoek (en eventueel verder onderzoek) is uitgevoerd. Het proefsleuvenonderzoek kan worden uitgevoerd voor het bouwrijp maken van de gronden van het uitwerkingsplan. Het onderdeel archeologie vormt daarmee geen belemmering voor onderhavige ontwikkeling en staat de uitvoerbaarheid van dit uitwerkingsplan niet in weg.

4.7 Cultuurhistorie

4.7.1 Toetsingskader

De wijziging van het Besluit ruimtelijke ordening bepaalt dat bij het maken van bestemmingsplannen rekening moet worden gehouden met cultuurhistorie. Sinds 1 januari 2012 is een cultuurhistorisch onderzoek verplicht. Het gaat daarbij om het in kaart brengen van archeologische, historisch stedenbouwkundige en historisch-geografische waarden en het beschrijven van de wijze waarop met de in het gebied aanwezige waarden en de aanwezige of te verwachten monumenten, in het op te stellen ruimtelijke plan wordt omgegaan.

De Leidraad Landschap en Cultuurhistorie is een provinciale handreiking voor het inpassen van nieuwe ruimtelijke ontwikkelingen in het landschap, zoals bebouwing, agrarische bedrijven, infrastructuur of vormen van energieopwekking. De Leidraad geeft gebiedsgerichte én ontwikkelingsgerichte beschrijvingen en biedt zo toepasbare informatie over de manier waarop ruimtelijke ontwikkelingen kunnen bijdragen aan de kwaliteit van de leefomgeving. De provincie beoogt met deze Leidraad om samen met bijvoorbeeld gemeenten, ontwikkelaars en initiatiefnemers te werken aan het behouden en versterken van de kwaliteit van het landschap en de cultuurhistorie. In de Leidraad die voor het laatst is vastgesteld op 10 april 2018 zijn een aantal onderwerpen opgenomen die van belang zijn voor de ruimtelijke kwaliteit van Noord-Holland, te weten aardkundige waarden, openheid, stilte en donkerte en dorps-DNA.

De Provincie Noord-Holland omschrijft ruimtelijke kwaliteit aan de hand van kernkwaliteiten van het landschap. Natuurlijke omstandigheden en vooral ook menselijk handelen, hebben in ieder landschap hun eigen sporen nagelaten. Nieuwe ontwikkelingen moeten zich tot deze karakteristieken verhouden. Elk landschapstype heeft zijn eigen specifieke kernkwaliteiten die gebieden een eigen karakter en identiteit geven. De voornaamste kernkwaliteiten zijn: archeologie en tijdsdiepte (tezamen 'ondergrond'), aardkundige waarden, historische structuurlijnen, cultuurhistorische objecten en openheid, duisternis en stilte (tezamen landschaps-DNA) en dorps-DNA.

De Provincie beschermt ook de ondergrond van de bijzondere landschappen. Zolang aardkundige verschijningsvormen (zoals stuwwallen, duinen, wadden en beekdalen) onaangetast zijn, vertellen ze veel over de ontstaansgeschiedenis van Noord-Holland en de krachten die daarbij een rol speelden: wind, water, ijs en getijden. Behoud en ontwikkeling van aardkundige waarden is van belang gezien de onschatbare waarde van aardkundig erfgoed voor de inwoners van Noord-Holland en Nederland.

Noord-Holland is onderverdeeld in 20 gebieden, de zogenaamde ensembles, en 10 provinciale structuren. Bij het inpassen van nieuwe ruimtelijke ontwikkelingen in het landelijk gebied moet rekening worden gehouden met de ambities en ontwikkelprincipes die staan beschreven bij de afzonderlijke ensembles en structuren.

4.7.2 Toetsing

Het huidige landschap van de gemeente Stede Broec maakt deel uit van het oude zeekleilandschap. Dit oudere Noord-Hollandse landschap herbergt nog elementen uit de periode van de veenontginningen en daarna en is van hoge historisch-geografische waarde. De verkaveling heeft een grote samenhang met de ontginnings- en bewoningsassen, de afwateringskanalen, de achter- en zijkaden en de dijken.

Aangegeven wordt dat de ruimtelijke kwaliteit gebaat is bij het behouden van de linten tussen Hoorn en Enkhuizen als basis voor een aantrekkelijk (woon)landschap. Onderdeel daarvan is het behouden van lineaire structuren en open ruimtes tussen linten.

In de archeologische quick scan die is bijgevoegd als Bijlage 7 wordt ook een cultuurhistorische achtergrond gegeven van het plangebied. Het plangebied ligt een stuk ten zuiden van het dorpslint de Streekweg. Dit bewoningslint stamt uit de Middeleeuwen en kent meerdere bewoningskernen, waaronder Lutjebroek, Grootebroek en Bovenkarspel. Bewoning in de Middeleeuwen ten zuiden van dit bewoningslint wordt niet verwacht.

Voor het bepalen van de aanwezigheid van bewoningsresten uit de Nieuwe Tijd kan gebruik worden gemaakt van historisch kaartmateriaal. Op de 17de-eeuwse kaart van Johannes Dou (1651-1654) en op de oudste 19de-eeuwse Kadastrale Minuutkaart is geen bewoning te zien
binnen het plangebied. De kans op aantreffen van archeologische resten uit de Nieuwe Tijd is
daardoor laag. Voor het kaartmateriaal wordt verwezen naar de rapportage. Voor wat betreft cultuurhistorie kan met het voorgaande worden geconcludeerd dat de cultuurhistorische waarde zich vooral richt op de feitelijke vorming van het landschap en de waterstructuren.

4.7.3 Betekenis voor het uitwerkingsplan

Het plangebied is gelegen in een gebied met een bestaande waterstructuur. Het uitwerkingsplan wijzigt niets aan de waterstructuur of aan de verkaveling. De bestaande en kenmerkende waterinfrastructuur die om het plangebied aanwezig is vormde onderdeel van een systeem dat is aangelegd om West Friesland systematisch te ontwateren en geschikt te maken voor bewoning. In de uitwerking van dit plan wordt zoveel mogelijk aangesloten op deze kenmerkende waterinfrastructuur. Voorts is het plangebied geen onderdeel van een waardevol lint. Met het toekennen van een uit te werken bestemming in het vigerende bestemmingsplan is reeds eerder een afweging gemaakt over het bebouwen van voorliggend uitwerkingsgebied.

Het aspect cultuurhistorie vormt geen belemmering voor de uitvoerbaarheid van het uitwerkingsplan.

4.8 Luchtkwaliteit

4.8.1 Toetsingskader

In de Wet milieubeheer (verder: Wm) zijn eisen opgenomen waaraan de luchtkwaliteit in de buitenlucht moet voldoen. Hierbij is onderscheid gemaakt in grenswaarden waaraan nu moet worden voldaan en grenswaarden waaraan in de toekomst moet worden voldaan. De meest kritieke stoffen zijn stikstofdioxide en fijnstof. Voor andere in de Wm genoemde stoffen, wordt in Nederland, behoudens bijzondere situaties, overal voldaan aan de vereisten.

Op grond van artikel 5.16 Wm stelt de gemeenteraad alleen een bestemmingsplan vast wanneer aannemelijk is gemaakt dat:

  • het bestemmingsplan niet leidt tot het overschrijden van de in de wet genoemde grenswaarden, of;
  • de luchtkwaliteit als gevolg van het vergunde plan per saldo verbetert of ten minste gelijk blijft, of bij een beperkte toename, door een met de ontwikkeling samenhangende maatregel of effect, per saldo verbetert, of;
  • het bestemmingsplan niet in betekenende mate bijdraagt aan de concentratie van een stof waarvoor in de wet grenswaarden zijn opgenomen, of;
  • de ontwikkeling is opgenomen of past in het Nationaal Samenwerkingsprogramma Luchtkwaliteit.

Indien de Regeling niet in betekenende mate bijdragen (nibm-regeling luchtkwaliteitseisen) zijn categorieën van gevallen aangewezen die in ieder geval niet in betekenende mate bijdragen aan de luchtverontreiniging. Een bijdrage is "niet in betekenende mate" als de toename maximaal drie procent van de jaargemiddelde grenswaarde van fijnstof of stikstofdioxide bedraagt. Wanneer een ontwikkeling valt onder één van die categorieën is het niet nodig een onderzoek naar de luchtkwaliteit uit te voeren. De categorieën van gevallen zijn:

  • Woningbouwlocaties met niet meer dan 1.500 nieuwe woningen en één ontsluitingsweg;
  • Woningbouwlocaties met niet meer dan 3.000 nieuwe woningen en twee ontsluitingswegen;
  • Kantoorlocaties met een bruto vloeroppervlakte van niet meer dan 100.000 m2 bij minimaal één ontsluitingsweg;
  • Kantoorlocaties met een bruto vloeroppervlakte van niet meer dan 200.000 m2 bij minimaal twee ontsluitingswegen.
4.8.2 Toetsing

Voor de ontwikkeling is een toetsing NIBM uitgevoerd. Hiervoor is gebruik gemaakt van de NIBM-tool. Het doel van de NIBM-tool is:

  • Eenvoudig en snel bepalen of een plan niet-in-betekenende-mate bijdraagt aan de concentratie van een stof in de buitenlucht.
  • Het beperken van de onderzoekslast bij kleinere projecten.
  • Het vaststellen van grenzen voor het aantal extra voertuigbewegingen, dat niet zal leiden tot een concentratietoename die groter is dan de NIBM-grens.

Bij de invoer zijn de volgende uitgangspunten gehanteerd:

  • 1. Stede Broec valt in stedelijkheidsklasse 'matig stedelijk' en voor de planlocatie wordt uitgegaan van 'rest bebouwde kom'.
  • 2. Er wordt uitgegaan van 32 woningen, allen vrijstaand en koop, om een 'wordt case' te berekenen.

Een vrijstaande koopwoning heeft een verkeersgeneratie van 7,8 motorvoertuigen per etmaal. Dit betekent een totale verkeersgeneratie van 250 motorvoertuigen.

afbeelding "i_NL.IMRO.0532.UWPVolkstuin-VG01_0007.jpg"

Figuur 4.3 NIBM-tool

Uit de NIBM-tool blijkt dat de planontwikkeling die met voorliggend uitwerkingsplan wordt mogelijk gemaakt NIBM is.

4.8.3 Betekenis voor het uitwerkingsplan

Het plan draagt niet in betekenende mate bij aan de luchtkwaliteit en voldoet daarmee aan de luchtkwaliteitseisen uit de Wet milieubeheer.

4.9 Geluid

4.9.1 Toetsingskader

In een bestemmingsplan dat geluidsgevoelige functies mogelijk maakt, dan wel functies die ervoor zorgen dat sprake is van een toename van geluidsbelasting, moet aandacht worden besteed aan het aspect geluid. Er dient sprake te zijn van een aanvaardbaar woon- en leefklimaat voor gebruikers van geluidsgevoelige functies.

De Wet geluidhinder (Wgh) is erop gericht om de geluidhinder vanwege onder andere wegverkeerslawaai, spoorweglawaai en industrielawaai te voorkomen en te beperken. De Wgh bepaalt dat de 'geluidsbelasting' op gevels van woningen en andere geluidsgevoelige objecten niet hoger mag zijn dan een in de wet bepaalde norm die als voorkeursgrenswaarde wordt aangeduid. De Wgh kent voor geluidsgevoelige functies als woningen een voorkeursgrenswaarde van 48 dB en een maximale ontheffingswaarde van 63 dB.

De Wet geluidhinder stelt dat alle wegen zoneplichtig zijn, met uitzondering van woonerven en wegen die zijn opgenomen in een 30 km/zone. Iedere zoneplichtige weg heeft, afhankelijk van het aantal rijstroken en de ligging van de weg in stedelijk of buitenstedelijk gebied, een onderzoekszone. Deze onderzoekszones zijn weergegeven in Figuur 4.4. Bij ontwikkeling van nieuwe geluidsgevoelige objecten binnen deze geluidzones dient akoestisch onderzoek te worden uitgevoerd om aan te tonen dat de ontwikkeling voldoet aan de in de wet bepaalde voorkeursgrenswaarde. Indien niet aan deze grenswaarde kan worden voldaan, kan het bevoegd gezag hogere grenswaarden vaststellen. Hiervoor geldt een bepaald maximum, de uiterste grenswaarde genoemd.

afbeelding "i_NL.IMRO.0532.UWPVolkstuin-VG01_0008.png"

Figuur 4.4 onderzoekszones langs wegen

4.9.2 Toetsing

Wet geluidhinder

De zoneplichtige wegen in de omgeving van het plangebied zijn de Raadhuislaan en provinciale weg N307. De geluidszones van beide wegen bedraagt 200 meter vanaf het hart van de weg. Het plangebied bevindt zich buiten deze 200 meter. Er is derhalve geen onderzoek op grond van de Wet geluidhinder noodzakelijk.

Milieuzonering - Martinus College

Zoals is paragraaf 4.2 reeds is onderbouwd ligt het Martinus College op voldoende afstand van voorliggend plangebied. Ruimtelijk zijn de functies wonen en onderwijs goed verenigbaar. Het Martinus College staat in en grenst momenteel al aan een bestaande woonwijk (Kloosterhof). De onderwijsactiviteiten vinden hoofdzakelijk doordeweeks en overdag plaats tussen 8.00u en 17.00u. Gelet op de feitelijke situatie vormt de ligging van de huidige fiets- en brommerstalling de belangrijkste geluidsbron ten opzichte van de woonomgeving. Vanuit de VNG-uitgave Bedrijven- en milieuzonering geldt een richtafstand van 30 meter tot aan geluidsgevoelige bestemmingen (zoals woonbestemmingen). De werkelijke afstand tussen de fiets- en brommerstalling is circa 150 meter.

Een goed woon- en leefklimaat en een goede ruimtelijke ordening is gelet op de inpassing van het plan De Volkstuin en de aanwezigheid van het Martinus College dan ook geborgd.

4.9.3 Betekenis voor het uitwerkingsplan

Uit het voorgaande blijkt dat de woningbouwlocatie in voldoende mate afstand houdt van geluidsbronnen. Het aspect geluid voor geen belemmering voor de realisatie van het project.

4.10 Externe veiligheid

4.10.1 Toetsingskader

Externe veiligheid richt zich op het beheersen van activiteiten die een risico voor de omgeving kunnen opleveren. Bij de (her)inrichting van een gebied bepaalt de externe veiligheidssituatie mede de ruimtelijke (on)mogelijkheden. In het kader van het Besluit ruimtelijke ordening (Bro) gelezen in samenhang met de regels omtrent externe veiligheid, moet worden onderzocht of er sprake is van aanwezigheid van risicobronnen in de nabijheid van de locatie waarop het Wro besluit betrekking heeft. Ook dienen het plaatsgebonden risico (PR) en het groepsrisico (GR), en de eventuele toename hiervan, berekend te worden.

Plaatsgebonden risico

Het plaatsgevonden risico (PR) is de kans per jaar dat een persoon op een bepaalde plaats overlijdt als rechtstreeks gevolg van een ongeval met gevaarlijke stoffen, indien hij onafgebroken en onbeschermd op die plaats zou verblijven. Het PR wordt weergegeven met risicocontouren rondom een inrichting of langs een vervoersas. De normstelling heeft de status van een grenswaarde die niet overschreden mag worden. Voor kwetsbare objecten wordt in zowel bestaande als nieuwe situaties het niveau van 10-6 per jaar als grenswaarde gehanteerd. Nieuwe beperkt kwetsbare objecten zijn alleen gemotiveerd toegestaan. Bestaande beperkt kwetsbare objecten zijn toegestaan binnen de PR 10-6 contour.

Groepsrisico

Het groepsrisico (GR) kan worden beschouwd als de maat van maatschappelijke ontwrichting in geval van een calamiteit (en drukt dus de kans per jaar uit dat een groep mensen van minimaal 10 personen overlijdt als rechtstreeks gevolg van een calamiteit). De normstelling heeft de status van een oriënterende waarde. Deze waarde is geen vastgestelde wettelijke norm. Voor het bevoegd gezag geldt met betrekking tot het GR wel een verantwoordingsverplichting.

Verantwoording GR

Binnen het invloedsgebied geldt dat voor ieder ruimtelijk plan GR-verantwoording verplicht is. Een verantwoording is een kwalitatieve beschrijving over de waarde van het groepsrisico, maatregelen, zelfredzaamheid en bestrijdbaarheid. Het advies van de veiligheidsregio speelt hierbij een belangrijke rol. Bij complexe projecten ligt doorgaans een proces van overleg met veiligheidsdeskundigen ten grondslag.

Besluit externe veiligheid inrichtingen

Het Besluit externe veiligheid inrichtingen (Bevi) uit 2004 legt veiligheidsnormen op aan overheden die besluiten nemen over bedrijven die een risico vormen voor personen buiten het bedrijfsterrein. Het gaat daarbij om bijvoorbeeld chemische fabrieken, LPG-tankstations en spoorwegemplacementen waar goederentreinen met gevaarlijke stoffen rangeren. Deze bedrijven verrichten soms risicovolle activiteiten dichtbij (beperkt) kwetsbare objecten waaronder woningen, ziekenhuizen, scholen, winkels, horecagelegenheden en sporthallen. Hierdoor ontstaan risico's voor mensen die in de buurt ervan wonen of werken. Het besluit verplicht ook om gemeenten bij het maken van bestemmingsplannen waar kwetsbare objecten worden mogelijk gemaakt, zoals woningen, rekening te houden met externe veiligheid. Dit betekent bijvoorbeeld dat de woningen op een bepaalde afstand moeten staan van een risicovol bedrijf dat werkt met grote hoeveelheden aan gevaarlijke stoffen.

Regelgeving transport van gevaarlijke stoffen via buisleidingen

Op 1 januari 2011 is het Besluit externe veiligheid buisleidingen (Bevb) in werking getreden. Het Bevb regelt onder andere welke veiligheidsafstanden moeten worden aangehouden rond buisleidingen die gevaarlijke stoffen vervoeren onder hoge druk. De normstelling is in lijn met het Besluit externe veiligheid inrichtingen (Bevi). Daarmee zijn nieuwe kwetsbare objecten (zoals woningen) binnen de PR 10-6 contour niet toegestaan. Ook is geldt dat wanneer binnen het invloedsgebied van een buisleiding een nieuwe kwetsbare functie wordt mogelijk gemaakt, de verantwoordingsplicht van toepassing is. Het Bevb gaat uit van een belemmeringenstrook van 4 of 5 meter, afhankelijk van de druk in de leiding. Binnen deze strook mag er niet gebouwd worden. Er kan bij omgevingsvergunning van worden afgeweken voor het uitvoeren van werken, geen bouwwerken zijnde, of van werkzaamheden.

Regelgeving transport van gevaarlijke stoffen over wegen, water en spoor

Per 1 april 2015 is het Besluit externe veiligheid transportroutes (Bevt) in werking getreden. In het Bevt staan regels voor de ruimtelijke inrichting rond wegen, waterwegen en spoorwegen waar vervoer van gevaarlijke stoffen over plaatsvindt. Het Bevt hanteert een vaste grens van 200 meter, vanaf de buitenrand van de transportroute, waarbuiten in principe geen beperkingen hoeven te worden gesteld aan het ruimtegebruik. Buiten de 200 meter is een verantwoording niet noodzakelijk als er een toename van het aantal mensen wordt toegestaan. Wel geldt dat bij ruimtelijke ontwikkelingen die nieuwe kwetsbare of beperkt kwetsbare objecten mogelijk maken, buiten de 200 meter, in de toelichting aandacht moet worden besteed aan de aspecten bestrijdbaarheid en zelfredzaamheid voor zover het binnen het invloedsgebied van de transportroute is gelegen.

Ten aanzien van de verantwoordingsplicht GR wordt, net als bij het Bevb, onderscheid gemaakt tussen een volledige verantwoording en een beperkte verantwoording van het GR. Een volledige verantwoording kan achterwege blijven indien kan worden aangetoond dat:

  • 1. het GR, niet hoger is dan 0,1 maal de oriëntatiewaarde voor het groepsrisico, of;
  • 2. het GR, gelet op de redelijkerwijs te verwachten verandering van de dichtheid van personen, met niet meer dan 10% toeneemt en;
  • 3. de oriëntatiewaarde, gelet op de dichtheid van personen, niet wordt overschreden.

Indien sprake is van een volledige verantwoording dienen maatregelen ter beperking van het GR, alternatieve ruimtelijke ontwikkelingen met een lager GR en mogelijkheden en voorgenomen maatregelen ter beperking van de omvang van een calamiteit te worden overwogen. Een beperkte verantwoording houdt wel rekening met de effecten van een calamiteit en vindt alleen plaats als het plangebied binnen het invloedsgebied (effectgebied) van transportassen is gelegen. In het Bevt zijn tevens plasbrandaandachtsgebieden benoemd voor transportroutes. Een PAG is een zone, waarbinnen bij het realiseren van nieuwe kwetsbare objecten aandacht besteed moet worden aan de effecten van een plasbrand. Het kan zijn dat er extra bouwkundige maatregelen nodig zijn om de zelfredzaamheid van de personen te verhogen.

4.10.2 Toetsing

Inrichting

Aan de Raadhuislaan 21 is de Bevi-inrichting Shell Grootebroek gevestigd. Dit is een LPG tankstation met een jaardoorzet van 1.000 m³. De PR-contour bedraag 40 meter en het invloedsgebied bedraagt 150 meter. Deze raken beiden voorliggend plangebied niet en vormen geen belemmering voor de plantontwikkeling.

Plasbrandaandachtsgebied

Er is geen PAG-zone aanwezig die het plangebied raakt.

Buisleidingen

Ten noorden van het plangebied loopt langs het spoor een hogedruk buisleiding van Gasunie (W-573-KR, diameter 6 inch, maximale werkdruk 40 bar). Het plangebied valt buiten het invloedsgebied van deze buisleiding.

Vervoer van gevaarlijke stoffen over spoor, water en weg

In de nabijheid van het plangebied zijn de Raadhuislaan en de N307 aanwezig. De Raadhuislaan wordt als aanvoerroute gebruikt voor het LPG tankstation op de Raadhuislaan 21. Het plangebied is een kleine 300 meter verwijderd van de Raadhuislaan en bevindt zich dus buiten het invloedsgebied van de Raadhuislaan. Er is geen nader onderzoek of een verantwoording GR noodzakelijk.

Langs het plangebied loop de N506/N307. Er wordt LF1-LF2 en GF3 over vervoerd, wat resulteert in een invloedsgebied van 355 meter. In artikel 7 van het Bevt moet wanneer het plan binnen de 200 meter van de transportas ligt een uitgebreide verantwoording worden uitgevoerd, tenzij het groepsrisico lager is dan 0,1 maal de oriëntatiewaarde of wanneer het groepsrisico ligt tussen de 0,1 en 1 maal de oriëntatiewaarde en de toename van het groepsrisico minder is dan 10%.

Ten behoeve van het bestemmingsplan Stede Broec-Zuid heeft de Veiligheidsregio Noord-Holland Noord een marginale toets uitgevoerd om te bepalen hoeveel woningen maximaal toegelaten kunnen worden tot de grens waarbij het groepsrisico onderzocht moet worden. Uit deze berekeningen blijkt dat het groepsrisico niet significant zal toenemen indien minder dan 80 woningen binnen 150 meter afstand van het hart van de N506 worden gebouwd (dus binnen de 80 en 150 meter zone. Buiten de 200 meter is een verantwoording niet noodzakelijk als er een toename van het aantal mensen wordt toegestaan. Voor het vervoer van gevaarlijke stoffen over de N506 / N307 is geen verantwoording noodzakelijk omdat de weg op meer dan 200 meter afstand van het plangebied is gelegen.

4.10.3 Betekenis voor het uitwerkingsplan

Het aspect externe veiligheid vormt geen belemmering voor de realisatie van het project. Er is geen verantwoording van het groepsrisico noodzakelijk. Het aspect externe veiligheid vormt geen belemmering voor de uitvoerbaarheid van het uitwerkingsplan.

4.11 Duurzaamheid

4.11.1 Toetsingskader

Het Rijksbeleid stelt sinds 1 januari 2021 dat alle vergunningsaanvragen voor nieuwbouw, woningbouw en utiliteitsbouw moet voldoen aan de eisen voor Bijna Energienuetrale Gebouwen (BENG). Er gelden 3 eisen voor het bepalen van de energieprestatie:

  • 1. de maximale energiebehoefte in kWh per m2 gebruiksoppervlak per jaar
  • 2. het maximale primair fossiel energiegebruik, eveneens in kWh per m2 gebruiksoppervlak per jaar
  • 3. het minimale aandeel hernieuwbare energie in procenten

Het gemeentelijk klimaatbeleid is beschreven in paragraaf 3.4.3. Hiernaar wordt kortheidshalve verwezen.

4.11.2 Betekenis voor het uitwerkingsplan

Richting de uitvoering wordt voldaan aan de eisen van de BENG. De energieprestatie van de nieuwbouw wordt berekend en getoetst door het bevoegd gezag.

Het plan is in lijn met de uitgangspunten van het gemeentelijk klimaatbeleid. Dit is reeds geconcludeerd in paragraaf 3.4.3. In het stedenbouwkundig plan is onder meer opgenomen dat er gebruik wordt gemaakt van halfverharding, gescheiden riolering, PV-panelen en dat er natuurinclusief wordt gebouwd.

Ten aan zien van het duurzaam bouwen verkent de gemeente samen met de marktpartijen mogelijkheden om extra duurzaamheidsmaatregelen te treffen: een aardgasloze wijk, geothermie en gebruik van duurzame materialen maken onderdeel uit van deze verkenning.

4.12 Verkeer en parkeren

Bij ruimtelijke ontwikkelingen is het van belang om te beoordelen of er belangrijke wijzigingen optreden in de verkeersafwikkeling op de omgeving en of er voldoende parkeergelegenheid wordt gerealiseerd.

4.12.1 Verkeer

In paragraaf 2.2 is beschreven hoe de verkeerssituatie in de omgeving is en hoe het voorliggende plangebied wordt ontsloten. De nabijheid van de Raadhuislaan en de N307 zorgt ervoor dat het verkeer vanaf het plangebied goed kan worden ontsloten.

4.12.2 Parkeren

Bij deze toelichting is in Bijlage 8 een notitie over het parkeren bijgevoegd. Deze notitie bevat een parkeerbalans die is gebaseerd op het door de raad vastgestelde stedenbouwkundige plan. De normen die zijn toegepast genoemd zijn ontleend aan de CROW-parkeerkencijfers. De normen zijn gekoppeld aan de regels van voorliggend uitwerkingsplan. In het uitwerkingsplan is deze regeling op dezelfde wijze toegepast. Hiermee wordt afgedwongen dat voldoende parkeergelegenheid wordt gerealiseerd. Uit de bijgevoegde parkeernotitie blijkt dat er voldoende parkeergelegenheid kan worden gerealiseerd en dat er vanuit dit aspect dan ook geen belemmeringen voor de uitvoerbaarheid van het bestemmingsplan naar voren komen.

4.13 M.e.r -beoordeling

4.13.1 Toetsingskader

Het instrument milieueffectrapportage (m.e.r.) is ontwikkeld om het milieu een volwaardige plaats in de besluitvorming te geven. Voor een aantal activiteiten geldt daarom een zogenoemde m.e.r.-plicht (C-lijst in het Besluit m.e.r.). Deze activiteiten worden gekenmerkt door het feit dat zij over het algemeen belangrijke nadelige milieugevolgen hebben. Voor andere activiteiten geldt dat zij afhankelijk van de omstandigheden nadelige milieugevolgen kunnen hebben (D-lijst in het Besluit m.e.r.). Voor deze laatste activiteiten geldt een zogenaamde m.e.r.-beoordelingsplicht.

Het Besluit milieueffectrapportage (Besluit m.e.r.) geeft aan of voor een project een m.e.r.- (beoordelings)plicht van toepassing is. De ontwikkeling van Waterweide heeft betrekking op de realisatie van woningen, wat als activiteit is opgenomen in de D-lijst onder categorie D11.2 (aanleg, wijzigen of uitbreiden van een stedelijk ontwikkelingsproject) en ontgrondingen, wat als activiteit is opgenomen in de D -lijst onder categorie D16.1 (zie tabel 3.1).

Het Besluit m.e.r. geeft onder 'gevallen' per activiteit aan wat de relevante drempel is voor een m.e.r.-(beoordelings)plicht. Met de ontwikkeling van voorliggend uitwerkingsplan worden de (indicatieve) drempelwaarden uit het Besluit m.e.r. niet overschreden, zodat op basis daarvan geen m.e.r.-(beoordelings)plicht geldt. Indien een activiteit een omvang heeft die onder de drempelwaarden ligt, dient op grond van de selectiecriteria in de Europese richtlijn milieueffectbeoordeling te worden vastgesteld of belangrijke nadelige gevolgen van de activiteit voor het milieu kunnen worden uitgesloten, een zogenaamde 'vormvrije m.e.r.- beoordeling'. Pas als dat het geval is, is de activiteit niet m.e.r.-(beoordelings)plichtig.

4.13.2 Aanmeldnotitie m.e.r.

Voor het voorliggende uitwerkingsplan is een aanmeldingsnotitie geschreven als vormvrije m.e.r.- beoordeling. Deze notitie is als Bijlage 9 bijgevoegd bij deze toelichting. Uit deze aanmeldingsnotitie blijkt dat gezien de te verwachten effecten er geen belangrijke nadelige gevolgen zijn voor het milieu. Een nadere analyse in een PlanMER/m.e.r.-beoordeling is niet noodzakelijk. De ODNHN is akkoord met de opgestelde aanmeldnotitie. Zie het advies in Bijlage 4.

Hoofdstuk 5 Planbeschrijving

5.1 Algemeen

In het voorliggende uitwerkingsplan is het ontwerp van het plangebied niet exact vastgelegd. Er is gekozen voor een globale bestemming die voldoet aan de uitwerkingsregels, zonder de locatie van de toekomstige bebouwing en infrastructuur gedetailleerd vast te leggen. De reden hiervan is dat een toekomstbestendig plan wordt beoogd, waarin voldoende flexibiliteit wordt gegeven om in te spelen op veranderende omstandigheden. Tegelijkertijd wordt de rechtszekerheid geborgd doordat het plan binnen de uitwerkingsregels wordt ontwikkeld.

Op 23 mei 2017 is door de gemeenteraad het Masterplan Waterweide vastgesteld. In onderliggende paragrafen worden de belangrijkste planuitgangspunten uit dit Masterplan benoemd.

5.2 Concept Waterweide

Het concept van Waterweide is geïnspireerd op het oorspronkelijke landschap en gebruik van de polder. In de vroegere polders was de schuit het belangrijkste transportmiddel, het hele leven was op het water georiënteerd. In de loop der decennia, met de intrede van landbouwmachines en de daaropvolgende ruilverkavelingen, werd de schaal van de polder steeds groter. Zowel de hoeveelheid water, als het belang daarvan is daardoor sterk afgenomen. Voormalige landbouwgebieden zijn ontwikkeld tot woonwijken, de auto is niet meer weg te denken uit het straatbeeld. De originele vaarpolder is ingeruild voor een rijpolder.

In Waterweide krijgt het water weer een belangrijke rol. Het gros van de woningen heeft een tuin aan het water, met een ligplek voor een bootje. Ook zijn er diverse openbare plekken aan het water, waardoor het water vanuit verschillende perspectieven beleefd kan worden.

Waterweide is een eilandenrijk, bestaande uit verschillende eilanden. Het oudere Noord- Hollandse landschap kenmerkt zich door een grillig patroon van eilanden, met smallere en bredere watergangen. Deze vormentaal komt terug in de nieuwe eilanden. De bredere, centrale watergang heeft grillig gevormde oevers. Hierdoor ontstaat een afwisseling van lange zichtlijnen en kleine, besloten plekjes aan de waterkant. De beleving van het water wordt zo een spel van spannende en verrassende plekken aan het water.

5.3 Stedenbouwkundig plan De Volkstuin

Op 17 Juli 2018 is het uitwerkingsplan Waterweide vastgesteld. In dit uitwerkingsplan was het complex Kweeklust bewust buiten het plangebied van het uitwerkingsplan gehouden. De gemeente Stede Broec wilde de transformatie zorgvuldig invullen en aanpakken.

Gezien de geografische eigenschappen van het plangebied als eiland sluit het sterk aan bij de uitgangspunten van Waterweide, een groene waterrijke woonomgeving met vaarwater. Waterweide dient daarom als leidraad voor het te ontwikkelen gebied. De materialisatie, bewuste ontwerpkeuzes en het versterken van de identiteit is belangrijk om te blijven waarborgen.

Drie principes zijn vanuit Waterweide toepasbaar op de hovenstructuur van de Volkstuin. Het eerste principe laat zien dat de woningen georiënteerd zijn naar het hof. Principe twee gaat in op het parkeren. Parkeren dient zoveel mogelijk in het groen toegepast te worden. Dat houdt in dat de publieke parkeerplaatsen omzoomd zijn door een blokhaag of boom. Principe drie maakt de overgang tussen openbaar en privé zacht. Ook wel de hybride zone genoemd. Er dient hier geen hoge afscheiding te worden geplaatst op de erfafscheiding, maar juiste een lage overgang, wat of een open verharding is of lage beplanting tot max. 20 cm. De overgang dient hier niet als trottoir tussen de weg en voortuin, maar juist als materiaal verschil waarbinnen shared space ook van toepassing is.

Vanuit de visie is de hovenstructuur het hoofdelement voor De Volkstuin. De principes die daarvoor van belang zijn om de huidige identiteit en de sfeer van een hof te uiten zijn in de volgende drie principes uitgelegd. Het eerste principe gaat over de beleefbaarheid van het plan. Bij binnenkomst van De Volkstuin is het van belang dat er geen auto in het zicht staat. Deze dient na de afslag of in een enkelzijdig parkeerhof te worden gerealiseerd. Het gebouw in de zichtas dient een verbijzondering te hebben in de gevel of in de kaprichting. Voor het tweede principe dient er rondom het hof een diversiteit aan programma te zijn. Dit maakt het hof kwalitatief en zorgt voor een dynamische woonsfeer. De herbruikbaarheid van materialen dient als derde principe. In de bestaande situatie van Kweeklust zijn er betonplaten aanwezig die de onderlinge tuinen met elkaar verbinden. Door deze opnieuw toe te passen in combinatie met een half verharding of houtsnippers suggereren we een herkenbare overgang tussen de tuinen en het openbaar gebied, waar aan de rand tussen fiets en voetpad een lage haag staat.

Hoofdstuk 6 Juridische vormgeving

6.1 Algemeen

Dit hoofdstuk geeft inzicht in de wijze waarop de gewenste ruimtelijke ontwikkeling juridisch is vertaald. Het juridisch bindende deel bestaat uit de regels en de verbeelding. De regels vormen het juridisch instrumentarium voor wat betreft het gebruik van de gronden, de toegelaten bebouwing en het gebruik van op te richten bouwwerken. De verbeelding heeft de functie van visualisering van de bestemmingen en aanduidingen die in de regels worden benoemd.

6.2 Verbeelding

De verbeelding geeft de bestemmingen en aanduidingen van de gronden aan. Deze bestemmingen corresponderen met de artikelen in de regels, zoals beschreven in paragraaf 6.3. Op de verbeelding staan de symbolen en maatvoeringen waarbij in de planregels is opgenomen wat de mogelijkheden en beperkingen zijn.

6.3 Regels

Het voorliggende plan vormt een uitwerking van de bestemming 'Wonen - Uit te werken' uit het bestemmingsplan Stede Broec - Zuid. Het betreft hier een globale bestemming die door burgemeester en wethouders dient te worden uitgewerkt. De uitwerkingsplicht en het kader waarbinnen dit dient te geschieden zijn te vinden in artikel 15 lid 2 van de regels van genoemd bestemmingsplan. Aan dit kader is middels het onderhavige uitwerkingsplan voldaan. Zie hiervoor ook paragraaf 1.3.

Op grond van artikel 3.6 onder 3 Wro maakt de uitwerking deel uit van het bestemmingsplan. Derhalve gelden naast de regels die in deze uitwerking zijn opgenomen, de regels zoals opgenomen in het bestemmingsplan Stede Broec – Zuid. Door de uitwerking van de “globale” bestemmingsregeling in een uitgewerkte bestemmingsregeling wordt de basis gevormd voor directe bouwtitels.

Het uitwerkingsplan bestaat uit een verbeelding en bijbehorende regels en wordt vergezeld van deze toelichting. Op de verbeelding worden de bestemmingen van de gronden aangegeven. De materiële inhoud van de bestemmingen is opgenomen in de regels.

De procedure die bij de totstandkoming van het uitwerkingsplan gevolgd dient te worden is te vinden in artikel 3.6 van de Wet ruimtelijke ordening. In deze procedure wordt het uitwerkingsplan gedurende zes weken ter inzage gelegd en vervolgens vastgesteld door het college van burgemeester en wethouders. Tegen een besluit van het college van B&W inzake de vaststelling kan een belanghebbende beroep instellen bij de Afdeling Bestuursrechtspraak van de Raad van State.

6.3.1 Indeling hoofdstukken

De planregels zijn onderverdeeld in vier hoofdstukken.

  • 1. Hoofdstuk 1 – Inleidende regels;
  • 2. Hoofdstuk 2 – Bestemmingsregels;
  • 3. Hoofdstuk 3 – Algemene regels;
  • 4. Hoofdstuk 4 – Overgangs- en slotregels.

In onderstaande subparagrafen worden de regels per hoofdstuk toegelicht.

6.3.2 Hoofdstuk 1 - Inleidende regels

Dit hoofdstuk bevat de inleidende bepalingen van de regels en onderstaande artikelen zijn in dit hoofdstuk opgenomen:

Artikel 1: Begrippen

Dit artikel geeft de betekenis aan van in de regels voorkomende begrippen. De begripsbepalingen staan op alfabetische volgorde. Voor een aantal begrippen zijn de wettelijk in de SVBP 2012 voorgeschreven definitiebepalingen gebruikt.

Artikel 2: Wijze van meten

Dit artikel geeft aan op welke wijze de berekening van maten plaatsvindt.

6.3.3 Hoofdstuk 2 - bestemmingsregels

Hoofdstuk 2 bevat de juridische vertaling van de verschillende bestemmingen die in het plangebied voorkomen. Voor ieder bestemmingsvlak op de verbeelding, bevat hoofdstuk 2 een regeling. Bij de indeling van de bestemmingsregels is conform de SVBP 2012 een vaste volgorde aangehouden. De regels van een bestemming worden als volgt opgebouwd en benoemd:

  • 1. bestemmingsomschrijving (omschrijving van de toegestane functies en gebruiksdoelen);
  • 2. bouwregels (regels waaraan de bebouwing dient te voldoen);
  • 3. eventuele nadere eisen die het college van burgemeester en wethouders aan de bebouwing kan stellen;
  • 4. eventuele afwijking van de bouwregels (regels op grond waarvan in concrete situaties onder bepaalde voorwaarden kan worden afgeweken van de bouwregels);
  • 5. eventuele specifieke gebruiksregels (regels die aangeven welk specifiek gebruik verboden is);
  • 6. eventuele afwijking van de gebruiksregels (regels op grond waarvan in concrete situaties onder bepaalde voorwaarden kan worden afgeweken van de gebruiksregels);

Artikel 3: Wonen

'Wonen' is de enige enkelbestemming van dit uitwerkingsplan. De gronden met deze bestemming zijn bestemd voor de woonfunctie. Náást het eigenlijke wonen is ook de uitoefening van een aan-huis-verbonden-beroep of bedrijf toegestaan. Ook de functies parkeren, tuin, erf , wegen, fiets- en voetpaden, groen, nutsvoorzieningen en water zijn op de gronden toegestaan.

Het uitwerkingsplan geeft een directe bouwtitel voor de toekomstige woningen in het plangebied. In de bouwregel voor 'Wonen' is daarom opgenomen dat op de gevel van een woning dient te worden voldaan aan de maximale geluidbelasting conform de Wet geluidhinder of aan het genomen hogere waardenbesluit.

In de bouwregels is verder, conform de voorwaarde uit het moederplan, opgenomen dat er maximaal 25 woningen per hectare zijn toegestaan.

In deze bestemming is ten aanzien van de bouwregels een onderscheid gemaakt in 'hoofdgebouwen' (woningen in niet gestapelde vorm en woningen in gestapelde vorm), 'bijbehorende bouwwerken' en 'bouwwerken, geen gebouwen zijnde'.

Voor de hoofdgebouwen is de maximale goot- en bouwhoogte opgenomen, waarbij onderscheid wordt gemaakt tussen een gebouw voor gestapelde- en voor niet-gestapelde woningen. Tevens is de maximum oppervlakte voor grondgebonden woningen per hoofdgebouw opgenomen. Het type woning is niet vastgelegd, dit kunnen rijwoningen, twee-onder-één-kapwoningen, gestapelde of vrijstaande woningen worden. Binnen 1 meter vanaf de waterkant mogen geen bouwwerken worden gebouwd. Ten opzichte van de openbare weg geldt een afstand van 3 meter voor de voorgevel van een hoofdgebouw.

Bij bijbehorende bouwwerken moet worden gedacht aan garages, bergingen, tuinhuisjes, erkers, bijkeukens enzovoorts. Bijbehorende bouwwerken mogen uitsluitend in het achtererfgebied worden gebouwd. Voor het achtererfgebied geldt dat dit vergunningvrij is voor zo ver dit is geregeld in het Besluit omgevingsrecht (Bor). Wel is opgenomen dat binnen 1 meter vanaf de waterkant niet gebouwd mag worden. De oppervlakte van bijbehorende bouwwerken in achtererfgebied mag ten hoogste 60m2 bedragen. Bijbehorende bouwwerken kennen een hoogtebeperking voor zowel de goothoogte (3 meter) als de bouwhoogte (6 meter) met dien verstande dat de bouwhoogte van tussen een blok geschakelde twee-onder-één kapwoningen aangebouwde bijbehorende bouwwerken ten hoogste 4,50 m mag bedragen.

Ook bouwwerken, geen gebouwen zijnde mogen niet binnen 1 meter vanaf de waterkant worden gebouwd.

In artikel 2 onderdeel 13 van bijlage 2 van het Besluit omgevingsrecht is opgenomen dat er geen omgevingsvergunning is vereist voor een constructie voor het overbruggen van een terreinhoogteverschil van niet meer dan 1 meter die niet hoger is dan het aansluitende afgewerkte terrein. Onderstaande afbeeldingen geven een indicatie van de aansluiting van oevers op het water in het plan De Volkstuin.

afbeelding "i_NL.IMRO.0532.UWPVolkstuin-VG01_0009.jpg"

Figuur 6.1 principeprofiel oever 1

afbeelding "i_NL.IMRO.0532.UWPVolkstuin-VG01_0010.jpg"

Figuur 6.2 principeprofiel oever 2

In de woonbestemming zijn afwijkingsregels opgenomen voor bouwwerken, geen gebouwen zijnde. Binnen 1 meter vanaf de waterkant zijn onder voorwaarden wel steigers en/of boothuizen toegestaan.

In de gebruiksregels binnen de bestemming wonen is opgenomen wat strijdig gebruik is in het kader van de uitoefening van een aan-huis-verbonden beroep of bedrijf. Tevens is opgenomen dat huisvesting van buitenlandse werknemers die samen geen huishouden vormen strijdig gebruik van de gronden oplevert.

Artikel 4: Waarde – Archeologie

Voor de gronden met de bestemming 'Waarde – Archeologie' geldt dat er een omgevingsvergunning voor het uitvoeren van werken geen bouwwerken zijnde en werkzaamheden nodig is bij onder andere aanleg van een verhard oppervlak groter dan 1000 m² en als er dieper wordt gegraven dan 40 cm. Tevens moet er in een archeologisch rapport aangetoond worden dat de archeologische waarde voldoende wordt vastgesteld en zal er een toets plaatsvinden door een deskundige op het terrein van de archeologische monumentenzorg.

6.3.4 Hoofdstuk 3 - Algemene regels

Hoofdstuk 3 bevat de algemene regels. Deze regels gelden voor het hele plangebied.

Artikel 5: Antidubbeltelregeling

Op grond van de antidubbeltelregel is bepaald dat grond die eenmaal in aanmerking is genomen bij het toestaan van een bouwplan waaraan uitvoering is gegeven of alsnog kan worden gegeven, bij de beoordeling van latere bouwplannen buiten beschouwing blijft (artikel 3.2.4 Bro). Deze bepaling voorkomt dat er meer kan worden gebouwd dan er wenselijk is indien een kavel wordt gesplitst en op grond daarvan een nieuw bouwperceel ontstaat.

Artikel 6: Algemene gebruiksregels

In dit artikel worden regels gesteld aan het gebruik die gelden voor alle bestemmingen in dit uitwerkingsplan. Er wordt voorzien in een regeling ten aanzien van parkeervoorzieningen binnen het plangebied.

Artikel 7: Algemene aanduidingsregels

In dit artikel worden aanvullende regels gesteld aan het gebruik van gronden.

Daarnaast zijn er middels de aanduiding 'Overige zone - zoekgebied - ontsluiting' gronden aangewezen waar een ontsluiting op Waterweide mag worden gerealiseerd met dien verstande dat per aanduidingsvlak maximaal 1 ontsluiting mag worden gerealiseerd.

De aanduiding voor de ontsluiting is opgenomen omdat de exacte locatie van de ontsluiting nog niet vast staat.

Artikel 10: Overige regels

Dit artikel bevat een afstemmingsregel om het plan ten aanzien van de inrichting van het gebied, de integrale ontwerpprincipes met betrekking tot landschap, stedenbouw en architectuur af te stemmen op het Masterplan Waterweide en het Beeldkwaliteitsplan Waterweide.

6.3.5 Hoofdstuk 4 - Overgangs- en slotregels

Artikel 8: Overgangsrecht

In het overgangsrecht is een regeling opgenomen voor bebouwing en gebruik dat al bestond en was toegestaan bij het opstellen van het plan, maar dat strijdig is met de opgenomen regeling. Onder bepaalde voorwaarden mag deze strijdige bebouwing en/of strijdig gebruik worden voortgezet of gewijzigd. De regeling is overgenomen uit de standaardbepaling in het Besluit ruimtelijke ordening. Artikel 3.2.1 Bro stelt regels voor overgangsrecht van bouwwerken en artikel 3.2.2 Bro stelt regels voor overgangsrecht van gebruik

Artikel 9: Slotregel

In de slotregel is de officiële naam van het plan, Kweeklust, bepaald. Onder deze naam kan het uitwerkingsplan worden aangehaald.

Hoofdstuk 7 Uitvoerbaarheid

7.1 Maatschappelijke uitvoerbaarheid

Aanloopfase

Als start is een informatiebijeenkomst georganiseerd in het Martinuscollege te Grootebroek op 6 maart 2019. De bijeenkomst had de vorm van een inloopavond voor de omgeving. Daarbij is aandacht besteed aan de ontwikkeling van Waterweide en de toekomst van de Volkstuin. Op 12 mei 2020 zijn de omwonenden geïnformeerd over de voortgang van de planontwikkeling op de Volkstuin. Dit werd gevolgd door een brief in juni 2021 waarbij gelegenheid is gegeven op schetsen te reageren via het digitale Burgerpanel. Deze reacties zijn verwerkt in powerpoint presentaties.


In het stedenbouwkundig plan is gehoor gegeven aan de wens om een gevarieerd woningaanbod mogelijk te maken met starterswoningen en sociale huurwoningen.


Per brief van 6 september 2021 zijn de omwonenden op de hoogte gesteld van het uiteindelijke plan zoals dat ten grondslag ligt aan voorliggend uitwerkingsplan.

Vooroverleg

In het kader van het wettelijk verplichte vooroverleg ex artikel 3.1.1 Bro is het uitwerkingsplan toegestuurd aan verschillende overleginstanties.


Uniforme openbare voorbereidingsprocedure

In artikel 3.9a van de Wet ruimtelijke ordening (Wro) is bepaald dat op de voorbereiding van een uitwerkingsplan de uniforme openbare voorbereidingsprocedure van toepassing is, zoals vastgelegd in afdeling 3.4 Algemene wet bestuursrecht (Awb). Het uitwerkingsplan heeft vanaf 10 februari 2022 gedurende zes weken in ontwerp ter inzage gelegen. In deze periode konden belanghebbenden zienswijzen bij het college van burgemeester en wethouders indienen.

Er zijn twee zienswijzen ingediend. Voor de samenvatting van de zienswijzen en de beoordeling ervan wordt verwezen naar Bijlage 10.

7.2 Financiële uitvoerbaarheid

Bij de voorbereiding van een bestemmingsplan dient, op grond van artikel 3.1.6 lid 1, sub f van het Bro, onderzoek plaats te vinden naar de (economische) uitvoerbaarheid van het plan. In principe dient bij vaststelling van een ruimtelijk besluit tevens een exploitatieplan vastgesteld te worden om het verhalen van plankosten zeker te stellen. Op basis van artikel 6.12, lid 2 van de Wro kan de gemeenteraad bij het besluit tot vaststelling van het bestemmingsplan echter besluiten geen exploitatieplan vast te stellen indien het verhaal van kosten van de grondexploitatie over de in het plan of besluit begrepen gronden anderszins verzekerd is.

In voorliggend geval is tussen de gemeente en de ontwikkelaar (Kuin) een anterieure overeenkomst gesloten waarin de kosten van de grondexploitatie verzekerd zijn. De ontwikkelaar koopt gronden van de gemeente en levert de openbare ruimte na ontwikkeling terug aan de gemeente.