direct naar inhoud van Toelichting
Plan: Vijfhuizen Spieringweg 468
Status: vastgesteld
Plantype: bestemmingsplan
IMRO-idn: NL.IMRO.0394.BPGvyfspieriwg468-C001

Toelichting

Hoofdstuk 1 Inleiding

1.1 Aanleiding

Wilma Wonen B.V. is voornemens om de locatie Spieringweg 468 te Vijfhuizen te herontwikkelen. Het doel is om de bestaande villa met bijgebouwen te slopen en daarvoor in de plaats maximaal 30 woningen te realiseren.

Het planvoornemen past niet binnen het vigerende bestemmingsplan Vijfhuizen 2010 dat op 30 september 2010 door de gemeenteraad van de gemeente Haarlemmermeer is vastgesteld. Om de strijdigheid op te heffen is voorliggend bestemmingsplan opgesteld.

1.2 Ligging en begrenzing plangebied

Het plangebied is gelegen in de kern Vijfhuizen en wordt begrens door de Spieringweg (noordwesten), de woningen aan de Telraam (zuidwesten), de Voorgracht (zuidoosten) en de Liniewal (noordoosten).

afbeelding "i_NL.IMRO.0394.BPGvyfspieriwg468-C001_0001.png"

Afbeelding 1.1: Ligging plangebied in geel kader op de luchtfoto van Vijfhuizen (bron: www.globespotter.nl)

Het plangebied bestaat uit de kadastrale percelen bekend als gemeente Haarlemmermeer, sectie AC nummers 478, 480, 493, 1225, 1226, 1791 en 1792 en is in totaal 9.500 m2 groot.

Voorgenomen herontwikkeling

Voor de herontwikkeling van de Spieringweg 468 is onderstaande stedenbouwkundige verkaveling opgesteld. Het plan gaat uit van een pleinachtige invulling met rijwoningen langs de Liniewal ter hoogte van het André Kuipers Prieel. In de bebouwing krijgen de hoekwoningen een accent.

Langs het oude lint van de Spieringweg worden passend in het straatbeeld 2-onder-1-kap woningen gerealiseerd. Deze verspringen in de rooilijn om aan te sluiten bij de lintbebouwing. Grenzend aan de Voorgracht worden eveneens 2-onder-1-kap woningen gerealiseerd die hierbij aansluiten op de 2-onder-1-kap woningen aan de overzijde van de watergang aan de Voorgracht.

Het binnenterrein wordt ingevuld met rijwoningen (Blok 3 in onderstaande afbeelding 1.2). Het woongebied is bereikbaar via de Liniewal en via de Telraam.

afbeelding "i_NL.IMRO.0394.BPGvyfspieriwg468-C001_0002.png"

Afbeelding 1.2: Stedenbouwkundig plan (bron: GJS architecten)

1.3 Doel en planvorm

De doelstelling van het bestemmingsplan (Vijfhuizen Spieringweg 468 en NL.IMRO.0394.BPGvyfspieriwg468-C001) is het bieden van een actueel juridisch-planologisch kader voor het plangebied om de voorgenomen herontwikkeling mogelijk te maken zoals beschreven in paragraaf 1.2.

Daarbij worden in de regels en de verbeelding de hoofdopzet van het gebied vastgelegd. Gelet op de nieuwe invulling van het plangebied is er sprake van enige flexibiliteit om in te kunnen spelen op de woonwensen van de toekomstige bewoners.

1.4 Geldende bestemmingsplannen en regelingen

Het bestemmingsplan Vijfhuizen Spieringweg 468 vervangt – voor een gedeelte – de volgende bestemmingsplannen:

afbeelding "i_NL.IMRO.0394.BPGvyfspieriwg468-C001_0003.png"

Afbeelding 1.3: Uitsnede vigerend bestemmingsplan

Plannaam   Vastgesteld   Onherroepelijk  
Vijfhuizen 2010   30 september 2010   n.v.t.  

1.5 Planproces

Een bestemmingsplan doorloopt de procedure zoals bedoeld in de Wet ruimtelijke ordening (Wro). Het voorontwerp bestemmingsplan wordt ex art. 3.1.1 Besluit ruimtelijke ordening (Bro) voor advies voorgelegd aan Rijk, provincie en waterschap. Door de gemeente Haarlemmermeer wordt in dit stadium van planvorming ook de betreffende dorps- of wijkraad in de gelegenheid gesteld op het voorontwerp bestemmingsplan te reageren. Binnengekomen reacties uit het wettelijk vooroverleg worden verwerkt in het ontwerp bestemmingsplan.

1.6 Leeswijzer

Het tweede hoofdstuk van deze toelichting geeft een beeld van de bestaande situatie in het plangebied. Er wordt een beschrijving gegeven van de ruimtelijke en functionele structuur van het gebied. In het derde hoofdstuk wordt ingegaan op het relevante beleid en de regelgeving en de invloed hiervan op het bestemmingsplan. Het vierde hoofdstuk gaat in op de nieuwe situatie met de te verwachten ontwikkelingen en de gewenste ruimtelijk-functionele structuur. Het vijfde hoofdstuk gaat in op de onderzoeksgegevens en beperkingen. In het hoofdstuk zes komt de uitvoerbaarheid aan bod en in het laatste hoofdstuk wordt ingegaan op de juridische aspecten van dit bestemmingsplan.

Hoofdstuk 2 Beschrijving huidige situatie

2.1 Ruimtelijke structuur

Historische context

Ter plaatse van wat nu het dorp Vijfhuizen is, heeft de lintbebouwing van de polderwegen Vijfhuizerweg, Spieringweg en Kromme Spieringweg zich langzamerhand verdicht tot de dorpskern met individuele, afwisselende bebouwing. Het deel van de lintbebouwing direct grenzend aan de dorpskern bestaat merendeels uit enkele en dubbele woningen, die nu eens met de langsgevel, dan weer met de kopgevel naar de dijk gericht zijn. De panden hebben vaak tuinen aan de zijkant of kleine tuinen aan de voorkant.

Begrenzing plangebied

Het plangebied bestaat uit een woonkavel die gelegen is aan de Spieringweg in Vijfhuizen. De omgeving van het plangebied kenmerkt zich door een mix van wonen en werken, met lichte bedrijvigheid aan de Kromme Spieringweg en woonbebouwing langs de Spieringweg, Telraam, Liniewal en Voorgracht. In het plangebied bevindt zich een vrijstaande villa gelegen in het groen. Het oude dorp kent een sterke stedebouwkundige en architectonische eenheid en structuur.

Het plangebied bestaat uit het woonperceel Spieringweg 468 te Vijfhuizen. Het perceel is omgeven door een groene haag en nagenoeg aan het zicht onttrokken vanaf de openbare weg. De groene wand langs de Voorgracht en Liniewal springen daarbij het meest in het oog.

afbeelding "i_NL.IMRO.0394.BPGvyfspieriwg468-C001_0004.png"

Afbeelding 2.1: Zicht op het plangebied vanaf de Voorgracht (bron: www.globespotter.nl)

De toegang van het perceel is gelegen aan de Spieringweg. Langs de watergang staan knotwilgen en daarachter wederom een groene haag die de bestaande bebouwing aan het zicht onttrekt. Eenzelfde afscheiding is aanwezig tussen het perceel en de woningen aan de Telraam.

De bebouwing is geconcentreerd centraal op het perceel. De belangrijkste ontsluiting voor het gebied is de Spieringweg richting de N201 (zuidwestelijke richting) en richting de Vijfhuizerweg (noordoostelijke richting) naar het centrum van Vijfhuizen en de N205.

Langs de Spieringweg en Voorgracht zijn bestaande watergangen gelegen. De watergang langs de Voorgracht is breed en biedt ruimtelijke kwaliteit waar de nieuwe woningen op aansluiten.

2.2 Functionele structuur

Het plangebied kent op dit moment de functie wonen. Deze functie wordt niet gewijzigd. Wel zal het gebruik geïntensiveerd worden nu de huidige woning en het terrein wordt aangepast naar een woongebied met maximaal 30 woningen.

Hoofdstuk 3 Beleid en regelgeving

3.1 Rijk en Europa

3.1.1 Structuurvisie Infrastructuur en Ruimte (SVIR)

De minister van Infrastructuur en Milieu heeft op 13 maart 2012 de Structuurvisie Infrastructuur en Ruimte (SVIR) vastgesteld. De structuurvisie bevat een concrete, bondige actualisatie van het mobiliteits- en ruimtelijke ordeningsbeleid. Dit nieuwe beleid vervangt de Nota Mobiliteit, de Nota Ruimte en de structuurvisie Randstad 2040. De structuurvisie heeft betrekking op:

  • Het vergroten van de concurrentiekracht van Nederland door het versterken van de ruimtelijk-economische structuur van Nederland;
  • Het verbeteren, instandhouden en ruimtelijk zeker stellen van de bereikbaarheid waarbij de gebruiker voorop staat;
  • Het waarborgen van een leefbare en veilige omgeving waarin unieke natuurlijke en cultuurhistorische waarden behouden zijn.

Bij deze aanpak hanteert het Rijk een filosofie die uitgaat van vertrouwen, heldere verantwoordelijkheden, eenvoudige regels en een selectieve rijksbetrokkenheid. Zo laat het Rijk de verantwoordelijkheid voor de afstemming tussen verstedelijking en groene ruimte op regionale schaal over aan provincies. Daarmee wordt bijvoorbeeld het aantal regimes in het landschaps- en natuurdomein fors ingeperkt. Daarnaast wordt (boven)lokale afstemming en uitvoering van verstedelijking overgelaten aan (samenwerkende) gemeenten binnen provinciale kaders. Alleen in de stedelijke regio's rond de mainports (Amsterdam c.a. en Rotterdam c.a.) zal het Rijk afspraken maken met decentrale overheden over de programmering van verstedelijking. Overige sturing op verstedelijking zoals afspraken over percentages voor binnenstedelijk bouwen, rijksbufferzones en doelstellingen voor herstructurering laat het rijk los.

Artikel 3.1.6 Besluit ruimtelijke ordening (Bro)

Om zorgvuldig ruimtegebruik te bevorderen neemt het rijk enkel nog een 'ladder' voor duurzame verstedelijking op. Hierdoor neemt de bestuurlijke drukte af en ontstaat er ruimte voor regionaal maatwerk. Het gebruik van deze ladder is opgenomen in het Bro (artikel 3.1.6 onder 2). De ladder richt zich op nieuwe stedelijke ontwikkelingen.

In artikel 3.1.6 onder 2 is bepaald dat: "De toelichting bij een bestemmingsplan dat een nieuwe stedelijke ontwikkeling mogelijk maakt, een beschrijving bevat van de behoefte aan die ontwikkeling, en, indien het bestemmingsplan die ontwikkeling mogelijk maakt buiten het bestaand stedelijk gebied, een motivering waarom niet binnen het bestaand stedelijk gebied in die behoefte kan worden voorzien."

Het Bro beschrijft wat een stedelijke ontwikkeling is: "een ruimtelijke ontwikkeling van een bedrijventerrein of zeehaventerrein, of van kantoren, detailhandel, woningbouwlocaties of andere stedelijke voorzieningen." Onder 'bestaand stedelijk gebied' wordt het volgende verstaan: "bestaand stedenbouwkundig samenstel van bebouwing ten behoeve van wonen, dienstverlening, bedrijvigheid, detailhandel of horeca, alsmede de daarbij behorende openbare of sociaal culturele voorzieningen, stedelijk groen en infrastructuur."

Daarbij is in het Besluit ruimtelijke ordening (Bro) aangegeven dat de laddertoets bij flexibele plannen (wijzigingsplannen en/of uitwerkingsplannen) kan worden doorgeschoven naar het moment van vaststelling van een wijzigings- of uitwerkingsplan.

Conclusie

Het Besluit ruimtelijke ordening schrijft voor dat bij een 'stedelijke ontwikkeling' de behoefte naar deze functie moet worden aangetoond. De beschrijving van de behoefte aan woningen in de kern Vijfhuizen is opgenomen in paragraaf 3.3.2 waar wordt ingegaan op de gemeentelijke Woonvisie.

Woningbouw in de kern Vijfhuizen heeft een positieve werking op het in stand houden van het voorzieningenniveau. Daarnaast past woningbouw qua functie goed bij de aard en kwaliteit van de bestaande omgeving.

Omdat het plangebied is gelegen binnen het stedelijk gebied van de kern Vijfhuizen is een motivering waarom er sprake is van een ontwikkeling buiten het bestaand stedelijk gebied niet aan de orde.

3.1.2 Besluit algemene regels ruimtelijke ordening

Structuurvisies hebben geen bindende werking voor andere overheden dan de overheid die de visie heeft vastgesteld. De nationale belangen uit de structuurvisie die juridische borging vragen, zijn daarom geborgd in het Besluit algemene regels ruimtelijke ordening. Op 30 december 2011 is het Besluit algemene regels ordening (Barro) in werking getreden. Op 18 mei 2016 is de geconsolideerde versie van het Barro vastgesteld.

Het plangebied is in de kaart behorende bij het Barro aangewezen als zijnde erfgoederen van uitzonderlijke universele waarde "De Stelling van Amsterdam". Het plangebied, net als de kern Vijfhuizen, is opgenomen in kaartnummer 7 van het Barro.

Vanuit het Barro volgt uit artikel 2.13.4 dat de desbetreffende provinciale staten bij een verordening de geobjectiveerde kernkwaliteiten moeten uitwerken van de te onderscheiden delen van de erfgoederen. In deze Verordening worden ook regels gesteld in het belang van de instandhouding en versterking van de kernkwaliteiten. Er kunnen regels worden gesteld omtrent de inhoud van de toelichting bij bestemmingsplannen en de inhoud van omgevingsvergunning. Middels de omgevingsvergunning kan van de gestelde regels worden afgeweken. In de Verordening worden ook regels opgenomen die bewerkstelligen dat een bestemmingsplan of omgevingsvergunning geen activiteiten mogelijk maakt die de kernkwaliteiten van de waarde aantasten.

De gemeente Haarlemmermeer is gelegen binnen de regio Noordwest-Nederland. Voor deze regio gelden onder meer de volgende opgaven van nationaal belang:

  • het versterken van de mainport Schiphol en het bijbehorende netwerk van verbindingen door het opstellen van de Rijksstructuurvisie voor de Schipholregio (SMASH);
  • het robuust en compleet maken van het hoofdenergienetwerk (380 kV);
  • het tot stand brengen en beschermen van de (herijkte) EHS, inclusief de Natura 2000-gebieden.

In dat kader verdient nog nadrukkelijk aandacht de uitspraak van de Afdeling bestuursrechtspraak van de Raad van State van 29 mei 2019, ECLI:NL:RVS:2019:1603 en ECLI:NL:RVS:2019:1604. In deze uitspraak heeft de Afdeling beslist dat het Programma Aanpak Stikstof (hierna: PAS) niet meer gebruikt mag worden als basis om toestemming te verlenen voor activiteiten die leiden tot een stikstoftoename ter plaatse van stikstofgevoelige habitattypen en soorten in Natura 2000-gebieden. In hoofdstuk 5 zal worden verantwoord of en in hoeverre er vanwege het plan sprake is van significante effecten op de meest nabijgelegen Natura 2000-gebieden vanwege de toename van stikstof.

Conclusie

Het plangebied is gelegen binnen een invloedssfeer van het Barro. De provincie Noord-Holland heeft de kernkwaliteiten van de Stelling van Amsterdam uitgewerkt in het Uitvoeringsprogramma Stelling van Amsterdam en Nieuwe Hollandse Waterlinie 2017-2020. De gevolgen voor dit bestemmingsplan worden in paragraaf 3.2 beschreven.

In hoofdstuk 5 zal worden verantwoord of en in hoeverre er vanwege het plan sprake is van significante effecten op de meest nabijgelegen Natura 2000-gebieden vanwege de toename van stikstof.

3.1.3 Luchthavenindelingsbesluit Schiphol (LIB)

Het Luchthavenindelingbesluit Schiphol (LIB) legt beperkingen op aan objecten, bebouwing en gebruiksfuncties in het gebied rond de luchthaven Schiphol.

Het Ministerie van Infrastructuur en Milieu heeft een webapplicatie ter beschikking gesteld om hulp te bieden bij het toetsen van ruimtelijke plannen aan het LIB.

Conclusie

Het plangebied is uitgaande van de openbare Actueel Hoogtebestand Nederland (AHN) informatie gelegen op ca. 3 meter - NAP. De bouwhoogte is ca. 11 meter vanaf vloerpeil voor de nieuwe woningen. Worst-case toetsing levert geen beperkingen op omdat de bouwhoogte (veel) lager is (8 meter + NAP) dan de beperking ten aanzien van de maximale hoogte voor bebouwing uit het LIB.

Ook maakt het plan geen functies mogelijk die vogels aantrekken danwel hoge windturbines mogelijk maken die hinder opleveren voor het vliegverkeer. De toetsing aan het LIB is beschreven in paragraaf 5.11 van deze toelichting en Bijlage 3 van het bestemmingsplan.

Uit de toetsing aan het LIB volgt dat:

  • a. er geen beperking is voor bebouwing conform artikel 2.2.1 lid c en kaartbijlage 3 LIB;
  • b. de maatgevende toetshoogte van bebouwing ten opzichte van het NAP bedraagt maximaal 40 meter + NAP, zie onderstaande uitsnede van kaartbijlage 4 LIB. Nu de bebouwing onder deze maatvoering valt is er geen belemmering;

afbeelding "i_NL.IMRO.0394.BPGvyfspieriwg468-C001_0005.png"

Afbeelding 3.1: uitsnede toetshoogte bebouwing ten opzichte van NAP (kaartbijlage 4 LIB, bron: www.overheid.nl)

  • c. de maatgevende toetshoogte van bebouwing ten opzichte van het NAP voor het verstoren van de radar bedraagt maximaal 55 meter + NAP, zie onderstaande uitsnede van kaartbijlage 4a LIB. Nu de bebouwing onder deze maatvoering valt is er geen belemmering.

afbeelding "i_NL.IMRO.0394.BPGvyfspieriwg468-C001_0006.png"

Afbeelding 3.2: uitsnede toetshoogte bebouwing ten opzichte van NAP voor verstoring radargebied (kaartbijlage 4a LIB, bron: www.overheid.nl)

3.1.4 Conclusie Rijksbeleid

Het Rijksbeleid vormt geen belemmeringen voor het planvoornemen. Het plan wordt getoetst aan de ladder (zie paragraaf 3.1.1 en 3.3.2) voor stedelijke ontwikkeling zoals opgenomen in de Provinciale Ruimtelijke Verordening. De ligging van het plangebied in het gebied van de Stelling van Amsterdam wordt verder beschreven in paragraaf 3.2.2.

3.2 Provinciaal en regionaal beleid

3.2.1 Omgevingsvisie

Op 19 november 2018 hebben de Provinciale Staten van Noord-Holland de Omgevingsvisie NH2050 vastgesteld. Hierin staat de visie op de fysieke leefomgeving beschreven.

De leidende hoofdambitie in de Omgevingsvisie NH2050 is de balans tussen economische groei en leefbaarheid. Een gezonde en veilige leefomgeving, die goed is voor mens, plant én dier, is een voorwaarde voor een goed economisch vestigingsklimaat. Tegelijkertijd is duurzame economische ontwikkeling een voorwaarde voor het kúnnen investeren in een prettige leefomgeving. Omdat het leefbaar houden van de provincie Noord-Holland ook vraagt om grote investeringen in bijvoorbeeld het landschap, natuurontwikkeling en de transitie naar een duurzame energiehuishouding.

5 bewegingen

In de visie zijn 5 bewegingen met ontwikkelprincipes beschreven voor de ontwikkeling van de leefomgeving.

  • 1. Dynamisch schiereiland. Hierin is het benutten van de unieke ligging van Noord-Holland, te midden van water, leidend.
  • 2. Metropool in ontwikkeling. Hierin wordt beschreven hoe de Metropoolregio Amsterdam steeds meer als één stad functioneert.
  • 3. Sterke kernen, sterke regio’s, gaat over de ontwikkeling van centrumgemeenten die de gehele regio waarin ze liggen vitaal houden.
  • 4. Nieuwe energie, benut de economische kansen van de energietransitie.
  • 5. Natuurlijk en vitaal landelijke omgeving, staan het ontwikkelen van natuurwaarden en een economisch duurzame agrarische sector centraal.

De eerste stap in de uitwerking van de Omgevingsvisie wordt gezet in het opstellen van een Omgevingsverordening. Ook werkt de provincie Noord-Holland aan de borging van de Omgevingsvisie in programma’s voor de kortere termijn.

3.2.2 Provinciale Ruimtelijke Verordening

Provinciale Staten heeft in maart 2010 de Provinciale Ruimtelijke Verordening (hierna PRV) vastgesteld. In 2012, 2013 en in 2016 is de PRV op onderdelen geactualiseerd en/of aangevuld. De meest recente versie van de PRV is ingegaan op 23 april 2018.

De PRV schrijft voor waaraan de inhoud van (gemeentelijke) bestemmingsplannen, omgevingsvergunningen voor afwijken van het bestemmingsplan en beheersverordeningen moeten voldoen. In de verordening zijn regels opgenomen voor onderwerpen met heldere criteria, weinig gemeentelijke beleidsvrijheid en een provinciaal belang. De regels in de PRV zijn gebaseerd op de beleidskeuzes in de provinciale structuurvisie Noord-Holland 2040. Het gaat daarbij om thema's over bebouwingscontouren, ecologische hoofdstructuur, agrarische bedrijven, kantoren, bedrijventerreinen, detailhandel, waterkeringen et cetera. Omdat de provincie gebonden is aan haar eigen beleid, is het inpassingsplan getoetst aan de PRV.

Relevante regels

De volgende regels uit de PRV zijn van toepassing op het plangebied:

  • Unesco-erfgoederen van uitzonderlijke universele waarden (artikel 20);
  • Kleinschalige oplossingen voor duurzame energie (artikel 33).

Unesco-erfgoederen van uitzonderlijke universele waarden

In artikel 20 van de Provinciale Ruimtelijke Verordening is de Stelling van Amsterdam aangewezen als erfgoed van uitzonderlijke universele waarden. In artikel 21 is aangegeven dat voor de gronden gelegen binnen de in artikel 20 genoemde erfgoederen van uitzonderlijke universele waarden in het bestemmingsplan regels dienen te worden opgenomen ten behoeve van het behoud of versterking van de kernkwaliteiten van de erfgoederen van de uitzonderlijke universele waarde, zoals omschreven in de Leidraad Landschap en Cultuurhistorie.

Leidraad Landschap & Cultuurhistorie 2018 (10 april 2018)

De Leidraad Landschap en Cultuurhistorie 2018 (Leidraad) is een provinciale handreiking voor het inpassen van nieuwe ruimtelijke ontwikkelingen in het landschap, zoals bebouwing, agrarische bedrijven, infrastructuur of vormen van energieopwekking. De Leidraad geeft gebiedsgerichte én ontwikkelingsgerichte beschrijvingen en biedt zo toepasbare informatie over de manier waarop ruimtelijke ontwikkelingen kunnen bijdragen aan de kwaliteit van de leefomgeving. De provincie beoogt met deze Leidraad om samen met bijvoorbeeld gemeenten, ontwikkelaars en initiatiefnemers te werken aan het behouden en versterken van de kwaliteit van het landschap en de cultuurhistorie.

De Leidraad richt zich vooral op nieuwe ruimtelijke ontwikkelingen in het landelijk gebied van Noord-Holland. Het voorliggend plan is een invulling binnen het bestaand stedelijk gebied van de kern Vijfhuizen.

Relevant voor de relatie met de Stelling van Amsterdam is het Fort Vijfhuizen dat op ca. 300 meter afstand van het plangebied is gelegen. Het Fort heeft Schootscirkels die van de kern Vijfhuizen af zijn gelegen (zie afbeelding 3.3).

Omdat het voornemen is om passend in de bestaande woonomgeving nieuwe woningen te realiseren waarbij de bouwhoogte wordt afgestemd op de omgeving is er ook geen sprake van de aantasting van zichtlijnen en/of schootscirkels.

afbeelding "i_NL.IMRO.0394.BPGvyfspieriwg468-C001_0007.png"

Afbeelding 3.3: ligging plangebied (blauw kader) in relatie tot Fort Vijfhuizen (bron:
www.globespotter.nl)

afbeelding "i_NL.IMRO.0394.BPGvyfspieriwg468-C001_0008.png"

Afbeelding 3.4: uitsnede overzichtskaart Stelling van Amsterdam (bron: provincie
Noord-Holland)

De bescherming van de UNESCO-gebieden heeft de provincie Noord-Holland vastgelegd in de Provinciale Ruimtelijke Verordening. In onderstaande afbeelding 3.5 is de Stelling van Amsterdam (bruin kader) weergegeven in relatie tot het plangebied van het bestemmingsplan (rood kader).

afbeelding "i_NL.IMRO.0394.BPGvyfspieriwg468-C001_0009.png"

Afbeelding 3.5: uitsnede Provinciale Ruimtelijke Verordening met in bruin kader het
UNESCO gebied Stelling van Amsterdam en in rood kader het plangebied (bron: provincie Noord-Holland)

Energie en duurzaam bouwen

In artikel 33 van de Provinciale Ruimtelijke Verordening is beschreven dat een nieuwe stedelijke ontwikkeling dient te voldoen aan eisen van duurzaam bouwen.

Bestemmingsplannen voor woningbouw, renovatie, (herstructurering) bedrijventerreinen, kantoorlocaties en glastuinbouw dienen te beschrijven op welke wijze invulling wordt gegeven aan energiebesparing en inzet van duurzame energiebesparing en inzet van duurzame energie, waaronder mede wordt verstaan het gebruik van restwarmte, Warmte Koude Opslag en aardwarmte, zonne-energie, biomassa. In paragraaf 3.3.4 wordt het aspect duurzaamheid beschreven.

3.2.3 Regionaal Actieprogramma Wonen 2016 t/m 2020

Achtergrond

In de Provinciale Ruimtelijke Verordening heeft de provincie Noord-Holland algemene regels vastgesteld omtrent de inhoud van en de toelichting op bestemmingsplannen over onderwerpen in zowel het landelijk gebied als het bestaand bebouwd gebied van Noord-Holland, waar een provinciaal belang mee gemoeid is. De Provinciale Ruimtelijke Verordening stelt regionale afspraken voor woningbouw verplicht. Dit vindt plaats in de Regionale Actie Programma's (RAP's). De verantwoordelijkheid en de afwegingsruimte voor gemeentegrens overschrijdende nieuwe stedelijke ontwikkelingen liggen bij de regio. De regionale afspraken worden bij voorkeur op visie- en programmaniveau gemaakt. De inhoudelijke onderbouwing van een nieuwe stedelijke ontwikkeling moet zich dus richten op het markt- of verzorgingsgebied. Een bestemmingsplan (waaronder tevens een projectafwijkingsbesluit is te begrijpen) kan uitsluitend voorzien in een nieuwe stedelijke ontwikkeling als deze in overeenstemming is met regionale afspraken

Regionaal Actieprogramma Wonen 2016 t/m 2020, Amstelland Meerlanden, Amsterdam Zaanstreek-Waterland

Eind 2016 heeft de voormalige Stadsregio Amsterdam het Regionaal Actieprogramma Stadsregio Amsterdam 2016-2020 (RAP 2016-2020) aangeboden aan de provincie Noord-Holland. Dit actieprogramma was geënt op het samenwerkingsprogramma van de gemeenten (Samenwerkingsagenda Regionale Woningmarkt 2016-2020) en gericht op nieuwbouw, betaalbare voorraad en woonruimteverdeling.

De provincie heeft de drie deelregio's Amstelland-Meerlanden, Amsterdam en Zaanstreek-Waterland in januari 2017 laten weten vooralsnog niet in te kunnen stemmen met het RAP 2016-2020. In maart 2018 zijn bestuurlijke gesprekken gevoerd over de te leveren aanvullingen. Deze aanvullingen betreffen zowel het regionale woningbouwprogramma als beleidsmatige onderwerpen op het gebied van wonen. Deze zijn in de vorm van een oplegger ingediend ('Oplegger Regionaal Actieprogramma Wonen 2016 t/m 2020 Amstelland-Meerlanden, Amsterdam Zaanstreek-Waterland, versie 11 juli 2017'). Deze oplegger vormt –na vaststelling- samen met het eerder ingediend document het geldende RAP 2016-2020 voor deze regio.

Het RAP en de jaarlijks te actualiseren overzichten met woningbouwplannen plannen en programma's vormen de belangrijke vereisten om te voldoen aan de PRV en zijn voorwaardelijk voor alle buitenstedelijke woningbouwplannen. Een goedgekeurd RAP geeft de gemeenten in de regio de mogelijkheid om gezamenlijk voor op het RAP gebaseerde doeleinden subsidie uit het Provinciale Woonfonds te claimen. Onder actuele woningbehoefte wordt de behoefte voor de komende tien jaar verstaan. Dit sluit aan bij de jurisprudentie die over dit begrip is ontstaan bij de toepassing van de Ladder voor duurzame verstedelijking.

In de RAP 2016-2020 wordt voor de regio als geheel de groei van de woningbehoefte in de periode 2017-2027 geraamd op ca. 79.500 woningen. Hier staat een harde plancapaciteit van bijna 62.500 woningen tegenover, waardoor een tekort aan harde plannen van 17.000 woningen bestaat (zie navolgende tabel uit de Oplegger, p. 7).

afbeelding "i_NL.IMRO.0394.BPGvyfspieriwg468-C001_0010.png"

Tabel: woningbehoefte versus plancapaciteit in de drie deelregio's uitgedrukt in aantallen woningen

Voor de RAP-regio als geheel (= de marktregio Amsterdam) concludeert de Oplegger als volgt:

  • de woningbehoefte is zo groot, dat in vrijwel alle marktsegmenten tekorten zijn;
  • de grootste tekorten doen zich voor bij eengezinswoningen, betaalbare huurwoningen en betaalbare en middeldure koopwoningen;
  • alleen bij de marktsegmenten meergezinswoningen in een stedelijk milieu – een segment dat ruim geprogrammeerd staat - en dure huurwoningen is de plancapaciteit een fractie groter dan de vraag.

 Voor Amstelland-Meerlanden, waartoe Haarlemmermeer behoort, gelden soortgelijke conclusies:

  • tekorten in vrijwel alle marktsegmenten;
  • met name tekort aan betaalbare huurwoningen en koopwoningen in het middeldure en betaalbare segment;
  • een iets groter aanbod stedelijke appartementen en dure huurwoningen dan vraag.

Voor appartementen zijn vraag en plancapaciteit nagenoeg in evenwicht. Binnen dit segment is de lichte overprogrammering aan stedelijke appartementen een gevolg van de grote druk op de woningmarkt in combinatie met de wens om de woningbouw zoveel mogelijk binnenstedelijk uit te voeren. In verband met de locatiekenmerken kunnen niet altijd grondgebonden woningen worden gerealiseerd. Om toch te voldoen aan de vraag van woningzoekenden vindt er dan verdichting plaats, bij voorkeur rond haltes van hoogwaardig openbaar verover. Indien de wensen van woningzoekenden volledig zouden worden gehonoreerd, dan werd de kwantitatieve mismatch tussen vraag en aanbod nog veel groter met mogelijk meer prijsopdruk en meer druk om buitenstedelijk te gaan bouwen.

Als de voorkeursvariant van de woonwens niet haalbaar is, passen vele woningzoekenden in een gebied met grote marktdruk hun wensen aan, en kiezen voor een ander woningtype dan wel een andere woonomgeving.

Concluderend wordt in de Oplegger gesteld dat het totale woningbouwprogramma voor deze regio zowel kwantitatief als kwalitatief past binnen de woningbehoefte bij een doorkijk naar de komende 10 jaar. Voor binnenstedelijke plannen is de actuele regionale kwantitatieve én kwalitatieve behoefte in dit RAP aangetoond conform artikel 3.1.6. lid 2 Bro. Dit op basis van de provinciale prognose 2017, het WiRA 2015 en de Monitor Plancapaciteit 2017. De monitor heeft als doel om een actueel beeld te krijgen van de capaciteit in woningbouwplannen. Het gaat hierbij om zowel harde (vastgestelde) als zachte woningbouwplannen (potentiele plannen).

Voor de toepassing van de Ladder voor duurzame verstedelijking moet gebruik gemaakt worden van actuele gegevens over de woningbehoefte en plancapaciteit. Daarom zal de Monitor Plancapaciteit in ieder geval jaarlijks worden geactualiseerd. De gegevens over de woningvraag worden verkregen door middel van het woonbehoefteonderzoek WIRA, inmiddels WiMRA. Dit wordt tweejaarlijks uitgevoerd

Betekenis Regionaal Actieprogramma Wonen 2016 t/m 2020, Amstelland-Meerlanden, Amsterdam Zaanstreek-Waterland voor ontwikkeling Spieringweg 468

De voorgenomen woningbouw op de locatie Spieringweg 468 te Vijfhuizen is gelegen binnen de regio Amstelland-Meerlanden. De realisatie van 30 grondgebonden woningen past binnen het tekort van 9.150 woningen in de harde plancapaciteit 2017-2027 uit het Regionale Actieplan Wonen.

De praktijk is dat niet alle harde plancapaciteit op korte termijn tot realisatie komt terwijl de behoefte nú groot is. Voorliggend plan voorziet op korte termijn in een woningaanbod van grondgebonden woningen. Dat is nodig om ook nu al in de behoefte te voorzien. De locatie is een binnenstedelijke locatie, vlakbij een halte van hoogwaardig openbaar vervoer. Het toevoegen van 30 grondgebonden woningen op deze locatie is gewenst en zorgt ervoor dat de druk om buitenstedelijk te gaan bouwen wordt verlicht.

Uit het Regionale Actieplan Wonen volgt een woningbehoefte van eengezins stedelijk en suburbaan wonen die groter is dan de harde plancapaciteit in de regio Amstelland-Meerlanden.

afbeelding "i_NL.IMRO.0394.BPGvyfspieriwg468-C001_0011.png"

Afbeelding 3.6: Indicatieve woningbehoefte (blauw) versus harde plancapaciteit (rood) per segment 2017-2027 (bron: Regionale Actieplan Wonen)

Grondgebonden woningen zijn in Haarlemmermeer een welkome toevoeging aan de bestaande woningvoorraad en het tekort in de harde plancapaciteit. Het plan draagt dan ook bij aan het woningaanbod in de kern Vijfhuizen en het vergroten van het draagvlak aan voorzieningen in deze kern.

Omdat het plan een nieuw woningaanbod en woonmilieu in Vijfhuizen biedt, kan het voor doorstroming op de woningmarkt zorgen onder andere vanuit bestaande woningen.

Op basis van een vergelijking van woningbehoefte en plancapaciteit naar segmentering trekt de Oplegger de conclusie dat er bovenop de al bestaande harde plancapaciteit nog behoefte aan plancapaciteit in alle prijssegmenten binnen de koop- en de huursector en type woning en woonmilieu. De locatie Spieringweg 468 draagt bij aan de opheffing van het tekort aan plancapaciteit.

In het Regionale Actieplan Wonen is ook aandacht voor het prijssegment en verdeling koop en huur.

afbeelding "i_NL.IMRO.0394.BPGvyfspieriwg468-C001_0012.png"

Afbeelding 3.7: Prijssegment en verdeling koop en huur op basis van de behoefte blauw) versus harde plancapaciteit (rood) in marktregio Amstel-Meerlanden 2017-2027 (bron: Regionale Actieplan Wonen)

Aan de hand van de prijscategorieën uit het Regionale Actieplan Wonen zal de ontwikkeling aan de Spieringweg 468 in de dure koop categorie vallen. Uit het overzicht volgt dat in dit segment meer behoefte is dan in de harde plancapaciteit aanwezig is. De locatie Spieringweg 468 draagt bij aan de realisatie van dure grondgebonden koopwoningen en brengt het tekort aan plancapaciteit in dit type woningen terug.

3.3 Gemeentelijk beleid

3.3.1 Structuurvisie Haarlemmermeer 2015-2030

In de Structuurvisie Haarlemmermeer 2030 (vastgesteld in oktober 2012) worden de toekomstige ontwikkelingen van de gemeente beschreven. De Structuurvisie gaat over belangrijke structurerende zaken met ontwerpprincipes voor duurzaamheid, een duurzaam en klimaatbestendig watersysteem, energie, netwerk- en ketenmobiliteit, de synergie met Schiphol, ruimte voor attracties, en de cultuurhistorie en diversiteit als drager van de ontwikkelingen.

In de toekomst wil Haarlemmermeer de bestaande diversiteit aan woon- en werkmilieus - haar zogeheten atypische stedelijkheid - versterken. Haarlemmermeer wil een gemeente zijn die verbonden is en verbindt, een samenleving met samenhang. Dat betekent ook dat er samenhang moet zijn tussen alle ontwikkelingen die plaats vinden, zowel de ruimtelijke als de sociale ontwikkelingen. Haarlemmermeer positioneert zich ook in de toekomst als een attractieve ontmoetings- en vestigingsplaats. Duurzaamheid en oog voor bestaande structuren zijn leidend bij de toekomstige ruimtelijke, economische en sociale ontwikkelingen. De ambities voor Haarlemmermeer in 2030 zijn als volgt benoemd:

  • sterk gevarieerd en de atypische stedelijkheid benuttend;
  • duurzaam en klimaatbestendig;
  • fysiek en sociaal verbonden met elkaar en met de omgeving;
  • blijvend gepositioneerd als aantrekkelijke ontmoetingsplaats.

De structuurvisie beschrijft daarnaast de grondslagen en ontwerpprincipes die als uitgangspunt worden gehanteerd bij de verdere ontwikkeling van Haarlemmermeer. Deze zijn samengevat in zes kernpunten:

  • 1. Een duurzaam en klimaatbestendig watersysteem.
  • 2. Energie als speerpunt.
  • 3. Netwerk (keten)mobiliteit: de knopen benut.
  • 4. Synergie met Schiphol.
  • 5. Ontmoeten en verbinden: ruimte voor attracties.
  • 6. Cultuurhistorie en diversiteit als drager.

afbeelding "i_NL.IMRO.0394.BPGvyfspieriwg468-C001_0013.png"

afbeelding "i_NL.IMRO.0394.BPGvyfspieriwg468-C001_0014.png"

Afbeelding 3.8: Uitsnede kaartbeeld structuurvisie 2030

Conclusie 

De voorgenomen ontwikkeling aan de Spieringweg in de kern Vijfhuizen houdt rekening met de identiteit van de omliggende omgeving. De planontwikkeling sluit aan bij de verschillende typologieën van woningen. Op deze manier wordt rekening gehouden met de ruimtelijke kwaliteit. In het her te ontwikkelen gebied en de directe omgeving zijn gebieden met groen aanwezig die uitnodigen tot ontmoetingen en waar mensen zich veilig voelen, daarmee is ook rekening gehouden met sociale duurzaamheid.

3.3.2 Woonvisie 2012-2015

De gemeentelijke 'Woonvisie 2012-2015' heeft als centrale doelstelling: 'Haarlemmermeer zet zich in voor duurzame en betaalbare woningen in leefbare dorpen in wijken en aangenaam wonen in diverse woonmilieus: stedelijk, suburbaan, dorps en landelijk'. Uiteraard is bij het opstellen van de Woonvisie ook rekening gehouden met een termijn die verder reikt dan 2015.

Drie pijlers vormen het fundament van de visie – aangevuld met de facetten inbraakpreventie, duurzaamheid en toegankelijkheid:

  • 1. Woongenot in dorpen en wijken. Maatwerk in regelgeving op lokaal niveau, aandacht voor woonwijken met stadse en suburbane woonmilieus (Hoofddorp, Nieuw-Vennep) en versterken van uniek karakter in de kernen en het buitengebied.
  • 2. Inspelen op de woningmarkt. De woningmarkt, vraag en aanbod, is het uitgangspunt. Dit heeft zijn weerslag in het woningbouw-programma en de toewijzing aan woningzoekenden. Nieuwbouwaanbod is minder dan voorheen een ‘draaiknop’ omdat de vraagzijde de markt regeert.
  • 3. Wonen en zorg / bijzondere doelgroepen. De vergrijzing zorgt voor een veranderende woonvraag en het huisvesten van bijzondere doelgroepen heeft onze extra aandacht. Mede door het scheiden van wonen en zorg en de decentralisatie van taken naar de gemeente, spelen partners die gespecialiseerd zijn in wonen, zorg en welzijn hierbij een sleutelrol.

De richtlijn voor het gemeentelijk nieuwbouwprogramma omvat 3 categorieën, te weten het sociale segment (30%), het segment voor middeninkomens (10%) en het marktsegment (60%).

Het aandeel van 30% voor sociale huur wordt gemeentebreed gerealiseerd, echter niet meer in elk individueel woningbouwplan, maar vanuit het oogpunt van een gedifferentieerde bevolkingsopbouw en voornamelijk in plannen van enige omvang. Particulier opdrachtgeverschap wordt een volwaardig onderdeel van de woningbouw in Haarlemmermeer. Dit is naast onze ambities met betrekking tot duurzaamheid en de Ruimtelijke Investeringen Haarlemmermeer (RIH)-bijdrage bij nieuwbouw- en transformatieprojecten het uitgangspunt voor de woningbouwprogramma's.

Dit uitgangspunt met betrekking tot de sociale huur heeft voor de plannen in de uitleggebieden geen consequenties, omdat daar al voor alle plannen 30% sociale huur het uitgangpunt is. Dat ligt anders bij de projecten in binnenstedelijke woongebieden, zoals onderhavig project. Daar gold tot nu toe een programmatische vrijheid en die zal niet meer gelden bij projecten van minder dan 30 woningen. Wanneer bij die projecten al bestuurlijke afspraken gemaakt zijn, zullen die gerespecteerd worden. Wanneer dat niet het geval is, zal er per plan bezien worden of er alsnog 30% sociale huur in het project moet worden opgenomen. Omdat dit plan 30 woningen beslaat is afgesproken dat de regel met betrekking tot 30% sociale huur hier niet opgaat.

Meer dan voorheen zullen ontwikkelaars bij hun binnenstedelijke nieuwbouw- en transformatie-projecten te maken krijgen met 30% sociale huur als uitgangspunt. Verwacht kan worden dat het niet altijd makkelijk en soms zelfs onmogelijk zal zijn om aan dat uitgangspunt en/of aan de andere uitgangspunten met betrekking tot duurzaamheid en de Ruimtelijke Investeringen Haarlemmermeer (RIH)-bijdrage te voldoen. Voor de 30% geldt hetzelfde als met betrekking tot de RIH-bijdrage en de duurzaamheidscores die op grond van de Gemeentelijke Prestatie Richtlijn (GPR+ ) behaald moet worden. Per project zullen wij bezien of wij wel of niet onverkort vasthouden aan de 30%-eis en/of de RIH-bijdrage en/of de GPR-scores. Deze drie ambities zullen gelijkwaardig ten opzichte van elkaar gewogen worden, als het stellen van deze eisen tot een verliesgevend resultaat bij een project zou leiden. Het al of niet kunnen doorgaan van het betreffende project zal een belangrijk element zijn bij die afweging, die bestuurlijk zal worden gemaakt.

Conclusie

Woningbouw in de kern Vijfhuizen heeft een positieve werking op het in stand houden van het voorzieningenniveau. Daarnaast past woningbouw qua functie goed bij de aard en kwaliteit van de bestaande omgeving.

3.3.3 Beleidsregel wonen en vliegen 20 Ke-contour Schiphol

De gemeenteraad van de gemeente Haarlemmermeer heeft op 19 juli 2018 de Beleidsregel wonen en vliegen 20 Ke—contour Schiphol vastgesteld. De beleidsregel ziet op het motiveren van nieuwbouw van woningen binnen 20 Ke contour (LIB5) en LIB 4 in ruimtelijke onderbouwingen en bestemmingsplannen. De beleidsregel legt vast hoe hieraan concreet invulling moet worden gegeven en hoe belangen worden gewogen. Daarbij spelen lokale leefbaarheid en vitaliteit een belangrijke rol.

Conclusie

afbeelding "i_NL.IMRO.0394.BPGvyfspieriwg468-C001_0015.png"

Afbeelding 3.9 uitsnede 20 Ke contour (bron: Verordening Ruimte, provincie
Noord-Holland)

Uit bovenstaande afbeelding 3.9 volgt dat de kern Vijfhuizen geen onderdeel uitmaakt van de 20 Ke contour van Schiphol. Toetsing aan deze contour voor de ontwikkeling van het plangebied is derhalve niet aan de orde.

Uit paragraaf 3.1.3 volgt dat het plangebied geen onderdeel uitmaakt van het LIB 4 gebied zoals opgenomen in artikel 2.2.1 lid c van het Luchthavenindelingsbesluit.

3.3.4 Duurzaamheid

Lokaal, regionaal en landelijk zijn verschillende richtlijnen en ambities geformuleerd voor woningbouw. De Gemeentelijke Prestatie Richtlijn geeft streefwaarden aan op vijf verschillende duurzaamheidsthema's. Voor woningbouw zijn deze vastgesteld op 8,5 voor energie; 7,0 voor milieu; 8,0 voor gezondheid; 7,5 voor gebruikswaarde en 7,0 voor de toekomstwaarde. Naast deze streefwaarden zijn er op de afzonderlijke thema's ook andere richtlijnen en ambities vastgesteld.

In Haarlemmermeer streven we naar een aardgasloze en energieleverende gemeente. Hierdoor kunnen energienota's op nul uitkomen of zelfs positief zijn. Ook voorziet deze ambitie in de groeiende vraag naar energie voor elektrische mobiliteit. Naast deze ambitie is sinds 2015 de energieprestatiecoëfficiënt (EPC-waarde) vastgesteld op 0,4. Vanaf 2020 zal dit bijna 0 worden (BENG). In deze BENG norm zal ook de maximale toegestane hoeveelheid fossiele energie worden opgenomen. Hiermee wordt gestimuleerd om minder of helemaal geen gas meer te gebruiken. De BENG norm is inmiddels achterhaald door de nieuwe landelijke verplichting om gasloos te bouwen bij nieuwe ontwikkelingen.

Op het gebied toekomstwaarde stimuleren we in Haarlemmermeer de circulaire economie. We willen namelijk grondstoffen zo lang mogelijk in de kringloop houden en voorkomen dat er afval ontstaat. Vanuit de principes van de circulaire economie stimuleren we het hergebruik van aanwezig grondstoffen, het toepassen van een grondstoffenpaspoort en het remontabel en flexibel bouwen van woningen. Hiermee kunnen woningen gemakkelijker aangepast worden aan veranderende woonwensen en demografie waardoor toekomstige sloop zoveel mogelijk wordt uitgesteld of voorkomen. Daarnaast wordt het gebruik van herbruikbare biobased materialen in de bouw ook aangemoedigd waardoor minder fossiele grondstoffen nodig zijn en CO2 uitstoot wordt verminderd.

Naast energie en circulariteit zijn er in Haarlemmermeer polderspecifieke wateropgaven. Klimaatverandering zal voor heftigere buien zorgen die niet meer altijd direct door riolering opgevangen kunnen worden. Hierdoor is het van belang om vertraagde afvoer te realiseren en infiltratie van water in de bodem mogelijk te houden. Hiervoor kan groen op dak en tuin worden toegepast, het afkoppelen van regenpijpen, oppervlaktewater te creëren en bijvoorbeeld door wadi's aan te leggen. Deze maatregelen dragen daarnaast bij aan het voorkomen van hittestress, het stimuleren van biodiversiteit en het afvangen van fijnstof.

Met het oog op duurzaamheid zal deze woonwijk gasloos gebouwd worden en een energieprestatiecoëfficiënt (EPC-waarde) hebben van 0,4.

3.3.5 Handboek parkeernormen Haarlemmermeer (2018)

Met het Handboek parkeernormen Haarlemmermeer zijn de parkeernormen uit het Deltaplan Bereikbaarheid geactualiseerd. De parkeernormen zijn gebaseerd op een landelijke richtlijn, uitgegeven door het CROW, "Parkeerkencijfers - basis voor parkeernormering", publicatie 317.

Met het Handboek parkeernormen Haarlemmermeer en bijbehorende berekeningsblad kan voor benoemd situaties de parkeernorm op eenduidige wijze kan worden vastgesteld. Door combinaties van de zes in te voeren variabelen functie, centrumligging, stedelijkheid, afstand tot HOV-halte of station, recht op OV-vergoeding en doelgroep met traditioneel lager autobezit, wordt de parkeernorm gericht uitgerekend.

De gemeentelijke parkeernormen gelden voor nieuwe ontwikkelingen, nieuwe uitbreidingen of herinrichtingen. In bestaande situaties is uitgegaan van de normen die golden ten tijde van de realisering. Sindsdien is het autobezit en - gebruik echter toegenomen. In een aantal gevallen leidt dat tot knelpunten. De oplossing voor dit soort knelpunten wordt gezocht in maatwerk. Het is niet realistisch om die gevallen te vergelijken met huidige parkeernormen. In plaats daarvan moeten er oplossingen komen, die gebaseerd zijn op onderzoek van de bestaande situatie.

Gemiddeld elke drie tot vier jaar wordt de set parkeerkencijfers door het CROW geüpdatet. Wanneer de volgende update plaatsvindt, wordt dit handboek waar nodig herzien en de toepasbaarheid van de landelijke kencijfers in Haarlemmermeer getoetst.

Er zullen in nieuwe en herziene (bestemmings)plannen geen parkeernormen meer separaat vastgelegd worden. In plaats daarvan wordt verwezen naar dit handboek.

Toetsing

Op basis van het Handboek parkeernormen van de gemeente Haarlemmermeer (6 februari 2018) is onderstaande toetsing uitgevoerd:

  • 1. Bepalen gebied

De kern Vijfhuizen wordt aangemerkt als weinig stedelijk gebied.

afbeelding "i_NL.IMRO.0394.BPGvyfspieriwg468-C001_0016.png"

  • 2. Bepalen bandbreedte

In het handboek is op basis van onderstaande beslisboom het plan getoetst.

afbeelding "i_NL.IMRO.0394.BPGvyfspieriwg468-C001_0017.png"

Het plangebied ligt gemeten vanaf de rand van het plan hemelsbreed op ca. 370 meter afstand tot de HOV-halte (R-Net) aan het Schans / Terreplein. Een groot deel van het plangebied ligt op 400 meter tot maximaal 490 meter tot de HOV-halte (R-Net) aan het Schans / Terreplein.

Gelet op deze afstanden is het uitgangspunt dat 6 woningen (in de zuidoostelijke hoek) van het plangebied binnen de 400 meter hemelsbrede afstand vallen voor de minimale bandbreedte van de parkeernormen en 24 woningen (rest plangebied) binnen de gemiddelde bandbreedte van de parkeernormen (afstand tussen de 400 en 700 meter ten opzichte van de HOV-halte).

De bandbreedte die kan worden toegepast is dan het minimum (6 woningen) en gemiddeld (24 woningen).

  • 3. Bepalen ligging t.o.v. centrum

De ligging van een ontwikkeling ten opzichte van een centrum geeft aan hoe ver (hemelsbreed) de ontwikkeling is verwijderd van een centrum. Het gaat hierbij om centra die van dermate omvang zijn, dat deze een positief effect hebben op aanbod en kwaliteit van andere vervoerswijzen, met name het openbaar vervoer in het centrum.

In het Handboek parkeernormen van de gemeente Haarlemmermeer is als centrum aangewezen Hoofddorp Centrum, SugarCity, Winkelcentrum Getsewoud. Het plangebied in Vijfhuizen grenst niet aan deze centra of de schil van de centra. Het gebied is aan te merken als 'rest bebouwde kom'.

  • 4. Berekening van de parkeerbehoefte

Aan de hand van het Handboek parkeernormen van de gemeente Haarlemmermeer 2018 is met het beoogde woningtype en de norm "Weinig stedelijk, rest bebouwde kom, minimum" onderstaande parkeerbehoefte bepaald voor de 6 woningen.

Type   Norm (minimum)   Aantal woningen   Autonome parkeervraag  
Rijwoningen   1.6   2   3.2  
2 Kappers   1.8   4   7.2  
    Totale parkeernorm   10.4  

Aan de hand van het Handboek parkeernormen van de gemeente Haarlemmermeer 2018 is met het beoogde woningtype en de norm "Weinig stedelijk, rest bebouwde kom, gemiddeld" onderstaande parkeerbehoefte bepaald voor de 24 woningen.

Type   Norm (gemiddeld)   Aantal woningen   Autonome parkeervraag  
Rijwoningen   2.0   14   28.0  
2 Kappers   2.2   10   22.0  
    Totale parkeernorm   50.0  

In totaal bedraagt de berekende autonome parkeervraag 60,4 parkeerplaatsen.

Conclusie

In het bestemmingsplan worden, conform het stedelijk verkavelingsplan de onderstaande parkeerplekken gecreëerd:

Privé parkeerplekken in de vorm van een dubbele oprit   12  
Openbare parkeerplekken   31  
Garages (zonder opstelplaats)   6  
Garage (één auto) met dubbele oprit voor twee auto's   24  
Totaal   73  

Aan de hand van de normering die in het Handboek parkeernormen van de gemeente Haarlemmermeer 2018 is opgenomen gelden voor parkeerplaatsen en garages op eigen terrein berekeningsaantallen. De bovenstaande parkeerplekken dienen als volgt te worden berekend.

Type pp   Theoretisch gebruik   Berekeningsaantal   Aantal plaatsen / objecten   Totaal berekening aantal per type  
Garage met lange oprit (Blok 4)   3   1.3   8   10,4  
Garage zonder oprit (Blok 2)   1   0.4   6   2,4  
Privé parkeerplekken (Blok 2)   2   0,85   12   10,2  
Openbare parkeerplekken   1   1   31   31  
      Totaal parkeeraanbod   54  

Volgens het Handboek parkeernormen van de gemeente Haarlemmermeer 2018 is de autonome parkeervraag 60,4 voor de te realiseren 30 woningen.

Aan de hand van de aanwezigheidspercentage en gemeentelijke kengetallen is een berekening gemaakt (zie Bijlage 1) van de maatgevende parkeervraag. Deze bedraagt maximaal (bewoners en bezoekers) op een werkdagavond 54 parkeerplaatsen.

Aan de hand van bovenstaande tabel is de parkeeraanbod 54 plaatsen. Hiermee wordt voldaan aan het gemeentelijk parkeerbeleid.

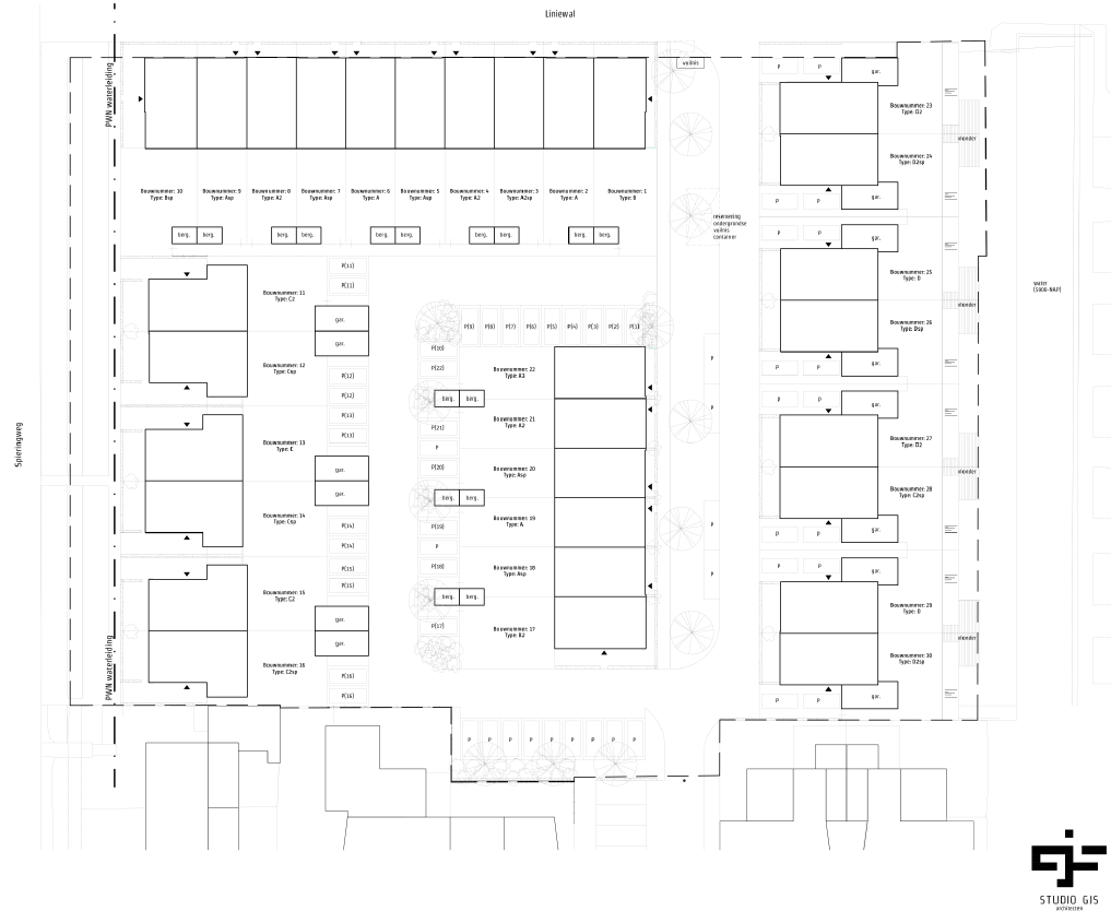
Hoofdstuk 4 Nieuwe situatie

Toelichting stedenbouwkundig plan

Aanleiding

Het plan is gesitueerd op een centrale locatie in Vijfhuizen . Aan de Spieringweg grenzend aan het dorpshart van Vijfhuizen. De kavel, met daarop een grote vrijstaande woning kenmerkt zich als een geïsoleerde en besloten plek die door een hoge haag omsloten wordt. De locatie grenst aan 4 verschillende profielen en woningbouwtypologieën.

Door de ontwikkeling van de locatie zal het plangebied toegankelijker en aantrekkelijker worden. Het gaat aansluiten op het straatbeeld van de Spieringweg en gaat zich voegen in het dorpsweefsel van Vijfhuizen.

De ontwikkeling

Het stedenbouwkundige concept betreft een verkaveling van het plangebied met als uitgangspunt zoveel mogelijk aansluiting te zoeken met de omliggende infrastructuur. Het doel is een duurzame leefomgeving met een aangenaam leefklimaat te creëren. Er wordt groen toegevoegd in het plangebied om een echt dorp woonmilieu te creëren.

Er is gezocht naar een goede ruimtelijke verkaveling waarin 30 grondgebonden woningen kunnen worden gerealiseerd. Daarbij is een doorgaande ontsluiting gecreëerd vanuit het plangebied naar de Liniewal met daaraan gekoppeld een groenstrook. De benodigde parkeerplaatsen en bergingen zijn zoveel mogelijk aan het straatbeeld onttrokken door ze in het 'binnen gebied' te situeren van blok 1,2 en 3.

Woningbouwprogramma en typologie

Het woningbouwprogramma in het plangebied is onderverdeeld in vier blokken:

  • Blok 1; 10 geschakelde herenhuizen
  • Blok 2; 6 twee-onder-een-kap woningen
  • Blok 3; 6 geschakelde herenhuizen
  • Blok 4; 8 twee-onder-een-kap woningen

Blok 1

Aan het plantsoen aan de noordoostzijde in blok 1 vraagt het aanwezige appartementen gebouw om het afmaken en begrenzen van het openbare park met een wand die in schaal passend is. Door geschakelde herenhuizen hier te situeren ontstaat een gesloten wand die de dorpsweide meer in kadert waardoor het idee van centraal plein versterkt wordt.

Blok 2

Aan de noordwestzijde sluit dit plan aan op de historische lintbebouwing aan de Spieringweg. Ruime twee-onder-een-kap woningen komen aan deze zijde van het plan. De woningen verspringen in de rooilijn, zodat de fijnmazige korrel van de lintbebouwing hier visueel wordt doorgezet. De afwisseling van kopgevels en lang gevels benadrukken dit concept. De woningen in blok 2 worden, net als andere woningen aan de Spieringweg, ontsloten via één brug over de sloot.

Blok 3

De geschakelde herenhuizen centraal in het plan grenzen aan een groenstrook waarin zoveel mogelijk de bestaande bomen worden gehandhaafd. De voortuinen van deze woningen grenzen aan het groengebied. De woningen maken samen met Blok 1 en 2 een omsloten gebied waarbinnen de benodigde parkeerplaatsen en bergingen zoveel mogelijk aan het zichtveld worden onttrokken.

Blok 4

De zuidoostzijde grenst aan de wijk Stellinghof door een bestaande watergang en een weg Voorgracht). De twee-onder-een-kap woningen van blok 4 zijn met de voorzijde georiënteerd op het binnen gebied. De achterzijde van de woningen grenst aan de sloot. De woningen aan de voorgracht hebben de privéruimte georiënteerd op de sloot. Daarom zal er veel aandacht worden besteed aan kwalitatieve erfafscheidingen aan die zijde van het plangebied. De bestaande watergang wordt verbreed waardoor er kwaliteit wordt toegevoegd aan de rand van het plangebied die wordt benadrukt door het creëren van vlonders. Door de uitbreiding van de sloot neemt de buffer tot de woningen aan de Voorgracht toe.

Openbare ruimte

Alle erfafscheidingen grenzend aan het openbare gebied zullen worden mee ontworpen. Er zal zoveel mogelijk gebruik worden gemaakt van groene afscheidingen. De groenstrook gekoppeld aan de ontsluiting van het plangebied zal kwalitatief zorgvuldig worden ingericht. De woningen van Blok 3 en 4 zullen daaraan worden georiënteerd.

De snel verkeersontsluiting van het gebied loopt via de Liniewal. Voor voetgangers, fietsers en hulp- en nooddiensten ontstaat er verbinding tussen het Telraam en de Liniewal. Aan de zijde van de Spieringweg komt een openbaar loop- en fietspad die via een bruggetje over de sloot wordt ontsloten.

afbeelding "i_NL.IMRO.0394.BPGvyfspieriwg468-C001_0018.png"

Afbeelding 4.1: Uitsnede stedenbouwkundig plan (bron: GJS architecten)

Verkeer

De ontsluiting van het gebied voor langzaam verkeer vindt plaats aan de noordzijde richting het plantsoen en aan de zuidzijde via Telraam. De ontsluiting naar de Telraam wordt voorzien van een klappaal (voor de bereikbaarheid van hulpdiensten). De Telraam is een ontsluiting voor fietsers en voetgangers.

De ontsluiting van het gemotoriseerd verkeer vindt via de Liniewal plaats.

In het plangebied worden maximaal 30 woningen gerealiseerd. Dit levert aan de hand van de gemeentelijke vuistregel van 5 tot 6 verkeersbewegingen per huishouden ca. 180 extra verkeersbewegingen per etmaal op. Het aantal extra verkeersbewegingen is beperkt ten opzichte van de huidige 2.710 motorvoertuigen op de Spieringweg.

Een vuistregel is dat er van de etmaal-intensiteit ongeveer 8 tot 10% in een spitsuur rijdt. Nu het gemotoriseerd verkeer niet door de Telraam gaat en allemaal via de Liniewal moet richting Spieringweg betreft het hier maximaal 18 auto's extra die er in het drukste uur bij komen. Dat is gemiddeld 1 auto per 3,3 minuut.

Parkeren

Voor de berekening van de parkeernormen is het Handboek parkeernormen gemeente Haarlemmermeer 2018 gebruikt. De berekening (zie Bijlage 1) en de onderbouwing daarvan is opgenomen in paragraaf 3.3.5).

Volgens het Handboek parkeernormen van de gemeente Haarlemmermeer 2018 is de autonome parkeervraag 60,4 voor de te realiseren 30 woningen. Aan de hand van de aanwezigheidspercentage en gemeentelijke kengetallen is een berekening gemaakt (zie Bijlage 1) van de maatgevende parkeervraag. Deze bedraagt maximaal (bewoners en bezoekers) op een werkdagavond 54 parkeerplaatsen.

Architectuur en impressies

Het plangebied vormt een overgangsgebied tussen het oude dorp en de nieuwere bebouwing van het Stelling hof in Vijfhuizen. Vanuit historisch oogpunt ligt er geen aanleiding om te kiezen voor een architectuurrichting. Het plangebied is door verschillende typen architectuur omringt. Daarom is er gekozen voor een eigen identiteit van het plan. Waarbij de architectuur een overbrugging kan vormen tussen het oude dorp en de modernere architectuur van het Stellinghof.

Alle woningen zullen bestaan uit 2 woonlagen en een kap, zoals veel voorkomend in Vijfhuizen. De architectuur sluit wat betreft materialen aan op de bestaande bebouwing in Vijfhuizen. Deze bestaat uit zorgvuldig vormgegeven gemetselde gevels met keramisch gedekte daken. Een afwisseling van kop- en langsgevels in combinatie met 2 kleuren metselwerk zorgt voor een divers beeld.

afbeelding "i_NL.IMRO.0394.BPGvyfspieriwg468-C001_0019.png"

Afbeelding 4.2: Impressies bouwplan vanaf Spieringweg (bron: GJS architecten)

afbeelding "i_NL.IMRO.0394.BPGvyfspieriwg468-C001_0020.png"

Afbeelding 4.3: Impressies bouwplan vanaf Liniewal (bron: GJS architecten)

afbeelding "i_NL.IMRO.0394.BPGvyfspieriwg468-C001_0021.png"

Afbeelding 4.4: Impressies bouwplan vanaf interne ontsluitingsweg richting de Liniewal (bron: GJS architecten)

Hoofdstuk 5 Onderzoek en beperkingen

5.1 Water

5.1.1 Wet- en regelgeving

Europese Kaderrichtlijn Water
De kaderrichtlijn Water richt zich op de bescherming van water in alle wateren en stelt zich ten doel dat alle Europese wateren in het jaar 2015 een 'goede toestand' hebben bereikt en dat er binnen heel Europa duurzaam wordt omgegaan met water.

Waterwet

De Waterwet regelt het beheer van oppervlaktewater en grondwater, en verbetert ook de samenhang tussen waterbeleid en ruimtelijke ordening. Ook is via de Invoeringswet Waterwet de saneringsregeling voor waterbodems van de Wet bodembescherming overgebracht naar de Waterwet. Naast de Waterwet blijft de Waterschapswet als organieke wet voor de waterschappen bestaan. Met de Waterwet zijn Rijk, waterschappen, gemeenten en provincies beter uitgerust om wateroverlast, waterschaarste en waterverontreiniging tegen te gaan. Ook voorziet de wet in het toekennen van functies voor het gebruik van water zoals scheepvaart, drinkwatervoorziening, landbouw, industrie en recreatie. Afhankelijk van de functie worden eisen gesteld aan de kwaliteit en de inrichting van het watersysteem.

Het Nationaal Waterplan

Het Nationaal Waterplan geldt voor de planperiode 2009-2015 en is opgesteld op basis van de Waterwet. Het heeft voor de ruimtelijke aspecten de status van een structuurvisie. Het Nationaal Waterplan formuleert een antwoord op ontwikkelingen op het gebied van klimaat, demografie en economie en investeert in duurzaam waterbeheer.

Nationaal Waterplan 2016-2021

Het Nationaal Waterplan geeft de hoofdlijnen, principes en richting van het nationale waterbeleid in de planperiode 2016-2021, met een vooruitblik naar 2050. Het kabinet speelt proactief in op de verwachte klimaatveranderingen op lange termijn, om overstromingen te voorkomen. Binnen de planperiode gaan realistische maatregelen in uitvoering die een antwoord bieden op de opgaven voor de korte termijn en voldoende mogelijkheden openlaten om op langere termijn verdere stappen te zetten. Het kabinet sluit daarmee aan bij de resultaten van het Deltaprogramma. Met dit Nationaal Waterplan zet het kabinet een volgende ambitieuze stap in het robuust en toekomstgericht inrichten van ons watersysteem. Het plan is gericht op een goede bescherming tegen overstromingen, het voorkomen van wateroverlast en droogte, het bereiken van een goede waterkwaliteit en een gezond ecosysteem als basis voor welzijn en welvaart.

Ook omvat het plan een integrale benadering, door natuur, scheepvaart, landbouw, energie, wonen, recreatie, cultureel erfgoed en economie (inclusief verdienvermogen) zo veel mogelijk in samenhang met de wateropgaven te ontwikkelen.

De ambitie is dat overheden, bedrijven en burgers zich in 2021 meer bewust zijn van de kansen en bedreigingen van het water in hun omgeving.

Watervisie 2021

De inzet van het provinciaal waterbeleid is om Noord-Holland nog mooier, bedrijviger en veiliger maken. Daarbij moet er een impuls uitgaan voor de leefomgevingskwaliteit en/of het vestigingsklimaat. Waterproblemen worden aangepakt wanneer er al gebiedsontwikkeling plaatsvindt.

Voor gemeente Haarlemmermeer speelt met name het vinden van toekomstbestendige oplossingen voor de schoon- en zoetwaterproblematiek.

Voor waterveiligheid wordt uitgegaan van: veilige dijken en duinen (laag 1 en ook de belangrijkste); een waterrobuuste ruimtelijke inrichting van overstromingsgevoelige gebieden (laag 2) en een op overstromingsrampen toegesneden calamiteitenorganisatie (laag 3). Deze meervoudige benadering van waterveiligheid wordt “meerlaagsveiligheid” genoemd.

Op de kaart Overstromingsrisico Noord-Holland zijn de overstromingsgevoelige gebieden indicatief aangegeven. De provincie maakt nog duidelijk welke gemeenten tot het overstromingsgevoelige gebied worden gerekend en in hun bestemmingsplannen duidelijk moeten maken hoe rekening wordt gehouden met het overstromingsrisico. Daarbij is het “waterrobuust inrichten” het uitgangspunt: het zodanig inrichten van overstromingsgevoelig gebied dat bij een overstroming de kans op slachtoffers klein is en de economische schade beperkt blijft.

Er is nauwelijks overstromingsrisico vanuit de Noordzee, omdat deze kust voor het merendeel door brede duinen wordt beschermd.

Waterbeheerplan 5 2016-2021

In het “Waterbeheerplan 5 2016 – 2021” staat samen werken aan water centraal. Zodat nu en in de toekomst in dit deel van Nederland waar onder zeeniveau gewoond, gewerkt en gerecreëerd kan worden. Het waterschap Rijnland wil samen met zijn omgeving werken aan duurzaam en efficiënt waterbeheer tegen zo laag mogelijke maatschappelijke kosten. Die toekomst wordt mede bepaald door trends in klimaat en maatschappij en de noodzaak om op duurzame wijze met onze omgeving om te gaan. De verwachte toename van neerslag en droogte, bodemdaling, verzilting zeespiegelrijzing en de verdergaande verstedelijking, leggen een steeds grotere druk op het watersysteem.

De hoofdambitie is schoon water en droge voeten. Dit wordt bereikt door:

  • Beschermen tegen overstromingen vanuit zee, de rivieren en het regionale watersysteem door een aanpak in drie lagen (meerlaagsveiligheid): preventie, adviseren over het beperken van de gevolgen van overstromingen (gevolgbeperking), en voorbereiden op een calamiteit.
  • Zorgen voor schoon en gezond water dat past bij de verschillende functies in een gebied.
  • Optimaliseren van de verwerking van het afvalwater en hergebruiken van de grondstoffen uit afvalwater.
  • Zorgen voor voldoende water: niet te veel en niet te weinig, passend bij het gebruik.

Waterstructuurvisie Haarlemmermeerpolder (Hoogheemraadschap van Rijnland)

In de Waterstructuurvisie Haarlemmermeerpolder heeft het hoogheemraadschap het waterbeleid (een klimaatbestendig en robuust watersysteem) verder geconcretiseerd. Het watersysteem wordt vormgegeven volgens principes: flexibele peilen, hogere peilen, lijn/vlakvormig ontwerp en optimalisatie van de inrichting. Hierbij worden de belangen van de bestaande en nieuwe gebruiksfuncties zoveel mogelijk ondersteund. De eerste drie principes zijn met name van toepassing bij gewijzigd gebruik.

Waterplan Haarlemmermeer 2015-2030

De Strategische Samenwerkingsagenda Haarlemmermeer-Rijnland (verder Waterplan) is

een samenwerkingsdocument tussen de gemeente en het hoogheemraadschap. Het geeft de situatie en problemen weer van het hele watersysteem (oppervlaktewater, hemelwater, grondwater en afvalwater) in Haarlemmermeer. Het stelt doelen met betrekking tot de riolering, het oplossen van infrastructurele knelpunten en nemen van maatregelen. Het Waterplan heeft onder andere als ambitie:

  • het scheiden van vuil afvalwater en schoon regenwater;
  • het tijdelijk bergen van water om extreme neerslag op te vangen;
  • afvalwater als bron te gebruiken waaruit afvalstoffen en energie gewonnen kunnen worden. Haarlemmermeer past bijvoorbeeld innovatieve ontwikkelingen toe bij het inzamelen van afvalwater zoals riothermie, het winnen van warmte uit afvalwater.

In het Waterplan worden ook grondwatermaatregelen beschreven, omdat deze een belangrijke link hebben met de rest van het watersysteem, zoals oppervlaktewater en de ruimtelijke inrichting. Daarnaast is er in het verleden onvoldoende aandacht besteed aan grondwater, waardoor een inhaalslag nodig is om aan de zorgplicht te voldoen.

De maatregelen die genomen moeten worden om de doelstellingen voor het watersysteem te bereiken zijn verzameld in het uitvoeringsprogramma van het Waterplan. De financiering van deze maatregelen komt uit verschillende bronnen, waaronder het Gemeentelijk Rioleringsplan (GRP).

Gemeentelijk Rioleringsplan 2015-2019

De gemeente is op grond van de Wet milieubeheer verplicht periodiek een Gemeentelijk Rioleringsplan (GRP) vast te stellen om invulling te geven aan haar zorgplichten voor afvalwater, hemelwater en grondwater. Het GRP bevat rioleringsbeleid en een overzicht van alle aanwezige rioleringsvoorzieningen, inclusief de actuele toestand ervan en de te verwachten vervangingsperioden.

Ook geeft het plan inzicht in de wijze waarop de riolering wordt beheerd, welke effecten er zijn voor het milieu en hoe het beheer wordt gefinancierd.

De gedachten vanuit de Structuurvisie Haarlemmermeer 2030, Proeftuin klimaatbestendige stad en het integraal Waterplan Haarlemmermeer 2015-2030 zijn ook van toepassing op het gemeentelijke riolerings- en grondwaterbeleid. De rode draad in het beleid is dat de gemeente streeft naar een duurzaam en klimaatbestendig watersysteem.

Het GRP geeft basis de planning van nieuwe aanleg, plannen om vuiluitworp te reduceren en plannen voor beheer en onderhoud voor de komende vijfjaar, met een doorkijk naar de verdere toekomst.

Bij nieuwbouw en verbouw is het gescheiden aanbieden van het afvalwater en het hemelwater het uitgangspunt. Voor nieuwbouwwijken en grotere reconstructiegebieden wordt uitgegaan van een zwaardere ontwerpnorm voor het rioolstelsel, waardoor zwaardere regenbuien minder snel overlast veroorzaken.

Om overlast door grondwater te voorkomen voorziet het GRP in de aanleg van drainage in vijf wijken: Rijsenhout-Zuid, Pax, Graan voor Visch (Hoofddorp), Linquenda, Welgelegen (Nieuw-Vennep), en het uitvoeren van grondwatermaatregelen in Zwanenburg.

Vanuit het Bestuursakkoord Water heeft de gemeente verdere invulling gegeven aan een verbetering van de samenwerking met omliggende gemeenten en met het Hoogheemraadschap van Rijnland.

5.1.2 Onderzoek

Riolering en afkoppelen

Voor zover het bestemmingsplan nieuwe ontwikkelingen mogelijk maakt, is het van belang dat er met Rijnland afstemming plaatsvindt over het omgaan met afvalwater en hemelwater. Overeenkomstig het rijksbeleid gaat Rijnland uit van een voorkeursvolgorde voor de omgang met deze waterstromen. Deze houdt in dat allereerst geprobeerd moet worden het ontstaan van (verontreinigd) afvalwater te voorkomen, bijvoorbeeld door het toepassen van niet uitlogende bouwmaterialen en het vermijden van vervuilende activiteiten op straat zoals auto's wassen en chemische onkruidbestrijding. Vervolgens is het streven vuil water te scheiden van schoon water, bijvoorbeeld door het afkoppelen van hemelwaterafvoeren van gemengde rioolstelsels. De laatste stap in de voorkeursvolgorde is het zuiveren van het afvalwater. De doelmatigheid daarvan wordt vergroot door het scheiden van de schone en de vuile stromen.

De gemeente kan gebruik maken van deze voorkeursvolgorde bij de totstandkoming van het gemeentelijk rioleringsplan (GRP), waarin de uiteindelijke afweging wordt gemaakt en waarbij doelmatigheid van de oplossing centraal staat.

Keur Rijnland 2015

De Keur is een verordening van de waterbeheerder met wettelijke regels voor waterkeringen, watergangen en andere waterstaatwerken (o.a. bruggen, duikers, stuwen, sluizen en gemalen) en voor kwelgevoelige gebieden. Maar ook voor onttrekken en lozen van grondwater en het aanbrengen van verhard oppervlak.

Het uitgangspunt van deze Keur is 'ja, tenzij': in beginsel zijn handelingen en/of werken in het watersysteem toegestaan, tenzij expliciet in deze Keur anders is bepaald. De Keur vermeldt expliciet welke handelingen vergunningplichtig zijn en welke aan algemene regels of aan de zorgplicht moeten voldoen. Wie bijvoorbeeld op een waterkering wil bouwen, moet een watervergunning aanvragen bij Rijnland (én een omgevingsvergunning bij de gemeente).

In de Uitvoeringsregels die bij de Keur horen, is dit nader uitgewerkt.

Randvoorwaarden

Het Hoogheemraadschap van Rijnland stelt als eis dat 15% van de oppervlakte van de totale toename aan verharding in oppervlaktewater binnen het peilvak gerealiseerd wordt. Daarnaast is de ontwikkelaar vrij om te kijken naar het verbeteren van de huidige situatie betreffende water(berging). Deze eis geldt bij een toename aan verhard oppervlak van tussen de 500 m2 en 5.000 m². Onder de 500 m² toename aan verhard oppervlak is geen compensatie vereist, boven de 5.000 m² is maatwerk vereist.

In de watertoets (zie Bijlage 6) is de toetsing van het plan op het onderdeel water uitgebreid beschreven.

5.1.3 Conclusie

Voorgenomen ontwikkeling

In de toekomstige situatie worden binnen het plangebied 30 woningen gerealiseerd. Het totaal verhard terrein neemt toe van 2.330 m² naar circa 6.066 m², een toename van 3.736 m². De verdeling is weergegeven in onderstaande tabel.

afbeelding "i_NL.IMRO.0394.BPGvyfspieriwg468-C001_0022.png"

Tabel: Berekening verhard en onverhard terrein op basis van oppervlaktenstaat totaalcomplex van GJS architecten op basis van het stedenbouwkundig plan.

De berekening van de toename is opgebouwd uit:

  • Grondoppervlak woningen (100% verhard);
  • Oppervlak parkeerplaatsen, garages, bergingen (100% verhard);
  • Oppervlak privéterrein (50% verhard)
  • Oppervlak openbaar gebied (100% verhard).

Nu de toename lager is dan 5.000 m2 kan worden uitgegaan van compensatie met oppervlaktewater van 15% van 3.736 m2 = 560 m2.

Watersysteem

Uitgaande van een toename van verharding van circa 3.736 m², een afgekoppeld oppervlak van circa 1.567 m² en een compensatie-eis van 15% van de toename van verhard oppervlak, moet circa 560 m² aan oppervlaktewater worden gerealiseerd. Binnen het plangebied wordt langs de Voorgracht nieuw oppervlaktewater gerealiseerd. Gelet op het hoogteverschil in het terrein kan de bestaande oever worden voorzien van vlonders boven het water en daaronder een verbreding van de watergang. De ruimte die hier beschikbaar voor is bedraagt in totaal circa 580 m2. In het bestemmingsplan is deze ruimte bestemd als 'Water' zodat op deze locatie de watergang van de Voorgracht wordt benut voor de benodigde watercompensatie. De inrichting van dit water is met het Hoogheemraadschap van Rijnland en de gemeente Haarlemmermeer afgestemd.

Vuil- en hemelwaterafvoer

Conform het beleid van de gemeente moet de vuil- en hemelwaterafvoer in de toekomstige situatie gescheiden worden afgevoerd. Hierbij moet het vuilwater naar de rioolwaterzuivering worden geleid en het hemelwater naar oppervlaktewater of een waterberging.

Om de toename in verharding te compenseren moet nieuw oppervlaktewater (560 m²) worden gerealiseerd binnen het peilvak. Daarnaast wordt de hemelwaterafvoer en waterberging binnen het plangebied naar de bestaande sloten uitwerkt in het bouwplan. Er zijn verschillende manier om water te bergen in verharde gebieden volgens de trits: vasthouden – bergen – afvoeren.

Waterkwaliteit

Het hemelwater dat terechtkomt op de bebouwing en de openbare verharding wordt beschouwd als schoon wanneer geen uitlogende bouwmaterialen (zoals lood, koper, zink en zacht PVC) gebruikt worden. Dit schone hemelwater dient gescheiden van het vuilwater afgevoerd en verwerkt te worden richting de watergangen.

Grondwater

Door de toename aan verharding infiltreert minder water direct in de bodem. Wanneer minder water infiltreert heeft dit tot gevolg dat het grondwaterniveau lager komt te liggen. Nu het hemelwater gescheiden wordt afgevoerd en in het naastgelegen open water wordt geloosd, is de verwachting dat de toename aan verharding binnen het plangebied een nauwelijks merkbaar effect heeft op het grondwaterniveau.

Waterkeringen en beschermingszones

Het plangebied ligt niet dicht bij waterkeringen en valt niet binnen een beschermingszone van een waterkering of watergang, waardoor hierop geen effecten te verwachten zijn.

Overeenkomst

Met het Hoogheemraadschap van Rijnland, de gemeente Haarlemmermeer en de initiatiefnemer is de waterhuishouding besproken. Voor het waarborgen van de watercompensatie zijn afspraken gemaakt en in een anterieure overeenkomst vastgelegd tussen de gemeente Haarlemmermeer en de initiatiefnemer.

5.2 Bodem

5.2.1 Wet- en regelgeving

Het bodembeleid onderscheidt drie soorten grond en bodem met ieder hun eigen beleid en wet- en regelgeving:

  • Sterk verontreinigde grond (boven interventiewaarden);
  • Licht verontreinigde grond (boven streefwaarden, na 1 juli 2008 AW2000-waarden);
  • Schone bodems (beneden streefwaarden, na 1 juli 2008 AW2000-waarden).

Voor alle typen grond speelt de Wet Bodembescherming, het Bouwstoffenbesluit (BsB) en de Vrijstellingsregeling grondverzet een rol. Indien gesaneerd moet worden, bestaan specifieke regels voor het bepalen van de terugsaneerwaarde en de milieuhygiënische kwaliteit van een aan te brengen leeflaag (zogenaamde bodemgebruikswaarden (BGW’s).

Bodemgebruikswaarden zijn een product van het functiegericht saneringsbeleid "Van Trechter naar Zeef". Sinds 2008 is het Besluit bodemkwaliteit van kracht. Dit besluit hanteert voor het toepassen van grond en bagger, een toets op de ontvangende bodem en aan de gebruiksfunctie. Tevens biedt het besluit meer mogelijkheden voor grondverzet.

De bodemkwaliteitskaart (2011) van Haarlemmermeer geeft aan wat de gemiddelde kwaliteit van de grond op niet-verdachte locaties is in de gemeente.

5.2.2 Bodemonderzoek

Doel

Het historisch vooronderzoek heeft tot doel inzicht te krijgen in de reeds bekende bodemkwaliteitsgegevens, (voormalige) potentieel bodembedreigende activiteiten en installaties ter plaatse van het plangebied. Op basis van het vooronderzoek kan worden bepaald of de bodemkwaliteit mogelijk belemmeringen op kan leveren voor de voorgenomen bestemming, ten behoeve van het verkrijgen van een goedkeuring op de wijziging van het bestemmingsplan, als ook het verkrijgen van een omgevingsvergunning voor het onderdeel bouwen. Op basis van het historisch onderzoek is geconcludeerd dat voor de locatie een verkennend bodemonderzoek noodzakelijk is.

Het doel van het verkennend onderzoek is het vastleggen van de bodemkwaliteit ten behoeve van het verkrijgen van een goedkeuring op de wijziging van het bestemmingsplan, als ook het verkrijgen van een omgevingsvergunning voor het onderdeel bouwen. Tevens is de milieuhygiënische bodemkwaliteit en voorlopige veiligheidsklasse (CROW 400) bepaald ten behoeve van de beoogde civieltechnische werkzaamheden.

In het uitgevoerde bodemonderzoek is overeenkomstig de NEN 5740 +A1 de milieuhygiënische bodemkwaliteit ter plaatse van de onderzoekslocatie vastgesteld. Het verkennend asbestonderzoek is uitgevoerd conform de NEN 5707 +C2 (2017). Het onderzoek naar de milieuhygiënische kwaliteit van de waterbodem is indicatief uitgevoerd.

Het uitgevoerde bodemonderzoek is als Bijlage 4 bij het bestemmingsplan opgenomen.

5.2.3 Conclusie

Uit het uitgevoerde onderzoeken volgen de onderstaande conclusies:

Grond

In de zintuiglijk schone bovengrond zijn geen verhoogde gehalten aan geanalyseerde parameters aangetoond. In de zintuiglijk schone ondergrond zijn maximaal licht verhoogde gehalten aan molybdeen gemeten.

Uit de Bodemkwaliteitskaart (Bkk) van de gemeente Haarlemmermeer valt op te maken dat de locatie binnen de zone 2 en de bodemfunctieklasse ‘Wonen’ is gelegen. De boven- en ondergrond zijn ingedeeld in respectievelijk de bodemkwaliteitsklassen Wonen en Achtergrondwaarden. Zowel de zintuiglijk schone bovengrond als - ondergrond voldoen aan de kwaliteitsklasse ‘Achtergrondwaarde’. De resultaten van de grondmonsters voldoen aan de maximale bodemkwaliteitsklasse volgens de bodemkwaliteitskaart van de gemeente

Haarlemmermeer.

Grondwater

In het grondwater zijn maximaal licht verhoogde gehalten aan barium en molybdeen aangetoond.

De resultaten van zowel de grond als het grondwater komen overeen met de voorgaande bodemonderzoeken die hebben plaatsgevonden op de onderzoekslocatie en aangrenzende percelen.

PFOA/PFOS

Zowel de resultaten van de grond als het grondwater liggen onder de gestelde waarden voor humane risico’s. Het grondwater van peilbuis 03 zijn niet verontreinigd. In het grondwater ter plaatse van peilbuis 21 is een concentratie PFOS/PFOA boven de detectiegrens gemeten. In de bovengrond is een zeer licht gehalte aan PFOS/PFOA aangetroffen, maar het gemeten gehalte ligt nog ruim onder de door RIVM gestelde grens voor ‘wonen met moestuin’. De bovengrond voldoet aan de kwaliteitsklasse ‘Niet ingedeeld – PFOS/PFOA toepasbaar’. In de ondergrond is geen gehalte aan PFOS/PFOA boven de detectiegrens gemeten. De ondergrond wordt dan ook ingedeeld in de kwaliteitsklasse ‘Niet ingedeeld – vrij toepasbaar’. Formeel worden het grondwater ter plaatse van peilbuis 21 en de bovengrond geclassificeerd als verontreinigd, echter geven de resultaten geen aanleiding tot het uitvoeren van een bodemsanering.

Asbest

Uit de resultaten blijkt dat er geen asbest is aangetroffen in de geanalyseerde monsters. Zintuiglijk is eveneens geen asbestverdacht materiaal aangetroffen.

Waterbodem

Het volledig slib (WB_01: dieptetraject 0,15 – 0,35 m-mv.) is onder voorwaarden toepasbaar in oppervlaktewater (klasse B) en heeft een kwaliteitsklasse ‘Industrie’ op landbodem. Het zand (WB_02: dieptetraject 0,3 – 0,8 m-mv.) is ‘Altijd toepasbaar’ in oppervlaktewater en op landbodem.

Voorlopige veiligheidsklasse

Conform de CROW-publicatie 400 is voor de voorgenomen werkzaamheden geen aanvullende veiligheidsklasse van toepassing. Er kan gedurende de grondroerende werkzaamheden worden volstaan met het hanteren van de basishygiëne.

Toetsing hypothese

De vooraf opgestelde hypothese 'verdachte locatie' wordt aanvaard, vanwege de lichte verontreinigingen in grond, grondwater en waterbodem.

De onderzoeksresultaten geven vanuit de Wet bodembescherming geen aanleiding tot het uitvoeren van vervolgonderzoek, omdat de gemeten concentraties kleiner zijn dan de betreffende interventiewaarde.

De resultaten geven geen aanleiding tot nader onderzoek en vormen vanuit milieuhygiënisch oogpunt geen belemmering voor de beoogde wijziging bestemmingsplan en civieltechnische werkzaamheden.

Voornoemde conclusies zijn gebaseerd op het vooronderzoek, de zintuiglijke waarnemingen en analyseresultaten van dit onderzoek.

5.3 Flora en fauna

5.3.1 Wet- en regelgeving

De Wet natuurbescherming (hierna Wnb) heeft per 1 januari 2017 de Boswet, Flora- en faunawet en de Natuurbeschermingswet 1998 vervangen. De Wnb regelt de bescherming van Natura 2000-gebieden, bescherming van soorten en de bescherming van houtopstanden.

Naast bescherming vanuit de Wnb, zijn er ook gebieden die planologisch beschermd zijn. Het betreft het 'Natuurnetwerk Nederland' (hierna NNN). De bescherming van het NNN verloopt via het ruimtelijke ordeningsrecht (Barro, bestemmingsplannen) en niet via de natuurwetgeving.

In de Wnb is soortbescherming opgedeeld in drie categorieën. Voor elke categorie gelden verschillende verbodsbepalingen die zijn vermeld in artikel 3.1, 3.5 en 3.10 van de Wnb. Het gaat om de volgende drie categorieën:

  • soorten van de Vogelrichtlijn;
  • soorten van de Habitatrichtlijn, inclusief bijlage I en II uit Verdrag van Bern en bijlage I uit Verdrag van Bonn;
  • 'andere soorten' (onderdeel A 'fauna' en onderdeel B 'flora').
5.3.2 Onderzoek

Het doel van de Natuurtoets is het opsporen van strijdigheden van het voorgenomen plan met de beschermde soorten en beschermde gebieden (Natura 2000-gebieden en het Natuurnetwerk Nederland; NNN) en het bepalen of het plan uitvoervaar is. De natuurtoets is als Bijlage 2 opgenomen bij deze toelichting.

De effecten op beschermde soorten als gevolg van het voornemen, zijn per soortgroep getoetst. De volgende soorten zijn relevant voor het plangebied: algemene voorkomende broedvogels, vogels met een jaarrond beschermd nest, marterachtigen en vleermuizen. Daarnaast is gekeken naar mogelijke effecten op beschermde gebieden.

5.3.2.1 Vogels

Alle nesten van vogelsoorten in Nederland zijn beschermd onder de Wnb, maar met de meeste broedvogels kan relatief eenvoudig rekening worden gehouden tijdens werkzaamheden. Het wordt aangeraden buiten het broedseizoen te werken, het plangebied voor werkzaamheden ongeschikt te maken voor broedvogels en het plangebied dient vooraf gecontroleerd te worden door een erkend ecoloog op de aanwezigheid van broedvogels.

In de huidige gebouwen zitten potentiële verblijfplaatsen en nestgelegenheden voor de huismus (vogel met een jaarrond beschermd nest). Bij de sloop van de gebouwen gaan deze verblijfplaatsen verloren en dit is in overtreding met de Wnb. Het gebruik van gebouwen door de huismus kan inzichtelijk gemaakt worden via nader onderzoek (volgens het juiste protocol en op het juiste tijdstip). Indien verblijfplaatsen aanwezig zijn dient een ontheffing aangevraagd te worden en moet worden voldaan aan drie voorwaarden:

  • 1. Er bestaat geen andere bevredigende oplossing.
  • 2. Zij is nodig in een van in de wet genoemde belang onder artikel 3.3;
  • 3. Er wordt geen afbreuk gedaan aan het streven de populaties van de betrokken soort in hun natuurlijke verspreidingsgebied in een gunstige staat van instandhouding te laten voortbestaan.

Aangezien de voorgenomen ontwikkeling locatie specifiek is en het resultaat van een uitgebreid voortraject lijkt er geen andere bevredigende oplossing en in de uitvoering zal rekening gehouden worden met aanwezige verblijfplaatsen (1). Er zal onderbouwd kunnen worden dat de ontwikkeling plaatsvindt in het belang ter bescherming van flora en fauna mits voldoende maatregelen ten gunste de soort worden getroffen (2). Ook kan door het nemen van maatregelen de verslechtering van de staat van instandhouding van de huismus worden voorkomen (3). Mitigerende/compenserende maatregelen die kunnen worden getroffen is het aanbieden van tijdelijke verblijfplaatsen in de nabijheid, rekening houdend met een gewenningstijd.

In de bomen binnen het plangebied is mogelijk een jaarrond beschermd nest aanwezig van de ransuil. De ophoping van braakballen laat zien dat de ransuil het gebied regelmatig bezoekt. Het is niet met zekerheid te zeggen of nesten aanwezig zijn door de dichte begroeiing, het wordt daarom geadviseerd het plangebied in de winter nader te controleren. Het resultaat van de controle is opgenomen in paragraaf 5.3.3.

5.3.2.2 Zoogdieren

De steenmarter is beschermd onder de Wnb en daarnaast zijn kleine marterachtigen (bunzing, hermelijn en wezel) ook beschermd in de provincie Noord-Holland. Nader onderzoek is nodig om uit te sluiten dat de groenstroken en het erf geen beschermde verblijfplaatsen bevatten van marterachtigen. Een aantasting, verstoring of vernietiging van deze verblijfplaatsen is in strijd met de Wnb en daarom dient een ontheffingsprocedure doorlopen te worden. De voorwaarden voor het krijgen van een ontheffing zijn hetzelfde als bij de huismus (zie hierboven). Aangezien de voorgenomen ontwikkeling locatie specifiek is en het resultaat van een uitgebreid voortraject lijkt er geen andere bevredigende oplossing en in de uitvoering zal rekening gehouden worden met aanwezige verblijfplaatsen (1). Er zal onderbouwd kunnen worden dat de ontwikkeling plaatsvindt in het belang ter bescherming van flora en fauna mits voldoende maatregelen ten gunste de soort worden getroffen (2). Ook kan door het nemen van maatregelen de verslechtering van de staat van instandhouding van de betreffende martersoort worden voorkomen (3). Maatregelen die kunnen worden getroffen is het aanbieden van tijdelijke verblijfplaatsen in de nabijheid, rekening houdend met een gewenningstijd.

Vleermuissoorten zijn bescherming onder de Wnb. In de huidige gebouwen is niet zonder nader onderzoek uit te sluiten of zich hier verblijfplaatsen bevinden voor vleermuizen. Daarnaast is nader onderzoek nodig om uit te sluiten of langs de bomen en hoge vegetatie in het plangebied vliegroutes en foerageergebieden aanwezig zijn. Indien verblijfplaatsen, vliegroutes en foerageergebieden aanwezig zijn en deze worden aangetast, verstoord of vernietigd, dient een ontheffing aangevraagd te worden. De voorwaarden hiervoor zijn hetzelfde als bij de huismus en marterachtigen (zie hierboven). Aangezien de voorgenomen ontwikkeling locatie specifiek is en het resultaat van een uitgebreid voortraject lijkt er geen andere bevredigende oplossing en in de uitvoering zal rekening gehouden worden met aanwezige verblijfplaatsen (1). Er zal onderbouwd kunnen worden dat de ontwikkeling plaatsvindt in het belang ter bescherming van flora en fauna mits voldoende maatregelen ten gunste de soort worden getroffen (2). Ook kan door het nemen van maatregelen de verslechtering van de staat van instandhouding van de betreffende martersoort worden voorkomen (3). Maatregelen die kunnen worden getroffen is het aanbieden van tijdelijke verblijfplaatsen in de nabijheid, rekening houdend met een gewenningstijd.

5.3.2.3 Beschermde gebieden

De bureaustudie laat zien dat binnen drie kilometer afstand van het plangebied geen Natura 2000-gebied ligt. Het Natura 2000-gebied ligt buiten het invloedsgebied van het plan wat betreft vermesting en verzuring, verdroging of geluid- en lichtverstoring.

Het dichtstbijzijnde Natura 2000-gebied ‘Kennemerland-Zuid’ ligt op circa 7 kilometer afstand ten oosten van het plangebied. Vanwege de afstand, de geringe omvang van de ontwikkeling in het plangebied en daardoor de afscherming worden geen effecten soorten, habitats of habitattypen in het Natura 2000-gebied verwacht. Er is geen effect op het meest nabijgelegen Natura 2000-gebied en er is daarom ook geen aanleiding effecten te verwachten op verder gelegen Natura 2000-gebieden. Een vervolgonderzoek is niet noodzakelijk en de gebiedsbescherming uit de Wnb staat het uitvoering van het plan niet in de weg.

Er bevindt zich geen NNN binnen het plangebied en van directe aantasting is dus geen sprake. Er liggen wel NNN-gebieden in de omgeving, maar significant negatieve effecten op de wezenlijke kenmerken van de NNN kunnen worden uitgesloten. De NNN staat de uitvoering van het plan niet in de weg.

Het plangebied valt binnen de bebouwde kom houtopstanden. De Wet natuurbescherming voor het verwijderen van de houtopstanden niet van toepassing.

5.3.3 Conclusie

Met algemene broedvogels kan rekening gehouden worden tijdens de werkzaamheden. Nader onderzoek in 2019 is benodigd om vast te stellen of verblijfplaatsen aanwezig zijn van de huismus, de ransuil, marterachtigen en vleermuizen. Bij de aanwezigheid van verblijfplaatsen dient een ontheffing Wnb aangevraagd te worden, waar in alle gevallen kan worden onderbouwd waarom aan de voorwaarden kan worden voldaan. Er zijn geen effecten op Natura 2000- en NNN-gebieden die het plan in de weg staan.

Conclusie inspectie ransuil

Bij de uitvoering van de Natuurtoets zijn braakballen aangetroffen bij een in het plangebied aanwezige boom. Ten tijde van de uitvoering stond de boom nog in bloei en was het zodoende niet uit te sluiten of er mogelijk een ransuil nest aanwezig was. Hierdoor werd het noodzakelijk om ten tijde van de winter de boom te controleren op de mogelijke aanwezigheid van een ransuil nest.

Het plangebied is door een erkend ecoloog bezocht op 9 januari 2019 rond 10:15 uur. De boom is geïnspecteerd, waaruit werd geconcludeerd dat er geen nest en roestbomen aanwezig zijn. Zodoende is de aanwezigheid van een ransuilnest uitgesloten.

Conclusie huismus, marterachtigen en vleermuizen

Nader onderzoek naar de overige aspecten is uitgevoerd in 2019. De bevindingen van het nader onderzoek zijn beschreven in de rapportage die als Bijlage 7 is opgenomen bij de toelichting van het bestemmingsplan.

Vleermuizen

Tijdens het onderzoek naar vleermuizen binnen en nabij het projectgebied zijn twee verschillende vleermuissoorten waargenomen. Dit betrof gewone dwergvleermuizen en laatvliegers. Vaste rust- of verblijfplaatsen, essentiële foerageergebieden of essentiële vliegroutes zijn niet aangetroffen. Wat betreft vleermuizen is geen overtreding van de Wet natuurbescherming aan de orde en hoeft geen ontheffing aangevraagd te worden.

Huismus

Tijdens het onderzoek naar huismussen binnen en nabij het projectgebied zijn verschillende malen huismussen waargenomen. Dit betrof allemaal foeragerende exemplaren. Broedplaatsen zijn niet aangetroffen. Wat betreft de huismus is geen overtreding van de Wet natuurbescherming aan de orde en hoeft geen ontheffing aangevraagd te worden.

Kleine marterachtigen

Binnen het projectgebied zijn geen kleine marterachtigen waargenomen. Wat betreft de kleine marterachtige is geen overtreding van de Wet natuurbescherming aan de orde en hoeft geen ontheffing aangevraagd te worden.

afbeelding "i_NL.IMRO.0394.BPGvyfspieriwg468-C001_0023.png"

Tabel: Samenvatting conclusies en vervolgstappen

5.4 Cultuurhistorie en archeologie

5.4.1 Wet- en regelgeving

Nederland tekende in 1992 het Verdrag van Malta dat de omgang met het Europees archeologisch erfgoed regelt. Aanleiding voor dit verdrag was dat het Europese archeologische erfgoed in toenemende mate bedreigd werd. Niet alleen door natuurlijke processen of ondeskundig gebruik van het bodemarchief, maar ook door ontwikkelingen in de ruimtelijke ordening.

Op 1 september 2007 is de Wet op de archeologische monumentenzorg in werking getreden. Hiermee zijn de uitgangspunten van het Verdrag van Malta binnen de Nederlandse wetgeving geïmplementeerd. De wet regelt de bescherming van archeologisch erfgoed in de bodem, de inpassing ervan in de ruimtelijke ontwikkeling en de financiering van opgravingen: 'de veroorzaker betaalt'. Het archeologisch bodemarchief is de grootste bron voor de geschiedenis van Nederland. Het belangrijkste doel van de wet is het behoud van dit erfgoed in situ (ter plekke), omdat de bodem de beste garantie biedt voor een goede conservering van de archeologische waarden.

De Beleidsnota Cultureel Erfgoed Gemeente Haarlemmermeer gaat in een breed kader in op cultuurhistorie in de gemeente Haarlemmermeer. Het monumentenbeleid en het archeologiebeleid in algemene zin komt in deze nota aan bod. Binnen het gemeentelijk monumentenbeleid is een belangrijke taak weggelegd voor de monumentencommissie. De taak van de monumentencommissie is omschreven in de gemeentelijke monumentenverordening. In de Nota Ruimtelijk Beleid en Archeologie Haarlemmermeer wordt uiteengezet hoe de gemeente omgaat met de archeologische zorgplicht (bescherming van het bodemarchief) in ruimtelijke plannen en bij vergunningverlening.

5.4.2 Inventarisatie

Aardkundige monumenten en aardkundig waardevolle gebieden door de provincie aangewezen komen niet voor in Haarlemmermeer. In de gemeente Haarlemmermeer bevinden zich geen door het Rijk, provincie of gemeente beschermde archeologische monumenten.

In paragraaf 3.2.2 is de ligging van de kern Vijfhuizen binnen de Stelling van Amsterdam beschreven. De cultuurhistorische waarden van de Stelling is met name aanwezig rondom het fort Vijfhuizen. Deze ligt op ruimte afstand van het plangebied in zuidwestelijke richting na het passeren van de vrijliggende R-NET busbaan. De relatie tussen het plangebied en het fort is mede door de doorsnijding van de businfrastructuur niet aanwezig.

De oude kern

Ten westen van de Spieringweg ligt de oude kern Vijfhuizen. De lintbebouwing van de Vijfhuizerdijk en de polderwegen Vijfhuizerweg, Spieringweg en Kromme Spieringweg heeft zich langzamerhand verdicht tot de dorpskern met individuele, afwisselende bebouwing. De bebouwing langs deze wegen en de Zwarteweg en de Klugt is overwegend vrijstaand, kleinschalig en individueel.

Het zijn merendeels enkele en dubbele woonhuizen met soms een winkelfunctie op de begane grond. De panden zijn wisselend met de top- of langsgevel gericht op de weg. De meeste hebben een voor- en achtertuin. De onderbouw bestaat uit één bouwlaag, soms twee bouwlagen en een kaplaag. De kap is meestal een zadeldak, maar ook mansardekappen komen voor. Aan- en uitbouwen komen regelmatig voor en zijn naar achteren geplaatst of maken deel uit van de straatwand.

Seriematige uitbreiding

Een deel van de uitbreidingen van de dorpskern bestaat uit seriematige rijen, geschakelde woningen en twee-onder-een-kap-woningen die zijn opgebouwd uit herhaalde wooneenheden. Het gaat dan om het buurtje Buitenhof en het merendeel van de uitbreiding ten oosten van de d’Yserinckweg, die uit seriematige woningbouw bestaat. Ook langs de Spieringweg, de Zwarteweg en de noordwestkant van d’Yserinckweg staan enkele rijen die zijn opgebouwd uit herhaalde woningen. De woningen zijn veelal met de voorzijde gericht naar de belangrijke openbare ruimte. Beganegrondwoningen hebben in het algemeen zowel een voor- als een achtertuin. Het merendeel van de woningen heeft een onderbouw van twee lagen en een kap in de vorm van een zadeldak. Bij de woningen aan de Mient staan de garages aan de voorzijde. De seriematige woningen aan de Vijfhuizerweg wijken op een aantal punten af: ze zijn twee lagen hoog en plat afgedekt met een nadrukkelijke boeiboord. Een woningrij aan de Zijdewinde wijkt af door de galerijontsluiting.

5.4.3 Conclusie

In het plangebied zijn geen aardkundige monumenten en waarden, archeologische monumenten en waarden aanwezig.

Ter hoogte van het plangebied zijn aan de westzijde van de Spieringweg vrijstaande, rijwoningen (vier aaneengebouwd) en twee-onder-een-kap woningen aanwezig. De bebouwing langs de Spieringweg in het plangebied sluit qua verkaveling aan bij het straatbeeld van de oude kern / seriematige uitbreiding door hier in totaal zes twee-onder-een-kap woningen te realiseren. Alle twee-onder-een-kap woningen hebben een andere gevelcombinatie variatie in zadeldak en langskappen.

5.5 Geluid

5.5.1 Wet- en regelgeving

Wegverkeer

In de Wet geluidhinder is bepaald dat het bevoegd gezag bij vaststelling van een bestemmingsplan de wettelijke grenswaarden in acht moet nemen. Toetsing aan de ten hoogste toelaatbare geluidbelasting van de Wet geluidhinder vindt plaats per weg. Het geluidsniveau ten gevolge van het wegverkeer dient op de gevels van nieuwe (of te wijzigen) woningen in de geluidszone van een weg te voldoen aan de ten hoogste toelaatbare geluidsbelasting (voorheen: voorkeursgrenswaarde). Deze bedraagt 48 dB. Indien dit geluidsniveau wordt overschreden kan de gemeente een hoger geluidsniveau toestaan de zogenaamde "Hogere waarde". De Hogere waarde mag enkel worden verleend indien uit akoestisch onderzoek is gebleken dat bron-, overdrachts- of gevelmaatregelen om het geluidsniveau terug of onder de ten hoogste toelaatbare geluidsbelasting te brengen niet mogelijk is. Aan de Hogere waarde is een maximum verbonden. Voor de nieuwbouw van woningen in binnenstedelijke situaties is dit 63 dB en in buitenstedelijke situaties is dit 53 dB. Deze niveaus zijn na aftrek van de correctie conform artikel 110g van de Wet geluidhinder.

Industrielawaai

Op basis van artikel 40 van de Wet geluidhinder kunnen (delen van) industrieterreinen worden aangewezen als gezoneerd industrieterrein met een zonegrens. Dit betreft industrieterreinen waarop zich gronden bevinden die zijn aangewezen voor mogelijke vestiging van zogenaamde "zware lawaaimakers" als genoemd in artikel 41 lid 3 van de Wet geluidhinder en artikel 2.1 lid 3 van het Besluit omgevingsrecht. Buiten de zonegrens mag de geluidbelasting vanwege het industrieterrein de waarde van 50 dB niet te boven gaan. De op 1 januari 2007 geldende ten hoogste toelaatbare geluidsbelastingen voor woningen, andere geluidsgevoelige gebouwen en geluidsgevoelige terreinen – vastgelegd in eerder genomen besluiten – blijven gelden.

De bedrijven aan de westkant van de Spieringweg zijn bestemd als 'Bedrijventerrein -3'. Binnen deze bestemming zijn bedrijfsactiviteiten die vallen in ten hoogste categorie 3 van de Lijst van Bedrijfstypen behorende bij het bestemmingsplan toegestaan, met uitzondering van garagebedrijven, geluidzoneringsplichtige inrichtingen en risicovolle inrichtingen als bedoeld in het Besluit Externe Veiligheid Inrichtingen en het Vuurwerkbesluit, opslag hieronder begrepen.

De afstand tussen de bestaande woningen en het bouwvlak van het dichtstbijzijnde bedrijf aan de Spieringweg 583a bedraagt circa 13 meter. De bestaande woningen aan de Spieringweg 569 t/m 585 zijn maatgevend bij toetsing naar de milieubelasting. Deze woningen bevinden zich in de huidige situatie al dichter bij de toekomstige te realiseren woningen.

In het vigerende bestemmingsplan Vijfhuizen 2010 wordt geconcludeerd dat er geen bedrijven en voorzieningen binnen het plangebied aanwezig zijn die een overmatige vorm van hinder veroorzaken voor de woonomgeving. Het betreft voorzieningen waarvan gesteld kan worden dat deze gewenst worden binnen een woonomgeving, mits op de juiste locatie gesitueerd, met name vanwege de verkeersaantrekkende werking.

Luchtverkeerslawaai

Op grond van artikel 8.30a van de Wet luchtvaart stelt de minister elk vijfde kalenderjaar een geluidsbelastingkaart vast. Die heeft betrekking op de geluidsbelasting (overdag (Lden) en 's nachts (Lnight) veroorzaakt door de luchthaven op woningen en bij Algemene Maatregel van Bestuur aan te wijzen categorieën van andere geluidgevoelige gebouwen.

5.5.2 Onderzoek

Op basis van artikel 77 van de Wet geluidhinder is bij de vaststelling van een bestemmingsplan het noodzakelijk dat een akoestisch onderzoek wordt uitgevoerd naar de geluidbelasting op gevels van woningen, andere geluidsgevoelige gebouwen en andere geluidsgevoelige terreinen, die binnen de geluidszone van een weg vallen. Langs wegen bevindt zich een zone, waarvan de breedte is opgenomen in artikel 74 van de Wet geluidhinder. De zonebreedte is bij wegverkeer afhankelijk van het aantal rijstroken en of de weg in stedelijk of buitenstedelijk gebied ligt. Buitenstedelijk is het gebied buiten de bebouwde kom en het gebied binnen de bebouwde kom, voor zover liggend in de zone van een auto(snel)weg. Het overige gebied is binnenstedelijk.

Geen zone hebben wegen die zijn gelegen binnen een als woonerf aangeduid gebied of waarvoor een maximumsnelheid geldt van 30 kilometer per uur of waarvan op grond van een door de gemeenteraad vastgestelde geluidniveaukaart vaststaat, dat de geluidbelasting op 10 meter uit de as van de weg 50 dB of minder bedraagt.

In de zin van de Wet geluidhinder zijn dergelijke wegen niet-zoneplichtig en zouden derhalve buiten beschouwing kunnen blijven. Vanwege de 'goede ruimtelijke ordening' zijn deze toch akoestisch onderzocht. Het gaat hierbij om de Liniewal, Spieringweg, Telraam, Vijfhuizerweg en Voorgracht.

Bij het toekennen van nieuwe bestemmingen in het bestemmingsplan, zal de geluidsbelasting onderzocht moeten worden. Dit onderzoek is opgenomen als Bijlage 5 bij het bestemmingsplan.

5.5.3 Conclusie

Vastgesteld zal moeten worden dat de toegekende bestemming op akoestisch gebied realiseerbaar is. De Liniewal, Spieringweg, Telraam, Vijfhuizerweg en Voorgracht worden getoetst aan een richtwaarde van 53 dB en een maximale richtwaarde van 68 dB. Dit is in lijn met de voorkeursgrenswaarde en de maximaal toelaatbare waarde uit de Wgh bij beoordeling voor een bestaande weg in stedelijk gebied met een aftrek van 5 dB. Bij de beoordeling van de 30 km/h wegen wordt geen aftrek toegepast conform ex artikel 110g Wgh.

Uit de berekeningsresultaten blijkt dat de geluidbelasting vanwege het Telraam, de Vijfhuizerweg en de Voorgracht beneden de richtwaarde van 53 dB blijven. De geluidbelasting ten gevolge van de Liniewal en de Spieringweg bedraagt ten hoogste 54 dB (exclusief aftrek ex artikel 110g Wgh). De richtwaarde van 53 dB wordt hiermee overschreden, echter blijft de geluidbelasting onder de maximaal richtwaarde van 68 dB.

Gelet op de geringe overschrijding van 1 dB en de ligging van het plangebied rondom 30 km/uur wegen zijn maatregelen aan de wegdekverharding of het plaatsen van een geluidscherm niet doelmatig. Het nemen van maatregelen is formeel ook niet noodzakelijk als het 30 km/uur wegen betreft.

Voor de woningen waar een overschrijding is berekend, kan met behulp van een gevelgeluidweringsonderzoek bij de uitwerking van de bouwplannen en de omgevingsvergunning voor de activiteit bouwen worden onderzocht of de woning aan de wettelijke geluidgrenswaarde voor het binnenniveau voldoen.

5.6 Luchtkwaliteit & Stikstofdepositie

5.6.1 Wet- en regelgeving

Wet luchtkwaliteit

De belangrijkste wet- en regelgeving voor het milieuaspect luchtkwaliteit is vastgelegd in 'Titel 5.2 Luchtkwaliteitseisen' van de Wet milieubeheer (Wm). In artikel 5.16, lid 1 van de Wm is bepaald dat bestuursorganen een besluit, dat gevolgen kan hebben voor de luchtkwaliteit, kunnen nemen wanneer aannemelijk is dat aan één of meer van onderstaande grondslagen wordt voldaan:

  • Er wordt voldaan aan de in bijlage 2 van de Wm opgenomen grenswaarden;
  • Het besluit leidt (per saldo) niet tot een verslechtering van de luchtkwaliteit;
  • Het besluit draagt 'niet in betekenende mate' bij aan de jaargemiddelde concentraties stikstofdioxide (NO2) en fijn stof (PM10);
  • Het project is opgenomen in het Nationaal Samenwerkingsprogramma Luchtkwaliteit (ook wel NSL genoemd).

Specifieke uitvoeringsregels zijn vastgelegd in besluiten (AMvB's) en ministeriële regelingen. Het gaat daarbij onder meer om het Besluit en de Regeling niet in betekenende mate bijdragen, de Regeling beoordeling luchtkwaliteit 2007 en het Besluit gevoelige bestemmingen.

Voor de beoordeling van de luchtkwaliteit zijn de concentraties stikstofdioxide (NO2) en fijn stof (PM10) maatgevend. Voor deze stoffen is de kans het grootste dat de bijbehorende grenswaarden worden overschreden. Overschrijding van de grenswaarde voor de uurgemiddelde concentratie NO2 (200 µg/m3 ) is, in relatie tot wegverkeer, redelijkerwijs uitgesloten. Dergelijke hoge concentraties doen zich niet voor langs wegen en uit metingen over een periode van 10 jaar blijkt dat overschrijding van de uurnorm voor NO2 niet meer aan de orde is.

Net als voor de jaargemiddelde concentratie PM10, is voor de jaargemiddelde concentratie PM2,5 ook een grenswaarde vastgesteld (25 µg/m3 ). PM2,5 is een deelverzameling van PM10 en de PM10- en PM2,5-concentraties zijn dan ook sterk aan elkaar gerelateerd. Uitgaande van de huidige kennis over emissies en concentraties van PM2,5 en PM10 kan worden gesteld dat, als aan de grenswaarden voor PM10 wordt voldaan, ook aan de grenswaarden voor PM2,5 zal worden voldaan.

Besluit en regeling 'niet in betekende mate'

De Wet luchtkwaliteit maakt onderscheid tussen grote en kleine ruimtelijke projecten. Een project is klein als het slechts in geringe mate, ofwel niet in betekenende mate (NIBM), leidt tot een verslechtering van de luchtkwaliteit. De grens ligt bij een verslechtering van maximaal 3% van de grenswaarden voor de luchtkwaliteit. Grotere projecten die in betekenende mate bijdrage kunnen worden opgenomen in het NSL, als is aangetoond dat de effecten van dat project worden weggenomen door de maatregelen van het NSL. Met projecten die 'niet in betekenende mate' bijdragen aan de luchtverontreiniging is rekening gehouden in de autonome ontwikkeling van de luchtkwaliteit.

Het Besluit en de Regeling 'niet in betekenende mate' bevatten criteria waarmee kan worden bepaald of een bepaald project wel of niet als 'in betekenende mate' kan worden beschouwd.

NIBM projecten kunnen - juridisch gezien - zonder toetsing aan de grenswaarden voor wat betreft het aspect luchtkwaliteit uitgevoerd worden. Uit het oogpunt van een goede ruimtelijke ordening moet wel worden bekeken of het realiseren van het plan met betrekking tot de luchtkwaliteit op die locatie gewenst is. Daarbij speelt de mate van blootstelling aan de luchtverontreiniging een rol. Ook de gevoeligheid van bepaalde groepen mensen voor luchtverontreiniging kan daarbij worden afgewogen. Hierbij gaat het niet alleen om de toekomstige gebruikers van de locatie maar ook om de personen in de omgeving daarvan, bijvoorbeeld om de bewoners en/of kinderen in een school/kinderdagverblijf aan de gebiedsontsluitende wegen.

5.6.2 Onderzoek

NIBM-tool

Het stedenbouwkundig plan gaat uit van de realisatie van 30 nieuwe woningen. Als vuistregel geldt dat per nieuwbouwwoning 8 extra voertuigbewegingen per dag gegenereerd worden. Omdat het hier om een woonwijk gaat, zal een zeer beperkt deel van de extra voertuigbewegingen bestaan uit vrachtverkeer.

Ten behoeve van een goede ruimtelijke onderbouwing is aan de hand van bovenstaande uitgangspunten een NIBM tool berekening uitgevoerd. Onderstaand zijn de resultaten daarvan weergegeven. Uit de berekening blijkt dat de realisatie van 30 nieuwe woningen (240 voertuigbewegingen) niet in betekenende mate bijdraagt aan de vermindering van de luchtkwaliteit. In deze berekening is er nog geen rekening mee gehouden dat de huidige voertuigbewegingen naar de huidige woning in de toekomstige situatie niet meer aanwezig zijn. Dat versterkt de conclusie dat de nieuwe woningen niet in betekenende mate bijdragen. Nader onderzoek is niet nodig.

afbeelding "i_NL.IMRO.0394.BPGvyfspieriwg468-C001_0024.png"

Afbeelding 5.1: NIBM-tool berekening van de ontwikkeling in het plangebied

Heersende concentraties luchtverontreinigende stoffen

Om een beeld te geven van de (autonome) concentraties luchtverontreinigende stoffen in de toekomstige situatie is gebruik gemaakt van gegevens uit de NSL Monitoringstool (ronde 2017). De NSL Monitoringstool is het instrument waarmee de overheden de monitoring uitvoeren van het Nationaal Samenwerkingsprogramma Luchtkwaliteit (NSL). Hieruit is af te leiden hoe hoog de concentraties NO2, PM10 en PM2.5 zijn ter hoogte van het plangebied Spieringweg 468 en de omgeving, zowel voor de huidige situatie als voor de toekomstjaren 2020 en 2030.

Stof   2016   2020   2030   Grenswaarde  
Stikstofdioxide (NO2)   19,5   16,1   11,6   40  
Fijn stof (PM10)   18,3   19,0   16,9   31,2*  
Fijn stof (PM2.5)   10,4   10,8   8,9   25  

Tabel: hoogste concentraties plangebied Spieringweg 468

* bij een jaargemiddelde concentratie PM10 van meer dan 31,2 µg/m3 is sprake van meer dan 35 overschrijdingen van de grenswaarde voor de 24-uursgemiddelde concentratie PM10

Uit de tabel blijkt dat de jaargemiddelde concentraties NO2, PM10 en PM2.5(ruim) onder de grenswaarden liggen.

5.6.3 Stikstofdepositie
5.6.3.1 Natura2000-gebied

Het dichtstbijzijnde Natura2000-gebied is Kennemerland-Zuid. Het betreft hier een natuurgebied bestaande uit een uitgestrekt duingebied aan de zuidkant van het Noordzeekanaal. Het gebied bestaat voornamelijk uit kalkrijke jonge duinen en voor een klein deel uit achterliggende oudere landschappen van strandvlakten en volledig ontkalkte duinen. Kenmerkende begroeiing is de duinroosvegetatie in het open duin, duingraslanden, vochtige en droge duinvalleien, verschillende plassen, goed ontwikkelde struwelen en diverse duinbossen. Aan de binnenduinrand zijn diverse landgoederen aanwezig met een aantal buitenplaatsen.

Het plangebied is gelegen op circa 5 kilometer van het Natura2000-gebied Kennemerland-Zuid. Uit de website www.natura2000.nl en de daarin opgenomen meettool bedraagt de afstand minimaal 5.154 meter.

afbeelding "i_NL.IMRO.0394.BPGvyfspieriwg468-C001_0025.png"

Afbeelding 5.2: afstand plangebied tot Natura2000-gebied Kennemerland-Zuid

Andere Natura2000-gebieden liggen op grotere afstand. Het Natura2000-gebied Kennemerland-Zuid is aangewezen in mei 2013 en gewijzigd bij aanwijzingsbesluit van 2014. Op de website van het Ministerie van Landbouw, Natuur en Voedselkwaliteit is het aanwijzingsbesluit te raadplegen.

Uit het aanwijzingsbesluit gelden voor Kennemerland-Zuid op grond van de aanwijzing als Habitatrichtlijngebied doelen voor behoud of uitbreiding van de volgende habitattypen:

  • H2110 Embryonale duinen: behoud oppervlakte en kwaliteit
  • H2120 Witte duinen: uitbreiding oppervlakte en verbetering kwaliteit
  • H2130 Grijze duinen: uitbreiding oppervlakte en verbetering kwaliteit
  • H2150 Duinheiden met struikhei: behoud oppervlakte en kwaliteit
  • H2160 Duindoornstruwelen: behoud oppervlakte en kwaliteit
  • H2170 Kruipwilgstruwelen: behoud oppervlakte en kwaliteit
  • H2180 Duinbossen: subtypen droog (H2180A) en binnenduinrandbos (H2180C): behoud oppervlakte en kwaliteit, voor subtype vochtig: behoud oppervlakte en verbetering kwaliteit
  • H2190 Vochtige duinvalleien: subtypen open water (H2190A), kalkrijk (H2190B) en hoge moerasplanten (H2190D): uitbreiding oppervlakte en verbetering kwaliteit; voor subtype ontkalkt (H2190C): behoud oppervlakte en kwaliteit

De instandhoudingsdoelstellingen zijn vervolgens per natuurdoeltype aangegeven. Hieruit blijkt dat de staat van instandhouding van de grijze duinen (H2130) en in mindere mate de witte duinen (H2120) slecht is en voor verbetering vatbaar.

Uit de effectenindicator blijkt dat met name de grijze duinen (H2130) zeer gevoelig zijn voor de toename van stikstof vanuit de lucht.

afbeelding "i_NL.IMRO.0394.BPGvyfspieriwg468-C001_0026.png"

Afbeelding 5.3: Effectenindicator (bron: aanwijzingsbesluit Natura2000-gebied Kennemerland-Zuid)

5.6.3.2 Realisatiefase

Het bestemmingsplan maakt sloop en nieuwbouw mogelijk. Tijdens de sloop- en bouwfase zal tijdelijk sprake zijn van extra (bouw)verkeer.

Om de effecten van stikstof op relevante Natura2000-gebieden goed te kunnen inschatten, is het van belang om de effecten van het tijdelijke (bouw)verkeer en werkzaamheden te objectiveren en vervolgens te toetsen aan de instandhoudingsdoelstellingen van de relevante Natura2000-gebieden.

Tijdens de aanleg- en bouwfase zal sprake zijn van bouwverkeer en sloop- en bouwwerkzaamheden op de locatie in het plangebied. Daarbij gaat het om zwaar verkeer en middelzwaar verkeer en de inzet van materieel.

Aan de hand van de emmissiefactoren van wegverkeer is de bijdrage van zwaar verkeer en middelzwaar verkeer naar de locatie berekend. Daarnaast is de inzet van materieel op de locatie (heistelling, shovel, etc.) meegenomen in de berekening van de realisatiefase. De uitkomst van deze berekening is opgenomen in Bijlage 8 van de toelichting van het bestemmingsplan.

5.6.3.3 Gebruiksfase

Binnen het plangebied is in de bestaande situatie 1 grote vrijstaande woning (met bijgebouwen) aanwezig. De woning wordt op de traditionele manier gestookt op gas. In de nieuwe situatie zijn er 30 woningen aanwezig die niet meer op het gasnet zijn aangesloten. In de gebruiksfase is er sprake van een reducerend effect vanwege het feit dat de nieuwe woningen niet meer op gas zijn aangesloten. Daarnaast nemen door het aantal woningen de verkeerseffecten toe in de nieuwe situatie.

Om de effecten van stikstof op relevante Natura2000-gebieden goed te kunnen inschatten, is het van belang om de effecten van de toename van verkeersbewegingen en de reductie van het feit dat woningen niet meer op het gas worden aangesloten te objectiveren en vervolgens te toetsen aan de instandhoudingsdoelstellingen van de relevante Natura2000-gebieden.

Voor de huidige, oude, woning aan de Spieringweg 468 geldt op basis van afbeelding 5.4 een uitstoot van 3,59 NOx in kg/jaar.

De nieuwe woningen zullen gasloos worden gerealiseerd. Dat betekent dat er voor de nieuwe woningen geen uitstoot plaats zal vinden. Dat betekent een reductie van 3,59 NOx in kg/jaar.

afbeelding "i_NL.IMRO.0394.BPGvyfspieriwg468-C001_0027.png"

Afbeelding 5.4: Normen NOx / jaar, bron: Aerius-calculator

Er zal in vergelijking met de bestaande situatie wel sprake zijn van toename van het verkeer. Per saldo worden er 29 woningen toegevoegd in het plangebied. Uitgaande van de vuistregel van de gemeente Haarlemmermeer van 6 verkeersbewegingen per huishouden per etmaal zijn dit in totaal 174 verkeersbewegingen per etmaal. De norm voor een verkeersbeweging is 0,015 kg NOx per jaar. Dit levert in de uiteindelijke situatie 0,015 x 174 = 2,61 NOx in kg/jaar op.

De berekening van de gebruiksfase is eveneeens opgenomen in de berekening die als Bijlage 8 is opgenomen in de toelichtiing van het bestemmingsplan.

5.6.4 Conclusie

Uit de rekenresultaten blijkt dat alle berekende jaargemiddelde concentraties NO2, PM10 en PM2,5 (ruim) onder de van kracht zijnde grenswaarden voor de jaargemiddelde concentratie van deze stoffen ligt.

Het aspect luchtkwaliteit staat de uitvoering van het plan niet in de weg.

Voor de voorgenomen ontwikkeling van de Spieringweg 468 in Vijfhuizen toont de AERIUS Calculator (zie Bijlage 8) geen depositieresultaten boven 0,00 mol/ha/jr. Het aspect stikstof staat de ontwikkeling van de woningen niet in de weg.

5.7 Externe veiligheid

5.7.1 Wet- en regelgeving

Het juridisch kader voor externe veiligheid wordt gevormd door het Besluit externe veiligheid inrichtingen (Bevi), het Besluit externe veiligheid buisleidingen (Bevb) en het Besluit externe veiligheid transportroutes (Bevt). In het juridisch kader staan de begrippen plaatsgebonden risico en groepsrisico centraal.

Hoewel beide begrippen onderlinge samenhang vertonen zijn er belangrijke verschillen. Hieronder worden beide begrippen verder uitgewerkt.

Plaatsgebonden Risico

Het plaatsgebonden risico geeft de kans, op een bepaalde plaats, om te overlijden ten gevolge van een ongeval bij een risicovolle activiteit. De kans heeft betrekking op een fictief persoon die de hele tijd op die plaats aanwezig is. Het plaatsgebonden risico kan op de kaart van het gebied worden weergeven met zogeheten risicocontouren: lijnen die punten verbinden met eenzelfde plaatsgebonden risico. Binnen de zogenaamde 10-6/jaar-contour (welke als wettelijk harde norm fungeert) mogen geen nieuwe kwetsbare objecten geprojecteerd worden. Voor beperkt kwetsbare objecten geldt deze 10-6/jaar-contour niet als grenswaarde, maar als een richtwaarde.

Groepsrisico

Het groepsrisico is een maat voor de kans dat bij een ongeval een groep slachtoffers valt met een bepaalde omvang. Het groepsrisico is daarmee een maat voor de maatschappelijke ontwrichting bij een calamiteit. Het groepsrisico kan niet 'op de kaart' worden weergegeven, maar wordt weergegeven in een grafiek waar de kans (f) afgezet wordt tegen het aantal slachtoffers (N), de fN-curve.

Het groepsrisico wordt bepaald binnen het invloedsgebied van een risicovolle activiteit. Dit invloedsgebied wordt doorgaans begrensd door de 1% letaliteitsgrens (tenzij anders bepaald), ofwel door de afstand waarop nog 1% van de blootgestelde mensen in de omgeving komt te overlijden bij een calamiteit met gevaarlijke stoffen. In veel gevallen geldt tevens een 'verantwoordingsplicht', wat betekent dat op basis van de rekenkundige omvang en/of toename van het groepsrisico, tevens verantwoording moet worden gegeven over onder meer de mate van toepassen van risico reducerende maatregelen en de mate waarin zelfredzaamheid en bestrijdbaarheid worden geborgd. De veiligheidsregio wordt, voorafgaand aan het besluit, in de gelegenheid gesteld advies uit te brengen. Voor de precieze verwoording en nadere details wordt verwezen naar de betreffende Besluiten.

5.7.2 Onderzoek

Bevi-bedrijven

In de risicokaart (www.risicokaart.nl) is rondom het plangebied geen risicobron gelegen. De dichtstbijzijnde risicobron is het brandstofverkooppunt op circa 650 meter afstand gelegen aan de Vijfhuizerdijk 60.

afbeelding "i_NL.IMRO.0394.BPGvyfspieriwg468-C001_0028.png"

Afbeelding 5.5: Uitsnede risicokaart (bron: www.risicokaart.nl)

Transport gevaarlijke stoffen over de weg

Door het plangebied loopt geen aangewezen routering voor het transport van gevaarlijk stoffen. Het plangebied bevindt zich niet in het invloedsgebied van routes voor het transport van gevaarlijk stoffen over de weg.

Transport gevaarlijke stoffen over het water

Door het plangebied loopt geen route voor het transport van gevaarlijk stoffen over het water. Het plangebied bevindt zich niet in het invloedsgebied van routes voor het transport van gevaarlijk stoffen over het water.

Hoogspanningsverbinding en straalpaden

Het plangebied ligt niet in een risicozone van een hoogspanningsverbinding en/of straalpad.

Buisleidingen

In het plangebied liggen geen buisleidingen die in het kader van de externe veiligheid relevant zijn. Het plangebied ligt ook niet in een risicozone van buisleidingen voor het vervoer van gevaarlijke stoffen.

Vuurwerkverkooppunt

Er zijn geen vuurwerkverkooppunten in het plangebied aanwezig. Het plangebied bevindt zich niet in het invloedsgebied van vuurwerkverkooppunten.

5.7.3 Conclusie

In de omgeving van het plangebied bevinden zich geen Bevi-bedrijven. De verder weg gelegen risicobronnen zijn niet relevant in het kader van het onderhavige plangebied en kunnen verder buiten beschouwing worden gelaten.

Op en rondom het plangebied worden geen ontwikkelingen mogelijk gemaakt die leiden tot een toename van de risico's zoals deze bij externe veiligheid beschouwd worden.

Vanuit het aspect externe veiligheid zijn er geen belemmeringen voor de ontwikkeling van het plangebied.

5.8 Geur

5.8.1 Wet- en regelgeving

De Wet geurhinder en veehouderij (Wgv) vormt vanaf 1 januari 2007 het beoordelingskader voor geurhinder van veehouderijen. Deze wet geeft normwaarden voor een 'gemiddeld gebied' op basis waarvan een geurcontour kan worden opgesteld. In een 'gemiddeld gebied' bestaat tussen veehouderijen en geurgevoelige objecten een redelijke afstand. De geurcontour bepaalt door de omgekeerde werking de ontwikkelingsmogelijkheden van gronden nabij veehouderijen. De realisatie van een geurgevoelig object binnen die afstand dient immers te worden voorkomen met het oog op een goede ruimtelijke ordening zoals genoemd in de Handreiking Wet geurhinder en veehouderij.

5.8.2 Conclusie

Voor het plangebied zijn geen beperkingen voor wat betreft geur.

5.9 Licht

5.9.1 Wet- en regelgeving

In de wetgeving is geen strikte duidelijke normering aanwezig. Er is wel beleid/toetsingskader met betrekking tot lichthinder. Het beleid ten aanzien van licht is opgenomen in:

  • Nota ruimte; ruimte voor ontwikkeling, deel 4;
  • Natuur voor mensen, mensen voor natuur; nota natuur, bos en landschap in de 21e eeuw;
  • Meerjarenprogramma vitaal platteland (mjp).

Marktpartijen, provincies, gemeenten en de minister van I&M maken afspraken in het kader van de taskforce verlichting.

De kern van het beleid ten aanzien van licht is dat donkerte hoort tot een van de kernkwaliteiten van het landschap onder het kopje belevingskwaliteit. Het rijksbeleid is gericht op het in beeld brengen, realiseren en veiligstellen van de gewenste leefomgevingkwaliteit door het terugdringen van verstoring door activiteiten op het platteland (geluid, licht, stank). Ook worden het gebruik van energiezuinige (straat)verlichting bij gemeenten en provincies bevorderd met behoud van kwaliteit en (verkeers)veiligheid.

5.9.2 Conclusie

Voor het plangebied zijn geen beperkingen voor wat betreft lichthinder. De locatie maakt deel uit van de bebouwde kom van Vijfhuizen. Gelet op de omliggende woonbebouwing en verkeersfuncties is er geen sprake van verstoring richting het buitengebied.

5.10 Milieuzoneringen

5.10.1 Kader

Bij het opstellen van een ruimtelijk plan dient de invloed van bestaande (of nieuw te vestigen) bedrijvigheid op de leefomgeving afgewogen te worden. Door middel van milieuzonering dient een ruimtelijke scheiding te worden aangebracht tussen milieubelastende functies (zoals bedrijven) en milieugevoelige functies (zoals wonen). De VNG-brochure Bedrijven en Milieuzonering (2009) geeft richtlijnen voor de in acht te nemen afstanden. Deze afstanden worden gemeten tussen de grens van de bestemming die bedrijven/milieubelastende activiteiten toestaat en de uiterste situering van de gevel van een woning die volgens het ruimtelijk plan mogelijk is.

5.10.2 Toetsing

Vigerend bestemmingsplan

In het vigerend bestemmingsplan 'Vijfhuizen 2010' is de ruimtelijk-juridische regeling voor de gehele kern Vijfhuizen vastgelegd.

Daarbij zijn aan de westzijde van de Spieringweg de bestaande bedrijven en de woningen positief bestemd. De maatgevende woningen voor de milieubelasting van de bedrijven zijn:

  • Vrijstaande woningen aan de Spieringweg 583 en 585, 0 meter tot bedrijfsbestemming;
  • Rijwoningen aan Spieringweg 573-579, 1,5 - 16,5 meter tot bedrijfsbestemming;
  • Twee-onder-één-kap Spieringweg 569-571, 13 meter tot parkeerterrein Hoogvliet.

De afstand tussen de bestaande woningen en het bouwvlak van het dichtstbijzijnde bedrijf aan de Spieringweg 583a bedraagt circa 13 meter.

afbeelding "i_NL.IMRO.0394.BPGvyfspieriwg468-C001_0029.png"

Afbeelding 5.6: Uitsnede vigerend bestemmingsplan Vijfhuizen 2010 (bron: gemeente
Haarlemmermeer)

De bedrijven aan de westkant van de Spieringweg zijn bestemd als 'Bedrijventerrein -3'. Binnen deze bestemming zijn bedrijfsactiviteiten die vallen in ten hoogste categorie 3 van de Lijst van Bedrijfstypen behorende bij het bestemmingsplan toegestaan, met uitzondering van garagebedrijven, geluidzoneringsplichtige inrichtingen en risicovolle inrichtingen als bedoeld in het Besluit Externe Veiligheid Inrichtingen en het Vuurwerkbesluit, opslag hieronder begrepen.

In het vigerende bestemmingsplan Vijfhuizen 2010 wordt geconcludeerd dat er geen bedrijven en voorzieningen binnen het plangebied aanwezig zijn die een overmatige vorm van hinder veroorzaken voor de woonomgeving. Het betreft voorzieningen waarvan gesteld kan worden dat deze gewenst worden binnen een woonomgeving, mits op de juiste locatie gesitueerd, met name vanwege de verkeersaantrekkende werking.

De woningen aan de Spieringweg 569 t/m 585 zijn maatgevend bij toetsing naar de milieubelasting.

5.10.3 Conclusie

De ontwikkeling van maximaal 30 woningen is gelegen op circa 45 meter ten opzichte van het bouwvlak van het bedrijf aan de Spieringweg 583a (zie afbeelding 5.6). Er worden geen nieuwe woningen (gevoelige objecten) gerealiseerd dichterbij de bestaande bedrijvigheid.

In het vigerende bestemmingsplan Vijfhuizen 2010 wordt geconcludeerd dat er geen bedrijven en voorzieningen binnen het plangebied aanwezig zijn die een overmatige vorm van hinder veroorzaken voor de woonomgeving.

Voor het plangebied zijn geen beperkingen vanuit de milieuzonering.

5.11 Luchtvaartverkeer

5.11.1 Wet- en regelgeving

Het Luchthavenindelingbesluit Schiphol (LIB) legt beperkingen op aan objecten, bebouwing en gebruiksfuncties in het gebied rond de luchthaven Schiphol. Het Luchthavenverkeerbesluit is gericht op de beheersing van de belasting van het milieu door het luchthavenluchtverkeer. Tezamen vormen deze besluiten een uitwerking van het hoofdstuk 8 van de Wet luchtvaart.

5.11.2 Onderzoek

Indien het plangebied gelegen is binnen het beperkingengebied gelden beperkingen met het oog op veiligheid en milieu. Er zal overleg moeten plaatsvinden met de VROM-inspectie, de inspectie Verkeer en Water en de Luchtverkeersleiding Nederland. Het gaat daarbij om afwegingen die moeten worden gemaakt met betrekking tot hoogtebeperkingen, beperkingen bij het toelaten van functies (bestemmingen), het voorkomen van geluidhinder een het voorkomen van het aantrekken van vogels.

Het Ministerie van Infrastructuur en Milieu heeft een webapplicatie ter beschikking gesteld om hulp te bieden bij het toetsen van ruimtelijke plannen aan het LIB.

Het plangebied is via de website http://www.lib-schiphol.nl ingevoerd en doorgerekend. De resultaten zijn opgenomen in Bijlage 3. Het huidige maaiveld van het plangebied ligt op ca. -3,3 meter t.o.v. het NAP.

5.11.3 Conclusie

Toetsvlakken aantrekken vogels, windturbines en lasers

afbeelding "i_NL.IMRO.0394.BPGvyfspieriwg468-C001_0030.png"

Toetshoogte bouwwerken

Geen doorsnijding van toetshoogtevlakken.

Toetshoogte radar

Geen doorsnijding van radarvlakken.

Gelet op bovenstaande toetsing aan het Luchthavenindelingbesluit Schiphol (LIB) maakt voorliggend bestemmingsplan geen functies mogelijk die een vogelaantrekkende werking hebben. Daarnaast worden er in dit plangebied ook geen permanente laserinstallaties of windturbines opgericht.

5.12 Kabels en leidingen

5.12.1 Inventarisatie

Op grond van het vigerend bestemmingsplan is een planologisch relevante waterleiding bestemd in het plangebied. Evenwijdig aan de Spieringweg loopt door het plangebied een waterleiding. Met deze hoofdwaterleiding dient rekening te worden gehouden bij het uitvoeren van bodemroerende werkzaamheden.

Door middel van een KLIC-melding worden de werkzaamheden afgestemd met de leiding eigenaar / beheerder.

De ontwikkelaar heeft met PWN afspraken gemaakt over de waterleiding in relatie tot de planontwikkeling. De huidige (verouderde) asbestcementleiding wordt vervangen door een nieuwe leiding die dichterbij de Spieringweg wordt aangelegd. Deze nieuwe leiding is ingetekend in de verbeelding van het bestemmingsplan. Doordat de leiding wordt vernieuwd is de zone vanaf het hart van de leiding waarbinnen geen gebouwen kunnen worden opgericht verkleind tot 3 meter aan weerszijden.

5.13 Gezondheid

Vanuit het aspect gezondheid zijn in het plangebied de volgende thema's aan de orde: voldoende groen, klimaatadaptatie en bewegingsvrijheid. Het opnemen van voldoende groen in de woonomgeving werkt op diverse manieren positief door aan de menselijke gezondheid en draagt bij aan klimaatadaptatie en bewegingsvrijheid.

Bewegingsvrijheid en groen

Een groene en aantrekkelijk ingerichte buitenruimte stimuleert ontmoeting. Aanbevolen wordt aan te sluiten op de wensen van toekomstige bewoners en waar mogelijk groen op te nemen in het ontwerp. Door bij het ontwerp rekening te houden met voldoende afstand tussen bomen wordt er ruimte voor luchtcirculatie gecreëerd, dat kan leiden tot een verbetering van de luchtkwaliteit. In het ontwerp voor de Spieringweg is veel ruimte voor groen opgenomen. Daarnaast grenst het plangebied aan de André Kuipers Prieel en zijn verschillende parken op fietsafstand, zoals de Groene Weelde, het Molenplaspark en Poelbroek. Deze groenvoorzieningen nodigen ook uit tot bewegen, denk aan fietstochten. Verder ligt er ook een sportpark ten oosten van het plangebied.

Klimaatadaptatie

Het veranderende klimaat vraagt om een leefomgeving die adaptief is aan deze veranderingen. Dit kan worden bereikt door het plangebied niet volledig te verharden, maar voldoende ruimte te behouden voor hogere neerslagpieken en extreme temperaturen. In het ontwerp is gezorgd dat voldoende waterbergend vermogen aanwezig is in de wijk.

5.14 Milieueffectrapportage

5.14.1 Wet- en regelgeving

Per 1 april 2011 is het Besluit milieueffectrapportage gewijzigd. De belangrijkste wijziging betreft het indicatief maken van de drempelwaarde in onderdeel D . Dit betekent dat voor activiteiten die genoemd staan in het Besluit m.e.r. (bijvoorbeeld woningbouw, kantoren, bedrijven, recreatie, etc.) maar onder de gestelde indicatieve drempelwaarden zitten toch een beoordeling nodig is of sprake is van mogelijke belangrijke nadelige milieugevolgen. Deze beoordeling heeft een vormvrije m.e.r.-beoordeling. Inhoudelijk is deze beoordeling gelijk aan een m.e.r.-beoordeling (die uitgevoerd moet worden bij activiteiten uit onderdeel D die wel boven de drempelwaarden zitten), maar de enige procedurele verplichting die er voor geldt is dat het opgenomen moet worden in de toelichting van het betreffende besluit.

Om te bepalen of een activiteit m.e.r.-plichtig, m.e.r.-beoordelingsplichtig of vormvrij m.e.r.-beoordelingsplichtig kan het schema op de volgende pagina gebruikt worden.

Wetswijziging

Met ingang van 16 mei 2017 is er een directe werking van het Europees recht van toepassing voor alle ruimtelijke besluiten.

Voor de gewijzigde Besluit m.e.r. geldt geen overgangsrecht. Dat kan betekenen dat voor aanvragen voor 16 mei 2017 ook de nieuwe regels gelden.

Er geldt een verplichte procedure voor een vormvrije m.e.r.-beoordeling die bestaat uit onderstaande stappen:

  • Door de initiatiefnemer dient een aanmeldingsnotitie te worden opgesteld.
  • Het bevoegd gezag dient binnen 6 weken een m.e.r.-beoordelingsbesluit te nemen. Dit besluit hoeft niet in de Staatscourant gepubliceerd te worden.
  • De initiatiefnemer dient het (vormvrije) m.e.r.-beoordelingsbesluit bij de vergunningaanvraag toe te voegen (Artikel 7.28 Wet milieubeheer).
5.14.2 Onderzoek

Voor de toets aan het Besluit milieueffectrapportage geldt een provinciaal inpassingsplan in het kader van de Wet algemene bepalingen omgevingsrecht (Wabo) ook als een plan waarvoor deze toetsing voorgeschreven is.

De voorgenomen activiteiten (zoals hierboven beschreven onder: voorgenomen activiteiten) zijn getoetst aan de m.e.r.-regelgeving (waarbij m.e.r. staat voor milieueffectrapportage) zoals vastgelegd in de Wet Milieubeheer en het Besluit m.e.r. Plannen of besluiten leiden tot m.e.r.-verplichtingen als:

  • 1. de voorgenomen ontwikkelingen opgenomen zijn in het besluit m.e.r. (op de zogenaamde C- of D-lijst) zie www.overheid.nl;
  • 2. negatieve effecten op Natura2000-gebied niet op voorhand uit te sluiten zijn en een passende beoordeling moet worden doorlopen in het kader van de Natuurbeschermingswet.

Ad.1. De voorgenomen activiteit in dit bestemmingsplan, de realisatie van 30 woningen, valt onder de activiteit 'stedelijke ontwikkeling' in onderdeel D, categorie 11.2.
afbeelding "i_NL.IMRO.0394.BPGvyfspieriwg468-C001_0031.png"

De realisatie van 30 woningen valt ruim onder de drempelwaarden van 2.000 woningen. Zoals hiervoor beschreven is het na wijziging van het Besluit m.e.r. in 2011 echter wel verplicht om een vormvrije m.e.r.-beoordeling uit te voeren. In dit hoofdstuk van de ruimtelijke onderbouwing wordt daaraan voldaan.

Toetsing

In het Besluit m.e.r. is reeds aangegeven dat er bepaalde inhoudelijke vereisten bestaan voor het toetsen of sprake is van mogelijke belangrijke nadelige milieugevolgen. Deze inhoudelijke vereisten staan benoemd in bijlage III van de Europese richtlijn m.e.r.

In deze richtlijn staan drie aspecten waaraan de voorgenomen activiteiten ineen vormvrije m.e.r.-beoordeling aan getoetst worden:

  • 1. Kenmerken van het project;
  • 2. Plaats van het project;
  • 3. Kenmerken van het potentiële effect.

Ad.1. Kenmerken van het project

Het project betreft de realisatie van maximaal 30 woningen aan de Spieringweg 468 te Vijfhuizen dat op dit moment ook een woonfunctie met tuin heeft voor één woning.

In voorliggend bestemmingsplan wordt de ontwikkeling van de 30 woningen onderbouwd op basis van bekende informatie/gegevens uit het verleden en nieuw uitgevoerde onderzoeken (zie hiervoor de beschrijving in hoofdstuk 5 van deze toelichting).

Het project heeft geen bijzondere kenmerken ten aanzien van:

  • het gebruik van natuurlijke hulpbronnen;
  • de productie van afvalstoffen;
  • verontreiniging en hinder;
  • risico van ongevallen, met name gelet op de gebruikte stoffen of technologieën.

Ad.2. Plaats van het project

Het plangebied is gelegen in de kern Vijfhuizen van de gemeente Haarlemmermeer en maakt onderdeel uit de bebouwde kom. Het plangebied wordt omringd door bestaande woongebieden en lintbebouwing langs de Spieringweg. Voor gebieden die niet direct grenzen aan het plangebied worden geen effecten verwacht.

Ad.3. Kenmerken van het potentiële effect

Natuur

Uit de natuurtoets (paragraaf 5.3) volgt dat met algemene broedvogels rekening kan worden gehouden tijdens de werkzaamheden. Nader onderzoek is benodigd om vast te stellen of verblijfplaatsen aanwezig zijn van de huismus, de ransuil, marterachtigen en vleermuizen. Bij de aanwezigheid van verblijfplaatsen dient een ontheffing Wnb aangevraagd te worden, waar in alle gevallen kan worden onderbouwd waarom aan de voorwaarden kan worden voldaan. Er zijn geen effecten op Natura 2000- en NNN-gebieden die het plan in de weg staan.

Verkeer, lucht en geluid

De realisatie van 30 woningen resulteert in een beperkte toename van verkeersbewegingen op de wegen in Vijfhuizen.

Uit de rekenresultaten blijkt dat deze extra verkeersbewegingen voor alle berekende jaargemiddelde concentraties NO2, PM10 en PM2,5 (ruim) onder de van kracht zijnde grenswaarden voor de jaargemiddelde concentratie van deze stoffen ligt. Het aspect luchtkwaliteit staat de uitvoering van het plan niet in de weg.

De planontwikkeling past ook binnen de geluidkaders van de Wet geluidhinder. Uit de berekeningsresultaten blijkt dat de geluidbelasting vanwege het Telraam, de Vijfhuizerweg en de Voorgracht beneden de richtwaarde van 53 dB blijven. De geluidbelasting ten gevolge van de Liniewal en de Spieringweg bedraagt ten hoogste 54 dB (exclusief aftrek ex artikel 110g Wgh). De richtwaarde van 53 dB wordt hiermee overschreden, echter blijft de geluidbelasting onder de maximaal richtwaarde van 68 dB.

Voor de woningen waar een overschrijding is berekend, kan met behulp van een gevelgeluidweringsonderzoek worden onderzocht of de woning aan de wettelijke geluidgrenswaarde voor het binnenniveau kunnen voldoen.

Externe veiligheid en milieuhinder

In de omgeving van het plangebied bevinden zich geen Bevi-bedrijven. De verder weg gelegen risicobronnen zijn niet relevant in het kader van het onderhavige plangebied en kunnen verder buiten beschouwing worden gelaten. Vanuit het aspect externe veiligheid zijn er geen belemmeringen voor de ontwikkeling van het plangebied.

Omdat de ontwikkeling niet leidt tot gevoelige objecten (woningen) die dichterbij de bestaande bedrijvigheid worden gerealiseerd is er sprake van een aanvaardbaar woon- en leefklimaat. Vanuit de milieuzonering en industrielawaai zijn de woningen aan de Spieringweg 571 t/m 585 aan de overzijde van het plangebied maatgevend. Deze woningen liggen direct grenzend aan de bestaande bedrijfspercelen op kortere afstand dan de nieuw te bouwen woningen.

Bodem en water

De resultaten van het onderzoek geven aanleiding tot het uitvoeren van vervolgonderzoek ter plaatse van de onderzoekslocatie. Aanbevolen wordt een verkennend bodemonderzoek conform NEN 5740 uit te voeren. Hierbij wordt aangeraden, gezien de (voormalige) verdachte activiteiten en de ligging in een gebied met verhoogde PFAS-gehalten de stoffen PFOS, PFAS en OCB aanvullend te analyseren.

Uitgaande van een toename van verharding van circa 4.320 m², een afgekoppeld oppervlak van circa 1.500 m² en een compensatie-eis van 15% van de toename van verhard oppervlak, moet circa 648 m² aan oppervlaktewater worden gerealiseerd. Binnen het plangebied is langs de Voorgracht ruimte beschikbaar om nieuw oppervlaktewater te realiseren. Gelet op het hoogteverschil in het terrein kan de bestaande oever worden voorzien van vlonders boven het water en daaronder een verbreding van de watergang. De ruimte die hier beschikbaar voor is bedraagt in totaal 320 m2. Het restant aan benodigde oppervlaktewater van 328 m2 moet daarom ergens anders binnen het peilvak worden gerealiseerd.

Cultuurhistorie en archeologie

In het plangebied zijn geen aardkundige monumenten en waarden, archeologische monumenten en waarden aanwezig.

5.14.3 Conclusie

Gelet op de toets aan het Besluit m.e.r. en de bijbehorende C- en D-lijst van het Besluit m.e.r. is het uitvoeren van vormvrije m.e.r-beoordeling noodzakelijk.

Op basis van beschikbare gegevens blijkt dat de voorgenomen activiteiten van het bestemmingsplan Vijfhuizen Spieringweg 468 niet leiden tot mogelijke belangrijke nadelige milieugevolgen. De effecten zijn niet van een dusdanige omvang dat het criterium belangrijke nadelige milieugevolgen van toepassing is. Het is dus niet noodzakelijk om een planMER uit te voeren.

Voor het bestemmingsplan zal door het college van burgemeester en wethouders een aanmeldingsnotitie worden vastgesteld voor dit project.

Hoofdstuk 6 Uitvoerbaarheid

6.1 Financiële uitvoerbaarheid

De Wet ruimtelijke ordening stelt verplicht dat de gemeenteraad tegelijk met de vaststelling van een bestemmingsplan een exploitatieplan vaststelt voor kostenverhaal in het geval het bestemmingsplan nieuwe, bij Algemene Maatregel van Bestuur (AMvB) aangewezen bouwplannen mogelijk maakt. Hierbij gaat het bijvoorbeeld om de bouw van één of meer woningen, de bouw van één of meer andere hoofdgebouwen of de uitbreiding of verbouwing van gebouwen. In de wet is aangegeven welke kosten verhaald kunnen worden. Het vaststellen van een exploitatieplan is niet nodig indien het kostenverhaal anderszins verzekerd is, bijvoorbeeld door gronduitgifte of een anterieure overeenkomst.

Overeenkomst initiatiefnemer en gemeente

Voor de ontwikkeling van de Spieringweg 468 te Vijfhuizen heeft de gemeente Haarlemmermeer een anterieure overeenkomst met Wilma Wonen B.V. gesloten. Hiermee is het kostenverhaal geregeld en loopt de gemeente Haarlemmermeer geen financieel-economische risico's bij de ontwikkeling van het plangebied.

6.2 Maatschappelijke uitvoerbaarheid

Informeren omgeving

De initiatiefnemer heeft op verschillende momenten contact gehad door middel van overleg  met de directe omwonenden en de dorpsraad. Daarnaast is er nog een algemene inloopavond gehouden.

Maatschappelijke uitvoerbaarheid

De maatschappelijke uitvoerbaarheid van een bestemmingsplan wordt getoetst aan het vooroverleg met de reguliere overlegpartners en een zienswijzenperiode voor reacties van bewoners en andere belanghebbenden. Het gemeentebestuur hecht veel waarde aan een breed gedragen en haalbaar bestemmingsplan. Bij het vooroverleg met de reguliere overlegpartners wordt daarom ook de dorps- en wijkraden van het plangebied betrokken. De reacties uit zowel het vooroverleg als de zienswijzenperiode worden voorzien van een beantwoording en verwerkt in het bestemmingsplan.

6.2.1 Resultaten wettelijk vooroverleg

Een voorontwerpbestemmingsplan wordt in het kader van het wettelijk verplichte vooroverleg ex artikel 3.1.1 Besluit ruimtelijke ordening voorgelegd aan de rijksoverheid, de provincie en het waterschap. Niet in alle gevallen is het echter nodig een voorontwerp bestemmingsplan voor te leggen aan provincie en rijk. Alleen als er rijks- of provinciale belangen in het geding zijn is vooroverleg nodig.

Concreet zijn de volgende instanties verzocht op het plan te reageren: Hoogheemraadschap van Rijnland, Provincie Noord-Holland, Veiligheidsregio Kennemerland en Liander.

Daarnaast is de wijkraad/ dorpsraad Vijfhuizen op verschillende momenten door de ontwikkelaar gevraagd te reageren op het plan.

In Bijlage 9 zijn de ontvangen vooroverlegreacties samengevat. De ontvangen reacties hebben niet geleid tot aanpassingen in het bestemmingsplan Vijfhuizen Spieringweg 468.

6.2.2 Resultaten zienswijzen op ontwerp bestemmingsplan

Het ontwerpbestemmingsplan Vijfhuizen Spieringweg 468 heeft vanaf 27 maart 2020 gedurende zes weken ter inzage gelegen. Gedurende deze termijn kon een ieder zijn of haar zienswijzen tegen het bestemmingsplan kenbaar maken.

Binnen de zienswijzentermijn zijn er bij de gemeente Haarlemmermeer zeven zienswijzen ontvangen. De samenvatting van de ontvangen zienswijzen en de beantwoording daarvan is opgenomen als bijlage bij het Vaststellingsbesluit.

De ontvangen zienswijzen hebben niet geleid tot aanpassingen van het bestemmingsplan Vijfhuizen Spieringweg 468.

Hoofdstuk 7 Juridische aspecten

7.1 Opzet regels en verbeelding

De regels en de verbeelding vormen samen het juridisch bindende gedeelte van het bestemmingsplan. De toelichting is niet juridisch bindend, maar kan wel gebruikt worden als nadere uitleg bij de regels.

Op de bij het bestemmingsplan behorende verbeelding zijn alle noodzakelijke gegevens ingetekend. Er wordt onderscheid gemaakt in (dubbel)bestemmingen en aanduidingen. De bestemmingen zijn de belangrijkste elementen. De op de verbeelding opgenomen bestemmingen zijn in overeenstemming met de Standaard Vergelijkbare Bestemmingsplannen (SVBP2012). Door deze standaarden wordt de kleur en de codering van de bestemmingen bepaald. De bestemmingen zijn op het renvooi weergegeven in alfabetische volgorde. Elke op de verbeelding weergegeven bestemming is gekoppeld aan een bestemmingsregel in de regels. De regels laten vervolgens bij elke bestemming zien op welke wijze de gronden binnen de desbetreffende bestemming gebruikt en bebouwd mogen worden. Daarbij wordt onder meer verwezen naar aanduidingen op de verbeelding. Aanduidingen in samenhang met de regels, geven duidelijkheid over datgene wat binnen een bestemmingsvlak al dan niet is toegestaan.

De regels zijn onderverdeeld in vier hoofdstukken:

  • De 'Inleidende regels', bestaande uit een begrippenlijst en regels met betrekking tot de 'wijze van meten';
  • De 'Bestemmingsregels', die in dit bestemmingsplan te onderscheiden zijn in regels voor 'gewone', rechtstreekse bestemmingen en dubbelbestemmingen;
  • De 'Algemene regels' die in principe betrekking hebben op alle bestemmingen die in het plangebied voorkomen;
  • De 'Overgangs- en slotregels' die bestaan uit het overgangsrecht (voor bestaande bouwwerken en bestaand gebruik dat van het bestemmingsplan afwijkt) en de naam waaronder het bestemmingsplan moet worden aangehaald.

7.2 Inleidende regels

Het eerste hoofdstuk bevat inleidende regels. In artikel 1 is een aantal in de regels gehanteerde begrippen gedefinieerd. In artikel 2 is de wijze van meten vastgelegd met betrekking tot de verschillende hoogte en oppervlakte van gebouwen.

7.3 Bestemmingsregels

7.3.1 Bestemmingen

Artikel 3 Groen

Deze bestemming is opgenomen voor het groengebied in het stedenbouwkundig plan. Deze kenmerkende groenstructuur is vastgelegd om de inrichting te waarborgen. Binnen groen zijn wandel- en fietspaden mogelijk.

Artikel 4 Tuin

Deze bestemming is opgenomen voor de onbebouwde gronden gelegen aan de voorzijde, achterzijde en zijkant van woningen. Bouwwerken in de vorm van erfafscheidingen zijn toegestaan alsmede uitbouwen, afhankelijk van de diepte van de voortuinen.

Artikel 5 Verkeer

De in het plangebied voorkomende wegen, waaronder de toegangswegen naar de woningen en de openbare ruimte zijn bestemd als Verkeer. Binnen deze bestemming zijn tevens groenvoorzieningen en water opgenomen zodat de inrichting van het openbaar gebied later kan worden uitgewerkt en past binnen het bestemmingsplan.

Artikel 6 Water

De aan de zuidoostzijde grenzende watergang is bestemd als Water. Binnen deze bestemming is ook de verbreding van de bestaande watergang opgenomen. Hiermee wordt voldaan aan de wateropgave als gevolg van de toename van het verhard oppervlak van het plangebied.

Artikel 7 Wonen

Voor in het plangebied gelegen woningen is de bestemming Wonen opgenomen. In of bij woningen (bijvoorbeeld binnen uitbouwen) is ook het uitoefenen van een beroep en/of het hebben van een praktijk aan huis toegestaan. Hiervoor geldt wel een maximum oppervlak.

In de regels is opgenomen dat in het plangebied maximaal 30 woningen kunnen worden gebouwd. Ook zijn de woningtypes twee-onder-één-kap en rijwoning opgenomen in de regels. Gezamenlijk met de bouwvlakken en maximale goot- en bouwhoogte is daarmee de invulling op hoofdlijnen vastgelegd.

Binnen de bestemming Wonen zijn ook regels opgenomen voor het bebouwen van bijbehorende gronden, niet zijnde de voortuin.

7.3.2 Dubbelbestemmingen

Artikel 8 Leiding - Water

In het plangebied is één leiding gelegen met een belangrijke (boven)regionale functie op het gebied van water. Deze leiding is voorzien van de dubbelbestemming Leiding - Water.

Het betreft hierbij een dubbelbestemming die in het geval van een belangenafweging dus voorrang heeft boven de eveneens van toepassing zijnde overige bestemming(en).

7.4 Algemene regels

In dit hoofdstuk zijn de regels opgenomen die betrekking hebben op het gehele plangebied en alle andere regels in het bestemmingsplan. Ook de parkeerregels zijn opgenomen in dit hoofdstuk. In deze regel wordt dynamisch verwezen naar het geldende parkeerbeleid van de gemeente Haarlemmermeer. Dit heeft tot gevolg dat, indien in het kader van het bestemmingsplan gebouwd kan worden, op basis van het bestemmingsplan altijd het op dat moment actuele geldende parkeerbeleid van de gemeente Haarlemmermeer gehanteerd moet worden bij het verlenen van de benodigde omgevingsvergunning.

7.5 Overgangs- en slotregels

Overgangsrecht

Het overgangsrecht heeft tot doel de rechtszekerheid te verzekeren ten aanzien van bouwwerken die op het tijdstip van de terinzagelegging van het ontwerpbestemmingsplan gebouwd zijn of op grond van een reeds verleende of een nog te moeten afgeven bouwvergunning, gebouwd mogen worden en afwijken van de bebouwingsregels in dit plan. Zij mogen blijven staan of, als een bouwvergunning is verleend, worden gebouwd zolang de afwijking maar niet wordt vergroot en het bouwwerk niet (grotendeels) wordt vernieuwd of veranderd.

Ook het gebruik van gronden en de daarop staande opstellen dat – op het tijdstip dat het bestemmingsplan rechtsgeldig wordt – afwijkt van de gegeven bestemming, is in het overgangsrecht geregeld. Het afwijkende gebruik mag worden voortgezet of gewijzigd in een ander gebruik, zolang de afwijking van het bestemmingsplan niet wordt vergroot.

Slotregel

In de slotregel wordt aangegeven op welke wijze de regels van het bestemmingsplan kunnen worden aangehaald.

7.6 Handhaafbaarheid

Het bestemmingsplan is het juridisch instrument om te bepalen welke ruimte voor welke bouw- en gebruiksactiviteiten aangewend mag worden. In dit bestemmingsplan zijn voorschriften opgesteld waarbij het bestaande gebruik van gebouwen en bouwwerken in principe het uitgangspunt vormt. Dit betekent dat de huidige situatie in regels is vastgelegd. Het handhavingsbeleid is er op gericht dat deze regels ook worden nageleefd. Het bestemmingsplan bindt zowel burgers als de gemeente en is dan ook de basis voor handhaving en handhavingsbeleid.

Handhaving is van cruciaal belang om de in het plan opgenomen ruimtelijke kwaliteiten ook op langere termijn daadwerkelijk te kunnen 'vasthouden'. Daarnaast is de handhaving van belang uit een oogpunt van rechtszekerheid: alle grondeigenaren en gebruikers dienen door de gemeente op eenzelfde manier aan het plan gehouden te worden.

Met deze oogmerken is in het bestemmingsplan allereerst gestreefd naar een zo groot mogelijke eenvoud van de regels. Hoe groter de eenvoud (en daarmee de toegankelijkheid en leesbaarheid), hoe groter de mogelijkheden om in de praktijk toe te zien op de naleving van het bestemmingsplan. Onder handhaving wordt niet alleen het repressief optreden verstaan, maar ook preventie en voorlichting. Repressief optreden bestaat uit toezicht en opsporing en in het verlengde daarvan – na afweging van belangen waaronder de effectiviteit van optreden – correctie, bestaande uit sancties en maatregelen. De sancties en maatregelen kunnen bestaan uit het stilleggen van activiteiten, aanschrijvingen, bestuursdwang, strafrechtelijk optreden en de dwangsom. Preventief handelen bestaat uit voorlichting en vooroverleg voor het indienen van een aanvraag om een vergunning en voorts het weigeren van de vergunning en eventuele afwijkingen.