OIAVHB Landelijk Gebied - Ringdijk BP 23B
| Status: | vastgesteld |
| Identificatie: | NL.IMRO.0362.09xU-VG01 |
| Plantype: | omgevingsvergunning |
RUIMTELIJKE ONDERBOUWING
Inhoudsopgave
HOOFDSTUK 1 Inleiding
1.1 Aanleiding
Op 19 september 2017 is een omgevingsvergunningaanvraag ingediend voor het, middels graafwerkzaamheden, vergroten van een sloot naast en achter het woonhuis op het perceel Ringdijk BP 23B te Amstelveen (Z-2017/047095). De aanvraag voorziet in de verbreding van een sloot, het aanbrengen van drie houten stuwdammen en de aanleg van een waterlichaam in de vorm van een vijver, gelegen achter de bebouwing van Ringdijk BP 23B. De aanvraag betreft de activiteiten: bouwen (aanbrengen stuwdammen), werk of werkzaamheden uitvoeren (aanleggen) en het handelen in strijd met de regels van de ruimtelijke ordening.
De publiceerbare aanvraag omgevingsvergunning en de aanvraag voor het aanbrengen van de stuwdammen zijn opgenomen in bijlage 1 (aanvraag omgevingsvergunning) en bijlage 2 (aanvraag stuwdammen). In bijlage 3 zijn de relevante situatietekeningen en dwarsdoorsneden van de, inmiddels gerealiseerde, uitbreiding van de sloot en de aanleg van het waterlichaam opgenomen.
1.2 Aard en doel
Van toepassing op de projectlocatie is het bestemmingsplan 'Landelijk Gebied' en de bestemmingen 'Agrarisch - Agrarisch bedrijf 1' en 'Agrarisch - 4'. Daarnaast heeft een deel van het perceel de gebiedsaanduiding 'wro-zone - wijzigingsgebied 1'. Het ingediende bouwplan is in strijd met de betreffende gebruiksregels (zie paragraaf 2.3). Er is een buitenplanse afwijking ex artikel 2:12, lid 1 sub a, onder 3° Wabo nodig om het initiatief te kunnen realiseren. De voorliggende ruimtelijke onderbouwing heeft tot doel te motiveren dat bij de voorgenomen ontwikkeling sprake is van een goede ruimtelijke ordening, zodat de gevraagde omgevingsvergunning in afwijking van het bestemmingsplan kan worden verleend. De omgevingsvergunning is van toepassing op het besluitvlak NL.IMRO.0362.09xU-VG01 (bijlage 4).
1.3 Ligging en begrenzing plangebied
Het plangebied is gelegen in het zuidoosten van de gemeente Amstelveen in de wijk 'Buitengebied Zuid' in de Bovenkerker Polder (zie afbeelding 1 en 2). Het betreft het perceel Ringdijk BP 23B, gelegen in Amstelveen (kadastraal bekend als Gemeente Amstelveen Sectie N, nr. 299, 562 en 563). De oostzijde van het plangebied grenst aan het dorp Nes aan de Amstel. Aan de oostzijde wordt het plangebied begrenst door de Ringsloot. Het perceel is vrij gelegen in het landelijk buitengebied van Amstelveen.
![i_NL.IMRO.0362.09xU-VG01_640000.png [image]](i_NL.IMRO.0362.09xU-VG01_640000.png)
Afbeelding 1: ligging planlocatie in de gemeente Amstelveen
![i_NL.IMRO.0362.09xU-VG01_640001.png [image]](i_NL.IMRO.0362.09xU-VG01_640001.png)
Afbeelding 2: ligging planlocatie ten opzichte van Nes aan de Amstel
1.4 Leeswijzer
De opbouw van deze ruimtelijke onderbouwing is als volgt. Na de inleiding in dit hoofdstuk, wordt in hoofdstuk 2 een beschrijving gegeven van het project. Daarbij wordt ingegaan op de bestaande situatie en de beoogde situatie in relatie tot de vigerende planologische regeling. In hoofdstuk 3 wordt ingegaan op de voorwaarden vanuit het ruimtelijke beleid van rijk, provincie en gemeente. De omgevingsaspecten komen in hoofdstuk 4 aan de orde. In hoofdstuk 5 wordt de economische en maatschappelijke uitvoerbaarheid van het bouwplan toegelicht. Hoofdstuk 6 is het slothoofdstuk en bevat een samenvatting en de eindconclusie.
HOOFDSTUK 2 Planbeschrijving
2.1 Huidige situatie
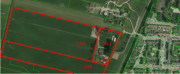
De projectlocatie betreft het perceel Ringdijk BP 23B, kadastraal bekend als Gemeente Amstelveen Sectie N, nr. 299 (22.690 m2), 562 (45.615 m2) en 563 (9.315 m2). De kadastrale situatie is weergegeven in afbeelding 3.
![i_NL.IMRO.0362.09xU-VG01_640002.png [image]](i_NL.IMRO.0362.09xU-VG01_640002.png)
Afbeelding 3: kadastrale situatie planlocatie
In de huidige situatie is het waterlichaam reeds gerealiseerd en is de desbetreffende sloot (tussen kadastraal perceel 562/563 en 299) al verbreed. De oppervlakte van het nieuwe waterlichaam bedraagt ca. 2.320 m2. Voorheen werden deze gronden gebruikt ten behoeve van de agrarische bedrijfsvoering. In afbeelding 4 is de situatie op het perceel weergegeven voordat de werkzaamheden waren uitgevoerd.
Afbeelding 4: situatie planlocatie voorafgaand aan de werkzaamheden
In afbeelding 5 is de nieuwe situatie weergegeven. De verbrede sloot en de nieuwe waterpartij zijn hierin duidelijk zichtbaar op het perceel van Ringdijk BP 23B.
![i_NL.IMRO.0362.09xU-VG01_640004.png [image]](i_NL.IMRO.0362.09xU-VG01_640004.png)
Afbeelding 5: situatie planlocatie na afronding werkzaamheden
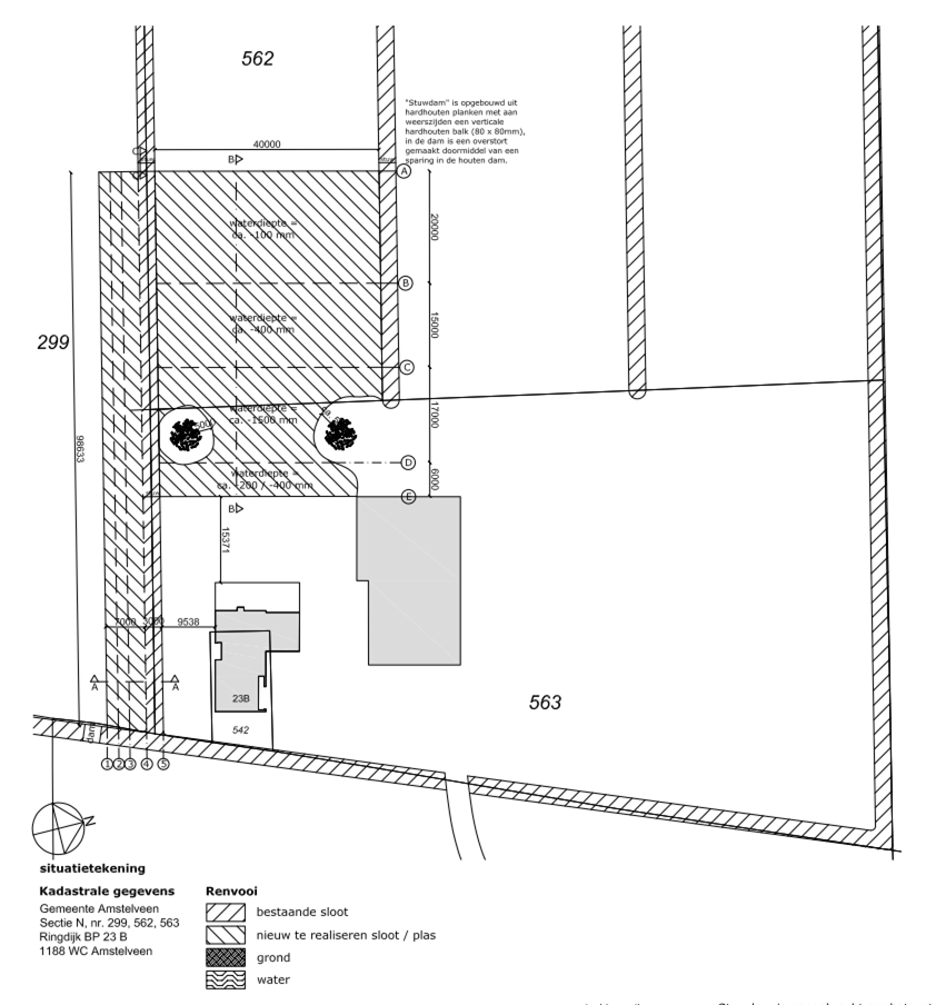
2.2 De ontwikkeling
De werkzaamheden hebben voorzien in de realisatie van een waterlichaam van ca. 2.320 m2 en een verbreding van de sloot aan de zuidkant van het perceel (grens tussen kadastraal perceel 299 en 562/563). Een schets van de nieuwe situatie is weergegeven in afbeelding 6. Het waterlichaam is 40 meter breed en 58 meter diep en de waterdiepte varieert van 10 cm tot maximaal 1,5 meter. In afbeelding 7 is een dwarsdoorsnede van het nieuwe waterlichaam opgenomen. De bestaande kavelsloot is met 7 meter verbreed over een lengte van 98,6 meter en bereikt hierdoor een totale breedte van 10 meter. In afbeelding 8 is een dwarsdoorsnede van de verbrede sloot weergegeven. De waterdiepte in de verbrede sloot varieert van 10 cm tot maximaal 1,5 meter. Daarnaast zijn er drie hardhouten stuwdammen aangebracht.
![i_NL.IMRO.0362.09xU-VG01_640005.png [image]](i_NL.IMRO.0362.09xU-VG01_640005.png)
Afbeelding 6: schets nieuwe situatie
![i_NL.IMRO.0362.09xU-VG01_640006.png [image]](i_NL.IMRO.0362.09xU-VG01_640006.png)
Afbeelding 7: dwarsdoorsnede waterlichaam
![i_NL.IMRO.0362.09xU-VG01_640007.png [image]](i_NL.IMRO.0362.09xU-VG01_640007.png)
Afbeelding 8: dwarsdoorsnede verbrede sloot
2.3 Bestemmingsplan
Voor het projectgebied is van toepassing het bestemmingsplan 'Landelijk Gebied', zoals is vastgesteld door de gemeenteraad op 2 juni 2010 en op 26 mei 2011 onherroepelijk is geworden. Een uitsnede van het bestemmingsplan ter plekke van de Ringdijk BP 23B is weergegeven in afbeelding 9.
![i_NL.IMRO.0362.09xU-VG01_640008.png [image]](i_NL.IMRO.0362.09xU-VG01_640008.png)
Afbeelding 9: vigerende regelingen bestemmingsplan Landelijk Gebied
2.3.1 Planregels
In dit bestemmingsplan hebben de percelen waarop de omgevingsvergunning van toepassing is de bestemmingen 'Agrarisch - 4' (artikel 6) en 'Agrarisch - Agrarisch bedrijf 1' (artikel 7). Daarnaast heeft een deel van het plangebied de gebiedsaanduiding 'wro-zone - wijzigingsgebied 1'. In het 'Paraplubestemmingsplan Archeologie en Cultuurhistorie' hebben de gronden waarop het waterlichaam gerealiseerd is de dubbelbestemming 'Waarde - Archeologie 5' toegewezen gekregen. Een gedeelte van de gronden waarop de afgegraven grond verwerkt is heeft de dubbelbestemming 'Waarde - Archeologie 4'.
Agrarisch - Agrarisch bedrijf 1
De gronden die zijn aangewezen voor 'Agrarisch - Agrarisch bedrijf 1' zijn bestemd voor gebouwen ten behoeve van de uitoefening van het agrarisch bedrijf, met daartoe behorende waterlopen. Ondergeschikt hieraan is er op deze gronden ruimte voor waterhuishoudkundige voorzieningen, sloten en daarmee gelijk te stellen waterlopen.
Agrarisch - 4
De op de plankaart als 'Agrarisch - 4' bestemde gronden zijn bestemd voor de uitoefening van een agrarisch bedrijf met een in hoofdzaak grondgebonden agrarische bedrijfsvoering, met daartoe behorende waterlopen en beplantingen. Ondergeschikt hieraan is op deze gronden ruimte voor waterhuishoudkundige voorzieningen, sloten en daarmee gelijk te stellen waterlopen.
Op deze gronden is het verboden om zonder of in afwijking van een schriftelijke vergunning van burgemeester en wethouders (aanlegvergunning) de volgende werkzaamheden uit te voeren:
het ontginnen, bodemverlagen, afgraven, ophogen of egaliseren van de gronden;
het aanbrengen of aanleggen van oeverbeschoeiingen, kaden, dammen en aanlegplaatsen;
het aanleggen van waterlopen of het vergraven, verruimen of dempen van reeds bestaande waterlopen.
Een aanlegvergunning kan slechts worden verleend, mits geen onevenredige aantasting plaatsvindt van de landschappelijke, natuurlijke en cultuurhistorische kwaliteiten van het terrein (art. 3.4.3 planregels).
Waarde - Archeologie 4
Deze dubbelbestemming komt voort uit het 'Paraplubestemmingsplan Archeologie en Cultuurhistorie'. Dit plan is gebaseerd op de geactualiseerde archeologische verwachtings- en beleidsadvieskaart uit het jaar 2015.
Deze dubbelbestemming houdt in dat de gronden een middelhoge verwachting hebben voor de aanwezigheid van resten uit het Midden en Laat Neolithicum, waarbij voornamelijk vindplaatsen met een kleine omvang en dunne vondstspreiding worden verwacht. Het gaat hierbij om de inversieruggen die zichtbaar zijn binnen de (onbebouwde) zones van de droogmakerijen (Bovenkerkerpolder en de Noorderlegmeerpolder). Gezien de complexe landschappelijke opbouw en de te verwachten archeologische resten wordt archeologisch onderzoek in deze categorie pas zinvol geacht bij grootschalige bodemingrepen. Bij bodemingrepen dieper dan 30 cm onder het maaiveld met een oppervlakte groter dan 5.000 m2 dient archeologisch onderzoek verricht te worden.
Waarde - Archeologie 5
Deze dubbelbestemming komt voort uit het 'Paraplubestemmingsplan Archeologie en Cultuurhistorie'. Dit plan is gebaseerd op de geactualiseerde archeologische verwachtings- en beleidsadvieskaart uit het jaar 2015.
Deze dubbelbestemming houdt in dat de gronden een lage archeologische verwachtingswaarde hebben ten aanzien van de periode vanaf het Midden Neolithicium. Het gaat hierbij om de verveende en drooggemaakte gebieden buiten de bewoningslinten. Bij bodemingrepen dieper dan 30 cm onder het maaiveld met een oppervlakte groter dan 10.000 m2 dient archeologisch onderzoek verricht te worden.
Wro-zone - wijzigingsgebied 1
Burgemeester en wethouders kunnen overeenkomstig het bepaalde in artikel 3.6 van de Wet ruimtelijke ordening, met inachtneming van de in artikel 54 (planregels) omschreven procedureregels, het plan voor de gronden met bestemming 'wro-zone - wijzigingsgebied 1' wijzigen. De bestemming 'Agrarisch - Agrarisch bedrijf 1' kan hiermee gewijzigd worden in de bestemming 'Wonen' of 'Tuin' (indien de agrarische bebouwing vrijkomt als gevolg van beëindiging van het agrarisch bedrijf) of in 'Gemengd - Voormalig agrarisch bouwperceel'. In het geval van een bestemmingswijziging door middel van een wijzigingsprocedure gaan de planregels van artikel 26 ('Tuin') of artikel 32 ('Wonen') gelden.
2.3.2 Strijdigheden
Het bouwplan is in strijd met de bestemmingen 'Agrarisch - Agrarisch bedrijf 1' en 'Agrarisch - 4'. Daarnaast voldoet het bouwplan niet aan de voorwaarden van de opgenomen wijzigings- en afwijkingsbevoegdheden.
Het waterlichaam past niet binnen de bestemming 'Agrarisch - Agrarisch bedrijf 1'. Vanwege de omvang van het waterlichaam (ca. 2.320 m2) kan deze vijver niet gezien worden als ondergeschikte sloot of waterhuishoudkundige voorziening, waarmee het in strijd is met de planregels voor deze bestemming. Daarnaast zal de vijver niet functioneren ten behoeve van de agrarische bedrijfsvoering.
Hetzelfde geldt voor de strijdigheid met de bestemming 'Agrarisch - 4'. Daarnaast is realisatie van het waterlichaam met de daartoe behorende grondwerkzaamheden (o.a. afgraving en ophoging van gronden, aanleggen van stuwdammen en verruiming van reeds bestaande waterlopen) zonder in het bezit te zijn van een aanlegvergunning in strijd met het bestemmingsplan.
Procedure
De in het bestemmingsplan opgenomen wijzigings- en afwijkingsbevoegdheden zijn ontoereikend om het plan te kunnen legaliseren. Het plan valt tevens niet onder de zogenoemde 'kruimelgevallen', zodat een afwijkingsbesluit als bedoeld in artikel 2.12 lid 1 sub a onder 3° Wabo noodzakelijk is om het plan te kunnen realiseren.
2.4 Motivatie gemaakte keuzes
Ondanks de strijdigheid van het plan met de bestemmingen 'Agrarisch - Agrarisch bedrijf 1' en 'Agrarisch - 4' uit bestemmingsplan 'Landelijk gebied', staat de gemeente positief tegenover de legalisering van het reeds gerealiseerde waterlichaam en de verbrede waterloop.
Het overgrote deel van het waterlichaam is gerealiseerd binnen de bestemming 'Agrarisch - Agrarisch bedrijf 1'. Binnen deze bestemming is intensief gebruik en bebouwing toegestaan ten behoeve van een agrarisch bedrijf. De potentiële impact van deze agrarische gebruiksmogelijkheden op de openheid van de polder is een gegeven. De realisatie van het waterlichaam heeft echter geen impact op de openheid van de polder. Daarnaast is de locatie hierdoor ook voor de toekomst gegarandeerd onbebouwd.
De gemeente heeft geconcludeerd dat er vanuit landschappelijk belang geen bezwaar bestaat tegen het graven van een deel van het waterlichaam buiten het bouwkavel.
Het slotenpatroon wordt door de ingreep niet wezenlijk aangetast en de ingreep heeft geen ruimtelijke invloed op het open weidse karakter van de polder. Er is geen sprake van een onevenredige aantasting van de landschappelijke, natuurlijke en cultuurhistorische kwaliteiten van het terrein. Daarnaast vormt het waterlichaam een visuele overgang van het erf naar de polder en bestaat er geen welstandsbezwaar tegen het plaatsen van een aantal waterkeringen in de sloten rondom het terrein.
HOOFDSTUK 3 Beleid
3.1 Rijksbeleid
In deze ruimtelijke onderbouwing voor de omgevingsvergunning in afwijking van het bestemmingsplan 'Landelijk gebied' is rekening gehouden met het rijksbeleid, het provinciale beleid en het gemeentelijk beleid zoals onder andere omschreven in de structuurvisie 'Amstelveen 2025+'. In de ruimtelijke onderbouwing is rekening gehouden met de verschillende beleidsuitgangspunten en regelgeving van de provincie en de gemeente.
3.1.1 Structuurvisie Infrastructuur en Ruimte en Amvb Ruimte
Op 12 februari 2012 is de Structuurvisie Infrastructuur en RUimte (SVIR) vastgesteld. De SIVR is op 13 maart 2012 in werking getreden. Het bij de structuurvisie behorende Besluit algemene regels ruimtelijke ordening (Barro) was al op 30 december 2011 in werking getreden. De nieuwe structuurvisie vervangt verschillende beleidsnota's, waaronder de Nota Ruimte, de structuurvisie Randstad 2040 en de Nota Mobiliteit.
In de structuurvisie zijn drie hoofddoelen geformuleerd om Nederland concurrerend, bereikbaar, leefbaar en veilig te houden voor de middellange termijn tot aan het jaar 2028. Het gaat hierbij om de volgende doelstellingen:
Het vergroten van de concurrentiekracht van Nederland door het versterken van de ruimtelijk-economische structuur van Nederland;
Het verbeteren, in stand houden en ruimtelijk zeker stellen van de bereikbaarheid waarbij de gebruiker voorop staat;
Het waarborgen van een leefbare en veilige omgeving waarin unieke natuurlijke en cultuurhistorische waarden behouden zijn.
Uit deze drie hoofddoelen komen onderwerpen voort die van nationaal belang zijn.
Structuurvisies hebben geen bindende werking voor andere overheden dan de overheid die de visie heeft vastgesteld. De nationale belangen uit de structuurvisie die juridische borging vragen, worden daarom geborgd in het Besluit algemene regels ruimtelijke ordening (Barro) en de Amvb Ruimte. Deze Amvb is gericht op doorwerking van nationale belangen in gemeentelijke bestemmingsplannen en zorgt voor sturing en helderheid van deze belangen vooraf.
Geen van de in het Barro geregelde onderwerpen is van invloed op het onderhavige project. De betreffende onderwerpen zijn niet aan de orde in de kader van dit bouwplan.
3.1.2 Luchthavenindelingbesluit Schiphol (2002)
Het oorspronkelijke 'Luchthavenindelingbesluit Schiphol' (Lib) stamt uit 2002 en is op 31 augustus 2004 gewijzigd in werking getreden. Het Lib is een Algemene Maatregel van Bestuur (AMvB), die voortkomt uit artikel 8.4 van de Wet Luchtvaart. Met het Lib wordt in kaartmateriaal een beperkingengebied vastgesteld. Het Lib bevat voor dat beperkingengebied regels waarbij beperkingen worden gesteld ten aanzien van de bebouwing en het grondgebruik, voor zover die beperkingen noodzakelijk zijn met het oog op veiligheid en geluidbelasting in verband met de nabijheid van luchthaven Schiphol.
Per 4 november 2015 is een wijziging van het Lib in werking getreden (zie Staatsblad nr. 389). Doel van deze wijziging is om de vliegveiligheid rondom Schiphol in afdoende mate te borgen. Hiervoor zijn de toetshoogtes in de omgeving van Schiphol aanzienlijk verlaagd. Bestemmingsplannen dienen deze verlaagde toetshoogtes in acht te nemen. Gebouwen hoger dan de toetshoogtes kunnen enkel toegestaan worden indien het rijk hiervoor een verklaring van geen bezwaar (vvgb) heeft afgegeven of een positief radaradvies heeft afgegeven. Het instrument 'radaradvies' is een nieuw instrument naast de reeds bestaande vvgb. Voor de radartoets gelden afzonderlijke toetshoogtes; deze zijn opgenomen in een nieuwe kaart in bijlage 4a bij het Lib.
De genoemde beperkingen betreffen:
De bestemming en het gebruik van grond in verband met het externe-veiligheidsrisico vanwege het luchthavenverkeer;
De bestemming en het gebruik van grond in verband met de geluidbelasting vanwege het luchthavenverkeer;
De maximale hoogte van objecten in, op of boven de grond, in verband met de veiligheid van het luchthavenverkeer;
Een bestemming die, of een gebruik dat, vogels aantrekt, in verband met de veiligheid van het luchthavenverkeer.
Bij de eerste twee van de bovengenoemde typen beperkingen zijn in ieder geval gronden aangewezen die niet gebruikt dan wel bebouwd mogen worden ten behoeve van woningen, of andere in het besluit aangewezen gebouwen.
Op 1 januari 2018 is het Lib gewijzigd in werking getreden. De regelwijziging ziet op een eigen bevoegdheid voor het lokaal bestuur om binnen bestaand stedelijk gebied woningen toe te voegen. In het gebied binnen zone 4 blijft wel de grens van 25 woningen per bouwplan gehandhaafd en de grens van maximaal 3 woningen in het lint. In het bestaand stedelijk gebied tussen de grens van zone 4 en de 20 Ke-contour gelden nu en ook onder het regime van het nieuwe Lib geen kwantitatieve beperkingen aan woningbouw. In het landelijk gebied zal een verbod op nieuwe woningbouwlocaties worden verankerd in het Lib.
Relevantie plangebied
Het plangebied is gelegen in de nabijheid van luchthaven Schiphol. Het plangebied valt binnen de 20-Ke contour en is daarnaast gelegen in zone 5 van het beperkingengebied van het Lib.
Binnen de 20 Ke-contour mogen geen nieuwe uitleglocaties voor woningbouw worden gerealiseerd buiten bestaand bebouwd gebied. Binnen het bestaand bebouwd gebied is herstructurering en intensivering van woningbouw toegestaan. Voor de realisatie van een waterlichaam en de verbreding van een sloot heeft de ligging binnen de 20 Ke-contour geen verdere gevolgen.
Voor het plangebied is op de hoogtekaart bij het Lib aangegeven dat de maximale bouwhoogte 51 meter mag bedragen. Gezien de aard van het plan, het graven van een waterlichaam en het verbreden van een sloot, heeft deze hoogtebeperking geen verdere gevolgen.
Het plangebied is gelegen binnen zone 5 van de beperkingenzone van het Lib. In deze beperkingenzone zijn buiten bestaand stedelijk gebied geen nieuwe woningbouwlocaties toegestaan in verband met de geluidbelasting (artikel 2.2.1d, Lib). Daarnaast dienen gemeenten, in de toelichting op een bestemmingsplan of in een onderbouwing van een omgevingsvergunning, de wijze waarop rekening is gehouden met de mogelijke gevolgen van een vliegtuigongeval als gevolg van ruimtelijke ontwikkelingen te motiveren. Onderhavige ontwikkeling is niet van invloed op de gevolgen van een mogelijk vliegtuigongeval, waardoor de beperkingenzone van het Lib geen beperking vormt voor dit initiatief.
3.2 Provinciaal en regionaal beleid
3.2.1 Structuurvisie Noord-Holland 2040
De structuurvisie van de provincie Noord-Holland is op 21 juni 2010 vastgesteld en op 28 september 2015 geactualiseerd. In de structuurvisie geeft de provincie aan welke provinciale belangen een rol spelen bij de ruimtelijke ordening in Noord-Holland. Daarmee is het een leidraad voor de manier waarop de ruimte in Noord-Holland de komende dertig jaar zou moeten worden ontwikkeld. In het bijbehorende uitvoeringsprogramma is dit uitgewerkt in concrete activiteiten met als doel de visie uiteindelijk te realiseren en door middel van de Provinciale Ruimtelijke Verordening Structuurvisie is de doorwerking naar gemeentelijke bestemmingsplannen geregeld.
Uitgangspunt van het ruimtelijke beleid is ook in de toekomst Noord-Holland aantrekkelijk te laten blijven als diverse, internationaal concurrerende regio, in contact met het water en de met de kracht van het landschap als basis. Hieruit volgen een aantal provinciale belangen. De drie hoofdbelangen, duurzaam ruimtegebruik, klimaatbestendigheid en ruimtelijke kwaliteit van cultuurlandschappen, natuurgebieden en groen om de stad, vormen gezamenlijk de ruimtelijke hoofddoelstelling van de provincie. Zo wordt de komende dertig jaar het bestaand bebouwd gebied verder verdicht, onder meer door zo'n 200.000 woningen in de provincie bij te bouwen, en zet de provincie in op de ruimtelijke ontwikkeling van OV-knooppunten. Hiermee blijft volgens de provincie meer ruimte over om het buitengebied te behoeden en zijn er voldoende mogelijkheden voor duurzame economische ontwikkelingen, recreatie en natuur.
3.2.2 Provinciale Ruimtelijke Verordening
De regels van de Provinciale Ruimtelijke Verordening (PRV) vloeien voort uit de 'Structuurvisie Noord-Holland 2040'. Met de inwerkingtreding van de nieuwe Wet ruimtelijke ordening (Wro) in 2008 hebben provincies de bevoegdheid gekregen een ruimtelijke verordening vast te stellen. In deze verordening kan de provincie regels stellen met betrekking tot de inhoud van gemeentelijke bestemmingsplannen, (tijdelijke) afwijkingsbesluiten en beheersverordeningen.
Op 23 april 2018 hebben Provinciale Staten de meeste recente Provinciale
Ruimtelijke Verordening (PRV) vastgesteld. Deze is per 1 mei 2018 in werking
getreden. Door middel van de PRV is de doorwerking naar gemeentelijke afwijkingsbesluiten geregeld. In de verordening is het provinciale beleid in regels vertaald. Het betreft regels voor de inhoud van en de toelichting op bestemmingsplannen over onderwerpen binnen het gehele provinciale grondgebied (hoofdstuk 2, artikelen 5a t/m 8a) en specifiek voor het landelijke gebied van Noord-Holland waarmee een provinciaal belang gemoeid is (hoofdstuk 4, artikelen 13a t/m 18). Daarnaast worden er regels gesteld over thema's die betrekking hebben op de groene ruimte (hoofdstuk 5), de blauwe ruimte (hoofdstuk 6) en energie (hoofdstuk 7).
Regels voor de groene ruimte
Bufferzone
Bij de vorige wijziging van de PRV zijn de voormalige Rijksbufferzones en voormalige Nationale Landschappen onder het Bufferzoneregime gebracht, omdat deze gebieden geen bescherming meer kenden nadat het Rijk deze gebieden had losgelaten. Deze bufferzones hebben als doel dat zij gevrijwaard blijven van verdere verstedelijking en dat ze zich verder kunnen ontwikkelen tot relatief grootschalige groene gebieden. Het perceel aan de Ringdijk BP 23B is gelegen in een bufferzone. In een bufferzone mag een bestemmingsplan in principe geen nieuwe bebouwing mogelijk maken. Hierop zijn enkele uitzonderingen gemaakt.
Specifiek voor de Amstelscheg, waarin de Ringdijk BP 23B gelegen is, geldt dat de karakteristieken en ontwerpprincipes inzake de samenhang, ruimtelijke kwaliteit en identiteit van het landschap, zoals beschreven in het door Gedeputeerde Staten vastgestelde rapport 'Gebiedsperspectief en Beeldkwaliteit Amstelscheg', moeten worden aangehouden. Dit heeft onder andere tot gevolg dat bij verdere ontwikkelingen in de Amstelscheg zorg moet worden gedragen voor een heldere identiteit en een samenhang in de ordening van functies in het gebied. Het vertrekpunt hiervoor vormen de ontwikkelkansen binnen de gebieden op basis van het huidige gebruik en de ruimtelijke opbouw.
De bufferzone vormt geen beperking voor een legalisatie van het gerealiseerde waterlichaam en de verbrede sloten op de Ringdijk BP 23B. Daarnaast voldoet het plan aan de specifieke eisen voor de Amstelscheg vanuit het rapport 'Gebiedsperspectief en Beeldkwaliteit Amstelscheg'. Het waterlichaam en de verbrede sloot tasten de identiteit van de Amstelscheg niet aan.
Weidevogelleefgebied
Daarnaast is het plangebied gelegen in een weidevogelleefgebied. Met deze status wordt beoogd de leefgebieden van weidevogels te beschermen. Behalve het beheer, de afwezigheid van opgaande begroeiing en gunstige omgevingscondities, is de afwezigheid van bebouwing in hoge mate bepalend voor het succes van weidevogelpopulaties. Zodoende is het onwenselijk dat nieuwe bouwblokken worden toegekend in de open gebieden.
Een omgevingsvergunning die betrekking heeft op weidevogelleefgebieden voorziet niet in (artikel 25, eerste lid, PRV):
de mogelijkheid van nieuwe bebouwing, anders dan binnen een bestaand bouwblok of een uitbreiding daarvan;
de mogelijkheid van aanleg van nieuwe weginfrastructuur;
de mogelijkheid van aanleg van bossen of boomgaarden;
de mogelijkheid verstorende activiteiten, buiten de huidige agrarische activiteiten, te verrichten die het weidevogelleefgebied verstoren, en;
de mogelijkheid werken uit te voeren die realisatie van nieuwe peilverlagingen mogelijk maken.
In afwijking van bovenstaande kan een omgevingsvergunning wel voorzien in de beschreven ontwikkelingen indien dit geschiedt ten behoeve van (artikel 25, derde lid, PRV):
een ingreep waarvoor geen aanvaardbaar alternatief aanwezig is en waarmee bovendien een groot openbaar belang wordt gediend;
woningbouw indien er sprake is van de toepassing van de regeling Ruimte voor Ruimte als bedoeld in artikel 16 (PRV) en waarbij de natuurdoelen leidend zijn;
woningbouw die bijdraagt aan een substantiële verbetering van in de directe omgeving daarvan aanwezige natuurkwaliteiten van het landschap, of;
een ingreep die netto geen verstoring van het weidevogelleefgebied geeft.
Kleinschalige oplossingen voor duurzame energie
De PRV voorziet niet in bestemmingen en regels die het bouwen of opschalen van windturbines op de planlocatie mogelijk maken. Daarnaast is het ook niet mogelijk om opstellingen voor zonne-energie te realiseren op de planlocatie.
Conclusie
De ligging van het plangebied in een weidevogelleefgebied beperkt de mogelijkheden om het landschap aan te passen. De realisatie van de waterpartij en de verwerking van de afgegraven grond op de aangrenzende percelen zijn activiteiten die het weidevogelleefgebied (tijdelijk) verstoren. Dit is in strijd met artikel 25, eerste lid, onder d, PRV.
De omgevingsvergunning kan enkel voorzien in de gevraagde ontwikkelingen indien de ingreep 'netto geen verstoring' van het weidevogelleefgebied geeft (artikel 25, derde lid, onder d, PRV). Met 'netto verstoring' wordt de extra verstoring bedoeld, die een ingreep heeft op een weidevogelleefgebied, bovenop de al bestaande verstoring in het gebied vanwege gebouwen, wegen en dergelijke. Indien een ingreep geen netto verstorend effect heeft op het weidevogelleefgebied dan kan de ingreep doorgaan. In dat geval dient in de omgevingsvergunning opgenomen te worden op welke wijze schade aan het weidevogelleefgebied kan worden voorkomen en hoe de resterende schade wordt gecompenseerd (artikel 25, vierde lid).
Onderbouwing ontwikkeling binnen weidevogelleefgebied
De realisatie van het waterlichaam, de verbreding van de sloot en het verwerken van de afgegraven grond zijn activiteiten die het weidevogelleefgebied in de Bovenkerkerpolder verstoren. Aangezien er geen sprake is van een ingreep waarmee een groot openbaar belang wordt gediend, waarbij de regeling 'Ruimte voor Ruimte' wordt toegepast en de natuurdoelen leidend zijn of waarmee woningbouw wordt gerealiseerd die bijdraagt aan een verbetering van de directe omgeving, dient te worden aangetoond dat de ingreep netto geen verstoring van het weidevogelleefgebied geeft.
Met 'netto geen verstoring' wordt het volgende bedoeld. Weidevogels houden van een rustig en open landschap. Hoge elementen of infrastructuur, zoals wegen, fietspaden, wandelpaden, bebouwing, bosschages of bomenrijen zorgen voor verstoring voor weidevogels. In de directe omgeving van dergelijke elementen zullen weinig tot geen weidevogels gaan broeden. Een fietspad dat dwars door een weiland wordt aangelegd, zal een enorm verstorend effect hebben op de weidevogels die daar broeden. Wordt datzelfde fietspad naast een bomenrij of een snelweg aangelegd, dan zal het extra verstorende effect van het fietspad voor weidevogels nihil zijn. Met 'netto verstoring' wordt de extra verstoring bedoeld, die een ingreep heeft op een weidevogelleefgebied, bovenop de al bestaande verstoring in het gebied door gebouwen, wegen en dergelijke. Onder verstorende activiteiten worden activiteiten verstaan, die buiten de huidige agrarische activiteiten een verstorende werking hebben op de weidevogels.
Het reeds gerealiseerde plan heeft slechts een tijdelijk verstorend effect op het weidevogelleefgebied nabij de planlocatie. De werkzaamheden (o.a. graven, egaliseren gronden) zijn van korte duur en zorgen vanzelfsprekend voor een verstoring van weidevogels. Er is echter geen sprake van een permanente verstoring van het weidevogelleefgebied veroorzaakt door de aanleg van deze waterpartij en de verwerking van de afgegraven grond, tenzij deze ingreep een verlaging van het waterpeil tot gevolg heeft. De reeds uitgevoerde activiteiten zullen niet leiden tot een waterpeilverlaging nabij het plangebied. Daarnaast wordt de openheid van de polder niet aangetast door de aanleg van het waterlichaam. Een 'netto verstoring' van het weidevogelleefgebied is dan ook niet bewezen.
3.2.3 Groene Hart
Het plangebied is gelegen in het Groene Hart. De Stuurgroep Nationaal Landschap Groene Hart heeft beleid opgesteld met betrekking tot het perspectief voor het Groene Hart tot aan het jaar 2040. In de stuurgroep zijn verantwoordelijke overheden (waterschappen, provincies en gemeenten) en maatschappelijke organisaties vertegenwoordigd. In het beleid zijn onder andere ambities voor de toekomst vormgegeven in de vorm van vijf opgaven:
Versterking landschap en identiteit;
Vertraging bodemdaling;
Maak ruimte voor energietransitie;
Ontwikkeling en verduurzaming economisch profiel;
Betere benutting mobiliteitssysteem.
Op verschillende punten gaat de ambitie voor het versterken van het één, ten koste van het ander. Dit maakt dat het nodig is om expliciete maatschappelijke en politieke keuzen te maken. Hierbij spelen creatieve oplossingen, functiecombinaties en ruimte voor experimenten een rol.
Daarnaast worden in dit beleidsdocument de kwaliteiten van het Groene Hart omschreven. De landschappelijke diversiteit van het Groene Hart spreekt tot de verbeelding. De deelgebieden verschillen op basis van bodemsoort, occupatiegeschiedenis, cultuurhistorie en gebruik van elkaar. Deze diversiteit vormt een belangrijke kans voor de transities die nodig zijn in het gebied. De openheid van het Groene Hart is een andere belangrijke kwaliteit. De mate van openheid in een gebied wordt bepaald door maat en schaal van het betreffende gebied, door elementen in en door de randen van het gebied. Deze openheid vormt een belangrijk contrast met de grote steden eromheen.
Het veen(weide)karakter in het gebied bestaat al duizend jaar en is ontstaan op basis van menselijke ingrepen in de fysieke ondergrond en waterhuishouding. Karakteristiek voor deze gebieden zijn de verkavelingspatronen met smalle kavels, veel sloten en de aanwezigheid van kades, dijkjes, lintdorpen, oude dorpskernen, kronkelende veenriviertjes, openheid, vee, rietlanden en moerassige delen. Deze gebieden zijn belangrijk voor de weidevogels en de biodiversiteit. De kwaliteiten 'rust en stilte' kunnen hieraan bijdragen en vormen daarnaast een kwetsbaar goed in de drukke Randstad.
Relevantie plangebied
Binnen het Groene Hart wordt veel waarde gehecht aan het behoud van het landschap en de identiteit van het gebied. De openheid en het veen(weide)karakter vormen hierin een belangrijk onderdeel. Dit is onder andere van belang voor de weidevogels en de biodiversiteit in het gebied. Daarnaast is het karakteristieke verkavelingspatroon met de vele sloten kenmerkend voor het Groene Hart.
Het plan doet recht aan de ambities van de Stuurgroep Nationaal Landschap Groene Hart om het landschap en de identiteit van het gebied te versterken. De openheid van het perceel blijft bewaard en er is een divers landschap ontstaan met een vloeiende overgang van water naar land. Daarnaast is het slotenpatroon niet wezenlijk aangetast door de realisatie van de waterpartij en de verbreding van de sloot.
3.2.4 Gebiedsperspectief en Beeldkwaliteitsplan Amstelscheg
Het plangebied is gelegen in de Amstelscheg. Dit is een groene lob die het Groene Hart verbindt met het centrum van Amsterdam. Het gebied is globaal gelegen tussen het stedelijke gebied van Amstelveen en de snelweg A2. De Amstel is de ruggengraat van dit gebied. Er spelen grotere of kleinere ontwikkelingen en transformaties die het ruimtelijke beeld en gebruik van de Amstelscheg veranderen. Het Gebiedsperspectief Amstelscheg, vastgesteld door provincie, waterschap en betrokken gemeenten/stadsdelen, geeft richting aan deze ontwikkelingen, zodat de samenhang van de Amstelscheg als geheel bewaard blijft en de ruimtelijke kwaliteit waar mogelijk wordt versterkt. Hiermee kunnen betrokken overheden gezamenlijk beoordelen of bepaalde ontwikkelingen gewenst zijn.
In het gebiedsperspectief wordt aan de hand van vier ruimtelijke hoofdopgaven een stip aan de horizon geschetst: de positie van de Amstelscheg ten opzichte van de stad en de landschappelijke karakteristieken zullen worden versterkt, de toegankelijkheid voor recreanten wordt vergroot en het voorzieningenprogramma zal zich verder ontwikkelen.
De vier ruimtelijke hoofdopgaven zijn per deelgebied uitgewerkt. Het plangebied is gelegen in deelgebied Bovenkerkerpolder.
Bovenkerkerpolder
Het contrast tussen de bovenlanden langs de Amstel en de Bovenkerkerpolder is groot vanwege het hoogteverschil van enkele meters. Door het agrarische gebruik bestaan de weiden in de polder uit kort grasland en is het rationele verkavelingspatroon duidelijk herkenbaar. Hierdoor is de droogmakerij onderscheidend ten opzichte van de rest van de Amstelscheg. Voor de Bovenkerkerpolder ligt in het gebiedsperspectief de nadruk op ontwikkeling van de recreatieve en ecologische waarden met behoud van de agrarische functie.
De Bovenkerkerpolder is gelegen in het Nationale Landschap het Groene Hart. Nieuwe ontwikkelingen binnen het Groene Hart mogen geen negatief effect hebben op de kernkwaliteiten van het gebied. Het oostelijke deel van de polder behoort tot de Rijksbufferzone Amstelland-Vechtstreek. Hierin is tevens het plangebied gelegen. In deze bufferzone ligt het accent op de ontwikkeling van recreatie, waarbij andere groene functies als landbouw en natuur- en waterbeheer belangrijke dragers zijn. Er gelden in deze zone strikte regels voor de ontwikkeling van nieuwe functies ten aanzien van schaal en bebouwing.
In de Bovenkerkerpolder is een relatief hoog aantal actieve boeren aanwezig. Het is hierdoor een belangrijk agrarisch gebied binnen de Amstelscheg. De nadruk wordt hier dan ook gelegd op bedrijfsgerelateerde verbredingsactiviteiten en agrarisch natuurbeheer. In het Beeldkwaliteitsplan zijn verschillende ontwerpprincipes opgesteld voor boerenerven in de Bovenkerkerpolder. Een boerenerf kan zich ontwikkelen binnen de polder. Hiervoor zijn twee scenario's denkbaar: verbreding en schaalvergroting. De geldende ontwerpprincipes met betrekking tot agrarische verbreding in de Bovenkerkerpolder zijn:
Verbreding landbouw: campings, boomgaard, paardenweide;
Kavelsloot herkenbaar houden en zicht over deze lijn behouden;
Boomgaarden en kleine campings naast de erven, tot achtergrens bestaande erven;
Campings omringen met streekeigen erfsingel;
Paardenbakken achter de erven, weiden naast de erven;
Omheining paardenweiden minimaal, geen opvallende witte hekken.
Relevantie plangebied
Voor onderhavig initiatief, de realisatie van een waterpartij en de verbreding van een kavelsloot, is het van belang dat er rekening is gehouden met het traditionele verkavelingspatroon van de Bovenkerkerpolder. De kavelsloot blijft herkenbaar en door de aanleg van de waterpartij wordt het zicht over deze lijn niet verstoord. Daarnaast biedt de aanleg van de waterpartij kansen voor de ontwikkeling van de ecologische waarden op de planlocatie.
3.2.5 Leidraad Landschap en Cultuurhistorie
Noord-Holland kent een traditie van scheiding van landelijke en stedelijke functies, met compacte steden en scheggen die toegang bieden tot het groene buitengebied. Deze zogenaamde bufferzones worden door de provincie gehandhaafd en beschermd. In deze gebieden worden daarom enkel de functies toegelaten die het mogelijk maken om deze gebieden duurzaam te behouden, te benutten, te beleven en tegelijkertijd een toegevoegde waarde aan het landschap kunnen bieden. De kenmerken en waarden van het landschap zijn beschreven in de 'Leidraad Landschap & Cultuurhistorie'. Dit is een provinciale handreiking voor het inpassen van nieuwe ruimtelijke ontwikkelingen in het landschap. Het plangebied behoort tot de Amstelscheg. In afbeelding 10 zijn de ruimtelijke kwaliteiten van de Amstelscheg weergegeven. Hierin is zichtbaar dat binnen de droogmakerijen de openheid als een belangrijke landschappelijke kwaliteit wordt gezien.
Het Noord-Hollandse landschap is vooral een cultuurlandschap dat door de eeuwen heen door mensen is ingericht, ingepolderd, onder water gezet of herverkaveld. Dit maakt dat het landschap grote cultuurhistorische-, functionele- en belevingswaarden heeft. Deze waarden zijn onder andere gebaseerd op openheid, kavelstructuren of kenmerkende landschapselementen.
Voor de Amstelscheg geldt dat de algemene ambitie is om ruimtelijke ontwikkelingen:
bij te laten dragen aan het zichtbaar en herkenbaar houden van de landschappelijke karakteristiek;
bij te laten dragen aan het versterken van (de beleving van) openheid, en;
helder te positioneren ten opzichte van de ruimtelijke dragers.
Deze ambities en de bijbehorende ontwikkelprincipes zijn het vertrekpunt bij het streven naar ruimtelijke kwaliteit in de Amstelscheg.
![i_NL.IMRO.0362.09xU-VG01_640009.png [image]](i_NL.IMRO.0362.09xU-VG01_640009.png)
Afbeelding 10: ruimtelijke kwaliteiten van de Amstelscheg
Relevantie plangebied
Het karakteristieke landschap van de Amstelscheg, met veenontginningen en enkele uitgeveende lager gelegen droogmakerijen, vormt een groot contrast met het omringende stedelijke gebied. De ringdijken vormen een scheiding tussen de veenontginningen en de droogmakerijen in de scheg. Ringdijk BP 23B is lager gelegen in een droogmakerij (Bovenkerkerpolder). Dit is een open polder met verspreid liggende boerderijen langs de Bovenkerkerweg. De randen van de polder worden bepaald door de bebouwing van Amstelveen, Uithoorn en de verdichte rand bovenland langs de Amstel.
De droogmakerijen kenmerken zich door een orthogonale verkaveling. De ruimtelijke kwaliteit van de Amstelscheg is gebaat bij handhaving en versterking van het contrast tussen de droogmakerijen en het bovenland. Hierbij is het van belang dat er wordt ontwikkeld binnen het specifieke verkavelingspatroon en met de bijbehorende kavelbreedte, zodat de verschillen tussen de bovenlanden en de droogmakerijen behouden blijven. Daarnaast is het behoud van het landelijke karakter van groot belang. Bij transformaties moeten enkel functies toegelaten worden die aansluiten bij het landelijke en recreatieve karakter van het gebied. Bij de inrichting van de erven dient rekening te worden gehouden met de kenmerkende gebiedskwaliteiten. Om de weidse vergezichten te behouden is het wenselijk om de Amstelscheg open te houden. De polders worden vrij gehouden van bebouwing en het erf wordt ontwikkeld in de diepte in plaats van in de breedte, zodat de zichtlijnen en de openheid van het landschap behouden blijven.
Het reeds gerealiseerde plan draagt bij aan het behoud van de landschappelijke karakteristiek. De aanpassing van de bestaande sloot en de aanleg van een nieuw waterlichaam wijken niet af van het karakteristieke verkavelingspatroon in de Bovenkerkerpolder. Daarnaast gaat het initiatief niet ten koste van de openheid, en hiermee de weidse vergezichten, van het polderlandschap.
3.2.6 Provinciale Watervisie
Op 16 november 2015 heeft de provincie Noord-Holland de Watervisie 2021 definitief vastgesteld. De Provinciale Watervisie heeft een signalerende en agenderende functie, waarbij aangegeven wordt hoe het water een bijdrage kan leveren aan oplossingen voor ruimtelijke, economische en natuurvraagstukken. Bij conflicterende doelen en belangen, bijvoorbeeld met betrekking tot de afweging tussen landbouw, natuur, waterkwaliteit en bodemdaling, bekijkt de provincie hoe er vanuit water bijgedragen kan worden aan het bereiken van de gewenste oplossing.
Doordat een groot deel van Nederland gelegen is beneden NAP bestaat er altijd een overstromingsrisico. Jarenlang werd er in Nederland vooral vertrouwd op de dijken. In het huidige beleid is de focus verplaatst naar meerlaagsveiligheid. Het 'waterrobuust inrichten' van het landschap is daar een onderdeel van. Hieronder verstaat de provincie het zodanig inrichten van een overstromingsgevoelig gebied dat bij een overstroming de kans op slachtoffers klein is en de economische schade beperkt blijft. Daarnaast zal de klimaatverandering leiden tot meer neerslag en extremere buien. De overheden zullen rekening moeten houden met een toename van het aantal en de hevigheid van deze buien.
De veengebieden van Noord-Holland worden geconfronteerd met de gevolgen van bodemdaling, voornamelijk als gevolg van veenafbraak. Veenafbraak en bodemdaling kunnen op lange termijn veranderingen in het landschap en het landgebruik tot gevolg hebben. Een verslechterde waterkwaliteit, een ingewikkeld en duur peilbeheer, funderingsproblemen en toename van overstromingsrisico's zijn voorbeelden van negatieve effecten veroorzaakt door bodemdaling. Vernatting van het veen, oftewel verhoging van het waterpeil, kan de veenafbraak vertragen of stoppen. Hiervoor moeten waterbeheer, ruimtelijke ordening en landgebruik op elkaar worden afgestemd.
Conclusie
De realisatie van het waterlichaam heeft geen effect op het waterpeil in de Bovenkerkerpolder. Daarnaast biedt het waterlichaam ruimte voor waterberging in de polder. Hiermee past de realisatie van deze ontwikkeling goed binnen de provinciale watervisie.
3.2.7 Watergebiedsplan Westeramstel
Op 15 november 2017 heeft het Waterschap Amstel, Gooi en Vecht (AGV) het watergebiedsplan Westeramstel definitief vastgelegd. Het waterschap stelt een watergebiedsplan op om te kijken of het watersysteem nog goed functioneert en of het watersysteem verbeterd kan worden. Daarnaast staat hierin beschreven hoe het waterschap ervoor zorgt dat er voldoende en schoon water beschikbaar is in een gebied.
Het plangebied is gelegen in de Bovenkerkerpolder. Het waterschap ziet een belangrijke rol voor agrariërs bij het oplossen van knelpunten met betrekking tot de waterkwaliteit in Westeramstel. Knelpunten als te ondiepe sloten, te steile oevers en te intensief onderhoud zijn bedreigingen die vooral in het landelijk gebied spelen. Er zijn veel ondiepe watergangen in Westeramstel, veroorzaakt door een toename van slib. Ondiepe sloten veroorzaken een grote watertemperatuurstijging, zuurstofloosheid en de slib bevat veel voedingsstoffen, waardoor de waterkwaliteit achteruit gaat. In de Bovenkerkerpolder is circa 90% van de sloten minder diep dan 50 cm., meer dan een kwart van de sloten is zelfs minder diep dan 25 cm. Veel van deze watergangen hebben tevens een te steile oever, waardoor een natuurlijke oeverzone ontbreekt. Glooiende zachte oevers, die wel geschikt zijn voor oevervegetatie, kunnen hier een oplossing voor vormen.
Relevantie plangebied
De verbreding en verdieping van de sloot sluiten goed aan op het beleid dat is vastgelegd in het Watergebiedsplan Westeramstel. De sloot is in de nieuwe situatie op het diepste punt ca. 1,5 meter diep. De diepte neemt vanaf de oever geleidelijk toe en er is sprake van een ondiep plateau op ca. 0,5 meter diepte. Dit sluit aan bij het Watergebiedsplan Westeramstel en het plan komt hiermee de waterkwaliteit en de natuurontwikkeling in de Bovenkerkerpolder ten goede.
3.3 Gemeentelijk beleid
3.3.1 Structuurvisie Amstelveen 2025+
De gemeenteraad van Amstelveen heeft op 21 september 2011 de structuurvisie 'Amstelveen 2025+' vastgesteld. Dit is op de eerste plaats een ruimtelijke visie, maar het ondersteunt ook maatschappelijke ontwikkelingen binnen de gemeente. Het biedt daarmee helderheid aan inwoners, ondernemers, instellingen en andere overheden over de gewenste ontwikkelingsrichting van de gemeente Amstelveen en de prioriteiten die het bestuur hierbij stelt. De wettelijk verplichte structuurvisie vormt de grondslag voor bindende bestemmingsplannen en exploitatieplannen.
Versterken bestaande kwaliteiten en grijpen van nieuwe kansen
Amstelveen wil haar bestaande kwaliteiten behouden en deze kwaliteiten waar mogelijk versterken. Deze kwaliteiten zijn een uitstekend woonklimaat, een ondernemend werkklimaat en een meer dan gemiddelde bereikbaarheid.
Daarnaast wil Amstelveen nieuwe kansen die zich voordoen grijpen. Bijvoorbeeld door middel van een toekomstvaste openbaarvervoerverbinding tussen Amsterdam en Amstelveen door de vernieuwing van de Amstelveenlijn. Of de ontwikkeling van een knooppunt van hoogwaardig vervoer bij het Stadshart, waardoor het Stadshart een impuls krijgt. Andere thema's waar de gemeente Amstelveen kansen ziet zijn:
Behoud van waardevol landschap door middel van zorgvuldig afgewogen ontwikkeling;
Creëren van een toekomstvast openbaar vervoer. Een goed lokaal netwerk is hiervoor een noodzakelijke voorwaarde;
Stimuleren van hoogwaardig wonen. Dit zorgt voor een betere doorstroming op de woningmarkt, energiezuiniger wonen en meer particulier opdrachtgeverschap;
Stimuleren van het nieuwe werken door betere benutting van bestaande bedrijventerreinen en kantoren;
Vergroten aantrekkelijkheid voorzieningen door onder andere versterking van het Stadshart, concentratie van wijkwinkelcentra en de beschikbaarheid van excellent onderwijs voor iedereen;
Duurzamer benutten van ruimte door middel van slim en zuinig ruimtegebruik binnen een ruimtelijk kwaliteitskader.
Landschap
Natuurwaarden en recreatiemogelijkheden zijn belangrijke elementen voor de metropoolregio Amsterdam, voor de inwoners van Amstelveen, maar ook als vestigingsfactor voor bedrijven. Behoud en versterking van deze waarden vergt dus grote zorgvuldigheid. Daarnaast is een goed functionerend watersysteem essentieel voor een verstedelijkt gebied dat bijna 5 meter onder NAP gelegen is.
De belangrijkste vraagstukken met betrekking tot het landschap in de gemeente Amstelveen, zijn:
Een economisch dynamische metropoolregio betekent verstedelijkingsdruk voor het aanpalende landelijke gebied, zo ook in de gemeente Amstelveen;
Het verdwijnen van oorspronkelijke (bedrijfs)functies van bebouwing in het buitengebied is aanleiding voor 'verrommeling' van het landschap en mogelijke oorzaak van ongewenste bebouwing en functies in de toekomst;
De afgelopen decennia is toegewerkt naar verbindingen in de groene en blauwe structuur. De kans die er nu ligt is om een kwaliteitsslag te maken door deze verbindingen af te maken.
Landelijk gebied
Het landelijk gebied in de gemeente Amstelveen typeert zich enerzijds als een open polderlandschap waar de Amstel doorheen meandert, met daarlangs karakteristieke (historische) bebouwing. Anderzijds treffen we grootstedelijke elementen aan als snelwegen, stadsranden en grootschalige kantoorbebouwing. De hoofdelementen van het landschap en water in Amstelveen zijn de Middelpolder, de Bovenkerkerpolder, de Noorder Legmeerpolder, het Amsterdamse Bos, de Poel, de Amstel, de heemparken en de hoofdgroenstructuur in de stad. Het landschap biedt ruimte voor agrarische bedrijfsvoering, recreatieve voorzieningen, ecologische hoofdstructuur, weidevogels en het watersysteem van vlakken en verbindingen door stedelijk en landelijk gebied. In het landelijk gebied wordt ook gewoond, zij het in beperkte mate.
De agrarische functie in de polder bestaat hoofdzakelijk uit melkveehouderijen in de Bovenkerkerpolder en vooral glastuinbouw in de Noorder Legmeerpolder. Langs de Amstel is sprake van onderbroken lintbebouwing (woningen en bedrijven) met uniek zicht op het achtergelegen open polderlandschap. Bedrijfsbebouwing, zoals kassen langs de Amstel die leegstaan of een andere functie hebben gekregen, leidt op een aantal plekken tot een rommelige situatie. De polders zelf zijn voornamelijk open van karakter met op een aantal plekken hoeves, natuurgebieden en bosjes. Waterschappen en gemeente hebben gezamenlijk een Stedelijk Waterplan en plannen voor het buitengebied van Amstelveen opgesteld die de basis vormen voor de waterstructuur.
Ambities
De uitdaging voor Amstelveen is om een aantrekkelijk landschap in stand te houden met een goed functionerend watersysteem, waar mogelijk verbindingen (af) te maken, kwaliteiten te versterken en de verstedelijkingsdruk te stroomlijnen naar gewenste locaties. Om als gemeente regie te houden welke ontwikkelingen waar plaatsvinden, is het noodzakelijk om voor de toekomst duidelijkheid te scheppen over waar nieuwe functies een plek kunnen krijgen.
Door de watersystemen op schaal van functioneren te bekijken, schoon water vast te houden en verbindingen te maken is het mogelijk om de waterkwaliteit in de stad sterk te verbeteren. Voor wateropvang in het stedelijk gebied zelf is het noodzakelijk om opvanggebied te reserveren op basis van een 'waterbank'. De waterbank zal voor alle compensatieprojecten worden ingezet. Om de watertoevoer uit het stedelijk gebied naar het platteland te allen tijde goed op te kunnen vangen, heeft het Waterschap Amstel, Gooi en Vecht (AGV) een waterbergingsopgave van 30 hectare in de Bovenkerkerpolder.
Relevantie plan
De realisatie van een waterlichaam van ca. 2.320 m2 en de verbreding van de sloot sluiten aan op de ambities van de gemeente en het Waterschap AGV om meer water op te vangen in de Bovenkerkerpolder. Daarnaast draagt het bij aan een aantrekkelijk landschap en een goed functionerend watersysteem en sluit het plan hiermee goed aan op de doelstellingen uit de gemeentelijke structuurvisie.
3.3.2 Erfgoednota Amstelveen
Op 28 september 2016 is de Erfgoednota vastgesteld door de Amstelveense gemeenteraad. Met de vaststelling van de Erfgoedwet per 1 juli 2016 en het vervallen van de Monumentenwet moest de gemeentelijke Erfgoedverordening geactualiseerd worden.
Het perceel Ringdijk BP 23B bevindt zich, gebaseerd op de 'Cultuurhistorische waardenkaart' van de gemeente Amstelveen, net buiten het gebied met 'landschappelijke waarde'. Dit zijn de zogenaamde bovenlanden, gelegen tussen de Amstel en de Ringsloot. Ringdijk BP 23B bevindt zich in ontveende en daardoor lager gelegen gronden. De bewoning van de Bovenkerkerpolder is van oudsher gesitueerd aan de rand van de droogmakerij, aan de Ringdijk en de Amsteldijk. De genetische en ruimtelijke samenhang met de ringdijk, ringsloot en de verkaveling is hier nog duidelijk aanwezig. Boerderijen aan de Ringdijk en de Amsteldijk zijn nog in redelijke getalen aanwezig, al verliest een deel hun agrarische functie. Wonen aan de Amstel en in de polder is in trek, maar de gemeente Amstelveen heeft in haar beleid vastgelegd dat langs de Amsteldijk geen ruimte meer wordt geboden voor uitbreiding van de woonbebouwing. Vervangende nieuwbouw dient bovendien aan te sluiten qua diversiteit, schaal en uitstraling bij de bestaande bebouwing langs de Amstel.
Tot voor kort stonden er nog 27 boerderijen in de Bovenkerkerpolder, waarvan het grootste gedeelte gelegen aan de Ringdijk en aan de Amsteldijk-Zuid, overwegend van het type dwarshuis. Achter het aan de dijk georiënteerde woonhuis, lag de stal. Daarachter, los verspreid over het erf, bevonden zich de bijgebouwen: stallen, (wagen)schuren en de hooizolder. Als gevolg van het verlies van de agrarische functie worden veel boerderijen getransformeerd tot woonhuis en verdwijnen de bijgebouwen. Of de boerderijen maken plaats voor nieuwbouwwoningen. Veelal vrijstaande villa's die niet passen binnen de typologie van het polderlandschap en de daarbij behorende bebouwing.
Relevantie plangebied
Onderhavig plan is slechts van invloed op de inrichting van het erf op perceel Ringdijk BP 23B. Het aanleggen van een waterlichaam en de verbreding van de kavelsloot hebben geen negatief effect op de ruimtelijke samenhang tussen ringdijk, ringsloot en de verkaveling. Er is rekening gehouden met de cultuurhistorie van de polder, waardoor het plan passend is binnen het beleid van de Erfgoednota van de gemeente Amstelveen.
HOOFDSTUK 4 Omgevingsaspecten
4.1 Bodem
Een goede ruimtelijke ordening omvat een bodem die duurzaam geschikt is voor de beoogde functie. Bij duurzame geschiktheid worden alle gebruiksfuncties van de bodem adequaat beschermd.
Voor de chemische kwaliteit is het streven dat de gebruiksfunctie aansluit bij de bodemfunctieklassen zoals opgenomen in art. 4.4 Regeling bodemkwaliteit. Een afwijking hiervan is mogelijk indien de bodem een aanvaardbare geschiktheid heeft; wanneer de aanwezige verontreinigingen geen gezondheidsrisico’s voor de gebruiker vormen. Indien echter sprake is van een onaanvaardbare kwaliteit, waarbij gezondheidsrisico’s voor gebruikers optreden, is bodemsanering noodzakelijk. Hierbij moet onderscheid worden gemaakt tussen te bebouwen en niet bebouwde terreindelen.
Grondgebonden bouwwerken (voor het verblijf van personen) mogen niet op verontreinigde grond worden gebouwd, waardoor een omgevingsvergunning niet zonder bodemsanering in werking kan treden. Voor terreindelen zoals tuinen, die niet bebouwd worden, maar waar na functiewijziging wel een onaanvaardbare blootstelling kan optreden, ontbreekt een juridische basis voor bodemsanering. Doorgaans wordt de bodem gesaneerd omdat er wel een privaatrechtelijke basis voor sanering bestaat.
De haalbaarheid van een plan is qua bodemkwaliteit dus primair afhankelijk van de financiële ruimte voor een eventuele sanering ter plaatse van de te bebouwen verblijfsruimte.
Relevantie plangebied
Er vindt geen bestemmingswijziging naar een strenger bodemgebruik plaats. Bij een wijziging die een gelijkblijvend of minder streng bodemgebruik oplevert, is een bodemonderzoek niet noodzakelijk. Daarnaast is er geen sprake van een bouwplan dat de realisatie van een bouwwerk waarin voortdurend of nagenoeg voortdurend mensen verblijven mogelijk maakt. Het plan is gelet op voorgaande uitvoerbaar ten aanzien van het aspect bodem.
4.2 Water
Bij ruimtelijke ingrepen dient een watertoets te worden uitgevoerd. Doel van de watertoets is om de relatie tussen planvorming en waterhuishouding te versterken. Bouwplannen dienen daartoe te worden getoetst door de waterbeheerder. Daarbij moeten alle gevolgen met betrekking tot water tegen het licht worden gehouden.
Aangezien er sprake is van een aanpassing aan de oppervlaktewateren dient het plan daarnaast te voldoen aan de eisen die worden gesteld vanuit de Keur, opgesteld door Waterschap Amstel, Gooi en Vecht (AGV). Hierin staan de eisen omtrent werkzaamheden op of nabij water, oevers en dijken beschreven.
Relevantie plangebied
Het gerealiseerde waterlichaam is reeds opgenomen in de meest actuele Legger van het Waterschap AGV. Hierin is zichtbaar dat het plangebied buiten de binnen- en buitenbeschermingszone van de waterkering valt (zie afbeelding 11).
Afbeelding 11: nieuwe situatie Ringdijk BP 23B
In de Keur van het Waterschap AGV staan in paragraaf 4.3 de regels met betrekking tot oppervlaktewateren beschreven. Het is niet zonder meer mogelijk om werkzaamheden uit te voeren op of nabij water, oevers en dijken. Bij de realisatie van dit plan zijn diverse werkzaamheden aan het oppervlaktewater verricht die verboden zijn wanneer men niet in het bezit is van een Keurvergunning, dit zijn:
wijziging, verwijdering of aanbrenging van beschoeiing (art. 4.10, lid 1, onder j);
verandering van richting, vorm, afmeting of constructie (art. 4.11, lid 1, onder c);
wijziging en gewijzigd houden van het gehanteerde streefpijl (art. 4.11, lid 2, onder b);
toebrenging van schade aan oevers, rietkragen, beplanting of beschermingsmaterialen (art. 4.11, lid 3, onder a);
wijziging van de vorm en inrichting van de oevers (art. 4.11, lid 3, onder b).
De initiatiefnemer dient hiervoor zelf een Keurvergunning aan te vragen bij het Waterschap AGV.
Wanneer er sprake is van een toename van verharding of bebouwing van meer dan 5.000 m2 (in landelijk gebied) zal het waterschap akkoord moeten geven en dient deze toename van het verharde oppervlak elders gecompenseerd te worden. Dit is bij onderhavig initiatief niet het geval. Er is juist sprake van een behoorlijke toename van het wateroppervlak en er is daarom geen watercompensatie benodigd.
4.3 Geluid
De beoordeling van het aspect geluid in ruimtelijke plannen vindt zijn grondslag voor spoor- en wegverkeerlawaai en gezoneerde industrieterreinen in de Wet geluidhinder (Wgh) en voor vliegverkeerlawaai in de Wet luchtvaart (Wlv) en het bijbehorende Luchthavenindelingbesluit Schiphol (Lib). Daarnaast vindt de beoordeling van geluid zijn grondslag in de Wet ruimtelijke ordening (Wro), op grond van een goed woon- en leefklimaat.
In de Wet geluidhinder zijn voorkeurswaarden vastgesteld. Als hieraan niet voldaan kan worden, is het in bepaalde situaties mogelijk om een zogenaamd hogere waarde besluit vast te stellen. De gemeenteraad van Amstelveen heeft de 'Deelnota Hogere Waarden' vastgesteld. In deze nota is de procedure uitgewerkt die benodigd is om de hogere waardenprocedure te doorlopen. In dit hogere waardenbeleid is een aantal aspecten opgenomen dat bij de afweging van een hogere waarde een rol speelt. Deze aspecten zijn:
het heersende geluidsniveau;
het toetsingskader om af te wijken van het heersende geluidsniveau;
cumulatie en compensatie.
Daarnaast dient er in dat geval onderzoek gedaan te worden naar de geluidwering van de desbetreffende woningen of andere geluidgevoelige bouwwerken.
Relevantie plangebied
Bij dit plan is er geen sprake van een geluidgevoelige bestemming of een geluidgevoelig bouwwerk volgens artikel 1, Wet geluidhinder. Voorliggend plan omvat geen strijdigheden met de Wet geluidhinder en is ook in het kader van een goede ruimtelijke ordening niet strijdig. Het is dan ook niet benodigd om onderzoek uit te voeren en inzicht te geven in de geluidbelasting in het plangebied.
4.4 Luchtkwaliteit
Sinds 15 november 2007 zijn de hoofdlijnen voor regelgeving van luchtkwaliteitseisen vastgelegd in de Wet milieubeheer (Wm). Artikel 5.16 Wm, geeft weer onder welke voorwaarden de bestuursorganen bepaalde bevoegdheden (zoals wijzigingen van een bestemmingsplan) mogen uitoefenen. Als aan minimaal één van de volgende voorwaarden wordt voldaan, vormen luchtkwaliteitseisen in principe geen belemmering:
Er is geen sprake van een feitelijke of dreigende overschrijding van een grenswaarde;
Een project leidt per saldo niet tot verslechtering van de luchtkwaliteit;
Een project draagt 'niet in betekenende mate' (NIBM) bij aan de luchtverontreiniging;
Een project past binnen het Nationaal Samenwerkingsprogramma Luchtkwaliteit (NSL) of binnen een regionaal programma van maatregelen.
Vanaf 1 augustus 2009 is het NSL in werking getreden. In het NSL zijn alle maatregelen opgenomen die de luchtkwaliteit moeten verbeteren en tevens zijn ruimtelijke ontwikkelingen opgenomen die de luchtkwaliteit verslechteren. Overheden zijn gehouden de in het NSL opgenomen maatregelen uit te voeren en kunnen het NSL gebruiken als onderbouwing bij plannen voor de NSL-projecten. Met het NSL laat de Nederlandse overheid zien hoe zij aan de grenswaarden voor luchtkwaliteit gaat voldoen.
Grenswaarden
Voor de beoordeling van de situatie in de omgeving van het project zijn met name de volgende grenswaarden uit de Wet milieubeheer relevant:
De jaargemiddelde concentratie voor stikstofdioxide (NO2) moeten vanaf 2015 voldoen aan de grenswaarde van 40 µg/m3;
Voor fijnstof (PM10) geldt vanaf 2011 een grenswaarde van 40 µg/m3 voor de jaargemiddelde concentratie;
De 24-uurgemiddelde waarde voor PM10 mag niet vaker dan 35 keer per jaar overschreden worden (39 keer als er rekening wordt gehouden met de zogenaamde zeezoutaftrek);
Voor PM2,5-deeltjes zijn ook grenswaarden vastgesteld. Deze zijn niet strenger dan de huidige norm voor daggemiddelde concentraties van PM10.
Besluit gevoelige bestemmingen
Met het Besluit gevoelige bestemmingen (luchtkwaliteitseisen) wordt de vestiging van zogeheten 'gevoelige bestemmingen' - zoals een school of kinderopvang - in de nabijheid van provinciale wegen (binnen 50 meter) en rijkswegen (binnen 300 meter) beperkt. Dit geldt voor nieuwe situaties en bestaande situaties die worden uitgebreid, waarbij sprake is van een (dreigende) overschrijding van de grenswaarden voor NO2 of PM10.
Besluit en Regeling niet in betekenende mate bijdragen (luchtkwaliteitseisen)
In het Besluit niet in betekenende mate bijdragen (luchtkwaliteitseisen) is vastgelegd wanneer een project 'niet in betekenende mate' (NIBM) bijdraagt aan de luchtverontreiniging. Een project is NIBM als het niet meer dan 3% van de jaargemiddelde grenswaarde voor NO2 en PM10 bijdraagt; concreet betekent dit een bijdrage van maximaal 1,2 µg/m3. Met name NO2 en PM10 zorgen in Nederland nog voor overschrijdingen van grenswaarden, vandaar dat deze grens is gekozen. In de Regeling NIBM is een aantal categorieën met bijbehorende maximale omvang aangewezen die NIBM zijn, waaronder woningbouw, kantoren en bepaalde inrichtingen. Als een project binnen de grenzen van deze regeling valt, is een verdere toetsing aan de grenswaarden niet benodigd.
Relevantie plangebied
De realisatie van een waterlichaam en de verbreding van een sloot heeft geen negatieve gevolgen voor de luchtkwaliteit. Het plan draagt dan ook 'niet in betekende mate' bij aan luchtverontreiniging. Een nader onderzoek naar de luchtkwaliteit is voor dit project niet nodig.
4.5 Externe veiligheid
Bij externe veiligheid gaat het om de vraag of de veiligheid van personen in de omgeving van een risico-opleverende activiteit met gevaarlijke stoffen voldoende is gewaarborgd. Het gaat hier met name om de risico's van inrichtingen met gevaarlijke stoffen, het vervoer van gevaarlijke stoffen over de weg en door buisleidingen. De veiligheidsnormen zijn vastgelegd in respectievelijk het Besluit externe veiligheid inrichtingen (Bevi), Besluit externe veiligheid transportroutes (Bevt) en Besluit externe veiligheid buisleidingen (Bevb).
De risicokaart Noord-Holland geeft inzicht in de risico's voor de woon- en werkomgeving. Op de kaart staan meerdere typen rampen, zoals ongevallen met brandbare, explosieve en giftige stoffen, grote branden of verstoringen van de openbare orde. Deze gegevens zijn afkomstig van gemeenten, waterschappen, provincie en het rijk. Uit de risicokaart blijkt dat er in de omgeving van het bouwplan geen risicovolle bedrijven en/of activiteiten zijn vermeld.
Relevantie plangebied
Het plangebied ligt niet binnen het invloedsgebied van een gasleiding, route vervoer gevaarlijke stoffen, lpg-tankstation, een andere inrichting die valt onder het BRZO of een opslagplaats met gevaarlijke stoffen. Nader onderzoek naar het groepsrisico of plaatsgebonden risico is in dit geval dan ook niet nodig.
4.6 Ecologie
Op 1 januari 2017 is de Wet natuurbescherming in werking getreden. Doel van deze wet is de bescherming van soorten en leefgebieden. De wet is een implementatie van Europeesrechtelijke en internationale verplichtingen (Habitatrichtlijn, Vogelrichtlijn, Verdrag van Bern en Verdrag van Bonn).
De wet kent een beschermingsregime voor soorten van de Vogelrichtlijn, voor soorten van de Habitatrichtlijn en voor andere soorten. Het komt er onder andere op neer dat soorten niet opzettelijk gedood, gevangen of verstoord mogen worden. Ook het beschadigen of vernielen van voortplantingsplaatsen en rustplaatsen is verboden. Gedeputeerde Staten kunnen in sommige gevallen ontheffing verlenen van de verbodsbepalingen. Vrijwel alle vogels zijn beschermd ingevolge de Vogelrichtlijn. Habitatrichtlijnsoorten zijn bijvoorbeeld alle vleermuissoorten. Andere beschermde diersoorten zijn onder andere de ringslang en de grote modderkruiper.
Relevantie plangebied
Het plangebied is gelegen in een weidevogelleefgebied. Het grondwaterpeil vormt een belangrijke factor voor de kwaliteit van een leefgebied voor weidevogels. De realisatie van het waterlichaam en de verbreding van de sloot is niet van invloed op het waterpeil in de polder. Daarnaast behoudt het landschap zijn open karakter, wat van groot belang is voor de weidevogelpopulatie. Het aspect ecologie staat dit initiatief dan ook niet in de weg.
4.7 Archeologie
Wet op de archeologische monumentenzorg
In de Wet op de archeologische monumentenzorg is het doel van het in 1992 gesloten Verdrag van Valletta verwerkt, te weten: bescherming van het archeologische erfgoed als bron van het Europese gemeenschappelijke geheugen en als middel voor geschiedkundige en wetenschappelijke studie. Om dit doel te bereiken moet de wetgever het archeologisch erfgoed betrekken bij de ruimtelijke ordening. Tevens dient de financiering van het archeologisch onderzoek en het behoud in de bodem te worden geregeld. Kern van de wet is dat gemeenten verantwoordelijk zijn geworden voor de archeologische monumentenzorg binnen de gemeentegrenzen. Verder wordt het verrichten van opgravingen aan de markt overgelaten.
Door de wet heeft de gemeente een nieuwe wettelijke taak gekregen: bij de vaststelling van een bestemmingsplan dient de gemeente rekening te houden met de in de grond aanwezige dan wel te verwachten archeologische waarden. Dit houdt in dat de gemeente bij de voorbereiding van een nieuw bestemmingsplan moet onderzoeken of de grond een archeologische waarde of verwachting bezit. In het bestemmingsplan kunnen archeologische voorschriften worden opgenomen wanneer de gemeente de grond bestemd heeft als archeologisch waardevol gebied of als onderzoeksgebied. De aanvrager van een omgevingsvergunning moet zelf de kosten dragen voor het voldoen aan de gestelde archeologische voorschriften, uitgaande van het principe 'de verstoorder betaalt'. De aanvrager heeft recht op nadeelcompensatie van de gemeente wanneer deze kosten onredelijk hoog zijn. Het principe dat de veroorzaker betaalt, geldt uitsluitend wanneer de wet uitdrukkelijk bepaalt dat er een archeologisch voorschrift aan de vergunning kan worden verbonden.
De volgende archeologische voorschriften worden in de wet genoemd:
Het treffen van maatregelen waardoor de archeologische resten in situ behouden blijven;
De verplichting tot het doen van opgravingen;
Het werk laten begeleiden door een deskundige.
De provincie of het rijk kunnen in plaats van de gemeente bevoegd zijn om beslissingen te nemen over terreinen met archeologische resten. Het gaat hierbij om vergunningen voor ontgrondingen en om vergunningen inzake beschermde archeologische monumenten die voorkomen op de monumentenlijst van het rijk. Aan deze vergunningen kunnen dezelfde archeologische voorschriften worden verbonden.
Het rijk is ook bevoegd gezag bij toevalsvondsten, waarvan sprake is wanneer er bij werkzaamheden onverwacht archeologische resten worden aangetroffen. Vondsten met archeologische waarde dienen te worden aangegeven bij het provinciaal depot voor archeologie van de provincie Noord-Holland.
Archeologisch beleid Amstelveen
De gemeente Amstelveen heeft in 2008 haar archeologische beleid vastgesteld. Het toenmalige beleid aan de hand van de beleidsadvieskaart functioneerde goed, maar op een aantal punten was er behoefte ontstaan voor aanvullingen op en aanpassingen aan de kaart. In opdracht van de gemeente Amstelveen heeft RAAP Archeologisch Adviesbureau in 2015/2016 de bestaande gemeentelijke archeologische verwachtingen- en beleidsadvieskaart geactualiseerd. In de archeologische beleidskaart wordt onderscheid gemaakt tussen vijf archeologische waarden. Dit archeologiebeleid zal opgenomen worden in het bestemmingsplan middels de dubbelbestemming 'Waarde - Archeologie 1 t/m 5'. De categorieën 2 t/m 5 worden gekenmerkt als archeologische verwachtingsgebieden. Dit betreffen gebieden waar op basis van bekende archeologische vindplaatsen, geomorfologie en/of landschap een archeologische waarde is geformuleerd.
Relevantie plangebied
Een deel van de planlocatie heeft de dubbelbestemming 'Archeologie - 4' en een deel heeft de dubbelbestemming 'Archeologie - 5'. De gronden met dubbelbestemming 'Archeologie - 4' zijn enkel gebruikt om de afgegraven grond op te verwerken.
De gronden met deze dubbelbestemmingen zijn, behalve voor de andere daar voorkomende bestemmingen, mede bestemd voor de bescherming en het behoud van de op en/of in deze gronden voorkomende archeologische waarden. Deze bestemming is primair ten opzichte van de overige aan deze gronden toegekende bestemmingen.
Binnen de dubbelbestemming 'Archeologie - 4' is het verboden om zonder aanlegvergunning gronden op te hogen. Dit geldt echter alleen indien het oppervlakte meer dan 5.000 m2 bedraagt en de bodemingrepen dieper dan 30 cm zijn. De afgegraven grond is verspreid over een oppervlakte van ca. 3.000 m2, waardoor deze dubbelbestemming geen gevolgen heeft voor onderhavige ontwikkeling.
Daarnaast heeft de planlocatie de dubbelbestemming 'Archeologie - 5'. De bestemming betreft alle overige zones waarvoor ten aanzien van de perioden vanaf het Neolithicum een lage archeologische verwachting geldt. Het gaat hierbij onder andere om verveende en drooggemaakte gebieden buiten de bewoningslinten. Geadviseerd wordt om alleen bij grootschalige ingrepen binnen deze zone onderzoek naar dieperliggende kreeksystemen en het dekzandoppervlak te laten uitvoeren.
De dubbelbestemming 'Archeologie - 5' heeft tot gevolg dat het verboden is om zonder of in afwijking van een omgevingsvergunning op deze gronden de volgende (reeds uitgevoerde) werkzaamheden uit te voeren:
het ophogen, egaliseren en ontginnen van gronden;
het bodemverlagen of afgraven van gronden waarvoor geen ontgrondingsvergunning is vereist;
het graven of dempen van sloten, watergangen, vijvers of vaarten.
Voor de hierboven benoemde ingrepen is enkel een omgevingsvergunning benodigd indien de ingreep een oppervlakte groter dan 10.000 m2 bedraagt bij een diepte van 30 cm onder het maaiveld. Dat is bij dit plan niet het geval (ca. 2.320 m2). Daarnaast zijn de verboden uit de planregels niet van toepassing indien deze activiteiten reeds in uitvoering waren op het tijdstip van het van kracht worden van het betreffende bestemmingsplan. Er is voor deze ontwikkeling dan ook geen archeologisch onderzoek benodigd.
4.8 Besluit milieueffectrapportage (m.e.r.)
Wettelijk kader
Het Besluit milieueffectrapportage (Besluit m.e.r.) is essentieel om te kunnen bepalen of bij de voorbereiding van een plan een m.e.r.-(beoordelings)procedure moet worden doorlopen. Voor plannen en besluiten die nadelige gevolgen voor het milieu (kunnen) hebben wordt vaak een m.e.r. doorlopen.
Op 7 juli 2017 is het gewijzigde Besluit m.e.r. in werking getreden. De wijziging houdt in dat B&W voortaan ook een besluit moet nemen over de vormvrije m.e.r.-beoordeling. Voor de vormvrije m.e.r.-beoordeling gelden twee voorwaarden:
Het gaat over één of meer activiteiten die voorkomen op de D-lijst van het Besluit m.e.r.;
De omvang van al die activiteiten ligt onder de drempelwaarde (kolom 2 van de D-lijst).
Door middel van een vormvrije m.e.r.-beoordeling worden de milieueffecten van de gewenste ontwikkeling onderzocht. Op basis hiervan wordt beoordeeld of er een milieueffectrapportage of m.e.r.-beoordeling moet worden opgesteld.
Toetsing
Het besluit tot het verlenen van een omgevingsvergunning heeft betrekking op activiteiten die voorkomen op de D-lijst uit het Besluit m.e.r. Dit plan heeft betrekking op twee activiteiten uit de D-lijst (D9: een landinrichtingsproject dan wel een wijziging of uitbreiding daarvan; D15.3: de aanleg, wijziging of uitbreiding van een stuwdam of andere installatie voor het stuwen, of voor de lange termijn opslaan van water). Voor deze activiteiten zijn drempelwaarden opgenomen met betrekking tot de omvang van de activiteit. Voor een landinrichtingsproject (D9) geldt een drempelwaarde van 125 hectare. Voor de aanleg van een stuwdam (D15.3) geldt een drempelwaarde van 5 miljoen m3 water.
De realisatie van het waterlichaam, de verbreding van de sloot en de aanleg van de stuwdammen zijn activiteiten die qua omvang (ver) onder de drempelwaarde uit het Besluit m.e.r. blijven. Op basis hiervan moet bekeken worden of er een vormvrije m.e.r.-beoordeling noodzakelijk is.
Gevoelig gebied
De projectlocatie is gelegen in een weidevogelleefgebied en een bufferzone. Het plangebied heeft hiermee een beschermde status vanuit de natuurwaarden. Het open veenweidelandschap is van groot belang voor behoud van de natuurwaarden van het gebied. Van belang is dan ook dat er geen 'netto verstoring' van weidevogels plaatsvindt, veroorzaakt door nieuwe bebouwing of opgaande begroeiing. Het behouden van een hoog waterpeil is ook van groot belang voor de leefbaarheid van het gebied voor weidevogels. De gevolgen van de ligging in een weidevogelleefgebied en een bufferzone is in paragraaf 3.2.2 uitvoerig behandeld.
Milieugevolgen
De omvang van de voorgenomen ontwikkeling brengt geen zodanige productie van afvalstoffen, verontreiniging, hinder en risico van ongevallen met zich mee op basis waarvan belangrijke negatieve gevolgen voor het milieu zijn te verwachten. In de andere paragrafen in dit hoofdstuk zijn de milieueffecten beschouwd, zoals geluid en luchtkwaliteit. Hieruit blijkt dat de realisatie van het waterlichaam en de verbreding van de sloot geen nadelige milieugevolgen heeft veroorzaakt.
Conclusie
Gelet op vorenstaande hoeft er geen milieueffectrapportage te worden opgesteld voor de realisatie van het waterlichaam en de verbreding van de bestaande sloot. De ontwikkeling heeft ondanks de ligging in een gebied met beschermde natuurwaarden geen negatief effect op de ecologische waarde van het gebied.
4.9 Belangenafweging
Schaduwwerking
Er is geen sprake van schaduwwerking veroorzaakt door de realisatie van het waterlichaam en de verbreding van de bestaande sloot.
Aantasting privacy
De realisatie van het waterlichaam en de verbreding van de bestaande kavelsloot heeft geen gevolgen voor de privacy van omwonenden.
Conclusie
Vanwege de ontwikkeling op eigen perceel in een landelijke omgeving worden er geen belangen van derden geschaad door dit initiatief.
HOOFDSTUK 5 Uitvoerbaarheid
5.1 Maatschappelijke uitvoerbaarheid
5.1.1 Inspraak
Overeenkomstig de uniforme openbare voorbereidingsprocedure wordt het voornemen tot afwijking inclusief de bijbehorende stukken waaronder het ontwerp van de omgevingsvergunning (bijlage 5) en deze ruimtelijke onderbouwing, gedurende zes weken ter inzage gelegd met de mogelijkheid voor een ieder een mondelinge dan wel een schriftelijke zienswijze in te dienen.
De termijn van inzage liep van 13 augustus 2018 tot en met 23 augustus 2018. Gedurende deze termijn zijn geen zienswijzen ingediend.
5.1.2 Bro-partners
In het kader van het wettelijk vooroverleg op grond van het Besluit ruimtelijke ordening is het ontwerp toegezonden aan de hieronder genoemde provinciale- en rijksdiensten en andere instanties op 9 augustus 2018.
De toezending is gedaan met het verzoek om binnen 6 weken te reageren en met de mededeling, dat indien niet binnen die termijn zal zijn gereageerd, wordt aangenomen, dat de ontwerp omgevingsvergunning geen aanleiding heeft gegeven tot het maken van opmerkingen.
Gedeputeerde Staten van Noord-Holland
Waternet
Beschermers Amstelland
Groengebied Amstelland
Dorpsraad Nes aan de Amstel
Wijkplatform Nes aan de Amstel
De instanties welke staat vermeld onder 1 heeft wel gereageerd. De ruimtelijke onderbouwing heeft geen aanleiding gegeven voor opmerkingen.
5.2 Juridische uitvoerbaarheid
De percelen, kadastraal bekend als gemeente Amstelveen, sectie N, nr. 299, 562 en 563 zijn in eigendom van de aanvrager. Voor wat betreft het grondeigendom is het bouwplan dan ook uitvoerbaar.
5.3 Grondexploitatie en economische uitvoerbaarheid
Sinds 1 juli 2008 is de gemeente op grond van artikel 6.12 van de Wet ruimtelijke ordening verplicht om bij het mogelijk maken van een bouwplan als bedoeld in artikel 6.2.1 van het Besluit ruimtelijke ordening, een exploitatieplan vast te stellen ten behoeve van het verhalen van de door de gemeente te maken kosten, tenzij voorafgaand aan de vaststelling van de bestemmingswijziging een overeenkomst tot stand is gekomen waarin dit kostenverhaal is verzekerd.
Om gemaakte kosten te verhalen dient, gelet op artikel 6.12 van de Wet ruimtelijke ordening, een exploitatieplan vastgesteld te worden voor gronden waarop een bij algemene maatregel van bestuur aangewezen bouwplan is voorgenomen (zie artikel 6.2.1 Bro).
Voorliggend project voorziet in de realisatie van een waterlichaam en de verbreding van een bestaande sloot. Deze ontwikkeling is geen bouwplan volgens artikel 6.2.1 Bro en er hoeft dan ook geen exploitatieplan te worden opgesteld.
HOOFDSTUK 6 Conclusie
Voor het perceel Ringdijk BP 23B is een omgevingsvergunning aangevraagd voor het, middels graafwerkzaamheden, vergroten van een sloot naast en achter het woonhuis en het plaatsen van drie houten stuwwanden. De aanvraag betreft de activiteiten: bouwen, werk of werkzaamheden uitvoeren (aanleggen) en het handelen in strijd met de regels van de ruimtelijke ordening. Deze aanvraag past niet binnen de mogelijkheden van het vigerende bestemmingsplan 'Landelijk Gebied'.
Het initiatief kan met gebruikmaking van de buitenplanse afwijking ex artikel 2:12, lid 1, sub a, onder 3° Wabo worden gerealiseerd. De gevraagde vergunning kan worden verleend, indien is aangetoond dat de activiteit niet in strijd is met een goede ruimtelijke ordening en de motivering van het besluit een goede ruimtelijke onderbouwing bevat.
De Wet algemene bepalingen omgevingsrecht (Wabo) verbiedt het uitvoeren van een project zonder omgevingsvergunning. Als een project in strijd is met een bestemmingsplan, bestaat de mogelijkheid voor het college van burgemeester en wethouders (hierna: college) om af te wijken van het bestemmingsplan door een projectafwijkingsbesluit te nemen. Voordat het college dit besluit kan nemen, moet de gemeenteraad een verklaring van geen bedenkingen afgeven. De gemeenteraad kan de afweging of voor een project van het geldende bestemmingsplan mag worden afgeweken ook overlaten aan het college. Het verstrekken van een verklaring van geen bedenkingen kan de gemeenteraad niet delegeren aan het college. Wel kan de gemeenteraad categorieën aanwijzen waarin een verklaring van geen bedenkingen niet is vereist. Het onderhavige initiatief is opgenomen in de lijst die de Amstelveense raad in dat kader heeft aangewezen. Er is voor dit initiatief dan ook geen verklaring van geen bedenkingen benodigd.
Het plan is in overeenstemming met het beleid van rijk en provincie en met het actuele ruimtelijke beleid van de gemeente. Gelet op de verschillende omgevingsaspecten zijn er geen belemmeringen voor verlening van de omgevingsvergunning. De juridische, maatschappelijke en economische uitvoerbaarheid zijn tevens gewaarborgd.
Geconcludeerd kan worden dat het initiatief voldoet aan een goede ruimtelijke ordening, zodat het geoorloofd is om toepassing te geven aan artikel 2.12, eerste lid, onder a, onder 3° Wabo en voor het bouwplan de omgevingsvergunning te verlenen.