Type plan: bestemmingsplan
Naam van het plan: Bulkheuvelseweg 10-12 te Ophemert
Status: vastgesteld
Plan identificatie: NL.IMRO.0304.BPbgbbulkhweg1012-1003

5.3 Programma en grondgebruik


De nieuwe woning op nummer 12 is met de voorgevel georiënteerd op de Bulkheuvelseweg en ligt op ca. 12 meter van de weg. De ontsluiting van het erf vindt plaats vanaf de Bulkheuvelseweg met parkeren op eigen terrein.  
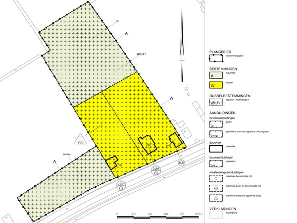
Om het bouwprogramma te realiseren zijn er in de verbeelding de bestemmingen Wonen en Agrarisch opgenomen, met als dubbelbestemming Waarde - Archeologie 1, verder drie bouwvlakken met maatvoeringen voor de woningen. Om het vereveningsplan te realiseren ligt op de bestemming Agrarisch aan de westkant van het plangebied de aanduiding specifieke vorm van agrarisch - boomgaard en aan de noordkant van het plangebied de aanduiding groen.
 
Uitsnede van de verbeelding.