direct naar inhoud van Toelichting
Plan: Europalaan 98 e.o., 2019
Status: vastgesteld
Plantype: bestemmingsplan
IMRO-idn: NL.IMRO.0274.bp0193rh-va02

Toelichting

Hoofdstuk 1 Inleiding

1.1 Aanleiding

De eigenaar van het (bedrijfs)perceel Europalaan 98a, 98b, 98c en Molenweg 24 (kadastrale percelen Renkum, sectie C, nummers 8239, 8342, 8343 en 8344) in Renkum heeft het voornemen om op dit perceel 4 woningen te realiseren. Deze persoon was tot een paar jaar geleden ook eigenaar en bewoner van de voormalige bedrijfswoning aan de Europalaan 98. De bouwlocatie was tot 4 jaar geleden in gebruik als opslagterrein van het aannemingsbedrijf W. ten Böhmer. De initiatiefnemer had een aantal jaren geleden het plan om op de locatie één woning te bouwen, deze zelf te betrekken en de loodsen met de bedrijfswoning te behouden. Hiervoor is in 2015 een bestemmingsplan in procedure gebracht en onherroepelijk geworden: het bestemmingsplan 'Europalaan 98, 2015'. Het bouwen van 4 woningen past niet binnen dit bestemmingsplan. Het opnieuw doorlopen van een bestemmingsplanprocedure is daarom noodzakelijk. Een groot deel van de locatie was tot voor kort in gebruik als parkeerplaats voor en buitenstalling bij het aldaar gevestigde kringloopbedrijf Jan Splinter. Dit bedrijf heeft inmiddels een andere locatie elders in de kern Renkum gekozen. Een kleiner deel van de buitenruimte is nu nog in gebruik als buitenspeelruimte voor de kinderopvang Peuterplein. De voormalige bedrijfswoning (Europalaan 98), indertijd behorende bij het aannemingsbedrijf, is door de initiatiefnemer een paar jaar geleden verkocht aan particulieren die ook het voormalig kantoorgedeelte van het bouwbedrijf in bezit hebben om er een 'Bed and Breakfast' te beginnen (kadastrale percelen Renkum, sectie C, nummers 8238 en 8341). In dit kantoorgedeelte was tot de verkoop een kinderopvang gesitueerd.

In 2015 (12 augustus 2015) is voor de bedrijfswoning aan de Europalaan 98 met een buitenplanse afwijking van het bestemmingsplan (artikel 2.12, lid 1, sub a, onder 2de Wet algemene bepalingen omgevingsrecht (Wabo) / artikel 4, lid 9, bijlage II van het Besluit omgevingsrecht (Bor) toegestaan dat die bedrijfswoning als gewone woning mag worden gebruikt. Echter de woning (met bijgebouwen en tuin) heeft in het nu nog geldende bestemmingsplan nog wel de bestemming 'Bedrijf' met deels de aanduiding 'bedrijfswoning'. Dat wordt nu meteen aangepast naar een woonbestemming met een tuinbestemming. Omdat het terrein van Europalaan 98 recent kadastraal gesplitst is en nog geen passende bestemming heeft in het vorige bestemmingsplan is dit terreingedeelte nu ook meegenomen in het bestemmingsplan en voorzien van een passende en juiste bestemming.


In de meest oostelijke loods is de kinderopvang Peuterplein (dit is een maatschappelijke functie) gevestigd (waarvoor ook een vergunning via aan afwijking van het bestemmingsplan voor is verleend). Deze zal worden uitgebreid met een buitenschoolse opvang (BSO) binnen hetzelfde gebouw (dit is ook een maatschappelijke functie en valt binnen de eerder verleende afwijkingsvergunning voor de kinderopvang). De meest westelijk gelegen loods zal (vooralsnog) door de initiatiefnemer als opslag in gebruik blijven. Voor de tussenliggende loodsen wordt nog een invulling gezocht. Gedacht wordt (voor alle loodsen) aan voor de locatie passende activiteiten zoals lichte bedrijvigheid (maximaal categorie 1), opslag van materiaal en een (beperkte) maatschappelijke functie. Daarom krijgen deze loodsen een gemengde bestemming; te weten de bestemming 'Gemengd - 5'. Tot circa een jaar geleden heeft (met afwijkingsvergunning) studentenhuisvesting plaatsgevonden in de verdieping van de zuidelijke loods. Dit is echter niet meer gewenst en wordt ook niet planologisch vastgelegd in het nieuwe bestemmingsplan.


In het pand Molenweg 24, gelegen naast en direct tegen de voormalige bedrijfswoning aan de Europalaan 98, is een fysiotherapiepraktijk gevestigd. Deze praktijk zal wellicht op (korte) termijn een ander pand betrekken, misschien in één van de loodsen. De bestemming 'Bedrijf' met de aanduiding 'fysiotherapie' kan daarmee voor dit pand komen te vervallen. Het pand heeft daarom in het ontwerpbestemmingsplan de bestemming 'Wonen' voor maximaal één woning gekregen. Dit sluit beter aan bij het karakter van de (hoofdzakelijke) woonstraat Molenweg, de uitstraling van het pand en het feit dat het pand direct tegen het nu ook als woning bestemde pand Europalaan 98 ligt. Echter, mede naar aanleiding van zienswijzen is besloten voorlopig nog af te zien van het toekennen van een woonfunctie. Wellicht dat dit op een later tijdstip alsnog zal worden toegekend. Nu is de functie van Molenweg omgezet van de bedrijfsbestemming waar ook een fysiotherapie toegestaan was in de bestemming 'Gemengd - 5' . Hierbinnen zijn wederom bedrijven in de categorie 1 toegestaan, evenals een fysiotherapiepraktijk, maar dan nu iets uitgebreid met enkele andere maatschappelijke functies, namelijk: ergotherapie, huisarts, tandarts, orthodontist, (kunst)atelier en creativiteitscentrum. Ook nieuw is dat hier nu ook kantoren zijn toegestaan.


Door het plangebied ruim te begrenzen en het gehele voormalige terrein van het aannemingsbedrijf in deze bestemmingsplanontwikkeling te betrekken wordt het mogelijk om het vigerende bestemmingsplan ook voor de loodsen te actualiseren. In het vigerende bestemmingsplan is ten dienste van de bedrijven bijvoorbeeld nog ondergeschikte productiegebonden detailhandel toegestaan (met uitzondering van detailhandel in voedings- en genotsmiddelen). Deze mogelijkheid kan met het vertrek van kringloopbedrijf Jan Splinter komen te vervallen.


De huidige bestemming 'Bedrijf' voor de loodsen en buitenruimte zal worden gewijzigd in 'Gemengd - 5'. Deze bestemming past beter in de huidige tijd en context. In de bestemming 'Gemengd - 5' zijn maatschappelijke functies, zoals de bestaande en vergunde kinderopvang, fysiotherapie en dergelijke, toegestaan evenals bedrijven in maximaal milieucategorie 1 en opslag van materialen. Ondergeschikte detailhandel ten behoeve van de toegestane bedrijven in categorie 1 is nu niet meer toegestaan.

1.2 Ligging plangebied

De locatie, kadastraal bekend als Renkum, sectie C onder nummers 8238, 8239, 8341, 8342, 8343 en 8344, ligt in de gemeente Renkum in de kern Renkum nabij het centrum. De locatie wordt omsloten door de Bergerhof aan de noordkant, de Europalaan aan de oostzijde en de Molenweg aan de zuidzijde. Aan de westkant sluit de locatie aan op de bestaande bebouwing. De locatie voor de nieuwe woningen is gesitueerd op het meest noordelijke deel van de locatie nabij de kruising Bergerhof / Frans Campmanweg / Europalaan.

afbeelding "i_NL.IMRO.0274.bp0193rh-va02_0001.jpg"

Afbeelding 1: Ligging plangebied

afbeelding "i_NL.IMRO.0274.bp0193rh-va02_0002.png"

Afbeelding 2: Luchtfoto planlocatie (bron: GeoWeb)

1.3 Geldend bestemmingsplan

Het voorliggende plan herziet het bestemmingsplan 'Europalaan 98, 2015'. In het vigerende bestemmingsplan is de mogelijkheid opgenomen voor de bouw van 1 ruime woning op de hoek van de Europalaan/Bergerhof. Voor het overige is de oorspronkelijke bestemming bedrijf gehandhaafd. Met aanduidingen zijn een bedrijfswoning (Europalaan 98), een kinderopvang en een praktijk voor fysiotherapie (Molenweg 24) mogelijk gemaakt / toegestaan. In de loodsen was tot een jaar geleden de handel in tweedehands goederen door 'Jan Splinter' aanwezig. De detailhandel van de kringloop was binnen beperkte voorwaarden mogelijk omdat in dat bestemmingsplan binnen de bestemming 'Bedrijf' ten dienste van de bedrijven de verkoop van ondergeschikte productiegebonden detailhandel, met uitzondering van detailhandel in voedings- en genotsmiddelen, mogelijk was.

afbeelding "i_NL.IMRO.0274.bp0193rh-va02_0003.png"

Afbeelding 3: het geldende bestemmingsplan "Europalaan 98, 2015 (bron: www.ruimtelijkeplannen.nl)

Het hiervoor geldende bestemmingplan 'Europalaan 98, 2015' was een wijziging voor deze specifieke locatie van het bestemmingsplan 'Renkum - Heelsum 2013'. Dit plan is vastgesteld op 26 juni 2014 en op 22 augustus 2014 onherroepelijk geworden. In dat bestemmingsplan had het perceel de bestemming 'Bedrijf' met een aanduiding 'bouwbedrijf' conform de toen bestaande situatie. Ter plaatse van de bedrijfsgebouwen en de bedrijfswoning lag een bouwvlak. Ter plaatse van de bedrijfswoning was een aanduiding 'bedrijfswoning' opgenomen. Ter plaatse van het kinderdagverblijf was de aanduiding 'kinderdagverblijf' opgenomen. Voor de omgeving van het plangebied is het bestemmingplan 'Renkum - Heelsum 2013' nog steeds het vigerende plan. Met de planregeling voor het voorliggende plan wordt aangesloten op de regelingen van zowel het vigerende als het omliggende plan. Het vigerende plan sluit al aan op de opzet van het plan 'Renkum - Heelsum 2013'. Daar waar zinvol of noodzakelijk worden de regels geactualiseerd.

afbeelding "i_NL.IMRO.0274.bp0193rh-va02_0004.jpg"

Afbeelding 4: het vervallen bestemmingsplan "Renkum-Heelsum 2013" (Plangebied omkaderd)

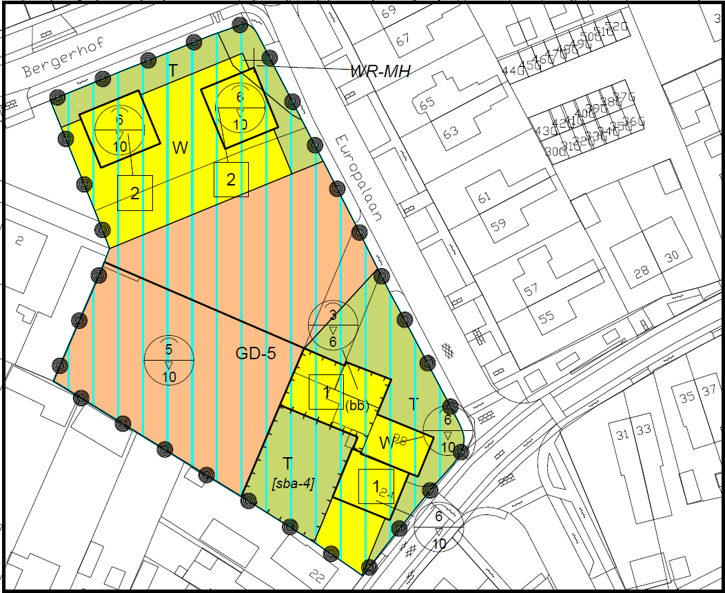
Hierna staan gedetailleerde (duidelijkere) afbeeldingen van het hiervoor geldende bestemmingsplan 'Europalaan 98, 2015', het ontwerpbestemmingsplan 'Europalaan 98, 2018' en het definitieve nieuwe bestemmingsplan 'Europalaan 98 e.o, 2019' weergegeven. Paars is de bestemming 'Bedrijf', geel is de bestemming 'Wonen', lichtgroen is de bestemming 'Tuin' en beige is de bestemming 'Gemengd - 5'. Binnen de bouwvlakken (dikke zwarte lijnen) is bebouwing toegestaan met de aangegeven hoogtes.

afbeelding "i_NL.IMRO.0274.bp0193rh-va02_0005.png"

Afbeelding 5: het bestemmingsplan 'Europalaan 98, 2015'

afbeelding "i_NL.IMRO.0274.bp0193rh-va02_0006.png"
Afbeelding 6: het ontwerpbestemmingsplan 'Europalaan 98, 2018' (zoals dat ter inzage heeft gelegen)

afbeelding "i_NL.IMRO.0274.bp0193rh-va02_0007.png"

Afbeelding 7: definitief bestemmingsplan 'Europalaan 98 e.o., 2019' (de wijziging t.o.v. ontwerpbestemmingsplan betreft de locatie Molenweg 24 en de naam van het bestemmingsplan)

1.4 Leeswijzer

Het bestemmingsplan bestaat uit een verbeelding, regels en deze toelichting. Op de verbeelding zijn de onderscheiden bestemmingen door middel van kleuren en tekens aangegeven. De regels bevatten de materiële inhoud van de bestemmingen. De verbeelding en de regels vormen samen de juridisch bindende elementen van het bestemmingsplan.

De toelichting van dit bestemmingsplan is opgebouwd uit 5 hoofdstukken. Na dit inleidende hoofdstuk volgt in hoofdstuk 2 de beschrijving van het plangebied en de historie. Hierin wordt de ruimtelijke karakteristiek van het plangebied besproken. Tevens wordt ingegaan op de manier waarop het beheer van het plangebied is voorzien en de planologische afwegingen die hieraan ten grondslag liggen, waarbij in hoofdstuk 5 hier ook op wordt ingegaan. In hoofdstuk 3 wordt ingegaan op het beleidskader. In hoofdstuk 4 komt de haalbaarheid van het plan aan de orde. Vanuit de verschillende van invloed zijnde haalbaarheidsaspecten, waaronder milieu en archeologie, wordt in dit hoofdstuk beschreven waarom het (beheergedeelte van) voorliggend bestemmingplan kan worden uitgevoerd. In hoofdstuk 5 is de wijze van bestemmen aangegeven. Er wordt een antwoord gegeven op de vraag hoe hetgeen in voorliggend plan is vastgelegd juridisch wordt geregeld. Verder wordt er beschreven hoe de verbeelding en de regels zijn opgebouwd en welke bestemmingen er in het plan voorkomen. Ook wordt in dit hoofdstuk aangegeven hoe de regels moeten worden geïnterpreteerd en uitgelegd. In dit hoofdstuk worden ook alle bestemmingen uitgelegd en wat daar in hoofdlijnen is toegestaan. In het laatste hoofdstuk, hoofdstuk 6, van dit bestemmingsplan wordt ingegaan op de procedures, die voorliggend bestemmingsplan doorloopt.

Hoofdstuk 2 Planbeschrijving

2.1 Inleiding

Door de initiatiefnemer zijn al verschillende plannen gemaakt voor de locatie. Eerdere plannen betroffen een volledige herontwikkeling van de locatie. Uiteindelijk is er in 2015 voor gekozen de toenmalige situatie maar beperkt te wijzigen voor de bouw van een enkele woning op het terrein en het behoud van de bestaande bedrijfspanden. Dit plan is vastgelegd in het vigerende bestemmingsplan. De gedachte van de initiatiefnemer was om de te realiseren woning zelf te betrekken. Inmiddels is echter de keuze van de initiatiefnemer gevallen op een andere woning. De wens om een woning voor eigen gebruik te realiseren is daarmee komen te vervallen. De plannen voor de locatie zijn daarom gewijzigd. De initiatiefnemer heeft nu de wens om 4 woningen te realiseren op de locatie waar eerst één woning was gedacht. De rest van het terrein blijft in verschijningsvorm ongewijzigd. De bestaande loodsen blijven behouden. Ze krijgen wel een andere bestemming, de bestemming 'Gemengd - 5', die beter aansluit op het gewenste gebruik in bestaand stedelijk gebied. De voormalige bedrijfswoning aan de Europalaan 98 krijgt een woonbestemming. Dat laatste geldt ook voor het voormalig kantoor aansluitend aan de voormalige bedrijfswoning. Dit deel krijgt bovendien de aanduiding 'Bed & Breakfast'. Tot slot krijgt het pand Molenweg 24 nu ook de de bestemming 'Gemengd - 5', maar dan met een toevoeging dat hier ook kantoren zijn toegestaan (dit is nieuw). Dit pand leent zich prima voor dergelijke kantoorfunctie en enkele maatschappelijke functies (die zit er nu al, in de vorm van een fysiotherapiepraktijk) en/of een klein bedrijfje (wat al toegestaan was volgens het vorige bestemmingsplan).


afbeelding "i_NL.IMRO.0274.bp0193rh-va02_0008.jpg"

Afbeelding 8: Molenweg 24 (links) en Europalaan 98 (rechts)

2.2 Bestaande situatie

De locatie is gelegen in het woongebied van de kern Renkum en grenst direct aan de nieuwbouwlocatie Bergerhof. De locatie vormt de overgang van het meer historische deel van Renkum, met kleinschalige bebouwing, naar de planmatig opgezette woongebieden. Oorspronkelijk was op de locatie een boerenbedrijf gevestigd. De schuren stammen nog uit die periode. Het boerenbedrijf is op een gegeven moment overgegaan in een transportbedrijf. De huidige inrichting van het terrein met een gesloten asfaltverharding is daar nog het gevolg van. De vrachtwagens werden op het terrein en niet in de schuren geplaatst. In de huidige situatie in het woongebied van Renkum zijn de herontwikkeling van de locatie op de hoek van de Europalaan/Bergerhof tot een woningbouwlocatie en de wijziging van de bestemming 'Bedrijf' in de bestemming 'Gemend' logische stappen in aansluiting op de al bestaande woonbebouwing en de maatschappelijke context/gebruik.

afbeelding "i_NL.IMRO.0274.bp0193rh-va02_0009.png"

Afbeelding 9: luchtfoto 2017 plangebied (bron: GeoObliek, Slagboom en Peeters)


afbeelding "i_NL.IMRO.0274.bp0193rh-va02_0010.png" Afbeelding 10: luchtfoto 2017 plangebied (ingezoomd) (bron: GeoObliek, Slagboom en Peeters)

afbeelding "i_NL.IMRO.0274.bp0193rh-va02_0011.png" Afbeelding 11: luchtfoto 2017 plangebied, richting zuiden (bron: GeoObliek, Slagboom en Peeters)

afbeelding "i_NL.IMRO.0274.bp0193rh-va02_0012.jpg" Afbeelding 12: Europalaan 98a-b, voormalige loodsen met o.a. Kinderopvang

2.3 Toekomstige situatie

Bij de planvorming in 2010 zijn de mogelijkheden onderzocht voor de bouw van geschakelde woningen op de plek van de huidige schuren en voor de ontwikkeling van een appartementencomplex op het terrein. De ruimte is hiervoor beschikbaar, maar de plannen zijn niet doorgezet. De huidige bebouwing blijft in de nieuwe plannen in ongewijzigde vorm bestaan. Het initiatief was met het vigerend plan teruggebracht tot de ontwikkeling van één vrijstaande woning op het terrein en wordt nu beperkt uitgebreid tot de mogelijkheid van de bouw van 4 woningen. Het noordoostelijk deel van het terrein worden afgescheiden van de rest. De functie en de bestemming van de bestaande loodsen wijzigen zonder dat de uiterlijke verschijningsvorm wordt veranderd.

2.4 Stedenbouwkundige randvoorwaarden

De plek van nieuwe woningen is markant, omdat het terrein een punt markeert waar de oudere bebouwing en de (nieuwe) planmatige bebouwing elkaar raken. De bebouwing langs de Europalaan (oostzijde), de Bergerhof en de Frans Campmanweg is illustratief voor de planmatige bebouwing. De bebouwing langs de Molenweg is illustratief voor de oudere, historische bebouwing die vrijer van opzet is en niet planmatig. De schuren van het voormalig aannemersbedrijf W. ten Böhmer staan hier feitelijk tussenin. Voor de ontwikkeling van de bebouwing langs de Bergerhof en de Europalaan liep de Bergerhof direct voor de voorgevel van de schuren langs en sloot daarmee rechtstreeks aan op De Molenweg. De directe koppeling van het open terrein aan de schuren en daarmee het ontstaan van één locatie stamt uit de periode van de ontwikkeling van de oorspronkelijke Bergerhof.


Het terrein rond de nieuwe woningen is een wigvormige open ruimte in de huidige stedenbouwkundige opzet. Door de bestaande haag wordt deze openheid minder ervaren. Met de opzet van de 4 nieuwe woningen is ervoor gekozen om aan te sluiten op de aard en opzet van de nieuwbouwlocatie Bergerhof. De bouw van de 4 woningen maakt het mogelijk om zowel de Bergerhof en de Europalaan stedenbouwkundig beter te begeleiden. De situering van de woningen aan de Europalaan belemmert het zicht op de markante loodsen niet. Tussen de twee blokken van twee woningen zal voldoende open ruimte behouden blijven. Hiermee wordt wandvorming voorkomen en wordt een belangrijk bezwaar bij de opzet van de wijk Bergerhof vermeden. De nieuwe woningen worden ontsloten vanaf de weg waaraan ze staan.


Hoofdstuk 3 Beleid

3.1 Inleiding

In dit hoofdstuk wordt een weergave van het relevante beleid op rijks-, provinciaal-, regionaal en gemeentelijk niveau gegeven. Aangegeven wordt hoe het plan zich verhoudt tot de diverse beleidskaders.

3.2 Rijksbeleid

3.2.1 Structuurvisie Infrastructuur en Ruimte

Een actualisatie van het ruimtelijk- en mobiliteitsbeleid is nodig gebleken omdat de verschillende beleidsnota's op het gebied van ruimte en mobiliteit gedateerd zijn door nieuwe politieke accenten en veranderende omstandigheden zoals de economische crisis, klimaatverandering en toenemende regionale verschillen onder andere omdat groei, stagnatie en krimp gelijktijdig plaatsvinden. Op 13 maart 2012 is de 'Structuurvisie Infrastructuur en Ruimte (SVIR)' vastgesteld. Deze structuurvisie geeft een nieuw, integraal kader voor het ruimtelijk- en mobiliteitsbeleid op rijksniveau.

De visie is vernieuwend in die zin dat ruimtelijke ontwikkelingen en infrastructuur sterker dan voorheen met elkaar verbonden worden. De structuurvisie vervangt daarvoor de 'Nota Ruimte', de 'Structuurvisie Randstad 2040', de 'Nota Mobiliteit', de 'MobiliteitsAanpak', de 'Structuurvisie voor de Snelwegomgeving' en de ruimtelijke doelen en uitspraken in de PKB 'Tweede structuurschema Militaire terreinen' , de 'Agenda Landschap', de 'Agenda Vitaal Platteland' en 'Pieken in de Delta'. De 'Structuurvisie Nationaal Waterplan' blijft in zijn huidige vorm als uitwerking van de SVIR bestaan.

In de structuurvisie schetst het rijk de ambities voor concurrentiekracht, bereikbaarheid, leefbaarheid en veiligheid tot 2040 (lange termijn) en doelen, belangen en opgaven tot 2028 (middellange termijn).

De centrale visie wordt uiteengezet in drie hoofddoelstellingen voor de middellange termijn (2028), namelijk “concurrerend, bereikbaar en leefbaar & veilig”. Voor de drie rijksdoelen zijn de onderwerpen van nationaal belang benoemd waarmee het Rijk aangeeft waarvoor het verantwoordelijk is en waarop het resultaten wil boeken. De drie hoofddoelstellingen en 13 nationale belangen zijn:

  • 1. Concurrerend = Het vergroten van de concurrentiekracht van Nederland door het versterken van de ruimtelijk-economisch structuur van Nederland. Hiervoor zijn de volgende nationale belangen benoemd:
  • Nationaal belang 1: een excellent en internationaal bereikbaar vestigingsklimaat in de stedelijke regio's met een concentratie van topsectoren;
  • Nationaal belang 2: Ruimte voor het hoofdnetwerk voor (duurzame) energievoorziening en de energietransitie;
  • Nationaal belang 3: Ruimte voor het hoofdnetwerk voor vervoer van (gevaarlijke) stoffen via buisleidingen;
  • Nationaal belang 4: Efficiënt gebruik van de ondergrond;
  • 2. Bereikbaar = Het verbeteren, instandhouden en ruimtelijk zekerstellen van de bereikbaarheid waarbij de gebruiker voorop staat. Hiervoor zijn de volgende nationale belangen benoemd:
  • Nationaal belang 5: Een robuust hoofdnetwerk van weg, spoor- en vaarwegen rondom en tussen de belangrijkste stedelijke regio's inclusief de achterlandverbindingen;
  • Nationaal belang 6: Betere benutting van de capaciteit van het bestaande mobiliteitssysteem van weg, spoor- en vaarweg;
  • Nationaal belang 7: Het instandhouden van de hoofdnetwerken van weg, spoor- en vaarwegen om het functioneren van de netwerken te waarborgen;
  • 3. Leefbaar & veilig = Het waarborgen van een leefbare en veilige omgeving waarin unieke natuurlijke en cultuurhistorische waarden behouden zijn:
  • Nationaal belang 8: Verbeteren van de milieukwaliteit (lucht, bodem, water) en bescherming tegen geluidsoverlast en externe veiligheidsrisico's;
  • Nationaal belang 9: Ruimte voor waterveiligheid, een duurzame zoetwatervoorziening en klimaatbestendige stedelijke (her) ontwikkeling;
  • Nationaal belang 10: Ruimte voor behoud en versterking van (inter)nationale unieke cultuurhistorische en natuurlijke kwaliteiten;
  • Nationaal belang 11: Ruimte voor een nationaal netwerk van natuur voor het overleven en ontwikkelen van flora- en faunasoorten;
  • Nationaal belang 12: Ruimte voor militaire terreinen en activiteiten;

De rijksverantwoordelijkheid voor het systeem van goede ruimtelijke ordening is zonder hoofddoelstelling, als afzonderlijk belang opgenomen:

  • Nationaal belang 13: Zorgvuldige afwegingen en transparante besluitvorming bij alle ruimtelijke plannen.

Naast de drie hoofddoelen wordt een zorgvuldig gebruik van de schaarse ruimte bevorderd. Hiervoor wordt een ladder voor duurzame verstedelijking geïntroduceerd. Dat betekent: eerst kijken of er vraag is naar een bepaalde nieuwe ontwikkeling, vervolgens kijken of het bestaande stedelijk gebied of bestaande bebouwing kan worden hergebruikt en mocht nieuwbouw echt nodig zijn, dan altijd zorgen voor een optimale inpassing en multimodale bereikbaarheid.

Conclusie

In de 'Structuurvisie Infrastructuur en Ruimte' zijn nationale belangen opgenomen die zorgen voor een gegarandeerde basiskwaliteit voor alle bewoners van Nederland. De Structuurvisie Infrastructuur en Ruimte is van beperkte betekenis voor onderhavig bestemmingsplan. Het bestemmingsplan is niet van nationaal belang en een verdere toetsing aan het nationaal beleid is niet nodig.

3.2.2 Besluit algemene regels ruimtelijke ordening (Barro)

Het kabinet heeft in de hiervoor genoemde SVIR vastgesteld dat voor een beperkt aantal onderwerpen de bevoegdheid om algemene regels te stellen zou moeten worden ingezet. Het gaat om de volgende nationale belangen: Rijksvaarwegen, Project Mainportontwikkeling Rotterdam, Kustfundament, Grote rivieren, Waddenzee en waddengebied, Defensie, Ecologische hoofdstructuur, Erfgoederen van uitzonderlijke universele waarde, Hoofdwegen en hoofdspoorwegen, Elektriciteitsvoorziening, Buisleidingen van nationaal belang voor vervoer van gevaarlijke stoffen, Primaire waterkeringen buiten het kustfundament en IJsselmeergebied (uitbreidingsruimte).

De SVIR bepaalt welke kaderstellende uitspraken zodanig zijn geformuleerd dat deze bedoeld zijn om beperkingen te stellen aan de ruimtelijke besluitvormingsmogelijkheden op lokaal niveau. Ten aanzien daarvan is een borging door middel van normstelling, gebaseerd op de Wro, gewenst. Die uitspraken onderscheiden zich in die zin dat van de provincies en de gemeenten wordt gevraagd om de inhoud daarvan te laten doorwerken in de ruimtelijke besluitvorming. Zij zijn dus concreet normstellend bedoeld en worden geacht direct of indirect, d.w.z. door tussenkomst van de provincie, door te werken tot op het niveau van de lokale besluitvorming, zoals de vaststelling van bestemmingsplannen.

Het 'Besluit algemene regels ruimtelijke ordening' (Barro) bevestigt in juridische zin die kaderstellende uitspraken. Op 30 december 2011 is het Besluit Algemene Regels Ruimtelijke Ordening in werking getreden. Slechts daar waar een directe doorwerking niet mogelijk is, bij de Ecologische Hoofdstructuur (de artikelen worden later aan het Barro toegevoegd) en bij de Erfgoederen van uitzonderlijke universele waarde, is gekozen voor indirecte doorwerking via provinciaal medebewind. Voor één onderwerp geregeld in dit besluit, voorziet het besluit niet in de (definitieve) begrenzing. Dit betreft de EHS. Ten aanzien van deze begrenzing is bepaald dat de provincies die grenzen (nader) bepalen.

Een deel van het Barro is gebaseerd is op eerdere pkb's en beleidsnota's die in de SVIR worden herbevestigd. Deze onderdelen kunnen na vaststelling van de structuurvisie de procedure volgen en vervolgens in werking treden.

Het betreft de volgende onderdelen:

  • Project Mainportontwikkeling Rotterdam;
  • Kustfundament;
  • Grote rivieren;
  • Waddenzee en waddengebied;
  • Defensie, en
  • Erfgoederen van uitzonderlijke universele waarde.

Door de nationale belangen vooraf in bestemmingsplannen te borgen, wordt met het Barro bijgedragen aan versnelling van de besluitvorming bij ruimtelijke ontwikkelingen en vermindering van de bestuurlijke drukte.

Conclusie

De planlocatie ligt binnen de bebouwde kom en is geen onderdeel van de EHS. Het Barro heeft geen directe doorwerking op deze ontwikkeling en belemmert deze verder niet.

3.2.3 Ladder voor duurzame verstedelijking

Besluit ruimtelijke ordening

Op 1 oktober is het 'Besluit van 28 augustus 2012, houdende wijziging van het Besluit algemene regels ruimtelijke ordening en van het Besluit ruimtelijke ordening (Bro) in verband met de toevoeging van enkele onderwerpen van nationaal ruimtelijk belang' (Stb. 2012, nr. 388) in werking getreden. Door dit wijzigingsbesluit is ook het Bro aangepast. In artikel 3.1.6 is het tweede lid toegevoegd. Dit lid heeft betrekking op de 'ladder voor duurzame verstedelijking'. Deze ladder stelt eisen aan de motivering van onder meer bestemmingsplannen en ruimtelijke onderbouwing die nieuwe stedelijke ontwikkelingen mogelijk maken. De wettelijke regeling gaat vergezeld van een handreiking die andere overheden ondersteunt bij de praktische toepassing van de juridische verplichting.

Artikel 1.1.1, lid 1 onder i Bro definieert een 'stedelijke ontwikkeling' als: ruimtelijke ontwikkeling van een bedrijventerrein of zeehaventerrein, of van kantoren, detailhandel, woningbouwlocaties of andere stedelijke voorzieningen'.

Artikel 3.1.6 tweede lid Bro:

De ruimtelijke onderbouwing bij een omgevingsvergunning of de toelichting bij een bestemmingsplan die/dat een 'nieuwe stedelijke ontwikkeling' mogelijk maakt, voldoet aan de volgende voorwaarden:

  • a. er wordt beschreven dat de voorgenomen stedelijke ontwikkeling voorziet in een actuele regionale behoefte;
  • b. indien uit de beschrijving, bedoeld in onderdeel a, blijkt dat sprake is van een actuele regionale behoefte, wordt beschreven in hoeverre in die behoefte binnen het bestaand stedelijk gebied van de betreffende regio kan worden voorzien door benutting van beschikbare gronden door herstructurering, transformatie of anderszins, en;
  • c. indien uit de beschrijving, bedoeld in onderdeel b, blijkt dat de stedelijke ontwikkeling niet binnen het bestaand stedelijk gebied van de betreffende regio kan plaatsvinden, wordt beschreven in hoeverre wordt voorzien in die behoefte op locaties die, gebruikmakend van verschillende middelen van vervoer, passend ontsloten zijn of als zodanig worden ontwikkeld.

Regionale Woonagenda

Op 17 februari heeft het college van burgemeester en wethouders van Renkum ingestemd met de regionale Woonagenda. Ook andere gemeenten in de stadsregio hebben hiermee ingestemd.

In de Woonagenda staat onder andere dat:

  • afstemming over woningbouwprogramma's binnen de stadregio in drie subregios plaats vindt;
  • bij de programma's gebruik wordt gemaakt van een 'stoplichtmodel'.

In de Woonagenda hebben de gemeenten van de stadsregio dus afgesproken dat zij de gemeentelijke woningbouwprogramma's onderling en met de provincie afstemmen op subregio-niveau met behulp van het 'stoplichtmodel'. Doel is om tot een meer flexibele vorm van planning te komen die ruimte biedt om in te spelen op bijvoorbeeld veranderingen in de markt, bijstellingen van prognoses en vrijkomen van potentiële woningbouwlocaties (transformatie). Voor de gemeente Renkum betekent dat afspraken maken in de subregio Arnhem en omgeving (bestaande uit de gemeenten Rheden, Rozendaal, Lingewaard, Overbetuwe, Arnhem en Renkum). Het 'stoplichtmodel' maakt onderscheid in plannen waar gemeenten en provincie het over eens zijn dat het goede plannen zijn (groen), plannen waar nog aan gesleuteld wordt of die op langere termijn spelen (oranje) en plannen die uit de markt genomen moeten worden (rood).

Ten behoeve van de Woonagenda heeft het bureau ABF-research een woningmarktverkenning uitgevoerd met behulp van het Socratesmodel. Het Socratesmodel modelleert de afstemming tussen de vraag en aanbod op de woningmarkt nauwkeurig, rekening houdend met de belangrijkste elementen van vraag en aanbod, zoals demografie, woonvoorkeuren, verhuisstromen, kwaliteit van de bestaande voorraad en nieuwbouw. De uitkomsten van deze woningmarktverkenning zijn ook gebruikt als basis voor de gemeentelijke Nota Wonen 2014. Doordat gemeenten, stadsregio (Arnhem-Nijmegen) en provincie uitgaan van dezelfde woningmarktverkenning is er een goede gezamenlijke basis voor afstemming van de gemeentelijke woningbouwprogramma's.

Alle gemeenten hebben hun woningbouwprogramma getoetst aan de uitkomsten van Socrates. Plannen die in lijn zijn met de behoefteraming van Socrates zijn op groen gezet. Daarnaast is er voor de gemeenten de mogelijkheid om vanwege andere argumenten plannen op de groene lijst te zetten (bijvoorbeeld financiële of ruimtelijke argumenten).

De stadsregio heeft de woningbehoefte en de woningbouwprogramma's (de groene plannen) van de gemeenten in de subregio Arnhem en omgeving met elkaar vergeleken. Het model Socrates voorspelt voor de subregio Arnhem en omgeving een toename van circa 8500 huishoudens in de periode 1.1.2014 tot 1.1.2020. De gemeenten hebben in totaal 6403 woningen in de planning. Het is vooral Arnhem waar de voorraad aan goede woningbouwplannen laag is. Bij de omliggende gemeenten, waaronder Renkum zijn prognoses en woningbouwprogramma goed in balans. Tot 2020 zijn voor Renkum 393 woningen opgenomen in de subregionale planning. De stadsregio trekt ook de conclusie (voor zover mogelijk in de huidige onzekere woningmarkt) dat het voorgestelde programma voor wat betreft woningbouwsegmenten, prijsklassen en woonmilieus past bij de Socrates prognose.

Na 2020 blijft het aantal huishoudens in de subregio naar verwachting groeien, maar het groeitempo neemt wel af. Ook in de periode 2020 tot 2030 blijft er dus ruimte om op beperkte schaal woningen toe te voegen.

Stoplichtmodel

Doel van het stoplichtmodel is dat de lijst van groene projecten de basis is voor toetsing van plannen door de provincie. De door gemeenten gezamenlijk voorgestelde lijst wordt door de provincie in één samenhangend proces getoetst aan de provinciale kwantitatieve en kwalitatieve richtlijnen en aan de ladder voor duurzame verstedelijking. De onderliggende eigen gemeentelijke lijsten worden vervolgens bestuurlijk vastgesteld door elke gemeente.

Basis voor het stoplichtmodel zijn de planningslijsten die jaarlijks bij de provincie worden ingediend. Deze lijsten worden nu ook al door elke gemeente bestuurlijk geaccordeerd. Het stoplichtmodel wordt gekoppeld aan deze lijst. Door jaarlijks subregionaal af te stemmen over de planningslijsten met behulp van het stoplichtmodel wordt de lijst jaarlijks geactualiseerd op basis van actuele analyses of prognoses. Het ligt voor de hand om af te spreken welke prognoses gezamenlijk gebruikt worden om discussie over de uitgangspunten te voorkomen.

Op 16 oktober 2014 hebben de wethouders 'wonen' van de subregiogemeenten afspraken gemaakt over de lijst met woningbouwplannen in het 'stoplichtmodel'. Op 2 december 2014 heeft college van burgemeester en wethouders van Renkum ingestemd met die afspraken (en dus met de lijst met woningbouwplannen in het stoplichtmodel).

Hieronder worden de drie gemaakte afspraken weergegeven met per afspraak een korte toelichting.

Afspraak 1:

Gemeenten stemmen in met het subregionale woningbouwprogramma. Instemming van gemeenten is onder voorbehoud van vaststelling van elke gemeentelijk deel van de lijst in het eigen college van B en W en toetsing van de provincie aan de ladder voor duurzame verstedelijking.

In het subregionale programma is het woningbouwprogramma van de gemeente Renkum onverkort opgenomen. In de lijsten van andere gemeenten staan geen projecten die nadelige invloed hebben voor Renkum. Met deze afspraak wijken we (de stadsregio en de betrokken gemeenten) van 50/50 beleid af en programmeren we conform de eigen behoefte van de subregio.

De lijst met projecten voldoet met deze afspraak aan de eerste trede van de ladder voor duurzame verstedelijking: elk plan moet voldoen aan de regionale woningbehoefte. In het stoplichtmodel is dit de lijst met 'groene' plannen.

Afspraak 2:

Gemeenten actualiseren jaarlijks hun woningbouwprogrammering in subregionaal verband op basis van het stoplichtmodel, gekoppeld aan het proces van de provinciale planningslijst. Basis voor de afstemming is de meest actuele PRIMOS prognose (is een landelijke prognose voor ontwikkeling van bevolking en huishoudens, die jaarlijks geactualiseerd wordt). Daarnaast kunnen gemeenten in onderling overleg andere analyses benutten. De gemeente Arnhem roept gemeenten in het eerste kwartaal van het jaar bijeen om elkaar te informeren over aanpassing van de woningbouwplannen en de afstemming daarover.

Strekking van deze afspraak is dat Arnhem en de omliggende gemeenten samen blijven afstemmen over hun woningbouwprogramma's, los van het wel of niet voortbestaan van de stadsregio. Het is een vrijwillige afspraak, niet verplicht op basis van wet- of regelgeving. Afstemmen in (sub)regionale verband is van belang voor onderbouwing van woningbouwplannen richting de provincie omdat de ladder voor duurzame verstedelijking aangeeft dat plannen moeten passen binnen de regionale woningbouwbehoefte.

Afspraak 3:

Gemeenten kunnen tussentijds plannen in procedure brengen die nog niet in het bijgevoegd woningbouwprogramma op groen staan. Indien het totaal van deze plannen de omvang van de groene plannen voor de betreffende gemeente met meer dan 10% overschrijdt stelt de gemeente de andere subregiogemeenten daarvan op de hoogte. Deze plannen worden separaat voorgelegd aan de provincie in het kader van de toetsing aan de ladder voor duurzame verstedelijking.

Deze afspraak maakt het makkelijker om tussentijds (niet tijdens de jaarlijkse actualisatie van de woningbouwlijsten) nieuwe plannen in ontwikkeling te nemen, zonder dat daarvoor subregionaal overleg noodzakelijk is.

Groene projecten in het stoplichtenmodel

Een groen project is een project dat een gemeente op korte termijn wil realiseren en dat draagvlak heeft bij de gemeenten in de subregio en de provincie. Dat kan gaan om een (planologisch) harde en zachte plannen. Het project moet aan de volgende voorwaarden voldoen:

  • Een project dat een programma heeft dat de gemeente graag wil realiseren, of waarvoor de gemeente de ruimte wil geven (zonder dat ze er grip op hebben).
  • Het programma is besproken met de gemeenten in de subregio en sluit aan op de subregionale behoefte, zowel kwantitatief als kwalitatief (segment en woonmilieu)
  • De locatie past binnen de ladder voor duurzame verstedelijking:
    • 1. omdat het bestemmingsplan is vastgesteld;
    • 2. of omdat de locatie besproken is met de provincie (en akkoord bevonden is).
  • Start bouw binnen een termijn van 5 jaar (op dit moment voor 01-01-2020) is realistisch.

Conclusie

Het voorliggende bestemmingsplan voorziet in de bouw van slechts 4 nieuwe woningen in de bebouwde kom van Renkum (bestaand bebouwd gebied). De Afdeling oordeelde dat zelfs bij de realisatie van 8 woningen nog geen sprake is van een nieuwe stedelijke ontwikkeling (uitspraak 201405237/R2). In het algemeen wordt 10 woningen als bovengrens aangehouden.

Daarnaast kan worden vermeld dat de gemeentelijke Nota Wonen aangeeft dat deze nota niet van toepassing is voor projecten die voorzien in de bouw van een beperkt aantal woningen. Dit geldt ook voor het 'stoplichtmodel'. Voor dergelijk kleine bouwplannen (inbreidingsplannen) geldt dat deze volgens het model passen in de regionale behoefte binnen bebouwd gebied. Daarmee voldoet het bouwplan, voor zover er al sprake zou zijn van een 'nieuwe stedelijke ontwikkeling' zoals bedoeld in artikel 3.1.6 van het Besluit ruimtelijke ordening, aan de 'ladder voor duurzame verstedelijking'. Het plan voldoet tevens aan het provinciale beleid (Gelderse ladder voor duurzame verstedelijking) en de gemeentelijke Nota Wonen.

3.3 Provinciaal beleid

3.3.1 Omgevingsvisie en Omgevingsverordening

Provinciale Staten hebben in hun vergaderingen van 9 juli 2014 en 24 september 2014 respectievelijk de Omgevingsvisie en Omgevingsverordening vastgesteld. Beiden zijn op 17 oktober 2014 in werking getreden. Beide documenten worden regelmatig aangepast en zijn in januari 2018 geconsolideerd. Met deze consolidatie zijn besluiten die sinds oktober 2014 zijn genomen verwerkt in de plannen. Deze consolidatie heeft voor het plangebied niet geleid tot wijzigingen. De Omgevingsvisie Gelderland vervangt enkele structuurvisies. De verordening wordt ingezet voor die onderwerpen waarvoor de provincie eraan hecht dat de doorwerking van het beleid van de Omgevingsvisie juridisch gewaarborgd is. Inmiddels wordt gewerkt aan de opvolger van de bestaande documenten.

De visie richt zich formeel op de komende tien jaar, maar wil ook een doorkijk bieden aan Gelderland op een langere termijn. Veel maatschappelijke vraagstukken zijn zo complex dat alleen een gezamenlijke inzet succesvol kan zijn. In de omgevingsvisie zijn de opgaven voor Gelderland daarom in nauwe samenwerking met partners uitgedacht. Daarbij kijken de provincie en partners vanuit een integraal en internationaal perspectief naar Gelderland. Met deze bestuurlijke strategie kunnen voor Gelderland toekomstbestendige keuzes gemaakt worden. De provincie heeft in de Omgevingsvisie twee doelen gedefinieerd. Het zijn doelen die de rol en kerntaken van de provincie als middenbestuur benadrukken.

  • 1. Een duurzame economische structuurversterking. Een gezonde economie met een aantrekkelijk vestigingsklimaat vraagt om sterke steden en een vitaal landelijk gebied met voldoende werkgelegenheid. Het streven is om de concurrentiekracht van Gelderland te vergroten door het duurzaam versterken van de ruimtelijk-economische structuur. De komende jaren zullen minder in het teken staan van denken in termen van 'groei' en meer in termen van 'beheer en ontwikkeling van het bestaande'.
  • 2. Het borgen van de kwaliteit en veiligheid van onze leefomgeving. Dit doel betekent vooral:
    • a. ontwikkelen met kwaliteit, recht doen aan de ruimtelijke, landschappelijke en cultuurhistorische kwaliteiten van de plek; uitgaan van doelen, niet van regels,
    • b. zorg dragen voor een compact en hoogwaardig stelsel van onderling verbonden natuurgebieden en behoud en versterking van de kwaliteit van het landschap,
    • c. een robuust en toekomstbestendig water- en bodemsysteem voor alle gebruiksfuncties; bij droogte, hitte en waterovervloed,
    • d. een gezonde en veilige leefomgeving.

Om deze doelen in beleid te vertalen, hanteert de provincie drie aandachtsgebieden: Dynamisch, Mooi en Divers Gelderland. Ontwikkelingen in Gelderland wil de provincie benaderen vanuit elk van deze drie perspectieven, die elkaar aanvullen:

  • 1. Dynamisch: de (ruimtelijk-economische) ontwikkelingen en de geleiding daarvan op provinciaal niveau.
  • 2. Mooi: de Gelderse kwaliteiten die bescherming nodig hebben en ruimte voor behoud door ontwikkeling.
  • 3. Divers: het herkennen van de regionale verschillen in maatschappelijke vraagstukken en opgaven en het koesteren van de regionale identiteiten.

De provincie beschikt over verschillende instrumenten waarmee zij haar ambities realiseert. De verordening wordt ingezet voor die onderwerpen waarvoor de provincie eraan hecht dat de doorwerking van het beleid van de Omgevingsvisie juridisch gewaarborgd is.

De verordening voorziet ten opzichte van de Omgevingsvisie niet in nieuw beleid en is daarmee dus beleidsneutraal. De inzet van de verordening als juridisch instrument om de doorwerking van het provinciaal beleid af te dwingen is beperkt tot die onderdelen van het beleid waarvoor de inzet van algemene regels noodzakelijk is om provinciale belangen veilig te stellen of om uitvoering te geven aan wettelijke verplichtingen.

De Omgevingsverordening richt zich net zo breed als de Omgevingsvisie op de fysieke leefomgeving in de Provincie Gelderland. Dit betekent dat vrijwel alle regels die betrekking hebben op de fysieke leefomgeving opgenomen zijn in de Omgevingsverordening. Het gaat hierbij om regels op het gebied van ruimtelijke ordening, milieu, water, mobiliteit en bodem. De verwachting is dat de Omgevingsverordening op termijn alle regels zal gaan bevatten die betrekking hebben op de fysieke leefomgeving.

Gelderse Ladder voor duurzame verstedelijking

Het accent van stedelijke ontwikkelingen verschuift van nieuwbouw naar het vitaliseren van bestaande gebieden en gebouwen. Voor een goede afweging van keuzes voor locaties van nieuwe gebouwen staat de Gelderse ladder voor duurzaam ruimtegebruik centraal. Met deze ladder wordt een transparante besluitvorming en een zorgvuldige ruimtelijke afweging nagestreefd. Het gaat om het tijdig afwegen van kansen en mogelijkheden om bestaande gebouwen te benutten bij overwegingen van nieuwe bebouwing. Een goede afweging volgens de ladder vraagt om kennis van de bestaande voorraad. Gekoppeld daaraan zijn er vragen over de opgaven en kwaliteiten in een gebied:

  • Past de ontwikkeling bij de doelen in Gelderland? Zo ja:
  • Hoe voegt de ontwikkeling extra kwaliteit toe aan een gebied?

Als juridische basis gebruikt de provincie de Ladder voor duurzame verstedelijking die het Rijk heeft vastgelegd in het Besluit ruimtelijke ordening (Bro). In elk bestemmingsplan dat voorziet in een nieuwe stedelijke ontwikkeling dienen gemeenten volgens de Rijksladder aan de hand van drie stappen de locatiekeuze te motiveren. Deze Rijksladder is van provinciaal belang. Aangezien de juridische borging van de ladder al geregeld is in het Bro, heeft de provincie de ladder niet nogmaals opgenomen in de provinciale omgevingsverordening.

Conclusie

Een van de doelstellingen uit de Omgevingsvisie betreft het borgen van de kwaliteit en veiligheid van onze leefomgeving. Daarbij wordt gericht op het ontwikkelen met kwaliteit, waarbij recht wordt gedaan aan de ruimtelijke en landschappelijke kwaliteiten van een plek. Met de ontwikkeling van de 4 woningen, het wijzigen van de bestemming 'Bedrijf" naar 'Gemengd - 5', wordt aan de Europalaan 98 de kwaliteit van de leefomgeving verbeterd. Een opslagterrein van oude bouwmaterialen wordt vervangen door een aantal zorgvuldig ingepaste woningen die aansluiten op de woningbouw in de Bergerhoef. Het initiatief pas daarmee binnen het provinciaal beleid.

Het plan is in paragraaf 3.2.3 reeds getoetst aan de ladder van duurzame verstedelijking. Daaruit blijkt dat deze hier feitelijk niet van toepassing is.

3.3.2 Kwalitatief Woonprogramma 2010-2019 (KWP3)

Gedeputeerde Staten van Gelderland heeft op 12 januari 2010 het nieuwe 'Kwalitatief Woonprogramma 2010-2019' (KWP3) vastgesteld. De provincie, de woningcorporaties, de gemeenten en de regio's in Gelderland hebben met elkaar afspraken gemaakt over de woningvoorraad voor de komende tien jaar. De partijen willen ervoor zorgen dat het woningaanbod in iedere regio van Gelderland ook in de toekomst goed aansluit bij de behoefte van de inwoners. In het programma zijn de afspraken vastgelegd. Deze afspraken zijn tot stand gekomen door een goede en intensieve samenwerking met de regio's, de gemeenten en de woningcorporaties.

Om het woningaanbod zo goed mogelijk af te stemmen op de vraag is in het KWP3 rekening gehouden met de ontwikkelingen in de bevolkingsopbouw en in de woningmarkt. In de praktijk betekent dit dat voornamelijk goedkopere woningen moeten worden gebouwd, bij voorkeur op binnenstedelijke locaties. Bouwen op grote nieuwbouwlocaties buiten de stad of het dorp (zoals Vinexlocaties) is steeds minder nodig. In het Kwalitatief Woonprogramma gaat het nadrukkelijk niet alleen om de aantallen te bouwen woningen. Er is bij de inwoners een grote behoefte aan goedkopere woningen. Daarom zijn ook afspraken gemaakt over de aantallen betaalbare woningen. Er wordt bovendien rekening gehouden met een steeds groter wordende groep ouderen die het liefst zelfstandig wil blijven wonen. Verder zijn afspraken over de verhouding koop-huur. Voor het eerst zijn in het KWP3 afspraken gemaakt over de aantallen te bouwen woningen voor de komende drie jaar.

Dit heeft te maken met de grote problemen waar de bouw op dit moment mee kampt. De provincie biedt de gemeenten ondersteuning in het maken van die keuzes, om met het oog op morgen te kunnen blijven bouwen. In deze tijd van recessie moeten gemeenten immers keuzes maken en prioriteiten stellen. Het is een onmogelijke opgave om alle bouwplannen uit te kunnen voeren.

De gemeente Renkum valt onder de regio Arnhem-Nijmegen. Woningbouwplannen dienen zich te conformeren aan het opgestelde afsprakenkader. De provincie, de gemeenten en de woningcorporaties hebben de afspraak gemaakt dat in de periode 2010 - 2019 in de regio 36.600 woningen netto worden toegevoegd.

In de op 17 oktober 2014 in werking getreden Omgevingsverordening is in artikel 2.1.1 sub 17 en artikel 2.2.1.1 verwezen naar het Kwalitatief Woonprogramma. Daarmee heeft het Kwalitatief Woonprogramma zijn werking behouden. De eerder genoemde 'Regionale Woonagenda' en het 'stoplichtmodel' zijn uitwerkingen / opvolgers van het KWP3 (zie paragraaf 3.2.3).

Kwantitatieve opgave wonen

Inmiddels hebben Gedeputeerde Staten op 9 juni 2015 de kwantitatieve opgave wonen voor de Stadsregio vastgesteld. Hiermee is het KWP3 komen te vervallen. In de kwantitatieve opgave voor de Stadsregio zijn woningen die opgenomen zijn als een zogeheten 'groen' plan' subregionaal afgestemd en deze voorzien in een woningbehoefte. Het plan is hiermee in overeenstemming met de omgevingsverordening en de daaraan gekoppelde kwantitatieve opgave.

Conclusie

Het initiatief draagt niet bij aan de gewenste verhouding huur-koop of aan de hoeveelheid woningen in het betaalbare segment. Er is er sprake van het toevoegen van 4 woningen in het hogere segment aan de voorraad. Het initiatief is gezien de voorziene woningbehoefte in de regio en de beperkte plancapaciteit in de gemeente Renkum een gewenste ontwikkeling die past binnen de programmering uit de KWP3 en daarmee met de kwantitatieve opgave wonen. Zie ook hetgeen bij paragraaf 3.2.3 is vermeld.

3.4 Gemeentelijk beleid

3.4.1 Nota Wonen 2014

In de 'Nota Wonen 2014' verwoordt de gemeente Renkum haar doelen en ambities op gebied van wonen. De 'Nota Wonen 2014' is een actualisatie van de 'Woonvisie 2010-2014'. Voordat het beleid is opgesteld is er een analyse van de woningmarkt in de gemeente Renkum uitgevoerd. Daarvoor zijn verschillende onderzoeken gebruikt, zoals 'WoOn 2012', 'evaluatie Woonvisie 2010-2014' en de 'Ruimtelijke Visie Renkum (ver)bindt 2025 '.

Voor de hoofdlijnen van de 'Nota Wonen 2014' zijn de vijf politieke pijlers uit de vorige Woonvisie aangehouden. De volgende thema’s zijn uitgewerkt:

  • kwaliteitsscenario en herstructurering bestaande woonvoorraad;
  • evenwichtige bevolkingsopbouw;
  • duurzaam en levensloopgeschikt;
  • wonen met zorg;
  • regie van de gemeente.

Thema 1: Kwaliteitsscenario en herstructurering bestaande voorraad

Tot 2019 neemt het aantal huishoudens nog licht toe en daarna daalt het aantal licht. De gemeente wil op deze ontwikkeling zo goed mogelijk inspelen. In de Nota Wonen 2014 wordt voornamelijk de aandacht gericht op de woonkwaliteit in de dorpen, wat ook ten goede moet komen aan de vitaliteit in de dorpen. Vanuit deze visie wil de gemeente inzetten op:

  • herstructurering bestaande woningvoorraad;
  • behoud van voldoende sociale huurwoningen;
  • woningaanpassingen ten behoeve van senioren, chronisch zieken en mensen met een beperking;
  • aandacht voor de kwaliteit van de woon- en leefomgeving.

Thema 2: Evenwichtige bevolkingsopbouw

Voor vitaliteit in de dorpen vindt de gemeente de aanwezigheid van verschillende leeftijdsgroepen en generaties in de dorpen van belang. Sturing op een evenwichtige bevolkingssamenstelling is slechts beperkt mogelijk. De gemeente wil echter de mogelijkheden die zij heeft volop benutten. Hierbij werkt ze de volgende beleidsambities uit:

  • prioriteit voor het verbreden van het aanbod voor (jonge) huishoudens en huishoudens met middeninkomen;
  • zorgvuldig benutten nieuwbouwmogelijkheden;
  • erken de samenhang tussen steden en ommeland (kans).

Thema 3: Duurzaam en levensloopgeschikt

De gemeente hecht veel waarde aan een duurzame ontwikkeling van de gebouwde omgeving en een goede toekomstkwaliteit van het woningaanbod. Woningen moeten enerzijds passend zijn voor hun eigen levensloop (duurzaam), anderzijds geschikt zijn voor veranderingen in de levensloop van mensen (aanpasbaar). Bij deze toekomstkwaliteit besteedt de gemeente aan drie aspecten in het bijzonder aandacht:

  • duurzaam bouwen en duurzame gebiedsontwikkeling;
  • aanpasbaar en levensloopgeschikt woningaanbod;
  • stimuleren duurzaamheid en toekomstkwaliteit in bestaande bouw en bij nieuwbouw.

Thema 4: Wonen met zorg

De gemeente wil mensen met een zorgvraag mogelijkheden bieden om zo lang mogelijk in de eigen sociale omgeving te blijven wonen. Ook de kabinetsplannen dragen hieraan bij en zorgen ervoor dat mensen langer thuis moeten blijven wonen. Deze mensen zullen steeds vaker een beroep op de gemeente doen. De gemeente wil voor wonen en zorg de volgende stappen zetten:

  • uitwerken flexibel woningaanbod binnen de zorgsector;
  • herijking van de rol en positie van woonzorgcentra binnen het gebiedsgegericht werken;
  • wonen en zorg: versterken van burgerkracht bij wonen.

Thema 5: Regie van de gemeente

De sturingsmogelijkheden van de gemeente zijn beperkt. Samenwerking vormt daarom de spil van de uitvoering van de Nota Wonen 2014. De gemeente gaat actief de samenwerking aan met woonpartners en inwoners. Op een aantal gebieden neemt de gemeente heel bewust de regierol. Zoals bij de opgave voor het zorgvastgoed. De gemeente heeft ook een stimulerende rol op het gebied van wonen. Deze rol zal in de toekomst toenemen en heeft bijvoorbeeld te maken met het uitlokken van kansrijke initiatieven en het aftasten van mogelijkheden om meer beweging in de woningmarkt te krijgen.

Het uitgangspunt van de gemeente Renkum is dat woningbouwprojecten passen binnen de 'Nota Wonen 2014'. Er zijn geen grote nieuwbouwlocaties. Datgene dat nieuw wordt gebouwd moet binnen de bestaande contouren van de bebouwing passen.

Conclusie

In paragraaf 3.2.3 is reeds getoetst aan de 'ladder voor duurzame verstedelijking'. Daarin is aangegeven dat het plan past binnen de ladder, zie de afspraken in de regionale Woonagenda, en de 'Nota Wonen'. In het subregionale programma van de regionale Woonagenda is namelijk het woningbouwprogramma van de gemeente Renkum (zoals grotendeels genoemd in de Nota Wonen') onverkort opgenomen. Met de ontwikkeling van de Europalaan worden 4 woningen gebouwd door een lokale initiatiefnemer met aandacht voor de kwaliteit van de woon- en leefomgeving en wordt de bestaande bedrijfswoning omgezet in een woning. De nieuwe woningen worden duurzaam en levensloopbestendig. Deze schaarse nieuwbouwmogelijkheid binnen de gemeente wordt zorgvuldig benut. Het plan voor de bouw van 4 woningen voldoet, samen met de omzetting van de bedrijfswoning in een gewone woning, daarmee aan de Nota Wonen.

3.4.2 Ruimtelijke Visie 2025

Op 22 september 2011 heeft het College van Burgemeester en wethouders de 'Ruimtelijke Visie Renkum (ver)bindt 2025' vastgesteld. De visie geeft inzicht in de ontwikkelingen op het gehele grondgebied van de gemeente (fysiek-ruimtelijk) in de komende 15 jaar. Ten behoeve van onderhavig plangebied zijn in de visie geen concrete ontwikkelingen aangegeven. Wel geldt een aantal algemene aspecten zoals het verhogen van de kwaliteit van dorpsentrees en toegangswegen, het vergroten van de toegankelijkheid van het bosgebied en het streven naar een sterkere visuele relatie met het buitengebied.


Conclusie

De Ruimtelijke Visie 2025 spreekt zich niet uit over kleinschalige initiatieven, zoals de ontwikkeling binnen de bebouwde kom van vier woningen aan de Europalaan en de overige wijzigingen Voor dergelijke intiatieven wordt een zelfstandige afweging gemaakt. Met de ontwikkeling van de woningen aan de Europalaan, het omzetten van een bedrijfswoning in een woning en toekennen van de bestemmings 'Gemengd-5' aan een aantal bedrijfspanden wordt de ruimtelijke kwaliteit van de locatie versterkt. De ontwikkeling ondersteunt daarmee de in de Ruimtelijke Visie 2015 geformuleerde, op ruimtelijke kwaliteitsverbetering gerichte, algemene aspecten. De ontwikkeling past binnen de kader van de Ruimtelijke Visie 2025.

Hoofdstuk 4 Uitvoerbaarheid

4.1 Inleiding

In het kader van het bestemmingsplan dient de uitvoerbaarheid van het plan te worden aangetoond ten aanzien van verschillende sectorale aspecten, zoals bodem, lucht, geluid, water en archeologie en cultuurhistorie.

4.2 Bodem

In het kader van het wijzigen van een bestemmingsplan dient aangetoond te worden dat de kwaliteit van de bodem en het grondwater in het plangebied in overeenstemming zijn met het beoogde gebruik. Dit is geregeld in de Wet Bodembescherming. De bodemkwaliteit kan van invloed zijn op de beoogde functie van het plangebied. Indien er sprake is van een functiewijziging zal er in veel gevallen een bodemonderzoek moeten worden uitgevoerd op de planlocatie. Met dit onderzoek kan in beeld worden gebracht of de bodemkwaliteit en de beoogde functie van het plangebied bij elkaar passen.

In augustus 1990 is een indicatief bodemonderzoek uitgevoerd (rapport W20022; Haije milieutechniek, Bijlage). Ter plaatse is een negental boringen uitgevoerd. Het gehele terrein was verhard met asfalt. Daaronder bevond zich zand met een lichte puinbijmenging tot circa 50 cm diep. Van het opgeboorde resultaat is één grondmengmonster samengesteld en geanalyseerd. Uit de analyseresultaten is gebleken dat de zware metalen verhoogd zijn aangetoond. Dit werd toegeschreven aan de bodemopbouw ter plaatse. Het grondwater is destijds niet onderzocht.

De resultaten uit 1990 zijn verouderd en niet meer bruikbaar. In oktober 2014 is een verkennend bodemonderzoek en een verkennend onderzoek asbest is bodem uitgevoerd.

De resultaten zijn vastgelegd in rapport met nr. 14045483 d.d. 18 december opgesteld door Econsultancy uit Doetinchem.


Resultaten verkennend bodemonderzoek

De bodem bestaat voornamelijk uit zwak siltig, zeer fijn tot matig fijn zand. De bovengrond is bovendien matig humeus en zwak tot matig grind- en keienhoudend. De ondergrond is plaatselijk zwak gleyhoudend. De bovengrond is zeer plaatselijk matig puinhoudend en zwak baksteenhoudend. Er zijn verder zintuigelijk geen verontreinigingen waargenomen. Het grondwater zit meer dan 5,0 meter onder maaiveld. Er heeft, conform de NEN 5740, geen grondwateronderzoek plaatsgevonden.

In de ondergrond is plaatselijk een sterke minerale olieverontreiniging aangetroffen. De oorzaak van deze vervuiling is onbekend. Er is geen direct aanwijsbare bron aanwezig op de locatie of in de directe omgeving. Het is waarschijnlijk, gelet op de diepte waarop de verontreiniging is aangetroffen, dat de verontreiniging is ontstaan voordat de asfaltverharding is aangebracht (in ieder geval voor 1990). Deze verontreiniging vergt een verdere analyse voordat op het terrein daadwerkelijk gebouwd kan worden.

Resultaten onderzoek asbest in bodem NEN 5707

Er zijn alleen op bij tweetal gaten een zeer beperkt aanwezigheid van puin. Asbestverdachte materialen zijn zintuigelijk niet aangetroffen. Er heeft daarom geen vervolgonderzoek plaatsgevonden. Er zijn geen grondmonsters geanalyseerd op asbest.

De onderzoeken zijn verricht ten behoeve van de bouw van één woning, zoals vastgelegd in het vigerende bestemmingsplan. De onderzoeken zijn nog niet verouderd en er hebben zich bovendien geen wijziging voorgedaan in de bestaande situatie. De onderzoeken gelden daarmee ook voor de bouw van de beoogde vier woningen.


Conclusie

De onderzoekslocatie is vooraf als verdacht beschouwd en de onderzoeksresultaten hebben deze veronderstelling bevestigd. Alvorens met de bouw van de woningen kan worden begonnen is het nodig om in het kader van de aanvraag omgevingsvergunning bouw nog een nader onderzoek in te stellen naar de aard en omvang van de geconstateerde verontreiniging met minerale olie. Ten aanzien van asbest behoeven er geen speciale maatregelen te worden getroffen.

4.3 Lucht

Op 15 november 2007 is de 'Wet tot wijziging van de Wet milieubeheer (luchtkwaliteitseisen)' in werking getreden. Vanaf dat moment zijn in de 'Wet milieubeheer' luchtkwaliteitseisen opgenomen voor diverse verontreinigende stoffen, waaronder stikstofdioxide (NO2) en fijn stof (PM10). Hierin zijn het 'Besluit niet in betekenende mate bijdragen (luchtkwaliteitseisen)' en de 'Regeling niet in betekenende mate bijdragen (luchtkwaliteitseisen)' opgenomen. Voor projecten die niet in betekenende mate bijdragen aan de luchtverontreiniging hoeft niet langer te worden getoetst aan de grenswaarden. In de 'Regeling niet in betekenende mate bijdragen (luchtkwaliteitseisen)' zijn categorieën van gevallen benoemd die in ieder geval als 'niet in betekenende mate' worden aangemerkt en waarvoor toetsing aan de grenswaarden dus zonder meer achterwege kan blijven. Er is blijkens deze regeling geen onderzoek nodig voor 'woningbouwlocaties, indien een dergelijke locatie, in geval van één ontsluitingsweg, netto niet meer dan 1.500 nieuwe woningen omvat, dan wel, in geval van twee ontsluitingswegen met een gelijkmatige verkeersverdeling, netto niet meer dan 3.000 woningen omvat'.

Conclusie

De realisatie van 4 woningen en het omzetten van een bedrijfwoning in een gewone woning draagt niet in betekende mate bij aan de verslechtering van de luchtkwaliteit. Het uitvoeren van een toets is niet noodzakelijk.

4.4 Geluid

De mate waarin het geluid, veroorzaakt door het wegverkeer en/of door inrichtingen, het woonmilieu mag belasten, is geregeld in de Wet geluidhinder. In de Wgh (artikel 1) worden de volgende objecten beschermd tegen geluidhinder uit de omgeving:

  • Woningen,
  • Geluidsgevoelige terreinen,
  • Andere geluidsgevoelige gebouwen, waaronder bijvoorbeeld onderwijsgebouwen, ziekenhuizen, enz.

In het Activiteitenbesluit bij de Wgh zijn voorschriften opgenomen die bescherming bieden tegen geluidhinder van inrichtingen die onder het Besluit vallen. Deze bescherming wordt geboden aan gevoelige objecten.


Het beschermen van deze geluidsgevoelige objecten gebeurt aan de hand van vastgestelde zonering. De belangrijkste geluidsbronnen die in de Wet geluidhinder worden geregeld zijn: industrielawaai, wegverkeerslawaai en spoorweglawaai. De wet stelt dat in principe de geluidsbelasting op de gevel van woningen niet hoger mag zijn dan de voorkeursgrenswaarde (48dB), dan wel een nader bepaalde waarde (hogere grenswaarde).

De nieuw te bouwen woningen liggen langs twee als 30 km-weg bestemde wegen (Europalaan en Bergerhof). Voor dergelijke wegen is op grond van de Wet geluidhinder geen onderzoek noodzakelijk. Op basis van verkeersgegevens van die wegen blijkt dat het aantal verkeersbewegingen zodanig is dat de geluidsbelasting op de gevels van de woningen de voorkeursgrenswaarde niet zal overstijgen.

Conclusie (zie ook 4.5 Milieuzonering voor bedrijfsvestiging)

De geprojecteerde, nieuwe woningen zijn geluidgevoelig, maar liggen niet binnen een contour van een weg. De Wet Geluidhinder geeft vanuit verkeer voor het initiatief geen beperkingen. Het uitvoeren van een geluidsonderzoek is hiervoor niet noodzakelijk. De voorkeursgrenswaarde (48 dB) op de gevels van de woningen zal door de geluidsoverlast vanuit het verkeer niet worden overschreden.

Nader onderzoek naar geluidssituatie is niet noodzakelijke. Het treffen van voorzieningen is niet nodig.

4.5 Milieuzonering

Het aspect bedrijven en milieuzonering gaat in op de invloed die bedrijven kunnen hebben op hun omgeving. Deze invloed is afhankelijk van de afstand tussen een gevoelige bestemming en de bedrijvigheid. Milieugevoelige bestemmingen zijn gebouwen of terreinen die naar hun aard bestemd zijn voor het verblijf van personen gedurende de dag of nacht of een gedeelte daarvan (bijvoorbeeld woningen). Daarnaast kunnen ook landelijke gebieden en/of andere landschappen belangrijk zijn bij een zonering tot andere, minder gevoelige, functies - zoals bedrijven.

Bij een ruimtelijk ontwikkeling kan sprake zijn van al aanwezige bedrijvigheid en van nieuwe bedrijvigheid. Milieuzonering zorgt er voor dat nieuwe bedrijven een juiste plek in de nabijheid van de gevoelige functie krijgen en dat de nieuwe gevoelige functie op een verantwoorde afstand van bedrijven komt te staan. Doel hiervan is het waarborgen van de veiligheid en het garanderen van de continuïteit van de bedrijven als ook een goed klimaat voor de gevoelige functie.

Milieuzonering beperkt zich tot milieuaspecten met een ruimtelijke dimensie zoals: geluid, geur, gevaar en stof. De mate waarin de milieuaspecten gelden en waaraan de milieucontour wordt vastgesteld, is voor elk type bedrijvigheid verschillend. De 'Vereniging van Nederlandse Gemeenten (VNG)' geeft sinds 1986 de publicatie 'Bedrijven en Milieuzonering' uit. In deze publicatie is een lijst opgenomen, met daarin de minimale richtafstanden tussen een gevoelige bestemming en bedrijven. Indien van deze richtafstanden afgeweken wordt dient een nadere motivatie waarom dat wordt gedaan.

Het belang van milieuzonering wordt steeds groter aangezien functiemenging steeds vaker voorkomt. Hierbij is het motto: 'scheiden waar het moet, mengen waar het kan'. Het scheiden van milieubelastende en milieugevoelige bestemmingen dient twee doelen:

  • Het reeds in het ruimtelijk spoor voorkomen of zoveel mogelijk beperken van hinder en gevaar bij gevoelige bestemmingen.
  • Het bieden van voldoende zekerheid aan de milieubelastende activiteiten (bijvoorbeeld bedrijven) zodat zij de activiteiten duurzaam, en binnen aanvaardbare voorwaarden, kunnen uitoefenen.


In de omgeving bevindt zich een kleinschalig bedrijf met een hindercontour. Het betreft de kleinschalige houthandel aan de Bergerhof 2. De afstand van de achtergevel van de nieuwe woning tot aan de bestemmingsgrens van de houthandel is 4 meter. De afstand van de nieuwe woningen tot het bedrijfsgebouw waar de activiteiten plaatsvinden bedraagt meer dan 31 meter.

De bedrijfsactiviteiten van de houthandel vallen normaliter onder / is te vergelijken met de categorie 'groothandel in hout en bouwmaterialen, met een bedrijfsoppervlak kleiner dan 2000 m²' (SBI code 5153). Hierbij geldt volgens de VNG-richtlijn de indicatieve afstand tot een rustige woonwijk van 30 meter. Voor het projectgebied kan, rekening houdend met het woningbouwproject 'Bergerhof' ten noorden van de planlocatie vooralsnog worden uitgegaan van de gebiedstypering als 'gebied met functiemenging'. Dit betekent dat gemotiveerd kan worden afgeweken van de indicatieve VNG-richtafstanden en voor andere afstanden tussen woningen en bedrijven kan worden gekozen. Dit houdt in dat de indicatieve hinderafstand van 30 meter met één stap kan worden en is teruggebracht naar 10 meter. De hindergevende activiteiten vinden alleen plaats in een schuur in het zuidoosten van het perceel. Op ruime afstand van de perceelsgrens.


Duidelijk is dat op een kleinere afstand dan van de nieuwe woningen al woningen aanwezig zijn. Het betreffen de oudere woningen (Kloosterkampweg) op een afstand vanaf 22 meter. De afstand van de achtergevel van de woning aan de Kloosterkampweg 21 tot aan het bedrijfsgebouw bedraag 22 meter. Het bedrijf moet als gevolg van artikel 2.17 van het Activiteitenbesluit voldoen aan de daarin gestelde geluidgrenswaarden op de gevels van de beschermde objecten. Omdat de omliggende woningen bestaand zijn kan worden gesteld, behoudens eventuele klachten, dat wordt voldaan aan de eerder genoemde geluidgrenswaarden. Als de afstand groter wordt (zoals bij de nieuwe woningen) zal dit altijd gunstiger zijn. Er blijkt bovendien dat er tussen de werkplaats en de nieuwe woning afscherming aan gebouwen is gerealiseerd. Dit heeft eveneens een gunstig effect.

Over het milieuzonering is eerder voor de realisatie van de enkele woning in het vigerende bestemmingsplan advies gevraagd aan de omgevingsdienst Regio Arnhem (ODRA). De ODRA onderschrijft in haar memo van 05-02-2015 (zaaknummer 150108703) de gevolgde redenering en daarmee de eerder geformuleerde conclusie, dat de beoogde woning aan de Europalaan is aan te merken als milieugevoelig. De afstand tussen het bedrijf aan de Bergerhof 2 en de nieuw te bouwen woning wordt echter groter dan de afstand van dit bedrijf tot bestaande woningen. De (bestaande) woningen dienen al te voldoen aan de maximale geluidswaarde vanuit het Activiteitenbesluit milieubeheer. Dit is een vereiste voor de inrichtingshouder van het bedrijf. Woningen, zoals de toekomstige woningen, die verder van het bedrijf afstaat dan de bestaande woningen zal dan ook automatisch voldoen. Er bestaan dan ook vanuit het oogpunt van milieuzonering geen belemmering voor de ontwikkeling van de woningen. De woningen ondervinden geen extra hinder en er zijn geen bedrijven in de omgeving die beperkingen ondervinden van de ontwikkeling van de woningen. Deze redenering kan ook worden gevolgd voor de toekomstige 4 woningen.


Conclusie

De toekomstige 4 woningen aan de Bergerhof en aan de Europalaan zijn aan te merken als milieugevoelig. De afstand tussen het bedrijf aan de Bergerhof 2 en de nieuw te bouwen woningen wordt echter groter dan de afstand van dit bedrijf tot bestaande woningen aan de Kloosterkampweg. De (bestaande) woningen dienen al te voldoen aan de maximale geluidswaarde vanuit het Activiteitenbesluit milieubeheer. Dit is een vereiste voor de inrichtingshouder van het bedrijf. Woningen, zoals de toekomstige 4 woningen, die verder van het bedrijf afstaan dan de bestaande woningen zullen dan ook automatisch voldoen. Er bestaan dan ook vanuit het oogpunt van milieuzonering geen belemmering voor de ontwikkeling van de woningen. De woningen ondervinden geen extra hinder en er zijn geen bedrijven in de omgeving die beperkingen ondervinden van de ontwikkeling van de woningen.

4.6 Externe veiligheid

Externe veiligheid gaat over de beheersing van activiteiten van gevaarlijke stoffen. Die activiteiten kunnen bestaan uit het opslaan verwerken of transporteren van gevaarlijke stoffen. Deze activiteiten kunnen een risico veroorzaken voor de leefomgeving. De risico's worden uitgedrukt in twee risicomaten; het plaatsgebonden (PR) en het groepsrisico (GR).

Voor de beoordeling van een ruimtelijk plan moet voor de externe veiligheid worden vastgesteld of dit plan is gelegen binnen het invloedsgebied van een inrichting die valt onder het Besluit externe veiligheid inrichtingen (Bevi). Daarnaast wordt gekeken of het plan ligt binnen het invloedsgebied van de transportroute (weg, spoor, water of buisleiding) waarover gevaarlijke stoffen (o.a. LPG en benzine) worden vervoerd. Via de website risicokaart.nl kan voor de locatie worden vastgesteld of er in de directe omgeving inrichtingen, buisleidingen en/of belangrijke transportroutes aanwezig zijn die in het kader van de externe veiligheid van belang zijn. Op de risicokaart staan voor de locatie geen relevante risico's aangegeven.


Conclusie

De ontwikkeling wordt als hindergevoelige bestemming gekwalificeerd, maar er zijn vanuit het aspect externe veiligheid geen belemmeringen voor de uitvoering van het initiatief.

4.7 Water

In het kader van het 'Nationaal Bestuursakkoord Water' moet bij ruimtelijke ontwikkelingen worden aangetoond, middels een hydrologisch onderzoek, dat de waterhuishouding niet negatief wordt beïnvloed door de beoogde ruimtelijke ontwikkeling. Dit is vastgelegd in het procesinstrument 'de Watertoets'.

Water is van groot belang binnen de ruimtelijke ordening. Door verstandig om te gaan met het water kan verdroging en wateroverlast voorkomen worden en kan de kwaliteit van het water hoog blijven. Op Rijks- en Europees niveau zijn de laatste jaren plannen en wetten gemaakt met betrekking tot water. De belangrijkste hiervan zijn het Waterbeleid voor de 21ste eeuw, de Waterwet en het Nationaal Waterplan. De Commissie Waterbeheer 21ste eeuw heeft in augustus 2000 advies uitgebracht over het toekomstig waterbeleid in Nederland. De adviezen staan in het rapport 'Anders omgaan met water, Waterbeleid in Nederland, Waterbeleid voor de 21ste eeuw. De kern van het rapport is dat water de ruimte moet krijgen, voordat het water de ruimt zelf neemt. In het Waterbeleid worden twee principes van duurzaam waterbeheer geïntroduceerd:

  • Vasthouden, bergen en afvoeren. Dit houdt in dat overtollig water zoveel mogelijk bovenstrooms wordt vastgehouden in de bodem en in het oppervlaktewater. Vervolgens wordt zo nodig het water tijdelijk geborgen in bergingsgebieden en pas als vasthouden en bergen te weinig opleveren wordt het water afgevoerd.
  • Schoon, scheiden en zuiveren. Hier gaat het erom dat het water zoveel mogelijk schoon wordt gehouden. Vervolgens worden schoon en vuil water zoveel mogelijk gescheiden en als laatste komt het zuiveren van verontreinigd water bod.


De Waterwet regelt het beheer van oppervlaktewater en grondwater, en verbetert ook de samenhang tussen waterbeleid en ruimtelijke ordening. Daarnaast levert de Waterwet een flinke bijdrage aan de vermindering van regels, vergunningstelsels en administratieve lasten. De Waterwet bundelt de vergunningstelsels uit de afzonderlijke waterbeheerwetten. Dit resulteert in één vergunning: de watervergunning.

Op basis van de Waterwet is het Nationaal Waterplan vastgesteld door het kabinet. Het Nationaal Waterplan geeft op hoofdlijnen aan welk beleid het Rijk in de periode 2009 - 2015 voert om te komen tot een duurzaam waterbeheer. Het Nationaal Waterplan richt zich op bescherming tegen overstromingen, beschikbaarheid van voldoende en schoon water en de diverse vormen van gebruik van water. Het geeft maatregelen die in de periode 2009 - 2015 genomen moeten worden om Nederland ook voor toekomstige generaties veilig en leefbaar te houden en de kansen die water biedt te benutten.

De watertoets is een instrument dat waterhuishoudkundige belangen expliciet en op evenwichtige wijze laat meewegen bij het opstellen van ruimtelijke plannen en besluiten. Het is geen technische toets maar een proces dat de initiatiefnemer van een ruimtelijk plan en de waterbeheerder met elkaar in gesprek brengt in een zo vroeg mogelijk stadium. In een waterparagraaf worden de watertoets en de uitkomsten van een eventueel overleg opgenomen.

4.7.1 Provinciaal beleid

Op 9 juli 2014 is Omgevingsvisie Gelderland vastgesteld. De omgevingsvisie vervangt de huidige omgevingsplannen zoals de Structuurvisie, het Gelders Milieuplan en het Waterplan Gelderland 2010-2015 (zie ook eerder).

In de omgevingsvisie wordt onder meer de ambitie en de rol van de provincie voor het aspect water aangegeven. De provincie stuurt op een veerkrachtig en duurzaam water- en bodemsysteem. Dit bestaat uit bodem en ondergrond, grondwater en oppervlaktewater. Een veerkrachtig en duurzaam water- en bodemsysteem helpt mee aan een optimale en duurzame driedimensionale inrichting van Gelderland.

Een systeem is veerkrachtig als het onder normale omstandigheden alle functies goed kan uitvoeren, (tijdelijke) over- en onderbelasting goed op kan vangen zonder dat maatschappelijke overlast of ecologische schade optreedt en hiervan snel kan herstellen zonder blijvende negatieve effecten. Een systeem is duurzaam als het ook in de toekomst kan blijven functioneren en in stand kan worden gehouden tegen maatschappelijk aanvaardbare kosten. Om de veerkracht van het water- en bodemsysteem te vergroten is het belangrijk om meer ruimte te maken voor beken, te zorgen voor stedelijk waterbeheer en voor goed bodembeheer. Dat betekent bijvoorbeeld dat de bodem zodanig wordt beheerd en gebruikt dat de bodem meer water kan opnemen in perioden van regen en dus ook weer water kan afgeven in perioden van droogte. Zowel bewoonde gebieden, natuurgebieden als landbouwgronden zullen hieraan een bijdrage moeten leveren.

Daarnaast is het van belang om ervoor te zorgen dat het water- en bodemsysteem duurzaam is en ook in de toekomst kan blijven functioneren tegen maatschappelijk aanvaardbare kosten. De provincie streeft naar een duurzaam gebruik van de ondergrond. Zij zoekt naar een balans tussen het benutten van de kansen die de ondergrond biedt en het behouden van de waarde van de ondergrond voor toekomstige generaties. Doel is te komen tot een integrale, efficiënte en duurzame benutting zonder onomkeerbare gevolgen voor de ondergrond. Dit betekent dat de provincie moet afwegen wat op een bepaalde plek in de ondergrond of bovengronds wel of niet mag.

In de bij de Visie horende Omgevingsverordening zijn regels opgenomen met betrekking tot het aspect water. Het gaat onder meer om de onderwerpen Grond- en drinkwater (artikel 2.6 en artikel 3.3) en vaarwegen (hoofdstuk 4). Het plangebied en de wijde omgeving zijn aangewezen als 'intrekgebied' (reserveringsgebied voor potentiële, toekomstige waterwinning). In artikel 2.6.3 van de verordening is opgenomen dat in een intrekgebied geen bestemming mag worden opgenomen die het mogelijk maakt fossiele energie, zoals aardgas, aardolie, schaliegas en steenkoolgas, te winnen.

afbeelding "i_NL.IMRO.0274.bp0193rh-va02_0013.png"

Afbeelding 13: Uitsnede kaart Omgevingsverordening, Water en milieu (arcering = intrekgebied)

Conclusie

De bouw van de 4 woningen beïnvloedt de de wateraspecten niet. Er kunnen zonder nadelige effecten 4 woningen worden ontwikkeld op de planlocatie.

4.7.2 Beleid waterschap

Per 1 januari 2013 zijn Waterschap Veluwe en Waterschap Vallei en Eem samen gegaan als waterschap Vallei en Veluwe. Omdat dit Waterschap nog geen eigen beleid heeft geformuleerd wordt, bij de toetsing van dit plan, getoetst aan het beleid van het voormalige waterschap Vallei en Eem. Het plangebied lag binnen het werkveld van dit waterschap.

In het "Waterbeheersplan 2010 - 2015'' heeft Waterschap Vallei & Eem zijn ambities en uitvoeringsprogramma vastgelegd voor de periode 2010 tot en met 2015. Het plan bepaalt in grote lijnen de agenda van Waterschap Vallei & Eem voor deze periode. De plannen zijn gebundeld in de drie programma's Veilige dijken, Voldoende en schoon water en Zuivering afvalwater. Het programma Veilige dijken richt zich op de bescherming van het beheersgebied tegen overstroming en daardoor op veiligheid voor de bewoners en gebruikers van het gebied. Het programma Voldoende en schoon water gaat over de waterhuishouding. De inzameling, het transport en de behandeling van afvalwater noemen we de afvalwaterketen. Deze keten bestaat uit: rioolstelsels met huisaansluitingen, leidingen, putten, pompen, riooloverstorten, meet- en regeltechnieken; transportsystemen met gemalen en persleidingen; een rioolwaterzuiveringsinstallatie met een effluentlozing op oppervlaktewater.

Een belangrijk onderwerp in alle programma's is de klimaatverandering. Het Waterschap zal de ontwikkelingen op dit gebied de komende jaren intensief blijven volgen en maatregelen nemen om ook op de lange termijn het gebied te beschermen tegen hoog water, wateroverlast en droogte, en om de capaciteit van de zuiveringen op peil te houden. Het vaststellen van ruimtelijke plannen, vooral voor stedelijke ontwikkelingen, vraagt een pro-actieve rol van het waterschap. Door in de planontwikkelingsfase al om tafel te zitten met gemeenten, projectontwikkelaars en bouwpartijen is er voor het watersysteem veel te bereiken, zowel in nieuw stedelijk gebied als in bestaand stedelijk gebied. Daarnaast adviseert het waterschap gemeenten via de watertoets.

4.7.3 Gemeentelijk beleid

De gemeente Renkum is voortvarend aan de slag gegaan met het afkoppelen van verhard oppervlak, één van de doelstellingen van het beleid van de hogere overheid. Sinds 2000 is in totaal ruim 50 hectare verhard oppervlak (wegen, parkeerplaatsen, daken) afgekoppeld van de riolering. Dit is ruim 20% van het totale aantal wegen in de gemeente. De gemeente voldoet hiermee ruimschoots aan de wettelijke verplichting om voor 2010 49 hectare verhard wegoppervlak af te koppelen van het riool.

Conclusie

Voor de locatie aan de Europalaan geldt dat een gesloten asfaltoppervlakte wordt verwijderd en wordt vervangen door een 4 woningen met elk een tuin. De rest van de locatie blijft ongewijzigd. De tuinen zullen een groot deel van de oppervlakte innemen. De mogelijkheden om (hemel-)water op de locatie te bergen, vast te houden en pas daarna, indien noodzakelijk, af te voeren nemen sterk toe ten opzichte van de huidige situatie. Het schone hemelwater zal op het terrein worden geborgen en geïnfiltreerd. Bij de bouw zullen geen uitlogende materialen worden gebruikt. Het vuilwater zal worden afgevoerd via een aansluiting op het riool. Het grondwater bevindt zich op een diepte van meer dan vijf meter onder het maaiveld. De bouw van de woningen heeft geen of alleen maar een positieve uitwerking op de omgeving. De ontwikkeling heeft door de toename van het bergend vermogen een positieve invloed op de omgeving. Hemelwater kan worden geborgen en geïnfiltreerd. Het vuilwater wordt afgevoerd via het riool. De bouw beïnvloedt het grondwater niet. Bij de bouw zullen geen uitlogende materialen worden gebruikt.

4.8 Archeologie en cultuurhistorie

Bij elk ruimtelijk initiatief wordt een beschrijving gevraagd over de wijze waarop met de in het gebied aanwezige cultuurhistorische waarden wordt omgegaan. Bij het maken van plannen kan rekening gehouden worden met elementen die er vroeger wel waren, maar nu niet meer. Een bijzonder onderdeel van cultuurhistorie is archeologie.

4.8.1 Archeologie

Archeologie gaat over de verwachte cultuurhistorisch waarde in de bodem. In 1992 is op Malta het Europees Verdrag inzake de bescherming van het archeologisch erfgoed (Verdrag van Malta) ondertekend. Het Nederlands parlement heeft dit verdrag in 1998 goedgekeurd. Het Verdrag van Malta voorziet in bescherming van het Europees archeologisch erfgoed. Deze bescherming is in Nederland wettelijk verankerd in de Monumentenwet 1988.

Op basis van deze wet zijn mogelijke vondsten bij het verrichten van werkzaamheden in de bodem altijd beschermd. Er geldt een meldingsplicht bij het vinden van waardevolle zaken. In het kader van de een goede ruimtelijke ordening in relatie tot de Monumentenwet kan vooronderzoek naar mogelijke waarden nodig zijn zodat waar nodig die waarden veiliggesteld kunnen worden en/of het initiatief aangepast kan worden. Ook de Wet op de archeologische monumentenzorg (WAMZ) uit 2007 is in dit kader van belang. De verantwoordelijkheid voor cultuurhistorische waarden ligt bij de gemeente.

afbeelding "i_NL.IMRO.0274.bp0193rh-va02_0014.png"

Afbeelding 14: Uitsnede Archeologische Beleidsadvieskaart gemeente Renkum, met globale aanduiding plangebied

De archeologische verwachtingswaarde van het gebied is laag met uitzondering van een klein vlak aan de noordoostzijde van het perceel. Gebieden die in het kader van archeologie bescherming behoeven (te weten middelhoge en hoge verwachtingswaarden), zijn op de verbeelding door middel van een dubbelbestemming aangeduid. In het voorliggende plan betreft het kleine vlak een middelhoge verwachtingswaarde. Het opnemen van de dubbelbestemming is voldoende voor het kunnen opstellen van het bestemmingsplan. Bij het realiseren van een (bouw)plan dient vervolgens getoetst worden aan de dubbelbestemming en dient dan (indien nodig) archeologisch onderzoek verricht te worden. Dit deel van het perceel valt echter buiten het bouwvlak. Voor locatie met een lage verwachtingswaarde is pas onderzoek nodig als het verstoren gebied meer dan 2500 m² bedraagt. Dat is niet geval.

4.8.2 Cultuurhistorie

Om de noemer Modernisering Monumentenzorg (MoMo) heeft het Rijk in 2009 een aanzet gegeven voor een goede afwezig van het belang van cultuurhistorie in de ruimtelijke ordening. Een verantwoorde verankering van de cultuurhistorie in structuurvisie, bestemmingsplannen en milieueffectrapportages is gewenst. Het voornaamste doel is om het cultuurhistorische karakter van Nederland op gebiedsniveau te behouden en te versterken. De aandacht voor cultuurhistorie is ook wettelijk vastgelegd in het Besluit ruimtelijke ordening (artikel 3.1.6 onder 2).

Op de locatie zijn geen erkende cultuurhistorische waarden aanwezig. De schuren van het voormalig aannemersbedrijf zijn karakteristiek, maar niet monumentwaardig. Ze blijven boven in de huidige vorm in tact.

Conclusie

In het plangebied zijn geen erkende cultuurhistorische waarden aanwezig. Het aspect cultuurhistorie is daarmee geen belemmering. De gemeentelijke archeologische kaart geeft aan dat de verwachtingswaarde ter plaatste van het bouwvlak laag is. Dit betekent dat onderzoek pas noodzakelijk is als de oppervlakte van het te verstoren gebied meer dan 2500 m² bedraagt en de diepte meer dan 30 cm. Aangezien de woningen gezamenlijk geen grondoppervlakte hebben van meer dan 2500 m² is het uitvoeren van een archeologisch onderzoek niet noodzakelijk en is geen verstoring van het bodemarchief te verwachten. Het bestemmingsplan is op het gebied van cultuurhistorie en archeologie uitvoerbaar geacht.

4.9 Natuurwaarden

4.9.1 Algemeen

Ruimtelijke plannen dienen te worden beoordeeld op de haalbaarheid in relatie tot actuele natuurwetgeving, met name de Wet natuurbescherming. Deze wet vormt tevens de implementatie van de Europese Habitat- en Vogelrichtlijn op nationaal niveau. Er mogen geen ontwikkelingen mogelijk worden gemaakt, waarvan op voorhand duidelijk is dat deze op bezwaren stuiten door effecten op beschermde natuurgebieden of op streng beschermde planten of dieren.

4.9.2 Beschermde gebieden

Op 1 oktober 2005 is de gewijzigde 'Natuurbeschermingswet 1998' in werking getreden. Hiermee wordt de gebiedsbescherming uit de Europese Vogel- en Habitatrichtlijn in Nederlandse wetgeving geïmplementeerd. Inmiddels is deze wet opgegaan in de 'Wet Natuurbescherming'. Deze wet biedt een beschermingskader voor natuurwaarden (leefgebieden en soorten) in Natura 2000-gebieden en bepaalt dat projecten en andere handelingen in en nabij beschermde gebieden dienen te worden getoetst op (mogelijke) negatieve effecten op deze waarden.

De locatie ligt niet in een Natura 2000-gebied of in en nabij een beschermd gebied.

4.9.3 Beschermde soorten

Voor beheergerichte (onderdelen van) bestemmingsplannen, met geen of slechts geringe ontwikkelingsmogelijkheden, kan in het algemeen gesteld worden dat de uitvoerbaarheid niet ter discussie zal staan. Zelfs indien beschermde soorten aanwezig zijn, zoals vogels en vleermuizen, mag worden aangenomen dat deze bij een voortzetting van het bestaande grondgebruik niet in hun voortbestaan zullen worden bedreigd.

Anders ligt het voor (onderdelen van) bestemmingsplannen die een wijziging van het grondgebruik inhouden of bijvoorbeeld het slopen dan wel oprichten van nieuwe bebouwing en/of infrastructuur. Hiervoor dient een toets flora en fauna te worden uitgevoerd.

De ontwikkeling betreft het verwijderen van een gesloten asfaltterrein en het vervangen hiervan door een viertal huizen met tuinen. Er zijn in de huidige geen natuurwaarden en/of beschermde diersoorten op de locatie aanwezig.

4.9.4 Gelders NatuurNetwerk en Groene Ontwikkelingszone

De ambitie van Gelderland is om zorgvuldig om te gaan met natuur en landschap op een haalbare en betaalbare wijze en de samenleving daar meer bij te betrekken. Met het natuur- en landschapsbeleid draagt Gelderland bij aan de realisatie van internationale doelstellingen. De basis van het Gelderse natuur- en landschapsbeleid vormen de afspraken die tussen de provincies en het Rijk gemaakt zijn en die men terug kan vinden in het Onderhandelingsakkoord Decentralisatie Natuur . Een variatie aan planten- en diersoorten is cruciaal voor een goede leefomgeving. Die variatie kan alleen behouden worden wanneer in heel Europa natuurgebieden aaneengesloten worden. Daarom werkt Gelderland aan een Gelders natuurnetwerk: een stelsel van onderling verbonden natuurgebieden, dat in verbinding staat met natuurnetwerken buiten Gelderland. In het Gelders Natuurnetwerk geldt: in de basis hier geen nieuwe initiatieven. Er zijn enkele uitzonderingen mogelijk. Dat zijn ontwikkelingen van een groot algemeen of provinciaal belang of ontwikkelingen waarvoor - overtuigend gemotiveerd - geen alternatieven bestaan. Voor dergelijke uitzonderingen gelden specifieke spelregels die garanderen dat het Gelders Natuurnetwerk in stand blijft. De Gelderse Groene Ontwikkelingszone is een gebied waar partners en partijen juist worden uitgenodigd om actief 'groene' doelen mee te helpen realiseren. Er is in dit gebied ruimte voor de verdere ontwikkeling van bestaande en bij het gebied behorende bedrijvigheid of bewoning. Daarbij maakt de provincie onderscheid tussen de mate waarin partijen worden gevraagd om een - extra- bijdrage te leveren aan dit gebied. Een uitbreiding van dagrecreatie of een bestaand landbouwbedrijf vraagt om een andere mate van compensatie dan het plaatsen van een nieuw recreatieverblijf in deze zone. Het ene initiatief heeft een andere impact op het gebied dan het andere. De provincie wil met haar beleid voor deze zone zo duidelijk mogelijke spelregels hanteren die recht doen aan de doelen in dit gebied. De provincie zoekt naar wat helpt om deze duidelijkheid maximaal te geven en nodigt gemeenten uit om hierover mee te denken. De juiste kaders moeten voldoende uitnodigend blijven voor 'goede' kwalitatieve ontwikkelingen.

De planlocatie ligt niet in of in de nabijheid van de het Gelders Natuurnetwerk of de Gelderse Groene Ontwikkelingszone.

Conclusie

De locatie ligt in niet in een Natura 2000-gebied of in en nabij een beschermd gebied en er zijn geen (beschermde) soorten of andere natuurwaarden op de locatie aanwezig. Het uitvoeren van een toets flora en fauna is niet nodig. Het plangebied ligt niet in een ecologisch waardevol en/of beschermd gebied en is een grotendeels bebouwd en verhard perceel binnen de bebouwde kom. De beoogde ontwikkeling heeft met aan zekerheid grenzende waarschijnlijkheid geen significante negatieve effecten of de flora en fauna op de locatie of in de omgeving. Het uitvoeren van een toets flora en fauna is niet nodig.

4.10 Verkeer en parkeren

Onderdeel van een goede ruimtelijke ordening is het effect van een nieuw initiatief op de verkeersstructuur. De woningen aan de Bergerhof zullen worden ontsloten op de Bergerhof. De woningen aan de Europalaan op de Europalaan. Op de locatie is voorzien in voldoende parkeerplaatsen. De toename van het verkeer of het aantal verkeersbewegingen als gevolg van het initiatief is nihil ten opzichte van de huidige situatie.

Conclusie

Nader onderzoek is niet nodig.

4.11 Economische uitvoerbaarheid

Aangezien het hier een particulier initiatief betreft, zullen de kosten voor de bestemmingsplanprocedure en het bouwplan voor rekening zijn van de initiatiefnemer. Om dit te regelen is een samenwerkingsovereenkomst met de initiatiefnemer gesloten. In deze overeenkomst zijn ook bepalingen ten aanzien van planschade opgenomen, zodat eventuele planschadeclaims op de initiatiefnemer worden afgewikkeld. Het initiatief wordt hiermee economisch uitvoerbaar geacht.

Hoofdstuk 5 Juridische planopzet

5.1 Algemeen

5.1.1 Wat is een bestemmingsplan?

Het gemeentelijke bestemmingsplan is een middel waarmee functies aan gronden worden toegekend. Het gaat dus om het toekennen van gebruiksmogelijkheden. Vanuit de Wet ruimtelijke ordening volgt een belangrijk principe: het gaat om toelatingsplanologie. Het wordt de grondgebruiker (eigenaar, huurder etc.) toegestaan om de functie die het bestemmingsplan geeft uit te oefenen. Dit houdt in dat:

  • 1. de grondgebruiker niet kan worden verplicht om een in het bestemmingsplan aangewezen bestemming ook daadwerkelijk te realiseren, en
  • 2. de grondgebruiker geen andere functie mag uitoefenen in strijd met de gegeven bestemming (het overgangsrecht is hierbij mede van belang).

Een afgeleide van de gebruiksregels in het bestemmingsplan zijn regels voor bebouwing (voorheen: bouwvergunning) en regels voor het verrichten van 'werken' (voorheen: aanlegvergunning).

Een bestemmingsplan regelt derhalve:

  • 3. het toegestane gebruik van gronden (en de bouwwerken en gebouwen);
  • 4. en een bestemmingsplan kan daarbij regels geven voor:
  • 5. het bebouwen van de gronden;
  • 6. het verrichten van werken (aanleggen).

Het bestemmingsplan is een belangrijk instrument voor het voeren van ruimtelijk beleid, maar het is zeker niet het enige instrument. Andere ruimtelijke wetten en regels zoals bijvoorbeeld de Woningwet, de Monumentenwet 1988, de Algemene Plaatselijke Verordening, de Wet Milieubeheer, de Wet algemene bepalingen omgevingsrecht en de bouwverordening zijn ook erg belangrijk voor het uitoefenen van het ruimtelijke beleid. Een bestemmingsplan kan echter niet alles regelen. Via het Besluit omgevingsrecht is het bijvoorbeeld mogelijk om in bepaalde situaties vergunningvrij te bouwen ondanks dat het bestemmingsplan die bebouwing niet toestaat. In die gevallen gaat hetgeen bij wet vergunningvrij gebouwd kan worden voor op de bepalingen van het bestemmingsplan.

5.1.2 Verbeelding, regels en toelichting

Een bestemmingsplan moet worden opgezet volgens de eisen die de Wet ruimtelijke ordening (Wro) in samenhang met het Besluit ruimtelijke ordening (Bro) daaraan stelt en de wettelijk voorgeschreven opzet en vormgeving van de 'RO standaarden 2012'.

Een bestemmingsplan bestaat uit drie onderdelen, te weten een 'toelichting', de 'regels' en een 'verbeelding'. De verbeelding (voorheen bekend als 'plankaart') en de regels (voorheen bekend als 'voorschriften') vormen samen het juridische deel van het bestemmingsplan. Alleen deze twee zijn bindend voor de burger en de overheid. Beide onderdelen dienen in onderlinge samenhang te worden bezien en toegepast.

Op de verbeelding is aangegeven welke bestemming gronden hebben. Dit gebeurt via een bestemming met een bestemmingsvlak en soms via aanduidingen. De planregels van het bestemmingsplan bevatten de juridische verklaring, middels maximale bouw- en gebruiksmogelijkheden, van de op de verbeelding weergegeven bestemmingen en aanduidingen.

Die toegekende gebruiks- en bouwmogelijkheden aan gronden kunnen, naast de rechtstreekse bestemming, op de verbeelding op twee manieren nader worden ingevuld:

  • 1. Via een dubbelbestemming. Een dubbelbestemming is, zoals de naam al zegt, een bestemming die óók aan de gronden wordt toegekend. Voor gronden kunnen dus meerdere bestemmingen gelden. Er geldt altijd één 'enkelbestemming' (dat is dé bestemming) en soms geldt er een dubbelbestemming (soms zelfs meerdere). In de regel van de dubbelbestemming wordt omschreven wat er voor de onderliggende gronden geldt aan extra bepalingen in aanvulling, of ter beperking, van de mogelijkheden van de onderliggende bestemmingen.
  • 2. Via een aanduiding. Een aanduiding is een teken op de verbeelding dat betrekking heeft op een vlak op die kaart. Via een aanduiding wordt in de regels 'iets' geregeld. Dat 'iets' kan betrekking hebben op extra mogelijkheden of extra beperkingen voor het gebruik en/of de bebouwing en/of het aanleggen van werken. Aanduidingen kunnen voorkomen in een bestemmingsregel, in meerdere bestemmingsregels en kunnen ook een eigen regel hebben.

De toelichting heeft geen rechtskracht, maar vormt niettemin een belangrijk onderdeel van het plan. De toelichting van een bestemmingsplan geeft een weergave van de beweegredenen, de onderzoeksresultaten en de beleidsuitgangspunten die aan het bestemmingsplan ten grondslag liggen. Tot slot is de toelichting van wezenlijk belang voor een juiste interpretatie en toepassing van het bestemmingsplan, alleen indien de regels en de verbeelding nog onduidelijkheden bevatten.

5.1.3 Hoofdstukopbouw van de regels

De regels zijn, zoals voorgeschreven in de 'RO standaarden 2012', verdeeld over 4 hoofdstukken:

  • 1. Inleidende regels. In dit hoofdstuk worden begrippen verklaard die in de regels worden gebruikt (artikel 1). Dit gebeurt om een eenduidige uitleg en toepassing van de regels te waarborgen. Ook is bepaald de wijze waarop gemeten moet worden bij het toepassen van de regels (artikel 2). Zo moet onder 'bouwperceel' verstaan worden: 'een aaneengsloten stuk grond, waarop ingevolge de regels een zelfstandige, bij elkaar behorende bebouwing is toegelaten'. Het moet dus gaan om gronden met dezelfde bestemming die ook in eigendom zijn van dezelfde persoon, dan wel gronden die gehuurd worden door die persoon.
  • 2. Bestemmingsregels. In dit tweede hoofdstuk zijn de bepalingen van de bestemmingen opgenomen. Dit gebeurt in alfabetische volgorde. Per bestemming is het toegestane gebruik geregeld en zijn bouw- en gebruiksregels en, eventueel, ook een regels voor het 'uitvoeren van een werk, geen bouwwerk zijnde, of van werkzaamheden' opgenomen. Als er dubbelbestemmingen zijn worden die ook in dit hoofdstuk opgenomen. Die komen, ook in alfabetische volgorde, achter de bestemmingsbepalingen.
    Ieder artikel van de hoofdbestemmingen kent, eveneens conform de 'RO standaarden 2012', een vaste opzet. Per hoofdbestemming is een bestemmingsregeling, opgenomen, voor zover van toepassing bestaande uit:
    a. bestemmingsomschrijving: waarvoor mogen de gebouwen en gronden gebruikt worden in die bestemming;
    b. bouwregels: een beschrijving van de toelaatbare bouwwerken;
    c. nadere eisen;afwijken van de bouwregels;
    d. afwijken van de bouwregels;
    e. specifieke gebruiksregels;
    f. afwijken van de gebruiksregels;
    g. omgevingsvergunning voor het uitvoeren van een werk, geen bouwwerk zijnde, of van werkzaamheden;
    h. wijzigingsbevoegdheid.
    De situering van de toegelaten gebouwen is bepaald door bouwvlakken op de verbeelding en door de bepalingen (soms in combinatie met aanduidingen) in de planregels.
    Belangrijk om te vermelden is dat naast de bestemmingsbepalingen ook in andere artikelen relevante informatie staat die mede gelezen en geïnterpreteerd moet worden. Alleen zo is een volledig beeld te verkrijgen van hetgeen is geregeld.
  • 3. Algemene regels. In dit hoofdstuk zijn bepalingen opgenomen met een algemeen karakter. Ze gelden dus voor het hele plan. Het zijn achtereenvolgens:
    • a. antidubbeltelregel: Deze bepaling regelt dat grond die reeds eerder bij een verleende bouw- of omgevingsvergunning is meegenomen, niet nog eens bij de verlening van een nieuwe omgevingsvergunning mag worden meegenomen. Deze regel is wettelijk verplicht om op te nemen in een bestemmingsplan en is rechtstreeks overgenomen uit het Bro;
    • b. algemene bouwregels: Hierin worden algemene bouwregels opgenomen die gelden voor alle bestemmingen in het bestemmingsplan. Zo wordt hierin het ondergronds bouwen geregeld en worden bouwwerken die afwijken van de regeling in het bestemmingsplan, maar wel met een vergunning zijn gebouwd, 'positief' bestemd;
    • c. algemene gebruiksregels: In dit artikel wordt een algemeen gebruiksverbod gegeven, wat geldt voor alle bestemmingen in het bestemmingsplan, voor gebruik in strijd met de bestemming;
    • d. algemene afwijkingsregels: In dit artikel wordt aangegeven in hoeverre met een omgevingsvergunning kan worden afgeweken van het plan voor algemene en geringe afwijkingen van de bouwregels (maatvoering) voor zover al elders in de planregels in afwijkingen is voorzien. Hiermee kan in specifieke situaties maatwerk worden geboden en biedt het bestemmingsplan voldoende flexibiliteit.
  • 4. Overgangs- en slotregels. In het laatste hoofdstuk zijn respectievelijk het overgangsrecht en een slotregel opgenomen.
    • a. overgangsregels: Deze regel is wettelijk verplicht om op te nemen in een bestemmingsplan en is rechtstreeks overgenomen uit het Bro. Dit artikel bevat regels die als doel hebben bestaande situaties (gebruik of bouwwerken), welke niet in overeenstemming zijn met het bestemmingsplan, te regelen. Hierbij wordt onderscheid gemaakt tussen gebruik en bouwen. Het overgangsrecht met betrekking tot bouwen en bouwwerken regelt dat bouwwerken die aanwezig waren ten tijde van de terinzagelegging van het ontwerpbestemmingsplan, maar in strijd zijn met het bestemmingsplan, onder overgangsrechtelijke bescherming vallen. Dat wil zeggen dat deze bouwwerken mogen blijven bestaan. Deze bescherming geldt ook voor bouwwerken die op deze peildatum legaal kunnen worden gebouwd, maar nog niet zijn gebouwd.
      De regeling bevat voorts een bevoegdheid voor burgemeester en wethouders om bij een omgevingsvergunning af te wijken ten behoeve van een beperkte uitbreiding (maximaal 10%) van het niet in het nieuwe bestemmingsplan passende bouwwerk.
      Bouwwerken die wel bestonden op de genoemde peildatum, maar zijn gebouwd zonder (omgevings)vergunning, zijn expliciet uitgesloten van de beschermende werking van het overgangsrecht.
      Het overgangsrecht voor met het nieuwe bestemmingsplan strijdig gebruik regelt dat het gebruik van gronden dat bestaat op het moment dat het nieuwe bestemmingsplan van kracht wordt, mag worden voortgezet. Het bestaande gebruik dat (ook) in strijd was met het voorgaandebestemmingsplan, is echter van deze beschermende werking van het overgangsrecht uitgesloten, indien het op grond van het recht nog mogelijk is om hiertegen op te treden.
    • b. slotregel: Dit artikel bevat de titel (naam) van het vast te stellen bestemmingsplan.

5.2 Planregels

5.2.1 Bestemmingen in dit bestemmingsplan

Voorliggend bestemmingsplan kent de volgende eindbestemmingen: 'Gemengd - 5 ', 'Tuin' en 'Wonen'. Daarnaast kent het bestemmingsplan de volgende dubbelbestemming: Waarde - Archeologie middelhoge verwachting. Verder kent het plan ook nog een algemene aanduidingsregel (gebiedsaanduiding), te weten de 'vrijwaringszone - molenbiotoop'.

5.2.2 Bestemmingen

Gemengd - 5

De bestemming 'Gemengd - 5' is toegekend aan de binnen het plangebied voorkomende bedrijfsgebouwen (de loodsen) die in het vorige bestemmingsplan de bestemming 'Bedrijf'' hebben. Het is brede bestemming die diverse functies mogelijk maakt. Gebouwen zijn alleen toegestaan in het bouwvlak. De maximale bouwhoogte is opgenomen op de verbeelding. De bestaande bouwrechten uit de vorige bestemmingsplannen zijn gerespecteerd.

In de bestemming 'Gemengd - 5' zijn maatschappelijke functies, zoals de bestaande en vergunde kinderopvang, fysiotherapie en dergelijke, toegestaan evenals bedrijven in maximaal milieucategorie 1 en de opslag van materialen. Ondergeschikte detailhandel ten behoeve van de toegestane bedrijven in categorie 1 is nu niet meer toegestaan. De bestemming 'Gemengd - 5' past beter op deze locatie in de huidige tijd en context dan de oude bedrijfsbestemming.

Het pand aan de Molenweg 24 heeft eveneens de bestemming 'Gemengd - 5' gekregen, maar dan met de aanduiding 'gemengd'. Daarbinnen zijn eveneens bedrijven in categorie 1 toegestaan en enkele maatschappelijke voorzieningen (maar deels iets anders dan in de loodsen) maar ook kantoren.

Tuin

De bestemming 'Tuin' is toegekend aan de voortuin van de geplande woningen en aan de bestaande tuinen rond de voormalige bedrijfswoning aan de Europalaan 98. Op percelen met de bestemming 'Tuin' zijn alleen bouwwerken, geen gebouwen zijnde, en uitbouwen, die aan de voorgeschreven maatvoeringseisen voldoen, toegestaan.


Een gedeelte van de tuin met tuinbestemming van Europalaan 98 heeft de aanduiding 'specifieke bouwaanduiding 4' gekregen. Het betreft het gedeelte tussen de bestaande bebouwingen in, waar nu al enkele bijgebouwen staan. Dit omdat in de tuinbestemming geen bijgebouwen zijn toegestaan. Echter voor dit gedeelte is een uitzondering gemaakt. Met deze bouwaanduiding is hier een beperkte oppervlakte aan bijgebouwen toegestaan.

Wonen

De bestemming 'Wonen' is toegekend aan de de locatie van de vier te bouwen woningen en het bijbehorende 'achtererf' daarvan. Deze bestemming is ook toegekend aan de voormalige bedrijfswoning aan de Europalaan 98 en aan de daaraan vastgebouwde lage voormalige bedrijfsgebouwen.


Hoofdgebouwen zijn alleen toegestaan binnen het bouwvlak. Aan- en uitbouwen en bijgebouwen bij hoofdgebouwen mogen zowel binnen als buiten het bouwvlak worden gebouwd. Een bouwvlak mag geheel worden volgebouwd. Binnen het bouwvlak gelden de op de verbeelding opgenomen maximale goot- en bouwhoogten. Buiten het bouwvlak geldt een in de regels opgenomen maximale oppervlakte en maximale goot- en bouwhoogte voor aan- en uitbouwen en bijgebouwen.

In deze bestemming zijn onder bepaalde voorwaarden, conform het gemeentelijke beleid, aan-huis-verbonden beroepen (alleen door de bewoners van de woning) toegestaan.

Om voldoende flexibiliteit te houden in het bestemmingsplan en om snel, via maatwerk, in te kunnen spelen op veranderende behoeftes in het gebruik van de woning zijn afwijkingen opgenomen om kamerbewoning, zorgwoning, aan-huis-verbonden-bedrijf (alleen voor de bewoners van de woning), mantelzorg en zogenaamde twee- of drie-generatiewoning mogelijk te maken in de woning en/of bijgebouwen. Voor de realisatie van de 'Bed & Breakfast' is een speciale aanduiding opgenomen.

In de regels van de bestemming Wonen zijn voorts afwijkingsbevoegdheden opgenomen ten behoeve van het toestaan van meer wooneenheden dan ter plaatse van de aanduiding is aangegeven (conform de bestemmingsplanvoorschriften van de voorheen geldende bestemmingsplannen), het toestaan van het gedeeltelijk bouwen buiten het bouwvlak en het toestaan van (kleine) overschrijding van bouw- en goothoogten.

5.2.3 Dubbelbestemmingen

Het plan bevat verder één zogenaamde dubbelbestemming. Een dubbelbestemming valt als het ware over "onderliggende" materiële bestemmingen heen en houdt beperkingen in voor de bouw-, aanleg- en/of gebruiksmogelijkheden van die bestemmingen. Een dubbelbestemming dient dus een specifiek ruimtelijk belang en is vaak eerder in het gemeentelijk beleid, waaronder de gemeentelijke bouwverordening, vastgelegd. Hierna wordt de dubbelbestemming beschreven.

Waarde - Archeologie middelhoge verwachting


De dubbelbestemming 'Waarde - Archeologie middelhoge verwachting' is, conform gemeentelijk beleid opgenomen ter bescherming van de in grond potentieel (te verwachten) aanwezige archeologische relicten. De gebieden met deze bestemming heeft een beschermingsregime gekregen met een bouwverbod en een omgevingsvergunningstelsel voor het uitvoeren van een werk, geen bouwwerk zijnde, of werkzaamheden.

In de dubbelbestemming 'Waarde - Archeologie middelhoge verwachting' is het verboden om gebouwen en bouwwerken, geen gebouwen zijnde, ten behoeve van de eindbestemmingen te bouwen indien de oppervlakte meer dan 500 m² betreft en de ondergrondse diepte (in de grond) meer dan 0,3 meter bedraagt. Dit ter bescherming van de mogelijke archeologische waarden in de ondergrond. Een dezelfde bepaling geldt ook voor het uitvoeren van een werk, geen bouwwerk zijnde, of werkzaamheden.

Voor archeologische dubbelbestemming geldt verder dat het college van burgemeester en wethouders met een omgevingsvergunning af kan wijken voor het bouwen of het uitvoeren van een werk, geen bouwwerk zijnde, of werkzaamheden overeenkomstig de regels van de eindbestemmingen. Dat wil zeggen dat op die manier gebouwd kan worden met een grotere oppervlakte en een grotere ondergrondse diepte indien op basis van bijvoorbeeld een ingesteld archeologisch onderzoek geen archeologische waarden aanwezig zijn of geen onevenredige aantasting plaatsvindt van de archeologische waarden van de gronden waarop gebouwd gaat worden, dan wel dat de archeologische waarden anderszins veilig worden gesteld.

5.2.4 Gebiedsaanduiding

Het plan is ook een gebiedsaanduiding, via de algemene aanduidingsregels, opgenomen. Het betreft de 'vrijwaringszone - molenbiotoop. Deze vrijwaringszone (de molenbiotoop) dient ter bescherming van de windvang en de cultuurhistorische waarde van de aan de Molenweg aanwezige (koren)molen. De molen betreft een monument. De gebiedsaanduiding voor de molenbiotoop is op de verbeelding aangegeven en ligt over het hele plangebied. De gebiedsaanduiding legt net als de dubbelbestemmingen regels over de bestaande hoofdbestemmingen ten gunste van een specifiek belang, te weten de windvang van de molen. De gebiedsaanduiding voor de molenbiotoop valt als het ware over “onderliggende” materiële bestemmingen heen en houdt een beperkingen in voor de bouw-, aanleg- en/of gebruiksmogelijkheden van die bestemmingen. De maximale hoogte van bebouwing en bomen wordt daarmee vastgelegd.

Hoofdstuk 6 Procedure

6.1 Vooroverleg ex artikel 3.1.1 Bro

In het kader van het overleg op grond van artikel 3.1.1 van het Besluit ruimtelijke ordening (Bro) worden voorontwerpbestemmingsplan verzonden aan de gebruikelijke partners, waaronder de provincie. Echter hier zijn geen belangen van de partners aanwezig, want gelegen in de bebouwde kom en de gebiedsbescherming voor de molenbiotoop is in het plan opgenomen. Daarbij was in het vorige bestemmingsplan ook de bouw van een nieuwe woning voorzien op de locatie waar nu nieuwe woningen komen. De nieuwe woning had geen negatieve gevolgen voor de windvang van de molen (molenbiotoop). Daarmee de nieuwe woningen ook niet, want gelegen op ruime afstand (ruim 200 meter), zelfde locatie en zelfde maximale hoogte. Deze hoogte blijft ruim onder de bouwhoogte die volgens de molenbiotoop maximaal gebouwd mag worden. Mede daarom is het plan niet op voorhand toegezonden. Indien partners van mening (zouden) zijn dat dit wel het geval is kunnen / konden zij een zienswijze indienen over het ontwerpplan.

6.2 Zienswijzen

Het ontwerpbestemmingsplan 'Europalaan 98 e.o., 2019' (toen nog bestemmingsplan 'Europalaan 98, 2018' geheten) heeft vanaf 22 augustus 2018 gedurende zes weken, dus tot en met 2 oktober 2018 ter inzage gelegen. In de genoemde periode zijn vier zienswijzen ingediend (waarvan twee gezamenlijke zienswijzen). Later is één zienswijze weer ingetrokken (deze is daarom hier ook niet vermeld). In de Staatscourant van 22 augustus 2018 en in het huis-aan-huis-blad 'Rijn en Veluwe' van 22 augustus 2018 is de ter inzage legging bekend gemaakt. In de Hoog en Laag van 29 augustus 2018 is de ter inzage legging ook bekend gemaakt. Ook op de gemeentelijke website is deze bekendmaking gepubliceerd. Het bestemmingsplan heeft in deze periode analoog ter inzage gelegen in de bibliotheek te Renkum en in het gemeentehuis. Het bestemmingsplan was digitaal ook in te zien op de landelijke website www.ruimtelijkeplannen.nl en op de gemeentelijke website www.renkum.nl.

Voorafgaand aan de terinzagelegging van het ontwerpbestemmingsplan is op 18 juli 2018 de kennisgeving op grond van artikel 1.3.1 van het Besluit ruimtelijke ordening gepubliceerd in de Staatscourant en in de 'Rijn en Veluwe' en op de gemeentelijke website. Daarin stond vermeld dat de verwachting was dat het ontwerpplan eind augustus 2018 ter inzage zou liggen.

6.2.1 zienswijze 1

zienswijze 1 (gezamenlijke zienswijze)

Adres:   Willebrordweg 5, Willebrordweg 1, Willebrordweg 3, Willebrordweg 7, Willebrordweg 9, Willebrordweg 11, Willebrordweg 13, Molenweg 14, Molenweg 18, Molenweg 20, Molenweg 22, Bergerhof 2, Kloosterkampweg 17, Kloosterkampweg 19; allen te Renkum  
Ontvangst zienswijze:   27 september 2018  
Inboeknummer:   83019  

samenvatting zienswijze:

De loodsen zijn in gebruik geweest als werkplaats van het bedrijf van initiatiefnemer en dienden oorspronkelijk als koeienstal. In de periode dat het bedrijf van initiatiefnemer actief was, was er sprake van geluidsoverlast als gevolg van apparatuur die daar werd gebruikt. Ook was er sprake van stankoverlast door de verfinstallatie, waarvan de afgevoerde lucht onvoldoende gezuiverd werd. Initiatiefnemer is hierop door de gemeente veelvuldig aangesproken, hetgeen niet heeft geleid tot verbeteringen. Verder werden er met enige regelmaat feestjes gegeven en leek het of er soms iemand zijn zangkunsten in de loods aan het oefenen was. Dit gebeurde tot soms laat in de avond, hetgeen tot overlast voor de bewoners leidde. Dat er sprake was van geluidsoverlast is volgens reclamanten logisch, want het waren immers koeienstallen en dus niet gebouwd als werkplaats, laat staan als feestzaal of zangstudio.

Uit de toelichting op de wijziging van het bestemmingsplan blijkt dat gedacht wordt (voor alle loodsen) aan voorde locatie passende activiteiten zoals lichte bedrijvigheid (maximaal categorie 1), een (beperkte) maatschappelijke functie of enkele activiteiten die vallen onder de noemer 'cultuur en ontspanning'. Daarom zouden deze loodsen een gemengde bestemming krijgen; te weten de bestemming 'Gemengd - 5'. Deze bestemming zou beter in de huidige tijd en context passen. In de bestemming 'Gemengd - 5' zijn maatschappelijke functies, zoals de bestaande en vergunde kinderopvang, fysiotherapie en dergelijke, toegestaan evenals bedrijven in maximaal milieucategorie 1, opslag van materialen en enkele functies onder de noemer 'cultuur en ontspanning', zoals een escaperoom, een kleinschalige indoorspeeltuin, lasergame en trampolinepark. Deze activiteiten lenen zich prima in deze loodsen en zijn nu bijna nergens anders in de gemeente toegestaan.


Zoals al aangegeven zijn de loodsen gebouwd als koeienstal en is er geen geluidsisolatie aanwezig. Geluid in die ruimtes galmt, dat is al gebleken tijdens de bedrijfsvoering en de feestjes van initiatiefnemer. Dit maakt de loodsen, in weerwil van hetgeen is gesteld in de toelichting, ongeschikt voor genoemde activiteiten. Het zal voor geluidsoverlast zorgen in een woonwijk welke tot in de avonduren kunnen duren. Niet valt in te zien waarom deze activiteiten in deze woonwijk wel zouden moeten worden toegestaan terwijl dit elders in de gemeente nergens is toegestaan. Bijkomend bestaat bij reclamanten de vrees dat er stankoverlast gaat ontstaan. 'Cultuur en ontspanning' vraagt ook om horeca. Horeca vraagt om frituur. Nu de initiatiefnemer zelfs zijn verfinstallatie niet stankvrij heeft laten werken en zich hierop door de gemeente ook nooit heeft laten corrigeren, vrezen reclamanten dat de frituurlucht bij hen regelmatig te ruiken zal zijn.

In de stukken aangaande de wijziging van het bestemmingsplan wordt verder gesproken over karakteristieke loodsen die behouden moeten worden. In de optiek van reclamanten wordt het karakter van de loodsen al steeds verder aangetast. Het originele pannendak is inmiddels voor de tweede keer vervangen door platen. De mooie deuren van de schuur zijn verzaagd en er is van een raamkozijn een extra deur gemaakt ten behoeve van de kinderopvang. Verder zijn aan de achterkant, grenzend aan de Willebrordweg, waar nu de kinderopvang is, de karakteristieke vaste stalramen vervangen door moderne draaibare exemplaren. Voorts laat het onderhoud van de loodsen ook te wensen over. Het voegwerk aan de al genoemde achterkant is afwezig en er zijn gleuven tussen de stenen van wel vijf centimeter diep. Volgens mij komt dit de stabiliteit en het behoud van de loodsen niet ten goede. De wijziging van het bestemmingsplan doet mij vrezen dat ook de overige stalramen vervangen zullen gaan worden door draaibare ramen, waardoor de privacy van de aan de achterzijde wonende bewoners wordt aangetast en er vrees is voor extra geluidsoverlast doordat de ramen opengezet kunnen worden. Onder grote druk van de betrokken aanwonenden heeft initiatiefnemer de ramen geblokkeerd, althans, ze worden door de bewoners niet meer open aangetroffen.

In de toelichting staat dat er op eigen terrein van de loodsen voldoende parkeergelegenheid is. Dat bestrijden reclamanten. Er was voldoende parkeergelegenheid. Vanwege de geplande bouw van de huizen zal er, blijkens de afbeelding 6 (P 11), nog een heel stuk van de parkeerruimte opgeslokt gaan worden. Voornoemde tekening is overigens niet meer actueel. Er is inmiddels ook aanzienlijke parkeerruimte afgegaan ten behoeve van speelruimte voor de kinderopvang (hoe zit het met de aangetroffen verontreiniging?). Deze loopt nu vanaf de loods tot aan de Europalaan, waarmee het onttrokken is als parkeerruimte. 'Cultuur en ontspanning' zorgt bij uitstek om toename van verkeersbewegingen vanwege de bezoekers. Het parkeerterrein is hiervoor te klein (geworden), nog daargelaten dat het niet duidelijk is of er nog meer ruimte onttrokken wordt aan de parkeerbestemming. Het in de toelichting gestelde, dat de toename van het verkeer of het aantal verkeersbewegingen als gevolg van het initiatief nihil is ten opzichte van de huidige situatie, kunnen reclamanten niet plaatsen. Ergo, reclamanten vrezen dat de parkeerdruk op de Willebrordweg verder gaat toenemen. Bewoners en bezoekers van de Molenweg parkeren er nu al omdat zij op deze doorgaande weg niet op straat mogen parkeren. Dagelijks parkeren er ook al bezoekers van Eetcafé Bender (hoek Molenweg / Groenendaalseweg). Nu de parkeergelegenheid op eigen terrein van de loodsen ernstig beperkt is en er op de Europalaan eigenlijk ook geen parkeerruimte vrij is, vrezen reclamanten dat bezoekers van de op het terrein te vestigen 'Cultuur en ontspanning' gaan uitwijken naar omliggende straten, waaronder de Willebrordweg en de Kloosterkampweg.

Tijdens het maken van deze zienswijze heeft de opstellen van deze zienswijze gesproken met diverse omwonenden. Keer op keer komt er ten aanzien van initiatiefnemer een beeld na voren van man die regels oprekt, aan zijn laars lapt of gewoon zijn eigen zin doet en niet geïnteresseerd is in de gevolgen voor een ander of anderszins rekening houdt met een ander. De vrees is dan ook dat initiatiefnemer met de bestemming 'Gemengd 5' de regels verder gaat oprekken dan op papier gesteld en dat de buurt met de overlast komt te zitten.

De opsteller van deze zienswijze geeft aan inmiddels kennis gemaakt te hebben met de huidige bewoners van zijn oude woning aan de Europalaan 98. De opsteller van de zienswijze heeft begrepen dat zij ook een reactie gaan sturen op de plannen en een kopie van hun brief gekregen. De opsteller van de zienswijze ondersteund hun reactie ten volle. (reactie gemeente: vanwege de ondertekening zal dit waarschijnlijk ook gelden voor andere reclamanten die de zienswijze van de opsteller van de zienswijze hebben ondertekend)

Gelet op bovenstaande inhoudelijke bezwaren ten aanzien van het wijzigen van het bestemmingsplan en om verdere afbreuk van originele en karakteristieke elementen van de loodsen te voorkomen, zouden reclamanten de gemeente willen verzoeken om de wijziging van de bestemming 'Gemengd 5' te heroverwegen. Om verdere overlast voor omwonenden nu en in de toekomst te voorkomen, zou het wenselijk zijn dat de functie wordt beperkt tot (een vorm van) 'opslag', met daarbij de restrictie dat het geen (snel) brandbare producten mogen worden opgeslagen.


Het bevreemdt reclamanten overigens dat het voornemen tot wijziging van het bestemmingsplan tijdens de zomervakantie wordt gepubliceerd in de plaatselijke krant en op internet. Dit terwijl het voor de omwonenden een ingrijpend besluit kan zijn. Wenselijk zou zijn dat de gemeente direct betrokkenen informeert of dat de verzoeker (verplicht) contact moet opnemen met de omwonenden.

reactie:

De zienswijze heeft betrekking op (een deel van) het toegestane gebruik van de loodsen aan de Europalaan 98a, b en c.. De zienswijze is met name gericht tegen het toevoegen van het onderdeel / gebruik 'cultuur en ontspanning'.

Als reactie op dit onderdeel wordt verwezen naar hetgeen is beschreven bij paragraaf 6.3 (ambtshalve wijziging). Hierna wordt de tekst die daar staat herhaald:

'De gemeente heeft gezocht naar een ruimer gebruik van de loodsen wat zou kunnen bijdragen aan het behoud van de loodsen en wat een toevoeging zou kunnen zijn aan gebruik wat niet aanwezig is in de gemeente. Daarbij werd tevens gedacht aan een vorm van cultuur en ontspanning, in de vorm van bowlingbaan, escaperoom, trampolinehal, lasergame en indoorspeeltuin. Dit toegevoegde gebruik was geen direct verzoek of wens van de eigenaar van de loodsen.

Na een nadere bestudering van de (fysieke staat van de) loodsen en de parkeerbehoefte die daarbij hoort en de afstanden tot omliggende woningen is de gemeente al kort na terinzagelegging van het ontwerpbestemmingsplan ambtshalve tot de conclusie gekomen dat dit, in de bestemming, toegevoegde gebruik geen goede is voor deze locatie. Daarom is reeds toen al besloten om dit te laten vervallen, en zou dit gebruik ambtshalve gewijzigd worden en vervallen in het vast te stellen bestemmingsplan. De ingediende zienswijzen op dit punt kunnen wij daarom ook onderschrijven. Deze onderbouwen ook ons reeds ingenomen ons ambtshalve standpunt. De toevoeging van gebruik voor 'cultuur en ontspanning' in wordt daarom verwijderd in het vast te stellen bestemmingsplan binnen het toegestane gebruik in de bestemming 'Gemengd-5'.'

Dus ambtshalve en ook naar aanleiding van de zienswijze vervalt het gebruik van de loodsen voor 'cultuur en ontspanning'.

Om iedereen op de hoogte te stellen van de terinzagelegging van een ontwerpbestemmingsplan is wettelijk voor geschreven dat hiervoor een publicatie plaatsvindt in de Staatscourant, maar, omdat bijna niemand dat leest, ook in een 'huis-aan-huis-blad', in ons geval de 'Rijn en Veluwe'.

Als extra service plaatsen wij de bekendmaking ook op onze website. Mocht iemand de bekendmaking van die week missen (op de site of in de krant), dan kan daar op onze website ook nog teruggekeken worden naar de bekendmakingen van de vorige weken. Daarmee kan iedereen altijd zien welke bekendmakingen er zijn geweest.

Om iedereen ruim de tijd te geven om te reageren op een ontwerpbestemmingsplan is de termijn van de terinzagelegging van zes weken. Dat is dus langer dan een zomervakantie. Wettelijk gezien is er geen beperking voor het moment van terinzagelegging van een ontwerpplan. Echter wij proberen altijd, voor zover dat mogelijk is, te voorkomen dat de bekendmaking van een ontwerpbestemmingsplan in de zomervakantie plaatsvindt. Mocht dat niet te voorkomen zijn, dan plaatsen wij op meerdere momenten een bekendmaking op onze website en in de krant.

In het geval van het ontwerpbestemmingsplan 'Europalaan 98, 2018' heeft de bekendmaking daarvan heel bewust plaatsgevonden na de zomervakantie, namelijk op woensdag 22 augustus 2018. De zomervakantie voor de regio Zuid (waarin Renkum ligt) eindigde op 19 augustus 2018. Zie hiervoor ook hetgeen is beschreven bij paragraaf 6.2. Overigens stond deze publicatie een week later ook in het huis-aan-huis-blad 'Hoog en Laag' .

Daarnaast hebben wij al eerder op 18 juli 2018 een kennisgeving geplaatst op onze website, het huis-aan-huis-blad 'Rijn en Veluwe' en de Staatscourant waarin stond dat een bestemmingsplan werd voorbereid voor deze locatie. Hierbij stond vermeld dat de verwachting was dat het ontwerpbestemmingsplan eind augustus 2018 ter inzage zou liggen. Ook deze publicatie stond een week later in het huis-aan-huis-blad 'Hoog en Laag'.

conclusie:

De zienswijze leidt tot de volgende aanpassing van het bestemmingsplan:

  • Samen met de ambtshalve wijziging, zoals vermeld in paragraaf 6.3, is het gebruik voor 'cultuur en ontspanning' vervallen in het toegestane gebruik van de bestemming 'Gemengd - 5'.

6.2.2 zienswijze 2

zienswijze 2

Adres:   Europalaan 98, Renkum  
Ontvangst zienswijze:   27 september 2018  
Inboeknummer:   83020  

samenvatting zienswijze:

Reclamanten zijn de eigenaren van het pand horende bij Europalaan 98 en de eigenaren van de Bed en Breakfast, die is gesitueerd in de bijbehorende lage aanbouw (het voormalige kantoorpand van Vervoersbedrijf Peelen). Aan het begin van het ontwerp bestemmingsplan wordt vermeld dat de initiatiefnemer de eigenaar is van deze panden. Voor de duidelijkheid willen reclamanten kenbaar maken dat de initiatiefnemer niet de eigenaar is van Europalaan 98 met bijbehorende lage aanbouw.

Op een aantal zaken van het ontwerp bestemmingsplan hebben reclamanten bedenkingen:

  • 1. Molenweg 24: Het kantoor/bedrijfspand (over beiden wordt gesproken in het ontwerp) aan de Molenweg 24 zou een woonbestemming krijgen, daar dat beter zou passen in de bestemmingen van de rest van de straat. Hier zijn reclamanten het hier niet mee eens.
    • a. Op dit moment ervaren reclamanten grote privacy en rust in de avonduren en de weekenden wanneer de fysiotherapeut gesloten is. Iets wat niet alleen reclamanten maar ook de buren aan erg kunnen waarderen.
    • b. Reclamanten hebben een tweetal erfdienstbaarheden notarieel laten vastleggen met betrekking tot Molenweg 24. De achtertuin van reclamanten kent alleen een ingang naar de tuin over het erf van Molenweg 24. Aan dit recht van overpad zitten geen beperkingen. Reclamanten hebben te allen tijde toegang tot hun tuin via het erf van Molenweg 24. De toegangspoort tot het erf van Molenweg 24 mag derhalve ook niet afgesloten worden. Noch mogen er belemmerende bouwwerken neergezet worden. In het bestemmingsplan wordt aan het erf nu de bestemming wonen gegeven waardoor bouwen mogelijk wordt. Echter door het recht van overpad verwachten reclamanten mogelijk problemen met eventuele nieuwe bewoners. Deze problemen kennen reclamanten nu niet. Reclamanten zijn ook niet voornemens om het recht van overpad aan te passen. De tweede erfdienstbaarheid betreft de blindering van alle ramen die van Molenweg 24 uitkijken op de tuin van reclamanten tuin. Deze dienen permanent geblindeerd te blijven. Ook dit is notarieel vastgelegd. Derhalve zal het pand slechts vier kleine ramen kennen. Waarvan geen enkele op de benedenverdieping. Ook deze erfdienstbaarheid zijn reclamanten niet voornemens aan te laten passen.
    • c. De muur die nu als erfscheiding dient tussen de tuin van reclamanten en het erf van Molenweg 24 is een gezamenlijke muur, de grens is kadastraal door het hart van de muur getrokken. Aan eventuele aanpassingen of het neerzetten van bouwwerken die hechten aan deze muur zullen reclamanten niet zomaar meewerken.
    • d. Reclamanten hebben vernomen dat de fysiotherapeut in het geheel niet op de hoogte is van het wijzigen van de bestemming van Molenweg 24 van bedrijf naar wonen. Zij hebben dit moeten vernemen van klanten en uit de krant. Het lijkt reclamanten dan ook erg voorbarig van de initiatiefnemer om een bestemming te laten wijzigen van een pand als de gebruikers van het pand dit niet weten. De fysiotherapeut is daarbij niet voornemens om het pand te verlaten. Ze geven aan dat er van het pand nu geen woonhuis te maken is, niet zonder het intern en extern drastisch aan te passen waardoor het hele uiterlijk van het pand veranderd. Deze laatste mening delen reclamanten met hen, zoals u hieronder toegelicht.
    • e. Er ontstaat een situatie die niet wenselijk is door aan de Molenweg 24 een woonbestemming te geven. De eventuele bewoners hebben (nauwelijks) tuin, in ieder geval niet de grootte van een tuin die je bij een dergelijk pand mag verwachten. Ook zullen zij weinig tot geen daglicht binnen krijgen. Het pand is niet ontworpen als woonhuis maar de voormalige waag en stal is ingericht en ontworpen als praktijk/kantoorpand. Iedere aanpassing aan het pand doet het karakteristieke uiterlijk van dit pand geweld aan. Deze aanpassingen zijn echter wel nodig om er een woonhuis van te maken. Tegen dit soort aanpassingen zullen reclamanten dan ook bezwaar maken. Tot slot verwachten reclamanten dat er door de erfdienstbaarheden een moeizame situatie kan ontstaan die voor beiden partijen onwenselijk zal zijn. Voorts constateren reclamanten dat het onderhoud van het pand te wensen overlaat, met name de achterzijde van het pand, direct grenzend aan de tuin van reclamanten, verkeert in een staat van ernstig achterstallig onderhoud. Ook de verbinding tussen de woning van reclamanten en Molenweg 24 is door achterstallig onderhoud lek, zowel reclamanten als de fysiotherapeut ervaren daar klachten van. Reclamanten zouden liever zien dat de gemeente, initiatiefnemer opdraagt zijn panden beter te onderhouden.
    • f. Wat reclamanten betreft vindt er in het geheel geen bestemmingswijziging plaats van het pand aan de Molenweg 24. Het is een statig pand wat zich bij uitstek leent voor het houden van kantoor door een advocaat, notaris of eventueel een makelaar. Er is voldoende eigen parkeerruimte op het erf van Molenweg 24. In het dorp Renkum zijn er weinig tot geen van zulke kantoren te vinden. Inwoners moeten nu veelal naar Oosterbeek of Wageningen om dit soort services te vinden.

  • 2. (voormalige) bedrijfsgebouwen Europalaan 98a, b en c: In het ontwerp bestemmingsplan wordt gesproken over een gemengde bestemming voor de drie voormalige stallen van het boerenbedrijf van Peelen.
    • a. Daar kunnen reclamanten zich tot op zekere hoogte in vinden. Met het Peuterplein hebben reclamanten een uitstekende relatie en we ervaren hen als prettige buren. In de overige twee stallen vinden nu geen activiteiten plaats, anders dan opslag en een hobbyist die er zijn auto's stalt. In het ontwerp staat echter dat er geopperd wordt om daar eventueel een escaperoom, indoorspeeltuin, trampolinehal o.i.d. geopend zou mogen worden. Hier zijn reclamanten absoluut op tegen. Van dergelijke activiteiten denken reclamanten dat deze niet in een woonbuurt zouden moeten plaatsvinden. Het veroorzaakt geluidsoverlast, meer verkeersdruk, ook in de avonduren en de weekenden. De stallen zijn niet geïsoleerd, en reclamanten gaan ervan uit dat initiatiefnemer dit ook niet gaat doen. De stal die in gebruik is door het kinderdagverblijf is ook niet geïsoleerd, wij ervaren geluidoverlast hierdoor als de kinderen binnen spelen. Ook mag je verwachten dat er stankoverlast zal zijn door de horeca die onvermijdelijk meekomt bij eerder genoemde activiteiten. Reclamanten zijn van mening dat het opstarten van een dergelijk initiatief beter in een bedrijfshal op het industrieterrein kan plaatsvinden. Hier is ruimte genoeg. Wanneer reclamanten denken aan de invulling 'cultuur' denken zij niet aan genoemde activiteiten die nu in het ontwerp genoemd worden.
    • b. Mocht de gemeente ruimte willen bieden aan de invulling 'cultuur' dan zouden reclamanten de volgende suggestie ter overweging willen geven. Op dit moment wordt er een tijdelijk papiermuseum in de Dorpsstraat van Renkum ingericht. Een meer permanente invulling van dit museum zou in één van deze voormalige stallen kunnen plaatsvinden. Hier zou de rijke geschiedenis van de papierindustrie van Renkum goed tot zijn recht komen.
    • c. Daarnaast spelen deze stallen een grote rol in de Tweede Wereldoorlog geschiedenis van Renkum. Jan Peelen heeft bijvoorbeeld op deze locatie ondergedoken gezeten na de evacuatie van Renkum en is daarbij niet gevonden door de bezetter. Jan Peelen heeft een prominente rol gespeeld bij Operatie Pegasus I en is daarvoor ook onderscheiden met de WMO. Het Bed & Breakfast van reclamanten heet 'Huis van Peelen' om deze markante inwoner van Renkum te eren. Zou het niet een fantastisch initiatief zijn om van een van de stallen een museum te maken, gewijd aan de Tweede Wereldoorlog geschiedenis van Renkum. De luchtlandingen zijn hier tenslotte begonnen en het leeft enorm in het dorp. Beiden musea zouden natuurlijk in één stal kunnen zitten.

  • 3. Initiatiefnemer bestemmingsplan:
    • a. Voorts willen reclamanten onder de aandacht brengen dat de initiatiefnemer een bijzonder onbetrouwbare partner is gebleken. Alle belanghebbenden hebben meer dan voldoende voorbeelden over de onbetrouwbaarheid van de initiatiefnemer. Reclamanten zijn dan ook niet gerust op de houdbaarheid van dit bestemmingplan. Per slot van rekening noemt de gemeente zelf in het ontwerp twee voorbeelden van de steeds wisselende plannen van initiatiefnemer; het plan uit 2015 en de mogelijke ontwikkeling van appartementen. Reclamanten hebben buiten deze plannen nog vele andere initiatieven vernomen die net zo makkelijk weer aan de kant zijn geschoven voor andere plannen.
    • b. Ook hebben reclamanten vernomen dat initiatiefnemer zelf nog niet weet wat hij met het pand aan de Molenweg wil doen. Verschillende buurtbewoners maken zich zorgen dat hij er studenten in laat wonen. Dit is eerder gebeurt boven de peuterspeelzaal, waarvan een aanzienlijke periode zonder de benodigde vergunningen. Zoals reclamanten eerder ook beschreven hebben is de fysiotherapeut niet eens op de hoogte van het wijzigen van de bestemming. Nog zijn ze van plan om op korte termijn ergens anders naar toe te gaan.
    • c. Initiatiefnemer heeft er een houtje van om eerste uit te voeren en dan pas de benodigde vergunningen aan te vragen. Zoals het verplaatsen van een uitweg voor de toegang tot de voormalige stallen, zonder vergunning. Deze uitweg lag er al enkele weken voordat de aanvraag voor verplaatsen was ingediend. Wijzelf zijn hier enkele keren slachtoffer van geworden. Het vertrouwen in een zorgvuldige uitvoering van het bestemmingplan door Initiatiefnemer trekken reclamanten dan ook ernstig in twijfel.
    • d. Verder is er onzekerheid over de mate van vervuiling die op het terrein aanwezig is. In het bestemmingsplan wordt een verkennend bodemonderzoek aangehaald wat verricht is aan de westkant van het terrein. Reclamanten weten dat er in hun eigen tuin zeker één en mogelijk twee oude diesolie tanks liggen die de initiatiefnemer heeft verzwegen. Hij heeft zelfs verklaard bij de notaris dat er geen tankopslag meer aanwezig was op het erf. Reclamanten hebben hem daarvoor aansprakelijk gesteld, echter tot op heden heeft hij nog geen stappen ondernomen. Reclamanten overwegen om juridische stappen tegen initiatiefnemer te nemen om de tanks te laten onderzoeken en indien nodig te saneren. Reclamanten weten ook dat er op verschillende plaatsen op het terrein mogelijke vervuiling van kolen en andere vaste brandstoffen aanwezig is, nog stammende uit de tijd van de brandstoffenhandel van de familie Peelen. De zorg van reclamanten is dan ook dat er wellicht nog meer verrassingen boven de grond komen als de grond verder ontwikkeld wordt.

  • 4. Reclamanten hebben kennis genomen van het indienen van een zienswijze door de bewoner van Willebrordweg 5 in Renkum. Reclamanten geven aan dat deze bewoner met betrekking tot de stallen dezelfde bedenken heeft als die reclamanten hebben. Reclamanten delen dan ook zijn zienswijze over een andere invulling dat de in het bestemmingsplan voorgenomen invulling. Deze bewoners heeft tevens kennisgenomen van de zienswijze van reclamanten. Reclamanten geven aan dat de bewoner van Willebrordweg 5 de zienswijze van reclamanten onderschrijft.

  • 5. Tot slot willen reclamanten er op wijzen dat ontwerpbestemmingsplan wel erg voorbarig is met de zienswijze op het bestemmingsplan. In de toelichting in het ontwerpbestemmingsplan staat het volgende:

'6.2 Zienswijzen:

Het ontwerpbestemmingsplan 'Europalaan 98, 2018' heeft vanaf 22 augustus 2018 gedurende zes weken, dus tot en met 2 oktober 2018 ter inzage gelegen. In de genoemde periode zijn geen zienswijzen ingediend. In de Staatscourant van 22 augustus 2018 en in het huis-aan-huis-blad Rijn en Veluwe van 22 augustus 2018 is de ter inzage legging bekend gemaakt. Ook op de gemeentelijke website is deze bekendmaking gepubliceerd. Het bestemmingsplan heeft in deze periode analoog ter inzage gelegen in de bibliotheek te Renkum en in het gemeentehuis. Het bestemmingsplan was digitaal ook in te zien op de landelijke website www.ruimtelijkeplannen.nl en op de gemeentelijke website www.renkum.nl.'

Reclamanten wijzen dan vooral op het onderstreepte gedeelte. Blijkbaar wordt ervan uitgegaan dat er geen zienswijze wordt ingediend en wordt een voorschot gemaakt op het definitief maken op dit bestemmingsplan. Dit vinden reclamanten voorbarig en onzorgvuldig.

reactie:

Ad. 1 'Molenweg 24'

Het pand aan de Molenweg 24 heeft de uiterlijke verschijningsvorm van een (grondgebonden)woning en is direct gelegen aan een ontsluitingsweg. Het pand is dus goed te ontsluiten en ligt tussen bestaande woningen in. Het toekennen van een woonfunctie aan dit pand ligt daarmee voor de hand. Daarnaast is er in de gemeente behoefte aan (niet te dure) nieuwe woningen. Dit pand, met een perceeloppervlakte van 315 m² en een (voldoende ruime) achtertuin van circa 90-95 m² zou daar goed voor in aanmerking kunnen komen.

Ook leent het pand zich, mede op grond van hetgeen hiervoor is beschreven, voor een functie als bedrijfswoning in combinatie met een (klein) bedrijf of kantoor of maatschappelijke functie.

Een recht van overpad over het perceel door de bewoners van de Europalaan 98 staat dit gebruik niet per definitie in de weg. Daarvoor zijn oplossingen mogelijk, in die zin dat een speciaal perceelsgedeelte daarvoor wordt ingericht. Het zelfde geldt voor het zorgen voor voldoende licht in het pand aan de Molenweg 24. Het Burgerlijk Wetboek schrijft, net als reclamanten notarieel hebben vastgelegd, voor dat ramen binnen twee meter van de erfgrens niet doorzichtig mogen zijn. Maar op andere (technische) manieren is het mogelijk om voldoende licht te creëren in het pand. Bijvoorbeeld door aan de andere zijden grotere ramen aan te brengen of lichtkoepels/. Daarmee is het mogelijk om het pand ook qua lichtinval geschikt te maken om in te wonen.

Het pand en perceel aan de Molenweg 24 heeft nu nog een bedrijfsbestemming waarbij ook een fysiotherapiepraktijk is toegestaan.

Na overleg met de eigenaar van het pand heeft deze besloten, vooralsnog, de nieuwe woonfunctie in het bestemmingsplan te laten vervallen. Maar de uitdrukkelijke wens om hier alsnog in de toekomst een (bedrijfs)woonfunctie aan toe kennen blijft bestaan. De afweging voor een woonfunctie wordt daarmee doorgeschoven in de tijd. Maar met het nu weghalen van de in het ontwerpbestemmingsplan opgenomen woonbestemming voor Molenweg 24 is gezocht naar een betere bruikbaarheid van het pand en dus een betere bestemming van het pand. Het pand krijgt daarmee ook de bestemming 'Gemengd-5' maar dan met de aanduiding 'gemengd'. Daarmee wordt dan nu het volgende wordt toegestaan:

Conform de huidige bestemming in het bestemmingsplan 'Europalaan 98, 2015' zijn wederom bedrijven in de categorie 1 toegestaan, net als een fysiotherapiepraktijk. Maar nieuw is dat ook andere maatschappelijke functies worden toegestaan, uitsluitend in de vorm van ergotherapie, tandarts, orthodontist, huisarts, (kunst)atelier en creativiteitscentrum. De maatschappelijke functie alhier is, door de toevoeging van de aanduiding 'gemengd', dus beperkter dan hetgeen is toegestaan in de loodsen in de bestemming 'Gemengd - 5'.

Ook wordt hier nu, met de aanduiding 'gemend' een kantoorfunctie toegestaan, conform hetgeen in de zienswijzen is aangegeven.

Daarmee wordt (grotendeels) tegemoetgekomen aan de zienswijzen maar ook aan een betere bruikbaarheid van het pand en (grotendeels) aan de wensen van de pandeigenaar.

Ad. 2a 'cultuur en ontspanning'

Verwezen wordt naar de gegeven reactie op zienswijze 1 en hetgeen is vermeld bij paragraaf 6.3 'ambtshalve wijzigingen'.

Ad. 2b en 2c 'museum'

De door reclamanten genoemde voorstellen voor het toestaan van een museumfunctie, zoals papiermuseum of (lokale) WOII-museum, in het pand kunnen wij onderschrijven. In het ontwerpbestemmingsplan was daarin al voorzien. Daar is stond en staat al reeds dat in de bestemming 'Gemengd - 5 een museum is toegestaan (binnen het gebruik als 'maatschappelijke voorzieningen 1').

Ad 3

Dit onderdeel van de zienswijze wordt voor kennisgeving aangenomen. Mede omdat dit geen directe relatie heeft met het voorliggende bestemmingsplan.

Ad. 4

Dit wordt voor kennisgeving aangenomen. Voor de inhoudelijke reactie hierop wordt verwezen naar de reactie op zienswijze 1.

Ad. 5

Als reactie op het laatste onderdeel van de zienswijze; de tekst bij paragraaf 6.2 van de toelichting van het ontwerpbestemmingsplan, kan worden vermeld dat daar uiteraard per abuis het woord 'geen' stond bij het aantal ingediende zienswijzen. Dat betreft een 'knip-en-plak-fout' van onze standaardtekst uit een ander bestemmingsplan. Daar had het woord 'PM' moeten staan. Het is duidelijk dat dit geen enkele waarde heeft, want is uiteraard van te voren niet in te schatten / duidelijk of er wel of geen zienswijzen worden ingediend.

conclusie:

De zienswijze leidt tot de volgende aanpassingen van het bestemmingsplan

  • Samen met de ambtshalve wijziging, zoals vermeld in paragraaf 6.3, is het gebruik voor 'cultuur en ontspanning' vervallen in het toegestane gebruik van de bestemming 'Gemengd - 5'.
  • De bestemming van het pand aan de Molenweg 24 wordt ten opzichte van het ontwerpbestemmingsplan gewijzigd van 'Wonen' naar 'Gemengd -5', met de aanduiding 'gemengd'. daarbinnen is nu het volgende toegestaan:
    • 1. bedrijven in de categorie 1;
    • 2. maatschappelijke voorzieningen 1, uitsluitend in de vorm van fysiotherapie, tandarts, orthodontist, ergotherapie, huisarts, (kunst)atelier en creativiteitscentrum;
    • 3. kantoor.

6.2.3 zienswijze 3

zienswijze 3 (gezamenlijke zienswijze)

Adres:   Europalaan 98, Europalaan 57, Europalaan 61, Europalaan 63, Europalaan 65, Europalaan 67, Europalaan 102, Europalaan 98a (huurder: Peuterplein) en Bergerhof 1; allen te Renkum  
Ontvangst zienswijze:   1 oktober 2018  
Inboeknummer:   83020  

samenvatting zienswijze:

  • A. (voormalige) bedrijfsgebouwen Europalaan 98a, b en c: In het ontwerp bestemmingsplan wordt gesproken over een gemengde bestemming voor de drie voormalige stallen van het boerenbedrijf van Peelen.
    • a. Daar kunnen reclamanten zich tot op zekere hoogte in vinden. Met het Peuterplein hebben reclamanten een uitstekende relatie en we ervaren hen als prettige buren. In de overige twee stallen vinden nu geen activiteiten plaats, anders dan opslag en een hobbyist die er zijn auto's stalt. In het ontwerp staat echter dat er geopperd wordt om daar eventueel een escaperoom, indoorspeeltuin, trampolinehal o.i.d. geopend zou mogen worden. Hier zijn reclamanten absoluut op tegen. Van dergelijke activiteiten denken reclamanten dat deze niet in een woonbuurt zouden moeten plaatsvinden. Het veroorzaakt geluidsoverlast, meer verkeersdruk, ook in de avonduren en de weekenden. De stallen zijn niet geïsoleerd, en reclamanten gaan ervan uit dat initiatiefnemer dit ook niet gaat doen. De stal die in gebruik is door het kinderdagverblijf is ook niet geïsoleerd. Geluid komt makkelijk door de steense muren heen. Ook mag je verwachten dat er stankoverlast zal zijn door de horeca die onvermijdelijk meekomt bij eerder genoemde activiteiten. In het plan wordt geopperd dat er voldoende parkeerplekken zijn. Reclamanten betwijfelen dat. Als er vier huizen worden gebouwd, is ruim 1000 m² niet meer beschikbaar als parkeerruimte. De ruimte die overblijft is volgens reclamanten niet toereikend voor dergelijke activiteiten. Reclamanten zijn van mening dat het opstarten van een dergelijk initiatief beter in een bedrijfshal op het industrieterrein kan plaatsvinden. Hier is ruimte genoeg. Wanneer reclamanten denken aan de invulling 'cultuur' denken zij niet aan genoemde activiteiten die nu in het ontwerp genoemd worden.
    • b. Mocht de gemeente ruimte willen bieden aan de invulling 'cultuur' dan zouden reclamanten de volgende suggestie ter overweging willen geven. Op dit moment wordt er een tijdelijk papiermuseum in de Dorpsstraat van Renkum ingericht. Een meer permanente invulling van dit museum zou in één van deze voormalige stallen kunnen plaatsvinden. Hier zou de rijke geschiedenis van de papierindustrie van Renkum goed tot zijn recht komen.
    • c. Daarnaast spelen deze stallen een grote rol in de Tweede Wereldoorlog geschiedenis van Renkum. Jan Peelen heeft bijvoorbeeld op deze locatie ondergedoken gezeten na de evacuatie van Renkum en is daarbij niet gevonden door de bezetter. Jan Peelen heeft een prominente rol gespeeld bij Operatie Pegasus I en is daarvoor ook onderscheiden met de WMO. Het Bed & Breakfast van reclamanten heet 'Huis van Peelen' om deze markante inwoner van Renkum te eren. Zou het niet een fantastisch initiatief zijn om van een van de stallen een museum te maken, gewijd aan de Tweede Wereldoorlog geschiedenis van Renkum. De luchtlandingen zijn hier tenslotte begonnen en het leeft enorm in het dorp. Beiden musea zouden natuurlijk in één stal kunnen zitten.
  • B. Reclamanten hebben kennis genomen van het indienen van een zienswijze door de bewoner van Willebrordweg 5 in Renkum. Reclamanten geven aan dat deze bewoner met betrekking tot de stallen dezelfde bedenken heeft als die reclamanten hebben. Reclamanten delen dan ook zijn zienswijze over een andere invulling dat de in het bestemmingsplan voorgenomen invulling. Deze bewoners heeft tevens kennisgenomen van de zienswijze van reclamanten. Reclamanten geven aan dat de bewoner van Willebrordweg 5 de zienswijze van reclamanten onderschrijft.

reactie:

Deze zienswijze is nagenoeg gelijk aan enkele onderdelen van zienswijze 2. Het gaat dan om de onderdelen 2 (a, b en c) en onderdeel 4 van zienswijze 2. Het enige verschil tussen beide zienswijzen op die onderdelen zijn de onderstreepte delen in deze zienswijze (onderdeel A, sub b).

Ad. A. Verwezen wordt naar de gegeven reactie op zienswijze 2, bij de onderdelen 2,a, 2b en 2c. Voor de onderstreepte delen in de zienswijze wordt (tevens) verwezen onderdelen naar de gegeven reactie op zienswijze 1.

Ad. B. Verwezen wordt naar de gegeven reactie op zienswijze 2, bij onderdeel 4.

conclusie:

De zienswijze leidt tot de volgende aanpassing van het bestemmingsplan:

  • Samen met de ambtshalve wijziging, zoals vermeld in paragraaf 6.3, is het gebruik voor 'cultuur en ontspanning' vervallen in het toegestane gebruik van de bestemming 'Gemengd - 5'.

6.3 Ambtshalve wijzigingen

Het volgende is ambtshalve gewijzigd ten opzichte van het ontwerpbestemmingsplan:

  • Loodsen (Europalaan 98a, b en c):

De gemeente heeft gezocht naar een ruimer gebruik van de loodsen wat zou kunnen bijdragen aan het behoud van de loodsen en wat een toevoeging zou kunnen zijn aan gebruik wat niet aanwezig is in de gemeente. Daarbij werd tevens gedacht aan een vorm van cultuur en ontspanning, in de vorm van bowlingbaan, escaperoom, trampolinehal, lasergame en indoorspeeltuin. Dit toegevoegde gebruik was geen direct verzoek of wens van de eigenaar van de loodsen.

Na een nadere bestudering van de (fysieke staat van de) loodsen en de parkeerbehoefte die daarbij hoort en de afstanden tot omliggende woningen is de gemeente al kort na terinzagelegging van het ontwerpbestemmingsplan ambtshalve tot de conclusie gekomen dat dit, in de bestemming, toegevoegde gebruik geen goede is voor deze locatie. Daarom is reeds toen al besloten om dit te laten vervallen, en zou dit gebruik ambtshalve gewijzigd worden en vervallen in het vast te stellen bestemmingsplan. De ingediende zienswijzen op dit punt kunnen wij daarom ook onderschrijven. Deze onderbouwen ook ons reeds ingenomen ons ambtshalve standpunt. De toevoeging van gebruik voor 'cultuur en ontspanning' in wordt daarom verwijderd in het vast te stellen bestemmingsplan binnen het toegestane gebruik in de bestemming 'Gemengd-5'.

  • enkele klein tekstuele wijzigingen in de toelichting naar aanleiding van de voorgenoemde aanpassing. Daarnaast is ook de naam van het bestemmingsplan aangepast van 'Europalaan 98, 2018' naar 'Europalaan 98 e.o., 2019' . Dit omdat het plan in 2019 wordt vastgesteld en omdat het plan betrekking heeft op (iets) meer dan alleen Europalaan 98. Hiermee dekt de naam nog iets beter de lading van het plangebied.

6.4 Wijzigingen naar aanleiding van zienswijzen

Naar aanleiding van de zienswijzen is het volgende aangepast gewijzigd ten opzichte van het ontwerpbestemmingsplan:

  • Samen met de ambtshalve wijziging, zoals vermeld in paragraaf 6.3, is het gebruik voor 'cultuur en ontspanning' vervallen (in de regels) in het toegestane gebruik van de bestemming 'Gemengd - 5'.
  • De bestemming van het pand aan de Molenweg 24 wordt (in de regels en op de verbeelding) ten opzichte van het ontwerpbestemmingsplan gewijzigd van 'Wonen' naar 'Gemengd -5', met de aanduiding 'gemengd'. daarbinnen is nu het volgende toegestaan:
    • 1. bedrijven in de categorie 1;
    • 2. maatschappelijke voorzieningen 1, uitsluitend in de vorm van fysiotherapie, tandarts, orthodontist, ergotherapie, huisarts, (kunst)atelier en creativiteitscentrum;
    • 3. kantoor.
  • De voorgenoemde aanpassingen leiden daarom ook, samen met de ambtshalve aanpassingen, tot enkele kleine tekstuele wijzigingen in de toelichting van het bestemmingsplan.

Hierna staan de verbeelding van het ontwerpplan en het definitieve plan weergegeven.

afbeelding "i_NL.IMRO.0274.bp0193rh-va02_0015.png"

Afbeelding: het ontwerpbestemmingsplan 'Europalaan 98, 2018' (zoals dat ter inzage heeft gelegen)

afbeelding "i_NL.IMRO.0274.bp0193rh-va02_0016.png"

Afbeelding: definitief bestemmingsplan 'Europalaan 98 e.o., 2019' (de wijziging t.o.v. ontwerpbestemmingsplan betreft de locatie Molenweg 24 en de naam van het bestemmingsplan)