direct naar inhoud van Ruimtelijke onderbouwing
Plan: Buitengebied, ZB De Akker 10 in Ingen
Status: vastgesteld
Plantype: omgevingsvergunning
IMRO-idn: NL.IMRO.0214.BUIOMG2018002-vs01

Ruimtelijke onderbouwing

Hoofdstuk 1 Inleiding

1.1 Aanleiding voor het initiatief

Aan de Akker 10 in Ingen is de zorgboerderij 'Landelijk Leven' gevestigd. Deze zorgboerderij bestaat reeds 11 jaar als zodanig op deze locatie. Het initiatief omvat realisatie van een woongebouw met 14 woonzorgeenheden op het perceel naast de zorgboerderij. In het geldende bestemmingsplan heeft dit perceel echter een agrarische bestemming. De beoogde functie alsook een gebouw is daarom niet mogelijk op de beoogde plek.

Omdat het initiatief gewenst is en passend is op de locatie, wordt medewerking verleend aan deze ontwikkeling. In dit document wordt dit toegelicht en gemotiveerd waarom dat kan volgens de Wet ruimtelijke ordening (Wro).

1.2 Ligging plangebied

Het plangebied is gelegen in het buitengebied tussen Ingen en Eck en Wiel. Bijgevoegde afbeelding toont globaal de ligging van het plangebied in de omgeving.

afbeelding "i_NL.IMRO.0214.BUIOMG2018002-vs01_0001.jpg"

Globale ligging plangebied (Bron: OpenStreetMap)

1.3 Leeswijzer

Na dit inleidende hoofdstuk is in hoofdstuk 2 het initiatief beschreven. In hoofdstuk 3 wordt ingegaan op het relevante Rijks-, provinciale-, en gemeentelijke beleid. In hoofdstuk 4 is het project inhoudelijk op haalbaarheid getoetst op grond van het geldende beleid en (milieu)wetgeving. Tevens wordt ingegaan op de economische haalbaarheid van het plan. Tot slot gaat hoofdstuk 5 in op de maatschappelijke uitvoerbaarheid van het plan, waarbij de uitkomsten van overleg en zienswijzen zijn opgenomen.

Hoofdstuk 2 Het initiatief

In dit hoofdstuk wordt het initiatief beschreven. Eerst wordt ingegaan op de bestaande situatie van het plangebied en de relatie met de omgeving. Daarna wordt ingezoomd op het beoogde initiatief.

2.1 Huidige situatie

Het plangebied aan de Akker 10 ligt in het landelijk gebied tussen de kernen van Ingen en Eck en Wiel. Het landschap ligt op de overgang tussen het oeverwallen- en kommengebied. De weg De Akker sluit ten noorden van het plangebied aan op de Ganzert. Langs de Ganzert is een bebouwingslint aanwezig met vooral burgerwoningen. Het agrarisch gebied in de omgeving is voornamelijk gericht op het kweken van bomen of op de fruitteelt.

Op de luchtfoto is het plangebied aangegeven. De bestaande bebouwing van de zorgboerderij bestaat uit de woning waar de eigenaar woont, een logeerhuis voor cliënten en enkele bijgebouwen. Op het terrein staan verder nog wat dierenverblijven. Ook zijn er een moestuin, een paardenbak en een speelweide aanwezig. In het noordelijk deel van het plangebied staat een panna kooi.

afbeelding "i_NL.IMRO.0214.BUIOMG2018002-vs01_0002.jpg"

Ligging plangebied

Op dit moment biedt Landelijk leven dagbesteding en weekend- en vakantieopvang aan kinderen van 4 tot 21 jaar met een verstandelijke beperking en/of een vorm van autisme. Daarnaast biedt Landelijk leven ambulante thuisbegeleiding aan ouders / gezin, huiswerkbegeleiding en crisisopvang.

2.2 Toekomstige situatie

Landelijk leven wil graag haar zorg- en dienstverlening uitbreiden op de huidige locatie. Ze wil een nieuw gebouw (twee verdiepingen) realiseren waar jong volwassenen vanaf 16 jaar met een verstandelijke beperking (minimaal Zorgzwaartepakket VG3) begeleid kunnen wonen. In totaal gaat het om 12 zorgeenheden voor maximaal 12 cliënten. Een deel van het gebouw gebruiken ze voor de uitbreiding van de dagbestedingsmogelijkheden. Daarnaast wil ze 2 onzelfstandige wooneenheden realiseren voor mensen die begeleid worden naar zelfstandig wonen. In bijlage 2 wordt dieper ingegaan op het initiatief.

Het ontwerp van het woongebouw bestaat uit een hoger gedeelte (2 lagen met kap) en twee kleinere vleugels. In het hoge gedeelte is plaats voor de 12 zorgeenheden, die gebruik maken van gezamenlijke voorzieningen. In één van de vleugels wonen de 2 bewoners in een meer zelfstandige vorm. In de andere vleugel is een atelier gesitueerd. In de situatietekening is de situering van het gebouw te zien.

afbeelding "i_NL.IMRO.0214.BUIOMG2018002-vs01_0003.png"

Situatietekening nieuw gebouw in relatie tot de bestaande gebouwen en voorzieningen (bron: Buro van Blijderveen)

Het gebouw bestaat uit 2 lagen met kap en verwijst met haar verschijningsvorm naar de fruitschuren die in de omgeving te vinden zijn. Het kleur- en materiaalgebruik sluit hier ook op aan. Door de situering achter de bestaande bebouwing is de impact op de omgeving beperkt. De afbeeldingen geven een indruk van het gebouw.

afbeelding "i_NL.IMRO.0214.BUIOMG2018002-vs01_0004.png"

Impressie voorlopig ontwerp (bron: Buro van Blijderveen)

afbeelding "i_NL.IMRO.0214.BUIOMG2018002-vs01_0005.png"

Impressie voorlopig ontwerp (bron: Buro van Blijderveen)

Het terrein zal in gebruik blijven als buitenterrein van de zorgboerderij. Het zal worden voorzien van streekeigen beplanting. Door de omliggende restanten van boomgaarden en boomkwekerijen is het terrein reeds landschappelijk ingepast.

Bij de ontsluiting van het gebouw wordt gebruik gemaakt van de bestaande inrit. De reeds bestaande parkeerplaats zal worden heringericht al naar gelang de behoefte. Er is in elk geval ruimte voldoende aanwezig om aan de parkeernorm te voldoen (zie ook paragraaf 4.4).

 

Hoofdstuk 3 Beleidskader

3.1 Rijksbeleid

Structuurvisie Infrastructuur en Ruimte (SVIR) en Besluit algemene regels ruimtelijke ordening (Barro)

Gebiedsgericht

De SVIR benoemt een aantal aspecten van nationaal ruimtelijk belang. Het betreft de bescherming van de waterveiligheid aan de kust en rond de grote rivieren, bescherming en behoud van de Waddenzee en enkele werelderfgoederen, de uitoefening van defensietaken, de ecologische hoofdstructuur, de elektriciteitsvoorziening, de toekomstige uitbreiding van het hoofd(spoor)wegennet en de veiligheid rond rijksvaarwegen. Voorts betreft het enkele specifieke gebieden, zoals de mainportontwikkeling van Rotterdam en Schiphol.

In het Barro heeft het Rijk voor deze onderwerpen regels opgesteld waarmee de SVIR juridisch verankerd is richting lagere overheden. Via het Besluit ruimtelijke ordening en het Besluit omgevingsrecht zijn deze regels aanvullend vastgelegd.

In de SVIR worden, naast de onderwerpen van nationaal belang, accenten geplaatst op het gebied van bestuurlijke verantwoordelijkheden. Het beleid betekent een decentralisatie van rijkstaken en bevoegdheden. Het Rijk gaat zo min mogelijk op de stoel van provincies en gemeenten zitten en lagere overheden, burgers en bedrijven krijgen, zolang het nationaal belang niet in het geding is, de ruimte om oplossingen te creëren.

Ladder duurzame verstedelijking

Een meer algemeen onderwerp uit de SVIR is 'duurzame verstedelijking'. Via de 'ladder voor duurzame verstedelijking' wordt een zorgvuldige afweging en besluitvorming geborgd bij ruimtelijke vraagstukken in stedelijk gebied. Het gebruik van deze ladder is opgenomen in het Bro, artikel 3.1.6 onder 2.

De ladder richt zich op nieuwe stedelijke ontwikkelingen. In de toelichting van een plan dat een nieuwe stedelijke ontwikkeling mogelijk maakt, dient de behoefte aan die ontwikkeling te worden beschreven. Als de ontwikkeling buiten het bestaand stedelijk gebied plaatsvindt, moet bovendien gemotiveerd worden waarom niet binnen het bestaand stedelijk gebied in die behoefte kan worden voorzien.

Het Bro beschrijft wat een stedelijke ontwikkeling is. Daar wordt het volgende onder verstaan: "een ruimtelijke ontwikkeling van een bedrijventerrein of zeehaventerrein, of van kantoren, detailhandel, woningbouwlocaties of andere stedelijke voorzieningen." Onder 'bestaand stedelijk gebied' wordt het volgende verstaan: "bestaand stedenbouwkundig samenstel van bebouwing ten behoeve van wonen, dienstverlening, bedrijvigheid, detailhandel of horeca, alsmede de daarbij behorende openbare of sociaal culturele voorzieningen, stedelijk groen en infrastructuur."

Per 01 juli 2017 is de ladder voor duurzame verstedelijking herzien. Bij de herziening zijn onder meer de drie afzonderlijke 'treden' van de ladder losgelaten en is het begrip 'actuele regionale behoefte' gewijzigd in 'behoefte'. Nieuw is dat de laddertoets bij flexibele plannen kan worden doorgeschoven naar het moment van vaststelling van een wijzigings- of uitwerkingsplan.

Planspecifiek

Gebiedsgericht

Het plangebied ligt inet in een van de aangewezen gebieden van de SVIR en het Barro.

Ladder duurzame verstedelijking

Het voorliggend plan betreft geen stedelijke ontwikkeling. Het plan hoeft niet getoetst te worden aan de ladder voor duurzame verstedelijking.

Het rijksbeleid staat daarmee dit initiatief niet in de weg.

3.2 Provinciaal beleid

Algemeen

Het provinciaal beleid is vastgelegd in de Omgevingsvisie en Omgevingsverordening van Gelderland. Deze zijn in 2014 vastgesteld en sindsdien een aantal keren geactualiseerd naar aanleiding van nieuwe wetgeving of nieuwe initiatieven. De Omgevingsverordening is een uitwerking van de Omgevingsvisie en stelt regels waaraan bestemmingsplannen moeten voldoen.

Omgevingsvisie Gelderland

De Omgevingsvisie heeft een tweetal doelen geformuleerd, te weten:

  • 1. Duurzame economische structuurversterking;

Een gezonde economie met een aantrekkelijk vestigingsklimaat vraagt om sterke steden en vitale dorpen met voldoende werkgelegenheid. Deze versterking van de economie gebeurt in een andere context dan een aantal jaar geleden. De komende jaren zullen minder in het teken staan van denken in termen van 'groei' en meer in termen van 'beheer en ontwikkeling van het bestaande'. Ter versterking van de kansen voor bedrijvigheid zet de provincie gericht stappen om ruimte te bieden aan initiatiefnemers en om hen te faciliteren. Dat betekent vooral:

  • kansen bieden aan bestaande bedrijven,
  • creëren van een aantrekkelijk vestigingsklimaat in de stedelijke regio's,
  • creëren van een goede bereikbaarheid van de stedelijke gebieden en de economische kerngebieden met fiets, openbaar vervoer en auto maar ook digitaal,
  • versterken van ruimtelijke randvoorwaarden voor de sterke (top)sectoren,
  • een gezonde vrijetijdseconomie,
  • een adequaat beheer van de bestaande bedrijventerreinen, kantoren en detailhandel in Gelderland, zowel kwalitatief als kwantitatief en een daarop aangepaste aanpak van eventuele nieuwe plannen.
  • 2. Borgen van de kwaliteit en veiligheid van de leefomgeving.

De realisatie van deze tweede centrale doelstelling betekent vooral:

  • ontwikkelen met kwaliteit, recht doen aan de ruimtelijke, landschappelijke en cultuurhistorische kwaliteiten van de plek,
  • zorg dragen voor een compact en hoogwaardig stelsel van onderling verbonden natuurgebieden en behoud en versterking van de kwaliteit van het landschap,
  • een robuust en toekomstbestendig water- en bodemsysteem voor alle gebruiksfuncties; bij droogte, hitte en waterovervloed, een gezonde en veilige leefomgeving.

Om ontwikkelingen met kwaliteit te ondersteunen zijn de gebiedskwaliteiten in Gelderland opgenomen in een Gebiedenatlas.

Bij ruimtelijke initiatieven is de uitdaging de match te maken tussen de kwaliteiten van het betreffende initiatief en de kwaliteiten van de plek of het gebied waar het initiatief speelt.

Gelderse ladder voor duurzaam ruimtegebruik

De provincie en partners gaan nieuwe ontwikkelingen bezien in samenhang met de bestaande voorraad. Als leidend principe wordt de Gelderse ladder voor duurzaam ruimtegebruik gehanteerd. De juridische basis hiervoor is de ladder voor duurzame verstedelijking die het Rijk heeft vastgelegd in het Besluit ruimtelijke ordening (Bro).

Omgevingsverordening Gelderland

De verordening voorziet ten opzichte van de Omgevingsvisie niet in nieuw beleid en is daarmee dus beleidsneutraal. De inzet van de verordening als juridisch instrument om de doorwerking van het provinciaal beleid af te dwingen is beperkt tot die onderdelen van het beleid waarvoor de inzet van algemene regels noodzakelijk is om provinciale belangen veilig te stellen of om uitvoering te geven aan wettelijke verplichtingen.

Planspecifiek

Het plangebied ligt in het Nationaal Landschap Rivierengebied (deelgebied Lienden). Nieuwe bestemmingen zijn alleen mogelijk als die de kernkwaliteiten van een Nationaal Landschap niet aantasten of versterken.

Enkele benoemde kernkwaliteiten die in en rondom het plangebied zijn:

  • Karakteristieke kleinschalige oeverwal met rijke afwisseling van boomgaarden, grasland, buurtschappen, dorpen, verspreide bebouwing, beeldbepalende boerderijen en kleigaten; in contrast met het naastliggende open komgebied
  • Het gehele gebied bestaat overwegend uit oeverwalgronden, en contrasteert als geheel met de grootschalige open kommen zuidelijk. Binnen het gebied komen tal van kleinere lage gebiedjes langs weteringen voor die een kleinschaliger contrast opleveren met de iets hoger gelegen echte oeverwalgronden
  • De meeste gronden, zowel op oeverwallen als in de kleine lage gebieden, hebben een richting die haaks op de hoogtelijnen staat. Perceelsranden hebben veelal een hoge ouderdom.
  • De nederzettingen hebben veelal hun open karakter behouden, in die zin dat ze visueel niet afgesloten zijn van het omringende landschap; voor de dorpen geldt dit, maar sterker nog voor de vele kleine nederzettingen. Deze zijn veelal lintvormig langs een verbindingsweg, zoals Ganzert.
  • Door het gehele gebied komen karakteristieke grote T-boerderijen voor.

Onderhavig initiatief voegt bebouwing toe maar is ondersteunend aan de huidige reeds aanwezige maatschappelijke functie van zorgboerderij. Door de situering achter op de kavel en de omliggende bebouwing is de impact van het gebouw op het omliggende landschap beperkt. Het plangebied wordt beplant met streekeigen beplanting, waardoor het initiatief landschappelijk wordt ingepast. Het initiatief tast daarmee de kernkwaliteiten van het Nationaal Landschap Rivierengebied niet aan.

Omdat het om een zorgboerderij gaat, passen de activiteiten in het buitengebied. Het gaat om uitbreiding van een reeds bestaande zorgboerderij, dit geeft een impuls aan de lokale economie.

In paragraaf 3.1 is reeds onderbouwd waarom een toetsing aan de Ladder voor duurzame verstedelijking niet noodzakelijk is.

3.3 Gemeentelijk beleid

Buren, Structuurvisie 2009-2019

De structuurvisie bevat de hoofdlijnen van de voorgenomen ontwikkeling van de gemeente

Buren, alsmede de hoofdzaken van het door de gemeente te voeren ruimtelijk beleid. Het

gave rivierenlandschap in combinatie met weinig verstedelijking zorgt voor kwaliteiten als rust,

ruimte en een schoon milieu. Het ruimtelijk beleid van de gemeente is erop gericht deze

kwaliteiten te behouden en verder uit te bouwen, zodanig dat ze bepalend worden voor het

imago van de gemeente.

Daarbij zal ernaar worden gestreefd de kwetsbare aspecten, zoals leefbaarheid en het

voorzieningenniveau, binnen de kernen en buurtschappen op peil houden. De kwaliteiten van

het landschap en de rijke cultuurhistorie bieden goede aanknopingspunten voor versterking

van recreatie en toerisme binnen de gemeente. Hier liggen kansen voor versterking van de

economische basis van de gemeente.

Planspecifiek

De structuurvisie gaat niet specifiek in op het aspect zorgboerderijen. Wel ligt de locatie De Akker 10 op de structuurvisiekaart in de landschappelijke versterkingszone "Rivieroeverwallen". Doelstelling van deze landschappelijke versterkingszone is behoud en ontwikkeling van de afwisselende landschapsstructuur, versterking van groene relaties tussen dorpen en buitengebied. Ook moet de ontwikkeling van nieuwe landgoederen, buitenplaatsen, ruime erven en groene kavels gestimuleerd worden. Ontwikkeling van een nieuw gebouw bij de zorgboerderij staat deze doelstelling niet in de weg: het gebouw wordt 'achter' de bestaande bebouwing gerealiseerd en het perceel wordt landschappelijk ingepast.

Woonvisie gemeente Buren

In de Woonvisie gemeente Buren (2010-2020) staat dat de gemeente wil dat inwoners van de gemeente Buren nu en in de toekomst de zorg kunnen organiseren die ze nodig hebben. De gemeente stelt daarvoor een toetsingskader op voor nieuwe initiatieven op het gebied van wonen en zorg. De gemeente toetste dit initiatief en kwam tot de conclusie dat het voorziet in de behoefte aan zorgvoorzieningen in de gemeente Buren.

Geldend bestemmingsplan

Ter plaatse van het plangebied geldt het 'Reparatieplan Buitengebied 2012', vastgesteld door

de gemeenteraad op 21 januari 2014. Bijgevoegd een uitsnede van de verbeelding hiervan.

afbeelding "i_NL.IMRO.0214.BUIOMG2018002-vs01_0006.jpg"

Uitsnede bestemmingsplan

In het geldende bestemmingsplan heeft het plangebied de bestemming 'Agrarisch'. Het perceel ernaast, de zorgboerderij, heeft reeds de bestemming 'Maatschappelijk'. Ook is er in het hele

plangebied een dubbelbestemming 'Waarde - Archeologisch onderzoeksgebied-1' aanwezig.

De ontwikkeling met de woonfunctie past niet binnen de bestemming 'Agrarisch' en is dus strijdig met het geldende bestemmingsplan. De aanvraag van een omgevingsvergunning is nodig om de functie en de bebouwing toe te kunnen staan.

Hoofdstuk 4 Uitvoerbaarheid

Voor een buitenplanse afwijking van het bestemmingsplan moet als gevolg van het Besluit ruimtelijke ordening (Bro) de uitvoerbaarheid aangetoond worden (artikel 3.1.6 van het Bro). Daaronder valt zowel de onderzoeksverplichting naar verschillende ruimtelijk relevante aspecten (geluid, bodem, etc.) als ook de economische uitvoerbaarheid van het plan.

4.1 Milieu

4.1.1 Bodem

Op grond van de Wet Bodembescherming (Wbb) moet aangetoond worden dat de kwaliteit van de bodem en het grondwater in het plangebied in overeenstemming is met het beoogde gebruik. De bodemkwaliteit kan namelijk van invloed zijn op de beoogde functie van het plangebied. Bij een functiewijziging zal in veel gevallen een specifiek bodemonderzoek moeten worden uitgevoerd.


Planspecifiek

De gronden in het plangebied zijn in het verleden in gebruik geweest als kweekgronden. De toplaag is daarmee automatisch verdacht in het kader van gebruikte bestrijdingsmiddelen. Om aan te tonen dat de bodemkwaliteit voldoende is voor de beoogde nieuwe functie, is een bodemonderzoek uitgevoerd. Hieruit is gebleken dat de bodemkwaliteit geschikt is voor de beoogde functie. Het bodemonderzoek is bij de vergunningaanvraag gevoegd.

4.1.2 Lucht

De mate van blootstelling aan luchtverontreiniging speelt een rol in het kader van een goede ruimtelijke ordening. Met betrekking tot 'luchtkwaliteit' zijn twee aspecten van belang. Ten eerste of de luchtkwaliteit ter plaatse de nieuwe functie toelaat (de gevoeligheid van de bestemming) en ten tweede wat de bijdrage is van het plan aan die luchtkwaliteit.


Luchtkwaliteit ter plaatse

In de Wet milieubeheer zijn normen opgenomen voor de concentraties van een aantal stoffen in de buitenlucht ter bescherming van de mens. De twee belangrijkste stoffen zijn PM10 (fijnstof) en NO2 (stikstofdioxide). De grenswaarde hiervan bedraagt 40 µg/m3.


Bijdrage aan luchtkwaliteit

In de Wet milieubeheer zijn de belangrijkste bepalingen over luchtkwaliteitseisen opgenomen. De Wet maakt een onderscheid tussen 'kleine' en 'grote' projecten. Kleine projecten dragen 'niet in betekenende mate' (NIBM) bij aan verslechtering van de luchtkwaliteit. Een paar honderd grote projecten dragen juist wel 'in betekenende mate' bij aan de verslechtering van de luchtkwaliteit. Het gaat hierbij vooral om bedrijventerreinen en infrastructuur (wegen).


Wat het begrip 'in betekenende mate' precies inhoudt, staat in de algemene maatregel van bestuur "Niet in betekenende mate bijdragen" (Besluit NIBM). Op hoofdlijnen komt het erop neer dat 'grote' projecten die jaarlijks meer dan 3 procent bijdragen aan de jaargemiddelde norm voor fijn stof en stikstofdioxide (1,2 microgram per m3) een 'betekenend' negatief effect hebben op de luchtkwaliteit. 'Kleine' projecten die minder dan 3 procent bijdragen, kunnen doorgaan zonder toetsing. Dat betekent bijvoorbeeld dat lokale overheden een toevoeging van minder dan 1.500 huizen niet hoeven te toetsen aan de normen voor luchtkwaliteit, omdat een dergelijk project per definitie niet boven de 3%-norm komt. Deze kwantitatieve vertaling naar verschillende functies is neergelegd in de Regeling 'niet in betekenende mate bijdragen'.


Planspecifiek

Luchtkwaliteit ter plaatse van het initiatief

Vanuit een goede ruimtelijke ordening is de huidige luchtkwaliteit ter plaatse getoetst met behulp van de NSL Monitoringstool (www.nsl-monitoring.nl). Door de metingen ter plaatse te toetsen aan de grenswaarden is gekeken of sprake is van een goed woon- en leefklimaat. Uit metingen van het rekenpunt 15559754 (aan de L ,i ter hoogte van plangebied) zijn de volgende concentraties naar voren gekomen:

  NO2 (stikstofdioxide)   PM10 (Fijn stof)  
Gemeten totale concentratie jaargemiddelde 2015 (µg/m3)   17,9 µg/m3   18,3 µg/m3  
Grenswaarde concentratie (µg/m3)   40 µg/m3   40 µg/m3  

De gemeten concentraties stikstofdioxide en fijn stof liggen ruim onder de gestelde grenswaarden. Met betrekking tot de luchtkwaliteit zijn geen belemmeringen voor onderhavig initiatief.

Bijdrage initiatief

Voorliggend plan voorziet in de realisatie van 14 wooneenheden. Door deze ontwikkeling kan het aantal verkeersbewegingen ten opzichte van de bestaande situatie toenemen. Deze toename zal echter niet zodanig zijn dat deze de benoemde grenswaarde van 3% overschrijdt. Het project draagt 'niet in betekende mate' bij aan de luchtkwaliteit. Een nadere toetsing ten aanzien van het aspect luchtkwaliteit kan daarom achterwege blijven.

Het initiatief is uitvoerbaar met betrekking tot het aspect luchtkwaliteit.

4.1.3 Geluid

De mate waarin het geluid het woonmilieu mag belasten, is geregeld in de Wet geluidhinder (Wgh). De kern van de wet is dat geluidsgevoelige objecten worden beschermd tegen geluidhinder uit de omgeving. In de Wgh worden de volgende objecten beschermd:

  • woningen;
  • geluidsgevoelige gebouwen, zoals scholen, ziekenhuizen, verzorgings- en verpleeghuizen, psychiatrische instellingen en kinderdagverblijven;
  • geluidsgevoelige terreinen (woonwagenstandplaatsen en bestemde ligplaatsen voor woonschepen).

Het beschermen van deze geluidsgevoelige objecten gebeurt aan de hand van vastgestelde zoneringen. Binnen deze zones bepaalt het bevoegd gezag de te hanteren grenswaarden. Er geldt een voorkeursgrenswaarde en een bovengrens (hoger mag niet). De Wgh gaat verder onder meer ook in op geluidwerende voorzieningen, geluidbelastingkaarten en actieplannen. De belangrijkste bronnen van geluidhinder die bij een ruimtelijke ontwikkeling aan de orde kunnen zijn betreffen: industrielawaai, wegverkeerslawaai en spoorweglawaai.

Planspecifiek

Het voorliggend plan betreft een geluidsgevoelig object. Echter is er al een woonfunctie, de boerderij van de eigenaar, aan De Akker gelegen. Daarbij is er in het geval van De Akker sprake van een zeer rustige landelijke weg. Een geluidsonderzoek is daarom niet nodig. Het initiatief is uitvoerbaar met betrekking tot het aspect geluid.

4.1.4 Geur

De Wet geurhinder en veehouderij (Wgv) vormt het toetsingskader voor milieuvergunningen als het gaat om geurhinder van veehouderijen met landbouwhuisdieren. De Wgv maakt onderscheid in dieren met en dieren zonder een vastgestelde geuremissiefactor. Voor de eerste soort wordt de geurbelasting bij geurgevoelige objecten berekend, voor de tweede gelden minimumafstanden tot dergelijke objecten (ook wel bekend onder de term 'vaste afstandsdieren'). De Regeling geurhinder en veehouderij (Rgv) bepaald in bijlage 1 voor welke dieren geuremissies zijn vastgelegd. Als het (beoogde) veehouderijbedrijf niet in deze regeling wordt genoemd betreft het vaste afstandsdieren.

Planspecifiek

Er liggen geen veehouderijen in de omgeving van het plangebied die problemen zouden kunnen opleveren voor het initiatief. Hiermee is het uitvoerbaar met betrekking tot het aspect geur.

4.1.5 Milieuzonering

Milieuzonering is het aanbrengen van een ruimtelijke scheiding tussen milieubelastende en milieugevoelige functies. Doel is om bij het opstellen van een ruimtelijk plan een goed en veilig leefklimaat te waarborgen, maar tegelijkertijd ook aan bedrijven voldoende milieuruimte te bieden voor het uitoefenen van hun activiteiten.

De mate waarin bedrijven invloed hebben op hun omgeving is afhankelijk van de aard van de bedrijvigheid en de afstand tot een gevoelige bestemming. Milieugevoelige bestemmingen zijn gebouwen en terreinen die naar hun aard bestemd zijn voor het verblijf van personen gedurende de dag of nacht of een gedeelte daarvan (bijvoorbeeld woningen). Daarnaast kunnen ook landelijke gebieden en/of andere landschappen belangrijk zijn bij een zonering tot andere, minder gevoelige, functies zoals bedrijven.

Milieuzonering heeft betrekking op aspecten met een ruimtelijke dimensie, zoals geluid, geur, gevaar en stof. De mate van belasting, en daarmee de gewenste aan te houden afstand, kan per aspect en per bedrijfstype en verschillen. In de publicatie 'Bedrijven en Milieuzonering' van de Vereniging van Nederlandse Gemeenten (VNG) is een lijst opgenomen met daarin de minimale richtafstanden tussen een gevoelige bestemming en bedrijven. Van deze richtafstanden kan worden afgeweken, mits wordt onderbouwd waarom de feitelijke milieuhinder als minder belastend wordt gezien.

Het belang van milieuzonering wordt steeds groter aangezien functiemenging steeds vaker voorkomt. Hierbij is het motto: 'scheiden waar het moet, mengen waar het kan'.

Planspecifiek

Ten noordoosten van het plangebied, aan de Ganzert 27a, ligt het bedrijf Van de Wetering Transportservice. Dit is een transportbegeleidingsbedrijf. In de tabel met richtafstanden van de VNG valt het bedrijf in de categorie post- en koeriersdiensten. Daarmee is het een categorie 2 bedrijf met een richtafstand van 30 meter. Het nieuwe woongebouw blijft buiten deze richtafstand: er is daarmee sprake van een goed woon- en leefklimaat. Bovendien is het bedrijf reeds omringd door dichterbij gelegen burgerwoningen waar het al rekening mee moet houden. Omgekeerd wordt levert onderhavig initiatief geen nieuwe beperkingen op voor het bedrijf.

Ten zuiden van het plangebied is een fruitteler gesitueerd. Tussen de fruitteler en het plangebied is een watergang aanwezig. Het woongebouw wordt echter in het noordelijk deel van het plangebied gesitueerd. De afstand tussen het woongebouw en de boomkwekerij is dusdanig groot (60 meter), dat er geen problemen ontstaan op het gebied van het spuiten van gifstoffen. Ook moet er reeds rekening worden gehouden met de aanwezige watergang. Op de overige percelen zijn geen kwekerijen aanwezig. De betreffende grondeigenaren van deze percelen zijn op de hoogte van het plan en van het feit dat er door het gebouw beperkingen ontstaan t.a.v. het gebruik van gifstoffen in de toekomst.

Het initiatief is op het gebied van milieuzonering uitvoerbaar.

4.1.6 Externe veiligheid

Het beleid voor externe veiligheid is gericht op het beperken en beheersen van risico's voor de omgeving die ontstaan door opslag, productie, gebruik en vervoer van gevaarlijke stoffen. Hierbij gaat het om risicovolle inrichtingen, transportroutes voor het vervoer van gevaarlijke stoffen en buisleidingen.

De verplichting om in een ruimtelijk plan in te gaan op deze risico's komt voort uit het 'Besluit externe veiligheid inrichtingen' (Bevi), het 'Besluit externe veiligheid transportroutes' (Bevt) en het 'Besluit externe veiligheid buisleidingen' (Bevb). Daarnaast zijn in het Activiteitenbesluit milieubeheer en het Vuurwerkbesluit veiligheidsafstanden genoemd die moeten worden aangehouden rond stationaire risicobronnen, niet zijnde een Bevi-inrichting.

De wetgeving richt zich op het beschermen van kwetsbare en beperkt kwetsbare objecten. Kwetsbaar zijn onder meer woningen, onderwijs- en gezondheidsinstellingen, en kinderopvang- en dagverblijven, en grote kantoorgebouwen (>1500 m²). Beperkt kwetsbaar zijn kleinere kantoren en winkels, horeca, parkeerterreinen en bedrijfsgebouwen waarin geen grote aantallen personen aanwezig zijn.

Binnen het beoordelingskader voor externe veiligheid staan twee kernbegrippen centraal: het plaatsgebonden risico (PR) van 10-6 per jaar en het groepsrisico (GR). Het plaatsgebonden risicobeleid bestaat uit harde afstandscontouren tussen risicobron en (beperkt) kwetsbaar object. Het wordt uitgedrukt in een contour van 10-6 per jaar (de kans dat per jaar 1 persoon overlijdt door een ongeluk met een gevaarlijke stof mag niet groter zijn dan 1 op een miljoen). Het groepsrisico legt een relatie tussen de kans op een ramp en het aantal mogelijke slachtoffers. Bij de berekening van het groepsrisico spelen mee de aard en hoeveelheid van de gevaarlijke stoffen en het aantal potentiële slachtoffers.

Voor de beoordeling van een ruimtelijk plan moet worden vastgesteld of het plangebied is gelegen binnen de PR en/of de invloedsgebieden van het GR. Binnen de 10-6-contour is het realiseren van kwetsbare objecten niet toegestaan.

Planspecifiek

Via de website risicokaart.nl kan voor de locatie worden vastgesteld of er in de directe omgeving inrichtingen, buisleidingen en / of belangrijke transportroutes aanwezig zijn die in het kader van de externe veiligheid van belang zijn. Bijgevoegd een screenshot van die website.

afbeelding "i_NL.IMRO.0214.BUIOMG2018002-vs01_0007.jpg"

Uitsnede risicokaart

Op de de afbeelding is te zien dat het plangebied zich in de nabijheid bevindt van een aardgasleiding. Deze leiding ligt op een afstand van circa 1100 meter en het plangebied ligt niet in het invloedsgebied. Ten zuiden van het plangebied is bij een fruitbedrijf een inrichting aanwezig. Ook hiervoor geldt dat het plangebied zich buiten het invloedsgebied bevindt. Het initiatief is daarmee op het gebied van externe veiligheid uitvoerbaar.

4.2 Water

Water is een belangrijk thema in de ruimtelijke ordening. Door verstandig om te gaan met het water kan verdroging en wateroverlast (waaronder ook risico van overstromingen e.d.) voorkomen worden en de kwaliteit van het water hoog gehouden worden.
Op Rijksniveau en Europees niveau zijn de laatste jaren veel plannen en wetten gemaakt met betrekking tot water. De belangrijkste hiervan zijn het Waterbeleid voor de 21e eeuw, de Waterwet en het Nationaal Waterplan.

Waterbeleid voor de 21e eeuw

De Commissie Waterbeheer 21e eeuw heeft advies uitgebracht over het toekomstige waterbeleid in Nederland. De adviezen van de commissie staan in het rapport 'Anders omgaan met water, Waterbeleid voor de 21ste eeuw' (WB21). De kern van het rapport WB21 is dat water de ruimte moet krijgen, voordat het die ruimte zelf neemt. In het Waterbeleid voor de 21e eeuw worden twee principes (drietrapsstrategieën) voor duurzaam waterbeheer geïntroduceerd:

  • vasthouden, bergen en afvoeren: dit houdt in dat water zoveel mogelijk bovenstrooms wordt vastgehouden in de bodem en in het oppervlaktewater. Indien nodig wordt overtollig water tijdelijk geborgen in bergingsgebieden en pas als vasthouden en bergen niet meer mogelijk is wordt het water afgevoerd.
  • schoonhouden, scheiden en zuiveren: hier gaat het erom dat het water zoveel mogelijk schoon wordt gehouden. Vervolgens worden schoon en vuil water zoveel mogelijk gescheiden en als laatste komt het zuiveren van verontreinigd water aan bod.

Waterwet

De Waterwet regelt het beheer van oppervlaktewater en grondwater en verbetert ook de samenhang tussen waterbeleid en ruimtelijke ordening. Daarnaast levert de Waterwet een flinke bijdrage aan kabinetsdoelstellingen zoals vermindering van regels, vergunningstelsels en administratieve lasten. Een belangrijk gevolg van de Waterwet is dat de aloude vergunningstelsels uit de voorheen afzonderlijke waterbeheerwetten zijn gebundeld. Dit resulteert in één vergunning, de watervergunning.

Nationaal Waterplan

Op basis van de Waterwet is het Nationaal Waterplan vastgesteld door het kabinet. Dit Nationaal Waterplan geeft de hoofdlijnen, principes en richting van het nationale waterbeleid in de planperiode 2016-2021, met een vooruitblik richting 2050. Het Nationaal Waterplan richt zich op bescherming tegen overstromingen, beschikbaarheid van voldoende en schoon water en de diverse vormen van gebruik van water. Het geeft maatregelen die in de periode 2016-2021 genomen moeten worden om Nederland ook voor toekomstige generaties veilig en leefbaar te houden en de kansen die water biedt te benutten.


Watertoets

De 'watertoets' is een instrument dat waterhuishoudkundige belangen expliciet en op evenwichtige wijze laat meewegen bij het opstellen van ruimtelijke plannen en besluiten. Het is geen technische toets, maar een proces dat de initiatiefnemer van een ruimtelijk plan en de waterbeheerder in een zo vroeg mogelijk stadium met elkaar in gesprek. De watertoets bestaat uit twee onderdelen:

  • de verplichting aan initiatiefnemers van ruimtelijke plannen om de waterbeheerder vroegtijdig in de planvorming te betrekken, en
  • de verplichting aan initiatiefnemers van ruimtelijke plannen om in hun plan verantwoording af te leggen over de manier waarop omgegaan is met de inbreng van de waterbeheerder. Dit laatste gebeurt doorgaans in de waterparagraaf bij het betreffende plan.

Planspecifiek: watertoets

Beleid Waterschap Rivierenland

Met ingang van 27 november 2015 is het Waterbeheerprogramma 2016-2021 'Koers houden, kansen benutten' bepalend voor het waterbeleid. Dit plan gaat over het waterbeheer in het hele rivierengebied en het omvat alle watertaken van het waterschap: waterkeringen, waterkwantiteit, waterkwaliteit, wegen en waterketen.

Daarnaast beschikt het Waterschap Rivierenland over een verordening: de Keur voor waterkeringen en wateren. Hierin staan de geboden en verboden die betrekking hebben op watergangen en waterkeringen. Voor het uitvoeren van werkzaamheden kan een vergunning nodig zijn. De werkzaamheden in of nabij de watergangen en waterkeringen worden getoetst aan de beleidsregels.

Het Waterschap Rivierenland hanteert de beleidsregel 'Nieuwe lozingen vanaf verhard oppervlak'. Deze heeft als doel de versnelde afvoer van hemelwater als gevolg van de uitbreiding van het verhard oppervlak te beperken tot de maatgevende afvoer van het landelijk gebied. Een uitbreiding van het verhard oppervlak moet vanuit waterhuishoudkundig opzicht dus waterbalans-neutraal plaatsvinden.

Om te voorkomen dat individuele bewoners voor kleine voorzieningen zoals serres, tuinschuurtjes, enkele woning, etc., moeten compenseren geldt er een eenmalige vrijstelling van de compensatieplicht van 500 m² voor stedelijk gebied en 1.500 m² voor landelijk gebied.

In onderhavig plan gaat het om het toevoegen van een woongebouw voor begeleid wonen. Het verhard oppervlak van de gebouwen en verharding ligt onder de toetsingsgrens van 1.500 m2. Voor het afvoeren van het hemelwater wordt er gebruikt gemaakt van grindkratten. Verder zijn er geen problemen op het gebied van wateroverlast bekend. De ten opzichte van de woonfunctie toegenomen belasting van het riool levert geen probleem op.

Voor dit plan is de digitale watertoets ingevuld. Hieruit blijkt dat er geen(beschermingszones van) beschermde waterkeringen/watergangen in het plangebied liggen. Wel ligt er een A-watergang ten zuiden van het plangebied. Deze blijft behouden.

Het initiatief is daarmee op het gebied van water uitvoerbaar.

4.3 Ecologie

Bij ruimtelijke ingrepen dient rekening te worden gehouden met de natuurwaarden ter plaatse. Per 01-01-2017 zijn de Natuurbeschermingswet 1998, de Flora en faunawet en de Boswet opgegaan in de nieuwe Wet natuurbescherming. De Wet natuurbescherming beschermt natuurgebieden, inheemse soorten en het bosopstanden in Nederland.

Gebiedsbescherming

In de Wet natuurbescherming worden de zogenoemde Natura 2000-gebieden beschermd. Natura 2000 is de overkoepelende naam voor gebieden die worden beschermd vanuit de Vogel- en Habitatrichtlijn. Volgens deze Europese richtlijnen moeten lidstaten specifieke diersoorten en hun natuurlijke leefomgeving (habitat) beschermen om de biodiversiteit te behouden. Natura 2000-gebieden kennen een zogenaamde 'externe werking'. Dit betekent dat ontwikkelingen die buiten de begrenzing van de Natura 2000-gebieden gelegen zijn, ook getoetst moeten worden of er significant negatieve effecten optreden op het betreffende gebied.


Soortenbescherming

Een hoofdstuk in de Wet natuurbescherming regelt de bescherming van de in het wild voorkomende inheemse planten en dieren: de soortenbescherming. De wet richt zich vooral op het in stand houden van populaties van soorten die bescherming behoeven. In de wet zijn algemene en specifieke verboden vastgelegd ten aanzien van beschermde dier- en plantensoorten. Bekeken moet worden in hoeverre ruimtelijke plannen negatieve gevolgen hebben op beschermde dier- en plantensoorten en of er compenserende of mitigerende maatregelen genomen moeten worden. De wet geeft de mogelijkheid aan provincies om voor een bepaald aantal soorten via een verordening een algemene vrijstelling op bepaalde verbodsbepalingen te geven.

Daarnaast geldt voor iedereen in Nederland altijd, dus ook los van het voorliggende beoogde ruimtelijke project, dat de zorgplicht nageleefd moet worden bij het verrichten van werkzaamheden. Voor menige soort geldt dat indien deze zorgplicht nagekomen wordt een bepaald beoogd project uitvoerbaar is.

Planspecifiek

Gebiedsbescherming

De locatie De Akker 10 is gelegen in het Nationaal Landschap Rivierengebied. Het is echter niet gelegen in of nabij Natura 2000 gebieden, beschermde natuurmonumenten of wetlands. Ook is er geen Ecologische Hoofdstructuur in de buurt van het plangebied gelegen. Gebiedsbescherming is dus niet aan de orde.

Soortenbescherming

Met voorliggend plan worden er geen beplantingen, zoals bestaande bomen en struiken, verwijderd. Ook worden er geen sloten gedempt. Het woongebouw wordt gerealiseerd op grasland dat reeds intensief als speelweide wordt gebruikt. Hierdoor heeft de ontwikkeling geen gevolgen voor beschermde dier- en plantensoorten.

De uitvoerbaarheid van het initiatief voor ecologie is hiermee aangetoond.

4.4 Verkeer

Onderdeel van goede ruimtelijke ordening is het effect van een beoogd nieuw project op de verkeersstructuur. Aangezien het gaat om zorgwoningen, heeft het grootste gedeelte van de cliënten geen eigen auto. Wel dient rekening te worden gehouden met verkeer voor bezoekers.  De locatie wordt ontsloten via de De Akker. Deze weg heeft voldoende capaciteit om het ten opzichte van de woonfunctie beperkt toegenomen verkeer op te kunnen vangen. De bestaande inrit blijft gehandhaafd.

Op basis van de kencijfers CROW in publicatie 317 kan inzicht worden verkregen in de parkeersituatie. In de publicatie staan geen concrete parkeerkengetallen voor begeleid wonen. Aangezien de meeste bewoners niet beschikken over een auto, is de parkeernorm vergelijkbaar met die van een aanleunwoning (max. 1,4 pp/woning).

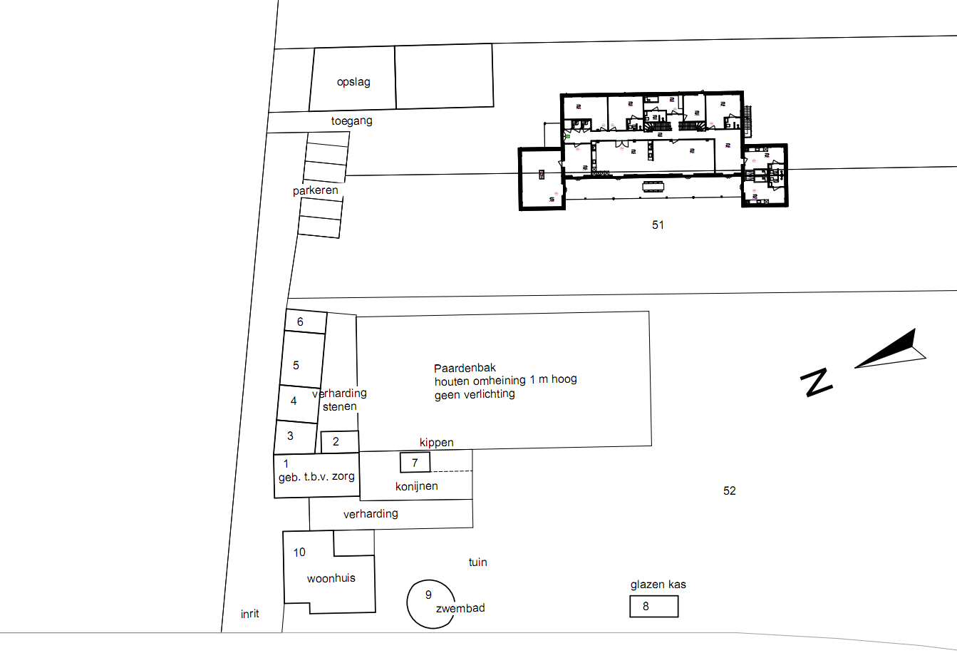
De zorgboerderij heeft momenteel een aantal parkeerplaatsen voor de vaste medewerkers/bezoekers (zie rode cirkel op luchtfoto). Tevens zijn er bij de woning 3 parkeerplaatsen voor eigen gebruik. Ook is er een ruime oprit aanwezig (7 meter breed) waar voldoende plek is voor het kort parkeren van auto's, ten behoeve van het halen en brengen van de kinderen.

afbeelding "i_NL.IMRO.0214.BUIOMG2018002-vs01_0008.jpg"

Situering parkeerplaatsen op terrein

Momenteel zijn er in het huis al 8 woonplekken aanwezig. In theorie zouden hiervoor met het kencijfer van aanleunwoningen 12 parkeerplaatsen (8 x 1,4 = 11,2) nodig zijn. In de huidige situatie zijn er 5 parkeerplaatsen op een parkeerplaatsje aanwezig (zie cirkel), daarnaast parkeert een enkeling op de brede inrit (breed genoeg om elkaar te passeren) om de cliënt uit te laten stappen en daarna weer weg te rijden. In de praktijk voldoet de parkeersituatie en zijn er geen problemen. Gesteld kan worden dat het gehanteerde kencijfer van een aanleunwoning eigenlijk teveel parkeerplaatsen oplevert.

 

Met het nieuwe gebouw verdwijnen de woonplekken in het huidige gebouw en worden er 14 nieuwe plekken ingericht. Per saldo ontstaan er dus 6 nieuwe woonplekken. Wanneer opnieuw het kencijfer van aanleunwoningen wordt gehanteerd, zijn er dus 9 (6 x 1,4 = 8,4) parkeerplaatsen nodig. De bestaande parkeerplaats zal hiervoor worden uitgebreid, er zal vóór het gebouw worden geparkeerd. In de tekening is met de rode 'P' aangegeven waar dit gebeurt.

afbeelding "i_NL.IMRO.0214.BUIOMG2018002-vs01_0009.jpg"

Schets met uitbreiding parkeerplaats bij de rode 'P'

Verwacht wordt dat de parkeerbehoefte veel kleiner is dan deze 9 parkeerplaatsen. Belangrijk aspect is dat er ruimte genoeg is op het perceel om hiervoor een passende parkeeroplossing te vinden. De straat De Akker zal met dit plan niet belast worden met parkerende auto's.

 

Het initiatief is uitvoerbaar met betrekking tot het aspect verkeer.

4.5 Cultuurhistorie en archeologie

In elk bestemmingsplan moet een beschrijving worden opgenomen van de wijze waarop met de in het gebied aanwezige cultuurhistorische waarden wordt omgegaan. Denk aan aanwezige monumenten, historische gebieden, kenmerkende (straat)beelden en landschapselementen. Bij het maken van plannen kan ook (weer) rekening gehouden worden met al deze elementen die er vroeger wel waren maar nu niet meer. Een bijzonder onderdeel van cultuurhistorie is archeologie.

Cultuurhistorie

Het belang van cultuurhistorie is wettelijk vastgelegd in het Besluit ruimtelijke ordening. Het Besluit geeft aan dat “een beschrijving van de wijze waarop met de in het gebied aanwezige cultuurhistorische waarden en in de grond aanwezige of te verwachten monumenten rekening is gehouden” in het bestemmingsplan opgenomen moet worden. Het voornaamste doel hiervan is om het cultuurhistorische karakter van Nederland op gebiedsniveau te behouden en te versterken.

Archeologie

De bescherming van archeologische waarden bij ruimtelijke ontwikkelingen is geregeld in de Erfgoedwet. De essentie van de wettelijke bescherming is dat archeologische resten zoveel mogelijk in de bodem bewaard blijven. Bij ruimtelijke plannen geldt de verplichting om rekening te houden met bekende en te verwachten archeologische waarden. Indien ingrepen gepaard gaan met een verstoring van de bodem, kan het nodig zijn om nader onderzoek te doen, zodat - waar nodig - de archeologische waarden veiliggesteld kunnen worden en/of het plan aangepast kan worden. De verantwoordelijkheid voor archeologische waarden ligt bij de gemeente.

Op basis van artikel 5.10 van de Erfgoedwet zijn mogelijke (toevals)vondsten bij het verrichten van werkzaamheden in de bodem altijd beschermd. Er geldt een meldingsplicht bij het vinden van (mogelijke) waardevolle zaken.

Planspecifiek

Cultuurhistorie

In het voorliggend plan en de omgeving ligt niets wat van cultuurhistorische waarde is.

Archeologisch

De Gemeentelijke archeologische verwachtings- en beleidsadvieskaart geeft aan dat de archeologische verwachting in het plangebied hoog is, dat houdt in dat er resten ondieper dan 1,5 meter beneden maaiveld verwacht worden of dat de diepteligging onbekend is. Een onderzoek is niet nodig als het bouwwerken betreft waarbij de grondwerkzaamheden niet dieper reiken dan 30 cm of het bouwwerken betreft met geen grotere oppervlakte dan 1000 m². Dat is laatst is met het voorliggend plan het geval. Een archeologisch onderzoek is dus niet nodig.

Het initiatief is op het gebied van cultuurhistorie en archeologie uitvoerbaar.

4.6 Economische uitvoerbaarheid

Bij de voorbereiding van een bestemmingsplan dient, op grond van artikel 3.1.6 lid 1, sub f van het Bro, onderzoek plaats te vinden naar de (economische) uitvoerbaarheid van het plan. In principe dient bij vaststelling van een ruimtelijk besluit tevens een exploitatieplan vastgesteld te worden om verhaal van plankosten zeker te stellen. Op basis van 'afdeling 6.4 grondexploitatie', artikel 6.12, lid 2 van de Wro kan de gemeenteraad bij het besluit tot vaststelling van het bestemmingsplan echter besluiten geen exploitatieplan vast te stellen indien:

  • het verhaal van kosten van de grondexploitatie over de in het plan of besluit begrepen gronden anderszins verzekerd is;
  • het bepalen van een tijdvak of fasering als bedoeld in artikel 6.13, eerste lid, onder c, 4°, onderscheidenlijk 5°, niet noodzakelijk is;
  • het stellen van eisen, regels, of een uitwerking van regels als bedoeld in artikel 6.13, tweede lid, onderscheidenlijk b, c of d, niet noodzakelijk is.

Planspecifiek

De ontwikkelingskosten komen geheel voor rekening van de initiatiefnemer. Hiertoe zal de gemeente voorafgaand aan de planologische procedure met de initiatiefnemer een exploitatieovereenkomst afsluiten. Voor de realisatie van het plan hoeft de gemeente geen investering te doen. De kosten die door de gemeente gemaakt worden voor het voeren van de planologische procedure zijn verrekend in de leges. Eventuele extra gemeentelijke kosten worden gedekt door de exploitatieovereenkomst.

Tevens zal een overeenkomst betreffende planschade worden afgesloten. Deze kosten komen eveneens geheel voor rekening van de initiatiefnemer. Deze overeenkomst zal als een separate rapportage worden opgenomen. Op basis van het bovenstaande kan geconcludeerd kan worden dat het plan economisch uitvoerbaar is.

Hoofdstuk 5 Procedure

5.1 Inspraak en overleg

Inspraak

Dit plan met een beperkte reikwijdte is niet voor inspraak ter visie gelegd. De directe buren zijn op de hoogte van dit plan.

Overleg

Onderhavig initiatief is in het kader van het wettelijk overleg besproken met het waterschap Rivierenland. Verder is advies gevraagd aan de Omgevingsdienst Rivierenland. De adviezen zijn verwerkt in deze ruimtelijke onderbouwing.

5.2 Van ontwerp naar vaststelling

De omgevingsvergunning is voorbereid met toepassing van een uitgebreide procedure ex artikel 2.12 lid 1 onder a sub 3° Wabo juncto artikel 3.10 Wabo. Het ontwerpbesluit met bijbehorende stukken heeft van donderdag 28 maart 2019 tot donderdag 9 mei 2019 ter inzage gelegen. Gedurende deze termijn zijn er geen zienswijzen ingediend.