direct naar inhoud van 3.2 Het plan
vastgesteld
NL.IMRO.0200.ov1010-vas1

3.2 Het plan

Het project betreft het mogelijk maken van een dependance in een voormalige schuur. De totale oppervlalte van het gebouw bedraagt circa 60 m2. Met de voorgenomen functiewijziging kan worden meegewerkt aan het legaliseren van een zelfstandige woonfunctie ondergeschikt aan het hoofdgebouw, de woning.

afbeelding "i_NL.IMRO.0200.ov1010-vas1_0002.png"

Nieuwe situatie (rode kader geeft bijgebouw ten behoeve van dependance weer)

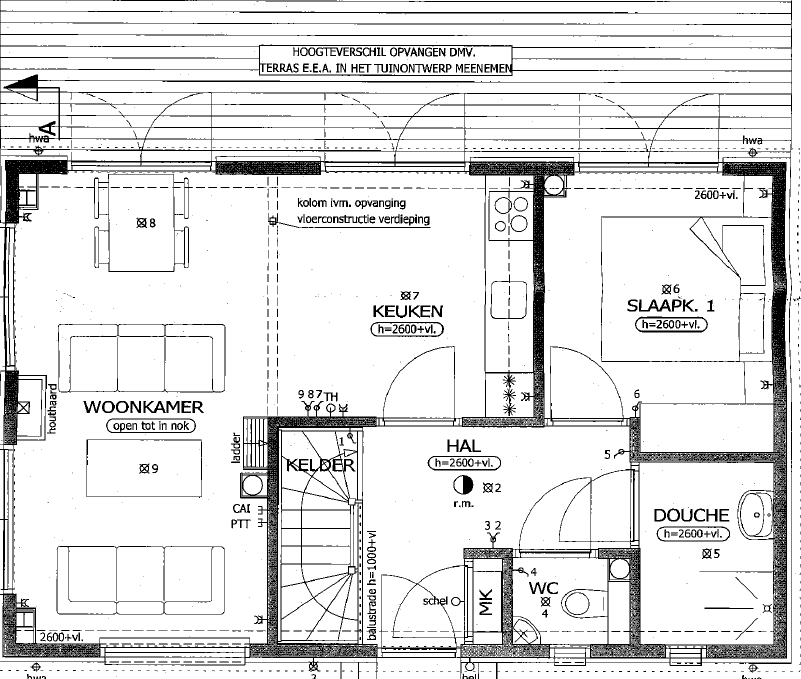
afbeelding "i_NL.IMRO.0200.ov1010-vas1_0003.png"

Inrichting bijgebouw ten behoeve van woonruimte