direct naar inhoud van Toelichting
Plan: Albergen, Weemselerveld Zuid fase 3
Status: vastgesteld
Plantype: uitwerkingsplan
IMRO-idn: NL.IMRO.0183.1416275-vg01

Toelichting

Hoofdstuk 1 Inleiding

1.1 Aanleiding

Op 1 juli 2013 is het bestemmingsplan "Albergen, Weemselerveld Zuid fase 3" vastgesteld. Dit bestemmingplan, waarmee Albergen in zuidoostelijke richting werd uitgebreid, voorzag naast een woonbestemming voor een deel van de uitbreiding ook in een uit te werken woonbestemming. Hiermee werd een fasering aangebracht in het plan.

De kavels in deze eerste fase zijn vrijwel allemaal verkocht, waardoor er nu behoefte is aan een uitwerking van het resterende deel van Weemselerveld Zuid fase 3.

1.2 Ligging en begrenzing plangebied

Dit uitwerkingsplan kent 5 deelgebieden. De begrenzing hiervan komt overeen met die van de bestemming 'Wonen - Uit te werken' uit het bestemmingsplan "Weemselerveld Zuid fase 3". Een zesde uit te werken woongebied wordt nog niet meegenomen in dit uitwerkingsplan.

De volgende afbeelding toont de globale begrenzing van dit uitwerkingsplan binnen het 'moederplan'.

afbeelding "i_NL.IMRO.0183.1416275-vg01_0001.jpg"

Begrenzingen uitwerkingsplan

De uitwerking heeft alleen betrekking op de woningbouwkavels. De verkeers- en groenbestemmingen worden met dit plan niet gewijzigd en maken geen onderdeel uit van het plangebied.

1.3 Leeswijzer

In het volgende hoofdstuk wordt het plangebied beschreven. In hoofdstuk 3 volgt een beschrijving van het van belang geachte Rijks-, provinciaal, regionaal en gemeentelijk beleid. Hoofdstuk 4 bevat een toets aan relevante wet- en regelgeving op het gebied van bodem, water, milieuzonering, luchtkwaliteit, geluid, externe veiligheid, ecologie en archeologie. In hoofdstuk 5 komt de juridische opzet van het bestemmingsplan aan bod. In het laatste hoofdstuk wordt ingegaan op de economische uitvoerbaarheid, maatschappelijke aanvaardbaarheid en het vooroverleg.

Hoofdstuk 2 Gebieds- en planbeschrijving

2.1 Beschrijving plangebied

Dit uitwerkingsplan bestaat uit vijf deelgebieden. De begrenzing van deze deelgebieden komt overeen met de begrenzing van de bestemming 'Wonen - Uit te werken' uit het bestemmingsplan Albergen, Weemselerveld Zuid fase 3. In dit bestemmingsplan is ervoor gekozen om de kaveluitgifte te faseren en alleen de kavels die in de eerste uitgiftefase zaten al concreet te bestemmen. Deze eerste fase is inmiddels volledig uitgegeven.

Met deze uitwerking wordt het mogelijk om ook op de resterende kavels in Weemselerveld Zuid fase 3, met uitzondering van een gebiedje in het noordoosten van het plangebied, woningen te realiseren.

2.2 Planbeschrijving

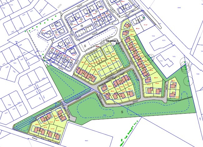
In de volgende afbeelding is de beoogde nieuwe verkaveling weergegeven. Dit is een impressie die nog op details kan wijzigen, binnen de grenzen van dit uitwerkingsplan.

afbeelding "i_NL.IMRO.0183.1416275-vg01_0002.jpg"

Impressie van de verkaveling

Het plangebied biedt ruimte aan circa 51 woningen, voornamelijk vrijstaande en dubbele woningen. Een aantal kavels wordt uitgegeven ten behoeve van Collectief Particulier Opdrachtgeverschap (CPO). Op deze locaties zijn naast vrijstaande en dubbele woningen ook rijtjes aaneengebouwde woningen mogelijk.

De ontsluiting van het plangebied wijzigt met dit uitwerkingsplan niet en dit geldt eveneens voor de groenstructuur.

 

2.3 Beeldkwaliteitsplan

Gelijktijdig met het bestemmingsplan "Weemselerveld Zuid fase 3" is ook een beeldkwaliteitsplan vastgesteld. Deze betreft het gehele plangebied, inclusief de uit te werken bestemmingen. In dit beeldkwaliteitsplan, dat als bijlage 1 bij deze plantoelichting is gevoegd, worden eisen gesteld aan de bouwstijl, kleur- en materiaalgebruik.

Hoofdstuk 3 Beleidskader

3.1 Rijksbeleid

Structuurvisie Infrastructuur en Ruimte

Nederland concurrerend, bereikbaar, leefbaar en veilig. Daar streeft het Rijk naar met een aanpak welke ruimte geeft aan regionaal maatwerk, de gebruiker voorop zet, investeringen scherp prioriteert en ruimtelijke ontwikkelingen en infrastructuur met elkaar verbindt. Een actualisatie van het van kracht zijnd ruimtelijk en mobiliteitsbeleid is daarvoor nodig. Door nieuwe politieke accenten en veranderende omstandigheden, zoals de economische crisis, klimaatverandering en de door het tegelijkertijd plaatsvinden van groei, stagnatie en krimp toenemende regionale verschillen, zijn de beleidsnota's op het gebied van zowel ruimte als mobiliteit gedateerd. De Structuurvisie Infrastructuur en Ruimte (SVIR) geeft een nieuw, integraal kader voor het ruimtelijk en mobiliteitsbeleid op rijksniveau en is zo de 'kapstok' voor bestaand en nieuw rijksbeleid met ruimtelijke consequenties. De SVIR is vastgesteld op 13 maart 2012. De SVIR vervangt verschillende nota's zoals:

  • de Nota Ruimte;
  • de Structuurvisie Randstad 2040;
  • de Nota Mobiliteit;
  • de MobiliteitsAanpak;
  • de structuurvisie voor de Snelwegomgeving;
  • de agenda Landschap;
  • de agenda Vitaal Platteland;
  • Pieken in de Delta.

In SVIR staan de plannen voor ruimte en mobiliteit. Zo beschrijft het kabinet in de Structuurvisie in welke infrastructuurprojecten zij de komende jaren wil investeren. En op welke manier de bestaande infrastructuur beter benut kan worden. Provincies en gemeenten krijgen in de plannen meer bewegingsvrijheid op het gebied van ruimtelijke ordening.

Besluit algemene regels ruimtelijke ordening

De hiervoor behandelde structuurvisie is een beleidsstuk zonder bindend karakter voor lagere overheden. Om naleving van deze en andere structuurvisies te kunnen afdwingen, is besloten tot de vaststelling van algemene regels. Deze zijn opgenomen in het "Besluit algemene regels ruimtelijke ordening" (Barro). Het Barro is op 30 december 2011 in werking getreden.

Een aantal rijksbelangen wordt met dit besluit geborgd in bestemmingsplannen en andere ruimtelijke plannen van overheden. Onderwerpen waarvoor het rijk ruimte vraagt zijn de mainportontwikkeling van Rotterdam, bescherming van de waterveiligheid in het kustfundament en in en rond de grote rivieren, bescherming en behoud van de Waddenzee en enkele werelderfgoederen en de uitoefening van defensietaken.

Op 1 oktober 2012 is het Barro aangevuld met voorschriften voor de andere beleidskaders uit de SVIR, het Nationaal Waterplan en het Derde Structuurschema Elektriciteitsvoorziening. Het betreft de volgende thema's:

  • rijksvaarwegen;
  • hoofdwegen en hoofdspoorwegen;
  • elektriciteitsvoorziening;
  • ecologische hoofdstructuur;
  • primaire waterkeringen buiten het kustfundament, en
  • IJsselmeergebied (uitbreidingsruimte).

Ladder voor duurzame verstedelijking

Sinds 1 oktober 2012 is in artikel 3.1.6 van het Besluit ruimtelijke ordening (Bro) de zogenoemde ladder voor duurzame verstedelijking opgenomen. Het doel van deze ladder is te waarborgen dat in ruimtelijke plannen tot een optimale benutting van de ruimte in stedelijke gebieden wordt gekomen. De ladder voor duurzame verstedelijking is in het Bro als motiveringseis opgenomen van nut en noodzaak van de nieuwe stedelijke ruimtevraag en sluit aan bij het vereiste van een goede ruimtelijke ordening. De ladder stelt de volgende eisen aan de plantoelichting:

  • a. er wordt beschreven dat de voorgenomen stedelijke ontwikkeling voorziet in een actuele regionale behoefte;
  • b. indien uit de beschrijving, bedoeld in onderdeel a, blijkt dat sprake is van een actuele regionale behoefte, wordt beschreven in hoeverre in die behoefte binnen het bestaand stedelijk gebied van de betreffende regio kan worden voorzien door benutting van beschikbare gronden door herstructurering, transformatie of anderszins, en;
  • c. indien uit de beschrijving, bedoeld in onderdeel b, blijkt dat de stedelijke ontwikkeling niet binnen het bestaand stedelijk gebied van de betreffende regio kan plaatsvinden, wordt beschreven in hoeverre wordt voorzien in die behoefte op locaties die, gebruikmakend van verschillende middelen van vervoer, passend ontsloten zijn of als zodanig worden ontwikkeld.


Beoordeling

  • a. De voorgenomen uitbreiding van Albergen, zoals vastgelegd in het moederplan en bevestigd met dit uitwerkingsplan, past binnen de woonvisie en het woningbouwprogramma van de gemeente Tubbergen. Deze plannen zijn regionaal afgestemd en maken dus onderdeel uit van de regionale behoefte. In paragraaf 3.3 wordt hier verder op ingegaan.
  • b. Binnen het bestaand stedelijke gebied van Albergen zijn geen lege plekken en herstructureringslocaties aanwezig waar de woningbehoefte ingevuld kan worden. Daarom is voor een locatie direct grenzend aan de bestaande kern gekozen. Dit uitwerkingsplan volgt direct op de eerste fase die reeds geheel is uitgegeven.
  • c. Door de ligging direct tegen de kern is de planlocatie goed bereikbaar. Ook de afstand tot het centrum is beperkt. Het plangebied wordt daarnaast goed ontsloten, zowel voor fiets- als autoverkeer, waarmee een goede bereikbaarheid is gegarandeerd.


Conclusie

Dit uitwerkingsplan betreft een nadere uitwerking van een reeds bestemd woongebied. Met dit plan zijn geen Rijksbelangen gemoeid. Ook zijn geen voorschriften uit het Barro van toepassing en sluit het plan goed aan bij de uitgangspunten van de Ladder voor duurzame verstedelijking. Het plan is dus niet in strijd met het Rijksbeleid.

3.2 Provinciaal beleid

Het provinciale ruimtelijk beleid staat omschreven in de Omgevingsvisie Overijssel. Deze visie is sinds 1 juli 2009 van kracht en voor het laatst herzien op 8 oktober 2014. De visie geeft het provinciaal belang en beleid in de fysieke leefomgeving voor de lange termijn weer. Toetsing aan het provinciaal beleid vindt plaats volgens een hierin opgenomen uitvoeringsmodel. Hierbij worden generieke beleidskeuzes, ontwikkelingsperspectieven en gebiedskenmerken betrokken.

Generieke beleidskeuzes

De provincie hanteert de SER-ladder voor de toetsing van nieuwe initiatieven. Deze komt er kort gezegd op neer dat eerst bestaande bebouwing en herstructurering worden benut, voordat er uitbreiding kan plaatsvinden. Daarnaast zijn generieke beleidskeuzes gemaakt op het gebied van onder meer waterveiligheid, externe veiligheid, bescherming van de ondergrond en begrenzing van Nationale Landschappen. Deze zijn vaak normstellend.

In dit geval is sprake van een uitwerking van een reeds bestemd woongebied. Met dit bestemmingsplan zijn geen van de generieke beleidskeuzes gemoeid.

Ontwikkelingsperspectieven en gebiedskenmerken

Binnen de Omgevingsvisie zijn zes ontwikkelingsperspectieven beschreven voor de Groene en Stedelijke omgeving. Deze geven richting aan wat waar ontwikkeld zou kunnen worden. De ontwikkelingsperspectieven zijn in tegenstelling tot de generieke beleidskeuzes niet normstellend, maar richtinggevend.

Daarnaast zijn gebiedskenmerken geformuleerd, gecategoriseerd als een natuurlijke laag, laag van het agrarisch cultuurlandschap, stedelijke laag en lust- en leisurelaag.

In de toelichting bij het moederplan, waarmee het gebied is bestemd tot woongebied, is een uitgebreide beoordeling opgenomen aan de hand van het ontwikkelingsperspectief en de gebiedskenmerken.

De uitwerking heeft betrekking op een reeds bestemd woongebied en is in overeenstemming met de uitwerkingsregels. Het plan is dan ook niet in strijd met het provinciaal beleid.

3.3 Gemeentelijk beleid

Het voornaamste gemeentelijk beleid voor dit gebied wordt gevormd door het geldende bestemmingsplan "Weemselerveld Zuid fase 3" en de daarin vastgelegde uitwerkingsregels.

Uitwerkingsregels

Op grond van het bestemmingsplan "Weemselerveld Zuid fase 3" zijn de voor "Wonen - Uit te werken" aangewezen gronden bestemd voor:

  • a. wonen;
  • b. vrije beroepen/aan huis verbonden beroepen;
  • c. groen, parkeer- en speelvoorzieningen;
  • d. water;
  • e. wegen, voet- en fietspaden;

met bijbehorende bebouwing, tuinen, erven en (on)bebouwde gronden

Bepaald is verder dat de gronden niet mogen worden gebouwd, voordat een uitwerkingsplan is vastgesteld door burgemeester en wethouders. Bij de uitwerking moeten de volgende voorwaarden in acht worden genomen:

  • a. het maximum aantal te bouwen woningen bedraagt 53;
  • b. de bouwhoogte van de woningen mag maximaal 10 m bedragen;
  • c. de woningen worden vrijstaand, twee-aaneen dan wel in een rij gebouwd;
  • d. voorzien moet worden in voldoende parkeergelegenheid voor de woningen;
  • e. de bodem dient geschikt te zijn voor de bouw van de woningen.


Zoals blijkt uit de regels en de verbeelding bij dit uitwerkingsplan wordt aan de voorwaarden a t/m d voldaan. Ook is de bodem geschikt voor de bouw van woningen. Dit wordt in paragraaf 4.2 toegelicht.

Woonvisie

In 2010 is de "Woonvisie 2010-2014; goed wonen voor alle doelgroepen" vastgesteld. Vanwege grote veranderingen in de woningmarkt is deze visie in 2012 geactualiseerd.

Naast de meer algemene visie op het wonen in Tubbergen, en een analyse van de ontwikkelingen op de woningmarkt, is per kern de omvang van de benodigde woningbouw voor de periode 2012-2019 bepaald. Tevens is bekend welke plancapaciteit beschikbaar of in voorbereiding is.

Voor de kern Albergen heeft dit geleid tot de volgende aandachts- en actiepunten:

  • Gelet op de bouwproductie in de jaren 2010 en 2011 bedraagt de lokale woningbehoefte voor de periode 2012-2019 nog zo’n 100 woningen. Gerekend wordt met capaciteit op een nieuwe (nog onbekende) inbreidingslocatie. Voorts is het bestemmingsplan Weemselerveld Zuid 3 in voorbereiding. Met deze capaciteit wordt de lokale behoefte geheel afgedekt.
  • De gemeente is met partijen op zoek naar een geschikte locatie voor het realiseren van een woonzorgcentrum.
  • De kwaliteit van het woningbezit van Woningstichting Tubbergen is redelijk tot goed en er bestaan geen plannen tot grootschalige herstructurering.

Dit uitwerkingsplan maakt onderdeel uit van het bestemmingsplan Weemselerveld Zuid 3, genoemd onder het eerste actiepunt, en dient ter uitvoering van de berekende behoefte.

Uitgesplitst naar categorieën bedraagt de behoefte aan multifunctionele huurwoningen circa 10%. Hierin is in de eerste fase reeds voorzien met de bouw van 12 zorgappartementen. De resterende behoefte bestaat uit bouwkavels, waarbij de grootste vraag ligt in de categorie tot 350m2. De indicatieve verkaveling in paragraaf 2.2 sluit hier goed bij aan, maar door een flexibele wijze van bestemmen bestaat de mogelijkheid om de uitgifte indien nodig verder af te stemmen op de concrete behoefte.

Conclusie

Gezien het voorgaande is het plan in overeenstemming met het gemeentelijk ruimtelijk beleid.

Hoofdstuk 4 Omgevingsaspecten

4.1 Algemeen

In de plantoelichting bij het bestemmingsplan "Weemselerveld Zuid fase 3" is uitgebreid ingegaan op de verschillende omgevingsaspecten. Aangezien dit uitwerkingsplan slechts een nadere invulling betreft van enkele woongebieden binnen dit bestemmingsplan wordt voor de onderwerpen luchtkwaliteit, geluid, archeologie en cultuurhistorie volstaan met een verwijzing naar het moederplan. Ten aanzien van deze aspecten zijn geen bijzonderheden te melden en is in de plantoelichting van dit moederplan goed onderbouwd waarom deze geen belemmering vormen voor de uitvoering van het plan. In de volgende paragrafen wordt op enkele andere omgevingsaspecten wel specifiek ingegaan.

4.2 Bodem

Door Ingenieursbureau Oranjewoud B.V. is in 2010 een verkennend bodemonderzoek uitgevoerd. Dit rapport is als bijlage opgenomen bij de de plantoelichting van het moederplan.

In de bovengrond zijn geen verhoogde concentraties van de onderzochte stoffen aangetroffen en in de ondergrond is in één monster een licht verhoogd gehalte kwik aangetroffen. Deze overschrijdt de tussen- of interventiewaarde niet en geeft dus geen aanleiding voor nader onderzoek.

Tijdens de veldwerkzaamheden zijn geen asbestverdachte materialen aangetroffen en ook in de bodemmonsters is geen asbest aangetoond.

In het grondwater zijn in het hele plangebied licht verhoogde gehaltes aan Barium, koper en nikkel aangetroffen. Enkele peilbuizen bevatten ook licht verhoogde gehaltes aan Cadmium. Ook deze waarden liggen onder de tussen- of interventiewaarde en geven geen aanleiding voor nader onderzoek.

Ter plaatse van peilbuis 19 is koper in een sterk verhoogde concentratie aangetroffen. Ook ter plaatse van een tweede peilbuis is een verhoogde concentratie kopen aangetroffen, maar deze ligt buiten het plangebied van dit uitwerkingsplan.

De verhoogde concentratie wordt zeer waarschijnlijk veroorzaakt door bemesting. Voorafgaand aan het bouwrijp maken worden beide locaties opnieuw gericht onderzocht en worden indien noodzakelijk maatregelen getroffen.

4.3 Geur

In de nabijheid van het plangebied is een intensieve veehouderij gelegen. Bij de vaststelling van het bestemmingsplan "Albergen, Weemselerveld Zuid fase 3" is hiermee rekening gehouden door het opnemen van een geurzone. Deze geurzone ligt ook voor een klein gedeelte binnen uit te werken woonbestemmingen. De geurcontour wordt daarom ook opgenomen in dit uitwerkingsplan en de bouwvlakken worden zodanig gesitueerd dat de bouw van woningen binnen de geurcontour niet mogelijk is.

4.4 Ecologie

Ter bescherming van ecologische waarden moet er bij ruimtelijke ingrepen een afweging worden gemaakt in het kader van de Natuurbeschermingswet en de Flora- en faunawet. De Natuurbeschermingswet geeft regels ten aanzien van beschermde natuurgebieden. De Flora- en faunawet heeft betrekking op bescherming van dier- en plantensoorten. Om inzicht te krijgen in de mogelijke effecten zijn ter voorbereiding van het bestemmingsplan "Albergen, Weemselerveld Zuid fase 3" een natuurtoets en een nader onderzoek ten aanzien van muizen uitgevoerd.

Uit deze onderzoeken bleek dat van negatieve effecten ten aanzien van beschermde Natuurgebieden geen sprake is. Ten aanzien van de soortenbescherming bleek alleen het beperken van het foerageergebied van de Steenuil een aandachtspunt. Er is een werkprotocol opgesteld, waarin enkele maatregelen worden voorgesteld. Bij het bouwrijp maken van het plangebied en het beheer en onderhoud van groenvoorzieningen wordt uitvoering gegeven aan de maatregelen die noodzakelijk zijn om het plangebied geschikt te houden voor het verblijf en foerageren van de Steenuil.

4.5 Water

Voor het gehele plangebied Weemselerveld Zuid fase 3 is een waterstructuurplan opgesteld, dat als bijlage bij het moederplan is gevoegd.

Dit waterstructuurplan voorziet in voldoende infiltratiemogelijkheden om de toename aan verhard oppervlak te compenseren. Het hemelwater wordt dus gescheiden van het vuilwater.

Met de uitvoering van het waterstructuurplan worden negatieve gevolgen voor de waterhuishouding voorkomen.

Hoofdstuk 5 Juridische planbeschrijving

5.1 Plansystematiek

De Wet ruimtelijke ordening bepaalt dat ruimtelijke plannen digitaal en analoog beschikbaar moeten zijn. Dit brengt met zich mee dat bestemmingsplannen digitaal uitwisselbaar en op vergelijkbare wijze gepresenteerd moeten worden. Daarom stelt onder andere de Wro eisen waaraan digitale en analoge plannen moeten voldoen. Zo bevat de Standaard Vergelijkbare Bestemmingsplannen (SVBP) bindende afspraken waarmee bij het maken van bestemmingsplannen rekening moet worden gehouden. De SVBP kent hoofdgroepen van bestemmingen, een lijst met functie- en bouwaanduidingen, gebiedsaanduidingen en een verplichte opbouw van de planregels en het renvooi.

De plansystematiek is gebaseerd op die van het moederplan. Waar nodig zijn de planregels van de bestemming 'Wonen' aangepast. Dit geldt bijvoorbeeld voor de aanduidingen 'vrijstaand' en 'twee-aaneen', die in het moederplan niet voorkomen. Een aanduiding die wel in het moederplan voorkomt, maar niet in deze uitwerking is 'gestapeld'.

5.2 Opbouw regels

De regels zijn onderverdeeld in inleidende regels, bestemmingsregels, algemene regels en overgangs- en slotregels.

De inleidende regels vormen hoofdstuk 1 en bevatten de begrippen en de wijze van meten. Hoofdstuk 2 bevat de bestemmingsregels. Hierin zijn de regels bij de in het plan voorkomende bestemmingen opgenomen. Onder algemene regels, hoofdstuk 3 zijn regels opgenomen die niet beperkt zijn tot een specifieke bestemming, maar gelden voor het gehele plangebied, zoals de anti-dubbeltelregel en algemene afwijkingsregels. Tot slot zijn in hoofdstuk 4 de overgangsregels en de slotregel opgenomen.

Hoofdstuk 6 Uitvoerbaarheid

6.1 Economische haalbaarheid

Het betreft een gemeentelijk initiatief. De gemeente Tubbergen heeft de gronden in eigendom en draagt zorg voor de totstandkoming van het bestemmingsplan en het bouw- en woonrijp maken. De kavels worden volgens stedenbouwkundig plan uitgegeven, waarna de nieuwe eigenaren vergunningen kunnen aanvragen (en verkrijgen) voor de bouw van woningen. Het plan is doorgerekend en is economisch uitvoerbaar.

6.2 Maatschappelijke aanvaardbaarheid

6.2.1 Inspraak

Omdat het een uitwerking betreft van een recent vastgesteld bestemmingsplan is dit plan niet voor inspraak ter inzage gelegd.

6.2.2 Vooroverleg

Met deze uitwerking zijn geen belangen van het Rijk gemoeid, waardoor vooroverleg met de Rijksdiensten niet vereist is.

Gezien de beperkte impact van deze uitwerking is geen vooroverleg met het waterschap en de provincie gevoerd. Wel worden deze in kennis gesteld van het ter inzage leggen van het ontwerp, zodat eventuele opmerkingen in een zienswijze verwoord kunnen worden.

6.2.3 Voorbereidingsprocedure

Overeenkomstig afdeling 3.4 van de Awb heeft het ontwerp van het uitwerkingsplan met ingang van 18 maart 2015, gedurende zes weken ter inzage gelegen. Er zijn geen zienswijzen ingediend.

Bijlagen bij toelichting