|
Het bestemmingsplan 'Claudius Prinsenlaan e.o., Molenslag ong.' met identificatienummer NL.IMRO.0758.BP2021203008-VG01 van de gemeente Breda.
De geometrisch bepaalde planobjecten met de bijbehorende regels en de daarbij behorende bijlagen.
Een beroeps- of bedrijfsactiviteit, niet zijnde prostitutie, waarvan de activiteiten in hoofdzaak niet-publieksaantrekkend zijn en die door een bewoner op kleine schaal in of bij een (bedrijfs)woning wordt uitgeoefend, waarbij de (bedrijfs)woning in overwegende mate haar woonfunctie behoudt en de desbetreffende activiteit een ruimtelijke uitstraling heeft die in overeenstemming is met de woonfunctie.
Een geometrisch bepaald vlak of figuur, waarmee gronden zijn aangeduid, waar ingevolge de regels regels worden gesteld ten aanzien van het gebruik en/of het bebouwen van deze gronden.
Waarden die bestaan uit de aanwezigheid van een bodemarchief met sporen van vroegere menselijke bewoning of grondgebruik daarin, en die als zodanig van wetenschappelijk belang zijn en het cultuurhistorisch erfgoed vertegenwoordigen.
De bouwlaag van een gebouw, die rechtstreeks ontsloten wordt vanaf het straatniveau.
Het plaatsen, het geheel of gedeeltelijk oprichten, vernieuwen of veranderen en het vergroten van een bouwwerk, alsmede het geheel of gedeeltelijk oprichten, vernieuwen of veranderen van een standplaats.
Een doorlopend gedeelte van een gebouw dat door op gelijke of bij benadering gelijke hoogte liggende vloeren (of horizontale balklagen) is begrensd, zulks met inbegrip van de begane grond en met uitsluiting van onderbouw, dakopbouw en zolder.
Een aaneengesloten stuk grond, waarop ingevolge de regels een zelfstandige, bij elkaar behorende bebouwing is toegelaten.
Een geometrisch bepaald vlak, waarmee gronden zijn aangeduid, waar ingevolge de regels bepaalde gebouwen en bouwwerken geen gebouwen zijnde zijn toegelaten.
Elke constructie van enige omvang van hout, steen, metaal of ander materiaal, die hetzij direct hetzij indirect met de grond is verbonden, hetzij direct of indirect steun vindt in of op de grond.
Een gedeelte van een gebouw, gesitueerd op de bovenste bouwlaag van het gebouw, en ondergeschikt aan het gebouw.
Elk bouwwerk, dat een voor mensen toegankelijke, overdekte, geheel of gedeeltelijk met wanden omsloten ruimte vormt.
Woningen en andere geluidsgevoelige gebouwen, alsmede geluidsgevoelige terreinen als bedoeld in de Wet geluidhinder en in het Besluit geluidhinder.
Een ruimte binnen een woning voor zover die kennelijk als slaap-, woon-, of eetkamer wordt gebruikt of voor een zodanig gebruik is bestemd, alsmede een keuken van minimaal 11 m².
Een woning die geheel of gedeeltelijk boven/onder een andere woning is gelegen.
Een dak met dakbedekking waarop een laag is aangebracht die hoofdzakelijk bestaat uit levende planten waardoor de dakbedekking hemelwater bergt en vertraagd afvoert, waarbij de waterbergingscapaciteit minimaal 20 mm (20 ltr/m²) bedraagt.
Elke ruimte voor het bedrijfsmatig te koop aanbieden, verkopen en/of leveren van synthetische of organische psychotrope stoffen of planten die psychotrope stoffen bevatten, of benodigdheden ten behoeve van het gebruiken van psychotrope stoffen, of voor het gebruiken van planten die psychotrope stoffen bevatten, aan personen die de goederen kopen voor gebruik, verbruik of aanwending in de uitoefening van eigen beroeps- of bedrijfsactiviteit, met inbegrip van het uitstallen ten behoeve van verkoop en levering van deze stoffen.
Elke ruimte voor het bedrijfsmatig te koop aanbieden, verkopen en/of leveren van benodigdheden ten behoeve van het gebruiken van psychotrope stoffen, of voor het gebruiken of bewerken van planten die psychotrope stoffen bevatten, aan personen die de goederen kopen voor gebruik, verbruik of aanwending anders dan in de uitoefening van een beroeps- of bedrijfsactiviteit, met inbegrip van het uitstallen ten behoeve van verkoop en/of levering van deze benodigdheden.
Een gebouw, dat op een bouwperceel door zijn constructie en afmetingen als belangrijkste bouwwerk valt aan te merken.
een samenlevingsvorm van een of meer personen, waarbij sprake is van een onderlinge verbondenheid en continuïteit in de samenstelling ervan.
Het verschaffen van woonverblijf aan meer dan één huishouden, met dien verstande dat het verhuren van kamers zonder eigen voorzieningen, zoals een badkamer en keuken, aan maximaal twee personen, door een eigenaar (hospita) die in dezelfde woning woont niet als kamerverhuur wordt aangemerkt.
Voorzieningen ten behoeve van het openbare nut, zoals transformatorhuisjes, gasreduceerstations, schakelhuisjes, duikers, bemalingsinstallaties, gemaalgebouwtjes, openbare sanitaire voorzieningen, collectieve energievoorzieningen (o.a. warmtepompen) en apparatuur voor telecommunicatie.
Een gedeelte van een gebouw, dat wordt afgedekt door een vloer waarvan de bovenkant minder dan 1,2 meter boven het peil is gelegen.
Bewoning door een of meerdere personen van een daarvoor bestemd gebouw als hoofdverblijf.
Het zich beschikbaar stellen tot het verrichten van seksuele handelingen met een ander tegen vergoeding.
Kwaliteit van een gebied die bepaald wordt door de mate waarin sprake is van gebruikswaarde, belevingswaarde en toekomstwaarde.
Een voor het publiek toegankelijke, besloten ruimte waarin bedrijfsmatig, of in de omvang alsof zij bedrijfsmatig was, seksuele handelingen worden verricht of vertoningen van erotisch/ pornografische aard plaatsvinden. Onder seksinrichting wordt in ieder geval verstaan: een (raam)prostitutiebedrijf, een erotische massagesalon, een seksbioscoop, seksautomatenhal, sekstheater of een parenclub, al dan niet in combinatie met elkaar.
Elke ruimte voor het bedrijfsmatig te koop aanbieden, verkopen en/of leveren van synthetische of organische psychotrope stoffen of planten die psychotrope stoffen bevatten, aan personen die de goederen kopen voor gebruik, verbruik of aanwending anders dan in de uitoefening van een beroeps- of bedrijfsactiviteit, met inbegrip van het uitstallen ten behoeve van verkoop en/of levering van deze stoffen.
Een huurwoning voor sociale huur zoals bedoeld in de 'Verordening doelgroepen sociale woningbouw & middenhuur gemeente Breda'.
De naar de weg of aan het openbaar gebied gekeerde gevel van een gebouw of, indien het een gebouw betreft van meer dan één naar de weg of het openbaar gebied gekeerde gevel, de gevel die door zijn aard, functie, constructie dan wel gelet op uitstraling ervan als belangrijkste gevel kan worden aangemerkt.
Bovengrondse en/of ondergrondse voorzieningen ten behoeve van de berging en infiltratie van hemelwater in de bodem, zoals groene daken, wadi’s (verlaging in het groen), waterbergende bestrating, berging op het dak, grindkoffers, infiltratiekratten en/of het aanbrengen of vergroten van (bestaande) greppels, (zak)sloten, watergangen en vijver.
Bij toepassing van deze regels wordt als volgt gemeten:
De kortste afstand van enig punt van een gebouw tot de (zijdelingse) bouwperceelgrens van het bouwperceel.
De oppervlakte van alle op een bouwperceel gelegen bouwwerken tezamen.
Het deel van het bouwperceel uitgedrukt in procenten dat bebouwd mag worden.
Vanaf het peil tot aan het hoogste punt van een gebouw of van een bouwwerk, geen gebouw zijnde, en met uitzondering van ondergeschikte bouwonderdelen, zoals schoorstenen, antennes en naar de aard daarmee gelijk te stellen bouwonderdelen.
Vanaf de afdekking van de bovenste bouwlaag tot aan het hoogste punt van de dakopbouw.
Vanaf de bovenkant goot, boeibord of daarmee gelijk te stellen constructiedeel tot aan het hoogste punt van de kap.
Tussen de onderzijde van de begane grondvloer, de buitenzijde van de gevels (en/of het hart van de scheidingsmuren) en de buitenzijde van daken en dakkapellen.
Bij de toepassing van het bepaalde ten aanzien van het bouwen worden ondergeschikte bouwdelen, zoals plinten, pilasters, kozijnen, gevelversieringen, ventilatiekanalen, schoorstenen, gevel- en kroonlijsten, luifels, erkers, balkons en overstekende daken en dergelijke buiten beschouwing gelaten, mits de overschrijding niet meer dan 1 meter bedraagt.
De voor 'Groen' aangewezen gronden zijn bestemd voor:
De gronden mogen niet worden bebouwd, met uitzondering van bouwwerken, geen gebouwen zijnde.
De voor 'Verkeer' aangewezen gronden zijn bestemd voor:
De gronden mogen niet worden bebouwd, met uitzondering van bouwwerken, geen gebouwen zijnde.
De voor ‘Wonen’ aangewezen gronden zijn bestemd voor:
met daarbij behorend(e):
Van het totaal aantal woningen dient minimaal 26% als sociale huurwoning te worden gebouwd en als zodanig in stand te worden gehouden.
Het oprichten van bebouwing is uitsluitend toegestaan indien wordt voorzien in een waterbergingsvoorziening met voldoende capaciteit. De capaciteit van de waterbergingsvoorziening wordt als volgt berekend:
Grond die eenmaal in aanmerking is genomen bij het toestaan van een bouwplan waaraan uitvoering is gegeven of alsnog kan worden gegeven, blijft bij de beoordeling van latere bouwplannen buiten beschouwing.
Indien de bestaande maatvoering afwijkt van hetgeen in deze planregels is bepaald mag deze afwijkende maatvoering te allen tijde worden gehandhaafd en/of vernieuwd, met dien verstande dat de afwijking niet mag worden vergroot.
Het bevoegd gezag kan, mits geen onevenredige afbreuk wordt gedaan aan het straat- en bebouwingsbeeld, de milieusituatie, de verkeersveiligheid, de sociale veiligheid en de gebruiksmogelijkheden van de aangrenzende gronden, met een omgevingsvergunning afwijken van:
Burgemeester en wethouders kunnen nadere eisen stellen aan de plaats en de afmetingen van de bebouwing, ten behoeve van:
Initiatiefnemer is voornemens om de locatie aan de Molenslag in Breda het woningbouwproject 'De Triade' te ontwikkelen. De locatie betreft een terrein tussen Sportcentrum 'De Scharen', bebouwing aan Pels Rijckenpark, Molenslag en de beek Molenleij. Voorheen werden de gronden gebruikt als een sportveld van het genoemde sportcentrum.
Voor de gronden is een nieuwe woonfunctie beoogd. Het plan bestaat uit de realisatie van 41 appartementen, verdeeld over drie bouwblokken met 3 en 4 bouwlagen.
Het geldende bestemmingsplan 'Breda Zuid-Oost' en de 'partiële herziening 1997/1 aanpassing voorschriften', staan de voorgenomen ontwikkeling op deze locatie niet toe. Om het beoogde initiatief juridisch-planologisch mogelijk te maken dient een nieuw bestemmingsplan vastgesteld te worden. Het voorliggende bestemmingsplan voorziet hierin.
De planlocatie ligt in het oosten van Breda. Het plangebied is ingesloten tussen Sportcentrum 'De Scharen', woonbebouwing aan Pels Rijckenpark, Molenslag en de beek Molenleij. Rond het plangebied zijn verschillende functies, zoals wonen, maatschappelijke voorzieningen, kantoren en een sportvoorziening te vinden. De planlocatie maakt onderdeel uit van het perceel kadastraal bekend onder de gemeente Ginneken, sectie A, perceelnummer 6906.
De navolgende afbeeldingen tonen de globale ligging en begrenzing van het plangebied.

Globale ligging plangebied, rood omcirkeld (bron: Google Maps)

Globale begrenzing plangebied, rood omkaderd (bron: Google Maps)
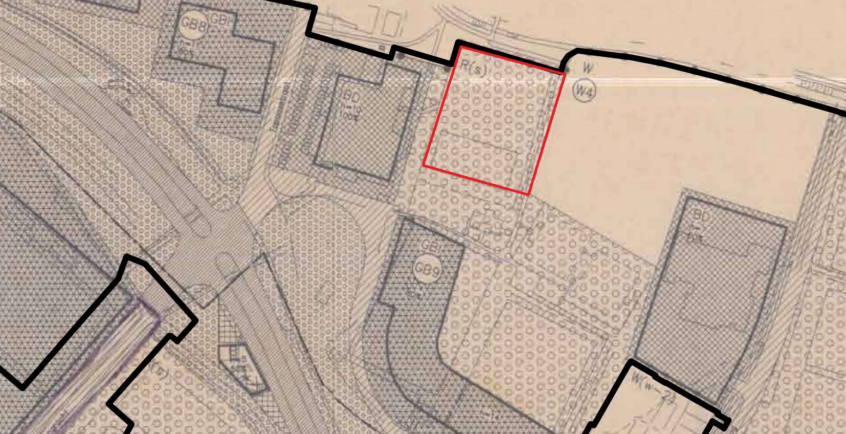
Het plangebied ligt binnen de plangrenzen van het bestemmingsplan 'Breda Zuid-Oost', vastgesteld op 25 juni 1992 en de 'partiële herziening 1997/1 aanpassing voorschriften' daarvan, vastgesteld op 23 december 1997. De gronden van het plangebied zijn aangewezen met de bestemming 'Recreatie' met de aanduiding voor sportvelden R(s). Binnen deze bestemming zijn volkstuinen, sportvelden, clubgebouwen, bergingen ten behoeve van beheer en onderhoud, parkeer- en groenvoorzieningen en bouwwerken, geen gebouwen zijnde toegestaan. Het bebouwingspercentage mag binnen het bestemmingsvlak ten hoogste 4% bedragen.
De navolgende afbeelding toont een uitsnede van de plankaart van het bestemmingsplan 'Breda Zuid-Oost'.

plankaart 'Breda Zuid-Oost', 25 juni 1992 (bron: ruimtelijkeplannen.nl)
Daarnaast geldt voor de gronden van het plangebied het 'Parapluplan parkeren 2017', vastgesteld op 12 maart 2018. Dit plan zorgt ervoor dat er getoetst kan worden aan het parkeerbeleid en de parkeernormen van de gemeente Breda.
Het mogelijk maken van drie appartementengebouwen op de planlocatie past niet binnen de regels van de bestemming 'Recreatie'. Derhalve dient een nieuw bestemmingsplan vastgesteld te worden. Voorliggend bestemmingsplan voorziet hierin.
In hoofdstuk 2 worden achtereenvolgens de huidige situatie en de toekomstige situatie in het plangebied beschreven. In hoofdstuk 3 is een beschrijving van het relevante nationale, provinciale, en gemeentelijke beleid opgenomen. In hoofdstuk 4 wordt het project inhoudelijk op haalbaarheid getoetst aan de hand van het geldende beleid en (milieu)wetgeving. In hoofdstuk 5 wordt vervolgens een juridische planbeschrijving gegeven. Tot slot bevat hoofdstuk 6 de economische en maatschappelijke uitvoerbaarheid van het plan, waarbij de uitkomsten van (voor)overleg en inspraak zijn opgenomen.
Het plangebied is onderdeel van een gevarieerd gebied tussen het Brabantpark en de Claudius Prinsenlaan, met sportvoorzieningen, kantoorbebouwing uit de jaren '80 en maatschappelijke voorzieningen (waaronder een zorgcentrum) en woningbouw vanaf de jaren '90.
De navolgende afbeelding toont een luchtfoto van de huidige situatie.

Luchtfoto huidige situatie (bron: Google Maps, 2020)
In de huidige situatie bestaat het plangebied uit een perceel met grasland, met een incidentele boom. Ten noorden en aan de oostelijke rand van het plangebied loopt een (voet)pad met opgaande beplanting en de Molenleij, met parallel daaraan deels een andere waterpartij.
De Molenleij is een beek die in de jaren '60 van de vorige eeuw is gekanaliseerd in het kader van de naoorlogse cultuur rondom waterbeheersing. De Molenleij is een belangrijke verbinding die van buiten de stad via het Brabantpark de Singels van Breda verbindt.

Bestaande situatie met links de groenstrook aan de zijde van Molenslag en rechts de Molenleij, gezien vanaf de noordkant (bron: Buro SRO, februari 2021)

Bestaande situatie met links gebouw van Laurentius en rechts Gemeentelijk Sportcentrum Breda (bron: Buro SRO, februari 2021)
Ten westen grenst het plangebied aan een sportvoorziening: het Gemeentelijk Sportcentrum Breda. Dit betreft een markant gebouw uit de jaren '60 dat is aangewezen als Rijksmonument. Het onderhavige plangebied vormde voorheen het buitensportveld bij dit sportcentrum.

Bestaande situatie met links studentenhuisvesting aan Molenslag (bron: Buro SRO, februari 2021) en rechts Gemeentelijk Sportcentrum Breda (bron: taski.nl)
Direct ten zuiden van het plangebied bevindt zich een woongebouw van woningcorporatie Laurentius, gerealiseerd rond 2010. Het betreft een gebouw met deels 4 bouwlagen en deels 5 bouwlagen. Ten oosten van het plangebied, aan de doodlopende Molenslag is studentenhuisvesting aanwezig met drie bouwlagen. Hier is tevens een ruime parkeergelegenheid aanwezig.
Ten noorden van het plangebied bevinden zich eengezinswoningen in twee lagen met een kap. Deze woningen zijn onderdeel van de wijk Brabantpark uit de jaren 60. in deze wijk is ook een wijkwinkelcentrum gevestigd. Ten noordwesten van het plangebied, aan de Topaasstraat, is een appartementengebouw van rond het jaar 2000 in drie bouwlagen en deels een vierde bouwlaag.
Beoogd wordt om het gebied te herontwikkelen naar woningbouw. Uitgegaan wordt van drie bouwblokken, waarvan twee met vier bouwlagen en één met drie bouwlagen. In totaal voorziet de ontwikkeling in 41 appartementen.
De navolgende afbeelding toont een situatietekening van de beoogde situatie.

Situatietekening beoogde situatie (bron: Oomen Architecten, 12 februari 2019, bewerkt Buro SRO)
Landschapsontwerp en stedenbouw
De drie bouwblokken met appartementen worden informeel in het groen geplaatst en verankeren zich in de stedenbouwkundige context door de richtingen en korrel van de reeds bestaande bebouwing over te nemen. Ook voor wat betreft de bouwhoogte (met drie en vier bouwlagen) is aansluiting gezocht bij de omliggende (woon-)bebouwing. de relatie met het Gemeentelijk Sportcentrum Breda, een Rijksmonument, komt nader aan bod in toelichting paragraaf 4.9 Cultureel Erfgoed.
Met het voorliggende plan staat 'wonen in het groen' centraal, waarbij het landschap vanuit de parkachtige inrichting tussen en om de gebouwen een natuurlijke overgang maakt naar de losse en natuurlijke begroeiing langs de Molenleij. Door middel van een zorgvuldige inpassing van groen, het verzachten van de harde begrenzingen van het terrein en het leggen van verbindingen met de zone van de Molenleij wordt het gebied getransformeerd tot een prettig woon- en recreatief gebied, waar men kan verblijven, ontmoeten, wandelen, spelen, relaxen en genieten. Bij de nadere uitwerking van het buitenruimteplan staan de landschappelijke inpassing en de opvang, infiltratie en vertraagde afvoer van het hemelwater centraal. Dit gebeurt in nauw overleg met de gemeente Breda.

Impressie parklandschap (nader uit te werken)(bron: Oomen Architecten, 12 februari 2019)

Doorsnede met beoogde situatie (bron: Oomen Architecten, 12 februari 2019)
Ontsluiting en parkeren
Het plangebied wordt voor het gemotoriseerde verkeer ontsloten vanaf de Nieuwe Inslag en Molenslag aan de oostzijde van het plangebied. Er wordt in voldoende parkeerplaatsen voorzien (zie ook toelichting paragraaf 4.10.2), conform de nieuwe gemeentelijke parkeernormen. Tevens wordt rekening gehouden met de bereikbaarheid voor hulpdiensten.
Programma
Met het plan worden drie bouwblokken met in totaal 41 appartementen gerealiseerd. De appartementen worden gerealiseerd als zogenaamde 'nultreden woningen' die zoveel als redelijkerwijs mogelijk rolstoeltoegankelijk zijn.
In bouwblok A worden 11 sociale huurappartementen van elk ca. 60 m² gerealiseerd. Deze sociale huur wordt ook als zodanig verankerd in de regels. De bouwblokken B en C bestaan beiden uit in totaal 15 koopappartementen in de categorie 'middelduur hoog', verdeeld over 7 appartementen van ca. 85 m² en 8 appartementen van ca. 105 m².
Op 11 september 2020 is de Nationale Omgevingsvisie (NOVI) in werking getreden. Deze visie bevat de hoofdzaken van het strategisch rijksbeleid voor de fysieke leefomgeving. Dit is een combinatie van beleid uit de bestaande beleidsdocumenten, met en zonder wettelijke grondslag, en nieuw strategisch beleid. De grote en complexe opgaven zoals klimaatverandering, energietransitie, circulaire economie, bereikbaarheid en woningbouw zullen Nederland gaan veranderen. De NOVI schrijft een toekomstperspectief met de ambities van het Rijk. In de NOVI zijn 21 nationale belangen met bijbehorende opgaven geformuleerd. Deze nationale belangen komen samen in vier prioriteiten:
Voor de vier NOVI-prioriteiten geldt steeds dat zowel voor de lange als de korte termijn maatregelen nodig zijn. Deze maatregelen dienen in de praktijk voortdurend op elkaar in te spelen. Bij de afweging van de belangen staat een evenwichtig gebruik van de fysieke leefomgeving centraal voor zowel de boven- als de ondergrond.
Planspecifiek
Gezien de aard en omvang van het project is de NOVI verder niet specifiek van belang. Wel wordt er aangesloten op de ambities en belangen van het Rijk, zoals het realiseren en behouden van een goede leefomgevingskwaliteit en het realiseren van woningen.
De wetgever heeft in de Wro, ter waarborging van de nationale of provinciale belangen, de besluitmogelijkheden van lagere overheden begrensd. Indien nationale of provinciale belangen dat met het oog op een goede ruimtelijke ordening noodzakelijk maken, kunnen bij of krachtens algemene maatregel van bestuur respectievelijk bij of krachtens provinciale verordening regels worden gesteld omtrent de inhoud van bestemmingsplannen. In het Besluit algemene regels ruimtelijke ordening (Barro) zijn 14 nationale belangen opgenomen die in de Structuurvisie Infrastructuur en Ruimte (SVIR) zijn herbevestigd. Voor deze belangen is het Rijk verantwoordelijk en wil het resultaten boeken. Buiten deze belangen hebben decentrale overheden beleidsvrijheid. Het Barro is op 30 december 2011 in werking getreden en op 1 oktober 2012, 1 juli 2014 en 1 juli 2016 op onderdelen aangevuld.
Planspecifiek
Het Barro is verder niet specifiek van toepassing op het plangebied.
In het Besluit ruimtelijke ordening (Bro) is de verplichting opgenomen om in het geval van een nieuwe stedelijke ontwikkeling in de toelichting een onderbouwing op te nemen van nut en noodzaak van de nieuwe stedelijke ruimtevraag en de ruimtelijke inpassing. Hierbij wordt uitgegaan van de 'ladder voor duurzame verstedelijking'.
De 'stappen van de ladder' worden in artikel 3.1.6, leden 2 - 4 Bro als volgt omschreven:
Planspecifiek
Conform artikel 1.1.1, eerste lid onder i van het Bro wordt onder een stedelijke ontwikkeling verstaan: een 'ruimtelijke ontwikkeling van een bedrijventerrein of zeehaventerrein, of van kantoren, detailhandel, woningbouwlocaties of andere stedelijke voorzieningen.' Uit jurisprudentie van de Afdeling bestuursrechtspraak van de Raad van State blijkt dat de ondergrens van wat als nieuwe stedelijke ontwikkeling moet worden gezien, ligt tussen de 9 en 14 nieuwe woningen afhankelijk van de omgeving waarin de ontwikkeling plaatsvindt. Het voorliggende plan voorziet in 41 woningen. Derhalve wordt het plan gezien als stedelijke ontwikkeling en dient het plan getoetst te worden aan de 'ladder voor duurzame verstedelijking'.
Bestaand stedelijk gebied
Het bestaand stedelijk gebied wordt volgens het Besluit ruimtelijke ordening (Bro) als volgt gedefinieerd: ’bestaand stedenbouwkundig samenstel van bebouwing ten behoeve van wonen, dienstverlening, bedrijvigheid, detailhandel of horeca, alsmede de daarbij behorende openbare of sociaal culturele voorzieningen, stedelijk groen en infrastructuur’. Het plangebied ligt in het oostelijke gedeelte van Breda. Er is een samenstel van bebouwing aanwezig en rond de locatie zijn verschillende functies te vinden zoals wonen, kantoren, sportvoorzieningen en maatschappelijke voorzieningen. Er kan dan ook geconcludeerd worden dat de planlocatie binnen bestaand stedelijk gebied ligt.
Behoefte
Uit de Brabantse Agenda Wonen van de provincie Noord-Brabant, die in toelichting paragraaf 3.2.3 behandeld wordt, blijkt dat er een behoefte van ca. 160.000 woningen is tot 2050. Daarnaast blijkt uit de Woonvisie Breda (toelichting paragraaf 3.3.2) dat er een behoefte aan 6.809 woningen is binnen de gemeente Breda. Geconcludeerd kan worden dat er een grote kwantitatieve behoefte aan nieuwe woningen bestaat. De beoogde woningen voorzien in die behoefte. Tevens voorziet het in een kwalitatieve behoefte, met de beoogde 'nultreden woningen', waar ook zorgbehoevenden gebruik van kunnen maken. Daarmee voorzien de beoogde nieuwe woningen in een kwantitatieve en kwalitatieve woningbehoefte.
Conclusie
Er kan geconcludeerd worden dat het voorgenomen project voldoet aan de Ladder voor duurzame verstedelijking.
Op 14 december 2018 is de Omgevingsvisie Noord-Brabant in werking getreden. De basisopgave van de Brabantse Omgevingsvisie is: “Werken aan veiligheid, gezondheid en omgevingskwaliteit”. Voor 2030 is het doel om voor alle aspecten te voldoen aan de wettelijke normen. Brabant heeft dan een aanvaardbare leefomgevingskwaliteit. Voor 2050 is het doel om een goed leefomgevingskwaliteit te hebben door op alle aspecten beter te presteren dan wettelijk als minimumniveau is bepaald.
De visie noemt één basisopgave en een viertal hoofdopgaven:
Daarna volgt een doorvertaling in een Omgevingsverordening en programma’s.
Om straks als de Omgevingswet in werking treedt (volgens de huidige planning pas in 2022) echt klaar te zijn, is er alvast een interim omgevingsverordening opgesteld. In deze interim omgevingsverordening worden de bestaande regels over de fysieke leefomgeving zoveel mogelijk in één verordening onder gebracht.
Planspecifiek
De voorgenomen ontwikkeling heeft met name betrekking op de 'Basisopgave', 'Brabantse energietransitie' en 'Concurrerende, duurzame economie'. Met de ontwikkeling worden in totaal 41 appartementen gerealiseerd. Hierbij wordt een aantrekkelijke leefomgeving gecreëerd, een parklandschap met een aansluiting op een belangrijke groenstrook van de Molenleij ten noorden van het plangebied. Zo worden verbindingen toegevoegd door het plangebied, met aansluitingen op het wandelpad langs de Molenleij en wordt de groenstructuur in het plangebied versterkt. Dat komt ten goede aan de omgevingskwaliteit.
Het betreft een duurzame ontwikkeling waarbij het plangebied een passende stedelijke functie krijgt. De ambitie is om zoveel mogelijk gebruik te maken van duurzame materialen en de woningen te voorzien van een goede isolatie. Ook worden de woningen niet aangesloten op het gas, waarmee aangesloten wordt op de ambities van de provincie.
De hoofdopgave 'werken aan een concurrerende, duurzame economie' krijgt invulling met de beoogde ontwikkeling doordat er geïnvesteerd wordt in vestigingsmogelijkheden in de stad. Door nieuwe bewoners aan te trekken wordt er indirect een bijdrage geleverd aan de economie.
Gesteld kan worden dat de beoogde ontwikkeling in lijn is met de Brabantse Omgevingsvisie.
Provinciale Staten van Noord-Brabant hebben op 25 oktober 2019 de 'Interim omgevingsverordening Noord-Brabant' vastgesteld. In de Interim omgevingsverordening zijn de bestaande regels van de Provinciale milieuverordening, Verordening natuurbescherming, Verordening ontgrondingen, Verordening ruimte, Verordening water en de Verordening wegen samengevoegd.
De Interim omgevingsverordening is beleidsneutraal van karakter. Dat betekent dat de huidige regels zijn gehandhaafd met het huidige beschermingsniveau en dat er in beginsel geen nieuwe beleidswijzigingen zijn doorgevoerd.
In de Verordening Ruimte Noord Brabant, geconsolideerd op 1 januari 2019, staan regels waarmee een gemeente rekening moet houden bij het ontwikkelen van bestemmingsplannen. Door deze regels weten de gemeenten al in een vroeg stadium waar ze aan toe zijn. Per onderwerp zijn in de verordening gebieden tot op perceelniveau begrensd op een kaart. De onderwerpen die in de verordening staan, komen uit de provinciale structuurvisie. Daarin staat welke belangen de provincie wil behartigen en hoe ze dat wil doen. De verordening is daarbij een van de manieren om die provinciale belangen veilig te stellen.
Belangrijke onderwerpen in de Verordening Ruimte zijn:
Belangrijk bij de beoordeling van nieuwe plannen is de inpasbaarheid in het provinciaal beleid. De verordening is daarbij het document wat de meest concrete regels biedt voor nieuwe ontwikkelingen. Binnen bestaand stedelijk gebied is stedelijke ontwikkeling mogelijk. Indien sprake is van nieuwbouw van woningen dient verantwoord te worden hoe dit zich verhoudt tot de beschikbare harde plancapaciteit en andere woningbouwafspraken.
Planspecifiek
Op de kaart 'stedelijke ontwikkeling en erfgoed' staat aangegeven dat het plangebied onderdeel uitmaakt van het 'stedelijk gebied'. Hoofdregel van het beleid is dat stedelijke ontwikkelingen binnen het bestaand stedelijk gebied plaatsvinden. Dat is in onderhavige situatie het geval. Verder dient de ontwikkeling regionaal te zijn afgestemd en dient er sprake te zijn van een duurzame stedelijke ontwikkeling.
Duurzame stedelijke ontwikkeling
Het uitgangspunt voor een duurzame stedelijke ontwikkeling is eerst de mogelijkheid in het stedelijk gebied te benutten. De duurzame stedelijke ontwikkeling bevordert de omgevingskwaliteit. Daarnaast dient er een optimale invulling te zijn van de mogelijkheden voor duurzame energie en dient er rekening gehouden te worden met klimaatverandering.
Met het voorliggende initiatief wordt er gebruik gemaakt van een open terrein binnen bestaand stedelijk gebied. Er worden drie woonblokken met appartementen gerealiseerd. Met de beoogde ontwikkeling wordt een bijdrage geleverd aan de behoefte aan (sociale) woningen. Hierbij wordt zoveel mogelijk rekening gehouden met de ambities voor duurzaamheid en klimaatadaptatie. Hiermee is sprake van een duurzame ontwikkeling.
Regionale afstemming
Tevens dient de stedelijke ontwikkeling te passen binnen de regionale afspraken. Omdat een stedelijke ontwikkeling van wonen, werken en voorzieningen ook bovengemeentelijke gevolgen kan hebben, worden hierover binnen het regionale overleg afspraken gemaakt. Het is belangrijk dat stedelijke ontwikkelingen op een juist niveau zijn afgestemd met andere initiatieven zowel vanuit kwantiteit als vanuit kwaliteit. Voorliggend initiatief gaat in op het realiseren van 41 appartementen. In toelichting paragraaf 3.1.3 is ingegaan op de ladder voor duurzame verstedelijking. Hieruit blijkt dat er een behoefte aan nieuwe woningen vanuit zowel de regio als de provincie bestaat.
Er kan daarmee geconcludeerd worden dat er voldaan wordt aan de 'Interim omgevingsverordening Noord-Brabant'.
De Brabantse Agenda Wonen geeft aan wat er de komende jaren speelt op de woningmarkt van de provincie Noord-Brabant. Brabant telt verscheidene regionale woningmarkten, elk met hun eigen regiospecifieke en gemeentelijke karakteristieken, kwaliteiten, ontwikkelingen en opgaven. Voor de provincie gelden vier actielijnen:
Daarnaast zijn er een aantal richtinggevende principes. Het woningbouwprogramma zet optimaal in op binnenstedelijke locaties. Woningbouwplannen binnen bestaand stedelijk gebied worden erg gewaardeerd door de provincie. Hiervoor wordt dan ook ruim baan gegeven. De nadruk voor woningbouwplannen ligt op de bestaande woningvoorraad. Daarnaast is vraaggericht bouwen van groot belang. Hiervoor is flexibiliteit in de regionale en gemeentelijke woningbouwplannen nodig. Als laatste dient de regionale woningbouwmarkt versterkt te worden.
Planspecifiek
Samenhangend met de grote groei van het aantal huishoudens moeten er tot 2050 ca. 160.000 woningen toegevoegd moeten worden aan de woningmarkt in de provincie Noord-Brabant. Hiervan zullen er ca. 120.000 in de periode tot 2030 gebouwd moeten worden.
De woningbehoefte zal voornamelijk binnenstedelijk en waar mogelijk in bestaande bebouwing gerealiseerd moeten worden. De planlocatie betreft een braakliggend terrein in bestaand stedelijk gebied. De locatie is dan ook zeer geschikt voor woningbouw. Met de ontwikkeling van de planlocatie vindt een duurzame verstedelijking plaats en worden 41 appartementen gerealiseerd, waarmee er een bijdrage geleverd wordt aan de kwantitatieve (en kwalitatieve) woningbehoefte in de provincie. Hiermee is de beoogde ontwikkeling in lijn met 'De Brabantse Agenda Wonen'.
Op 26 september 2013 is de 'Structuurvisie Breda 2030, Keuzes maken in een dynamische tijd' vastgesteld door de gemeente Breda. De structuurvisie bestaat uit een ruimtelijke- en een beleidsvisie. In de ruimtelijke visie worden de kernwaarden, een fundament en drie hooflijnen voor ontwikkeling genoemd.
Breda is een ondernemende en toegankelijke stad en kan gezien worden als de schakel tussen Brabant, de Randstad en België. Het is een onderwijsstad waar ruimte is voor creatief ondernemerschap. De stad, dorpen en buitengebied geven Breda samen haar kleur en identiteit, deze diversiteit moet behouden blijven. Breda is een stad van erfgoed, maar ook van creatie van nieuw erfgoed en beeldcultuur. Breda is een stad van de menselijke maat, iedereen doet mee.
Het fundament betreft compact, duurzaam en met veel ruimte voor initiatief. Ontwikkelingen dienen gecentreerd te worden binnen de huidige stedelijke grenzen. De huidige kwaliteit van de stad moet behouden blijven en versterkt worden. In het buitengebied ligt de focus op natuur en landbouw. Qua duurzaamheid wordt er breder ingezet dan alleen het milieu. Het principe van de drie P's (People, Planet, Profit) wordt hier gevolgd. In de huidige tijden zal ontwikkeling op een andere manier tot stand komen; niet alleen grote projecten van bovenaf, maar ook kleinschaligere initiatieven uit de stad, van onderaf.
Voor ruimtelijke ontwikkeling in Breda gelden drie hoofdlijnen:
In de beleidsvisie is per beleidsthema de beoogde visie op het gebied van de kernwaarden, het fundament en de hoofdlijnen voor ontwikkeling uitgewerkt. De beleidsthema's in de structuurvisie zijn als volgt:
Planspecifiek
De voorgenomen ontwikkeling heeft met name te maken met het beleidsthema 'Wonen'. De komende jaren zal er sprake zijn van een bevolkingstoename. Hierbij wordt vooral een toename van het aantal alleenstaanden en eenoudergezinnen verwacht. Aandacht voor jonge huishoudens, studenten en geschikt wonen voor iedereen is het uitgangspunt. Een differentiatie in woonmilieus is daarbij gewenst. Hiertoe worden 11 appartementen van elk ca. 60 m² gerealiseerd voor de sociale huursector en 30 appartementen met een oppervlakten van ca. 85 m² en 105 m² in de categorie 'middelduur hoog'. De appartementen zijn geschikt voor diverse doelgroepen zoals ouderen, alleenstaanden, eenoudergezinnen, maar ook jonge huishoudens. De appartementen zijn ook geschikt voor een doelgroep die zorg nodig heeft. Hiertoe worden de appartementen gerealiseerd als zogenaamde 'nultreden woningen' die zoveel als redelijkerwijs mogelijk rolstoeltoegankelijk zijn.
Voorts zal de openbare ruimte zorgvuldig ingericht worden waardoor er een aantrekkelijk woonmilieu (parklandschap) gecreëerd wordt. De openbare ruimte wordt dan ook voorzien van voldoende groen, in aansluiting op de zone van de Molenleij. Ook duurzaamheid wordt niet uit het oog verloren, zowel op het gebied van milieu en klimaat, als ten aanzien van de doorstroming op de woningmarkt.
Gelet op het voorgaande kan gesteld worden dat de beoogde ontwikkeling in lijn is met de 'Structuurvisie Breda 2030'.
De ambities uit de 'Woonvisie Breda, Wonen in een dynamische tijd' sluiten aan op de 'Structuurvisie Breda 2030'. In de woonvisie komen de belangrijkste onderwerpen aan de orde en bestaat uit vier kernopgaven:
De gemeente Breda streeft naar een kwalitatief goede en gedifferentieerde samenstelling van de woningvoorraad, die aansluit bij de diversiteit in de vraag vanuit de verschillende groepen van bewoners. Centraal staat de opgave om de keuzevrijheid van de consument op de huur- en koopmarkt te vergroten. Om dit te bereiken is flexibiliteit vereist, in plannen, programmering en procedures.
Planspecifiek
Uit de bevolkings- en woningbehoefteprognose van de Provincie blijkt dat er in de periode 2012 - 2022 een behoefte aan 6.809 nieuwe woningen is in de gemeente Breda. De ontwikkeling van 41 appartementen levert hier een bijdrage aan.
Daarnaast is het van belang dat er woningen voor de juiste doelgroepen gebouwd worden. Er is een grote behoefte aan nieuwe woningen voor de doelgroepen alleenstaanden, eenoudergezinnen, jonge huishoudens en ouderen. De voorgenomen ontwikkeling voorziet in nieuwe woningen voor deze doelgroepen. De appartementen worden gerealiseerd als zogenaamde 'nultreden woningen' die zoveel als redelijkerwijs mogelijk rolstoeltoegankelijk zijn.
In 2016 heeft gemeente Breda de Woonvisie 2013 aangevuld. De aanvulling speelt met name in op de ontwikkelingen die van invloed zijn op de betaalbaarheid en beschikbaarheid van woningen voor huishoudens met een laag of middeninkomen in Breda. Met de ontwikkeling worden 41 betaalbare woningen gerealiseerd, waarvan 11 woningen in de sociale huursector en 30 in de categorie middelduur hoog koop. Hiermee wordt aangesloten op de ambities en opgaven uit de woonvisie van de gemeente Breda.
In een bestemmingsplan dient gemotiveerd te worden in hoeverre het plan milieutechnisch haalbaar is. Dit houdt in dat verschillende ruimtelijke en milieutechnische aspecten, zoals ecologie, archeologie, bodem, waterhuishouding, geluid, externe veiligheid, etc. onderzocht moeten worden. In dit hoofdstuk worden deze aspecten nader gemotiveerd.
De milieueffectrapportage (m.e.r.) is een hulpmiddel om bij diverse procedures het milieubelang een volwaardige plaats in de besluitvorming te geven. Een m.e.r. is verplicht bij de voorbereiding van plannen en besluiten van de overheid over initiatieven en activiteiten van publieke en private partijen die belangrijke nadelige gevolgen voor het milieu kunnen hebben. De m.e.r. is wettelijk verankerd in hoofdstuk 7 van de Wet milieubeheer. Naast de Wet milieubeheer is het Besluit m.e.r. belangrijk om te kunnen bepalen of bij de voorbereiding van een plan of een besluit de m.e.r.-procedure moet worden doorlopen. Bij toetsing aan het Besluit m.e.r. zijn er vier mogelijkheden:
Sinds 16 mei 2017 geldt er een directe werking van het Europees recht. Daarom is per 7 juli 2017 het gewijzigde Besluit m.e.r. in werking getreden. In de gewijzigde Besluit m.e.r. staat de nieuwe procedure voor de vormvrije m.e.r.-beoordeling. Voor elke aanvraag, waarbij een vormvrije m.e.r.-beoordeling aan de orde is, moet:
De artikelen 7.16 tot en met 7.20a Wm zijn in de nieuwe wetgeving voor alle in het Besluit m.e.r. genoemde activiteiten van de D-lijst van toepassing.
Planspecifiek
De realisatie van woningen valt onder een stedelijk ontwikkelingsproject zoals genoemd in categorie D 11.2 van het Besluit m.e.r. en er is sprake van een besluit zoals genoemd in kolom 4. De drempelwaarde uit onderdeel D 11.2 voor woningen ligt op 2.000 woningen of meer. De realisatie van 41 woningen, ligt ver onder de drempelwaarden van de D-lijst, waardoor kan worden volstaan met een m.e.r.-beoordeling. Deze vormvrije m.e.r.-beoordeling kan tot twee conclusies leiden:
Bij besluiten ten aanzien van waarvan moet worden beoordeeld of een milieueffectrapport moet worden gemaakt is artikel 7.19 van de Wet milieubeheer van toepassing. Met name lid 3, waarin wordt verwezen naar de relevante criteria van bijlage III bij de m.e.r.-richtlijn, is hierbij relevant. Deze selectiecriteria zijn:
In de 'Aanmeldnotitie m.e.r.-beoordeling Claudius Prinsenlaan e.o., Molenslag ong. (25 februari 2021, Buro SRO, zie bijlagen bij toelichting bijlage 1). wordt hier nader op ingegaan. Er is onderzocht of er belangrijke negatieve milieugevolgen te verwachten zijn. Er is geconcludeerd dat het plan op zich en in samenhang met andere plannen geen belangrijke negatieve gevolgen zal hebben voor de kenmerken van het gebied zelf en voor het woon- en leefmilieu in de omgeving. Er worden geen negatieve effecten verwacht vanwege de ligging van het plangebied ten opzichte van gevoelige gebieden. Derhalve kan worden geconcludeerd dat er geen sprake is van een mer-plicht.
In het kader van een ruimtelijk plan dient aangetoond te worden dat de kwaliteit van de bodem en het grondwater in het plangebied in overeenstemming zijn met het beoogde gebruik. De bodemkwaliteit kan namelijk van invloed zijn op de beoogde functie van het plangebied. Indien sprake is van een functiewijziging zal er soms een bodemonderzoek moeten worden uitgevoerd in het plangebied. Ontwikkelingen kunnen pas plaatsvinden als de bodem waarop deze ontwikkelingen plaatsvinden geschikt is of geschikt is gemaakt voor het beoogde doel.
Bij een bestemmingswijziging is een bodemonderzoek slechts noodzakelijk, indien de bestemmingswijziging tevens een wijziging naar een strenger bodemgebruik inhoudt. Bij een bestemmingswijziging die een gelijkblijvend of minder streng bodemgebruik oplevert, is de bodemkwaliteit in het kader van de bestemmingswijziging niet relevant en is bodemonderzoek niet noodzakelijk.
Planspecifiek
De beoogde ontwikkeling voorziet in een wijziging van een recreatieve bestemming naar een woonbestemming. Hiermee vindt er een bestemmingswijziging naar een strenger bodemgebruik plaats. Derhalve is een verkennend bodemonderzoek uitgevoerd (12 oktober 2020, Wematech Bodem Adviseurs B.V., zie bijlagen bij toelichting bijlage 2). Uit dit onderzoek zijn de volgende resultaten en conclusies naar voren gekomen.
Op basis van zintuigelijke beoordeling zijn in de bovengrond sporen baksteen en sporen van grind aangetroffen. Bij verschillende boringen zijn er sporen van kolengruis, baksteen en grind waargenomen. De bijmengingen van kolengruis, baksteen en grind worden niet aangemerkt als zijnde asbestverdacht.
De bovengrond aan de noordzijde van de locatie is licht verontreinigd met lood. De bovengrond aan de zuidzijde is niet verontreinigd. Tevens is de humeuze ondergrond niet verontreinigd. De kolengruishoudende ondergrond is licht verontreinigd met cadmium, kwik en lood. Het grondwater is licht verontreinigd met barium.
De bovengrond voldoet daarmee aan de klasse achtergrondwaarde. Voor de humeuze ondergrond geldt dat deze voldoet aan de klasse achtergrondwaarde en de kolengruishoudende ondergrond voldoet aan de klasse wonen.
Op basis van het historisch onderzoek, de zintuiglijke beoordeling van de grond- en grondwatermonsters en de resultaten van het chemisch-analytisch onderzoek kan gesteld worden dat binnen de huidige functieklasse geen gebruiksbeperkingen hoeven te worden gesteld aan de onderzoekslocatie. De verkregen resultaten geven geen aanleiding tot het uitvoeren van een nader bodemonderzoek.
Geconcludeerd kan worden dat het aspect bodem geen belemmeringen vormt voor de beoogde ontwikkeling.
In de Wet milieubeheer gaat paragraaf 5.2 over luchtkwaliteit en staat ook wel bekend als de ‘Wet luchtkwaliteit’. Deze wet maakt onderscheid tussen 'kleine' en 'grote' projecten. Kleine projecten dragen 'niet in betekenende mate' (NIBM) bij aan de verslechtering van de luchtkwaliteit. Een paar honderd grote projecten dragen juist wel 'in betekenende mate' bij aan de verslechtering van de luchtkwaliteit. Het gaat hierbij vooral om bedrijventerreinen en infrastructuur (wegen).
Wat het begrip 'in betekenende mate' precies inhoudt, staat in een de algemene maatregel van bestuur ‘Niet in betekenende mate bijdragen’ (Besluit NIBM). Op hoofdlijnen komt het erop neer dat 'grote' projecten die jaarlijks meer dan 3 % bijdragen aan de jaargemiddelde norm voor fijn stof (PM10) en stikstofdioxide (NO2) (1,2 µg/m³) een 'betekenend' negatief effect hebben op de luchtkwaliteit. 'Kleine' projecten die minder dan 3 % bijdragen, kunnen doorgaan zonder toetsing. Dat betekent bijvoorbeeld dat lokale overheden een woonwijk van minder dan 1.500 woningen niet hoeven te toetsen aan de normen voor luchtkwaliteit. Deze kwantitatieve vertaling naar verschillende functies is neergelegd in de 'Regeling niet in betekenende mate bijdragen'.
Een belangrijk onderdeel voor de verbetering van de luchtkwaliteit is het Nationale Samenwerkingsprogramma Luchtkwaliteit (NSL). Binnen dit NSL, dat sinds 1 augustus 2009 in werking is, werken het Rijk, de provincies en gemeenten samen om de Europese eisen voor luchtkwaliteit te realiseren.
Vanaf 1 januari 2015 geldt er ook een grenswaarde voor een kleinere fractie van fijn stof namelijk PM2,5. De grenswaarde voor PM2,5bedraagt 25 µg/m³. Gezien het grote verschil tussen de grenswaarde en de achtergrondconcentratie zullen overschrijdingen van deze grenswaarde niet vaak voorkomen. Het blijkt dat als de grenswaarde voor PM10niet wordt overschreden, er geen overschrijding van de grenswaarde voor PM2,5zal zijn. Het is de verwachting dat door het schoner worden van de autotechniek de concentratie van met name stikstofdioxide in de toekomst nog verder afneemt.
In het kader van het opstellen van een bestemmingsplan moeten er twee aspecten in beeld gebracht worden. Ten eerste of de luchtkwaliteit de nieuwe functie toelaat. Ten tweede moet bekeken worden of het plan de luchtkwaliteit ‘niet in betekenende mate’ verslechtert. Indien het plan wel ‘in betekenende mate’ bijdraagt aan verslechtering van de luchtkwaliteit, is het van belang om te toetsen of de grenswaarden niet overschreden worden. Indien geen overschrijding van de grenswaarden plaatsvindt, kan het plan alsnog gerealiseerd worden.
Planspecifiek
Het voorgenomen plan maakt de ontwikkeling van 41 nieuwe woningen mogelijk, maar blijft onder de grens van 1.500 woningen. Hiermee is het project aan te merken als een project van 'niet in betekenende mate'. Toetsing van het aspect luchtkwaliteit is daardoor, op grond van artikel 4 van de Regeling NIBM, niet noodzakelijk.
In het kader van een goede ruimtelijke ordening is met behulp van de 'Atlas leefomgeving' gekeken naar de luchtkwaliteit in en rondom het plangebied. De achtergrondconcentraties over 2018 van fijnstof (PM10en PM2,5) en stikstofdioxide (NO2) nabij het plangebied bedragen respectievelijk maximaal 18,9 μg/m³, 11,8 μg/m³ en 21,6 µg/m³. Daarmee wordt ruimschoots voldaan aan de wettelijke grenswaarden van 40 μg/m³ voor fijnstof PM10en stikstofdioxide en 25 µg/m³ voor fijnstof PM2,5.
Het aspect luchtkwaliteit vormt geen belemmering voor de uitvoerbaarheid van de voorgenomen ontwikkeling.
De mate waarin het geluid, het woonmilieu mag belasten, is geregeld in de Wet geluidhinder (Wgh). De kern van de wet is dat geluidsgevoelige objecten worden beschermd tegen geluidhinder uit de omgeving. In de Wgh worden de volgende objecten beschermd (artikel 1 Wgh):
Het beschermen van deze geluidsgevoelige objecten gebeurt aan de hand van vastgestelde zoneringen. De belangrijkste geluidsbronnen die in de Wet geluidhinder worden geregeld zijn: industrielawaai, wegverkeerslawaai en spoorweglawaai.
Planspecifiek
In het kader van de Wet geluidhinder (Wgh) worden woningen gezien als geluidgevoelige objecten. Het plangebied bevindt zich binnen de wettelijke onderzoekszone (200 m) van de Claudius Prinsenlaan. Derhalve is een akoestisch onderzoek wegverkeer uitgevoerd, om aan te tonen dat sprake is van een aanvaardbaar woon- en leefklimaat (8 december 2020, Adviesbureau Van der Boom BV, zie bijlagen bij toelichting bijlage 3).
De geluidbelasting door wegverkeer op de Claudius Prinsenlaan bedraagt ten hoogste 40 dB na aftrek van 5 dB ex art 110-g Wgh. De voorkeursgrenswaarde van 48 dB wordt niet overschreden. Er zijn geen hogere waarden nodig voor de geluidbelasting door wegverkeer op deze weg.
Bij het toetsen of sprake is van een “goede ruimtelijke ordening” is aangesloten bij het toetsingskader van de Wgh en het hogere waarden beleid van de gemeente. Aan dit toetsingskader kan worden voldaan. Alle gevels zijn geluidluw. Voor het aspect geluid zal sprake zijn van een goede ruimtelijke ordening als voor de woningen daarnaast wordt voldaan aan de eisen voor de geluidwering conform het Bouwbesluit.
Voor geluidluwe gevels, met een geluidbelasting van ten hoogste 53 dB zonder aftrek, bedraagt de benodigde karakteristieke geluidwering GA;k 20 dB. Dit is de minimale waarde conform het Bouwbesluit. De geluidbelasting op de gevels van de woningen bedraagt ten hoogste 49 dB zonder aftrek. Voor de gevels van de woningen zijn geen aanvullende geluidwerende voorzieningen nodig.
Geconcludeerd kan worden dat het aspect geluid geen belemmeringen veroorzaakt voor de beoogde ontwikkeling.
Het aspect bedrijven en milieuzonering gaat in op de invloed die bedrijven kunnen hebben op hun omgeving. Deze invloed is afhankelijk van de afstand tussen een gevoelige bestemming en de bedrijvigheid. Milieugevoelige bestemmingen zijn gebouwen en terreinen die naar hun aard bestemd zijn voor het verblijf van personen gedurende de dag of nacht of een gedeelte daarvan (bijvoorbeeld woningen). Daarnaast kunnen ook landelijke gebieden en/of andere landschappen belangrijk zijn bij een zonering tot andere, minder gevoelige, functies zoals bedrijven.
Bij een ruimtelijke ontwikkeling kan sprake zijn van reeds aanwezige bedrijvigheid en van nieuwe bedrijvigheid. Milieuzonering zorgt er voor dat nieuwe bedrijven een juiste plek in de nabijheid van de gevoelige functie krijgen en dat de (nieuwe) gevoelige functie op een verantwoorde afstand van bedrijven komen te staan. Doel hiervan is het waarborgen van de veiligheid en het garanderen van de continuïteit van de bedrijven als ook een goed klimaat voor de gevoelige functie.
Milieuzonering beperkt zich tot milieuaspecten met een ruimtelijke dimensie zoals: geluid, geur, gevaar en stof. De mate waarin de milieuaspecten gelden en waaraan de milieucontour wordt vastgesteld, is voor elk type bedrijvigheid verschillend. De 'Vereniging van Nederlandse Gemeenten' (VNG) geeft sinds 1986 de publicatie 'Bedrijven en Milieuzonering' uit. In deze publicatie is een lijst opgenomen, met daarin de minimale richtafstanden tussen een gevoelige bestemming en bedrijven. Indien van deze richtafstanden afgeweken wordt dient een nadere motivatie gegeven te worden waarom dat wordt gedaan.
Het belang van milieuzonering wordt steeds groter aangezien functiemenging steeds vaker voorkomt. Hierbij is het motto: 'scheiden waar het moet, mengen waar het kan'. Het scheiden van milieubelastende en milieugevoelige bestemmingen dient twee doelen:
In de VNG-publicatie 'Bedrijven en milieuzonering' (editie 2009) wordt onderscheid gemaakt in niet-bindende richtafstanden voor de omgevingstypen 'gemengd gebied' en 'rustige woonwijk/ rustig buitengebied'. De omgeving van het plangebied wordt gezien de ligging in de nabijheid van scholen en andere maatschappelijke functies aangemerkt als een gemengd gebied. Dit betekent dat de richtafstanden met één afstandsstap kunnen worden verminderd, met uitzondering van het aspect gevaar.
Planspecifiek
Met het voorliggende bestemmingsplan wordt een gevoelige bestemming (woningen) mogelijk gemaakt. Derhalve dient er beoordeeld te worden of er ter plaatse van deze milieugevoelige bestemming sprake is van een goed woon- en leefklimaat en milieubelastende activiteiten in de omgeving niet belemmerd worden als gevolg van het plan.
In de omgeving van het plangebied zijn verschillende functies zoals maatschappelijk, sport en wonen aanwezig. Derhalve kan het plangebied aangemerkt worden als het gebiedstype 'gemengd gebied'. De richtafstanden uit de VNG-publicatie 'Bedrijven en milieuzonering' kunnen daarmee met één afstandstap worden verminderd. In de navolgende tabel staan de omliggende bedrijven en milieubelastende activiteiten in de omgeving van het plangebied weergegeven.
|
Adres |
Activiteiten |
SBI-2008 |
Milieucategorie |
Richtafstand (gemengd gebied) |
Afstand tot de woningen |
|
Topaasstraat 13 |
Sporthal |
931 |
3.1 |
30 m |
38 m |
| Pels Rijckenpark 81-92 | Woonzorgcomplex | 873 | 2 | 10 m | 35 m |
|
Bijster 1-5 |
Kantoren |
- |
2 |
10 m |
55 m |
|
Bijster 7-21 |
Avans Hogeschool |
8532, 854, 855 |
2 |
10 m |
155 m |
|
Nieuwe Inslag 46 |
Middelbare school |
852, 8531 |
2 |
10 m |
120 m |
|
Nieuwe Inslag 89 -97 |
Sportvelden |
931 |
3.1 |
30 m |
230 m |
|
Claudius Prinsenlaan 150 |
Benzineservicestation |
473 |
3.1 |
50 m |
205 m |
Zoals in bovenstaande tabel is af te lezen wordt voor alle milieubelastende activiteiten rond het plangebied voldaan aan de richtafstand van VNG-publicatie 'Bedrijven en milieuzonering'.
De vergunde jaardoorzet van het Benzineservicestation aan de Claudius Prinsenlaan bedraagt 500-1000 m³ per jaar. Daarmee geldt milieucategorie 3.1 en een richtafstand van 50 m. De beoogde woningen liggen met een afstand van ca. 205 m op voldoende afstand. In toelichting paragraaf 4.6 wordt nader ingegaan op de ligging ten opzichte van het benzineservicestation aan de Claudius Prinsenlaan, vanuit het aspect 'externe veiligheid'.
Geconcludeerd kan worden dat het aspect milieuzonering geen belemmeringen veroorzaakt voor de beoogde ontwikkeling.
Sommige activiteiten brengen risico's op zware ongevallen met mogelijk grote gevolgen voor de omgeving met zich mee. Externe veiligheid richt zich op het beheersen van deze risico's. Het gaat daarbij om onder meer de productie, opslag, transport en het gebruik van gevaarlijke stoffen. Dergelijke activiteiten kunnen een beperking opleggen aan de omgeving. Door voldoende afstand tot de risicovolle activiteiten aan te houden kan voldaan worden aan de normen. Aan de andere kant is de ruimte schaars en het rijksbeleid erop gericht de schaarse ruimte zo efficiënt mogelijk te benutten. Het ruimtelijk beleid en het externe veiligheidsbeleid moeten dus goed worden afgestemd. De wetgeving rond externe veiligheid richt zich op de volgende risico’s:
Daarnaast wordt er in de wetgeving onderscheid gemaakt tussen de begrippen kwetsbaar en beperkt kwetsbaar en plaatsgebonden risico en groepsrisico.
Kwetsbaar en beperkt kwetsbaar
Kwetsbaar zijn onder meer woningen, onderwijs- en gezondheidsinstellingen, kinderopvang- en dagverblijven en grote kantoorgebouwen (>1.500 m²). Beperkt kwetsbaar zijn onder meer kleine kantoren, winkels, horeca en parkeerterreinen. De volledige lijst wat onder (beperkt) kwetsbaar wordt verstaan is in het Besluit externe veiligheid inrichtingen (Bevi) opgenomen.
Plaatsgebonden risico en groepsrisico
Het plaatsgebonden risico wordt uitgedrukt in een contour van 10-6als grenswaarde. Het realiseren van kwetsbare objecten binnen deze contour is niet toegestaan. Het realiseren van beperkt kwetsbare objecten binnen deze contour is in principe ook niet toegestaan. Echter, voor beperkte kwetsbare objecten is deze 10-6-contour een richtwaarde. Mits goed gemotiveerd kan worden afgeweken van deze waarde tot de 10-5-contour.
Het groepsrisico is gedefinieerd als de cumulatieve kansen per jaar dat ten minste 10, 100 of 1.000 personen overlijden als rechtstreeks gevolg van hun aanwezigheid in het invloedsgebied van een inrichting en een ongewoon voorval binnen die inrichting waarbij een gevaarlijke stof betrokken is. Het groepsrisico wordt niet in contouren vertaald, maar wordt weergegeven in een grafiek. In de grafiek wordt de groepsgrootte van aantallen slachtoffers (x-as) uitgezet tegen de cumulatieve kans dat een dergelijke groep slachtoffer wordt van een ongeval (y-as). Voor het groepsrisico geldt geen grenswaarde, maar een zogenaamde oriëntatiewaarde. Daarnaast geldt voor het groepsrisico een verantwoordingsplicht. Het bevoegd gezag moet aangeven welke mogelijkheden er zijn om het groepsrisico in de nabije toekomst te beperken, het moet aangeven op welke manier hulpverlening, zelfredzaamheid en bestrijdbaarheid zijn ingevuld. Het bevoegd gezag moet tevens aangeven waarom de risico's verantwoord zijn, en de veiligheidsregio moet in de gelegenheid zijn gesteld een brandweeradvies te geven. Hierbij geldt hoe hoger het groepsrisico, hoe groter het belang van een goede groepsrisicoverantwoording.
Risicovolle (Bevi-)inrichtingen
Voor (de omgeving van) de meest risicovolle bedrijven is het Besluit externe veiligheid inrichtingen (Bevi) van belang. Het Bevi legt veiligheidsnormen op aan bedrijven die een risico vormen voor mensen buiten de inrichting. Het Bevi is opgesteld om de risico's, waaraan burgers in hun leefomgeving worden blootgesteld vanwege risicovolle bedrijven, te beperken. Het besluit heeft tot doel zowel individuele als groepen burgers een minimaal (aanvaard) beschermingsniveau te bieden. Via een bijhorende ministeriële regeling (Revi) worden diverse veiligheidsafstanden tot kwetsbare en beperkt kwetsbare objecten gegeven. Aanvullend op het Bevi zijn in het Vuurwerkbesluit en het Activiteitenbesluit (Besluit algemene regels inrichtingen milieubeheer) veiligheidsafstanden genoemd die rond minder risicovolle inrichtingen moeten worden aangehouden.
Vervoer gevaarlijke stoffen over weg, water en spoor
Het Besluit externe veiligheid transportroutes (Bevt) stelt regels aan transportroutes en de omgeving daarvan. Zo moet een basisveiligheidsniveau rond transportassen (plaatsgebonden risico) en een transparante afweging van het groepsrisico worden gewaarborgd.
Als onderdeel van het Bevt is op 1 april 2015 tevens het basisnet in werking getreden. Het basisnet verhoogt de veiligheid van mensen die wonen of werken in de buurt van rijksinfrastructuur (auto-, spoor- en vaarwegen) waarover gevaarlijke stoffen worden vervoerd. In de regeling ligt vast wat de maximale risico’s voor omwonenden mogen zijn. Die begrenzing was er tot nu toe niet. Bovendien zorgt het basisnet ervoor dat gevaarlijke stoffen tussen de belangrijkste industriële locaties in Nederland en het buitenland vervoerd kunnen blijven worden.
Indien een bestemmingsplan betrekking heeft op een gebied dat geheel of gedeeltelijk gelegen is binnen 200 m van een (basisnet)transportroute voor gevaarlijke stoffen, moet in de toelichting ingegaan worden op de dichtheid van personen in het invloedsgebied van de transportroute op het tijdstip waarop het plan wordt vastgesteld. Hierbij moet rekening worden gehouden met de personen die a) in dat gebied reeds aanwezig zijn, b) in dat gebied op grond van het geldende bestemmingsplan redelijkerwijs te verwachten zijn en c) de redelijkerwijs te verwachten verandering van de dichtheid van personen in het gebied waarop dat plan betrekking heeft.
Planspecifiek
Voor de beoordeling of in de omgeving van het plangebied risicovolle inrichtingen, buisleidingen en/of transportroutes van gevaarlijke stoffen aanwezig zijn is de risicokaart geraadpleegd. Op navolgende afbeelding staat een uitsnede van de risicokaart weergegeven.

Uitsnede risicokaart, plangebied zwart omkaderd (bron: risicokaart.nl)
Risicovolle inrichtingen
Ten zuiden van het plangebied bevindt zich aan de Claudius Prinsenlaan een tankstation van Total. Het tankstation bevindt zich op een afstand van ca. 205 m van de beoogde appartementen en op circa 180 meter afstand tot het plangebied. De risicobronnen van het tankstation zijn een vulpunt, reservoir en afleverinstallatie. De PR 10-6contouren bedragen 35 m voor het vulpunt, 25 m voor het reservoir en 15 m voor de afleverinstallatie. Het plangebied ligt ruim buiten deze contouren. Het tankstation heeft een invloedsgebied van 150 voor het groepsrisico. Ook hier valt het plangebied buiten. Daarmee kan gesteld worden dat het plangebied op voldoende afstand van het tankstation ligt.
Transportroutes voor gevaarlijke stoffen
In de directe omgeving van het plangebied zijn geen transportroutes voor gevaarlijke stoffen aanwezig. Wel ligt het plangebied binnen het invloedsgebied van de A27. Het uitvoeren van een nieuwe risicoberekening is niet noodzakelijk, omdat de afstand tot de A27 meer dan 200 m bedraagt (Besluit externe veiligheid transportroutes, art. 8). Aan de mogelijkheden tot voorbereiding van bestrijding en beperking van de omvang van een ramp en de mogelijkheden voor personen om zich in veiligheid te brengen moet wel aandacht worden besteed (Bevt, art 7). Bij een incident met toxische stoffen op de A27 kan een giftige gaswolk ontstaan die de planlocatie kan bereiken. Bij een dergelijke calamiteit zijn geen bijzondere voorzieningen nodig om de omvang van een ramp te beperken en om de aanwezige personen veiligheid te bieden. Het sluiten van ramen, deuren en ventilatieroosters en het zoveel mogelijk uitschakelen van ventilatiesystemen na alarmering door de sirene van de veiligheidsregio of bericht van NL-Alert, is daarvoor voldoende.
Buisleidingen
Op een afstand van ca. 160 m ten zuiden van het plangebied ligt een buisleiding van Gasunie Transport Services. Voor de buisleiding geldt geen PR 10-6contour en ook geen contour voor het groepsrisico. Het invloedsgebied van de buisleiding bedraagt 140 m. De beoogde woningen liggen niet in het invloedsgebied van de buisleiding. Derhalve is een groepsrisicoberekening niet noodzakelijk.
Conclusie
Geconcludeerd kan worden dat het aspect externe veiligheid geen belemmeringen veroorzaakt voor de beoogde ontwikkeling van de appartementen.
Het aspect water is van groot belang binnen de ruimtelijke ordening. Door verstandig om te gaan met het water kan verdroging en wateroverlast (waaronder ook risico van overstromingen e.d.) voorkomen worden en de kwaliteit van het water hoog gehouden worden.
Op Rijksniveau en Europees niveau zijn de laatste jaren veel plannen en wetten gemaakt met betrekking tot water. De belangrijkste hiervan zijn het Waterbeleid voor de 21eeeuw, de Waterwet en het Nationaal Waterplan.
Waterbeleid voor de 21eeeuw
De Commissie Waterbeheer 21eeeuw heeft in augustus 2000 advies uitgebracht over het toekomstige waterbeleid in Nederland. De adviezen van de commissie staan in het rapport ‘Anders omgaan met water, Waterbeleid voor de 21eeeuw’ (WB21). De kern van het rapport WB21 is dat water de ruimte moet krijgen, voordat het die ruimte zelf neemt. In het Waterbeleid voor de 21eeeuw worden twee principes (drietrapsstrategieën) voor duurzaam waterbeheer geïntroduceerd:
Waterwet
Centraal in de Waterwet staat een integraal waterbeheer op basis van de ‘watersysteembenadering’. Deze benadering gaat uit van het geheel van relaties binnen watersystemen. Denk hierbij aan de relaties tussen waterkwaliteit, -kwantiteit, oppervlakte- en grondwater, maar ook aan de samenhang tussen water, grondgebruik en watergebruikers. Het doel van de Waterwet is het integreren van acht bestaande wetten voor waterbeheer. Door middel van één watervergunning regelt de wet het beheer van oppervlaktewater en grondwater en de juridische implementatie van Europese richtlijnen, waaronder de Kaderrichtlijn Water. Via de Waterwet gelden verschillende algemene regels. Niet alles is onder algemene regels te vangen en daarom is er de integrale watervergunning. In deze integrale watervergunning zijn zes vergunningen uit eerdere wetten (inclusief keurvergunning) opgegaan in één aparte watervergunning.
Nationaal Waterplan
Op basis van de Waterwet is het Nationaal Waterplan vastgesteld door het kabinet. Het Nationaal Waterplan geeft op hoofdlijnen aan welk beleid het Rijk in de periode 2016 - 2021 voert om te komen tot een duurzaam waterbeheer. Het Nationaal Waterplan richt zich op bescherming tegen overstromingen, beschikbaarheid van voldoende en schoon water en de diverse vormen van gebruik van water. Het geeft maatregelen die in de periode 2016-2021 genomen moeten worden om Nederland ook voor toekomstige generaties veilig en leefbaar te houden en de kansen die water biedt te benutten.
Waterschap Brabantse Delta
Het waterschap Brabantse Delta is verantwoordelijk voor het waterbeheer. Hieronder valt het waterkwantiteits- en -kwaliteitsbeheer, de waterkeringen, waterzuivering, grondwaterbeheer, waterbodembeheer en scheepvaartbeheer. In het waterbeheerplan 2016-2021 is het beleid met de bijbehorende doelstellingen van het waterschap Brabantse Delta opgenomen. Daarnaast beschikt het waterschap over een eigen 'Keur' en 'Legger'. In de keur staan de gebods- en verbodsbepalingen met betrekking op de waterhuishouding en het waterbeheer. In de legger zijn de waterstaatwerken met bijbehorende afmetingen en onderhoudsplicht opgenomen.
De keuren van de drie Brabantse waterschappen, Aa en Maas, De Dommel en Brabantse Delta zijn geüniformeerd. Onderdeel hiervan zijn de beleidsuitgangspunten voor het beoordelen van plannen waarbij het verhard oppervlak toeneemt. Bij een toename aan verhard oppervlak wordt uitgegaan van de voorkeursvolgorde infiltreren, bergen, afvoeren.
Wanneer er sprake is van een toename van verhard oppervlak tussen de 500 m² en 10.000 m² wordt de rekenregel toegepast en bij toename van meer dan 10.000 m², of bij het niet voldoen aan de rekenregel, wordt de beleidsregel toegepast. Verhard oppervlak is al het oppervlak dat er voor zorgt dat hemelwater sneller tot afvoer komt dan in de huidige situatie zonder verharding.
Gemeente Breda
Het beleid van de gemeente Breda omtrent water is opgenomen in het Stedelijk Waterplan 2019 - 2023. Naast het inspelen op nieuwe ontwikkelingen heeft de gemeente de taak om watertaken te blijven vervullen. In het Stedelijk Waterplan 2019 - 2023 brengt de gemeente Breda met betrekking tot stedelijk water de opgave voor de komende planperiode in beeld en wordt de wijze waarop in beeld gebracht. Daarbij zijn de volgende ambities en lange termijn doelen uitgewerkt.
Daarnaast zijn de aspecten klimaatadaptatie en een duurzame waterketen van belang. Op het gebied van klimaatadaptatie is de gemeente Breda koploper en wil dat vanuit de mogelijkheden binnen stedelijk water ook blijven. Als gemeente heeft de gemeente Breda om in 2044 CO2neutraal en in 2050 grondstoffenneutraal te zijn.
De ‘watertoets’ is een instrument dat waterhuishoudkundige belangen expliciet en op evenwichtige wijze laat meewegen bij het opstellen van ruimtelijke plannen en besluiten. Het is geen technische toets maar een proces dat de initiatiefnemer van een ruimtelijk plan en de waterbeheerder met elkaar in gesprek brengt in een zo vroeg mogelijk stadium. In de waterparagraaf worden de watertoets en de uitkomsten van een eventueel overleg opgenomen.
Planspecifiek
Watercompensatie
Het initiatief gaat gepaard met een toename van het verhard oppervlak. In de huidige situatie bestaat de planlocatie voornamelijk uit grasland en een verhard pad met een oppervlakte van 160 m². In de toekomstige situatie bestaat de oppervlakte aan verharding uit de gebouwen, het parkeerterrein en de paden met een totale oppervlakte van 2.800 m². Daarmee neemt de oppervlakte aan verharding met 2.640 m² toe. Bij een toename of herontwikkeling van meer dan 500 m² is een vergunning nodig.
Waterschap Brabantse Delta hanteert bij een toename tussen de 500 m² en 10.000 m² de volgende rekenregel: benodigde compensatie (in m³) = toename verhard oppervlak (in m²) * gevoeligheidsfactor * 0,06 (in m). De planlocatie ligt in een gebied waar de gevoeligheidsfactor 1 geldt. Uit de berekening (2.640*1*0,06) blijkt dat volgens het waterschap er 158,4 m³ aan water gecompenseerd moet worden.
Volgens het gemeentelijke waterbeleid wordt de capaciteit van de waterbergingsvoorziening evenwel als volgt berekend:
De benodigde inhoud aan waterberging bedraagt op basis hiervan: (160*0,007) + (2.640*0,078) = 1,12 + 206 = 208 m³. De waterberging dient op eigen terrein plaats te vinden.
Er zal worden voldaan aan het gemeentelijke waterbeleid. In overleg met het waterschap en de gemeente wordt vastgesteld waar het teveel aan water naar afgevoerd kan worden. Tevens wordt in overleg de waterberging verder aangescherpt.
In het voorliggende bestemmingsplan is een voorwaardelijke verplichting opgenomen, om veilig te stellen dat voorzien wordt in voldoende waterberging.
Grondwaterstanden
Op basis van recent uitgevoerde sonderingen en het raadplegen van de kaart Actuele Hoogtebestand Nederland blijkt dat het maaiveld van deze locatie op circa 3,1m+NAP ligt. Op basis van het grondwaternetwerk van de gemeente is de verwachting dat de hoogste grondwater ter plaatse op 2m+NAP ligt. De afstand tussen hoogste grondwaterstand en maaiveld ligt daarbij op circa 1m. De kruin van de waterkering van De Leij staat aangegeven op 3,3m+NAP.
Riolering en afkoppeling
In de toekomstige situatie wordt aangesloten op de ambities van het waterschap. Zo wordt het hemelwater zoveel mogelijk geïnfiltreerd in de bodem en wordt er geen gebruik gemaakt van uitlogende materialen. De gebouwen zullen aangesloten worden op het gemeentelijke rioolstelsel.
Waterkeringen
Ten noorden van het plangebied loopt de Molenleij. Uit het raadplegen van de legger van het Waterschap Brabantse Delta blijkt dat dat de beschermingszone van de regionale waterkering binnen het plangebied ligt. Echter is binnen deze beschermingszone geen bebouwing beoogd. De Molenleij (A-watergang) blijft ongewijzigd. Op de navolgende afbeelding staan de Molenleij en de waterkering weergegeven ten opzichte van het plangebied.

Uitsnede Legger Waterschap Brabantse Delta (bron: Waterschap Brabantse Delta)
Conclusie
Geconcludeerd kan worden dat het aspect water geen belemmeringen veroorzaakt voor de beoogde ontwikkeling.
Bij ruimtelijke ingrepen dient rekening te worden gehouden met de natuurwaarden ter plaatse. Daarbij wordt onderscheid gemaakt tussen gebiedsbescherming en soortenbescherming. Gebiedsbescherming kan volgen uit de aanwijzing van een gebied. Wat betreft soortenbescherming is per 1 januari 2017 de Flora- en faunawet samen met de Boswet en Natuurbeschermingswet vervangen door de Wet natuurbescherming (Wnb). Onder de Wet natuurbescherming zijn de tabellen 1, 2 en 3 vervallen waarin de beschermde soorten zijn opgenomen. Tevens zijn er circa 200 soorten niet langer beschermd en zijn enkele bedreigde soorten toegevoegd. De soortenbescherming binnen de Wet natuurbescherming is opgedeeld in de volgende beschermingsregimes: Vogelrichtlijnsoorten, Habitatrichtlijnsoorten en andere soorten. Voor alle beschermde soorten geldt een ontheffingsplicht. Het bevoegd gezag (de provincie) kan voor de soorten die zijn opgenomen in het ‘beschermingsregime andere soorten’ vrijstellingbesluit nemen en hierin onderscheid maken tussen meer en minder strikt beschermde soorten.
Daarnaast geldt voor iedereen in Nederland altijd, dus ook los van het voorliggende beoogde ruimtelijke project, dat de zorgplicht nageleefd moet worden bij het verrichten van werkzaamheden. Voor menig soort geldt dat indien deze zorgplicht nagekomen wordt een bepaald beoogd project uitvoerbaar is.
Planspecifiek
Met voorliggend plan is een nieuwe inrichting van het terrein beoogd. De activiteiten die nodig zijn om het plan mogelijk te maken kunnen mogelijk effecten hebben op de beschermde flora en fauna, beschermde natuurgebieden en/of houtopstanden. Om die reden is een quickscan flora en fauna uitgevoerd (25 november 2020, Blom Ecologie B.V., zie bijlagen bij toelichting bijlage 4).
Soortenbescherming
De planlocatie heeft geen essentiële betekenis voor beschermde soorten. Door de beoogde ontwikkeling zullen geen vaste rust- en verblijfplaatsen, geen essentiële vliegroutes en geen essentieel foerageergebied voor vleermuizen weggenomen worden. De planlocatie is mogelijk geschikt leefgebied voor algemene zoogdieren, foeragerende vleermuizen, amfibieën, insecten en broedvogels welke niet beschermd zijn (behoudens de Algemene zorgplicht) onder de Wet natuurbescherming.
Houtopstanden
Op de planlocatie zijn geen houtopstanden aanwezig waarvoor bij kap een meldingsplicht geldt in het kader van de Wet natuurbescherming.
Gebiedsbescherming
De planlocatie maakt geen onderdeel uit van een Natura 2000-gebied of het Natuurnetwerk Brabant. Gelet op de aard van de werkzaamheden, de afstand tot de gebieden en de beoogde situatie is van externe werking op omliggende Natura 2000-gebieden geen sprake. Een Voortoets en/of ‘nee, tenzij’-toets is niet noodzakelijk. Gelet op de aard van de werkzaamheden, de afstand tot de gebieden en de beoogde situatie dienen de effecten van stikstofemissie inzichtelijk gemaakt te worden.
Op verzoek van de gemeente Breda is naast de in november 2020 uitgevoerde quickscan een nieuwe quickscan uitgevoerd (11 mei 2021, Ecogroen advies & ingenieursbureau, zie bijlagen bij toelichting bijlage 5). Uit deze quickscan zijn dezelfde conclusies en aanbevelingen als de eerder uitgevoerde quickscan naar voren gekomen. Er is dan ook geen nader onderzoek naar beschermde soorten noodzakelijk. Wel wordt ook hier het uitvoeren van een AERIUS-berekening geadviseerd.
Stikstofdepositie
De onderhavige ontwikkeling gaat gepaard met de uitstoot van stikstof in de gebruiks- en bouwfase. Derhalve moet in beeld gebracht worden wat de mogelijke effecten van de ontwikkeling zijn op de instandhoudingsdoelstellingen van Natura 2000-gebieden, met name Natura 2000-gebied 'Ulvenhoutse Bos'. In de bijgevoegde rapportage zijn de mogelijke effecten in beeld gebracht (2 december 2020, Buro SRO, zie bijlagen bij toelichting bijlage 6).
Voor de gebruiksfase is uitgegaan van een toename van de verkeersgeneratie van 178 voertuigbewegingen per etmaal, verdeeld over licht verkeer en middelzwaar vrachtverkeer. De appartementen worden niet aangesloten op het gas, waardoor deze niet meegenomen zijn in de berekening. Uit de AERIUS-berekening blijkt dat er in totaal sprake is van een NOx emissie van 14,63 kg/j en een NH3 emissie van < 1 kg/j. Voor de Natura 2000-gebieden geldt dat er geen rekenresultaten hoger dan 0,00 mol/ha/j zijn.
Voor de bouwfase is een ruime schatting gemaakt voor de mobiele werktuigen die nodig zijn en het aantal verkeersbewegingen voor het vervoer van personeel en materialen. Tijdens de bouwfase worden de drie appartementencomplexen met 41 appartementen gebouwd. Uit de AERIUS-berekening blijkt dat er in totaal sprake is van een NOx emissie van 104,30 kg/j en een NH3 emissie van < 1 kg/j. Voor de Natura 2000-gebieden geldt dat er geen rekenresultaten hoger dan 0,00 mol/ha/j zijn.
Er kan geconcludeerd worden dat de stikstofdepositie vanwege de beoogde ontwikkeling geen significante gevolgen heeft voor de Natura 2000-gebieden. Daarmee is er geen vergunning nodig in het kader van de Wet natuurbescherming.
Conclusie
Het aspect ecologie vormt geen belemmering voor het onderhavige initiatief. Ook met het oog op de Wet natuurbescherming is het plan uitvoerbaar.
In 'Grondstof voor de toekomst, Programma erfgoed 2019-2025' is vastgesteld dat erfgoed wordt benut als onderlegger voor de (her)ontwikkeling van de fysieke leefomgeving. De erfgoedkaarten vormen nu letterlijk de onderlegger voor het handelen van de gemeente. Archeologie, historische geografie en gebouwd erfgoed vormen hierbij een belangrijk uitganspunt voor ontwikkelingen. Archeologie is vastgelegd in de Beleidsadvieskaart Breda’s Erfgoed, deel 1 Archeologie, historische geografie en gebouwd erfgoed zijn vastgelegd in de Beleidsadvieskaart Breda’s Erfgoed, deel 2 Historische geografie en gebouwd erfgoed. De kaarten dienen, zoals vastgelegd in het Besluit ruimtelijke ordening, als leidraad voor de erfgoedadvisering bij het opstellen of afwijken van bestemmingsplannen.
Planspecifiek
Archeologie
Uit de 'Beleidsadvieskaart Breda’s Erfgoed, deel 1, Archeologie' blijkt dat de gronden ter plaatse van het plangebied over een middelhoge archeologische verwachting te beschikken. Bij bodemingrepen dieper dan 30 cm beneden het maaiveld en met een oppervlakte van meer dan 100 m² is het uitvoeren van een archeologisch onderzoek noodzakelijk. Met onderhavige ontwikkeling worden deze normen overschreden. Derhalve is door Transect een Archeologisch Bureauonderzoek uitgevoerd (20 januari 2021, Transect, zie bijlagen bij toelichting bijlage 7).
Het doel van dit onderzoek is het specificeren van de archeologische verwachting van het plangebied.
Uit het bureauonderzoek blijkt dat de bodem in het plangebied al tot in het archeologische niveau verstoord is geraakt. De voorgenomen ingrepen vormen dan ook geen bedreiging voor eventuele archeologische resten en/of grondsporen. Geadviseerd wordt om geen dubbelbestemming ‘Waarde-Archeologie’ op te nemen in het voorliggende bestemmingsplan en om het plangebied vrij te geven voor de voorgenomen ontwikkeling.
De resultaten van het archeologisch onderzoek zijn door het bevoegd gezag, in deze de gemeente Breda, middels een selectiebesluit vervolgens vastgesteld (2 februari 2021, Gemeente Breda, zie bijlagen bij toelichting bijlage 8).
Voorts geldt de archeologische meldplicht. Wanneer bij werkzaamheden toch onverhoopt waardevolle archeologische resten worden aangetroffen, dienen deze conform de Erfgoedwet 2016 (artikel 5.10) te worden gemeld bij de gemeente Breda.
Historische geografie en gebouwd erfgoed
Het plangebied heeft op basis van de 'Beleidsadvieskaart Breda’s Erfgoed, deel 2 Historische geografie en gebouwd erfgoed' geen bijzondere betekenis. Wel is direct ten westen van het plangebied een Rijksmonument aanwezig: het Gemeentelijk Sportcentrum Breda.
Het in 1967 geopende gebouw is van J.J. Margry van Bureau Margry en Van Hoytema. Het gemeentelijk sportcentrum is een bijzondere uitdrukking van de ontwikkeling dat sportbeoefening in een toenemende belangstelling stond, en vanaf de jaren vijftig door de overheid steeds meer werd gestimuleerd.
Het gebouw is van waarde als goed voorbeeld van het indertijd nieuwe bouwtype van overdekte accommodatie van zaalsporten. De hoogwaardige esthetische kwaliteiten zijn van belang, waarbij een zakelijk verband is gezocht tussen vorm, constructie en ruimtelijke indeling, waarbij de constructie heeft gezorgd voor een vrij vloeroppervlak en tevens een markante, expressieve vormgeving. Van belang is ook de combinatie van beton brut in het exterieur en de binnenwanden van geglazuurde baksteen.
Het gebouw vormt een beeldbepalend object aan de Claudius Prinsenlaan. Deze slingerende uitvalsweg vormt een belangrijk onderdeel van het stedenbouwkundig plan van P. Verhagen voor Breda. Hij ontwierp de laan als een brede ‘parkway’ met vrijstaande gebouwen in het groen. De sporthal is een van deze gebouwen. Aan de zijde van de Claudius Prinsenlaan heeft het gebouw daarom de meest expressieve verschijningsvorm.

Gemeentelijk Sportcentrum Breda gezien vanaf de Topaasstraat (bron: Facebook Gemeentelijk Sportcentrum Breda)
Het onderhavige initiatief doet geen afbreuk aan de monumentale waarden van het sportcentrum. De kenmerkende expressieve vorm blijft zichtbaar en wordt niet verstoord door de voorgenomen woningbouw. Het zicht op het sportcentrum vanaf de bepalende Claudius Prinsenlaan, zoals hieronder geïllustreerd, wordt niet wezenlijk negatief beïnvloed door het onderhavige initiatief dat nauwelijks zichtbaar is vanaf de Claudius Prinsenlaan.

Perspectief vanaf Claudius Prinsenlaan (bron: Oomen Architecten, 3 februari 2021)
Conclusie
Geconcludeerd kan worden dat het aspect cultureel erfgoed geen belemmeringen veroorzaakt voor de beoogde ontwikkeling.
Onderdeel van een goede ruimtelijke ordening is het effect van een beoogd nieuw project op de verkeersstructuur en het parkeren in en rondom het plangebied.
Voor het maken van een inschatting van de hoeveelheid autoverkeer dat wordt gegenereerd bij ruimtelijke ontwikkelingen, zijn kencijfers verkeersgeneratie ontwikkeld. Onder verkeersgeneratie wordt hierbij verstaan de totale hoeveelheid gemotoriseerd verkeer (exclusief openbaar vervoer) die gedurende een gekozen tijdsperiode naar de beoogde ontwikkeling toe rijdt en hiervan wegrijdt.
Het nationale kennisplatform voor infrastructuur, verkeer, vervoer en openbare ruimte (CROW) geeft in publicatie 381 'Toekomstbestendig parkeren, van parkeerkencijfers naar parkeernormen' kencijfers voor verkeersgeneratie. In de richtlijnen wordt onderscheid gemaakt op basis van de functie van de ontwikkeling (wonen, bedrijf, etc.) en op basis van de locatiekenmerken. Zodoende kan bij ruimtelijke ontwikkelingen voor vrijwel elke locatie een goed beeld worden verkregen wat de totale verkeersaantrekkende werking bedraagt.
Planspecifiek
Om de verkeersgeneratie die veroorzaakt wordt door de herontwikkeling van het erf te bepalen, zijn de verkeerscijfers van de CROW-publicatie 381 geraadpleegd. Voor het plangebied wordt uitgegaan van een 'sterk stedelijk' woonmilieu in de 'schil centrum'. In navolgende tabel staat per categorie de gemiddelde verkeersgeneratie aangegeven.
| Functie/aansluiting CROW-publicatie 381 | Aantal woningen | CROW-verkeersgeneratie | Totale verkeersgeneratie |
| koop, appartement, midden | 30 | 4,75 | 142,5 |
| huur, appartement, midden/goedkoop (incl. sociaal) | 11 | 3,2 | 35,2 |
| Totaal | 41 | 177,7 |
In totaal neemt de ontwikkeling van de in totaal 41 appartementen een verkeersgeneratie mee van, naar boven afgerond, 178 voertuigbewegingen per etmaal met zich mee. Het plangebied wordt ontsloten door middel van een ontsluitingsweg die aansluit op de Molenslag ten oosten van het plangebied. Gelet op de relatief lage toename van het aantal voertuigbewegingen kan de toename van de verkeersgeneratie opgevangen worden met de verkeersstructuur in de omgeving.
Geconcludeerd kan worden dat het aspect verkeer geen belemmeringen veroorzaakt voor de beoogde ontwikkeling.
Het benodigde of gewenste aantal parkeerplaatsen bij ruimtelijke ontwikkelingen kan worden bepaald op basis van parkeerkencijfers of op basis van parkeernormen. Parkeerkencijfers zijn op de praktijk gebaseerde cijfers van de verwachte parkeerbehoefte. Parkeernormen staan voor het aantal vereiste parkeerplaatsen per type bestemming.
In aanvulling op de ''Nota Parkeer- en Stallingsbeleid Breda', heeft de gemeenteraad van de gemeente Breda op 20 juni 2013 de 'Herijking nota Parkeer- en Stallingsbeleid Breda 2004' vastgesteld. In deze nota's is het beleid rondom de thema's zoals parkeerregulering en parkeernormering benoemd. Op 29 april 2021 is de nieuwe 'Nota Parkeernormen Breda 2021' vastgesteld. Deze nota vervangt de parkeernormen en regels over de toepassing van parkeernormen uit de Herijking nota Parkeer- en Stallingsbeleid.
Planspecifiek
In de navolgende tabel is het aantal parkeerplaatsen aangegeven dat op basis van de op 29 april 2021 vastgestelde nieuwe parkeernormen voor het gebied ‘Schil’, waarbinnen de locatie ligt, voor het initiatief nodig is:
| Categorie |
Parkeernorm per appartement |
Aantal | Totaal |
| sociale huurappartementen | 0,9 | 11 | 9,9 |
| appartementen tussen 70 m² en 90 m² | 1,0 | 14 | 14 |
| appartementen groter dan 90 m² | 1,2 | 16 | 19,2 |
| totaal | 41 | 43,1 |
Uit voorgaande tabel blijkt dat er met de beoogde ontwikkeling minimaal 43 parkeerplaatsen nodig zijn om te voldoen aan de gestelde parkeernormen. Aan die normen wordt voldaan. De parkeerplaatsen worden gerealiseerd op een centraal parkeerterrein aan de oostkant van het plangebied. Het parkeerterrein is te bereiken door middel van een nieuwe ontsluiting vanaf de Molenslag.
Het aspect parkeren vormt geen belemmering voor het onderhavige initiatief.
Het Rijk sluit aan bij de Europese doelstelling om te komen tot een 20 % reductie van de CO2-uitstoot in 2020 ten opzichte van 1990. In 2020 dient verder de bijdrage van duurzame energie 14 % van het totale energieverbruik te zijn. De gebouwde omgeving is goed voor 30 % van het totale energieverbruik in Nederland, heeft een groot besparingspotentieel en kan daardoor een belangrijke bijdrage leveren aan het realiseren van de bovengenoemde doelstellingen, ook op de langere termijn.
Nederland in 2050 vrij van aardgas
Op 7 december 2016 is de energieagenda gepubliceerd door minister Kamp. De agenda schetst het beleid na 2023 dat moet leiden tot een vrijwel CO2-neutrale economie in Nederland in 2050. De agenda beschrijft de overgang naar een gasloze maatschappij. Verwarming van huizen en kantoren zal worden overgenomen door duurzame energiebronnen en koken zal in de toekomst uitsluitend nog elektrisch gebeuren.
De Wet Voortgang Energietransitie (Wet VET) schrijft voor dat nieuwbouw per 1 juli 2018 gasloos uitgevoerd dient te worden.
Energie (BENG)
De rijksoverheid stimuleert duurzaam bouwen vooral op het aspect energie. Sinds 1995 worden in het Bouwbesluit eisen gesteld ten aanzien van de energiezuinigheid van een gebouw. Tot 31 december 2020 wordt de energie-efficiëntie uitgedrukt in de Energie Prestatie Coëfficiënt (EPC). Hierbij werd gestreefd naar EPC = 0,0, waarbij een gebouw energieneutraal is. Vanaf 1 januari 2021 moeten alle gebouwen voldoen aan de eisen van Bijna Energieneutrale Gebouwen (BENG). Die eisen vervangen de EPC en zijn dus ook van toepassing op het voorliggende initiatief.
MilieuPrestatie Gebouwen (MPG)
De MilieuPrestatie Gebouwen (MPG) is een belangrijke maatstaf voor de duurzaamheid van een gebouw en is bij elke aanvraag voor een omgevingsvergunning verplicht. De MPG geeft aan wat de milieubelasting is van de materialen die in een gebouw worden toegepast. Het gaat hierbij om nieuwbouwwoningen en nieuwe kantoorgebouwen die groter zijn dan 100 m². Hoe lager de MPG, hoe duurzamer het materiaalgebruik.
De gebruikte impact van de gebruikte materialen wordt in kaart gebracht aan de hand van productiewijze van de gebruikte bouwmaterialen, het transport, de levensduur van de materialen en de manier van afdanken. Vervolgens worden alle materialen bij elkaar opgeteld. Het resultaat van een dergelijke analyse wordt uitgedrukt in de zogenaamde ‘schaduwkosten’ van het materiaal. Hoe lager de schaduwkosten, hoe duurzamer het gekozen materiaaltype. Per 1 januari 2018 geldt een maximale totale schaduwprijs van 1,0€ / m² bvo.
GPR Gebouw
Een meetinstrument voor duurzame ontwikkeling en het benutten van het besparingspotentieel is GPR Gebouw. GPR Gebouw is een manier om duurzaam bouwen te concretiseren en doet dit door een rapportcijfer te geven op vijf thema’s: Energie, Milieu, Gezondheid, Gebruikskwaliteit en Toekomstwaarde. Hierbij geldt, hoe hoger het cijfer, hoe duurzamer het gebouw. Door de GPR Gebouw in te vullen wordt meer nagedacht over duurzaamheid tijdens het ontwerpen en (ver)bouwen van gebouwen. GPR Gebouw kan ook gebruikt worden om bestaande woningen en gebouwen te verduurzamen. Na invoering van gegevens in GPR Gebouw betreffende de woningen worden prestaties zichtbaar op de thema’s Energie, Milieu, Gezondheid, Gebruikskwaliteit en Toekomstwaarde.
Bodemmasterplan Breda 2030 'Een basis voor duurzame ontwikkeling'
De bodem wordt steeds intensiever gebruikt, bijvoorbeeld voor bodemenergie, drinkwatervoorraad en kabelnetwerken. Het is van belang om afwegingen te maken tussen benutten en beschermen van de bodem. Naast een economisch belang is de ondergrond essentieel voor het behalen van klimaatdoelstellingen. Als visie heeft de gemeente Breda het beschermen en benutten van de waardevolle zaken in de bodem, zoals bodemenergie, drinkwater en een schone bodem. De Bredase bodem vormt de basis voor duurzame ruimtelijke ontwikkeling. In het bodemmasterplan zijn beslispunten opgenomen voor 'Ruimte', 'Energie' en 'Bodem/Water'.
Op het gebied van ruimte worden integrale afwegingen gemaakt. Ruimtegebruik dat 'bodemschatten' bedreigt wordt nauwkeurig afgewogen en Breda stuurt op duurzaam grond- en bouwstoffenbeheer. er zijn bodemenergieplannen opgesteld waarin deelgebieden worden bestemd. De gemeente Breda geeft prioriteit aan bodemenergie als duurzame energiebron. Tevens krijgt waterkwaliteit en -infiltreren in de bodem aandacht in projecten en plannen.
Energievisie voor een gebiedsontwikkeling
De gemeente Breda hecht aan een energievisie. Dat betreft een onderzoek naar mogelijke energieconcepten voor een ontwikkellocatie. Voor een aantal woningtypen worden uitgangspunten geformuleerd om deze op energieprestatie te kunnen doorrekenen en vergelijken. Gedacht kan worden aan isolatiewaarden (cf Bouwbesluit of beter), ventilatiesysteem (met of zonder warmteterugwinning), afgiftesysteem (bijv. laagtemperatuur) en tapwaterklasse. In het onderzoek wordt gekeken naar verschillende mogelijkheden van energieopwekking waarbij ook specifieke kansen (in de omgeving) van de locatie in beeld gebracht worden. Dat zou bijvoorbeeld aquathermie of restwarmte kunnen zijn.
Planspecifiek
De energievisie voor het onderhavige initiatief gaat uit van stadsverwarming met een inpandige ruimte of lucht-water warmtepompen op het dak of water-water warmtepompen met een bron in de bodem. Dit wordt nader onderzocht of uitgewerkt in het kader van de omgevingsvergunning.
In ieder geval worden de gebouwen gasloos uitgevoerd en wordt qua duurzaamheid op gebouwniveau het bouwbesluit gevolgd. Daarnaast wordt in breder verband aandacht gegeven aan biodiversiteit, het tegengaan van hittestress e.d.
Gesteld kan worden dat het initiatief voldoet aan de eisen op het gebied van duurzaamheid.
Voor het bestemmingsplan is gebruik gemaakt van de in de Wet ruimtelijke ordening opgenomen standaardvorm van de Standaard Vergelijkbare Bestemmingplannen 2012 (SVBP 2012).
Dit bestemmingsplan bestaat uit een verbeelding, planregels en een toelichting. De verbeelding en de planregels vormen samen het juridisch bindende gedeelte van het bestemmingsplan. Beide planonderdelen dienen in onderlinge samenhang te worden bezien en toegepast. Op de verbeelding zijn de bestemmingen aangewezen. Aan deze bestemmingen zijn bouwregels en regels betreffende het gebruik gekoppeld.
De toelichting heeft geen rechtskracht, maar vormt niettemin een belangrijk onderdeel van het plan. De toelichting van dit bestemmingsplan geeft de beweegredenen, de onderzoeksresultaten en de beleidsuitgangspunten weer die aan het bestemmingsplan ten grondslag liggen. Ook is de toelichting van wezenlijk belang voor een juiste interpretatie en toepassing van het bestemmingsplan. Tot slot maakt een eventuele bijlage onlosmakelijk onderdeel uit van het bestemmingsplan.
Op de verbeelding worden de bestemmingen weergegeven, met daarbij andere bepalingen als gebiedsaanduidingen, bouwaanduidingen, bouwvlakken, etc. Voor de analoge verbeelding is gebruik gemaakt van een digitale ondergrond (Grootschalige Basiskaart en/of kadastrale kaart).
De planregels zijn onderverdeeld in vier hoofdstukken. Hoofdstuk I bevat de inleidende regels voor het hele plangebied. Hoofdstuk II geeft de bestemmingsregels. Hoofdstuk III geeft vervolgens de algemene regels waaronder (mogelijke) flexibiliteitsbepalingen in de vorm van wijzigings- en afwijkingsbevoegdheden. In dit derde hoofdstuk kunnen belangrijke algemene bepalingen zijn opgenomen die van invloed zijn op het bepaalde in hoofdstuk II. Ten slotte regelt hoofdstuk IV de overgangs- en slotbepalingen.
Voor de planregels is de gestandaardiseerde opbouw uit de SVBP 2012 gebruikt. In de planregels is een standaard hoofdstukindeling aangehouden die begint met 'Inleidende regels' (begrippen en wijze van meten), vervolgens met de 'Bestemmingsregels', de 'Algemene regels' (de regels die voor alle bestemmingen gelden) en de 'Overgangs- en slotregels'. In het tweede hoofdstuk, de Bestemmingsregels, staan de verschillende bestemming op alfabetische volgorde. Ook dit hoofdstuk kent een standaardopbouw:
Dit bestemmingsplan bevat de navolgende (dubbel)bestemmingen:
Groen
De groenstructuur binnen het plangebied is voorzien van de bestemming 'Groen'. Binnen die bestemming zijn naast groen en water, met name fiets- en voetpaden en speelvoorzieningen alsmede verhardingen voor hulpdiensten toegelaten.
Er zijn uitsluitend bouwwerken, geen gebouwen zijnde toegestaan.
Verkeer
De parkeervoorzieningen in het plangebied zijn voorzien van de bestemming 'Verkeer'. Binnen deze bestemming zijn ook groen en water toegelaten alsmede speelvoorzieningen e.d. Ook hier geldt dat uitsluitend bouwwerken, geen gebouwen zijnde zijn toegelaten.
Wonen
De drie appartementengebouwen hebben de bestemming 'Wonen'. Het gaat hierbij om wonen eventueel in combinatie met ruimte voor een aan huis verbonden beroeps- of bedrijfsactiviteit. Kamerverhuur is niet toegestaan. Vastgelegd is dat binnen het plangebied ten minste 26 % van het totaal aantal woningen als sociale huurwoningen worden gerealiseerd en in stand worden gehouden. Conform de 'Verordening doelgroepen sociale woningbouw & middenhuur gemeente Breda' dienen sociale huurwoningen gedurende een termijn van 15 jaar na eerste ingebruikname (verhuur) voor de doelgroep beschikbaar te blijven.
Voorts is aangegeven dat het om het type 'gestapeld' gaat en zijn de maximum bouwhoogten en het aantal wooneenheden per bouwvlak aangeduid op de verbeelding. De bouwvlakken beslaan het gehele bestemmingsvlak en mogen volledig worden bebouwd, inclusief de bijbehorende bergingen. Dat is ook de reden dat geen specifieke regeling is opgenomen voor bijbehorende bouwwerken.
Er is tevens een voorwaardelijke verplichting opgenomen om veilig te stellen dat wordt voorzien in een waterbergingsvoorziening met voldoende capaciteit. Daarbij is aangegeven hoe de capaciteit van de waterbergingsvoorziening wordt berekend.
In de Algemene regels is een regeling opgenomen voor het benodigde parkeren. Daarin is opgenomen dat het voldaan moet worden aan de gemeentelijke parkeernormen.
Bij de voorbereiding van een bestemmingsplan, een wijzigingsplan als bedoeld in artikel 3.6, eerste lid Wro of naar aanleiding van een omgevingsvergunning waarbij met toepassing van artikel 2.12, eerste lid, onder a, 2º en 3°van de Wabo wordt afgeweken van het bestemmingsplan of de beheersverordening, dient, op grond van artikel 3.1.6 lid 1, sub f van het Bro, onderzoek plaats te vinden naar de (economische) uitvoerbaarheid van het plan.
In principe dient bij vaststelling van een ruimtelijk besluit tevens een exploitatieplan vastgesteld te worden om verhaal van plankosten zeker te stellen. Op basis van artikel 6.12, lid 2 van de Wro kan de gemeenteraad bij het besluit tot vaststelling van het bestemmingsplan echter besluiten geen exploitatieplan vast te stellen indien:
Planspecifiek
Het uitvoeren van het project heeft geen financiële gevolgen voor de gemeente. De financiële verantwoordelijkheid voor het project en het daarbij horende risico wordt volledig gedragen door de initiatiefnemer. De gemeente heeft ten behoeve van het project met de initiatiefnemer een overeenkomst gesloten, als bedoeld in artikel 6.4a Wet ruimtelijke ordening. In deze overeenkomst wordt onder andere de betaling van de eventuele tegemoetkoming in de planschade, die het nieuwe planologisch kader kan veroorzaken, geregeld. De kosten zijn dankzij de overeenkomst anderszins verzekerd waardoor een exploitatieplan niet nodig is. De economische uitvoerbaarheid van het plan is derhalve verzekerd.
Bij de voorbereiding van een (voor)ontwerp bestemmingsplan dient op grond van artikel 3.1.6 lid 1 Wro sub c overleg te worden gevoerd als bedoeld in artikel 3.1.1 Bro. Op basis van het eerste lid van dit artikel wordt overleg gevoerd met waterschappen en met die diensten van provincie en Rijk die betrokken zijn bij de zorg voor de ruimtelijke ordening of belast zijn met de behartiging van belangen welke in het plan in het geding zijn.
Een ontwerpbestemmingsplan dient conform afdeling 3.4 Awb gedurende 6 weken ter inzage gelegd worden. Hierbij is er de mogelijkheid voor een ieder om zienswijzen in te dienen op het plan. Na vaststelling door de Raad wordt het vaststellingsbesluit bekend gemaakt. Het bestemmingsplan ligt na bekendmaking 6 weken ter inzage. Gedurende deze termijn is er de mogelijkheid beroep in te dienen bij de Afdeling bestuursrechtspraak van de Raad van State. Het bestemmingsplan treedt vervolgens de dag na afloop van de tervisielegging in werking als er geen beroep is ingesteld. Is er wel beroep ingesteld dan treedt het bestemmingsplan ook in werking, tenzij naast het indienen van een beroepschrift ook om een voorlopige voorziening is gevraagd. De schorsing van de inwerkingtreding eindigt indien de voorlopige voorziening wordt afgewezen. De procedure eindigt met het besluit van de Afdeling bestuursrechtspraak van de Raad van State.
Participatieleidraad gemeente Breda
Een goed initiatief vraagt om samenwerking en afstemming met inwoners, ondernemers, overheid en andere organisaties. Participatie is van belang om de plannen te verreiken en verbeteren met de inbreng van belanghebbenden. Daarnaast is er sprake van een betere besluitvorming omdat alle belangen in beeld zijn en er met deze belangen rekening gehouden kan worden. Het proces voor de participatie met belanghebbenden bestaat uit 4 stappen:
Participatieniveau
Voor het project de Triade is gekozen voor niveau 1; het informeren en raadplegen van de omwonenden. Daarbij staat de ontwikkelaar in dit project open voor ideeën, suggesties en input vanuit de buurt op het reeds in hoofdlijnen opgestelde plan. Er wordt geluisterd naar de input van de belanghebbenden. De ontwikkelaar hoeft de input niet te gebruiken en motiveert waarom hij/zij de input wel/niet verwerkt.
Participatieplan
Het participatie plan bestaat uit: gemotiveerde keuze voor mate van participatie, wie zijn belanghebbenden, hoe en wanneer worden ze betrokken, welke activiteiten worden georganiseerd, hoe ziet de totale communicatie er uit, wat gebeurt met de inbreng en hoe vindt de verslaglegging plaats. Het plan van aanpak voor de omgevingsparticipatie voor het project De Triade te Breda is als bijlagen opgenomen (22 februari 2021, Slokker Vastgoed, zie bijlagen bij toelichting bijlage 9).
Plan uitvoeren
De belanghebbenden zijn door middel van een huis-aan-huis flyer uitgenodigd, welke is uitgedeeld aan 150 adressen in de directe omgeving. Vragen en/of opmerkingen konden via de mail of het contactformulier op de website gesteld worden. Daarnaast is de flyer voorzien van een QR-code waarmee een informatiefilm te bekijken is. Op 7 januari 2021 om 19:30 uur heeft er een online Zoom-bijeenkomst plaatsgevonden.
Verslag participatie
Bij de Zoom-bijeenkomst op 7 januari 2021 zijn verschillende omwonenden en bedrijven aanwezig geweest. Daarnaast was de initiatiefnemer en de gemeente aanwezig. Tijdens de bijeenkomst zijn onder ander vragen gesteld over de inrichting van het landschap, parkeren en vervoer, het programma, de gebouwen en de planning. Grotendeels van de aanwezigen waren positief en enthousiast over het plan. Het verslag van de Zoom-bijeenkomst is toegevoegd als bijlage van dit bestemmingsplan (7 januari 2021, Slokker Vastgoed, zie bijlagen bij toelichting bijlage 10).
Op 3 maart 2021 is het voorontwerpbestemmingsplan in het kader van het vooroverleg, zoals bedoeld in artikel 3.1.1 lid 1 van het Besluit ruimtelijke ordening verstuurd naar vooroverlegpartners.
Reacties zijn ontvangen van Provincie Noord-Brabant, Waterschap Brabantse Delta en Brandweer Midden- en West-Brabant. De opmerkingen zien hieronder samengevat en van een gemeentelijke reactie (in cursief) voorzien.
1. Provincie Noord-Brabant (brief d.d. 8 maart 2021)
De provincie geeft aan dat het plan in overeenstemming is met de provinciale belangen.
Deze opmerking geeft geen aanleiding tot aanpassingen.
2. Waterschap Brabantse Delta (brief d.d. 25 maart 2021)
Verzocht wordt om de Molenleij (A-water) en de waterkering langs de Molenleij op een afbeelding in de
toelichting op te nemen. Daarnaast merkt het waterschap op dat de wijze waarop invulling gegeven wordt aan de benodigde retentie niet is opgenomen in de toelichting, maar dat het waterschap en de gemeente in overleg zijn over de inrichting van de benodigde retentie. Tevens wordt gewezen op het belang van klimaatadaptief bouwen.
Tot slot wijst het waterschap op de Keur en dat een vergunning van het waterschap aan de orde kan zijn.
De toelichting is op dit onderdeel aangepast en er zijn gesprekken gevoerd met het waterschap ten aanzien van de inrichting van het gebied.
3. Brandweer Midden- en West-Brabant (mail d.d. 24 maart 2021)
Het plangebied voldoet aan de bepalingen van het Standaardadvies 2021. Daarnaast is het plan getoetst aan de beleidsregels Bereikbaarheid en bluswater.
Bij de inrichting wordt rekening gehouden met de belangen van de brandweer. Zonodig komt dit nader aan bod in het kader van de omgevingsvergunningen.
Met de terinzagelegging van het ontwerpbestemmingsplan (voor de duur van zes weken) wordt de formele vaststellingsprocedure gestart. In de periode van 17 juni tot en met 28 juli 2021 is de mogelijkheid geboden schriftelijk of mondeling op het ontwerpbestemmingsplan te reageren. De ingekomen zienswijzen zijn samengevat en voorzien van beantwoording in een zienwijzennota bijgevoegd bij het vaststellingsbesluit. Deze zienswijzen zijn beoordeeld op het feit of, en zo ja, in hoeverre het ontwerp aanpassing behoeft richting vaststelling van het bestemmingsplan. Voorgesteld wordt het bestemmingsplan ongewijzigd vast te stellen.